Скачать ГОСТ МЭК 62040-3-2009 Системы гарантированного электроснабжения. Агрегаты бесперебойного питания. Часть 3. Общие технические требования. Методы испытанийДата актуализации: 01.01.2021
|
| Обозначение: | ГОСТ МЭК 62040-3-2009 |
| Обозначение англ: | GOST IEC 62040-3-2009 |
| Статус: | применяется в еаэс |
| Название рус.: | Системы гарантированного электроснабжения. Агрегаты бесперебойного питания. Часть 3. Общие технические требования. Методы испытаний |
| Название англ.: | Guarantee supply systems. Uninterruptible power systems. General technical requirements. Methods of testing |
| Дата добавления в базу: | 01.01.2019 |
| Дата актуализации: | 01.01.2021 |
| Дата введения: | 11.11.2009 |
| Область применения: | Стандарт распространяется на системы питания с использованием непрямых преобразующих электрических систем переменного — тока, имеющих устройства накопления электрической энергии в цепи постоянного тока. Основная функция агрегата бесперебойного питания (АБП), определяемая этим стандартом, — обеспечивать непрерывную работу в качестве вспомогательного источника электрической энергии. АБП также способствует улучшению качества питания путем поддержания его в пределах установленных характеристик. |
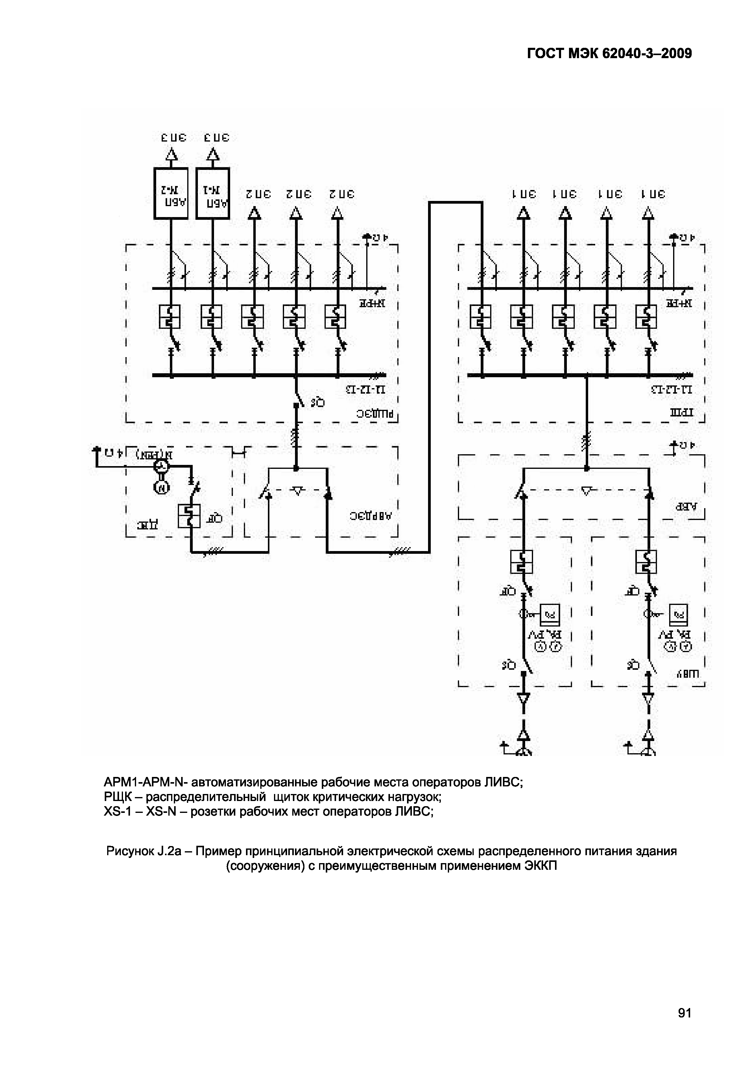
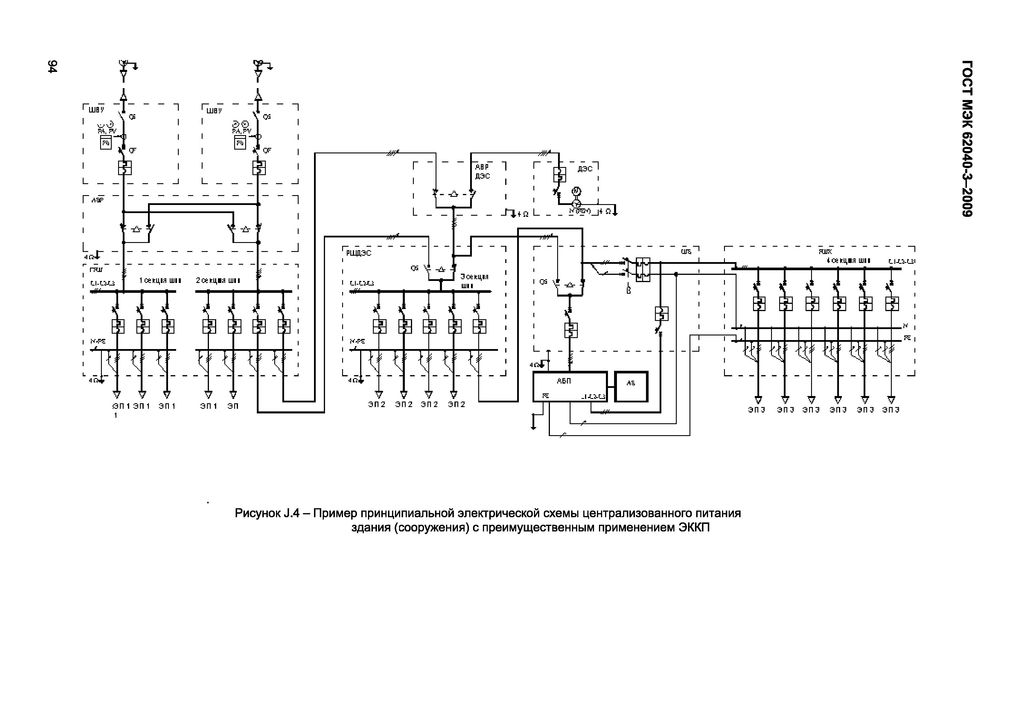
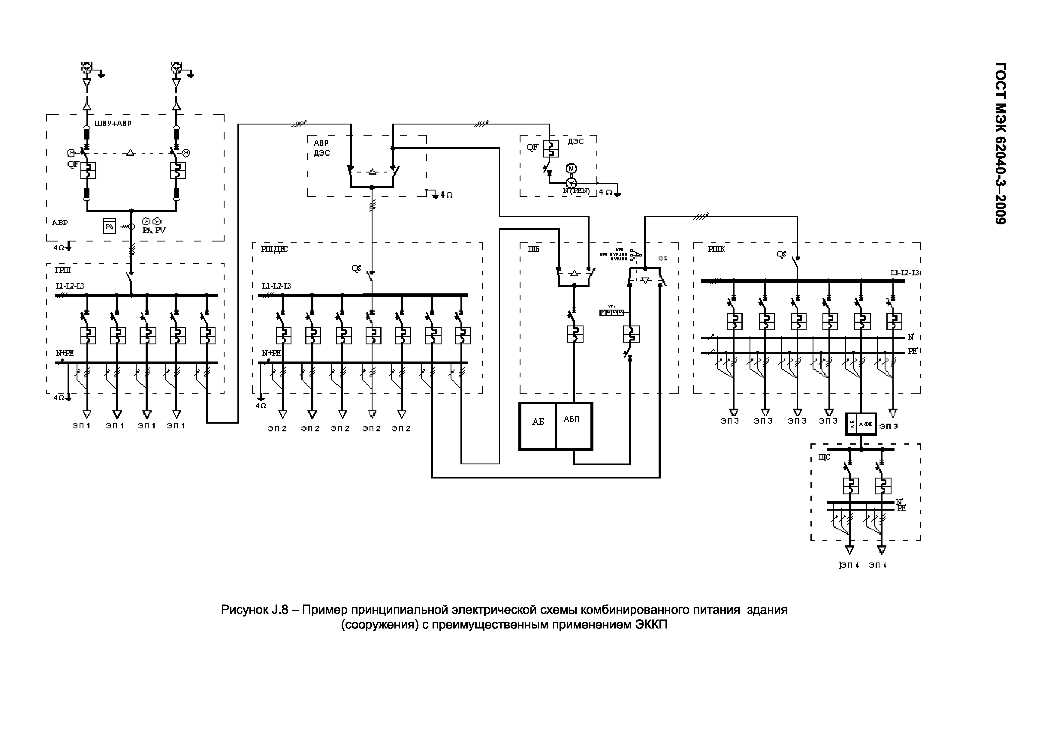
| Оглавление: | Введение 1 Область применения и назначение 2 Нормативные ссылки 3 Термины и определения 3.1 Системы и их составляющие 3.2 Рабочие характеристики систем и их составляющих 3.3 Заданные значения. Общие положения 3.4 Входные величины 3.5 Выходные величины 4 Общие рабочие условия окружающей среды 4.1 Нормальные условия окружающей среды и климатические рабочие условия 4.1.1 Расчетная высота над уровнем моря 4.1.2 Рабочая температура окружающей среды 4.1.3 Относительная влажность 4.1.4 Условия хранения и транспортирования 4.2 Рабочие условия, определяемые покупателем 4.2.1 Условия окружающей среды, подлежащие определению 4.2.2 Механические условия, которые надо определить 5 Электрические характеристики и рабочие условия 5.1 Общие положения для всех АБП 5.1.1 Конфигурация АБП 5.1.2 Маркирование оборудования и инструкции 5.1.3 Безопасность оборудование 5.2 Входные характеристики АБП 5.2.1 Нормальные рабочие условия 5.2.2 Номинальные величины и характеристики. 5.2.3 Входные условия АБП, которые определяет покупатель 5.3 Выходные характеристики АБП 5.3.1 Статические и динамические характеристики выходного напряжения 5.3.2 Номинальные выходные величины и характеристики 5.3.3 Одиночный АБП и параллельный АБП с обводной цепью 5.3.4 Требования к рабочим характеристикам, которые определяет покупатель 5.4 Характеристики промежуточной цепи постоянного тока АБП и/или цепи аккумуляторной батареи 5.5 Коммутационные устройства АБП, номинальные значения и рабочие характеристики 5.5.1 Общие положения 5.5.2 Коммутационные устройства АБП 5.6 Резервированные и параллельные системы АБП (см. приложение А) 5.6.1 АБП с выделенным резервом 5.6.2 АБП с параллельным резервом 5.7 Электромагнитная совместимость 5.8 Сигнальные цепи 6 Электрические испытания АБП 6.1 Общие положения 6.1.1 Типовые испытания 6.1.2 Приемочные испытания 6.1.3 Условия проведения испытаний 6.2 Испытание функциональных устройств АБП (если их применяют) 6.2.1 Испытание выпрямителя АБП 6.2.2 Испытание инвертора АБП 6.2.3 Испытание коммутационных устройств АБП 6.2.4 Испытание устройств контроля и управления 6.2.5 Испытание аккумуляторных батарей 6.3 Типовые испытания на соответствие характеристикам комплектного АБП, определяемые производителем 6.3.1 Сигналы управления и контроля 6.3.2 Проверка допустимых отклонений входного напряжения и частоты 6.3.3 Проверка силы пускового тока 6.3.4 Проверка выходных характеристик АБП. Статические условия. Нормальный режим работы и режим работы на накопленной энергии 6.3.5 Выходные характеристики АБП. Перегрузка и короткое замыкание 6.3.6 Проверка выходных динамических характеристик АБП 6.3.7 Проверка выходных динамических характеристик нагрузки АБП 6.3.8 Выходные характеристики АБП. Эталонные нелинейные нагрузки 6.3.9 Измерение времени работы на накопленной энергии и времени восстановления энергии 6.3.10 Коэффициент полезного действия и коэффициент мощности на входе 6.3.11 Проверка защиты в цепи тока утечки 6.3.12 Испытание на электромагнитную совместимость 6.4 Зарезервировано для использования в будущем 6.5 Зарезервировано для использования в будущем 6.6 Заводские испытания/испытание на месте установки 6.6.1 Испытание АБП 6.6.2 Проверка рабочих характеристик 6.6.3 Испытание при неполной нагрузке 6.6.4 Испытание вспомогательных устройств АБП 6.6.5 Проверка синхронизации 6.6.6 Проверка в случае неисправности на входе по переменному току 6.6.7 Повторная проверка входа по переменному току 6.6.8 Испытание АБП с параллельным резервом при имитации отказа 6.6.9 Испытание при перехода 6.6.10 Испытание при полной нагрузке 6.6.11 Измерение коэффициента полезного действия АБП 6.6.12 Проверка несимметричности нагрузки 6.6.13 Проверка симметричности нагрузки 6.6.14 Проверка токораспределения в параллельных АБП или в АБП с параллельным резервом 6.6.15 Измерение номинального времени работы на накопленной энергии 6.6.16 Измерение номинального времени восстановления энергии 6.6.17 Измерение пульсаций тока аккумуляторной батареи 6.6.18 Проверка перегрузочной способности 6.6.19 Проверка при коротком замыкании 6.6.20 Испытание устройств защиты от короткого замыкания 6.6.21 Проверка повторного запуска 6.6.22 Проверка перенапряжения на выходе 6.6.23 Проверка периодических изменений выходного напряжения 6.6.24 Проверка изменений частоты 6.6.25 Измерение радиочастотных помех и кондуктивных шумов 6.6.26 Измерение гармонических составляющих 6.6.27 Проверка при коротком замыкании на землю 6.6.28 Проверка вентиляции на месте установки 6.6.29 Проверка на совместимость с резервным генератором 6.7 Процедура испытания коммутационных устройств АБП 6.7.1 Программа испытаний коммутационных устройств АБП 6.7.2 Технические требования к испытаниям 6.7.3 Проверка соединительных кабелей 6.7.4 Испытание при неполной нагрузке 6.7.5 Испытание при полной нагрузке 6.7.6 Испытания при переходе 6.7.7 Проверка перегрузочной способности 6.7.8 Проверка стойкости к короткому замыканию 6.7.9 Проверка перенапряжения (электронные силовые коммутационные устройства) 6.7.10 Радиочастотные помехи и кондуктивные шумы 6.7.11 Низкочастотный шум 6.7.12 Проверка вентиляции на месте установки 6.7.13 Проверка при коротком замыкании на землю 6.7.14 дополнительные испытания 7 Неэлектрические испытания 7.1 Методы испытания на влияние окружающей среды и испытание на транспортировку 7.1.1 Транспортировка 7.2 Методы испытания на влияние окружающей среды в условиях хранения и работы 7.2.1 Испытание в условиях хранения 7.2.2 Испытание в рабочих условиях 7.3 Акустический шум Приложение А Типы конфигураций агрегатов бесперебойного питания (АБП) А.1 Одиночный АБП А.2 Параллельный АБП А.3 Резервированный АБП Приложение В Схемы подключения агрегатов бесперебойного питания (АБП) В.1 АБП с двойным преобразованием В.2 АБП с двойным преобразованием и обводной цепью В.3 Работа АБП в линейном интерактивном режиме В.4 Работа АБП в линейном интерактивном режиме с обводной цепью В.5 Пассивная работа АБП с выделенным резервом Приложение С Объяснение понятий коммутационных устройств АБП С.1 Прерыватели АБП С.2 Переключающие устройства С.3 Изолирующие переключатели АБП С.4 Переключатели обводной цепи для технического обслуживания АБП С.5 Соединительные переключатели С.6 Многофункциональные коммутационные устройства АБП Приложение D Руководство для покупателя D.1 Тип АБП, дополнительные характеристики и системные требования к нему D.2 Вход АБП D.3 Нагрузки, подключаемых АБП D.4 Выход АБП D.5 Аккумуляторная батарея (если применяют) D.6 Общие требования к применению и специальные рабочие условия D.7 Конфигурации многомодульных систем D.8 Электромагнитная совместимость D.9 Технические данные. Декларация производителя D.10 Классификация АБП по рабочим характеристикам Приложение Е Эталонная нелинейная нагрузка Приложение F Испытание защиты в цепи тока утечек F.1 Испытание съемных АБП типа А или В F.2 Испытание постоянно подключенных АБП F.3 Измерительные приборы для проверки тока утечки на землю Приложение G Отказ на входе сети питания. Метод испытания G.1 Испытание на отказ сети питания с большим полным импедансом G.2 Испытание на отказ сети питания с малым импедансом Приложение Н Определение характеристик изменения выходного напряжения при переходных процессах Н.1 Общие положения Н.2 Методы испытания и контрольно-измерительная аппаратура Н.3 Синусоидальная форма кривой выходного напряжения Н.4 Несинусоидальная форма кривой выходного напряжения (трапецеидальная, псевдоквадратичная и квадратичная) Н.5 Метод испытания активной нагрузки. Изменение рабочего режима/ступенчатая нагрузка Н.6 Метод испытания эталонной нелинейной нагрузки. Изменение рабочего режима/ступенчатая нагрузка Приложение I Библиография Приложение J Технические требования к проектированию систем гарантированного электроснабжения (СГЭ) J.1 Термины и определения к приложениям J-K J.2 Категории надежности электроприемников критической группы (ЭКК) и порядок их электроснабжения J.3 Схемотехнические решения СГЭ J.4 Электрические нагрузки СГЭ J.5 Дополнительные требования к СГЭ J.6 Примеры построения схем питания ЭКК с учетом надежности и условий применения Приложение К Нормативные документы, которыми следует дополнительно руководствоваться во время проектирования АБП Приложение L Перечень национальных межгосударственных стандартов, гармонизированных с международными стандартами (МС) или разработанных на основе МС, на которые есть ссылки в данном стандарте |
| Разработан: | Частное научно-производственное предприятие Синапс (г. Киев) Институт электродинамики НАН Украины (г. Киев) |
| Утверждён: | 11.11.2009 Евразийский совет по стандартизации, метрологии и сертификации (36-2009) |
| Заменяет собой: | |
| Нормативные ссылки: |
|















































































































