Скачать Методическое пособие. Проектирование мероприятий по обеспечению пожарной безопасности зданий и помещений медицинских организаций

Дата актуализации: 01.01.2021

Методическое пособие. Проектирование мероприятий по обеспечению пожарной безопасности зданий и помещений медицинских организаций

Статус:действует
Название рус.:Методическое пособие. Проектирование мероприятий по обеспечению пожарной безопасности зданий и помещений медицинских организаций
Дата добавления в базу:01.01.2019
Дата актуализации:01.01.2021
Область применения:Пособие предназначено для применения широким кругом специалистов, чья деятельность связана с проектированием и исследованиями в области строительства и обеспечения пожарной безопасности зданий и помещений медицинских организаций, в том числе специалистами проектных организаций, государственных и иных органов экспертизы и согласования, контрольно-надзорных органов, а также преподавателями и студентами высших учебных заведений
Оглавление:Введение
Обозначения и сокращения
1. Область применения
2. Нормативные ссылки
3. Термины и определения
4. Разъяснения и детализация требований пожарной безопасности
   4.1 Объемно-планировочные и конструктивные решения
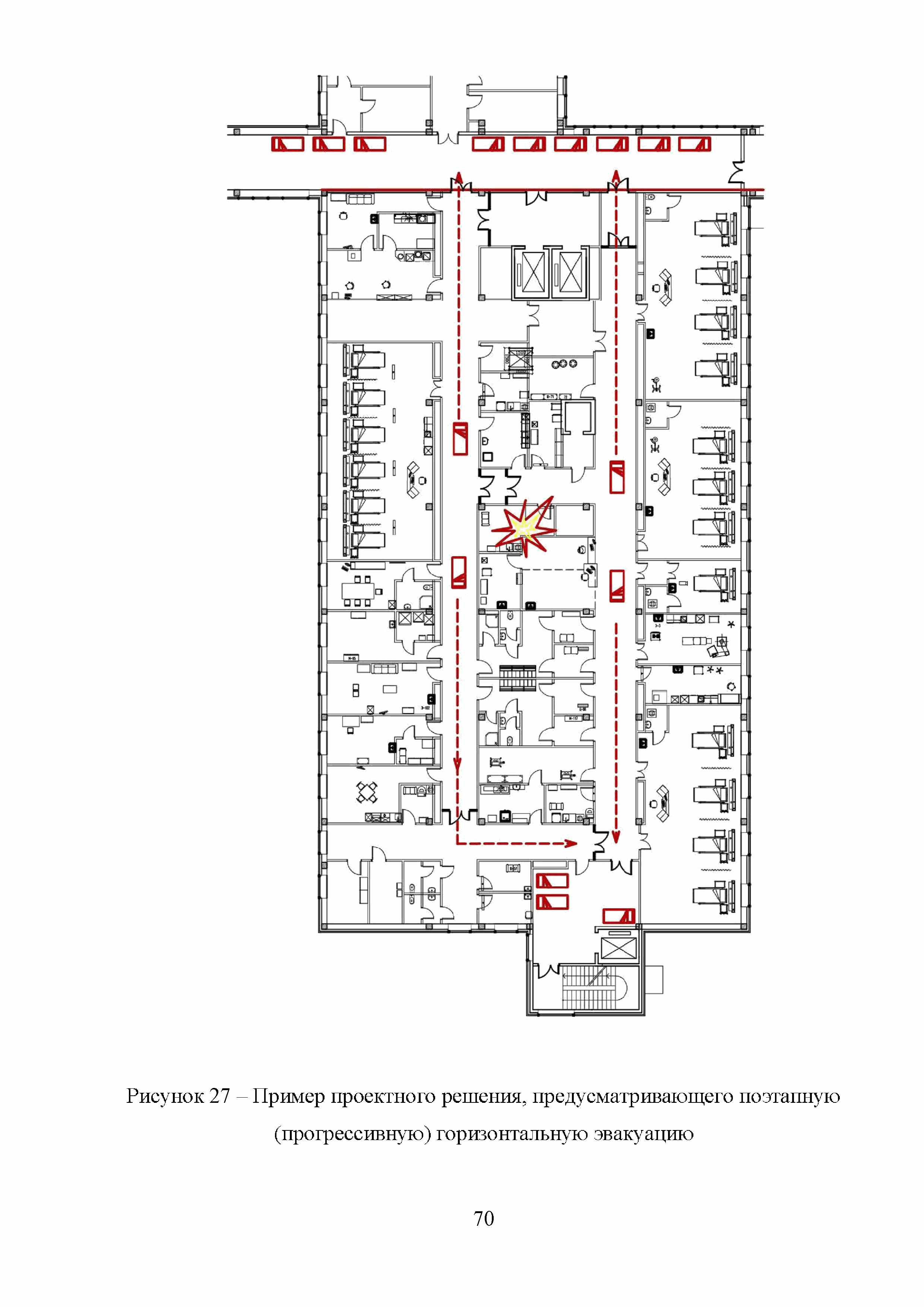
   4.2 Обеспечение безопасной эвакуации людей при пожаре
   4.3 Инженерные системы
5. Специфические требования к обеспечению пожарной безопасности
Приложение А. Расчет времени безопасной эвакуации маломобильных групп населения
Список использованных источников
Библиография
Разработан: СРО МОАБ
ФАУ Федеральный центр нормирования, стандартизации и оценки соответствия в строительстве
АО Гипроздрав
Утверждён: Министерство строительства и жилищно-коммунального хозяйства Российской Федерации
Нормативные ссылки: