Главная // Актуальные документы // Актуальные документы (обновление 2025.02.03-2025.03.01) // ПНСТ (Предварительный национальный стандарт)СПРАВКА
Источник публикации
М.: ФГБУ "Институт стандартизации", 2024
Примечание к документу
Документ
введен в действие с 01.01.2025 на период до 01.01.2028 (
Приказ Росстандарта от 28.10.2024 N 76-пнст).
Название документа
"ПНСТ 966-2024. Предварительный национальный стандарт Российской Федерации. Алгоритмы искусственного интеллекта для обнаружения и идентификации препятствий строительно-дорожной техники. Методы испытаний"
(утв. и введен в действие Приказом Росстандарта от 28.10.2024 N 76-пнст)
"ПНСТ 966-2024. Предварительный национальный стандарт Российской Федерации. Алгоритмы искусственного интеллекта для обнаружения и идентификации препятствий строительно-дорожной техники. Методы испытаний"
(утв. и введен в действие Приказом Росстандарта от 28.10.2024 N 76-пнст)
Утвержден и введен в действие
агентства по техническому
регулированию и метрологии
от 28 октября 2024 г. N 76-пнст
ПРЕДВАРИТЕЛЬНЫЙ НАЦИОНАЛЬНЫЙ СТАНДАРТ РОССИЙСКОЙ ФЕДЕРАЦИИ
АЛГОРИТМЫ ИСКУССТВЕННОГО ИНТЕЛЛЕКТА ДЛЯ ОБНАРУЖЕНИЯ
И ИДЕНТИФИКАЦИИ ПРЕПЯТСТВИЙ СТРОИТЕЛЬНО-ДОРОЖНОЙ ТЕХНИКИ
МЕТОДЫ ИСПЫТАНИЙ
Artificial intelligence algorithms for detecting
and identifying obstacles for road construction equipment.
Test procedures
ПНСТ 966-2024
Дата введения -
1 января 2025 года
1 января 2028 года
1 РАЗРАБОТАН Обществом с ограниченной ответственностью "ДСТ-УРАЛ" (ООО "ДСТ-УРАЛ")
2 ВНЕСЕН Техническим комитетом по стандартизации ТК 164 "Искусственный интеллект"
3 УТВЕРЖДЕН И ВВЕДЕН В ДЕЙСТВИЕ
Приказом Федерального агентства по техническому регулированию и метрологии от 28 октября 2024 г. N 76-пнст
Правила применения настоящего стандарта и проведения его мониторинга установлены в ГОСТ Р 1.16-2011 (разделы 5 и 6).
Федеральное агентство по техническому регулированию и метрологии собирает сведения о практическом применении настоящего стандарта. Данные сведения, а также замечания и предложения по содержанию стандарта можно направлять не позднее чем за 4 мес до истечения срока его действия разработчику настоящего стандарта по адресу: 454081 г. Челябинск, ул. Героев Танкограда, 28 П, и/или в Федеральное агентство по техническому регулированию и метрологии по адресу: 123112 Москва, Пресненская набережная, д. 10, стр. 2.
В случае отмены настоящего стандарта соответствующая информация будет опубликована в ежемесячном информационном указателе "Национальные стандарты" и также будет размещена на официальном сайте Федерального агентства по техническому регулированию и метрологии в сети Интернет (www.rst.gov.ru)
Безопасная работа строительно-дорожной техники и работников, задействованных в строительно-дорожном процессе, зависит от информации о препятствиях, возникающих на пути следования техники. Для испытания алгоритмов интеллектуальной системы обнаружения и распознавания препятствий, в целях обеспечения доверия к системам искусственного интеллекта для автоматизированного управления движением строительно-дорожной техники, основанным на использовании методов искусственного интеллекта, настоящий стандарт устанавливает общие требования и принципы проведения испытаний. В стандарте приведены алгоритмы интеллектуальной системы для обнаружения и распознавания препятствий и описание демонстрационных наборов данных с приведением сценариев испытаний описываемого алгоритма.
Настоящий стандарт является частью комплекса стандартов по установлению требований к применению технологий искусственного интеллекта на промышленном транспорте для повышения доверия к технологиям искусственного интеллекта, обеспечения безопасности строительно-дорожного процесса, жизни и здоровья людей, сохранности их имущества, охраны окружающей среды и повышения эффективности технологических процессов.
Настоящий стандарт устанавливает общие положения в отношении работы интеллектуальной системы обнаружения и идентификации препятствий в совокупности с исполнительными механизмами строительно-дорожной техники, в том числе устанавливает технические требования и методы испытаний.
Стандарт не относится к области испытаний строительно-дорожной техники на соответствие ее технических параметров выполнению дорожно-строительных работ.
Требования настоящего стандарта не распространяются на испытания тракторов и самоходных машин с целью определения их соблюдения соответствия требованиям дорожно-строительной технологии.
В настоящем стандарте использованы нормативные ссылки на следующие стандарты:
ГОСТ 19.301 Единая система программной документации. Программа и методика испытаний. Требования к содержанию и оформлению
| | ИС МЕГАНОРМ: примечание. В официальном тексте документа, видимо, допущена опечатка: стандарт имеет номер ГОСТ Р 53613, а не ГОСТ 53613. | |
ГОСТ 53613 Воздействие природных внешних условий на технические изделия. Общая характеристика. Осадки и ветер
ГОСТ ISO 15817 Машины землеройные. Требования безопасности к дистанционному управлению
ГОСТ Р 59276 Системы искусственного интеллекта. Способы обеспечения доверия. Общие положения
ГОСТ Р 59898 Оценка качества систем искусственного интеллекта. Общие положения
ГОСТ Р ИСО/МЭК 27002 Информационные технологии. Методы и средства обеспечения безопасности. Свод норм и правил применения мер обеспечения информационной безопасности
Примечание - При пользовании настоящим стандартом целесообразно проверить действие ссылочных стандартов в информационной системе общего пользования - на официальном сайте Федерального агентства по техническому регулированию и метрологии в сети Интернет или по ежегодному информационному указателю "Национальные стандарты", который опубликован по состоянию на 1 января текущего года, и по выпускам ежемесячного информационного указателя "Национальные стандарты" за текущий год. Если заменен ссылочный стандарт, на который дана недатированная ссылка, то рекомендуется использовать действующую версию этого стандарта с учетом всех внесенных в данную версию изменений. Если заменен ссылочный стандарт, на который дана датированная ссылка, то рекомендуется использовать версию этого стандарта с указанным выше годом утверждения (принятия). Если после утверждения настоящего стандарта в ссылочный стандарт, на который дана датированная ссылка, внесено изменение, затрагивающее положение, на которое дана ссылка, то это положение рекомендуется применять без учета данного изменения. Если ссылочный стандарт отменен без замены, то положение, в котором дана ссылка на него, рекомендуется применять в части, не затрагивающей эту ссылку.
В настоящем стандарте применены следующие термины с соответствующими определениями:
3.1 строительно-дорожная техника; СДТ: Совокупность рабочих машин, энергосредств и устройств, взаимоувязанных по конструктивным и эксплуатационным параметрам и предназначенных для дорожного строительства, а также для обслуживания и ремонта дорожного покрытия.
3.2 пульт управления: Беспроводной или проводной ручной (переносной) блок управления с интерфейсами к системе управления и с возможностью исключительно локальной или удаленной эксплуатации.
3.3 датчики обнаружения: Средства обнаружения, включая пассивные датчики, такие как видеокамеры, и активные датчики, такие как радар.
3.4
программное обеспечение (программа, программное средство): Упорядоченная последовательность инструкций (кодов) для вычислительного средства, находящаяся в памяти этого средства и представляющая собой описание алгоритма управления вычислительными средствами и действий с данными. [ГОСТ Р 53622-2009, пункт 3.8] |
3.5 искусственный интеллект; ИИ: Комплекс технологических решений, позволяющий имитировать когнитивные функции человека (включая поиск решений без заранее заданного алгоритма) и получать при выполнении конкретных задач результаты, сопоставимые с результатами интеллектуальной деятельности человека или превосходящие их.
3.6
система искусственного интеллекта: Техническая система, в которой используются технологии искусственного интеллекта и обладающая искусственным интеллектом. |
3.7
алгоритм (algorithm): Конечное упорядоченное множество точно определенных правил для решения конкретной задачи. |
3.8 препятствие: Окружающие объекты, находящиеся в подвижном или неподвижном состоянии, затрудняющие выполнение операций эксплуатационного задания.
3.9 удаленный оператор: Человек, который осуществляет основное управление при опытной эксплуатации посредством системы диспетчерского управления и получает данные в целях контроля работы СДТ, при этом находится не в СДТ, а в зоне тестирования.
3.10
классификация (classification): Способ и результат упорядочения, структуризации некоторого множества объектов, разделения его на определенные подмножества путем артикуляции, выделения некоторого признака объектов исходного множества как основания их структуризации по данному признаку. Такого рода признак называется основанием классификации. Примечание - Модели машинного обучения могут быть спроектированы/созданы либо для бинарной классификации, где они могут научиться предсказывать одну из двух различных категорий/классов; либо для многоклассовой классификации, где модели машинного обучения учатся предсказывать одну из множества различных категорий/классов. |
3.11
| | ИС МЕГАНОРМ: примечание. В официальном тексте документа, видимо, допущена опечатка: имеется в виду ГОСТ 33707-2016, а не ГОСТ Р 33707-2016. | |
компьютерное зрение (computer vision, artificial vision): Способность функционального блока принимать, обрабатывать и интерпретировать визуальные данные. Допустимый синоним: искусственное зрение. Примечания 1 Компьютерное зрение предполагает использование визуальных датчиков для создания электронного или цифрового изображения визуальной сцены. 2 Не следует путать с машинным зрением. |
3.12
идентификация [распознавание] объекта: Функция системы видеоаналитики, заключающаяся в установлении соответствия экземпляра объекта в сцене видеонаблюдения по характерным признакам объекту из предварительно сформированного перечня. |
3.13
распознавание действий: Функция системы видеоаналитики, заключающаяся в распознавании и классификации заданных действий, совершаемых объектами сцены видеонаблюдения. |
3.14
подсистема интеллектуальной транспортной системы: Часть интеллектуальной транспортной системы, обладающая целостностью и способная функционировать независимо от других частей. |
3.15 High Definition карта; HD карта: Карты с точным месторасположением объектов в векторном формате.
3.16
интеллектуальная транспортная система; ИТС: Система управления, интегрирующая современные информационные и телематические технологии и предназначенная для автоматизированного поиска и принятия к реализации максимально эффективных сценариев управления транспортно-дорожным комплексом региона, конкретным транспортным средством или группой транспортных средств с целью обеспечения заданной мобильности населения, максимизации показателей использования дорожной сети, повышения безопасности и эффективности транспортного процесса, комфортности для водителей и пользователей транспорта. |
4.1 Функциональное назначение интеллектуальной транспортной системы
Алгоритмы ИТС обнаружения и идентификации препятствий СДТ могут осуществлять следующее:
- обработку задания, поступившего от оператора;
- коррекцию направления движения и скорости СДТ на основе информации с измерительных датчиков;
- определение функциональной связи между параметрами в рамках отдельных классов для корректировки поведения СДТ;
- классифицировать и аннотировать файлы образцов данных непосредственно после обучения модели для высокой точности и быстродействия функционирования алгоритмов ИТС обнаружения и идентификации препятствий, исходя из различных условий строительно-дорожного технологического процесса.
Алгоритмы ИТС обнаружения и идентификации препятствий могут быть разработаны на основе различных технологий, таких как нейронные сети, деревья решений, байесовские сети и пр.
4.2 Применение интеллектуальной транспортной системы
Алгоритмы ИТС обнаружения и идентификации препятствий универсальны и могут применяться для различных типов строительно-дорожной техники, например бульдозеров, грейдеров, дорожных катков, погрузчиков, экскаваторов и т.д.
4.3 Состав интеллектуальной транспортной системы
ИТС обнаружения и идентификации препятствий определяется как программно-аппаратный комплекс, представляющий собой совокупность технических и программных средств, решающих задачи обнаружения и идентификации препятствий.
4.4 Функциональные требования к интеллектуальной транспортной системе
ИТС может предусматривать возможность интеграции новых алгоритмов в соответствии с требованиями заказчика.
Алгоритмы ИТС обнаружения и идентификации препятствий должны быть совместимы с системами СДТ, в которые они встраиваются.
Алгоритмы ИТС должны быть надежными, т.е. выполнять функции, необходимые для обнаружения и идентификации препятствий СДТ, в соответствии с требованиями заказчика и/или пользователей ИТС. Конкретные требования надежности алгоритмов должны быть приведены в техническом задании на ИТС.
Алгоритмы ИТС могут быть устойчивыми, т.е. способными восстанавливать свое рабочее состояние после сбоя согласно требованиям заказчика. Некоторые алгоритмы могут функционировать непрерывно с ограниченными возможностями после сбоя.
Алгоритмы ИТС могут быть объяснимыми, т.е. предоставлять причины, приводящие к тому или иному решению ИТС, в виде, понятном человеку.
ИТС обнаружения и идентификации препятствий должна пройти испытание непосредственно перед применением для подтверждения соответствия бизнес-требованиям заказчика. Бизнес-требования должны включать следующую информацию, необходимую для проведения испытаний:
- условия проведения испытаний;
- номенклатуру существенных характеристик согласно
ГОСТ Р 59898;
- порядок испытаний;
- существенные факторы, представленные в
5.1.
4.5 Требования к безопасности
ИТС обнаружения и идентификации препятствий должна соответствовать требованиям инструкций по эксплуатации ИТС и СДТ,
[2] и
[3].
Алгоритмы ИТС должны минимизировать риски, связанные с эксплуатацией данной ИТС, в интересах участников дорожно-строительного процесса согласно
[4].
Алгоритмы ИТС должны обеспечивать безопасное взаимодействие со строительно-дорожной инфраструктурой согласно
[4].
ИТС обнаружения и идентификации препятствий может в режиме реального времени отслеживать свое функционирование и уведомить оператора о любых ошибках и сбоях в соответствии с требованиями заказчика.
Алгоритмы ИТС могут обновляться и улучшаться в процессе дообучения с обязательной оценкой показателей эффективности.
Для исключения несанкционированного доступа к данным ИТС должны быть реализованы протоколы безопасного обмена данными и их хранения согласно требованиям
ГОСТ Р ИСО/МЭК 27002.
Работа ИТС обнаружения и идентификации препятствий должна соответствовать требованиям безопасности, определенным в
ГОСТ ISO 15817.
Алгоритмы ИТС обнаружения и идентификации препятствий должны избегать направления СДТ по заведомо опасному пути следования. Уровень опасности следования может определяться либо алгоритмами ИТС обнаружения и идентификации препятствий, либо оператором с учетом требований
[4].
Алгоритмы ИТС обнаружения и идентификации препятствий должны поддерживать безопасное расстояние во время любого взаимодействия СДТ с предполагаемой рабочей средой согласно
[4]. В случае сокращения этого расстояния другим участником движения ИТС должна изменить траекторию следования СДТ или остановить ее.
5.1 Требования к сценариям дорожно-строительного процесса
Из полевых эксплуатационных испытаний и исследований естественного вождения СДТ (испытания на полигоне) должна быть получена информация, которая имеет отношение к расчету показателей безопасности, качеству и т.д. алгоритмов ИТС для обнаружения и идентификации препятствий. Испытания должны предоставлять данные об определенных условиях работы СДТ, измеряемые датчиками, входящими в состав СДТ. Условия эксплуатации СДТ являются существенными факторами, которые имеют влияние на качество работы алгоритма ИТС обнаружения и идентификации, и включают:
- различные погодные условия (солнечно/пасмурно/облачно, дождь/туман/снег и пр.);
- различные виды опорной поверхности (скала, чернозем, щебень и др.);
- разметку дорожного полотна (для дорожных катков, фрез, асфальтоукладчиков) и/или грунта (для землеройных машин, погрузчиков и пр.) путем установки дорожных конусов и/или сигнальных лент;
- различные виды статических объектов (козловой кран, вагончик для рабочих, другая СДТ в нерабочем состоянии, деревья, кустарники и т.д.);
- различные виды динамических объектов (рабочие, находящиеся на участке работы СДТ, животные, другая СДТ в рабочем состоянии).
Наряду с этими данными также должна определяться совокупность данных об измеренном поведении оператора СДТ и технологиях управления СДТ, а именно распределение скорости и направления движения и/или пройденного расстояния в испытаниях, в том числе и другой СДТ, в рамках всего испытания.
| | ИС МЕГАНОРМ: примечание. Текст дан в соответствии с официальным текстом документа. | |
В
таблице приведены основной перечень существенных факторов и их диапазоны принимаемых значений.
Таблица 1
Перечень существенных факторов
Существующие факторы | Существенные факторы | Диапазоны принимаемых значений |
| | ИС МЕГАНОРМ: примечание. В официальном тексте документа, видимо, допущена опечатка: имеется в виду ГОСТ Р 53613, а не ГОСТ 53613. | |
|
Окружающей среды | Условия освещенности | Яркое солнце: 50 000 - 100 000 люкс. Облачная погода (полдень): 7000 - 50 000 люкс. Пасмурная погода: 1000 - 500 люкс |
| Моросящий дождь: менее 0,016 мм/мин. Легкий дождь: 0,016 мм/мин. Умеренный дождь: 0,066 мм/мин. Интенсивный дождь: 0,250 мм/мин. Сильный дождь: 0,667 мм/мин. Ливень: более 1,667 мм/мин |
Наличие тумана | Отсутствие тумана. Присутствует слабый туман. Присутствует сильный туман |
Строительно-дорожной инфраструктуры | Виды опорной поверхности | Щебень. Скала. Чернозем. Травянистая растительность. Брод |
Состояние дорожного покрытия | Трещины. Колея. Волны. Просадки |
Наличие разметки | Разметка присутствует. Разметка отсутствует |
Наличие иных транспортных средств (СДТ, автомобили и пр.) | Наличие другой СДТ. Наличие других транспортных средств (автомобили). Отсутствие транспортных средств |
Скорость отдельных транспортных средств | СДТ: низкая скорость: 0,1 - 1,5 м/с; средняя скорость: 1,6 - 2,7 м/с; высокая скорость: 2,8 - 5 м/с. Автомобиль: низкая скорость: < 10 м/с; средняя скорость: 10 - 13 м/с; высокая скорость: 13 - 18 м/с |
| Продольный уклон дороги |  ;  ;  ;  ; |
Наличие дорожных знаков | Дорожные знаки отсутствуют. Дорожные знаки присутствуют |
Наличие временных ограждений | Временное ограждение отсутствует. Временное ограждение присутствует |
Иные факторы: попадание посторонних предметов и объектов | Посторонние предметы и объекты отсутствуют. Неподвижный объект на пути следования СДТ. Животное на пути следования СДТ |
Таким образом, объем информации сценариев испытаний должен предусматривать максимальное покрытие предусмотренных условий эксплуатации.
Для реализации методик испытаний (имитационное моделирование, испытание на полигоне и др.) должны применяться сценарии дорожно-строительного процесса. Совокупность вышеуказанных методик позволяет создать мультифакторную программу испытаний алгоритмов ИТП, используемых в ИТС для обнаружения и идентификации препятствий.
Сценарии дорожно-строительного процесса должны максимально отражать реальные ситуации технологического процесса.
Для полной проверки алгоритмов в составе ИТС для обнаружения и идентификации препятствий методы испытаний должны включать критические, сложные, а также релевантные сценарии. Идентификацию сценариев испытаний дорожно-строительного процесса можно провести на основе:
- заранее определенных сценариев, основанных на требованиях безопасности;
- анализа поведения оператора СДТ, включая оценку естественных данных о вождении;
- анализа информации, полученной с датчиков СДТ;
- анализа плана работы СДТ;
- результатов обучения ИТС обнаружения и идентификации препятствий и знаний.
Определенные требования должны быть протестированы и подтверждены с использованием виртуальных, полигонных и натурных методов валидации испытаний.
5.2 Требования к испытанию алгоритмов интеллектуальной системы обнаружения и идентификации препятствий
Для оценки соответствия требованиям безопасности СДТ должны применяться следующие методы испытаний:
- компьютерное моделирование;
- испытания на полигоне;
- испытание в зоне строительства;
- процедура аудита;
- процедуры мониторинга и отчетности в процессе эксплуатации.
Компьютерное моделирование представляет собой виртуальное тестирование алгоритмов ИТС СДТ с использованием программного обеспечения и математических моделей для воспроизведения тысяч различных сценариев, чтобы гарантировать соответствие разрабатываемой СДТ нормам безопасности.
Испытания на полигоне производятся на подготовленном участке земли с элементами инфраструктуры с использованием цифровых систем, оснащенным испытательным оборудованием, в условиях, близких к условиям штатной эксплуатации СДТ, установленных в рамках нормативной и технической документации.
При испытаниях СДТ в зоне строительства и обслуживания проводится тестирование и оценка работы алгоритма в составе ИТС для обнаружения и идентификации препятствий, связанной с обеспечением с позиции этого алгоритма способности СДТ двигаться в реальных условиях дорожно-строительного процесса.
Процедура аудита ИТС обнаружения и идентификации препятствий должна обеспечивать исследование и оценку, смягчение последствий и обеспечение безопасности, законности и этичности алгоритма. Комплексные аудиты охватывают весь конвейер жизненного цикла системы, включая такие области, как отчетность и экономическое обоснование, оценка команды разработчиков и тестовые наборы данных. Целью аудита ИТС является оценка системы, выявление ее рисков, как в ее технической функциональности, так и в ее структуре управления, а также рекомендации мер, которые можно предпринять для снижения этих рисков.
Процедура мониторинга и отчетности заключается в сборе информации о СДТ в режиме реального времени для оценки безопасности алгоритмов, входящих в состав ИТС обнаружения и идентификации препятствий.
5.3 Требования к записи результатов испытаний
Результаты испытаний алгоритмов ИТС обнаружения и идентификации препятствий должны оформляться в соответствии с
ГОСТ 19.301 и содержать следующую информацию об испытании:
- цель испытаний (например, критерии завершения испытания, остановки и/или возобновления) в соответствии с требованиями безопасности;
- описание устройства, функциональность и версионность алгоритма ИТС;
- требования к алгоритму;
- требования к тестовому набору данных;
- диапазон изменения значимых, наиболее существенных факторов, влияющих на работу алгоритмов ИТС;
- показатели качества и критерии оценки;
- перечень несоответствий требованиям;
- средства и порядок испытаний;
- методы испытаний;
- сценарии с фиксацией всех параметров испытаний, разделенных на видимые СДТ и скрытые;
- результаты работы.
5.4 Порядок выполнения тестирования алгоритмов интеллектуальной системы обнаружения и идентификации препятствий
Порядок тестирования алгоритмов ИТС должен быть следующим:
- выбор стенда для тестирования и оценка условий его проведения;
- определение требований к качеству алгоритмов ИТС (согласно
ГОСТ Р 59898);
- выбор и обоснование существенных характеристик (согласно
ГОСТ Р 59276);
- формирование тестового набора данных на основе базового и дополнительного демонстративного набора данных;
- подача данных из тестового набора данных на вход алгоритмов ИТС;
- тестирование алгоритма ИТС и оценка полученных результатов;
- доработка (коррекция) алгоритмов ИТС по итогам тестирования.
Все тесты алгоритма должны документироваться согласно
5.3.
Количественную и качественную оценку алгоритмов ИТС обнаружения и идентификации препятствий СДТ проводят согласно
ГОСТ Р 59898.
6 Базовый демонстрационный набор данных
В настоящем разделе приведено описание характеристик базового демонстрационного набора данных.
Базовый демонстрационный набор данных размещен (записан) на внешний носитель.
Базовый демонстрационный набор данных не является полным и носит рекомендательный характер. Он может быть дополнен заказчиком ИТС во время тестирования для формирования уточненных требований к системе.
Базовый демонстрационный набор данных охватывает существенные факторы эксплуатации, перечисленные в
5.1 настоящего стандарта, и содержит тактико-технические характеристики видеорегистратора, метаданные видеосъемки (координаты СДТ, пример видеодорожки, время съемки и т.д.).
Прилагаемый к настоящему стандарту демонстрационный набор данных содержит следующий набор файлов:
- meta - папка с метаданными тестового набора;
- screen - папка с примерами-скриншотами с приложенного видео;
- Accelerometr.csv - данные акселерометра с приложенного видео с указанием ускорения по осям x, y и z и времени записи;
- Gyroscope.csv - данные гироскопа с приложенного видео с указанием угловой скорости по осям x, y и z и времени записи;
- Location.csv - данные о координатах СДТ с приложенного видео с указанием точных GPS-координат и времени записи;
- Magnetometr.csv - данные магнитометра с приложенного видео с указанием измеренных величин магнитных полей по осям x, y и z и времени записи;
- test.MOV - видео, содержащее пример целевой ситуации/объекта с подтвержденным набором соответствующего содержания;
- device.csv - данные и параметры самого записывающего устройства внутри кабины СДТ.
(обязательное)
ВИДЫ ПРЕПЯТСТВИЙ
А.1 Параметры видов препятствий разработаны с учетом
[5].
Препятствие для испытаний, предназначенное для имитации сидящего человека, должно соответствовать следующим требованиям и использоваться исключительно для достижения сходных (воспроизводимых) результатов
(рисунок А.1):
- препятствие для испытаний должно быть наполнено песком или щебнем;
- препятствие должно быть выполнено из пластика (например, полиэтилена с матовой поверхностью);
- цвет должен быть графитовый серый с матовой поверхностью.
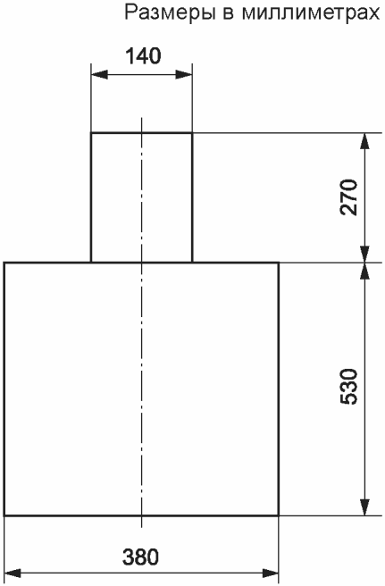
Рисунок А.1 - Испытательный объект,
имитирующий сидящего человека
А.2 Объект, имитирующий габаритную структуру, схематично представлен на
рисунке А.2.
Рисунок А.2 - Испытательный объект, имитирующий
крупногабаритную структуру (размеры 2500 x 2500 x 2500 мм)
А.3 Для тестирования ИТС обнаружения и идентификации препятствий СДТ используются движущиеся и неподвижные объекты
(таблица А.1), которые представляют контуры и макеты возможных объектов при движении и работе СДТ.
Таблица А.1
Движущиеся и неподвижные препятствия
Неподвижные объекты (длина x ширина x высота), м | Движущиеся объекты (длина x ширина x высота), м |
Сидящий человек: муляж 0,4 x 0,4 x 0,8 | Стоящий человек: муляж 0,4 x 0,4 x 1,2 | Человек: контур 2,0 x 0,4 |
Бульдозер: муляж 4,3 x 2,9 x 3,2 | Дорожный каток: муляж 5,8 x 2,3 x 3,0 | Животное: контур 1,2 x 2,5 |
Навесное оборудование: муляж 1,2 x 1,4 x 1,0 | Машина: муляж 4,5 x 1,8 x 1,5 | Бульдозер: контур 4,3 x 2,9 x 3,2 |
Стационарный крупногабаритный объект: муляж 2,5 x 2,5 x 2,5 | Опора ЛЭП: муляж 9,0 x 9,0 x 6,0 | Транспортное средство: контур 2,0 x 2,0 |
Высокая трава: муляж 3,0 x 1,0 x 0,8 | Низкая трава: муляж 3,0 x 1,0 x 0,2 | |
Кустарник: муляж 1,0 x 1,0 x 1,0 | Дерево: муляж 0,2 x 0,2 x 2 |
Камень: муляж 0,5 x 0,5 x 1,0 | Животное: муляж 2,5 x 0,8 x 1,2 |
| | ИС МЕГАНОРМ: примечание. В официальном тексте документа, видимо, допущена опечатка: Указ Президента РФ "О развитии искусственного интеллекта в Российской Федерации" издан 10.10.2019, а не 15.02.2024. | |
| Указ Президента Российской Федерации от 15 февраля 2024 г. "О развитии искусственного интеллекта в Российской Федерации" |
| | ИС МЕГАНОРМ: примечание. В официальном тексте документа, видимо, допущена опечатка: СНиП III-4-80 утвержден и введен в действие Постановлением Госстроя СССР от 09.06.1980 N 82, а не от 11.12.2020 N 882н. | |
|
| | Техника безопасности в строительстве (утверждены приказом Минтруда России от 11 декабря 2020 г. N 882н) |
| Правила дорожного движения Российской Федерации (утверждены Постановлением Совета Министров - Правительства Российской Федерации от 23 октября 1993 г. N 1090) |
| Правила по охране труда при производстве дорожных строительных и ремонтно-строительных работ |
| ИСО 19206-2-2018 | Транспорт дорожный. Контрольные приборы для оценки функций активной безопасности муляжей транспортных средств, уязвимых участников дорожного движения и других объектов. Часть 2. Требования к манекенам пешеходов |
УДК 62.519:006.354 | |
Ключевые слова: искусственный интеллект, строительно-дорожная техника, обнаружение объектов, распознавание объектов, методы испытаний |