Главная // Актуальные документы // Ведомость (форма)
СПРАВКА
Источник публикации
М.: Стандартинформ, 2017
Примечание к документу
Документ включен в Перечень документов в области стандартизации, в результате применения которых на добровольной основе обеспечивается соблюдение требований Федерального закона от 30.12.2009 N 384-ФЗ "Технический регламент о безопасности зданий и сооружений" (Приказ Росстандарта от 02.04.2020 N 687).

Документ включен в Перечень документов в области стандартизации, в результате применения которых на добровольной основе обеспечивается соблюдение требований Федерального закона от 30.12.2009 N 384-ФЗ "Технический регламент о безопасности зданий и сооружений" (Приказ Росстандарта от 17.04.2019 N 831).

Документ включен в Перечень стандартов, в результате применения которых на добровольной основе обеспечивается соблюдение требований Федерального закона от 30.12.2009 N 384-ФЗ "Технический регламент о безопасности зданий и сооружений" (Приказ Росстандарта от 30.03.2015 N 365).

Текст данного документа приведен с учетом поправки, введенной в действие с 23.08.2021, опубликованной в "ИУС", N 1, 2022.

Документ введен в действие с 01.07.2017.
Название документа
"ГОСТ 21.504-2016. Межгосударственный стандарт. Система проектной документации для строительства. Правила выполнения рабочей документации деревянных конструкций"
(введен в действие Приказом Росстандарта от 02.12.2016 N 1918-ст)

"ГОСТ 21.504-2016. Межгосударственный стандарт. Система проектной документации для строительства. Правила выполнения рабочей документации деревянных конструкций"
(введен в действие Приказом Росстандарта от 02.12.2016 N 1918-ст)


Содержание


Введен в действие
Приказом Федерального
агентства по техническому
регулированию и метрологии
от 2 декабря 2016 г. N 1918-ст
МЕЖГОСУДАРСТВЕННЫЙ СТАНДАРТ
СИСТЕМА ПРОЕКТНОЙ ДОКУМЕНТАЦИИ ДЛЯ СТРОИТЕЛЬСТВА
ПРАВИЛА ВЫПОЛНЕНИЯ РАБОЧЕЙ
ДОКУМЕНТАЦИИ ДЕРЕВЯННЫХ КОНСТРУКЦИЙ
System of design documents for construction. Rules
for execution of working documentation for wooden structures
ГОСТ 21.504-2016
МКС 01.100.30
Дата введения
1 июля 2017 года
Предисловие
Цели, основные принципы и основной порядок проведения работ по межгосударственной стандартизации установлены в ГОСТ 1.0-2015 "Межгосударственная система стандартизации. Основные положения" и ГОСТ 1.2-2015 "Межгосударственная система стандартизации. Стандарты межгосударственные, правила и рекомендации по межгосударственной стандартизации. Правила разработки, принятия, обновления, отмены"
Сведения о стандарте
1 РАЗРАБОТАН Акционерным обществом "Центр технического и сметного нормирования в строительстве" (АО "ЦНС") и Центральным научно-исследовательским, проектно-конструкторским и технологическим институтом им. В.А. Кучеренко (ЦНИИСК им. В.А. Кучеренко), отделением АО "НИЦ "Строительство"
2 ВНЕСЕН Техническим комитетом по стандартизации ТК 465 "Строительство"
3 ПРИНЯТ Межгосударственным советом по стандартизации, метрологии и сертификации (протокол от 22 ноября 2016 г. N 93-П)
За принятие проголосовали:
Краткое наименование страны по МК (ИСО 3166) 004-97
Код страны по МК (ИСО 3166) 004-97
Сокращенное наименование национального органа по стандартизации
Азербайджан
AZ
Азстандарт
Армения
AM
Минэкономики Республики Армения
Киргизия
KG
Кыргызстандарт
Россия
RU
Росстандарт
Грузия
GE
Грузстандарт
4 Приказом Федерального агентства по техническому регулированию и метрологии от 2 декабря 2016 г. N 1918-ст межгосударственный стандарт ГОСТ 21.504-2016 введен в действие в качестве национального стандарта Российской Федерации с 1 июля 2017 г.
5 ВВЕДЕН ВПЕРВЫЕ
Информация об изменениях к настоящему стандарту публикуется в ежегодном информационном указателе "Национальные стандарты", а текст изменений и поправок - в ежемесячном информационном указателе "Национальные стандарты". В случае пересмотра (замены) или отмены настоящего стандарта соответствующее уведомление будет опубликовано в ежемесячном информационном указателе "Национальные стандарты". Соответствующая информация, уведомление и тексты размещаются также в информационной системе общего назначения - на официальном сайте Федерального агентства по техническому регулированию и метрологии в сети Интернет (www.gost.ru)
1. Область применения
Настоящий стандарт устанавливает состав, содержание и правила оформления рабочей документации деревянных конструкций зданий и сооружений различного назначения, в том числе при применении типовых деревянных конструкций.
2. Нормативные ссылки
В настоящем стандарте использованы нормативные ссылки на следующие межгосударственные стандарты:
ГОСТ 2.306-68 Единая система конструкторской документации. Обозначения графические материалов и правила их нанесения на чертежах
ГОСТ 21.001-2013 Система проектной документации для строительства. Общие положения
ГОСТ 21.101-97 <*> Система проектной документации для строительства. Основные требования к проектной и рабочей документации
--------------------------------
<*> В Российской Федерации действует ГОСТ Р 21.1101-2013.
ГОСТ 21.201-2011 Система проектной документации для строительства. Условные графические изображения элементов зданий, сооружений и конструкций
ГОСТ 21.502-2016 Система проектной документации для строительства. Правила выполнения рабочей документации металлических конструкций
ГОСТ 2140-81 Видимые пороки древесины. Классификация, термины и определения, способы измерения
ГОСТ 20850-2014 Конструкции деревянные клееные несущие. Общие технические условия
ГОСТ 24404-80 Изделия из древесины и древесных материалов. Покрытия лакокрасочные. Классификация и обозначения
ГОСТ 33080-2014 Конструкции деревянные. Классы прочности конструкционных пиломатериалов и методы их определения
ГОСТ 33081-2014 Конструкции деревянные клееные несущие. Классы прочности элементов конструкций и методы их определения
Примечание - При пользовании настоящим стандартом целесообразно проверить действие ссылочных стандартов в информационной системе общего пользования - на официальном сайте Федерального агентства по техническому регулированию и метрологии в сети Интернет или по ежегодному информационному указателю "Национальные стандарты", который опубликован по состоянию на 1 января текущего года, и по выпускам ежемесячного информационного указателя "Национальные стандарты" за текущий год. Если ссылочный стандарт заменен (изменен), то при пользовании настоящим стандартом следует руководствоваться заменяющим (измененным) стандартом. Если ссылочный стандарт отменен без замены, то положение, в котором дана ссылка на него, применяется в части, не затрагивающей эту ссылку.
3. Термины и определения
В настоящем стандарте применены термины по ГОСТ 21.001, а также следующие термины с соответствующими определениями:
3.1 конструкция деревянная: Строительная конструкция, элементы которой изготовлены из древесины или древесных материалов.
3.2 конструкция сборная: Строительная конструкция, монтируемая на строительной площадке при возведении зданий и сооружений из укрупненных элементов заводского изготовления.
3.3 марка: Буквенный, цифровой или буквенно-цифровой индекс, входящий в обозначение рабочей документации и определяющий ее отношение к определенному виду строительно-монтажных работ или обозначающий основные отличительные особенности строительных конструкций и их элементов.
3.4 подкос: Работающий на сжатие наклонный брус в строительных конструкциях.
Примечание - Поддерживает горизонтальные/наклонные элементы конструкции (балки, перекрытия) и опирается на вертикальные элементы (стойки, колонны).
3.5 прогон: Конструктивный преимущественно горизонтальный элемент кровли или перекрытия здания.
Примечание - Опорой для прогона служат главные несущие конструкции (балки, фермы, арки и др.).
3.6 рама: Плоская или пространственная стержневая часть несущей системы, элементы которой соединяются жесткими, шарнирными или упруго-податливыми узлами.
3.7 раскос: Строительный элемент, соединяющий два узла каркаса, фермы и т.п.
Примечание - Располагается по диагонали замкнутого контура и обеспечивает жесткость конструкции.
3.8 ригель: Горизонтальный или наклонный элемент каркаса здания или сооружения, воспринимающий вертикальные нагрузки.
3.9 связи: Конструктивные элементы, обеспечивающие устойчивость конструкций и сооружений, в том числе при воздействии ветровых нагрузок.
3.10 узел: Сопряжение, соединение между собой строительных конструкций, элементов строительных конструкций и их составных частей.
3.11 ферма металлодеревянная: Ферма, состоящая из деревянного верхнего и металлического нижнего поясов и деревянной и/или металлической решетки.
3.12 элемент деревянной конструкции: Составная часть сборной деревянной конструкции.
4. Общие положения
4.1 Рабочую документацию деревянных конструкций выполняют в соответствии с требованиями ГОСТ 21.101 и настоящего стандарта.
4.2 В состав рабочей документации деревянных конструкций включают:
- рабочие чертежи, предназначенные для производства строительных и монтажных работ (основной комплект рабочих чертежей марки КД);
- локальную смету (при необходимости).
4.3 В состав основного комплекта рабочих чертежей марки КД включают:
- общие данные по рабочим чертежам;
- схемы расположения элементов конструкций;
- расчетные схемы основных несущих конструкций;
- сборочные чертежи конструкций;
- ведомости элементов;
- узлы опорные;
- узлы соединительные.
Допускается включать в состав основного комплекта рабочих чертежей прямоугольные изометрические проекции систем сборочных чертежей конструкций (при использовании специализированного программного обеспечения), полученные визуализацией электронной модели дополнительно к сборочным чертежам конструкций.
Примеры выполнения стропильной системы и пример выполнения каркаса покрытия в аксонометрической проекции приведены на рисунках А.1 и А.2 (приложение А).
4.4 Рабочие чертежи марки КД должны содержать данные в объеме, необходимом для разработки деталировочных чертежей деревянных конструкций марки КДД и металлических деталей марки КМД.
4.5 Условные графические изображения элементов конструкций зданий и сооружений (в том числе деревянных) и их соединений принимают по ГОСТ 21.201.
4.6 Графические обозначения материалов в сечениях, разрезах и на фасадах, а также правила их нанесения принимают по ГОСТ 2.306.
4.7 Рекомендуемые масштабы изображений на чертежах приведены в таблице 1.
Таблица 1
Наименование изображений
Масштаб
Схемы расположения элементов конструкций (виды, планы, разрезы)
1:100; 1:200, 1:400, 1:500
Геометрические и расчетные схемы
1:50; 1:100; 1:200
Сборочные чертежи конструкций
1:20; 1:50
Узлы
1:5; 1:10; 1:20
Деталировочные чертежи
1:2; 1:5; 1:10; 1:20; 1:50
5. Общие данные по рабочим чертежам
5.1 В состав общих данных по рабочим чертежам деревянных конструкций включают сведения, предусмотренные ГОСТ 21.101.
5.2 В общих указаниях в дополнение к сведениям, предусмотренным в ГОСТ 21.101, приводят:
- сведения о нагрузках и особых воздействиях, принятых для расчета деревянных несущих конструкций (расчетные данные);
- класс функционального назначения и класс условий эксплуатации конструкций по ГОСТ 20850;
- породу и влажность древесины, дополнительные требования к качеству древесины по ГОСТ 2140;
- класс прочности конструкционных пиломатериалов в соответствии с ГОСТ 33080 или элементов деревянных конструкций в соответствии с ГОСТ 33081 и характер их обработки (острожка, склеивание);
- требования к защитной обработке (антисептирование, антипирирование и т.п.) и декоративной отделке элементов деревянных конструкций) в соответствии с ГОСТ 24404;
- марку стали и вид защитной обработки стальных элементов;
- данные для заготовки деревянных и стальных элементов, а также для сборки и монтажа конструкций из отдельных монтажных блоков (марок);
- указания по производству работ (при необходимости);
- указания по транспортировке и хранению конструкций (при необходимости);
- указания по эксплуатации (при необходимости).
5.3 В состав расчетных данных включают нормативные и расчетные значения нагрузок, коэффициенты надежности по нагрузке и данные по возможным сочетаниям технологических и других нагрузок и воздействий в соответствии с требованиями соответствующих нормативных документов.
5.4 В расчетных данных по нагрузкам на фундаменты приводят:
- значение нагрузок на фундаменты или опоры;
- схемы расположения анкерных болтов или закладных деталей для каждой марки фундамента или опоры;
- диаметры, высоты выступающих частей, длины нарезок, марки сталей анкерных болтов, габариты закладных деталей;
- требования к деформативности фундаментов (при необходимости).
5.5 Пример оформления данных о нагрузках на фундаменты приведен на рисунке Б.1 (приложение Б).
5.6 В общих данных приводят ведомость расхода материалов, выполняемую по форме 1.
Форма 1
Ведомость расхода материалов
Пример заполнения формы 1 приведен на рисунке В.1 (приложение В).
6. Схемы расположения элементов конструкций
6.1 Схемы расположения элементов конструкций (далее - схемы расположения) предназначены для непосредственного производства строительных и монтажных работ. Схемы расположения выполняют в виде планов, разрезов, фрагментов, сечений и узлов соответствующих конструкций.
На схеме расположения элементы конструкций и связи между ними указывают в виде условных или упрощенных графических изображений.
6.2 На планах и разрезах схем расположения наносят:
- координационные оси здания (сооружения), размеры, определяющие расстояния между ними и между крайними осями, размерные привязки осей или поверхностей элементов конструкций к координационным осям здания (сооружения) и, при необходимости, другие размеры;
- отметки наиболее характерных уровней элементов конструкций;
- марки элементов конструкций;
- обозначения узлов;
- данные о допустимых монтажных нагрузках.
6.3 На узлах схем расположения конструкций изображают элементы, сходящиеся в узле, с указанием привязок к координационным осям, осям элементов, поверхностям деталей.
6.4 Каждой конструкции и элементу конструкции присваивают буквенно-цифровое обозначение их типа, которое состоит из условного буквенного обозначения их наименования (марки) и порядкового номера конструкции или элемента.
Буквенные обозначения деревянных конструкций и элементов приведены в приложении Г.
Порядковый номер конструкции или элементу присваивают в пределах обозначения типа, начиная с единицы.
Пример - Ф1, МР2, ВП4
6.5 К схеме расположения составляют спецификацию по форме 7 ГОСТ 21.101.
В спецификации указывают:
- в графе "Поз." - марка по схеме расположения элементов конструкции или цифровые позиции (марки) элементов конструкций;
- в графе "Обозначение" - обозначение основных документов на записываемые в спецификацию элементы конструкций;
- в графе "Наименование" - наименование элементов конструкций, основного материала конструкции и их обозначения (марки), а также, при необходимости, технические характеристики.
В спецификацию записывают соединительные элементы (накладки, шпильки, опорные элементы и др.), непосредственно входящие в специфицируемую конструкцию;
- в графе "Кол." - количество элементов;
- в графе "Масса ед., кг" - массу в килограммах. Допускается приводить массу в тоннах, но с указанием единицы массы;
- в графе "Примечание" - дополнительные сведения.
Спецификацию (ведомость) заполняют по разделам, соответствующим материалам (обозначениям) конструкций.
6.6 Если главный вид конструкции имеет ось симметрии, то на рабочем чертеже разрешается указывать размеры (кроме габаритных) и маркировать элементы только на одной половине.
6.7 Пример выполнения схем расположения элементов конструкции в плане и разрезах приведен на рисунках Д.1 - Д.3 (приложение Д).
6.8 Пример выполнения схемы расположения закладных деталей под каркас из деревянных конструкций приведен в приложении Е.
7. Сборочные чертежи конструкций
7.1 Сборочные чертежи выполняют для конструкций, требующих укрупнительной сборки на строительной площадке и/или в заводских условиях.
7.2 На сборочных чертежах конструкций приводят:
- геометрическую и расчетную схемы конструкции;
- главный вид конструкции, разрезы;
- узлы конструкции;
- размеры конструкции и ее элементов;
- номера позиций или марки элементов конструкции;
- тип монтажных соединений;
- технические требования;
- ведомость элементов (на одну конструкцию).
7.3 На расчетной схеме проектируемых конструкций приводят нагрузки, действующие на элементы, данные об усилиях в элементах конструкций (при необходимости) и опорные реакции.
7.4 На узлах конструкций показывают: сечения элементов, формы и размеры врезок, размеры, количество и разбивку соединяющих элементов - деревянных или металлических накладок, подкладок, гвоздей, шурупов, болтов, винтов, нагелей и т.п.
Положение элементов в узле должно соответствовать их положению на главном виде или разрезе конструкции.
7.5 Примеры выполнения главного вида конструкции (сборочного чертежа фермы) и расчетной схемы металлодеревянной фермы приведены на рисунках Ж.1 и Ж.2 (приложение Ж). Пример выполнения узлов фермы приведен на рисунке Ж.3 (приложение Ж).
7.6 К сборочным чертежам конструкций составляют ведомость элементов (на одну конструкцию), выполняемую по форме 2.
Форма 2
Ведомость элементов
Пример составления ведомости элементов для сборочного чертежа фермы приведен на рисунке В.2 (приложение В).
7.7 Чертежи элементов деревянных и металлических конструкций выполняют, если на схемах расположения элементов недостаточно выявлены их конструктивные особенности для разработки деталировочных чертежей марок КДД и КМД.
На этих чертежах приводят изображения (виды, разрезы, сечения) и размеры, необходимые для изготовления элемента и его отдельных деталей. Над главным видом каждого элемента указывают его наименование или марку.
Если элемент состоит из нескольких деталей, то на чертеже этого элемента указывают цифровые позиционные обозначения данных деталей.
Примеры выполнения таких чертежей приведены в приложении И.
7.8 Чертежи элементов металлических конструкций выполняют согласно ГОСТ 21.502.
8. Чертежи узлов конструкций
8.1 Обозначения узлов на схемах, планах или разрезах принимают в соответствии с ГОСТ 21.101.
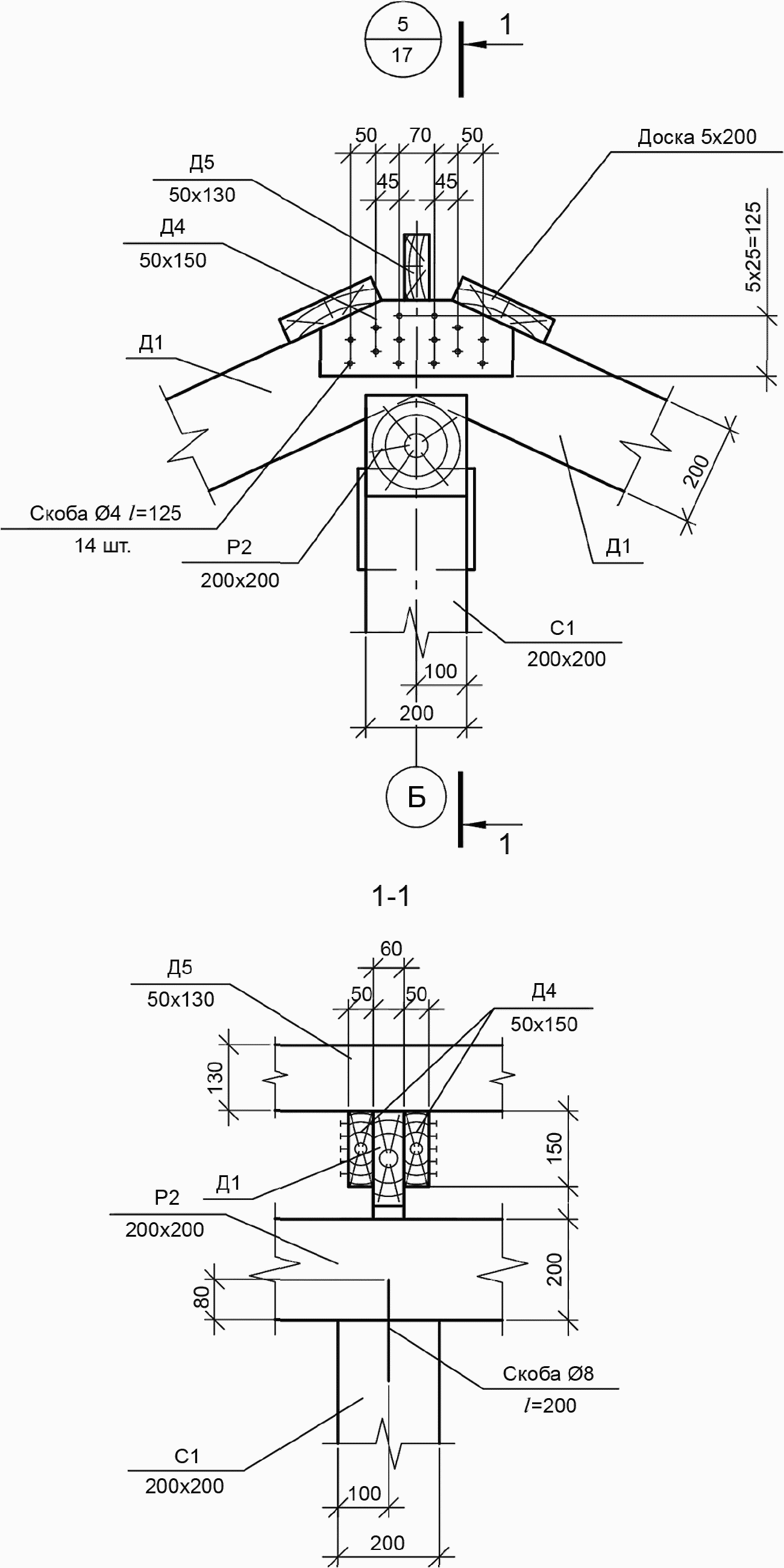
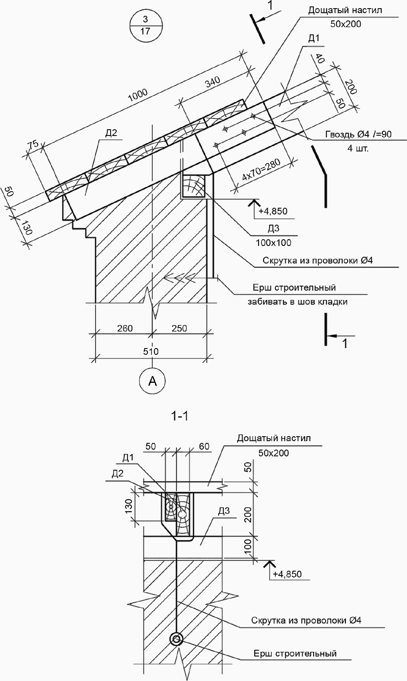
8.2 На чертежах узлов конструкций показывают: сечения элементов, формы и размеры врезок, размеры, количество и разбивку соединяющих элементов - гвоздей, винтов, болтов, нагелей и т.д., деревянных накладок, подкладок и т.п.
8.3 На чертежах узлов конструкций сохраняют такое положение элементов, которое задано на главном виде или разрезе конструкции. В необходимых случаях узел изображают в аксонометрической проекции.
8.4 На чертежах узлов конструкций проставляют следующие размеры:
- между осями основных конструктивных элементов;
- между осями соединяющих элементов, а также размеры этих элементов;
- габариты элементов узла (накладок, шпонок, прокладок и т.п.).
Примеры выполнения чертежей узлов к схемам расположения конструкций приведены на рисунках К.1 - К.5 (приложение К).
Приложение А
(справочное)
ПРИМЕРЫ ВЫПОЛНЕНИЯ ЧЕРТЕЖЕЙ ДЕРЕВЯННЫХ КОНСТРУКЦИЙ
В АКСОНОМЕТРИЧЕСКОЙ ПРОЕКЦИИ
Рисунок А.1 - Пример выполнения прямоугольной изометрической
проекции стропильной системы кровли
Рисунок А.2 - Пример выполнения аксонометрической проекции
каркаса покрытия
Приложение Б
(справочное)
ПРИМЕР ОФОРМЛЕНИЯ ДАННЫХ О НАГРУЗКАХ
Рисунок Б.1 - Пример оформления данных о нагрузках
на фундаменты
Приложение В
(справочное)
ВЕДОМОСТИ РАСХОДА МАТЕРИАЛОВ И ЭЛЕМЕНТОВ
Ведомость расхода материалов
Наименование
Ед. изм.
Кол.
Примечание
Древесина клееная
м3
78,2
Древесина цельная
м3
6,3
Фанера бакелизированная
м3
0,59
Металл на завод КДК
кг
1256,45
Металл на монтаж
кг
824,37
Рисунок В.1 - Пример составления ведомости
расхода материалов
Ведомость элементов
Марка
Наименование
Кол.
Масса, кг
Примечание
Б1
Балка 140 x 500 x 10000 (прямолин.)
14
350
А1
Арка 140 x 400 x 9000R = 10500
3
252
Рисунок В.2 - Пример составления ведомости элементов
Приложение Г
(рекомендуемое)
БУКВЕННЫЕ ОБОЗНАЧЕНИЯ ДЕРЕВЯННЫХ КОНСТРУКЦИЙ И ИХ ЭЛЕМЕНТОВ
Таблица Г.1
Наименование типа конструкции или элемента
Буквенное обозначение
Ферма деревянная
Ф
Арка деревянная
А
Полуарка
ПА
Рама деревянная
Р
Полурама:
ПР
- ригель рамы
РР, Р
- стойка рамы
РС, С
- подкос рамы
РП, П
Купол:
- меридиональное ребро
МР
- кольцевое ребро
КР
Балка деревянная
Б, БД
Конструкции сквозные:
- верхний пояс
ВП, П
- нижний пояс
НП, Н
- раскос решетки
РР, Р
- стойка решетки
СР, С
Прогон (прогон кровли, прогон перекрытия)
П (ПК, ПП)
Распорка связевая
РС
Колонна, стойка
К, С
Связь горизонтальная
СГ, С
Связь вертикальная
СВ, С
Элементы деревянные и металлические
Д1, Д2 и т.д.
М1, М2 и т.д.
Детали закладные опор под деревянные конструкции
ЗД1, ЗД2 и т.д.
Примечание - Допускается использовать другие варианты буквенных обозначений типов конструкций, элементов и изделий, при этом количество букв должно быть не более трех.
Приложение Д
(справочное)
ПРИМЕРЫ ВЫПОЛНЕНИЯ ИЗОБРАЖЕНИЙ КАРКАСА
План на отметке +11,000
Рисунок Д.1 - Пример выполнения схемы расположения элементов
каркаса здания
Рисунок Д.2 - Пример выполнения поперечного разреза каркаса
Рисунок Д.3 - Пример выполнения продольного разреза каркаса
Приложение Е
(справочное)
СХЕМА РАСПОЛОЖЕНИЯ ЗАКЛАДНЫХ ДЕТАЛЕЙ
Рисунок Е.1 - Пример выполнения схемы расположения закладных
деталей под каркас из деревянных конструкций
Приложение Ж
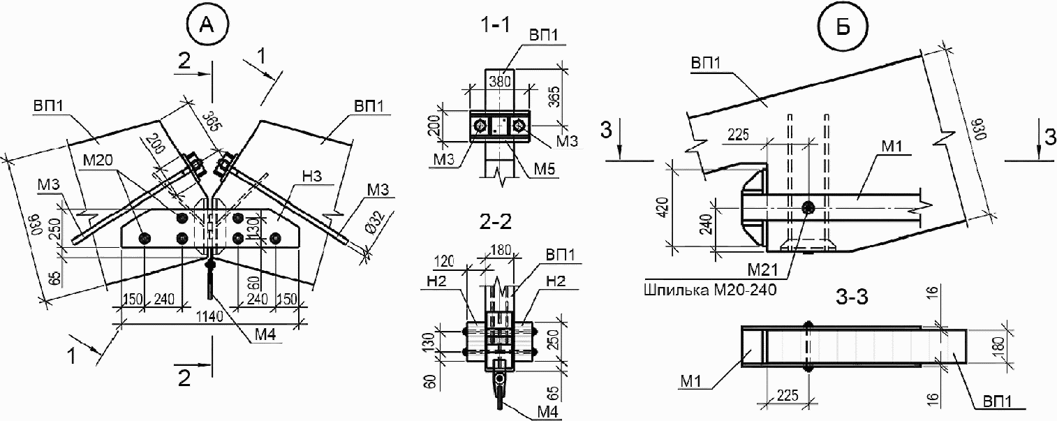
(справочное)
ПРИМЕРЫ ВЫПОЛНЕНИЯ СБОРОЧНЫХ ЧЕРТЕЖЕЙ ФЕРМЫ
Рисунок Ж.1 - Пример изображения общего вида фермы
Рисунок Ж.2 - Пример изображения расчетной схемы фермы
Рисунок Ж.3 - Примеры выполнения узлов фермы
Приложение И
(справочное)
ПРИМЕРЫ ВЫПОЛНЕНИЯ ЧЕРТЕЖЕЙ ЭЛЕМЕНТОВ ДЕРЕВЯННЫХ КОНСТРУКЦИЙ
Рисунок И.1 - Пример выполнения деревянной
составной балки на шпонках
а - узловое соединение на металлических зубчатых пластинах
(МЗП); б - узловое соединение на гвоздях
Рисунок И.2 - Пример выполнения узлов деревянных конструкций
Приложение К
(справочное)
ПРИМЕРЫ ВЫПОЛНЕНИЯ УЗЛОВ К СХЕМАМ РАСПОЛОЖЕНИЯ КОНСТРУКЦИЙ
Рисунок К.1 - Пример выполнения опорного узла арки
Рисунок К.2 - Пример узла крепления подкоса к ригелю рамы
Рисунок К.3 - Пример узла крепления прогонов и связей
к верхнему поясу фермы
Рисунок К.4 - Пример узла опирания стропильной ноги
на стену здания
Рисунок К.5 - Пример конькового узла двускатной крыши