Главная // Актуальные документы // НормыСПРАВКА
Источник публикации
М., 1987
Примечание к документу
Название документа
"Каталог конструктивных решений по усилению и восстановлению строительных конструкций промышленных зданий"
(одобрен Госстроем СССР 27.01.1987)
"Каталог конструктивных решений по усилению и восстановлению строительных конструкций промышленных зданий"
(одобрен Госстроем СССР 27.01.1987)
Госстроем СССР
27 января 1987 года
КАТАЛОГ
КОНСТРУКТИВНЫХ РЕШЕНИЙ ПО УСИЛЕНИЮ И ВОССТАНОВЛЕНИЮ
СТРОИТЕЛЬНЫХ КОНСТРУКЦИЙ ПРОМЫШЛЕННЫХ ЗДАНИЙ
Главный инженер института
В.В.ГРАНЕВ
Начальник отдела специального
и подземного строительства
Ю.В.КУДРЯВЦЕВ
Начальник сектора спецстроительства
И.С.МАКУЛИН
Руководитель темы, с.н.с.
О.М.СЫСОЕВ
Настоящий каталог разработан в соответствии с Планом изучения и обобщения отечественного и зарубежного опыта проектирования и строительства Госстроя СССР на 1984 - 1985 гг.
Каталог содержит каталожные карты типовых конструктивных решений и рекомендаций по усилению и восстановлению железобетонных, стальных, каменных, армокаменных конструкций и фундаментов промышленных зданий.
Каталог состоит из шести разделов.
- Конструктивные решения по усилению и восстановлению
фундаментов.
Материалы каталога предназначены для использования их инженерно-техническими работниками проектных, производственных, ремонтно-строительных организаций министерств и ведомств в качестве практического пособия при решении вопросов усиления и восстановления строительных конструкций, разрушенных промышленных объектов, а также при капитальном ремонте и реконструкции этих объектов в условиях действующего производства.
Каталог разработан с использованием отечественной технической, патентной иностранной литературы по вопросам усиления и восстановления строительных конструкций промышленных зданий, разработок научно-исследовательских и проектных организаций (ЦНИИПромзданий, НИИЖБ, ЛИСИ, Донецкого Промстройниипроект, Волгоградского ПКТИ ремонтного производства).
Работа выполнена отделом специального и подземного строительства ЦНИИпромзданий Госстроя СССР.
В составлении каталога принимали участие к.т.н. Сысоев О.М., начальник сектора спецстроительства Макулин И.С, к.т.н. Коробков В.А., инж. Васина Г.А., Васильева Л.Н., Федорук И.А., Мельникова Н.В., Смирнова Т.Н., ст. техник Белова И.Ю.
Каталог рассмотрен и одобрен на совещании в Госстрое СССР от 27.01.87 г.
Примечание:
В правом верхнем углу каталожного листа, содержащего конструктивное решение по усилению или восстановлению конструкции, приведен источник технической информации с указанием соответствующей страницы.
I. УСИЛЕНИЕ И ВОССТАНОВЛЕНИЕ ЖЕЛЕЗОБЕТОННЫХ КОНСТРУКЦИЙ
ОСНОВНЫЕ ПОЛОЖЕНИЯ ПО УСИЛЕНИЮ КОНСТРУКЦИЙ
Необходимость усиления и восстановления отдельных несущих и ограждающих конструкций вызывается воздействием следующих факторов:
- эксплуатационный износ - потеря несущей способности от воздействия эксплуатационных нагрузок;
- изменение эксплуатационного режима, увеличение нагрузки вследствие изменения технологических процессов, перестройка помещений или надстройка зданий;
- приспособление общественных и быстровозводимых зданий под производственные цели;
- приобретенные конструктивные дефекты, возникшие в результате неправильной эксплуатации конструкций и динамических воздействий внешних факторов;
- случайные повреждения - выход из строя отдельных конструктивных элементов при демонтаже, транспортировке и установке технологического оборудования.
В зависимости от сочетания причин усиления, а также типа конструкций, характера и степени их повреждения рекомендуются определенные способы усиления.
Одни способы направлены на повышение несущей способности усиливаемого элемента без изменения его напряженного состояния и конструктивной схемы, другие - с изменением его напряженного состояния и конструктивной схемы (введение дополнительных упругих или жестких опор в пролете усиливаемой конструкции).
Существуют способы усиления конструкциями, которые полностью или частично воспринимают дополнительные нагрузки, возникающие в элементах, и передают их на элементы или конструкции сооружения, обладающие достаточной несущей способностью. Эти элементы усиления, различные по конструкциям, могут быть выполнены железобетонными или металлическими.
В настоящем каталоге содержатся усиления следующих железобетонных конструкций:
- усиление и восстановление плит и балок покрытия;
- усиление и восстановление плит и балок перекрытия;
- усиление и восстановление подкрановых балок;
- усиление и восстановление колонн.
ОЦЕНКА НЕСУЩЕЙ СПОСОБНОСТИ ЖЕЛЕЗОБЕТОННЫХ КОНСТРУКЦИЙ
Перед выбором способа усиления производится оценка состояния несущей способности существующих железобетонных конструкций с целью:
- определения возможности и необходимости восстановления или усиления поврежденной конструкции;
- установления степени аварийности существующей конструкции и возможности дальнейшего использования ее при усилении или необходимости замены;
- определения необходимости усиления существующей конструкции при возрастающей дополнительной нагрузке.
Во всех случаях оценка состояния конструкций дается в результате:
- обследования конструкций;
- поверочного расчета конструкций;
- испытаний (в случае необходимости) конструкций (определение марки бетона, арматуры).
Обследование рекомендуется проводить в соответствии с "Методическими указаниями по натурным обследованиям промышленных зданий, получивших разрушение в результате внешних воздействий", разработанными ЦНИИПромзданий в 1986 году.
Данные, полученные в результате обследования, необходимы для ориентировочной оценки несущей способности обследуемой конструкции.
В связи с тем, что несущая способность конструкций может быть изменена в большую или меньшую сторону (по сравнению с запроектированной) при строительстве или эксплуатации, все вышеизложенные пункты желательно выполнять даже, если имеется вся необходимая техническая документация. Это особенно важно при возрастающей дополнительной нагрузке на обследуемую конструкцию или когда она получила недопустимые деформации или повреждения.
На основе анализа данных технической документации (рабочих чертежей, актов на скрытые работы и т.д.) и результатов обследования определяется расчетная схема и выполняется инженерный расчет несущей способности конструкции и выбор способа усиления.
ОСНОВНЫЕ ПОЛОЖЕНИЯ ПО РАСЧЕТУ И КОНСТРУИРОВАНИЮ УСИЛЕНИЙ
Поверочные расчеты железобетонных элементов, подлежащих усилению, а также расчет и конструирование усилений из железобетона, необходимо производить в соответствии с указаниями главы
СНиП 2.03.01-84 "Бетонные и железобетонные конструкции", а при выполнении их из металла -
СНиП II-23-81 "Стальные конструкции".
Статические расчеты усиленных элементов конструкций при изменении их первоначальной статической схемы или напряженного состояния после усиления должны проводиться с учетом новой статической схемы или напряженного состояния элемента.
Усилия, действующие в элементах статически неопределимых железобетонных конструкций, рекомендуется рассчитывать (с учетом пластических деформаций) и ограничивать их величиной до 30%. Схема и способ усиления балок при работе на изгиб выбирается в зависимости от соотношения между величиной относительной высоты сжатой зоны бетона

, определяемой из соответствующих условий равновесия, и в зависимости от граничного значения относительной высоты сжатой зоны бетона (при котором предельное состояние элемента наступает одновременно с достижением в растянутой арматуре напряжения, равного расчетному сопротивлению

) и от наличия дефектов бетона в сжатой или количества и состояния арматуры в растянутой зоне балки. Поэтому при проектировании усиления необходимо, чтобы после усиления балки соблюдались условия, зависящие от высоты сжатой зоны
а) при

- из условия
M <= Rб·b x(hо - 0,5x) + Rsc·As(hо - d)
б) при

- из условия
При расчете преднапряженных конструкций усиления (l >= 6 м) необходимо учитывать следующие экспериментально установленные коэффициенты условий работы mo, которые учитывают потери напряжений:
- для преднапряженных горизонтальных затяжек усиления mo = 0,85;
- для преднапряженных шпренгельных затяжек усиления mo = 0,8;
- для преднапряженных распорок усиления mo = 0,9;
- для преднапряженных поперечных стержней усиления на поперечине силы mo = 0,9.
При наличии в сечении усиливаемой конструкции бетонов двух или нескольких классов в расчет по прочности вводится бетон наиболее низкого класса со своим расчетным сопротивлением, а бетоны более высоких классов с расчетным сопротивлением, соответствующим классу бетона, но не более, чем на одну степень выше наиболее низкого класса.
Элементы, усиливаемые железобетонными рубашками и наращиванием, рассчитываются вместе с усилением как монолитные. При этом повреждения элементов или их дефекты учитываются снижением полученной прочности в процентном соотношении.
Элементы усилений, являющиеся для усиливаемой конструкции разгружающими системами и с нею не замоноличиваемые, рассчитываются как самостоятельные или составные системы. При этом усилия в старой (усиливаемой) и новой (усиливающей) частях конструкции определяются по правилам строительной механики.
Элементы разгружающих систем усилений должны быть после установки надежно включены в работу, т.е. между ними и усиливаемой конструкцией должны быть введены предварительно напряженные связи, распорки, клинья, стяжки, подбетонки или другие устройства, создающие предварительное напряжение в конструкции усиления.
При усилении элементов железобетонных конструкций обоймами следует поперечное армирование конструировать замкнутым, а при усилении трехсторонними рубашками хомуты следует замыкать или соединять на сварке со специальными анкерами (уголки, полосовая сталь), располагаемыми на четвертой необетонируемой стороне элемента, принимая защитные мероприятия против их коррозии.
Рубашки следует устраивать на всей длине поврежденного участка железобетонного элемента с перепуском на неповрежденные части на длину не менее длины анкеровки рабочей арматуры рубашки, не менее пяти толщин ее стенок и не менее поперечного размера (ширины грани или диаметра) усиливаемого элемента или не менее 500 мм (принимается наибольшая величина из указанных).
Усиление конструкций односторонним или двухсторонним наращиванием производится путем приварки к существующей обнаженной арматуре новых, дополнительных арматурных стержней и хомутов, а затем бетонированием наращиваемой части.
Дополнительная арматура приваривается к стержням основной арматуры при помощи коротышей вразбежку, при этом приварка к существующей арматуре, не заведенной за опору, не допускается.
При расчетах необходимо учитывать возможность повреждения стержней поджогом при сварке и поэтому сечение старой арматуры принимается ослабленным на 25%.
Необходимое количество дополнительной арматуры устанавливается расчетом усиленной конструкции по главе
СНиП 2.03.01-84 с учетом указаний настоящего каталога.
Усиление металлическими обоймами рассчитывается как самостоятельная конструкция, при этом гибкость ее определяется с учетом расположения крепления к усиливаемой железобетонной конструкции.
Усиление стальными ненапряженными обоймами осуществляется с анкеровкой концов элементов усиления. Разрешается учитывать в работе на продольную сжимающую силу часть длины этих обойм (при отсутствии конструктивной заделки) и при условии установки их на раствор, подчеканиваемый или инъектируемый между обоймой и железобетонным элементом. В этом случае, концевые части обойм, равные по длине двойной ширине усиливаемого элемента и не менее десятикратной ширины полки уголка, рассматриваются как анкерная часть, а на остальной длине конструкция усиления включается в расчет полностью.
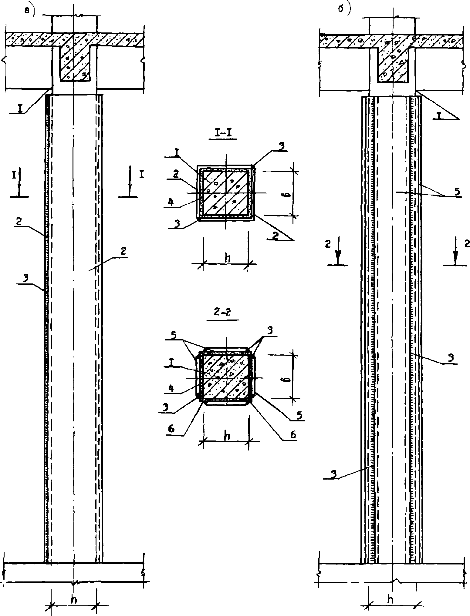
Железобетонные обоймы со спиральным армированием применяются в основном для усиления многогранных центрально-сжатых элементов (колонны, столбы). Расчет таких обойм производится по
формуле (52) главы СНиП 2.03.01-84 как комплексных монолитных элементов при классе бетона, равном фактической прочности бетона усиливаемого элемента. Существующая арматура при наличии коррозии не учитывается.
Шаг хомутов в обоймах следует принимать равным не более 200 мм.
Около опорных частей железобетонных обойм хомуты устанавливаются с шагом, уменьшенным вдвое. Стальные обоймы должны иметь опорные башмаки из уголков и швеллеров, подчеканиваемые жестким раствором.
Усиление балок металлическими поддерживающими конструкциями могут быть выполнены по различным схемам:
- дополнительными балками, расположенными под или поверх усиливаемой конструкции;
- подкосными системами (порталами) при одновременном разгружении подкосами колонн;
- шпренгелями, двухконсольными подгруженными балками или кронштейнами, уменьшающими пролет балок и не вызывающими в них продольных сил (как это происходит в шпренгеле);
- подвесками к вышерасположенным конструкциям, дополнительными стойками, фермами.
Выбор схемы и конструкции усиления зависит от наличия материалов, свободных габаритов, расположения конструкций, могущих служить опорой элементов усиления, характера и степени повреждения усиливаемой конструкции и требования к ней после усиления.
При усилении балок шпренгелем сечения балки проверяются с учетом продольной силы, действующей в балке, как в ригеле шпренгельной системы, т.е. как сечения внецентренно-сжатых элементов. Полученная после усиления шпренгельная система проверяется на действие несимметричной нагрузки, если такая имеет место.
При усилении опорных участков в балке рекомендуется применять замкнутые конструкции усиления обоймы. Применение на опорах трехсторонних рубашек может быть допущено только в случае усиления такой рубашкой по всей длине балки. Усиление опорных участков стальными конструкциями осуществляется при помощи наружных хомутов или других элементов.
Зазоры между металлическими элементами усилений и бетоном усиливаемой конструкции должны подчеркиваться жестким цементным раствором.
При усилении обоймами, рубашками и набетонками поверхность усиливаемой конструкции подготавливается путем насечки бетона в месте контакта старого и нового бетона, а также обработкой их металлическими щетками и в некоторых случаях скалыванием защитного слоя. Перед бетонированием (за 1 - 1,5 часа) поверхность контакта промывается водой под давлением, при этом на увлажненной поверхности старого бетона не должно быть открытых лужиц воды. Новый бетон укладывается с обязательным вибрированием.
При проектировании усиления колонн предварительно-напряженными распорками и наращиванием могут встретиться три характерных случая:
- усиление центрально загруженных колонн;
- усиление внецентренно-сжатых колонн с малыми эксцентриситетами:
а) когда x > 0,55hо (или ориентировочно при lо < 0,3hо) при усилении металлическими распорками;
б) когда aо > 0,5(h' - x) (или ориентировочно lо < 0,3hо) при усилении наращиванием;
- усиление внецентренно-сжатых колонн с большими эксцентриситетами:
а) когда x <= 0,55 (или ориентировочно при lо > 0,3hо) при усилении металлическими распорками;
б) когда Qо < 0,5(h' - x) (или ориентировочно lо > 0,3hо) при усилении наращиванием.
Усиление той или иной конструкции здания при увеличении нагрузки требует проверки расчетом связанных с ней элементов и часто влечет за собой усиление их. Например, усиление плиты перекрытия влечет за собой необходимость усиления второстепенных и соответственно главных балок, колонн (служащих опорами под эти балки) фундаментов и т.д.
ОСНОВНЫЕ МАТЕРИАЛЫ ДЛЯ УСИЛЕНИЯ И ВОССТАНОВЛЕНИЯ
СУЩЕСТВУЮЩИХ ЖЕЛЕЗОБЕТОННЫХ КОНСТРУКЦИЙ И ТРЕБОВАНИЯ К НИМ
| | ИС МЕГАНОРМ: примечание. Взамен ГОСТ 380-71 в части марок и химического состава сталей Постановлением Госстандарта СССР от 30.03.88 N 924 с 1 января 1990 года введен в действие ГОСТ 380-88. Взамен ГОСТ 380-88 Постановлением Госстандарта России от 02.06.1997 N 205 с 1 января 1998 года введен в действие ГОСТ 380-94. | |
Для усиления и восстановления железобетонных конструкций должны применяться бетоны не ниже класса B20, арматура класса АI, АII, АIII круглая и периодического профиля по
ГОСТ 5781-82, а также фасонный прокат из стали класса ВСт3, ВСтпс и ВСт3кп подгруппы "B" ГОСТ 380-71 и ТУ 14-1-3023-80.
Для восстановления прежней монолитности железобетонных конструкций рекомендуется применять следующие бетоны:
- быстротвердеющий бетон на минеральном цементном вяжущем;
- быстротвердеющий полимерцементный бетон;
- быстротвердеющий полимербетон.
Для обеспечения надежного и качественного восстановления железобетонных конструкций, а также быстрого ввода их в эксплуатацию, ремонтные материалы в первую очередь должны удовлетворять следующим требованиям:
- обладать высокой адгезионной и когезионной прочностью, превышающей аналогичные показатели для бетонов;
- обладать быстрым набором прочности;
- иметь низкую ползучесть и усадку;
- быть устойчивым, в случае необходимости, к воздействию химических реагентов, воды и атмосферных условий.
Вышеназванные бетоны и растворы применяются для устранения следующих повреждений, возникающих в железобетонных конструкциях:
- трещин в бетоне;
- сколов бетона с обнажением или без обнажения арматуры;
- участков слабого бетона;
- обнажений арматуры;
- выщелачивания бетонов с образованием в нем каверн и пустот;
- повреждения поверхности бетона с обнажением или без обнажения арматуры.
ТРЕБОВАНИЯ К МАТЕРИАЛАМ ДЛЯ ПРИГОТОВЛЕНИЯ
БЫСТРОТВЕРДЕЮЩИХ РЕМОНТНЫХ СОСТАВОВ
| | ИС МЕГАНОРМ: примечание. Постановлением Госстроя СССР от 10.07.1985 N 116 с 1 января 1987 года введен в действие ГОСТ 10178-85. | |
Портландцемент (ГОСТ 10178-62) для приготовления быстротвердеющих составов должен иметь удельную поверхность свыше 5000 см2/г (по прибору ПСХ-2). При отсутствии надлежащего цемента можно домалывать его на месте.
Гипсоглиноземистый цемент, отвечающий требованиям ГОСТ 11052-64.
| | ИС МЕГАНОРМ: примечание. Взамен ГОСТ 969-77 Постановлением Госстроя СССР от 21.01.1991 N 2 с 1 января 1992 года введен в действие ГОСТ 969-91. | |
Глиноземистый цемент (ГОСТ 969-77) или напрягающий цемент (ТУ 21-20-18-80).
Фуриловый спирт, выпускаемый Ферганским и Краснодарским гидролизными заводами, должен удовлетворять требованиям ТУ 89-257-62. Технический фуриловый спирт представляет собой жидкость светло-желтого цвета с объемной массой 1,12 - 1,34 г/см3, которая полностью растворяется в воде. Содержание фурфурола в спирте 1-го сорта до 1%, 2-го сорта - до 3%.
| | ИС МЕГАНОРМ: примечание. Взамен ГОСТ 18992-73 Постановлением Госстандарта СССР от 30.12.1980 N 6182 с 1 января 1982 года введен в действие ГОСТ 18992-80. | |
Поливинилацетатная эмульсия (ГОСТ 18992-73).
| | ИС МЕГАНОРМ: примечание. Текст дан в соответствии с официальным текстом документа. | |
Водорастворимые эпоксидные смолы ДЭГ и ТЭГ (ди- и триэтиленгликолевые) имеют молекулярный вес 240 - 260 и 300 - 320, содержат эпоксидных групп соответственно 26 - 29 и 21 - 24%, гидроксильных 4 - 4 и 6 - 7%. Жизнеспособность смол при введении в качестве отвердителя полиэтиленполиамина 2,5 - 4,0 часа. Смолы должны удовлетворять требованиям МРТУ 6-05-1223-69.
Фурфуролацетоновый мономер ФА и ФАМ (ТУ 6-05-1678-73) выпускается Ферганским заводом фурановых соединений.
Метилметакрилат (ГОСТ 16505-70).
| | ИС МЕГАНОРМ: примечание. Взамен ГОСТ 10587-76 Постановлением Госстандарта СССР от 06.02.1984 N 417 с 1 января 1985 года введен в действие ГОСТ 10587-84. | |
Эпоксидные диановые смолы ЭД-5 и АД-6 (ГОСТ 10587-63); алкилрезорциновая эпоксидная смола ЭИС-1 (ТУ 38-109-1-71) выпускаются сланцеперерабатывающим комбинатом "Кохтла-Ярве" (Эстонская ССР, город Кохтла-Ярве).
Олигоэфиракрилаты ТГМ-3 (ТУ 6-16-2010-76), МГФ-9 (ТУ 6-01-450-76), 7-1 (ТУ 6-01-948-74) выпускается Дзержинским заводом "Оргстекло".
Связующие инденкумароноакрилатные ИКАС-3 (РСТ 56-70 Лит. ССР) и ЛКС-1 (РСТ-70 Лит. ССР) изготовляются фирмой "Литбытхим".
Солянокислый анилин (ГОСТ 5822-51) применяется для интенсификации процесса полимеризации фурилового спирта.
| | ИС МЕГАНОРМ: примечание. Постановлением Госстандарта СССР от 19.04.1977 N 962 с 1 января 1979 года введен в действие ГОСТ 450-77. | |
Хлористый кальций (ГОСТ 450-53) применяется для ускорения твердения цемента.
Полиэтиленполиамин (ТУ 6-02-594-70). Применяется в качестве отвердителя эпоксидных смол.
Окситерпеновый растворитель (СТУ 12-110-62) применяется в качестве реакционно-способного разбавителя эпоксидных смол.
| | ИС МЕГАНОРМ: примечание. Постановлением Госстандарта СССР от 26.11.1988 N 3987 с 1 января 1990 года введен в действие ГОСТ 8728-88. | |
Дибутилфталат (ГОСТ 8728-65) служит пластификатором эпоксидных смол.
Толуол (ГОСТ 4809-65) используется в качестве растворителя эпоксидных смол.
Гидроперекись изопропилбензола (гипериз МРТУ 6-0521075-67) применяется как инициатор твердения смол ИКАС-3 и ЛКС-1.
Нафтенат кобальта (МРТУ 38-2-5-66) служит ускорителем твердения смол ИКАС-3 и ЛКС-1.
Бензосульфокислота (ТУ МХП-307-54) применяется в качестве отвердителя фурфуролацетонового мономера.
Низкомолекулярный парафин (ГОСТ 16960-71) - пластификатор, понизитель летучести метилметакрилата.
| | ИС МЕГАНОРМ: примечание. Взамен ГОСТ 20282-74 Постановлением Госстандарта СССР от 18.02.1986 N 352 с 1 января 1987 года введен в действие ГОСТ 20282-86. | |
Стабилизатор АБС или эмульсионный полистирол (ГОСТ 20282-74) - регуляторы скорости полимеризации метилметакрилата.
Перекись бензоила (ГОСТ 14888-78) - инициатор твердения метилметакрилата.
Диметиланилин (ГОСТ 2168-58) применяется как ускоритель полимеризации метилметакрилата.
Каменноугольный деготь (ГОСТ 4641-49) марок Д-3, Д-4 и Д-5 применяется в качестве модификатора эпоксидных смол.
| | ИС МЕГАНОРМ: примечание. ГОСТ 10268-70 утратил силу с 1 января 1982 года в связи с введением в действие ГОСТ 10268-80 (Постановление Госстроя СССР от 22.07.1980 N 111). | |
Заполнители для приготовления ремонтных составов применяются в соответствии с ГОСТ 10268-70 и ГОСТ НКТП 3055 на песок кварцевый. Максимальная крупность заполнителя зависит от размеров подлежащего устранению повреждения. Она должна быть не более 1/4 глубины дефекта и не более 20 мм.
В качестве тонкомолотых наполнителей для химстойких бетонов и растворов применяются андезитовая или диабазовая мука (ВТУ МПСМ-26-VII-54), молотый кварцевый песок (ОСТ НК ТП) и др.
СОСТАВЫ БЕТОНОВ И РАСТВОРОВ, ПРЕДНАЗНАЧЕННЫХ ДЛЯ УСИЛЕНИЯ
И ВОССТАНОВЛЕНИЯ СТРОИТЕЛЬНЫХ КОНСТРУКЦИЙ
Быстротвердеющие цементные бетоны и растворы с добавками сульфитно-спиртовой барды, триэтаноламина получаются на основе портландцемента марки 400, глиноземистого и гипсоглиноземистого цемента.
Расход материалов, необходимых для приготовления 1 м3 быстротвердеющего бетона, приведен в таблице 1.
Таблица 1
| | ИС МЕГАНОРМ: примечание. В официальном тексте документа, видимо, допущена опечатка: пункты [37] и [38] в разделе Использованная литература отсутствуют. | |
Составы цементных быстротвердеющих бетонов
и растворов [37, 38]
Наименование материалов | Расход в кг на 1 м3 |
составы |
1 | 2 | 3 | 4 |
1 | 2 | 3 | 4 | 5 |
Портландцемент М400 - 700 | 387 | 301 | 258 | 200 |
Глиноземистый цемент | 43 | 129 | 172 | 200 |
Гипсоглиноземистый цемент | - | - | - | 200 |
Вода | 161 | 161 | 161 | 250 |
Асбест | - | - | - | 70 |
Песок кварцевый | 530 | 530 | 530 | 1200 |
Щебень фракции 3 - 10 | 1290 | 1290 | 1280 | - |
ССБ + ТЭА | 0,086 | 0,086 | 0,086 | - |
Хлористый кальций (безводный) | - | - | - | 6 |
Быстротвердеющие цементно-полимерные бетоны и растворы с добавками солянокислого анилина и хлористого кальция получаются на основе гипсоглиноземистого цемента. Классы быстротвердеющего бетона по прочности устанавливаются 300, 400, 500 и раствора 200, 300, 400 в зависимости от количества вводимых добавок.
Расход материалов для приготовления 1 м3 бетона (раствора) в кг приведен в таблице 2.
Таблица 2
Составы быстротвердеющих мелкозернистых
цементно-полимерных бетонов, кг/м
3 [13]
Материалы | Бетон с добавками |
фурилового спирта | водорастворимых смол | дисперсий полимеров |
1 | 2 | 3 | 4 |
Портландцемент М700 | - | 500 | - | 500 | 450 |
Гипсоглиноземистый цемент | 600 | 90 | 600 | 100 | 150 |
Песок строительный | 1200 | 1200 | 1200 | 1200 | 1200 |
Щебень мелкозернистый (Дмакс = 10 мм) | - | 243 | 243 | 250 | 250 |
Вода | 248 | - | - | - | - |
Фуриловый спирт | 29,5 | 37 | 37 | - | - |
Солянокислый анилин | 3,3 | 4,0 | 4,0 | - | - |
Смола N 89 (33%) | - | - | - | 7 | - |
Смола ДЭГ или ТЭГ | - | - | - | 4 | - |
Полиэтиленполиамин | - | - | - | - | - |
Поливинилацетатная эмульсия | - | - | - | - | 12 |
Аэросил | - | - | - | 12 | - |
Хлористый кальций | 6,0 | 6,0 | 6,0 | 6,0 | 6,0 |
Полимерные составы в виде клеев и бетонов на основе термопластичных инденкумароноакрилатных связующих ИКАС-3 и ЛКС-1 приведены в таблице 3, а усредненные нормы расхода материалов для их приготовления - в
таблице 4.
Таблица 3
Рекомендуемые составы полимерных клеев и полимербетонов
на основе связующих ИКАС-3 и ЛКС-1
[25]
Наименование компонентов | Количество составляющих, масс. % |
Клеи состава | Полимербетоны составов |
N 1 | N 2 | N 3 | N 4 | N 5 | N 6 | N 7 |
1 | 2 | 3 | 4 | 5 | 6 | 7 | 8 |
Смола: | ИКАС-3 | - | - | 27,78 - 23,98 | 18,18 - 14,6 | 12,5 - 11,7 | 9,43 - 8,62 | 12,5 - 10,99 |
| | | или | или | или | или | или |
ЛКС | 90,92 | 62,50 - 32,26 | 27,78 - 23,98 | 18,18 - 14,6 | 12,5 - 11,7 | 9,43 - 8,62 | 12,5 - 10,99 |
Нафтенат кобальта | 4,54 | 3,13 - 1,61 | 1,39 - 1,20 | 0,91 - 0,73 | 0,63 - 0,56 | 0,47 - 0,43 | 0,63 - 0,55 |
Гипериз | 4,54 | 3,13 - 1,61 | 1,39 - 1,20 | 0,91 - 0,73 | 0,43 - 0,56 | 0,47 - 0,43 | 0,63 - 0,55 |
Наполнитель | - | 31,24 - 64,54 | 69,44 - 71,94 | 7,27 - 14,6 | 17,50 - 22,35 | 13,21 - 15,95 | 17,50 - 25,27 |
Заполнитель с размером частиц до 1,25 мм | - | - | - | 72,73 - 69,34 | - | - | - |
" " до 5,00 мм | - | - | - | - | 68,7 - 65,36 | 76,42 - 74,57 | - |
" " до 10,00 мм | - | - | - | - | - | - | 68,74 - 62,64 |
Тиксотропная добавка | - | - | 0 - 1,68 | - | - | - | - |
Таблица 4
Усредненные нормы расхода полимерных клеев и полимербетонов
на основе связующих ИКАС-3 и ЛКС-1
[28]
Наименование материалов | Количество материалов в кг для приготовления |
1 кг клея состава | 1 м3 полимербетона состава |
N 1 | N 2 | N 3 | N 4 | N 5 | N 6 | N 7 |
1 | 2 | 3 | 4 | 5 | 6 | 7 | 8 |
Смола: | ИКАС-3 | 0,91 | 0,625 - 0,323 | 0,277 - 0,244 | 345 - 291 | 262 - 245 | 215 - 220 | 262 - 245 |
| | или | или | или | или | или | или |
ЛКС | | 0,625 - 0,323 | 0,277 - 0,244 | 345 - 291 | 262 - 245 | 215 - 200 | 262 - 245 |
Ускоритель НК | 0,045 | 0,031 - 0,016 | 0,014 - 0,012 | 17 - 14,5 | 13 - 12,5 | 11 - 10 | 13 - 12,5 |
Гипериз | 0,045 | 0,031 - 0,016 | 0,014 - 0,012 | 17 - 14,5 | 13 - 12,5 | 11 - 10 | 13 - 12,5 |
Наполнитель | - | 0,313 - 0,645 | 0,695 - 0,732 | 135 - 270 | 370 - 490 | 300 - 340 | 370 - 450 |
Заполнитель | - | - | - | 1350 - 1340 | 1442 - 1430 | 1743 - 1760 | 1440 - 1480 |
Итого: | 1,0 | 1,0 - 1,0 | 1,0 - 1,0 | 1864 - 1930 | 2100 - 2190 | 2280 - 2320 | 2100 - 2200 |
Объемная масса в т/м3 | 1,12 | 1,38 - 1,83 | 1,85 - 1,98 | 1,86 - 1,93 | 2,10 - 2,19 | 2,28 - 2,32 | 2,10 - 2,20 |
Состав N 1 предназначается для заделки трещин раскрытием до 0,5 мм или для грунтовки поверхности бетона, подготовленной для ремонта. В последнем случае смола ЛКС-1 может быть заменена смолой ИКАС-3.
Состав N 2 рекомендуется для инъектирования трещин раскрытием более 0,5 мм или более 0,1 мм.
Состав N 3 применяется для герметизации трещин или для покрытия повреждений бетона глубиной до 5 мм. Для того, чтобы состав не стекал с вертикальной поверхности и сохранил требуемую вязкость, в него вводится, кроме наполнителя, добавка (асбестовая мука, сажа, аэросил и др.) в количестве 0,8 - 1,7%.
Составы N 4 - 7 рассчитаны для ремонта повреждений бетона глубиной более 5 мм. При этом наибольший размер зерен заполнителя не должен превышать 1/3 наименьшего размера поврежденного участка конструкции.
Полимерные клеи и полимербетоны на основе метилметакрилата (ММА), модифицированные олигоэфиракрилатами (ОЭА), приведены в таблице 5.
Таблица 5
Рекомендуемые составы полимерных клеев и полимербетонов
на основе ММА с добавкой ОЭА
[36]
Наименование компонентов | Количество составляющих, масс. % |
Клеи составов | Полимербетоны составов |
N 1 | N 2 | N 3 | N 4 | N 5 | N 6 | N 7 |
1 | 2 | 3 | 4 | 5 | 6 | 7 | 8 |
Метилметакрилат | 64,72 | 21,83 | 17,68 | 7,50 | 8,00 | 9,00 | 10,00 |
Олигоэфиракрилат "7-1" | 6,47 | 3,27 | 3,53 | 0,40 | 1,50 | 2,00 | 2,50 |
Перекись бензола | 4,53 | 1,74 | 1,59 | 0,45 | 0,68 | 0,80 | 0,90 |
Диметиланилин | 1,64 | 0,65 | 0,61 | 0,13 | 0,25 | 0,30 | 0,36 |
Полистирол | 12,94 | 3,27 | 2,65 | 1,50 | 1,80 | 2,50 | 3,50 |
Низкомолекулярный парафин | 9,70 | 3,74 | 3,35 | 0,10 | 0,11 | 0,12 | 0,13 |
Кварцевая мука | - | 19,65 | 21,25 | 5,00 | 13,00 | 17,00 | 21,00 |
Песок строительный | - | 45,85 | 49,37 | 48,92 | 27,06 | 16,28 | 4,61 |
Щебень фракции 5 - 10 мм | - | - | - | 36,00 | 47,00 | 52,00 | 57,00 |
Составы на основе ММА с добавкой ОЭА характеризуются высокой скоростью твердения при нормальной температуре. Полимерные клеи могут в течение 24 часов набирать прочность при сжатии порядка 700 - 800 кг/см2, а полимербетоны - 900 - 1000 кг/см2.
Полимербетоны на основе ММА, модифицированные ОЭА, имеют высокие физико-механические свойства. Они обладают высокой химической стойкостью и способностью твердеть на мокрой поверхности цементного бетона и под водой.
Рекомендуемые составы полимерного раствора и полимербетона на основе фурфуролацетонового мономера ФА или ФАМ приведены в таблице 6.
Таблица 6
Рекомендуемые составы полимерного клея и полимербетона
на основе фурфуролацетонового мономера ФА или ФАМ
[11]
Наименование составляющих | Составы в массе, % |
1 | 2 |
1 | 2 | 3 |
Мономер ФА, ФАМ | 10,0 | 10,0 |
Бензосульфокислота (БСК) | 2,5 | 2,5 |
Наполнитель | 12,5 | - |
Песок | 25,0 | 37,5 |
Щебень | 50,0 | 50,0 |
В местах, подверженных периодическому сильному увлажнению или воздействию агрессивных сред, следует применять состав 1. В остальных случаях можно применять состав 2.
При влажном воздухе допускается увеличить количество БСК до 3,0 масс. % соответственно для составов 1 и 2.
Рекомендуемые составы полимерных клеев и полимербетонов на основе эпоксидных смол приведены в таблице 7.
Таблица 7
Рекомендуемые составы полимерных клеев и полимербетонов
на основе эпоксидных смол [
10,
11]
Наименование компонентов | Количество составляющих, масс. % |
Клеи составов | Полимербетоны составов |
N 1 | N 2 | N 3 | N 4 | N 5 | N 6 | N 7 |
1 | 2 | 3 | 4 | 5 | 6 | 7 | 8 |
Смола: | ЭД-5 | 50,00 | 16,66 | - | 26,88 | - | - | 9,52 |
| | или | или | | | | | или |
| ЭД-6 | 50,00 | 16,66 | 29,58 | - | 9,0 | 7,0 | 9,52 |
| | или | или | | | | | или |
| ЭИС-1 | 50,00 | 16,66 | - | - | - | - | 9,52 |
Полиэфир МГФ-9 | - | - | 8,87 | - | - | - | - |
Деготь | 35,00 | 11,66 | - | - | - | - | 6,66 |
Окситерпеновый растворитель | - | - | - | 2,68 | - | - | - |
Пластификатор (фуриловый спирт или дибутилфталат) | 10,00 | 2,34 | - | - | 2,3 | 1,3 | 1,9 |
Полиэтиленполиамин | 5,00 | 1,67 | 2,38 | 3,22 | 1,1 | 1,1 | 0,95 |
Наполнитель | - | - | 59,17 | 67,22 | 28,0 | 12,0 | - |
Песок | - | 66,67 | - | - | 60,0 | 37,0 | 33,33 |
Щебень | - | - | - | - | - | 34,0 | 47,64 |
Растворитель (толуол) | - | - | - | - | 2,6 | 1,6 | - |
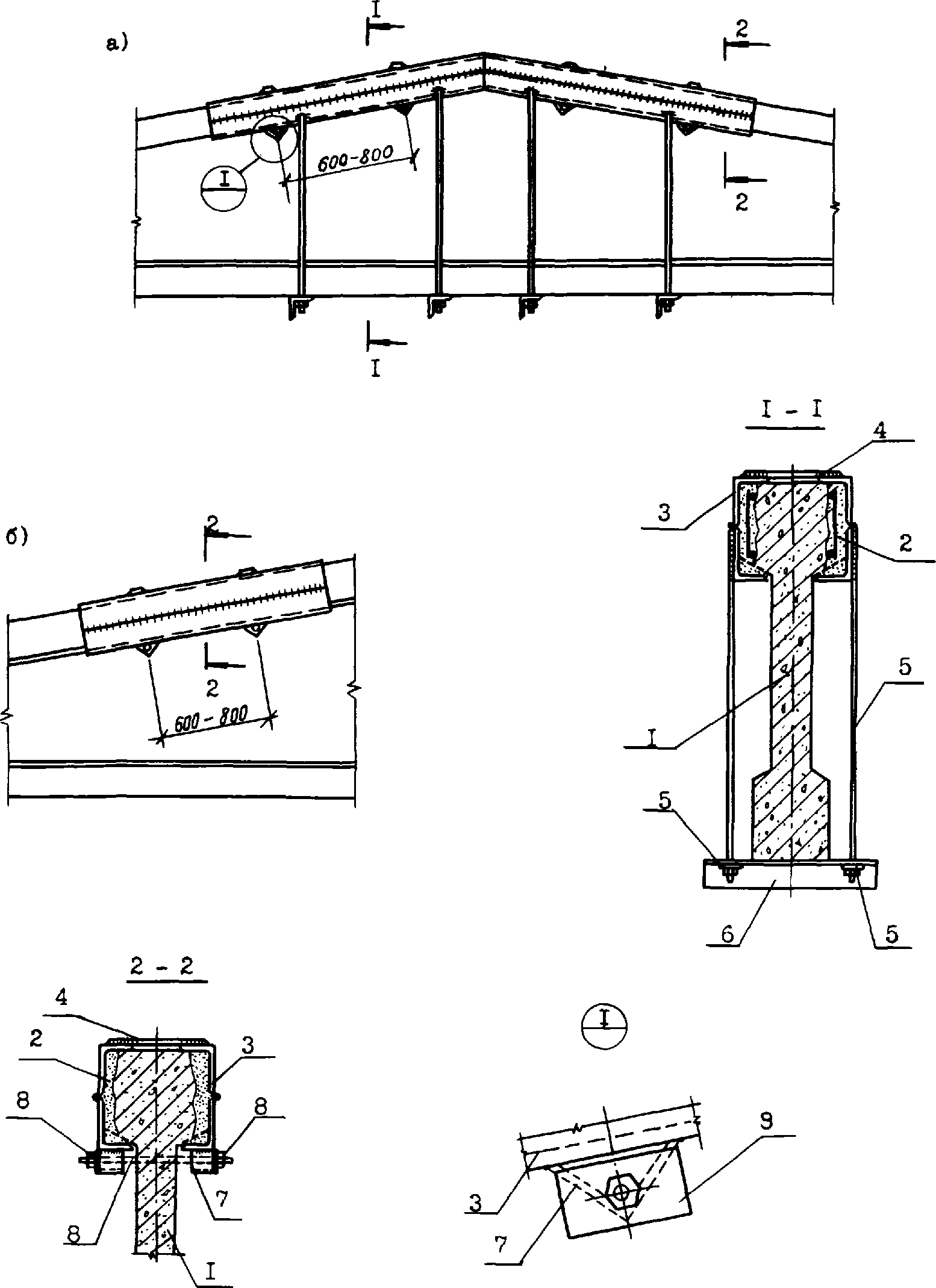
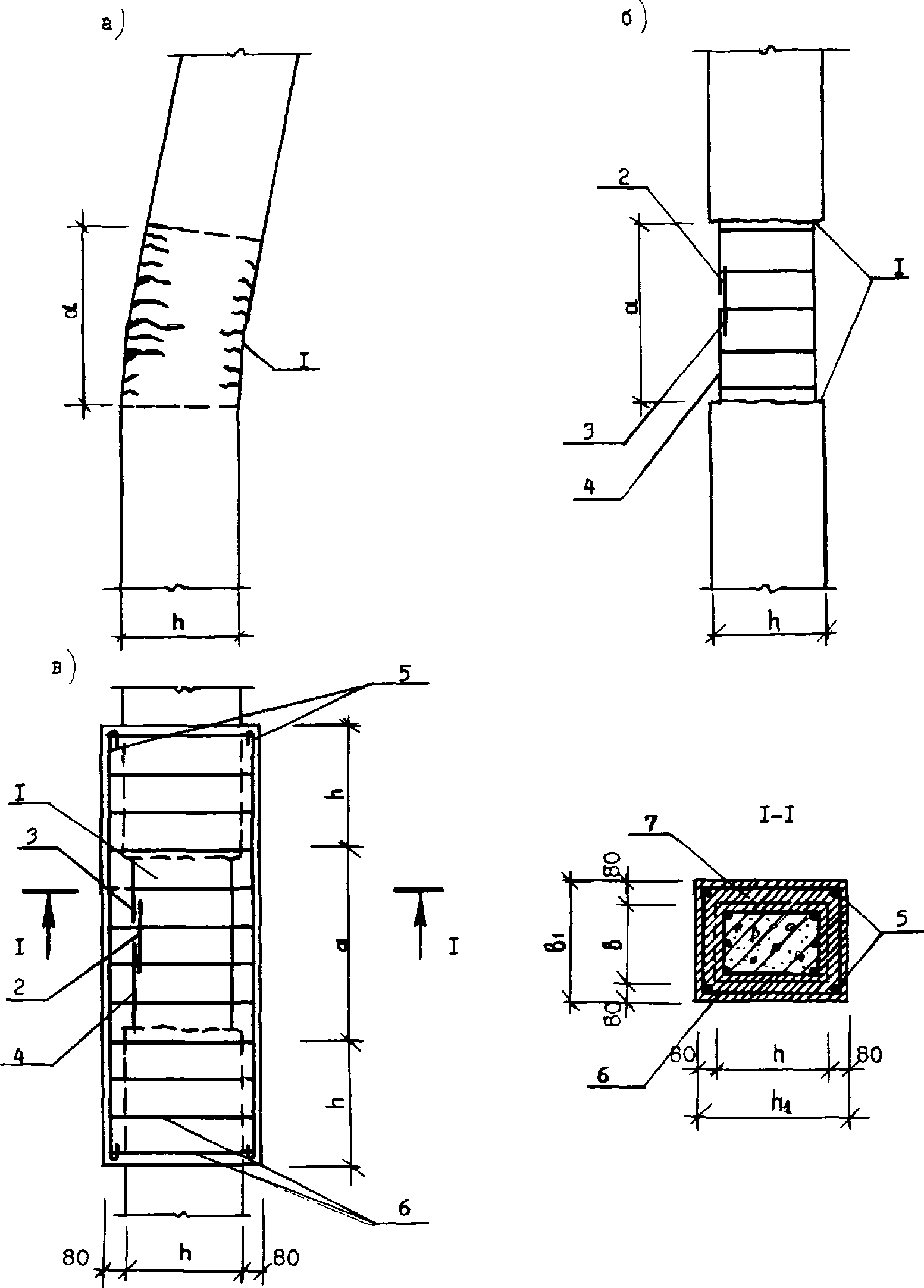
УСИЛЕНИЕ РЕБРИСТЫХ ПЛИТ ПОКРЫТИЯ НАРАЩИВАНИЕМ
а), а
1) наращивание сверху;
б) перекрытие пробоины в полке листами волнистой асбофанеры;
в) бетонирование зазора между балками под опорными ребрами сместившихся плит;
г) установка стяжного уголка между опорными ребрами при смещении плиты на соседнюю балку;
д) усиление опорных ребер хомутами.
1 - плита; 2 - балка; 3 и 4 - наращивание; 5 - асбофанера; 6 - стяжной уголок; 7 - хомуты (d >= 10 мм); 8 - подкладки в виде уголков; 9 - опорные уголки.
РЕКОМЕНДАЦИИ ПО УСИЛЕНИЮ РЕБРИСТЫХ ПЛИТ
ПОКРЫТИЯ НАРАЩИВАНИЕМ
При повреждении поверхностного слоя плиты покрытия 1 рекомендуется ее наращивание сверху (см.
"а", "а1"). Для этого к обнаженной арматуре плиты приваривается дополнительная арматура 3, а затем производится укладка нового бетона 4.
В случае появления в плите пробоины (см.
"б") последняя может быть перекрыта листами асбофанеры 5, на которую укладывается быстротвердеющий бетон 4.
При смещении опорных ребер плит перекрытий опора одной из плит 1 может оказаться в зазоре между балками 2. В этом случае необходимо срочно залить зазор быстротвердеющим бетоном 3 (см.
"в"). После чего к обнаженной арматуре балки 2 привариваются стяжные уголки 6 (см.
"г").
Опорные ребра при повреждении могут быть усилены с помощью хомутов (см.
"д"). Для этого в верхней части плиты 1 пробиваются отверстия, через которые протягиваются хомуты 7 с резьбой. Между хомутами и ребрами плиты устанавливаются опорные уголки 9. В верхней части плиты укладываются подкладки в виде уголков 8. Натяжение хомутов осуществляется затягиванием болтов.
УСИЛЕНИЕ РЕБРИСТЫХ ПЛИТ ПОКРЫТИЯ ПРИ ПОВРЕЖДЕНИЯХ РЕБЕР
а) наращивание ребер снизу;
б) удлинение опоры стальными консолями (с преднапряжением и подклинкой);
в) устройство стальных балок под ребрами плит (с подклинкой);
г) устройство шпренгеля (с натяжением или подклинкой).
1 - плита; 2 - балка, ферма; 3 - арматура плит; 4 - дополнительная арматура; 5 - двухконсольная опорная балка; 6 - балка; 7 - шпренгель; 8, 9 - упоры, 10 - опорные уголки.
РЕКОМЕНДАЦИИ ПО УСИЛЕНИЮ РЕБРИСТЫХ ПЛИТ ПОКРЫТИЯ
ПРИ ПОВРЕЖДЕНИИ РЕБЕР
Усиление ребер плит покрытия, вызванное разрушением последних или увеличением нагрузок на несущие конструкции промышленных зданий, можно производить следующими способами:
- наращиванием ребер снизу;
- удлинением опоры стальными консолями;
- устройством стальных балок под ребрами плит;
- устройством шпренгеля.
При наращивании ребер снизу (см.
"а") поврежденные участки плиты 1 очищаются от разрушенного бетона, арматура плиты 3 - от ржавчины и грязи. К арматуре 3 с помощью коротышей приваривается дополнительная арматура 4. Устраивается временная опалубка, в которую заливается новый бетон. После достижения бетоном соответствующей прочности опалубка снимается.
Усиление плиты путем удлинения опоры стальными консолями рекомендуется проводить в следующем порядке (см.
"б"). Заранее готовятся стальные двухконсольные балки 5, состоящие из двух швеллеров, соединенных уголками. Уголки усиливаются ребрами жесткости. Подготовленные балки 5 подводятся под ребра плиты 1 у опор балок покрытия или ферм. Ввод двухконсольных балок 5 в совместную работу с плитой 1 производится подклинкой под ее ребра клиновидных элементов.
Усиление плит с помощью стальных балок 6 (см.
"в") осуществляется путем их установки на балки покрытия 2 под ребра плиты. Балка представляет собой сваренную из двух швеллеров конструкцию, скрепленную уголком. При смещении плит по высоте балки 6 не соединяются между собой, а усиливаются ребрами жесткости.
Устройство шпренгеля (см.
"г") рекомендуется проводить в такой последовательности. В плите 1 пробиваются отверстия. По торцам плиты укладываются опорные уголки 10. Затем в отверстия пропускают шпренгель 7 с приваренными на концах упорами 8. В местах перегиба шпренгелей устраиваются упоры 9, с помощью которых производится натяжение шпренгельной системы.
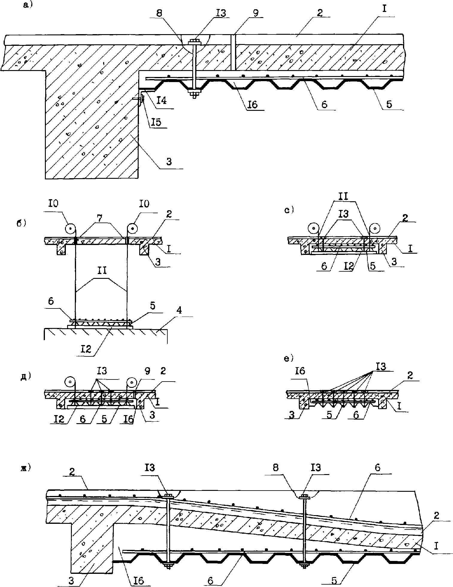
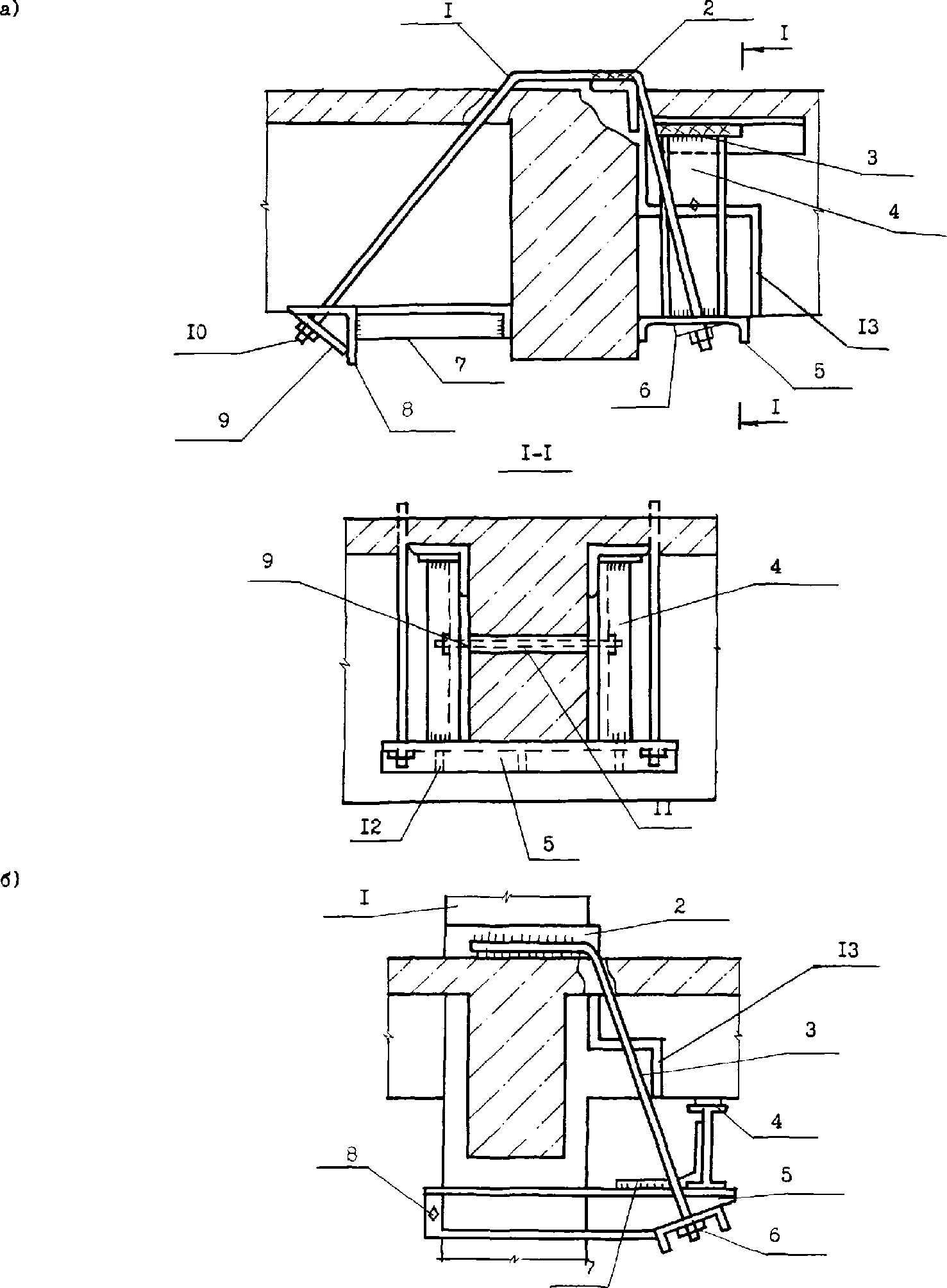
УСИЛЕНИЕ СБОРНОЙ ЖЕЛЕЗОБЕТОННОЙ ПЛИТЫ ПОКРЫТИЯ
МЕТАЛЛИЧЕСКОЙ БАЛКОЙ С ПОДКЛИНКОЙ
1 - металлическая балка I22;
2 - пластинка - 50 x 6:
3 - пластинка - 110 x 6
4 - прокладка из [8;
5 - клин из полок I22;
6 - болт М10;
7 - сварка;
8 - усиливаемая плита;
9 - балка (ферма) покрытия.
РЕКОМЕНДАЦИИ ПО УСИЛЕНИЮ СБОРНОЙ ЖЕЛЕЗОБЕТОННОЙ ПЛИТЫ
ПОКРЫТИЯ МЕТАЛЛИЧЕСКОЙ БАЛКОЙ С ПОДКЛИНКОЙ
Усиление плит покрытия металлической балкой производится, как правило, при увеличении нагрузки на плиту или для восстановления несущей способности, утраченной в результате воздействия внешних нагрузок.
Способ усиления плит типа ПНС и ПКЖ состоит в подпруживании их металлическими прокатными балками 1. Исходя из условий прочности при таком усилении требуются металлические балки относительно небольшой высоты и значительно меньшей жесткости, чем усиливаемые или ребристые панели 8. Поэтому для получения соответствующего эффекта от усиления необходимо, чтобы в местах подпирания возникали реальные разгружающие воздействия, направленные снизу вверх. Это достигается подведением под ребра плиты прокладок из швеллеров 4, которые жестко закрепляются на металлической балке 1 клиньями из полос швеллера 5, что создает подпирающим металлическим балкам предварительный прогиб. Стремясь выпрямиться, они будут оказывать разгружающее давление на подпираемые ими более жесткие железобетонные плиты 8. В усилениях такого вида подклинка производится в четвертях и середине пролетов разгружающих балок, т.е. в трех местах с шагом 2 м, что удобно в конструктивном отношении, поскольку соответствует расположению поперечных ребер плит типа ПНС и ПКЖ.
Металлическая балка 1 с помощью пластинки 3, прикрепленной к ней сваркой 7, опирается на балку покрытия 9. Стыковка балок 1 производится путем прикрепления к концам балок на болтах 6 металлических пластин 2. Такое соединение создает жесткое опирание усиливающих балок.
Приведенный способ усиления плит покрытия позволяет восстановить их несущую способность без остановки производства участками с передвижных лесов в виде козел.
При данном способе усиления необходимо придерживаться следующего порядка работ:
- укладываются металлические балки (двутавры) 1 на верхние пояса балок покрытия 9 с помощью приваренных к ним пластинок 3;
- закрепляются между собой пластинками 2 с помощью болтов 6;
- устанавливаются прокладки и расклиниваются к ребрам плит клиньями 5.
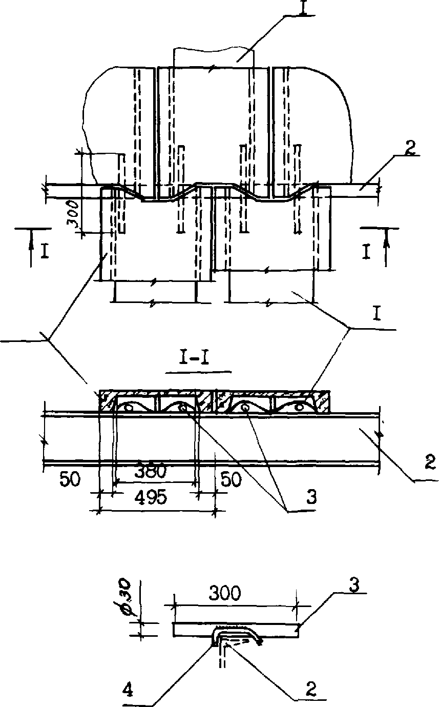
УСИЛЕНИЕ ПЛИТ ПОКРЫТИЯ С ПОМОЩЬЮ ЛИСТОВ ИЗ ВОЛНИСТОЙ СТАЛИ
1 - лист из волнистой стали длиной 100 мм, шириной 380 мм;
2 - прогон;
3 - стальной прут

,
l = 300 мм;
4 - скоба из проволоки

;
5 - усиливаемая плита.
РЕКОМЕНДАЦИИ ПО УСИЛЕНИЮ ПЛИТ ПОКРЫТИЯ С ПОМОЩЬЮ
ЛИСТОВ ИЗ ВОЛНИСТОЙ СТАЛИ
Усиление с помощью листов из волнистой стали производится при средней степени разрушение плиты покрытия.
Перед усилением плит 5 производится их ремонт цементным раствором марки 200. Затем под плиту 5 подводится заранее заготовленный по размерам стальной гофрированный лист 1, который крепится к прогону 2 стальными стержнями 3 с приваренными к ним скобами 4 для фиксации стержней на прогоне. Скобы 4 представляют собой коротыши из круглой стали, которые после установки на прогон 2 загибаются по концам.
ВОССТАНОВЛЕНИЕ ОПИРАНИЯ РЕБРИСТЫХ ПЛИТ ПОКРЫТИЯ НА ОПОРЫ
а) подведение двухконсольной опоры;
б) удлинение опоры консольными стальными балками.
1 - балка; 2 - плита; 3 - стальные балки из [14;
4, 6, 7 - упорные и опорные

; 5 - плита покрытия;
8 - стяжные элементы (болт

);
9 - центрирующая прокладка 100 x 100;
10 - ребра жесткости -

.
РЕКОМЕНДАЦИИ ПО ВОССТАНОВЛЕНИЮ ОПИРАНИЯ РЕБРИСТЫХ
ПЛИТ ПОКРЫТИЯ НА ОПОРЫ
Восстановление опирания ребристых плит покрытия на опоры рекомендуется производить в случае их смещения от проектного положения после воздействия динамических нагрузок.
При восстановлении опирания плит на среднюю балку покрытия 1
(вариант "а") под ребро жесткости плиты 2 подводят стальные балки из швеллеров 3, опирающиеся на стропильную балку 1. Длина стальных балок 3 определяется величиной смещения плит от первоначального положения. При сильном смещении концы балок 3 выступают за грани сечения стропильной балки 1. К образующимся при этом консолям следует приварить опорные уголки 4 с ребрами жесткости 10 для обеспечения необходимой прочности соединения.
Восстановление опирания плит на торцевую балку покрытия 1
(вариант "б") может быть произведено с помощью консольной стальной балки 3. Процесс восстановления следует производить соблюдая такой порядок. В восстанавливаемой плите пробиваются отверстия, в которые вставляются болты 8. К болтам 8 сверху и снизу прикрепляются упорные 6 и опорные 7 уголки, на которые устанавливаются консольные балки 3. Ввод в работу усиления производится путем затягивания гаек на стяжных болтах 8.
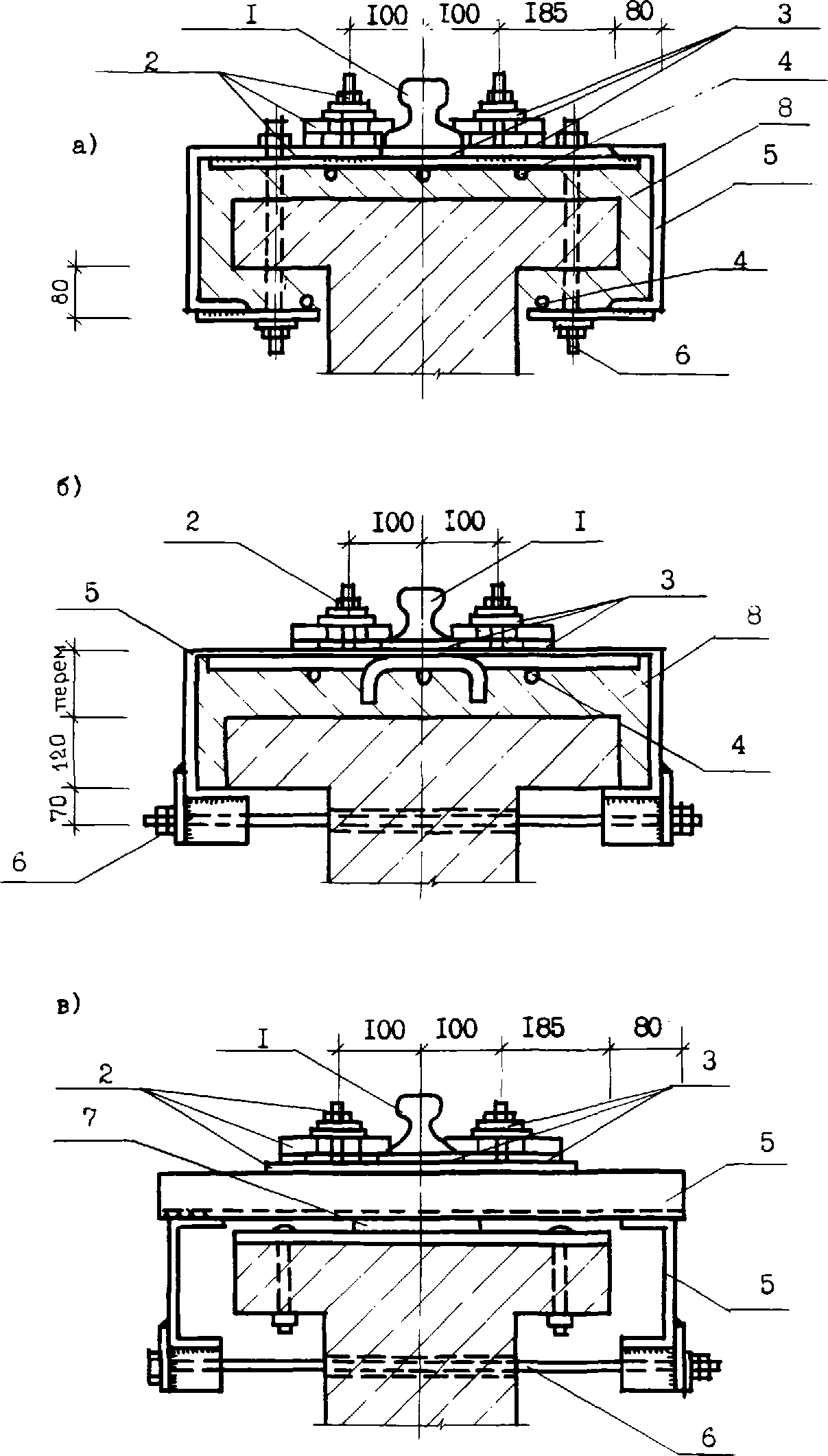
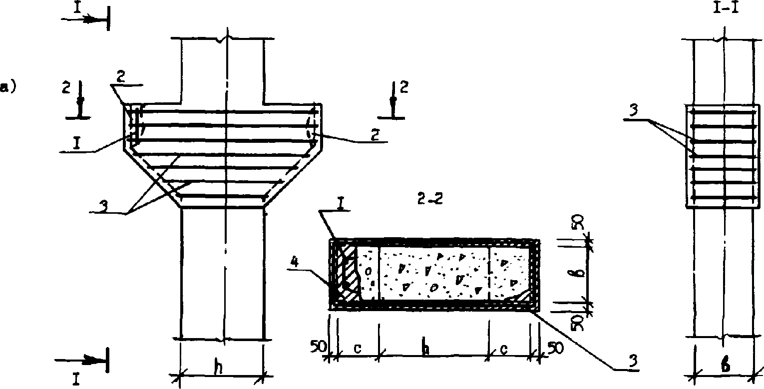
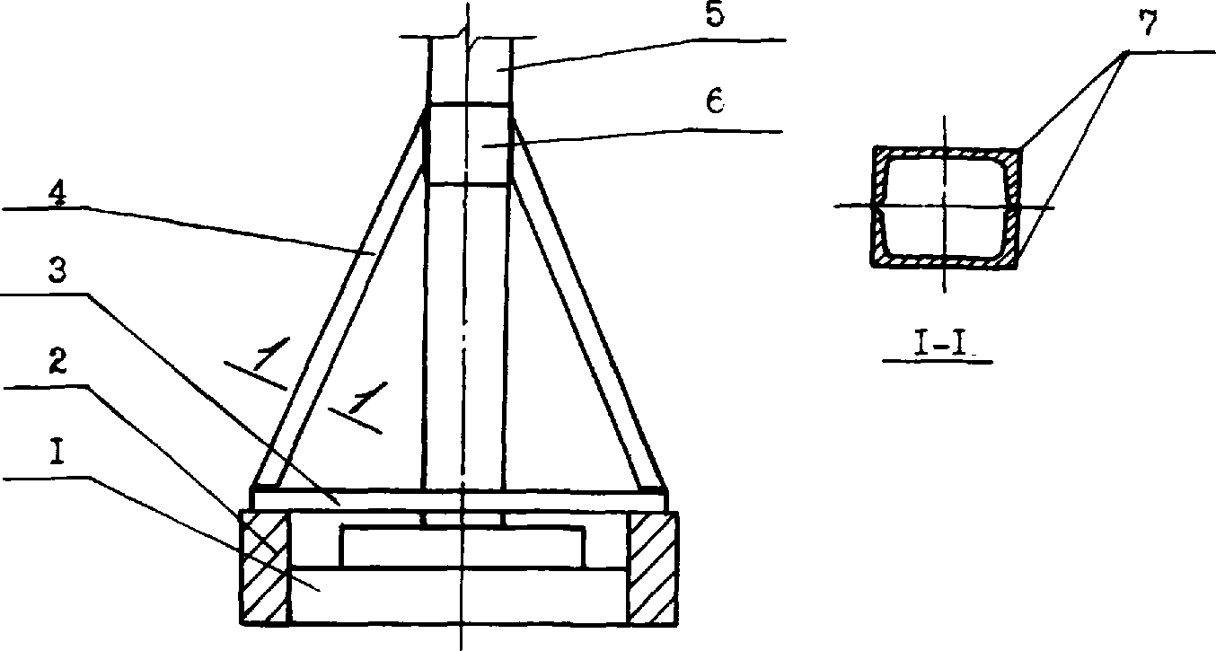
УСИЛЕНИЕ ПРОДОЛЬНЫХ РЕБЕР ПЛИТ ПОКРЫТИЯ
1 - плита покрытия; 2 - балка (ферма) покрытия; 3 - 1 N 14; 4 - уголки 90 x 9; 5 - ребра жесткости

.
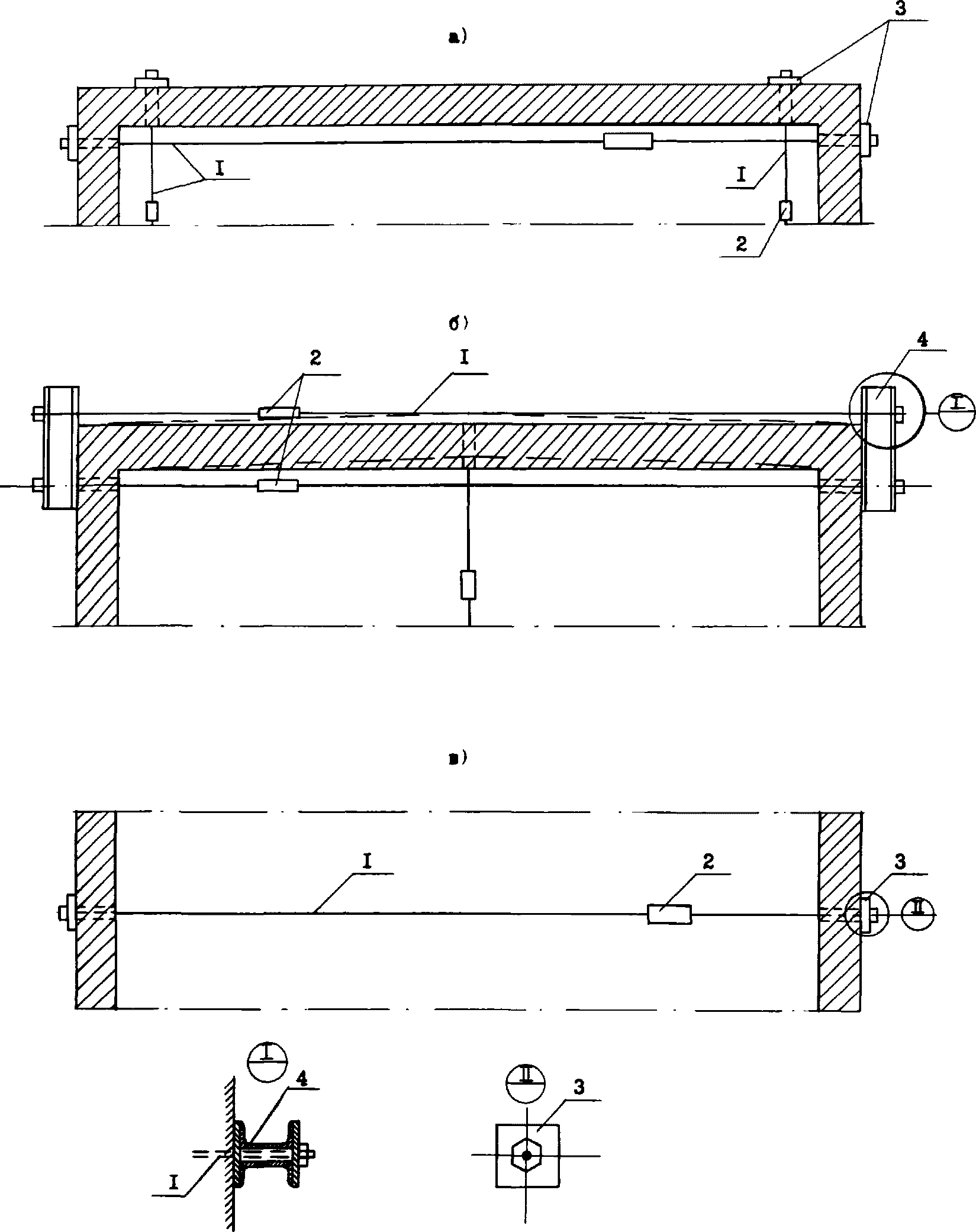
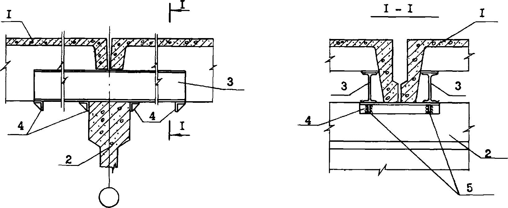
УВЕЛИЧЕНИЕ ДЛИНЫ ОПИРАНИЯ ПЛИТ ПОКРЫТИЯ
а) покрытия;
б) перекрытия.
1 - плиты покрытия; 2 - швеллер N 12; 3 - ферма покрытия; 4 - швеллер N 12; 5 - болт

; 6 - уголки 63 x 5; 7 - болт

; 8 - плита перекрытия; 9 - хомут

; 10 - уголки 80 x 6; 11 - ригель.
РЕКОМЕНДАЦИИ ПО УСИЛЕНИЮ РЕБЕР ПЛИТ ПОКРЫТИЯ
С ПОМОЩЬЮ ДВУХКОНСОЛЬНЫХ БАЛОК
Усиление ребер плит покрытия с помощью двухконсольных балок рекомендуется проводить при повреждении бетона на всю высоту ребра опирания и деформации арматуры, а также при разрушении бетона и арматуры ребра жесткости у опор.
Перед усилением производится восстановление разрушенного бетона и арматуры ребер или заделка трещин, если их раскрытие превысило допустимые величины.
Затем под ребро жесткости плиты 1 подводится двухконсольная балка, представляющая собой сварную конструкцию из двух швеллеров 3, соединенных уголками 4 с ребрами жесткости 5. Балка подводится под плиту покрытия 1 и устанавливается на балке покрытия 2 так, чтобы ребра плиты опирались на швеллеры 3. Длина консолей определяется по расчету. Включение их в совместную работу с плитами обеспечивается подклинкой или расчеканкой зазора между плитой и усиливаемой балкой.
РЕКОМЕНДАЦИИ ПО УВЕЛИЧЕНИЮ ДЛИНЫ ОПИРАНИЯ ПЛИТ ПОКРЫТИЯ
При воздействии кратковременных динамических нагрузок плиты покрытий и перекрытий могут быть смещены со своих опор, в результате чего площадь их опирания на балки покрытия может уменьшиться, что часто приводит к опасности обрушения плит. Для увеличения длины опирания плит покрытия 1 на ферме 3 устанавливают швеллеры 2 с ребрами жесткости, скрепляемые болтами 5 с швеллерами 4, плотно прилегаемыми к ферме 3. Швеллеры 4 крепятся в свою очередь к уголкам 6 болтами 7.
Увеличение длины опирания плит 8 достигается закреплением на ригеле 11 уголков 10 с помощью хомутов 9.
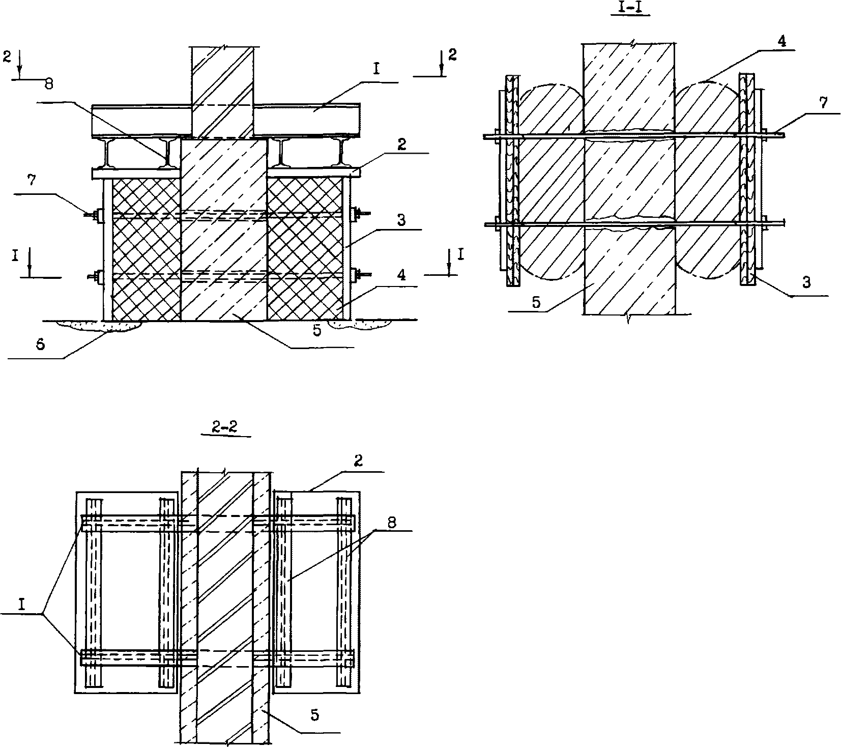
УСИЛЕНИЕ СБОРНЫХ БАЛОК ПОКРЫТИЯ НАРАЩИВАНИЕМ СВЕРХУ
б) односторонним наращиванием сверху;
1 - усиливаемая балка; 2 - плита покрытия; 3 - швеллеры; 4 - уголки усиления выреза полки швеллера; 5 - упоры для стяжных болтов; 6 - стяжные болты; 7 - соединительные элементы на сварке; 8 - арматура балки; 9 - дополнительная арматура, 10 - новый бетон.
РЕКОМЕНДАЦИИ ПО УСИЛЕНИЮ СБОРНЫХ БАЛОК ПОКРЫТИЯ
НАРАЩИВАНИЕМ СВЕРХУ
Эти конструктивные решения применяются для восстановления верхнего пояса балки покрытия, получившего среднюю степень повреждения, а также для повышения ее несущей способности. Они могут быть осуществлены следующими способами:
- обоймами из швеллеров (см.
"а");
- односторонним наращиванием сверху (см.
"б");
- железобетонной рубашкой (см.
"в").
Наращивание обоймами из швеллеров состоит в том, что к верхней части балки покрытия 1 крепятся на болтах 6 два швеллера 3. Снизу к швеллерам привариваются упоры 5 из уголков, через которые в заранее пробитые в балке 1 отверстия пропускают болты 6. В подготовленную обойму заливается новый бетон 10. К швеллерам с двух сторон приваривают уголки усиления полки швеллера 4.
Одностороннее наращивание осуществляется в следующем порядке. В верхней полке балки покрытия 1 обнажается арматура 8. Затем к последней приваривается через соединительные элементы 7 дополнительная арматура 9, устанавливается временная опалубка и производится заливка нового бетона 10.
При усилении балки покрытия 1 железобетонной рубашкой обнажается арматура в верхней полке 8, к которой привариваются соединительные элементы 7. К соединительным элементам приваривается арматура 9 рубашки. После устройства временной опалубки в нее заливается новый бетон 10, создавая железобетонную рубашку.
УСИЛЕНИЕ СТРОПИЛЬНЫХ БАЛОК НАРАЩИВАНИЕМ СНИЗУ
| | ИС МЕГАНОРМ: примечание. В официальном тексте документа, видимо, допущена опечатка: пункт [39] в разделе Использованная литература отсутствует. | |
а), б) наращивание снизу с подвариванием дополнительного стержня;
в) накладки при разрыве арматуры.
1 - усиливаемая балка; 2 и 3 - арматурные стержни в растянутой зоне балок; 4 - дополнительная арматура; 5 - накладки; 6 - коротыши из круглой или "флажки" из полосовой стали; 7 - хомуты, привариваемые к поперечной арматуре; 8 - наращивание бетоном.
РЕКОМЕНДАЦИИ ПО УСИЛЕНИЮ СТРОПИЛЬНЫХ БАЛОК
НАРАЩИВАНИЕМ СНИЗУ
Усиление стропильных балок наращиванием снизу применяется для восстановления несущей способности при средней степени разрушения балки или повышения несущей способности балки в связи с увеличением нагрузки на перекрытие. Оно может быть осуществлено следующими способами:
- наращиванием с подвариванием дополнительных стержней;
- накладками при разрыве арматуры.
Наращиванием с подвариванием дополнительных стержней рекомендуется проводить в такой последовательности (см.
"а",
"б"). В растянутой зоне стропильной балки 1 обнажаются стержни, очищаются от ржавчины и старого бетона. Затем к обнаженной арматуре привариваются коротыши из круглой или "флажки" из полосовой стали 6. После приваривания дополнительной арматуры 2 и 3 устраивается временная опалубка, куда заливается новый бетон 8.
При разрыве арматуры 2 и 3 нижней растянутой зоны (см.
"в") сначала в зоне разрушения удаляется разрушенный бетон. Отрезаются деформированные и частично разорванные стержни. На место удаленных стержней привариваются накладки из коротышей 5, а к существующей поперечной арматуре - хомуты 7. После этого устраивается временная опалубка, в которую заливается новый бетон 8.
УСИЛЕНИЕ БАЛОК ПОКРЫТИЯ ОБОЙМОЙ И ДОПОЛНИТЕЛЬНЫМИ ХОМУТАМИ
а) Усиление балок обоймой из швеллеров;
б) Усиление балок дополнительными хомутами.
1 - усиливаемая балка; 2 - швеллер; 3 - стяжной болт; 4 -

; 5 - упоры для стяжных болтов; 6 - тяж; 7 - ребро жесткости; 8 -

; 9 - болт М14; 10 -

.
РЕКОМЕНДАЦИИ ПО УСИЛЕНИЮ БАЛОК ПОКРЫТИЯ ОБОЙМАМИ
И ДОПОЛНИТЕЛЬНЫМИ ХОМУТАМИ
Усиление балок покрытия обоймами и дополнительными хомутами рекомендуется для восстановления при средней степени разрушения или для увеличения несущей способности балки в связи с возрастанием нагрузок.
При усилении обоймами (см.
"а") на полке балки 1 с помощью упоров 5, подкладок 4 и стяжек болтов 3 закрепляются швеллеры 2. Ввод обоймы в работу осуществляется одновременным стягиванием всех четырех болтов.
Для усиления, дополнительными хомутами (см.
"б") на полку балки 1 устанавливаются уголки 8 с ребрами жесткости 7 и заранее просверленными отверстиями, через которые пропускаются болты 9 для крепления швеллера 2 с приваренными к нему тяжами 6 из круглой стали. Тяжи закрепляются внизу балки 1 при помощи уголков 10 на болтах. Усиление балки хомутами достигается закручиванием гаек на концах тяжей 6. После стягивания хомутов гайки завариваются.
УСИЛЕНИЕ СЖАТОЙ ЗОНЫ СТРОПИЛЬНОЙ БАЛКИ ОБОЙМАМИ
б) сжим при местном повреждении.
1 - балка; 2 - бетон или раствор; 3, 4 - стальная обойма (из уголков или швеллеров); 5 - тяж с гайками и шайбой; 6 - опорный уголок; 7 - упор для затяжки (равнобокий уголок); 8 - затяжка с гайками и шайбами; 9 -

.
РЕКОМЕНДАЦИИ ПО УСИЛЕНИЮ СЖАТОЙ ЗОНЫ
СТРОПИЛЬНОЙ БАЛКИ ОБОЙМАМИ
При разрушении сжатой зоны стропильной балки можно рекомендовать для ее восстановления стальные обоймы из уголков и швеллеров.
В случае повреждения балки 1 на коньке (см.
"а") сначала удаляют разрушенный бетон и исправляют деформированную арматуру. Затем разрушенное место заделывают новым бетоном 2. После затвердевания нового бетона устанавливается стальная обойма из уголков 3, соединенных пластинами 4 и сваркой. К нижним уголкам привариваются тяжи 5 с опорными уголками 6 и упорами для затяжки 7, представляющими собой равнобокие уголки. Ввод обойм в рабочее состояние осуществляется затягиванием тяжей 5.
При местном повреждении стропильной балки (см.
"б") не требуется устройство вертикальных тяжей, а сжим обоймы осуществляется лишь за счет затяжек 8.
В обоих случаях вместо уголков для устройства обойм могут быть использованы швеллеры.
УСИЛЕНИЕ ЖЕЛЕЗОБЕТОННОЙ БАЛКИ ПОКРЫТИЯ
С ПОМОЩЬЮ ЛИСТОВ ИЗ ФИБРОБЕТОНА
(патент Великобритании N 1560477)
1 - усиливаемая балка; 2 - лист из фибробетона; 3 - новый бетон; 4 - арматура.
РЕКОМЕНДАЦИИ ПО УСИЛЕНИЮ ЖЕЛЕЗОБЕТОННОЙ БАЛКИ ПОКРЫТИЯ
С ПОМОЩЬЮ ЛИСТОВ ИЗ ФИБРОБЕТОНА
Усиление балки покрытия с помощью листов из фибробетона рекомендуется применять при средней степени разрушения.
Предлагаемый способ усиления балки покрытия заключается в следующем. Предварительно отформованные листы фибробетона 2 укрепляются на усиливаемой балке 1 посредством струбцин. Затем образовавшаяся полость заливается новым бетоном 3. При необходимости перед заливкой нового бетона в пространство, образованное листами фибробетона 2, может быть уложена арматура 4.
При необходимости увеличения прочности листов из фибробетона в его состав могут быть введены волокнистые наполнители например асбестовое стекловолокно или комбинации этих волокон с другими волокнами. Эластичные волокна, такие как полипропиленовое или полиамидное волокно, могут использоваться в составе фибробетона для повышения прочности на изгиб, растяжения, ударной прочности и огнестойкости усиленной конструкции.
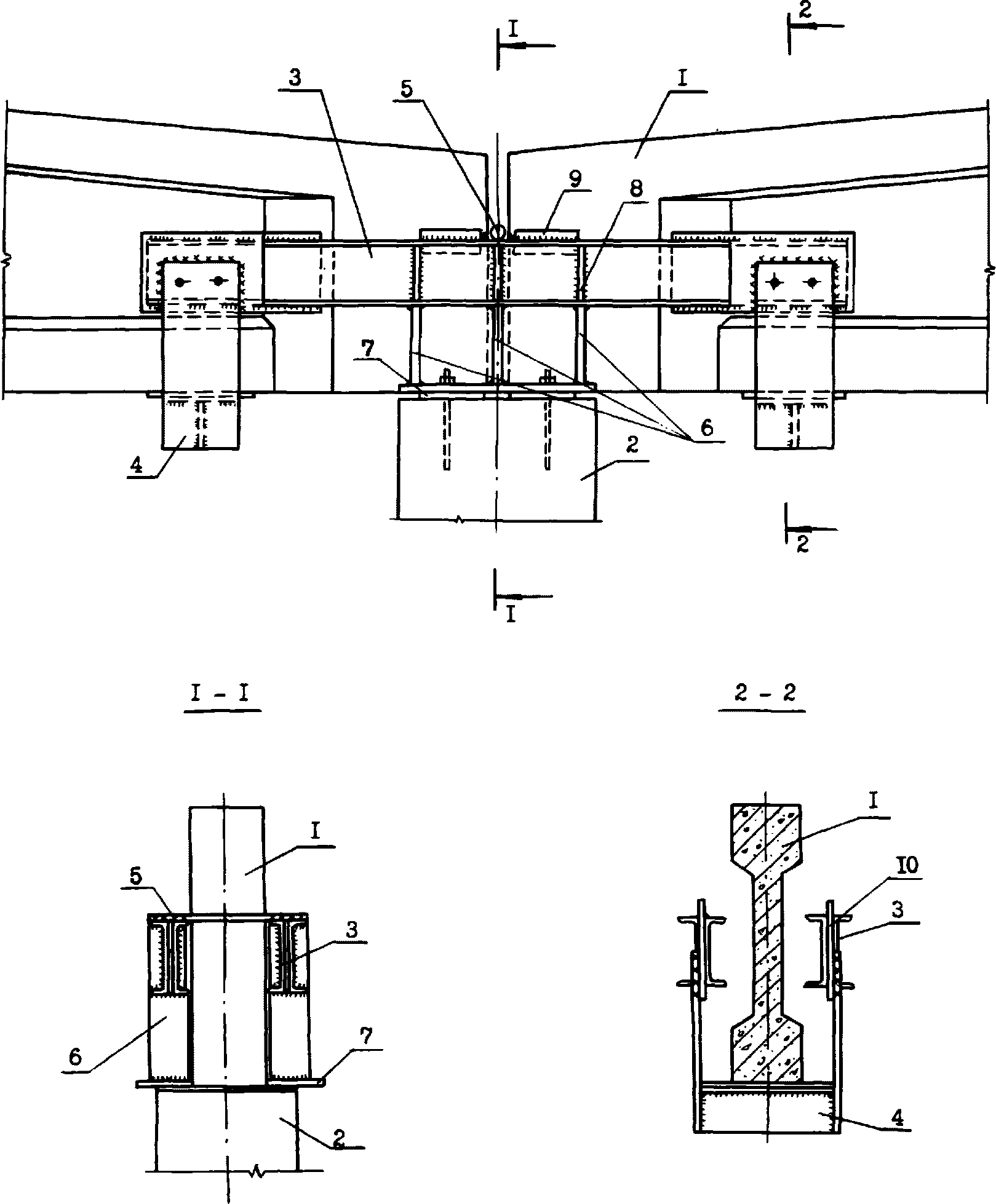
УСИЛЕНИЕ СБОРНОЙ БАЛКИ ПОКРЫТИЯ ШАРНИРНО-СТЕРЖНЕВОЙ ЦЕПЬЮ
1 - усиливаемый элемент; 2 - шарнирно-стержневая цепь; 3 - стойка; 4 - центральная стойка, устанавливаемая после натяжения цепи; 5 - подвеска; 6 - анкерные устройства; 7 - металлическая обойма; 8 - отверстия, заделываемые асфальтом.
УСИЛЕНИЕ СБОРНОЙ БАЛКИ ПОКРЫТИЯ ШПРЕНГЕЛЕМ
1 - усиливаемая балка; 2 - шпренгель; 3 - анкерное устройство; 4 - опорный швеллер; 5 - подкладка с шаровым гнездом; 6 - опорный лист; 7 - подкладка из круглых стержней; 8 - квадратная подкладка; 9 - гайка, вваренная в опорный лист; 10 - натяжной винт; 11 - пакет металлических прокладок.
РЕКОМЕНДАЦИИ ПО УСИЛЕНИЮ СБОРНОЙ БАЛКИ ПОКРЫТИЯ
ШАРНИРНО-СТЕРЖНЕВОЙ ЦЕПЬЮ
Для усиления, в основном, сборных балок покрытия больших пролетов при увеличении нагрузок на покрытие могут быть рекомендованы шарнирно-стержневые цепи. Все элементы цепи рекомендуется изготавливать заранее в соответствии с размерами усиливаемой балки, тщательно проверенными в натурных условиях. Элементы цепи следует устанавливать в определенной последовательности. К закрепленным на балке 1 анкерным устройствам 6 подвешиваются обе ветви цепи 2 с заранее прикрепленными подвесками 5. Если кроме подвесок требуются и стойки 3, то устанавливают и их, оставляя свободное место для центральной стойки 4. Затем на подвески надевают соединительные планки и закрепляют их закручиванием гаек, при этом все соединительные планки подвесок плотно притягиваются к усиливаемой балке 1, а цепь 2 получает некоторое натяжение, вследствие которого происходит обжатие анкерных устройств 6 и смятие элементов всех промежуточных узлов, что приводит к устранению или уменьшению потерь напряжений в дальнейшем. При креплении ветвей цепи к анкерным устройствам на болтах имеется возможность регулировать длину цепи, что позволяет установить цепь в проектное положение с большой точностью.
РЕКОМЕНДАЦИИ ПО УСИЛЕНИЮ СБОРНОЙ БАЛКИ ПОКРЫТИЯ ШПРЕНГЕЛЕМ
Для балок покрытия в случае необходимости проведения работ в минимальные сроки без снятия временной нагрузки может быть рекомендован способ усиления шпренгелем. Способ состоит из следующих операций. На торцах балки 1 устраивают анкерные устройства 3, к которым подвешиваются шпренгели 2. Устанавливают прокладки, состоящие из опорных швеллеров 4 с приваренными к ним подкладками с шаровым гнездом 5. Подкладки 5 непосредственно примыкают к опорному листу 6, на котором приварен шарик, обеспечивающий шарнир опирания балки на шпренгель. Шпренгель непосредственно контактирует с подкладкой из круглых стержней 7, приваренной к опорному листу 6. Для натяжения шпренгелей 2 в опорный лист 6 вводится гайка 9, а к подкладке 7 привариваются квадратные подкладки 8. Натяжение осуществляется завинчиванием натяжных винтов 10.
УСИЛЕНИЕ ЖЕЛЕЗОБЕТОННОЙ БАЛКИ ПОКРЫТИЯ С ПОМОЩЬЮ
ДВУХВЕТЬЕВОЙ ШПРЕНГЕЛЬНОЙ ЗАТЯЖКИ
(а.с. СССР N 922257)
1 - усиливаемая железобетонная балка; 2 - шпренгельная затяжка из проволоки

; 3 - дополнительный элемент из уголка; 4 - ребро жесткости из пластины

; 5 - связь дополнительно сжатого элемента из проволоки

; 6 - пластина

; 7 - стягивающий хомут из проволоки

; 8 - пластина в стяжном устройстве

; 9 - швеллер в соответствии с шириной балки; 10 - связь дополнительного сжатого элемента из

; 11 -

; 12 - стержень

; 13 - стяжное устройство.
РЕКОМЕНДАЦИИ ПО УСИЛЕНИЮ ЖЕЛЕЗОБЕТОННОЙ БАЛКИ ПОКРЫТИЯ
С ПОМОЩЬЮ ДВУХВЕТЬЕВОЙ ШПРЕНГЕЛЬНОЙ ЗАТЯЖКИ
Усиление двухветьевой шпренгельной затяжкой рекомендуется применять для балок, имеющих сильные повреждения в сжатой зоне, сколы полок, трещины, понижающие прочность бетона, а также при искривлении всей балки из плоскости депланации. В практике эксплуатации железобетонных балок покрытия может возникнуть необходимость их усиления ввиду предполагаемого увеличения нагрузок.
Процесс усиления рекомендуется проводить в следующем порядке. В сжатой зоне балки 1 устанавливается дополнительный двухветьевой элемент из уголков 3 с ребрами жесткости 4, связанных короткими уголками 10 на сварке. Затем к дополнительному элементу 3 на торцевых балках крепится двухветьевая шпренгельная затяжка 2. В местах перегиба шпренгельной затяжки устраиваются прокладки. Для этого в нижней растянутой зоне балки обнажается арматура, к которой приваривается швеллер в соответствии с шириной балки 9. К швеллеру 9 приваривается уголок 11. Между уголком 11 и шпренгельной затяжкой 2 укладываются стержни 12. Посередине пролета шпренгельные затяжки стягиваются хомутами 7, концы которых пропускают через пластины 8. К дополнительным элементам 3 приваривают связи 5 из проволоки, концы их пропускаются через пластины 6. Ввод шпренгельных затяжек в напряженное состояние производится стягиванием гайками связей 5 и шпренгельных затяжек 2 с помощью стяжного устройства 13.
Вертикальная сила в напрягаемой затяжке 2, возникающая в результате стягивания обеих ветвей затяжки устройством 13, в узле 1 раскладывается на реактивную составляющую, воспринимаемую опорой и составляющую, воспринимаемую элементом 3. Возникающие в результате этого усилия в пролете балки служат промежуточными опорами, разгружающими балку. Величина усилия в пролете балки находится расчетом в зависимости от фактической несущей способности железобетонной балки.
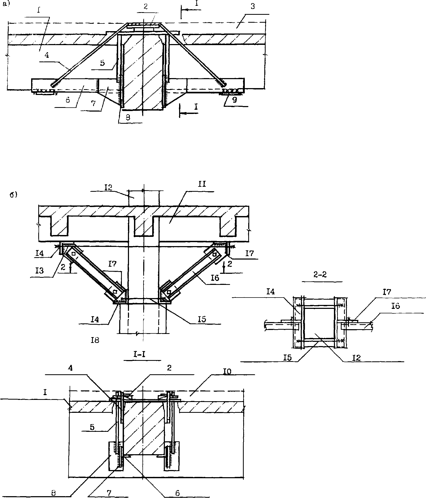
УСИЛЕНИЕ СТРОПИЛЬНЫХ БАЛОК ПОДПРУЖНЫМИ СИСТЕМАМИ
б) двухконсольной фермой.
1 - балка; 2 - опора; 3 - тяжи; 4 - упор; 5 - упорный уголок; 6 - уголок для натяжения подкоса фермы; 7 - опорный лист; 8 - коротыш; 9 - стойка; 10 - консоли; 11 - опора из отрезка круглой стали; 12 - соединительные стяжки.
РЕКОМЕНДАЦИИ ПО УСИЛЕНИЮ СТРОПИЛЬНЫХ БАЛОК
ПОДПРУЖНЫМИ СИСТЕМАМИ
При усилении балок покрытия многопролетных зданий рекомендуется применять одновременно различные конструктивные решения подпружных систем для крайних и средних пролетов.
Для крайних пролетов можно применять предварительно напряженный шпренгель (см.
"а"), состоящий из упора 4, к которому приваривается пластина с отверстием 12. Через отверстия упоров пластины 12 пропускаются концы тяжей 3 с резьбой для гаек. Между балкой 1 и тяжем 3 устанавливаются упорные уголки 5 и коротыши 8 для лучшего натяжения шпренгеля. Ввод шпренгельной системы в рабочее состояние производится натяжением гаек.
Для средних пролетов применяются двухконсольные фермы (см.
"б"). Усиление с помощью двухконсольных ферм производится в следующем порядке. На опоре 2 балки 1 устраиваются по обеим сторонам опорные листы 7, а торцы балок соединяются упорами 4, закрепляемыми болтами на стойках 9. Стойки 9 привариваются затем к упорам 4. Между стойками и упорами укладываются консоли из уголков 10, которые соединяются сваркой со стойкой 9 и упором 4. К консолям 10 снизу привариваются уголки для натяжения подкоса фермы 6. Впритык к стойке сверху приваривается опора из отрезка круглой стали 11. В отверстия уголков 6 пропускаются концы тяжей 3. Затягиванием гаек двухконсольная ферма вводится в работу.
УСИЛЕНИЕ ОПОРНЫХ УЧАСТКОВ БАЛОК ПОКРЫТИЯ ХОМУТАМИ
б) хомуты, напрягаемые стягиванием ветвей.
1 - балка; 2 - плита; 3 - тяжи с гайками и шайбами; 4 - стяжное устройство; 5, 6 - опорные уголки; 7 - пластины; 8 - уголки.
РЕКОМЕНДАЦИИ ПО УСИЛЕНИЮ ОПОРНЫХ УЧАСТКОВ БАЛОК ПОКРЫТИЯ
Усиление опорных участков балок хомутами рекомендуется применять при появлении наклонных трещин в четвертях пролета, вызванных возрастанием нагрузки и, следовательно, увеличением поперечных сил, например, в связи с подвеской или установкой дополнительного оборудования, ранее не предусмотренного проектом.
При усилении прямыми хомутами (см.
"а") в балке 1 пробиваются отверстия, через которые пропускаются тяжи с гайками и шайбами 3. Между гайками и балкой сверху и снизу устанавливаются опорные уголки 5, 6. Ввод хомутов в работу производится затягиванием гаек.
Усиление хомутами, напрягаемыми стягиванием ветвей (см.
"б"), состоит в проведении следующих операций. На верхней полке балки 1 по обеим ее сторонам с определенным шагом устанавливаются уголки 8, к которым затем привариваются пластины 7. К укрепленным таким способом уголкам привариваются тяжи 3 со стяжными устройствами 4. Другими концами тяжи привариваются к уголкам 8, примыкающим к нижней полке балки 1 и также скрепленных пластинами 7. Верхние и нижние уголки стягиваются с помощью стяжных устройств 4.
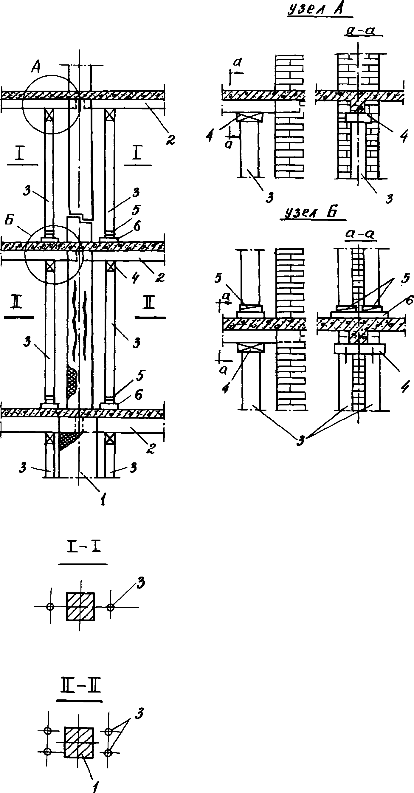
УСИЛЕНИЕ БАЛОК ПОКРЫТИЯ ДВУХКОНСОЛЬНОЙ БАЛОЧНОЙ СИСТЕМОЙ
1 - балка; 2 - опора; 3 - стальная консоль; 4 - подвеска; 5 - соединительный стержень; 6 - стойка; 7 - опорная пластина; 8 - ребро жесткости; 9, 10 - соединительные пластины.
РЕКОМЕНДАЦИИ ПО УСИЛЕНИЮ БАЛОК ПОКРЫТИЯ
ДВУХКОНСОЛЬНОЙ БАЛОЧНОЙ СИСТЕМОЙ
Для усиления балок покрытия на промежуточных опорах в связи с увеличением нагрузок на несущие конструкции промышленных зданий могут быть применены двухконсольные балочные системы. Процесс усиления вышеназванным способом состоит из следующих операций. Сначала изготавливают двухконсольную балочную систему, состоящую из двух пар швеллеров 3, соединенных пластинами. Снизу к швеллерам 3 привариваются по три стойки 6. Подготовленные балки 1 устанавливаются на опоры 2. Затем к ним с обеих сторон привариваются соединительные пластины 10, на которых сваркой и на болтах крепятся подвески 4, плотно прилегающие к нижней поверхности усиливаемой балки 1. Сверху консольные балки соединяются на сварке соединительным стержнем 5. У опор 2 швеллеры 3 усилены ребрами жесткости 8.
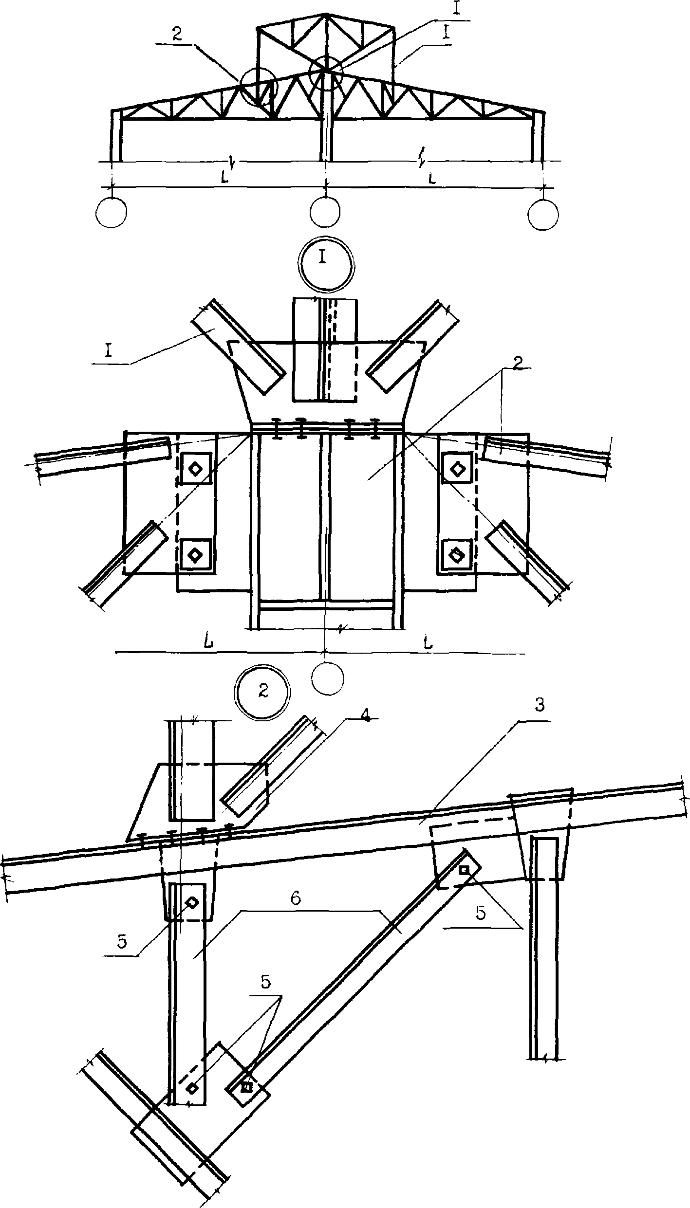
УСИЛЕНИЕ ВЕРХНЕГО ПОЯСА ФЕРМЫ
1 - металлический упорный ящик;
2 - распорный элемент (швеллер N 14);
3 - стяжной болт с фиксаторами;
4 - верхний пояс фермы;
5 - раскос фермы;
6 - стойка фермы;
7 - пластина - 100 x 8;
8 - трещины в верхнем поясе фермы.
РЕКОМЕНДАЦИИ ПО УСИЛЕНИЮ ВЕРХНЕГО ПОЯСА ФЕРМЫ
Усиление верхнего пояса рекомендуется для восстановления его несущей способности при наличии повреждений в виде трещин, сколов и т.д.
Процесс усиления состоит из следующих последовательно проводимых операций. На верхнем поясе фермы 4 крепятся два металлических упорных ящика 1, заполненных бетоном, двух предварительно изогнутых распорных элементов из швеллеров 2 и пластин 7. Путем стягивания стяжного болта 3 распрямляют распорный элемент 2, создавая в распорках предварительное напряжение. Распорные элементы 2, упираясь в упорные ящики 1, передают нагрузку на узлы фермы и разгружают соответствующий элемент верхнего пояса 4.
При увеличении нагрузки на ферму распорки 2 воспринимают часть усилия элемента верхнего пояса.
УСИЛЕНИЕ НИЖНЕГО ПОЯСА ФЕРМЫ
1 - тяжи

;
2 - опорные хомуты;
3 - стяжные болты;
4 - нижний пояс фермы;
5 - раскос фермы;
6 - стойка фермы;
7 - трещины в нижнем поясе фермы.
РЕКОМЕНДАЦИИ ПО УСИЛЕНИЮ НИЖНЕГО ПОЯСА ФЕРМЫ
Усиление нижнего пояса рекомендуется для повышения его несущей способности при увеличении эксплуатационной нагрузки на фермы и для восстановления элемента нижней растянутой зоны фермы, получившего повреждения от механических и химических воздействий.
Способ усиления нижнего пояса фермы состоит в устройстве напрягаемых элементов вида тяжей 1 из круглой стали. Для этого в среднем узле и на торце фермы закрепляются с помощью стяжных болтов 3 и раствора опорные хомуты 2 из полосовой стали. К хомутам крепятся тяжи 1: в средней части на сварке, у торца - на стяжных болтах 3. Ввод тяжей 1 в совместную работу с фермой производится затягиванием болтов 3.
При натяжении тяжей 1 трещины в нижнем поясе фермы 7 могут быть частично закрыты, а часть нагрузки с нижнего пояса может быть передана на стойки 6 и раскосы 5 фермы.
1 - тяжи

;
2 - нижний пояс фермы;
3 - уголки

;
4 - стойка фермы;
5 - уголки

;
6 - верхний пояс фермы;
7 - пластины - 100 x 8;
8 - трещины в стойке фермы.
РЕКОМЕНДАЦИИ ПО УСИЛЕНИЮ СТОЙКИ ФЕРМЫ
Предлагаемый способ усиления стоек ферм рекомендуется для увеличения несущей способности элемента в случае превышения нагрузки, предусмотренной проектом, или для восстановления стойки, получившей повреждения в результате механических или химических воздействий.
Усиление следует начинать с установки на стойке фермы 4 по ребрам уголков 5, скрепленных на сварке пластинами 7 в виде обоймы. Металлические уголки 5 закрепляются по концам на узлах фермы стяжками 1, пропущенными через уголки 3. К уголкам 3 в свою очередь привариваются уголки стоек 5. Ввод обойм усиления стоек фермы 4 производится затяжкой гаек тяжей 1.
УСИЛЕНИЕ РАСКОСА И СТОЙКИ ФЕРМЫ
1 - тяжи

;
2 - опорные хомуты;
3 - гайки;
4 - раскос фермы;
5 - стойка фермы;
6 - верхний пояс фермы;
7 - нижний пояс фермы;
8 - трещины в раскосе и стойке фермы;
9 - уголки.
РЕКОМЕНДАЦИИ ПО УСИЛЕНИЮ РАСКОСА И СТОЙКИ ФЕРМЫ
Усиление раскосов и стоек ферм рекомендуется для восстановления их несущей способности при повреждении в виде трещин, сколов и т.д. или для повышения несущей способности этих элементов при увеличении нагрузок на ферму.
Для усиления раскоса и стойки на поясах фермы закрепляются с помощью цементного раствора, болтов 3 и уголков 9 опорные хомуты 2. К опорным хомутам 2 на верхнем поясе в узлах А и Б привариваются одним концом тяжи 1. Другими концами (с резьбой) в узле В они крепятся на уголках, приваренных к опорным хомутам 2, гайками.
Тяжи 1 изготавливаются из стали А1 диаметром 14 мм. Опорные хомуты 2 свариваются из опорной пластины и двух боковых пластин. Ввод усиливающих элементов в работу производится затягиванием гаек у опорного хомута нижнего пояса фермы.
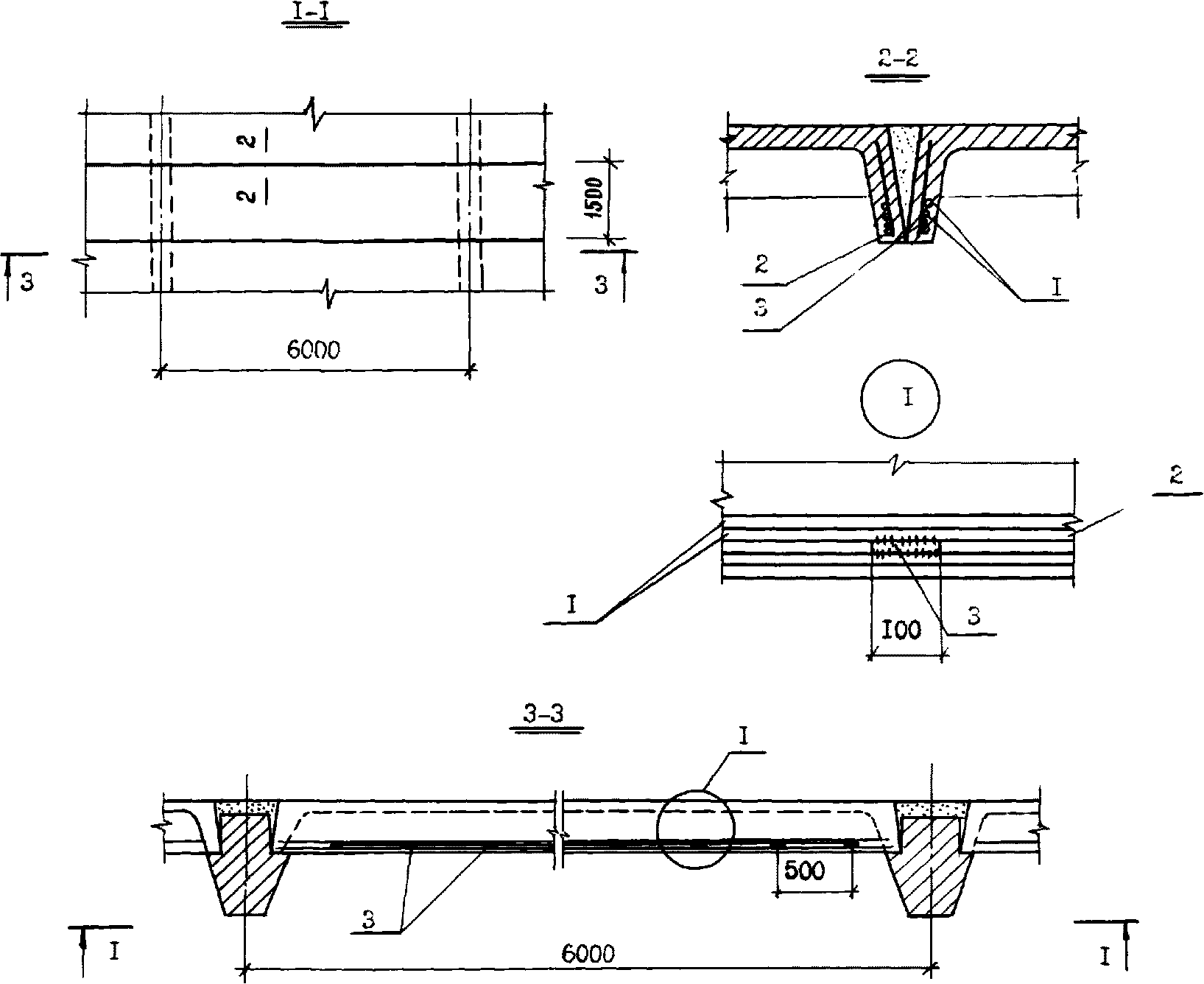
УСИЛЕНИЕ РЕБЕР СБОРНЫХ ПЛИТ ПЕРЕКРЫТИЯ С ПОМОЩЬЮ
ДОПОЛНИТЕЛЬНОЙ АРМАТУРЫ
1 - существующая арматура ребра плиты; 2 - дополнительная арматура; 3 - коротыш с шагом 500 мм.
РЕКОМЕНДАЦИИ ПО УСИЛЕНИЮ РЕБЕР СБОРНЫХ ПЛИТ ПЕРЕКРЫТИЯ
С ПОМОЩЬЮ ДОПОЛНИТЕЛЬНОЙ АРМАТУРЫ
Усиление ребер сборных плит перекрытия применяется для увеличения несущей способности плит при увеличении нагрузки на перекрытие или повреждении ребер.
Перед производством работ по усилению ребер необходимо сначала расчистить поврежденные участки. Существующую арматуру следует очистить от ржавчины. Бетонную поверхность обдуть сжатым воздухом или обмыть водой под давлением за 1 - 1,5 часа до торкретирования. В ребрах к нижнему существующему стержню 1 приварить коротыш 3 с шагом 0,5 м. К коротышам приваривается дополнительный стержень 2.
Восстановление поврежденных частей ребер плит рекомендуется производить бетоном марки не ниже 300, заливаемым в заранее подготовленную временную опалубку.
УСИЛЕНИЕ СБОРНЫХ ПЛИТ ПЕРЕКРЫТИЯ ПРИ ПОМОЩИ
НАКЛОННЫХ ХОМУТОВ
1 - железобетонный ригель; 2 - ребра железобетонных плит; 3 - усиленные ребра плит; 4, 5, 6 - самозаклинивающийся хомут; 7 - упор; 8 - замкнутый трос; 9, 10, 11 - крышка; 12 - болт.
РЕКОМЕНДАЦИИ ПО УСИЛЕНИЮ СБОРНЫХ ПЛИТ ПЕРЕКРЫТИЯ
ПРИ ПОМОЩИ НАКЛОННЫХ ХОМУТОВ
Усиление плит перекрытия при помощи наклонных хомутов рекомендуется применять с целью увеличения их несущей способности в связи с увеличением нагрузки на перекрытие.
Способ усиления состоит в применении специального устройства, в которое входят наклонные хомуты, собранные из элементов 4, 5, 6, выполненных из листового материала и снабженных со стороны усиления элемента скошенными упорами 7 с крышками, изготовленными из элементов 9, 10, 11. Хомуты устанавливаются на концевых участках усиливаемой конструкции. На скошенную часть упора надевается гибкий замкнутый арматурный трос 8. Крышка через отверстие в ее днище зафиксирована на упоре с помощью болта 12 и сопряжена с ним шпоночно-шлицевым соединением.
Устройство включают в работу следующим образом. Наклонные хомуты 4, 5, 6 со скошенными упорами 7 устанавливают в соответствии с эпюрой изгибающих моментов на концевые участки ребра 2, размещая упоры со стороны усиления. На начало скошенной части каждой пары упоров 7 надевают гибкий замкнутый арматурный элемент 8 и крышки 9, 10, 11. Затем в отверстия днищ крышек пропускают болты 12, которые фиксируют крышки на торцевой части упоров 7. После установки элементов усиления болты продолжают ввинчивать в торцы упоров, сдвигая крышками арматурный элемент 8 к их основанию. Надвижкой крышек на упоры производят регулируемое натяжение арматурного элемента. Усиление в соответствии с эпюрой изгибающих моментов от вертикальной нагрузки позволяет получить эпюру изгибающих моментов противоположного знака, тем самым существенно улучшая работу усиливаемой конструкции и повышая ее несущую способность.
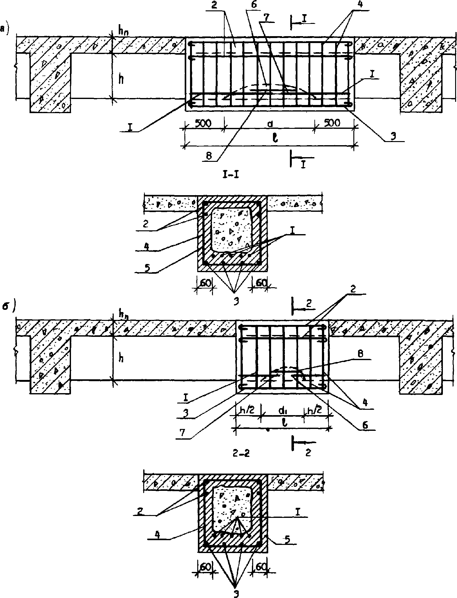
УСИЛЕНИЕ ПРИОПОРНЫХ УЧАСТКОВ МНОГОПУСТОТНЫХ ПЛИТ ПЕРЕКРЫТИЙ
а) узел опирания крайнего ряда плит;
б) узел опирания среднего ряда плит.
1 - усиливаемая плита; 2 - вновь устанавливаемый арматурный каркас, общий на две смежные плиты; 3 - вновь устанавливаемый арматурный каркас (

по расчету); 4 - новый бетон.
РЕКОМЕНДАЦИИ ПО УСИЛЕНИЮ ПРИОПОРНЫХ УЧАСТКОВ
МНОГОПУСТОТНЫХ ПЛИТ ПЕРЕКРЫТИЙ
Данный способ усиления рекомендуется при недостаточной прочности приопорного участка.
При усилении приопорного участка крайнего ряда плит (см.
"а") поверхность плиты 1 освобождается от элементов пола. Затем вдоль плиты над пустотами пробиваются борозды шириной 70 - 100 мм. Освободившаяся полость продувается сжатым воздухом. Устанавливаются вертикальные каркасы 3. Выкладывается бетонная смесь 4 с уплотняющей виброрейкой.
Усиление среднего ряда (см.
"б") производится установкой арматурного каркаса 2, общего на две смежные плиты 1, в пробитой борозде. Остальные операции проводятся аналогично
варианту "а".
УСИЛЕНИЕ СБОРНОЙ МНОГОПУСТОТНОЙ ПЛИТЫ ПЕРЕКРЫТИЯ
ЗАМОНОЛИЧИВАНИЕМ КАНАЛОВ ПУСТОТ
а) вариант заполнения пустот;
б) вариант с применением набетонки.
1 - вновь устанавливаемый арматурный каркас по расчету (вариант "а"); 2 - устанавливаемая плита; 3 - вновь устанавливаемый арматурный каркас по расчету (вариант "б"); 4 - бетон марки 200; 5 - набетонка; 6 - сетка 200 x 200

.
РЕКОМЕНДАЦИИ ПО УСИЛЕНИЮ СБОРНОЙ МНОГОПУСТОТНОЙ ПЛИТЫ
ПЕРЕКРЫТИЙ ЗАМОНОЛИЧИВАНИЕМ КАНАЛОВ ПУСТОТ
Усиление сборных многопустотных плит перекрытий замоноличивания каналов пустот рекомендуется применять при наличии продольных трещин в стенке между пустотами, а также при необходимости значительного увеличения несущей способности плиты (см.
"а",
"б").
Процесс усиления многопустотных плит вышеназванным способом осуществляется в следующем порядке. Сначала очищается поверхность плиты от элементов пола. Вдоль плиты над пустотами пробиваются борозды шириной b = 70 - 100 мм. Контактная поверхность продувается сжатым воздухом. Устанавливаются вертикальные каркасы 1 и дополнительная арматурная сетка 5. Выставляются маячные рейки. Закладывается бетон 3 с уплотнителем, виброрейкой.
В случае необходимости усиление может быть выполнено с помощью набетонки 5 с арматурным каркасом 6 (см.
"б"). Предыдущая операция аналогична
варианту "а".
УСИЛЕНИЕ СБОРНОЙ ЖЕЛЕЗОБЕТОННОЙ ПЛИТЫ ПЕРЕКРЫТИЯ
С ПОМОЩЬЮ ИЗОГНУТОГО ВНИЗ СТАЛЬНОГО ЛИСТА
(Патент Японии N 56-54428)
1 - стальной лист;
2 - фиксирующая арматура;
3 - уголок

;
4 - анкерные болты М18;
5 - болты М18;
6 - сварка;
7 - цементно-песчаный раствор;
8 - усиливаемая плита;
9 - существующая металлическая балка;
10 - отверстие под анкерные болты;
11 - отверстие для нагнетания раствора.
РЕКОМЕНДАЦИИ ПО УСИЛЕНИЮ СБОРНОЙ ЖЕЛЕЗОБЕТОННОЙ ПЛИТЫ
ПЕРЕКРЫТИЯ С ПОМОЩЬЮ ИЗОГНУТОГО ВНИЗ СТАЛЬНОГО ЛИСТА
Усиление железобетонной плиты перекрытия с помощью стального листа применяется для повышения ее несущей способности в связи с увеличением нагрузки на перекрытие и выполняется в следующем порядке. К железобетонной плите перекрытия 8 и металлическим балкам 9 с помощью уголков 3 на болтах 5 подвешивают изогнутый вниз стальной лист 1, закрывают его с торцов и пробивают в плите 8 инъекционные отверстия 11, с помощью которых производится нагнетание цементно-песчаного раствора 7. Через инъекционные отверстия 11 производится нагнетание снаружи текучего раствора 7 до полного заполнения им полости между плитой 8 и стальными листами 1. Нагнетание производится до вытеснения раствора на поверхность плиты.
Для обеспечения совместной работы раствора и стального листа в плите 8 просверливаются отверстия 10, куда зачеканиваются анкерные болты 4. К стальному листу 1 приваривается фиксирующая арматура 2, также способствующая жесткому сцеплению листа 1 и раствора 7.
При использовании этого способа усиления заливочный раствор 7 передает нагрузки на изогнутый вниз стальной лист. Для работающего на вертикальные нагрузки листа могут быть применены три конфигурации - изогнутая вверх, плоская и изогнутая вниз. Однако в изогнутом вверх листе, работающем как арка, возникли бы силы сжатия, вызывающие в стальных элементах развитие напряжений и потерю устойчивости на прогиб, а в плоском листе потеря устойчивости может возникнуть из-за изгибающих напряжений, в связи с чем применение тонкого листа, имеющего низкую жесткость становится нецелесообразным. В свою очередь арочное действие изогнутого вниз листа вызывает в нем силы растяжения, против которых наиболее эффективно действуют присущая стали вязкость. При этом потеря устойчивости вследствие деформации прогиба исключена, а ввиду особенностей конфигурации листа создается составляющая силы, направленная вверх и противодействующая вертикальной нагрузке. Благодаря этому в последнем случае для обеспечения сопротивления на равные внешние нагрузки требуется меньше металла.
ВОССТАНОВЛЕНИЕ РИГЕЛЯ ПЕРЕКРЫТИЯ СОЗДАНИЕМ ОБРАТНОГО
КОНСТРУКТИВНОГО ВЫГИБА С ПОМОЩЬЮ ДОМКРАТА
(а.с. 1352023)
а) ригель, уложенный боковой поверхностью на подготовленное основание;
б) ригель с полностью разрушенным бетоном в средней части;
в) процесс обратного выгиба ригеля с зафиксированной одной половиной;
г) ригель с установленной временной опалубкой в разорванной зоне;
д) отремонтированный и усиленный конструктивным выгибом ригель.
1 - разрушенный ригель; 2 - основание; 3 - разрушенный бетон; 4 - существующая неразрушенная арматура ригеля; 5 - фиксаторы боковой части ригеля; 6 - упоры для арматуры; 7 - свободный конец ригеля; 8 - домкрат; 9 - разрушенная арматура; 10 - вставки; 11 - временная опалубка; 12 - полимербетон; 13 - восстановленный ригель.
РЕКОМЕНДАЦИИ ПО ВОССТАНОВЛЕНИЮ РИГЕЛЯ ПЕРЕКРЫТИЯ
СОЗДАНИЕМ ОБРАТНОГО КОНСТРУКТИВНОГО ВЫГИБА
С ПОМОЩЬЮ ДОМКРАТА
Данный способ может найти применение при усилении сборного железобетонного ригеля перекрытия в процессе его восстановления после сильного разрушения конструкции.
Процесс усиления рекомендуется проводить в следующем порядке.
Разрушенный ригель 1 укладывают боковой поверхностью на основание 2 (см.
"б"). Удаляют разрушенную часть бетона 3, очищают арматуру 4 в средней разрушенной части строительного элемента. Закрепляют фиксаторами 5 половину указанного элемента 1 по его периметру. Устанавливают упоры 6 под очищенную арматуру 4 в заранее подготовленные гнезда (см.
"б") и производят обратный конструктивный выгиб ригеля с помощью усилия, приложенного к свободному концу 7, например домкратом 8, и в случае разрыва арматуры 9 соединяют ее вставками 10 (см.
"в").
Вынимают упоры 6 из гнезд, закрывают их во избежание попадания в гнезда ремонтного бетона, устанавливают временную опалубку 11 и производят заполнение образовавшейся полости полимербетоном 12 (см.
"г").
После достижения полимербетоном 12 необходимой прочности снимают опалубку 17, фиксаторы 5 и домкрат 8 (см.
"д"). Восстановленный ригель 13 устанавливают на опоры в перекрытии.
После восстановления ригель 13 начинает полностью использовать работу бетона на сжатие, что увеличивает несущую способность элемента.
ВОССТАНОВЛЕНИЕ РИГЕЛЯ ПЕРЕКРЫТИЯ СОЗДАНИЕМ ОБРАТНОГО
КОНСТРУКТИВНОГО ВЫГИБА БЕЗ ДОМКРАТА
(а.с. 1352023)
а) полностью разрушенный в средней части ригель;
б) ригель, уложенный боковой поверхностью на основание;
в) уложенные под необходимым конструктивным углом разрозненные части ригеля;
г) ригель с соединенной накладками разрозненной арматурой;
д) усиленный конструктивным выгибом ригель.
1 - разрушенный ригель; 2 - основание; 3 - разрушенная часть бетона; 4 - существующая арматура ригеля; 5 - накладки; 6 - временная опалубка; 7 - полимербетон; 8 - восстановленный ригель.
РЕКОМЕНДАЦИИ ПО ВОССТАНОВЛЕНИЮ РИГЕЛЯ ПЕРЕКРЫТИЯ
СОЗДАНИЕМ ОБРАТНОГО КОНСТРУКТИВНОГО ВЫГИБА БЕЗ ДОМКРАТА
Данный способ рекомендуется для усиления ригеля в процессе восстановления при полном его разрушении и осуществляется следующим образом:
Разрушенный ригель 1 укладывают боковой поверхностью на подготовленное основание 2 (см.
"а"), удаляют разрушенную часть бетона 3, разрезают арматуру 4 в средней разрушенной части ригеля, очищают ее от остатков бетона (см.
"б").
Укладывают разъединенные части ригеля под конструктивным углом, обеспечивающим необходимый строительный подъем, соединяют накладками 5 перерезанную арматуру (см.
"в"), устанавливают временную опалубку 6 и производят заполнение образовавшейся полости полимербетоном 7 (см.
"г").
Через некоторое время (примерно через 12 часов) после достижения полимербетоном 7 необходимой прочности снимают опалубку 6 и устанавливают отремонтированный (см.
"д") ригель 8 на опоры.
В процессе эксплуатации усиленный ригель 8 полностью использует работу бетона на сжатии, что повышает его несущую способность.
ВОССТАНОВЛЕНИЕ ЖЕЛЕЗОБЕТОННОЙ БАЛКИ ПУТЕМ ПОДВЕШИВАНИЯ
ЕЕ К МЕТАЛЛИЧЕСКОЙ БАЛКЕ
ВОССТАНОВЛЕНИЕ ЖЕЛЕЗОБЕТОННОЙ БАЛКИ С КОСЫМИ ТРЕЩИНАМИ
ПРИ ПОМОЩИ УГОЛКОВ И ХОМУТОВ
1 - металлическая балка из двух швеллеров;
2 - болты М12 через 1000 мм;
3 - уголок

;
4 - выравнивающий слой;
5 - подвески

;
6 - деревянный брусок;
7 - отверстия

;
8 - прокладка из полосового железа

.
РЕКОМЕНДАЦИИ ПО ВОССТАНОВЛЕНИЮ ЖЕЛЕЗОБЕТОННЫХ БАЛОК
ПУТЕМ ПОДВЕШИВАНИЯ ИХ К МЕТАЛЛИЧЕСКИМ БАЛКАМ
Восстановление второстепенных балок путем подвешивания их к металлическим балкам рекомендуется применять при появлении в растянутой зоне поперечных трещин, деформации верхней зоны балки, а также при недопустимости уменьшения высоты помещения под поврежденным перекрытием.
Работу по восстановлению поврежденной железобетонной балки следует начинать с укладки на верхний деформированный участок конструкции выравнивающего слоя 4. После затвердения ремонтного состава на балку укладывают два швеллера 1, опирающиеся концами на прогоны и соединенные между собой болтами 2 и деревянным брусом 6. У краев металлической балки 1 в перекрытии пробивают четыре отверстия 7, через которые пропускают изогнутые в виде хомутов подвески 5 из гладкой арматурной стали. Подвески закрепляются на металлической балке гайками через уголки 3.
РЕКОМЕНДАЦИИ ПО ВОССТАНОВЛЕНИЮ ЖЕЛЕЗОБЕТОННОЙ БАЛКИ
С КОСЫМИ ТРЕЩИНАМИ ПРИ ПОМОЩИ УГОЛКОВ И ХОМУТОВ
Балки, имеющие косые трещины, располагающиеся на длине не более 1/3 пролета, усиливаются при помощи металлических уголков 3, стянутых хомутами 5.
Процесс усиления производится следующим образом. В месте появления трещины в плите перекрытия пробиваются отверстия 7. К ребрам балки подводятся уголки 3, а затем они стягиваются хомутами 5, прикрепляемыми к плите гайками. Между плитой и гайками укладываются прокладки 8 из полосовой стали.
На участке от опоры до начала косой трещины следует ставить не менее двух хомутов. Остальные хомуты распределяются равномерно по всей длине поврежденного участка.
ВОССТАНОВЛЕНИЕ ПЛИТ ПЕРЕКРЫТИЯ, ПОЛУЧИВШИХ ПРОБОИНЫ,
С ПРИМЕНЕНИЕМ СТАЛИ И БЕТОНА
а - ремонт пробоины в плите у балки;
б - ремонт пробоины в пролете плиты с применением сварки;
в - ремонт пробоины без применения сварки;
г, д, е - сварка арматуры при помощи вставок из круглого железа;
ж - сварка арматуры при помощи вставки из уголка;
и - стык арматуры без сварки.
1 - разорванный стержень; 2 - вставка в местах разрывов из стержней; 3 - дополнительный стержень; 4 - сварка; 5 - новый бетон; 6 - разорванный стержень; 7 - вставка; 8 - сварка; 9 - вставка из уголка; 10 - обвязка проволокой.
РЕКОМЕНДАЦИИ ПО ВОССТАНОВЛЕНИЮ ПЛИТ ПЕРЕКРЫТИЯ,
ПОЛУЧИВШИХ ПРОБОИНЫ, С ПРИМЕНЕНИЕМ СТАЛИ И БЕТОНА
Перед заделкой поврежденных мест железобетонных плит перекрытий, восстанавливаемых при помощи железобетона, концы разорванных стержней выправляются, очищаются от бетона на требуемую длину и соединяются при помощи вставок из стержней того же или большего диаметра
(поз. г - е) или из уголков
(поз. ж).
Длина сварных швов принимается при накладке из круглого железа:
- при двухстороннем боковом шве
(поз. г) - 4 диаметра;
- при одностороннем боковом шве
(поз. д) - 6 диаметров;
- при потолочном шве
(поз. е) - 8 диаметров;
- при накладке из уголка
(поз. ж) - 4 диаметра.
| | ИС МЕГАНОРМ: примечание. Текст дан в соответствии с официальным текстом документа. | |
Если нет возможности проводить сварку, то концы разорванных стержней отгибаются в виде крюков и стыкование производится при помощи вставок, также заканчивающихся крюками, в перепуском на 30
d в растянутой и на 20
d в сжатой зонах восстанавливаемого элемента
(поз. и). При невозможности загиба концов разорванных стержней, перепуск делается на 50
d в растянутой и на 30
d в сжатой зоне. Вставки соединяются с оголенной арматурой обвязочной проволокой или зажимами с болтовыми соединениями. Такой стык требует оголения арматуры на большую длину, поэтому прибегать к нему следует лишь в тех случаях, когда не может быть применена сварка. Поперечное сечение вставок не должно быть меньше поперечного сечения разорванных стержней арматуры.
До устройства стыка (по
поз. г -
и) обнаженные стержни арматуры должны тщательно очищаться от загрязнений, ржавчины и окалины.
Если стержни имеют "шейки", то последние рассматриваются как разрывы стержней.
Восстановление плит, получивших пробоины, производится способами, приведенными на
поз. а -
в.
Если концы разорванных рабочих стержней имеют достаточную длину (или могут быть освобождены от бетона на требуемую длину) для приварки или привязки к ним стержней-вставок, то восстановление производится по способу, изображенному на
поз. б и
в.
В том случае, если пробоина находится вблизи балки и длина обнаженных рабочих стержней с одной стороны отверстия недостаточна для приварки к стержням арматуры, восстановление плиты производится так, как это показано на
поз. а.
ВОССТАНОВЛЕНИЕ БЕЗБАЛОЧНОГО ПЕРЕКРЫТИЯ, ПОЛУЧИВШЕГО
ПРОБОИНУ ВЕЛИЧИНОЙ БОЛЕЕ 1 МЕТРА, ДЕРЕВЯННЫМ ЩИТОМ,
НЕ ВЫСТУПАЮЩИМ НАД ПОЛОМ
1 - настил из досок 40 мм;
2 - подкладки из досок;
3 - брусья через 700 мм;
4 - железобетонная плита;
5 - подвеска

;
6 - уголок

,
l = 700;
7 - отверстия в железобетонной плите

;
8 - прокладка из полосового железа

.
РЕКОМЕНДАЦИИ ПО ВОССТАНОВЛЕНИЮ БЕЗБАЛОЧНОГО
ПЕРЕКРЫТИЯ, ПОЛУЧИВШЕГО ПРОБОИНУ, ДЕРЕВЯННЫМ ЩИТОМ,
НЕ ВЫСТУПАЮЩИМ НАД ПОЛОМ
Восстановление безбалочного перекрытия деревянным щитом, не выступающим над полом, следует проводить в тех случаях, когда отсутствует возможность произвести бетонирование, а по технологическим требованиям необходимо заделать пробоину заподлицо с поверхностью пола.
Рекомендуется следующий порядок проведения восстановительных работ, связанных с заделкой пробоины.
В железобетонном перекрытии пробиваются отверстия 7. Затем под пробоину с шагом 700 мм подводятся брусья 3, которые закрепляются в четырех местах подвесками 5, пропускаемыми через прокладки 8 в отверстия 7. Подвески привинчиваются к плите 4 гайками.
Брусья 3 снизу усиливаются уголками 6. На закрепленные брусья 3 укладываются подкладки из досок 2 и плотно пригоняются по краям пробоины. Заключительной операцией восстановления перекрытия является устройство настила из досок 1.
ВОССТАНОВЛЕНИЕ ПЛИТ ПЕРЕКРЫТИЙ, ПОЛУЧИВШИХ ПРОБОИНУ,
ВЕЛИЧИНОЙ МЕНЕЕ 1 МЕТРА, ДЕРЕВЯННЫМ ЩИТОМ,
ВЫСТУПАЮЩИМ НАД ПОЛОМ
а - заделка пробоины в плите безбалочного перекрытия до 1 м;
б - заделка пробоины в плите безбалочного перекрытия больше 1 м;
в - заделка пробоины до 1 м деревянным щитом;
г - заделка пробоины больше 1 м деревянным щитом.
1 - настил из досок 40 x 100 мм;
2 - соединительные доски 40 x 100 мм;
3 - брусья через 500 мм;
4 - доски 40 мм в торцах щита;
5 - второстепенная балка;
6 - главная балка.
РЕКОМЕНДАЦИИ ПО ВОССТАНОВЛЕНИЮ ПЛИТ ПЕРЕКРЫТИЙ,
ПОЛУЧИВШИХ ПРОБОИНЫ, ВЕЛИЧИНОЙ МЕНЕЕ 1 МЕТРА,
ДЕРЕВЯННЫМ ЩИТОМ, ВЫСТУПАЮЩИМ НАД ПОЛОМ
Восстановление плит перекрытия, получивших пробоины, деревянными щитами, выступающими над полом, рекомендуется применять при невозможности произвести бетонирование или необходимости выполнения восстановительных работ в сжатые сроки.
Если допускаются выступы над поверхностью плиты, то закрытие пробоины в плите безбалочного перекрытия деревянным щитом производится следующим образом:
- при расположении отверстия в пролетной полосе размером не более 1 м и при величине полезной нагрузки на поврежденном участке не более 50% от проектной отверстие закрывается досками 1, укладываемыми в направлении меньшего размера отверстия; снизу к ним прибиваются соединительные доски 2
(поз. а);
- при расположении отверстия размером более 1 м в пролетной полосе и при расположении отверстия, независимо от его размеров, полностью или частично в надколонной полосе над поврежденным участком укладываются брусья 3 в двух направлениях, опирающиеся на ненарушенные надколонные полосы и на доски 4 в торцах щита; сверху устраивается настил из досок 1
(поз. б);
Для ребристого перекрытия, когда допускаются выступы над поверхностью плиты, закрытие пробоины в плите может быть осуществлено деревянным щитом в следующем порядке (
поз. в и
г):
- если размер
"а" пробоины в направлении, перпендикулярном к рабочей арматуре не превышает 1 м и в пределах поврежденного участка плиты полезная нагрузка не превышает 50% от проектной, отверстие закрывается досками 1, укладываемыми вдоль главных балок 6
(поз. в). Соединительные доски 2 пришиваются к краям щита с нижней стороны с доведением их во избежание смещения щита в каком-либо направлении в упор до краев отверстия;
- при размере отверстия
"а", большем 1 м, или при необходимости нагружать поврежденный пролет полной проектной нагрузкой, отверстие перекрывается брусьями 3, укладываемыми на второстепенные балки
(поз. г), по которым настилаются доски 1.
Снизу подшиваются соединительные доски 2, доходящие до краев отверстия и препятствующие смещению щита. В торцах щита с одной стороны прибиваются наклонные доски 4, опирающиеся на ненарушенную часть главной балки, и вертикальные доски 7, устанавливаемые на неразрушенную часть перекрытия.
ВОССТАНОВЛЕНИЕ ПЛИТ ПЕРЕКРЫТИЙ, ПОЛУЧИВШИХ ПРОБОИНУ,
ВЕЛИЧИНОЙ МЕНЕЕ 1 МЕТРА, ДЕРЕВЯННЫМ ЩИТОМ,
НЕ ВЫСТУПАЮЩИМ НАД ПОЛОМ
1 - настил из досок 40 мм;
2 - подкладки из досок или брусков;
3 - брусья через 500 мм;
4 - железобетонная плита;
5 - подвески

;
6 - полосовое железо 40 x 6 x 135 мм;
7 - одежда пола;
8 - отверстия в плите для болтов подвесок

;
9 - гайка под подвески

РЕКОМЕНДАЦИИ ПО ВОССТАНОВЛЕНИЮ ПЛИТ ПЕРЕКРЫТИЙ,
ПОЛУЧИВШИХ ПРОБОИНУ ВЕЛИЧИНОЙ МЕНЕЕ 1 МЕТРА,
ДЕРЕВЯННЫМ ЩИТОМ, НЕ ВЫСТУПАЮЩИМ НАД ПОЛОМ
Способ восстановления плит деревянным щитом, не выступающим над полом, рекомендуется использовать при срочной заделке пробоины величиной до 1 м и невозможности бетонирования в тех случаях, когда по условиям производства допускается устройство щитов, выступающих над полом.
Восстановление плит указанным способом при размере пробоины до 1 м в направлении, перпендикулярном рабочей арматуре, производится в следующем порядке. Вблизи зоны повреждения плиты 4 заранее пробиваются отверстия 8 диаметром 30 мм для подвесок 5. Затем снизу плиты под пробоиной подводятся деревянные брусья 3 и закрепляются подвесками 5 диаметром 12 - 16 мм, пропущенными в отверстия 8 через металлические подкладки 6 из полосового железа. Брусья 3 с подвесками 5 привинчиваются к плите гайками 9. На брусья 3 укладывают подкладки 2 из досок или брусков по размеру пробоины, по которым устраивают настил из досок 1.
ВОССТАНОВЛЕНИЕ МОНОЛИТНЫХ ПЕРЕКРЫТИЙ, ПОЛУЧИВШИХ ПРОБОИНУ
ВЕЛИЧИНОЙ БОЛЕЕ 1 м, ДЕРЕВЯННЫМ ЩИТОМ,
НЕ ВЫСТУПАЮЩИМ НАД ПОЛОМ
1 - настил из досок;
2 - брус-подкладка;
3 - брусья h = 100 мм через 700 мм;
4 - скобы

;
5 - подвески

;
6 - железобетонная плита;
7 - одежда пола;
8 - отверстия

;
9 - гайка под подвески

РЕКОМЕНДАЦИИ ПО ВОССТАНОВЛЕНИЮ МОНОЛИТНЫХ ПЕРЕКРЫТИЙ,
ПОЛУЧИВШИХ ПРОБОИНУ ВЕЛИЧИНОЙ БОЛЕЕ 1 М, ДЕРЕВЯННЫМ ЩИТОМ,
НЕ ВЫСТУПАЮЩИМ НАД ПОЛОМ
Восстановление перекрытий, получивших пробоину более 1 м, деревянными щитами, не выступающими над полом, рекомендуется применять при отсутствии возможности произвести бетонирование и при необходимости получить заделку заподлицо с поверхностью пола.
Заделка пробоины в железобетонной плите размером свыше 1 м в направлении, перпендикулярном рабочей арматуре, производится следующим образом.
Под ребра железобетонной плиты 6 подводятся деревянные брусья 2 и 3, соединенные между собой скобами 4, и закрепляются подвесками 5, пропущенными в заранее подготовленные отверстия 8 через уголки 40 x 60. Брусья 3 снизу усиливаются уголками 40 x 40. Подвески 5 крепятся к плите перекрытия посредством гаек 9, навинчиваемых на резьбу.
По закрепленным на плите брусьям 2 укладываются доски настила 1 и закрывают пробоину.
УСИЛЕНИЕ МОНОЛИТНЫХ ПЛИТ ПЕРЕКРЫТИЯ
ОДНОСТОРОННИМ НАРАЩИВАНИЕМ
а - восстановление монолитных плит наращиванием сверху;
б - восстановление монолитных плит наращиванием снизу;
1 - проектируемая арматурная сетка;
2 - новый бетон;
3 - существующая арматура;
4 - коротыши через 700 мм;
5 - усиливаемая плита
РЕКОМЕНДАЦИИ ПО УСИЛЕНИЮ МОНОЛИТНЫХ ПЛИТ ПЕРЕКРЫТИЯ
ОДНОСТОРОННИМ НАРАЩИВАНИЕМ
Усиление монолитных плит односторонним наращиванием производится для увеличения их несущей способности в связи с увеличением нагрузки на перекрытие.
Перед усилением односторонним наращиванием производится полная разгрузка перекрытий.
При усилении наращиванием сверху на перекрытие сначала укладывается арматурная сетка 1, а затем производится заливка нового бетона с обязательным вибрированием. При усилении наращиванием снизу обнажается существующая продольная арматура 3 плиты 5. Затем к ней последовательно привариваются коротыши 4 и новая арматурная сетка 1. После этого производится укладка нового бетона 2 в заранее подготовленную временную опалубку. Новый бетон для бетонирования при усилении плит наращиванием должен быть достаточно пластичным, если бетонирование ведется ручным способом, так как жесткие бетоны не могут быть уплотнены тонкими слоями при наличии в них продольной и поперечной арматуры.
Бетоны пластичной консистенции, по данным отечественной практики и экспериментирования, показали наилучшие результаты в удобоукладываемости при применении бетонов с осадкой конуса от 8 до 10 см.
Бетон для наращивания лучше всего применять на нормальном портландцементе, так как быстротвердеющие цементы, особенно глиноземистые, показывают пониженную до 50% прочность по контактным поверхностям, что объясняется часто большими напряжениями от усадки в таких бетонах. Может быть применен также бетон на расширяющем цементе.
Вибрирование при бетонировании необходимо для проникновения бетона во все зазоры и щели между установленной арматурой. При производстве таких работ возможно применение, как глубинных, так и навесных вибраторов типа С-413, С-414, укрепляемых в этих случаях снаружи коробов опалубки.
Перед бетонированием все контактные поверхности должны быть хорошо промыты из брандсбойта сильной струей воды.
Промывку и смачивание поверхностей, подлежащих бетонированию, необходимо производить за 1 - 1,5 часа до укладки нового бетона, чтобы эти поверхности были влажными, но не мокрыми, без лужиц воды, поскольку последняя повышает водоцементное отношение укладываемого бетона, понижая тем самым прочность сцепления. После смачивания необходимо следить за горизонтальными поверхностями и пазухами, где может быть скопление воды.
УСИЛЕНИЕ ЖЕЛЕЗОБЕТОННОЙ БАЛКИ МОНОЛИТНОГО ПЕРЕКРЫТИЯ
НАРАЩИВАНИЕМ С ПОМОЩЬЮ ХОМУТОВ
1 - существующая арматура;
2, 3, 4 - дополнительная арматура

;
5 - хомуты

;
6 - сварка;
7 - новый бетон;
8 - усиливаемая балка
РЕКОМЕНДАЦИИ ПО УСИЛЕНИЮ ЖЕЛЕЗОБЕТОННОЙ БАЛКИ МОНОЛИТНОГО
ПЕРЕКРЫТИЯ НАРАЩИВАНИЕМ С ПОМОЩЬЮ ХОМУТОВ
Усиление балок рекомендуется с целью увеличения несущей способности при увеличении нагрузки на перекрытие. Порядок проведения работ следующий.
Производится полная разгрузка балки 8, подлежащей усилению. В месте наращивания балки оголяется нижняя продольная арматура 1 и очищается от коррозии металлическими щетками. Поверхности контакта старого бетона с новым обрабатываются зубилом или перфоратором для придания им шероховатости, а затем хорошо промываются водой из брансдбойта. Промывка и смачивание поверхностей, подлежащих обетонированию, производится за 1 - 1,5 часа до укладки нового бетона 7, чтобы эти поверхности были влажными, но не мокрыми.
После подготовки бетона устраивается опалубка и устанавливается дополнительная арматура 2, 3, 4, которая крепится к существующей арматуре 1 хомутами 5 посредством сварки 6.
Производится обетонирование подлежащих усилению участка плиты бетоном пластичной консистенции с осадкой конуса 8 - 10 см.
Для приготовления нового бетона применяется обычный и расширяющийся цемент. В этом случае не рекомендуется применять быстротвердеющий глиноземистый цемент, т.к. бетоны на этом цементе вследствие усадочных напряжений при твердении имеют пониженную прочность.
Уложенный в опалубку бетон 7 уплотняется с помощью глубинных или навесных вибраторов типа С-413, С-414, укрепляемых снаружи коробов опалубки.
УСИЛЕНИЕ МОНОЛИТНОЙ ПЛИТЫ ПЕРЕКРЫТИЯ НАРАЩИВАНИЕМ
С УСТРОЙСТВОМ ЖЕЛЕЗОБЕТОННЫХ ШПОНОК
1 - проектируемая арматурная сетка;
2 - V-образный коротыш;
3 - новый бетон;
4 - отверстия 100 x 100 мм;
5 - усиливаемая плита
РЕКОМЕНДАЦИИ ПО УСИЛЕНИЮ МОНОЛИТНОЙ ПЛИТЫ НАРАЩИВАНИЕМ
С УСТРОЙСТВОМ ЖЕЛЕЗОБЕТОННЫХ ШПОНОК
Усиление монолитной плиты наращиванием с устройством железобетонных шпонок производится с целью увеличения несущей способности плиты при увеличении нагрузки. При усилении плиты наращиванием с помощью железобетонных шпонок производится ее полная разгрузка. В плите 5 в шахматном порядке пробиваются отверстия 4. Затем всем контактным поверхностям придается шероховатость путем нанесения насечек.
Перед бетонированием все контактные поверхности должны быть хорошо промыты сильной струей воды.
Промывка и смачивание поверхностей, подлежащих бетонированию, производится за 1 - 1,5 часа до укладки нового бетона, чтобы эти поверхности были влажными, но не мокрыми.
После смачивания устраивается опалубка и производится укладка сверху плиты арматурной сетки 1. Для крепления ее к усиливаемой плите 5 в отверстия вставляются анкеры в виде V-образных коротышей 2, укрепляемых на арматурной сетке сваркой или вязальной проволокой. Подготовленная к усилению плита заключается в опалубку и производится укладка нового бетона 3.
Новый бетон должен быть достаточно пластичным с осадкой конуса от 8 до 10 см. Причем указанная нижняя граница должна считаться предельной для жесткости. Выбор консистенции бетонов в отмеченных границах делается в зависимости от рода конструкции и способа укладки.
Для наращивания применяется бетон на обычном и расширяющемся цементах. Не рекомендуется применять быстротвердеющий глиноземистый цемент, т.к. бетоны на этом цементе показывают пониженную до 50% прочность по контактным поверхностям, что часто объясняется большими напряжениями от усадки в таких бетонах.
Уложенный бетон 3 подвергается вибрированию с помощью глубинных или навесных вибраторов типа С-413, С-414, укрепляемых снаружи коробов опалубки.
ВОССТАНОВЛЕНИЕ ЖЕЛЕЗОБЕТОННЫХ БАЛОК МОНОЛИТНОГО
ПЕРЕКРЫТИЯ ПРИ ОТКОЛЕ
а - восстановление балки при отколе в растянутой зоне;
б - восстановление балки при отколе угла;
1 - стержни;
2 - хомуты;
3 - новый бетон марки 300;
4 - зона повреждения
РЕКОМЕНДАЦИИ ПО ВОССТАНОВЛЕНИЮ ЖЕЛЕЗОБЕТОННЫХ
БАЛОК ПРИ ОТКОЛЕ
При выкрашивании бетона в балках или при наличии отколов следует перед ремонтом произвести расчистку поврежденных мест 4. Если имеются разрывы стержней 1 или хомутов 2, то последние стыкуются.
При выкрашивании или отколе в растянутой зоне балки на глубину, не превышающую 1/3 ее высоты
(поз. а) или отколе угла
(поз. б), производят подготовку поверхности бетона, удалив весь отколовшийся и поврежденный бетон.
При повреждении конструкций пожаром следует удалить весь потерявший прочность бетон до той глубины, на которой его прочность не вызывает сомнений (бетон не выкрашивается при постукивании молотком).
Во всех случаях сопряжения нового бетона со старым при нанесении поверхность старого бетона, в целях обеспечения сцепления, должна подвергаться специальной обработке, а именно, с поверхности бетона удаляется мусор и пыль, очищенная поверхность насекается зубилом, обрабатывается металлической щеткой и промывается струей воды.
Вплоть до момента нанесения слоя нового бетона обработанная таким образом поверхность должна находиться во влажном состоянии. Непосредственно перед бетонированием с горизонтальных поверхностей старого бетона должна быть удалена оставшаяся вода, а затем на подготовленную поверхность старого бетона слоем в 1 - 1,5 мм наносится цементный раствор состава 1:2 - 1:2,5.
Укладка нового бетона 3 производится не позднее чем 1 - 1,5 часа после укладки раствора.
ВОССТАНОВЛЕНИЕ ЖЕЛЕЗОБЕТОННОЙ БАЛКИ МОНОЛИТНОГО ПЕРЕКРЫТИЯ
МЕСТНЫМИ ОБОЙМАМИ
а - ремонт балки при помощи длинной железобетонной обоймы;
б - ремонт балки при помощи короткой железобетонной обоймы;
1 - разорванный стержень;
2 - дополнительные стержни

;
3 - дополнительные стержни

;
4 - хомуты;
5 - новый бетон марки 300;
6 - зона повреждения;
7 - сварка в местах разрыва стержней 1;
8 - вставка в местах разрывов из арматуры

РЕКОМЕНДАЦИИ ПО ВОССТАНОВЛЕНИЮ ЖЕЛЕЗОБЕТОННОЙ БАЛКИ
МОНОЛИТНОГО ПЕРЕКРЫТИЯ МЕСТНЫМИ ОБОЙМАМИ
Местные железобетонные обоймы применяются в том случае, когда балка имеет сквозные трещины, трещины значительной глубины или местные отколы. Обойма применяется также независимо от глубины откола при разрыве более 50% стержней балки (по площади), а также при меньшей площади разорванных стержней, если стыкование их невозможно или затруднительно. В зависимости от величины зоны разрушения применяются короткие
(поз. а) и длинные
(поз. б) обоймы.
Восстановление железобетонной балки необходимо проводить в следующем порядке. Сначала производят удаление разрушенного бетона, расчистку поврежденных зон балки места, где удален бетон 6. Затем соединяют разорванные стержни 1 вставками из стержней 8 на сварке 7.
Перед устройством обоймы устанавливают временную опалубку, дополнительные продольные стержни 2 диаметром 10 мм в верхней зоне, стержни 3 диаметром 16 мм в нижней зоне, стягивают их хомутами 4 и заливают пространство между опалубкой и сечением поврежденной зоны балки быстротвердеющим ремонтным бетоном 5.
Для обеспечения лучшего сцепления обоймы с балкой вертикальные грани балки в пределах обоймы насекаются. При расчистке поврежденных зон балки места, где удален бетон, обрабатываются по возможности так, чтобы они ограничивались плоскостями, перпендикулярными или параллельными оси балки.
При отсутствии разрывов арматуры или при стыковании разорванных стержней обойма заводится за зону повреждения на 1/2
h в каждую сторону
(поз. б).
Если площадь разорванных стержней больше 50% общей площади растянутой арматуры, а также если стыкование стержней невозможно, то обойма заводится за зону повреждения в каждую сторону на 50
d (где
d - наибольший диаметр стержней арматуры обоймы
(поз. а), но не менее, чем на
h. При этом площадь растянутой арматуры в обойме должна быть равна площади разорванных стержней.
При повреждении балки вблизи прогона (или колонны) без разрывов растянутой арматуры обойма доводится до грани прогона (колонны), причем в местах примыкания обоймы защитный слой бетона отбивается до хомутов.
ВОССТАНОВЛЕНИЕ СИЛЬНО РАЗРУШЕННОЙ ЖЕЛЕЗОБЕТОННОЙ
БАЛКИ ПЕРЕКРЫТИЯ
а - разрушенная железобетонная балка;
б - восстановленная железобетонная балка;
1 - стержни

;
2 - стержни

;
3 - стержни

;
4 - хомуты

;
5 - новый бетон;
6 - арматура плиты
РЕКОМЕНДАЦИИ ПО ВОССТАНОВЛЕНИЮ СИЛЬНО РАЗРУШЕННОЙ
ЖЕЛЕЗОБЕТОННОЙ БАЛКИ МОНОЛИТНОГО ПЕРЕКРЫТИЯ
Сильно деформированные балки монолитных железобетонных перекрытий, в которых бетон на всей ее длине разрушен, имеются сплошные трещины, выкалывание бетона и отклонение балки от своего первоначального положения
(поз. а), восстанавливаются следующим образом.
Сначала из балки полностью удаляется разрушенный бетон, затем она выправляется и усиливается в зависимости от повреждения. На место удаленного бетона укладывается новый.
В том случае, когда бетон и арматура по всей длине балки полностью разрушены, производят обработку поверхности старого сохранившегося бетона с целью придания ему необходимой шероховатости. Для этого на поверхностях контактных плоскостей с помощью перфоратора или зубила делают насечки. Иногда шероховатость поверхностей усиливаемых элементов может быть достигнута тщательной обработкой их металлическими щетками. Перед бетонированием поверхности очищают от пыли и тщательно промывают водой.
После подготовки контактных поверхностей в месте бетонирования устанавливают временную деревянную опалубку, укладывают в ней прямые 3 и косые отогнутые 2 стержни. Затем к ним приваривают хомуты 4. Сверху к хомутам привариваются продольные стержни 1. После изготовления арматурного каркаса в опалубку укладывается новый бетон 5 с применением расширяющегося цемента. Бетон плиты армируется сеткой 6.
ВОССТАНОВЛЕНИЕ ЖЕЛЕЗОБЕТОННЫХ БАЛОК МОНОЛИТНОГО ПЕРЕКРЫТИЯ
ПРИ ПОМОЩИ ПОДВЕШЕННЫХ МЕТАЛЛИЧЕСКИХ И ДЕРЕВЯННЫХ БАЛОК
а - усиление железобетонной балки при помощи подвешенной металлической балки;
б - усиление железобетонной балки при помощи подвешенного деревянного бруса;
1 - металлическая балка из двух швеллеров;
2 - деревянная подкладка;
3 - клинья из твердого дерева;
4 - болты М12 через 1000 мм;
5 - подвески

;
6 - выравнивающий слой;
7 - отверстия

;
8 - полосовое железо 50 x 8 мм;
9 - прокладка из полосового железа

;
10 - деревянный брусок;
11 - деревянный брус;
12 - уголок

,
l = 650 мм
РЕКОМЕНДАЦИИ ПО ВОССТАНОВЛЕНИЮ ЖЕЛЕЗОБЕТОННЫХ БАЛОК
МОНОЛИТНОГО ПЕРЕКРЫТИЯ ПРИ ПОМОЩИ МЕТАЛЛИЧЕСКИХ
И ДЕРЕВЯННЫХ БАЛОК
При средней степени повреждения восстановление второстепенных балок может производиться путем подведения под них металлических балок из 2-х швеллеров, подвешиваемых к прогонам
(поз. "а").
Перед восстановлением деформированные участки железобетонных балок покрывают выравнивающим слоем 6 из цементного раствора. Затем к прогонам с помощью подвесок 5 из круглой стали крепится металлическая балка 1 из двух швеллеров, соединенных с деревянным брусом 10 и стальными полосами болтами 4. Подвески 5 пропускаются через заранее пробитые в бетоне отверстия 7 и прокладки из полосового железа 9. Под поврежденный участок балки подводится деревянная подкладка 2, укрепленная болтами на металлической балке 1. Между деревянной подкладкой 2 и местами повреждения железобетонной балки вбиваются клинья 3 из твердого дерева.
При нагрузке на балку до 1200 кг на 1 пог. м и при пролете до 4 м вместо металлической балки можно применять деревянный брус
(поз. "б"). В этом случае усиление поврежденной железобетонной балки производится следующим образом. В перекрытии заранее пробиваются отверстия и через них с помощью подвесок 5 на прогонах закрепляется деревянный брус 11, усиленный в местах контакта с подвесками уголками 12. Между поврежденным участком балки и деревянным брусом вбивается клин из твердого дерева 3. Для обеспечения удобства закрепления деревянного бруса между гайкой и железобетонной плитой устраиваются прокладки из полосового железа.
УСИЛЕНИЕ ЖЕЛЕЗОБЕТОННОЙ ПЛИТЫ С ПОМОЩЬЮ ЗАКРЕПЛЕННЫХ СВЕРХУ
МЕТАЛЛИЧЕСКИХ ПОЛОС
(Патент Японии N 52-42960)
1 - стальная полоса - 100 x 6;
2 - анкерный болт М12;
3 - клей;
4 - отверстия под болты;
5 - цементно-песчаный раствор;
6 - усиливаемая плита;
7 - канавки
РЕКОМЕНДАЦИИ ПО УСИЛЕНИЮ ЖЕЛЕЗОБЕТОННЫХ ПЛИТ
С ПОМОЩЬЮ ЗАКРЕПЛЕННЫХ СВЕРХУ МЕТАЛЛИЧЕСКИХ ПОЛОС
Усиление плит с помощью закрепленных сверху металлических полос может быть применено при восстановлении или в связи с увеличением эксплуатационных нагрузок на перекрытие.
Этот способ заключается в проведении следующих операций.
Стальные полосы 1 укладываются на верхнюю поверхность плиты 6 параллельно друг другу и перпендикулярно балкам с определенным шагом. Середины полос располагаются примерно над центральной осью балки, а их концы выходят в зоны плиты, лежащие за пределами балки, под прямым углом к ее оси. В местах расположения полос 1 под ними должны быть выдолблены канавки 7. Перед усилением плита поддомкрачивается любым удобным способом. Подготовленные таким способом полосы укладываются в канавки 7 и фиксируются в них клеем 3. В качестве клея можно использовать эпоксидные, полиэфирные и полиуретановые смолы. Концы полос могут быть при необходимости прикреплены к плите анкерами 2 через заранее пробитые отверстия 4. После усиления поверхность плиты покрывается выравнивающим цементно-песчаным раствором 5.
УСИЛЕНИЕ ЖЕЛЕЗОБЕТОННОЙ ПЛИТЫ МОНОЛИТНОГО ПЕРЕКРЫТИЯ
МЕТАЛЛИЧЕСКИМИ ПОЛОСАМИ, ЗАКРЕПЛЕННЫМИ С ДВУХ СТОРОН
(Патент Японии N 57-10261)
1 - стальная полоса - 100 x 6;
2 - болт М12;
3 - клей;
4 - отверстия под болты;
5 - цементно-песчаный раствор;
6 - усиливаемая плита;
7 - канавки
РЕКОМЕНДАЦИИ ПО УСИЛЕНИЮ ЖЕЛЕЗОБЕТОННОЙ ПЛИТЫ МОНОЛИТНОГО
ПЕРЕКРЫТИЯ МЕТАЛЛИЧЕСКИМИ ПОЛОСАМИ,
ЗАКРЕПЛЕННЫМИ С ДВУХ СТОРОН
Усиление плит перекрытий с помощью металлических полос, закрепленных с 2-х сторон применяется для повышения несущей способности при увеличении нагрузки на перекрытие.
Перед началом работ по усилению плиты 6 на ней размечается расположение металлических полос, закрепляемых сверху и снизу.
На верхней стороне плиты 6 полосы 1 располагаются симметрично относительно соседних параллельных балок. Полосы 1 нижней стороны плиты 6 размещаются между противоположными концами полос 1 верхней части плиты 6.
В отмеченных местах пробиваются канавки 7 и сквозные отверстия 4 под болты 2. Канавки 7 покрываются слоем полимерного клея 3. Затем в отверстие 4 пропускаются болты 2, которые затем затягиваются гайками. По окончании вышеописанных операций верхняя поверхность плиты покрывается выравнивающим цементно-песчаным раствором 5.
Металлические полосы могут быть заменены деревянными брусьями, асбестоцементными листами или другими имеющимися подручными материалами.
УСИЛЕНИЕ И ВОССТАНОВЛЕНИЕ ПЛИТ ПЕРЕКРЫТИЙ МЕТАЛЛИЧЕСКИМ
ПРОФИЛЬНЫМ ЛИСТОМ
(Патент Японии N 54-29085)
а) разрез главной части усиленной плиты;
б - е) технологическая схема работ;
ж) разрез главной части усиленной плиты в случае ее сильно деформированного состояния;
1 - усиливаемая плита;
2 - отделочный слой;
3 - балка;
4 - пол нижнего этажа;
5 - листовая оболочка;
6 - проволочная сетка;
7 - тросовые отверстия;
8 - болтовые отверстия;
9 - нагнетательные отверстия;
10 - лебедки;
11 - тросы;
12 - временные опоры;
13 - сквозные болты;
14 - уголки;
15 - дюбель;
16 - раствор
РЕКОМЕНДАЦИИ ПО УСИЛЕНИЮ И ВОССТАНОВЛЕНИЮ ПЛИТ
ПЕРЕКРЫТИЙ МЕТАЛЛИЧЕСКИМ ПРОФИЛЬНЫМ ЛИСТОМ
(Патент Японии N 54-29085)
Усиление металлическими профилями рекомендуется для повышения несущей способности плит при увеличении нагрузки на перекрытие, а также для восстановления плит перекрытий, получивших сильные прогибы в результате внешних воздействий.
Усиление плит с целью повышения их несущей способности (см.
"а") необходимо проводить в следующем порядке. На полу 4 укладывают профилированный лист 5, поверх которого настилают проволочную сетку 6 и насыпают заполнитель. Одновременно в плите 1 устраивают сквозные тросовые отверстия 7, болтовые отверстия 8 и нагнетательные отверстия 9.
Рядом с тросовыми отверстиями 7 на плите 1 устанавливаются лебедки 10, от которых через тросовые отверстия 7 до пола нижнего этажа спускаются тросы 11, служащие для подвешивания профилированных листов 5 при помощи временных опорных элементов 12 (см.
"б"). Профилированный лист поднимается вверх до установки на определенном расстоянии от нижней поверхности плиты 1, определяемом в соответствии с требуемой толщиной восстанавливающего слоя. Затем в плите 1 с соответствующим промежутком сверлятся болтовые отверстия 8, проходящие через слой цементно-песчаного раствора 2, плиту 1 и профилированный лист 5. В эти отверстия вводятся болты 13, обеспечивающие фиксацию листа 5 относительно плиты 1. Количество сквозных болтов 13 может быть различным в зависимости от их диаметра и прочих факторов. Например, болты диаметром 16 мм могут устанавливаться из расчета 2 - 3 шт./м
2. Края листов 5 крепятся к боковой поверхности балок 3 дюбелями 15 при помощи уголков 14 (см.
"с"). После этого через нагнетательные отверстия 9 плиты 1 в полость 17 между нижней поверхностью плиты 1 и верхней поверхностью профилированного листа 5 нагнетается расширяющейся цементно-песчаный раствор 16, замоноличивающий указанную полость (см.
d). Во время нагнетания раствора 16 воздух из полости выходит через зазоры между стенками болтовых отверстий 8 и сквозными болтами 13. В случае, если возникает опасность впитывания воды из раствора нижней поверхностью плиты 1, на нее заранее наносится слой подготовки.
После окончательного затвердевания раствора 16 и набора им заданной прочности производится повторная затяжка болтов 13, при необходимости с их преднапряжением. Затем указанные лебедки 10 отпускают тросы 11, временные опорные элементы 12 и тросы 11 удаляются.
Технологический цикл завершается заделкой отверстий 7, 8, 9 отделочным слоем 2 (см.
е). Для образования монолитного отделочного слоя головки сквозных болтов 13 могут быть втоплены в бетон.
При усилении деформированной плиты 1 (см.
"ж") толщина слоя нагнетаемого в полость под плитой 1 раствора 16 изменяется в зависимости от положения деформированной плиты 1 относительно расположенного горизонтально профилированного листа 5, а поверх отделочного слоя 2 настилается проволочная сетка 6 и наносится цементно-песчаный раствор до получения поверхности перекрытия 2. В этом случае сквозные болты 13 заранее устанавливаются на предусмотренную длину, а после затвердевания раствора под плитой и на плите производится их повторная затяжка.
УСИЛЕНИЕ БАЛКИ ПЕРЕКРЫТИЯ ТРЕУГОЛЬНОЙ ФЕРМОЙ С ПРОКЛАДКОЙ
1 - усиливаемая балка;
2 - треугольная ферма;
3 - прокладка;
4 - опора фермы;
5 - фиксирующий болт;
6 - отверстия, заделываемые асфальтом
РЕКОМЕНДАЦИИ ПО УСИЛЕНИЮ БАЛКИ ПЕРЕКРЫТИЯ
ТРЕУГОЛЬНОЙ ФЕРМОЙ С ПРОКЛАДКОЙ
Усиление треугольной фермой с прокладкой применяется для увеличения несущей способности балки в связи с увеличением нагрузки на перекрытие.
Для осуществления этого способа в усиливаемой балке 1 пробиваются отверстия у главных балок и в середине пролета. По краям пролета обнажается арматура усиливаемой балки и к ней приваривается опора 4 треугольной фермы 2, состоящая из уголков. Затем, с целью создания упругой опоры между плитой перекрытия и поясом фермы 2, устраивается прокладка 3, фиксируемая болтом 5. После завершения всех операций, связанных с усилением, отверстие в перекрытии 6 заделывается асфальтом или быстротвердеющим бетоном.
Указанный способ относится к группе усиления, осуществляемого с применением упругих опор. Собственно упругой опорой для усиления балки является прокладка между плитой и фермой усиления. Поскольку металлическая ферма обладает меньшей жесткостью, чем усиливаемая железобетонная балка, то при устройстве упругой опоры необходимо создание реактивной силы, разгружающей усиливаемую конструкцию. Эта реактивная сила создается с помощью прокладок 3 в центре пролета. При завинчивании болта 5 создается распор, благодаря которому усиливаемая балка 1 и треугольная ферма 2 включаются в совместную работу.
УСИЛЕНИЕ ЖЕЛЕЗОБЕТОННОЙ БАЛКИ ПЕРЕКРЫТИЯ МЕТАЛЛИЧЕСКОЙ
БАЛКОЙ, ОПЕРТОЙ НА СТОЛИКИ
1 - I по расчету;
2 - ребро жесткости

;
3 - клинья;
4 - опорный столик;
5 - металлическая обойма;
6 - сварка;
7 - усиливаемая балка
РЕКОМЕНДАЦИИ ПО УСИЛЕНИЮ ЖЕЛЕЗОБЕТОННОЙ БАЛКИ МОНОЛИТНОГО
ПЕРЕКРЫТИЯ МЕТАЛЛИЧЕСКОЙ БАЛКОЙ, ОПЕРТОЙ НА СТОЛИКИ
Усиление металлической балкой, опертой на столики, относится к методам, основанным на предварительном напряжении усиливающих конструкций и применяется для увеличения несущей способности балки в связи с увеличением нагрузки на перекрытие. Сущность метода состоит в следующем.
К колонне, имеющей металлическую обойму 5, приваривается опорный столик 4. На столики устанавливается металлическая балка в виде швеллера 1. У опор и в середине пролета с обеих сторон к балке 1 привариваются ребра жесткости из полосовой стали 2.
При усилении железобетонной балки преднапряженными металлическими балками 1 с применением опорных столиков 4 обязательным условием является создание конструкцией усиления реактивной силы, причем такой величины, которая необходима для восприятия действующих на элемент расчетных нагрузок. Расчетная величина реактивной силы может контролироваться в натуре по прогибу металлической балки 1, который образуется в результате оттяжки последней и установки в образовавшийся зазор клиньев 3. Установленные клинья следует приваривать к металлической балке 1.
При усилении железобетонных балок металлическими балками ввод их в совместную работу рекомендуется производить с помощью предложенного Донецким Промстройпроектом устройства для напряжения балок усиления контролируемым усилием. Напряжение металлических балок усиления с помощью устройства осуществляется следующим образом. На подведенные под усиливаемый элемент и закрепленные на опорах металлические балки подвешивают с помощью захватов в середине пролета устройство, которое состоит из малогабаритного домкрата и стоек, упирающихся в усиливаемый элемент. Домкрат шлангом высокого давления соединен с ручной насосной станцией НСР-400. При работе насосной станции домкрат оттягивает от усиливаемого элемента 7 балку усиления 1, создавая в ней расчетную величину предварительного натяжения. Величина напряжения контролируется манометром. Фиксируется заданная величина напряжения с помощью клиньев 3, которые устанавливают в зазоры между усиливаемой железобетонной балкой 7 и металлической балкой 1 в середине пролета и у опор.
УСИЛЕНИЕ ЖЕЛЕЗОБЕТОННОЙ БАЛКИ МОНОЛИТНОГО ПЕРЕКРЫТИЯ
ПРЕДНАПРЯЖЕННОЙ МЕТАЛЛИЧЕСКОЙ БАЛКОЙ, ПОДВЕШЕННОЙ НА ХОМУТАХ
1 - усиливаемая балка;
2 - I по расчету;
3 - ребро жесткости

;
4 - клин;
5 -

;
6 -

;
7 - сварка
РЕКОМЕНДАЦИИ ПО УСИЛЕНИЮ ЖЕЛЕЗОБЕТОННОЙ БАЛКИ МОНОЛИТНОГО
ПЕРЕКРЫТИЯ ПРЕДНАПРЯЖЕННОЙ МЕТАЛЛИЧЕСКОЙ БАЛКОЙ,
ПОДВЕШЕННОЙ НА ХОМУТАХ
Усиление железобетонной балки перекрытия преднапряженной металлической балкой подвешенной на хомутах, рекомендуется для повышения несущей способности балки при увеличении нагрузки на перекрытие.
Процесс усиления данным способом необходимо начать с пробивки четырех отверстий в плите перекрытия, соответствующих размеру швеллеров 5. Затем швеллеры 5 вводят в отверстия и закрепляют на перекрытии сверху приваркой швеллеров 6. Снизу швеллеры 5 соединяются привариваемым к ним швеллером 6.
На установленные в перекрытии хомуты укладывается металлическая балка 2. Подведенная под перекрытие металлическая балка 2 приводится в напряженное состояние путем подклинки клином 4 с шагом 1,5 - 2,0 м до расчетной величины прогиба. Под клином к швеллеру 2 приваривается ребро жесткости 3.
УСИЛЕНИЕ БАЛКИ МОНОЛИТНОГО ЖЕЛЕЗОБЕТОННОГО ПЕРЕКРЫТИЯ
ПРЕДНАПРЯЖЕННЫМИ ПРЯМЫМИ ЗАТЯЖКАМИ
1 - тяжи затяжек

;
2 - уголок

;
3 - сварка;
4 - натяжной болт

;
5 - пластина

;
6 - новый бетон;
7 - усиливаемая балка;
8 - анкер;
9 - контргайка
РЕКОМЕНДАЦИИ ПО УСИЛЕНИЮ БАЛКИ МОНОЛИТНОГО ПЕРЕКРЫТИЯ
ПРЕДНАПРЯЖЕННЫМИ ПРЯМЫМИ ЗАТЯЖКАМИ
Усиление балок монолитных железобетонных перекрытий рекомендуется применять для увеличения их несущей способности при увеличении нагрузки на перекрытие.
Устройство горизонтальных затяжек с приданием им предварительного напряжения увеличивает также жесткость перекрытий.
Крепление затяжек 1 осуществляется непосредственно на опорах усиливаемой балки 7. С этой целью в местах замоноличивания анкеров 8 в плитах перекрытий пробиваются отверстия. Тяжи крепятся к специальному упору 2, выполненному из отрезка уголка сваркой 3.
Установленные тяжи 1 затяжки с упорами 2 прикрепляются к железобетонному элементу посредством анкеров 8 из круглой или полосовой стали, которые привариваются к упорам и заделываются в плите перекрытий быстротвердеющим бетоном 6. Упорный уголок анкера 2 должен устанавливаться на цементном растворе, что должно обеспечивать плотное соприкасание с поверхностями балки.
Ввод затяжек в напряженное состояние осуществляется путем взаимного стягивания обоих ветвей стяжными болтами 4, изготовленными в виде хомута с двумя нарезанными концами и общей шайбой 5, выполненной в виде пластины. После натяжения на стяжные болты 4 устанавливают контргайки 9.
УСИЛЕНИЕ ЖЕЛЕЗОБЕТОННОЙ БАЛКИ ПЕРЕКРЫТИЯ ШПРЕНГЕЛЕМ
1 - тяж

;
2 - [ по проекту;
3 - уголок

;
4 - коротыш

;
5 - существующая арматура;
6 - цементный раствор;
7 - усиливаемая балка;
8 - фасонка

;
9 - уголок

;
10 - сварка;
11 - новый бетон;
12 - пластина

РЕКОМЕНДАЦИИ ПО УСИЛЕНИЮ ЖЕЛЕЗОБЕТОННОЙ БАЛКИ
МОНОЛИТНОГО ПЕРЕКРЫТИЯ ШПРЕНГЕЛЕМ
Усиление шпренгелем рекомендуется с целью повышения несущей способности балки в связи с увеличением нагрузки на перекрытие.
Проводить его следует в таком порядке. В монолитном перекрытии пробивают отверстия, через которые пропускают в двух местах, у колонн, тяжи 1. На колоннах устраивают обоймы, состоящие из скрепленных между собой сваркой 10 фасонок 8 и уголков 9. К обойме с двух сторон привариваются ушки, состоящие из сваренных пластин 12, через которые сначала одним концом с помощью гайки закрепляются тяжи 1. Затем тяжи подводятся к подкладкам, устанавливаемым в нижних гранях балки 7. Они состоят из обрезков швеллеров 2, к которым привариваются уголки 3. Для предотвращения смещения прокладок вдоль балки во время натяжения тяжей их приваривают к продольной арматуре 5. Между уголками 3 и тяжами 1 для большей жесткости пропускают коротыши 4.
После установки и закрепления прокладок производится натяжение стержней за один из концов тяжа 1.
По завершении работ по усилению балки отверстия замоноличиваются быстротвердеющими составами 6 и 11.
УСИЛЕНИЕ БАЛКИ ПЕРЕКРЫТИЯ ШПРЕНГЕЛЬНОЙ ЗАТЯЖКОЙ
1 - усиливаемая балка; 2 - арматура балки; 3 - дополнительная предварительно напряженная арматура; 4 - коротыш; 5 - шпренгельные затяжки; 6 - подкладка; 7 - натяжной болт; 8 - шайба; 9 - швеллер; 10 - отверстие, заделываемое после установки анкера
РЕКОМЕНДАЦИИ ПО УСИЛЕНИЮ ЖЕЛЕЗОБЕТОННОЙ БАЛКИ
МОНОЛИТНОГО ПЕРЕКРЫТИЯ ШПРЕНГЕЛЬНОЙ ЗАТЯЖКОЙ
Усиление балки шпренгельной затяжкой рекомендуется для увеличения несущей способности балки по нормальным и наклонным сечениям в связи с увеличением нагрузки на перекрытие или для восстановления ее несущей способности при средней степени повреждения.
При устройстве шпренгельной затяжки в плите перекрытия пробивают отверстие 10 и обнажают арматуру. Затем к ней приваривают анкера 9. В качестве анкеров могут служить отрезки швеллера, привариваемые к верхним и боковым стержням усиливаемого элемента.
Отрезки швеллеров устанавливают заподлицо с боковыми гранями балки 1.
Основным элементом затяжек являются тяжи 5, которые обычно выполняются из сталей классов АI, АII, АIII, диаметром от 16 до 36 мм, при больших усилиях - из прокатных профилей уголкового или швеллерного типа.
Концы затяжек 5 привариваются к анкерам 9. В местах перегиба стержней при переходе от горизонтального участка к наклонным между тяжами и нижней гранью усиливаемого элемента устанавливают подкладки 6, выполненные из полосовой стали, к которым для большей жесткости приваривают круглые коротыши 4 или элементы из профильного металла (двух спаренных уголков, швеллера и т.д.). Длина подкладок должна превышать ширину усиливаемой балки.
Ввод затяжек 5 в напряженное состояние осуществляется путем взаимного стягивания обеих ветвей стяжными болтами 7, изготавливаемыми в виде хомута с двумя нарезными концами и общей шайбой 8. После натяжения на стяжные болты устанавливают контргайки, которые потом заваривают вместе с болтами.
УСИЛЕНИЕ ЖЕЛЕЗОБЕТОННОЙ БАЛКИ МОНОЛИТНОГО ПЕРЕКРЫТИЯ
ДОПОЛНИТЕЛЬНОЙ ПРЕДВАРИТЕЛЬНО-НАПРЯЖЕННОЙ
КОМБИНИРОВАННОЙ ЗАТЯЖКОЙ
1 - усиливаемая балка;
2 - горизонтальные затяжки;
3 - шпренгельные затяжки;
4 - коротыши;
5 - подкладка;
6 - уголок анкера горизонтальных затяжек;
7 - вертикальные анкерные стержни;
8 - натяжной болт;
9 - шайба;
10 - швеллер анкера шпренгельных затяжек;
11 - отверстие, закладываемое после установки анкера
РЕКОМЕНДАЦИИ ПО УСИЛЕНИЮ ЖЕЛЕЗОБЕТОННОЙ БАЛКИ МОНОЛИТНОГО
ПЕРЕКРЫТИЯ ДОПОЛНИТЕЛЬНОЙ ПРЕДВАРИТЕЛЬНО-НАПРЯЖЕННОЙ
КОМБИНИРОВАННОЙ ЗАТЯЖКОЙ
Комбинированные затяжки применяются при значительных действующих нагрузках в случае потери балками перекрытия первоначальной несущей способности или в связи с увеличением нагрузки на перекрытие.
Затяжки комбинированного типа состоят из четырех стержней и фактически представляют собой совокупность двух затяжек - горизонтальной и шпренгельной.
Сначала устанавливают шпренгельные затяжки 3 в порядке, приведенном на листе 117, а затем - горизонтальные 2 (см. лист 113).
Ввод горизонтальных 2 и шпренгельных 3 затяжек в напряженное состояние осуществляется взаимным стягиванием четырех ветвей стяжными болтами 8, изготавливаемыми в виде хомута с двумя нарезными концами и общей шайбой 9. Для введения обеих затяжек в совместную работу между ними в местах перегиба стержней шпренгельной затяжки устанавливаются коротыши из круглой стали диаметром 16 - 20 мм.
УСИЛЕНИЕ ЖЕЛЕЗОБЕТОННОЙ БАЛКИ ПЕРЕКРЫТИЯ
ПРЕДНАПРЯЖЕННОЙ АРМАТУРОЙ
1 - дополнительная арматура

;
2 - коротыш

;
3 - существующая продольная арматура;
4 - сварка;
5 - усиливаемая балка;
6 - цементный раствор
РЕКОМЕНДАЦИИ ПО УСИЛЕНИЮ ЖЕЛЕЗОБЕТОННОЙ БАЛКИ
ПЕРЕКРЫТИЯ ПРЕДНАПРЯЖЕННОЙ АРМАТУРОЙ
Способ усиления балки перекрытия преднапряженной арматурой может быть применен для увеличения несущей способности конструкции в связи с увеличением нагрузки на перекрытие.
Усиление железобетонной балки производится с помощью дополнительной предварительно напряженной арматуры, устанавливаемой на сварке в растянутой зоне усиливаемого элемента.
Ввод в напряженное состояние этой арматуры может быть осуществлен термическим или электротермически способом. Усиление балок введением преднапряженных стержней с натяжением их термическим или электротермическим способом выполняется в следующем порядке. На балке 5, предназначенной к усилению, закрепляют анкерные устройства (коротыш) 2 путем приварки их к существующей продольной арматуре 3. Затем к балке подвешивают стержни усиления 1 с использованием временных подвесок, количество которых определяют из условия недопущения провисания стержней от собственного веса.
Подвешенный стержень должен быть строго прямолинейным. После этого один конец его приваривают к коротышу 2 и подвергают нагреву до расчетной температуры. Свободный конец нагретого стержня крепится затем с помощью сварки 4 ко второму анкеру. При этом предварительное напряжение стержня может быть проконтролировано как по температуре нагрева с помощью термокарандаша, так и по его удлинению. Рекомендуемая температура нагрева усиливающих стержней составляет 100 - 400 °C.
После закрепления обоих концов усиливающих арматурных стержней места обнажения продольной арматуры заделываются быстротвердеющим цементным составом 6.
УСИЛЕНИЕ БАЛКИ ПЕРЕКРЫТИЯ ДОПОЛНИТЕЛЬНОЙ ЖЕСТКОЙ ОПОРОЙ
а) металлические подкосы;
б) сборная железобетонная предварительно-напряженная рама;
1 - усиливаемый ригель; 2 - металлические подкосы; 3 - затяжка на уровне пола; 4 - клиновидные прокладки; 5 - опорный уголок; 6 - арматура колонны; 7 - рама усиления; 8 - упругие прокладки (типа рессоры); 9 - упор для домкрата; 10 - металлические прокладки, плотно укладываемые после подъема стоек рамы; 11 - домкрат
РЕКОМЕНДАЦИИ ПО УСИЛЕНИЮ БАЛКИ ПЕРЕКРЫТИЯ
ДОПОЛНИТЕЛЬНОЙ ЖЕСТКОЙ ОПОРОЙ
Усиление жесткими опорами применяется с целью увеличения несущей способности балки в связи с увеличением нагрузки на перекрытие.
При усилении ригеля рамы 1 металлическими подкосами 2 в верхнем и нижнем перекрытии к обнаженной арматуре 6 привариваются опорные уголки 5 (см.
"а"). Снизу к металлическим накладкам приваривается затяжка 3. После подведения откосов для плотного прилегания сопрягаемых конструкций, обеспечивающих эффективность усиления, необходимо в верхнем узле произвести расклинку клиновидными прокладками 4.
В случаях, когда усиливаемая конструкция не может быть предварительно разгружена, установка дополнительных жестких опор должна в обязательном порядке сопровождаться предварительным поднятием усиливаемой конструкции.
Подъем усиливаемой конструкции 1 может быть произведен различными способами и зависит как от конструкции дополнительных опор, так и конструкции усиливаемых элементов. При усилении сборно-шарнирной рамы 7 (см.
"б"), которая собирается на месте из отдельных элементов, шарниры в узлах и упругие прокладки 8 между усиливаемым ригелем 1 и рамой усиления 7 обеспечивают возникновение двух одинаковых по величине разгружающих сил, приложенных снизу вверх. Напряжение рамы рекомендуется производить подъемом ее стоек домкратами 11, после чего в зазор между стойками рамы и существующей опорой (в данном случае монолитное ребристое перекрытие) необходимо уложить специальные металлические прокладки 10, а домкраты 11 снять. Для упора домкратов в стойки 7 необходимо при их изготовлении заложить обрезки двутавров 9. Жесткость рамы усиления обеспечивается металлическими подкосами 2.
УСИЛЕНИЕ РАМЫ ДОПОЛНИТЕЛЬНЫМИ СВЯЗЯМИ
а) предварительно-напряженными крестовыми связями;
б) железобетонным раскосом с предварительно-напряженными тяжами;
1 - усиливаемые элементы рамы; 2 - металлическая обойма; 3 - предварительно-напряженные тяжи; 4 - сварные швы; 5 - натяжная муфта; 6 - опорная накладка; 7 - железобетонный раскос
УСИЛЕНИЕ БАЛКИ ПЕРЕКРЫТИЯ ДОПОЛНИТЕЛЬНОЙ УПРУГОЙ ОПОРОЙ
1 - усиливаемый ригель; 2 - предварительно-напряженный тяж; 3 - металлическая обойма; 4 - натяжная гайка; 5 - сварные швы; 6 - отверстия, заделываемые асфальтом; 7 - натяжная муфта
РЕКОМЕНДАЦИИ ПО УСИЛЕНИЮ РАМЫ ДОПОЛНИТЕЛЬНЫМИ СВЯЗЯМИ
Для уменьшения изгибающих моментов в элементах многопролетной многоярусной рамы от воздействия ветровой нагрузки могут быть рекомендованы крестовые предварительно напряженные связи из гибких металлических тяжей (см.
"а"). Выполняется этот способ в следующем порядке. В перекрытиях 1 пробиваются в четырех местах отверстия, через которые пропускают тяжи 3, привариваемые сваркой 4 к металлическим обоймам 2, закрепляемым на колоннах. Затем при помощи стяжных муфт 5 производится предварительное натяжение стержней. Необходимо иметь в виду, что связи разрешается устанавливать по высоте одной и той же рамы в разных пролетах, что позволяет использовать те пролеты, где это удобнее, исходя из условий технологического процесса.
В этих же случаях можно рекомендовать усиление подобных конструкций железобетонным раскосом с предварительно-напряженными затяжками (см.
"б"). Для этого на противоположных колоннах 1 сверху и снизу устраиваются металлические обоймы 2 из листовой стали, к которым привариваются опорные накладки 6. В накладки вставляются в проектное положение железобетонный раскос 7. После установки раскоса в проектное положение гибкие металлические тяжи 3 напрягаются термическим способом с обеих сторон раскоса. Элемент усиления в целом может воспринимать как сжимающие, так и растягивающие усилия.
При усилении изгибаемых элементов многоэтажных зданий применяются дополнительные опоры, создаваемые металлическими тяжами. В этом случае сначала устраиваются металлические обоймы 3 на колоннах. Затем в перекрытии 1 пробиваются отверстия 6, через которые пропускаются тяжи 2. Сверху тяжи привариваются сваркой 5 к обойме 3, а снизу производится их натяжение сначала с помощью натяжных гаек 4, а затем натяжными муфтами 7.
УСИЛЕНИЕ ЖЕЛЕЗОБЕТОННОЙ БАЛКИ С ПОМОЩЬЮ ПОДВЕДЕННОЙ
МЕТАЛЛИЧЕСКОЙ СТОЙКИ
1 - болт М20;
2 - прокладки

;
3 - уголки

;
4 - планки

;
5 - сварка;
6 - усиливаемая балка;
7 - фундамент
РЕКОМЕНДАЦИИ ПО УСИЛЕНИЮ ЖЕЛЕЗОБЕТОННОЙ БАЛКИ МОНОЛИТНОГО
ПЕРЕКРЫТИЯ С ПОМОЩЬЮ МЕТАЛЛИЧЕСКОЙ СТОЙКИ
Усиление железобетонной балки посредством подведения металлической стойки производится в тех случаях, когда необходимо значительное увеличение нагрузки после усиления или когда конструкция пришла в такое состояние от воздействия внешних нагрузок, что не представляется возможным осуществить ее достаточное предварительное напряжение из-за опасения отрыва усиливаемой конструкции от опор и ее разрушения в процессе усиления.
Процесс усиления указанным способом состоит из проведения следующих операций.
Под серединой усиливаемой железобетонной балки 6 устраивается дополнительный фундамент 7 под металлическую стойку. На фундамент с помощью анкерных болтов 1 крепится прокладка из листовой стали 2. К прокладке привариваются четыре уголка 3, соединяемые планками 4 на сварке 5. Стойки из уголков 3 привариваются сверху к подведенным под усиливаемую балку 6 металлическим прокладкам 2. Собранная из уголков 3 стойка крепится к плите перекрытия болтами 1. Для обеспечения более плотного примыкания стойки к усиливаемой балке 6 между гайкой и плитой перекрытия также укладывается прокладка из листовой стали 2.
УСИЛЕНИЕ БАЛКИ ПЕРЕКРЫТИЯ ЖЕСТКИМИ ОПОРАМИ
а) усиление второстепенных балок перекрытия предварительно-напряженными разгружающими кронштейнами;
б) усиление главных балок жесткими опорами с подведением подкосов;
1 - усиливаемая балка; 2 - клинья; 3 - набетонка; 4 - тяж диаметром по расчету; 5 - подвеска; 6 - уголки кронштейна

; 7 - косынка

; 8 - опорные накладки
S = 20; 9 - соединительные планки
S = 10; 10 - набетонка; 11 - усиливаемый ригель; 12 - существующая колонна; 13 - напрягаемые затяжки; 14 - опорный уголок; 15 - стяжной болт; 16 - металлические подкосы; 17 - пластинка
S = 10; 18 - железобетонная обойма
РЕКОМЕНДАЦИИ ПО УСИЛЕНИЮ БАЛКИ ПЕРЕКРЫТИЯ ЖЕСТКИМИ ОПОРАМИ
Усиление балок перекрытия жесткими опорами рекомендуется для повышения их несущей способности в связи с увеличением нагрузок на перекрытия.
При усилении второстепенных балок 1 кронштейнами (см.
"а") в плите перекрытия пробиваются отверстия, в которые пропускаются тяжи 4. Затем в них с помощью клиньев 2 вставляются подвески 5. К подвескам и тяжам привариваются два кронштейна представляющие собой сварную конструкцию, состоящую из уголков 6, косынок 7 и опорных накладок 8. Кронштейны соединяются между собой внизу на сверке соединительными планками 9. В рабочее состояние разгружающие кронштейны вводятся подклиниванием клиньев 2. После завершения работ по усилению второстепенной балки 1 производят бетонирование полов набетонкой 3 для ликвидации выступов, вызванных усилением.
Для усиления главной балки (ригеля) с подведением подкосов (см.
"б") на железобетонную обойму 18 существующей колонны 12 устанавливаются по обе стороны от нее опорные уголки 14, которые скрепляются между собой стяжными болтами 15, проходящими через отверстия в уголках. К уголкам 14 привариваются пластинки 17 с отверстиями, к которым крепятся на болтах подкосы 16. Другими концами подкосы 16 крепятся болтами через такие же пластинки к опорным уголкам 14, подведенным под ригель 11. Уголки 14 стягиваются между собой напрягаемыми затяжками 13.
Опорные уголки 14 закрепляются на поверхностях ригеля 11 и колонны 12 с помощью быстротвердеющих растворов.
УСИЛЕНИЕ ДЕФОРМАЦИОННЫХ ШВОВ КОРОТКИХ КОНСОЛЕЙ БАЛОК
ПЕРЕКРЫТИЙ МЕТАЛЛИЧЕСКИМИ ПОДВЕСНЫМИ БАЛКАМИ
а) вариант I (закрепленными на плите);
1 - тяж

по расчету; 2 -

; 3 - подкладка

; 4 - подпорка [10; 5 - [ по расчету; 6 - клиновидная шайба; 7 -

; 8 -

; 9 -

; 10 - гайка; 11 - стяжной болт

; 12 -

; 13 - деформационный шов; 14 - уголок-подкладка;
б) вариант II (закрепленными на колонне);
1 - колонна; 2 - хомут

; 3 - тяж по расчету; 4 - [20; 5 - подвесная консоль по расчету; 6 - гайка; 7 - упор

; 8 - стяжной болт

РЕКОМЕНДАЦИИ ПО УСИЛЕНИЮ ДЕФОРМАЦИОННЫХ ШВОВ КОРОТКИХ
КОНСОЛЕЙ БАЛОК ПЕРЕКРЫТИЙ МЕТАЛЛИЧЕСКИМИ ПОДВЕСНЫМИ БАЛКАМИ
Усиление деформационных швов коротких консолей балок перекрытий подвесными металлическими балками рекомендуется для повышения их несущей способности в связи с увеличением нагрузки на перекрытие.
При закреплении металлических балок на главной балке перекрытия (см.
"а") в плите пробиваются в двух местах отверстия, через которые пропускается тяж 1 с двумя перегибами. Под тяж 1 подкладывается уголок 2, привариваемый внутренними поверхностями полей к обнаженной арматуре балки перекрытия, а внешней - к тяжам 1. Правый конец тяжа 1 закрепляется на швеллере 5 гайкой через клиновидную шайбу 6, а левой - на уголки 8 с помощью гайки и шайбы из листового железа 9. Для обеспечения необходимой жесткости к уголку 8 приваривается уголок 7. С правой стороны балка перекрытия усиливается подпоркой 4 из швеллера, привариваемой снизу к швеллеру 5. Сверху к ней через подкладку 3 приваривается уголок - подкладка 14. Через отверстия во второстепенной балке пропускают стяжной болт 11, с помощью которого производят стягивание подпорок 4.
Если деформационный шов находится у колонны (см.
"б"), то металлические балки закрепляются на последней. Для этого в балке перекрытия пробивают отверстия, в которые пропускают тяжи 3. Затем на перекрытии вокруг колонны 1 устраивают хомут 2, к которому привариваются верхние концы тяжей 3. Снизу под перекрытием устраивается подвесная консоль, состоящая из двух швеллеров 5, скрепленных с одной стороны стяжными болтами 8. С другой стороны консоль служит упором для тяжей 3, закрепляемых на ней с помощью швеллера и гаек 6. В свою очередь подвесная консоль 5 упирается в перекрытие с помощью упора 7 и швеллера 4. Ввод усиливания в работу осуществляется натяжением гаек 6.
УСИЛЕНИЕ ДЛИННЫХ КОНСОЛЕЙ БАЛОК ПЕРЕКРЫТИЙ ТЯЖАМИ
1 - уголок верхнего анкера;
2 - существующая балка;
3 - натяжной болт

;
4 - усиливаемая конструкция;
5 - соединительный стержень;
6 - уголок - подкладка

;
7 - анкерный болт;
8 - тяж затяжки усиления

;
9 - уголок нижнего анкера

;
10 - ребро жесткости

;
11 - арматура консолей
РЕКОМЕНДАЦИИ ПО УСИЛЕНИЮ ДЛИННЫХ КОНСОЛЕЙ БАЛОК
ПЕРЕКРЫТИЙ ТЯЖАМИ
При необходимости догрузки длинных консолей возникает вопрос об их усилении. Усиление длинных изгибаемых консолей 4 проще всего осуществляется диагональными преднапряженными затяжками 8.
Диагональные преднапряженные затяжки 8 устанавливаются наклонно от верхнего угла, располагаемого непосредственно у начала консоли 4 на ее опоре и до нижнего конца. Таким образом, тяжи - затяжки имеют направление по диагонали боковой поверхности ребра консоли.
Анкерное устройство верхнего узла состоит из двух отрезков уголков 1, связанных между собой соединительным стержнем 5, приваренным к торцам полок этих уголков, образуя седловидную конструкцию.
Стержни диагональной затяжки 8 протягиваются за опорные сечения консоли 4. В месте перегиба, у грани ригеля главной балки 2, чтобы не снимать бетон, эти стержни укладываются на уголки - подкладки 6, прикрепляемые сваркой к тяжам затяжки 8.
Перед монтажом верхнего анкера затяжки в плите перекрытия пробиваются небольшие отверстия с боков ребра консолей балки 4 непосредственно у главной балки 2, служащей ее опорой при одновременном оголении опорной арматуры консоли на участке между пробиваемыми отверстиями.
Установка седловидного анкера производится непосредственно на оголенную арматуру консолей 11 балки, причем соединительный стержень 5 для фиксации положения анкера крепится на сверке к опорной арматуре конструкций, а уголки 1 привариваются к арматуре усиливаемой конструкции 11.
После монтажа к уголкам 1 верхнего анкера привариваются тяжи затяжки 8, а на нижние концы тяжей надевают упорные уголки 9, которые имеют соответствующие отверстия для пропуска концов тяжей. В торцах упорных уголков 9 предусмотрена приварка ребер жесткости 10, обеспечивающих неподатливость полок уголков при натяжении, создаваемом в тяжах затяжки. Для обеспечения надежного включения в работу затяжки 8 в ее тяжах создается предварительное натяжение путем их оттягивания к низу ребра консоли натяжным болтом 3.
УСИЛЕНИЕ БАЛОК ПЕРЕКРЫТИЯ НА ВОСПРИЯТИЕ ПОПЕРЕЧНЫХ СИЛ
а) Усиление балок на восприятие поперечных сил вертикальными накладными хомутами
1 - усиливаемая балка; 2 - прокладка; 3 - нижние прокладки из уголков; 4 - накладные хомуты из арматурной стали; 5 - гайка
б) Усиление балок на восприятие поперечных сил наклонными накладными хомутами
1 - набетонка; 2 - опорный уголок; 3 - гайка; 4 - коротыши; 5 - наклонные накладные хомуты; 6 - существующая арматура
в) Усиление балок на восприятие поперечных сил дополнительными косыми стержнями
1 - существующая арматура; 2 - дополнительные косые стержни
РЕКОМЕНДАЦИИ ПО УСИЛЕНИЮ БАЛОК ПЕРЕКРЫТИЯ
НА ВОСПРИЯТИЕ ПОПЕРЕЧНЫХ СИЛ
Необходимость усиления балок перекрытия на восприятие поперечных сил обуславливается появлением наклонных трещин в четвертях пролета или возрастанием нагрузки и, следовательно, увеличением поперечных сил.
Усиление балок по наклонным сечениям может быть осуществлено установкой стягивающих хомутов или дополнительной поперечной арматуры.
При усилении балок вертикальными накладными хомутами (см.
"а") в плите перекрытия пробивающие отверстия. Затем через пробитые отверстия пропускают хомуты из арматурной стали 4. Между ребром усиливаемой балки 1 и хомутами 4 устанавливается прокладка из уголков 3. Хомуты 4 закрепляются на балке с помощью гаек 5 и прокладок 2.
Усиление балок наклонными накладными хомутами (см.
"б") производится в следующем порядке. В плите перекрытия пробиваются отверстия, а у главных балок обнажается растянутая арматура 6, к которой привариваются коротыши 4. Устанавливают наклонные накладные хомуты путем пропускания через отверстия в плите и приваркой их к коротышам 4. Хомуты вводятся в напряженное состояние затягиванием гаек 3, опирающихся на уголки 2.
В случае применения дополнительной арматуры (см.
"в") к обнаженным продольным стержням 1 привариваются с определенным шагом дополнительные косые стержни 2.
При усилении балок на восприятие поперечных сил примыкающие к бетонным поверхностям усиливаемой балки уголки и прокладки устанавливаются на жестком расширяющемся или безусадочном цементе. Напряжение в дополнительных поперечных стержнях должно создаваться одновременно с обеих сторон балки во избежание ее закручивания.
УСИЛЕНИЕ ВЕРХНЕЙ ЗОНЫ ПОДКРАНОВОЙ БАЛКИ
а) усиление верхней зоны полки и свесов при помощи стальной обоймы;
б) усиление верхней зоны полки при помощи стальной обоймы;
в) усиление сжатой полки путем устройства горизонтального стального пояса;
1 - рельс; 2 - детали крепления рельса; 3 - упругие прокладки; 4 - продольные арматурные стержни; 5 - швеллер усиления; 6 - болт; 7 - графитная смазка; 8 - новый бетон
РЕКОМЕНДАЦИИ ПО УСИЛЕНИЮ ВЕРХНЕЙ ЗОНЫ ПОДКРАНОВОЙ БАЛКИ
Разрушению балок часто способствуют значительные поперечные силы, возникающие вследствие жесткого крепления рельсов и одностороннего контакта с ними ходовых колес крана, а также перекосы его. Из конструктивных соображений не всегда возможно наращивание балок сверху, тогда для восприятия горизонтальных нагрузок применяется усиление стальными обоймами (см.
"а",
"б") или раздельно работающее усиление, когда усиление воспринимает только горизонтальные усилия, а балка - вертикальные (см.
"в").
При усилении верхней зоны и свесов полки (см.
"а") в последней пробивают отверстия, закрепляют с помощью болтов 6 швеллеры усиления 5, образуя каркас обоймы. В образовавшуюся полость укладывают два продольных арматурных стержня 4, заливают новый бетон. Сверху на бетон укладываются три арматурных стержня 4. К швеллерам привариваются упругие прокладки 3. Ввод обойм в работу осуществляется натяжением болтов 6.
Усиление только верхней зоны полки (см.
"б") может быть выполнено с помощью обойм из швеллеров усиления 5, стягиваемых горизонтальными болтами 6, проходящими через отверстия, пробитые в стойках. Остальные операции аналогичны предыдущему случаю.
Для усиления сжатой полки горизонтальным стальным поясом вертикально располагаемых швеллеров усиления 5 скрепляются на сверке такими же швеллерами усиления 5, но укладываемыми горизонтально на стойку. Снизу швеллеры усиления 5 стягиваются горизонтальными болтами 6.
Во всех выше приведенных случаях после введения усилений в работу на швеллеры усиления 5 укладываются упругие прокладки 3, на которые укладываются, а затем закрепляются деталями 2 рельсы 1.
УСИЛЕНИЕ ПОДКРАНОВЫХ БАЛОК НА ВОСПРИЯТИЕ ПОПЕРЕЧНЫХ СИЛ
1 - усиливаемая подкрановая балка;
2 - уголки 100 x 7, l = 850;
3 - поперечные стержни

,
l = 870;
4 - стержни

,
l = 190;
5 - существующая колонна;
6 - упругая прокладка;
7 - болты крепления кранового рельса;
8 - лапка для крепления рельса;
9 - стержень

,
l = 200;
10 - 60 x 5, l = 145
РЕКОМЕНДАЦИИ ПО УСИЛЕНИЮ ПОДКРАНОВЫХ БАЛОК НА ВОСПРИЯТИЕ
ПОПЕРЕЧНЫХ СИЛ ПРЕДВАРИТЕЛЬНО-НАПРЯЖЕННЫМИ ХОМУТАМИ
Данный способ применяется для усиления подкрановых балок, получивших повреждения в виде косых трещин.
Процесс усиления состоит в проведении следующих операций. К уголку 2, скрепленному посредством болтов 7 с лапкой для крепления рельса 8, привариваются поперечные стержни 3. Другим концом стержни 3 посредством сварки крепятся к уголкам 2, плотно прижатым к стойке подкрановой балки приваренными стержнями 4.
Предварительно напрягаемые стержни 3 стягиваются устройством, включающим стержень 9 с резьбой и гайкой 11 и изогнутую деталь 10 из полосовой стали. Ввод усиления в работу осуществляется затяжкой гаек 11, которые посредством детали 10 и стержня 9 стягивают поперечные стержни 3.
УСИЛЕНИЕ КРЕПЛЕНИЙ ПОДКРАНОВОЙ БАЛКИ К КОЛОННЕ
а) приваркой к металлической обойме полки; б) приваркой к закладным деталям балки;
1 - подкрановая балка; 2 - колонна; 3 - обойма колонны; 4 - обойма полки балки; 5 - стяжные болты; 6 - лист крепления; 7 - ребро жесткости обоймы колонны
РЕКОМЕНДАЦИИ ПО УСИЛЕНИЮ КРЕПЛЕНИЙ
ПОДКРАНОВОЙ БАЛКИ К КОЛОННЕ
При легком режиме работы кранов могут быть рекомендованы следующие способы усиления подкрановых балок:
- усиление приваркой к металлической обойме полки;
- усиление приваркой к закладным деталям балки.
Усиление приваркой к металлической обойме полки осуществляется путем проведения следующих операций (см.
"а"). На железобетонной колонне 2 устраивается обойма из уголков и пластин 3. Полка подкрановой балки 1 заключается в металлическую обойму 4. Обойма полки 4 крепится к обойме колонны 3 с помощью листа крепления 6. Обоймы полки 4 стягиваются болтами 5.
Усиление приваркой к закладным деталям подкрановой балки состоит в следующем (см.
"б"). К обойме 3, устраиваемой на колонне 2, и закладным деталям подкрановой балки 1 привариваются листы крепления 6. Для усиления обоймы колонны 3 к ней со стороны подкрановой балки приваривается ребро жесткости 7.
УСИЛЕНИЕ ПОДКРАНОВОЙ БАЛКИ С ПОМОЩЬЮ
СТАЛЬНЫХ КОНСОЛЕЙ И ОБОЙМ
а) устройство стальных консолей и сплошной обоймы;
б) устройство шпренгеля и обоймы из уголков;
1 - колонна; 2 - подкрановая балка; 3 - стальные консоли; 4 - опорный столик; 5 - сплошная обойма из швеллеров; 6 - шпренгель; 7 - обойма из уголков; 8 - ребра жесткости; 9 - упорные уголки; 10 - стяжные болты; 11 - упор; 12 - коротыши
РЕКОМЕНДАЦИИ ПО УСИЛЕНИЮ ПОДКРАНОВОЙ БАЛКИ
С ПОМОЩЬЮ СТАЛЬНЫХ КОНСОЛЕЙ И ОБОЙМ
Для повышения несущей способности и жесткости тавровых подкрановых балок может использоваться раздельное или совместное усиление металлической обоймой и выносными металлическими опорами (см.
"а") и усиление металлической обоймой и шпренгелем (см.
"б").
Усиление металлической обоймой и выносными металлическими опорами следует начинать с закрепления стальных консолей на колоннах 1 и опорных столиках 4. Консоли представляют собой металлоконструкции, состоящие из двух швеллеров, прикрепленных снизу болтами к опорным столикам 4, а сверху соединенных на сварке стержнем из круглой стали. Затем на верхней полке подкрановой балки устраивается сплошная обойма из швеллеров 5, закрепляемая на упоре 11.
К швеллерам обоймы 5 привариваются упорные уголки 9 для стяжных болтов 10. Снизу полки подкрановой балки по ее концам усилены ребрами жесткости 8. После установки обоймы 5 производится ее стягивание болтами 10.
Устройство шпренгеля и обоймы из уголков рекомендуется проводить в следующем порядке. Верхние полки балки заключаются в обоймы из уголков 8. Для этого в полках пробиваются отверстия и через них пропускаются стяжные болты 10. К уголкам обоймы 7 привариваются упорные уголки 9, через которые пропускают шпренгели 6 с резьбою по концам и там закрепляются. В местах перегиба шпренгелей 6 устраиваются подкладки из уголков и стержней. Ввод усиления в работу производится натяжением шпренгеля у опор, завинчиванием гаек и стягиванием обойм из уголков 7 стяжными болтами 10.
УСИЛЕНИЕ ПОДКРАНОВОЙ БАЛКИ И ЕЕ ОПИРАНИЯ НА КОЛОННЫ
а) УСИЛЕНИЕ ПОЛОК ПОДКРАНОВЫХ БАЛОК
б) УСИЛЕНИЕ ОПИРАНИЯ ПОДКРАНОВЫХ БАЛОК НА КОЛОННЫ
1 - подкрановая балка; 2 - уголок

; 3 - скол бетона; 4 - существующая планка; 5 - болт крепления; 6 - элемент усиления [16; 7 - ребра жесткости; 8 - колонна; 9 - уголок

; 10 - существующая закладная деталь; 11 - упор; 12 - новый бетон
РЕКОМЕНДАЦИИ ПО УСИЛЕНИЮ СВЕСОВ ПОЛКИ
И ОПИРАНИЯ ПОДКРАНОВОЙ БАЛКИ НА КОЛОННЫ
При частичном разрушении свесов полок подкрановых балок (см.
"а") прежде всего необходимо удалить разрушенный бетон и произвести инъектирование в трещины бетона 3 ремонтного состава. Затем отколовшуюся часть свеса замоноличивают новым бетоном. После затвердевания нового бетона свес полки подкрановой балки 1 заключается в обойму, образуемую уголком 2 и существующей планкой 4. Уголок 2 скрепляется с планкой 4 болтами 5.
Усиление опирания подкрановых балок на колонны (см.
"б") рекомендуется производить в случае потери балкой первоначальной несущей способности или при увеличении нагрузки от кранового оборудования. Для осуществления этого способа усиления сначала к закладной детали 10 колонны 8 привариваются два уголка 9 с ребрами жесткости 7. К уголкам 9 приваривается элемент усиления в виде швеллера 6. Сверху вплотную к подкрановой балке 1 на колонне приваривается упор 11. Заключительный этап усиления состоит в заполнении пространства между балкой 1 и колонной 8 новым бетоном 12.
ВОССТАНОВЛЕНИЕ ЖЕЛЕЗОБЕТОННЫХ КОЛОНН МЕСТНЫМИ ОБОЙМАМИ
а - восстановление железобетонной колонны, имеющей косые трещины;
б - восстановление железобетонной колонны, имеющей выбоины;
1 - дополнительные стержни

; 2 - хомуты

шаг 200 мм; 3 - зона повреждения; 4 - разорванный стержень; 5 - стержни вставки

; 6 - сварка в местах разрыва стержней 4; 7 - новый бетон марки 300
РЕКОМЕНДАЦИИ ПО ВОССТАНОВЛЕНИЮ ЖЕЛЕЗОБЕТОННЫХ КОЛОНН
МЕСТНЫМИ ОБОЙМАМИ
Восстановление колонн, имеющих в зоне повреждения косые трещины
(поз. а), производится путем устройства железобетонной обоймы, которая перекрывает повреждение в обе стороны на величину большего размера сечения колонны
h. Если край трещин находится ближе, чем на величину
h, то обойма доводится до перекрытия на оставшееся расстояние а.
Устройство обоймы осуществляется в следующем порядке. Трещина 3 очищается от разрушенного бетона, устанавливается арматурный каркас обоймы, состоящий из сваренных между собой продольных стержней 1 и хомутов 2 с шагом 200 мм, устанавливается временная опалубка, в которую заливается новый бетон 7 на расширяющемся цементе. После затвердевания нового бетона опалубка снимается.
При повреждении колонны более, чем на 1/3 сечения восстановление железобетонными обоймами производится способом, показанным на
поз. б. Сначала необходимо провести подготовку поверхности зоны повреждения 3 путем тщательной очистки мест повреждения от разрушенного бетона. Разорванные стержни 4 соединяются вставками 5 сваркой 6. Затем устанавливают арматурный каркас обоймы из стержней 1 и хомутов 2, устраивают деревянную опалубку. Образовавшуюся полость заливают быстротвердеющим бетоном 7.
При повреждении колонны менее, чем на 1/3 ее сечения восстановление при помощи железобетона производится путем установки хомутов на поврежденном участке колонны и покрытия места повреждения торкретбетоном или жестким бетоном толщиной не более 20 мм, зачеканиваемым без опалубки.
ВОССТАНОВЛЕНИЕ ЖЕЛЕЗОБЕТОННЫХ КОЛОНН СПЛОШНЫМИ ОБОЙМАМИ
1 - зона повреждения;
2 - дополнительные стержни

;
3 - хомуты

шаг 200;
4 - новый бетон марки 300
РЕКОМЕНДАЦИИ ПО ВОССТАНОВЛЕНИЮ ЖЕЛЕЗОБЕТОННЫХ КОЛОНН
СПЛОШНЫМИ ОБОЙМАМИ
В том случае, когда колонна в результате воздействия взрывной волны получает трещины по всей высоте, восстановление ее выполняется сплошной железобетонной обоймой. Сплошные обоймы, как правило, делаются четырехсторонними.
Восстановление поврежденной колонны начинается с расчистки трещины 1, удаления разрушенного бетона и очистки обнаженной арматуры от ржавчины. В расчищенные трещины нагнетается быстротвердеющий цементный раствор. Перед устройством обоймы поверхность бетона рассекается и тщательно промывается водой для лучшего сцепления старого бетона с новым.
При устройстве железобетонной обоймы на всю длину колонны в перекрытии пробиваются отверстия для установки арматурного каркаса обоймы. Продольные стержни 2 закрепляются хомутами 3 с помощью сварки. Установку временной опалубки производят по частям по мере заливки нового бетона 4. Толщина обоймы должна составлять не менее 90 - 100 мм по обе стороны от краев колонны. После заливки бетона на всю высоту колонны отверстия в перекрытии зачеканиваются цементным раствором. Опалубка снимается по достижении бетоном необходимой прочности.
ВОССТАНОВЛЕНИЕ ЖЕЛЕЗОБЕТОННЫХ КОЛОНН, ИМЕЮЩИХ ОСТАТОЧНОЕ
ОТКЛОНЕНИЕ СПЛОШНЫМИ ОБОЙМАМИ
1 - зона повреждения;
2 - дополнительные стержни

;
3 - хомуты

шаг 200;
4 - новый бетон
РЕКОМЕНДАЦИИ ПО ВОССТАНОВЛЕНИЮ ЖЕЛЕЗОБЕТОННЫХ КОЛОНН,
ИМЕЮЩИХ ОСТАТОЧНОЕ ОТКЛОНЕНИЕ, СПЛОШНЫМИ ОБОЙМАМИ
При малом отклонении колонн от вертикального положения устанавливаются сплошные железобетонные обоймы переменного сечения, которыми достигается вертикальность колонн. При этом могут встречаться два вида разрушений:
а) арматура не имеет деформаций;
б) арматура повреждена вследствие колебательных движений в момент взрыва.
На представленном чертеже показан первый вид, когда арматура не имеет повреждений. Такой способ выправления применяется, когда колонна имеет отклонения от вертикали до 15 см. При больших отклонениях этот способ становится неэкономичным, так как получается большой расход бетона.
Процесс восстановления железобетонных колонн, имеющих сквозные трещины, сдвиги изломы с выходом всей или части колонн из вертикального положения, начинается с тщательного их осмотра.
Выявляется зона повреждения колонны 1 и замеряется величина ее искривления. Удаляется разрушенный бетон и производится смачивание поверхностей контакта старого бетона с новым. Устанавливается дополнительная продольная 2 и поперечная 3 арматура. Подготовленный каркас омоноличивается бетоном 4.
Преимущества этого метода следующие:
1) нет необходимости разгружать колонну на время производства работ;
2) не нужно колонну возвращать в вертикальное положение;
3) не требуется специального крепления.
Недостатком этого метода является некоторый перерасход бетона.
ВОССТАНОВЛЕНИЕ СИЛЬНО ПОВРЕЖДЕННЫХ ЖЕЛЕЗОБЕТОННЫХ
КОЛОНН ОБОЙМАМИ
а - искривленная колонна;
б - выпрямленная колонна;
в - восстановленная колонна;
1 - зона повреждения; 2 - стержни вставки; 3 - сварка в местах разрыва стержней 4; 4 - разорванный стержень; 5 - дополнительные стержни

; 6 - хомуты

шаг 200 мм; 7 - новый бетон марки 300
РЕКОМЕНДАЦИИ ПО ВОССТАНОВЛЕНИЮ СИЛЬНО ПОВРЕЖДЕННЫХ
ЖЕЛЕЗОБЕТОННЫХ КОЛОНН ОБОЙМАМИ
Если поврежденные колонны имеют сквозные трещины, сдвиги и изломы с выходом всей или части колонн из вертикального положения, то прежде, чем приступить к восстановлению железобетонных колонн, должен быть произведен их тщательный осмотр. При малом отклонении колонн от вертикального положения устанавливаются сплошные железобетонные обоймы переменного сечения, которыми достигается вертикальность колонн. Такой способ выправления применяется, когда колонна имела отклонения от вертикали до 15 см. При больших отклонениях этот способ становится неэкономичным, так как получается большой расход бетона.
При значительном выходе колонн из вертикального положения
(поз. а) ремонт их производится следующим образом. Место повреждения 1 расчищается и обрабатывается плоскостями, перпендикулярными к оси колонны, колонна приводится в вертикальное положение и закрепляется
(поз. б). Производится стыкование разорванных стержней 4 вставками 2 и сваркой 3, выправление и замена разорванных хомутов. Затем устанавливается арматура обоймы (продольные стержни 5 и хомуты 6) и производится бетонирование быстротвердеющим бетоном 7. Оставленный вверху зазор в 40 - 50 мм после затвердевания бетона тщательно зачеканивается жестким цементным раствором на основе расширяющегося цемента
(поз. в). На время ремонта под вышележащие элементы сооружений должны быть подведены временные стойки-подпорки.
УСИЛЕНИЕ ЖЕЛЕЗОБЕТОННЫХ КОЛОНН НАБЕТОНКОЙ
а - усиление железобетонной колонны односторонней набетонкой;
б - усиление железобетонной колонны двусторонней набетонкой;
1 - дополнительная арматура

; 2 - хомуты

; 3 - существующая арматура; 4 - сварка; 5 - новый бетон; 6 - усиливаемая колонна; 7 - сварка
РЕКОМЕНДАЦИИ ПО УСИЛЕНИЮ ЖЕЛЕЗОБЕТОННЫХ КОЛОНН НАБЕТОНКОЙ
Усиление колонн набетонкой применяется при средней степени их разрушения по всей высоте.
При усилении железобетонных колонн 6 одно- и двухсторонней набетонкой удаляют разрушенный бетон и обнажают арматуру 3 по всей высоте усиления, очищают от ржавчины и остатков бетона и приваривают к ней дополнительную арматуру 1 через хомуты 2. Затем производят обетонирование бетоном 5 на основе обычного или расширяющегося цементов.
Перед устройством набетонок поверхность бетона насекается и тщательно промывается водой под давлением для лучшего сцепления старого и нового бетона.
При бетонировании набетонок укладка бетона 5 ведется снизу вверх по мере установки опалубки с штыкованием.
Заполнение пространства между опалубкой и поверхностью усиливаемой колонны 6 может выполняться при помощи прямоточного диафрагмового растворонасоса агрегата "Пневмобетон", который применяется при заполнении узких пространств.
Рабочая арматура набетонок 1 определяется по расчету усиления колонны 6. Поперечная арматура 2 в виде хомутов является составной частью набетонок даже в том случае, когда по расчету она не требуется. В этом случае шаг хомутов может назначаться предельным, в 500 мм.
ВОССТАНОВЛЕНИЕ ЖЕЛЕЗОБЕТОННЫХ КОЛОНН СПЛОШНЫМИ
МЕТАЛЛИЧЕСКИМИ КОРСЕТАМИ
1 - зона повреждения;
2 - уголок

;
3 - металлический лист

;
4 - сварка;
5 - зачеканка цементным раствором
РЕКОМЕНДАЦИИ ПО ВОССТАНОВЛЕНИЮ ЖЕЛЕЗОБЕТОННЫХ КОЛОНН
СПЛОШНЫМИ МЕТАЛЛИЧЕСКИМИ КОРСЕТАМИ
Восстановление колонн сплошными металлическими корсетами применяется при средней и сильной степенях повреждения (трещины, выбоины и т.д.) по всей их высоте.
Металлические корсеты состоят из стоек уголкового профиля 2 и соединительных планок 3. В зависимости от передаваемой нагрузки на корсет уголки могут быть заменены более мощными профилями: швеллерами, двутаврами. При отсутствии планок соединение стоек может быть выполнено с помощью обрезка труб.
Поврежденные участки железобетонной колонны 1 заделываются ремонтными составами 5. Затем устанавливаются металлические стойки 2 путем плотного примыкания их к поверхностям колонн. Это обеспечивается подливкой между стойками и колонной цементного раствора состава 1:3. Восстановление несущей способности колонны достигается после монтажа соединительных планок 3 и их соединения сваркой 4 со стойками 2.
Конструкцией верхней части корсета предусмотрена возможность передачи нагрузки колонны на корсет, а нижней части - возможность передачи нагрузки с корсета на фундамент или нижележащую конструкцию. Нагрузка, передаваемая на корсет, находится в прямой зависимости от степени разрушения колонны и учитывается расчетом в размере от 20 до 100% полной нагрузки колонны.
При устройстве корсетов в помещениях с агрессивной производственной средой металлические элементы следует защищать от коррозии.
Способ восстановления железобетонных колонн сплошными металлическими корсетами, был применен при восстановлении многих промышленных предприятий, разрушенных в годы Великой Отечественной войны и в мирное время в результате аварий и землетрясений.
УСИЛЕНИЕ ЖЕЛЕЗОБЕТОННОЙ КОЛОННЫ МЕТАЛЛИЧЕСКИМИ СТОЙКАМИ
1 - швеллеры;
2 - полосовое железо 50 x 8 мм;
3 - косынка

;
4 - уголок 63 x 5;
5 - листовое железо

;
6 - болт

;
7 - брусок 40 x 40 мм;
8 - металлический лист

на цементной подливке;
9 - зачеканка жестким цементным раствором
РЕКОМЕНДАЦИИ ПО УСИЛЕНИЮ ЖЕЛЕЗОБЕТОННОЙ КОЛОННЫ
МЕТАЛЛИЧЕСКИМИ СТОЙКАМИ
Усиление железобетонных колонн металлическими стойками рекомендуется при увеличении несущей способности конструкции в связи с увеличением нагрузки или при средней и сильной степени повреждения в результате внешних воздействий.
Металлические стойки целесообразно применять для усиления центрально-сжатых, а также внецентренно-сжатых колонн с малыми эксцентриситетами.
Процесс усиления рекомендуется проводить в следующем порядке.
В местах установки стоек на поверхность пола укладываются на цементном растворе металлические листы 8, толщину которых подбирают из условия плотного примыкания противоположных концов стоек к несущим конструкциям здания. На металлические листы ставятся стойки 1, стягиваемые хомутами 2, соединенными болтами 6 и бруском 7. После затвердения раствора производится подклинка стоек снизу металлическими клиньями или зачеканка пространства между нижними гранями главных балок и верхом металлических стоек жестким цементным раствором 9. В дальнейшем на металлические стойки следует нанести защитное покрытие. Сверху и снизу к металлическим стойкам 1 прикрепляются на сварке или заклепках посредством косынок 3 уголки 4.
Металлические стойки для усиления железобетонной колонны могут выполняться из двух швеллеров 1. Возможно также применять для стоек другие профили: уголки, двутавры, рельсы, а также металлические трубы.
Увеличение несущей способности колонны, т.е. ее усиление достигается после затяжки хомутов болтами.
При повреждении центрально-нагруженной колонны менее, чем на 1/3 ее сечения допускается установка только одной стойки (со стороны повреждения).
УСИЛЕНИЕ ЖЕЛЕЗОБЕТОННЫХ КОЛОНН ДЕРЕВЯННЫМИ СТОЙКАМИ
1 - главная балка;
2 - поврежденная железобетонная колонна;
3 - деревянные стойки;
4 - скрутки из проволоки

в 3 оборота;
5 - клинья из воздушно-сухого твердого дерева;
6 - коротыши;
7 - кровельное железо
РЕКОМЕНДАЦИИ ПО УСИЛЕНИЮ ЖЕЛЕЗОБЕТОННЫХ КОЛОНН
ДЕРЕВЯННЫМИ СТОЙКАМИ
При средней степени разрушения и при отсутствии другого материала железобетонные колонны могут быть усилены деревянными стойками.
Для осуществления этого способа деревянные стойки 3 устанавливаются под главными балками 1 на подкладки из коротких брусьев 6 и снизу плотно укрепляются клиньями 5 из дерева твердых пород (дуб, лиственница). Стойки скрепляются с колоннами скрутками 4 в три оборота. Плоскости торцов деревянных стоек должны быть перпендикулярны к их осям и для усиления обиваются кровельным железом.
Скрутки располагаются по высоте колонны через 1000 мм.
Диаметр деревянной стойки

,
ширина коротких брусьев

,
где n - число деревянных стоек по обе стороны сечения колонны.
После установки деревянных стоек они покрываются защитно-отделочными составами вместе с металлическими скрутками.
Поврежденные места железобетонной колонны заделываются ремонтными составами.
Деревянные стойки могут быть круглого, прямоугольного сечения или составные. Проволочные скрутки могут быть при необходимости заменены хомутами из полосового железа.
УСИЛЕНИЕ ЖЕЛЕЗОБЕТОННОЙ КОЛОННЫ
СТАЛЬНЫМИ ЛИСТАМИ ПОЛУКРУГЛОЙ ФОРМЫ
(ПАТЕНТ ЯПОНИИ N 53-43259)
1 - усиливаемая колонна;
2 - стальной лист полукруглой формы;
3 - накладная полоса;
4 - сварка;
5 - новый бетон.
РЕКОМЕНДАЦИИ ПО УСИЛЕНИЮ ЖЕЛЕЗОБЕТОННОЙ КОЛОННЫ
СТАЛЬНЫМИ ЛИСТАМИ ПОЛУКРУГЛОЙ ФОРМЫ
Данный способ может быть применен при восстановлении железобетонных колонн, получивших сильную степень повреждения по всей высоте, а также для предотвращения потери устойчивости колонн из-за разрушения на сдвиг при циклических деформациях, в частности при сильных землетрясениях.
Процесс усиления начинается с установки по всей высоте железобетонной колонны 1 двух полукруглых листов 2, центр которых совпадает с центральной осью четырехугольной колонны, а радиус листов примерно равен половине длины диагонали поперечного сечения колонны. Сварные соединения 4 стальных листов 2 устраиваются встык с помощью накладных полос 3. После установки и сварки листов в зазоры между поверхностью колонны 1 и стальными листами 2 нагнетается омоноличивающий их расширяющийся цементно-песчаный раствор или полимербетон 5.
УСИЛЕНИЕ ЖЕЛЕЗОБЕТОННЫХ КОЛОНН СТАЛЬНЫМИ ПРОФИЛЯМИ
(Патент Японии N 53-42986)
а - усиление железобетонной колонны угловыми листами;
б - усиление железобетонной колонны уголками и листами;
1 - усиливаемая колонна; 2 - стальной лист угловой формы;
3 - сварка; 4 - клей (раствор); 5 - стальной лист;
6 - уголок

.
РЕКОМЕНДАЦИИ ПО УСИЛЕНИЮ
ЖЕЛЕЗОБЕТОННЫХ КОЛОНН СТАЛЬНЫМИ ПРОФИЛЯМИ
При сильной степени повреждения железобетонной колонны по всей высоте, а также для предотвращения потери устойчивости колонн в результате разрушения на сдвиг при циклических деформациях, в частности при сильных землетрясениях, может быть применен метод усиления с помощью стальных профилей.
Для осуществления этого способа могут быть применены угловые листы или уголки и листы размерами на всю высоту колонны.
При усилении угловыми листами 2 последние устанавливаются в вертикальном положении к колонне 1 с небольшим зазором. Установленные листы 2 соединяются сваркой 3 по всей высоте колонны. После остывания сварного шва в зазор между угловыми листами и колонной заливается раствор 4.
Усиление уголками и листами производится в следующем порядке. К углам колонны 1 подводятся стальные уголки 6 на всю высоту колонны. Уголки 6 соединяются со стальными листами 5 сваркой 3. Затем в зазор между стальными листами 5 и колонной 1 заливается раствор 4.
УСИЛЕНИЕ ЖЕЛЕЗОБЕТОННОЙ КОЛОННЫ С ПОМОЩЬЮ
МЕТАЛЛИЧЕСКИХ ОБОДОВ И ПРОВОЛОЧНОЙ СЕТКИ
(Патент Японии N 57-8263)
1 - усиливаемая колонна;
2 - металлический обод;
3 - зубцы;
4 - проволочная сетка;
5 - сварка;
6 - ремонтный раствор.
РЕКОМЕНДАЦИИ ПО УСИЛЕНИЮ ЖЕЛЕЗОБЕТОННОЙ КОЛОННЫ
С ПОМОЩЬЮ МЕТАЛЛИЧЕСКИХ ОБОДОВ И ПРОВОЛОЧНОЙ СЕТКИ
Приведенный ниже способ может быть применен при восстановлении железобетонных колонн, получивших среднюю степень повреждения по всей высоте, а также для предотвращения разрушения на сдвиг.
Усиление железобетонной колонны с помощью металлических ободов и проволочной сетки необходимо проводить в следующем порядке.
Железобетонная колонна 1 с определенным шагом по высоте стягивается растянутыми металлическими ободами 2, закрепляемыми сваркой 5 в виде колец.
Вдоль металлических ободов 2 устроено несколько зубьев 3. Путем обматывания по металлическим ободам 2 проволочной сетки 4 и фиксации последней путем загибания зубцов 3 образуется основа, по которой промазкой наносится ремонтный состав 6, омоноличивающий железобетонную колонну 1 с металлическими ободами 2 и проволочной сеткой 4.
Металлические ободы 2 могут быть заранее обрезаны по определенной длине, соответствующей периметру имеющейся железобетонной колонны 1.
Металлические ободы 2 изготавливаются из полосы определенной ширины, обладающей достаточной гибкостью, что дает возможность беспрепятственного стягивания ими железобетонных колонн 1.
УСИЛЕНИЕ ЖЕЛЕЗОБЕТОННОЙ КОЛОННЫ С ПОМОЩЬЮ
ЖЕЛЕЗОБЕТОННЫХ ЭЛЕМЕНТОВ И НАПРЯГАЕМОЙ АРМАТУРЫ
(Патент Японии N 46-37490)
1 - усиливаемая колонна;
2 - железобетонный элемент;
3 - клей;
4 - напрягаемая арматура;
5 - отделочный слой.
РЕКОМЕНДАЦИИ ПО УСИЛЕНИЮ ЖЕЛЕЗОБЕТОННЫХ КОЛОНН
С ПОМОЩЬЮ ЖЕЛЕЗОБЕТОННЫХ ЭЛЕМЕНТОВ И НАПРЯГАЕМОЙ АРМАТУРЫ
Усиление колонн железобетонными элементами и напрягаемой арматурой применяется при средней степени их разрушения по всей высоте, а также для предотвращения потери устойчивости колонн из-за разрушения на сдвиг при циклических деформациях, в частности при сильных землетрясениях, и повышение сейсмостойкости колонн.
Процесс усиления рекомендуется проводить в такой последовательности.
К железобетонной колонне 1 почти на всю ее высоту на цементном растворе 3 приклеиваются сегментные панели 2 из преднапряженного железобетона, образующие в поперечном сечении соосный с центральной осью колонны 1 круг, совместная работа которых с колонной обеспечивается их обмоткой снаружи по спирали равномерно натянутой напрягаемой арматурой 4. Перед приложением преднапряженных панелей 2 к колонне выполняется подготовка поверхности колонны к усилению, включающая удаление ее первоначальной отделки и нанесение промазкой выравнивающего слоя цементно-песчаного раствора, а после намотки спиральной напрягаемой арматуры производится соответствующая отделка поверхности колонны.
УСИЛЕНИЕ ЖЕЛЕЗОБЕТОННЫХ КОЛОНН С ПОМОЩЬЮ ПРОВОЛОЧНОГО ТРОСА
(Патент Японии N 51-132157)
1 - усиливаемая колонна;
2 - проволочный трос;
3 - ремонтный раствор.
РЕКОМЕНДАЦИИ ПО УСИЛЕНИЮ ЖЕЛЕЗОБЕТОННОЙ КОЛОННЫ
С ПОМОЩЬЮ ПРОВОЛОЧНОГО ТРОСА
Способ усиления с помощью проволочного троса рекомендуется при восстановлении железобетонных колонн, получивших среднюю степень повреждения по всей высоте, а также для предотвращения разрушения на сдвиг.
Процесс усиления состоит в следующем. Вокруг железобетонной колонны 1 по спирали с определенным шагом наматывается проволочный трос 2 в одном направлении. При более высокой нагрузке трос 2 наматывается вокруг колонны 1 дважды в противоположных направлениях, благодаря чему плотность обмотки колонны проволочным тросом 2 увеличивается в два раза по сравнению с намоткой в одном направлении.
Намотанный на колонну 1 проволочный трос 2 омоноличивается ремонтным составом 3. Ремонтный состав может быть нанесен на наружную поверхность колонны 1 путем промазки, укладки за опалубку или набрызгом таким образом, чтобы он закрывал проволочный трос 2.
Концы проволочного троса 2 в начале и по завершении намотки должны быть зафиксированы на железобетонной колонне 1. Этого можно добиться путем плотной примотки концов проволочного троса 2 к железобетонной колонне 1. Кроме того, оба конца проволочного троса 2 могут быть зафиксированы зажимами, забитыми в железобетонную колонну 1.
Шаг намотки проволочного троса 2 на железобетонную колонну 1 выбирается в зависимости от требуемой степени ее усиления.
УСИЛЕНИЕ КОЛОННЫ ПРЕДВАРИТЕЛЬНО НАПРЯЖЕННОЙ
ОДНОСТОРОННЕЙ МЕТАЛЛИЧЕСКОЙ РАСПОРКОЙ
1 - усиливаемая колонна; 2 - уголки-распорки; 3 - соединительные планки;
4 - упорные уголки; 5 - планки-упоры; 6 - крепежный монтажный болт;
7 - натяжной монтажный болт;
8 - планки для натяжения болтов в месте перегиба;
9 - крепежные уголки; 10 - крепежные стержни.
РЕКОМЕНДАЦИИ ПО УСИЛЕНИЮ КОЛОННЫ ПРЕДНАПРЯЖЕННОЙ
ОДНОСТОРОННЕЙ МЕТАЛЛИЧЕСКОЙ РАСПОРКОЙ
Односторонние преднапряженные распорки усиления применяются для повышения несущей способности колонн при внецентренном сжатии с большим и малым эксцентриситетами, при однозначном действии изгибающих моментов.
Для осуществления усиления этим способом сначала скалывается слой бетона в фундаменте и железобетонных балках с одной стороны колонны 1, там, где устанавливаются упорные уголки 4. Внутренние плоскости полок этих уголков должны быть заделаны заподлицо с наружными боковыми поверхностями усиливаемой колонны 1. При этом фиксация положения упоров 4 производится в строго горизонтальном положении.
С помощью крепежных монтажных болтов 6 устанавливаются распорки 2 с перегибом их в середине по высоте колонны, для чего в боковых полках предусматриваются вырезки, облегчающие такой перегиб. Конструкции распорок заготавливаются централизованно. Производится плотная подгонка и приварка планок-упоров 5 к упорным уголкам 4.
С помощью натяжных монтажных болтов 7 производится натяжение распорок 2 и выпрямление их до вертикального положения. Этим распорки включаются в совместную работу с усиливаемой колонной 1.
Распорки закрепляются с двух сторон планками 8, затем стягиваются монтажными стяжками 7.
После предварительного натяжения распорок к ним привариваются по всей высоте с определенным шагом соединительные планки 3 с крепежными уголками 9 и крепежные стержни 10, снимаются монтажные крепежные 6 и натяжной 7 болты.
УСИЛЕНИЕ ЖЕЛЕЗОБЕТОННОЙ КОЛОННЫ
ДВУХСТОРОННИМИ ПРЕДНАПРЯЖЕННЫМИ РАСПОРКАМИ
а - распорки в монтажном ненапряженном состоянии;
б - распорки в напряженном состоянии;
1 - упорный уголок

; 2 - крепежный монтажный болт М20;
3 - упорная планка -

; 4 - распорки из

;
5 - соединительные планки; 6 - натяжной монтажный болт М20;
7 - планки -

; 8 - сварка; 9 - усиливаемая колонна;
10 - отверстие под болты; 11 - арматура ригеля.
РЕКОМЕНДАЦИИ ПО УСИЛЕНИЮ ЖЕЛЕЗОБЕТОННОЙ КОЛОННЫ
ДВУХСТОРОННИМИ ПРЕДНАПРЯЖЕННЫМИ РАСПОРКАМИ
Двухсторонние распорки применяются для повышения несущей способности колонн с центральной нагрузкой, а также внецентренно сжатых с двухзначными моментами. Каждая распорка состоит из двух уголков 4, связанных между собой приваренными к ним соединительными планками 5.
Вверху и внизу каждой распорки укрепляются специальные планки-упоры 3, посредством которых они упираются в упорные уголки 1, устанавливаемые на ригелях, непосредственно примыкающих к усиливаемым колоннам 9.
Внутренние плоскости полок уголков - упоров 1 должны быть заделаны заподлицо с наружными боковыми поверхностями усиливаемых колонн. Для этого в местах установки уголков-упоров скалывается слой бетона и обнажается арматура ригеля 11. Упорные уголки 1 прикрепляются сваркой 8 к оголенной арматуре 11, после чего имеющиеся зазоры между полками уголков и сколотой поверхностью бетона тщательно зачеканиваются ремонтным составом.
Непосредственно к уголкам-упорам примыкают упорные планки ветвей распорок 3, которые при монтаже должны плотно соприкасаться с уголками упоров, так как это гарантирует равномерную передачу усилий на распорки, что обеспечивается креплением планок монтажными болтами 2, для которых имеются отверстия 10.
Установка распорок производится с перегибом в середине их высоты. Поэтому в боковых полках уголков предусматриваются вырезы, облегчающие такой перегиб.
Чтобы возместить потери площади поперечного сечения распорок в связи с устройством прорезей в боковых полках, в этих местах привариваются специальные планки 7, которые в дальнейшем используются для постановки натяжных болтов 6.
Смонтированные и плотно подогнанные распорки имеют наклон в сторону обоих концов, образуя зазор между боковыми гранями колонны и распоркой.
Для создания предварительного напряжения сжатия распорки выпрямляют, придавая им вертикальное положение. Это достигается натяжением болтов 6.
После выпрямления двухсторонних распорок и включения в совместную работу с усиливаемой колонной 9 их закрепляют приваркой планок 5, которые соединяют между собой обе распорки.
После закрепления распорок крепежные 2 и натяжные 6 болты снимаются.
ЖЕЛЕЗОБЕТОННЫХ КОЛОНН С ПОМОЩИ ОБОЙМ
а) при средней степени повреждения;
б) при сильном повреждении.
1 - арматура консоли;
2 - зона повреждения;
3 - хомуты

шаг 100 мм;
4 - новый бетон;
5 - стержни

;
6 - хомуты

шаг 100.
РЕКОМЕНДАЦИИ ПО ВОССТАНОВЛЕНИЮ КОНСОЛЕЙ
ЖЕЛЕЗОБЕТОННЫХ КОЛОНН С ПОМОЩЬЮ ОБОЙМ
Консоли, имеющие незначительную зону повреждения, восстанавливаются путем устройства горизонтальных хомутов. Для этого зона повреждения 2 освобождается от старого бетона, арматура консоли 1 - от ржавчины и грязи. Устанавливаются горизонтальные хомуты 3 и производится обетонирование консоли новым бетоном 4.
При сильном повреждении консоли и части колонны с раздроблением бетона восстановление их производится в следующем порядке. Сначала консоль освобождается от нагрузки. Затем удаляется старый бетон из зоны повреждения 2. Производится очистка арматуры консоли 1 от старого бетона. Устанавливается дополнительный арматурный каркас, состоящий из горизонтальных хомутов 6 и продольных стержней 5. После установки дополнительного каркаса производится обетонирование консоли и разрушенной части колонны новым бетоном 4.
УСИЛЕНИЕ КОНСОЛЕЙ КОЛОНН С ПОМОЩЬЮ
НАКЛОННЫХ ГОРИЗОНТАЛЬНЫХ ТЯЖЕЙ
1 - колонна; 2 - тяжи

; 3, 6 - упоры из

;
4 - стержень

; 5 - траверса из

; 7 - стяжное устройство; 8 - распорная планка; 9 -

; 10 - подкладка S = 20.
РЕКОМЕНДАЦИИ ПО УСИЛЕНИЮ КОНСОЛЕЙ КОЛОНН
С ПОМОЩЬЮ НАКЛОННЫХ И ГОРИЗОНТАЛЬНЫХ ТЯЖЕЙ
Усиление консолей колонн рекомендуется проводить при увеличении статической нагрузки на колонну или для предотвращения развития трещин при постоянном действии динамических нагрузок. Оно может быть осуществлено устройством наклонных тяжей (см.
"а"). Стягивание консолей достигается следующим образом. На верхней части консоли укладываются с обеих сторон колонны уголки 9, к которым привариваются стержни 4. Затем через изготовленные таким способом подкладки пропускаются тяжи 2, закрепляемые упорами 3 на нижней стороне колонны 1.
Консоли могут быть усилены также с помощью горизонтальных затяжек 2, закрепляемых на консолях траверсами из швеллеров 5 (см.
б).
Усиление консолей стяжными хомутами может быть выполнено с помощью горизонтальных или наклонных тяжей 2 (см.
в, г). Стяжные хомуты представляют собой корсеты, состоящие из уголков-упоров, стягиваемые тяжами из круглой стали. Натяжение осуществляется специальным стяжным устройством 7.
УСИЛЕНИЕ КОНСОЛЕЙ КОЛОНН КОМБИНИРОВАННОЙ ЗАТЯЖКОЙ
1 - существующая балка покрытия;
2 - стяжки стержни

;
3 - подкрановая балка;
4 - пластины - S = 20;
5 - тяжи

;
6 - уголки

;
7 - упорные швеллеры [10, 16;
8 - пластина 70 x 20;
9 - стержень

;
10 - существующая колонна;
11 - горизонтальные тяжи

.
РЕКОМЕНДАЦИИ ПО УСИЛЕНИЮ КОНСОЛЕЙ
КОЛОНН КОМБИНИРОВАННОЙ ЗАТЯЖКОЙ
При средней степени повреждения консолей колонн рекомендуется их усиление с помощью комбинированной затяжки.
Процесс усиления следует начать с обжатия подкрановой части существующей колонны 10 с помощью стяжных стержней 2, пропущенных через пластины 4. Затем углы консолей облицовываются стальными пластинами 4, к которым привариваются уголки 6 с отверстиями. В уголки 6 пропускаются тяжи 5, имеющие перегиб в средней части. Между тяжами 5 и колонной 10 пропускают пластину 8 и стержень 9.
По бокам колонны с помощью упорных швеллеров 7 устраиваются горизонтальные тяжи 11. Ввод усиления в рабочее состояние производится одновременным затягиванием тяжей 5 и 11.
УСИЛЕНИЕ НАДКРАНОВОЙ ЧАСТИ ЖЕЛЕЗОБЕТОННОЙ КОЛОННЫ
ПРЕДНАПРЯЖЕННЫМИ ЗАТЯЖКАМИ
(Авт. свид. СССР N 931905)
1 - усиливаемая колонна;
2 - затяжка

; 3 - распорка

;
4 - хомут

; 5 - пластинка -

;
6 - подкладка -

; 7 - подкладка

;
8 - уголок

; 9 - сварка.
РЕКОМЕНДАЦИИ ПО УСИЛЕНИЮ НАДКРАНОВОЙ ЧАСТИ
ЖЕЛЕЗОБЕТОННОЙ КОЛОННЫ ПРЕДНАПРЯЖЕННЫМИ ЗАТЯЖКАМИ
Приводимый способ применяется для повышения несущей способности надкрановой части колонны, получившей повреждения в виде трещин.
Способ состоит в проведении следующих операций.
На поврежденную надкрановую часть колонны 1 надевают элементы в виде затяжек 2. Свободные концы этих затяжек прикрепляют к оголовку колонны с помощью уголков 8 и сварки 9, а неразомкнутые концы располагают под консолью крест-накрест. После этого производят сближение затяжек 2 друг с другом с помощью стяжных устройств, состоящих из распорки 3, хомута 4, пластинки 5 и подкладки 6. Таким образом в элементах 2 производится предварительное напряжение и поврежденная часть колонны получает дополнительное обжатие, закрывающее трещины.
Для фиксации элементов 2 перед предварительным напряжением на консоли колонны устанавливаются подкладки 7 из круглой стали.
Уголки 8 закрепляются на колонне с помощью клея.
УСИЛЕНИЕ СТЫКОВОГО СОЕДИНЕНИЯ СТЕНОВОГО БЛОКА
С КОЛОННОЙ ФАХВЕРКА
1 - стеновой блок;
2 - стяжной болт

;
3 - металлическая полоса - 360 x 6, l = 600;
4 - уголок 80 x 80 x 8;
5 - уголки усиления колонны фахверка;
6 - отверстия

;
7 - усиливаемая колонна фахверка;
8 - металлическая накладка.
РЕКОМЕНДАЦИИ ПО УСИЛЕНИЮ УЗЛА СОПРЯЖЕНИЯ
СТЕНОВОГО БЛОКА С КОЛОННОЙ ФАХВЕРКА
При отклонении стеновых железобетонных блоков от первоначального проектного положения и одновременном повреждении колонн фахверка рекомендуется применение в качестве элементов усиления стальных каркасов и стяжных болтов.
Процесс усиления состоит из следующих последовательно проводимых операций. Колонна фахверка 7 заключается в металлический каркас, состоящий из четырех уголков 5, закрепляемых по углам колонны с помощью привариваемых к ним с определенным шагом по высоте металлических накладок 8. Затем в стеновых блоках 1 пробиваются отверстия 6, через которые пропускаются стяжные болты 2. С помощью болтов 2 стеновые блоки 1 крепятся через уголки 4 к металлическому каркасу усиления колонны 7. Возвращение стеновых блоков в вертикальное положение осуществляется натяжением стяжных болтов 2.
II. УСИЛЕНИЕ И ВОССТАНОВЛЕНИЕ СТАЛЬНЫХ КОНСТРУКЦИЙ
Основные причины, вызывающие усиление конструкций в целом или их элементов, могут быть объединены по следующим признакам:
- увеличению действующих нагрузок, изменению условий или режима эксплуатации в связи с реконструкцией и т.п.;
- конструктивным дефектам - дефекты проектирования, изготовления и монтажа;
- эксплуатационному износу - изнашиванию, потере прочности в результате действия динамических и вибрационных нагрузок, действия высоких температур, химических реагентов и т.п.;
- повреждениям в результате воздействия взрывов, землетрясений и т.п.
Заключение о целесообразности усиления конструкций составляется при их обследовании и расчете на действительные нагрузки. Для определения несущей способности конструкций необходимо также определить механические характеристики материала, из которого они изготовлены. Старый материал проверяют на свариваемость. Обследование стальных конструкций необходимо проводить в соответствии с "Методическими указаниями по натурным обследованиям промышленных зданий, получивших разрушения в результате внешних воздействий" (ЦНИИПромзданий, Москва, 1986 г.).
Различают шесть основных способов усиления стальных конструкций:
- подведение новых конструкций и элементов;
- постановка дополнительных связей, ребер, диафрагм и распорок;
- усиление соединений элементов;
- увеличение сечений элементов;
- изменение конструктивной схемы;
- увеличение пространственной жесткости.
В большинстве случаев усиление конструкций достигается не одним из перечисленных выше способов, а их сочетанием.
УСИЛЕНИЕ ПОДВЕДЕНИЕМ НОВЫХ КОНСТРУКЦИЙ И ЭЛЕМЕНТОВ
Способ усиления подведением новых дополнительных конструкций или элементов наиболее эффективен. При этом сокращается расстояние между основными балками или уменьшается пролет. В первом случае уменьшается действующая нагрузка на балки, во втором - расчетные усилия.
Необходимо следить за тем, чтобы над вновь возводимой балкой (при железобетонном перекрытии) возникающий опорный изгибающий момент не вызвал образования трещин и разрушения плиты перекрытия.
Этот способ применяют и в случае, когда непосредственное усиление конструкции не представляется возможным.
УСИЛЕНИЕ ПОСТАНОВКОЙ ДОПОЛНИТЕЛЬНЫХ
СВЯЗЕЙ, РЕБЕР, ДИАФРАГМ И РАСПОРОК
Данный способ служит для повышения жесткости отдельных элементов конструкции. Например, постановка дополнительных поперечных и продольных ребер жесткости производится в случае недостаточной местной устойчивости стенок балок. Местную жесткость составных колонн увеличивают постановкой дополнительных диафрагм.
Принципы конструирования ребер диафрагм усиления такие же, как в новых конструкциях. При изменении знака усилия в стержне фермы усиление раскосов ферм осуществляется путем постановки дополнительных прокладок.
Для увеличения жесткости нижнего сжатого пояса ригелей рам в углах примыкания ригеля к стойкам устраивают подкосы (распорки).
При усилении конструкций путем увеличения их жесткости при помощи дополнительных ребер, диафрагм, распорок и связей необходимо: разгрузить конструкции, подводя под них временные опоры; проверить устойчивость усиливаемых конструкций (если необходимо увеличить устойчивость, ставят временные или дополнительные связи); обратить особое внимание на правильный порядок сварки во избежание больших усадочных напряжений и разрыва усиливаемых или рядом расположенных элементов.
УСИЛЕНИЕ СОЕДИНЕНИЙ ЭЛЕМЕНТОВ
Необходимость соединений (креплений) металлических конструкций может быть вызвана следующими причинами:
- увеличением несущей способности усиленной конструкции;
- увеличением несущей способности соединений элементов и самих конструкций в результате появления новых, менее благоприятных комбинаций нагрузок или значительного их увеличения;
- появлением недопустимых повреждений соединений (креплений) металлических конструкций в процессе их монтажа и эксплуатации;
- недопустимым отступлением от проекта при изготовлении конструкций.
Примерами усиления соединений могут служить усиление сварных соединений путем увеличения катетов или длины сварных швов, усиление заклепочных соединений установкой дополнительных заклепок или их заменой на новые и т.п.
УВЕЛИЧЕНИЕ СЕЧЕНИЙ ЭЛЕМЕНТОВ
Таким способом усиливают стержни ферм, ветви сквозных колонн, сплошные колонны, балки сплошного сечения и решетчатые ригели рам, прогоны, стойки рам, элементы различных пространственных конструкций и т.п. Присоединение усиливаемых элементов к старым при помощи сварки исключает возможность производства работ под полной эксплуатационной нагрузкой и требует частичной разгрузки усиливаемых конструкций, так как нагрев элементов в процессе сварки снижает несущую способность усиливаемых элементов.
Степень снижения несущей способности зависит от тепловложения, определяемого режимом сварки, от толщины и ширины элемента, от направления сварки и может достигать 15% для продольных швов и 40% для поперечных.
До принятия решения об усилении с применением сварки материал усиливаемых конструкций должен быть проверен на свариваемость. Оценку свариваемости производят по химическому составу через эквивалент углерода
где C, Mn, Ni, Cr, Mo, V - соответственно содержание углерода, марганца, никеля, хрома, молибдена, ванадия.
При Cэкв <= 0,25 - свариваемость хорошая;
Cэкв = 0,25 - 0,35 - свариваемость удовлетворительная;
Cэкв = 0,35 - 0,45 - свариваемость ограниченная.
После оценки свариваемости стали по эквиваленту углерода следует провести испытание на свариваемость по ГОСТ 23870-79. Соединения элементов конструкций из несвариваемой стали следует предусматривать на болтах.
Комбинированные соединения разной жесткости, например, заклепочные совместно со сварными, применять запрещается.
УСИЛЕНИЕ ИЗМЕНЕНИЕМ КОНСТРУКТИВНОЙ СХЕМЫ
Многочисленные приемы усиления этим способом разделяются по следующим основным признакам:
- по усилению без превращения в новые конструктивные формы. Например, увеличением жесткости какой-либо одной колонны в поперечной схеме пролетного сооружения цеха можно в ряде случаев достичь необходимого перераспределения усилий во всей конструкции;
- по усилению с частичным превращением в новые конструктивные формы. Например, установка затяжки в раме и защемление концов стоек превращает двухшарнирную раму в конструкцию с жестко заделанными концами и затяжкой;
- по усилению с полным превращением в новые конструктивные формы. Например, введение шпренгеля в однопролетный ригель превращает его в новую конструкцию - шпренгельную балку.
УСИЛЕНИЕ УВЕЛИЧЕНИЕМ ПРОСТРАНСТВЕННОЙ ЖЕСТКОСТИ
Для увеличения пространственной жесткости часто пользуются:
- постановкой дополнительных или перестановкой существующих связей;
- увеличением жесткости горизонтальных связевых дисков кровли или перекрытия;
- установкой новых или перестановкой существующих диафрагм жесткости;
- усилением существующих диафрагм жесткости.
Постановка дополнительных и перестановка существующих связей при усилении производится для увеличения общей пространственной жесткости сооружения, обеспечения совместной работы всех плоских рам; уменьшения гибкости сжатых элементов конструкций при их продольном изгибе, особенно из плоскости, а также растянутых элементов, если длина их очень велика.
Создание достаточно жестких горизонтальных дисков достигается при помощи связей в нижних поясах строительных ферм, но не в отдельных узких панелях, а по всей ширине пролетов в виде горизонтальных решетчатых рам.
КОНСТРУКТИВНЫЕ РЕШЕНИЯ ПО ЗАЩИТЕ
МЕТАЛЛОКОНСТРУКЦИЙ ОТ ВОЗДЕЙСТВИЯ ОГНЯ
Конструктивные решения по защите металлоконструкций от воздействия огня приведены в серии 400-0-17. Материалы серии содержат данные по конструктивным способам защиты несущих металлоконструкций промышленных зданий и сооружений от воздействия огня с целью повышения пределов огнестойкости защищаемых конструкций в соответствии с требованиями
СНиП II-2-80 "Противопожарные нормы проектирования зданий и сооружений".
Материалы предназначаются для проектирования и устройства огнезащитных облицовок колонн, ригелей, связей и узлов их сопряжений с использованием в качестве защитных слоев штукатурки, кирпича и листовых материалов и содержат рекомендации по применению огнезащитных облицовок, конструктивные решения по их устройству и технико-экономическую оценку вариантов защиты.
УСИЛЕНИЕ ВЕРХНЕГО ПОЯСА МЕТАЛЛИЧЕСКОЙ ФЕРМЫ
а) устранение погнутости путем выреза искривленного места и вставки нового элемента;
б) усиление искривленного элемента;
1 - новый элемент;
2 - существующий искривленный элемент;
3 - элемент усиления.
РЕКОМЕНДАЦИИ ПО УСИЛЕНИЮ ВЕРХНЕГО ПОЯСА МЕТАЛЛИЧЕСКОЙ ФЕРМЫ
Усиление верхнего пояса фермы, получившего искривление, может быть осуществлено следующими способами:
- устранение погнутости путем обратного выгиба механическим способом (струбцинами, домкратами, скобами и др.);
- вырезом искривленного и вставкой нового элемента;
- приваркой к искривленному элементу нового.
Сильно искривленные сжатые элементы 2 следует усилять путем выреза этого элемента и приварки на это место нового 1, состоящего, например, из сваренных в тавр трех пластин из листовой стали (см.
"а").
Усиление менее искривленных стержней 2 фермы следует производить с помощью составного тавра 3, соединенного сваркой с усиливаемым элементом (см.
"б"). При усилении составным тавром длина (шаг) сварных швов определяется по формуле:
где hшв - высота сварного шва.
Высоту сварных швов следует принимать 3 - 6 мм, но не более толщины свариваемых элементов.
Усиление в обоих случаях производится без демонтажа конструкций.
УСИЛЕНИЕ НИЖНЕГО ПОЯСА МЕТАЛЛИЧЕСКОЙ ФЕРМЫ
а) усиление элементов нижнего пояса при погнутости их вверх в плоскости фермы;
б) усиление элементов нижнего пояса при погнутости их вниз в плоскости фермы;
1 - существующий искривленный элемент;
2 - элемент усиления.
РЕКОМЕНДАЦИИ ПО УСИЛЕНИЮ НИЖНЕГО ПОЯСА МЕТАЛЛИЧЕСКОЙ ФЕРМЫ
Усиление элементов нижнего пояса фермы (растянутых стержней) производится в тех случаях, когда стрела прогиба

, где
l - свободная длина стержня.
Искривленные растянутые элементы могут быть усилены приваркой дополнительных стержней.
При погнутости элементов вверх в плоскости фермы (см.
"а") три дополнительных коротыша 2 привариваются сверху между уголками 1 и четыре стержня снизу к полкам уголков.
В случае возникновения погнутости вниз в плоскости фермы стержни 2 привариваются по два на каждой полке уголков 1 и три коротыша - между уголками.
Площадь поперечного сечения элементов усиления определяется по формуле: Fу = 0,5F, где F - площадь поперечного сечения искривленного элемента.
Высоту сварных швов следует принимать 3 - 6 мм, но не более толщины свариваемых элементов.
Длину сварных швов следует определять по формуле:
где hшв - высота сварного шва.
Усиление производится без демонтажа конструкций.
УСИЛЕНИЕ РАСКОСОВ И СТОЕК МЕТАЛЛИЧЕСКОЙ ФЕРМЫ
а) усиление элементов в сложных случаях искривления;
б) усиление элементов с местным смалкованием полки уголка;
1 - существующий искривленный элемент,
2 - элемент усиления.
РЕКОМЕНДАЦИИ ПО УСИЛЕНИЮ РАСКОСОВ
И СТОЕК МЕТАЛЛИЧЕСКОЙ ФЕРМЫ
Усиление раскосов и стоек 1 фермы в сложных случаях искривления (см.
"а") допустимо лишь в том случае, если величина перекоса "
l" не превышает размера вертикальной полки "
m". В противном случае искривленный уголок следует вырезать и заменить новым.
При усилении элементов фермы в сложных случаях искривления следует выполнять следующие требования:
- площадь поперечного сечения элемента усиления 2 должна быть не менее половины площади поперечного сечения искривленного усиливаемого элемента 1, т.е.
Fу >= 0,5 F;
- длина коротышей "а" определяется по формуле:
- расстояние между коротышами по длине искривленного элемента должно быть не более 300 мм;
- высоту сварных швов принимать 3 - 6 мм, но не более толщины свариваемых элементов.
Усиление допускается производить без демонтажа конструкций.
При усилении элементов фермы с местным смалкованием полки уголка (см.
"б") применяется полосовая сталь.
Размеры элементов усиления определяются по формулам:
b = 3,47·
rx;

;
где rx - радиус инерции относительно горизонтальной оси;
F - площадь сечения уголка стержня;
K - для равнополочных уголков - 0,50;
для неравнополочных уголков, составленных широкими полками - 0,40, а составленных узкими полками - 0,62.
УСИЛЕНИЕ ДЕФОРМИРОВАННОГО ЭЛЕМЕНТА
ВЕРХНЕГО ПОЯСА ФЕРМЫ ШПРЕНГЕЛЯМИ
б) предварительно-напряженный шпренгель.
1 - существующая ферма;
2 - раскос шпренгеля из уголка;
3 - стойка из уголка;
4 - косынка;
5 - болт М 15;
6 - тяж;
7 - швеллер [20,

;
8 - упорный стержень;
9 - накладки;
10 - пластинки;
11 - гайки.
РЕКОМЕНДАЦИИ ПО УСИЛЕНИЮ ДЕФОРМИРОВАННОГО ЭЛЕМЕНТА
ВЕРХНЕГО ПОЯСА ФЕРМЫ ШПРЕНГЕЛЯМИ
При деформировании элементов верхнего пояса в плоскости фермы на величину

усиление производится шпренгелями в том случае, когда усиление вставкой затруднено.
Усиление пояса фермы сварным шпренгелем (см.
"а") производится путем приварки к существующей ферме 1 с помощью косынок 4 раскоса 2 и стойки 3. Площадь поперечного сечения элементов усиления в этом случае должна быть равна площади поперечного сечения верхнего пояса. Минимальный профиль элементов усиления принимается 50 x 5 для равнополочных уголков ГОСТ 8509-72 и 63 x 40 x 5 для неравнополочных уголков ГОСТ 8510-72. Высота сварных швов принимается конструктивно 4 - 6 мм, но не более толщины свариваемых элементов. Размеры косынок принимаются с таким расчетом, чтобы длина швов привариваемых к ним стержней была не менее 100 мм.
При усилении предварительно напряженным шпренгелям (см.
"б") к верхнему поясу существующей фермы 1 прикрепляются на болтах 5 накладки 9. В зоне прогиба пояса закрепляются с помощью пластинок 10 и гаек 11 упорные стержни 8. К другому концу упорных стержней 8 прикрепляются на гайках 11 швеллеров 7. Затем к накладкам 9 привариваются тяжи 6, которые средней частью опираются через прорези на швеллер 7. Ввод шпренгеля в напряженное состояние производится одновременной затяжкой верхних и нижних гаек 11 упорных стержней 8.
В обоих вариантах работы по усилению производятся без демонтажа существующих конструкций.
УСИЛЕНИЕ ФЕРМЫ УСТРОЙСТВОМ НЕСУЩЕЙ КОНСТРУКЦИИ ФОНАРЯ
1 - фонарь;
2 - существующая колонна;
3 - существующая ферма;
4 - косынка;
5 - болт

;
6 - элементы усиления по расчету.
РЕКОМЕНДАЦИИ ПО УСИЛЕНИЮ ФЕРМЫ
УСТРОЙСТВОМ НЕСУЩЕЙ КОНСТРУКЦИИ ФЕРМЫ
Усиление устройством несущей конструкции фонаря рекомендуется для повышения несущей способности фермы в связи с увеличением нагрузки на покрытие и позволяет подвесить подъемно-транспортное оборудование.
Для осуществления данного способа усиления заранее изготавливается фонарь усиления 1, представляющий собой металлоконструкцию, состоящую из стоек и раскосов 6, скрепленных между собой косынками 4, болтами 5 и сваркой.
Фонарь 1 закрепляется в трех местах: на колонне 2 и на раскосах фермы 3. Крепление производится с помощью болтов и сварки.
Усиление фермы 1 создается за счет передачи части нагрузки на фонарь 1 и далее на колонну 2.
| | ИС МЕГАНОРМ: примечание. Взамен ГОСТ 380-71 в части марок и химического состава сталей Постановлением Госстандарта СССР от 30.03.88 N 924 с 1 января 1990 года введен в действие ГОСТ 380-88. Взамен ГОСТ 380-88 Постановлением Госстандарта России от 02.06.1997 N 205 с 1 января 1998 года введен в действие ГОСТ 380-94. | |
Материал конструкций: фасонки ферм - ВС ГСП5 ГОСТ 380-71; элементы ферм - ВСТ3пс6, ГОСТ 380-71.
Сварку рекомендуется выполнять электродами Э42
ГОСТ 9467-75. Катет швов - 6 мм, но не более толщины свариваемых элементов.
УСИЛЕНИЕ ФЕРМЫ ПОКРЫТИЯ ШАРНИРНО-СТЕРЖНЕВОЙ ЦЕПЬЮ
1 - шарнирно-стержневая цепь;
2 - фасонка S = S существ;
3 - упорная балка;
4 - упорная пластина - S = 12 - 16;
5 - фасонка - S >= 6;
6 - тяж по расчету.
РЕКОМЕНДАЦИИ ПО УСИЛЕНИЮ ФЕРМ ПОКРЫТИЯ
ШАРНИРНО-СТЕРЖНЕВОЙ ЦЕПЬЮ
Усиление ферм шарнирно-стержневой цепью рекомендуется для повышения их несущей способности при увеличении нагрузки на покрытие.
Все элементы усиления заготавливаются заранее и на месте производится только сборка.
Длина стержней цепи и положение узлов до и после натяжения определяются заранее.
Для осуществления данного способа усиления у верхних узлов фермы навариваются соединительные фасонки 2. Сбоку с обеих сторон верхнего пояса фермы привариваются упорные пластины 4 с отверстиями для цепей и фасонки 5. (см.
варианты "а", "б" и "в" узлов крепления цепей).
Упорные балки 3 привариваются к нижнему поясу фермы. В отверстия, заранее проделанные в упорных балках 3, пропускаются тяжи 6, имеющие на одном конце резьбу, а на другом - ушки для крепления цепи 1.
После навески цепи 1 на ферму все опорные узлы устанавливаются в проектное положение, при этом цепь должна быть несколько натянута, чтобы произошло обнятие всех узлов и выборка люфтов. Длина и натяжение цепи 1 при этом может корректироваться подтягиванием гаек в опорных узлах или постановкой соответствующих подкладок. Для контроля положения узлов между опорными узлами цепи 1 нужно натянуть струну.
УСИЛЕНИЕ МЕТАЛЛИЧЕСКИХ ВСПОМОГАТЕЛЬНЫХ БАЛОК И ПРОГОНОВ
а) пробоины в среднем участке стенки;
б) пробоины в полках без повреждения кромки;
в) трещины и пробоины по кромке полки;
1 - существующий элемент;
2 - элемент усиления;
3 - вспомогательная балка;
4 - колонна;
5 - главная балка.
РЕКОМЕНДАЦИИ ПО УСИЛЕНИЮ МЕТАЛЛИЧЕСКИХ
ВСПОМОГАТЕЛЬНЫХ БАЛОК И ПРОГОНОВ
Усиление металлических вспомогательных балок, получивших пробоины или трещины, производится путем постановки накладок.
Пробоины в среднем участке стенки балок 1 (см.
"а"), размером не превышающие 0,4
h, заделываются накладками, не выступающими за пределы высоты стенки. По длине даются припуски с обеих сторон на величину пробоины.
При появлении пробоин в полках без повреждения кромок (см.
"б"), не превышающих 20 мм, накладки 2 устанавливаются с припуском в 10 мм от кромки.
Если пробоины или трещины проходят по кромке полки, то накладки 2 также устанавливаются с припуском в 10 мм от кромки.
Рваные кромки пробоин должны быть зачищены автогеном или зубилом, острые входящие углы пробоин и концы трещин засверливаются.
Усиление по данному способу допускается производить без демонтажа конструкций.
УСИЛЕНИЕ МЕТАЛЛИЧЕСКИХ ГЛАВНЫХ БАЛОК ПЕРЕКРЫТИЙ
ПОСТАНОВКОЙ РЕБЕР ЖЕСТКОСТИ
а) погнутость (вмятины) стенки в нижней растянутой зоне без надрывов и трещин;
б) то же для верхней (сжатой) зоны;
1 - существующий элемент;
2 - элемент усиления;
3 - сварной шов;
4 - вспомогательная балка;
5 - колонна;
6 - главная балка.
РЕКОМЕНДАЦИИ ПО УСИЛЕНИЮ МЕТАЛЛИЧЕСКИХ ГЛАВНЫХ БАЛОК
ПЕРЕКРЫТИЙ ПОСТАНОВКОЙ РЕБЕР ЖЕСТКОСТИ
Усиление балок, получивших повреждения в виде погнутостей стенки в нижней растянутой (см.
"а") или в верхней сжатой (см.
"б") зонах, а также в виде выпучивания (см.
"в") производится механической правкой или постановкой дополнительных ребер жесткости 2 на сварке 3.
Допускаемые деформации:
- при погнутости стенки в нижней растянутой зоне d <= 0,25h;
- при погнутости стенки в верхней сжатой зоне d <= 0,1h;
- при выпучивании стенки b <= 0,003h.
Толщина ребер жесткости принимается 10 - 20 мм. При затруднении в подгонке ребер жесткости ребро с вогнутой стороны повреждений балки 1 в пределах до 1/3h можно, как исключение, плотно не подгонять.
Высоту сварных швов следует принимать в пределах 6 - 8 мм.
Усиление балок ребрами жесткости допускается производить без демонтажа конструкции при условии полной разгрузки (вывешивание) балки.
УСИЛЕНИЕ МЕТАЛЛИЧЕСКИХ ГЛАВНЫХ БАЛОК
ПЕРЕКРЫТИЙ НАКЛАДНЫМИ ПОЛОСАМИ
а) искривление элемента в плоскости балки;
б) искривление элемента из плоскости балки;
в) трещины в части или по всей высоте стенки;
1 - существующий элемент;
2 - элемент усиления;
3 - вспомогательная балка;
4 - колонна;
5 - главная балка
РЕКОМЕНДАЦИИ ПО УСИЛЕНИЮ МЕТАЛЛИЧЕСКИХ
ГЛАВНЫХ БАЛОК ПЕРЕКРЫТИЙ НАКЛАДНЫМИ ПОЛОСАМИ
Усиление главных балок перекрытий накладками применяется в случаях:
- искривления элемента в плоскости балки (см.
"а");
- искривления элемента из плоскости балки (см.
"б");
- наличия трещин в части или по всей высоте стенки (см.
"в");
- наличия пробоины в стенках (см.
"г").
Допускаются деформации: по случаю "а" до

пролета балки, по случаю "б"
f <= 0,2
b, по случаю "в" отклонений в размере трещин нет, по случаю "г" диаметр пробоины
d <= 75 мм.
Усиление балки 1 при наличии искривлений (см.
"а",
"б") производится путем разрезки в месте наибольшего выгиба, выправления и постановки стыковых накладок 2 в местах разреза.
При наличии трещин в стенке балки (см.
"в") засверливают концы трещин, а затем производят их перекрытие накладками 2.
Пробоины в балках 1 (см.
"г") рекомендуется заделывать накладками 2.
Усиление элементов накладками допускается проводить без демонтажа конструкций при условии полного разгружения последних.
УСИЛЕНИЕ МЕТАЛЛИЧЕСКИХ ГЛАВНЫХ БАЛОК,
ПОЛУЧИВШИХ СИЛЬНЫЕ ПОВРЕЖДЕНИЯ
а) разрыв участка нижней полки двутавра;
б) разрыв участка двутавра по всему сечению;
в) разрыв обоих поясов и стенки двутавра;
г) поврежденный участок двутавра;
1 - существующий элемент;
2 - элемент усиления;
3 - вспомогательная балка;
4 - колонна;
5 - главная балка.
РЕКОМЕНДАЦИИ ПО УСИЛЕНИЮ МЕТАЛЛИЧЕСКИХ ГЛАВНЫХ БАЛОК,
ПОЛУЧИВШИХ СИЛЬНЫЕ ПОВРЕЖДЕНИЯ
Восстановление сильно разорванных элементов производится путем приварки накладок.
При разрыве участка нижней полки двутавра 1 (см.
"а") накладка 2 приваривается снизу балки из расчета перекрытия повреждения на всем участке с припуском по длине с обеих сторон на ширину верхней полки.
В случаях разрывов участков двутавра 1 по всему сечению (см.
"б") накладки 2 привариваются на обе полки и на стойки с обеих сторон.
Повреждения в виде разрыва обоих поясов и стенки двутавра 1 (см.
"в") устраняются так же, как и в предыдущем случае
"б", приваркой накладок 2 к полкам и стойкам балки.
При разрыве обоих поясов двутавра 1 (см.
"г") могут быть применены накладки 2 как по размеру повреждения, так и с припуском внахлестку по длине.
УСИЛЕНИЕ МЕТАЛЛИЧЕСКИХ ГЛАВНЫХ БАЛОК,
ПОЛУЧИВШИХ СРЕДНЮЮ СТЕПЕНЬ ПОВРЕЖДЕНИЯ
а) разрыв верхнего пояса и стенки двутавра;
б) разрыв нижнего пояса и стенки двутавра;
в) местный разрыв поясов и стенки двутавра;
1 - существующий элемент;
2 - элемент усиления;
3 - вспомогательная балка;
4 - колонна;
5 - главная балка.
РЕКОМЕНДАЦИИ ПО УСИЛЕНИЮ МЕТАЛЛИЧЕСКИХ ГЛАВНЫХ БАЛОК,
ПОЛУЧИВШИХ СРЕДНЮЮ СТЕПЕНЬ ПОВРЕЖДЕНИЯ
При средней степени повреждения элементов металлических балок рекомендуется их усиление с помощью накладок.
В случае разрыва верхнего пояса и стенки двутавра 1 (см.
"а") приваривается накладка 1 на пояс сверху и две накладки на стенку двутавра по одной на каждую сторону.
При разрыве нижнего пояса и стенки двутавра 1 (см.
"б") восстановление производится приваркой накладок 2 к стенке и нижнему поясу.
Повреждения в виде местных разрывов (см.
"в") устраняются приваркой накладок 2 к местам повреждения.
Сварку элементов следует предусматривать с учетом мероприятий по подготовке восстанавливаемых конструкций к сварочным работам (зачистка, выравнивание краев разрывов элементов и т.д.).
Марку стали элементов усиления, заполняющих поврежденные участки, следует принимать по марке стали восстанавливаемой конструкции. Тип электродов, а также расчетные сопротивления сварных швов должны соответствовать маркам стали свариваемых элементов.
Площади стыковых накладок должны быть больше или равны площадям вырванных участков профилей.
Усиление разорванных элементов допускается производить без демонтажа конструкций при условии их полного разгружения.
УСИЛЕНИЕ БАЛОК ПЕРЕКРЫТИЯ ПОДКОСАМИ
а) балка, опирающаяся на железобетонную колонну;
б) балка, опирающаяся на металлическую колонну.
1 - существующая балка;
2 - подкосы;
3 - косынка;
4 - пластина из листовой стали;
5 - арматура железобетонной колонны;
6 - железобетонная колонна;
7 - металлическая колонна;
8 - монтажные болты.
РЕКОМЕНДАЦИИ ПО УСИЛЕНИЮ БАЛОК ПЕРЕКРЫТИЯ ПОДКОСАМИ
Усиление подкосами рекомендуется для повышения несущей способности балок при увеличении нагрузок на перекрытие.
Принимается следующий порядок работ. К существующей балке 1 привариваются элементы крепления 4 в виде пластины из листовой стали 4 и косынок 3. Затем производится установка раскосов 2, состоящих из двух уголков. Верхними концами раскосы 2 крепятся на сварке и болтах 8 к косынкам 3, а нижними - к колонне.
При креплении подкосов 2 к железобетонным колоннам 6 (см.
"а") обнажается продольная арматура 5 колонны, к которой привариваются пластины 4. К пластинам 4 привариваются косынки 3, а к ним - нижние концы подкосов 2.
В случае крепления подкосов 2 к металлическим колоннам 7 (см.
"б") приварка нижних концов усиливающих элементов производится через косынки 3.
Монтаж конструкций рекомендуется производить на болтах нормальной точности
ГОСТ 7798-70 диаметром

и на сварке.
Сварку следует выполнять электродами типа Э42
ГОСТ 9467-75. Катет сварных швов - по расчету.
В болтовых соединениях выполняются мероприятия против откручивания гаек (приварка или закернивания гайки к стержню болта).
УСИЛЕНИЕ РЕШЕТЧАТЫХ ПРОГОНОВ ПЕРЕКРЫТИЙ
МЕТАЛЛИЧЕСКИМИ СТОЙКАМИ
1 - решетчатые прогоны;
2 - распорки;
3 - стойки усиления;
4 - усиливаемый решетчатый прогон;
5 - верхний пояс стропильной фермы;
6 - верхний пояс решетчатого прогона;
7 - косынка - S = 6;
8 - накладка - S = 6;
9 - нижний пояс решетчатого прогона.
РЕКОМЕНДАЦИИ ПО УСИЛЕНИЮ РЕШЕТЧАТЫХ ПРОГОНОВ
ПЕРЕКРЫТИЙ МЕТАЛЛИЧЕСКИМИ СТОЙКАМИ
Вопрос об усилении прогонов (при отсутствии в них повреждений) может возникнуть в следующих случаях:
- замена существующего покрытия на новое, более тяжелое;
- установка на кровле какого-либо оборудования (например вентиляционного);
- пристройка к существующему зданию нового, более высокого, и, вследствие этого, увеличение снеговой нагрузки;
- недостаточная несущая способность прогонов при существующих нагрузках, увеличивающихся при эксплуатации (например при ремонте кровли).
Усиление решетчатых прогонов рекомендуется проводить в следующем порядке. К верхнему поясу 6 решетчатого прогона 1 между уголками привариваются косынки 7, к которым своими верхними концами привариваются стойки усиления 3, состоящие из уголков. Нижние концы стоек усиления в свою очередь привариваются к нижнему поясу решетчатого прогона 9. Для обеспечения необходимой жесткости связей между решетчатыми прогонами устанавливаются распорки 2 из уголков. Они привариваются к стойкам усиления 3 через косынки 7.
| | ИС МЕГАНОРМ: примечание. Взамен ГОСТ 380-71 в части марок и химического состава сталей Постановлением Госстандарта СССР от 30.03.88 N 924 с 1 января 1990 года введен в действие ГОСТ 380-88. Взамен ГОСТ 380-88 Постановлением Госстандарта России от 02.06.1997 N 205 с 1 января 1998 года введен в действие ГОСТ 380-94. | |
Для усиления конструкций рекомендуется применять сталь марок ВСт3КП.2 и ВСт.3пс6 по ГОСТ 380-71.
Работы по усилению следует производить с подмостей, соблюдая правила техники безопасности.
Сварка выполняется электродами типа Э-42
ГОСТ 9467-75. Катет швов - 6 мм.
УСИЛЕНИЕ БАЛОК ПЕРЕКРЫТИЙ
ПУТЕМ УСТРОЙСТВА МЕТАЛЛИЧЕСКИХ ФЕРМ
а) усиление треугольной фермой;
б) усиление раскосной фермой.
1 - существующий прогон;
2 - фермы усиления;
3 - элементы ферм усиления;
4 - косынка.
РЕКОМЕНДАЦИИ ПО УСИЛЕНИЮ БАЛОК ПЕРЕКРЫТИЯ
ПУТЕМ УСТРОЙСТВА МЕТАЛЛИЧЕСКИХ ФЕРМ
Усиление балок металлическими фермами можно рекомендовать для повышения их несущей способности при увеличении нагрузки на перекрытие.
Перед усилением заранее изготавливаются металлические фермы размером на пролет треугольной формы (см.
"а") или раскосные (см.
"б").
Затем с помощью монтажных приспособлений (подмостей, кранов, талей и т.п.) фермы 2 на сварке к прогону 1 через косынку 4.
| | ИС МЕГАНОРМ: примечание. Взамен ГОСТ 380-71 в части марок и химического состава сталей Постановлением Госстандарта СССР от 30.03.88 N 924 с 1 января 1990 года введен в действие ГОСТ 380-88. Взамен ГОСТ 380-88 Постановлением Госстандарта России от 02.06.1997 N 205 с 1 января 1998 года введен в действие ГОСТ 380-94. | |
Для усиления конструкций рекомендуется применять металл марки ВСт3ПС6 ГОСТ 380-71.
Сварку следует выполнять электродами Э42
ГОСТ 9467-75. Высота швов назначается конструктивно от 4 до 6 мм.
УСИЛЕНИЕ ЦЕНТРАЛЬНО-СЖАТЫХ КОЛОНН СКВОЗНОГО СЕЧЕНИЯ
СПОСОБОМ УВЕЛИЧЕНИЯ СЕЧЕНИЯ
1 - существующая колонна;
2 - усиливающий элемент в виде пластины;
3 - элемент усиления в виде швеллера;
4 - элемент усиления в виде уголка.
РЕКОМЕНДАЦИИ ПО УСИЛЕНИЮ ЦЕНТРАЛЬНО-СЖАТЫХ КОЛОНН
СКВОЗНОГО СЕЧЕНИЯ СПОСОБОМ УВЕЛИЧЕНИЯ СЕЧЕНИЯ
Данный способ усиления рекомендуется для повышения несущей способности колонн при увеличении нагрузок на несущие конструкции здания.
| | ИС МЕГАНОРМ: примечание. В официальном тексте документа, видимо, допущена опечатка: рисунки "а" и "б" отсутствуют. | |
Для осуществления этого способа могут быть применены металлические пластины 2 (см. "а"), швеллеры 3 или уголки 4 (см. "б"), привариваемые с определенным шагом по высоте к колонне 1.
Профили усиления выбираются по расчету.
Сварку рекомендуется производить по
ГОСТ 5264-80 электродами типа Э-42 по
ГОСТ 9467-75. Катет швов принимается конструктивно.
УСИЛЕНИЕ ЦЕНТРАЛЬНО-СЖАТЫХ КОЛОНН СПЛОШНОГО СЕЧЕНИЯ
СПОСОБОМ УВЕЛИЧЕНИЯ СЕЧЕНИЯ
1 - существующая колонна;
2 - усиливающий элемент в виде пластины;
3 - элемент усиления в виде швеллера;
4 - элемент усиления в виде уголка.
РЕКОМЕНДАЦИИ ПО УСИЛЕНИЮ ЦЕНТРАЛЬНО-СЖАТЫХ КОЛОНН
СПЛОШНОГО СЕЧЕНИЯ СПОСОБОМ УВЕЛИЧЕНИЯ СЕЧЕНИЯ
Способ увеличения сечения центрально-сжатых колонн сплошного сечения рекомендуется для повышения несущей способности последних при увеличении нагрузок на несущие конструкции зданий.
Для осуществления этого способа могут быть использованы пластины 2 швеллеры 3 или уголки 4, привариваемые с определенным шагом по высоте к усиливаемой колонне 1.
Профили усиления выбирают по расчету.
Сварку рекомендуется производить по
ГОСТ 5264-80 электродами типа Э42 по
ГОСТ 9467-75. Катет швов принимается конструктивно.
УСИЛЕНИЕ ВНЕЦЕНТРЕННО-СЖАТЫХ КОЛОНН
СПОСОБОМ УВЕЛИЧЕНИЯ СЕЧЕНИЯ
1 - существующая колонна;
2 - элементы усиления в виде пластины;
3 - элементы усиления в виде уголка;
4 - элементы усиления в виде швеллера.
РЕКОМЕНДАЦИИ ПО УСИЛЕНИЮ ВНЕЦЕНТРЕННО-СЖАТЫХ КОЛОНН
СПОСОБОМ УВЕЛИЧЕНИЯ СЕЧЕНИЯ
Усиление внецентренно-сжатых колонн способом увеличения сечения рекомендуется для повышения несущей способности последних при увеличении нагрузок на несущие конструкции зданий.
Для осуществления этого способа могут быть использованы пластины 2, уголки 3 или швеллеры 4, привариваемые с определенным шагом по высоте к усиливаемой колонне 1.
Профили усиления выбираются по расчету.
Сварку рекомендуется производить по
ГОСТ 5264-80 электродами типа Э-42 и по
ГОСТ 9467-75. Катет швов принимается конструктивно.
УСИЛЕНИЕ КОЛОНН С ПОМОЩЬЮ МЕТАЛЛИЧЕСКИХ ПРОФИЛЕЙ
1 - старое сечение;
2 - усиливающие элементы;
3 - колонна;
4 - подкрановая балка;
5 - ферма.
РЕКОМЕНДАЦИИ ПО УСИЛЕНИЮ СТОЕК И КОЛОНН
С ПОМОЩЬЮ МЕТАЛЛИЧЕСКИХ ПРОФИЛЕЙ
Усиление металлических стоек и колонн с помощью прокатных профилей применяется для повышения их несущей способности при увеличении нагрузок на перекрытие и покрытие, а также в том случае, если в процессе эксплуатации колонны и стойки потеряли более 10% площади сечения.
При усилении сварных соединений (см.
"а" - "г") к старому сечению привариваются усиливающие элементы 2 в виде листовой стали и прокатных профилей (уголков, швеллеров и т.д.).
Клепаные стойки и колонны усиливаются элементами 2, прикрепляемыми к старому сечению 1 с помощью заклепок (см.
"д", "е"). Возможны также варианты приваривания к заклепочным соединениям дополнительных сечений (см.
"ж").
Сквозные сечения 1 усиливаются в основном приваркой к ним листовых элементов 2 (см.
"з").
УСИЛЕНИЕ КОЛОНН С ПОМОЩЬЮ МЕТАЛЛИЧЕСКИХ ПРОФИЛЕЙ И ТРУБ
1 - старое сечение;
2 - усиливающие элементы;
3 - колонна;
4 - подкрановая балка;
5 - ферма.
РЕКОМЕНДАЦИИ ПО УСИЛЕНИЮ СТОЕК И КОЛОНН
С ПОМОЩЬЮ МЕТАЛЛИЧЕСКИХ ПРОФИЛЕЙ И ТРУБ
Усиление стоек и колонн с помощью профилей и труб производится в том случае, когда в процессе эксплуатации колонны или стойки потеряли более 10% площади сечения, а также для повышения несущей способности сжатых элементов при увеличении нагрузок на перекрытия и покрытия.
При усилении сварных соединений 1 усиливающими элементами, увеличивающими поперечное сечение стоек и колонн, могут быть:
Клепаные соединения могут быть усилены трубами на клепке и сварке (см.
"м") или трубами на клепке и двутаврами на сварке совместно (см.
"н").
Для всех приведенных выше вариантов новые элементы прикрепляются к старым по всей их длине.
УСИЛЕНИЕ ДЕФОРМИРОВАННЫХ МЕТАЛЛИЧЕСКИХ КОЛОНН
БЕТОНИРОВАНИЕМ И ДОПОЛНИТЕЛЬНЫМИ СТОЙКАМИ
а) усиление деформированной колонны бетонированием;
б) усиление погнутой колонны дополнительной стойкой;
1 - колонна;
2 - бетон М-200;
3 - дополнительная стойка;
4 - существующая стойка;
5 - пластина;
6 - крепежный уголок;
7 - консоль.
УСИЛЕНИЕ ДЕФОРМИРОВАННЫХ МЕТАЛЛИЧЕСКИХ КОЛОНН
БЕТОНИРОВАНИЕМ И ДОПОЛНИТЕЛЬНЫМИ СТОЙКАМИ
При деформации стоек 4 колонны 1 (см.
"а") последняя может быть усилена с помощью бетона. Для этого по периметру сечения колонны 1 устраивается временная опалубка. Затем в образовавшуюся полость заливается новый бетон 2. Опалубка изготавливается снизу вверх частями по мере заполнения ее бетоном 2. После затвердевания бетона колонна освобождается от опалубки.
Усиление погнутой колонны 1 (см.
"б") может быть произведено путем устройства дополнительной стойки 3. Работы по усилению с использованием предлагаемого способа рекомендуется проводить в следующем порядке. Сначала к стойкам швеллера колонны 1 привариваются с определенным шагом по высоте пластины 5. Затем к колонне 1 под консоль 7 подводится стойка 3 из двутавра, которая затем приваривается к пластинам 5 посредством крепежных уголков 6. Стойка 3 частично воспринимает нагрузку от подкрановой балки.
III. УСИЛЕНИЕ И ВОССТАНОВЛЕНИЕ КАМЕННЫХ
И АРМОКАМЕННЫХ КОНСТРУКЦИЙ
Каменные конструкции усиливают для восстановления и повышения их несущей способности и жесткости. Необходимость в усилении возникает в связи с расширением производства на существующих площадях, совершенствования технологии, внедрением новой техники и обусловленным этим увеличением нагрузки на конструкции. Такая необходимость возникает также в связи с повреждением конструкций при возведении, эксплуатации, взрывах, отвалах, пожарах, замачивании, просадке грунтов, при надстройке зданий и т.д.
Решение о технической возможности и экономической целесообразности усиления и восстановления каменных конструкций принимают в каждом конкретном случае в зависимости от эксплуатационных требований и состояния конструкций.
ВИДЫ ПОВРЕЖДЕНИЙ КАМЕННЫХ КОНСТРУКЦИЙ
И СПОСОБЫ ИХ УСТРАНЕНИЯ
Наиболее частыми видами повреждений каменных конструкций могут быть следующие
[8]:
- пробоины в стенах;
- наклон и выпучивание стен;
- повреждения несущих столбов и простенков;
- повреждения бутовых фундаментов;
- повреждения в виде трещин.
Усиление и постоянная стабилизация каменных конструкций выполняются следующими способами:
- расчисткой трещин с частичной перекладкой разрушенной кладки;
- постановкой металлических тяжей;
- возвращением в вертикальное положение конструкций с перекладкой части разрушенной кладки;
- постановкой контрфорсов;
- устройство железобетонных корсетов.
При временном восстановлении несущих каменных конструкций основным строительным материалом является дерево, при капитальном восстановлении - каменная кладка.
В качестве временных опор под несущие конструкции перекрытий применяются деревянные стойки.
В случае, когда восстанавливаемые конструкции должны быть быстро введены в эксплуатацию и кладка должна приобрести расчетную прочность в раннем возрасте, рекомендуется применять гипсовые растворы.
При восстановительных работах вновь возводимую кладку следует вести на растворе марки не ниже, чем марка раствора, на котором сложена кладка восстанавливаемой конструкции.
Для отдельных напряженных участков кладки может быть применено сетчатое армирование.
При капитальном восстановлении несущих каменных простенков и столбов могут быть применены металлические или железобетонные обоймы.
ОЦЕНКА НЕСУЩЕЙ СПОСОБНОСТИ КАМЕННЫХ КОНСТРУКЦИЙ
Несущая способность поврежденных армированных и неармированных каменных конструкций определяется методом разрушающих нагрузок на основании данных, полученных при обследовании, и фактических значений прочности (марок) кирпича, камней, растворов и предела текучести арматуры. При этом учитывают факторы, снижающие их несущую способность согласно "Методическим указаниям по натурным обследованиям промышленных зданий, получивших разрушения в результате внешних воздействий" (ЦНИИПромзданий, Москва, 1986 г.).
Поврежденные каменные и армокаменные конструкции подлежат временному усилению, если их несущая способность недостаточна для восприятия фактически действующих нагрузок на рассматриваемый элемент:

[31]
где
F - фактическая нагрузка на рассматриваемую конструкцию в момент обследования;
Kбп - коэффициент безопасности, принимаемый для неармированной кладки равным 1,7, для кладки с сетчатым армированием - 1,5;

- несущая способность конструкции без учета повреждений, определяемая по фактическим значениям площади сечения, гибкости и прочности материалов кладки;
Kmp - коэффициент снижения несущей способности каменных конструкций при наличии повреждений (трещин, сколов, повреждений при пожаре и т.п.), принимаемый: при повреждении кладки стен, столбов и простенков вертикальными трещинами, исключая трещины, вызванные температурными воздействиями и неравномерными осадками основания, - по табл. 8. При повреждении кладки опор балок ферм и перемычек - по
табл. 9, при повреждении кладки стен и столбов при пожаре - по
табл. 10.
Таблица 8
Коэффициент снижения несущей способности каменных
конструкций в зависимости от характера повреждения
N п/п | Характер повреждения кладки стен, столбов и простенков | Коэффициент при кладке Kmp |
неармированной | армированной |
1 | 2 | 3 | 4 |
1. | Трещины в отдельных кирпичах, не пересекающие растворные швы | 1 | 1 |
2. | Волосные трещины, пересекающие не более двух рядов кладки (длиной 15 - 18 см) | 0,9 | 1 |
3. | То же, при пересечении не более четырех рядов кладки (длиной до 30 - 35 см) при числе трещин не более четырех на 1 м ширины (толщины) стены, столба или простенка | 0,75 | 0,9 |
4. | Трещины раскрытием до 2 мм, пересекающие не более восьми рядов кладки (длиной до 60 - 65 см) при числе трещин не более четырех на 1 м ширины (толщины) стены, столба, простенка | 0,5 | 0,7 |
5. | То же, при пересечении более восьми рядов (длиной более 65 см) | 0 | 0,5 |
| | ИС МЕГАНОРМ: примечание. В официальном тексте документа, видимо, допущена опечатка: имеются в виду СНиП II-22-81 и пункт [27] раздела "Использованная литература", а не СНиП 22-81 и пункт [30]. | |
Несущую способность армированной и неармированной кладки без учета повреждений следует определять в соответствии с указаниями главы
СНиП 22-81 [30] путем подстановки в правые части формул, характеризующих различные виды напряженного состояния, среднего предела прочности кладки и предела текучести арматуры. При известной марке кирпича и раствора средний предел прочности кладки принимается равным удвоенной величине расчетного сопротивления кладки.
Таблица 9
Коэффициент снижения несущей способности при повреждении
кладки опор балок, ферм и перемычек
N п/п | Характер повреждения кладки опор | Коэффициент Kmp при кладке |
неармированной | армированной |
1. | Местное (краевое) повреждение кладки на глубину до 2 см (мелкие трещины, отслоения в виде лещадок) и образование вертикальных трещин по концам опор (или опорных подушек) балок, ферм и перемычек, пересекающих не более двух рядов кладки (длиной до 15 - 18 см) | 0,75 | 0,9 |
2. | То же, при пересечении трещинами не более четырех рядов кладки (длиной до 30 - 35 см) | 0,5 | 0,75 |
3. | Краевое повреждение кладки на глубину более 2 см и образование вертикальных и косых трещин по концам и под опорами (опорными подушками) балок и ферм, пересекающих более четырех рядов кладки (длиной более 30 см) | 0 | 0,5 |
Таблица 10
Коэффициент снижения несущей способности при повреждении
кладки стен и столбов при пожаре
Глубина повреждения кладки (без штукатурки) см | Коэффициент Kmp |
Стены толщиной 38 см и более при обогреве | Столбы при наибольшем размере сечения 38 см и более |
одностороннем | двухстороннем |
До 0,5 | 1 | 0,95 | 0,9 |
" 2 | 0,95 | 0,9 | 0,85 |
" 5 - 6 | 0,9 | 0,8 | 0,7 |
При отклонении от вертикали или при выпучивании стен в пределах этажа на величину до 1/3 толщины стены их несущая способность определяется с учетом фактических эксцентриситетов от вышележащей нагрузки; при большем отклонении или выпучивании стены, столбы и перегородки подлежат разборке или обязательному усилению.
При образовании вертикальных трещин в местах пересечения стен или при разрыве поперечных связей между стенами, колоннами и перекрытиями каркаса несущая способность и устойчивость стен при действии вертикальных и горизонтальных (ветровых) нагрузок определяется с учетом фактической свободной высоты стены между точками сохранившихся закреплений (связей).
При смещении прогонов плит перекрытий и покрытий на опорах проверяется несущая способность стен на местное смятие и внецентренное сжатие по фактической величине эксцентриситетов и площади опирания прогонов и плит перекрытий на стены.
При наличии в стенах больших обвалов или при обрушении одного или нескольких простенков нижележащих этажей оставшаяся часть стены может работать по схеме свода. В этом случае несущая способность крайних простенков или участков стен определяется с учетом перегрузки F от массы стен и перекрытий, находящихся выше обвалов, а также с учетом распора H, определяемого статическим расчетом.
ВРЕМЕННОЕ КРЕПЛЕНИЕ ОТКЛОНИВШЕЙСЯ СТЕНЫ
С ПОМОЩЬЮ ПОДКОСОВ
1 - подкосы d = 16 - 18 см; 2 - подкладка из коротыша;
d = 18 - 20 см; L = 20; 3 - клинья; 4 - расшивки;
5 - упорный столб (вкапывается в землю);
6 - уплотненный грунт; 7 - гвозди L = 150 мм, 6 - 7 шт.;
8 - скоба; 9 - упорный штырь; 10 - контрфорс;
11 - планки; 12 - лежень.
РЕКОМЕНДАЦИИ ПО ВРЕМЕННОМУ КРЕПЛЕНИЮ
ОТКЛОНИВШЕЙСЯ СТЕНЫ С ПОМОЩЬЮ ПОДКОСОВ
Временное крепление стен рекомендуется при отклонении их от вертикального положения. Оно может быть выполнено с помощью одного или системы подкосов.
Крепление стен с помощью одного подкоса 1 выполняется в следующем порядке (см.
"а"). Сначала в грунте делается углубление, в которое укладываются подкладки из деревянного коротыша 2. К стене под углом 60° приставляется подкос 1 с прибитым к нему клином 3. Производят закрепление подкоса 1 упорным штырем 9, а затем подклинку нижним клином 3.
При более сильном отклонении стены рекомендуется использовать систему подкосов (см.
"б"). Для этого у стены создают уплотненный грунт 6, на который устанавливается контрфорс 10. Затем в грунт вкапывают упорный столб 5 вплотную к контрфорсу 10. Упорный столб 5 соединяется с контрфорсом 10 гвоздями. К верхней и средней части стойки контрфорса 10 прибиваются гвоздями 7 деревянные планки 11. К контрфорсу 10 крепятся с помощью скоб 8 подкосы 1 вплотную к планкам 11. Подкосы 1 скрепляются расшивками 4 с помощью гвоздей 7.
УСИЛЕНИЕ ТОРЦЕВОЙ КИРПИЧНОЙ СТЕНЫ
1 - контрфорс;
2 - фундамент под контрфорс;
3 - арматурная сетка фундамента под контрфорс;
4 - существующая кирпичная стена;
5 - бетон марки 50;
6 - существующие затяжки;
7 - швеллер;
8 - тяжи;
9 - упорные шайбы;
10 - упор из

.
РЕКОМЕНДАЦИИ ПО УСИЛЕНИЮ ТОРЦЕВОЙ КИРПИЧНОЙ СТЕНЫ
При отклонении торцевых кирпичных стен от вертикального положения возможно их усиление с помощью кирпичных контрфорсов (см.
"а") и тяжей (см.
"б").
Усиление стен кирпичными контрфорсами рекомендуется проводить в следующем порядке. Производят выбор грунта на глубину не менее 80 см. Затем ведется послойное бетонирование бетоном марки 100 с тщательным уплотнением. При бетонировании очередного слоя укладывается арматурная сетка 3. Возводятся кирпичные контрфорсы 1 из красного кирпича М75 на растворе М50.
Для усиления с помощью тяжей в торцевых стенах просверливают отверстия

, а в продольной стене пробивают отверстия по размерам [30. На стенах закрепляют тяжи 8 и швеллеры 7. В местах опирания тяжей 8 на кирпичную стену рекомендуется подложить уголки 10 с целью исключения хрупких деформаций в кладке и лучшего обжатия участков кладки. Производится натяжка затяжки равномерно с двух сторон. Натяжение затяжки 8 контролируется по ее провисанию, которое не должно превышать 25 мм.
СОЗДАНИЕ ПОПЕРЕЧНОЙ СВЯЗИ ОТКЛОНИВШИХСЯ СТЕН
а) здание без промежуточных перекрытий;
1 - связи из круглого железа

;
2 - гайка; 3 - шайба;
4 - деревянный брус 16 x 14 см; 5 - пилястра.
РЕКОМЕНДАЦИИ ПО СОЗДАНИЮ ПОПЕРЕЧНОЙ СВЯЗИ
ОТКЛОНИВШИХСЯ СТЕН
Создание поперечных связей относится к креплениям, носящим постоянный характер, и применяется для восстановления стен, отклонившихся от вертикального положения.
Для установки связей 1 необходимо в плоскости горизонтальных швов кладки на уровне верхнего покрытия (см.
"а") или междуэтажных перекрытий (см.
"б") просверлить отверстия. Через эти отверстия пропускаются поперечные металлические связи 1, которые крепятся к специальным балкам на наружной стене.
Возможны два варианта крепления металлических связей. В первом случае при наличии пилястр 5 в последних пробивают пазы, в которые вставляют балку из швеллера с заранее просверленными отверстиями, а в швеллер вбивают деревянный брус 4 с отверстием. На концы металлических связей 1 с резьбой одеваются шайбы 3 и навинчиваются гайки 2.
По второму варианту на тяжи 1 с наружной стороны одеваются швеллеры N 16, в которые вставляются швеллеры N 14. В швеллерах заранее просверливаются отверстия.
Натяжение связей 1 в обоих вариантах осуществляется затягиванием гаек 2.
ВРЕМЕННОЕ КРЕПЛЕНИЕ ОТКЛОНИВШЕЙСЯ СТЕНЫ
1 - расчалки

; 2 - натяжная муфта;
3 - круглое железо

; 4 - перекрытия;
5 - отслоившаяся стена.
РЕКОМЕНДАЦИИ ПО ВРЕМЕННОМУ КРЕПЛЕНИЮ
ОТКЛОНИВШЕЙСЯ СТЕНЫ
При восстановлении стен, отклонившихся от вертикали, следует предусматривать их стягивание металлическими тяжами с натяжными устройствами.
Для осуществления предлагаемого способа в отклонившейся стене 5 пробиваются отверстия, в которые пропускаются расчалки 1 (см.
"а"). Расчалки закрепляются на противоположных стенах с помощью упоров 3 и располагаются по осям ферм или балок в непосредственной близости от их опор. Возвращение стен 5 в первоначальное вертикальное положение производится закручиванием натяжных муфт 2.
Отклонившиеся стены близкостоящих зданий (см.
"б") могут быть закреплены с помощью распорок, приваренных к металлическим стойкам, установленных вплотную к стенам.
[15], с.с. 132 - 134, 136
КРЕПЛЕНИЕ СТЕН С ПОМОЩЬЮ СИСТЕМЫ ТЯЖЕЙ
а) хомутами-скрутками к поперечной стене;
б) хомутами-скрутками к колонне;
в) стальными стяжками (расчалками);
г) растяжками с двух сторон;
д) растяжками с одной стороны и установкой распорок.
1 - поперечина

; 2 - проволочные скрутки

;
3 - расчалки

; 4 - натяжные муфты; 5 - стойка
h = 16 - 28 см;
6 - растяжка

; 7 - столб
h = 20 - 25 см; 8 - упор

;
9 - распорки; 10 - простенок; 11 - трещина; 12 - колонна.
РЕКОМЕНДАЦИИ ПО КРЕПЛЕНИЮ СТЕН С ПОМОЩЬЮ СИСТЕМЫ ТЯЖЕЙ
При возникновении трещин в элементах каменных конструкций крепление стен можно производить с помощью скруток, расчалок и распорок-растяжек. В случае появления трещин в поперечной стене (см.
"а") к простенкам 10 снаружи здания прибивают поперечины 1, к которым одним концом прикрепляются скрутки 2, а другим концом они укрепляются на брусках, вбитых в поперечную стену. Крепление поперечных стен к наружным осуществляется закручиванием скруток 2. Если трещины обнаружены в наружной стене (см.
"б"), их усиление производится устройством скруток 2, закрепляемых на поперечинах 1, прибитых к простенкам 10 и колоннам 12. Колонны дополнительно крепятся к поперечине 1 расчалкой 3. Усиление стен производится стягиванием скруток 2 и расчалок 3.
При отклонении одной из стен высотой более 12 м от вертикали она закрепляется с помощью стальных стяжек (см.
"в"). Для этого необходимо осуществлять по верху стен крепление тяжами (расчалками) 3. Тяжи 3 с натяжными муфтами 4, как правило, устанавливаются в проемах по обе стороны простенков. По концам они крепятся к стенам и стойке 5 с помощью поперечин 1 и скруток 2. Натяжение расчалок (тяжей) 3 производится натяжными муфтами 4.
При наклоне двух параллельных стен в противоположные стороны (см.
"г") их следует скреплять деревянными сжимами (поперечинами) 1 и горизонтальными стяжками 6 из круглой стали через 4 - 5 м по высоте. При большей протяженности и высоте стен следует применять временные расчалки 3 с натяжными муфтами 4, прикрепляемые к нижней части соседних зданий, фундаментам или столбам 7, врытым в землю с прочной анкеровкой 8.
Если отсутствует возможность постановки растяжек 3 с двух сторон здания (см.
"д"), следует осуществлять одностороннее крепление стен растяжками 3. При этом, для придания зданию большей жесткости, между продольными стенами устанавливаются диафрагмы 9 в виде подкосно-раскосной системы.
КРЕПЛЕНИЕ СТЕН ОДНОЭТАЖНЫХ ЗДАНИЙ МЕТАЛЛИЧЕСКИМИ ТЯЖАМИ
б) двустороннее при выпучивании стены;
1 - тяж; 2 - муфта натяжения; 3 - подкладка; 4 - траверса 14 - 16.
РЕКОМЕНДАЦИИ ПО КРЕПЛЕНИЮ СТЕН ОДНОЭТАЖНЫХ ЗДАНИЙ
МЕТАЛЛИЧЕСКИМИ ТЯЖАМИ
При отклонении стен одноэтажных зданий от вертикали можно рекомендовать их усиление металлическими тяжами.
В зависимости от степени и места разрушения стены применяются следующие способы усиления тяжами:
- одностороннее;
- двустороннее;
- в середине здания.
При одностороннем креплении и в середине здания (см.
"а" и
"в") рекомендуется следующий порядок производства работ. В стене просверливают отверстия

под тяжи 1 по высоте через 700 мм. В просверленные отверстия пропускают тяжи

. Производят крепление тяжей к наружной стене стяжными гайками с установкой с наружной поверхности металлических подкладок 3 размером 100 x 100 x 10 мм. Устанавливают стяжные муфты 2 и производят натяжение тяжей.
Двустороннее крепление рекомендуется при выпучивании стены (см.
"б"). Для осуществления этого способа в стене просверливаются отверстия под тяжи 1 и стяжные болты. Диаметр отверстий 30 мм, шаг по высоте 700 мм. Затем устанавливают наружные траверсы 4 из швеллеров [10. Производят крепление швеллеров к наружной стене стяжными гайками с установкой по обеим сторонам швеллеров металлических шайб 3 размером 122 x 122 x 20 мм с заранее просверленными отверстиями под болты и тяжи. В просверленные отверстия пропускают тяжи

и закрепляют с установкой гаек. Устанавливают муфты 2 и производят натяжение.
Анкеровку тяжей во всех приведенных вариантах усиления производят на расстоянии не менее 2-х метров от трещины и только к капитальной стене (крепление к перегородкам запрещается).
Отверстия с установленными тяжами тщательно заделываются цементным раствором "B-50".
После монтажа наружных швеллеров 4 и подкладки 3 их необходимо обернуть сеткой ГОСТ 5336-67 и оштукатурить цементным раствором марки "50".
КРЕПЛЕНИЕ ВЫПУЧИВШЕЙСЯ СТЕНЫ МЕТАЛЛИЧЕСКИМИ ТЯЖАМИ
1 - стена; 2 - тяж; 3 - натяжная муфта; 4 - траверса

; 5 - подкладка.
УСИЛЕНИЕ РЯДОВЫХ И КЛИНЧАТЫХ ПЕРЕМЫЧЕК
1 - кладка; 2 - швеллер; 3 - болт; 4 - штукатурка по сетке.
УСИЛЕНИЕ УГЛА СТЕНЫ ЗДАНИЯ МЕТАЛЛИЧЕСКИМИ БАЛКАМИ
1 - металлические балки

; 2 - стяжные болты
d = 16 - 20 мм
РЕКОМЕНДАЦИИ ПО КРЕПЛЕНИЮ ВЫПУЧИВШЕЙСЯ СТЕНЫ
МЕТАЛЛИЧЕСКИМИ ТЯЖАМИ
Отклонившиеся и выпучившиеся стены и перегородки зданий стягиваются металлическими тяжами и связями 2 диаметром 16 - 20 мм с натяжными устройствами (муфтами, болтами) 3. Расстояние между тяжами 4 - 6 м, на один тяж или связь должна приходиться площадь стены не более 20 м2.
В одноэтажных зданиях напрягаемые тяжи устанавливаются по осям ферм или несущих балок покрытий в непосредственной близости от их опор; в многоэтажных зданиях тяжи устанавливаются внутри помещений в уровне перекрытий.
Стены, выпучивающиеся в наружную сторону, стягиваются тяжами 1 диаметром 16 - 20 мм в уровне перекрытий. Концевые упоры тяжей и связей выполняются в виде металлических шайб 5 из листового железа толщиной 10 - 12 мм, опорных балок или траверс из швеллеров 4. Концы тяжей и связей должны иметь нарезку с гайками для их натяжения при помощи натяжных устройств. Выпрямление отклонившихся и выпучившихся стен нужно предусматривать до допустимой величины прогиба (1/6 толщины стены).
РЕКОМЕНДАЦИИ ПО УСИЛЕНИЮ РЯДОВЫХ И КЛИНЧАТЫХ ПЕРЕМЫЧЕК
Поврежденные рядовые и клинчатые перемычки усиливаются подводкой стальных или железобетонных балок 2. Балки укладываются в штрабы, вырубленные с двух сторон стены 1 и стягиваются между собой болтами 3 или хомутами.
Металлические балки оштукатуриваются по металлической сетке 4 или на них наносится антикоррозионное покрытие.
РЕКОМЕНДАЦИИ ПО УСИЛЕНИЮ УГЛА СТЕНЫ ЗДАНИЯ
МЕТАЛЛИЧЕСКИМИ БАЛКАМИ
Усиление сильно поврежденных или отклонившихся от вертикальных углов здания осуществляется постановкой с двух сторон стены в уровне перекрытий металлических балок из швеллеров 1, стянутых болтами 2. Балки рекомендуется укладывать в борозды, вырубленные с двух сторон или по поверхности стены, после чего их следует стянуть болтами и заделать цементным раствором по металлической сетке.
КРЕПЛЕНИЕ СТЕН МНОГОЭТАЖНЫХ ЗДАНИЙ МЕТАЛЛИЧЕСКИМИ ТЯЖАМИ
б) снаружи здания;
г) вариант укладки тяжей в штрабу.
1 - тяж; 2 - муфта натяжения; 3 - металлическая подкладка;
4 - швеллер N 16 - 20; 5 - уголок N 12 - 16.
РЕКОМЕНДАЦИИ ПО КРЕПЛЕНИЮ СТЕН МНОГОЭТАЖНЫХ ЗДАНИЙ
МЕТАЛЛИЧЕСКИМИ ТЯЖАМИ
Для повышения жесткости стен и предотвращения развития в них трещин, вызванных изгибом и сдвигом ограждающих конструкций, последние рекомендуется крепить с помощью металлических тяжей.
Тяжи 1 диаметром 20 - 36 мм опоясывают здание или часть его в уровне перекрытий. На углах здания и выступах ставятся вертикальные уголки 5, к которым привариваются тяжи 1 (см.
узел "Г"). Тяжи 1 укладываются по поверхности стен (см.
"а",
"в") или в штрабы сечением примерно 70 x 80 мм (см.
"г"), которые после натяжения тяжей заделываются цементным раствором марки 100. В противоположных углах здания концы тяжей 1 крепятся стяжными гайками, упирающимися на металлические подкладки 3 размером 70 x 80 мм. "А" (см.
узел "А"). Поперечные тяжи также крепятся гайками с подкладками 3 (см.
узел "Б").
| | ИС МЕГАНОРМ: примечание. Текст дан в соответствии с официальным текстом документа. | |
Натяжение производится посредством стяжных муфт одновременно по всему контуру (см.
узел "В"). Натяжение тяжей рекомендуется выполнять после предварительного нагрева их паяльными лампами или автогеном. Для тяжей, установленных зимой, в летнее время рекомендуется производить дополнительное натяжение. Натяжение производится вручную с помощью рычага длиной 1,5 м с усилием 300 - 400 Н на длительный конец рычага. Общее усилие должно быть примерно 50 кН. Натяжение считается достаточным, если тяж не имеет провесов и при простукивании издает чистый звук высокого тона. Рекомендуется степень натяжения по возможности определять приборами (индикаторами), установленными на тяжах. Усилие, на которое подбирается сечение тяжей, определяется по следующей формуле 97
[31] N = 0,2
[R]l·
g, где
R - расчетное сопротивление кладки, Па;
l - длина стены, м;
g - толщина стены, м.
УСИЛЕНИЕ СТЕН НАКЛАДНЫМИ ПОЯСАМИ
УСИЛЕНИЕ СТЕН РАЗГРУЗОЧНЫМИ БАЛКАМИ И СКОБАМИ-СТЯЖКАМИ
1 - накладной пояс ([14); 2 - тяж

; 3 - существующее перекрытие; 4 - пояс [14; 5 - анкер

; 6 - скобы-стяжки; 7 - трещина; 8 - бетон М-100; 9 - цементный раствор марки 50; 10 -

.
РЕКОМЕНДАЦИИ ПО УСИЛЕНИЮ СТЕН НАКЛАДНЫМИ ПОЯСАМИ
Усиление кирпичных стен накладными поясами рекомендуется для предотвращения дальнейшего развития деформаций.
Для осуществления этого способа в стене с определенным шагом пробивают отверстия. Тяжами 2 на цементном растворе 9 к стене крепятся накладные пояса 1 из швеллеров. Тяжи пропускают через все здание под перекрытием 3, а затем производят их затяжку.
РЕКОМЕНДАЦИИ ПО УСИЛЕНИЮ СТЕН РАЗГРУЗОЧНЫМИ БАЛКАМИ
И СКОБАМИ-СТЯЖКАМИ
Разгрузочные балки используются при местных деформациях, при необходимости перераспределить нагрузки с деформированных участков на прочные участки стен и фундаментов и для предотвращения дальнейшего раскрытия трещин.
Разгрузочные балки 4 обычно ставят в уровне верха фундамента или в уровень оконных перемычек первого или подвального этажа. Рекомендуются разгрузочные балки из швеллеров N 24. По углам стены к разгрузочным балкам 4 привариваются уголки 10.
При толщине стен более 64 см используются двусторонние балки 4 (см. сеч. 2-2), связываемые между собой болтами 5 диаметром 20 мм через 2,0 мм. Односторонние разгрузочные балки анкеруют стержнями из круглой стали 5 через 2,0 м (см. сеч. 2a-2a). Минимальная длина балки 2,0 м. При установке балок 4 необходимо соблюдать следующие условия: глубина штрабы для балки не должна быть меньше ширины полки, отверстие для анкеров сверлить только дрелью. После монтажа конструкций штрабу заделать бетоном 8 "М-100" с тщательным уплотнением.
Скобы-стяжки 6 устанавливают на трещине 7 в каждом этаже. В качестве скоб-стяжек используют обрезки проката (швеллер N 24), а в качестве анкеров 5 - болты диаметром 20 мм. Анкер-болт устанавливается не ближе 7,0 см от трещины и заделывается после монтажа цементным раствором 9 марки 50.
УСИЛЕНИЕ СТЕН ЖЕЛЕЗОБЕТОННЫМИ БАЛОЧНЫМИ ПОЯСАМИ
(АВТ. СВИД. N 918408)
1 - сборные железобетонные плиты проектируемого перекрытия;
2 - арматурные стержни

;
3 - арматурные стержни по расчету;
4 - анкер.
РЕКОМЕНДАЦИИ ПО УСИЛЕНИЮ СТЕН ЖЕЛЕЗОБЕТОННЫМИ
БАЛОЧНЫМИ ПОЯСАМИ
Усиление железобетонными балочными поясами по контуру кирпичных стен в уровне перекрытий 1 применяется для более равномерного распределения нагрузки по длине стены, восприятия растягивающих усилий от неравномерной осадки и служит опорным элементом для сборных железобетонных перекрытий при замене существующих.
Устройство балочного пояса осуществляется следующим образом. Разбирают старое или разрушенное перекрытие с обеих сторон; отбивают полосу штукатурки шириной 50 см; расчищают вертикальные и горизонтальные швы кладки на глубину 1 - 1,5 см; пробивают отверстия в кладке размером 20 - 25 см для установки соединительных перемычек. Очищенные поверхности и пробитые отверстия промывают водой под давлением; устанавливают опалубку, арматурные каркасы, состоящие из стержней 2, 3.
Арматурные каркасы балочных поясов, примыкающих к наружным поперечным стенам, крепятся к последним посредством перемычек с помощью анкеров 4. Производится бетонирование поясов и соединительных перемычек при обильно увлажненной кладке. При этом применяют бетон класса не ниже B15.
Ширина балочного пояса 120 - 170 см в зависимости от толщины стены. Он состоит из двух ветвей, соединенных перемычками. Балочный пояс может иметь одну ветвь, если устраивается на наружных самонесущих стенах.
УСИЛЕНИЕ СТЕН АРМИРОВАННОЙ РАСТВОРНОЙ ОБОЙМОЙ
1 - трещины;
2 - арматурная сетка
3 - Z-образный анкер из стали

.
РЕКОМЕНДАЦИИ ПО УСИЛЕНИЮ СТЕН АРМИРОВАННОЙ
РАСТВОРНОЙ ОБОЙМОЙ
Усиление армированной растворной обоймой производится при разрушении стен в виде сквозных трещин на всю ее толщину.
Рекомендуется следующий порядок производства работ. Сначала отбивают старую штукатурку с обеих сторон стены. Затем производят расчистку трещин 1 и швов кладки на глубину 10 - 15 мм. Очищенную поверхность стен промывают водой под давлением. На поверхности стены закрепляют арматурные сетки 2 при помощи Z-образных анкеров 3, устанавливаемых в ранее просверленные отверстия в шахматном порядке с шагом

. Сетку устанавливают на 10 см от стены. Перед торкретированием поверхность стены обильно увлажняют водой. Тщательно заполняют просверленные отверстия цементным раствором марки 50. По установленным сеткам 2 производят торкретирование стены. Толщина штукатурки должна быть 30 - 40 мм.
КРЕПЛЕНИЕ СТЕНЫ ПРИ ПРОБОИНЕ
а) в средней части здания;
б) в угловой части здания;
1 - стойки; 2 - клинья; 3 - лежень;
4 - подкладка; 5 - раскосы;
6 - трещины в стене; 7 - маяки.
РЕКОМЕНДАЦИИ ПО КРЕПЛЕНИЮ СТЕНЫ ПРИ ПРОБОИНЕ
При временном восстановлении стен заделку пробоин допускается осуществлять путем установки (при необходимости) крепления в виде стоек 1 или раскосов 5 и обшивки их досками, фанерой, асбестоцементными листами, кровельной сталью и т.п. Стойки 1 следует опирать на лежень 3, а сверху - на подкладки 4 и расклинить клиньями 2. Оконные проемы нижних этажей также подпираются на стойки 4. Стойки могут быть изготовлены из дерева, металлических труб и других подручных материалов.
Для наблюдения за состоянием трещин 6 устраивают маяки 7.
При заделке пробоин допускается использовать кирпич и кирпичный бой, полученные при разборке разрушенных зданий, а также другие материалы. При этом марку раствора следует предусматривать не ниже марки раствора существующей кладки. Для сокращения сроков твердения (до одних суток) в летнее время допускается добавлять в раствор гипс.
УСИЛЕНИЕ ПРОСТЕНКОВ ЖЕЛЕЗОБЕТОННЫМИ
И МЕТАЛЛИЧЕСКИМИ СЕРДЕЧНИКАМИ
а) вариант усиления железобетонными сердечниками;
б) вариант усиления стальными сердечниками.
1 - проем;
2 - пространственный арматурный каркас;
3 - бетон марки 150;
4 - швеллеры по расчету.
РЕКОМЕНДАЦИИ ПО УСИЛЕНИЮ ПРОСТЕНКОВ ЖЕЛЕЗОБЕТОННЫМИ
И МЕТАЛЛИЧЕСКИМИ СЕРДЕЧНИКАМИ
При небольших размерах простенков и необходимости значительно увеличить на них нагрузку устраивают в вертикальных бороздах сердечник из железобетона или в виде металлического профиля.
В случае усиления железобетонными сердечниками (см.
"а") в простенке 1 пробивают вертикальные борозды с одной (вариант 1) или с двух (вариант 2) сторон стены, в которые сначала закладывают пространственный арматурный каркас 2, а затем производят бетонирование образовавшейся полости бетоном 3.
При усилении стальными сердечниками (см.
"б") в простенке 1 также пробиваются вертикальные борозды. В борозды сначала устанавливают швеллеры 4, а затем производят бетонирование бетоном 3 образовавшейся полости.
В обоих случаях перед началом работ по усилению рекомендуется произвести временное крепление простенка.
УСИЛЕНИЕ ПОВРЕЖДЕННЫХ ПРОСТЕНКОВ МЕТАЛЛИЧЕСКИМИ
ОБОЙМАМИ И БАНДАЖАМИ
а - при ширине простенка
b <= 1,5
d;
1 - уголок; 2 - планка; 3 - полоса; 4 - болт; 5 - стальной бандаж; 6 - перемычка.
РЕКОМЕНДАЦИИ ПО ПЕРЕКЛАДКЕ ПОВРЕЖДЕННЫХ ПРОСТЕНКОВ
С ИСПОЛЬЗОВАНИЕМ ВРЕМЕННЫХ СТОЕК
1 - стойка; 2 - подкладка; 3 - клинья; 4 - лежень;
5 - перемычка; 6 - балка.
РЕКОМЕНДАЦИИ ПО УСИЛЕНИЮ ПОВРЕЖДЕННЫХ ПРОСТЕНКОВ
МЕТАЛЛИЧЕСКИМИ ОБОЙМАМИ И БАНДАЖАМИ
Кирпичные простенки, имеющие повреждение в виде трещин, выбоин и т.п. необходимо усилять обоймами и бандажами. Перед усилением обоймами кладку с частыми вертикальными трещинами (с раскрытием более 0,2 мм) необходимо зачеканить цементным раствором. Стальные обоймы выполняются из вертикальных уголков 1, устанавливаемых по углам простенка на растворе. К ним привариваются хомуты 2 из полосовой стали или арматуры. Зазоры зачеканиваются цементным раствором. Расстояние между хомутами должно быть не более меньшего размера сечения простенка
(вариант "а"). При соотношении сторон сечения 1,5 и более
(вариант "б") в середине большей стороны устанавливаются дополнительные связи 3 и стяжные болты 4. Все стальные элементы необходимо защитить от коррозии оштукатуриванием цементным раствором слоем 25 - 30 мм по металлической сетке.
РЕКОМЕНДАЦИИ ПО ПЕРЕКЛАДКЕ ПОВРЕЖДЕННЫХ ПРОСТЕНКОВ
С ИСПОЛЬЗОВАНИЕМ ВРЕМЕННЫХ СТОЕК
Перекладка простенков и опор перемычек и балок производится при сильной степени разрушения кирпичной кладки.
При перекладке простенки предварительно разгружаются путем устройства в соседних проемах под перемычками 5 временных креплений в виде деревянных или металлических стоек с клиньями 3, подкладками 2 и лежнями 4.
Разгружающие стойки 1 или металлические рамы на клиньях 3 устанавливаются также под прогоны, балки 6, фермы и плиты перекрытия, опирающиеся на перекладываемый простенок.
Количество и сечение стоек и рам устанавливается расчетом. Для многоэтажных зданий стойки на разных этажах временных креплений при опирании их на перекрытия располагаются на одной вертикальной оси.
При перекладке простенков должно быть обеспечено плотное прилегание новой кладки и вышележащей старой (без зазора), зазоры плотно зачеканить раствором 100 - 150.
Разборка временных креплений производится при наборе раствором 50% расчетной прочности.
Перекладка простенков производится каменными материалами повышенной прочности (М75 и более) на быстротвердеющем растворе марки 100 - 150 с укладкой в швы в необходимых случаях арматурных сеток.
УСИЛЕНИЕ ПРОСТЕНКОВ МЕТАЛЛИЧЕСКИМИ
И ЖЕЛЕЗОБЕТОННЫМИ ОБОЙМАМИ
а) усиление металлическими обоймами;
б) усиление железобетонными обоймами.
1 - проем;
2 - накладка - 50 x 5;
3 - планка - 35 x 5 - 60 x 12;
4 - уголок по расчету;
5 - уголок 50 x 5;
6 - цементный раствор марки 75, толщиной 25 - 30 по металлической сетке;
7 - бетон марки не ниже 150;
8 - стяжной болт;
9 - швеллер;
10 - хомуты

;
11 - стержни

;
12 - простенок
РЕКОМЕНДАЦИИ ПО УСИЛЕНИЮ ПРОСТЕНКОВ МЕТАЛЛИЧЕСКИМИ
И ЖЕЛЕЗОБЕТОННЫМИ ОБОЙМАМИ
Усиление простенков обоймами рекомендуется при разрушении стен в виде сквозных трещин, местных повреждений кладки и т.д.
При усилении, металлическими обоймами (см.
"а") прежде всего удаляют старую разрушенную штукатурку со всех сторон простенка 12. Заготавливают сварные плоские каркасы по ширине простенка 12, состоящие из продольных уголков 4, планок 3 и устанавливают их с двух сторон усиливаемого элемента стены. Установленные на место каркасы стягивают струбцинами и к ним приваривают накладки 2 с шагом

(где
d - толщина стены). После чего струбцины убирают. Накладки 2 крепятся к планкам 3 посредством стяжных болтов, пропускаемых в сквозные отверстия, проделанные в стене. Простенки оштукатуривают цементным раствором 6 марки 75 по сетке ГОСТ 5336-67. Продольные уголки 4 каркаса устанавливают на цементном растворе марки 100. При ширине простенка более 2
d или более 100 см устанавливают дополнительные связи в виде поперечных уголков 5.
В случае усиления простенков 12 железобетонными обоймами (см.
"б") рекомендуется следующий порядок производства работ. Отбивают штукатурку со всех сторон простенка 12. Заготавливают сварные арматурные каркасы, состоящие из продольных стержней 11, стянутых хомутами 10, и устанавливают их по периметру простенка 12. Закрепляют в простенке швеллер 9 на стяжном болте 8. Оштукатуривают поверхность простенка 12 или заливают бетоном на мелком щебне зазор между опалубкой и простенком.
УСИЛЕНИЕ КЛИНЧАТЫХ И АРОЧНОЙ ПЕРЕМЫЧЕК
МЕТАЛЛИЧЕСКИМИ ПРОФИЛЯМИ
а) усиление клинчатой перемычки при пролете до 1,5 м;
б) усиление клинчатой перемычки при пролете 1,5 - 2,0 м;
в) усиление арочной перемычки;
1 - трещины;
2 - планки - 100 x 6;
3 - уголки 100 x 63 x 10;
4 - металлические подвески - 100 x 6;
5 - уголки 125 x 80 x 10;
6 - стяжные болты = 20;
7 - стойки из уголков 100 x 8;
8 - опора - 120 x 6;
9 - арочный лист - = 6;
10 - новая кладка клинчатых перемычек;
11 - металлические полосы - 100 x 6
РЕКОМЕНДАЦИИ ПО УСИЛЕНИЮ КЛИНЧАТЫХ И АРОЧНЫХ ПЕРЕМЫЧЕК
МЕТАЛЛИЧЕСКИМИ ПРОФИЛЯМИ
Перемычки из кирпича (клинчатые или арочные) в случае разрушения в виде трещин и повреждения кладки усиливаются подведением снизу металлических профилей.
При усилении рядовых перемычек пролетом 1,5 сначала удаляют старую кладку. Под нижний ряд кирпича и слоя раствора укладывают арматуру из круглой стали диаметром 6 мм из расчета по одному стержню на каждые полкирпича толщины стены (если по проекту не требуется сильное армирование). Стержни рядовых перемычек должны заканчиваться крюками и заделываться в кладку простенков не менее, чем на 0,25 м. Кладка клинчатых перемычек 11 должна производиться с двух сторон от пят к шелюге с клинообразными швами толщиной не менее 5 мм внизу и не более 25 мм вверху перемычки. Затем в проемах устанавливают два уголка 3, скрепляемых планками с шагом 400 мм.
В случае усиления рядовых перемычек пролетом более 1,5 м (см.
"б") дополнительно устанавливаются металлические подвески из полосовой стали 4, которые снизу привариваются к уголкам 5, а в верхней части крепятся к кладке стяжными болтами 6, отверстия под которые выполняются сверлением.
Для усиления срочных перемычек (см.
"в") в проеме устанавливают стойки из уголков 7 на опорах 8, к которым привариваются металлические полосы 11, закрепляемые другим концом на стене посредством стяжных объектов 6. К стойкам 7 приваривается арочный лист 9.
УСИЛЕНИЕ СТОЛБОВ ОБОЙМАМИ
в - кирпичной, армированной кладкой.
1 - кирпичный столб; 2 - стальные уголки; 3 - планки; 4 - продольная арматура

; 5 - хомуты

; 6 - новая кладка, армированная сетками через 3 ряда.
УСИЛЕНИЕ ПИЛЯСТР ОБОЙМАМИ
а - стальные;
1 - стальные уголки; 2 - соединительные планки; 3 - болт

; 4 - упорная шайба 10 - 12 мм; 5 - зачеканка цементным раствором; 6 - хомут

; 7 - арматурная сетка

; 8 - бетон; 9 - бетонные "сухарики"; 10 - продольные стержни

.
РЕКОМЕНДАЦИИ ПО УСИЛЕНИЮ СТОЛБОВ ОБОЙМАМИ
Ослабленные трещинами, выбоинами столбы можно укреплять обоймами следующих типов:
- металлической;
- железобетонной;
- кирпичной из армированной кладки.
Металлические обоймы (см.
"а") состоят из стальных уголков 2, устанавливаемых по углам кирпичного столба 1 и связанных на сварке хомутами из полосовой или круглой стали 3. Зазоры зачеканиваются цементным раствором. Расстояние между хомутами должно быть не более меньшего размера сечения простенка или меньше 50 мм. Для усиления кладку с частыми вертикальными трещинами (с раскрытием более 0,2 мм) необходимо зачеканить цементным раствором. Все остальные элементы следует защитить от коррозии оштукатуриванием цементным раствором толщиной 25 - 30 мм на металлической сетке.
Железобетонные обоймы (см.
"б") выполняются из бетона марки 150 с армированием вертикальными стержнями 4 и сварными хомутами 5 с шагом <= 15 см. Толщина обоймы по расчету от 4 до 12 см. При соотношении сторон столбов более 1,5 в середине большей стороны устанавливаются дополнительные связи.
Армокирпичные обоймы (см.
"в") выполняются из отборного кирпича высокой прочности (марки 100 и более) на цементном растворе марок 100 - 150 (с армированием кладки 6 сетками

или отдельными стержнями

через 2 - 3 ряда).
Зазор между новой и старой кладкой заделывается жидким цементным раствором. Толщина кладки и ее армирование принимаются по расчету. При этом несущая способность старой неповрежденной или инъектированной кладки учитывается полностью.
При значительном ослаблении старой кладки трещинами вся нагрузка передается на новую кладку, работа старой кладки при этом не учитывается.
РЕКОМЕНДАЦИИ ПО УСИЛЕНИЮ ПИЛЯСТР ОБОЙМАМИ
Усиление поврежденных пилястр, несущих нагрузку от подкрановых балок и ферм, производится стальными или железобетонными обоймами. Обоймы обрамляют пилястру с трех сторон с пропуском стяжных хомутов через стену.
При устройстве стальных обойм в стене пробивают отверстия и через них пропускают хомуты 6 на болтах. Затем к пилястрам подводится металлическая обойма, состоящая из сваренных между собой стальных уголков 1 и соединительных планок 2. Обоймы прикрепляются к пилястрам, пропущенными через стены болтами 3. Болты стягиваются гайками. Между гайками и наружной поверхностью стены устанавливаются упорные шайбы 4. Пространство между пилястрами и обоймой зачеканивают цементным раствором 5.
Железобетонные обоймы (см.
"б") устраиваются в следующем порядке. В стене пробиваются отверстия, в которые пропускаются через определенный шаг по высоте пилястр хомуты 6, снабженных по концам резьбой. Производят сварку хомутов с продольными стержнями 10. Между пилястрами и хомутами вбивают бетонные "сухарики" 9, после чего хомуты затягиваются снаружи с помощью гаек и стальных упорных шайб 4. К хомутам подводится арматурная сетка 7, которая закрепляется на хомутах 6. Устраивается временная опалубка и в образовавшуюся полость заливается бетон 8.
ВОССТАНОВЛЕНИЕ ПОВРЕЖДЕННЫХ КИРПИЧНЫХ СТОЛБОВ
С ПОМОЩЬЮ СТОЕК
1 - кирпичный столб; 2 - ригель; 3 - стойка; 4 - подкладка (при двух стойках); 5 - клинья; 6 - лежень.
РЕКОМЕНДАЦИИ ПО ВОССТАНОВЛЕНИЮ ПОВРЕЖДЕННЫХ
КИРПИЧНЫХ СТОЛБОВ С ПОМОЩЬЮ СТОЕК
При сильном повреждении кирпичных столбов, сопровождающемся потерей ими несущей способности, столбы могут быть усилены с применением стоек путем замены старой кладки на новую.
Процесс усиления проводится в следующем порядке. Сначала столбы 1 предварительно разгружаются путем устройства в соседних проемах под перемычками или ригелями 2 временных креплений в виде деревянных или металлических стоек 3 на клиньях 5. Между ригелем 2 и стойкой 3 устраиваются прокладки 4. Производится разборка старой кладки, а затем возведение новой. После набора раствором кладки 50% расчетной прочности производят разборку временных креплений и удаление стоек 3.
Количество и сечение стоек и рам устанавливается расчетом. Для многоэтажных зданий стойки на разных этажах временных креплений при опирании их на перекрытия располагаются на одной вертикальной оси.
Разборка поврежденной старой кладки производится с соблюдением мер безопасности после проверки и контрольной подбивки клиньев. Использование для разборки кладки пневматических молотков не разрешается.
При перекладке столбов должно быть обеспечено плотное прилегание новой кладки к вышележащей старой (без зазора); неизбежные при ведении работ зазоры между новой и старой кладками должны плотно зачеканиваться раствором М-100 - 150.
УСИЛЕНИЕ СТАЛЬНЫМИ ТЯЖАМИ ПЕРЕСЕЧЕНИЯ СТЕН,
ОСЛАБЛЕННОГО ТРЕЩИНОЙ ИЛИ ШВОМ
1 - шайба 75 x 75 x 8; 2 - тяжи

; 3 -

или швеллер N 10 - 12; 4 - перекрытие; 5 - стена.
РЕКОМЕНДАЦИИ ПО УСИЛЕНИЮ СТАЛЬНЫМИ ТЯЖАМИ ПЕРЕСЕЧЕНИЯ СТЕН,
ОСЛАБЛЕННОГО ТРЕЩИНОЙ ИЛИ ШВОМ
При появлении в месте стыковки наружной и внутренней стен трещин или при ослаблении стыковочного шва следует произвести стягивание стен между собой.
Для осуществления этого способа усиления в уровне перекрытия 4 снаружи здания выбивается штраба, в которую вводят тяжи 2 диаметром 20 - 24 мм с шайбами 1 размером 75 x 75 x 8.
Под стеной 5 пробивается проем, в который вводят уголки 3, закрепляемые на перекрытии 4 цементным раствором или с помощью дюбелей. Тяжи 2 закрепляются внутри здания уголком 3. Гайки затягивают до отказа. После чего шов инъецируется цементным раствором марки 100, а штраба снаружи закладывается кирпичом на цементном растворе.
Стальные тяжи, связи, хомуты и обвязки, находящиеся внутри помещений с влажным и мокрым режимом, должны иметь антикоррозионное покрытие.
IV. УСИЛЕНИЕ И ВОССТАНОВЛЕНИЕ ФУНДАМЕНТОВ
Усиление фундаментов оказывается необходимым в следующих случаях:
- при увеличении нагрузок на фундаменты в связи с надстройкой зданий, их реконструкцией, изменением технологических процессов или режима их работы;
- при строительстве новых сооружений, возведение которых сказывается на прочности фундаментов;
- при изменении гидрологических условий вследствие изменения уровня грунтовых вод;
- при недостаточной прочности материалов фундаментов вследствие низкого качества работ;
- при появлении недопустимых для зданий деформаций и повреждений в виде трещин и изломов.
В инженерной практике нередко сочетают различные методы усиления фундаментов. При этом область целесообразного применения каждого из этих методов может быть определена, исходя из технического состояния существующего фундамента, размера ожидаемого (после реконструкции) увеличения на него нагрузки, материала и конструкции фундамента, физико-механических свойств грунтов основания, степени стесненности рабочей площади, стоимость усиления и пр.
Предпочтение необходимо отдавать наиболее простым и дешевым методам, дающим хорошие результаты усиления.
Практика показала, что наиболее радикальным способом усиления нарушенных и ослабленных бутовых и кирпичных фундаментов является устройство одно- или двусторонних бетонных рубашек с последующим инъектированием раствора в кладку фундаментов через оболочку рубашек.
Часто необходимость усиления фундаментов вызывается увеличением нагрузки вследствие реконструкции или надстройки здания. В зависимости от того, насколько сильно возрастает нагрузка, усиление фундаментов может быть сплошным или местным (прерывистым). При этом для усиления увеличиваются размеры подошвы фундаментов с сохранением отметки ее заложения. Наиболее сложным является усиление фундаментов в углах и пересечениях. Поэтому местное усиление следует проектировать вне углов и пересечений, на наиболее нагруженных прямых участках и в лестничных клетках. Места усиления на отдельных участках размещаются по возможности симметрично, а их размеры определяются расчетом.
УСИЛЕНИЕ БУТОБЕТОННЫХ ФУНДАМЕНТОВ ПУТЕМ УКРЕПЛЕНИЯ
ИЛИ ПЕРЕКЛАДКИ
1 - инъектор; 2 - просверленные в фундаменте шахты; 3 - инъектионные трубки для нагнетания раствора с внутренним
d = 25 мм; 4 - арматура

; 5 - сетка

, шаг 100 x 100; 6 - отверстия
d = 37 для инъекторов; 7 - уголки каркаса

; 8 - болты

; 9 - анкер

, шаг 1 - 1,5 м; 10 - утрамбованный грунт; 11 - сетка; 12 - бетон.
РЕКОМЕНДАЦИИ ПО УСИЛЕНИЮ БУТОБЕТОННЫХ ФУНДАМЕНТОВ
ПУТЕМ КРЕПЛЕНИЯ ИЛИ ПЕРЕКЛАДКИ
Для укрепления кладки фундамента, выполненного из бутового или валунного камня с большими пустотами, рекомендуется двухсторонняя ее цементация (см.
"а"). Работы, связанные с осуществлением этого способа необходимо проводить в следующем порядке. С двух сторон отрывают траншеи. В кладке просверливают скважины, в которые закладывают инъектионные трубки
d = 25 мм. Предварительно скважины промывают водой. После укрепления инъектионных трубок траншеи засыпают грунтом с послойным его уплотнением.
При наличии подвала отпадает необходимость рытья траншеи, так как доступ к фундаменту возможен со стороны подвала (см.
"б").
Для укрепления кладки фундамента при наличии сквозных вертикальных трещин может быть применен способ цементации с устройством железобетонной рубашки (см.
"в").
В местах установки уголков каркаса 7 поверхность фундамента выравнивается цементным раствором и устанавливаются уголки и сжимные болты.
Сверлятся отверстия 6 до середины фундамента в шахматном порядке на расстоянии 0,5 - 1 м. В отверстия устанавливают инъектионные трубки, укрепляют их в кладке и нагнетают раствор под давлением 2 - 5 атм. К уголкам 7 приваривают арматуру, затем заштукатуривают по сетке.
Усиление фундамента железобетонной обоймой (см.
"г") применяется для безрастворной кладки при плохом состоянии фундаментов. Такая обойма рекомендуется, когда прочность нижележащих участков фундамента ниже, чем у вышележащих. Работа производится захватками по 2 - 2,5 м в следующем порядке. Сначала разбирается тротуар и пол, отрываются траншеи на захватку. Затем в фундаменте пробивается штраба, производится чистка фундамента, устанавливается опалубка, арматура и анкерные связи. Производится бетонирование с уплотнением бетона с мелким гравием пластичной консистенции.
После отвердения бетона через 6 - 7 дней опалубка снимается. Производится гидроизоляция.
Если при вскрытии фундамента обнаруживается выветривание раствора в швах кладки и нарушение формы фундамента с выклиниваем отдельных камней (см.
"д"), рекомендуется его перекладка. Работа состоит из следующих операций.
В кирпичной кладке пробиваются борозды для заводки в них разгрузочных балок. Борозды пробиваются под тычковым рядом кладки на 2 - 3 ряда выше обреза фундамента. Балки укладываются на цементный раствор и стягиваются болтами, пропущенными через отверстия, просверленные в кладке стены. Затем вырывается котлован с креплением стенок. Разборку кладки производят отбойными молотками. Бутовый камень очищается и используется вторично, новая кладка производится на цементном растворе.
УСИЛЕНИЕ ЛЕНТОЧНЫХ ФУНДАМЕНТОВ ПУТЕМ РАСШИРЕНИЯ ПОДОШВЫ
1 - усиливаемый фундамент; 2 - распределительные балки; 3 - 1 или

, шаг 2000 в шахматном порядке; 4 - опоры балок I 16 - 18; 5 - бетон М-150; 6 - уплотненный щебнем грунт; 7 - сетка

с ячейкой 150 x 150; 8 - новая кладка; 9 - штраба 150 x 150; 10 - зачеканка раствором; 11 - штыри-связи

в шахматном порядке; 12 - уголки длиной 500 мм; 13 - стержни

.
РЕКОМЕНДАЦИИ ПО УСИЛЕНИЮ ЛЕНТОЧНЫХ ФУНДАМЕНТОВ ПУТЕМ
РАСШИРЕНИЯ ПОДОШВЫ
Данный способ усиления рекомендуется для увеличения несущей способности фундаментов при увеличении нагрузки вследствие реконструкции или надстройки здания, а также для восстановления фундаментов, получивших повреждения от механических и химических воздействий.
Отличительная особенность метода состоит в введении в работу новой дополнительной площади естественного основания.
Начинаются работы с разборки отмостки и полов.
Затем откапываются траншеи с обеих сторон стены до подошвы существующего фундамента, при необходимости раскрепляются стенки траншеи.
Грунт на дне каждой траншеи в пределах уширяемой части подошвы уплотняется вручную или вибротрамбовками, причем, в грунт втрамбовываются не менее двух слоев щебня 6.
При уширении фундаментов бутовой кладкой (см.
"а") предварительно вырубаются штрабы для сопряжения старой 1 и новой 8 кладки. Старая кладка 1 очищается от грязи металлическими щетками, продувается сжатым воздухом и смачивается водой. Новая бутовая кладка 8 ведется "под лопату" с обязательной перевязкой швов. Для лучшей передачи давления на общий фундамент между подошвой стены и верхним обрезом фундамента закладываются поперечные металлические балки 2 (двутавр или швеллер 16 - 18), которые опираются на опорные балки такого же профиля 4. Затем эти балки расклиниваются с кладкой и замоноличиваются бетоном 5.
В случае уширения фундаментов бетонными приливами (см.
"б") в существующем фундаменте 1 вырубаются штрабы и поверхность очищается от пыли и грязи. Распределительные балки 3 устанавливаются в двух уровнях с шагом 2 м в шахматном порядке. К низу балок привариваются уголки длиной 0,5 м. Затем вся конструкция обетонируется бетоном 5.
Уширение фундаментов железобетоном (см.
"в") содержит сходные с вариантом "б" операции по пробивке штраб 9 и распределительных балок 2, 4. Однако здесь перед бетонированием устанавливается арматурная сетка

с ячейкой 150 x 150 мм.
Расширение фундамента железобетоном (см.
"г") отличается от варианта "в" отсутствием распределительных балок. Для лучшего соединения старой 1 и новой 5 части фундамента в существующем фундаменте устраиваются штрабы 9 и пробиваются отверстия с шагом 1 м. В эти отверстия вставляются стержни 13, к которым привариваются арматурные сетки 7 с ячейкой 150 x 150 мм. Затем вся конструкция обетонируется бетоном 5.
При сильно развитом существующем ленточном фундаменте 1 (см.
"д") расширение можно производить без штраб. После отрывки траншей, очистки фундамента 1 и установки распределительных балок 2, 4 производится бетонирование банкета 5 до низа опорных балок 4. Через 7 суток производится подклинка балок металлическими обрезками, зачеканка пространства между балкой 2 и стеной раствором 10.
При ширине уступов существующего фундамента менее 12 см (см.
"е") для лучшей связи старой части фундамента 1 с новой 5 забиваются штыри 11 в шахматном порядке через 2,5 см по высоте и 1,5 м по длине фундамента. Устройство распределительных балок 2, 4 и обетонирование производится аналогично описанным выше методам.
УСИЛЕНИЕ ФУНДАМЕНТОВ ОТДЕЛЬНО СТОЯЩИХ ОПОР
РАСШИРЕНИЕМ ПОДОШВЫ
1 - существующий фундамент; 2 - железобетонная обойма колонны;
3 - стойки каркаса колонны из уголков; 4 - железобетонный банкет;
5 - арматурный каркас банкета; 6 - разгружающая балка; 7 - стойки каркаса фундамента из уголков; 8 - щебеночная подготовка;
9 - пластины
РЕКОМЕНДАЦИИ ПО УСИЛЕНИЮ ФУНДАМЕНТОВ
ОТДЕЛЬНО СТОЯЩИХ ОПОР РАСШИРЕНИЕМ ПОДОШВЫ
Усиление фундаментов отдельно стоящих опор расширением подошвы выполняется одновременно с усилением колонны при устройстве ее обоймы 2.
Работы по расширению подошвы фундамента рекомендуется начинать с выемки грунта вокруг существующего фундамента. Затем устраивается каркас для существующего фундамента 1, состоящий из стоек 7, скрепленных поперечными пластинами 9. Каркас фундамента соединен с каркасом колонны 3 сваркой. К стойкам 7 привариваются разгружающие консоли 6. Поверхность существующего фундамента подвергается тщательной очистке от грязи. Производится установка арматурного каркаса 5 и бетонирование железобетонного банкета 4.
Армирование гибких железобетонных банкет делается по расчету. Для бетонирования применяется бетон М 150. Разгружающие консоли 6 для расширения подошвы колонны применяются только металлические. При расширении подошвы отдельно стоящих опор работы выполняются поочередно со всех сторон колонны. Последующую штрабу выбирают только после тщательной заделки предыдущей. При выполнении работ необходимо обратить внимание на особую тщательность уплотнения щебеночной подготовки 8 под подошвой банкета 4 и бетона в штрабе после установки разгружающей консоли 6.
УСИЛЕНИЕ ФУНДАМЕНТА СТАКАННОГО ТИПА ЖЕЛЕЗОБЕТОННОЙ РУБАШКОЙ
С ЧАСТИЧНЫМ УСИЛЕНИЕМ КОЛОННЫ
1 - усиливаемый фундамент; 2 - железобетонная рубашка; 3 - колонна; 4 - обойма колонны; 5 - бетонная подготовка; 6 - арматура усиливаемого фундамента; 7 - арматура рубашки.
УСИЛЕНИЕ ЛЕНТОЧНОГО ФУНДАМЕНТА РУБАШКОЙ БЕЗ УСИЛЕНИЯ КОЛОННЫ
1 - усиливаемый фундамент; 2 - железобетонная рубашка;
3 - арматура рубашки; 4 - насечка.
РЕКОМЕНДАЦИИ ПО УСИЛЕНИЮ ФУНДАМЕНТА СТАКАННОГО ТИПА
ЖЕЛЕЗОБЕТОННОЙ РУБАШКОЙ С ЧАСТИЧНЫМ УСИЛЕНИЕМ КОЛОННЫ
Данный способ применяется для повышения несущей способности фундаментов при увеличении нагрузки, недостаточной несущей способности грунтов, а также для восстановления поврежденного фундамента.
Усиление включает в себя следующий комплекс работы. Устраивается бетонная подготовка 5. Обнажается существующая арматура 6 усиливаемого фундамента 1. Производится стыковка рабочих стержней рубашки 7 на сварке со старой арматурой 6. Дополнительная арматура 7 устанавливается по граням фундамента. Выводят рубашку на нижнюю часть колонны 3 в виде обоймы 4 на величину пятикратной толщины обоймы, но не менее большей стороны колонны 3. Производится бетонирование рубашки 2 фундамента и обоймы 4 колонны.
Толщина и высота рубашки определяются конструктивно с учетом расстояния в свету между охватывающими хомутами и усиливаемым фундаментом, диаметром арматуры и величиной защитного слоя с учетом требований технологии укладки бетона.
РЕКОМЕНДАЦИИ ПО УСИЛЕНИЮ ЛЕНТОЧНОГО ФУНДАМЕНТА РУБАШКОЙ
БЕЗ УСИЛЕНИЯ КОЛОННЫ
Усиление ленточного фундамента рубашкой 4 без усиления колонны рекомендуется при его повреждении в процессе эксплуатации.
Перед усилением поврежденные участки фундамента 1 освобождаются от слабого бетона. На гранях фундамента устанавливается арматура 3 конструктивно в один или два ряда по его периметру.
Для обеспечения прочной связи между старым и новым бетоном поверхность существующего фундамента обрабатывается насечкой 4, пескоструйным аппаратом, огнем, увлажнением бетона и обработкой его цементным тестом или применением клеевых композиций. На установленную арматуру 3 укладывается новый бетон.
УСИЛЕНИЕ ФУНДАМЕНТА СТАКАННОГО ТИПА НАРАЩИВАНИЕМ
а) вариант увеличения площади фундамента с дополнительной расчетной арматурой
1 - усиливаемый фундамент; 2 - наращиваемый железобетон;
3 - арматура усиливаемого фундамента; 4 - арматура наращивания;
5 - колонна
б) вариант усиления при помощи железобетонных балок, опирающихся на дополнительные плиты
1 - усиливаемый фундамент; 2 - наращиваемый железобетон; 3 - поперечные балки усиления; 4 - металлические коротыши; 5 - плиты усиления; 6 - столбики; 7 - клинья; 8 - арматура усиливаемого фундамента; 9 - арматура плит уширения; 10 - колонна
УСИЛЕНИЕ ЛЕНТОЧНОГО ФУНДАМЕНТА ЖЕЛЕЗОБЕТОННОЙ РУБАШКОЙ
С ОБОЙМОЙ ДЛЯ КОЛОННЫ ПО ВСЕЙ ВЫСОТЕ
1 - усиливаемый фундамент; 2 - рубашка; 3 - арматура рубашки;
4 - усиливаемая колонна; 5 - обойма колонны.
РЕКОМЕНДАЦИИ ПО УСИЛЕНИЮ ФУНДАМЕНТОВ СТАКАННОГО ТИПА
НАРАЩИВАНИЕМ
При увеличении нагрузки на фундаменты или недостаточной несущей способности грунтов производится уширение его подошвы.
В случае применения дополнительной арматуры (см.
"а") обнажается арматура 3 усиливаемого фундамента 1, а затем она приваривается к дополнительно укладываемой арматуре 4.
Для связи старого и нового бетона на поверхности фундамента делают насечки или обрабатывают ее пескоструйным аппаратом, огнем, увлажняют, покрывают цементным тестом или другими клеевыми составами.
Усиление фундаментов стаканного типа 1 может осуществляться также при помощи двух железобетонных или металлических балок 3, опирающихся на железобетонные плиты усиления 5 через столбики 6. Для связки плит 3 к колоннам 10 крепятся коротыши из швеллеров 4. При этом балки 3 плотно пригоняются к коротышам 4 с помощью клиньев 7. Арматура плит уширения 9 приваривается к арматуре 8 усиливаемого фундамента 1. После проведения этих работ производится обетонирование.
При усилении фундамента стаканного типа наращиванием рекомендуется соблюдать пропорции высоты и ширины фундамента. Фундамент желательно делать жестким, т.е. линейные размеры подошвы не должны выходить за пределы зоны продавливания.
РЕКОМЕНДАЦИИ ПО УСИЛЕНИЮ ЛЕНТОЧНОГО ФУНДАМЕНТА
ЖЕЛЕЗОБЕТОННОЙ РУБАШКОЙ
Усиление фундамента рубашкой рекомендуется для увеличения несущей способности при увеличении нагрузки на фундамент, повреждении, а также при недостаточной несущей способности грунта. Рубашка фундамента делается вместе с обоймой колонны.
Работы начинаются с обработки поверхности усиливаемого фундамента 1 и колонны 4 вышеприведенными способами. Затем производят укладку арматуры 3 рубашки 2 и обетонирование. После устройства рубашки фундамента 2 производят обетонирование обоймы колонны 5 снизу вверх.
УСИЛЕНИЕ ЛЕНТОЧНЫХ ФУНДАМЕНТОВ
ПРИ ПОМОЩИ СВАЙНО-РАМНОЙ КОНСТРУКЦИИ
а) вариант с одиночными сваями
б) вариант с обвязкой по сваям
1 - усиливаемый фундамент; 2 - железобетонная сборная свая; 3 - железобетонный сборный ригель; 4 - столбик; 5 - металлические клинья; 6 - железобетонная монолитная обвязка по сваям; 7 - бетон усиления.
РЕКОМЕНДАЦИИ ПО УСИЛЕНИЮ ЛЕНТОЧНЫХ ФУНДАМЕНТОВ
ПРИ ПОМОЩИ СВАЙНО-РАМНОЙ КОНСТРУКЦИИ
При недостаточной несущей способности грунта основания и существенных деформациях здания рекомендуется усиление фундамента с помощью свайно-рамной конструкции.
В этом случае часть нагрузки передается на располагаемые рядом свайные опоры 2 посредством железобетонных ригелей 3, пропускаемых через пробитые в усиливаемом фундаменте 1 отверстия (см.
"а",
"б"). Свайно-рамная конструкция включается в работу предварительным обжатием, например, домкратами, опирающимися на столбики 4.
При опирании ригелей 3 непосредственно на сваи 2 (см.
"а") одновременному обжатию подлежат две симметричные сваи.
При наличии железобетонной обвязки 6, соединяющей головы свай 2 в продольном направлении (см.
"б"), обжатие производится отдельными участками. При этом, на границе участков в обвязке должен быть предусмотрен поперечный шов.
Перед снятием домкратов в обоих случаях следует произвести подклинку ригелей 3 металлическими клиньями 5.
УСИЛЕНИЕ ЛЕНТОЧНЫХ ФУНДАМЕНТОВ С ПОМОЩЬЮ СВАЙНО-РАМНОЙ
КОНСТРУКЦИИ И МОНОЛИТНОГО ЖЕЛЕЗОБЕТОННОГО ПОЯСА
1 - усиливаемый фундамент; 2 - сборная железобетонная свая;
3 - железобетонная подушка; 4 - сборный железобетонный ригель;
5 - монолитный железобетонный пояс; 6 - монолитная свая;
7 - монолитный железобетонный ригель.
РЕКОМЕНДАЦИИ ПО УСИЛЕНИЮ ЛЕНТОЧНЫХ ФУНДАМЕНТОВ
С ПОМОЩЬЮ СВАЙНО-РАМНОЙ КОНСТРУКЦИИ
И МОНОЛИТНОГО ЖЕЛЕЗОБЕТОННОГО ПОЯСА
При использовании сборного варианта (см.
"а") в основание забиваются сборные сваи 2. Сверху на сваях оголяется арматура и делается монолитная железобетонная подушка 3. В существующем фундаменте пробиваются отверстия, через которые пропускают заранее изготовленные сборные железобетонные ригели 4. При пересадке фундамента 1 на сваи 2 его необходимо предварительно укрепить. Для этого в фундаменте с двух сторон отбойными молотками пробиваются горизонтальные штрабы, в которые заводится арматурный каркас 5 и плотно заделывается бетоном.
В случае применения монолитного варианта (см.
"б") фундамент 1 при пересадке также укрепляется железобетонным поясом 5. Затем в грунте и фундаменте 1 пробиваются отверстия, производится бетонирование свай 6 и монолитного ригеля 7.
Шаг рам, образуемых ригелями и сваями, принимается из расчета восприятия полной нагрузки существующим фундаментом и его усилением.
УСИЛЕНИЕ ФУНДАМЕНТА С ПОМОЩЬЮ СВАЙ, ПОПЕРЕЧНЫХ БАЛОК
И ЖЕЛЕЗОБЕТОННЫХ ПОЯСОВ
а) вариант усиления поврежденного фундамента
1 - усиливаемый фундамент; 2 - железобетонная свая; 3 - поперечная балка усиления; 4 - монолитный железобетонный пояс; 5 - железобетонный пояс (обвязка) по сваям; 6 - клинья.
УСИЛЕНИЕ ФУНДАМЕНТА С ПОМОЩЬЮ СВАИ МЕГА
1 - усиливаемый фундамент; 2 - распределительный элемент; 3 - домкрат; 4 - нижний элемент сборной сваи Мега; 5 - подпорка; 6 - головной элемент; 7 - рядовые элементы сборной сваи Мега.
РЕКОМЕНДАЦИИ ПО УСИЛЕНИЮ ФУНДАМЕНТА С ПОМОЩЬЮ СВАЙ
И МЕТАЛЛИЧЕСКИХ БАЛОК
Фундамент 1, имеющий повреждения при пересадке его на сваи 2 рекомендуется укрепить. Для этого в теле фундамента 1 с двух сторон пробиваются отбойным молотком горизонтальные штрабы, в которые заводятся металлические балки, стягиваемые болтами и плотно заделываются бетоном 4. После затвердевания бетона ниже балок в фундаменте пробиваются сквозные отверстия, в которые устанавливают несущие поперечные балки 3. Концы балок опираются на железобетонный пояс по сваям 5. Затем производят обжатие сваи с помощью клиньев 6.
РЕКОМЕНДАЦИИ ПО УСИЛЕНИЮ ФУНДАМЕНТОВ С ПОМОЩЬЮ СВАЙ МЕГА
Усиление с помощью свай Мега рекомендуется для увеличения несущей способности фундамента при увеличении нагрузки на колонны или ограждающие конструкции.
Сваи Мега устраиваются из сборных железобетонных элементов заводского изготовления. Рядовой элемент 7 выполняется сечением 25 x 25 см или 30 x 30 см, длиной 60 - 80 см. В зависимости от грунтовых условий острие нижнего элемента 4 может укрепляться листовой сталью

. Элементы устанавливаются друг на друга торцевыми гранями по мере погружения. Стык элементов производится при помощи вертикальных штырей

. Для обеспечения надежного контакта в стыке по всей плоскости торцевой части элемента следует уложить выравнивающий слой из быстросхватывающегося цементного раствора. Погружение свай производится вдавливанием поэлементно гидродомкратом 3 с опиранием его на подошву существующего фундамента. При усилении фундамента сваями Мега необходимо устройство рабочего котлована с оголением части подошвы фундамента. На период производства работ по забивке свай, необходимо временное усиление или разгрузка фундамента 1. Наращивание элементов производится до тех пор, пока расчетная несущая способность сваи не достигнет заданной величины. Между оголовком сваи 6 и распределительной плитой 2 устанавливаются специальные подпорки 5, которые передают нагрузку на фундамент. После снятия домкрата зазор между оголовком и распределительным элементом следует заполнить бетоном.
УСИЛЕНИЕ ФУНДАМЕНТА ПОДВОДКОЙ НОВЫХ ЧАСТЕЙ
а) вариант подводки новых частей, расположенных рядом с фундаментом
1 - усиливаемый фундамент; 2 - сборный элемент усиления фундамента; 3 - поперечный элемент; 4 - металлический подкос; 5 - существующая колонна; 6 - металлическая обойма; 7 - два швеллера.
б) вариант подводки под фундамент новых частей
1 - усиливаемый фундамент; 2 - подводимая часть фундамента; 3 -

-угол жесткости.
УСИЛЕНИЕ ФУНДАМЕНТА С ПОМОЩЬЮ МОНОЛИТНЫХ КОРНЕВИДНЫХ СВАЙ
1 - усиливаемый фундамент; 2 - монолитные корневидные сваи.
РЕКОМЕНДАЦИИ ПО УСИЛЕНИЮ ФУНДАМЕНТОВ ПОДВОДКОЙ НОВЫХ ЧАСТЕЙ
Усиление фундаментов подводкой новых частей рекомендуется применять для увеличения их несущей способности в связи с увеличением нагрузок на несущие конструкции.
При усилении фундаментов подводкой новых частей, расположенных рядом с существующим фундаментом (см.
"а"), рекомендуется выполнение следующих последовательно выполняемых операций. Подошва фундамента расширяется конструктивными элементами 2, расположенными рядом с фундаментом 1. На колонне 5 устраивается металлическая обойма 6, к которой привариваются металлические подкосы 4. Подкосы объединены поперечным элементом 3. Нагрузка от колонны 5 передается частично через обойму 6 и подкосы 4 на сборные элементы усиления 2.
Вариант подведения новых частей под фундамент (см.
"б") осуществляется следующим образом. Перед устройством фундамента 1 под его подошвой следует произвести втрамбование щебня на глубину 5 - 7 см. Затем уложенный щебень пропитывается пластичным цементным раствором. С целью обеспечения прочного сцепления старого бетона 1 с новым бетоном 2 зазор, образованный между подводимой нижней частью и подошвой старого фундамента, рекомендуется заполнить пластичной бетонной смесью.
РЕКОМЕНДАЦИИ ПО УСИЛЕНИЮ ФУНДАМЕНТА
С ПОМОЩЬЮ КОРНЕВИДНЫХ СВАЙ
Корневидные, или буроинъекционные сваи 2 могут изготовляться диаметром 50 - 280 мм, длиной до 50 м. Сваи могут армироваться как отдельными стержнями, так и каркасами. Эти сваи проходят через тело существующего фундамента и располагаются наклонно веером или решеткой. Длина заделки свай в фундамент должна составлять 10 диаметров сваи.
Инъекцирование скважин цементно-песчаным раствором ведется через бетонолитные трубы диаметром 48 - 60 мм. Раствор с пластифицирующими и противоусадочными добавками подается в скважину под давлением 3 - 6 кгс/см2, что дает возможность устраивать местное уширение ствола сваи и способствует увеличению диаметра скважины в 1,5 раза по сравнению с расчетным.
При разрушенном фундаменте и отсутствии к нему подхода рекомендуется устраивать сваи за обрезом фундамента с последующим объединением их монолитным железобетонным ростверком, на который передается нагрузка от существующего фундамента.
УСИЛЕНИЕ ЛЕНТОЧНЫХ ФУНДАМЕНТОВ С ПОМОЩЬЮ ПРИЛИВОВ
ПРИ ВНЕЦЕНТРЕННОМ НАГРУЖЕНИИ И СИЛЬНО РАЗВИТОМ ФУНДАМЕНТЕ
1 - существующий фундамент;
2 - уплотненный щебнем грунт;
3 - раскос из

;
4 - металлическая балка из

(шаг 1500: 2000);
5 - бетон марки 150;
6 - деревянные щиты;
7 - пакет из металлических балок;
8 - банкет из бетона марки 150;
9 - щит из досок;
10 - подклинка;
11 - временная стойка;
12 - домкрат.
РЕКОМЕНДАЦИИ ПО УСИЛЕНИЮ ЛЕНТОЧНЫХ ФУНДАМЕНТОВ
С ПОМОЩЬЮ ПРИЛИВОВ ПРИ ВНЕЦЕНТРЕННОМ НАГРУЖЕНИИ
И СИЛЬНО РАЗВИТОМ ФУНДАМЕНТЕ
При повышении нагрузок на несущие конструкции зданий требуемое увеличение несущей способности фундаментов может быть достигнуто с помощью приливов.
В случае внецентренного нагружения ленточных фундаментов разрабатывают траншеи с одной стороны (см.
"а"). Затем в фундаменте 1 пробивают штрабы для установки в них металлических балок 4 и раскосов 3, которые после установки заделываются раствором. Уплотняется щебнем грунт 2 дна траншеи рядом с фундаментом 1. Заливается бетоном 5 траншея, образуя железобетонный прилив, являющийся усиливающим элементом существующего фундамента.
При сильно развитом ленточном фундаменте 1 (см.
"б") вдоль его боковых граней разрабатывают траншеи и бетонируют примыкающие к граням фундамента банкеты 8 отдельными участками по длине без омоноличивания их с кладкой существующих фундаментов 1. Затем устанавливают в проемах фундаментов пакеты стальных балок 7 для упора в них гидравлических домкратов 12. Домкратами обжимают грунты оснований под новыми частями фундамента 8. До перестановки домкратов банкеты расклинивают стойками 11, поэтому напряжение под их подошвой сохраняется. После извлечения домкратов пространство между банкетами и пакетами 7 заполняется бетоном, а затем все засыпается до уровня земли грунтом.
УСИЛЕНИЕ ФУНДАМЕНТА ОБЖАТИЕМ БЕТОНА УСИЛЕНИЯ
И ГРУНТА ОСНОВАНИЯ
(Авт. свид. СССР N 628233)
1 - поперечные балки;
2 - прокладка;
3 - обжимной щит;
4 - гибкая опалубка;
5 - существующий фундамент;
6 - уплотненный грунт основания;
7 - стяжные болты;
8 - распределительные балки.
РЕКОМЕНДАЦИИ ПО УСИЛЕНИЮ ФУНДАМЕНТА ОБЖАТИЕМ БЕТОНА
УСИЛЕНИЯ И ГРУНТА ОСНОВАНИЯ
Усиление фундамента обжатием бетона усиления и грунта основания рекомендуется для увеличения несущей способности последних в связи с повышением нагрузок на несущие конструкции.
Для осуществления этого способа на прокладки 2 устанавливают поперечные 1 и распределительные 8 балки. В теле фундамента 5 сверлят отверстия для установки стяжных болтов 7. Бетон усиления укладывают в гибкую опалубку 4, изготовленную из плетеной сетки с ячейкой 1 - 2 см, исключающей выдавливание заполнителя бетона.
Уложенный сырой бетон через гибкую опалубку 4 сдавливают обжимным щитом 3 путем затяжки болтов 7 и выдерживают в таком состоянии до затвердевания бетона.
Перед укладкой нового бетона грунт основания 6 уплотняется.
УСИЛЕНИЕ ФУНДАМЕНТА МЕТОДОМ ЗАДАВЛИВАНИЯ
ПЕРФОРИРОВАННЫХ ТРУБ
1 - стальная перфорированная труба

;
2 - домкрат;
3 - упорная плита;
4 - упорная стенка;
5 - тяж

;
6 -

по длине перфорированной трубы;
7 -

8 - песчаный раствор М300;
9 - стальная перфорированная труба

;
10 - вставки под отв.

.
РЕКОМЕНДАЦИИ ПО УСИЛЕНИЮ ФУНДАМЕНТА МЕТОДОМ ЗАДАВЛИВАНИЯ
ПЕРФОРИРОВАННЫХ ТРУБ
(Авт. свид. N 35300)
Усиление методом задавливания перфорированных труб рекомендуется для увеличения несущей способности фундаментов при увеличении нагрузок на несущие конструкции при слабых основаниях.
Работы, связанные с усилением фундаментов методом задавливания перфорированных труб производятся участками длиной не более 7 м. Для этого с одной стороны фундамента разрабатывается котлован, в котором производится монтаж оборудования, осуществляющего задавливания стальных труб. Одна из боковых стенок закрепляется упорной стенкой 4 для опирания домкрата 2, а другая выполняется с откосом 1:1. Между домкратом 2 и упорной стенкой 4 устанавливается упорная плита 3 из деревянных щитов. Упорная стенка 4 крепится сверху к грунту посредством тяжа 5 и анкерного устройства.
Продавливание стальных труб 1 производится отрезками длиной 1,6 м, сваренными между собой. Перфорация поверхности труб достигается сверлением отверстий

с шагом 300 мм в шахматном порядке.
По окончании задавливания из труб извлекается грунт и производится нагнетание цементно-песчаного раствора марки 300. Цементно-песчаный раствор через перфорированные отверстия в трубах заполняет возможные пустоты под фундаментом.
УСИЛЕНИЕ УЗЛА КРЕПЛЕНИЯ ФУНДАМЕНТА С КОЛОННОЙ
1 - усиливаемый фундамент; 2 - наращиваемая часть фундамента; 3 - колонна; 4 - арматура усиливаемого фундамента; 5 - треугольные металлические листы; 6 - прямоугольные пластины; 7 - горизонтальные металлические листы; 8 - арматура колонны.
РЕКОМЕНДАЦИИ ПО УСИЛЕНИЮ УЗЛА КРЕПЛЕНИЯ ФУНДАМЕНТА
СТАКАННОГО ТИПА С КОЛОННОЙ
При отсутствии надежного замоноличивания колонны в стакане фундамента и увеличении нагрузки на колонну усиление узла крепления фундамента с колонной может быть достигнуто следующим способом.
На подколонник стаканного типа укладывается металлический лист 7. В нижней части колонны 3 обнажается арматура 8, к которой привариваются металлические листы 6. К металлическим листам 6 и 7 в свою очередь привариваются треугольные металлические листы 5. Подготовленный таким способом узел замоноличивается бетоном марки 300.
Нагрузка от колонны на фундамент передается через металлический лист 7, листы 5 и планку 6.
V. ПРИМЕРЫ РАСЧЕТА УСИЛЕНИЙ СТРОИТЕЛЬНЫХ КОНСТРУКЦИЙ
А. РАСЧЕТ УСИЛЕНИЙ ЖЕЛЕЗОБЕТОННЫХ КОНСТРУКЦИЙ
ПРИМЕР РАСЧЕТА УСИЛЕНИЯ ЖЕЛЕЗОБЕТОННЫХ БАЛОК ОБОЙМАМИ
Рис. 1
Дано: b x h = 25 x 50 см и пролет 600 см.
Балка рассчитана на нагрузку q = 4,0 тс/м (40 кН/м), в том числе на постоянную нагрузку 2 тс/м (20 кН/м). После реконструкции цеха нагрузка на балку должна возрасти до 7 тс/м (70 кН/м).
В результате обследования установлено следующее:
размеры балки и пролет соответствуют проекту, признаков разрушения балки нет, марка бетона AIII, признаков коррозии арматуры нет,
Rs = 3400 кгс/см
2 (340 МПа), продольное армирование из четырех стержней

(
As = 15,2 см
2), в сжатой зоне

из стали AII (
Rsc = 2700 кгс/см
2 (270 МПа),

), хомуты двухветьевые

(
Ax = 1,01 см
2) через 20 см в крайних четвертях пролета и через 30 см в средней части балки,
Rsx = 1700 кгс/см
2 (170 МПа) (т.е. класса AI); защитный слой бетона снизу около 3 см (
a = 3 см), сверху - 2,5 см (
a' = 3 см),
hо = 47 см.
Требуется: рассчитать и запроектировать усиление балки железобетонной обоймой.
Решение:
Принимаем толщину обоймы усиления в растянутой зоне балки и сбоку 8 см, в сжатой зоне 5 см.
Тогда размеры усиленной балки будут:
b = 25 + 8·2 = 41 см;
hо = 47 + 5 = 52 см;
h = 50 + 8 + 5 = 63 см;
aо = 8 см; a = 3 см.
По формуле 13
[5] находим необходимое количество дополнительной арматуры:
Принимаем

(
As = 3,39 см
2).
В сжатой зоне по конструктивным соображениям принимаем

(

).
Проверяем правильность применения формул при расчете (при этом дополнительную арматуру в сжатой зоне можно не учитывать).
По условию 0,5(
h -
x) = 0,5(63 - 11,4) = 25,8 см > 8 см. Следовательно, формулы 68
[6] - 70
[6] применены правильно.
РАСЧЕТ БАЛОК ПРЕДВАРИТЕЛЬНО-НАПРЯЖЕННЫМИ ШПРЕНГЕЛЯМИ
Расчет балок, усиленных постановкой предварительно-напряженных шпренгелей из арматурной стали, вписанных в габаритные балки, может быть выполнен приближенно.
Рис. 2
Сечения усиленной балки работает на сжатие с изгибом и их несущую способность можно определить как для внецентренно-сжатых элементов.
Расчет балки, усиленной шпренгелем, ведут в такой последовательности:
а) выбирают габариты шпренгеля
a,
b,
c,
h,

,
Aз;
б) определяют изгибающие моменты в пролете балки до и после усиления соответственно M и Mд;
в) назначают величину предварительного напряжения в шпренгельной затяжке

:

(70 МПа - 100 МПа);
г) определяют распор в шпренгеле в предельном состоянии по формуле:
где 0,8 - коэффициент условия работы;
д) определяют усилия от шпренгеля в предельном состоянии:
е) определяют расчетные усилия в системе в предельном состоянии - изгибающий момент Mп и поперечную силу:
Mп =
Mд +
Mо -
V·
a 103
[6];
ж) проверяют сечения в усиленной балке от внецентренного сжатия в предельном состоянии на усилия:
Mп:
N =
H и
Qп при

и e' = eо + y - a',
где eо - эксцентриситет относительно геометрической оси, проходящей по центру тяжести сечения.
ПРИМЕР РАСЧЕТА УСИЛЕНИЯ БАЛКИ
ПРЕДВАРИТЕЛЬНО-НАПРЯЖЕННЫМИ ШПРЕНГЕЛЯМИ
Дано: балка 25 x 50 см (b x h), пролет L = 600 см.
Балка рассчитана на нагрузку q = 4,5 тс/м (45 кН/м), в том числе на постоянную нагрузку 2 тс/м (20 кН/м).
После замены оборудования нагрузка на балку должна возрасти до 7 тс/м (70 кН/м).
a = 150 см,
b = 300 см,
c = 20 см,
h = 51 см,

,

;

;
M = 21,58 тсм (215,8 кНм);
Mд = 31,5 тсм (315 кНм);

(100 МПа).
Требуется: рассчитать усиление балки шпренгелем.
Определяем распор в шпренгеле:
Находим усилие, действующее на балку от шпренгеля:
V = 23416·0,34 = 7961,4 кгс (79614 Н).
Находим опорный момент:
Mоп = 23400·20 = 468000 кгс см (4680 кН см).
Рис. 3
Определяем пролетный изгибающий момент, действующий на балку (от полной нагрузки) и поперечную силу:
Mп = 3150000 + 468000 - 7961,4·150 =
= 2423790 кгс см (24237900 Н см);
Qп = 21 - 8,0 = 13,0 тс; 13,5 тс (135 кН);
H = 23,4 тс (234 кН).
Проверяем прочность усиленной балки:
e = 103 + 47 - 25 = 125 см;
e' = 103 - 25 + 3 = 81 см;
0 = 15525 x (125 - 47 + 0,5·x) -
- 3400·15,2·125·12,5 + 2700·2,26·81;
0 = 3875·x(78 + 0,5x) - 5955500;
0 = x(78 + 0,5x) - 1480;
0 = 78x + 0,5x2 - 1480;
156x + x2 - 3073,8 = 0;
т.е. балка обладает достаточной несущей способностью.
РАСЧЕТ КОЛОНН, УСИЛИВАЕМЫХ ЖЕЛЕЗОБЕТОННЫМИ
ОБОЙМАМИ И НАРАЩИВАНИЕМ
Железобетонные центрально-сжатые со случайными эксцентриситетами и внецентренно-сжатые элементы, усиленные обоймами и наращиванием, рассчитываются как монолитные.
Расчетное сопротивление бетона, обойм и наращиваний, находящихся в сжатой зоне сечения, а также расчетное сопротивление рабочей арматуры, находящейся в сжатом бетоне усиления, вводится в расчет с коэффициентом 0,8.
Расчет сечений внецентренно-сжатых элементов, усиленных обоймами и наращиванием, в общем случае (см.
рис. 4) должен производиться из условия:
где: e - эксцентриситет;
Sбо - статический момент площади бетона обоймы или наращивания, расположенной в сжатой зоне относительно указанной оси;
Sбк - статический момент площади бетона усиливаемой конструкции, расположенной в сжатой зоне относительно указанной оси;
Ssi - статический момент площади сечения i-того ряда стержней продольной арматуры усиливаемого элемента относительно указанной оси;
Ssgi - статический момент площади сечения i-того ряда стержней продольной арматуры усиления относительно указанной оси;

- напряжения в
i-том ряде стержней продольной арматуры усиления;

- напряжения в
i-том ряде стержней продольной арматуры усиливаемого элемента;
Rбо - расчетное сопротивление бетона усиления осевому сжатию;
Rб - расчетное сопротивление бетона усиливаемого элемента осевому сжатию.
Высота сжатой зоны
x и напряжения

определяются из совместного решения уравнений
где: Fбо - площадь сжатого бетона усиления;
Fбк - площадь сжатого бетона усиливаемой конструкции;
fsi - площадь сечения продольного стержня i-того ряда, расположенного в усиливаемом элементе;
fsgi - площадь сечения продольного стержня i-того ряда, расположенного в бетоне усиления;

- относительная высота сжатой зоны;
где: hобi - расстояние от оси, проходящей через центр тяжести сечения рассматриваемого i-того стержня арматуры и параллельной прямой, ограничивающей сжатую зону, до наиболее удаленной точки сжатой зоны сечения;

- характеристика сжатой зоны бетона.
где:

, когда сжатая зона полностью находится в бетоне усиления

, если в сжатой зоне находится полностью или частично бетон усиливаемой конструкции.
Если в сжатой зоне частично находится бетон усиливаемой конструкции, но 0,8
Rбо <
Rб, то

.

- принимается в соответствии с разделом 3.П3.15
[3].
Напряжения

вводятся в расчетные формулы со своими знаками, полученными при расчете по
формуле (6.44), при этом напряжения со знаком плюс означают растягивающие напряжения и принимаются для арматуры усиления не более
Rs, а для растянутой арматуры усиления не более
Rsg, напряжения со знаком минус означают сжимающие напряжения и принимаются по абсолютной величине не более
Rsc для сжатой арматуры усиливаемой конструкции и не более 0,8
Rscg для сжатой арматуры усиления.
Площадь дополнительной арматуры внецентренно-сжатых элементов прямоугольного сечения, усиленных обоймой и двухсторонним наращиванием с симметричной добавочной арматурой
(рис. 5) при

,
где
x определяется по формуле 6.59
[14],
hоп определяется по формуле 6.60
[14], а 0,8 - коэффициент, учитывающий возможность ослабления монолитности усиленных конструкций, допускается по формуле
где
Высота сжатой зоны усиленного сечения определяется по формуле
Если существующая арматура As расположена на расстоянии более 0,5(hб - x) от растянутой грани усиленного сечения, то для нее принимается расчетное сопротивление 0,8Rs.
В этом случае
где
Высота сжатой зоны усиленного сечения определяется по формуле
Б. РАСЧЕТ УСИЛЕНИЯ СТАЛЬНЫХ КОНСТРУКЦИЙ
РАСЧЕТ УСИЛЕНИЯ СТРОПИЛЬНЫХ ФЕРМ
Расчет усиления центральнорастянутых элементов ферм производится на основании следующих положений.
1. Площадь поперечного сечения дополнительного стержня определяем из формулы:
где Nо - нагрузка на стержень до усиления;
Nд - дополнительная нагрузка на стержень после усиления;
Fо - площадь сечения основного стержня;
Fд - площадь сечения дополнительного металла;
m - коэффициент условий работы (по табл. 8 СНиП II-В.3-72);
| | ИС МЕГАНОРМ: примечание. В официальном тексте документа, видимо, допущена опечатка: имеется в виду СНиП II-В.3-72, а не СНиП II-В. | |
R - расчетное сопротивление стали (по табл. 2 СНиП II-В);
2. Швы, прикрепляющие детали усиления к усиливаемым элементам, должны быть сплошными с высотой катета 4 - 6 мм. В пределах узла прикрепляющие сварные швы должны обеспечить включение дополнительных деталей в общую работу элемента, т.е. площадь среза швов должна быть достаточной для прикрепления усиляющей детали и должно соблюдаться условие:
откуда требуемая площадь среза швов
где
Fд,
R - см. формулу

1
[4];

- расчетное сопротивление углового шва, принимаемое по табл. 5 (СНиП II-В.3-72).
Задавая длину прикрепляющих швов, равной участку детали от торца элемента до границы узловой фасонки, можно определить расчетную высоту катета прикрепляющего шва (в пределах узла).
где hш - высота катета шва в см;
l - длина шва в см.
Расчет усилений центрально-сжатых элементов ферм производится в такой последовательности.
1. Определяется площадь сечения дополнительного стержня из формулы
где

- коэффициент продольного изгиба усиленного элемента (по табл. 53 СНиП II-В.3-72).
2. Швы, прикрепляющие дополнительные детали к основному сечению, следует рассчитывать на восприятие сдвигающих усилий, возникающих от условной перерезывающей силы:
Условная перерезывающая сила в кгс, принимается равной:
для Ст.3:
для низколегированной стали:
Qус = 40(
Fо +
Fд), 11
[4]
где Sд - статический момент сечения детали, прикрепляемой данными швами в см3.
Подбор сечений сжатых и растянутых элементов производится с помощью таблиц на стр. 41 - 45 работы
[4].
ПРИМЕР РАСЧЕТА УСИЛЕНИЯ СЖАТОГО ЭЛЕМЕНТА ФЕРМЫ
(ВЕРХНЕГО ПОЯСА, РАСКОСА, СТОЙКИ)
ДАНО: усилие в стержне до усиления - 73,0 тс (определяется путем построения диаграммы Кремоны от существующих нагрузок); усилие в стержне после усиления - 80,0 тс (определяется тем же способом от проектируемых нагрузок).
Состоит элемент (в данном случае раскос) из

(рис. 6). Сталь марки ВСт3пс6.
Соединение стержней в узлах фермы на сварке, электроды марки Э4г.
ТРЕБУЕТСЯ: произвести усиление раскоса способом увеличения сечения.
РЕШЕНИЕ
Определяем расчетную длину раскоса:
в плоскость фермы
lо =
lрасч. = 3,9 м из плоскости фермы
lо =
lрасч. = 3,9 м

;
ry = 6,12 см (при толщине фасонки 12 мм)
тогда
по табл. 53 СНиП II-В.3-72 имеем:

;

.
До усиления стержень может нести нагрузку:
проверяем
Запас в прочности незначительный, после увеличения нагрузки

Следовательно, необходимо усиление раскоса.
По каталогу
[4] на стр. 41 выбираем усиление в виде полос (см.
рис. 6 сеч.
a-
a) для уголков 140 x 10 будем иметь две полосы 160 x 10 по таблице сортамента
[4] имеем

;

тогда: гибкость

,

по табл. 53 СНиП II-В.3-72 имеем:

;

.
После усиления стержень может нести нагрузку:
проверка:
ПРИМЕР РАСЧЕТА УСИЛЕНИЯ ВСПОМОГАТЕЛЬНЫХ БАЛОК
СПОСОБОМ УВЕЛИЧЕНИЯ СЕЧЕНИЯ
Рис. 7
| | ИС МЕГАНОРМ: примечание. Постановлением Госстандарта СССР от 27.09.1989 N 2940 с 1 июля 1990 года введен в действие ГОСТ 8239-89. | |
Имеем I 24 по ГОСТ 8239-55 с Wx = 289 см3, Jx = 3460 см4. При замене оборудования нагрузка увеличилась до 5 т.с.
Необходимо рассчитать конструкцию усиления балки.
1. РАСЧЕТ ПО НЕСУЩЕЙ СПОСОБНОСТИ
Определяем нашу расчетную схему. Для пролета 6 м определяем момент сопротивления сечения для единичной нагрузки
Wx = 71,2 см
3. Умножая

на нашу нагрузку, определяем требуемый момент сопротивления сечения

т.к.

, следовательно, необходимо усиление балки. Определяем отношение

.
Из таблиц усиления двутавров несимметричным способом увеличения сечения по отношению

выбираем схему усиления двутавра N 24 по отношению

.
2. ПРОВЕРКА НА ПРОГИБ
Для вспомогательных балок максимальный относительный прогиб

по таблице на стр. 56
[4] находим

. Определяем отношение

;

;

.
Усиленная балка удовлетворяет условиям прогиба.
3. ПРОВЕРКА НА УСТОЙЧИВОСТЬ
При необходимости проверяется устойчивость балки по СНиП II-В.3-72. Если не выполняется одна из проверок, необходимо подобрать конструкцию усиления с большими отношениями

и

.
Расчет усиления главных балок выполняется аналогично расчету второстепенных балок. При расчете на прогиб главные балки рассчитываются на максимальный относительный прогиб

.
ПРИМЕР РАСЧЕТА УСИЛЕНИЯ ОДНОВЕТЬЕВОЙ
ЦЕНТРАЛЬНО-СЖАТОЙ СТОЙКИ ДВУТАВРОВОГО СЕЧЕНИЯ
Рис. 8
Предельная гибкость для центрально-сжатых стоек не должна превышать

.

- коэффициент расчетной длины для стержней постоянного сечения с четко выраженными условиями закрепления концов и приложения нагрузки.
Для данной схемы

.
Минимальный радиус инерции:

.
Стойка может быть выполнена из I 55 по ГОСТу 8239-56* с
rmin = 3,44 см и гибкость

.
Откуда коэффициент продольного изгиба для центрально-сжатых элементов

для стали 3.
Для I 55 F = 114 см2; R = 2100 кгс/см2.
Несущая способность рассматриваемой колонны:
значит новая нагрузка от перекрытий или покрытий на стойку превышает 114,0 тс, стойка подлежит усилению.
Предположим, что новая нагрузка на стойку равна 200,0 тс.
Рис. 9
Усиливаем I 55 двумя полосами - 16 x 20
Fсеч = 174 см2
По табл. 53 СНиП В.3-72 имеем

.
В. РАСЧЕТ УСИЛЕНИЯ КАМЕННЫХ КОНСТРУКЦИЙ
Расчет конструкций из кирпичной кладки, усиленной обоймами, при центральном и внецентренном сжатии при малых эксцентриситетах, не выходящих за пределы ядра сечения, производится по формуле:
при стальной обойме
при железобетонной обойме
при армированной растворной обойме
Величины коэффициентов

и

принимаются: при центральном сжатии

и

; при внецентренном сжатии

119
[34];

120
[34];
N - продольная сила;
F - площадь сечения усиливаемой кладки;

- площадь сечения продольных уголков, стальной обоймы или продольной арматуры железобетонной обоймы;
Fб - площадь сечения бетона, заключенная между хомутами и кладкой (без учета защитного слоя);
Rап - расчетное сопротивление поперечной арматуры обоймы;
Rас - расчетное сопротивление продольной сжатой арматуры;

- коэффициент продольного изгиба (при определении

значение
a принимается как для неусиленной кладки);
mдл - коэффициент, учитывающий влияние длительного воздействия нагрузки (см. п. 47
[30]);
mк - коэффициент условий работы кладки, принимаемый mк = 1 для кладки без повреждений, mк = 0,7 - для кладки с трещинами;
mб - коэффициент условий работы бетона, принимаемый:
mб = 1 - при передаче нагрузки на обойму и наличии опоры снизу обоймы;
mб = 0,7 - при передаче нагрузки на обойму и отсутствии опоры снизу обоймы;
mб = 0,35 - без непосредственной передачи нагрузки на обойму;
P - процент армирования хомутами и поперечными планками, определяемый по формуле:
Fa - сечение хомута или поперечной планки;
h и b - размеры сторон усиливаемого элемента;
S - расстояние между осями поперечных связей при стальных обоймах (h >= S <= b, но не более 50 см) или между хомутами при железобетонных и штукатурных обоймах (S <= 15 см).
Когда одна из сторон элемента, например стена, имеет значительную протяженность, то необходима постановка дополнительных поперечных, пропускаемых через кладку связей, располагаемых друг от друга по длине стены на расстоянии не более 2d и не более 100 см, где d - толщина стены и по высоте не более 75 см.
Расчет дополнительных поперечных связей производится по формулам 117
[33] при этом коэффициент условий работы связей принимается равным 0,5.
Пример расчета усиления центрально-нагруженной кирпичной колонны.
Рис. 10
ДАНО: d = 40 см; b = 40 см; lк = 500 см; кирпич М 75 на растворе М 25; S = 50 см; R = 11 кгс/см2 (1,1 МПа); Rас = 2350 кгс/см2 (230 МПа); N = 50 тс (490,5 кН).
Требуется запроектировать усиление центрально-сжатой колонны при возросшей нагрузке, которое осуществляется посредством включения ее в стальную обойму.
При проектировании стальной обоймы необходимо задаться сечением соединительных планок, fx планки от - 35 x 5 до - 60 x 12.
1. Определяем процент армирования:
принимаем сечение планки 50 x 10 мм, Fa = 5 см2.
2. Определяем гибкость колонны
mк = 0,7.
3. Определяем сечение продольных уголков
Конструктивно принимаем

.
ПРИМЕР РАСЧЕТА УСИЛЕНИЯ ЦЕНТРАЛЬНО-НАГРУЖЕННОЙ
КИРПИЧНОЙ КОЛОННЫ ЖЕЛЕЗОБЕТОННОЙ ОБОЙМОЙ
Требуется запроектировать усиление центрально-сжатой колонны при возросшей нагрузке, которое осуществляется посредством включения ее в железобетонную обойму.
Рис. 11
ДАНО:
a = 40 см;
b = 40 см;
lк = 500 см; кирпич марки 75;
R = 11 кгс/см
2 (1,1 МПа) бетон марки 200;
d = 6 см;
Rпр = 77 кг/см
2 (7,7 МПа);
Rас = 2850 кгс/см
2 (280 МПа);
Fа = 0,283 см
2 -

;
S = 15;
N = 100 тс (981 кН)
Требуется: определить размеры и армирование обоймы; определить сечение продольной арматуры.
1. Определяем процент армирования
2. Определяем площадь сечения обоймы.
Fб = (d - 1)(a + d)·4 = (6 - 1)(40 + 6)·4 = 920 см2.
3. Определяем гибкость усиленной колонны.
b' =
b + 2
d = 40 + 12 = 52 см;

4. Определяем сечение продольной арматуры
mк = 0,7; mб = 0,7
Принимаем

.
ПРИМЕР РАСЧЕТА УСИЛЕНИЯ КИРПИЧНОГО ПРОСТЕНКА
СТАЛЬНОЙ ОБОЙМОЙ
Требуется запроектировать усиление простенка в существующем жилом доме. Кладка простенков выполнена из кирпича марки 75 на растворе марки 25 (
R = 11 кгс/см
2 (1,1 МПа)). Размер сечения простенка 54 x 103 см, высота 180 см; расчетная высота стены при продольном изгибе 2,78 м. Напряжение в кладке принимаем

(временного сопротивления). Вертикальное усилие равно 60 т (588,6 см), приложено с эксцентриситетом 5 см по отношению к толщине стены.
По архитектурным соображениям усиление кладки принимается посредством включения простенка в стальную обойму из уголков.
Из формулы 116
[34] определяем необходимое увеличение несущей способности простенка за счет поперечной арматуры обоймы.
где:

Согласно п. 4.7
[30] mдл = 1;
R = 11 кгс/см
2 (1,1 МПа);
mк = 0,7.

- вертикальная арматура обоймы (уголки) принимается по конструктивным соображениям

;

.
Принимаем для обоймы сталь класса AI.
По табл. 22
[30] Rас = 430 кгс/см
2 (43 МПа) и
Rап = 1500 кгс/см
2 (150 МПа)
Согласно формуле 116
[30]
0,63·2,5p·8343000 = 2401050 + 6002625p; 67,0p = 24;
p = 0,34%.
Принимаем расстояние между поперечными хомутами обоймы 34 см и определяем их сечение из условия

по формуле:
Принимаем полосу сечением 34 x 47 мм; Fап = 2,38 см2.
Г. РАСЧЕТ УСИЛЕНИЯ ФУНДАМЕНТОВ
РАСЧЕТ УСИЛЕНИЯ ЛЕНТОЧНЫХ ФУНДАМЕНТОВ
Рис. 12
Для расчета принимается участок фундамента длиной в 1 пог. м под расчетным простенком. Все нагрузки наносятся на схему.
Требуемая ширина фундамента и уширения определяется по формуле:

;
bуш =
b -
bсущ.
где N1, p1, p2, p3 - усилия в кгс;
lпр - длина расчетного участка стены, в м;
Rн - нормативное сопротивление грунтов основания в кгс/см2;

- объемный вес грунта в кгс/см
2;
b, h - размеры фундамента в см.
В зданиях с упругой конструктивной схемой дополнительно определяют приложение равнодействующей всех вертикальных сил относительно стены подвала или фундамента:
Mв =
N1l2 +
p1l1 (кгс·см)
При
Cо <= 0,033, определенной по
формуле 19, величина "
b" является окончательной.
При Cо > 0,033 уточняют величину "b" с учетом действия момента:
При конструировании фундаментов, в этом случае, возможно смещение от фундамента от оси стены за счет несимметричных или односторонних банкетов.
Высота прикладываемых банкетов при соединении "зубом" или перевязкой определяется из условия среза кладки по неперевязанному шву (расчетная нагрузка).
где: Kу = 1 - для одностороннего и Kу = 2 для двухстороннего усиления.
Rсрз - прочность кладки на срез: 1,6 кгс/см2 для раствора марки 50 и выше; 1,1 кгс/см2 для раствора марки 25;
N - расчетная нагрузка.
Высота банкета при передаче нагрузок металлическими или железобетонными разгружающими консолями-балками определяется из отношения

, которое должно отвечать требованиям минимальных отношений высоты уступов к их длине (см. таблицу 11).
Таблица 11
Минимальные отношения высоты уступов к их длине
Для бутовых и бутобетонных фундаментов | Для фундаментов из бетонных блоков |
Марка раствора или бетона | Давление на грунт кг/см2 | Марка бетона | Давление на грунт кг/см2 |
Rн < 2 | Rн > 2 | Rн < 2 | Rн > 2 |
50 - 100 | 1,25 | 1,5 | 150 | 1 | 1,1 |
10 - 35 | 1,5 | 1,75 | 100 | 1,1 | 1,2 |
4 | 1,75 | 2 | 75 | 1,2 | 1,3 |
При невозможности соблюсти требования
табл. 11 применяют железобетонные банкеты. Площадь поперечного сечения рабочей арматуры железобетонных банкетов определяется по формуле:
где

,

.
Разгрузочные консоли подбирают по величине расчетного момента Mк·l1, кгс/см; где l1 - расстояние между консолями.
Местное смятие банкета и стены у разгружающей консоли определяется по формуле:
где:
Rсм = 2
Rф;
Rф - прочность фундамента на сжатие, принимается по
табл. 12 для бута и бутобетона; по
табл. 13 для кирпичной кладки и
табл. 14 для бетона;

- длина опирания консоли на банкет, в см;
m - ширина опирания консоли на банкет, в см.
Величина "m" подбирается таким образом, чтобы были соблюдены условия прочности на смятие. При невозможности соблюсти эти условия предусматривают укладку разгрузочных подушек.
Таблица 12
Прочность бутовой кладки и бутобетона на сжатие
Rф
Марка камня | Значения Rф в кгс/см2 для бутовой кладки при марке раствора | Бутобетон невибрированный | Значения Rф в кгс/см2 для бутобетона при марке бетона |
100 | 75 | 50 | 25 | 10 | 4 | 2 | 200 | 150 | 100 | 75 | 50 |
800 | 22 | 20 | 16 | 10 | 7 | 4,5 | 3,3 | С рваным бутовым камнем марки 200 и более | 40 | 35 | 30 | 25 | 20 |
500 | 18 | 15 | 13 | 8,5 | 6 | 3,8 | 2,7 | - | - | - | - | - |
400 | 15 | 13 | 11 | 6 | 5,5 | 3,3 | 2,3 | - | - | - | - | - |
300 | 13 | 11,5 | 9,5 | 7 | 5 | 3 | 2 | То же, марки 100 | - | - | - | 22 | 18 |
200 | 11 | 10 | 8 | 6 | 4,5 | 2,8 | 1,8 |
100 | 7,5 | 7 | 6 | 5 | 3,5 | 2,3 | 1,5 | То же, марки 50 и на кирпичном щебне | - | - | - | 20 | 17 |
50 | - | - | 4,5 | 3,5 | 2,5 | 2 | 1,3 |
25 | - | - | 3 | 2,5 | 2 | 1,5 | 1 |
Таблица 13
Прочность кирпичной кладки на сжатие
Rф
в кгс/см2 для всех видов кирпича
Марка кирпича | Марка раствора |
100 | 75 | 50 | 25 | 10 | 4 | 2 | 0 | |
300 | 33 | 30 | 28 | 25 | 22 | 18 | 17 | 15 | |
200 | 27 | 25 | 22 | 18 | 16 | 14 | 13 | 10 | |
150 | 22 | 20 | 18 | 15 | 13 | 12 | 10 | 8 | |
125 | 20 | 19 | 17 | 14 | 12 | 11 | 9 | 7 | |
100 | 18 | 17 | 15 | 13 | 10 | 9 | 8 | 6 | |
75 | 15 | 14 | 13 | 11 | 9 | 7 | 6 | 5 | |
50 | 15 | 11 | 10 | 9 | 7 | 6 | 5 | 3,5 | |
35 | 15 | 9 | 8 | 7 | 6 | 4,5 | 4 | 2,5 | |
Примечание: к данным
табл. 13 вводятся коэффициенты 0,85 для жестких растворов и 0,9 для цементных растворов без извести.
Таблица 14
Расчетное напряжение бетона на осевое сжатие
и сжатие при изгибе
Показатель | Конструкция | Марка бетона |
50 | 75 | 100 | 150 | 200 | 300 |
Сжатие при изгибе Rи | Железобетонная | 25 | 37 | 55 | 80 | 100 | 160 |
Бетонная | 22 | 33 | 50 | 70 | 90 | 140 |
Сжатие осевое Rф | Железобетонная | 20 | 30 | 44 | 65 | 80 | 130 |
Бетонная | 18 | 27 | 40 | 60 | 70 | 115 |
Расчет фундаментов под отдельно стоящие опоры
Расчет фундаментов под отдельно стоящие опоры выполняют в следующем порядке.
Определяют усилия, эксцентриситет и размеры подошвы фундамента:
Mв =
p1l1 кгс·см,

Требуемое уширение сторон определяется: bуш = b - bсущ.
Далее определяется высота банкета:
где N - расчетное усилие; Rсрз = 1,6 кгс/см2 для раствора марки 50 и выше и 1,1 кгс/см2 для раствора марки 25.
Если полученная величина больше 1,5 м, то принимают банкет и обойму для колонны. При этом их суммарная высота должна быть не менее величины, определенной по
формуле 27, а высота банкета должна отвечать требованиям
табл. 8.
Рабочую высоту монолитных железобетонных банкетов определяют по формуле:
при
Cо <= 0,033;

При
Cо > 0,033;

29
[35]
Рабочая арматура определяется в двух направлениях:
Разгрузочные консоли подбирают также в обоих направлениях по величине моментов

и

.
Смятие банкета и колонны у разгружающей консоли проверяют аналогично расчету ленточных фундаментов с учетом того, что усилия N и Mк распределяются обычно на две консоли.
VI. ТЕХНИКА БЕЗОПАСНОСТИ ПРИ ПРОВЕДЕНИИ РАБОТ ПО УСИЛЕНИЮ
И ВОССТАНОВЛЕНИЮ СТРОИТЕЛЬНЫХ КОНСТРУКЦИЙ
При выполнении работ по усилению и восстановлению конструкций кроме соблюдения общих правил техники безопасности в строительстве согласно
СНиП III-4-80 требуется соблюдение особых правил, связанных со спецификой и условиями выполнения работ. Технологические процессы при усилении и восстановлении конструкций, выполняемые на территории действующего предприятия и в действующих цехах, относятся к работам повышенной опасности и должны производиться по нарядам-допускам. Рабочие строительно-монтажных организаций должны быть ознакомлены с проектами производства работ и пройти дополнительный инструктаж по технике безопасности в связи с повышенной опасностью производства работ при восстановлении и реконструкции предприятий. Работники действующего предприятия, в свою очередь, должны пройти инструктаж по правилам безопасного поведения в зоне производства строительно-монтажных работ.
При работе с полимерными составами, используемыми для усиления и восстановления конструкций, требуется соблюдение осторожности и аккуратности.
Материалы, используемые для приготовления полимерных компаундов, следует хранить в хорошо закрытой таре и в соответствии с действующими правилами по хранению химических материалов.
Рабочие, занятые приготовлением полимеррастворных смесей, должны иметь комбинезоны, резиновые перчатки, резиновую обувь и защитные очки.
Полимерные смеси приготавливаются в сухом помещении или на открытом воздухе при температуре не ниже +15 °C и при отсутствии атмосферных осадков (дождь, туман). Помещение должно иметь противопожарный инвентарь, приточно-вытяжную вентиляцию с движением воздуха не менее 3 м/сек, а содержание стирола в рабочей зоне не должно превышать 5 мг/м3. Запрещается в помещениях курить, зажигать огонь, производить сварочные работы и т.п.
При приготовлении полимерных смесей строго запрещается одновременно смешивать нафтенат кобальта и гидроперекись изоприлбензола, так как это взрывоопасно.
Для нанесения полимерных составов нужно пользоваться кистью, шпателем и другими приспособлениями.
После приготовления, а также использования полимерных смесей все емкости и загрязненные инструменты следует одновременно промывать ацетоном, толуолом или другими растворителями и водой.
После очистки инструментов, рабочие снимают одежду, моют лицо и руки водой с мылом. При попадании на поверхность кожи связующего, отвердителя или полимерной смеси необходимо немедленно удалить их ветошью, тщательно вымыть кожу горячей водой с мылом, высушить и смазать смягчающим кремом, вазелином и др.
Загрязненная бумага и обтирочный материал должны собираться в специально отведенном месте и по окончании рабочего дня сжигаться.
Смолы и отвердители складируются и хранятся в герметически закрытой таре, в закрытом проветриваемом и отапливаемом помещении при температуре не выше +20 °C. Гидроперекись изопропилбензола и полиэтиленполиамин хранится в герметически закрытой таре в отдельном складском помещении. Следует охранять их от прямого попадания солнечных лучей.
Помещения для хранения смол и отвердителей должны иметь противопожарный инвентарь и предупреждающие плакаты "огнеопасно", "не курить". Запрещается в помещениях пользоваться открытым огнем (курить, зажигать огонь, производить сварочные работы и пр.).
Не допускается хранение смол и отвердителей в одном помещении с концентрированными растворами азотной, серной и других кислот, а также неорганическими и органическими перекисями и гидроперекисями, в том числе гиперизом.
Перед началом работ все рабочие должны пройти инструктаж по правилам обращения с полимерными материалами.
Основанием для производства работ в действующем цехе должен быть приказ (распоряжение) по предприятию (цеху) с указанием лиц, ответственных за подготовку оборудования и конструкций к указанным работам, за проведение мероприятий, необходимых для обеспечения этих работ, и для оперативной связи с подрядчиком.
На проведение работ при восстановлении и реконструкции на действующем предприятии перед началом работ администрация должна выдать подрядной организации наряд-допуск, который является письменным разрешением для производства работ в отведенной зоне (участка, отделении объекта). Наряд-допуск оформляется администрацией предприятия (цеха) на время, необходимое для выполнения указанного объема работ.
Для обеспечения безопасности рабочих и производственного персонала, занятых на производстве работ по усилению и восстановлению конструкций, зона производства работ должна быть ограждена согласно
ГОСТ 23407-78. Все находящиеся в рабочей зоне силовые линии: коммуникации и технологическое оборудование необходимо перенести или оградить.
ИСПОЛЬЗОВАННАЯ ЛИТЕРАТУРА
1. | СНиП 2.03.01-84 "Бетонные и железобетонные конструкции". М. Госстрой СССР, 1984. |
2. | |
| ЦНИИПромзданий Госстроя СССР, НИИЖБ Госстроя СССР. Руководство по проектированию бетонных и железобетонных конструкций из тяжелого бетона (без предварительного напряжения). М. Стройиздат, 1977. |
| Головное проектно-конструкторское технологическое бюро ремонтного производства (ГПКТБ). Примеры конструктивных решений по ремонту и усилению строительных конструкций производственных зданий и сооружений. Альбомы I, II, III. Волгоград, 1975. |
| Проектно-конструкторский технологический институт ремонтного производства. Конструктивные решения по усилению строительных конструкций промышленных зданий. Волгоград, 1985. |
| Донецкий Промстройниипроект Госстроя СССР. Рекомендации по усилению монолитных железобетонных конструкций зданий и сооружений предприятий горнодобывающей промышленности. М. Стройиздат, 1974. |
| Госстрой СССР, Главпромстройпроект, Союзметаллургстройниипроект, Харьковский Промстройниипроект, Госстрой УССР, НИИСП (Ворошиловградский филиал). Методические рекомендации по усилению железобетонных конструкций зданий и сооружений (на основе анализа и обобщения существующего опыта). Харьков, 1984. |
| Центральный научно-исследовательский институт промышленных зданий и сооружений (ЦНИИПС) и др. Указания по восстановлению поврежденных промышленных зданий и санитарно-технических систем в условиях военного времени. Госиздат строительной литературы. М.,-Л., 1943. |
| А.М. Медведев, А.И. Платонов, П.А. Филатов. Восстановление промышленных зданий. (Примеры из практики). М., 1945. |
| Министерство транспортного строительства СССР. Всесоюзный научно-исследовательский институт транспортного строительства. (ЦНИИС). Рекомендации по восстановлению монолитности бетонных и железобетонных конструкций путем инъектирования полимерных составов. М., 1973. |
| Министерство строительства и эксплуатации автомобильных дорог РСФСР. Гипродорнии. Рекомендации по ремонту поверхностных дефектов железобетонных мостов. М., 1975. |
12. | Всесоюзный научно-исследовательский институт по строительству магистральных трубопроводов. Инструкция по приготовлению и применению специальных растворов и бетонов на фурановых смолах. Минск, изд-во "Полымя", 1973. |
| Производственное объединение "Техэнергохимпром" (Минский филиал). Цементно-полимерные растворы и бетоны в ремонтных работах. М., 1977. |
| Госстрой СССР, Главпромстройпроект, Союзметаллургстройниипроект, Харьковский Промстройниипроект, Госстрой УССР, НИИСП (Ворошиловградский филиал). Рекомендации по усилению железобетонных конструкций зданий и сооружений. Харьков, 1983. |
| Госстрой СССР. Инструкция по проектированию зданий промышленных предприятий, восстанавливаемых после разрушения (проект). М., 1977. |
| Отчет по научно-исследовательской работе: "Обследование несущих конструкций Нижнетверской птицефабрики с целью выявления причин аварийного состояния покрытия, разработка вариантов и выдача чертежей по реконструкции". Сб. рефератов. Серия 14, N 45, 1983, с. 10. |
| Отчет по научно-исследовательской работе: "Исследование конструкций существующих зданий и сооружений и выдача заключений о несущей способности и рекомендации по их дальнейшей эксплуатации". Краснодарский политехнический институт. Сб. рефератов. Серия 14, NN 19 - 20, 1983, с. 10. |
18. | Отчет по научно-исследовательской работе: "Результаты обследования колонн объединенного склада и печного отделения Старо-Алексеевского цементного завода ПО "Мордовцемент". Мордовский государственный университет. Сб. рефератов. Серия 14, N 16, 1984, с. 24. |
| Отчет по научно-исследовательской работе: "Натурные обследования металлических конструкций зданий и сооружений Новолипецкого металлургического завода, подлежащих реконструкции" Липецкий политехнический институт. Сб. рефератов. Серия 14, NN 15 - 16, 1983, с. 9. |
| Отчет по научно-исследовательской работе: "Изучение действительного состояния несущих металлических конструкций главного корпуса обогатительной фабрики N 11 АО "Якуталмаз". Якутский государственный университет. Сб. рефератов. Серия 14, N 1, 1984, с. 14. |
21. | Отчет по научно-исследовательской работе: "Проведение натурных обследований железобетонных конструкций, обобщение материалов по дефектам и повреждениям на предприятиях цветной металлургии и других отраслях промышленности для классификации дефектов". Львовский ордена Ленина политехнический институт. Сб. рефератов. Серия 14, N 15, 1984, с. 13 |
| Отчет по научно-исследовательской работе: "Исследование технического состояния и надежности стальных несущих конструкций плавильного цеха медного завода". Полтавский инженерно-строительный институт. Сб. рефератов. Серия 14, N 3, 1984, с. 13. |
23. | Отчет по научно-исследовательской работе: "Исследование действительной работы строительных конструкций зданий и сооружений с целью разработки мероприятий по обеспечению их долговечности. Макеевский инженерно-строительный институт. Сб. рефератов. Серия 14, NN 25 - 26, 1983, с. 14. |
24. | Дальневосточный Промстройниипроект. Глава СНиП II-10-74. Инженерно-технические мероприятия гражданской обороны. Дополнения и изменения в соответствии с постановлением правительства от 30 марта 1979 года. Раздел - Восстановление объектов. Владивосток, 1981. |
| Вильнюсский инженерно-строительный институт. Рекомендации по ремонту железобетонных конструкций полимерными составами на связующих ИКАС-3 и ЛКС-1. Вильнюс, 1973. |
26. | М.Р. Вельский, А.Н. Лебедев. Усиление стальных конструкций. Киев, 1981. |
| СНиП II-22-81. "Каменные и армокаменные конструкции. Нормы проектирования". |
| Рекомендации по усилению каменных конструкций зданий и сооружений. ЦНИИСК им. Кучеренко. М., Стройиздат, 1984. |
29. | Научно-технический отчет по теме: "Провести исследования и разработать предложения по методам восстановления эксплуатационных свойств наружных стен и окон промышленных зданий при их реконструкции". М., 1984. |
| В.П. Дадык, И.С. Шапран. Справочник по ремонтно-строительным работам жилых и гражданских зданий. Госстройиздат УССР, Киев, 1963. |
| Руководство по проектированию каменных и армокаменных конструкций. М. Стройиздат, 1977. |
| В.А. Зурнаджи, М.П. Филатова. Усиление оснований и фундаментов при ремонте зданий. М., Стройиздат, 1970. |
| Полимербетонная смесь. Авт. свид. СССР, N 1073212, кл. C 04 В 25/02, 1983. |
| Бетонная смесь для наращивания и восстановления изношенного слоя цементно-бетонной поверхности. Авт. свид. СССР N 247832, кл. 80в, 3/03, 1969. |
| Быстросхватывающаяся уплотняющая смесь. Авт. свид. СССР N 300436, кл. C 04в 13/02, 1971. |
| НИИСК, ЦНИИСК, НИИЖБ. Руководство по ускоренной оценке состояния строительных конструкций промышленных зданий и сооружений и их усилению и восстановлению после воздействия на них взрыва и пожара. Москва., "Стройиздат", 1984. |