Главная // Актуальные документы // Методическое пособиеСПРАВКА
Источник публикации
М., 2018
Примечание к документу
Название документа
"Методическое пособие. Проектирование зданий общеобразовательных организаций"
"Методическое пособие. Проектирование зданий общеобразовательных организаций"
ПРОЕКТИРОВАНИЕ ЗДАНИЙ ОБЩЕОБРАЗОВАТЕЛЬНЫХ ОРГАНИЗАЦИЙ
Настоящее пособие разрабатывается в развитие положений
СП 251.1325800.2016 "Здания общеобразовательных организаций. Правила проектирования" для реализации проектировщиками требований, заложенных в сводах правил, и выполнения более грамотного и рационального проектирования школ различной вместимости и различных ступеней образования.
Задачи разработки пособия:
- разъяснение особенностей проектирования зданий общеобразовательных организаций и обеспечение реализации требований
СП 251.1325800.2016 "Здания общеобразовательных организаций. Правила проектирования";
- рекомендации и разъяснения по применению возможных архитектурно-планировочных решений зданий и участков школ различной вместимости и различных ступеней образования;
- развитие положений
СП 251.1325800 по специфике проектирования зданий образовательных организаций (далее - ОО) различных типов, в том числе блоков начальных классов (далее - БНК), для обеспечения требуемого набора типов зданий при формировании городской образовательной сети в различных градостроительных ситуациях и с учетом современных педагогических требований;
- развитие положений
СП 251.1325800 в части методических подходов к расчету требуемых площадей школьных помещений для полноценного обеспечения учебного плана государственного образовательного стандарта и повышения уровня комфорта образовательной среды в целом, на основе организационных схем обучения и принципа интенсификации использования школьных площадей;
- конкретизация мероприятий по обеспечению безопасной эксплуатации зданий и участков ОО, обеспечивающих требования Технического
регламента о безопасности зданий и сооружений, разъяснения об объеме включения необходимой информации в проектную документацию в целях создания единого методического подхода к формированию соответствующего раздела проектной документации.
- обобщение опыта проектирования и эксплуатации зданий ОО для выявления наиболее эффективных и экономичных проектных решений, обеспечивающих безопасность пребывания детей в ОО и формирования образовательной среды в соответствии с современными педагогическими требованиями. Пособие разработано авторским коллективом: арх. А.Ю. Солодова, к.э.н. Е.А. Лепешкина (АО Московский научно-исследовательский и проектный институт типологии и экспериментального проектирования).
В Пособии сохранена структура и порядок изложения
СП 251.1325800.2016, но более глубоко развиты его основные положения.
Дополнительно введены разделы, касающиеся вопросов современных условий и концепции обучения - применения информационно-образовательной среды, размещения дошкольных групп в структуре образовательных организаций, современных решений зданий полных школ. Подробно рассмотрены вопросы планирования школьной территории.
Применение Пособия позволяет решить следующие задачи: 1) планировать современную систему зданий общеобразовательных учреждений, состоящую из школ начального, основного и старшего уровня образования, гимназий, лицеев; 2) доводить (модернизировать) существующую сеть школьных зданий до уровня современных педагогических требований; 3) формировать различные виды и типы зданий по организационно-педагогической структуре, составу и площадям помещений в зависимости от местных, региональных и общегородских условий и особенностей содержания обучения; 4) создавать более современные объемно-планировочные решения, включая вопросы создания зданий общеобразовательных организаций, отвечающих предложениям Национальной образовательной инициативы "Наша новая школа". Пособие предназначено для проектных организаций, занимающихся планировкой, застройкой и реконструкцией жилых районов, а также проектированием новых современных зданий общеобразовательных учреждений и реконструкцией существующих зданий школ; федеральных государственных органов и органов государственной власти субъектов Российской Федерации, осуществляющих государственное управление в сфере образования, и органов местного самоуправления, осуществляющие управление в сфере образования, созданных ими консультативных, совещательных и иных органов.
В настоящем своде правил использованы ссылки на следующие документы:
ГОСТ 27751-2014 "Надежность строительных конструкций и оснований. Основные положения"
ГОСТ 30247.1-94 "Конструкции строительные. Методы испытаний на огнестойкость. Несущие и ограждающие конструкции"
ГОСТ 30494-2011 "Здания жилые и общественные. Параметры микроклимата в помещениях"
ГОСТ 31937-2011 "Здания и сооружения. Правила обследования и мониторинга технического состояния"
ГОСТ Р 50571.28-2006 (МЭК 60364-7-710:2002) "Электроустановки зданий. Часть 7-710. Требования к специальным электроустановкам. Электроустановки медицинских помещений"
ГОСТ Р 51844-2009 "Техника пожарная. Шкафы пожарные. Общие технические требования. Методы испытаний"
ГОСТ Р 53307-2009 Конструкции строительные. Противопожарные двери и ворота. Метод испытаний на огнестойкость
ГОСТ Р ЕН 1177-2013 "Покрытия игровых площадок ударопоглощающие. Определение критической высоты падения"
СП 1.13130.2009 "Системы противопожарной защиты. Эвакуационные пути и выходы"
СП 2.13130.2012 "Системы противопожарной защиты. Обеспечение огнестойкости объектов защиты"
СП 3.13130.2009 "Системы противопожарной защиты. Система оповещения и управления эвакуацией людей при пожарах. Требования пожарной безопасности"
| | ИС МЕГАНОРМ: примечание. Текст абзаца дан в соответствии с официальным текстом документа. | |
СП 4.13130.2013 "Системы противопожарной защиты. Системы противопожарной защиты ограничение распространения пожара на объектах защиты требования к объемно-планировочным и конструктивным решениям"
СП 5.13130.2009 "Системы противопожарной защиты. Установки пожарной сигнализации и пожаротушения автоматические. Нормы и правила проектирования"
СП 8.13130.2009 "Системы противопожарной защиты. Источники наружного противопожарного водоснабжения. Требования пожарной безопасности"
СП 10.13130.2009 "Системы противопожарной защиты. Внутренний противопожарный водопровод. Требования пожарной безопасности"
СП 12.13130.2009 "Определение категорий помещений, зданий и наружных установок по взрывопожарной и пожарной опасности"
СП 42.13330.2016 "СНиП 2.07.01-89* Градостроительство. Планировка и застройка городских и сельских поселений"
СП 59.13330.2016 "СНиП 35-01-2001 Доступность зданий и сооружений для маломобильных групп населения"
СП 132.13330.2011 "Обеспечение антитеррористической защищенности зданий и сооружений. Общие требования проектирования"
СП 133.13330.2012 "Сети проводного радиовещания и оповещения в зданиях и сооружениях. Нормы проектирования"
СП 134.13330.2012 "Системы электросвязи зданий и сооружений. Основные положения проектирования"
СП 136.13330.2012 "Здания и сооружения. Общие положения проектирования с учетом доступности для маломобильных групп населения"
СП 138.13330.2012 "Общественные здания и сооружения, доступные маломобильным группам населения. Правила проектирования"
СП 140.13330.2012 "Городская среда. Правила проектирования для маломобильных групп населения"
СП 256.1325800.2016 "Электроустановки жилых и общественных зданий. Правила проектирования и монтажа"
СанПиН 2.1.2.1188-03 "Плавательные бассейны. Гигиенические требования к устройству, эксплуатации и качеству воды. Контроль качества"
СанПиН 2.2.1/2.1.1.1076-01 "Гигиенические требования к инсоляции и солнцезащите помещений жилых и общественных зданий и территорий"
СанПиН 2.2.1/2.1.1.1278-03 "Гигиенические требования к естественному, искусственному и совмещенному освещению жилых и общественных зданий"
СанПиН 2.2.1/2.1.1.2585-10 "Изменения и дополнения N 1 к санитарным правилам и нормам СанПиН 2.2.1/2.1.1.1278-03 "Гигиенические требования к естественному, искусственному и совмещенному освещению жилых и общественных зданий"
СанПиН 2.2.2/2.4.1340-03 "Гигиенические требования к персональным электронно-вычислительным машинам и организации работы"
СанПиН 2.4.1.3049-13 "Санитарно-эпидемиологические требования к устройству, содержанию и организации режима работы дошкольных образовательных организаций"
СанПиН 2.4.2.2821-10 "Санитарно-эпидемиологические требования к условиям и организации обучения в общеобразовательных учреждениях"
СанПиН 2.4.5.2409-08 "Санитарно-эпидемиологические требования к организации питания обучающихся в общеобразовательных учреждениях, учреждениях начального и среднего профессионального образования"
Примечание: При пользовании настоящим Пособием целесообразно проверить действие ссылочных документов в информационной системе общего пользования - на официальном сайте федерального органа исполнительной власти в сфере стандартизации в сети Интернет или по ежегодному информационному указателю "Национальные стандарты", который опубликован по состоянию на 1 января текущего года, и по выпускам ежемесячного информационного указателя "Национальные стандарты" за текущий год. Если заменен ссылочный документ, на который дана недатированная ссылка, то рекомендуется использовать действующую версию этого документа с учетом всех внесенных в данную версию изменений. Если заменен ссылочный документ, на который дана датированная ссылка, то рекомендуется использовать версию этого документа с указанным выше годом утверждения (принятия). Если после утверждения настоящего свода правил в ссылочный документ, на который дана датированная ссылка, внесено изменение, затрагивающее положение, на которое дана ссылка, то это положение рекомендуется применять без учета данного изменения. Если ссылочный документ отменен без замены, то положение, в котором дана ссылка на него, рекомендуется применять в части, не затрагивающей эту ссылку. Сведения о действии сводов правил целесообразно проверить в Федеральном информационном фонде стандартов.
3 Термины, определения и сокращения
В настоящем пособии применены следующие термины с соответствующими определениями:
Групповые занятия: занятия с разделением класса на группы.
Дежурное отопление: обогревание помещений с переменным тепловым режимом: установление в нерабочий период суток, в дни отдыха и праздников пониженной температуры воздуха.
Индивидуальные занятия: занятия с рассредоточением обучающихся по всему классному помещению для самостоятельного решения поставленных учителем задач; обучающиеся могут быть обращены лицом на периметр стен с закрепленным на них дидактическим материалом или проводить занятия с техническими средствами обучения.
Комбинированное искусственное освещение: искусственное освещение, при котором к общему искусственному освещению добавляется местное. |
Конструктивная огнезащита: способ огнезащиты строительных конструкций, основанный на создании на обогреваемой поверхности конструкции теплоизоляционного слоя средства огнезащиты.
Лаборантская: помещение для хранения и подготовки оборудования к проведению опытов учителем и лаборантом.
Лаборантская-практикум: помещение с совмещенными функциями лаборантской и практикума.
Лаборатория: помещение, специально приспособленное для проведения научно-исследовательской и учебной деятельности.
Метод технического обслуживания по состоянию: метод технического обслуживания и ремонта, основанный на обслуживании с планированием мероприятий по значениям фактических (текущих) параметров технического состояния элементов инженерного оборудования и конструктивных элементов зданий.
Многофункциональный интегрированный пожарный шкаф: вид пожарного инвентаря, предназначенного для размещения и обеспечения сохранности первичных средств пожаротушения, индивидуальной защиты, спасения людей и материальных ценностей.
Модульная решетка покрытия: конструкция с ячейками одинакового размера, предназначенными для засыпки грунта, защищающая корневую систему растений от физических повреждений и образующая твердую поверхность для проезда/прохода.
Нормативный ресурс: расчетное значение оставшегося срока эксплуатации элемента инженерного оборудования и конструкции до отказа.
Общеобразовательная организация: образовательная организация, осуществляющая в качестве основной цели ее деятельности образовательную деятельность по образовательным программам начального общего, основного общего и/или среднего общего образования.
Параллель классов: число классов, обучающихся по программе одного учебного года.
Примечание: Параллель 7-х классов - несколько классов школы, в которых детей обучают по общеобразовательной программе 7-го класса.
Площадки для тихого отдыха: площадки для настольных игр, чтения, созерцания природы, оборудованные скамейками, цветниками, фонтанами, столами для настольных игр.
Помещения вспомогательного назначения: коридоры, тамбуры, переходы, лестничные клетки, внутренние открытые лестницы и пандусы; лифтовые шахты; помещения, предназначенные для размещения инженерного оборудования и инженерных сетей.
Помещения, определяемые функциональными процессами: учебные и общешкольные помещения, определяемые заданием на проектирование и входящие в расчетную площадь.
Поселение - новостройка: существующие и вновь создаваемые городские и сельские поселения, численность населения которых с учетом строителей, занятых на сооружении объектов производственного и непроизводственного назначений, увеличивается на период ввода в эксплуатацию первого пускового комплекса в два раза и более.
Практикум (лаборатория-практикум): помещение для лабораторных практических и учебно-опытных работ.
Рекреация: помещение для отдыха обучающихся между уроками.
Примечание: Активная рекреация - спортивно-игровая среда для организации оптимального психофизиологического отдыха обучающихся в рекреационном пространстве образовательной организации на основе управляемого двигательного компонента.
Рекреационный центр: многофункциональное пространство (помещение) зального или атриумного типа, объединяющее общешкольные и учебные блоки. Предназначается для театральных и эстрадных действий, собраний, проведения зимних елок, маскарадов, танцев, музыкальных мероприятий и просто досуга.
Ресурсный центр: помещение при учебной секции, где сосредоточены наглядные учебные пособия и технические средства обучения.
Смешанные формы ведения урока: одновременное ведение фронтальных, групповых и индивидуальных форм работы.
Совмещенное освещение: сочетание бокового естественного освещения с искусственным.
Специализированный кабинет: учебное помещение, предназначенное для проведения занятий с учетом особенностей отдельных предметов и дисциплин.
Универсальная ячейка: группа помещений в трансформируемом блоке начальных классов, рассчитанная на пребывание одного класса или дошкольной группы.
Уровень образования: завершенный цикл образования, характеризующийся определенной единой совокупностью требований
Выделяют уровни общего образования:
1) дошкольное образование;
2) начальное общее образование: 1 - 4 (1 - 3) классы;
3) основное общее образование: 5 - 9 (5 - 8) классы;
4) среднее общее образование: 9 - 11 (8 - 11) классы.
Учебная секция: группа классных помещений (учебных кабинетов), рекреация, ресурсный центр и санузлы.
Учебный кабинет: помещение для проведения занятий по различным дисциплинам.
Фронтальные занятия: занятия, на которых все обучающиеся сидят лицом к классной доске и учителю.
Сокращения:
БНК - блок начальных классов;
ДОО - дошкольная образовательная организация;
ИКТ - информационно-коммуникационные технологии;
МГН - маломобильная группа населения;
ОО - общеобразовательная организация;
ОУ - осветительная установка;
ТСО - технические средства обучения.
| | ИС МЕГАНОРМ: примечание. В официальном тексте документа, видимо, допущена опечатка: Федеральный закон N 273-ФЗ "Об образовании в Российской Федерации" принят 29.12.2012, а не 26.12.2012. | |
4.1 Общественные отношения, возникающие в сфере образования в связи с реализацией права на образование, обеспечением государственных гарантий прав и свобод человека в сфере образования и созданием условий для реализации права на образование регулируются Федеральным
законом N 273 ФЗ от 26 декабря 2012 года "Об образовании в Российской Федерации"
4.2 В Российской Федерации образование подразделяется на общее образование, профессиональное образование, дополнительное образование и профессиональное обучение.
4.3 Общее образование реализуются по уровням образования. Установлены следующие уровни общего образования:
1) дошкольное образование;
2) начальное общее образование;
3) основное общее образование;
4) среднее общее образование.
Дополнительное образование включает в себя такие подвиды, как дополнительное образование детей и взрослых и дополнительное профессиональное образование.
4.4 Образовательная организация в зависимости от того, кем она создана, является государственной, муниципальной или частной.
4.5 Совокупность требований, обязательных при реализации образовательной программы представлена в Стандартах начального общего образования, основного общего образования, среднего (полного) общего образования. В стандарты в включены требования:
- к результатам освоения основной образовательной программы начального и основного общего образования;
- к структуре основной образовательной программ основного общего образования, в том числе требования к соотношению частей основной образовательной программы и их объему, а также к соотношению обязательной части основной образовательной программы и части, формируемой участниками образовательных отношений;
- к условиям реализации основной образовательной программ начального и основного общего образования, в том числе к кадровым, финансовым, материально-техническим и иным условиям.
- к результатам, структуре и условиям освоения основной образовательной программы начального и основного общего образования учитывая возрастные и индивидуальные особенности обучающихся при получении начального и основного общего образования, включая образовательные потребности обучающихся с ограниченными возможностями здоровья и инвалидов, а также значимость общего образования для дальнейшего развития обучающихся.
4.6 перечень учебных предметов и объем учебного времени, отводимого на их изучение по ступеням общего образования и учебным годам для образовательных учреждений Российской Федерации. устанавливается федеральным базисным учебным планом.
Сроки освоения государственных образовательных программ общего образования:
Уровень | Год обучения (класс) | Продолжительность учебного года (недель) | Продолжительность урока (минут) | Допустимая недельная нагрузка (часов) <**> | Кол-во уроков в день, не более |
Пятидневная неделя | 6 дневная неделя |
Начальное | 1 | 33 | 35 | 21 | - | 4 (+1) |
2 | 34 | 35 - 45 | 23 | 26 | 5 (+1) |
3 |
4 |
Основное | 5 | | 45 | 29 | 32 | 6 (+1) |
6 | 30 | 33 | 6 (+1) |
7 | 32 | 35 | 7 (+1) |
8 | 33 | 36 |
9 | 33 | 36 |
Среднее (общее) | 10 | 37 при шестидневной неделе 34 при пятидневной | 45 | 34 | 37 |
11 |
--------------------------------
<*> Продолжительность учебного года может быть изменена в пределах от 34 до 37 учебных недель.
4.7 В федеральном базисном учебном плане устанавливается соотношение между федеральным компонентом, региональным (национально-региональным) компонентом и компонентом образовательного учреждения:
- федеральный компонент - не менее 75 процентов от общего нормативного времени, отводимого на освоение основных образовательных программ общего образования,
- региональный (национально-региональный) компонент - не менее 10 процентов;
- компонент образовательного учреждения - не менее 10 процентов. Дополнительным резервом увеличения регионального (национально-регионального) компонента и компонента образовательного учреждения является увеличение продолжительности учебного года в установленных пределах.
В базисном учебном
плане (в редакции, введенной в действие с 1 сентября 2012 года
приказом Минобрнауки России от 1 февраля 2012 года N 74) для образовательных учреждений Российской Федерации приведены примерные учебные планы, имеющие рекомендательный характер.
4.8 Для образовательных организаций начального общего образования с родным русским и родным (нерусским) языком обучения:
- количество часов в год по учебным предметам;
- примерный учебный план (годовой);
- примерный учебный план (недельный);
4.9 Для образовательных организаций основного общего образования с родным русским и родным (нерусским) языком обучения:
- количество часов в год по учебным предметам;
- примерный учебный план (годовой);
- примерный учебный план (недельный);
4.10 Среднее (полное) общее образование - завершающая ступень общего образования. В старших классах вводится профильное обучение, являющееся системой специализированной подготовки, ориентированной на индивидуализацию обучения и социализацию обучающихся, в том числе с учетом реальных потребностей рынка труда, отработки гибкой системы профилей и кооперации старшей ступени школы с учреждениями начального, среднего и высшего профессионального образования.
4.11 Базовый учебный план для 10 - 11 классов содержит двухуровневый федеральный компонент - базовый и профильный, совокупность который определяет его состав.
4.12 Базовые общеобразовательные учебные предметы - минимальный набор предметов, направленный на завершение общеобразовательной подготовки обучающихся. Обязательными базовыми учебными предметами являются: русский язык, литература, иностранный язык, математика, история, физическая культура, основы безопасности жизнедеятельности, обществознание (включая экономику и право), естествознание, а также предметы по выбору.
4.13 Профильные общеобразовательные учебные предметы - учебные предметы федерального компонента, повышенного уровня, определяющие специализацию каждого конкретного профиля обучения. Так, физика, химия, биология являются профильными учебными предметами в естественнонаучном профиле; литература, русский язык и иностранный язык - в филологическом профиле; обществоведение, право, экономика и др. - в социально-экономическом профиле и т.д.
4.14 Возможные профили:
- физико-математический профиль;
- физико-химический профиль;
- химико-биологический профиль;
- биолого-географический профиль;
- социально-экономический профиль;
- социально-гуманитарный профиль;
- филологический профиль;
- технологический профиль (пример: информационно-технологический профиль, агротехнологический профиль, индустриально-технологический профиль);
- художественно-эстетический профиль;
- оборонно-спортивный профиль.
4.15 Региональный (национально-региональный) компонент и компонент образовательного учреждения для 10 - 11 классов представлены количеством часов, отводимых на их изучение.
4.16 Элективные учебные предметы - обязательные учебные предметы по выбору учащихся из компонента образовательного учреждения.
4.17 Наполняемость класса в соответствии с
СанПиН 2.4.2.2821-10 принимается в зависимости от принятой формы обучения. Рекомендуемое количество обучающихся в классной группе - 25 человек.
4.18 При проведении занятий по предметам: иностранный язык, технология, физическая культура, а также информатика и ИКТ, естествознание, физика и химия (во время проведения практических занятий) и при проведении элективных курсов в 10 - 11 классах осуществляется деление классов на две группы, в городских образовательных учреждениях при наполняемости 25 и более человек, в сельских - 20 и более человек.
4.19
Перечень средств обучения и воспитания, необходимых для реализации образовательных программ начального общего, основного общего и среднего общего образования, соответствующих современным условиям обучения, необходимый при оснащении общеобразовательных организаций в целях реализации мероприятий по содействию созданию в субъектах Российской Федерации (исходя из прогнозируемой потребности) новых мест в общеобразовательных организациях утвержден приказом Министерства образования и науки Российской Федерации от 30 марта 2016 года N 336.
4.20 Гигиенические рекомендации к расписанию уроков, такие как распределение учебной нагрузки в течение учебной недели и по времени дня в зависимости от биоритмилогического оптимума умственной работоспособности детей приведены в
приложении 3 СанПиН 2.4.2.2821-10
4.21 Концепция современного образования (Национальная образовательная инициатива "Наша новая школа")
4.21.1 Главные задачи современной школы - раскрытие способностей каждого ученика, воспитание порядочного и патриотичного человека, личности, готовой к жизни в высокотехнологичном, конкурентном мире. Школьное обучение должно быть построено так, чтобы выпускники могли самостоятельно ставить и достигать серьезных целей, умело реагировать на разные жизненные ситуации.
4.21.2 Функциональные требования и характеристики к архитектуре современных общеобразовательных организаций выработаны с учетом того, что школа XXI века призвана создать комфортную и одновременно развивающую образовательную среду - как прообраз будущего общества, постоянно обновляющегося, но в то же время "человекоориентированного", т.е. предоставляющего максимум возможностей для самовыражения и самосовершенствования.
4.21.3 Ребенок в школе будет пробовать себя в разных видах деятельности, тестировать различные социальные роли - значит, само пространство школы должно предоставить ему возможность подобных образовательных путешествий. Занятия в классных коллективах (до 30 человек) будут чередоваться с групповыми (12 - 15), индивидуальными (1 - 3) и поточными (до 100 человек в большой лекционной аудитории).
4.21.4 Сами архитектурные проекты представляются модульными конструкторами, по-разному сочетающими целый спектр возможных стандартизированных вариантов (в том числе, рассчитанных на разную предельную наполняемость).
4.21.5 Здания школы, являются сами по себе учебными пособиями, их фасады и внутренняя организация пространства должны транслировать разнообразие во всем (размер, форма, цвет). При этом в каждой школе должен быть некий индивидуальный элемент (геометрия фасада, интерьерные решения, сочетания цветов и фактур, малые архитектурные формы, разновысотные потолки, с возможностью смены режима освещения, модульные (в т.ч. мягкие), раздвижные стены для мобильной трансформации и др.), придающий ей неповторимость и отражающий специфику ("лицо") учебного заведения.
4.21.6 Общие требования
4.21.7 Создание "школ ступеней" (архитектурное зонирование): начальная школа (I ступень, 1 - 4 классы), подростковая школа (II ступень, 5 - 9 классы), старшая школа (III ступень, 10 - 11 классы). Каждая пространственная зона (блок) имеет свой вход с улицы, свою пришкольную территорию (возможно, внутренний дворик). При этом в школе должен быть центральный вход, ведущий к центральному общественному пространству школы (атриум), вокруг этого пространства должна выстраиваться композиция из блоков (начальной, подростковой и старшей школы). Наличие спортивного зала, бассейна и столовой в каждом "возрастном" блоке или в отдельном блоке. Блоки начальной, подростковой и старшей школы должны предлагать совершенно разные конструктивные и интерьерные решения, отражающие специфику возрастной психологии и образовательной программы. Возможность предусмотреть блок групп для дошкольного возраста. Кроме пространственного зонирования обязательны спальня (обеспечивающая звукоизоляцию) и отдельная внутришкольная игровая и пришкольная территории.
4.21.8 "Школа полного дня" предусматривает наличие блока дополнительного образования (направления: театральное, музыкальное, художественное, техническое, спортивное). Этот блок должен быть смежным с центральным общественным пространством школы (атриум) и обладать отдельным выходом, для возможности обслуживания местного населения района.
Соблюдение принципов энергоэффективности:
- типовые инженерные решения на основе новейших достижений в области вентиляции, кондиционирования и отопления;
- вентиляция пищеблоков столовых должна учитывать новую технику технологию приготовления пищи. Технологическое тепло необходимо утилизировать не менее чем на 50%;
- схемы прямоточного воздухообмена в кухнях необходимо заменять на системы с активированными (приточно-вытяжными зонтами);
- системы водяного отопления необходимо проектировать по двухтрубной схеме с пофасадным регулированием температуры в помещениях. Применять системы отопления с использованием теплых полов.
4.21.9 Разработка общей системы безопасности школьных зданий и пришкольной территории.
4.21.10 Обеспечение безбарьерной среды для учащихся с ограниченными возможностями здоровья (подъемники, лифты, широкие дверные проемы для возможности проезда на коляске пандусы, цветовая маркировка элементов интерьера и экстерьера здания для удобства учащихся с нарушенным зрением и др.)
4.21.11 Использование крыши зданий для формирования рекреационной спортивной зоны (в том числе, озеленение поверхности крыши).
4.21.12 Использование внутренних и внешних поверхностей стен здания для размещения больших мультимедиаэкранов, где может отображаться учебная, справочная, досуговая (развлекательная) информация, а также медиапродукты творческой деятельности учащихся: презентации, фильмы, мультфильмы, фотографии и др.
5 Требования к организации сети, виды и типы общеобразовательных организаций
5.1 Школа выполняет социальную функцию центра учебно-воспитательной работы в жилой среде, что обуславливает ее открытый характер для активного приобщения населения, общественности и семьи к воспитанию детей и совместной развивающей деятельности по интересам.
5.2 Для управления, организации, проведения и контроля учебно-воспитательного процесса предусматривается широкое применение технических средств обучения, электронно-вычислительной техники на уровне системы обслуживания сети учебно-воспитательных зданий, внедрение информационно-образовательной среды
5.3 Материальной базой развития личности должна стать развитая сеть учебно-воспитательных учреждений, представляющих собой единую систему, состоящую из взаимодополняющих зданий общеобразовательных учреждений автономных и сетевых общеобразовательных школ (жилой микрорайон - район); межшкольных и школьных учебно-производственных комбинатов, и мастерских, внешкольных учреждений и других учебно-воспитательных зданий (жилой район - город).
5.4 В соответствии с законом об образовании в Российской Федерации для широкого образовательного и воспитательного процессов должны функционировать следующие виды учреждений:
- дошкольное образование (возраст 3 - 7 лет)
- начальное общее образование (1 - 4 классы);
- основное общее образование (5 - 9 классы);
- среднее (полное) общее образование (10 - 11 классы), гимназии, лицеи.
Дополнительные общеобразовательные программы подразделяются на общеразвивающие и предпрофессиональные программы.
5.5 Номенклатура видов и типов зданий ОО:
5.5.1 Для формирования системы зданий ОО города предлагается примерная номенклатура видов и типов зданий:
5.5.2 Группа 1 - средние полные школы (I, II и III ступеней) в составе I - XI классов, с организационно-педагогической структурой 1:0:0, 2:0:0, 3:0:0, 4:0:0 т.е. с равным числом параллелей классов по всем ступеням;
5.5.3 Группа 2 - неполные (сетевые) школы: начальные школы (БНК) в составе 1 - 4 классов, с организационно-педагогической структурой 1:0:0, 2:0:0 и 3:0:0; также могут включать дошкольные группы и старшие школы в составе 5 - 9 и 5 - 11 классов с организационно-педагогической структурой 0:1:1, 0:2:2, 0:3:3, 0:4:4, 0:1:0, 0:2:0, 0:3:0, 0:4:0, 0:0:8, 0:0:10, 0:0:12,
5.5.4 Группа 3 - образовательные комплексы, в состав которых входят дошкольные группы.
5.5.5 Группа 4 и 5 - гимназии и лицеи с организационно-педагогической структурой 0:1:1, 0:2:2, 0:3:3 и 0:2:2, 0:3:3, 0:0:9.
5.5.6 Номенклатура видов и типов зданий ОО приведена в
приложении А СП 251.1325800.2016.
5.5.7 Организации, реализующие программы различных уровней образования, могут размещаться автономно или формироваться в комплексы в разнообразных сочетаниях.
5.6 В соответствии с
таблицей Д.1 СП 42.13330.2016 и
п.п. 2.4 -
2.6 СанПиН 2.4.2.2821-10 радиус пешеходной доступности для организации начального образования составляет не более 300 м, для основного и среднего образования - не более 500 м.
5.7 В соответствии с
приложением Д СП 42.13330.2016 вместимость ОО следует принимать с учетом 100%-ного охвата детей начальным общим и основным общим образованием (I - IX классы) и до 75% детей - средним общим образованием (X - XI классы) при обучении в одну смену. В поселениях-новостройках необходимо принимать не менее 180 мест на 1 тыс. чел.
5.8 Сетевая форма реализации образовательных программ
5.8.1 Образовательные программы реализуются организацией, осуществляющей образовательную деятельность, как самостоятельно, так и посредством сетевых форм их реализации.
5.8.2 Минобрнауки России, субъекты Российской Федерации проводятся программы по развитию сетевого взаимодействия образовательных учреждений, в том числе в регионах с ярко выраженной региональной и этнокультурной составляющей, обеспечивающих обучение детей с ограниченными возможностями здоровья, Развитие дистанционного образования, в том числе распространение отработанных в ходе реализации приоритетного национального
проекта "Образование" моделей организации дистанционного обучения детей-инвалидов, нуждающихся в обучении на дому
5.8.3 Сетевая форма реализации образовательных программ (далее - сетевая форма) обеспечивает возможность освоения обучающимся образовательной программы с использованием ресурсов нескольких организаций, осуществляющих образовательную деятельность, в том числе иностранных, а также при необходимости с использованием ресурсов иных организаций. В реализации образовательных программ с использованием сетевой формы наряду с организациями, осуществляющими образовательную деятельность, также могут участвовать научные организации, медицинские организации, организации культуры, физкультурно-спортивные и иные организации, обладающие ресурсами, необходимыми для осуществления обучения, проведения учебной и производственной практики и осуществления иных видов учебной деятельности, предусмотренных соответствующей образовательной программой.
6 Зонирование земельного участка. Возможности использования межшкольных стадионов
6.1 Размещение территории школы в системе жилой застройки. Границы участка.
6.1.1 Размещение участков, зданий и сети ОО в застройке, размеры земельного участка определяются в соответствии с [2],
таблицей Д.1 СП 42.13330.2016,
СанПиН 2.4.2.2821.
6.1.2 Участки ОО не должны примыкать непосредственно к магистральным улицам. Через территории участков ОО не должны проходить магистральные инженерные сооружения и коммуникации (сети, коллекторы) муниципального ресурсо- и энергоснабжения в том числе: газоснабжения, теплоснабжения, водоснабжения, канализации, электроснабжения и связи. Не допускается наличие санитарно-защитных зон и защитно-охранных зон.
6.1.3 При размещении территории школы преимущество следует отдавать участкам, расположены внутри жилых кварталов. Доступ основного потока детей в школу рекомендуется устраивать без пересечения в одном уровне элементов улично-дорожной сети с плотным потоком транспорта (за исключением проезжей части на внутридворовых территориях).
6.1.4 В сложившейся застройке, при явно выраженных недостатках участка территории, таких как:
- неудобные габариты участка, не позволяющие разместить полноценный набор площадок;
- невозможность соблюдения требований к инсолируемости территории;
- недостаток площади участка;
допускается располагать отдельные зоны территории ОО (физкультурно-оздоровительную, учебно-опытную и т.д.) на автономных участках, находящихся в пешеходной доступности от здания ОО.
При разделении территории ОО на несколько участков соблюдается следующий принцип: на участке, удаленном от здания ОО могут размещаться площадки, посещаемые детьми под присмотром преподавателя в течение длительного времени (урок и более). Таким образом, на отдалении от основной территории, где размещено здание, могут находиться площадки физкультурно-спортивной зоны (до 500 м), учебно-опытная зона и площадки для дошкольных групп (не далее 300 м от своего входа). Принцип разделения территории ОО может быть реализован следующим образом:
- размещение физкультурно-спортивной зоны на отдельном участке, используемом только образовательной организацией;
- размещение физкультурно-спортивной зоны на огороженной общественной территории, используемой в течение учебного дня обучающимися и по окончании - населением;
- использование для уроков физкультуры существующих спортивных сооружений, соответствующих требованиям санитарно-гигиенических норм;
- организаций общей физкультурно-спортивной зоны для нескольких образовательных организаций (межшкольные стадионы).
Все указанные решения должны быть согласованы с местными органами управления, формирующими сеть образовательных организаций и собственниками физкультурно-спортивных сооружений.
6.1.5 Между отдельными участками территории общеобразовательной организации, а также при движении обучающихся от остановок общественного транспорта к территории, должно быть организовано безопасное пешеходное движение:
- устройство пешеходного движения без пересечения в уровне проезжей части;
- через внутриквартальные проезды должны быть организованы регулируемые наземные переходы, оборудованные устройствами, препятствующими развитию большой скорости.
- через дороги с активным движением (магистральные районного значения и проч.) - надземные и подземные пешеходные переходы;
- при размещении территории школы на двух и более участках, разделенных проездом с активным движением, целесообразен вариант устройства наземного либо подземного перехода, соединяющего две огороженные части территории.
6.1.6 Стоянки для автомобилей при территории ОО делятся на временные места хранения автомобилей для преподавателей, которые должны быть отнесены от территории на расстояние не менее 25 м и места остановки для посадки - высадки обучающихся, которых родители привозят в школу на личном транспорте. На данных местах хранение автотранспортных средств не предусматривается, поэтому они могу быть размещены в непосредственной близости к территории ОО.
Следует разделять подъезды автотранспорта и пешеходные подходы с обязательным выделением пешеходной части (тротуара). Подъезд к территории и площадку для остановки для выгрузки детей, а также стоянку для сотрудников, следует делать в стороне от основного пешеходного потока. Не допускается делать пешеходные подходы к участку с пересечением мест стоянки и маневрирования автомобилей. Однако, при необходимости, второй въезд на территорию (используемый только пожарной машиной) допускается делать по укрепленному тротуару. Схемы размещения пожарного проезда приведены на Ошибка! Источник ссылки не найден. Ошибка! Источник ссылки не найден..
6.1.7 При входе на участок, особенно если доступ родителей и встречающих на территорию не предусматривается, рекомендуется устраивать расширенную площадку для встречающих, оборудованную городской мебелью и урнами.
6.2.1 Территория ОО представляет собой систему открытых площадок, разделенных по видам деятельности и возрастной принадлежности, на которых размещаются оборудование, сооружения, малые архитектурные формы и озеленение с учетом функциональных и планировочных требований к каждой отдельной зоне и во взаимосвязи с окружающей селитебной территорией.
Основные элементы территории ОО:
- здание;
- пожарный проезд, дорожки и подходы;
- хозяйственна зона;
- рельеф и участок;
- озеленение;
- зона отдыха;
- физкультурно-спортивная зона;
- учебно-опытная зона.
Перечень элементов участка для образовательных организаций с различной функциональной структурой приведен в таблице 1.
Таблица 1
Перечень элементов участка для общеобразовательных
организаций с различной функциональной структурой
| Наименование элементов благоустройства | Типы общеобразовательных организаций |
Трансформируемый БНК | БНК 1 ступени образования | ОО 2 - 3 ступеней образования (старшая школа) | ОО 1 - 2 - 3 ступеней (полная школа) |
| Проезды и проходы | + | + | + | + |
| Зона отдыха в т.ч.: |
1 | Дошкольные групповые площадки | + | П | - | П |
2 | 1 кл. | + | + | - | + |
3 | 2 - 4 кл. | + | + | - | + |
4 | 5 - 9 кл. | - | - | + | + |
| Хозяйственная зона |
1 | Хозяйственная площадка | + | + | + | + |
2 | Площадка для мусоросборников | + | + | + | + |
| Площадка для линеек перед входом | + | + | + | + |
| Учебно-опытная зона |
1 | Экотропа для 1 классов | П | П | - | П |
2 | Участок полевых и овощных культур или плодово-ягодный питомник | П | П | П | П |
3 | Участок цветочно-декоративных растений | П | П | П | П |
4 | Многофункциональная площадка с твердым покрытием (для занятия живописью, биологией, наблюдений за атмосферными явлениями, лекций на воздухе) | П | П | П | П |
6 | Спортивные площадки: |
1 | Универсальная всесезонная дорожка для спортивной ходьбы, бега на средние и длинные дистанции, эстафетного и кроссового бега, лыжной подготовки длиной 200 м | + | + | + | + |
2 | Универсальная всесезонная круговая беговая дорожка - прямой участок длиной 100 м | - | - | + | + |
3 | Футбол | - | - | + | + |
4 | Баскетбол | П | П | + | + |
5 | Волейбол | П | П | + | + |
6 | Прыжки в длину и в высоту | + | + | + | + |
7 | Спортивно-развивающая площадка | - | - | + | + |
8 | Площадка для общефизической, спортивно-развивающей подготовки детей (1 - 4 классы) | + | + | - | + |
9 | Озеленение: | + | + | + | + |
П - принимается по заданию на проектирование |
6.2.2 Участок должен быть обустроен малыми архитектурными форма-освещен; иметь мощеные покрытия и травяной газон, и гармонировать с архитектурой здания.
6.2.3 На территориях детских игровых площадок, спортивных площадок жилых домов; групповых площадок дошкольных учреждений; спортивной зоны, зоны отдыха общеобразовательных школ и школ-интернатов продолжительность инсоляции должна составлять не менее 3 часов на 50% площади участка независимо от географической широты.
6.2.4 При размещении территории ОО на земельном участке с выраженным перепадом рельефа, места сопряжения горизонтальных участков ландшафта, расположенных на разной высоте, рекомендуется организовывать в виде естественных откосов с травяным покровом. На откосах возможно устройство различных элементов: амфитеатра для занятий и представлений на свежем воздухе, горок и стенок для скалолазания. При устройстве подпорных стен выше 0,45 м требуется устройство ограждения.
6.2.5 Территория ОО должна иметь наружное искусственное освещение. Уровень искусственной освещенности на земле должен быть не менее 10 лк. В зимний период дополнительные занятия заканчиваются после захода солнца, кроме того после 8 вечера территория ОО может посещаться жителями района, поэтому равномерное освещения участка важно для использования уличных площадок в темное время суток.
6.2.6 В соответствии с требованиями
СанПиН 2.4.2.2821 территория участка должна быть ограждена, отсутствие ограждения допускается только со стороны стен здания, непосредственно прилегающих к проезжей части улицы или пешеходному тротуару. При этом должен быть обеспечен проезд пожарных автомобилей вокруг здания в соответствии с требованиями
СП 4.13130. Высота и прочие характеристики ограждения определяются локальными нормативными актами, регулирующими требования к благоустройству территориального образования, в котором размещен участок ОО.
6.3.1 Школьные здания и комплексы должны иметь привлекательный внешний вид, соотнесенный с окружающим ландшафтом и рельефом местности.
6.3.2 Входы-выходы на территорию целесообразно располагать на расстоянии не менее 50 м от улиц с интенсивным автомобильным движением.
6.3.3 Пространство перед зданием рекомендуется организовывать в виде центрального школьного двора, так, чтобы главный вход просматривался от основного входа на участок, чтобы родители могли видеть выходящих детей. Для быстрого и удобного входа обучающихся в здание проход к главному входу рекомендуется устраивать шириной не менее 3,5 м, без препятствий по ходу движения
6.3.4 Перед главным входом в здание устраивают площадку для общих сборов, торжественных мероприятий, экстренной эвакуации. Форма площадки должна обеспечивать возможность построения обучающихся полукругом по классам во время торжественных линеек. Если условия не позволяют устроить площадку перед входом в здание - возможно для этих целей использовать спортивные площадки и площадки отдыха, свободные от оборудования, которым также устраивается расширенный проход от главного входа (не менее 3,5 м).
6.3.5 Главный вход в здание должен иметь торжественный вид, крыльцо возможно рассматривать как трибуну для парадных обращений директора к обучающимся, эстраду для общешкольных представлений на свежем воздухе и т.д.
6.3.6 Рядом со входом в здание устанавливают стойку для хранения велосипедов, самокатов и скейтбордов, устраивают зону отдыха с лавочками и скамейками, которой так же пользуются встречающие родители.
6.4 Пожарный проезд, дорожки и проходы
6.4.1 Все элементы участка рекомендуется связывать сетью дорожек, проходов и проездов. Ширина проездов и проходов принимается в зависимости от назначения элементов. К элементам участка, к которым планируется доступ МГН (площадки отдыха и занятий на воздухе, спортивные площадки для МГН, трибуны при школьном спортивном ядре) - проход устраивается шириной не менее 2,0 м с продольным уклоном не более 5% и поперечным уклоном не менее 2%. Остальные дорожки и проходы могут быть меньшей ширины и рассчитываться для удобного использования их отдельными группами и классами учащихся.
| | ИС МЕГАНОРМ: примечание. В официальном тексте документа, видимо, допущена опечатка: имеется в виду СП 4.13130.2013, а не СП 4.13330. | |
6.4.2 Пожарный проезд вокруг здания школы проектируется в соответствии с
СП 4.13330. Ширина и расстояние края пожарного проезда от края здания зависят от высоты здания. Это должна быть укрепленная поверхность, выдерживающая нагрузку от пожарной машины. При дефиците площади территории допускается:
- включать в ширину пожарного проезда тротуар;
- устраивать пожарный проезд по модульным решетчатым покрытиям, с включением указанного покрытия в ТЭП озеленения;
- устраивать пожарный проезд по площадкам, свободным от оборудования;
- совмещать пожарный проезд с внутриквартальным проездом за территорией ОО при соблюдении нормативных расстояний.
Пути движения транспорта на территории ОО должны быть оборудованы устройствами, исключающими возможность развития транспортными средствами высокой скорости (искусственная неровность, сокращение длинных прямых участков и т.д.). Подъезд к зданию не рекомендуется устраивать под прямым углом.
Рисунок 1 - Принципиальная схема организации
пожарного проезда по территории ОО
6.4.3 Пути регулярного движения транспорта по территории ОО проектируются с твердым покрытием:
- к контейнерной площадке;
- к загрузочной пищеблока;
- к иным входам в здание при их удаленности от хозяйственной зоны (входа в спортзал для загрузки тяжелого оборудования, входа в музыкальный зал).
Вдоль проезжей части должен быть устроен пешеходный тротуар.
6.4.4 На территорию ОО устраивается не менее двух въездов, один из них хозяйственный.
6.4.5 Въезд в хозяйственную зону рекомендуется предусматривать самостоятельным с улицы или внутриквартального проезда, изолированно от входа обучающихся на территорию ОО.
6.4.6 Второй выезд с территории ОО допускается устраивать по пешеходному тротуару входной зоны с возможность проезда. В этом случае ширина пешеходного тротуара принимается равной ширине пожарного проезда либо расширяется до необходимой ширины за счет модульных решетчатых покрытий и другого укрепленного основания.
6.4.7 В условиях сложившейся (плотной) городской застройки допускается отсутствие самостоятельного въезда с улицы при условии организации подъезда автотранспорта к хозяйственной площадке в период отсутствия обучающихся в ОО.
6.4.8 В крупных населенных пунктах автобус для перевозки детей используется для организованной доставки детей на различные мероприятия. В сельских населенных пунктах с низкой плотностью застройки автобус также используется для доставки детей от дома до школы и обратно.
6.4.9 Место кратковременной остановки школьного автобуса для посадки-высадки детей рекомендуется располагать внутри огороженной территории ОО. Оптимальное место для места посадки - высадки - площадка перед основным входом в здание. В это случае пути движения транспорта по территории ОО должны учитывать пространство для маневрирования автобуса. В случае, если возможность организовать подъезд автобуса ко входу отсутствует, используется другое место на участке, от которого следует предусмотреть удобный подход к основному входу. Допускается организация эпизодического проезда автобуса по территории по укрепленному пешеходному тротуару.
6.4.10 При размещении автобусной остановки для посадки-высадки детей за границами территории ОО, к месту посадки - высадки должен быть организован безопасный пешеходный доступ.
6.4.11 При организации путей движения следует отдавать предпочтение устройству пологих спусков с использованием существующего рельефа, использование механических подъемных устройств для МГН на территории ОО не рекомендуется.
| |
А. Схема организации входа на территорию ОО, прилегающую к улице с автомобильным движением | Б. Схема организации входа на территорию ОО, расположенную в глубине жилой зоны. |
Рисунок 2 - Принципиальная схема организации
входов и въездов на территорию ОО
6.5.1 Хозяйственная зона предназначается для размещения хозяйственных построек, мусоросборников, некапитальных объектов для хранения оборудования и инвентаря (разрешается размещать в подвальном или цокольном этаже здания с отдельным выходом наружу). Навес для инвентаря допускается пристраивать к хозяйственной постройке. При отсутствии централизованного тепло- и водоснабжения на территории хозяйственной зоны размещают котельную и насосную с водопроводным баком. С учетом местных условий в хозяйственной зоне допускается размещение овощехранилища. Состав и площади хозяйственных построек определяются заданием на проектирование в зависимости от местных условий.
6.5.2 Хозяйственная зона располагается со стороны входа в производственные помещения столовой, на границе участка, и имеет самостоятельный въезд с улицы. Она не должна быть видна от главного (парадного) входа на участок, от остальных элементов ее следует отделять зелеными насаждениями;
6.5.3 При размещении площадки для мусоросборников следует соблюдать следующие требования:
- площадку для мусоросборников располагают при хозяйственном въезде на участок, желательно рядом с границей участка. На территории участка дошкольного учреждения подъезд к хозяйственной площадке рекомендуется делать минимальной длины и без пересечения пешеходных дорожек, ведущих к детским площадкам. У мусоровоза должна быть возможность развернуться и не следовать дальше по участку. При необходимости у площадки для мусоросборников устраивают место для разворота размерами 12 x 12 м;
- расстояние от площадки для мусоросборников до дверей пищеблока должно быть не менее 25 м;
- необходимо соблюдать разрыв 20 м от площадки для мусоросборников до спортивных площадок как на территории школы так и на территории жилой зоны.
6.6.1 Озеленение имеет значение при условии эксплуатации школьных помещений и открытых площадок в летнее время. Зеленые насаждения снижают температуру воздуха на 1,5 - 2 °C, интенсивность солнечной радиации на 50%, скорость ветра - до 60%, загрязнение воздуха - на 25 - 40%, относительную влажность воздуха - на 7 - 12%.
6.6.2 Озеленение участка является средством, обеспечивавшим санитарно-гигиенические требования: защиту от перегрева, ветра и шума, а также запыленности и загазованности воздуха. Кроме того, оно является одним из ограничителей отдельных элементов при планировке участка.
6.6.3 Озеленение территории ОО выполняют в соответствии с
пунктом 3.1 СанПиН 2.4.2.2821-10.
6.6.4 Площадь озеленения должна составлять не менее 50% общей площади участка общеобразовательного учреждения. Допускается снижение площади озеленения в условиях сформировавшейся плотной застройки до 20%.
6.6.5 В площадь озеленения должны включаться площади зеленых насаждений, учебно-опытной зоны, физкультурно-спортивной и зоны отдыха, а также газонов, защитных полос и изгородей из кустарников вокруг участков, травяного покрова футбольного поля (при наличии), модульные решетчаты покрытия и газон пожарного проезда.
6.6.6 Участок общеобразовательного учреждения рекомендуется изолировать от окружающей застройки живой изгородью или рядовой посадкой деревьев. Также зелеными насаждениями изолируют хозяйственную зону и иные элементы участка при необходимости их разделения. Предусматривают зеленые насаждения с плотной кроной между площадкой посадки-высадки детей и участком. Насаждения в этом случае могу располагаться как внутри участка, так и снаружи, здесь важен факт отделения площадки с машинами от людей, находящихся на территории.
6.6.7 Ширину зеленой полосы по границам земельного участка рекомендуется принимать не менее 1,5 м, а со стороны улицы - не менее 6 м. Расстояние от здания школы до деревьев принимается не менее 10 м, а до кустарников - 5 м.
6.7 Физкультурно-спортивная зона
6.7.1 Состав физкультурно-спортивной зоны определяется в соответствии с Федеральными государственными образовательными стандартами начального и основного общего образования, федеральным базисным учебным планом, требованиями к нормативам ГТО.
6.7.2 При расчете количества и состава физкультурных площадок также учитываются следующие факторы:
- вместимость общеобразовательного учреждения;
- число параллелей классов;
- соотношения потоков возрастных групп учащихся (1, 2 - 4, 5 - 9 и 10 - 11 классы);
- количество учебного и внеучебного времени проведения занятий и отдыха;
- интенсивность использования отдельных площадок;
- специфика видов занятий, наличие физкультурных секций;
- количество часов по предмету "физическая культура";
- требования к подготовке нормативов ГТО;
- возможности использования спортивных площадок населением.
6.7.3 Занятия на свежем воздухе проводятся круглый год. Мешают поведению занятий только неблагоприятные погодные условия - дождь, ветер и низкая температура. Требования к погодным условиям приведены в
приложении 7 СанПиН 2.4.2.2821-10.
6.7.4 В теплое время года на свежем воздухе занимаются командными видами спорта, гимнастическими упражнениями, прыжками в длину и высоту, бегом на короткие и длинные дистанции. В холодное время использование гимнастических снарядов (турников и проч.) затруднено, однако по-прежнему проводятся гимнастика и спортивная атлетика, бег на лыжах, командные игры, в том числе заливается спортядро для хоккея,
6.7.5 Физкультурно-спортивную зону следует распределять по возрастной принадлежности. Так, обучающиеся начальных классов занимаются командными видами спорта, бегом наперегонки без учета времени, гимнастическими упражнениями, прыжками в длину. Для них необязательно использование полноразмерных командных площадок. На беговой дорожке должно быть не менее четырех полос для приучения к движению по собственной полосе.
6.7.6 Старшие классы занимаются теми же видами спорта, что и начальные, но к этому добавляется бег с учетом времени на короткие до 100 м и длинные дистанции, футбол.
6.7.7 Для обеспечения максимальной эффективности использования земельных участков ОО рекомендуется физкультурно-спортивную зону размещать вблизи блока общешкольных помещений. Возможно размещение спортивных площадок на кровле помещений, в которых не нормируется уровень вибрации и шума - пищеблока, трудовых мастерских. Так как при удалении от поверхности земли падает уровень кислорода в воздухе, не рекомендуете устраивать эксплуатируемые кровли для спортивных занятий выше 2 этажа. При этом должны соблюдаться противопожарные требования по эвакуации, приведенные в
СП 112.13330.2011 СП 4.13130.2013 и требования к устройству кровельных покрытий
СП 17.13330. Спортивные площадки, размещаемые на эксплуатируемой кровле, должны иметь ограждение высотой не менее 3 м или выше (в зависимости от вида спорта) без горизонтальных членений. Расстояние в свету между вертикальными элементами ограждения должно быть не более 0,1 м.
6.7.8 Расстояния от спортивных площадок до окон жилых домов принимаются по СП 42.13330
п. 7.5.
6.7.9 Площадки для спортивных игр (кроме городков) ориентируются продольными осями в направлении север-юг с отклонением до 20° в каждую из сторон. Торцевую сторону площадок для городков следует ориентировать на север, северо-восток или восток. При нескольких площадках для игр одного вида допускается ориентация продольных осей одной трети площадок на восток-запад. Ориентация площадок, используемых только для физкультурно-оздоровительных занятий, по сторонам горизонта не регламентируется. Заливая площадки зимой под катки, их можно использовать почти круглый год, но необходимо озеленение, защищающее от ветра и летом от избыточной солнечной радиации.
6.7.10 Площадки следует группировать по назначению и возрасту обучающихся. Оборудование должно соответствовать росто-возрастным особенностям обучающихся. Компактное расположение спортивных площадок на участке способствует уменьшению количества твердых покрытий на участке за счет сокращения количества и протяженности дорожек и увеличению процента озеленения.
6.8.1 Зону отдыха рекомендуется формировать из площадок, предназначенных для проведения отдыха и оздоровительной работы в учебное (во время перемен) и внеучебное время (для групп и классов продленного и полного дня). В зависимости от возрастных особенностей учащихся она может делиться на площадки:
- для подвижных игр 1 классов (6 - 7 лет), 2 - 4 классов (7 - 9 лет), 5 - 9 классов (10 - 15 лет);
- для спокойного отдыха 5 - 9 классов (10 - 15 лет);
- для проведения активного отдыха учащихся 9 - 11 классов во время перемен.
6.8.2 Зону отдыха желательно размещать вблизи сада, зеленых насаждений, в отдалении от спортивной и хозяйственной зон, но при этом максимально приближать к соответствующим учебным блокам (для максимального использования их во время перемен). Площадки должны быть разделены для обучающихся каждой ступени школьного обучения.
6.8.3 Для организации тихого отдыха хорошо подходит внутренний двор, не обязательно полностью замкнутый, но создающий внутреннее пространство школьной жизни или эксплуатируемой кровля. Организация зоны отдыха на рельефе участка может быть предусмотрена в виде музея на открытом воздухе, лабиринтов для младших классов, оздоровительной тропы.
6.8.4 Для активного отдыха возможно использовать как площадки физкультурно-спортивной зоны, так и устраивать площадки для видов спорта, не включенных в образовательную программу - скейтборда, стритбола и других современных молодежных видов спорта, площадка для декоративных шахмат и шашек.
6.8.5 Игровые площадки для дошкольников размещают на участке при наличии в ОО дошкольных групп, реализующих основную общеобразовательную программу дошкольного образования. На территории выделяется игровая зона, оборудованная в соответствии с требованиями
СанПиН 2.4.1.3049.
6.8.6 В соответствии с
приложением 6 СанПиН 2.4.2.2821-10 местом отдыха дошкольников на свежем воздухе и проведение спортивного часа может быть пришкольный участок или специально оборудованные площадки. Кроме того, для этих целей могут быть использованы прилежащие скверы, парки, лес, стадионы.
6.9.1 Учебно-опытная зона предназначена для изучения процессов жизни растений, выполнения работ по агротехнике и привития практических навыков по метеорологии, ботанике, биологии. Территорию для учебно-опытной зоны рекомендуется подбирать ровную, хорошо инсолируемую (примерно в течение 5 ч в сутки), защищенную от господствующих ветров. Подпочвенная вода должна находиться не ближе 2 м от поверхности грунта.
6.9.2 Располагать учебно-опытную зону желательно неподалеку от хозяйственной, имеющей непосредственную связь с помещениями столовой;
6.9.3 В учебно-опытной зоне могут размещаются такие элементы, как:
- участки разнообразных культурных насаждений: полевых культур, овощных, плодово-ягодный сад, цветочно-декоративные растения;
- закрытые сооружения: парники, теплицы, специальные павильоны для коллекционно-селекционной работы, некапитальные объекты для хранения инвентаря. Так же возможно устройство оранжереи, зооуголка;
- экологическая тропа (для начальной школы) с маршрутом движения вдоль опытных участков с насаждениями, с расширениями в местах остановки при каждом участке для беседы с классов.
6.9.4 Элементы участка для проведения иных уличных занятий рекомендуется располагать поблизости от зоны отдыха, либо комбинировать с ней.
Это могут быть такие элементы, как:
- "классы на воздухе" для учащихся 1 - 9 классов допускается предусматривать на земельных участках школ, проектируемых для II, III и IV климатических районов. "Классы на воздухе" оборудуются уличной мебелью и рассчитываются не менее чем на 1 классную группу в соответствии с планируемой формой занятий. Классы на воздухе следует устраивать недалеко от входов в соответствующие учебные блоки. При устройстве нескольких классов не следует располагать их смежно, желательно соблюдать расстояние не менее 10 м и при этом изолировать друг от друга элементами ландшафта, озеленения, шумозащитными сооружениями;
- застекленные веранды для поведения занятий по изобразительному искусству и др. (площадь принимается не менее чем на классную группу в зависимости от планируемой формы занятий);
- амфитеатр для лекций и представлений на открытом воздухе (на одну параллель классов);
- площадка для изучения правил дорожного движения;
- плоскостные сооружения технического назначения для школ с техническим уклоном.
7 Функционально-планировочная организация зданий общеобразовательных организаций, состав помещений
7.1 Структура школьного здания
7.1.1 Здание ОО, как правило, состоит из учебной группы помещений и общешкольной. Может также включать дополнительную группу помещений рекреационного центра.
7.1.2 От взаиморасположения групп и трактовки планировочных элементов, входящих в эти группы, зависит эффект функционирования здания в целом.
7.1.3 Структура школьного здания должна обеспечивать:
- отделение учебных помещений от общешкольных (являющихся источниками шума, пыли и других загрязнений воздуха - спортзал, актовый зал, пищеблок, мастерские, административно-хозяйственные помещения);
- отделение обучающихся основного и старшего уровня от начального. Указанное разделение регламентировано
СанПиН 2.4.2.2821-10, обусловлено особенностями развития, функционального состояния детей, особенностями образовательного процесса на разных уровнях обучения;
- приближение учебных помещений к помещениям для отдыха детей (рекреациям и санитарным узлам);
- удобные и достаточно короткие связи учебных и рекреационных помещений с гардеробами и земельным участком, используемым для отдыха детей в перемену;
- благоприятные условия вентиляции и естественного освещения учебных и рекреационных помещений;
- возможность изоляции отдельных групп детей в случае возникновения инфекционных заболеваний в целях предупреждения их распространения на весь коллектив и быстрой ликвидации очага.
Рисунок 3 - Принципы функционального зонирования
помещений полной ОО
7.1.4 Функциональный состав ОО
Наименование | Содержание | Начальная школа | Старшая школа | Полная школа | Комплекс | Гимназия | Лицей |
Учебная группа помещений: | | | | | | |
Начальная школа блок помещений 1 - 4 классы | Классы и сопутствующие учебные и вспомогательные помещения | + | | + | + | | |
Классы-кабинеты основной школы 5 - 9 классы | Классы учебные кабинеты и сопутствующие учебные и обслуживающие помещения | | + | + | + | + | + |
Классы-кабинеты старшей школы 10 - 11 классы | Учебные кабинеты и сопутствующие учебные и вспомогательные помещения | | + | + | + | + | + |
Специализированные учебные кабинеты основной и старшей школы | Содержит специализированные группы лабораторий и кабинетов | | + | + | + | + | + |
Помещения изучения технологий и трудового обучения | Учебные и учебно-производственные мастерские, специализированные кабинеты | | + | + | + | + | + |
Группа центра информации - библиотека | Справочно-информационный центр с зонами читательских мест | + | + | + | + | + | + |
Общешкольная группа помещений | | | | | | |
Вестибюльная группа, помещения администрации, медицинские комнаты | Обслуживающая группа помещений | + | + | + | + | + | + |
Рекреационный центр (центр досуга) | Группа помещений досуга и обслуживания, включая форум | п | п | п | п | п | п |
Группа зрительного зала | Зрительный зал с обслуживающими помещениями | + | + | + | + | + | + |
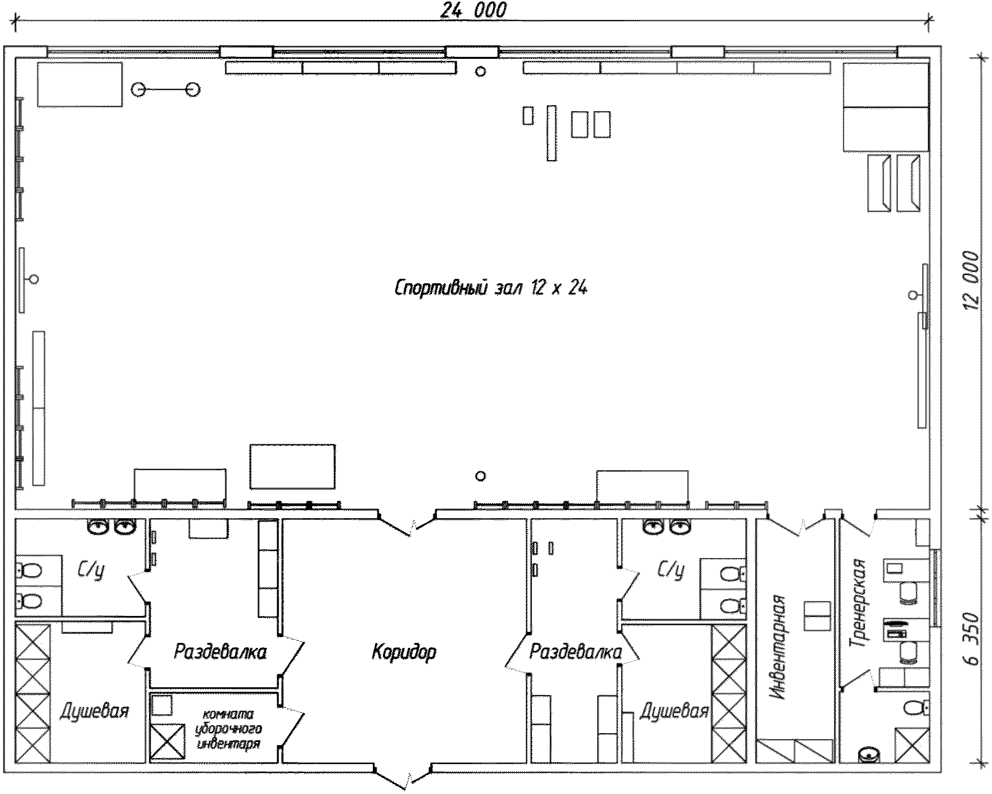
Группа спортивно-оздоровительная | Спортзалы (12 x 15 м, 18 x 15 м, 24 x 15 (12) м, 36 (30) x 18 м, 42 x 24 м) | + | + | + | + | + | + |
Бассейн | Бассейн с ваннами 25 x 11 и 10 x 6 м | п | п | п | п | п | п |
Группа художественного воспитания | Студии и кружки изобразительного искусства, музыки и пения, хореографии | п | п | п | п | п | п |
Группа технического творчества | Группа помещений специализированных кружков | | п | п | п | п | п |
Группа биолого-опытнической деятельности | Группа специализированных помещений | | п | п | п | п | п |
Столовая | Обеденный зал с кухонным блоком | + | + | + | + | + | + |
Помещения следует группировать на этаже по принадлежности к функциональному блоку.
7.1.5 Учебная группа помещений должна быть обособленной, автономной, не зависящей от общешкольной группы помещений и рекреационного центра. Поэтому вестибюльная группа учебных помещений должна решаться с учетом этих требований.
7.1.6 Общешкольная группа помещений, в условиях использования ее учащимися и взрослым населением во внеучебное время должна быть автономной, эксплуатироваться независимо от учебной группы помещений.
7.1.7 Рекреационный центр (при наличии) рекомендуется располагать таким образом, чтобы он служил связующим звеном между названными выше основными группами помещений и одновременно являлся ядром пространственной композиции помещений, был архитектурной доминантой.
7.1.8 Кроме того, блоки учебных и общешкольных помещений могут использоваться для пристройки к существующим зданиям школ.
7.1.9 Особое значение в зданиях ОО придается объемно-планировочному решению учебной группы помещений, основанному на автономии учебных секций, как по возрастным требованиям к формированию учебных помещений, так и по функциональным требованиям к специфике формирования специализированных групп помещений. Учебная секция трактуется как группа помещений, включающая учебные помещения (классы или классы-кабинеты, или специализированные кабинеты), рекреацию и санузлы.
7.1.10 Для начальной школы в учебную секцию включаются классные помещения (1 - 4, или 1 - 2, или 3 - 4, или 1 и 3 - 4 классы), рекреационное пространство зального типа для активизации двигательной активности ученика, санитарный узел и ряд обслуживающих помещений, в зависимости от вида учреждения, рассчитанного на традиционную систему занятий или на игровые методы обучения.
7.1.11 Эти учебные секции должны быть автономными (изолированными) от других учебных секций учебного заведения. Это обусловлено особенностями организации учебно-воспитательного режима учащихся младших возрастов.
7.1.12 Учебные секции основной школы (5 - 9 или 5 - 8 классы) также рекомендуется обосабливать в автономные ячейки. Они должны содержать классы-кабинеты, рекреационный зал и ресурсные центры. Последние могут решаться централизованно (один на секцию) либо рассредоточено при каждой паре-тройке классов-кабинетов. Ресурсный центр - это особое помещение, где сосредоточен дидактический материал, учебные пособия и ТСО, связанные с профильным обучением. В данном случае санитарные узлы могут быть вынесены за пределы учебной секции.
7.1.13 Учебные секции старшей школы состоят из учебных кабинетов, закрепленных за этими учащимися или размещающимися в группе специализированных кабинетов, в зависимости от того, как функционирует школа: с закреплением классов-кабинетов за каждой учебной группой или без него. Для второго варианта не обязательна организация автономной секции.
7.1.14 В соответствии с принципом трансформации учебных помещений, учебная секция не обязательно должна решаться в виде линейной системы классов, "нанизанных" на коридор. Возможно предусматривать компактные образования с тремя, четырьмя или шестью учебными помещениями, для ведения активной системы организации уроков, когда учащиеся в зависимости от педагогических задач урока могут перемещаться из одного помещения в другое и обратно.
7.1.15 Внутреннее пространство здания должно обеспечивать удобный доступ к основным группам помещений. Обучающиеся должны иметь удобный доступ ко всем помещениям, не выходя на улицу. Если здание проектируется отдельно стоящим, без соединения переходом, оно должно быть обеспечено полным набором общешкольных помещений. При этом, если здание является часть организации, и другие корпуса указанной организации расположены в пешеходной доступности (до 300 м), допускается сокращать отдельные группы помещений: уменьшать административный, медицинский блок. При обосновании допускается выделять в отдельный блок спортивные помещения. В этом случае при спортивном блоке проектируется вспомогательные помещения (входная группа, раздевалки, буфет, комнаты отдыха), рассчитанные на двукратную единовременную вместимость основных функциональных помещений (т.к. перемены в ОО короткие, входящая и выходящая смены должны успеть переодеться).
7.1.16 Количество этажей в здании ОО принимается в соответствии с градостроительными, пожарными и функциональными требованиями.
7.1.17 Главным фактором, влияющим на высоту зданий ОО являются особенности его функционирования. В течение учебного дня обучающиеся и педагоги неоднократно перемещаются из учебных кабинетов в столовую, спортзал, трудовые мастерские, выходят на улицу во время перемен и во вторую половину дня для прогулок. Подъемы по лестнице, особенно подъемы на высокие этажи (третий, четвертый) вызывают существенные сдвиги в показателях сердечно-сосудистой и дыхательной систем у взрослых и детей, что серьезно влияет на усвоение информации последними во время урока - у ослабленных детей на восстановление дыхания может уходить до трети урока. Лифт обучающимися не используется, т.к. является технически сложным устройством, организация безопасной эксплуатации которого в условиях ОО не представляется возможной.
Поэтому нижние этажи в зданиях ОО предназначены для дошкольников и обучающихся начальных классов, для которых подъем по лестнице значительно труднее, чем для обучающихся старшего возраста. Таким образом, начальные классы размещаются на 1 - 2 этажах, 2 - 4 классы не выше 3-го этажа. Следует учитывать путь детей, особенно младшего возраста до общешкольных помещений, и по возможности сокращать количество подъемов по лестницам. Например, целесообразно специализированные кабинеты размещать на 2-м этаже здания, так, чтобы детям в течение дня не приходилось перемещаться более чем на 1 - 2 этажа.
На самых верхних этажах, но не выше 4-го располагаются обучающиеся старшего уровня образования. При этом количество учебных помещений на 4 этаже не может превышать 25%. Также на 4 - 5-х этажах здания можно размещать кабинеты и помещения для сотрудников здания, которые могут пользоваться лифтом.
Столовая, спортивный и актовый залы, и иные зальные помещения размещаются не выше 2 этажа. Размещение библиотеки допускается на 3 этаже, но так как ей активно пользуются обучающиеся начального уровня, 2 этаж предпочтительнее.
7.1.18 Пути движения в ОО
7.1.18.1 Входная группа и вестибюль. Вестибюль в здание ОО испытывает повышенную нагрузку в утренние часы, т.к. занятия в ОО начинаются единовременно, и после окончания уроков. Поэтому важное значение имеет организация путей движения на входе в здание.
7.1.18.2 Входные пути в здание ОО, особенно большой вместимости, желательно выполнять по прямой траектории, без поворотов, с разделением для входящих и выходящих (разные двери). Не допускается размещение входов в здание и гардеробов на разных уровнях.
7.1.18.3 В группе учебных помещений основными путями движения являются рекреации. При выходе из кабинетов ширина рекреаций должна быть не менее 4 м при одностороннем расположении кабинетов и 6 м при двустороннем. Выходы из зрительного зала также должны вести в холл шириной не менее 4 м. Если спортивный зал рассчитывается на занятия нескольких классных групп, при выходе из зала устраивается рекреация шириной не менее 4 м, рассчитанная на единовременную вместимость зала.
7.1.18.4 Ширина дверей выходов из помещений, в которых одновременно может находиться более 15 учащихся, должна быть не менее 0,9 м.
7.1.19 Лестницы
7.1.19.1 Ширина лестничных маршей в ОО должна составлять менее 1500 мм. На лестницах регулярно образуются встречные потоки детей, повышается опасность травматизма, усложняется эвакуация из здания. Лестницы в ОО в обязательном порядке должны иметь естественное освещение. Двери и стены, отделяющие лестничные клетки от коридора желательно делать светопрозрачными. Лестницы, функционально не используемые во время эвакуации, возможно устраивать без дверных проемов, с противопожарными занавесами.
7.1.19.2 Также возможно устройство парадной открытой лестницы в вестибюле ОО. Варианты устройства лестниц представлены на Рисунок 4.
А. Лестницы, использующиеся при эвакуации |
Открытая лестница в холле/форуме | Лестница в лестничной клетке |
| |
Б. Парадные открытые лестницы, не использующиеся при эвакуации |
Лестница в двусветном холле | Лестница в лестничной клетке |
| |
Рисунок 4 - Варианты устройства лестниц
7.1.19.3 В соответствии с
СП 118.13330.2012* лифт в ОО ставится один, если по расчету достаточно одного. Пользователями лифтов в ОО являются ослабленные ученики (с травмами, хроническими заболеваниями), МГН, сотрудники (педагогический, административный, технический состав), взрослые посетители. При наличии разноэтажных корпусов лифт должен обслуживать все уровни здания, либо дублироваться пандусами или подъемниками. Желательно размещать лифт неподалеку от входной группы, под присмотром дежурного. Вход в запирающийся лифтовый холл осуществляется по магнитным карточкам.
7.1.20 Интерьерные решения.
7.1.20.1 Оформление блоков начальной, подростковой и старшей школы, расположенных в одной организации следует предусматривать в разных конструктивных и интерьерных решениях, отражающих специфику возрастной психологии и образовательной программы.
7.1.20.2 В каждом здании ОО возможно предусматривать некий индивидуальный элемент-символ организации (геометрия фасада, интерьерные решения, сочетания цветов и фактур, малые архитектурные формы, разновысотные потолки, с возможностью смены режима освещения, модульные (в т.ч. мягкие), раздвижные стены для мобильной трансформации и др.), придающий ей неповторимость и отражающий специфику ("лицо") учебного заведения.
7.2 Требования к функциональным группам, составу и площадям помещений
7.2.1 Учебные помещения
7.2.1.1 Размер учебного помещения определяется:
- рабочей площадью, необходимой для правильной расстановки мебели и оборудования;
- оптимальным расстоянием от наружных ограждений, классных досок и экранов;
- необходимостью обеспечить правильное освещение рабочей поверхности.
7.2.1.2 Требования к размещению мебели в учебных помещениях, ее размерам, расстоянию от классной доски, наружных и внутренних стен здания приведены в
СанПиН 2.4.2.2821-10.
7.2.1.3 Учебные помещения включают в себя рабочие зоны обучающихся (учебные столы) и учителя. Рекомендуется предусматривать дополнительное пространство для размещения учебно-наглядных пособий, ТСО, в том числе технического оборудования рабочего места учителя. По заданию на проектирование допускается предусматривать дополнительное пространство для индивидуальных занятий обучающихся и возможной активной деятельности. Зоны как сумма пространств должны обеспечивать оптимальные условия обучения.
7.2.1.4 Учебные помещения группируются в учебные секции, содержащие:
- не более трех учебных помещений со спальнями и игровыми (а также при наличии в задании на проектирование комнатами отдыха) и санузлами - для 1-х классов;
- не более шести учебных помещений с рекреациями и санузлами, а также комнату труда и универсальное помещение для групп продленного дня - для 2 - 4-х классов;
- учебные классы-кабинеты, лаборатории, соответствующие рекреационные помещения и санузлы (допускается размещать вне учебной секции, но в группе помещений для обучающихся) - для 5 - 11-х классов.
7.2.1.5 Учебные секции-блоки 1 - 4-х классов должны быть обособленными и непроходными для обучающихся других возрастных групп. Среди них выделяется учебная секция - блок 1-х классов со спальнями и игровыми, т.к. у 1-х классов и 2 - 4-х классов разная длительность уроков.
7.2.1.6 Учебные помещения не следует располагать смежно, над и под помещениями, являющимися источниками распространения шума и запахов (мастерские, спортивные, актовые и зрительные залы, пищеблок и др.). При группировании помещений в одном здании следует шумные помещений отделять от помещений с нормируемым уровнем шума помещения, для которых уровень шума не нормируется - гардеробами, коридорами, рекреациями и т.д.
7.2.1.7 При организации образовательного процесса с использованием фронтальной формы ведения занятий рекомендуется проектировать учебные помещения прямоугольной формы. При этом парты учащихся следует располагать таким образом, чтобы естественный свет из оконных проемов падал на рабочую поверхность слева направо.
7.2.1.8 При проектировании зданий требуется по возможности избегать выступающих и отдельно стоящих колонн, венткоробов в рекреациях и учебных помещениях. Не следует принимать многоугольную форму классов, т.к. это мешает правильной расстановке оборудования и соблюдению ширины проходов.
7.2.1.9 Выход из учебных помещений должен быть в рекреационные помещения, шириной не менее 4 м при одностороннем расположении дверей и 6 м при двустороннем расположении дверей.
7.2.1.10 Примерный функциональный состав учебных помещений по группам и особенности расчета приведены в
приложении В.
Учебные помещения в образовательных организациях, реализующих программы начального общего образования (1 - 4 классы)
7.2.1.11 Обучение в 1-м классе осуществляется с соблюдением следующих дополнительных требований:
- учебные занятия проводятся по 5-дневной учебной неделе и только в первую смену;
- использование "ступенчатого" режима обучения в первом полугодии (в сентябре, октябре - по 3 урока в день по 35 минут каждый, в ноябре - декабре - по 4 урока в день по 35 минут каждый; январь - май - по 4 урока в день по 40 минут каждый).
За каждым классом начальной школы закреплен один учебный класс, в котором у них приходят все занятия, кроме специализированных, у начальной и старшие школы может быть разная длительность уроков.
7.2.1.12 Для обучающихся, посещающих группу продленного дня, дополнительно предусматривается игровая комната площадью не менее 2,5 м2 на одного обучающегося. Для группы продленного дня 1-го класса дополнительно рекомендуется предусматривать два спальных помещения (для девочек и для мальчиков) площадью не менее 4,0 м2 на одного ребенка.
7.2.1.13 Допускается совмещение функций спальни и игровой при оборудовании спальни детскими раздвижными кроватями (или другими нестационарными спальными местами). Площадь спальни-игровой определяется из расчета 2,5 м2 на одно место. Для организации отдельных спален для мальчиков и девочек в общем пространстве спальни-игровой рекомендуется использовать трансформируемые перегородки.
7.2.1.14 В учебных кабинетах начальных классов, особенно 1-х классов, допускается устройство игровых комплексов в задней части класса.
А. Расстановка мебели в учебном кабинете с устройством зоны отдыха | Б. Спальня для мальчиков и девочек с трансформируемой перегородкой |
| |
Рисунок 5 - Принципы расстановки мебели
в кабинетах для начальных классов
7.2.2 Учебные кабинеты основного общего и среднего общего образования (5 - 9 классы)
7.2.3 Обучение школьников по программам основного общего образования осуществляется по классно-кабинетной системе.
7.2.4 Набор помещений должен обеспечивать условия для изучения обязательных учебных дисциплин государственного образовательного стандарта (с учетом национальной и региональной специфики), а также дополнительных предметов по выбору обучающихся в соответствии с их интересами и дифференциацией по направлениям для углубленного изучения одного-двух (двух-трех) предметов. Требования к учебным кабинетам представлены в
разделе V СанПиН 2.4.2.2821-10.
7.2.6 Оптимальные размеры рабочей зоны обучающихся при фронтальной форме занятий зависят от угла видимости, связанного с расстоянием от доски до первых боковых рядов парт, а также типа и характеристик используемой доски - меловой, маркерной, интерактивной. Угол видимости для меловой доски должен составлять не менее 35° для обучающихся 8 лет и старше и не менее 45° для обучающихся 6 - 7 лет. При использовании электронных интерактивных досок угол видимости должен определяться по их техническим характеристикам. При использовании электронных интерактивных досок на окнах должна быть предусмотрена возможность затемнения.
7.2.7 При каждом кабинете или группе из двух-трех кабинетов по заданию на проектирование может быть организована лаборантская (наличие лаборантской обязательно при кабинетах химии, физики, биологии, компьютерном классе). Площадь лаборантской рекомендуется принимать не менее 18 кв.м.
7.2.8 Лаборантские следует располагать смежно с соответствующими лабораториями и соединять с ними дверями.
7.2.9 В лаборантских при лабораториях химии и физики предусматриваются встроенные вытяжные шкафы. Лаборантская при лаборатории химии должна быть расположена со стороны классной доски, из нее также следует предусматривать второй выход в коридор, на лестницу, в рекреационное или другое смежное помещение.
Рисунок 6 - Схема расстановки мебели в учебном
кабинете с фронтальной формой обучения
7.2.10 Специализированные учебные кабинеты основного общего и среднего общего образования
7.2.10.1 Площади лабораторий - специализированных учебных кабинетов, практикумов следует принимать не менее 3,5 м2 на одно место (без учета специализированной мебели и оборудования) из расчета проведения на его площади групповых форм работы. Площадь лабораторий - не менее 18 м2 на одно помещение. Допускается устройство общей лаборатории на 2 учебных кабинета.
| | ИС МЕГАНОРМ: примечание. В официальном тексте документа, видимо, допущена опечатка: имеется в виду СП 251.1325800.2016, а не СП 251.132500.2016. | |
7.2.10.2 Состав и площади специализированных учебных кабинетов основной и старшей школы приведены в
таблице 7.1. СП 251.132500.2016.
7.2.10.3 Так же возможно устройство универсальных учебных кабинетов - в этом случае выделяют одно учебное помещение площадью 100 м2, где размещаются лаборатория и практикум.
Рисунок 7 - Универсальные учебные лаборатории
с общей лаборантской и выделенной зоной практикума
7.2.11 Помещения изучения технологий и трудового обучения
7.2.11.1 Мастерские по обработке древесины и комбинированные мастерские по обработке металла и древесины следует размещать на 1 этаже на первом этаже с собственным выходом на участок. По заданию на проектирование допускается не выделять помещение инвентарной, а суммировать ее площадь к помещению мастерской, размещая нестационарное оборудование в шкафах по стенам. Увеличение площади за счет инвентарной дает больше возможностей по размещению станков и другого крупного оборудования.
7.2.11.2 Состав и площади группы учебно-производственных помещений приведены в
таблице 7.2. СП 251.1325800.2016.
7.2.12 Группа помещений зрительного зала
7.2.12.1 Зрительный зал в зданиях ОО принимается двух видов: актовый, с плоским полом и зрительный, с уклоном пола от сцены.
7.2.12.2 Актовый зал представляет больше возможностей для многофункционального использования, однако для большого количества зрителей его принимать не рекомендуется, т.к. в задних рядах без подъема уровня пола ухудшается видимость. Поэтому актовые залы рекомендуется принимать для вместимости до 400 зрителей.
7.2.12.3 Возможности многофункционального использования актового зала при оборудовании складывающимися трибунами-трансформерами:
- в качестве помещения для общешкольных мероприятий (праздников, дискотек, танцев и т.п.);
- в качестве зала для хореографии (оборудуется зеркальной стеной, станками) или драмкружка (проектируется набор раздевалок для мальчиков и девочек с душевыми, инвентарная площадью не менее 12 м2);
- в качестве спортивного зала (в этом случае при зале кроме помещений при эстраде проектируется так же набор раздевалок, снарядная и тренерская). Предложение может быть реализовано при согласовании с местными органами образования, определяющими сеть дошкольных и общеобразовательных организаций и при наличии специальной образовательной программы.
7.2.12.4 Зрительный зал с уклоном проектируется с закрепленными зрительскими местами. Допускается устройство зрительных мест в виде амфитеатра с устройством под ним дополнительных помещений (кроме кладовых).
7.2.12.5 Места инвалидов следует проектировать при входе в зал. Допускается оборудование мест для инвалидов откидными сиденьями
7.2.12.6 Расчет помещений зрительного зала приведен в
п. 7.2.6 СП 251.1325800.2016.
Рисунок 8 - Схема устройства актового зала,
помещений при сцене, доступа МГН на сцену
7.2.12.7 В общеобразовательных организациях с углубленным изучением отдельных дисциплин рекомендуется иметь лекционную аудиторию расчетной площадью не менее 1 м2 на одно место. Расчетную вместимость аудитории определяют по числу обучающихся в возрастной параллели, состоящей не более чем из 3 классов.
Рисунок 9 - Схема устройства
потоковой аудитории с уклоном пола
7.2.12.8 В фойе при зале возможно размещать зимний сад, школьный музей.
7.2.12.9 Выходы из зрительного зала, предназначенные для основных зрительских потоков, должны иметь удобное сообщение с входной зоной здания ОО.
7.2.13 Группа помещений художественного воспитания
Рекомендуемые площади помещений группы художественного воспитания приведены в
таблице 7.3 СП 251.1325800.2016.
Рисунок 10 - Кабинет искусства.
Схема размещения оборудования
7.2.14 Группа спортивно-оздоровительных помещений
7.2.14.1 Устройство физкультурно-спортивных залов и вспомогательных помещений при них определяются в соответствии с требованиями
СанПиН 2.4.2.2821,
СанПиН 2.1.2.1188, [13]. Примерный набор физкультурно-спортивных залов общеобразовательных организаций дан в
Таблице 7.4 СП 251.1325800.2016
7.2.14.2 Минимальный набор помещений спортивного зала: Зал, раздевалки для мальчиков и девочек, тренерская с санузлом, инструментальная. Расширенный набор помещений принимается по заданию на проектирование.
7.2.14.3 Большие залы допускается делить на несколько учебных групп мобильными перегородками. Зал 12 x 24 возможно делить на 2 группы, зал 30 x 18 на 2 или 3 группы. Для каждой группы проектируется свой набор раздевалок (с санузлами и душевой, в соответствии с
СанПиН 2.4.2.2821-10). Так как занятий начинаются и оканчиваются у групп единовременно, отдельный вход в зал для каждой группы проектировать нет необходимости. При этом не целесообразно смежно размещение групп для занятий хореографией и другими спортивными занятиями со звуковым сопровождением, т.к. мобильные перегородки не обеспечивают требуемую звукоизоляцию.
7.2.14.4 При спортивной зале целесообразно устройство выхода на улицу для занятий на свежем воздухе. При размещении спортивных площадок на кровле здания идеально, когда зал и площадки располагаются в одном уровне.
7.2.14.5 Если зал функционирует во внеучебное время для взрослых жителей района, спортивную группу помещений следует проектировать таким образом, чтобы посетители не могли через нее проходить в остальные помещения ОО. Для них устраивается отдельный вход со стороны спортивного блока, в котором предусматриваются вестибюль (0,3 м2 на человека) и гардероб (0,15 м2 на 1 чел) в расчете на единовременную вместимость спортивных помещений, стойка дежурного. Отдельные раздевалки для посетителей мужского и женского пола (принимается в равных долях) следует выделять в случае, если в ОО нет возможности организации уборки указанных помещений после вечерних занятий.
7.2.14.6 При устройстве раздевалок в общем объеме зала, их целесообразно предусматривать с минимальной высотой (2,4 м). На выделенной антресоли возможно размещение складных трибун (блитчеров), теннисных столов, тренажеров.
7.2.14.7 Для групп лечебной физической культуры по заданию на проектирование предусматриваются помещения для интеллектуальных занятий.
7.2.14.8 Рекомендуемый состав и расчетные показатели площадей учебно-спортивных залов и бассейна приведены в
таблицах 7.4 и
7.5 СП 251.1325800.2016
7.2.14.9 Необходимость устройства бассейна и физкультурно-спортивных помещений другого назначения устанавливается заданием на проектирование.
7.2.14.10 При проектировании бассейна следует предусматривать не менее трех 25-метровых дорожек; возможность для прыжков в воду, "лягушатник" для обучения плаванию учащихся младшего школьного возраста, размещение разноуровневых спусков в воду. Раздевалки при бассейне проектируют по требованиям к раздевалкам для спортивных залов.
А. Блок спортивных помещений: зал 24 x 12, 2 комплекта раздевалок, тренерская, снарядная
Б. Спортивный зал 30 x 18 с занавесом для занятий 2 спортивных групп
В. Хореографический зал и блок раздевалок с учетом МГН
Рисунок 11 - Схемы спортивных залов
7.2.15 Библиотека и информационный центр
7.2.15.1 Библиотечно-информационный центр представляет собой многофункциональное пространство, выполняющее следующие функции:
- хранение печатных и цифровых материалов;
- групповые и индивидуальные занятия обучающихся (чтение, хранение книг, использование современных технологий для сбора материалов для выполнения домашних заданий и расширения кругозора);
- лекционно-просветительские мероприятия, в том числе презентации научной и художественной литературы);
- на базе помещений библиотеки возможна организация веб-студий и дизайн-мастерских.
В библиотечно-информационном центре следует предусматривать следующие зоны:
- читальный зал со стойкой для выдачи книг и книгохранилищем;
- зона, оборудованная индивидуальными ИКТ;
- демонстрационное пространство с зоной для авторского чтения.
7.2.15.2 Читальный зал должен формироваться как место для групповой и самостоятельной внеклассной работы, подготовки домашних заданий, общения и отдыха, удобным для занятий детей и подростков со свободным доступом к печатным ресурсам и удобной работы с ними;
7.2.15.3 Между стеллажами с книгами следует организовать удобные места для занятий с мягкими стульями или креслами и столиками, которые будут комфортны для детей всех возрастов (мягкая мебель позволяет читать книги в спокойной и расслабленной обстановке и помогает при необходимости организовать небольшой лекторий);
7.2.15.4 Зона, оборудованная индивидуальными ИКТ и читальный зал должны проектироваться с возможностью проведения в них уроков и дополнительных занятий в расчете на 1 классную группу.
7.2.15.5 При Зоне ИКТ по заданию на проектирование допускается выделять место для копировальной и множительной техники.
Рисунок 12 - Схема организации
библиотечно-информационного центра
7.2.16 Пищеблок и столовая
7.2.16.1 Пищеблок проектируется в соответствии с заданием на проектирование, с учетом местных условий их обеспечения сырьем и/или полуфабрикатами. Обязательное горячее питание в общеобразовательных организациях должно быть организовано в соответствии с требованиями
СанПиН 2.4.5.2409 и
СанПиН 2.4.2.2821. В зданиях ОО проектируется пищеблок для работы на сырье или полуфабрикатах или буфет-раздаточная, предназначенная для приема готовых блюд и кулинарных изделий, поступающих из организаций общественного питания.
7.2.16.2 Для возможности использования обеденного зала для общешкольных мероприятий, следует предусматривать мобильную перегородку (занавес, ролл-шторы) для отделения зоны пищеблока (включая раздаточную) от помещения обеденного зала.
7.2.16.3 Столы для МГН следует размещать рядом с основным проходом.
7.2.16.4 Для ОО, рассчитанных на большое количество обучающихся рекомендуется проектировать несколько обособленных обеденных залов, либо разделять большие залы столовой мобильными перегородками для создания пространства, соразмерного обучающимся. Выделенные залы следует рассчитывать кратно классной группе, как вариант - на параллель классов.
7.2.16.5 Установка раковин при входе в столовую осуществляется в соответствии с
п. 3.4 СанПиН 2.4.5.2409-08. Ширина транзитного прохода между умывальниками и стеной должна быть шириной не менее 1,9 м, между двумя рядами умывальников - не менее 2,2 м. Оборудуется зона мытья рук индивидуальными раковинами либо желобковым умывальником. Если столовую планируется использовать для общешкольных мероприятий - рекомендуется также устраивать в столовую парадный вход в стороне от зоны для мытья рук.
Рисунок 13 - Схема организации входа в столовую
через помещения для мытья рук, схема размещения
трансформируемой перегородки для отделения пищеблока от зала
7.2.17 Административно-хозяйственные помещения
7.2.17.1 Состав и расчетные показатели площадей вестибюля-гардероба, административно-хозяйственных помещений, медицинских комнат приведены в
таблице 7.6. СП 251.1325800.2016.
7.2.17.2 При размещении административных помещений (директора, бухгалтера, заместителей) следует учитывать, что их могут посещать иные посетители, кроме родителей обучающихся. Поэтому целесообразно выделять административно-офисную зону для преподавателей в отдельный блок, с удобной связью со входной группой для посетителей. При размещении административной зоны на верхних этажах, лифт в ОО так же целесообразно размещать в непосредственной близости от нее.
7.2.18 Медицинский блок
7.2.18.1 Медицинский блок в зданиях ОО проектируют и оборудуют в соответствии с
СанПиН 2.4.2.2821. Состав и площадь медицинских помещений устанавливаются заданием на проектирование.
7.2.18.2 В крупных ОО целесообразно устройство изолятора на 1 - 2 койки, смежного с кабинетом врача. Это важно для того, чтобы заболевшие школьники могли ожидать родителей либо скорую в лежачем положении и не мешать функционированию медблока, либо других помещений, используемых для изоляции заболевших.
7.2.18.3 В помещениях медблока допускается устройство дверей между смежными помещениями, однако каждое помещение должно иметь собственный выход в коридор.
7.2.18.4 Медблок целесообразно размещать поблизости от входа в здание. Это необходимо для случаев инфекции либо чтобы беспрепятственно вынести человека на носилках. Собственный выход на улицу из медблока не предусматривается.
7.2.19 Рекреации
7.2.19.1 Рекреации являются местом отдыха и разгрузки для обучающихся во время перемен. Не рекомендуется применение активных цветов при оформлении рекреации, так как дети после уроков испытывают стресс, а активный яркий цвет не позволяет расслабиться.
7.2.19.2 Для младших школьников рекреация служит местом для реализации двигательное активности. Целесообразна установка в рекреациях оборудования "активная рекреация" - турников, лесенок и другого оборудования.
7.2.19.3 В рекреациях для начальной школы следует избегать выступающих колонн и коробов, острых углов, отдельностоящих колонн.
7.2.19.4 В рекреациях для основной и старшей школы возможна установка вдоль стен стеллажей с книгами, диванчиков, пуфов и иного оборудования для спокойного отдыха. При этом должна соблюдаться ширина пожарного прохода.
7.2.19.5 При устройстве рекреаций и коридоров следует избегать "мертвых зон" и иных не просматриваемых, темных участков.
7.2.20 Вестибюль
7.2.20.1 Вестибюль проектируется из расчета 0,2 - 0,3 м2 на одного посетителя. Число посетителей определяется общим числом обучающихся. Шириной вестибюля должно быть обеспечено беспрепятственное перемещение людских потоков внутри здания.
7.2.20.2 Расчетная площадь вестибюля определяется с учетом дополнительной площади, равной рабочей зоне турникетов и места дежурного.
7.2.20.3 В целях антитеррористической безопасности обучающихся допускается центральный вход в здание ОО оборудовать турникетами. Рядом с турникетами необходимо предусматривать быстро открывающийся свободный проход шириной не менее 1,6 м, турникеты должны быть оборудованы планками "антипаника". Пространство от входа в здание до турникетов должно обеспечивать свободу маневрирования человека на инвалидной коляске (полный разворот). Не рекомендуется устройство поворотного движения при входе в здание (пример: поворот на 90° при входе из тамбура в здание, поворот при проходе через турникеты и т.п.)
7.2.20.4 С рабочего места дежурного при входе должен открываться обзор за входными дверьми. При оборудовании здания турникетами, рабочее место дежурного размещается таким образом, чтобы дежурный мог визуально контролировать входящих в здание и проходящих через турникеты. Допускается оборудование места ожидания для родителей до прохода через турникеты, в стороне от основных путей движения. При оборудовании площадь места ожидания должна быть не менее 10 м2.
Зона грязных ног в вестибюле должна располагаться в стороне от основных путей движения.
А. Общий централизованный вход
Б. Общий централизованный вход с разделением потоков обучающихся
В. Децентрализованный вход
Рисунок 14 - Принципиальные схемы организации входной группы
7.2.21 Гардеробы
7.2.21.1 Гардеробы для обучающихся располагают рядом с входом, в одном с ним уровне. Целесообразно устраивать гардеробные проходными, чтобы, переодевшись обучающийся в сменной обуви максимально быстро покидал зону грязных ног.
7.2.21.2 Помимо общих гардеробных допускается также устройство индивидуальных гардеробных ячеек для каждого класса. Ячейки могут быть оборудованы как вешалками с крючками, так и индивидуальными запирающимися шкафчиками на каждого обучающегося. Минимальный размер индивидуального шкафчика - 300 x 300 мм. В них обучающиеся могут так же хранить личные вещи. В этом случае для посетителей (групп дополнительного образования для взрослых) предусматривается отдельный гардероб по расчету.
7.2.22 Санузлы
7.2.22.1 Санузлы для детей в ОО предусматриваются только в учебных секциях (при учебных кабинетах и помещениях, трудовых мастерских). Устройство санузлов для детей при обеденном, зрительном зале и медблоке не требуется. При спортивном зале обучающиеся посещают санузлы в раздевалках.
7.2.22.2 В санузлах должно быть естественное освещение или освещение вторым светом (на случай аварийного отключения или неисправности осветительных приборов).
7.2.22.3 Санузлы, размещаемые в учебных секциях, рассчитываются по количеству обучающихся в секции (в равных долях), за исключением трудовых мастерских.
7.3 Необходимые и достаточные мероприятия по обеспечению доступа МГН в здания ОО.
7.3.1 Для зданий ОО в части обеспечения доступа инвалидов используются следующие положения
СП 59.13330.2012:
- пункты
СП 59.13330.2012. (СНиП 35-01-2001) "Доступность зданий и сооружений для маломобильных групп населения", включенные в
Перечень национальных стандартов и сводов правил (частей таких стандартов или сводов правил), в результате применения которых на обязательной основе обеспечивается соблюдение требований Федерального закона "Технический регламент" о безопасности зданий и сооружений", утвержденный постановлением Правительства Российской Федерации от 26.12.2014 N 1521;
- пункты
СП 59.13330.2016 "Доступность зданий и сооружений для маломобильных групп населения", не противоречащие указанным пунктам;
7.3.2 При проектировании здания ОО следует предусматривать возможность совместного обучения детей с ограниченными возможностями здоровья, для которых доступна общешкольная программа, и детей, не имеющих таких ограничений. Общее количество мест для детей с нарушениями здоровья - не менее 5% от общей вместимости объекта (с пропорциональным распределением их по группам мобильности М1, М2, М3, М4 - для расчета зон безопасности).
7.3.3 Для обеспечения обучающихся и посетителей - инвалидов групп мобильности М1, М2, М3, М4 должны быть созданы условия беспрепятственного, безопасного и удобного передвижения по территории учебного корпуса (включая площадки для игр, спортивных занятий и тихого отдыха), соответствующие следующим требованиям:
- продольные уклоны путей движения (пешеходных дорожек) не должны быть более 5%;
- ширину путей движения (пешеходных дорожек) с учетом встречного движения инвалидов на креслах-колясках принимают не менее 2 м;
- уклоны съездов с тротуара на транспортный проезд должны быть не более 1:12 (8%);
- перепад высот в местах съезда на проезжую часть не более 0,015 м;
- покрытие пешеходных дорожек, тротуаров, открытых (наружных) лестниц и пандусов из твердых материалов, ровным, шероховатым предотвращающим скольжение при сырости и снеге;
- покрытие площадок для игр, физкультурных занятий, тихого отдыха и прогулочных площадок следует устраивать травмобезопасным с наполнителем из резиновой крошки;
- открытые (наружные) лестницы на перепадах рельефа следует дублировать пандусами (при наличии лестниц);
- уклоны открытых (наружных) пандусов не должны быть более 5%;
- для отдыха МГН и сопровождающих должны быть оборудованы места отдыха и ожидания на основных путях движения (через 100 - 150 м);
- предусмотрена система средств информационной поддержки и предупреждения об опасности (включая визуальные и звуковые средства информации) на основных путях движения;
- предусмотрена тактильная навигация за счет смены фактуры и цвета покрытия по территории участка и площадкам.
7.3.4 Условия беспрепятственного, безопасного и удобного входа в здание школы должны соответствовать следующим требованиям:
- уклоны входных пандусов не должны быть более 5%;
- габариты входных площадок с пандусами должны быть не менее 2,2 x 2,2 м;
- входные площадки должны иметь навес и водоотвод;
- входные площадки, лестницы и пандусы должны быть оборудованы ограждениями с поручнями;
- поверхности покрытий входных площадок, лестниц и пандусов должны быть твердыми, не допускать скольжения при намокании и/или воздействии отрицательной температуры;
- входные двери должны иметь ширину в свету не менее 1,2 м (рабочие полотна двупольных дверей должны иметь ширину не менее 0,9 м);
- высота порогов входных дверей и перепады высот полов не должны превышать 0,014 м;
- на всех доступных главных входных группах, визуальные, звуковые и тактильные (в том числе за счет изменения фактуры покрытия) средства информации.
7.3.5 Условия беспрепятственного, безопасного и удобного передвижения и пребывания внутри здания учебного корпуса должны быть обеспечены в следующих помещениях ОО:
- в школьном отделении с обеспечением для инвалидов мест во всех помещениях, связанных с учебно-воспитательным процессом, (в том числе актового зала, спортивных залов, обеденных залов, залов хореографии, читальных залов, библиотек, классов, поточных аудиторий, мастерские и т.д., кабинетов администрации, помещений медицинского блока и т.д.),
- в дошкольном отделении (в том числе мест во всех групповых помещениях, включая санузлы, музыкальных залах, физкультурных залах, залах хореографии, кабинетах администрации, помещениях медицинского блока и т.д.), кружковые, кабинет логопеда, кабинет психолога, кабинет администрации, и т.д.),
- в гардеробах,
- в доступных кабинах, в раздевальные и душевые спортзалы и залов хореографии.
7.3.6 Требования к условиям доступа в вышеперечисленные помещения следующие:
- ширина путей движения при встречном движении не менее 1,8 м;
- наличие мест отдыха и ожидания в коридорах, холлах и рекреациях;
- ширина дверных и открытых проемов в стене, а также выходов из помещений и коридоров на лестничную клетку не менее 0,9 м;
- высота дверных порогов и перепады высот полов не более 0,014 м;
- подходы к различному оборудованию и мебели, которыми может пользоваться инвалид на кресле-коляске, по ширине не менее 0,9 м, а при необходимости поворота кресла-коляски на 90° - не менее 1,2 м;
- диаметр зоны для самостоятельного разворота на 180° на путях движения инвалида на кресле-коляске не менее 1,4 м для школьного отделения и 1,2 м для дошкольного отделения;
- глубина площадки перед постоянно закрытой дверью при открывании "от себя" не менее 1,2 м, а при открывании "к себе" - не менее 1,5 м при ширине площадки не менее 1,5 м;
- уклоны внутренних пандусов не более 5%;
- ширина маршей внутренних (в том числе межэтажных) лестниц, с учетом поручней, расположенных по двум сторонам маршей, не менее 1,35 м;
- ограждения с поручнями на высоте 0,9 м (для дошкольного отделения дополнительно на высоте 0,5 м) вдоль обеих сторон маршей всех внутренних пандусов и лестниц (в том числе межэтажных), а также ограждения у всех перепадов высот горизонтальных поверхностей более 0,45 м;
- пассажирский лифт, предназначенный для пользования инвалидом на кресле-коляске с сопровождающим с внутренними размерами кабины не менее 1100 x 2100 мм (Ш x Г), допускается не менее 1100 x 1400 мм (Ш x Г) и шириной дверного проема не менее 900 мм;
| | ИС МЕГАНОРМ: примечание. В официальном тексте документа, видимо, допущена опечатка: имеется в виду ГОСТ Р 53770-2010, а не ГОСТ Р 53770-2008. | |
- лифтовые холлы, оборудованные системой двусторонней связи с диспетчером или дежурным, с звуковыми и визуальными аварийными сигнальными устройствами;
- на всех путях движения, в местах отдыха и ожидания, в доступных для инвалидов помещениях (кроме групповых ячеек дошкольного отделения), система средств информационной поддержки и предупреждения об опасности, включая визуальные средства и звуковую систему оповещения.
7.3.7 Условия беспрепятственного, безопасного и удобного пользования санитарно-бытовыми помещениями (раздевальные, универсальные и доступные кабины, душевые кабины, комнаты личной гигиены), должны соответствовать следующим требованиям:
- для посетителей на первом этаже школьного и дошкольного отделения универсальные кабины размером не менее: ширина - 2,2 м, глубина - 2,25 м;
- в раздевальных при залах для занятий спортом и хореографией специально оборудованные для инвалидов места (скамьи и шкафы), доступные кабины в уборных и полукабины душевых;
- на каждом этаже школьного и дошкольного отделения доступные туалетные кабины, предназначенные для пользования детьми-инвалидами размерами не менее 1,65 x 2,2 м;
- доступные туалетные кабины и душевые полукабины, комнаты личной гигиены должны быть оснащены настенными опорными устройствами, с возможностью дооборудования с учетом эргономических требований с учетом возрастной категории конкретного ребенка-инвалида;
- технические и конструктивные параметры специального оборудования, предназначенного для инвалидов в санитарно-бытовых помещениях (доступная кабина, душевая полукабина) должны соответствовать эргономическим требованиям с учетом возрастной категории учащихся;
- универсальные и доступные кабины туалетов должны быть оборудованы системой двусторонней связи с диспетчером или дежурным. Система двусторонней связи должна быть снабжена звуковыми и визуальными аварийными сигнальными устройствами;
- минимальная ширина (в свету) участков эвакуационных путей, используемых инвалидами, должна соответствовать требованиями
СП 1.13130.2009,
СП 59.13330.2012;
- в каждой зоне безопасности селекторная связь с диспетчерской или с помещением пожарного поста (поста охраны);
- световые оповещатели, подключенные к системе оповещения и управления эвакуацией людей при пожаре, к системе оповещения о стихийных бедствиях и экстремальных ситуациях во всех помещениях и зонах школьного и дошкольного отделения, доступных для инвалидов (кроме групповых ячеек дошкольного отделения.
8 Принципы расчета вместимости, пропускной способности и площадей учебных и общешкольных помещений
8.1 Принципы расчета вместимости школьных зданий
Для государственных и муниципальных ОО, а также ОО, эксплуатация которых будет проводиться за бюджетные средства, вместимость, профиль ОО определяется местными органами образования, определяющими сеть дошкольных и общеобразовательных организаций.
Как правило, за основу берется равное количество обучающихся в классной группе на протяжении всего периода обучения в ОО, с 1 по 11 класс, в 10 - 11 классах в профильных школах количество обучающихся может снижаться до 20 человек.
Общепринятая наполняемость классной группы - 25 человек. Максимальное количество обучающихся в классной группе - 30 человек.
Количество параллелей в основном неизменно на протяжении обучения на 1 уровне
Дошкольные группы - это возраст от 3 до 7 лет, группы формируются по возрасту обучающихся: 3 - 4 года, 4 - 5 лет, 5 - 6 лет, 6 - 7 лет, итого максимум 4 возрастные группы ДОО. В состав ОО может включаться как полный набор возрастных групп, так и только старшие. Количество параллелей в ДОО не влияет на количество параллелей в ОО, т.к. не все дети посещают детский сад до школы.
Группы дополнительного образования, кружки и секции в расчет не принимаются, т.к. функционируют на базе помещений ОО.
Таблица 2
Принцип расчета вместимости организации
в зависимости от наполняемости классных групп
и организационно-педагогической структуры
Тип организации | Кол-во параллелей/вариант для некратных | Организационно-педагогическая структура | Количество классных групп | Вместимость организации |
(Количество классных групп (25 человек) по возрастам (классам) |
дошкольный | начальный | основной | старший |
3 - 4 | 4 - 5 | 5 - 6 | 6 - 7 | 1 | 2 | 3 | 4 | 5 | 6 | 7 | 8 | 9 | 10 | 11 |
Блок начальных классов | 1 | | | | | 1 | 1 | 1 | 1 | | | | | | | | 4 | 100 |
2 | | | | | 2 | 2 | 2 | 2 | | | | | | | | 8 | 200 |
3 | | | | | 3 | 3 | 3 | 3 | | | | | | | | 12 | 300 |
4 | | | | | 4 | 4 | 4 | 4 | | | | | | | | 16 | 400 |
Комбинированный блок начальных классов (пример) | 1 | 1 | 1 | 1 | 1 | 1 | 1 | 1 | 1 | | | | | | | | 8 (4 + 4) | 200 |
2 | 2 | 2 | 2 | 2 | 2 | 2 | 2 | 2 | | | | | | | | 16 (8 + 8) | 400 |
вариант | 1 | 1 | 1 | 1 | 3 | 3 | 3 | 3 | | | | | | | | 16 (4 + 12) | 400 |
Комбинированный блок начальных классов с универсальными ячейками (пример) | вариант | 2 | 2 | 2 | 2 | 8 универсальных | | | | | | | | 16 (8 + 8) | 400 |
вариант | 1 | 1 | 1 | 1 | 1 | 1 | 1 | 1 | | | | | | | | 12 (4 + 4 + 4) | 300 |
4 универсальных |
Трансформируемый блок начальных классов | вариант | 16 универсальных ячеек | | | | | | | | 16 | 400 |
Старшая школа | 1 | | | | | | | | | 1 | 1 | 1 | 1 | 1 | 1 | 1 | 7 | 175 |
2 | | | | | | | | | 2 | 2 | 2 | 2 | 2 | 2 | 2 | 14 | 350 |
3 | | | | | | | | | 3 | 3 | 3 | 3 | 3 | 3 | 3 | 21 | 525 |
4 | | | | | | | | | 4 | 4 | 4 | 4 | 4 | 4 | 4 | 28 | 700 |
Вариант 1 | | | | | | | | | 2 | 2 | 2 | 2 | 2 | 4 | 4 | 18 | 450 |
Вариант 2 | | | | | | | | | 3 | 3 | 3 | 3 | 3 | 1 | 1 | 17 | 425 |
Полная средняя школа | 1 | | | | | 1 | 1 | 1 | 1 | 1 | 1 | 1 | 1 | 1 | 1 | 1 | 11 | 275 |
2 | | | | | 2 | 2 | 2 | 2 | 2 | 2 | 2 | 2 | 2 | 2 | 2 | 22 | 550 |
3 | | | | | 3 | 3 | 3 | 3 | 3 | 3 | 3 | 3 | 3 | 3 | 3 | 33 | 825 |
4 | | | | | 4 | 4 | 4 | 4 | 4 | 4 | 4 | 4 | 4 | 4 | 4 | 44 | 1100 |
5 | | | | | 5 | 5 | 5 | 5 | 5 | 5 | 5 | 5 | 5 | 5 | 5 | 55 | 1375 |
Образовательный комплекс | 1 | 1 | 1 | 1 | 1 | 1 | 1 | 1 | 1 | 1 | 1 | 1 | 1 | 1 | 1 | 1 | 15 (4 + 11) | 375 |
2 | 2 | 2 | 2 | 2 | 2 | 2 | 2 | 2 | 2 | 2 | 2 | 2 | 2 | 2 | 2 | 30 (8 + 22) | 750 |
3 | 3 | 3 | 3 | 3 | 3 | 3 | 3 | 3 | 3 | 3 | 3 | 3 | 3 | 3 | 3 | 45 (12 + 33) | 1125 |
4 | 4 | 4 | 4 | 4 | 4 | 4 | 4 | 4 | 4 | 4 | 4 | 4 | 4 | 4 | 4 | 60 (16 + 44) | 1500 |
Вариант | 1 | 1 | 1 | 1 | 3 | 3 | 3 | 3 | 3 | 3 | 3 | 3 | 3 | 3 | 3 | 37 (4 + 33) | 925 |
| | ИС МЕГАНОРМ: примечание. В официальном тексте документа, видимо, допущена опечатка: имеется в виду таблица В.1 СП 251.1325800.2016, а не таблица Б1. | |
8.2 Функциональные группы и состав помещений ОО приведен в
таблице Б1 СП.251.1325800.2016
8.3 Расчет пропускной способности учебных помещений.
Одна классная группа единовременно может находится в одном учебном помещении, который кроме того несет функцию "дома" для этой группы, являясь для нее пространством для организации досуга и внеклассного времени во внеурочное время. Таким "домом" может выступать любое учебное помещений рассчитанное на полную вместимость класса, хотя в идеале (а также с последующей возможностью увеличения количеств обучающихся) количество универсальных учебных кабинетов принимать по количеству классных групп.
Обучающиеся начальных классов как правило не меняют учебные кабинеты в течение дня, за исключением посещения специально оборудованных кабинетов - музыки, информатики, спортзала и т.д., поэтому количество классных помещений для начальных классов должно строго соответствовать количеству классных групп начального уровня.
Таким образом, одиннадцатилетняя полная средняя школа должна иметь 11 - 22 - 33 - 44 классных помещений в зависимости от количества параллелей на 275 - 550 - 825 - 1100 мест.
Остальные помещения ОО как то лаборатории, мастерские, спортзалы и др. в расчет вместимости не принимаются.
Требования к составление технологических заданий для зданий ОО приведены в
приложении Б.
8.4 Расчет учебных помещений школ районного уровня
8.4.1 Школам районного уровня сетевым, с профильным обучением, лицеям, гимназиям, с увеличенным числом параллелей старших возрастов учащихся требуется большее число специализированных кабинетов. Вместимость этой группы учебных зданий зависит от эффективного использования специализированных учебных кабинетов в максимально отведенное учебное время. Поэтому в расчет включаются не только классы и классы-кабинеты, но и группы помещений специализированных кабинетов.
8.4.2 Основой расчета служит Базисный учебный план для общеобразовательных учреждений Российской Федерации, на основе которого, подставляя учебные часы по всем предметам учебного плана, можно определять дифференцированное количество учебных часов по предметам (математика, литература, обществоведение, естественные науки и т.д.), деля их на 30 учебных часов (оптимальная загрузка кабинета в неделю) и оставляя резерв в размере 15% (примерно 5 ч).
8.4.3 Пример возможного расчета количества учащихся в однокомплектных, двухкомплектных и трехкомплектных школах на основе базисного учебного плана:
- в соответствии с базисным учебным планом количество часов, отводимых учащимся 5 - 11 классов, составляет 181 час;
- при расчетной величине - 30 часов в неделю на 1 класс, требуется 6 учебных помещений на однокомплектную школу;
- в соответствии с учебными дисциплинами в школе 1:1:1 должно быть для 5 - 11 классов 7 универсальных кабинетов + 3 лаборатории естественных наук + кабинет искусства + кабинет технологии. Итого 12 помещений (это не считая помещений мастерских, спортзала, кружков и т.д.);
- следовательно, число классных групп с 5 - 11 класс может быть удвоено, т.е. школа может функционировать со структурой 1:2:2 (18 классных групп вместо 11).
8.4.4 Пример показывает, что число учащихся по сравнению с расчетом первой системы может быть увеличено примерно на 40%.
Кроме того, здесь следует учитывать направленность обучения старшего звена школы, что отражается на составе принимаемых помещений (больше химии или ее меньше, больше математики или ее меньше).
8.5 Расчет пропускной способности общешкольных помещений
8.5.1 Гигиенические требования к организации учебного процесса приведены в
пункте 10 СанПиН 2.4.2.2821-10.
8.5.2 В соответствии с указанными требования, занятия в ОО начинаются не ранее 08:00, не более 7 уроков для основной и старшей школы, не более 10 часов дополнительной нагрузки в неделю, которая может перераспределяться в течение года.
8.5.3 Принимая, что контингент учащихся во внеучебное время находится в школе (продленный или полный день), для расчета количества помещений за цикл принимается один день.
8.5.4 Обучающиеся во внеучебное время могут заниматься в кружках в среднем в две смены: с 15:00 до 17:00 и с 17:30 до 19:30 часов ежедневно в течение учебной недели.
8.5.5 Население микрорайона может пользоваться общешкольными помещениями одну-две смены в день, т.е. с 20:00 до 22:00 (после официального окончания занятий обучающимися школы), если не имеется помещений, специально предназначенных для занятий населения. При этом учитывается, что, в отличие от обучающихся, в течение недели в каждом из специализированных помещений можно осуществлять занятия с тремя группами взрослого населения (в силу специфики их работы, отдыха и т.д.), т.е. каждая группа может заниматься два раза в неделю из имеющихся пяти вакантных смен.
8.5.6 Зрительный зал, лекционные кабинеты и помещения используются эпизодически для образовательной деятельности во внеурочное время, и поэтому эти помещения не включаются в расчеты вместимости ОО.
8.5.7 При определении вместимости блока (группы) общешкольных помещений, помимо зрительного зала и лекционных кабинетов, и помещений, в расчет не включаются также библиотечно-информационный центр, обеденный зал. Для использования населением не рекомендуются также помещения технического творчества и юннатско-биологической (опытнической) деятельности.
8.5.8 Единовременная расчетная вместимость кружковых помещений в среднем принимается 10 мест (на практике она колеблется от 6 до 12 (15) мест в зависимости от вида деятельности и года занятий в данном кружке).
8.5.9 Само помещение, его технология рассчитываются, как правило, на предельно возможное число мест.
8.5.10 Учебные мастерские, используемые во внеучебное время, рассчитываются на среднюю наполняемость кружкового помещения, т.е. на 10 человек.
8.5.11 Формирование состава общешкольных помещений осуществляется на основе следующих параметров: 1) единовременная вместимость помещения; 2) количество помещений; 3) нормируемая площадь для конкретных функциональных групп помещений по видам деятельности.
8.5.12 Расчетные формулы К = Е/Н и П = Е·М (Е = П/М) (где К - количество помещений, Е - единовременная вместимость (чел.), Н - средняя наполняемость помещения (чел.), М - площадь на 1 место по конкретной функциональной группе помещений (м2), П - нормируемая площадь функциональной группы помещений) дадут возможность определить основные параметры для формирования состава помещений общешкольной группы помещений при проектировании нового и реконструкции (приспособлении) существующего здания ОО.
8.5.13 а) При проектировании нового здания при заданном проценте охвата или единовременной вместимости данной функциональной группы помещений можно определить нормируемую площадь. Далее, определив площадь и габариты основных рабочих помещений по соответствующим приложениям
СП 251.1325800.2016 можно определить параметры помещений обслуживающего назначения;
б) при реконструкции существующего здания - на выделенной площади (при заданных видах деятельности) определяется примерная единовременная вместимость, количество помещений и конкретная площадь каждой функциональной группы помещений.
8.5.14 Процент охвата взрослого населения различными видами деятельности в свободное время предлагается определять, исходя из реальной пропускной способности группы общешкольных помещений.
9 Объемно-планировочные решения зданий полных школ (три образовательные ступени)
Рассмотрим объемно-планировочные решения модернизированного проекта ОО на три образовательных ступени (1100 мест) для строительства в Московской области (проект включен в каталог типовой проектной документации ГАУ Мособлэкспертиза, проектировщик - ООО "ПромСтройИнжиниринг СПб"), приведенные в Ошибка! Источник ссылки не найден..
Организационно-педагогическая структура здания: 4:4:4 (по 4 класса каждого возраста с 1 по 11 класс).
Здание выполнено в виде трех объемных блоков - блок учебных помещений начальной школы и блок учебных помещений основной и средней школы (далее - блок старшей школы) примыкают с двух противоположных сторон к блоку общешкольных помещений, образуя перед входами в здание обширный школьный двор.
Каждый блок учебных помещений примыкает к блоку общешкольных помещений через объем вестибюля с парадной лестницей и лифтом на всю высоту учебного блока. Таким образом для начальной и старшей школы предусмотрено по собственному вестибюлю с собственным охраняемым входом, при этом входы для детей разнесены друг от друга на расстояние, равное длине блока общешкольных помещений. Из вестибюля обучающиеся могут попасть только в учебные секции, предназначенные для своего возраста, и в общие помещения блока общешкольных помещений,
Для каждого учебного блока предусмотрен отдельный набор спортивных помещений, вход которые осуществляется также из собственного вестибюля.
Блок начальной школы дифференцирован по этажам: на первом этаже расположена учебная секция первых классов с рекреацией, санузлами и помещениями продленного дня - спальнями и игровыми и блок спортивных помещений начальной школы со входом из вестибюля начальной школы. Учебные секции 2 - 4-х классов и специализированные кабинеты для начальной школы (кабинет музыки) размещены на 2 - 3-м этажах.
В блоке старшей школы все специализированные кабинеты сгруппированы и размещены на одном этаже, в непосредственной близости друг от друга: на первом этаже размещена группа трудовых помещений (мастерские по обработке металла и дерева, кулинария, технология), блок спортивных помещений с залом 30 x 18 и двумя комплектами раздевалок, специализированные кабинеты и санузлы. На 2-м и последующих этажах размещены группа кабинетов иностранного языка, группа кабинетов для естественных наук (кабинеты физики, химии, биологии с лаборантскими), группа кабинетов информатики.
В центральном блоке на первом этаже размещен общий гардероб, в который обучающиеся попадают с двух противоположных сторон, из своего вестибюля, медблок с собственным коридором, вход, который также с разных концов для начальной и старшей школы. В столовую на 1-м этаже из каждого вестибюля ведет по расширенному коридору с установленными в них рукомойниками, соответствующими ростовозрастным особенностям каждого блока обучающихся. На 2-м этаже размещается библиотечно-информационный блок, в единое пространство которого предусмотрено по входу из вестибюлей 2-го этажа и зрительный зал с двумя фойе. На 3-м этаже размещена административно-офисная зона для преподавателей с коридором на всю длину блока, соединяющим оба вестибюля. При такой компоновке, даже при наличии двух входов с разных концов помещений, общешкольные помещения не являются проходными, потому что возрастным группам обучающихся и их преподавателям нет необходимости проходить через них в другой возрастной блок. Таким образом, в одном здании размещаются как бы две изолированные ОО с полным набором помещений каждая.
Плюсы подобной структуры заключаются в следующем: соблюдается необходимая изоляция учебных блоков; соблюдается необходимая изоляция учебных секций - для перемещения в общешкольные помещения обучающимся достаточно выйти из своей учебной секции и воспользоваться лестницей; сокращается количество транзитных коммуникаций за счет разнесенных входов в общешкольные помещения.
10 Особенности проектирования БНК
10.1 Общие положения
10.1.1 В данном разделе рассматриваются особенности проектирования отдельно стоящих зданий общеобразовательных организаций начального общего образования.
10.1.2 В блоке начальных классов допускается размещение дошкольных групп. В зависимости от наличия и типа размещения дошкольных групп (временного, постоянного) выделяются следующие типы блоков начальных классов:
- блок начальных классов - здание блока начальных классов, рассчитанное на посещение обучающихся 1 - 4-х классов. Дошкольные группы не предусматриваются;
- трансформируемый БНК - здание блока начальных классов, которое в зависимости от текущей необходимости может попеременно использоваться как общеобразовательная организация начального уровня образования и как дошкольная образовательная организация. Трансформации в данном типе БНК удобнее всего осуществлять, меняя назначение на уровне групповой ячейки (далее - универсальной групповой ячейки), в каждой из которых в зависимости от ситуации размещается либо дошкольная группа, либо учебный класс. Общешкольные помещения в трансформируемом БНК принимаются в соответствии с потребностями начальной школы. При различии характеристик (площадь, высота, иное) аналогичных помещений ОО и ДОО учитывается максимальное значение;
- комбинированный блок начальных классов - здание блока начальных классов, в котором размещены как классные группы начальных классов, так и дошкольные группы, рассчитано на одновременное пребывание как классных групп начального образования, так и дошкольных групп. Количество указанных групп может быть, как постоянным, так и варьироваться при наличии в составе БНК универсальных ячеек.
10.2 Требования к участку территории БНК
10.2.1 К участкам БНК предъявляются те же требования, что и к участкам ОО, за исключением состава зон отдыха, физкультурно-спортивной и учебно-опытной.
10.2.2 В соответствии с требованиями
СанПиН 2.4.2.2821-10 все здания на территории ОО должны соединяться отапливаемым переходом. Если соединение переходом не предусматривается, участок БНК следует отделять от участка ОО ограждением. При этом обучающиеся из БНК могут пользоваться необходимыми элементами участка ОО при условии их достаточной мощности.
10.2.3 Для дошкольных групп на территории БНК или (при дефиците территории) рядом с ней, но не далее 300 м от входа в соответствующий блок, выделяют площадки отдыха из расчет 9,0 м2 на человека, оборудованные навесом. При выделении площадок за территорией ОО к ним должен быть обеспечен безопасный пешеходный доступ, участок, на котором размещаются площадки должны быть огорожены, доступ населения на них не предусматривается.
10.2.4 В БНК с трансформируемыми ячейками допускается устройство совмещенных прогулочных площадок для каждой универсальной ячейки. Площадь таких площадок принимается по нормативу для дошкольных групп - 9 м2 на 1 человека. Совмещенные площадки выносить за территорию ОО не допускается, т.к. обучающиеся начальной ступени используют их во время перемены.
10.2.5 Дошкольные группы пользуются общими спортивными сооружениями.
10.2.6 Элементы физкультурно-спортивной зоны для обучающихся начальной ступени те же, не требуется устройство беговой дорожки для бега на дистанцию до 100 м и футбольного поля 60 x 40. Допускаемся устройство универсальной спортивной площадки для волейбола и баскетбола, а также их уменьшенных вариантов.
10.2.7 Учебно-опытная зона принимается по технологическому заданию и рассчитывается на обучающихся начальной ступени образования.
10.3 Требования к зданию
Рисунок 15 - Схема функционального
зонирования комбинированного БНК
10.3.1 Помещения для детей в здании БНК размещаются не выше третьего этажа. При этом нижние этажи (первый и второй) предназначаются для размещения младших возрастных групп. Так, универсальные ячейки и дошкольные группы не следует размещать выше второго этажа. Размещение указанных помещений на третьем этаже возможно только для трансформируемых БНК.
10.3.2 Помещения, в которые доступ детей не предусматривается - административные и методические опускается размещать на 4-м этаже.
10.3.3 Пищеблок размещается не выше второго этажа
10.3.4 Спортивный зал размещается не выше второго этажа.
11 Принципы размещения дошкольных групп в составе общеобразовательных организаций
11.1 При размещении дошкольных групп (возраст 3 - 7 лет) в общеобразовательной организации следует соблюдать следующие принципы:
| | ИС МЕГАНОРМ: примечание. В официальном тексте документа, видимо, допущена опечатка: имеется в виду СП 252.1325800.2016, а не СП 252.13225800.2016. | |
11.2 Дошкольные ячейки следует размещать изолированно, с собственным входом. Проектирование дошкольных ячеек ведется в соответствии с требованиями
СП 252.13225800.2016. Должен соблюдаться принцип максимальной изоляции каждой дошкольной групповой ячейки.
11.3 Допускается устройство одного общего входа для всех дошкольных групповых ячеек.
11.4 Дошкольные групповые ячейки размещаются в здании ОО не выше второго этажа. При наличии в ОО блока начальных классов, дошкольные ячейки следует размещать в данном блоке для возможности совместного использования специализированных кабинетов. Мощность библиотеки и посадочные места в актовом зале на дошкольные группы не рассчитывается.
11.5 Обучающиеся дошкольного уровня образования могут пользоваться спортивным залом начальной школы для музыкальных и физкультурных занятий. В случае, если одного спортивного зала недостаточно для обслуживания дошкольных групп и обучающихся начального уровня, в блоке дошкольных помещений устраивается универсальный зал для музыкальных и физкультурных занятий в соответствии с требованиями
СП 252.1325800.2016, которым так же при необходимости могут пользоваться обучающиеся начальной школы.
11.6 Расчет общешкольных помещений - медблока, пищеблока, методического кабинета для преподавателей ведется с учетом дошкольных групп. Посадочные места в обеденном зале для дошкольных групп предусматривать не требуется, т.к. дети питаются в групповых ячейках. Однако, с целью обучения правилам этикета, возможно посещение дошкольниками обеденного зала во время, когда обучающиеся находятся на уроках. Если предусматривается такая возможность, целесообразно предусмотреть короткий удобный доступ в обеденный зал от блока дошкольных ячеек.
11.7 При размещении в ОО дошкольных групп в медблоке предусматривается кабинет логопеда площадью не менее 12 м2 и изолятор на две койки площадью не менее 20 м2, используемый так же для остальных обучающихся.
11.8 Размещение площадок для дошкольников на территории ОО.
11.8.1 Площадки для дошкольников на территории ОО следует размещать в непосредственной близости ко входу в блок дошкольных ячеек, в стороне от основных путей движения по территории ОО, площадок спорта и отдыха для основной и старшей школы. Желательно отделение площадок для дошкольников от остальной территории ОО зеленой изгородью, элементами рельефа и проч. Площадки отдыха для дошкольников проектируются в соответствии с требованиями
СП 252.1325800.2016. Дошкольники могут пользоваться спортивными площадками начальной школы.
Рисунок 16 - Принцип функционального
зонирования общеобразовательной организации
с дошкольными группами в составе
12 Формирование информационно-образовательной среды на основе цифровых технологий
12.1 Информационно-образовательная среда (ИОС) - это системно организованная совокупность средств передачи данных, информационных ресурсов, протоколов взаимодействия, аппаратно-программного и организационно-методического обеспечения, ориентированная на удовлетворение потребностей пользователей в информационных услугах и ресурсах образовательного характера.
12.2 Информационно-образовательная среда ОО должна обеспечивать:
- информационно-методическую поддержку образовательного процесса;
- планирование образовательного процесса и его ресурсного обеспечения;
- мониторинг и фиксацию хода и результатов образовательного процесса;
- мониторинг здоровья обучающихся;
- современные процедуры создания, поиска, сбора, анализа, обработки, хранения и представления информации;
- дистанционное взаимодействие всех участников образовательного процесса (обучающихся, их родителей (законных представителей), педагогических работников, органов управления в сфере образования, общественности), в том числе, в рамках дистанционного образования;
- дистанционное взаимодействие ОО с другими организациями социальной сферы: организациями дополнительного образования детей, учреждениями культуры, здравоохранения, спорта, досуга, службами занятости населения, обеспечения безопасности жизнедеятельности.
12.3 Эффективное использование информационно-образовательной среды предполагает компетентность сотрудников ОО в решении профессиональных задач с применением ИКТ, а также наличие служб поддержки применения ИКТ. Обеспечение поддержки применения ИКТ является функцией учредителя ОО.
12.4 Функционирование информационно-образовательной среды должно соответствовать законодательству Российской Федерации.
12.5 Учебно-методическое и информационное обеспечение реализации основной образовательной программы основного общего образования включает характеристики оснащения информационно-библиотечного центра, читального зала, учебных кабинетов и лабораторий, административных помещений, школьного сервера, школьного сайта, внутренней (локальной) сети, внешней (в том числе глобальной) сети и направлено на обеспечение широкого, постоянного и устойчивого доступа для всех участников образовательного процесса к любой информации, связанной с реализацией основной образовательной программы, достижением планируемых результатов, организацией образовательного процесса и условиями его осуществления.
Подобная среда включает в себя организационно-методические средства, совокупность технических и программных средств хранения, обработки, передачи информации, обеспечивающую оперативный доступ к педагогически значимой информации и создающую возможность для общения педагогов и обучаемых. ИОС должна обеспечивать возможности для информатизации работы любого учителя и обучающегося.
12.6 Оборудование учебных кабинетов и помещений
12.6.2 Фронтальная работа (экран или интерактивная доска)
В данной модели компьютер, подключенный к мультимедийному проектору, является, прежде всего, современной многофункциональной школьной доской, наличие которой является обязательным условием организации современного урока.
Использование средств наглядности обеспечивает успешное решение следующих дидактических задач: развитие у учащихся наглядно-образного мышления; формирование навыков работы с информацией, представленной в графической форме; фиксация внимания при усвоении учебного материала; развитие познавательного интереса; активизация учебно-познавательной деятельности учащихся; конкретизация изучаемых теоретических вопросов; наглядная систематизация и классификация изученных явлений на схемах, таблицах и т.д.
12.6.3 Групповая работа (несколько компьютеров в классе)
Рабочее место учителя оборудуется компьютером, точкой доступа, мультимедийным проектором и экраном (интерактивной доской).
Рабочее мест учебника оборудуется индивидуальным компьютером (ноутбуком или планшетом)
Данная модель позволяет сделать обучение личностно-ориентированным, а программное обеспечение и технологии - доступными в любое время. Таким образом доступ к точным и детальным данным по теме становится почти мгновенным. В ходе любого урока учитель, направляет школьников к ресурсам Интернета, организовывает исследовательскую деятельность учащихся, ориентируя их на углубленный поиск информации, оценку надежности различных информационных источников, конспектирование изучаемых материалов и обсуждение их с одноклассниками, создание мультимедийных презентаций.
12.6.4 Общешкольные помещения
Использование внутренних и внешних поверхностей стен здания для размещения больших мультимедиа экранов, где может отображаться учебная, справочная, досуговая (развлекательная) информация, а также медиапродукты творческой деятельности учащихся: презентации, фильмы, мультфильмы, фотографии и др.
Оборудование интерактивного музея (постоянная экспозиция, сменная экспозиция, зал для музейных занятий) в центральном общественном пространстве школы.
13 Мероприятия по безопасной эксплуатации зданий и участков общеобразовательных организаций
13.1 Здания ОО и их элементы в процессе эксплуатации должны:
- обеспечивать безопасность для жизни и здоровья людей, сохранность имущества;
- соответствовать требованиям нормативных документов, проектной и технической документации по надежности, прочности, долговечности, устойчивости, деформативности;
- быть доступными и безопасными для осуществления всех видов осмотров, технического обслуживания и ремонтов;
- обладать ремонтопригодностью;
- соответствовать предъявляемым проектной документацией санитарно-гигиеническим и экологическим требованиям для находящихся в них людей, окружающих объектов и территорий;
- быть снабженными проектной, исполнительной и эксплуатационной документацией.
13.2 Расчетный срок службы зданий ОО определяют в соответствии с
таблицей 1 ГОСТ 27751-2014.
13.3 Параметры микроклимата помещений ОО, предназначенных для пребывания детей, следует принимать в соответствии с
СанПиН 2.4.2.2821. Параметры микроклимата вспомогательных административных и технических помещений ОО следует принимать в соответствии с
ГОСТ 30494 и
СП 118.13330.
13.4 Перечень работ по контролю состояния грунтов, конструкций фундаментов и стен подвалов, в том числе, при необходимости, мониторинга, устанавливают в соответствии с
ГОСТ 31937.
13.5 Минимальная периодичность общих осмотров устанавливается два раза в год, обследований - в зависимости от категории грунтов, но не реже, чем раз в 10 лет.
13.6 На участках и в помещениях ОО предельно допустимые и допустимые нормативные уровни звукового давления, уровни звука, эквивалентные и максимальные уровни звука проникающего шума следует принимать согласно
табл. 1 СП 51.13330.2011.
13.7 При ориентации помещений ОО в сторону источников воздушного шума (от автодорог, железных дорог и т.п.) в них следует устанавливать шумозащитные окна, снабженные вентиляционными устройствами с глушителями шума, обеспечивающие требуемую защиту от шума.
13.8 В составе проектной документации приводят данные, необходимые для выполнения требований по безопасной эксплуатации здания и участка ОО, в соответствии с
разделом 6 СП 255.1325800.2016
13.9 Дополнительно рекомендуется включать в проектную документацию инструкцию по организации оповещения и аварийной эвакуации обучающихся в случае пожара и иных чрезвычайных ситуаций с указанием порядка действий.
13.10 Перечень сведений по эксплуатации здания и участка ОО, включаемых в проектную документацию, следует разрабатывать с учетом возможности их использования эксплуатирующими организациями в качестве отдельного документа или разработки на его основе инструкции о технической эксплуатации здания.
13.11 Для осуществления текущего контроля и дистанционного управления инженерно-техническими системами здания ОО, предусматривают системы автоматизации и диспетчеризации.
13.12 На участках, в помещениях и на эксплуатируемых кровлях ДОО следует обеспечивать меры для предотвращения касания детьми элементов инженерного оборудования, подверженных нагреву поверхностей от 40 до 75 °C, накоплению заряда статического электричества, высокочастотной вибрации, выбросам газо-паро-пылевых смесей. Конструкции декоративных и защитных экранов отопительных приборов должны предусматривать возможность доступа к отопительным приборам для их очистки.
13.13 В соответствии с [9] кабинеты (лаборатории) физики, электротехники и другие, где обучающиеся работают с электрооборудованием, аппаратами и приборами напряжением до 0,4 кВ, относятся к группе помещений с повышенной опасностью. Для электрооборудования кабинетов с напряжением питания выше 42 В переменного тока и 110 В постоянного тока предусматривают заземление.
13.14 Для обеспечения пожарной безопасности кабинеты (лаборатории) физики, электротехники и другие, где учащиеся работают с электрооборудованием, аппаратами и приборами напряжением до 0,4 кВ, а также школьные мастерские комплектуют противопожарным инвентарем: ящиком с песком, лопатой, плотной мешковиной (пропитанной огнестойким составом), огнетушителем.
13.15 Минимальная периодичность осмотров для спортивного оборудования устанавливается в соответствии с технической документацией изготовителя, но не менее:
- одного раза в 2 - 3 месяца в целях оценки функционального соответствия: рабочего состояния, степени изношенности, прочности и устойчивости;
- ежегодно в целях оценки соответствия технического состояния оборудования требованиям безопасности.
13.16 Минимальная периодичность визуальных плановых осмотров стен, полов, потолков, оконных переплетов для определения объема ежегодных ремонтных работ - 2 раза в год, в периоды летних и зимних каникул.
ОСНОВНЫЕ ПРИНЦИПЫ ПРОЕКТИРОВАНИЯ ЭКОНОМИЧЕСКИ
ЭФФЕКТИВНЫХ ЗДАНИЙ ОБЩЕОБРАЗОВАТЕЛЬНЫХ ОРГАНИЗАЦИЙ
А.1 Проектирование зданий общеобразовательной организации следует вести по предварительно разработанному техническому заданию (далее - ТЗ), согласованному с местными органами образования, определяющими сеть дошкольных и общеобразовательных организаций. В ТЗ должна быть учтена местная специфика и требования для конкретного ОО. ТЗ рекомендуется составлять в соответствии с рекомендациями по составлению технологических заданий, приведенными в данном документе.
А.3 Отступления при проектировании от ТЗ, такие как введение не предусмотренных помещений (кроме помещений технического назначения, связанных с особенностями применения инженерных систем для конкретного проекта) а также отсутствие предусмотренных ТЗ помещений не допускается.
А.4 Дефицит площадей помещений, установленных ТЗ не допускается, превышение площадей помещений, указанных в технологическом задании допускается не более, чем на 1,5 м для основных помещений и не более 0,5 - 1 м для остальных.
А.5 Количество санитарных приборов должно соответствовать расчетному (в соответствии с наполняемостью основных помещений, при которых проектируется санузел).
А.6 Габариты и площадь коммуникационных помещений должны быть обоснованы функциональной необходимостью: шириной путей эвакуации, габаритными размерами, установленными нормативными документами. Не допускается устройство холлов, рекреаций, атриумов и других коммуникационных помещений, если они не предусмотрены технологическим заданием.
А.7 Не допускаются функционально не используемые элементы здания: чердаки, технические этажи выше 1,6 м, подвалы под всей площадью здания по высоте технических помещений. Не допускается обратная засыпка подвалов.
А.8 Если территория ОО представляет собой участок с сильным перепадом рельефа, не следует выравнивать всю территорию в один уровень. Достаточно выровнять площадки, для которых требуется ровная горизонтальная поверхность - футбольное поле и другие площадки для игровых видов спорта. Для площадок с гимнастическими снарядами и игровых незначительный уклон некритичен. Предпочтение при земляных работах следует отдавать естественным откосам.
А.9 При размещении здания на территории с большим перепадом рельефа, здание следует сажать по рельефу, не допуская наличие высоких цокольных и подвальных помещений. В этом случае устраивается перепад по высоте этажа с возможным устройством зальных помещений в части с повышенной высотой.
А.10 Не целесообразно устройство высокого цоколя на входе в здание. Указанное решение ведет к увеличению высоты входных лестниц и пандусов, увеличению высоты фундамента и подземной части здания.
А.11 Устройство световых фонарей в кровле увеличивает стоимость эксплуатации здания.
А.12 Не следует устраивать декоративные нефункциональные элементы и конструкции на фасаде. Форма здания должна быть компактной, без лишних внешних и внутренних углов, функционально не обоснованных западении и выступов формы. Не следует поднимать отдельные части здания над уровнем тротуара. Следует стремиться к наименьшей площади ограждающих поверхностей и высокому коэффициенту компактности здания. Тамбуры и утепленные крыльца не следует устраивать выступающими за плоскость фасада.
А.13 Несоблюдение принципов акустического проектирования (смежное размещение "шумных помещений" и помещений с нормируемым уровнем шума ведет к устройству дополнительных мероприятий по шумо- и виброизоляции.
А.14 При проектировании следует соблюдать принципы энергоэффективности в проектировании зданий ОО, приведенные в
разделе 10 СП 251.1325800.2016.
ОСНОВНЫЕ ПРИНЦИПЫ СОСТАВЛЕНИЯ ТЕХНОЛОГИЧЕСКИХ ЗАДАНИЙ
ДЛЯ ЗДАНИЙ ОБЩЕОБРАЗОВАТЕЛЬНЫХ ОРГАНИЗАЦИЙ
Б.1 В соответствии с
приказом Министерства строительства и жилищно-коммунального хозяйства Российской Федерации от 1 марта 2018 года N 125/пр здания ОО, как объект капитального строительства, строятся по техническому заданию утвержденной формы.
Б.2 Техническое задание на проектирование разрабатывает заказчик проекта с привлечением профильных проектных организаций.
Б.3 Техническое задание на проектирование среди прочего должно содержать следующие данные:
Общая площадь здания
| | ИС МЕГАНОРМ: примечание. В официальном тексте документа, видимо, допущена опечатка: имеется в виду приложение Г СП 118.13330.2012*, а не приложение Г СП 118.2220.2012*. | |
Предварительная общая площадь для зданий ОО определяется на основании расчетной площади (в соответствии с
приложением Г СП 118.2220.2012*) умноженной на предварительный коэффициент качества проектных решений
kкпр, который рассчитывается по формуле Б.1:
kкпр = Aрасч/Aобщ, (Б.1)
где Aрасч, м2 - расчетная площадь здания по технологическому заданию на проектирование. Расчетная площадь здания определяется как суммарная площадь помещений, включенных в технологическое задание. Площадь помещений определяется исходя из действующих норм, а также функциональной целесообразности;
Aобщ, м2 - общая площадь здания определяется как сумма площадей всех наземных этажей (включая технический, мансардный, цокольный). В общую площадь не включаются площади подполья и чердака при высоте от пола до низа выступающих конструкций менее 1,8 м.
Для объектов государственного заказа предварительный коэффициент качества проектных решений равен 1,4.
Средние значения коэффициента могут варьироваться от 1,4 до 1,8 в зависимости от типа и мощности объекта.
Площадь застройки
Принимается не менее суммарной площади помещений, размещаемых на 1 этаже с коэффициентом 1,8 (максимальный переход от расчетной к общей площади здания). На первом этаже могут размещаться: входные группы с охраной, вестибюлем и гардеробом, медблок, пищеблок, помещения 1-х классов и групп продленного дня.
Количество этажей
Принимается в зависимости от условий участка строительства. В условиях сложившейся плотной застройки при дефиците участка территории количество наземных этажей принимается 4 этажа (5 этажей должно быть согласовано с заинтересованными организациями - местными органами образования, администрацией, МЧС). Оптимальная высота здания ОО - не более 3 этажей.
Количество посетителей
Общее количество обучающихся, структура (количество параллелей, профиль ОО и т.д.) Расчет приведен в
разделе 8.1.
Количество сотрудников
Данный показатель требуется для дальнейшего расчета машиномест и помещений для штатных сотрудников.
Состав сотрудников может включать:
"Педагогический персонал - педагогические работники (педагогические работники. Непосредственно осуществляющие учебный и воспитательный процессы - учителя, педагоги дополнительного образования, воспитатели) и иные категории педагогических работников (педагог-психолог, педагог-дефектолог, социальный педагог, преподаватель - организатор ОБЖ, педагог-организатор, старший воспитатель, инструктор по физическому воспитанию)
Административно-управленческий персонал - директор, его заместители, главный бухгалтер.
Учебно-вспомогательный персонал - руководители структурных подразделений, заведующий библиотекой, бухгалтер, экономист, делопроизводитель, инженер по ИТК, медсестра (бассейна), специалист по охране труда, системный администратор, инженер по пожарной безопасности, секретарь, специалист по питанию и иные работники.
Младший обслуживающий персонал - младший воспитатель (помощник воспитателя), технические работники, рабочий по обслуживанию зданий, уборщица, гардеробщик, учетчик, кастелянша, дворник и иные работники.
Количество машиномест
Следует указывать раздельно для машиномест работников (размещаемых на расстоянии от участка) и для мест посадки-высадки, размещаемых около границ участка.
Б.4 Целесообразно также оговорить в технологическом задании величину, на которую возможны отступления от требуемых ТЭП объекта (в % от площади помещений либо в метрах для каждой и функциональных групп). Например, для объектов государственного заказа площадь основных функциональных помещений не должна превышать 1,5 м на каждое помещение, площадь второстепенных помещений и помещений малой площади - не более 1 м. Следует также отметить, что дефицит площадей помещений, вне зависимости от его размера, неприемлем, так как не обеспечивает требования функционального процесса.
Б.5 Требования к схеме планировочной организации земельного участка должны содержать:
- Сведения о пешеходной и транспортной доступности здания. Необходимо для разработки генплана (для планирования въездов на участок, вертикальной планировки, планировочной организации и т.д.), кроме того наличие транспортной и пешеходной доступности - обязательное условие для согласования архитектурно-градостроительного облика объекта и введения здания в эксплуатацию. Транспортная возможность - наличие дорог с твердым покрытием от существующих линейных транспортных объектов до границ участка. Пешеходная доступность - наличие пешеходных тротуаров, соответствующих требованиям к организации пешеходной сети от существующей сети тротуаров до входа на участок, в том числе требования к доступности МГН (требования к пешеходной и транспортной доступности описаны в
разделе 6. Зонирование земельного участка).
- Размещение въездов и входов на участок, наличие особых условий к их устройству, не охваченных нормативными документами. Въезды и входы на участок должны стыковаться с существующими внешними элементами улично-дорожной сети, либо предусматриваться в увязке с проектируемым доступом к участку за его границами.
- Состав элементов благоустройства, в том числе перечень необходимых элементов участка с указанием требуемой площади и габаритов. В случае, если площадь и габариты не заданы нормативными документами, их следует предусмотреть для исключения разногласий при приемке проекта. В указанный перечень входят площадки и элементы физкультурно-спортивной зоны, зоны отдыха, учебно-опытной зоны при наличии и других элементов участка для школьников, хозяйственной зоны и контейнерной площадки. Также следует указывать особые (неочевидные, либо не охваченные нормативной базой) требования к устройству, расположению и группированию площадок при их наличии.
- Требования к размещению здания при их наличии (например, ориентация главного фасада, размещение выходов и т.п.)
- Факторы, влияющие на проектирование; необходимые для получения согласований - например, совместное использование спортивных площадок с другой организацией, использование общественных площадок и т.п.
Б.6 Требования к технологическим решениям (технологическое задание):
В технологическом задании указываются следующая информация:
- назначение объекта в соответствии с требованиями закона об образовании в Российской Федерации;
- специализированный профиль (при наличии);
- вместимость здания; функционально-педагогическая структура (количество и соотношение классных групп, параллелей);
- количество сотрудников (принимается по штатному расписанию либо по объектам-аналогам);
- полный перечень помещений, включая коридоры и рекреации с указанием площади и габаритов помещений. При наличии в нормативных документах выбора из нескольких показателей, технологическим заданием указывается конкретный показатель, которого следует придерживаться при проектировании;
- требования к поэтажному, смежному, раздельному размещению и взаимосвязи помещений, в случае, если указанные требования не охвачены нормативными документами, либо в нормативной документации представлен выбор.
ОБЩИЕ ПРИНЦИПЫ РАСЧЕТА ПЛОЩАДИ И КОЛИЧЕСТВА ПОМЕЩЕНИЙ
ДЛЯ ЗДАНИЙ ОО
I. Этаж размещения помещения: П - подвальный; Ц - цокольный; 1, 2, 3, 4, 5 - в соответствии с номером; Г - помещение должно быть размещено в той же группе и на том же уровне, что и помещение выше по списку.
| | ИС МЕГАНОРМ: примечание. В официальном тексте документа, видимо, допущена опечатка: имеется в виду СанПиН 2.2.1/2.1.1.1076-01, а не СанПиН 1076. | |
II. Требуемое освещение: И - требуется инсоляция (в соответствии с
СанПиН 1076); ЕО - требуется естественное освещение; Б - достаточно искусственного освещения;
III. Ориентация окон по сторонам горизонта: С - север; Ю - юг; З - запад, В - восток; соответственно - ЮВ, СВ, ЮЗ, СЗ; "-" - нет ограничений по ориентации окон.
IV. S - площадь на 1 человека, м2;
V. Расчет площади помещения и количества помещений. Цифровые обозначения - кратно количеству групп (ориентировочно - 25 человек в каждой); 1 чел. - площадь дана на 1 человека и не привязана к размеру классной группы; П - количество посетителей принимается по заданию на проектирование.
Необходимость в устройстве помещений, принимаемых по заданию на проектирование, определяется только заданием на проектирование.
Учебная группа помещений: | Наименование помещения | I | II | III | IV | V | Количество помещений |
1. 1-е классы | Класс, расширенный с учетом организации групповых занятий | 1 - 2 | И | Ю, ЮВ, В | 3,0 | 1 | По количеству 1-х классов |
- Спальня | 1 - 2 | И | - | 4,0 | П | Не менее 2 помещений для мальчиков и для девочек, по количеству обучающихся 1-х классов, посещающих группу продленного дня |
- Игровая для групп продленного дня | | И | - | 2,5 | П | По количеству обучающихся 1-х классов, посещающих группу продленного дня. Может предусматриваться как одно, так и несколько помещений |
Рекреация (зального типа) | 1 - 2 | ЕО | Ю, ЮВ, В | 2,0 | 1 | По количеству классных групп, выходящих в данную рекреацию |
2. Начальные (2 - 4) классы | Класс, с возможностью организации групповых, индивидуальных и игровых занятий | 1 - 3 | И | Ю, ЮВ, В | 3,0 - 3, 5 | 1 | По количеству 2 - 4 классов |
| Универсальные помещения, в т.ч. для организации продленного дня | 1 - 3 | И | - | 2,5 | П | По количеству обучающихся 2 - 4 классов, посещающих группы продленного дня. Может предусматриваться как одно, так и несколько помещений |
| Комната тихих игр и уединения | 1 - 3 | И | - | 2,5 | П | По количеству обучающихся 2 - 4 классов, посещающих группы продленного дня. Может предусматриваться как одно, так и несколько помещений |
| Комната труда, моделирования и технической игрушки, изобразительного искусства, природы | 1 - 3 | И | Ю, ЮВ, В | 2,5 | 1 | 1 кабинет на начальную школу |
| Учительская - методический кабинет | г | ЕО | - | 6,0 | чел | 1 кабинет на начальную школу, по количеству преподавателей в начальной школе. Допускается объединять с учительской для старших классов |
3. Классы-кабинеты (5 - 11) основной школы | Класс - учебный кабинет, рассчитанный на организацию фронтальных, групповых и индивидуальных форм работы | 1 - 4 | И | Ю, ЮВ, В | 2,5 - 3,5 | 1 | По количеству учебных групп основной и старшей школы минус количество специализированных кабинетов, рассчитанных на полную учебную группу |
| Лаборантская (ресурсный центр) | 1 - 4 | ЕО | - | 18 | - | Одна на каждые 3 - 4 класса-кабинета. Допускается объединять, размещать необходимо на каждом этаже |
| Рекреация (зального типа) | г | ЕО | - | 0,6 | 1 | По количеству классных групп, выходящих в данную рекреацию |
| Комната индивидуальных занятий для 10 - 11 классов | 1 - 4 | И | - | 2,5 - 6 | чел | По заданию на проектирование. Рекомендуется рассчитывать не менее чем на 1 классную группу, для возможности использования в качестве дополнительного учебного помещения |
5. Специализированные лаборатории основной и старшей школы | Лаборатория физики | 1 - 4 | ЕО | - | 3 | 1 | По расчету (см. раздел 8). Но не менее 1 помещения |
| Лаборатория химии | 1 - 4 | ЕО | - | 3 | 1 | По расчету (см. раздел 8). Но не менее 1 помещения |
| Лаборатория биологии | 1 - 4 | И | Ю, ЮВ, В | 3 | 1 | По расчету (см. раздел 8). Но не менее 1 помещения |
| Практикум | 1 - 4 | ЕО | - | 4,5 | 1/2 | По 1 на каждую лабораторию. Допускается объединять с лабораторией, устраивая одно общее помещение |
| Лаборантская-практикум | 1 - 4 | ЕО | - | 36 | 1/3 | По 1 на каждую лабораторию при отсутствии практикумов |
| Лаборантская | 1 - 4 | ЕО | - | 18 - 36 | - | 1 при каждой лаборатории. Допускается делать 1 на каждые 2 лаборатории в малокомплектных ОО |
| Кабинет естествознания | 1 - 4 | И | - | 3,0 | 1 | По заданию на проектирование |
Специализированные кабинеты основной и старшей школы: | Кабинет иностранного языка | 1 - 4 | И | Ю, ЮВ, В | 3,5 | 1/2 | По расчету (см. раздел 8). Но не менее 2 помещений |
| Кабинет информатики и вычислительной техники | 1 - 4 | ЕО | С, ЕВ | 4,5 | 1/2 | Не менее 2 на школу |
| Кабинет технического черчения и рисования | 1 - 4 | ЕО | - | 6 | 1 | Не менее 1 на школу |
6. Помещения изучения технологий и трудового обучения | Комбинированная мастерская по металлу и дереву | 1 | И | - | 9 | 1/2 | По заданию на проектирования (допускается как устройство одной комбинированной, так и комбинированная + мастерская по дереву, комбинированная + мастерская по металлу) |
| Мастерская по обработке металла и технологии | 1 | И | Ю, ЮВ, В | 6 | 1/2 | По расчету (см. раздел 8). Но не менее 1 помещения. Допускается заменять комбинированной мастерской |
| Мастерская по обработке дерева и технологии | | И | Ю, ЮВ, В | 6 | 1/2 | По расчету (см. раздел 8). Но не менее 1 помещения. Допускается заменять комбинированной мастерской |
| Инструментальная | 1 | Б | Ю, ЮВ, В | 15 | - | 1 на мастерскую |
| Мастерская по обработке тканей и технологии | 1 | И | Ю, ЮВ, В | 6 | 1/2 | По расчету (см. раздел 8). Но не менее 1 помещения |
| Кулинария | 1 - 4 | И | Ю, ЮВ, В | 4 | 1/2 | По расчету (см. раздел 8). Но не менее 1 помещения. |
| Кабинет изучения технологий | 1 - 4 | И | Ю, ЮВ, В | 7,5 | 1/2 | По заданию на проектирование |
| Универсальная мастерская с техническими видами труда | 1 | И | Ю, ЮВ, В | 9 | 1/2 | По заданию на проектирование |
| Автодело | 1 - 4 | И | Ю, ЮВ, В | 9 | 1/2 | По заданию на проектирование |
| Электрорадиотехнология | 1 - 4 | И | Ю, ЮВ, В | 6 | 1/2 | По заданию на проектирование |
| Электротехника | 1 - 4 | И | Ю, ЮВ, В | 6 | 1/2 | По заданию на проектирование |
| Радиоэлектроника | 1 - 4 | И | Ю, ЮВ, В | 6 | 1/2 | По заданию на проектирование |
| Кабинет машинописи и основ делопроизводства | 1 - 4 | И | Ю, ЮВ, В | 2,5 - 3,5 | 1 | По заданию на проектирование |
| Комната мастера | 1 - 4 | ЕО | - | 8 | - | 1 при каждом помещении изучения технологий, кроме кулинарии и мастерской по обработке ткани. Допускается объединять с кратным увеличением площади при размещении группы помещений на одном этаже. |
| Комнаты для хранения сырья, материалов и готовой продукции | Ц - 1 | Б | - | 24 | - | 1 на блок помещений |
10. Группа зрительного зала | Зрительный зал | 1 - 2 | ЕО | - | 0,65 + 1,6 МГН | * | По большей группе обучающихся: - по количеству обучающихся начальной школы за исключением первых классов плюс 2 педагога на каждый класс плюс места для МГН по расчету; - по количеству обучающихся основной и старшей школы плюс 2 педагога на каждый класс плюс места для МГН по расчету. |
| Эстрада | 1 - 2 | Б | - | 70 - 90 | - | 1 на зал |
| Киноаппаратная | 1 - 2 | Б | - | 10 | - | 1 на зал |
| - Кладовая | 1 - 2 | Б | - | 10 | - | Не менее 1 на зал |
| - Склад декораций и бутафории, музыкальных инструментов | 1 - 2 | Б | - | 10 | - | Не менее 1 на зал |
| - Артистические | 1 - 2 | ЕО | - | 10 | - | Не менее 1 на зал |
| - Лекционная аудитория | 1 - 2 | ЕО | Ю, ЮВ, В | 1,0 | 1 | По заданию на проектирование, 1 помещение на 1 комплект обучающихся |
11. Группа помещений художественного воспитания (дополнительное образование) | Универсальная студия * | 1 - 2 | ЕО | - | 144 | - | По заданию на проектирование |
| Подсобное помещение | Г | Б | - | 18-36 | - | Не менее 1 при универсальной студии |
| Раздевальная | Г | Б | - | 12 | - | Не менее 2 (для мальчиков и девочек) при универсальной студии |
| Кабинет эстетики ** | 1 - 2 | И | Ю, ЮВ, В | 80 | - | По заданию на проектирование |
| Лаборантская | Г | ЕО | - | 28 | - | 1 при каждом кабинете эстетики |
Кружки специализированные и студии (помещения дополнительного образования): | живопись, рисунок, скульптура | 1 - 3 | ЕО | - | 5 | 1/3 | По заданию на проектирование |
| Кинофотостудия | 1 - 3 | ЕО | - | 36 - 54 | - | По заданию на проектирование |
| Класс пения и музыки | 1 - 3 | ЕО | - | 2,5 | 1 | По заданию на проектирование |
| - студия хореографии и драмкружка | 1 - 3 | ЕО | - | 9 | Чел. | По заданию на проектирование |
| Раздевальные | Г | Б | - | 28 | - | 2 при каждой студии хореографии и студии драмкружка |
| - студия прикладного искусства (дизайн) | 1 - 3 | ЕО | - | 6 | 1/2 | По заданию на проектирование |
| Универсальные клубные помещения | 1 - 3 | И | - | 36 | 1/2 | По заданию на проектирование |
| Кладовые уборочного инвентаря | 1 - 3 | Б | - | 4 | - | 1 на группу помещений |
| Преподавательская | Г | ЕО | - | 6 | Чел | По количеству преподавателей в группе помещений дополнительного образования |
| Санузлы | Г | ЕО | - | 0,15 | * | По количеству единовременных посетителей блока. |
Группа спортивно-оздоровительных помещений | Спортивный зал | 1 - 2 | И | - | 168 - 540 | < 3 | Не менее 1 помещения на школу. Допускается разделение крупных залов (12 x 24 и 18 x 30) на 2 и 2 - 3 группы соответственно. |
| Раздевальные | Ц - 2 | Б | - | 34 | 1/2 | По 2 (для мальчиков и для девочек) на каждую группу, занимающуюся в спортивном зале. |
| Снарядная | г | Б | - | 4 - 12 | | 1 на зал |
| Комната тренера с санузлом | г | ЕО | - | 12 (8 + 4) | - | 1 на 1 зал, при единовременных занятиях нескольких классных групп в зале, организуется одна тренерская на несколько тренеров, по 6 м2 на 1 человека с общим санузлом. |
| Тренажерный зал | 1 - 2 | ЕО | - | 36 | - | По заданию на проектирование |
Библиотека и информационный центр | - Библиотека - справочно-информационный центр с зонами читательских мест, в том числе | 1 - 3 | | - | 0,6 | * | По количеству обучающихся в ОО. В данную площадь входит площадь всех помещений библиотеки. Зонирование библиотеки применяется по нижеприведенному расчету |
| Читальный зал | 1 - 3 | ЕО | - | 2,4 | 1 | Не менее 9% от общего количества обучающихся, но не менее 1 классной группы |
| Медиатека (индивидуальные занятия с использованием ИКТ) | Г | ЕО | - | 4,5 | 1/2 | Половина классной группы на 1 параллель классов |
| Книгохранилище | Г | Б | - | - | - | В зависимости от объема книжного фонда, укрупненно - 50 единиц на 1 читателя |
| Демонстрационное пространство с зоной для авторского чтения | Г | ЕО | - | 36 | - | По числу параллелей классов |
13. Столовая | Обеденный зал с раздаточной и местами преподавателей | Ц - 2 | ЕО | - | 0,65 | * | На 1/2 общего количества обучающихся, при этом не менее общего количества обучающихся начальной школы + 2 места для преподавателей на каждый класс + места для МГН (1,6 м2 на 1 место) |
| Раздаточная | Г | ЕО | - | 0,25 | Чел. | 1 при зале, по количеству мест в зале, но не менее 25 м |
| Помещения для мытья рук (в том числе в расширенных коридорах) | г | Б | - | - | - | 20 раковин или 0,65 м лоткового умывальника на каждые 20 посадочных мест в обеденном зале |
| Кухонный блок с подсобными помещениями | Ц - 2 | ЕО | - | - | - | В зависимости от типа пищеблока (на сырье, полуфабрикатах, буфет-раздаточная), принимается по заданию на проектирование |
8. Административно-бытовые помещения | Кабинет директора | 1 - 5 | ЕО | - | 18 | - | 1 на образовательную организацию |
| Кабинет зам. директора по учебно-воспитательной работе | 1 - 5 | ЕО | - | 12 | - | По заданию на проектирование, в зависимости от штатного расписания |
| Кабинет организатора внешкольной работы | Е | ЕО | - | 12 | - | По заданию на проектирование, в зависимости от штатного расписания |
| Кабинет зам. директора по адм.-хоз. работе | 1 - 5 | ЕО | - | 12 | - | По заданию на проектирование, в зависимости от штатного расписания |
| Учительская | 1 - 5 | ЕО | - | 6 | Чел. | По количеству преподавателей основной и старшей школы за исключением имеющих собственные кабинеты |
| Канцелярия | 1 - 5 | ЕО | - | 8 | -- | 1 на образовательную организацию |
| Радиоузел | 1 - 5 | Б | - | 11 | - | 1 на здание |
| Комната техперсонала | П - 5 | Б | - | 10 | - | Не менее 1 помещения на организацию, 4 м2 на 1 человека, но не менее 10 м2 на помещение. Оборудуется санузлом. |
| Санузлы персонала | П - 5 | Б | - | 3 | - | По расчету в соответствии с СП 118.13330.2012* для работающих, но не менее 2 кабинок на административный блок. |
| Кладовая уборочного инвентаря | П - 5 | Б | - | 4 | - | 1 помещение на группу административно-бытовых помещений. |
Блок медицинских помещений | Кабинет врача | 1 | ЕО | - | 21 | - | По заданию на проектирование, в зависимости от необходимости в медицинских помещениях, но не менее 1 помещения площадью от 15 м2 |
| Процедурная | 1 | ЕО | - | 14 | - | По заданию на проектирование, в зависимости от необходимости в медицинских помещениях |
| Прививочная | 1 | ЕО | - | 14 | - | По заданию на проектирование, в зависимости от необходимости в медицинских помещениях |
| Изолятор | 1 | И | - | 10 | Чел. | По заданию на проектирование, в зависимости от необходимости в медицинских помещениях |
| Кабинет зубного врача | 1 | ЕО | - | 12 | - | По заданию на проектирование, в зависимости от необходимости в медицинских помещениях |
| Санузлы персонала | П - 5 | Б | - | 4,0 | - | 1 на медицинский блок |
| Кладовая уборочного инвентаря | г | Б | - | 4,0 | - | 1 на медицинский блок |
| Кабинет педагога-психолога | 1 - 2 | ЕО | - | 10 | - | По заданию на проектирование, в зависимости от необходимости в медицинских помещениях |
| Кабинет учителя-логопеда | 1 - 2 | ЕО | - | 10 | - | По заданию на проектирование, в зависимости от необходимости в медицинских помещениях |
| Кабинет социального педагога | 1 - 2 | ЕО | - | 20 | - | По заданию на проектирование, в зависимости от необходимости в медицинских помещениях |
14. Вестибюльная группа и другие общественные помещения | Вестибюль | Ц - 1 | ЕО | - | 0,3 | чел | По количеству обучающихся общего образования в здании. Если количество входов более 1, вестибюль устраивается при каждом входом и рассчитывается на количество обучающихся, использующих данный вход |
| Гардероб | Г | ЕО | - | 0,15 | чел | По количеству обучающихся, пользующихся входной группой |
| Зона турникетов | Г | ЕО | - | 8 | - | При установке турникетов, в зависимости от рабочей площади конкретной модели турникетов |
| Место ожидания для родителей | Г | ЕО | - | 10 | - | По заданию на проектирование, 1 на входную группу. Для входной группы в начальной школы. Можно увеличивать площадь и принимать 10 м2 на 1 параллель, но не более 20 м |
| Стойка дежурного | Г | ЕО | - | 6 | - | По 1 при каждой входной группе для посетителей (обучающихся, доп. Образования, отдельном входе для населения в спортзал) |
| Комната дежурного с санузлом | | Б | - | 10 | - | По 1 на здание |
| Комната уборочного инвентаря | П - 4 | Б | - | 4,0 | Чел. | 0,8 м2 на 100 м2 полезной площади здания |
| Санузлы для детей при учебных секциях | 1 - 4 | ЕО | - | 0,1 | чел. | По количеству детей в учебной секции |
15. Бассейн | Бассейн | 1 | ЕО | - | 600 | - | По заданию на проектирование, в зависимости от размера ванны бассейна |
| Раздевальные со шкафами, душевыми, санузлами | Ц - 1 | Б | - | 34 | 1/2 | по 2 на каждую занимающуюся в бассейне группу, не менее 2 на чашу бассейна (для мальчиков и девочек) |
| Инструкторская - кладовая спортинвентаря | г | ЕО | - | 12 + 6 | - | 1 на 1 инструктора, допускается объединять |
| Помещение медсестры с лабораторией анализа воды | г | ЕО | - | | - | 1 на 1 ванну |
| Бытовые помещения | Ц - 1 | Б | - | 9 | - | 1 на блок |
| Служебные помещения | Ц - 1 | Б | - | 12 | - | 1 на блок |
ОБЩЕОБРАЗОВАТЕЛЬНАЯ ОРГАНИЗАЦИЯ НА ТРИ ОБРАЗОВАТЕЛЬНЫХ
СТУПЕНИ (1100 МЕСТ) ДЛЯ СТРОИТЕЛЬСТВА В МОСКОВСКОЙ ОБЛАСТИ
(ПРОЕКТ ВКЛЮЧЕН В КАТАЛОГ ТИПОВОЙ ПРОЕКТНОЙ
ДОКУМЕНТАЦИИ ГАУ МОСОБЛЭКСПЕРТИЗА,
ПРОЕКТИРОВЩИК - ООО "ПРОМСТРОЙИНЖИНИРИНГ СПБ")
|
|
Принцип планировочной организации школы на 1100 мест |
|
План 1 этажа |
|
План 2 этажа |
|
План 3 этажа |
|
План 4 этажа |
Схема функционального зонирования
крупного образовательного комплекса