Главная // Актуальные документы // Карта (форма)СПРАВКА
Источник публикации
М.: ООО Издательство "БСТ", 2015
Примечание к документу
Текст данного документа приведен с учетом
поправки, утв. Ассоциацией "Национальное объединение строителей", "НОСТРОЙ" 02.06.2017.
Название документа
"СТО НОСТРОЙ 2.27.124-2013. Стандарт организации. Освоение подземного пространства. Микротоннелирование. Правила и контроль выполнения, требования к результатам работ"
(утв. и введен в действие Протоколом Ассоциации "Национальное объединение строителей", "НОСТРОЙ" от 13.12.2013 N 49)
"СТО НОСТРОЙ 2.27.124-2013. Стандарт организации. Освоение подземного пространства. Микротоннелирование. Правила и контроль выполнения, требования к результатам работ"
(утв. и введен в действие Протоколом Ассоциации "Национальное объединение строителей", "НОСТРОЙ" от 13.12.2013 N 49)
Утвержден и введен в действие
Протоколом Совета Национального
объединения строителей
от 13 декабря 2013 г. N 49
СТАНДАРТ ОРГАНИЗАЦИИ
ОСВОЕНИЕ ПОДЗЕМНОГО ПРОСТРАНСТВА
МИКРОТОННЕЛИРОВАНИЕ
ПРАВИЛА И КОНТРОЛЬ ВЫПОЛНЕНИЯ, ТРЕБОВАНИЯ
К РЕЗУЛЬТАТАМ РАБОТ
Underground space developing. Microtunnelling.
Procedures and quality control, work result requirements
СТО НОСТРОЙ 2.27.124-2013
1 | РАЗРАБОТАН | Филиалом ОАО ЦНИИС "НИЦ "Тоннели и метрополитены" |
2 | ПРЕДСТАВЛЕН НА УТВЕРЖДЕНИЕ | Комитетом по освоению подземного пространства Национального объединения строителей, протокол от 07 декабря 2013 г. N 17 |
3 | УТВЕРЖДЕН И ВВЕДЕН В ДЕЙСТВИЕ | Решением Совета Национального объединения строителей, протокол от 13 декабря 2013 г. N 49 |
4 | ВВЕДЕН | ВПЕРВЫЕ |
Настоящий стандарт разработан в соответствии с Программой стандартизации Национального объединения строителей.
Целью разработки стандарта является реализация Национальным объединением строителей Градостроительного
кодекса Российской Федерации, Федерального
закона от 27 декабря 2002 г. N 184-ФЗ "О техническом регулировании", Федерального
закона от 1 декабря 2007 г. N 315-ФЗ "О саморегулируемых организациях", Федерального
закона от 30 декабря 2009 г. N 384-ФЗ "Технический регламент о безопасности зданий и сооружений", иных законодательных и нормативных актов, действующих в строительной отрасли.
Стандарт разработан в развитие действующих на территории России нормативных документов по проектированию и строительству подземных инженерных коммуникаций и актуализации положений
МГСН 6.01-03 (ТСН 40-303-2003) "Бестраншейная прокладка коммуникаций с применением микротоннелепроходческих комплексов и реконструкция трубопроводов с применением специального оборудования" и "Рекомендаций по проектированию и устройству опережающих экранов из труб с применением МТПК при строительстве тоннелей".
При разработке настоящего документа учитывались современные достижения техники и технологии, передовой отечественный и зарубежный опыт проектирования и строительства подземных инженерных коммуникаций закрытым способом и устройства опережающих экранов из труб с применением механизированных проходческих комплексов.
Настоящий стандарт устанавливает основные требования к производству и контролю качества работ при проходке подземных выработок для инженерных коммуникаций и устройству экранов из труб микротоннелепроходческими комплексами.
Авторский коллектив: Г.О. Смирнова, Е.В. Щекудов, В.Г. Голубев, О.С. Байдаков, Н.М. Иванова, А.Е. Жуковский, А.В. Павлушин (Филиал ОАО ЦНИИС "Научно-исследовательский центр "Тоннели и метрополитены").
1.1 Стандарт распространяется на сооружение закрытых инженерных коллекторов диаметром от 0,2 м и более для размещения коммуникаций различного назначения и устройства в грунтовом массиве экранов из труб для крепления подземных выработок микротоннелепроходческими комплексами (МТПК).
1.2 Стандарт распространяется на сооружение инженерных коммуникаций закрытым способом преимущественно в условиях городской застройки и устройство защитных экранов из труб при проходке подземных выработок в сложных инженерно-геологических условиях.
1.3 Стандарт устанавливает требования к гидроизоляционным материалам и конструкциям и устанавливает правила проектирования, производства и контроля выполнения гидроизоляционных работ. Положения
разделов 4 -
7,
9 и
13 -
15 являются рекомендуемыми.
В настоящем стандарте использованы нормативные ссылки на следующие стандарты и своды правил:
ГОСТ 12.0.004-90 Система стандартов безопасности труда. Организация обучения безопасности труда. Общие требования
ГОСТ 8731-74 Трубы стальные бесшовные горячедеформированные. Технические требования
ГОСТ 8733-74 Трубы стальные бесшовные холоднодеформированные и теплодеформированные. Технические требования
ГОСТ 10692-80 Трубы стальные, чугунные и соединительные части к ним. Приемка, маркировка, транспортирование и хранение
ГОСТ 10704-91 Трубы стальные электросварные прямошовные. Сортамент
ГОСТ 13015-2012 Изделия железобетонные и бетонные для строительства. Общие технические требования. Правила приемки, маркировки, транспортирования и хранения
ГОСТ 20295-85 Трубы стальные сварные для магистральных газонефтепроводов. Технические условия
ГОСТ 26433.2-94 Система обеспечения точности геометрических параметров в строительстве. Правила выполнения измерений параметров зданий и сооружений
ГОСТ Р 21.1101-2013 Системы проектной документации для строительства. Основные требования к проектной и рабочей документации
ГОСТ Р 53778-2010 Здания и сооружения. Правила обследования и мониторинга технического состояния
СП 47.13330.2012 "СНиП 11-02-96 Инженерные изыскания для строительства. Основные положения"
СП 49.13330.2010 "СНиП 12-03-2001 Безопасность труда в строительстве. Часть 1. Общие требования"
СП 63.13330.2012 "СНиП 52-01-2003 Бетонные и железобетонные конструкции. Основные положения"
СП 116.13330.2012 "СНиП 22-02-2003 Инженерная защита территорий, зданий и сооружений от опасных геологических процессов. Основные положения"
СНиП 12-04-2002 Безопасность труда в строительстве. Часть 2. Строительное производство
СТО НОСТРОЙ 2.3.18-2011 Укрепление грунтов инъекционными методами в строительстве
СТО НОСТРОЙ 2.6.54-2011 Конструкции монолитные бетонные и железобетонные. Технические требования к производству, правила и методы контроля качества
СТО НОСТРОЙ 2.27.19-2011 Освоение подземного пространства. Сооружение тоннелей тоннелепроходческими механизированными комплексами с использованием высокоточной обделки
СТО НОСТРОЙ 2.17.66-2012 Освоение подземного пространства. Коллекторы и тоннели канализационные. Требования к проектированию, строительству, контролю качества и приемке работ
СТО НОСТРОЙ 2.27.128-2013 Строительство подземных сооружений горным способом с применением обделок из набрызгбетона. Правила производства работ, контроль выполнения и требования к результатам работ.
Примечание - При пользовании настоящим стандартом целесообразно проверить действие ссылочных стандартов и сводов правил в информационной системе общего пользования - на официальных сайтах национального органа Российской Федерации по стандартизации и НОСТРОЙ в сети Интернет или по ежегодно издаваемым информационным указателям, опубликованным по состоянию на 1 января текущего года. Если ссылочный документ заменен (изменен), то при пользовании настоящим стандартом следует руководствоваться новым (измененным) документом. Если ссылочный документ отменен без замены, то положение, в котором дана ссылка на него, применяется в части, не затрагивающей эту ссылку.
3 Термины и определения, обозначения и сокращения
3.1 Термины и определения
В настоящем стандарте применены термины с соответствующими определениями:
3.1.1 активный пригруз забоя: Регулируемое давление на всю площадь забоя, действующее постоянно в процессе проходки тоннеля и уравновешивающее горное давление грунта и гидростатическое давление грунтовых вод. [СТО НОСТРОЙ 2.17.66-2012, статья 3.1] |
3.1.2 бентонит: Глина, состоящая в основном из минералов группы монтмориллонита, обладающая выраженными сорбционными свойствами и высокой пластичностью.
Примечание - Бентонит в виде глинопорошка используется при щитовой проходке тоннелей и в других областях строительства.
3.1.3 бентонитовая суспензия: Дисперсная система бентонитового глинопорошка и воды, обладающая тиксотропными свойствами, используемая при бурении скважин и пригруза забоя при микротоннелировании.
3.1.4 геотехнический мониторинг: Комплекс работ по обеспечению безопасности строительных объектов, основанный на натурных наблюдениях за поведением фундаментов и подземных конструкций сооружений, их оснований, подземных вод, окружающей застройки в процессе строительства и в начальный период эксплуатации. |
3.1.5 гидропригруз: Активный пригруз забоя, создаваемый при помощи специального раствора глины. [СТО НОСТРОЙ 2.17.66-2012, статья 3.4] |
3.1.6 грунтопригруз: Активный пригруз забоя, создаваемый при помощи измельченного грунта, модифицированного, при необходимости, специальными добавками. [СТО НОСТРОЙ 2.17.66-2012, статья 3.6] |
3.1.7 закрытый способ: Сооружение коллектора или тоннеля без вскрытия поверхности земли. [СТО НОСТРОЙ 2.17.66-2012, статья 3.7] |
3.1.8 заходка: Часть горной выработки, проходимая за один производственный цикл.
3.1.9 защитные мероприятия: Технические решения по защите окружающей застройки от сверхнормативных деформаций и прочих недопустимых воздействий, оказываемых строительством подземного сооружения.
3.1.10 защитный (опережающий) экран: Временная конструкция крепи подземного сооружения, образуемая последовательно прокладываемыми методом микротоннелирования трубами, связанными между собой направляющими замками в сплошной защитный экран.
3.1.11 защитный футляр: Элемент конструкции трубопровода, защищающий его от нагрузок и внешних воздействий и позволяющий выполнять ремонтные работы коммуникаций без вскрытия поверхности земли.
3.1.12 зона влияния строительства: Расстояние, за пределами которого негативное воздействие на окружающую застройку пренебрежимо мало. |
3.1.13 зумпф: Углубленная часть шахтного ствола или котлована-отстойника для сбора грунтовых вод или гидросмеси.
3.1.14 коллектор коммуникационный: Подземное протяженное сооружение для совместной прокладки (размещения) трубопроводов и кабелей различного назначения. |
3.1.15 микротоннелирование: Автоматизированная технология проходки тоннеля (выработки) с продавливанием трубной конструкции обделки, выполняемая без вскрытия дневной поверхности и присутствия людей в забое.
3.1.16 микротоннелепроходческий комплекс; МТПК: Комплект оборудования, предназначенный для строительства подземных сооружений с использованием дистанционно управляемой проходческой микромашины.
Примечание - В состав МТПК входят: управляемая проходческая микромашина с рабочим органом, комплект оборудования для пригруза в зоне забоя и удаления грунта из него, силовая продавливающая установка (домкратная станция), система контроля и управления МТПК в пространстве, электрооборудование и трубопроводы.
3.1.17 модифицированный бентонит (активированный бентонит): Бентонитовый глинопорошок, в состав которого введены добавки, регулирующие его свойства.
3.1.18 окружающая застройка: Существующие здания, сооружения и инженерные коммуникации, расположенные вблизи объектов нового строительства или реконструкции. |
3.1.19 обделка тоннеля: Постоянная несущая конструкция, ограждающая подземную выработку и образующая внутреннюю поверхность подземного сооружения. |
3.1.20 подземные коммуникации (инженерные сети): Трубопроводы и кабели различного назначения (водопровод, канализация, отопление, связь и др.), прокладываемые на территориях населенных пунктов и промышленных предприятий. |
3.1.21 пригруз пеногрунтовый: Активный пригруз забоя, создаваемый при помощи разработанного грунта с добавлением в него специальной пены. [СТО НОСТРОЙ 2.17.66-2012, статья 3.17] |
3.1.22 продавливание: Технология строительства подземного сооружения, подземной инженерной коммуникации (скважины, трубопровода, микротоннеля) путем вдавливания в грунт элементов конструкции его крепи с одновременным разрушением грунта в забое и выдачи его за пределы подземного сооружения.
3.1.23 проходка: Искусственное образование в земной коре полостей путем выемки грунта механизированным или ручным способом.
3.1.24 тампонажный раствор: Рационально составленная, перемешанная до однородного состояния смесь вяжущего вещества (цемента или многокомпонентного вяжущего), заполнителя (песка, песчано-известковой смеси, гравия и др.), воды и добавок. |
3.1.25 тоннель: Горизонтальное или наклонное подземное искусственное сооружение, предназначенное для транспорта, пропуска воды, размещения коммуникаций и других целей.
3.1.26 шахтный ствол или котлован: Вертикальная выработка в грунте, предназначенная для размещения оборудования и ведения подземных работ.
3.1.27 щит проходческий: Подвижная металлическая крепь, ограждающая забойную зону от окружающего грунтового массива.
3.2 Обозначения и сокращения
В настоящем стандарте использованы следующие сокращения:
ГСМ - горюче-смазочные масла;
МТПК - микротоннелепроходческий комплекс;
ЩММ - щитовая микромашина;
ППР - проект производства работ;
ПОС - проект организации строительства.
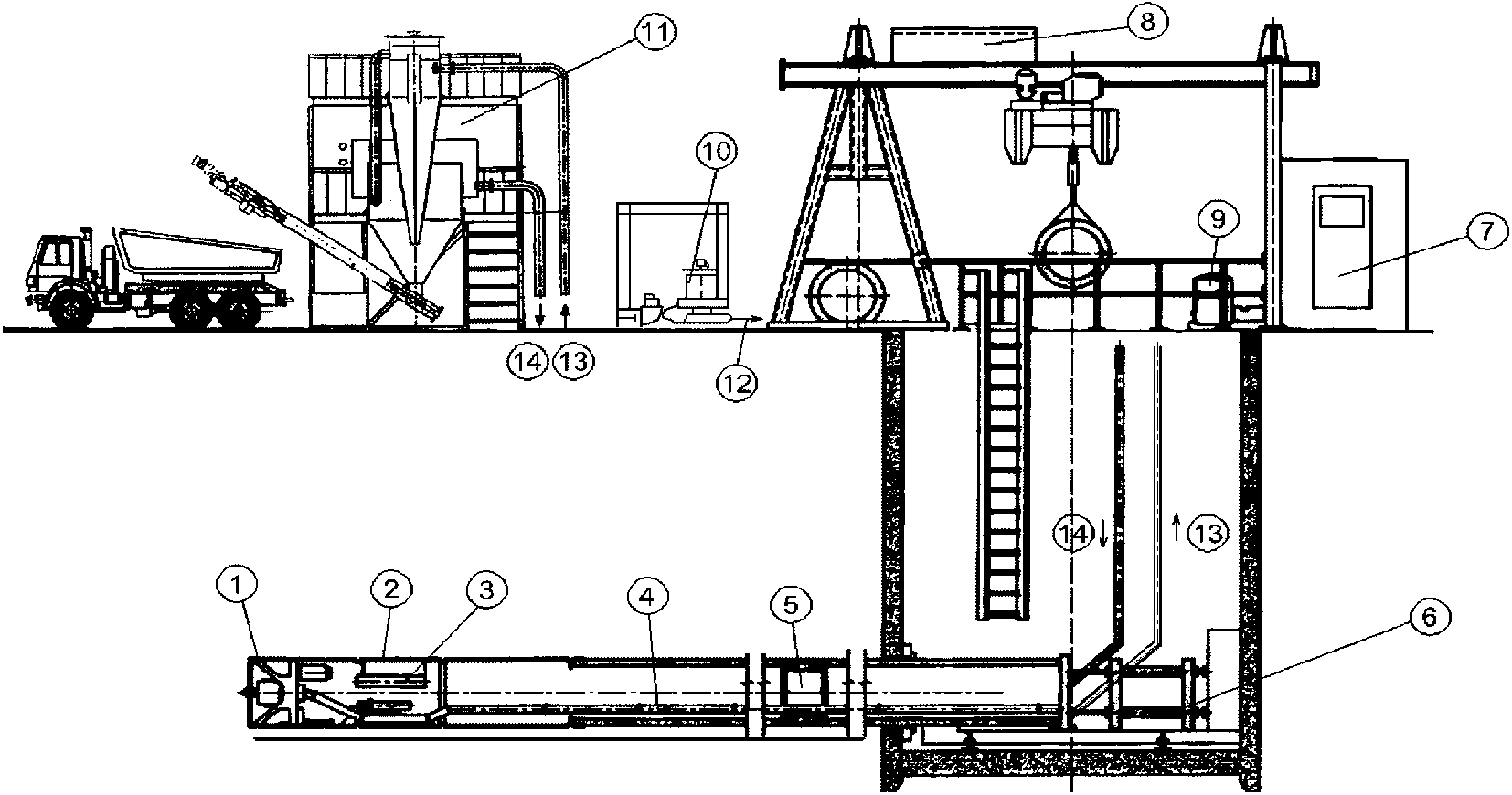
4.1 Положения настоящего стандарта должны соблюдаться при проектировании, строительстве и оценке соответствия выполненных работ проекту при сооружении закрытым способом тоннелей для инженерных коммуникаций диаметром от 0,2 м и более и устройстве в грунтовом массиве подземных выработок с использованием экрана из труб.
Примечание - Технология микротоннелирования заключается в автоматизированной проходке выработки (тоннеля) в грунтовом массиве с продавливанием механизированным тоннелепроходческим комплексом (МТПК) трубной конструкции обделки.
В настоящее время согласно СТО НОСТРОЙ 2.17.66-2012 (пункт 6.5.2) используются МТПК для прокладки трубопроводов диаметром от 0,2 м до 3,6 м.
4.2 Микротоннелирование следует применять для прокладки вновь проектируемых и строящихся подземных инженерных коммуникаций различного назначения, реконструкции существующих трубопроводов и крепления подземных выработок путем устройства в грунтовом массиве опережающего проходку выработки защитного экрана из труб.
Примечания
1 Устройство инженерных коллекторов микротоннелированием заключается в механизированной разработке грунтового массива щитовым комплексом, удалении разработанного грунта из забоя с одновременным продавливанием труб для подземных коммуникаций заданного диаметра. Микротоннелирование используется преимущественно для прокладки инженерных коммуникаций в городской застройке.
2 Устройство защитных (опережающих) экранов из труб заключается в последовательной прокладке (продавливании) над сохраняемым объектом или по контуру строящегося тоннеля стальных труб, связанных между собой направляющими замками в сплошной защитный экран, с последующим их заполнением бетоном, бетоном с арматурным каркасом или цементацией окружающих грунтов для повышения несущей способности защитного экрана. По мере разработки грунта под защитным экраном следует устанавливать временные несущие рамы, а затем - постоянную конструкцию тоннеля.
4.3 Способ микротоннелирования следует применять:
- для сокращения или исключения открытого способа работ при прокладке инженерных коммуникаций различного назначения, связанной с нарушением городских транспортных систем и благоустроенных территорий;
- для устройства экранов из труб, служащих временной (защитной) или постоянной крепью при строительстве транспортных тоннелей мелкого заложения по СП 120.13330.2012 (
пункт Б.10, приложение Б) под различными наземными и подземными сооружениями.
4.4 Технологию микротоннелирования рекомендуется использовать при прокладке трубопроводов:
- на протяженных участках трасс под территорией с плотной городской застройкой или в условиях с большим насыщением подземного пространства действующими коммуникациями, в сложных инженерно-геологических и градостроительных условиях;
- на коротких участках трубопроводов для преодоления различных препятствий в виде железнодорожных насыпей, автомагистралей, подземных коммуникаций, водных и других преград;
- под территориями, являющимися памятниками архитектуры или охраняемыми территориями, не допускающими изменения их сложившегося облика даже на период прокладки коммуникаций открытым способом (парки, площади и т.д.).
4.5 При устройстве защитных экранов из труб технологию микротоннелирования рекомендуется использовать:
- для строительства тоннелей и выработок с различными формами и размерами поперечного сечения;
- для обеспечения минимальных осадок земной поверхности и сохранности зданий и сооружений, коммуникаций, природного ландшафта в зоне строительства;
- для исключения работы человека в стесненных условиях забоя тоннелей малого диаметра за счет полной механизации процесса микротоннелирования;
- для исключения специальных способов производства работ для стабилизации грунтового массива при сооружении подземных объектов.
Примечание - К специальным способам производства работ относится искусственное укрепление и замораживание грунтов, понижение уровня грунтовых вод по
СП 120.13330, СП 45.13330.2012 (
разделы 16 и
19).
4.6 При использовании микротоннелирования в сложных инженерно-геологических условиях, вблизи зданий и сооружений или под ними, при пересечении подземных коммуникаций, железнодорожных или трамвайных путей, магистральных улиц и дорог и т.п. в соответствии с
СП 116.13330 должны быть предусмотрены мероприятия по обеспечению сохранности объектов, попадающих в зону влияния работ по микротоннелированию.
4.7 Здания и сооружения, расположенные по трассе микротоннелирования, должны быть обследованы в соответствии с
ГОСТ Р 53778, дана оценка их технического состояния и, при необходимости, в составе проекта сооружения объекта предусмотрены мероприятия по укреплению оснований и усилению конструкций зданий и сооружений.
4.8 В соответствии с Федеральным
законом [2] проектной документацией на проходку коллекторов, тоннелей и устройство экранов из труб для снижения влияния строительства должны быть предусмотрены мероприятия по охране окружающей среды.
4.9 Работы по микротоннелированию следует выполнять в соответствии с требованиями настоящего стандарта, инструкциями поставщика технологического оборудования по эксплуатации МТПК (далее - Инструкции), СП 122.13330.2012
(подраздел 5.7.5), СТО НОСТРОЙ 2.17.66-2012 (раздел 10.3),
МГСН 6.01-03 [3], а также положениями Рекомендаций
[4] и
СН 322-74 [5].
4.10 Очередность и технология производства работ по строительству подземных выработок должны быть взаимно увязаны с работами по строительству инженерных коммуникаций в целом, как вновь прокладываемых, так и существующих, со строительством подземных дорог и другими работами.
4.11 Тип МТПК следует выбирать по области применения и техническим характеристикам комплекса в зависимости от инженерно-геологических условий участка работ, расчетного внутреннего диаметра и длины проектируемого микротоннеля, трубопровода, защитного футляра или экрана из труб и требований эксплуатации подземного сооружения.
Максимальная протяженность микротоннелей определяется техническими возможностями технологии микротоннелирования.
Примечание - Технические характеристики и рекомендации по использованию и выбору МТПК приведены в
МГСН 6.01-03 [3], Рекомендациях
[4],
СН 322-74 [5] и Справочнике РОБТ
[6].
4.12 Для монтажа тоннелепроходческого щита и силового блока для продавливания труб, демонтажа оборудования после проходки участка трассы коммуникаций и завершения работ по устройству экрана из труб следует сооружать стартовые (монтажные) и приемные (демонтажные) шахтные стволы или котлованы.
5.1 Инженерные изыскания при проектировании инженерных коллекторов и тоннелей в соответствии с СП 47.13330.2012 (
пункты 4.17 -
4.22) должны обеспечивать получение достаточных материалов (данных) о природных и техногенных условиях строительства, необходимых для:
- выбора оптимального варианта положения трассы коллектора, тоннеля в плане и по глубине заложения;
- принятия основных конструктивно-технологических решений по креплению шахтных стволов (котлованов), тоннельных выработок;
- выбора типа МТПК и способов производства работ по сооружению стартовых и приемных шахтных стволов, позволяющих вести строительство объекта с минимальным воздействием на окружающую среду;
- получения данных о природных и техногенных условиях и прогнозирования их изменения в процессе строительства и принятия решений по обеспечению сохранности подземных и наземных объектов, попадающих в зону строительства.
5.2 Инженерно-геодезические изыскания для строительства в соответствии с СП 47.13330.2012
(раздел 5) должны обеспечивать получение топографо-геодезических материалов о рельефе местности, существующих зданиях, наземных и подземных сооружениях, элементах планировки, необходимых для комплексной оценки природных и техногенных условий территории строительства.
5.3 Инженерно-геологические изыскания следует проводить в соответствии с СП 47.13330.2012
(раздел 6) и
СН 484-76 [7] для получения данных о геологическом строении, геоморфологических и гидрогеологических условиях строительства, составе, состоянии и свойствах грунтов, о геологических и инженерно-геологических процессах и прогнозирования их изменений при взаимодействии проектируемых объектов с геологической средой.
5.4 Расстояние между разведочными скважинами при прокладке инженерных коммуникаций не должно превышать 50 м, на участках со сложными инженерно-геологическими условиями - не менее 20 м, глубина скважин должна превышать отметку заложения лотка коммуникаций на 2 диаметра коллектора или тоннеля в соответствии с СТО НОСТРОЙ 2.17.66-2012 (пункт 5.2.4.2).
Расстояние между разведочными скважинами при проходке подземных выработок с устройством экрана из труб должно приниматься по СП 120.13330.2012
(таблица 5.1), глубина скважин должна превышать глубину заложения подземной выработки на величину от 10 до 15 м.
Разведочные скважины не должны попадать в тело выработки.
5.5 Все имеющиеся пустоты и скважины после изысканий должны заполняться цементно-песчаным раствором с целью исключения загрязнения природной среды и активизации геологических и инженерно-геологических процессов по СП 11-105-97 (часть 1,
пункт 5.6)
[8], в том числе для предотвращения выхода через скважины бентонитового раствора при использовании МТПК с гидравлическим пригрузом забоя.
5.6 Отчет по инженерно-геологическим изысканиям должен содержать:
- разрезы и буровые колонки, включающие все грунтовые прослойки и напластования, мощности слоев и их наклоны;
- количественную и качественную оценку встречаемых твердых включений и скальных грунтов;
- физико-механические характеристики свойств грунтов;
- данные об уровнях и режимах подземных вод (с учетом сезонных колебаний);
- данные о загазованности пород метаном, оксидом и диоксидом углерода, сероводородом.
В отчете должны быть приведены результаты лабораторных исследований грунтов - данные по прочности и деформативности, проницаемости, гранулометрическому составу, плотности частиц грунта, пределах пластичности и текучести, пористости и другим свойствам грунта по СП 11-105-97 (
приложения Ж,
И)
[8], определенных по методикам, приведенным в
СН 484-76 [7].
5.7 Для уточнения данных инженерно-геологических изысканий должны выполняться геофизические исследования по СП 11.105-97
(пункт 5.7) [8]. Вид геофизических исследований следует определять в зависимости от поставленных задач, плотности городской застройки и наличия подземных коммуникаций.
5.8 Инженерно-экологические изыскания должны выполняться для предотвращения или снижения неблагоприятных экологических и связанных с ними социальных и экономических последствий микротоннелирования и обеспечивать комплексное изучение природных и техногенных условий, оценку состояния и экологической опасности и риска, разработку рекомендаций по обеспечению интересов местного населения и проведения локального мониторинга по СП 22.13330.2011
(раздел 13).
6 Требования к проектной документации
6.1 Проектная документация на объекты, сооружаемые методом микротоннелирования, должна содержать планировочные, конструктивные и технологические решения по
ГОСТ Р 21.1101, полученные в результате сравнения возможных вариантов устройства инженерных коммуникаций на данном участке, и основные технические решения по устройству в грунтовом массиве экрана из труб. Проектная документация должна разрабатываться с учетом требований
Положения [9].
6.2 При разработке проекта следует оценивать возможные воздействия на окружающую среду, здания и сооружения, существующие коммуникации, учитывать риски возникновения непредвиденных и аварийных ситуаций в процессе строительства в соответствии с
СП 116.13330.
6.3 Проектные решения по сохранности объектов, попадающих в зону влияния работ по микротоннелированию, должны обеспечить снижение или ликвидацию неблагоприятных воздействий по
СП 22.13330,
СП 116.13330 на окружающую среду и уменьшение вероятности возникновения аварий.
| | ИС МЕГАНОРМ: примечание. В официальном тексте документа, видимо, допущена опечатка: имеется в виду СП 22.13330, а не СП 22.13300. | |
6.4 В составе проекта в соответствии с ГОСТ Р 53778-2010 (
пункты 3.1 -
3.17) должен предусматриваться мониторинг зданий и сооружений, попадающих в зону влияния проходческих работ, в тех случаях, если наземные или подземные объекты находятся в ограниченно работоспособном или аварийном состоянии, относятся к памятникам истории или архитектуры или прогнозируемые осадки земной поверхности от проходки выработок превышают допускаемые для данного объекта по СП 22.13300.2011
(раздел 12). Объем работ и порядок ведения мониторинга следует определять по ГОСТ Р 53778-2010
(раздел 6.2).
6.5 Работы по строительству подземных выработок (прокладке подземных инженерных коммуникаций, устройству экранов из труб), а также устройство стартовых и приемных шахтных стволов (котлованов) без проектов производства работ (ППР) запрещаются.
6.6 ППР следует разрабатывать в полном объеме на сооружение инженерных коллекторов и устройство экранов из труб на городской территории, действующем предприятии и в сложных градостроительных и геологических условиях или в неполном объеме по решению застройщика или технического заказчика в соответствии с СП 48.13330.2011
(пункт 5.7.4).
6.7 ППР, разработанный в полном объеме, кроме общестроительных разделов, соответствующих требованиям СП 48.13330.2011 (
пункты 5.7.3,
5.7.4),
СП 12-136-2002 [10], должен включать:
- пояснительную записку, содержащую основные технические решения, природоохранные мероприятия;
- топографические планы стройплощадок со стороны стартового и приемного котлованов, расположение и размеры основных компонентов МТПК;
- технологические схемы и порядок выполнения отдельных видов работ (по согласованию с заказчиком);
- план и продольный профиль подземной выработки;
- план и продольный профиль монтажной зоны сборки плети трубопровода, порядок сборки трубопровода;
- расположение складского участка;
- подъездные и внутриплощадочные дороги;
- мероприятия по охране труда и безопасности;
- календарный график проходки коллектора или сооружения экрана из труб;
- мероприятия по обеспечению производства работ в холодный период года.
6.8 Технологические операции, предусмотренные ППР, должны быть увязаны с допустимыми режимами эксплуатации МТПК, изложенными в Инструкции по эксплуатации щитового комплекса.
6.9 Для обеспечения требуемого качества выполнения работ по микротоннелированию в состав ППР должен входить Технологический регламент, разработанный с учетом технических характеристик намеченного к применению оборудования и специфики конкретного объекта и включающий:
- последовательность и методы выполнения работ (операций);
- состав и характеристики бентонитового раствора или пенопригруза;
- расчеты максимальных скоростей проходки выработки, необходимых объемов и давления подачи бурового раствора;
- порядок монтажа трубопроводов;
- требования по технике безопасности;
- мероприятия по обеспечению сохранности пересекаемых объектов и окружающей среды.
7 Основные положения проектирования
7.1 Способ микротоннелирования следует применять для строительства тоннелей наружным диаметром от 0,2 м и выше (см.
пункт 4.1, примечание) в сложных инженерно-геологических условиях по СП 47.13330.2012
(приложение А) и преодоления искусственных и естественных преград при сооружении выработок в грунтовом массиве различного назначения.
7.2 При проектировании инженерных коммуникаций по СП 18.13330.2011
(раздел 6), планово-высотные показатели участков микротоннелирования следует назначать исходя из положений общего проекта коммуникаций.
Направление проходки (продавливания трубопроводов) может задаваться как на подъем, так и под уклон.
7.3 Глубина заложения коммуникаций по СТО НОСТРОЙ 2.17.66-2012 (раздел 6) определяется минимальным расстоянием от поверхности до лотка прокладываемого трубопровода и должна составлять в связных грунтах не менее двух диаметров, в несвязных грунтах (по ГОСТ 25100-2011
(таблица 2)) - не менее трех диаметров от поверхности земли до верха трубопровода.
Отметки заложения экрана из труб в соответствии с Рекомендациями
[4] определяются габаритами подземной выработки.
7.4 Угол пересечения трассы подземной выработки с трассами (продольными осями) сооружений метрополитена, железных и автодорог, водных препятствий, существующих коммуникаций и т.п. следует принимать равным 90°.
В отдельных случаях, при соответствующем обосновании, допускается уменьшение угла пересечения трассы микротоннелирования с трассами подземных и наземных инженерных сооружений в соответствии с СТО НОСТРОЙ 2.17.66-2012 (пункт 6.4.8).
7.6 Стартовые и приемные шахтные стволы (котлованы) при проектировании рекомендуется размещать в зависимости от их объемно-планировочных решений и технологии производства работ по микротоннелированию по
7.16 в местах, свободных от застройки, зеленых насаждений и подземных коммуникаций.
На свободных территориях рекомендуется проектировать стартовые шахтные стволы (котлованы) прямоугольного очертания для возможного увеличения длины монтажных секций прокладываемой коммуникации.
В стесненных условиях строительной площадки и при глубине стартового и приемного шахтных стволов (котлованов) более 10 м, следует принимать круговое очертание с минимально возможными размерами.
7.7 Размеры стартовых и приемных шахтных стволов (котлованов) в плане следует определять в зависимости от габаритов щитового и вспомогательного оборудования и условий размещения и монтажа в стартовом (стволе) котловане, демонтажа и извлечения на поверхность из приемного ствола (котлована) технологического оборудования. Рекомендуемые минимальные размеры шахтных стволов (котлованов) приведены в
приложении А. Вариант размещения МТПК в круглом стволе приведен в
приложении Б, технологическая схема прокладки трубопровода приведена в
приложении В.
7.8 Глубину стартового и приемного шахтного ствола (котлована) следует назначать в зависимости от глубины заложения коммуникаций, габаритов тоннелепроходческого оборудования и технологии производства работ по микротоннелированию.
Для стартовых и приемных стволов (котлованов) в проекте следует предусмотреть устройство ограждений, лестниц и регулирование поверхностного стока.
7.9 Расстояние между стартовым и приемным шахтными стволами (котлованами) следует принимать согласно МГСН 6.01-03
(пункт 5.1.1) [3] в зависимости от технических возможностей МТПК, инженерно-геологических и гидрогеологических свойств вмещающего массива по
ГОСТ 25100 до 150 м. При проектировании подземной выработки диаметром более 1000 мм и наличии промежуточных домкратных станций расстояние между шахтными стволами принимается до 1000 м.
7.10 Конструкция крепи и способы сооружения стартовых и приемных шахтных стволов (котлованов) назначаются в зависимости от инженерно-геологических условий участка строительства.
7.11 Конструкция крепления стартовых и приемных шахтных стволов (котлованов) должна рассчитываться на восприятие горного, гидростатического давления и временной нагрузки по СП 20.13330.2011 (
разделы 4 -
8), СП 91.13330.2012
(раздел 7), а также на максимальное усилие домкратной станции при микротоннелировании по методике, приведенной в
приложении Г.
7.12 Конструкция труб и межтрубных соединений для прокладки трубопроводов методом микротоннелирования должна учитывать силовые воздействия продавливания по
приложению Г и стыковку без увеличения внешнего диаметра труб.
7.13 Длину секций труб для продавливания следует назначать в зависимости от размеров стартового шахтного ствола (котлована) и типа прессового оборудования, рекомендуемая длина секции трубы от 2 до 3 м. Длина секций стальных труб (см.
8.1) может быть увеличена до 6 м при производстве работ по микротоннелированию из шахтных стволов (котлованов), габариты которых превышают минимально необходимые, приведенные в
приложении А.
7.14 Стартовый шахтный ствол (котлован) должен иметь железобетонное днище и опорную плиту со стороны задней торцевой стены, рассчитанную по СП 63.13330.2012
(раздел 5) на усилие домкратов при продавливании труб.
Передняя стена шахтного ствола (котлована) должна иметь проем для ввода щитовой микромашины (ЩММ) в грунтовый массив.
7.15 При расположении стартового шахтного ствола (котлована) в водонасыщенных песках по
ГОСТ 25100 для ввода ЩММ в грунтовый массив в проекте следует предусмотреть на длину не менее двух метров стабилизацию грунта специальными способами производства работ - инъекционным укреплением по СТО НОСТРОЙ 2.3.18-2011, замораживанием грунтов по СП 45.13330.2012 (
разделы 16 и
19).
7.16 Способ сооружения стартовых и приемных шахтных стволов (котлованов) следует назначать в зависимости от глубины их заложения, формы, размеров и инженерно-геологических и градостроительных условий участка строительства.
Для сооружения шахтных стволов (котлованов) применяются:
| | ИС МЕГАНОРМ: примечание. В официальном тексте документа, видимо, допущена опечатка: имеется в виду СП 120.13330.2012, а не СП 120.13300.2012. | |
- горный способ с использованием рамного крепления, железобетонных блоков или чугунных тюбингов по СП 120.13300.2012
(подраздел 6.6.2);
- способ опускной крепи, в том числе с использованием бентонитовой рубашки по СП 45.13330.2012
(раздел 13);
- механизированные стволопроходческие комплексы.
Примечание - В настоящее время механизированные стволопроходческие комплексы проходят опытную проверку на строительных объектах в Российской Федерации.
7.17 Для трубопроводов, прокладываемых на переходах через железные, автомобильные дороги всех категорий и метрополитены, следует предусмотреть установку защитных футляров, диаметр которых по СП 119.13330.2012 (
пункты 9.11 -
9.13) должен быть на 200 мм больше диаметра трубопровода.
Прокладка газопровода под тоннелями метрополитена не допускается.
7.18 Устройство защитного экрана способом микротоннелирования рекомендуется назначать для проходки подземных выработок в грунтах от скальных до дисперсных, в том числе с включением крупных обломков, валунов, щебня, гравия по
ГОСТ 25100.
Примечание - В соответствии с Рекомендациями
[4] технология наиболее эффективна в песчаных, в том числе водонасыщенных и глинистых грунтах.
7.19 Минимальная глубина заложения верха труб защитного экрана при микротоннелировании относительно дневной поверхности грунта должна быть от 1,5 до 2,0 диаметров трубы, но не менее 1,0 м.
Зазор между трубами экрана и существующими подземными коммуникациями должен быть не менее 1,0 м, уменьшение зазора допускается при согласовании с владельцами коммуникаций.
7.20 Диаметр труб защитного экрана и необходимость их заполнения бетоном и железобетоном определяется расчетом в зависимости от внешней нагрузки и принятого расстояния между рамами временного крепления выработки. Расчет защитного экрана из труб следует выполнять по методике, приведенной в
приложении Д.
Примечание - Допускается использовать отвечающие требованиям проекта трубы железобетонные, полимербетонные, из стеклопластика, изготовленные по техническим условиям заводов-изготовителей.
8.2 Элементы стыковых соединений труб должны поставляться в комплекте с секциями труб.
8.3 Для устройства защитных футляров допускается применять железобетонные, полимербетонные, полиэтиленовые трубы по
ГОСТ 18599,
ГОСТ Р 50838 и хризотилцементные трубы по
ГОСТ 31416.
8.4 Для устройства защитных экранов следует применять стальные трубы по
ГОСТ 10704. Секции труб для защитных экранов должны иметь фиксирующие элементы для обеспечения сплошности экрана. Конструкция фиксирующих элементов приведена в
приложении Ж.
8.5 Транспортировка и хранение труб должно проводиться в соответствии с требованиями
ГОСТ 13015 и
СП 49.13330. Подъем, погрузку и разгрузку секций труб следует производить траверсами, специальными захватными скобами или другими приспособлениями. На строительной площадке элементы труб должны храниться в вертикальном и горизонтальном положении, рассортированными по партиям, типоразмерам, маркам.
Рекомендуемая номенклатура труб для прокладки трубопроводов и устройству защитных экранов из труб приведена в
приложении Е.
8.6 Трубы для продавливания надлежит складировать в зоне работы кранового оборудования, высота штабеля труб не должна превышать высоту подъема крюка кранового оборудования минус высота грузозахватного приспособления (но не более 3 м). Трубы диаметром до 300 мм надлежит укладывать в штабель на деревянных подкладках, а диаметром более 300 мм - в "седло" без прокладок. Применение подкладок и прокладок круглого сечения запрещается.
Способы строповки секций труб должны обеспечивать их подачу к месту установки в горизонтальном положении, а технологические коммуникационные трубы, шланги и кабели, размещенные в них, должны быть закреплены от выпадения.
9 Микротоннелепроходческие комплексы
9.1 МТПК, используемые в микротоннелировании и представляющие собой комплект подземного и наземного оборудования и устройств, должны обеспечивать механизированное и дистанционно-управляемое выполнение следующих основных операций:
- образование в различных грунтах подземной выработки (скважины) определенного диаметра и заданного направления, проходящей из стартового в приемный шахтный ствол (котлован) с одновременным удержанием забоя и креплением стен выработки;
- продавливание секций труб (тоннеля, коллектора, трубопровода) или экрана из труб;
- транспортирование разработанного грунта из забоя на поверхность с одновременным контролем его объема.
Примечание - В комплект поставки каждого вида МТПК входит ЩММ, домкратная станция, система удаления грунта, комплект вспомогательного оборудования (см.
11.4.3), система управления и контроля положения МТПК в пространстве (лазерная установка), стартовое уплотнение.
Лазерная установка включает: лазер; лазерную мишень, установленную на ЩММ; курвиметр с датчиком угловых перемещений; кабель для передачи данных на компьютер.
9.2 В зависимости от инженерно-геологических условий микротоннелирования и характеристик грунтов по
ГОСТ 25100 рекомендуется:
- в несвязных водонасыщенных средне- и крупнозернистых песках, песчано-гравелистых грунтах, вплоть до скальных, применять МТПК с гидропригрузом щита;
- в связных нескальных, водонасыщенных илистых грунтах - МТПК с грунтовым пригрузом.
9.3 При повышении содержания песчано-гравелистых фракций в грунтовом массиве рекомендуется использовать грунтопригруз с добавлением бентонитового или пенораствора по
11.5.4.
9.4 Номенклатура и технические характеристики микротоннелепроходческих комплексов приведены в
приложении А.
Конструкция щитовой машины приведена в
приложении И, технологические схемы МТПК с различными видами пригруза забоя и транспортировки грунта приведены в
приложении К.
10 Организация строительства
10.1 Строительно-монтажные работы по прокладке инженерных коммуникаций и устройству экранов из труб способом микротоннелирования должны выполняться по проекту, согласованному и утвержденному по СП 48.13330.2011
(пункт 5.4).
10.2 Обустройство строительной площадки стартового и приемного шахтных стволов (котлованов) должно соответствовать выбранному типу МТПК и обеспечивать выполнение предусмотренных проектом сооружения технологических процессов и бытовое обслуживание персонала.
10.3 Организация работ по прокладке инженерных коммуникаций и устройству экрана из труб в соответствии СП 48.13330.2011 (
пункты 6.2.5,
6.6,
6.10 -
6.12) должна предусматривать:
- подготовку стройплощадки к работам, в том числе, ограждение рабочих участков, устройство проездов для транспорта и проходов для персонала, устройство временных бытовок, складов, навесов, утепление растворных узлов;
- обеспечение участка электроэнергией, водой, сжатым воздухом;
- перекладку существующих инженерных коммуникаций, препятствующих сооружению стартового и приемного шахтных стволов (котлованов);
- подвод инженерных коммуникаций (водопровод, электроэнергия и т.д.).
10.4 При прокладке трубопроводов и устройстве экранов из труб обслуживающий МТПК персонал на месте работ должен иметь Инструкцию по сборке, эксплуатации, техническому обслуживанию МТПК, а также ремонту отдельных узлов щитового комплекса и безопасному производству работ.
11.1.1 Работы по прокладке инженерных коммуникаций и устройству защитного экрана из труб методом микротоннелирования следует выполнять по проекту и Инструкции по эксплуатации МТПК.
При производстве работ следует выполнить:
- подготовительные работы по
11.2;
- устройство шахтных стволов (котлованов) по
11.3;
- монтаж технологического оборудования по
11.4;
- прокладку трубопроводов для инженерных коммуникаций по
11.5 или устройство защитного экрана из труб по
11.6;
- демонтаж технологического оборудования по
11.4.7;
- контроль выполнения работ по
12.2.
11.1.2 При прокладке подземных инженерных коммуникаций и устройстве экрана из труб следует вести исполнительную документацию по
РД 11-02-2006 [11] с оформлением актов освидетельствования:
- геодезической разбивочной основы объекта капитального строительства по СП 126.13330.2012
(приложение Д);
- разбивки осей объекта на местности по СП 126.13330.2012
(приложение Д);
- испытания и опробования технических устройств и механизмов;
11.1.3 В журналах работ в соответствии с РД 11-05-2007 (
пункты 8.1 -
8.7)
[12] следует указывать:
- время начала и окончания вида работ;
- участки трассы, в пределах которых ведутся работы;
- основные технические характеристики используемого оборудования и материалов;
- данные о режимах и расходах бентонитовых, тампонажных и пенорастворов и их характеристиках;
- отклонения от требований ППР и технологического регламента и вызвавшие их причины.
Рекомендуемая форма журнала работ приведена в РД 11-05-2007 (
разделы 1 -
7)
[12].
11.2 Подготовительные работы
11.2.1 Подготовительные работы по
10.3 в соответствии с ППР должны быть выполнены до начала работ по микротоннелированию.
11.2.2 Строительная организация должна выполнить геодезические работы согласно проекту и РД 07-226-98
(раздел 7.2) [13] по выноске в натуру и закреплению специальными знаками по СП 126.13330.2012
(приложение К) центров шахтных стволов (котлованов), осей трассы трубопровода или осей труб экрана в местах пересечения ими зданий и сооружений (в том числе подземных) с оформлением акта по СП 126.13330.2012
(приложение Д).
11.2.3 Перед началом работ по устройству стартовых и приемных шахтных стволов (котлованов) необходимо проверить наличие, исправность и готовность к работе всего оборудования и механизмов в соответствии с инструкциями по их эксплуатации.
11.2.4 Обеспечить доставку и складирование строительных материалов и изделий по
8.5 и
8.6.
11.3 Устройство шахтных стволов (котлованов)
11.3.1 Устройство стартовых и приемных шахтных стволов (котлованов) следует выполнять в соответствии с проектом.
В зависимости от способа сооружения шахтного ствола (котлована) по
7.16 должны быть выполнены:
- разработка и удаление грунта по
11.3.2;
- устройство крепления (ограждения) шахтного ствола (котлована) по
11.3.3;
- нагнетание тампонажного раствора за обделку шахтного ствола (при наличии указаний в проекте для крепления из сборных элементов) по
11.3.4;
- устройство внутренней бетонной или набрызгбетонной выравнивающей обделки по ограждению шахтного ствола (котлована) из буросекущих или грунтоцементных свай (при наличии указаний в проекте) по
11.3.5;
- бетонирование основания (днища) шахтного ствола (котлована) и опорной плиты на задней стене стартового шахтного ствола (котлована) по
11.3.6;
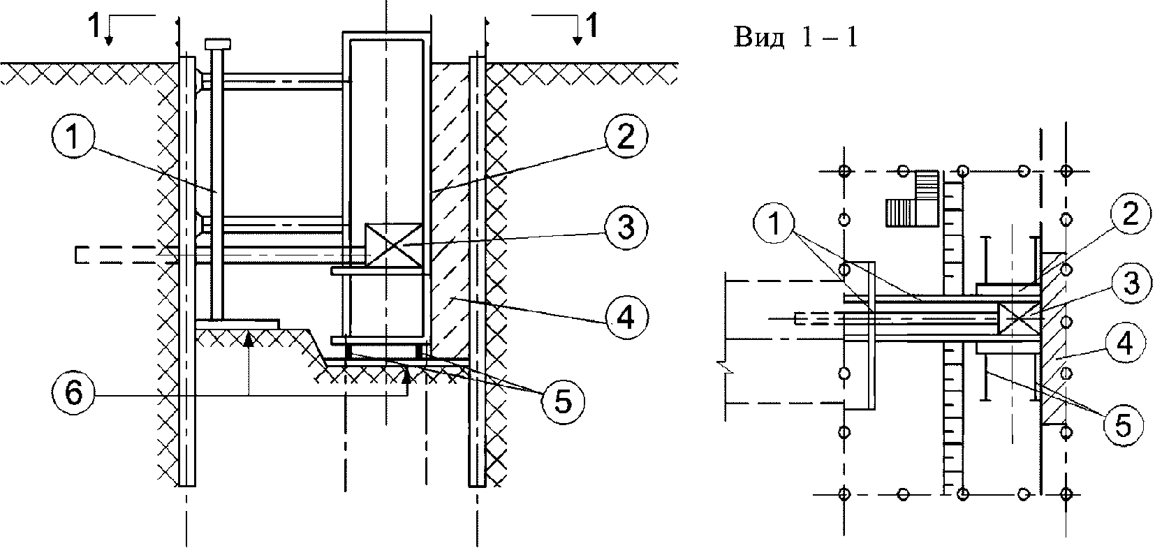
- установка стартового уплотнения по
11.3.7;
- разметка осей труб для устройства защитного экрана (см.
11.6) на стене шахтного ствола (котлована) по
11.3.8.
11.3.2 Разработка и удаление грунта.
11.3.2.1 Разработку и удаление грунта шахтных стволов (котлованов) следует выполнять механизированным или ручным способом в соответствии с проектом и соблюдением положений
СП 69.13330 <1>, СП 120.13330.2012
(пункт 6.5.2) и СП 45.13330.2012
(раздел 6).
--------------------------------
11.3.2.2 Работы следует вести отдельными заходками по глубине шахтного ствола (котлована). Глубина заходки в зависимости от характеристик грунта и крепления шахтного ствола (котлована) должна быть определена в проекте.
11.3.2.3 Величины допустимых отклонений геометрических параметров сечения выработок от проектных по радиусу шахтного ствола следует контролировать по
СП 69.13330 <2>, геометрических параметров сечения выработок при разработке котлована - по СП 45.13330.2012
(пункт 6.1.28).
--------------------------------
11.3.2.4 Стабилизацию грунтового массива по
7.15 путем инъекционного укрепления или замораживания грунтов следует выполнять по ППР.
11.3.3 Устройство крепления (ограждения) шахтного стола (котлована).
11.3.3.1 Устройство крепления (ограждения) шахтного ствола (котлована) следует выполнять одним из способов по
7.16 в соответствии с проектом и положениями
СП 69.13330 <3> СП 70.13330.2012 (
разделы 5,
6), СП 120.13330.2012
(пункт 6.6.2).
--------------------------------
11.3.4 Нагнетание тампонажного раствора за обделку шахтного ствола.
11.3.4.1 Нагнетание тампонажного раствора за сборную железобетонную или сборную металлическую обделку, а также при сооружении опускной крепи должно производиться согласно СН 322-74
(пункт 2.18) [5] через отверстия в блоках обделки или пробуренные в них отверстия участками, не превышающими высоты трех колец с предварительной заделкой швов сборной обделки.
11.3.4.2 Тампонажный раствор для нагнетания за обделку (крепление) шахтного ствола следует готовить в стационарном растворном узле, расположенном на дневной поверхности. Состав и параметры тампонажного раствора определяются проектом. Контроль параметров раствора выполняется по СТО НОСТРОЙ 2.27.19-2011
(пункт 8.2.7).
11.3.5 Устройство внутренней бетонной или набрызгбетонной выравнивающей обделки по ограждению шахтного ствола (котлована) из буросекущих или грунтоцементных свай (при наличии указаний в проекте).
| | ИС МЕГАНОРМ: примечание. В официальном тексте документа, видимо, допущена опечатка: подраздел 5.3 в СТО НОСТРОЙ 2.6.54-2011 отсутствует. | |
11.3.5.1 Бетонную монолитную обделку следует выполнять по проекту и в соответствии с положениями СТО НОСТРОЙ 2.6.54-2011 (подраздел 5.3).
11.3.5.2 Обделку из набрызгбетона по ограждающим конструкциям шахтного ствола (котлована) следует выполнять по проекту с учетом положений СТО НОСТРОЙ 2.27.128-2013
(раздел 8).
11.3.6 Бетонирование основания (днища) шахтного ствола (котлована) и упорной плиты на задней стене стартового шахтного ствола (котлована).
11.3.6.1 Бетонирование основания (днища) шахтного ствола следует выполнить по проекту с учетом правил выполнения работ по СТО НОСТРОЙ 2.6.54-2011 (
разделы 4 -
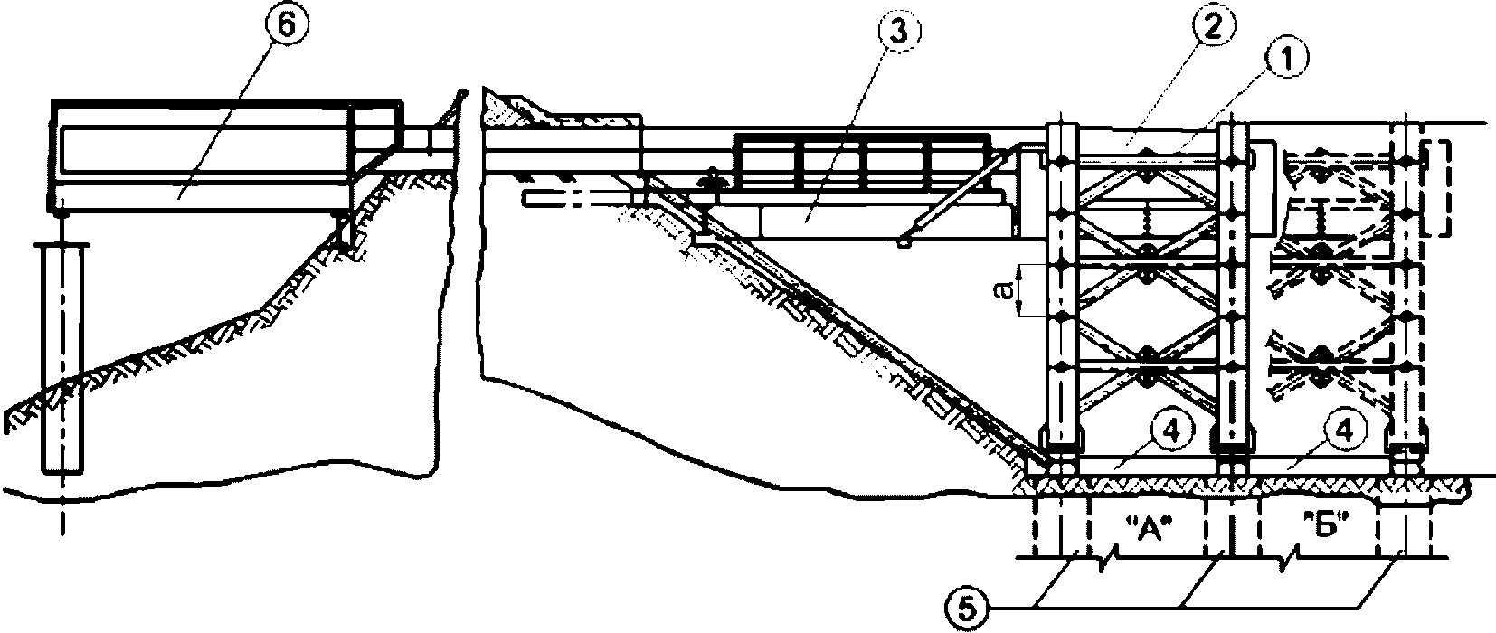
6).
11.3.6.2 При наличии указаний в проекте следует выполнить устройство металлических направляющих для перемещения вспомогательного оборудования при продавливании труб защитного экрана (см.
приложение Л) или ввода, при необходимости, в грунт щитового комплекса.
Металлические направляющие (рельсы) следует укладывать в основание (днище) шахтного ствола (котлована) на этапе бетонирования основания. Установку металлических направляющих следует выполнить с допусками в профиле +/- 10 мм и в плане +/- 30 мм по СН 322-74
(пункт 3.3) [5].
| | ИС МЕГАНОРМ: примечание. В официальном тексте документа, видимо, допущена опечатка: раздел 5.3 в СТО НОСТРОЙ 2.6.54-2011 отсутствует. | |
11.3.6.3 Бетонирование опорной плиты по
7.14 следует выполнять по проекту с учетом СТО НОСТРОЙ 2.6.54-2011 (раздел 5.3).
11.3.7 Установку стартового уплотнения для ввода МТПК в грунтовый массив и вывода из него следует выполнить способом, определенным ППР. Расположение стартового уплотнения показано в приложении К (
рисунки К.2 и
К.3).
11.3.8 Для устройства защитного экрана следует выполнить разметку осей труб на стене стартового котлована по методике, приведенной в
приложении М.
11.3.9 Маркшейдерские работы при сооружении шахтных стволов (котлованов) следует выполнять по РД 07-226-98
(раздел 7.2) [13].
11.3.10 При завершении работ по устройству стартового и приемного шахтного ствола (котлована) следует оформить акт освидетельствования ответственных конструкций по форме, приведенной в РД 11-02-2006
(приложение 4) [11].
11.4 Монтаж технологического оборудования
11.4.1 Монтаж технологического оборудования для микротоннелирования включает:
- установку грузоподъемного оборудования и оборудования для приготовления растворов по
11.4.3;
- проверку функционирования комплекса по
11.4.5;
- перестановка МТПК по фронту работ по
11.4.6;
- демонтаж технологического оборудования по
11.4.7.
11.4.2 Монтаж технологического оборудования на дневной поверхности и в стартовом шахтном стволе (котловане) следует выполнять в соответствии с ППР и Инструкцией по эксплуатации МТПК.
11.4.3 Установка грузоподъемного и вспомогательного оборудования <1>.
--------------------------------
<1> К вспомогательному оборудованию в данном разделе относятся: смесительное и нагнетательное оборудование для тампонажных растворов, нагнетаемых за сборную обделку шахтных стволов, бентонитовых растворов для нагнетания в призабойную зону и за щитовую оболочку и прокладываемые секции труб.
11.4.3.1 Грузоподъемное оборудование следует устанавливать на дневной поверхности для спуска в шахтный ствол (котлован) и монтажа элементов МТПК, доставки секций труб к домкратной станции и выгрузки грунта.
Вид, марка и порядок установки оборудования определяется ППР и зависит от требуемой технологией микротоннелирования грузоподъемности, условий строительной площадки.
11.4.3.2 В зависимости от способа крепления шахтного ствола (котлована) и типа МТПК на дневной поверхности следует установить оборудование для приготовления тампонажных (см.
11.3.4.2) и бентонитовых (см.
11.5.4) растворов.
11.4.3.3 Для приготовления и нагнетания тампонажного и бентонитового раствора следует использовать смесительное и нагнетательное оборудование, марка оборудования и его производительность определяются проектом.
11.4.4.1 Микротоннелепроходческий комплекс (см.
9.1) следует установить в проектное положение относительно оси проектируемого трубопровода в плане и по высоте.
11.4.4.2 Домкратную станцию следует скорректировать по лучу лазера и зафиксировать ее положение путем заполнения зазора между опорной плитой домкратной станции и задней стеной шахтного ствола (котлована) быстросхватывающимся строительным раствором.
Состав быстросхватывающего раствора рекомендуется принять в соответствии с требованиями
ГОСТ 28013.
11.4.4.3 ЩММ следует зафиксировать штатными креплениями на домкратной станции с подключением ее к соответствующим шлангам и кабелям управляющего контейнера.
11.4.4.4 В зависимости от типа МТПК следует установить оборудование системы удаления грунта:
- при гидротранспорте в шахтном стволе - грязевой насос и циркуляционную систему на поверхности (см.
рисунок К.1 (приложение К));
- при шнековом транспорте шахтный ствол (котлован) оборудуется бадьей для загрузки разработанного грунта и выдачи его на поверхность (см.
рисунок К.2 (приложение К));
- при пневмотранспорте - циркуляционную систему на поверхности (см.
рисунок К.3 (приложение К)).
11.4.4.5 Выполнить монтаж системы нагнетания в призабойную зону бентонитового раствора для МТПК с гидропригрузом забоя или пенораствора для МТПК с грунтовым пригрузом и нагнетания бентонитовых растворов за оболочку щита и секции продавливаемых труб.
Примечание - Нагнетание бентонитового или пенораствора в призабойную зону выполняется для предотвращения осадок дневной поверхности при микротоннелировании и уменьшения сопротивления продавливанию трубопроводов.
11.4.4.6 На задней стенке шахтного ствола (котлована) установить кронштейн и закрепить на нем лазерную систему для ведения щита (см.
рисунки К.1 -
К.3 (приложение К)).
11.4.5 Проверка функционирования комплекса.
11.4.5.1 При проверке функционирования комплекса согласно указаниям Инструкции по эксплуатации МТПК следует оценить готовность к работе:
- ЩММ;
- домкратной станции;
- системы удаления грунта;
11.4.5.2 В результате проверки функционирования комплекса МТПК следует оформлять исполнительную документацию согласно Инструкции по эксплуатации МТПК.
11.4.6 Перед установкой ЩММ для прокладки следующего трубопровода или продавливания каждой последующей трубы защитного экрана необходимо выполнить работы по осмотру и техническому обслуживанию технологического оборудования, в том числе:
- очистку рабочего органа ЩММ и удаление застрявших в нем камней;
- проверку состояния породоразрушающего инструмента и твердосплавных покрытий ротора и выполнение, при необходимости, ремонтных работ;
- смазку уплотнений (расположение мест смазки и тип смазочных материалов приведены в Инструкции по эксплуатации оборудования);
- проверку плотности соединений трубопроводов и устранение протечек масла и воды;
- очистку мертвого пространства шаровых кранов на трубопроводах, байпасах и проверку включения и выключения задвижек на трубопроводах;
- проверку лазерной мишени и ее очистку;
- проверку электро- и гидросистемы (направление вращения, давление холостого хода, максимальное число оборотов рабочего органа, максимальное давление и работа управляющих цилиндров), системы измерений и освещения;
- промывку бентонитовых насадок.
11.4.7 Демонтаж технологического оборудования.
11.4.7.1 После завершения операций по прокладке трубопровода или продавливания труб защитного экрана в приемном шахтном стволе (котловане) следует в соответствии с Инструкцией выполнить демонтаж МТПК.
Из проложенного трубопровода необходимо удалить секции транспортных трубопроводов или шнекового конвейера, стандартных отрезков коммуникационных шлангов и кабеля с разъединением соединительных муфт.
11.4.7.2 Элементы технологического комплекса и вспомогательного оборудования следует поднять на поверхность и складировать для последующего использования.
11.5 Прокладка подземных инженерных коммуникаций
11.5.1 Технологические операции по прокладке трубопроводов следует выполнять в последовательности и правилам, установленным в ППР и Инструкции по эксплуатации МТПК.
11.5.2 При прокладке трубопроводов методом микротоннелирования должны быть выполнены следующие операции:
- продвижение ЩММ с прицепными элементами и секциями труб по
11.5.3;
- нагнетание бентонитового или пенораствора в забой по
11.5.4;
- прокладка трубопровода по
11.5.5;
- ведение маркшейдерского контроля по
11.5.6;
11.5.3 При продвижении ЩММ следует:
- выбрать направление движения рабочего органа ЩММ по
11.5.3.1;
- включить привод ЩММ и отрегулировать число оборотов рабочего органа ЩММ по
11.5.3.2;
11.5.3.1 Выбор направления движения щита следует выполнить путем совмещения центра луча лазера на экране монитора с лазерной мишенью, установленной на ЩММ.
11.5.3.2 Число оборотов рабочего органа ЩММ следует отрегулировать по величине крутящего момента в соответствии с Инструкцией в зависимости от грунтовых условий.
11.5.3.3 Продвижение ЩММ с прицепными элементами и секциями труб следует выполнять путем включения и выдвижения гидроцилиндров домкратной станции с последующим переводом их выдвижения в автоматический режим.
11.5.4 Нагнетание бентонитового или пенораствора в забой.
11.5.4.1 При продвижении ЩММ в призабойную зону в забой следует нагнетать:
- бентонитовый раствор - для МТПК с гидравлическим пригрузом;
- пенораствор - для МТПК с пенопригрузом.
Примечание - Под забоем понимается поверхность грунтового массива, ограничивающая тоннельную выработку и перемещающаяся в результате разработки грунта. Призабойная зона - зона работы рабочего органа ЩММ.
11.5.4.2 Состав бентонитового раствора следует подбирать в лабораторных условиях для конкретных инженерно-геологических условий. Раствор рекомендуется готовить из бентонитового глинопорошка, изготовленного, например, по ТУ 5751-001-41219638-2010
[14].
Рекомендуемые материалы, порядок приготовления и контроля качества бентонитового раствора приведены в
приложении Н.
11.5.4.3 Состав пенораствора определяется проектом. Раствор рекомендуется готовить из пенообразующего реагента и воды, расход реагента для приготовления раствора зависит от характеристик разрабатываемых грунтов.
11.5.5 Прокладка трубопровода.
11.5.5.1 По мере продвижения ЩММ (см.
11.5.3) и прокладки трубопровода следует выполнять в соответствии с СТО НОСТРОЙ 2.17.66-2012 (пункты 6.5.2.1 - 6.5.3.3) стыковку очередных секций труб к ранее смонтированным.
11.5.5.2 При продавливании трубные секции железобетонных и полимербетонных труб следует располагать втулочным концом вперед. Усилие продавливания должно передаваться на раструбный бетонный торец по всей его плоскости через элементы стыковых соединений.
11.5.5.3 При продавливании секций труб в песчаных грунтах естественной влажности по
ГОСТ 25100, преимущественно при наличии гравелистых включений, рекомендуется за наружную поверхность ЩММ и трубы нагнетать бентонитовый раствор через насадки (нагнетательные патрубки), расположенные в хвостовой оболочке щита.
11.5.5.4 При продавливании секций труб в водонасыщенных грунтах по
ГОСТ 25100 следует выполнять нагнетание бентонитового раствора за оболочку ЩММ и секции трубы. Нагнетание раствора рекомендуется начинать при достижении на середине длины прокладываемой секции трубы усилия продавливания, равного 50% от величины предельного усилия, создаваемого домкратной станцией.
11.5.6 Ведение маркшейдерского контроля следует выполнять путем визуального наблюдения за положением луча лазера на лазерной мишени и регистрируемыми на мониторе данными о позиции по высоте центра машины относительно проектного положения, задаваемого лучом лазера, длине прокладки секции и времени проведения технологических операций.
Примечание - Маркшейдерский контроль выполняется по показаниям лазерной установки, фиксирующей и регулирующей положение трубопровода в любой точке проходки.
11.5.7.1 Разработанная грунтовая масса из призабойной зоны удаляется по трубопроводам в зависимости от типа МТПК гидравлическим или пневматическим способом (см.
рисунки К.1,
К.3 (приложение К)) с погрузкой его в грунтоприемный контейнер на дневной поверхности.
11.5.7.2 При механическом (шнековом) транспорте разработанный грунт после прокладки каждой трубы и по завершении работ загружается в металлическую емкость (бадью) и поднимается на поверхность.
11.5.7.3 По мере наполнения грунтоприемного контейнера грунтовая масса утилизируется.
| | ИС МЕГАНОРМ: примечание. В официальном тексте документа, видимо, допущена опечатка: приложение Д в РД 11-02-2006 отсутствует. Возможно, имеется в виду приложение 4 РД 11-02-2006. | |
11.5.8 При завершении прокладки подземных инженерных коммуникаций следует оформлять акт освидетельствования ответственных конструкций. Форма акта приведена в РД 11-02-2006
(приложение Д) [11].
11.6 Устройство защитного экрана из труб
11.6.1 Технологические операции по продавливанию в грунтовый массив труб по высоте и ширине защитного экрана следует выполнять в последовательности и правилам, установленным в ППР и Инструкции по эксплуатации МТПК.
11.6.2 До начала работ по микротоннелированию следует выполнить монтаж вспомогательного оборудования для продавливания труб по ширине и/или высоте защитного экрана по
11.6.3.
Конструкция вспомогательного оборудования представлена в
приложении Л.
11.6.3 При устройстве защитного экрана из труб следует выполнить:
- продвижение ЩММ с прицепными элементами и секциями труб по
11.5.3;
- стыковку секций труб по
11.6.4;
- ведение маркшейдерского контроля по
11.5.6;
- установку ЩММ на следующую стоянку по фронту работ по
11.6.5;
- заполнение труб экрана бетонной смесью или бетонной смесью с установкой арматурного каркаса (при наличии указания в ППР) по
11.6.6.
11.6.4 Стыковку секций труб по мере продвижения ЩММ следует выполнять сваркой указанным в ППР способом в соответствии с СП 86.13330.2012 (
подразделы 8.1,
8.3).
Примечание - Для упрощения работ по стыковке и уменьшения сопротивления при продавливании следует применять секции труб с приваренными в хвостовой части секций внутренними кольцевыми накладками по МГСН 6.01-03 (
пункты 5.1.2.5,
5.1.2.6)
[3].
Для обеспечения сплошности экрана трубы при продавливании следует соединять между собой фиксирующими устройствами (см.
приложение Ж).
11.6.5 Установка ЩММ на следующую стоянку.
11.6.5.1 После продавливания трубы на проектную длину следует переместить ЩММ из приемного в стартовый шахтный ствол (котлован). С учетом положений
11.4.4 и
11.4.6 установить ЩММ на вспомогательное оборудование (см.
приложение Л).
11.6.5.2 Перемещение ЩММ по ширине и высоте защитного экрана следует выполнять в последовательности, установленной ППР.
11.6.6 Заполнение труб экрана бетонной смесью или бетонной смесью с установкой арматурного каркаса следует выполнять по мере продавливания труб в соответствии с проектом.
| | ИС МЕГАНОРМ: примечание. В официальном тексте документа, видимо, допущена опечатка: приложение Д в РД 11-02-2006 отсутствует. Возможно, имеется в виду приложение 4 РД 11-02-2006. | |
11.6.7 При завершении работ по устройству защитного экрана из труб следует оформлять акт освидетельствования ответственных конструкций. Форма акта приведена в РД 11-02-2006
(приложение Д) [11].
12 Контроль выполнения работ
Контроль выполнения работ по прокладке инженерных коммуникаций и устройству защитных экранов из труб методом микротоннелирования в соответствии с положениями
СП 48.13330, должен включать:
- входной контроль;
- операционный контроль;
- оценку соответствия выполненных работ проекту.
12.1.1 При входном контроле организацией - исполнителем работ необходимо выполнить проверку:
- проектной документации;
- применяемых строительных материалов, изделий и оборудования.
12.1.2 Проектную документацию, включая проект организации работ (ПОС) и рабочую документацию, следует проверять на комплектность, наличие согласований и утверждений, ссылок на нормативные документы на материалы и изделия, наличие указаний о методах контроля и измерений.
12.1.3 При входном контроле строительных материалов, изделий и оборудования необходимо проверить:
- наличие сопроводительных документов поставщика, подтверждающих качество материалов, изделий и оборудования (паспорта, сертификаты качества, технические условия, стандарты и т.п.);
- соответствие характеристик, линейных размеров и свойств поставляемых материалов и изделий проектным требованиям и нормативам предприятия-изготовителя;
- пригодность применения материалов по указанным в сопроводительных документах срокам хранения и соблюдение требований к транспортировке и хранению;
- отсутствие повреждений упаковок и самих материалов, изделий и оборудования.
При визуальном осмотре следует проверить комплектность поставки, наличие дефектов и повреждений поступающих изделий.
12.1.5 При необходимости выполняются контрольные испытания строительных материалов на соответствие требованиям технических условий и стандартов на конкретные материалы.
12.1.6 При выявлении несоответствия материалов и изделий требованиям нормативных документов и проекта или сопроводительным документам поставщика, партия материалов или изделий бракуется с оформлением акта проверки и возвращается поставщику.
12.1.7 Результаты входного контроля согласно СП 48.13330.2011
(пункт 7.1.3) оформляются протоколом проведения входного контроля строительных материалов и изделий, документируются в журналах входного контроля или лабораторных испытаний поступающих материалов.
12.1.8 До начала работ по микротоннелированию согласно указаниям Инструкции по эксплуатации МТПК следует проверить работоспособность ЩММ, домкратной станции, системы удаления грунта, лазерной установки и оформить исполнительную документации на комплекс МТПК.
12.2 Операционный контроль
12.2.1 При операционном контроле представитель организации, осуществляющей строительство, в соответствии с СП 48.13330.2011
(пункт 7.1.6) должен проверить соответствие последовательности и состава выполняемых технологических операций по устройству шахтных стволов (котлованов) (см.
11.3), монтажу технологического оборудования (см.
11.4), прокладке трубопроводов (см.
11.5) и устройству защитных экранов из труб (см.
11.6) проектной, нормативной и технологической документации.
12.2.2 Выполнение земляных работ при устройстве шахтных стволов (котлованов) следует контролировать с учетом требований и допусков, приведенных в
СП 69.13330 <1> и СП 45.13330.2012
(пункт 6.1.28).
--------------------------------
При разработке грунта при микротоннелировании следует контролировать соответствие фактического объема разрабатываемого грунта (объема выгрузки грунта из забоя) расчетному геометрическому объему по проекту.
12.2.3 При устройстве ограждений шахтных стволов (котлованов) следует контролировать соблюдение требований проекта, правил разработки и крепления выработок для шахтных стволов по
СП 69.13330 <2>, для котлованов по СП 45.13330.2012
(раздел 6).
--------------------------------
12.2.4 Величины допустимых отклонений геометрических параметров стен крепления шахтных стволов по
СП 69.13330 <3> от центра ствола допускаются для монолитной бетонной и железобетонной крепи в пределах 50 мм, для сборной металлической - в пределах 30 мм.
--------------------------------
12.2.5 При сооружении обделки шахтных стволов из сборных элементов следует проверять соответствие маркерной разметки блоков соседних колец, отсутствие уступов в продольных и кольцевых стыках сверх допустимых значений по СП 120.13330.2012 (
пункт 6.5.3,
раздел Ж.3 приложения Ж).
12.2.6 Геометрические измерения размеров строительных конструкций и трубопроводов при сооружении шахтных стволов, прокладке трубопроводов и устройству защитных экранов из труб следует выполнять с соблюдением правил и требований к точности измерений по
ГОСТ 26433.2.
12.2.7 При монтаже технологического оборудования отклонение проходческого щита от проектного положения не должно превышать в плане +/- 30 мм, в профиле +/- 10 мм, разворот должен быть не более 5°.
12.2.8 Продвижение проходческого щита должно производиться по заданному направлению, контролируемому визуально на мониторе по показаниям лазерной установки.
12.2.9 Отклонение ЩММ от проектного положения в профиле при микротоннелировании по СТО НОСТРОЙ 2.17.66-2012 (пункт 10.3.6) не должно превышать:
- +/- 30 мм при диаметре трубопровода от 1000 мм до 1400 мм;
- +/- 50 мм при диаметре трубопровода свыше 1400 мм.
Отклонение ЩММ от проектного положения в плане не должно превышать:
- +/- 100 мм при диаметре трубопровода от 1000 мм до 1400 мм;
- +/- 200 мм при диаметре трубопровода свыше 1400 мм.
Правильность прокладки трубопроводов и устройства защитных экранов должна подтверждаться согласно СН 322-74
(пункт 11.7) [5] по исполнительной документации маркшейдерской службы строительства.
12.2.10 Операционный контроль сварных стыков трубопроводов следует выполнять в процессе сварки трубопроводов путем визуального и измерительного контроля сварных соединений неразрушающими методами контроля по СП 86.13330.2012
(раздел 8.3).
12.2.11 Результаты операционного контроля строительно-монтажных работ следует оформлять согласно СП 48.13330.2011
(раздел 7) в журналах (см.
11.1.3).
12.2.12 При производстве работ по микротоннелированию под зданиями и сооружениями, железнодорожными и автомобильными трассами, а также на участках грунтов с особыми свойствами (насыпные, мерзлые грунты) и в период осенне-весенних паводков необходимо проводить постоянный контроль их состояния и осадок земной поверхности в соответствии с
разделом 13.
12.2.13 Точность маркшейдерских измерений согласно РД 07-226-98 (
пункты 13.10 -
13.13)
[13] следует проверять по контрольным замерам, выполненным главным или старшим маркшейдером строительной организации.
12.3 Оценка соответствия выполненных работ
12.3.1 Оценку соответствия выполненных работ по прокладке трубопровода или устройству защитного экрана из труб проектной документации и технического
регламента [15] следует выполнять путем проверки:
- соответствия проходки коллектора или устройства экрана из труб в плане и профиле по исполнительной геодезическо-маркшейдерской документации, оформленной по РД 07-226-98
(раздел 13) [13];
- соответствия выполненной конструкции трубопровода и защитного экрана из труб проекту.
12.3.2 Проверку соответствия состава и объема выполненных работ проекту по требованиям СП 48.13330.2011
(пункт 7.2) следует проводить по:
- рабочим чертежам с надписями лиц, ответственных за производство строительно-монтажных работ, о соответствии выполненных в натуре работ проекту и внесенным в него изменениям или исполнительным чертежам;
- документам, удостоверяющим качество использованных материалов и изделий;
- актам освидетельствования скрытых работ и актов освидетельствования ответственных конструкций;
- актам устранения недостатков, отмеченных в журналах работ в ходе контроля и надзора за выполнением строительно-монтажных работ;
- журналам производства работ и авторского надзора проектной организации.
12.3.3 Результаты оценки соответствия объекта требованиям проектной документации и технологического
регламента [15] следует оформлять в соответствии
СП 48.13330.
13 Геотехнический мониторинг
13.1 При сооружении инженерных коммуникаций закрытым способом и устройстве экранов из труб методом микротоннелирования в условиях городской застройки следует предусматривать выполнение геотехнического мониторинга зданий и сооружений, попадающих в зону влияния нового строительства, для обеспечения их безопасности и эксплуатационной надежности.
13.2 Геотехнический мониторинг должен включать:
- периодические обследования и наблюдения за изменением контролируемых параметров существующих зданий и сооружений и массивов грунта в пределах зоны влияния нового строительства по СП 22.13330.2011
(раздел 12);
- анализ динамики развития и сравнение результатов наблюдений с прогнозными и предельными значениями контролируемых параметров;
- оценку достоверности геотехнического прогноза, выполненного расчетными методами и, при необходимости, его корректировку;
- определение степени опасности выявленных отклонений контролируемых параметров от прогнозируемых их значений и установление причин их возникновения с анализом взаимосвязи между деформациями грунтового массива и техническим состоянием объектов окружающей застройки;
- разработку мер по предупреждению, снижению или ликвидации недопустимых отклонений эксплуатационных характеристик сооружений и негативных последствий строительства;
- контроль выполнения работ по защите существующих сооружений.
13.3 Начальный этап геотехнического мониторинга должен включать:
- разбивку и установку на местности элементов наблюдательной станции;
- фиксацию первоначального состояния и значений контролируемых параметров грунтового массива и наблюдаемых сооружений;
- составление начальной отчетной документации.
13.4 Контролируемые параметры, сроки, периодичность и методы работ при выполнении геотехнического мониторинга назначаются в соответствии с СП 22.13330.2011 (
таблица 12.1,
приложения Л,
М). Измерения следует выполнять в соответствии с
ГОСТ 26433.2.
13.5 В соответствии с СТО НОСТРОЙ 2.17.66-2012 (пункт 8.4) следует проводить:
- мониторинг конструкций при устройстве и демонтаже шахтных стволов (котлованов), прилегающего массива и окружающей застройки не реже одного раза в неделю, далее - не реже одного раза в месяц;
- мониторинг прилегающего массива и окружающей застройки, находящихся в зоне расположения забоя выработки, при проходке коллекторов и тоннелей, а также устройстве экранов из труб - не реже одного раза в неделю, но не менее четырех циклов, далее - не реже одного раза в месяц.
13.6 При выполнении геотехнического мониторинга следует своевременно информировать заинтересованные стороны о выявленных отклонениях значений контролируемых параметров от проектных и результатов прогноза.
14 Охрана окружающей среды
14.1 До начала строительно-монтажных работ следует в соответствии с проектом обустроить основные монтажные площадки, площадки хранения горюче-смазочных масел (ГСМ), обслуживания и ремонта автомобильной и специальной техники, утилизации строительных отходов и сопутствующих строительству хозбытовых отходов.
14.2 При планировке участка под строительную площадку следует:
- сохранять естественный сток воды, расчистку площадок выполнять с мерами предосторожности, уменьшающими повреждение почвенно-растительного покрова или предусматривать срезку плодородного слоя почвы для последующего использования в целях восстановления (рекультивации) нарушенных или малопродуктивных сельскохозяйственных земель, озеленения района застройки и т.п.;
- соблюдать согласованные места расположения и границы стройплощадок вдоль водоводов на нормируемом расстоянии с целью исключения попадания загрязнений и отходов ГСМ в поверхностные воды;
- устанавливать контейнеры для сбора отходов от производства работ и ГСМ.
14.3 На участках потенциально опасных по выделению газов (радона, метана и др.) должно быть предусмотрено проведение мероприятий по изоляции соприкасающихся с грунтом конструкций или мероприятий, способствующих снижению концентрации газов, в соответствии
СанПиН 2.1.7.1287-03 [16].
14.4 Способы хранения масел и нефтепродуктов на строительной площадке должны исключать их попадание на землю и в системы водоотведения. Отработанное масло подлежит утилизации.
14.5 При проведении сварочных работ оптимально возможно следует сокращать объемы ручной электродуговой сварки, являющейся одним из источников загрязнения атмосферного воздуха.
Стройплощадка должна быть оснащена контейнерами для сбора отходов сварки с последующей их утилизацией.
14.6 При превышении нормативных уровней загрязнения окружающей среды в соответствии с проектом должны быть выполнены работы по ликвидации или уменьшению негативных последствий строительства.
14.7 При завершении строительно-монтажных работ и ликвидации строительных площадок следует:
- снять и утилизировать загрязненный при строительстве слой грунта;
- собрать и вывести в установленные места производственные отходы;
- выполнить необходимые планировочные и рекультивационные работы.
Благоустройство и озеленение строительных площадок надлежит выполнять по проекту в соответствии с
СНиП III-10-75.
15 Требования безопасности при производстве работ
15.1 Работы по прокладке подземных инженерных коммуникаций и устройству опережающих защитных экранов из труб с применением МТПК должны выполняться при соблюдении технического
регламента [17], правил техники безопасности по
СНиП 12-04,
СП 12-136-2002 [10],
ПБ 03-428-02 [18], требований инструкций по эксплуатации применяемых машин и механизмов.
ПОС и ППР должны содержать проектные решения по применению технических средств и методов работы, обеспечивающих выполнение требований безопасности при производстве работ.
15.2 При подготовке к сооружению стартового и приемного шахтных стволов (котлованов), прокладке трубопроводов и устройству экранов из труб надлежит согласно ПОС:
- оградить зону строительства, выставить соответствующие знаки и освещение;
- выполнить мероприятия по обеспечению сохранности существующих коммуникаций и инженерных сооружений.
15.3 Строительную площадку следует содержать в чистоте, все отходы должны ежедневно удаляться в специально отведенные места. Запрещается загромождать проходы и подходы к шахтным стволам (котлованам) и оборудованию, ширина которых должна быть не менее 1 м, в зимнее время их надлежит очищать от снега и наледи и посыпать песком.
15.4 Стартовый и приемный шахтные стволы должны иметь предохранительное ограждение высотой не менее 1,1 м и оборудованы лестницами шириной не менее 0,6 м для спуска в ствол. Шахтный ствол рекомендуется перекрыть настилом с устройством монтажного проема.
15.5 Площадки у котлованов должны быть горизонтальными, иметь твердое покрытие. При сооружении котлованов необходимо выполнить мероприятия, исключающие затопление котлованов талыми и атмосферными водами (например, в лотке устроить зумпф 0,5 x 0,5 x 0,5 м).
15.6 Крепление котлованов должно обеспечивать восприятие нагрузок от оборудования, установленного на бровке котлованов. Лицами технического надзора должно проводиться визуальное, а маркшейдерской службой - не реже одного раза в неделю инструментальное наблюдение за состоянием крепи котлованов с занесением результатов измерений в журнал.
15.7 Все оборудование на бровке котлована должно быть закреплено от скатывания в котлован.
15.8 К обслуживанию МТПК допускается только обученный персонал, прошедший инструктаж по охране труда и технике безопасности в соответствии с
ГОСТ 12.0.004 и обеспеченный средствами индивидуальной защиты, спецодеждой и спецобувью.
15.9 Оборудование, входящее в состав МТПК, должно иметь предупредительные надписи по технике безопасности, на рабочих местах должны быть инструкции по технике безопасности.
15.10 Запрещается использование оборудования, входящего в МТПК, для целей, не предусмотренных паспортом и инструкцией по эксплуатации.
Все системы инженерного обеспечения оборудования МТПК должны оснащаться приборами контроля и предохранительными клапанами, исправное состояние которых должно контролироваться согласно Инструкции по эксплуатации МТПК.
15.11 При производстве работ запрещается нахождение людей:
- в зоне выхода буровой головки щита в приемном котловане;
- под опускаемым в котлован грузом.
15.12 Изменение режима и очередности выполнения технологических операций должно производиться ответственным производителем работ.
15.13 Ввод и вывод МТПК через крепь стартовых и приемных шахтных стволов (котлованов), а также удаление элементов крепи шахт, попадающих в сечение микротоннеля, должны выполняться в присутствии технического персонала. Рабочие во время спуска секций труб в шахтный ствол (котлован) не должны находиться в опасной зоне.
15.14 Степень надежности энергоснабжения стройплощадки должна определяться проектом в зависимости от способа строительства. Согласно ПУЭ
[19] для электроснабжения строительной площадки применяются сети как с изолированной, так и с глухо заземленной нейтралью питающих трансформаторов (генераторов).
Напряжение в сети питания центрального щита управления не должно превышать 230 В, питание должно быть стабильным и бесперебойным. Оборудование, металлоконструкции, вагончики должны быть заземлены.
Прокладка кабелей и шлангов должна исключать их сдавливание, растягивание или повреждение при работе МТПК.
| | ИС МЕГАНОРМ: примечание. В официальном тексте документа, видимо, допущена опечатка: имеется в виду СП 49.13330, а не СП 49.133330. | |
15.15 При выполнении электросварочных работ надлежит выполнять требования
СП 49.133330 <1>.
--------------------------------
Электросварочные устройства должны быть рассчитаны на подключение к сетям с напряжением не выше 660 В.
Металлические части электросварочного оборудования, не находящегося под напряжением, а также свариваемые конструкции на все время сварки должны быть заземлены. Подключение кабелей к сварочному оборудованию должно осуществляться при помощи опрессованных и припаянных кабельных наконечников.
При выполнении электросварочных работ в шахтном стволе с источником переменного тока все электросварочные установки должны быть оборудованы устройствами автоматического снятия напряжения холостого хода или ограничения его до 12 В с выдержкой времени не более 0,5 с.
15.16 Производство электросварочных работ во время дождя или снегопада при отсутствии навесов над рабочим местом электросварщика и электросварочным оборудованием не допускается.
15.17 Перед началом профилактического обслуживания должны быть выключены все источники питания оборудования, приняты меры по предотвращению случайного пуска системы, а все опрессованные емкости разгерметизированы.
Профилактическое обслуживание микротоннелепроходческого оборудования должно проводиться по графику регламентных работ и проверок, приложенному к Инструкции по эксплуатации комплекса. Соблюдение всех требуемых условий эксплуатации оборудования и всех инструкций по профилактическому обслуживанию и ремонту обязательно.
15.18 Уровни шума и вибрации, а также освещенность строительной площадки и рабочих мест должны соответствовать требованиям нормативных документов.
Между проходчиками в стартовом и приемном котлованах должна быть обеспечена двусторонняя связь.
(справочное)
НОМЕНКЛАТУРА И ТЕХНИЧЕСКИЕ ХАРАКТЕРИСТИКИ
МИКРОТОННЕЛЕПРОХОДЧЕСКИХ КОМПЛЕКСОВ
А.1 Номенклатура и технические характеристики МТПК приведены в таблице А.1.
Таблица А.1
Внутренний диаметр труб, мм | Наружный диаметр труб (макс. диаметр), мм | Длина секции трубы L, м | Крутящий момент рабочего органа, кНм | Скорость вращения режущей головки, об/мин | Мощность оборудования (номинальная мощность главного привода), кВт | Усилие (на цилиндр)/давление масла, кН/бар | Диаметр труб для транспорта воды и пульпы, мм | Диаметр стартового/приемного шахтного ствола (котлована), при трубах длиной l = 1,0 - 3,0 м, м | Размер стартового/приемного шахтного ствола (котлована), м | Масса, т |
1 | 2 | 3 | 4 | 5 | 6 | 7 | 8 | 9 | 10 | 11 |
МТПК с гидравлическим транспортом грунта |
250 | 360(400) | 1 - 2 | 5,9 | 0 - 44,0 | 45 | 116/500 | 55 | 2,0 - 3,0/1,5 | -/1,5 x 1,0 | 0,85 |
300 | 400(550) | 1 - 2 | 9,4 | 0 - 27,0 | 45 | 245/500 | 55 | 2,0 - 3,0/1,6 | -/1,6 x 1,0 | 0,85 |
400 | 550(650) | 1 - 2 | 13,4 | 0 - 19,0 | 45 | 245/500 | 80 | 2,5 - 3,0/1,6 | -/1,6 x 1,0 | 1,10 |
500 | 650(780) | 1 - 2 | 22,2 | 0 - 15,0 | 45 | 311/500 | 100 | 3,0/2,3 | -/2,3 x 1,2 | 3,00 |
600 | 780(860) | 1 - 2 | 33,5 | 0 - 13,0 | 45 | 311/500 | 100 | 3,0/2,4 | -/2,4 x 1,4 | 3,80 |
700 | 860(960) | 1 - 2 | 40,1 | 0 - 11,0 | 55 | 311/500 | 100 | 3,0 - 3,2/2,5 | -/2,5 x 1,5 | 4,40 |
700(800) | 960/1090 (1090/1280) | 2 - 3 | 55,0 (90,0) | 0 - 7,4 (0 - 7,1) | 55(75) | 393/500 | 100 | 3,2/3,0 (4,57/3,4) | 4,5 x 3,5/ 2,9 - 3,2 x 2,0 | 4,50 (6,20) |
1000 | 1280(1490) | 2 - 3 | 150,0 | 0 - 5,4 | 75 | 664/500 | 100 | 4,57/3,6 | 4,5 x 3,5/ 3,4 x 2,5 | 7,60 |
1200 | 1490(1720) | 2 - 3 | 195,0 | 0 - 3,5 | 75 | 752/500 | 100 | 4,87/4,5 | 5,5 x 4,5/ 4,5 x 2,5 | 10,50 |
1400 | 1720(1780) | 2 - 3 | 281,0 | 0 - 3,2 | 90 | 1005/500 | 125 | 5,27 - 6,5/4,5 | 5,5 x 4,5/ 4,5 x 2,5 | 13,00 |
1500 | 1780(1940) | 2 - 3 | 310,0 | 0 - 3,2 | 110 | 1005/500 | 125 | 5,27 - 6,5/5,0 | 5,5 x 4,5/ 4,5 x 2,5 | 17,00 |
1600 | 1940(2120) | 2 - 3 | 310,0 | 0 - 3,2 | 110 | 1005/500 | 125 | 6,5/5,0 | 6,5 x 4,5/ 5,0 x 3,0 | 22,00 |
1800 | 2120(2400) | 2 - 3 | 445,0 | 0 - 3,3 | 132 | 1272/500 | 125 | 7,0/5,5 | 6,5 x 4,5/ 5,0 x 3,0 | 25,00 |
2000 | 2400(3000) | 2 - 3 | 460,0 | 0 - 2,0 | 132 | 1272/500 | 150 | 7,5/6,0 | 7,0 x 5,0/ 5,5 x 3,5 | 32,00 |
250 - 600 | 780 | 1,0 | 17,0 | 30,0 | 53,8 | 1150 | 75 | 2,0/1,2 | - | - |
250 - 800 | 1000 | 2,0 | 29,7 | 25,0 | 83,2 | 2500 | 100 | 3,2/2,5 | - | - |
600 - 1000 | 1400 | 2,0 | 67,5 | 20,0 | 110 | 3400 | 100 | 3,6 | - | - |
900 - 1400 | 1700 | 3,0 | 243,0 | 18,8 | 125 | 4500 | 125 | 4 - 5/2,5 - 3,5 | 3,4 x 4 | - |
900 - 2100 | 2400 | 3,0 | 357,0 | 15,5 | 169 | 6000 | 150 | 5,5 | 4,5 x 4 | - |
1500 - 2000 | 2500 | 3,0 | - | - | - | 8000 | - | 6/4 | - | - |
2000 - 3000 | 3650 | 3,0 | - | - | - | 12000 | - | - /4 | - | - |
1000 | 1190(1490) | - | 71,0 | - | 132 | 6000 | - | 3,0 | - | - |
2000 | 2500 | - | 350,0 | 0 - 8,0 | - | 8000 | - | - | - | - |
445 | 610(810) | - | 19,9 | - | - | 4000 | - | - | 4,0 x 2,75 | - |
445 | 760(960) | - | 31,9 | - | - | 4000 | - | 4,27 | 4,0 x 2,75 | - |
760 | 915(1115) | - | 39,1 | - | - | 4000 | - | 4,27 | 4,0 x 2,75 | - |
915 | 1065(1265) | - | 70,2 | - | - | 4000 | - | 4,27 | 4,0 x 2,75 | - |
915 | 1120(1320) | - | 70,2 | - | - | 4000 | - | 4,27 | 4,0 x 2,78 | - |
915 | 1220(1420) | - | 83,0 | - | - | 4000 | - | 4,27 | 4,0 x 2,78 | - |
1065 | 1295(1495) | - | 83,0 | - | - | 4000 | - | 4,27 | 4,0 x 2,75 | - |
1220 | 1475(1675) | - | 83,0 | - | - | 4000 | - | 4,25 | 4,75 x 3,05 | - |
1400 | 1650(1850) | - | 125,5 | - | - | - | - | 5,0 | 4,75 x 3,05 | - |
1525 | 1830(2030) | - | 132,9 | - | - | - | - | 5,0 | 4,75 x 3,05 | - |
1675 | 2000(2200) | - | 159,3 | - | - | - | - | 5,0 | 4,75 x 3,05 | - |
МТПК с механическим шнековым транспортом грунта |
1400 | 1720 | 2,5 - 3 | 175,0 | 0 - 3,5 | 44 | 752/500 | - | 9 - 9,5/6 | 3,5 x 9 - 9,5/ 2,5 x 5,5 | 17,00 |
1600 | 1940 | 2,5 - 3 | 175,0 | 0 - 3,5 | 44 | 1005/500 | - | 9 - 9,5/6 | 3,5 x 9 - 9,5/ 3 x 5,5 | 19,00 |
1800 | 2120 | 2,5 - 3 | 350,0 | 0 - 3,5 | 74 | 1272/500 | - | 10/6,5 | 4,5 x 9,5/3 x 6 | 30,00 |
2000 | 2400 | 2,5 - 3 | 350,0 | 0 - 3,5 | 74 | 1272/500 | - | 10/6,5 | 4,5 x 9,5/ 3,5 x 6 | 32,00 |
2200 | 2700 | 2,5 - 3 | 500,0 | 0 - 3,0 | 88 | 770/500 | - | 10,5/7 | 5 x 10,5/4 x 6 | 35,00 |
2400 | 3000 | 2,5 - 3 | 560,0 | 0 - 3,0 | 120 | 770/500 | - | 11,5/7,5 | 5 x 11/4 x 7 | 48,00 |
3000 | 3100 | 2,5 - 3 | 560,0 | 0 - 3,0 | 120 | 1005/500 | - | 11,5/7,5 | 5 x 11/4,5 x 7 | 50,00 |
100 - 250 | 400 | - | - | - | 30 | - | - | 2,4 | - | - |
150 - 400 | 250 - 560 | 1 | 10,7 | - | 75 | - | - | - | - | - |
300 - 400 | 550 | - | - | - | 49 | 1000 | - | 2,4 | 4,2 x 2,4 | - |
450 - 1200 | 850 - 1500 | 2 | - | - | 90 | 2500 | - | 2,0 - 3,3 | 5,1 x 3,0 | - |
500 - 1000 | 1275 | - | 67,5 | - | 128 | 3500 | - | 3,3 | 5,1 x 3,0 | - |
400 | 560 | - | 11,0 | - | 75 | 1000 | - | 2,0 | - | - |
800 | 670 | - | 10,0 | - | 70 | - | - | 3,2 | - | - |
1200 | 1200 | - | 11,0 | - | 132 | 3000 | - | 3,0 | - | - |
250 - 400 | - | - | 5,0 | - | 45 | 1000 | 130 | 3,0 | - | - |
450 - 600 | - | - | 15,0 | - | 90 | 2500 | 210 | 3,35 | - | - |
600 - 800 | - | - | 20,0 | - | 125 | 3000 | 250 | 3,5 | - | - |
250 - 400 | - | - | 18,0 | - | 60 | 1000 | 80 | 3,0 | - | - |
500 - 700 | - | - | 30,0 | - | 90 | 2500 | 100 | 3,0 | - | - |
800 - 900 | - | - | 85,0 | - | 110 | 3500 | 125 | 3,5 | - | - |
400 | - | - | 18,0 | - | 80 | 1000 | 130 | 3,0 | - | - |
500 - 700 | - | - | 30,0 | - | 125 | 2500 | 210 | 3,35 | - | - |
800 - 900 | - | - | 67,0 | - | 145 | 3000 | 210 | 3,5 | - | - |
620 | - | - | 12,0 | 60,0 | - | 1000 | - | - | 2,0 x 2,0 | 2,00 |
1000 | - | - | 24,0 | 60,0 | - | 1600 | - | - | 3,2 x 3,2 | 3,50 |
МТПК с пневмотранспортом грунта |
400 | 630 | - | - | - | 186 | 2000 | - | - | - | - |
800 | 1113 | - | - | - | 186 | 5500 | - | - | - | - |
1200 | 1490 | - | - | - | 186 | 5500 | - | - | - | - |
(справочное)
СХЕМА УСТРОЙСТВА СТАРТОВОГО И ПРИЕМНОГО КОТЛОВАНОВ
Б.1 Схема устройства стартового и приемного котлованов (с ограждением из грунтоцементных свай) приведена на
рисунке Б.1.
1 - укрепление грунта грунтоцементными сваями;
2 - ограждение шахтного ствола (грунтовая свая + бетонная
стена); 3 - упорная плита; 4 - домкратная станция; 5 - ЩММ
Рисунок Б.1 - Устройство стартового и приемного котлованов
(справочное)
ТЕХНОЛОГИЧЕСКАЯ СХЕМА ПРОКЛАДКИ ТРУБОПРОВОДА
1 - ротор ЩММ; 2 - корпус щита; 3 - система навигации;
4 - гидротранспорт грунта; 5 - промежуточная домкратная
установка; 6 - гидравлическая домкратная установка;
7 - контейнер управления МТПК; 8 - крановое оборудование;
9 - насос для подачи воды; 10 - бентонитовая установка;
11 - сепарационная установка; 12 - направление подачи
бентонитового раствора; 13 - направление удаления грунта;
14 - направление подачи очищенного бентонитового раствора
Рисунок В.1 - Технологическая схема прокладки трубопровода
(рекомендуемое)
МЕТОДИКА РАСЧЕТА УСИЛИЯ ПРОДАВЛИВАНИЯ ТРУБ
Г.1 Усилие продавливания на прямолинейном участке складывается из усилий, необходимых для преодоления сопротивления продавливанию: начального сопротивления, трения о грунт, потерь от трения в элементах механизмов, сопротивления трению от статического давления трубы на грунт, адгезии между трубами и грунтом.
Примечание - Эти сопротивления могут изменяться в зависимости от инженерно-геологических условий, глубины заложения и методов продавливания.
Г.2 Для гидравлического и грунтового пригруза забоя усилие продавливания труб P, кН, следует рассчитывать по формуле:
P = P0 + P1, (Г.1)
где P0 - начальное сопротивление, кН;
P1 - усилие сопротивления трения и сцепления по боковой поверхности обделки, кН.
Г.3 Начальное сопротивление P0, кН, определяется по формуле:

(Г.2)
где Pw - давление внутри камеры, кН/м2;
Pe - режущая сила: для грунтового массива - 150 кН/м2, для гравия - до 300 кН/м2;
Da - наружный диаметр трубы, м.
Г.4 Давление внутри камеры Pw, кН/м2, определяется по формуле:
Pw = Pз + 20, (Г.3)
где
Pз - горизонтальное давление грунтового массива в забое, кН/м
2, которое следует рассматривать как горизонтальную составляющую горного давления с учетом возможного образования свода давления при коэффициенте бокового распора

, с учетом временной нагрузки и взвешивающего действия грунтовых вод.
Г.5 Усилие сопротивления трения и сцепления по боковой поверхности обделки P1, кН, рассчитывается по формуле:
P1 = f0·L, (Г.4)
где f0 - сила сопротивления грунта вокруг трубы, кН/м;
L - длина продавливаемого участка трубы, м.
Г.6 Сила сопротивления грунта вокруг трубы f0, кН/м, рассчитывается по формуле:

(Г.5)
где

- понижающий коэффициент усилия продавливания, который принимается для:
ила и вязких грунтов

,
песчаных грунтов

,
гравия

,
твердых грунтов

;
q - равномерная нагрузка, воспринимаемая трубой, кН/м2;
G - масса на длину трубы, кН/м;
- коэффициент трения трубы с грунтом;
C' - адгезия труб с грунтом, кН/м2.
Г.7 Коэффициенты трения и адгезионного сцепления приведены в таблице Г.1.
Материал труб | | Среднее значение  | Сцепление C', кН/м2 |
Бетон по песку, гравию | 0,53 - 0,60 | 0,55 | 0,00 |
Бетон по супеси | 0,40 - 0,50 | 0,45 | 0,19 - 0,16 |
Бетон по суглинку | 0,36 - 0,45 | 0,40 | 0,15 |
Бетон по глине | 0,30 - 0,50 | 0,40 | 0,22 - 0,19 |
Бетон по раствору бентонитовой глины | 0,10 | 0,10 | 0,05 - 0,10 |
Стеклопластик по песку | 0,20 - 0,25 | 0,22 | 0,00 |
Стеклопластик по глине | 0,15 | 0,15 | 0,10 |
Стеклопластик по раствору бентонитовой глины | 0,10 | 0,10 | 0,05 - 0,10 |
Г.8 При использовании бентонитового раствора, нагнетаемого за трубы микротоннеля, усилие сопротивления трения Pl, кН, определяется по формуле:

(Г.6)
где Da - наружный диаметр трубы, м;
L - длина продавливаемого участка трубы, м;
q - удельное сопротивление трения при нагнетании бентонитового раствора в зависимости от материала труб и типа окружающего грунта по
таблице Г.1, кН/м
2.
(рекомендуемое)
МЕТОДИКА РАСЧЕТА ЭКРАНА ИЗ ТРУБ
Д.1 Расчет конструкций опережающего защитного экрана из труб при сооружении тоннелей производят для назначения или проверки его параметров и возможности воспринимать заданные нагрузки. В некоторых случаях целью расчета является также определение деформаций элементов конструкции (трубы экрана и рамы временного крепления).
Д.2 Характеристики грунтов горного массива вокруг тоннеля, используемые в расчетах защитного свода, должны определяться натурными или лабораторными исследованиями. При предварительных расчетах допускается использование данных из нормативных документов. Как правило, используются изотропные однородные линейно деформируемые и упругопластические модели грунта. Для этих моделей деформационными параметрами являются модуль деформаций
E, МПа, и коэффициент Пуассона
.
Переход грунта в пластическое состояние рекомендуется определять по условию разрушения Кулона - Мора. Прочность горных пород характеризуется:
- для нескальных грунтов параметрами сдвига (углом внутреннего трения

, град, и сцеплением
C, МПа);
- для скальных грунтов - прочностью на сжатие Rс, МПа, и прочностью на растяжение Rр, МПа.
Д.3 Принятая расчетная модель должна соответствовать фактической работе системы "крепь - массив".
Наиболее точно напряженно-деформированное состояние защитного экрана в процессе проходки может быть оценено проведением пространственного расчета напряженно-деформированного состояния системы "крепь - массив" с использованием методов механики сплошной среды.
Для приближенного определения усилий в трубах экрана могут использоваться плоские расчетные конечно-элементные модели, плоскость которых параллельна оси тоннеля.
Простейшей расчетной моделью является стержневая система, опертая на упругое основание, находящаяся под воздействием детерминированных нагрузок. При этом основную характеристику горного массива - коэффициент упругого отпора грунта (коэффициент постели)
k, МПа/м, по справочнику проектировщика
[20] рекомендуется определять по формуле:

(Д.1)
где R - приведенный радиус эквивалентной по площади круговой выработки, м.
(справочное)
НОМЕНКЛАТУРА И ХАРАКТЕРИСТИКИ ТРУБ, ИСПОЛЬЗУЕМЫХ
ДЛЯ ПРОКЛАДКИ КОММУНИКАЦИЙ И УСТРОЙСТВА ЭКРАНА ИЗ ТРУБ
Таблица Е.1
Трубы железобетонные для прокладки трубопроводов методом
микротоннелирования по СТО НОСТРОЙ 2.17.66-2012
Диаметр трубы, мм | Толщина стенки t, мм | Длина трубы l, мм | Допустимое заглубление верха трубы, м | Вес трубы, т |
наружный Dн | внутренний Dвн |
1270 | 1000 | 135,0 | 3000 | 25,0 - 30,0 | 3,58 |
1495 | 1200 | 147,5 | 5,48 |
1780 | 1400 | 190,0 | 7,22 |
1780 | 1500 | 140,0 | 5,65 |
1940 | 1500 | 220,0 | 9,30 |
2000 | 1600 | 200,0 | 8,63 |
1940 | 1600 | 140,0 | 6,10 |
2500 | 2000 | 250,0 | 13,40 |
3000 | 2500 | 250,0 | 16,42 |
3600 | 3000 | 300,0 | 25,30 |
Таблица Е.2
Трубы из стеклопластика для микротоннелирования
по СТО НОСТРОЙ 2.17.66-2012
Диаметр трубы, мм | Толщина стенки t, мм | Кольцевая жесткость, Н/м2 | Материал муфты | Максимальное осевое усилие, кН | Вес трубы, кг/м |
наружный Dн | внутренний Dвн |
1099 | 1011 | 44,0 | 64000 | нержавеющая сталь | 2780 | 321 |
стеклопластик | 2450 |
1280 | 1176 | 52,0 | нержавеющая сталь | 4022 | 441 |
стеклопластик | 3487 |
1499 | 1379 | 60,0 | нержавеющая сталь | 5582 | 596 |
стеклопластик | 4822 |
1720 | 1584 | 68,0 | 6054 | 775 |
2047 | 1885 | 81,0 | 9000 | 1099 |
2555 | 2339 | 108,0 | 80000 | 13833 | 1825 |
2740 | 2508 | 116,0 | 15944 | 2103 |
2999 | 2745 | 127,0 | 19094 | 25200 |
Таблица Е.3
Трубы и муфты хризотилцементные
Условный проход труб Dу, мм | Наружный диаметр обточенных концов D, мм | Внутренний диаметр <*> d, мм | Толщина стенки обточенного конца s, мм | Длина обточенных концов <**> l, мм | Длина трубы L, мм |
ТТ3 | ВТ6 | ТТ6 | ВТ9 | ТТ10 | ТТ9 | ВТ12 | ТТ12 | ВТ15 | ТТ16 | ТТ3 | ВТ6 | ТТ6 | ВТ9 | ТТ10 | ТТ9 | ВТ12 | ТТ12 | ВТ15 | ТТ16 |
200 | 224 | 196 | 189 | - | 181 | - | 176 | - | 14,0 | 17,5 | - | 21,5 | - | 24,0 | - | 200 210 230 240 250 | 3950 5000 5950 |
200 | 196 | 184 | 188 | 180 | 178 | 12,0 | 14,0 | 20,0 | 18,0 | 22,0 | 23,0 |
250 | 274 | 244 | 235 | - | 228 | - | - | 15,0 | 19,5 | - | 23,0 | - | - | 5000 |
248 | 242 | 234 | 226 | 13,0 | 16,0 | 20,0 | 24,0 |
300 | 324 | 289 | 279 | 270 | - | 256 | 17,5 | 22,5 | 27,0 | - | 34,0 | 3950 5000 5950 |
292 | 286 | 272 | 276 | 267 | 264 | 16,0 | 19,0 | 26,0 | 24,0 | 28,5 | 30,0 |
350 | 373 | - | 334 | - | 322 | - | - | 312 | - | - | - | - | 19,5 | - | 25,5 | - | - | 30,5 | - | - | - | 5000 |
337 | 329 | 317 | 307 | 18,0 | 22,0 | 28,0 | 33,0 |
400 | 427 | 381 | 368 | 356 | - | 23,0 | 29,5 | 35,5 | - | 3950 5000 |
385 | 377 | 359 | 363 | 352 | 347 | 21,0 | 25,0 | 34,0 | 32,0 | 37,5 | 40,0 |
500 | 528 | 473 | 456 | - | 441 | - | - | 27,5 | 36,0 | - | 43,5 | - | - | 5000 |
476 | 466 | 444 | 450 | 436 | 428 | 26,0 | 31,0 | 42,0 | 39,0 | 46,0 | 50,0 |
<*> Внутренний диаметр труб является справочной величиной. <**> Длина обточенных концов должна быть не менее 200 мм для всех труб в зависимости от длины применяемых муфт. |
Таблица Е.4
Условный проход труб Dу, мм | Диаметр трубы, мм | Толщина стенки трубы s, мм | Длина трубы L, мм |
наружный D | |
БНТ | БНТТ | БНТ | БНТТ | БНТ | БНТТ | БНТ | БНТТ |
200 | 213 | - | 191 | - | 11 | - | 3950 5000 | - |
222 | 200 |
250 | 266 | 259 | 238 | 235 | 14 | 12 | 3950 5000 |
274 | 248 | 13 |
300 | 309 | - | 279 | - | 15 | - | - |
320 | 292 | 14 |
350 | 358 | 326 | 16 |
400 | 402 | 394 | 368 | 360 | 17 | 17 | 3950 5000 |
407 | - | 373 | - | - | - |
365 | 21 |
419 | 385 | 17 |
427 | 377 | 25 |
500 | 474 | 503 | 430 | 455 | 22 | 24 | 3950 5000 |
508 | 456 | 26 |
514 | - | 466 | - | 24 | - | - |
<*> Внутренний диаметр труб является справочной величиной. |
Таблица Е.5
Трубы стальные для защитных футляров
Наружный диаметр, мм | Теоретическая масса 1 м труб, кг, при толщине стенки, мм |
4,0 | 5,0 | 6,0 | 8,0 | 10 | 12 | 14 | 20 |
273 | 26,54 | 33,05 | - | - | - | - | - | - |
325 | 31,67 | 39,46 | - | - | - | - | - | - |
426 | - | 51,59 | 62,15 | - | - | - | - | - |
530 | - | 64,74 | 77,54 | 102,99 | - | - | - | - |
630 | - | - | - | 122,72 | 152,90 | - | - | - |
720 | - | - | - | 140,47 | 175,10 | - | - | - |
820 | - | - | - | 160,20 | 199,76 | - | - | - |
920 | - | - | - | 179,93 | 224,42 | - | - | - |
1020 | - | - | - | 199,66 | 249,08 | 298,31 | 347,33 | - |
1220 | - | - | - | - | 298,40 | 357,49 | 416,38 | 591,88 |
1420 | - | - | - | - | 347,73 | 416,68 | 485,44 | 690,52 |
Таблица Е.6
Стальные трубы по
ГОСТ 10704 для устройства экрана из труб
Наружный диаметр, мм | Теоретическая масса 1 м труб, кг, при толщине стенки, мм |
3,0 | 3,2 | 3,5 | 3,8 | 4,0 | 4,5 | 5,0 | 5,5 | 6,0 | 7,0 | 8,0 | 9,0 |
219,0 | 15,98 | 17,03 | 18,60 | 20,17 | 21,21 | 23,80 | 26,39 | 28,96 | 31,52 | 36,60 | 41,63 | 41,61 |
244,5 | 17,87 | 19,04 | 20,80 | 22,56 | 23,72 | 26,63 | 29,53 | 32,42 | 35,42 | 41,00 | 46,66 | 52,27 |
273,0 | - | - | 23,26 | 25,23 | 26,54 | 29,80 | 33,05 | 36,28 | 39,51 | 45,92 | 52,28 | 58,60 |
325,0 | - | - | - | - | 31,67 | 35,57 | 39,46 | 43,34 | 47,20 | 54,90 | 62,54 | 70,14 |
355,6 | - | - | - | - | 34,68 | 38,96 | 43,23 | 47,49 | 51,73 | 60,18 | 68,58 | 76,93 |
377,0 | - | - | - | - | 36,79 | 41,34 | 45,87 | 50,39 | 54,90 | 63,87 | 72,80 | 81,68 |
406,4 | - | - | - | - | 39,70 | 44,60 | 49,50 | 54,38 | 59,25 | 68,95 | 78,60 | 88,20 |
426,0 | - | - | - | - | 41,63 | 46,78 | 51,59 | 57,04 | 62,15 | 72,33 | 82,47 | 92,55 |
530,0 | - | - | - | - | - | - | 64,74 | 71,14 | 77,54 | 90,29 | 102,99 | 115,64 |
630,0 | - | - | - | - | - | - | - | - | - | 107,55 | 122,72 | 137,83 |
720,0 | - | - | - | - | - | - | - | - | - | 123,09 | 140,47 | 157,81 |
820,0 | - | - | - | - | - | - | - | - | - | 140,35 | 160,20 | 180,00 |
920,0 | - | - | - | - | - | - | - | - | - | 157,61 | 179,93 | 202,20 |
1020,0 | - | - | - | - | - | - | - | - | - | - | 199,66 | 224,39 |
1120,0 | - | - | - | - | - | - | - | - | - | - | 219,39 | 264,59 |
1220,0 | - | - | - | - | - | - | - | - | - | - | - | 268,79 |
1420,0 | - | - | - | - | - | - | - | - | - | - | - | - |
Окончание таблицы Е.6
Наружный диаметр, мм | Теоретическая масса 1 м труб, кг, при толщине стенки, мм |
10,0 | 11,0 | 12,0 | 13,0 | 14,0 | 16,0 | 17,5 | 18,0 | 19,0 | 20,0 |
325,0 | - | - | - | - | - | - | - | - | - | - |
355,6 | 85,23 | - | - | - | - | - | - | - | - | - |
377,0 | 90,51 | - | - | - | - | - | - | - | - | - |
406,4 | 97,76 | 107,26 | 116,72 | - | - | - | - | - | - | - |
426,0 | 102,9 | 112,58 | 122,52 | - | - | - | - | - | - | - |
530,0 | 128,4 | 140,79 | 153,30 | 165,75 | 178,15 | 202,82 | 221,18 | 227,28 | 239,44 | 251,55 |
630,0 | 152,90 | 167,92 | 182,89 | 197,81 | 212,68 | 242,27 | 264,34 | 271,67 | 286,30 | 300,87 |
720,0 | 175,10 | 192,33 | 209,52 | 226,66 | 243,75 | 277,79 | 303,18 | 311,62 | 328,47 | 345,26 |
820,0 | 199,76 | 219,46 | 239,12 | 258,72 | 278,28 | 317,25 | 346,34 | 356,01 | 375,32 | 394,58 |
920,0 | 224,42 | 246,59 | 268,71 | 290,78 | 312,81 | 356,70 | 389,50 | 400,40 | 422,18 | 443,91 |
1020,0 | 249,08 | 273,72 | 298,31 | 322,84 | 34733 | 396,16 | 432,65 | 444,79 | 469,04 | 493,23 |
1120,0 | 273,74 | 300,85 | 327,90 | 354,90 | 381,86 | 435,62 | 475,81 | 481,19 | 515,89 | 542,55 |
1220,0 | 298,40 | 327,97 | 357,49 | 386,96 | 416,38 | 475,08 | 518,97 | 533,58 | 562,75 | 591,88 |
1420,0 | 347,73 | 382,23 | 416,68 | 451,08 | 485,44 | 554,00 | 605,29 | 622,36 | 656,46 | 690,52 |
(рекомендуемое)
СХЕМЫ ФИКСИРУЮЩИХ УСТРОЙСТВ ТРУБ ЭКРАНА
Рисунок Ж.1 - Схемы фиксирующих устройств труб
опережающего защитного экрана
(справочное)
КОНСТРУКЦИЯ ЩИТОВОЙ МАШИНЫ
1 - ротор ЩММ (рабочий орган); 2 - режущий инструмент;
3 - дробильное пространство; 4 - главный подшипник;
5 - питающий трубопровод; 6 - прокладка; 7 - домкрат
управления; 8 - транспортный трубопровод; 9 - силовой
привод; 10 - вентили; 11 - байпас; 12 - лазерная мишень;
13 - лазерный луч
Рисунок И.1 - Конструкция щитовой машины
(справочное)
МИКРОТОННЕЛЕПРОХОДЧЕСКИХ КОМПЛЕКСОВ С РАЗЛИЧНЫМИ ВИДАМИ
ТРАНСПОРТА ГРУНТА ИЗ ЗАБОЯ ВЫРАБОТКИ
1 - щитовая микромашина; 2 - лазерная мишень;
3 - транспортный трубопровод; 4 - стартовое уплотнение;
5 - домкратная станция; 6 - лазерная установка; 7 - грязевой
насос; 8 - гибкий соединительный трубопровод; 9 - водяной
насос; 10 - контейнер для приема пульпы; 11 - контейнер
управления МТПК; 12 - крановое оборудование; 13 - секции
труб; 14 - приемный котлован
Рисунок К.1 - Технологическая схема МТПК
с гидравлическим транспортом грунта
1 - щитовая микромашина; 2 - транспортный трубопровод;
3 - бадья для грунта; 4 - домкратная станция; 5 - лазерная
установка; 6 - секции труб; 7 - крановая установка;
8 - контейнер управления МТПК
Рисунок К.2 - Технологическая схема МТПК
с механическим шнековым транспортом грунта
1 - щитовая микромашина; 2 - транспортный трубопровод;
3 - секции трубопровода; 4 - стартовое уплотнение;
5 - домкратная станция; 6 - лазерная установка;
7 - контейнер управления МТПК; 8 - крановое оборудование;
9 - установка для приготовления и нагнетания бентонитового
раствора; 10 - грунтоприемный контейнер;
11 - вакуумно-вытяжной контейнер; 12 - направление удаления
грунта; 13 - направление подачи бентонитового раствора
Рисунок К.3 - Технологическая схема МТПК
с пневматическим транспортом грунта
(справочное)
ВСПОМОГАТЕЛЬНОЕ ОБОРУДОВАНИЕ ПРОДАВЛИВАНИЯ ТРУБ ЭКРАНА
Л.1 Для перемещения МТПК по периметру защитного экрана используются вспомогательные оборудования, обеспечивающие быструю перестановку комплекса к месту ввода очередного элемента экрана.
Л.2 В качестве вспомогательного оборудования для ведения работ из котлована может использоваться подъемник буровой установки (см.
рисунок Л.1). Компактные размеры подъемника (2,7 x 2,2 x 6,0 м) и его небольшая масса позволяют свободно размещать его в небольших по площади котлованах.
1 - рама для опирания балки под буровое оборудование;
2 - подъемник для размещения бурового оборудования;
3 - буровое оборудование; 4 - упорная плита; 5 - рельсы
для перемещения подъемного оборудования;
6 - бетонное основание
Рисунок Л.1 - Схема перемещения МТПК по периметру
возводимого защитного экрана с использованием
вспомогательного оборудования
Л.3 Подъемник размещается в стартовом шахтном стволе (котловане) на металлических направляющих (рельсах) для горизонтального перемещения домкратной станции. В лобовой части забоя монтируется рама, на которую опираются балки бурового оборудования.
Л.4 Горизонтальный ряд труб задавливается с одного заданного положения подъемника с шагом перемещения в плане, равным размеру между осями труб экрана. В заданном положении подъемник фиксируется захватами.
Л.5 При бурении вертикальных рядов труб экрана площадка подъемника и балки, опирающиеся на раму, перемещаются по высоте при помощи гидравлических домкратов.
Л.6 Для устройства защитного экрана в теле насыпи с поверхности земли (для проходки выработки в насыпи) может использоваться вспомогательное оборудование, приведенное на рисунке Л.2.
1 - опорная передвижная металлоконструкция; 2 - домкратная
установка; 3 - стартовая площадка переменной длины;
4 - опорные балки для перемещения металлоконструкций;
5 - буронабивные сваи; 6 - приемная площадка
Рисунок Л.2 - Схема размещения вспомогательного и бурового
оборудования при устройстве защитного экрана в теле насыпи
Л.7 Со стартовой стороны с поверхности земли, примыкающей к насыпи, выполняется устройство буронабивных свай (конструкция определяется проектом), к которым крепятся опорные балки. По балкам передвигается опорная металлоконструкция, на определенной высоте которой закрепляется домкратная установка и стартовая площадка переменной длины.
Л.8 Вертикальное перемещение домкратной установки и стартовой площадки при бурении очередной трубы производится на величину "А". Для закрепления домкратной установки и стартовой площадки в металлоконструкции с шагом "А" размещены закладные детали.
Для продавливания нижних труб вертикальной стены экрана металлоконструкция из позиции "А" может быть переставлена на позицию "Б".
На противоположной стороне насыпи устраивается приемная площадка (котлован).
(рекомендуемое)
МЕТОДИКА ГЕОДЕЗИЧЕСКО-МАРКШЕЙДЕРСКИХ РАБОТ
М.1 Геодезическо-маркшейдерские работы по привязке координат труб экрана в стартовом котловане рекомендуется выполнять в два этапа.
- установить на стенке стартового котлована кронштейн для монтажа лазера;
- подвести лазер к нижней передвижной каретке кронштейна и направить лазерный луч приблизительно по проектной оси, определенной, например, по створу отвесов;
- установить теодолит на треноге и отцентрировать его над фиксированной точкой М (маркой), находящейся в створе проектной оси, установить рейку и визировать штатив на точке цели;
- установить на задней стенке котлована мишень;
- навести трубу теодолита на мишень и совместить мишень по горизонтали с проектной осью и зафиксировать ее; с помощью теодолита перенести проектную ось в котлован и направить лазер (луч лазера) по проектной оси.
1 - лазер; 2 - кронштейн для лазера; 3 - кронштейн
для теодолита и мишени; 4 - мишень; 5 - теодолит; 6 - центр
установки теодолита или марка (точка М);
7 - рейка; 8 - экран из труб
Рисунок М.1 - Схема маркшейдерской привязки
М.3 На II этапе следует:
- поменять местами мишень и теодолит и визировать на рейку (конечную цель) так, чтобы ось теодолита соответствовала направлению лазерного луча;
- перенести в котлован с помощью теодолита проектную ось;
- направить лазерный луч по проектной оси с помощью передвижной каретки кронштейна;
- вторично проверить соответствие оси теодолита направлению лазерного луча и откорректировать расхождения с результатами измерений с повторением операций по
М.2.
(рекомендуемое)
ТРЕБОВАНИЯ К БЕНТОНИТОВЫМ РАСТВОРАМ,
ПРИГОТОВЛЕНИЕ, КОНТРОЛЬ КАЧЕСТВА
Н.1 Для эффективного применения микротоннелирования следует использовать высококачественные низкоконцентрированные бентонитовые растворы с определенными технологическими характеристиками (определяются расчетом в зависимости от инженерно-геологических условий трассы и опыта проходки в аналогичных грунтах) на основе бентонитовых глинопорошков, активизированных полимерами.
Бентонитовые глинопорошки являются продуктом переработки природных бентонитовых глин путем их активации с последующей сушкой и помолом.
Основным минералом бентонитовых глин является монтмориллонит (не менее 70%), который определяет характерные свойства бентонитового раствора (пластичность, набухаемость, гидрофильность и способность к диспергации).
Н.2 Для приготовления раствора (выход раствора не менее 25 м
3/кг) следует применять глинопорошки, отвечающие требованиям, например, ТУ 5751-001-41219638-2010
[14] или ТУ 39-0147001-105-93
[21].
Н.3 Бентонитовый раствор для обеспечения устойчивости выработки, снижения сил трения между трубой и грунтом и для транспортировки разработанного грунта из забоя должен иметь определенные технологические характеристики (см.
таблицу Н.1).
Таблица Н.1
Требования к параметрам бентонитовых растворов
Характеристики бентонитовых суспензий | Наименование прибора |
Наименование показателя | Ед. измерения | Значение показателя |
Плотность суспензии | г/см3 | 1,015 - 1,025 | Весы рычажные-плотномер |
Условная вязкость, не более | с | 30 45 | Вискозиметр ВБР-1, воронка Марша |
Предел текучести (статическое напряжение сдвига), не менее | Н/м2 (Па) | 10,0 | Прибор Кюгеля |
Водоотдача (фильтрат), не более | см3 | 17 22 | ВМ-6, фильтр-пресс |
Толщина глинистой корки, не более | мм | 4 |
Пластическая вязкость, не более | мПа·с | 10 | Вискозиметр фирмы |
Точка текучести (точка Йелда), не менее | Па | 7 |
Содержание песка, не более | % по объему | 2 | Прибор для определения содержания песка |
Водородный показатель | pH | 8,5 - 10,0 | Индикаторная бумага, pH-метр |
Требования к бентонитовым растворам корректируются в зависимости от инженерно-геологических условий на стадии проектирования объекта.
Н.4 Для приготовления и регенерации бентонитового раствора используется комплекс технологического оборудования, включающий смеситель и сепарационную установку, обеспечивающую грубую и тонкую очистку бентонитовой пульпы от грунта.
Приготовление и регенерация бентонитовых растворов состоит из следующих операций:
- приготовление исходного раствора (повышенной концентрации) в смесителе;
- приготовление рабочего раствора с заданными реологическими характеристиками и плотностью путем добавления воды в исходный раствор и подачу рабочего раствора в призабойную зону;
- транспортировку глиногрунтовой пульпы (смеси бентонитового раствора и разработанного грунта) от забоя до сепарационной установки;
- очистку бентонитового раствора от грунта на сепарационной установке;
- восстановление (регенерация) очищенного раствора после сепарации до рабочего состояния путем добавления исходного раствора и воды.
Примечание - В зависимости от технологии микротоннелирования из технологического процесса могут быть исключены операции по приготовлению исходного раствора и очистке глиногрунтовой пульпы.
Н.5 При производстве работ глиногрунтовая пульпа (при отсутствии сепарации) или грунтовая масса (после сепарации) утилизируется предусмотренным в проекте способом.
Н.6 Состав бентонитового раствора подбирается в лаборатории для каждого конкретного объекта и корректируется при изменении инженерно-геологических условий строительства.
Контроль характеристик бентонитового раствора выполняется на всех этапах строительства. При контроле в лаборатории (полный объем исследований) определяются характеристики раствора, приведенные в
таблице Н.1.
Испытания бентонитовых растворов следует проводить в соответствии с методиками, представленными, например, в ТУ 5751-001-41219638-2010 (раздел 4)
[14].
Частота отбора проб раствора (исходного, рабочего, очищенного) для проведения контроля параметров определяется производителем работ.
(обязательное)
ФОРМА КАРТЫ КОНТРОЛЯ СОБЛЮДЕНИЯ ТРЕБОВАНИЙ
СТО НОСТРОЙ 2.27.124-2013 "ОСВОЕНИЕ ПОДЗЕМНОГО
ПРОСТРАНСТВА. МИКРОТОННЕЛИРОВАНИЕ. ПРАВИЛА
И КОНТРОЛЬ ВЫПОЛНЕНИЯ. ТРЕБОВАНИЯ К РЕЗУЛЬТАТАМ РАБОТ"
Наименование члена СРО, в отношении которого назначена проверка:
___________________________________________________________________________
ОГРН: _____________ ИНН ______________ Номер свидетельства о допуске: _____
Сведения об объекте:
___________________________________________________________________________
Основание для проведения проверки:
N ________________ от _______________
Тип проверки (нужное подчеркнуть):
Выездная
Документарная
N п/п | Элементы контроля | Подлежит проверке | Требования, предъявляемые при проведении работ | Способ проверки соответствия | Результат | Приложения, примечания |
Норма | Соответствие ("+", "-") |
Этап 1. Организация строительного производства |
1.1 | СТО НОСТРОЙ 2.27.124-2013 | + | Наличие оригинального документа | Документарный | | | |
1.2 | Рабочая документация | + | Наличие документации, утвержденной в установленном порядке, в том числе ППР и Инструкции по эксплуатации МТПК в соответствии с пунктами 6.5, 6.7 и 10.4 | Документарный | Соответствие требованиям Постановления правительства РФ от 16 февраля 2008 г. N 87 и Приказа Министерства регионального развития РФ от 01 апреля 2008 г. N 36, СП 48.13330.2011 ( пункты 5.7.2, 7.1.1), а также раздела 6 настоящего стандарта | | |
1.3 | Исполнительная документация | + | Наличие общего и специальных журналов работ. Правильность и своевременность заполнения журналов и иных документов, оформляемых в процессе выполнения и сдачи работ на объекте, в том числе актов на скрытые работы и освидетельствования ответственных конструкций по пункту 11.1.3 | Документарный | | | |
1.4 | Строительная площадка | + | Подготовка строительной площадки для проведения работ по микротоннелированию в соответствии с проектом и пунктами 10.3, 11.2.2 | Документарный, визуальный | Наличие акта приемки геодезической разбивки трассы, габаритов стартового и приемного шахтных стволов (котлованов), осей трубопровода или экрана по СП 126.13330.2012 (приложение Д) | | |
Этап 2. Входной контроль строительных материалов, изделий и оборудования |
2.1 | Поставленные материалы, изделия и оборудование | + | В соответствии со сводной ведомостью проектной и технической документации по пункту 12.1.5 | Документарный | Наличие журнала по ГОСТ 24297-87 (приложение 1) с обязательным указанием: - типа/марки продукции; - номера партии, даты изготовления и номера сопроводительного документа; - количества продукции | | |
2.2 | Хранение материалов изделий | + | Порядок складирования и хранения оборудования, конструкций, материалов и изделий в соответствии с ГОСТ 13015 и СП 49.13330, ТУ 5751-001-41219638-2010 (раздел 3) [14] | Визуальный | | | |
2.3 | Проверка технологического оборудования и материалов | | | Документарный | Наличие актов испытания и опробования технических устройств и механизмов по СП 48.13330.2011 (пункт 7.1) | | |
Этап 3. Производство работ. Сооружение шахтного ствола или котлована |
3.1 | Устройство крепления ствола или ограждения котлована | + | | Документарный | Наличие актов на скрытые работы и освидетельствование ответственных конструкций по сооружению шахтного ствола или котлована в соответствии с требованиями СП 48.13330.2011 (пункт 7.2.2) и требованиями пункта 11.3.10 | | |
3.2 | Бетонирование основания ствола или котлована | + | | Документарный, визуальный | Наличие акта на устройство основания с указанием марки бетона по прочности в соответствии с пунктом 11.1.2 | | |
3.3 | Маркшейдерская разбивка осей трубопроводов на стене шахтного ствола или котлована | + | | Документарный | | | |
Этап 4. Монтаж технологического оборудования |
4.1 | Монтаж и проверка функционирования комплекса технологического оборудования | + | | Документарный | Наличие исполнительной документации по Инструкции на эксплуатацию МТПК в соответствии с пунктом 11.4.5.2 | | |
Этап 5. Производство работ. Прокладка инженерных коммуникаций и устройство экрана из труб |
Этап 5.1 Прокладка инженерных коммуникаций |
5.1.1 | Посекционное продавливание трубопровода | | | Документарный | | | |
5.1.2 | Устройство стыков труб | + | | Документарный | Наличие актов освидетельствования скрытых работ и записей в журналах работ по пунктам 11.1.2, 11.1.3 | | |
5.1.3 | Прокладка трубопровода на проектную длину | + | | Документарный | | | |
Этап 5.2 Устройство экрана из труб |
5.2.1 | Посекционное продавливание труб | + | | | Наличие актов освидетельствования скрытых работ в соответствии с пунктом 11.1.2 | | |
5.2.2 | Сварка стыков труб | + | | | Наличие актов освидетельствования скрытых работ в соответствии с пунктом 11.1.2 | | |
5.2.3 | Заполнение труб экрана бетоном или железобетоном | + | | | То же | | |
5.2.4 | Устройство экрана из труб | + | | | | | |
5.3 Геодезические и геотехнические работы |
| | ИС МЕГАНОРМ: примечание. В официальном тексте документа, видимо, допущена опечатка: приложение Д в РД 07-226-98 отсутствует. | |
|
5.3.1 | Геодезическо-маркшейдерский контроль | + | | | | | |
5.3.2 | Геотехнический мониторинг | + | | | Наличие исполнительной документации | | |
Этап 6. Оценка соответствия выполненных работ
6.1 | Оценка соответствия выполненных работ | + | Соответствие конструкции инженерного коллектора или экрана из труб проекту по подразделу 12.3, в том числе: - в плане и профиле по исполнительной геодезическо-маркшейдерской документации, оформленной согласно РД 07-226-98 (раздел 13) [13]; - конструкции трубопровода или защитного экрана из труб проекту | Документарный | Наличие Акта оценки соответствия выполненных работ, оформленного в соответствии с требованиями СП 48.13330.2011 (пункт 7.3) | | |
Заключение (нужное подчеркнуть):
1. Требования СТО НОСТРОЙ 2.27.124-2013 соблюдены в полном объеме.
2. Требования СТО НОСТРОЙ 2.27.124-2013 соблюдены не в полном объеме.
Рекомендации по устранению выявленных несоответствий:
___________________________________________________________________________
___________________________________________________________________________
Приложения: ________________ на ____ л.
Настоящая карта составлена в двух экземплярах, по одному экземпляру для
каждой стороны.
Подписи лиц, проводивших проверку:
Эксперт ___________________ ________________
(Ф.И.О.) (подпись)
___________________ ________________
(Ф.И.О.) (подпись)
Представитель проверяемой организации - члена СРО,
принимавшего участие в проверке
__________________ ________________
(Ф.И.О.) (подпись)
| Свод правил СП 11-104-97 | Инженерно-геодезические изыскания для строительства |
| Федеральный закон от 10 января 2002 г. N 7-ФЗ "Об охране окружающей среды" |
| Московские городские строительные нормы МГСН 6.01-03 (ТСН 40-303-2003) | Бестраншейная прокладка коммуникаций с применением микротоннелепроходческих комплексов и реконструкция трубопроводов с применением специального оборудования |
| Ведомственные строительные нормы ОАО "Корпорация "Трансстрой" | Рекомендации по проектированию и устройству опережающих экранов из труб с применением МТПК при строительстве тоннелей |
| Санитарные нормы | Указания по производству и приемке работ по строительству в городах и на промышленных предприятиях коллекторных тоннелей, сооружаемых способом щитовой проходки |
| Ведомственный документ. Справочник РОБТ. Бестраншейные технологии в России |
| | Инструкция по инженерным изысканиям в горных выработках, предназначенных для размещения объектов народного хозяйства |
| | Инженерно-геологические изыскания для строительства. Часть I. Общие правила производства работ |
| Постановление правительства РФ N 87 от 16 февраля 2008 г. "Положения о составе разделов проектной документации и требования к их содержанию" |
| | Безопасность труда в строительстве. Решения по охране труда и промышленной безопасности в проектах организации строительства и проектах организации работ |
| Руководящий документ | Требования к составу и порядку ведения исполнительной документации при строительстве, реконструкции, капитальном ремонте объектов капитального строительства и требования, предъявляемые к актам освидетельствования работ конструкций, участков сетей инженерно-технического обеспечения |
| Руководящий документ | Порядок ведения общего и (или) специального журнала учета выполнения работ при строительстве, реконструкции, капитальном ремонте объектов капитального строительства |
| Руководящий документ | Инструкция по производству геодезическо-маркшейдерских работ при строительстве коммунальных тоннелей и инженерных коммуникаций подземным способом |
| Технические условия ТУ 5751-001-41219638-2010 | Глинопорошки для пригруза забоя при щитовой проходке тоннелей и других строительных работ |
| Федеральный закон от 30 декабря 2009 г. N 384-ФЗ "Технический регламент о безопасности зданий и сооружений" |
| | Санитарно-эпидемиологические требования к качеству почвы |
| | ИС МЕГАНОРМ: примечание. В официальном тексте документа, видимо, допущена опечатка: Федеральный закон "Технический регламент о требованиях пожарной безопасности" принят 22.07.2008, а не 22.06.2008. | |
|
| Федеральный закон от 22 июня 2008 г. N 123-ФЗ "Технический регламент о требованиях пожарной безопасности" |
| | ИС МЕГАНОРМ: примечание. В официальном тексте документа, видимо, допущена опечатка: Правила безопасности ПБ 03-428-02 утверждены Постановлением Госгортехнадзора РФ N 49 от 02.11.2001, а не от 09.11.2001. | |
|
| Правила безопасности | Правила безопасности при строительстве подземных сооружений (утв. Госгортехнадзором РФ 09 ноября 2001 г., N 49) |
| | ИС МЕГАНОРМ: примечание. В официальном тексте документа, видимо, допущена опечатка: имеются в виду ПУЭ, а не ПЭУ. | |
|
| ПЭУ | Правила устройства электроустановок |
| Справочник проектировщика промышленных, жилых и общественных зданий и сооружений. Расчетно-теоретический. Под редакцией А.А. Уманского, М. Стройиздат, 1973 |
| Технические условия ТУ 39-0147001-105-93 | Глинопорошки для буровых растворов |
Вид работ 27.1 по приказу Минрегиона России от 30 декабря 2009 г. N 624. Ключевые слова: микротоннелирование, технологическое оборудование, прокладка трубопроводов, устройство защитного экрана из труб, контроль выполнения работ |