Главная // Актуальные документы // ГОСТ (Государственный стандарт)
СПРАВКА
Источник публикации
М.: Стандартинформ, 2019
Примечание к документу
Документ введен в действие с 01.06.2020.

Взамен ГОСТ 8824-84.
Название документа
"ГОСТ 8824-2018. Межгосударственный стандарт. Лифты грузовые малые. Основные параметры и размеры"
(введен в действие Приказом Росстандарта от 16.10.2019 N 1012-ст)

"ГОСТ 8824-2018. Межгосударственный стандарт. Лифты грузовые малые. Основные параметры и размеры"
(введен в действие Приказом Росстандарта от 16.10.2019 N 1012-ст)


Содержание


Введен в действие
Приказом Федерального
агентства по техническому
регулированию и метрологии
от 16 октября 2019 г. N 1012-ст
МЕЖГОСУДАРСТВЕННЫЙ СТАНДАРТ
ЛИФТЫ ГРУЗОВЫЕ МАЛЫЕ
ОСНОВНЫЕ ПАРАМЕТРЫ И РАЗМЕРЫ
Small cargo lifts. Basic parameters and dimensions
(ISO 4190-3:1982, NEQ)
ГОСТ 8824-2018
МКС 91.140.90
Дата введения
1 июня 2020 года
Предисловие
Цели, основные принципы и общие правила проведения работ по межгосударственной стандартизации установлены ГОСТ 1.0 "Межгосударственная система стандартизации. Основные положения" и ГОСТ 1.2 "Межгосударственная система стандартизации. Стандарты межгосударственные, правила и рекомендации по межгосударственной стандартизации. Правила разработки, принятия, обновления и отмены"
Сведения о стандарте
1 РАЗРАБОТАН Ассоциацией "Российское лифтовое объединение" (Ассоциация "РЛО"), Открытым акционерным обществом "Щербинский лифтостроительный завод" (ОАО "ЩЛЗ")
2 ВНЕСЕН Федеральным агентством по техническому регулированию и метрологии
3 ПРИНЯТ Межгосударственным советом по стандартизации, метрологии и сертификации (протокол от 29 ноября 2018 г. N 54)
За принятие проголосовали:
Краткое наименование страны по МК (ИСО 3166) 004-97
Код страны по МК (ИСО 3166) 004-97
Сокращенное наименование национального органа по стандартизации
Армения
AM
Минэкономики Республики Армения
Беларусь
BY
Госстандарт Республики Беларусь
Киргизия
KG
Кыргызстандарт
Россия
RU
Росстандарт
Таджикистан
TJ
Таджикстандарт
4 Приказом Федерального агентства по техническому регулированию и метрологии от 16 октября 2019 г. N 1012-ст межгосударственный стандарт ГОСТ 8824-2018 введен в действие в качестве национального стандарта Российской Федерации с 1 июня 2020 г.
5 Настоящий стандарт разработан с учетом основных нормативных положений международного стандарта ISO 4190-3:1982 "Пассажирские лифтовые установки. Часть 3. Лифты грузовые малые класса V" ("Passenger lift installations - Part 3: Service lifts class V", NEQ)
6 ВЗАМЕН ГОСТ 8824-84
Информация о введении в действие (прекращении действия) настоящего стандарта и изменений к нему на территории указанных выше государств публикуется в указателях национальных стандартов, издаваемых в этих государствах, а также в сети Интернет на сайтах соответствующих национальных органов по стандартизации.
В случае пересмотра, изменения или отмены настоящего стандарта соответствующая информация будет опубликована на официальном интернет-сайте Межгосударственного совета по стандартизации, метрологии и сертификации в каталоге "Межгосударственные стандарты"
1 Область применения
1.1 Настоящий стандарт распространяется на малые грузовые лифты для зданий (сооружений) различного назначения.
1.2 Малые грузовые лифты, включенные в настоящий стандарт, предназначены для установки в новые здания (сооружения).
1.3 Настоящий стандарт может быть использован в качестве нормативной базы при установке новых малых грузовых лифтов в существующие здания (сооружения).
1.4 Основные параметры и размеры малых грузовых лифтов могут отличаться от включенных в настоящий стандарт при условии соблюдения требований безопасности, установленных в техническом регламенте [1].
2 Нормативные ссылки
В настоящем стандарте использованы нормативные ссылки на следующие межгосударственные стандарты:
ГОСТ 8032-84 Предпочтительные числа и ряды предпочтительных чисел
ГОСТ 33605-2015 Лифты. Термины и определения
Примечание - При пользовании настоящим стандартом целесообразно проверить действие ссылочных стандартов и классификаторов на официальном интернет-сайте Межгосударственного совета по стандартизации, метрологии и сертификации (www.easc.by) или по указателям национальных стандартов, издаваемым в государствах, указанных в предисловии, или на официальных сайтах соответствующих национальных органов по стандартизации. Если на документ дана недатированная ссылка, то следует использовать документ, действующий на текущий момент, с учетом всех внесенных в него изменений. Если заменен ссылочный документ, на который дана датированная ссылка, то следует использовать указанную версию этого документа. Если после принятия настоящего стандарта в ссылочный документ, на который дана датированная ссылка, внесено изменение, затрагивающее положение, на которое дана ссылка, то это положение применяется без учета данного изменения. Если ссылочный документ отменен без замены, то положение, в котором дана ссылка на него, применяется в части, не затрагивающей эту ссылку.
3 Термины и определения
В настоящем стандарте применены термины по техническому регламенту [1], ГОСТ 33605, а также следующие термины с соответствующими определениями:
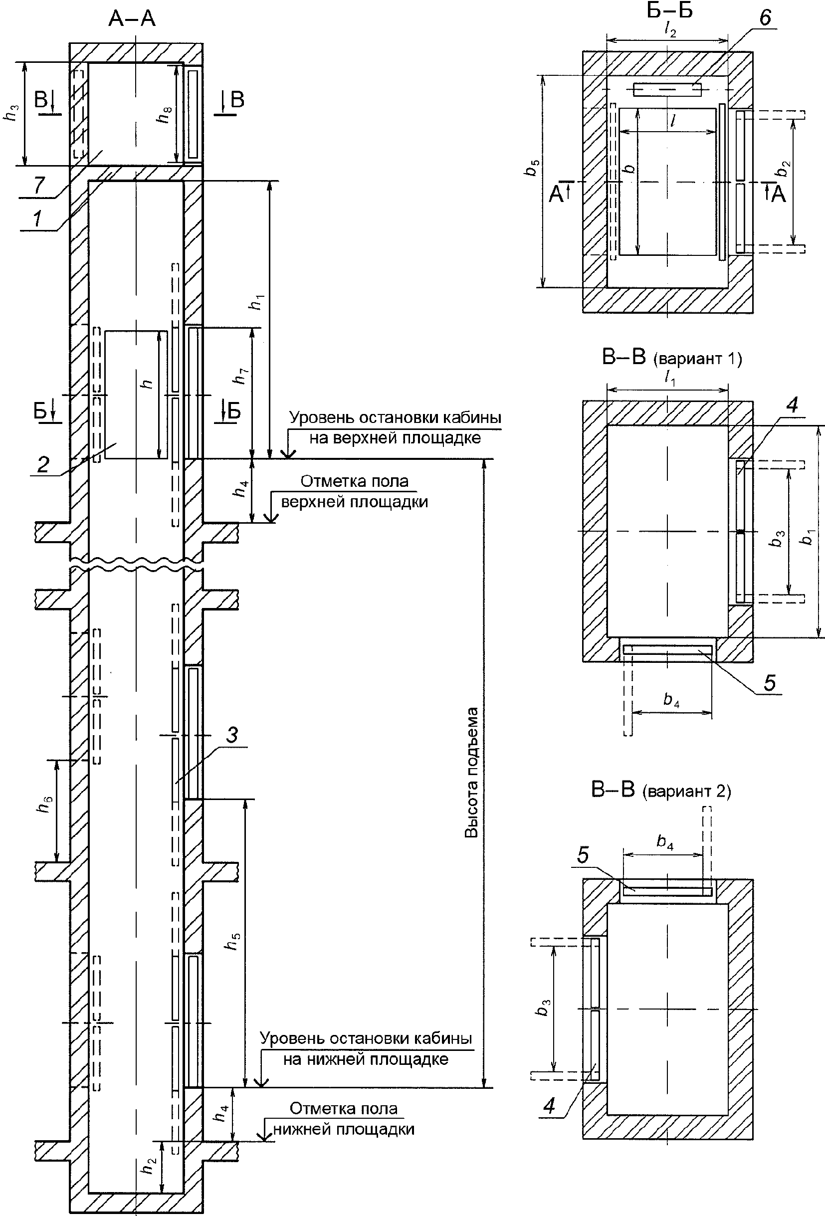
3.1 внутренние размеры кабины, шахты, машинного помещения: (см. рисунок 1):
3.1.1 высота двери машинного помещения h8: Высота проема в свету, измеренная при полностью открытой двери машинного помещения.
1 - перекрытие шахты; 2 - кабина; 3 - дверь шахты;
4 - фасадная дверь; 5 - боковая дверь; 6 - противовес;
7 - машинное помещение (варианты 1 и 2)
Рисунок 1 - Основные размеры кабины, шахты,
машинного помещения
3.1.2 высота дверного проема h7: Высота проема в свету, измеренная при полностью открытых дверях кабины и шахты.
3.1.3 высота кабины h: Расстояние по вертикали между полом и потолком (силовым или декоративным) кабины.
Примечание - Устройства освещения кабины могут находиться внутри этого размера.
3.1.4 высота машинного помещения h3: Расстояние по вертикали между уровнем пола машинного помещения, на котором размещено оборудование лифта, и потолком машинного помещения.
3.1.5 высота шахты от верхней этажной площадки (высота верхнего этажа) h1: Минимальное расстояние от уровня пола верхней этажной площадки до нижней части элементов перекрытия шахты.
3.1.6 глубина кабины l: Горизонтальное расстояние между внутренними поверхностями передней и задней стен кабины лифта, измеренное перпендикулярно к ширине кабины без учета выступающих поручней.
Примечание - Декоративные или защитные панели следует учитывать, так как они сокращают внутренний объем при размерах, сопоставимых с размерами стен кабины.
3.1.7 глубина машинного помещения l1: Расстояние по горизонтали между внутренними поверхностями стен машинного помещения, измеренное перпендикулярно к ширине машинного помещения.
3.1.8 глубина приямка h2: Минимальное расстояние по вертикали от уровня порога двери шахты крайней нижней этажной площадки до пола шахты.
3.1.9 глубина шахты l2: Расстояние по горизонтали между внутренними поверхностями передней и задней стен шахты, измеренное перпендикулярно к ширине шахты.
3.1.10 ширина боковой двери машинного помещения b4: Ширина проема в свету, измеренная при полностью открытой боковой двери машинного помещения.
3.1.11 ширина дверного проема b2: Ширина входа в лифт в свету, измеренная при полностью открытых дверях кабины и шахты.
3.1.12 ширина кабины b: Расстояние по горизонтали между внутренними поверхностями стен кабины, измеренное параллельно передней стенке входа в кабину.
Примечание - При наличии декоративных или защитных панелей, поручней они входят в этот размер.
3.1.13 ширина машинного помещения b1: Расстояние по горизонтали между внутренними поверхностями стен машинного помещения, измеренное параллельно ширине кабины.
3.1.14 ширина шахты b5: Расстояние по горизонтали между внутренними поверхностями боковых стен шахты, измеренное параллельно ширине кабины.
3.1.15 ширина фасадной двери машинного помещения b3: Ширина проема в свету, измеренная при полностью открытой фасадной двери машинного помещения.
3.2 малый грузовой лифт: Лифт, предназначенный только для подъема и спуска грузов, у которого размеры кабины и дверей шахты предотвращают свободный доступ в нее человека.
4 Основные параметры лифтов
4.1 Ряд номинальных грузоподъемностей
Значения номинальных грузоподъемностей (кг) выбирают из ряда чисел, близких к ряду предпочтительных чисел R10 по ГОСТ 8032: 40; 100; 250.
Значения номинальных грузоподъемностей являются рекомендуемыми.
Допускается использовать другие значения грузоподъемности, соответствующие требованиям рынка.
4.2 Ряд номинальных скоростей
Значения номинальных скоростей (м/с) выбирают из ряда чисел, близких к ряду предпочтительных чисел R5 по ГОСТ 8032: 0,25; 0,3; 0,4; 0,5.
Значения номинальных скоростей являются рекомендуемыми.
Допускается использовать другие значения скорости, соответствующие требованиям рынка.
5 Основные размеры
5.1 Внутренние размеры кабины малого грузового лифта
Полезная площадь пола кабины малого грузового лифта должна быть не более 1 м2, при этом наибольший линейный размер пола должен быть не более 1500 мм.
Высота кабины малого грузового лифта должна быть не более 1250 мм.
Если кабина малого грузового лифта разделена по высоте несъемными перегородками на несколько секций, то высота отдельной секции должна быть не более 1250 мм.
Размеры кабины малых грузовых лифтов приведены в таблице 1.
Таблица 1
Размеры кабины и шахты малого грузового лифта
Наименование основных частей лифта
Размеры, мм
Грузоподъемность лифта, кг
40
100
250
Кабина (внутренние размеры)
Ширина b
600
900
900
800
1000
Глубина l
600
650
1000
800
Высота h
800
1000
1000
800
1200
Шахта <*>
Ширина b1
900
1300
1350
1100
1500
Глубина l2
800
750
1100
1000
1200
Расстояние от уровня верхней остановки кабины до перекрытия шахты h1, не менее
1500
1500
Глубина приямка h2
750
Двери шахты (размеры проема)
Ширина b2
600
900
1000
Высота h7
800
900
1000
-
Расстояние от пола погрузочной площадки до уровня остановки кабины h4
От 0 до 750
Разность в уровнях остановки кабины
на одной стороне шахты h5, не менее
2200
2200
на противоположных сторонах шахты (при сквозной кабине) h6
0 или не менее 300
Машинное помещение
Высота машинного помещения h3, не менее
800
Двери машинного помещения (размеры проема)
Ширина, не менее
фасадной b3
900
900
боковой b4
550
550
Высота h8, не менее
700
<*> Малые грузовые лифты допускается по согласованию (по требованию) заказчика изготовлять в металлокаркасной шахте с габаритами шахты, отличающимися от приведенных в настоящей таблице.
5.2 Размеры дверного проема малых грузовых лифтов
Высота проема двери шахты малого грузового лифта должна быть не более высоты кабины.
Ширина в свету проема дверей шахты малого грузового лифта не должна превышать ширину в свету проема дверей кабины более чем на 50 мм с каждой стороны.
Размеры дверного проема малых грузовых лифтов приведены в таблице 1.
5.3 Внутренние размеры шахты малых грузовых лифтов
5.3.1 Внутренние размеры шахты должны обеспечивать размещение и безопасную работу лифтового оборудования, а также безопасность персонала при техническом обслуживании, ремонте и оценке соответствия лифта, предусмотренным техническим регламентом [1].
5.3.2 Высота шахты от верхней посадочной площадки должна обеспечивать выполнение требований безопасности.
5.3.3 Глубина приямка шахты малого грузового лифта должна обеспечивать выполнение требований безопасности.
5.4 Размеры машинного помещения малого грузового лифта
5.4.1 Размеры машинного помещения малого грузового лифта должны обеспечивать размещение и безопасную работу лифтового оборудования, а также безопасность персонала при техническом обслуживании, ремонте и оценке соответствия, предусмотренных техническим регламентом [1].
5.4.2 Высота машинного помещения малого грузового лифта должна быть не менее 800 мм.
5.4.3 В машинном помещении малого грузового лифта должны быть двери.
БИБЛИОГРАФИЯ
[1]
Технический регламент Таможенного союза
Безопасность лифтов
УДК 692.66:006.354
МКС 91.140.90
NEQ
Ключевые слова: малые грузовые лифты, основные параметры и размеры