Главная // Актуальные документы // ГОСТ (Государственный стандарт)СПРАВКА
Источник публикации
М.: ФГБУ "РСТ", 2021
Примечание к документу
Текст данного документа приведен с учетом
поправки, опубликованной в "ИУС", N 9, 2023.
Документ
введен в действие с 01.01.2022.
Название документа
"ГОСТ 34756-2021. Межгосударственный стандарт. Лифты. Основные параметры и размеры. Часть 1. Лифты для транспортирования людей или людей и грузов"
(введен в действие Приказом Росстандарта от 24.08.2021 N 797-ст)
"ГОСТ 34756-2021. Межгосударственный стандарт. Лифты. Основные параметры и размеры. Часть 1. Лифты для транспортирования людей или людей и грузов"
(введен в действие Приказом Росстандарта от 24.08.2021 N 797-ст)
агентства по техническому
регулированию и метрологии
от 24 августа 2021 г. N 797-ст
МЕЖГОСУДАРСТВЕННЫЙ СТАНДАРТ
ЛИФТЫ
ОСНОВНЫЕ ПАРАМЕТРЫ И РАЗМЕРЫ
ЧАСТЬ 1
ЛИФТЫ ДЛЯ ТРАНСПОРТИРОВАНИЯ ЛЮДЕЙ ИЛИ ЛЮДЕЙ И ГРУЗОВ
Lifts. Main parameters and dimensions. Part 1.
Lifts for the transport of persons or persons and good
(ISO 8100-30:2019, NEQ)
ГОСТ 34756-2021
Дата введения
1 января 2022 года
Цели, основные принципы и общие правила проведения работ по межгосударственной стандартизации установлены
ГОСТ 1.0 "Межгосударственная система стандартизации. Основные положения" и
ГОСТ 1.2 "Межгосударственная система стандартизации. Стандарты межгосударственные, правила и рекомендации по межгосударственной стандартизации. Правила разработки, принятия, обновления и отмены"
1 РАЗРАБОТАН Ассоциацией "Российское лифтовое объединение" (Ассоциация "РЛО"), Открытым акционерным обществом "Щербинский лифтостроительный завод" (ОАО "ЩЛЗ"), Федеральным государственным бюджетным учреждением "Российский институт стандартизации" (ФГБУ "РСТ")
2 ВНЕСЕН Федеральным агентством по техническому регулированию и метрологии
3 ПРИНЯТ Межгосударственным советом по стандартизации, метрологии и сертификации (протокол от 14 июля 2021 г. N 59)
За принятие проголосовали:
Краткое наименование страны по МК (ИСО 3166) 004-97 | Код страны по МК (ИСО 3166) 004-97 | Сокращенное наименование национального органа по стандартизации |
Азербайджан | AZ | Азстандарт |
Армения | AM | ЗАО "Национальный орган по стандартизации и метрологии Республики Армения |
Беларусь | BY | Госстандарт Республики Беларусь |
Казахстан | KZ | Госстандарт Республики Казахстан |
Киргизия | KG | Кыргызстандарт |
Россия | RU | Росстандарт |
Узбекистан | UZ | Узстандарт |
4
Приказом Федерального агентства по техническому регулированию и метрологии от 24 августа 2021 г. N 797-ст межгосударственный стандарт ГОСТ 34756-2021 введен в действие в качестве национального стандарта Российской Федерации с 1 января 2022 г.
5 Настоящий стандарт разработан с учетом основных нормативных положений международного стандарта ISO 8100-30:2019 "Лифты для транспортирования людей и грузов. Часть 30. Установка лифтов классов I, II, III и VI" ("Lifts for the transport of persons and goods - Part 30: Class I, II, III and VI lifts installation", NEQ)
6 ВВЕДЕН ВПЕРВЫЕ
Информация о введении в действие (прекращении действия) настоящего стандарта и изменений к нему на территории указанных выше государств публикуется в указателях национальных стандартов, издаваемых в этих государствах, а также в сети Интернет на сайтах соответствующих национальных органов по стандартизации.
В случае пересмотра, изменения или отмены настоящего стандарта соответствующая информация будет опубликована на официальном интернет-сайте Межгосударственного совета по стандартизации, метрологии и сертификации в каталоге "Межгосударственные стандарты"
В настоящем стандарте учтены современные требования к лифтам, в том числе:
- обеспечение доступности для инвалидов и свободного перемещения пассажиров, в том числе лиц с ограниченными физическими возможностями;
- использование носилок, кроватей и вспомогательного медицинского оборудования в лечебно-профилактических учреждениях;
- использование лифтов с номинальной скоростью от 2,5 до 6,0 м/с в зданиях с интенсивными пассажиропотоками;
- применение лифтов без машинных помещений;
- оптимальное использование пространства здания за счет сокращения размеров шахт лифтов.
1.1 Настоящий стандарт распространяется на основные параметры и размеры новых лифтов для транспортирования людей или людей и грузов в зданиях и сооружениях различного назначения.
1.2 Лифты, включенные в настоящий стандарт, предназначены для установки в новые здания (сооружения).
Настоящий стандарт может быть использован в качестве нормативной базы при установке новых лифтов в существующие здания (сооружения).
1.3 Настоящий стандарт не распространяется на пассажирские лифты со скоростью движения кабины более 6,0 м/с.
1.4 Основные параметры и размеры лифтов могут отличаться от включенных в настоящий стандарт при условии соблюдения требований безопасности, установленных в техническом
регламенте [1].
1.5 Настоящий стандарт содержит основные параметры и размеры лифтов для локальных рынков.
1.6 Основные параметры и размеры лифтов, применяемых на рынках стран - членов ЕврАзЭс, приведены в
приложении А.
В настоящем стандарте использованы нормативные ссылки на следующие межгосударственные стандарты:
ГОСТ 8032 Предпочтительные числа и ряды предпочтительных чисел
ГОСТ 30471 Кресла-коляски. Максимальные габаритные размеры
ГОСТ 33652 (EN 81-70:2018) Лифты. Специальные требования безопасности и доступности для инвалидов и других маломобильных групп населения
ГОСТ 33984.1-2016 (EN 81-20:2014) Лифты. Общие требования безопасности к устройству и установке. Лифты для транспортирования людей или людей и грузов
Примечание - При пользовании настоящим стандартом целесообразно проверить действие ссылочных стандартов и классификаторов на официальном интернет-сайте Межгосударственного совета по стандартизации, метрологии и сертификации (www.easc.by) или по указателям национальных стандартов, издаваемым в государствах, указанных в предисловии, или на официальных сайтах соответствующих национальных органов по стандартизации. Если на документ дана недатированная ссылка, то следует использовать документ, действующий на текущий момент, с учетом всех внесенных в него изменений. Если заменен ссылочный документ, на который дана датированная ссылка, то следует использовать указанную версию этого документа. Если после принятия настоящего стандарта в ссылочный документ, на который дана датированная ссылка, внесено изменение, затрагивающее положение, на которое дана ссылка, то это положение применяется без учета данного изменения. Если ссылочный документ отменен без замены, то положение, в котором дана ссылка на него, применяется в части, не затрагивающей эту ссылку.
В настоящем стандарте применены термины по
ГОСТ 33605,
ГОСТ 33984.1, а также следующие термины с соответствующими определениями:
3.1 Общие сведения
3.1.1 лифт без машинного помещения: Лифт, оборудование машинного помещения которого, например шкафы управления и приводной механизм, подъемный механизм, главные выключатели и защитные устройства, размещены внутри шахты и на этажных площадках.
3.1.2 складчатая дверь кабины (шахты): Дверь кабины (шахты), створка (створки) которой состоит(ят) из двух и более панелей, соединенных между собой шарнирами с возможностью складывания при открывании, а крайние полотна перемещаются вокруг шарнирного крепления к порталу двери.
3.2 Термины, связанные с назначением лифтов
3.2.1 пассажирский лифт: Грузоподъемная машина периодического действия, предназначенная для транспортирования людей в зданиях и сооружениях, перемещающаяся по жестким направляющим, угол наклона которых к вертикали не превышает 15°.
3.2.1.1
пассажирский лифт категории A: Пассажирский лифт, полезная площадь кабины которого не превышает указанную в
таблице 1 для соответствующей номинальной грузоподъемности.
3.2.1.2
пассажирский лифт категории B: Пассажирский лифт, полезная площадь кабины которого превышает указанную в
таблице 1 для соответствующей номинальной грузоподъемности.
3.2.2 пассажирский лифт для лечебно-профилактических зданий (больничный лифт): Пассажирский лифт, размеры и конструкция которого позволяют перевозить пациентов на средствах горизонтального транспортирования (каталках, кроватях и т.п.) и/или медицинское оборудование.
3.2.3 скоростной лифт: Пассажирский лифт, предназначенный для зданий с интенсивным пассажиропотоком.
3.3 Термины, связанные с габаритными размерами, и их обозначения на рисунках
3.3.1
ширина кабины b1: Горизонтальное расстояние между внутренними поверхностями стен кабины лифта, измеренное параллельно передней стенке входа в кабину, без учета выступающих поручней.
Примечание - Декоративные или защитные панели следует учитывать.
3.3.2 глубина кабины d1: Горизонтальное расстояние между внутренними поверхностями передней и задней стен кабины лифта, измеренное перпендикулярно к ширине кабины, без учета выступающих поручней.
Примечание - Декоративные или защитные панели следует учитывать, т.к. они сокращают внутренний объем кабины при размерах, сопоставимых с размерами стен кабины.
3.3.3 высота кабины h4: Расстояние по вертикали между полом и потолком (силовым или декоративным) кабины.
Примечание - Устройства освещения кабины могут находиться внутри этого размера.
3.3.4 ширина дверного проема b2: Ширина входа в лифт в свету, измеренная при полностью открытых дверях кабины шахты.
1 - облицовочные панели; 2 - подвесной потолок; 3 - стена
кабины; b1 - ширина кабины; b2 - ширина дверей кабины
и дверей шахты; d1 - глубина кабины; h3 - высота дверей
кабины и дверей шахты; h4 - высота кабины
Рисунок 1 - Габаритные размеры кабины и дверного проема
3.3.5 высота дверного проема кабины h3: Минимальное расстояние по вертикали между порогом и верхней обвязкой дверного проема кабины при полностью открытой двери кабины.
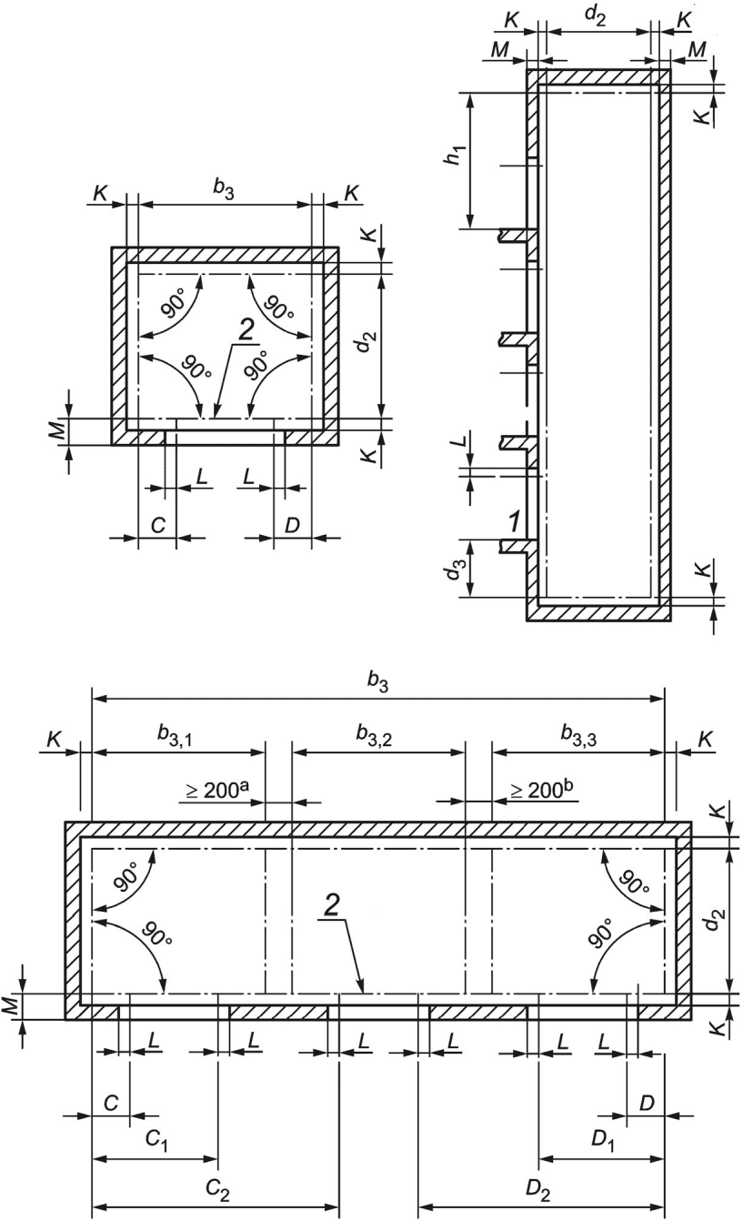
3.3.6 ширина шахты b3: Расстояние по горизонтали между внутренними поверхностями боковых стен шахты, измеренное параллельно ширине кабины.
--------------------------------
<a> При наличии сплошной перегородки установка выполняется в отдельной шахте.
<b> Минимальная ширина отделки шахты (мм).
1 - уровень отделки пола на этажной площадке (FFL);
2 - отсчетная линия подрядчика по монтажу лифта
(относительно самой выступающей точки стены); b3 - ширина
шахты; b3,1, b3,2, b3,3 - минимальные размеры проема дверей
шахты (одиночные лифты); C - расстояние от отсчетной линии
подрядчика до границы с дверным проемом на этажной площадке
(левая сторона); D - расстояние от отсчетной линии
подрядчика до границы с дверным проемом на этажной площадке
(правая сторона); d3 - расстояние от самого нижнего уровня
отделки пола на этажной площадке до отсчетной линии
подрядчика на дне шахты (глубина приямка); h1 - расстояние
от самого верхнего уровня отделки пола на этажной площадке
до отсчетной линии подрядчика в верхней части шахты [высота
шахты от верхней этажной площадки (высота верхнего этажа)];
K - предел точности конструкции шахты; L - разница между
проемом без отделки и с отделкой; M - расстояние между
наружной стеной шахты и отсчетной линией подрядчика
Рисунок 2 - Конструктивные пределы точности
--------------------------------
<a> Подробное описание двери см. на рисунках с
5 по
13 и с
А.2 по
А.6 (приложение А).
<b> В машинном помещении должен быть предусмотрен люк, хотя на настоящем рисунке он не указан.
<d> Самый высокий обслуживаемый лифтом этаж.
<e> Самый низкий обслуживаемый лифтом этаж.
1 - машинное помещение (при наличии); 2 - люк; b3 - ширина
шахты; b4 - ширина машинного помещения (при наличии);
d2 - глубина шахты; d3 - глубина приямка; d4 - глубина
машинного помещения (при наличии); h1 - высота шахты
от верхней этажной площадки (высота верхнего этажа);
h2 - высота машинного помещения (при наличии)
Рисунок 3 - Электрический лифт с машинным помещением
--------------------------------
<a> Самый высокий обслуживаемый лифтом этаж.
<b> Самый низкий обслуживаемый лифтом этаж.
<c> Подробное описание двери см. на рисунках с
5 по
13 и с
А.2 по
А.6 (приложение А).
<d> В машинном помещении должен быть предусмотрен люк, хотя на настоящем рисунке он не указан.
1 - машинное помещение (при наличии); b3 - ширина шахты;
b4 - ширина машинного помещения (при наличии); d2 - глубина
шахты; d3 - глубина приямка; d4 - глубина машинного
помещения (при наличии); h1 - высота шахты от верхней
этажной площадки (высота верхнего этажа); h2 - высота
машинного помещения (при наличии)
Рисунок 4 - Гидравлический лифт
со смежным машинным помещением
3.3.7 глубина шахты d2: Расстояние по горизонтали между внутренними поверхностями передней и задней стен шахты, измеренное перпендикулярно к ширине шахты.
3.3.8 глубина приямка d3: Минимальное расстояние по вертикали от уровня порога двери шахты крайней нижней этажной площадки до пола шахты.
3.3.9 высота шахты от верхней этажной площадки (высота верхнего этажа) h1: Минимальное расстояние от уровня пола верхней этажной площадки до нижней части элементов перекрытия шахты.
3.3.10
ширина машинного помещения b4: Расстояние по горизонтали между внутренними поверхностями стен машинного помещения, измеренное параллельно ширине кабины (см.
3.3.1).
3.3.11 глубина машинного помещения d4: Расстояние по горизонтали между внутренними поверхностями стен машинного помещения, измеренное перпендикулярно к ширине машинного помещения.
3.3.12
высота машинного помещения h2: Расстояние по вертикали между уровнем пола машинного помещения, на котором размещено оборудование лифта, и потолком машинного помещения.
3.4 Термины, связанные с другими характеристиками
3.4.1 номинальная скорость vn: Скорость движения кабины лифта в нормальном режиме работы, на которую рассчитан лифт и его оборудование.
3.4.2 собирательное управление: Вид управления, применяемый на лифтах с одиночной или групповой системами управления, при котором после регистрации одной команды управления могут быть зарегистрированы и последующие, при этом выполнение команды управления происходит в соответствии с заданной программой.
4 Основные параметры лифта
4.1 Ряд предпочтительных чисел
Значения номинальных грузоподъемностей (кг) рекомендуется выбирать из ряда чисел, близких к ряду предпочтительных чисел R10 по
ГОСТ 8032.
Значения номинальных скоростей (м/с) выбирают из ряда чисел, близких к ряду предпочтительных чисел R5 по
ГОСТ 8032.
4.2 Ряд номинальных грузоподъемностей
Значения номинальных грузоподъемностей (кг) выбирают из ряда чисел: 320; 400; 450; 500; 630; 800; 1000; 1275; 1350; 1600; 1800; 2000; 2500.
Значения номинальных грузоподъемностей являются рекомендуемыми. Допускается использовать другие значения грузоподъемности, соответствующие требованиям рынка.
4.3 Ряд номинальных скоростей
Значения номинальных скоростей (м/с) выбирают из ряда чисел, близких к ряду предпочтительных чисел R5 по
ГОСТ 8032: 0,4; 0,5; 0,63; 0,71; 1,0; 1,6; 2,0; 2,5; 3,0; 3,5; 4,0; 5,0; 6,0.
Скорость от 0,5 до 6,0 м/с - для электрических лифтов.
Скорость от 0,4 до 1,0 м/с - для гидравлических лифтов.
Значения номинальных скоростей являются рекомендуемыми. Допускается использовать другие значения скорости, соответствующие требованиям рынка.
4.4 Выбор назначения лифта
Назначение лифта можно подобрать для любого типа здания. На рисунках с
5 по
13 и с
А.2 по
А.6 (приложение А) представлены рекомендации по применению лифтов в зданиях различного назначения. В зданиях могут применяться лифты различного назначения.
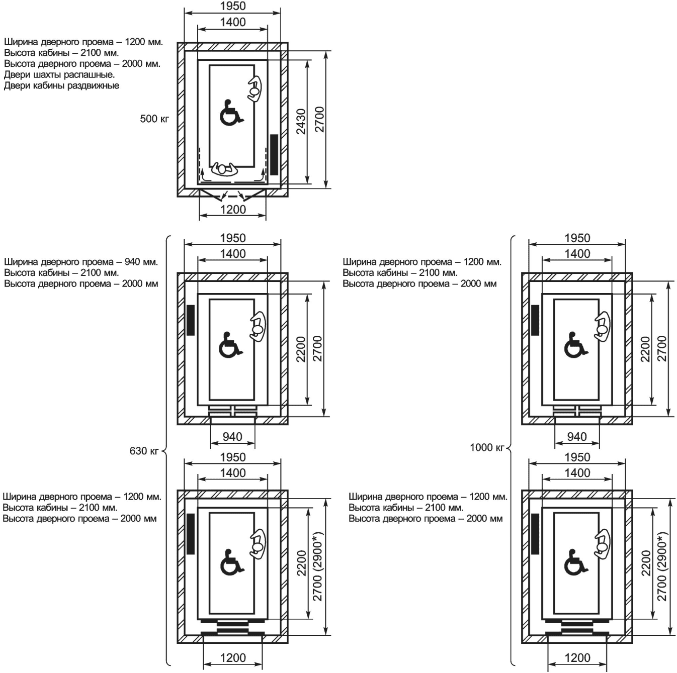
a - ширина дверного проема - 800 мм, высота
кабины - 2200 мм, высота дверного проема - 2100 мм;
b - ширина дверного проема - 900 мм, высота
кабины - 2200 мм, высота дверного проема - 2100 мм;
c - размеры носилок: 600 x 2000 мм; d - ширина дверного
проема - 900 мм (1000 кг) или 1100 мм (1275 кг), высота
кабины - 2200 мм, высота дверного проема - 2100 мм
Примечания
1 Данные лифты могут иметь скорость до 2,5 м/с включительно.
2 В новых зданиях рекомендуется использовать лифты с шириной дверного проема 900 мм (серия B и серия C, 1000 кг) и высотой дверного проема 2100 мм (серия C, 1275 кг).
3 Лифты серий A, B и C отвечают требованиям по доступности для инвалидов и согласно
ГОСТ 33652 обозначены соответствующим символом.
4 Несмотря на то, что на схемах изображены противовесы, размеры относятся ко всем лифтам, независимо от типа их привода и наличия машинного отделения.
5 В новых зданиях не рекомендуется использовать лифты грузоподъемностью 450 кг.
Рисунок 5 - Пассажирские лифты.
Лифты для жилых зданий с боковым противовесом
a - ширина дверного проема - 800 мм; b - ширина
дверного проема - 900 мм; c - ширина дверного
проема - 1100 мм; d - высота кабины 2200 мм, высота
дверного проема - 2100 мм; e - высота кабины - 2300 мм,
высота дверного проема - 2100 мм
Примечания
1 Данные лифты могут иметь скорость до 2,5 м/с включительно (для более высокой скорости необходимо увеличить ширину и глубину шахты на 100 мм).
2 Выбор лифтов серий A, B или C зависит от действующих нормативов или требований рынка.
3 Лифты серий A, B и C отвечают требованиям доступности для инвалидов и согласно
ГОСТ 33652 обозначены соответствующим символом.
4 Лифты грузоподъемностью 1275 и 1350 кг серии C, обозначенные символом

, обеспечивают возможность разворота на инвалидном кресле-каталке.
Рисунок 6 - Пассажирские лифты.
Лифты общего назначения с противовесом сзади
a - ширина дверного проема - 800 мм; b - ширина
дверного проема - 900 мм; c - ширина дверного
проема - 1100 мм; d - высота кабины - 2200 мм,
высота дверного проема - 2100 мм; e - высота кабины
2300 мм, высота дверного проема 2100 мм
Примечания
1 Данные лифты могут иметь скорость до 2,5 м/с включительно (для более высокой скорости необходимо увеличить ширину и глубину шахты на 100 мм).
2 Выбор лифтов серий A, B или C зависит от действующих нормативов или требований рынка.
3 Лифты серий A, B и C отвечают требованиям доступности для инвалидов и согласно
ГОСТ 33652 обозначены соответствующим символом.
4 Лифты грузоподъемностью 1275 и 1350 кг серии C, обозначенные символом

, обеспечивают возможность разворота на инвалидном кресле-каталке.
5 Открывающиеся по центру двери можно использовать там, где их можно разместить в шахте лифта указанных размеров.
Рисунок 7 - Пассажирские лифты.
Лифты общего назначения с боковым противовесом
a - только для лифтов с номинальной грузоподъемностью
1275 кг и номинальной скоростью 2,50 м/с
Высота кабины должна быть 2400 мм.
Высота дверного проема должна быть 2100 мм
Примечания
1 Лифты могут иметь скорость от 2,5 до 6,0 м/с включительно за счет большего размера шахты.
2 Лифты, обозначенные символом

, обеспечивают возможность разворота на инвалидном кресле-каталке.
Рисунок 8 - Скоростные лифты.
Лифты для зданий с интенсивным пассажиропотоком
a - больничная кровать размером 900 x 2000 мм;
b - больничная кровать размером 1000 x 2300 мм;
c - больничная кровать размером 1000 x 2300 мм,
вспомогательное оборудование
Высота кабины должна быть 2300 мм.
Высота дверного проема должна быть 2100 мм
Примечания
1 Данные лифты могут иметь скорость до 2,5 м/с включительно.
2 Размеры шахты, указанные в скобках, относятся к гидравлическим лифтам с боковым противовесом.
3 Лифты грузоподъемностью 1600, 2000 и 2500 кг, обозначенные символом

, обеспечивают возможность разворота на инвалидном кресле-каталке.
4 Несмотря на то, что на схемах изображены противовесы, размеры относятся ко всем лифтам, независимо от типа их привода и наличия машинного отделения.
5 Лифты грузоподъемностью 1275 кг с открывающимися по центру дверями предназначены для использования в группе с другими кабинами с аналогичной конструкцией дверей и рассчитаны на носилки размером 600 x 2000 мм.
Рисунок 9 - Пассажирские лифты
для лечебно-профилактических учреждений (больничные лифты)
a - высота кабины - 2200 мм, высота дверного
проема - 2000 мм (Южная Европа); b - высота
кабины - 2200 мм, высота дверного проема - 2100 мм
(Германия); c - высота кабины - 2400 мм, высота
дверного проема - 2100 мм (Северная Америка); d - высота
кабины - 2400 мм, высота дверного проема - 2100 мм
(Северная Америка); e - размеры носилок - 600 x 2000 мм
Примечания
1 Данные лифты могут иметь скорость до 2,5 м/с включительно.
2 Лифты грузоподъемностью 2000 кг, обозначенные символом

, обеспечивают возможность разворота на инвалидном кресле-каталке.
3 Несмотря на то, что на схемах изображены противовесы, размеры относятся ко всем лифтам, независимо от типа их привода.
Рисунок 10 - Лифты для локальных рынков
Высота кабины - 2200 мм, высота дверного проема - 2000 мм
Примечания
1 Размеры указываются для стандартных лифтов со скоростью менее 1,5 м/с.
2 Для стандартных лифтов со скоростью не менее 1,5 м/с глубина и ширина шахты увеличиваются на 50 мм.
3 Для лифтов без машинного помещения и скоростью менее 1,5 м/с глубина и ширина шахты увеличиваются на 50 мм.
4 Для лифтов без машинного помещения и скоростью не менее 1,5 м/с глубина и ширина шахты увеличиваются на 100 мм.
Рисунок 11 - Лифты для жилых зданий
для локального японского рынка
Высота кабины - 2300 мм, высота дверного проема - 2100 мм
Примечания
1 Размеры приведены для стандартных лифтов со скоростью менее 1,5 м/с и грузоподъемностью 450, 600 и 750 кг, а также для стандартных лифтов грузоподъемностью 900 кг.
2 Для стандартных лифтов со скоростью не менее 1,5 м/с и грузоподъемностью 450, 600 и 750 кг глубина и ширина шахты увеличиваются на 50 мм.
3 Для лифтов без машинного помещения со скоростью менее 1,5 м/с и грузоподъемностью 450, 600 и 750 кг, а также лифтов без машинного помещения грузоподъемностью 900 кг глубина и ширина шахты увеличиваются на 50 мм.
4 Для лифтов без машинного помещения со скоростью не менее 1,5 м/с и грузоподъемностью 450, 600 и 750 кг глубина и ширина шахты увеличиваются на 100 мм.
Рисунок 12 - Лифты общего назначения
для локального японского рынка
Высота кабины - 2300 мм, высота дверного проема - 2100 мм
Примечания
1 Размеры указываются для стандартных лифтов.
2 Для лифтов грузоподъемностью 1000 кг без машинного помещения глубина и ширина шахты увеличиваются на 50 мм.
3 Для лифтов грузоподъемностью 1150 кг без машинного помещения нет стандартных размеров.
Рисунок 13 - Лифты общего назначения
для локального японского рынка
5.1 Внутренние размеры кабины
5.1.1 Доступность лифтов
В зданиях рекомендуется применять лифты, обеспечивающие доступность для инвалидов и других маломобильных групп населения.
Такие лифты должны отвечать требованиям
ГОСТ 33652.
5.1.2 Пассажирские лифты
Размеры (полезная площадь) кабины лифтов категории A не должны превышать значений, установленных в
таблице 1 для соответствующих номинальных грузоподъемностей. Ограничение полезной площади имеет целью предотвратить перегрузку кабины пассажирского лифта пассажирами.
Таблица 1
Соотношение номинальной грузоподъемности и полезной площади
кабины пассажирских лифтов категории A
Номинальная грузоподъемность, кг | Максимальная полезная (доступная) площадь кабины, м2 | Номинальная грузоподъемность, кг | Максимальная полезная (доступная) площадь кабины, м2 |
| 0,37 | 900 | 2,20 |
| 0,58 | 975 | 2,35 |
225 | 0,70 | 1000 | 2,40 |
300 | 0,90 | 1050 | 2,50 |
375 | 1,10 | 1125 | 2,65 |
400 | 1,17 | 1200 | 2,80 |
450 | 1,30 | 1250 | 2,90 |
525 | 1,45 | 1275 | 2,95 |
600 | 1,60 | 1350 | 3,10 |
630 | 1,66 | 1425 | 3,25 |
675 | 1,75 | 1500 | 3,40 |
750 | 1,90 | 1600 | 3,56 |
800 | 2,00 | 2000 | 4,20 |
825 | 2,05 | | 5,00 |
<*> Минимальное значение для лифта, рассчитанного на одного человека. <**> Минимальное значение для лифта, рассчитанного на двух человек. <***> После 2500 кг следует добавлять 0,16 м 2 на каждые последующие 100 кг. Для промежуточных значений грузоподъемности площадь определяют методом интерполяции. |
Пассажирские лифты категории B, полезная (доступная) площадь кабины которых превышает указанную в
таблице 1 для соответствующих грузоподъемностей, должны дополнительно соответствовать требованиям ГОСТ 33984.1-2016, подпункт 5.4.2.1 [
перечисления a) и
b)].
а) лифты номинальной грузоподъемностью 450 кг, предназначенные только для перевозки пассажиров или одного инвалидного кресла без сопровождающего. Эти лифты не рекомендуются для установки в новых зданиях;
б) лифты номинальной грузоподъемностью 630 кг, предназначенные для перевозки человека в инвалидном кресле с сопровождающим (однако в такой кабине нельзя полноценно двигаться, т.е. развернуться);
в) лифты номинальной грузоподъемностью 1000 кг, предназначенные (в зависимости от размера кабины) для перевозки носилок со съемными ручками, а также гробов и мебели или людей в инвалидных колясках (в такой кабине можно полноценно двигаться, т.е. развернуться).
Лифты общего назначения в основном предназначены для невысоких и средних зданий, как правило, до 15 этажей, для которых скорость до 2,5 м/с является приемлемой. Размеры таких лифтов указаны в
таблицах 2,
3,
А.1 -
А.3 (приложение А).
Таблица 2
Пассажирские лифты. Размеры: высота шахты
от верхней этажной площадки (высота верхнего этажа),
глубина приямка, высота кабины и двери
Параметр | Номинальная скорость, Vn, м/с | Номинальная грузоподъемность (масса), кг |
Лифты для жилых зданий | Лифты общего назначения | Часто используемые лифты |
450 | 630 | 1000 | 630 | 800 | 1000/1275 | 1350 | 1275 | 1350 | 1600 | 1800 | 2000 |
Высота кабины h4 | | 2200 | 2300 | 2400 |
Высота двери кабины и двери шахты h3 | | 2100 |
| | 1400 | |
0,63 | 1400 | |
0,75 |
1,00 |
1,50 | 1600 |
1,60 |
1,75 |
2,00 | | 1750 | | 1750 |
2,50 | | 2200 | | 2200 |
3,00 | | 3200 |
3,50 | 3400 |
| 3800 |
| 3800 |
| 4000 |
Высота шахты от верхней этажной площадки (высота верхнего этажа) <a> h1 | | 3600 | | |
0,63 | 3600 | 3800 | 4200 | |
0,75 |
1,00 | 3700 |
1,50 | 3800 | 4000 | 4200 |
1,60 |
1,75 |
2,00 | | 4300 | | 4400 |
2,50 | 5000 | | 5000 | 5200 | 5500 |
| 3,00 | | 5500 |
3,50 | 5700 |
4,00 <d> | 5700 |
5,00 <d> | 5700 |
6,00 <d> | 6200 |
<a> В некоторых случаях высота шахты от верхней этажной площадки (верхнего этажа) h1 и глубина приямка d3 могут быть больше. <b> Только для гидравлических лифтов. <c> Нестандартная конфигурация. <d> Для лифтов, оборудованных буферами с уменьшенным ходом. |
Таблица 3
Пассажирские лифты. Размеры машинного помещения
Параметр | Номинальная скорость Vn, м/с | Номинальная грузоподъемность (масса), кг |
(400) 450 - 630 b4 x d4 | 800 - 1000 b4 x d4 | 1275 - 1600 b4 x d4 | 1800 - 2000 b4 x d4 |
Машинное помещение (при наличии) для электрических лифтов | 0,63 - 1,75 | 2500 x 3700 | 3200 x 4900 | 3200 x 4900 | 3000 x 5000 |
2,0 - 3,0 | | 2700 x 5100 | 3000 x 5300 | 3300 x 5700 |
3,5 - 6,0 | | 3000 x 5700 | 3000 x 5700 | 3300 x 5700 |
Смежное машинное помещение (при наличии) для гидравлических лифтов <a>, <b> | 0,4 - 1,0 | Ширина или глубина шахты x 2000 мм в жилых зданиях |
<a> В зависимости от условий на объекте и расположения может потребоваться изменить размеры машинного помещения ( b4, d4, h2). <b> Если речь идет о других вариантах расположения машинного помещения или в случае с удаленным машинным помещением, представитель заказчика и/или застройщик должен связаться с подрядчиком для определения размеров машинного помещения. |
5.1.3 Пассажирские лифты для лечебно-профилактических учреждений (больничные лифты)
Размеры пассажирских лифтов для лечебно-профилактических учреждений (больничных лифтов) представлены на
рисунках 9,
А.5,
А.6 (приложение А) и в
таблицах 4 и
А.4 (приложение А).
Таблица 4
Пассажирские лифты для лечебно-профилактических учреждений.
Функциональные размеры
Параметр | Номинальная скорость, Vn, м/с | Характеристика | Номинальная грузоподъемность (масса), кг |
1275 | 1600 | 2000 | 2500 |
Кабина | Высота h4 (мм) | 2300 |
Двери кабины и шахты | Высота h3 (мм) | 2100 |
Глубина приямка d3 | 0,63 | | 1600 | 1800 |
1,00 | | 1700 | 1900 |
1,60 | | 1900 | 2100 |
2,00 | | 2100 | 2300 |
2,50 | | 2500 |
Высота шахты от верхней этажной площадки (высота верхнего этажа) h1 | 0,63 | | 4400 | 4600 |
1,00 | | 4400 | 4600 |
1,60 | | 4400 | 4600 |
2,00 | | 4600 | 4800 |
2,50 | | 5400 | 5600 |
Машинное помещение <a> (при наличии) | 0,63 | Поверхность A (м2) | 25 | 27 | 29 |
- | | 3200 | 3500 |
2,50 | | 5500 | 5800 |
<a> В зависимости от условий на объекте и национальных норм может потребоваться изменить размеры машинного помещения ( b4, d4, h2). <b> b4 и d4 - это минимальные значения. Фактические размеры должны обеспечивать площадь пола, минимум равную A. |
В пассажирских лифтах для лечебно-профилактических учреждений (больничных лифтах), полезная площадь кабины которых превышает указанную в
таблице 1 для соответствующих грузоподъемностей, предусматриваются:
а) исключение возможности пуска лифта из кабины или с этажной площадки при нахождении в кабине груза, масса которого превышает номинальную грузоподъемность лифта на 10%, но не менее чем на 75 кг;
б) оборудование кабины лифта сигнальным устройством о перегрузке (световым и/или звуковым);
в) выполнение минимум одного из следующих условий:
- при наличии в кабине груза, масса которого равна 125% грузоподъемности, определенной по полезной площади кабины, не должно происходить опускание кабины. Допускается опускание кабины не более чем на 300 мм, что обеспечивается за счет применения специального устройства, автоматически останавливающего кабину, при этом пол кабины, направляющие, ловители, буфер кабины и останавливающие устройства должны быть рассчитаны на нагрузки исходя из условия размещения в кабине равномерно распределенного по площади пола груза, масса которого равна грузоподъемности, определенной по полезной площади пола кабины;
- внутренняя система управления (с проводником); допуск к управлению лифтом обученного и аттестованного персонала.
Размеры кабины лифтов, предназначенных для использования инвалидами и другими маломобильными группами населения на креслах-колясках, должны обеспечивать их въезд/выезд, размещение и транспортирование в кабине на кресле-коляске.
Размеры кабины лифтов для лечебно-профилактических учреждений (больничных лифтов) должны обеспечивать перевозку пациентов на средствах горизонтального транспорта (каталках, кроватях) с сопровождающим персоналом и/или медицинского оборудования.
5.1.4 Пассажирские скоростные лифты
5.1.5 Размеры дверного проема пассажирских лифтов
Размеры дверного проема пассажирских лифтов должны обеспечивать безопасный вход в кабину и выход из нее пользователей.
Высота дверного проема пассажирских лифтов должна быть не менее 2000 мм.
Ширина дверного проема пассажирских лифтов, предназначенных для использования инвалидами и другими маломобильными группами населения на креслах-колясках, должна быть не менее 800 мм.
Ширина дверного проема пассажирских лифтов для лечебно-профилактических учреждений (больничных лифтов) должна обеспечивать перевозку пациентов на средствах горизонтального транспорта (каталках, кроватях) с сопровождающим персоналом и/или медицинского оборудования.
5.2 Внутренние размеры шахты
5.2.1 Проектные размеры
5.2.1.1 Общие сведения
Архитектор или другой специалист, выполняющий его обязанности, по согласованию с застройщиком должен убедиться, что размеры шахты являются достаточными для установки лифта или увеличить допуски номинальных размеров шахты.
5.2.1.2 Допуски на размеры шахты
Лифты должны перемещаться вертикально внутри здания, поэтому двери кабины и двери шахты должны быть взаимосвязаны. Следовательно, выравнивание отвесов шахты и дверных проемов на этажных площадках имеет первостепенное значение. В конструкции шахты не должны допускаться отклонения от номинальных размеров как в сторону увеличения, так и в сторону уменьшения, как это часто бывает при строительстве. Также важно убедиться в том, что шахта сконструирована строго вертикально, т.е. выполнена проверка с использованием отвесов.
Таким образом, в лифтовой промышленности не допускается уменьшение размеров, поэтому архитектор, застройщик или инженер-строитель должны предусмотреть необходимые допуски, чтобы подготовить строго вертикальную шахту под лифт. Несоблюдение данных требований может повлечь за собой значительные доработки и привести к серьезным задержкам.
Представитель заказчика вместе с застройщиком должны убедиться в том, что размеры, превышающие рекомендуемые минимальные размеры шахты, измеренные с использованием отвеса, и проемы не превышают максимальных значений.
Отклонения фактических размеров строительной части шахты от номинальных не должны превышать значений, указанных в проектной документации на установку лифта, в том числе:
- отклонение от перпендикулярности внутренней поверхности стен шахты относительно горизонтальной плоскости (в зоне пола приямка) должно быть не более 30 мм;
- отклонение фактических внутренних размеров шахты (в плане) от номинальных, указанных в проектной документации на установку лифта, должно быть не более 30 мм. Разность длин диагоналей шахты (в плане) должна быть не более 25 мм.
На
рисунке 2 указаны структурные ограничения точности для одной или нескольких шахт. Если номинальные размеры шахты
b3 (ширина шахты) и
d2 (глубина шахты) и номинальные конструктивные размеры входного проема
C и
D определены с использованием отвесов, очень важно, чтобы стены шахты не затрагивали пространство, ограниченное данными размерами. Размер
K не должен превышать 30 мм.
Примечание - Если несколько лифтов находятся рядом друг с другом, размер K не применяется к расстоянию между отвесными шахтами. В настоящем стандарте указывают минимум 200 мм для данного расстояния.
5.2.2 Одиночные лифты. Внутренние размеры шахты
5.2.3 Несколько расположенных рядом лифтов. Внутренние размеры шахты
При установке лифтов в общей шахте внутренние размеры определяют следующим образом:
а) суммарная ширина общей шахты должна быть равна сумме значений ширины отдельных шахт плюс сумма значений ширины перегородок между этими шахтами, при этом ширина каждой перегородки составляет не менее 200 мм;
б) значения глубины составных частей общей шахты должны быть такими же, как и указанные для одиночных лифтов.
5.2.4 Расстояние между этажными площадками. Внутренние размеры шахты
Рекомендуемое минимальное расстояние между двумя следующими друг за другом этажными площадками для размещения дверей шахты должно быть:
- 2650 мм - для дверей шахты высотой 2000 мм;
- 2750 мм - для дверей шахты высотой 2100 мм.
5.2.5 Пассажирские лифты для лечебно-профилактических учреждений (больничные лифты). Внутренние размеры шахты
Пассажирские лифты для лечебно-профилактических учреждений (больничные лифты) [см.
рисунки 9,
А.5,
А.6 (приложение А) и
таблицы 4 и
А.4 (приложение А)]:
а) лифты номинальной грузоподъемностью 2500 кг применяются для перевозки пассажиров на больничных кроватях размером 1000 x 2300 мм вместе со вспомогательным медицинским оборудованием и сопровождающим персоналом;
б) лифты номинальной грузоподъемностью 2000 кг применяются для перевозки больничных кроватей размером 1000 x 2300 мм (без вспомогательного медицинского оборудования) вместе с сопровождающим персоналом;
в) лифты номинальной грузоподъемностью 1600 кг применяются для перевозки больничных кроватей размером 900 x 2000 мм (без вспомогательного медицинского оборудования) вместе с сопровождающим персоналом;
г) лифты номинальной грузоподъемностью 1275 кг применяются для перевозки больничных кроватей размером 900 x 2000 мм в домах престарелых (без вспомогательного медицинского оборудования) вместе с сопровождающим персоналом.
5.3 Размеры этажных площадок
5.3.1 Общие сведения
По всей ширине шахты (отдельной или общей) необходимо обеспечить минимальную глубину этажной площадки, предусмотренную настоящим стандартом.
Эти размеры не учитывают возможность сквозного движения людей, не использующих лифты, необходимость организации каких-либо противопожарных отсеков, безопасных зон, убежищ или места для эвакуации или пожаротушения.
5.3.2 Пассажирские лифты, предназначенные для жилых зданий. Размеры этажных площадок
Это могут быть одиночные лифты или несколько расположенных рядом лифтов.
Рядом можно разместить максимум четыре лифта данной категории с собирательным управлением. Если речь идет о лифтах с гидравлическим приводом, рекомендуется устанавливать максимум два лифта с собирательным управлением.
Минимальную глубину этажной площадки измеряют от стены до стены и в том же направлении, что и глубину кабины, и она должна быть равна глубине кабины с самой большой глубиной. Однако глубина этажных площадок, обслуживаемых лифтами, предназначенными для лиц с ограниченными возможностями, должна быть не менее 1500 мм.
В кабине должно быть достаточно места, чтобы можно было развернуться на инвалидном кресле.
5.3.3 Пассажирские лифты (кроме лифтов, предназначенных для жилых зданий). Размеры этажных площадок
5.3.3.1 Размеры этажных площадок. Одиночные лифты или несколько расположенных рядом лифтов
Если речь идет о группе лифтов с собирательным управлением, максимальное число лифтов в группе должно быть равно четырем.
Минимальную глубину этажной площадки измеряют от стены до стены и в том же направлении, что и глубину кабины, и она должна быть равна 1,5d1 (где d1 - глубина кабины с самой большой глубиной). В группе из четырех лифтов, кроме больничных лифтов, данное значение глубины должно быть не менее 2400 мм.
5.3.3.2 Лифты, расположенные друг напротив друга. Размеры этажных площадок
Если речь идет о группе лифтов с собирательным управлением, максимальное число лифтов в группе должно быть равно восьми (2 x 4).
Расстояние между противоположными стенами должно быть минимум равно сумме значений глубины двух расположенных друг напротив друга кабин. В группе из четырех лифтов, кроме больничных лифтов, данное расстояние должно быть не более 4500 мм.
5.4 Размеры машинного помещения электрических лифтов
5.4.1 Общие сведения
По мере необходимости на этапе проектирования размеры машинного помещения должны соответствовать указанным в документации, однако при необходимости эти размеры можно изменить позднее, чтобы они отвечали требованиям конкретного оборудования. Размеры любого машинного помещения предоставляются подрядчиком, выполняющим работы по монтажу лифта. Представитель заказчика вместе с застройщиком должны убедиться, что минимальные размеры машинного помещения, указанные подрядчиком, учтены в конструкции здания и соблюдены в окончательном варианте.
Размеры машинного помещения лифта должны обеспечивать размещение и безопасную работу лифтового оборудования, а также безопасность персонала при техническом обслуживании, ремонте и оценке соответствия лифта, предусмотренные техническим
регламентом [1].
Площадь машинного помещения лифта (ширина и глубина машинного помещения) должна обеспечивать зону обслуживания устройств управления и подвижных частей механического оборудования, расположенных в машинном помещении.
Высота машинного помещения лифта должна обеспечивать безопасность персонала при проходе к зонам обслуживания устройств управления и механического оборудования и при работе в зонах обслуживания.
5.4.2 Одиночные лифты. Размеры машинного помещения
5.4.3 Несколько лифтов. Размеры машинного помещения
5.4.3.1 Пассажирские лифты, специально предназначенные для жилых зданий. Размеры машинного помещения
5.4.3.1.1 Площадь пола машинного помещения:
а) несколько лифтов с одинаковой грузоподъемностью: минимальная площадь пола общего машинного помещения должна быть равна сумме минимальной площади машинных помещений одиночных лифтов;
б) два лифта с разной номинальной грузоподъемностью: минимальная площадь пола общего машинного помещения должна быть равна сумме минимальной площади, необходимой для машинных помещений одиночных лифтов плюс разность между площадью шахты двух лифтов;
в) группа из более двух лифтов с разной номинальной грузоподъемностью: минимальная площадь пола общего машинного помещения должна быть равна сумме минимальной площади, необходимой для машинных помещений одиночных лифтов, плюс сумма разностей площади шахты самого большого лифта и площадей шахт всех остальных лифтов.
5.4.3.1.2 Ширина машинного помещения
Фактические размеры должны обеспечивать площадь пола, минимум равную той, которая указана для общей площади.
Минимальная ширина общего машинного помещения должна быть равна сумме общей площади шахты плюс боковое удлинение, соответствующее лифту с самыми высокими индивидуальными требованиями.
5.4.3.1.3 Глубина машинного помещения
Фактические размеры должны обеспечивать площадь пола, минимум равную той, которая указана для общей площади.
Минимальная глубина общего машинного помещения должна быть равна глубине самой глубокой отдельной шахты плюс 2100 мм.
5.4.3.1.4 Высота машинного помещения
Минимальная высота общего машинного помещения должна быть равна высоте самого высокого машинного помещения.
5.4.3.2 Пассажирские лифты (кроме предназначенных для жилых зданий). Размеры машинного помещения
5.4.3.2.1 Обозначения размеров машинного помещения
b4 - ширина машинного помещения для одного одиночного лифта;
d4 - глубина машинного помещения для одного одиночного лифта;
A - площадь пола одного одиночного лифта;
b3,x - ширина шахты для одного одиночного лифта, например
b3,1,
b3,2,
b3,3 на
рисунке 2;
d2 - глубина шахты для одного одиночного лифта;
n - общее число лифтов.
5.4.3.2.2 Лифты, расположенные рядом. Размеры машинного помещения
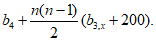
Общая площадь должна быть следующей: A + 0,9A(n - 1).
Фактические размеры должны обеспечивать площадь пола, минимум равную той, которая указана для общей площади.
Минимальная ширина: b4 + (n - 1)(b3,x + 200).
Минимальная глубина: d4.
5.4.3.2.3 Лифты, расположенные друг напротив друга. Размеры машинного помещения
Общая площадь должна быть следующей: A + 0,9A(n - 1).
Фактические размеры должны обеспечивать площадь пола, минимум равную той, которая указана для общей площади.
Минимальная ширина:
Минимальная глубина: 2d2 + расстояние между шахтами.
Если число лифтов нечетное, n округляют до следующего четного числа.
5.4.3.2.4 Высота машинного помещения
Минимальная высота общего машинного помещения должна быть равна высоте самого высокого машинного помещения.
5.5 Размеры машинного помещения лифтов с гидравлическим приводом
5.5.1 Общие сведения
По мере необходимости на этапе проектирования размеры машинного помещения должны соответствовать указанным в документации, однако, при необходимости эти размеры можно изменить позднее, чтобы они отвечали требованиям конкретного оборудования. Размеры любого машинного помещения предоставляются подрядчиком, выполняющим работы по монтажу лифта. Представитель заказчика вместе с застройщиком должны убедиться, что минимальные размеры машинного помещения, указанные подрядчиком, обеспечены в конструкции здания.
5.5.2 Размеры машинного помещения одиночных лифтов с гидравлическим приводом
Где это необходимо, размеры машинного помещения должны быть такими, как указано в
таблицах 3,
4,
А.3,
А.4 (приложение А).
5.5.3 Размеры машинного помещения лифтов с гидравлическим приводом для пары лифтов
По мере необходимости рекомендуется применять общее машинное помещение.
Площадь пола должна быть следующей:
а) парные лифты с одинаковой грузоподъемностью: минимальная площадь пола общего машинного помещения должна быть равна сумме минимальной площади, необходимой для машинных помещений, расположенных за шахтой одиночных лифтов;
б) парные лифты с разной номинальной грузоподъемностью: минимальная площадь пола общего машинного помещения должна быть равна сумме минимальной площади, необходимой для машинных помещений, расположенных за шахтой одиночных лифтов, плюс разность между площадью шахты двух лифтов.
5.6 Расположение машинного помещения (при наличии)
5.6.1 Отдельное или общее машинное помещение
В некоторых случаях машинное помещение не требуется, например для лифтов без машинного помещения. Основой настоящего стандарта является конфигурация машинного помещения электрических лифтов, расположенного над шахтой (см.
рисунок 3). Боковое удлинение машинного помещения относительно шахты (или общей шахты) можно выполнить справа или слева от шахты.
По мере необходимости машинное помещение лифтов с гидравлическим приводом располагается рядом или за шахтой в нижней части здания (см.
рисунок 4).
В машинном помещении должна быть предусмотрена надлежащая вентиляция.
5.6.2 Расположение одиночных лифтов и нескольких расположенных рядом с друг другом лифтов с общим машинным помещением
Для лифтов с электроприводом задняя стенка машинного помещения должна находиться на одной линии со стенкой соответствующей шахты (или самой глубокой шахты), а одна из боковых стенок должна находиться на одной линии со стенкой соответствующей шахты (или общей шахты).
Расширение машинного помещения вглубь относительно шахты должно выполняться со стороны этажной площадки.
Общее машинное помещение сдвоенных лифтов с гидравлическим приводом должно располагаться за шахтой в нижней части здания.
5.6.3 Расположение лифтов друг напротив друга с общим машинным помещением (только для лифтов с электроприводом)
Рекомендуется, чтобы любые расширения вглубь не превышали 0,5 м от задней стенки шахты и находились на одном уровне с опорной плитой машинного помещения.
(справочное)
ОСНОВНЫЕ ПАРАМЕТРЫ И РАЗМЕРЫ ЛИФТОВ
ДЛЯ ЛОКАЛЬНОГО РЫНКА СТРАН - ЧЛЕНОВ ЕврАзЭс
Значения параметров
таблиц А.1 -
А.4 являются рекомендуемыми. Допускается использовать другие значения, соответствующие требованиям рынка.
Таблица А.1
Вертикальные размеры кабины и шахты
пассажирских лифтов с машинным помещением
Параметр | Номинальная скорость движения лифта Vn, м/с | Номинальная грузоподъемность лифта, кг |
320 | 400 |
Высота кабины h4 | - | 2200/2100 |
Высота дверного проема h3 | - | 2000 |
Глубина приямка d3 | | > 750 |
0,63 | 1300 |
1,00 |
1,60 | 1600/1400 |
2,00 | |
2,50 | |
3,00 | |
3,50 |
|
|
|
Высота шахты от верхней этажной площадки (высота верхнего этажа) h1 | | 3600 |
0,63 | 3600 |
1,00 | 3700/3500 |
1,60 | | 3800/3700 |
2,00 | |
2,50 | |
3,00 | |
3,50 |
|
|
|
<*> Только для гидравлических лифтов. <**> Размеры устанавливает изготовитель. <***> Размеры с учетом применения буферов с уменьшенным ходом плунжера. |
Таблица А.2
Вертикальные размеры кабины и шахты
пассажирских лифтов без машинного помещения
Параметр | Номинальная скорость движения лифта Vn, м/с | Номинальная грузоподъемность лифта, кг |
320 | 400 | 630 | 800 | 1000 | 1275 | 1600 | 1800 | 2000 |
Высота кабины h4 | 1,0, 1,6 | 2200/2100 | 2400/2200 |
Высота дверного проема h3 | 2000 | 2100/2000 | 2100/2200 |
Глубина приямка d3 | 1100 | |
1400 |
Высота шахты от верхней этажной площадки h1 | 1,00 | 3700/3600 | 4400/4300 |
1,60 | 3850/3750 | 4550/4450 |
<*> Размеры устанавливает изготовитель. |
Таблица А.3
Размеры машинного помещения
Параметр | Номинальная скорость Vn, м/с | Номинальная грузоподъемность, кг |
320 - 630 b4 x d4 | 800 - 1000 b4 x d4 |
Машинные помещения для электрических лифтов, не менее | 0,63 - 1,6 | 2500 x 3200 (3000 x 3900) | 3200 x 4900 (4800 x 4000) |
2,0 - 3,0 | - | 2700 x 5100 |
3,5 - 6,0 | - | 3000 x 5700 |
Машинные помещения для гидравлических лифтов, не менее | 0,4 - 1,0 | Ширина или глубина шахты x 2000 мм для лифтов в жилых зданиях. Размеры для зданий с интенсивным пассажиропотоком устанавливает изготовитель |
Таблица А.4
Вертикальные размеры кабины, шахты, размеры
машинных помещений лифтов для лечебно-профилактических
учреждений (больничных лифтов)
Параметр | Номинальная скорость Vn, м/с | Номинальная грузоподъемность, кг |
500 | 630 | 1000 |
Высота кабины h4 | - | 2100 |
Высота дверного проема кабины и шахты h3 | - | 2000 |
Глубина приямка d3 | 0,50 | 1300 | 1400 |
0,63 | |
1,00 | | 1400 |
1,60 | |
2,00 | |
2,50 | |
Высота шахты от верхней этажной площадки (высота верхнего этажа) h1 | 0,50 | 3600 |
0,63 | |
1,00 |
1,60 |
2,00 |
2,50 |
Размеры машинного помещения, не менее | От 0,50 до 2,50 | Площадь A, м2 10,8 |
|
|
<*> Размеры b4 и d4 - минимальные. Фактические размеры должны обеспечивать площадь машинного помещения не менее A. <**> Размеры определяет производитель. |
b3 - ширина шахты; d2 - глубина шахты; d3 - глубина приямка;
h1 - высота шахты от верхней этажной площадки;
1 - верхняя остановка; 2 - нижняя остановка
Рисунок А.1 - Электрические пассажирские лифты
без машинного помещения. Обозначения размеров шахты
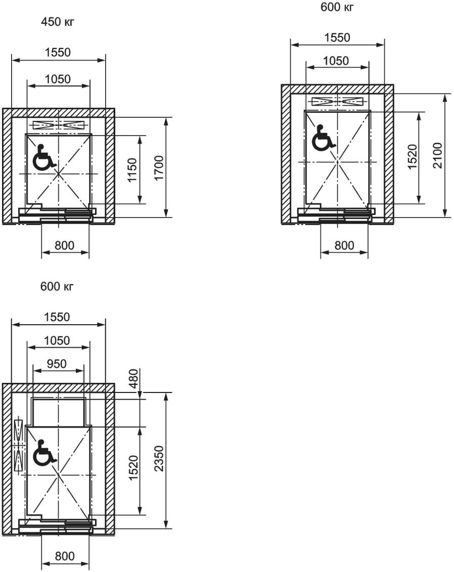
Рисунок А.2 - Пассажирские лифты категории A,
рекомендуемые для жилых зданий
Примечания
1 На настоящем рисунке представлены размеры для лифтов со скоростью до 2,5 м/с включительно.
2 Лифты с символом

обеспечивают доступность для инвалидов на кресле-коляске по ГОСТ 30471.
3 Лифты с символом

обеспечивают возможность транспортирования носилок размером 600 x 2000 мм.
Рисунок А.2, лист 2
Примечания
1 На настоящем рисунке представлены размеры лифтов со скоростью до 2,5 м/с включительно.
2 Лифты с символом

обеспечивают доступность для инвалидов в кресле-коляске по ГОСТ 30471.
3 Лифты с символом

обеспечивают возможность транспортирования носилок размером 600 x 2000 мм.
Рисунок А.3 - Пассажирские лифты категории B,
рекомендуемые для жилых зданий
Примечания
1 Лифты с символом

обеспечивают доступность для инвалидов в кресле-коляске по ГОСТ 30471.
2 Лифты с символом

обеспечивают возможность полного разворота кресла-коляски в кабине.
Рисунок А.4 - Пассажирские лифты категории A,
рекомендуемые для общественных зданий
Примечания
1 На настоящем рисунке представлены размеры для лифтов со скоростью до 2,5 м/с включительно.
2 Размеры в скобках указаны для гидравлических лифтов с боковым расположением гидроцилиндра.
3 Лифты с символом

обеспечивают доступность для инвалидов на кресле-коляске.
4 Лифты с символом

обеспечивают возможность полного разворота кресла-коляски в кабине.
5 Размеры кабин лифтов обеспечивают транспортирование больных на кроватях максимальными габаритными размерами:
a - 900 x 2000 мм;
b - 1000 x 2300 мм;
c - 1000 x 2300 мм с дополнительным медицинским оборудованием.
Рисунок А.5 - Пассажирские лифты категории
A для лечебно-профилактических учреждений (больничные лифты)
--------------------------------
<*> Размер для проходной кабины.
Примечания
1 Лифты с символом

обеспечивают доступность для инвалидов в кресле-коляске.
2 Размеры кабин лифтов обеспечивают транспортирование больных на кроватях максимальными габаритными размерами 900 x 2000 мм.
Рисунок А.6 - Пассажирские лифты категории
B для лечебно-профилактических учреждений (больничные лифты)
УДК 692.66:006.354 | |
Ключевые слова: лифты, основные параметры и размеры, лифты для транспортирования людей или людей и грузов, пассажирские лифты |