Главная // Актуальные документы // ГОСТ Р (Государственный стандарт)СПРАВКА
Источник публикации
М.: Стандартинформ, 2014
Примечание к документу
Документ был включен в Перечень национальных стандартов (
пункты 71,
110), содержащих правила и методы исследований (испытаний) и измерений, в том числе правила отбора образцов, необходимых для применения и исполнения Федерального
закона от 22.07.2008 N 123-ФЗ "Технический регламент о требованиях пожарной безопасности" и осуществления оценки соответствия (
Распоряжение Правительства РФ от 10.03.2009 N 304-р).
Документ
введен в действие с 1 января 2015 года.
Название документа
"ГОСТ Р 56076-2014. Национальный стандарт Российской Федерации. Конструкции строительные. Конструкции из панелей с металлическими обшивками. Методы испытаний на огнестойкость и пожарную опасность"
(утв. и введен в действие Приказом Росстандарта от 24.07.2014 N 824-ст)
"ГОСТ Р 56076-2014. Национальный стандарт Российской Федерации. Конструкции строительные. Конструкции из панелей с металлическими обшивками. Методы испытаний на огнестойкость и пожарную опасность"
(утв. и введен в действие Приказом Росстандарта от 24.07.2014 N 824-ст)
Утвержден и введен в действие
агентства по техническому
регулированию и метрологии
от 24 июля 2014 г. N 824-ст
НАЦИОНАЛЬНЫЙ СТАНДАРТ РОССИЙСКОЙ ФЕДЕРАЦИИ
КОНСТРУКЦИИ СТРОИТЕЛЬНЫЕ
КОНСТРУКЦИИ ИЗ ПАНЕЛЕЙ С МЕТАЛЛИЧЕСКИМИ ОБШИВКАМИ
МЕТОДЫ ИСПЫТАНИЙ НА ОГНЕСТОЙКОСТЬ И ПОЖАРНУЮ ОПАСНОСТЬ
Building structures. Construction from double
skin metal faced insulating panels.
Fire resistance and fire hazard test method
EN 1363-1:2012
Fire resistance tests - Part 1: General requirements
(NEQ)
EN 1364-1:1999
Fire resistance tests for non-loadbearing
elements - Part 1: Walls
(NEQ)
ГОСТ Р 56076-2014
Дата введения
1 января 2015 года
1. Разработан Федеральным государственным бюджетным учреждением "Всероссийский ордена "Знак Почета" научно-исследовательский институт противопожарной обороны Министерства Российской Федерации по делам гражданской обороны, чрезвычайным ситуациям и ликвидации последствий стихийных бедствий" (ФГБУ ВНИИПО МЧС России).
2. Внесен Техническим комитетом по стандартизации ТК 274 "Пожарная безопасность".
3. Утвержден и введен в действие
Приказом Федерального агентства по техническому регулированию и метрологии от 24 июля 2014 г. N 824-ст.
4. Настоящий стандарт разработан с учетом основных нормативных положений следующих европейских региональных стандартов:
ЕН 1363-1:2012 "Испытания на огнестойкость. Общие требования" (EN 1363-1:2012 "Fire resistance tests - Part 1: General requirements", NEQ);
ЕН 1364-1:1999 "Элементы зданий, не несущие нагрузки. Испытания на огнестойкость. Часть 1. Перегородки" (EN 1364-1:1999 "Fire resistance tests for non-loadbearing elements - Part 1: Walls", NEQ), в части требований к определению огнестойкости по тепловому режиму одностороннего теплового воздействия, к критериям оценки.
5. Введен впервые.
Правила применения настоящего стандарта установлены в ГОСТ Р 1.0-2012
(раздел 8). Информация об изменениях к настоящему стандарту публикуется в ежегодном (по состоянию на 1 января текущего года) информационном указателе "Национальные стандарты", а официальный текст изменений и поправок - в ежемесячном информационном указателе "Национальные стандарты". В случае пересмотра (замены) или отмены настоящего стандарта соответствующее уведомление будет опубликовано в ближайшем выпуске ежемесячного информационного указателя "Национальные стандарты". Соответствующая информация, уведомление и тексты размещаются также в информационной системе общего пользования - на официальном сайте Федерального агентства по техническому регулированию и метрологии в сети Интернет (gost.ru).
1.1. Настоящий стандарт устанавливает методы испытаний на огнестойкость и пожарную опасность конструкций ненесущих наружных и внутренних стен без проемов, а также покрытий и перекрытий из панелей с металлическими обшивками и теплоизоляционным материалом (далее - конструкции из панелей).
В настоящем стандарте использованы нормативные ссылки на следующие стандарты:
ГОСТ 12.1.004-91 Система стандартов безопасности труда. Пожарная безопасность. Общие требования
ГОСТ 12.1.033-81 Система стандартов безопасности труда. Пожарная безопасность. Термины и определения
ГОСТ 6616-94 Преобразователи термоэлектрические. Общие технические условия
ГОСТ 16588-91 (ИСО 4470-81) Пилопродукция и деревянные детали. Методы определения влажности
ГОСТ 30247.0-94 Конструкции строительные. Методы испытаний на огнестойкость. Общие требования
ГОСТ 30247.1-94 Конструкции строительные. Методы испытаний на огнестойкость. Несущие и ограждающие конструкции
ГОСТ 30403-2012 Конструкции строительные. Метод испытания на пожарную опасность
ГОСТ Р 8.619-2006 Государственная система обеспечения единства измерений. Приборы тепловизионные измерительные. Методика поверки
ГОСТ Р 12.1.019-2009 Система стандартов безопасности труда. Электробезопасность. Общие требования и номенклатура видов защиты
ГОСТ Р 53309-2009 Здания и фрагменты зданий. Метод натурных огневых испытаний. Общие требования
ГОСТ Р 54852-2011 Здания и сооружения. Метод тепловизионного контроля качества теплоизоляции ограждающих конструкций.
Примечание. При пользовании настоящим стандартом целесообразно проверить действие ссылочных стандартов в информационной системе общего пользования - на официальном сайте Федерального агентства по техническому регулированию и метрологии по стандартизации в сети Интернет или по ежегодно издаваемому информационному указателю "Национальные стандарты", который опубликован по состоянию на 1 января текущего года, и по выпускам ежемесячного информационного указателя "Национальные стандарты" за текущий год. Если заменен ссылочный стандарт, на который дана недатированная ссылка, то рекомендуется использовать действующую версию этого стандарта с учетом всех внесенных в данную версию изменений. Если заменен ссылочный стандарт, на который дана датированная ссылка, то рекомендуется использовать версию этого стандарта с указанным выше годом утверждения (принятия). Если после утверждения настоящего стандарта в ссылочный стандарт, на который дана датированная ссылка, внесено изменение, затрагивающее положение, на которое дана ссылка, то это положение рекомендуется применять без учета данного изменения. Если ссылочный стандарт отменен без замены, то положение, в котором дана ссылка на него, рекомендуется применять в части, не затрагивающей эту ссылку.
4.1. Испытания на огнестойкость
4.1.1. Сущность метода
Сущность метода испытаний заключается в определении времени от начала одностороннего теплового воздействия по стандартному температурному режиму на образец конструкции из панелей (далее - образец) до наступления одного из нормируемых предельных состояний по огнестойкости в соответствии с 4.1.2.
При необходимости может быть создан другой температурный режим, учитывающий реальные условия пожара.
4.1.2. Предельные состояния
4.1.2.1. При нормировании пределов огнестойкости конструкций из панелей используют следующие предельные состояния:
- для ненесущих наружных стен - потеря целостности E;
- для ненесущих внутренних стен (перегородок) - потеря целостности E и потеря теплоизолирующей способности I;
- для покрытий - потеря несущей способности R и потеря целостности E;
- для перекрытий - потеря несущей способности R, потеря целостности E и теплоизолирующей способности I.
4.1.2.2. Потеря несущей способности R характеризуется обрушением конструкции или возникновением предельных деформаций.
4.1.2.3. Потеря целостности характеризуется:
а) появлением устойчивого пламени с необогреваемой стороны образца длительностью не менее 10 с;
б) воспламенением или возникновением тления со свечением ватного тампона в результате воздействия горячих газов, проникающих через сквозные щели, отверстия и т.п.;
в) образованием в конструкции образца сквозных отверстий (щелей) размерами, позволяющими щупу диаметром (6,0 +/- 2) мм проникать и перемещаться вдоль отверстия (щели) на расстояние не менее 150 мм, а щупу диаметром (25,0 +/- 2) мм иметь беспрепятственный доступ в сквозные отверстия. Длина щупов должна быть в соответствии с
рисунком А.1 Приложения А не менее 500 мм.
4.1.2.4. Потеря теплоизолирующей способности I характеризуется повышением температуры на необогреваемой поверхности образца в среднем более чем на 140 °C или в любой контролируемой точке этой поверхности более чем на 180 °C в сравнении с температурой конструкции до испытания или более 220 °C независимо от температуры конструкции до испытания.
4.1.3. Стендовое оборудование и измерительная аппаратура
4.1.3.1. Для проведения испытаний на огнестойкость используются:
- испытательная установка (печь) с системой подачи и сжигания топлива - по
ГОСТ 30247.0;
- система дымовых каналов с регулирующим устройством, обеспечивающая избыточное давление в огневой камере печи;
- монтажное приспособление для установки испытываемого образца на печи, обеспечивающее соблюдение условий его крепления;
- система измерения и регистрации температуры и давления.
4.1.3.2. Конструкция печи должна обеспечивать возможность теплового воздействия на конструкцию из панелей с одной стороны.
4.1.3.3. Монтажное приспособление (часть ограждающей конструкции), в которое установлена конструкция из панелей, должно иметь предел огнестойкости выше, чем у испытываемого образца.
4.1.3.5. Стендовое оборудование и средства измерения параметров должны быть метрологически аттестованы и поверены в установленном порядке.
4.1.4. Температурный режим и давление в печи
4.1.4.1. Температурный режим в печи при испытании на огнестойкость должен соответствовать требованиям
ГОСТ 30247.0.
4.1.4.2. Давление в печи при испытании на огнестойкость должно соответствовать требованиям
ГОСТ 30247.1.
4.1.5. Образцы для испытаний
4.1.5.2. Для испытаний на огнестойкость конструкции из панелей одного типа должно быть изготовлено два одинаковых образца.
4.1.5.3. Образцы для испытаний должны быть изготовлены, укомплектованы и собраны в соответствии с технической документацией.
4.1.5.4. Комплект поставки образца должен включать:
- чертежи (эскизы) с указанием размеров деталей, конструкции стыков, расположения теплоизоляционных материалов, уплотнений и т.п.;
- спецификацию используемых в конструкции материалов с указанием соответствующей нормативно-технической документации (ГОСТ, ТУ, инструкции и др.);
- описание конструкции, включающее наименование, тип (марку), назначение изделия, нормативную нагрузку (при необходимости), характеристики теплоизоляции, обшивки и др.;
- техническую документацию, подтверждающую показатели пожарной опасности материалов, а также другие показатели (санитарно-эпидемиологические и др.);
- инструкцию по монтажу.
4.1.5.5. Образцы для испытаний должны иметь элементы несущего каркаса с закрепленными к ним панелями в соответствии с технической документацией.
4.1.5.6. Образцы должны иметь не менее одного стыка между отдельными панелями и располагаться на печи таким образом, чтобы эти стыки панелей находились в огневой камере.
4.1.6. Подготовка испытаний
4.1.6.1. Конструкции, имеющие в проектном положении уклон более 30°, следует испытывать в вертикальном положении, остальные - в горизонтальном.
Образец монтируется заказчиком в соответствии с инструкцией по монтажу.
4.1.6.2. Для измерения температуры на необогреваемой поверхности образца должны быть установлены термоэлектрические преобразователи (далее - термопары) с классом допуска 2 по
ГОСТ 6616 в соответствии с
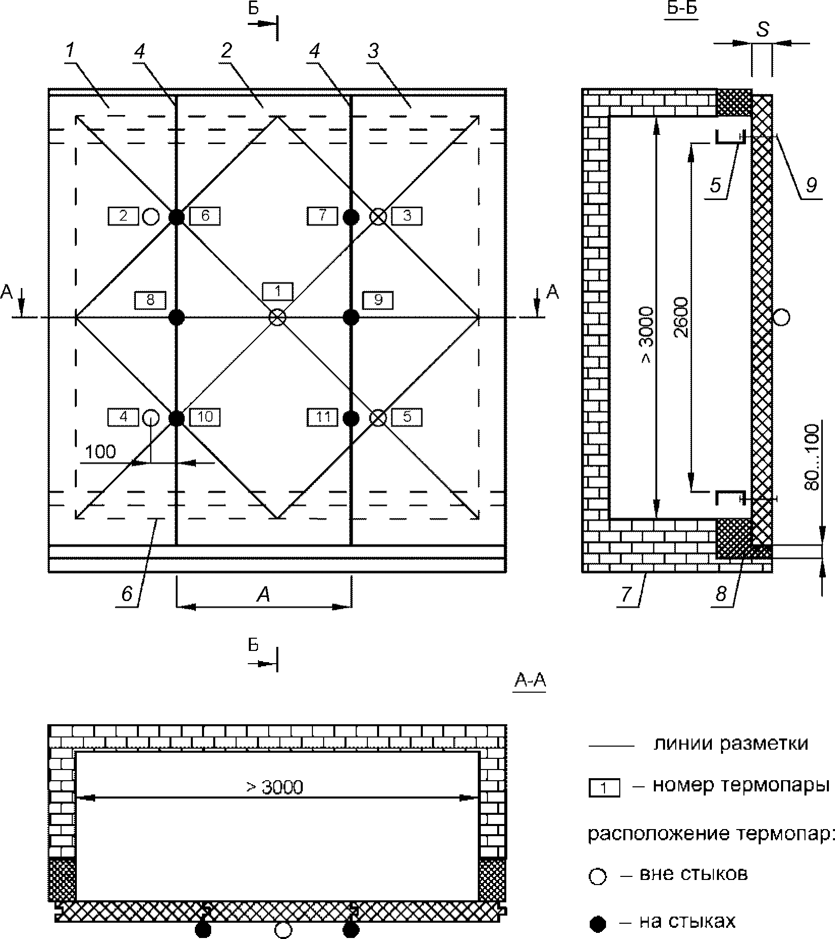
Приложением Б.
4.1.6.3. Для определения среднеарифметического значения температуры должны быть установлены пять термопар, обозначенные на
рисунках Б.1 -
Б.3 Приложения Б значком "о" и расположенные следующим образом:
- термопара 1 - в центре площади образца;
- термопары 2 - 5 - в центре каждой четверти площади образца.
Термопары должны располагаться на расстоянии (100 +/- 5) мм от любого стыка, ребра жесткости или сквозной детали.
4.1.6.4. Для определения максимального значения температуры необходимы следующие условия расположения термопар.
Максимальное значение температуры определяется термопарами, обозначенными на
рисунках Б.1 -
Б.4 Приложения Б значками "о", "

" и расположенными следующим образом:
| | ИС МЕГАНОРМ: примечание. В официальном тексте документа, видимо, допущена опечатка: рисунок Б.6 в Приложении Б отсутствует. | |
- на стыках между отдельными панелями (см.
рисунки Б.1 - Б.6 Приложения Б);
- в местах, где ожидается наибольшее повышение температуры.
4.1.6.5. Для определения температуры в любой точке необогреваемой поверхности конструкции из панелей, где ожидается наибольшее повышение температуры, используют переносную термопару.
4.1.7. Проведение испытаний
4.1.7.2. В процессе испытаний следует регистрировать:
- температуру на необогреваемой поверхности образца - согласно
4.1.6.3 -
4.1.6.5 (°C);
- время появления (мин) и характер развития в образце трещин, отверстий, щелей (зазоров), через которые пламя и/или горячие газы из печи могут проникать на необогреваемую сторону;
- деформации несущих конструкций;
- время начала разрушения конструкции или ее частей (мин);
- время частичного или полного обрушения конструкции (мин);
- время и место появления пламени на необогреваемой стороне образца и длительность устойчивого пламени (мин);
- время воспламенения (тление со свечением) ватного тампона (мин).
Рамку с тампоном размером ((100 x 100 x 20) +/- 2) мм массой от 3 до 4 г подносят к местам, где ожидается проникновение пламени или продуктов горения, и в течение 10 с удерживают на расстоянии (30 +/- 5) мм от поверхности образца. Повторное использование тампона не допускается.
4.1.7.3. Испытания проводят до наступления одного из предельных состояний по огнестойкости. Испытание может быть продолжено после наступления предельного состояния "потеря теплоизолирующей способности I" для выявления фактического значения времени наступления предельного состояния "потеря целостности E" и/или "потеря несущей способности R".
4.1.7.4. Если за время, заявленное для данной конструкции из панелей, предельное/(ые) состояние/(я) достигнуто/(ы) не было/(и), то испытание может быть продолжено до выявления фактической огнестойкости.
4.1.7.5. Если испытание заканчивается до наступления нормированных предельных состояний, то причина окончания должна быть указана в отчете. В этом случае величиной предела огнестойкости конструкции является время проведения испытания.
4.1.7.6. Испытание может быть остановлено в том случае, если существует опасность для обслуживающего персонала или угроза разрушения, поломки приборов и оборудования, что также фиксируется в отчете.
4.1.8. Оценка результатов испытаний
4.1.8.1. Результаты испытаний оценивают по времени достижения предельных состояний по
4.1.2.
4.1.8.2. При оценке достижения образцом предельного состояния "потеря целостности E" обугливание ватного тампона без тления со свечением не учитывается.
4.1.8.3. При оценке достижения образцом предельного состояния "потеря теплоизолирующей способности I":
- величину превышения первоначальной температуры на необогреваемой поверхности образца на 140 °C определяют как среднеарифметическое показаний термопар, установленных в соответствии с
4.1.6.3;
- величину превышения первоначальной температуры на необогреваемой поверхности образца на 180 °C определяют по показаниям термопар, установленных в соответствии с
4.1.6.4.
4.1.8.4. Фактический предел огнестойкости конструкций из панелей определяют по
ГОСТ 30247.0.
4.1.8.5. Предел огнестойкости конструкции из панелей обозначается по
ГОСТ 30247.0.
4.2. Испытания на пожарную опасность
4.2.1. Сущность метода
Сущность метода заключается в определении показателей пожарной опасности конструкции из панелей при ее испытании в условиях теплового воздействия, установленных настоящим стандартом, в течение времени, определяемого требованиями к этой конструкции по огнестойкости.
4.2.2. Критерии определения классов пожарной опасности конструкций
При установлении класса пожарной опасности конструкции из панелей следует учитывать:
- наличие теплового эффекта от горения или термического разложения составляющих конструкцию материалов;
- наличие пламенного горения расплавов или газов, выделяющихся из конструкции в результате термического разложения составляющих ее материалов;
- размеры повреждения конструкции и составляющих ее материалов, возникшего при испытании конструкции вследствие их горения или термического разложения.
4.2.3. Стендовое оборудование и измерительная аппаратура
4.2.3.1. Для проведения испытаний на пожарную опасность используются:
- двухкамерная испытательная установка, обеспечивающая возможность регулирования:
а) площади сечения проема (зазора) между обогреваемой поверхностью образца и торцом перекрытия (перегородки), разделяющего огневую и тепловую камеры;
б) газообмена огневой камеры для поддержания в ней температурного режима;
в) проемов для выхода газов из тепловой камеры;
- система подачи и сжигания топлива в огневой камере;
- приспособления для установки образца, обеспечивающие соблюдение условий его крепления;
- система измерения и регистрации параметров, включая оборудование для проведения фото- и/или видеосъемки.
4.2.3.2. Схемы установок для испытания вертикальных и горизонтальных конструкций, а также размещения на них образцов конструкций и измерительных приборов приведены на
рисунках В.1 и
В.2 Приложения В.
4.2.3.3. Технические требования к системе подачи и сжигания топлива, к системам измерения и регистрации параметров - по
ГОСТ 30247.0.
4.2.3.4. Калибровка печи проводится по
ГОСТ 30403.
4.2.3.5. Стендовое оборудование и средства измерения параметров должны быть метрологически аттестованы и поверены в установленном порядке.
4.2.4. Температурный режим и давление в печи
4.2.4.1. Температурный режим в огневой камере при испытании на пожарную опасность должен соответствовать требованиям
ГОСТ 30247.0.
4.2.4.2. Давление в огневой и тепловой камерах при испытании на пожарную опасность не регламентируется.
4.2.5. Образцы для испытаний
4.2.5.1. Образцы должны иметь длину не менее 2,4 м, ширину - не менее 1,3 м, толщину - по технической документации.
4.2.5.2. Для испытаний на пожарную опасность конструкции одного типа должно быть изготовлено два одинаковых образца с учетом
4.2.8.3.
4.2.5.3. Образцы для испытаний должны быть изготовлены, укомплектованы и собраны в соответствии с технической документацией.
4.2.5.4. Комплект поставки образца должен включать:
- чертежи (эскизы) с указанием размеров деталей, конструкции стыков, расположения теплоизоляционных материалов, уплотнений и т.п.;
- спецификацию используемых в конструкции материалов с указанием соответствующей нормативно-технической документации (ГОСТ, ТУ, инструкции и др.);
- техническое описание конструкции, включающее наименование, тип (марку), назначение изделия, характеристики теплоизоляции, обшивки и др.;
- техническую документацию, подтверждающую показатели пожарной опасности материалов, а также другие показатели (санитарно-эпидемиологические и т.п.);
- инструкцию по монтажу.
4.2.5.5. Образцы для испытаний на пожарную опасность не должны иметь проемов.
Образцы должны обязательно иметь не менее одного стыка между отдельными панелями и располагаться на печи таким образом, чтобы эти стыки панелей находились в огневой камере с продолжением их в тепловую камеру, а торцы образца были свободны (см.
рисунки В.1 и
В.2 Приложения В).
4.2.6. Подготовка испытаний
4.2.6.1. Конструкции, имеющие в проектном положении уклон более 30°, следует испытывать в вертикальном положении, остальные - в горизонтальном.
Образец монтируется заказчиком в соответствии с инструкцией по монтажу.
4.2.6.2. Подготовка к проведению испытаний включает проверку и отладку системы подачи и сжигания топлива, приборов и приспособлений; проведение калибровочных испытаний по
ГОСТ 30403, подготовку образцов конструкций к испытанию, установку термопар в печи и на образце.
Среднее отклонение температуры от стандартного режима в огневой камере печи при калибровке должно быть не более:
- 15% - в течение 10 мин от начала испытания;
- 10% - по истечении 10 мин от начала испытания.
4.2.6.3. В огневой камере печи термопары следует размещать в соответствии с
ГОСТ 30247.0.
4.2.6.4. В тепловой камере печи термопары следует устанавливать на расстоянии (20 +/- 5) мм от обогреваемой поверхности образца, и на расстоянии (400 +/- 10) мм от границы тепловой камеры при испытании вертикальных конструкций, и (250 +/- 10) мм - при испытании горизонтальных конструкций в трех точках (термопары 19 - 21 на
рисунках В.1 и
В.2 Приложения В).
4.2.6.5. Рекомендуется также устанавливать термопары:
а) по осям проемов для выхода газов из тепловой камеры печи (термопара 27 на
рисунках В.1 и
В.2 Приложения В);
б) на образце и по его сечениям в зоне огневого воздействия - в геометрическом центре обогреваемой поверхности образца (под обшивкой - с обогреваемой стороны, в середине образца, на обшивке - с необогреваемой стороны: термопары 16 - 18 на
рисунках В.1 и
В.2 Приложения В); в контрольной зоне - на расстоянии 400 мм от границы контрольной зоны при испытании вертикальных конструкций и 250 мм - при испытании горизонтальных конструкций (под обшивкой с обогреваемой стороны: термопары 22 - 24 на
рисунках В.1 и
В.2 Приложения В);
в) в стыковом соединении на расстоянии 800 мм от границы контрольной зоны при испытании вертикальных конструкций и 500 мм - при испытании горизонтальных конструкций (термопара 26 на
рисунках В.1 и
В.2 Приложения В);
г) по плоскостям раздела слоев материалов (термопары 17, 22 - 25 на
рисунках В.1 и
В.2).
Расстояние от термопар, устанавливаемых по
перечислениям б) и г), до торца или стыка образца должно быть не менее 1/2 его толщины.
4.2.7. Проведение испытаний на пожарную опасность
4.2.7.1. Испытания образцов проводят при температуре окружающего воздуха от 10 °C до 40 °C, скорости его движения не более 0,5 м/с и относительной влажности (60 +/- 15)%, измеренных на расстоянии от 1 до 1,5 м от поверхности образца.
4.2.7.2. Испытания образцов конструкций проводят при расходе топлива, площади зазоров, размерах проемов для газообмена, зафиксированных при калибровке.
4.2.7.3. Образцы конструкций испытывают в ненагруженном состоянии.
4.2.7.4. Образцы внутренних стен и перегородок несимметричного сечения следует испытывать при воздействии огня с каждой стороны либо со стороны с заведомо большей пожарной опасностью.
Образцы покрытий и перекрытий испытывают при воздействии огня с нижней стороны.
4.2.7.5. Продолжительность огневого воздействия должна соответствовать требуемому пределу огнестойкости испытываемой конструкции, но не более 45 мин.
При испытании конструкций из панелей, к которым не предъявляются требования по огнестойкости, а также наружных стен при тепловом воздействии со стороны внешней поверхности (фасада) продолжительность огневого воздействия следует принимать равной 15 мин.
4.2.7.6. По окончании времени теплового воздействия систему подачи и сжигания топлива отключают и образец оставляют на печи для остывания до температуры окружающей среды.
Испытательная лаборатория имеет право прекращать испытания и снимать образец с печи в тех случаях, когда зарегистрированные параметры позволяют однозначно оценить результаты испытания или когда горение образца создает угрозу возникновения неконтролируемой ситуации.
4.2.7.7. В процессе испытания следует регистрировать параметры, по которым определяется класс пожарной опасности конструкции:
- температуру в огневой и тепловой камерах для определения наличия теплового эффекта (°C);
- способность к воспламенению газов, выделяющихся при термическом разложении материалов образца;
- образование горящего расплава.
4.2.7.8. Температуру в огневой камере следует регистрировать по показаниям термопар, установленных в соответствии с
4.2.6.4.
| | ИС МЕГАНОРМ: примечание. В официальном тексте документа, видимо, допущена опечатка: пункт 4.2.6.6 отсутствует. | |
4.2.7.9. Температуру в тепловой камере следует регистрировать по показаниям термопар, установленных в соответствии с
4.2.6.5 и 4.2.6.6.
4.2.7.10. Способность к воспламенению газов, выделяющихся при термическом разложении материалов образца, проверяют посредством поднесения горящего факела к местам выхода этих газов на необогреваемые поверхности образца не реже чем через каждые 5 мин испытания и через каждую минуту - при появлении вспышек газа; длина намотки факела должна быть не менее 150 мм, а диаметр - не менее 40 мм. Факел должен иметь держатель, обеспечивающий его безопасное использование.
4.2.7.11. Образование горящего расплава контролируют визуально, а также с помощью фото- и/или видеосъемки по наличию горящих капель, вытекающих из торцов образца или стекающих по поверхности образца в пределах контрольной зоны.
4.2.7.12. Кроме параметров, указанных в
4.2.7.7, в процессе испытания регистрируют время появления и характер развития в образце трещин, отверстий, отслоений, раскрытия стыков, газообразных продуктов горения, пламени, изменения цвета и состояния поверхностей, а также другие особенности реакции образца на тепловое воздействие.
Эти явления регистрируют визуально или с помощью фото- и/или видеосъемки, а также с помощью термопар, установленных в соответствии с 4.2.6.6.
Допускается дополнительное применение тепловизионного контроля.
4.2.7.13. После остывания образца производят его обследование с целью определения и регистрации размеров повреждения в контрольной зоне.
Измерение размеров повреждений образца осуществляется при последовательном вскрытии всех слоев конструкции из панелей.
4.2.7.14. Размер повреждений измеряется в миллиметрах в плоскости образца от границы контрольной зоны, перпендикулярно к ней, до наиболее удаленной точки повреждения образца в контрольной зоне. Рекомендуется определять глубину и площадь обугливания материалов в пределах огневой камеры с занесением этих данных в протокол испытания.
4.2.7.15. Повреждением считается обугливание, оплавление, выгорание, термическое разложение, газифицирование материалов, из которых изготовлен образец, на глубину более 2 мм.
Не учитывается повреждение:
- для конструкций из панелей, испытываемых в вертикальном положении, длиной менее 50 мм и для конструкций из панелей, испытываемых в горизонтальном положении, - менее 30 мм;
- материала заполнения стыка в пределах контрольной зоны, если это повреждение не более 800 мм при испытании вертикальных конструкций из панелей; 500 мм - при испытании горизонтальных конструкций из панелей, и если оно не влечет за собой повреждения других элементов образца;
- слоев пароизоляции толщиной не более 2 мм;
- в виде изменения цвета без изменения агрегатного состояния материала теплоизоляции;
- оплавление материалов при отсутствии видимых следов горения (обугливания), пламенного горения газов, горящего расплава и теплового эффекта по 4.2.8.1.
4.2.8. Оценка результатов испытаний
4.2.8.1. Пожарная опасность конструкции характеризуется:
- наличием теплового эффекта (но не его величиной) от горения материалов образца, который выражается в превышении температуры в тепловой камере по сравнению с верхней допустимой границей температурного режима, установленного в ГОСТ 30403-2012
(подраздел 7.4) с учетом
4.2.6.2;
- наличием пламенного горения газов, выделяющихся при термическом разложении материалов образца, продолжительностью более 5 с;
- наличием горящего расплава при продолжительности его горения более 5 с;
- размером повреждения образца в контрольной зоне с учетом
4.2.7.15.
4.2.8.2. Конструкции подразделяются на классы по пожарной опасности в соответствии с таблицей 1 по наименее благоприятному показателю.
Таблица 1
Класс пожарной опасности конструкции
из панелей в зависимости от наличия
и значений параметров пожарной опасности
Класс пожарной опасности конструкции из панелей | Значение параметра пожарной опасности, установленное при испытаниях образцов конструкций |
Допускаемый размер повреждения образца конструкций в контрольной зоне, мм | Наличие |
вертикальных | горизонтальных | теплового эффекта | горения |
К0 | 0 | 0 | н. д. | н. д. |
К1 | <= 400 | <= 250 | н. д. | н. д. |
К2 | > 400 <= 800 | > 250 <= 500 | н. р. | н. д. |
К3 | Не регламентируется |
Примечание. н. д. - не допускается; н. р. - не регламентируется. |
4.2.8.3. Размер повреждения конструкции определяют как среднеарифметическое по результатам испытания двух одинаковых образцов.
Допускается определять размер повреждения по результатам испытания одного образца, если этот размер отличается от допускаемого, приведенного в
таблице 1, более чем на 15%.
В случае различия результатов испытаний двух одинаковых образцов более чем на 15% проводят третье испытание, при этом размер повреждения определяют как среднеарифметическое по результатам испытаний двух образцов, имеющих наибольшие размеры повреждения.
Наличие теплового эффекта или горения учитывается, если их проявление было зафиксировано при испытании хотя бы одного образца.
4.2.8.4. Условное обозначение класса пожарной опасности конструкции - по ГОСТ 30403-2012
(подраздел 10.4).
4.2.8.5. Без испытаний конструкций из панелей допускается устанавливать класс пожарной опасности К3.
5. Отчет об испытаниях на огнестойкость
и пожарную опасность
5.1. Отчет об испытаниях должен содержать следующую информацию:
- наименование и адрес организации, проводящей испытание;
- наименование и адрес организации - изготовителя конструкции;
- дату проведения испытаний;
- наименование изделия, товарный знак и маркировку образца с указанием шифра технической документации на конструкцию;
- код ОКП (ТН ВЭД) на изделие;
- наименование нормативного документа, содержащего метод испытания;
- описание, чертежи (эскизы) конструкции образца, предоставленные заказчиком;
- данные о технических характеристиках материалов, примененных при изготовлении образца;
- инструкцию по монтажу;
- сведения о выдержке образца;
- направление и время теплового воздействия на образец;
- условия окружающей среды при проведении испытания;
- сведения об испытательном оборудовании и средствах измерения параметров;
- схему установки термопар и прогибомеров;
- значение давления в огневой камере печи (для испытаний по огнестойкости);
- изменение температуры во времени в огневой камере печи;
- изменение температуры в местах установки термопар и переносной термопары;
- данные, полученные в процессе испытания с приложением фотоматериалов;
- фактические размеры повреждения образцов;
- данные о группах горючести материалов, из которых выполнена конструкция;
- сведения о наличии теплового эффекта и горения;
- оценку результатов испытания;
- фактический предел огнестойкости образца;
- обозначение предела огнестойкости;
- обозначение класса пожарной опасности конструкции;
- срок действия отчета об испытании.
5.2. Отчет является документом, указывающим предел огнестойкости и класс пожарной опасности конструкции, образцы которой прошли испытания. Отчет имеет определенный срок действия, в течение которого не должны производиться изменения:
- технической документации, конструкции, комплектности изделия;
- организации и технологии производства;
- метода испытания.
В том случае, если вышеуказанные изменения имели место, то сообщение об этом должно быть направлено заказчиком в лабораторию, проводившую испытания. На основании анализа влияния этих изменений на огнестойкость или пожарную опасность испытательная лаборатория принимает решение о продолжении действия отчета об испытании.
6. Натурные огневые испытания
6.1. При внедрении в практику строительства конструкций из панелей, для которых не может быть установлен предел огнестойкости или которые не могут быть отнесены к определенному классу пожарной опасности на основании стандартных огневых испытаний либо применения расчетно-аналитического метода, следует проводить огневые испытания натурных фрагментов зданий с учетом требований
ГОСТ Р 53309.
6.2. Порядок проведения и оценка огневых испытаний конструкций из панелей приведены в
Приложениях Г,
Д,
Е.
6.3. С учетом особенностей строительных конструкций из панелей при натурных огневых испытаниях и при огневых испытаниях на пожарную опасность и огнестойкость допускается использование метода тепловизионного контроля дополнительно к методу регистрации локальных температур, а также использование фото- и/или видеорегистрации указанных испытаний. Метод тепловизионного контроля и видеорегистрации приведен в
Приложении Ж.
7.2. Средства коллективной и индивидуальной защиты людей при испытаниях необходимо применять в соответствии с потенциальной опасностью веществ и материалов, содержание которых в образцах устанавливается на основании протоколов санитарно-эпидемиологических испытаний (см.
4.1.5.4 и
4.2.5.4).
(обязательное)
ПРИСПОСОБЛЕНИЯ ДЛЯ ОПРЕДЕЛЕНИЯ
ПОТЕРИ ЦЕЛОСТНОСТИ КОНСТРУКЦИИ <*>
--------------------------------
<*> Размеры указаны в мм.
На рисунке А.1 приложения А изображена конструкция щупов.
1 - ручка
Рисунок А.1. Конструкция щупов
(обязательное)
УСТАНОВКИ ТЕРМОЭЛЕКТРИЧЕСКИХ ПРЕОБРАЗОВАТЕЛЕЙ
(ТЕРМОПАР) ПРИ ИСПЫТАНИЯХ НА ОГНЕСТОЙКОСТЬ <*>
--------------------------------
<*> Размеры указаны в мм.
1 - 3 - заготовки панелей; 4 - вертикальные стыки;
5 - стальные балки; 6 - контур огневой камеры печи;
7 - кладка печи; 8 - теплоизоляция; 9 - крепления;

- термопары вне стыков для определения средней
температуры необогреваемой поверхности;

- термопары на стыках для определения максимальной
температуры; A, S - ширина и толщина панелей
Рисунок Б.1. Схема сборки образцов стен
и установки термопар при вертикальном расположении
профилированных стыков панелей
1 - 3 - заготовки панелей; 4 - вертикальные стыки;
5 - стальные стойки; 6 - контур огневой камеры печи;
7 - кладка печи; 8 - теплоизоляция; 9 - крепления;

- термопары вне стыков для определения средней
температуры необогреваемой поверхности;

- термопары на стыках для определения максимальной
температуры; A, S - ширина и толщина панелей
Рисунок Б.2. Схема сборки образцов стен
и установки термопар при горизонтальном расположении
профилированных стыков панелей
а - продольный разрез и вид сверху
б - поперечный разрез
1 - 3 - заготовки панелей; 4 - стыки; 5 - стальные балки;
6 - контур огневой камеры печи; 7 - кладка печи;
8 - теплоизоляция;

- термопары вне стыков
для определения средней температуры необогреваемой
поверхности;

- термопары на стыках
для определения максимальной температуры
Рисунок Б.3, лист 2. Схема сборки
образцов покрытий (перекрытий)
Рисунок Б.4. Места установки термопар на стыках
Рисунок Б.5. Места установки термопар на гофрах покрытия
(обязательное)
СХЕМЫ
УСТАНОВКИ ТЕРМОЭЛЕКТРИЧЕСКИХ ПРЕОБРАЗОВАТЕЛЕЙ
(ТЕРМОПАР) ПРИ ИСПЫТАНИЯХ НА ПОЖАРНУЮ ОПАСНОСТЬ <*>
--------------------------------
<*> Размеры указаны в мм.
1 - огневая камера; 2 - тепловая камера; 3 - перекрытие,
разделяющее огневую и тепловую камеры; 4 - ограждение
тепловой камеры; 5 - образец (5.1, 5.2 - заготовки панелей,
5.3 - стык); 6 - уплотнение; 7 - проем между обогреваемой
поверхностью образца и торцом перекрытия 3; 8 - граница
тепловой камеры и контрольной зоны образца; 9 - проем
для выхода газов; 10 - прокладка; 11 - 27 - термопары
Рисунок В.1. Схема сборки образцов и установки
термопар при испытании на пожарную опасность
вертикальных конструкций из панелей
Рисунок В.2. Схема сборки образцов и установки
термопар при испытании на пожарную опасность
горизонтальных конструкций из панелей
(рекомендуемое)
НАТУРНЫЕ ОГНЕВЫЕ ИСПЫТАНИЯ <*>
--------------------------------
<*> Размеры на рисунках указаны в мм (за исключением
рисунка Г.5).
Г.1. Основные положения
Г.1.1. Общие требования, в том числе требования безопасности при проведении натурных огневых испытаний (далее - испытаний) зданий или фрагментов зданий из панелей (далее - фрагментов), установлены
ГОСТ Р 53309.
Г.1.2. Масштаб испытаний, конструктивное и объемно-планировочное исполнение фрагментов должны обеспечивать достижение цели испытаний и ограничиваться с учетом технико-экономического обоснования.
Г.1.3. Для организации испытаний необходимо иметь данные о пожаровзрывоопасных характеристиках пожарной нагрузки, а также о пожарно-технических характеристиках материалов и строительных конструкций фрагментов, которые приведены в
Приложении Е.
Г.1.4. Испытания фрагментов следует проводить при отсутствии осадков, температуре воздуха от 5 °C до 25 °C и скорости ветра не более 5 м/с.
Г.2. Пример программы испытаний
Г.2.1. Программа испытаний (в настоящем примере) направлена на оценку пожарной опасности и огнестойкости строительных конструкций, которые обеспечивают пространственное формообразование испытуемого фрагмента при максимально возможном ассортименте соединительных элементов и стыков стен, перегородок, покрытий и перекрытий.
Проведение натурных огневых испытаний обусловлено тем, что при лабораторных испытаниях обеспечивается классификация только плоских строительных конструкций.
Г.2.2. Программой предусматривается наблюдение и измерение параметров во время огневого воздействия и обследование фрагмента после огневого воздействия.
Для наблюдения и документальной фиксации результатов предусматривается применение метода тепловизионного контроля и видеорегистрации, который приведен в
Приложении Ж.
Г.2.3. Длительность проведения натурных огневых испытаний ограничивается нормативным временем, предварительно установленным при испытании строительных конструкций на огнестойкость.
Нормативное время выбирают из стандартного ряда для предела огнестойкости строительной конструкции, который подтверждается при лабораторных испытаниях и соответствует определенной степени огнестойкости здания, сооружения или пожарного отсека, приведенной в нормативных правовых актах или нормативных документах по пожарной безопасности.
Если строительные конструкции, например стены и покрытия, имеют разные пределы огнестойкости, то для длительности проведения натурных огневых испытаний рекомендуется выбирать наибольшее значение.
Г.2.4. Подготовка проведения испытаний должна включать монтаж фрагмента по
Г.3, установку термопар и размещение регистрирующей аппаратуры по
п. Г.4 и формирование пожарной нагрузки по
Г.5.
До начала испытаний обеспечивается настройка регистрирующей аппаратуры, в том числе синхронизация записи времени.
Готовность к проведению испытаний фрагмента и оборудования оформляется актом с указанием климатических условий на момент начала испытаний.
Г.2.5. При натурных огневых испытаниях отсчет времени испытаний ведется с момента загорания всех модельных очагов пожарной нагрузки. При использовании двух и более модельных очагов необходимо обеспечивать одновременность загорания в пределах 30 с.
Г.2.6. Включение регистрирующей аппаратуры осуществляют до поджога пожарной нагрузки заблаговременно для обеспечения выхода на штатный режим работы. Измерения и регистрация во время проведения испытаний должны производиться в штатном режиме, изменение мест установки регистрирующей аппаратуры и корректировка настроек не допускаются.
Г.2.7. Прекращение горения пожарной нагрузки и фрагмента (теплоизоляции, покрытий) при достижении нормативного времени осуществляют проливом водой без разбора конструкций.
Г.2.8. Обследование с разбором конструкций для выявления повреждений материалов за нормативное время огневого воздействия проводят после охлаждения.
Г.2.9. Обработку результатов испытаний следует выполнять в соответствии с тем, как приведено в
Приложениях Д и
Ж.
Г.2.10. В качестве критериев оценки результатов могут быть выбраны характеристики, установленные как в ходе испытания, так и при проведении сравнительных испытаний.
Допускается сравнение результатов испытаний, которые получены только при одинаковых объемно-планировочных решениях фрагментов и при одинаковых пожарных нагрузках.
При сравнении устанавливается эффективность технических средств и решений системы противопожарной защиты фрагментов.
Г.2.11. При испытании нескольких фрагментов образец, теплоизоляция которого имеет минимальную горючесть, может быть принят в качестве эталонного (стандартного).
Г.3. Пример конструктивного и объемно-планировочного исполнения фрагмента
Г.3.1. В качестве фрагмента используется модель двухэтажного здания с открытыми проемами для свободного доступа воздуха. Поэтажные планы и виды представлены на
рисунках Г.1 -
Г.4. Модель включает отсек 1, в котором располагают пожарную нагрузку (Пн), отсек 2, который обогревается продуктами сгорания и имитирует лестничную клетку. Необогреваемые отсеки 3 - 7, прилегающие к обогреваемым, предназначены для контроля распространения горения по строительным конструкциям (см.
рисунок Г.4).
Рисунок Г.1. Фрагмент здания: фасад, вид сбоку (А);
вид сверху (Б); разрез перед перегородкой (В-В);
С - стыки панелей; Р - контур рамы; S - толщина панелей;
Пк - перекрытие; Вс - внутренняя стена
Рисунок Г.2. Фрагмент здания: разрез перед внутренней
стеной (Д-Д); вид на перекрытие (Е); К - контур
наружных стен; Пд - перегородка; S - толщина панелей
Рисунок Г.3. Рама фрагмента
Рисунок Г.4. Поэтажные планы
Г.3.2. Модель собирают в центре горизонтальной площадки с плотным грунтом без растительности размером не менее 40 x 40 м. Допускается щебеночное или бетонное основание.
Г.3.3. Ограждающие конструкции фрагмента собирают из панелей, которые навешивают на раму из С-образных профилей сечением 200 x 80 мм из стали толщиной 4 мм. Требуемая огнестойкость балок и колонн рамы обеспечивается огнезащитным покрытием.
Г.3.4. Исполнение панелей, креплений, конструкций стыков между элементами, облицовок торцов и откосов выбирают в соответствии с нормативными документами, инструкциями по применению и техническими условиями.
Г.4. Пример установки термопар и размещения регистрирующей аппаратуры
Г.4.1. Точки установки термопар указаны на
рисунке Г.5, контролируемые процессы и измеряемые температуры - в
таблице Г.1.
Рисунок Г.5. Схема расстановки термопар.
Уровни установки 3,1 и 5,3 м указаны для панелей
толщиной 100 мм и должны изменяться на разницу
между фактической толщиной и указанным значением
Таблица Г.1
Температуры и контролируемые процессы
Точка | Измеряемая температура | Контролируемые процессы |
1 и 2 | В огневой камере - отсек 1 | Горение модельного очага пожара |
3 | В тепловой камере - отсек 2 | Распространение продуктов горения |
4 | Необогреваемой поверхности стены между отсеками 1 и 4 | Теплопроводность и распространение горения от огневой камеры через стену |
5 | Необогреваемой поверхности перекрытия между отсеками 1 и 5 | Теплопроводность и распространение горения от огневой камеры через перекрытие |
6 | Необогреваемой поверхности покрытия над отсеком 2 | Теплопроводность и распространение горения через покрытие |
7 | Необогреваемой нижней поверхности перекрытия | Распространение горения по перекрытию в необогреваемые отсеки 3 и 6 |
8 | Необогреваемой верхней поверхности перекрытия |
9 | Необогреваемой внутренней поверхности стены | Распространение горения из огневой камеры в необогреваемые отсеки 5 и 7 вверх по стене с внутренней и внешней сторон |
10 | Необогреваемой внешней поверхности стены |
11 | Необогреваемой внутренней поверхности стены |
12 | Необогреваемой внешней поверхности стены |
13 | Необогреваемой внутренней поверхности стены | Распространение горения из огневой камеры в необогреваемый отсек 4 горизонтально по стене |
14 | Необогреваемой поверхности перегородки | Распространение горения горизонтально по перегородке из обогреваемых отсеков 1 и 2 в необогреваемый отсек 4 |
15 | Необогреваемой нижней поверхности покрытия | Распространение горения по покрытию из обогреваемого отсека 2 |
16 | Необогреваемой верхней поверхности покрытия |
Г.4.2. Спаи термопар в точках, указанных на поверхности панелей, должны заглубляться под обшивку в теплоизоляцию на расстояние от 5 до 10 мм. Точки установки термопар следует смещать в сторону от стыков на расстояние от 50 до 100 мм, обеспечивая указанные расстояния до обогреваемых поверхностей.
Г.4.3. Термопары 1 - 3 закрепляют через керамические изоляторы на стальных подвесах (струнах) диаметром от 1,5 до 2,5 мм к перекрытию или покрытию, обеспечивая натяжку струн грузами массой от 30 до 50 г.
Г.5. Пример пожарной нагрузки
Г.5.1. В качестве горючего материала используются бруски хвойных пород не ниже 3-го сорта сечением (40 +/- 1) мм и длиной (800 +/- 10) мм. Влажность брусков должна составлять от 7% до 18% по
ГОСТ 16588.
Г.5.2. Пожарная нагрузка (модельный очаг пожара) выполняется в виде трех штабелей из брусков дерева хвойных пород, сложенных на балках рамы, как показано на рисунке Г.6. Число брусков (n = 132) выбирают при влажности древесины W = 10% и плотности древесины

. Размещение пожарной нагрузки показано на
рисунках Г.4 и
Г.5.
Ш - штабель из брусков размером 40 x 40 x 800 мм;
Б - балки каркаса
Рисунок Г.6. Пожарная нагрузка
Г.5.3. В зависимости от влажности W и плотности древесины

для получения постоянной суммарной величины теплоты сгорания следует производить расчет необходимого числа брусков модельного очага пожара (в каждом штабеле) по формуле

(Г.1)
Допускается при средних показателях древесины с учетом зависимости (Г.1) использовать значения, указанные в таблице Г.2.
Таблица Г.2
Характеристики пожарной нагрузки (справочные данные)
Параметры | Значения | Размерность | Примечания |
Влажность древесины W | 10,0 | % | Следует определять до испытания |
Плотность древесины  | 500 | кг/м3 |
Число брусков n | 132 | шт. | В одном штабеле |
Массовая теплотворная способность древесины  | 17,17 | МДж/кг | При влажности древесины 10% |
Суммарная теплота сгорания пожарной нагрузки (трех штабелей)  | 4352 | МДж | Постоянный параметр испытаний |
Площадь отсека 1 | 5,4 | м2 | 3,6 x 1,5 м |
Пожарная нагрузка | 805 | МДж/м2 | На площадь отсека 1 |
46,9 | кг/м2 |
Г.5.4. Для объемного одновременного розжига брусков в штабеле допускается использовать дизельное топливо или керосин, ориентировочно 1 л на штабель. Следует равномерно пролить бруски, дать жидкости впитаться в древесину в период от 1 до 3 мин и поджечь их факелом с ручкой длиной от 0,7 до 1,0 м.
Г.6. Пример нагрузки фрагмента и измерения деформаций
Г.6.1. Статическая нагрузка распределяется по покрытию и перекрытию из расчета заявленной изготовителем несущей способности и длины пролетов.
Г.6.2. Установка контактных индикаторов деформации (прогибомеров) может осуществляться только с неподвижной фиксацией относительно основания (грунта). Рекомендуется крепление верхнего блока для протяжки струны прогибомера на металлоконструкции, расположенной над покрытием на высоте не менее 2,0 м и на расстоянии не менее 3,0 м от обогреваемых стен. Опоры металлоконструкции не должны находиться напротив проемов.
Г.6.3. Стальные струны прогибомеров следует крепить к перекрытию по центру отсека 1 и к покрытию по центру отсека 2, при этом струну прогибомера от перекрытия необходимо пропускать через отверстие в покрытии диаметром от 20 до 30 мм, исключая касание теплоизоляции и обшивок.
Г.6.4. В качестве индикаторов деформации (прогибомеров) должны использоваться приборы, обеспечивающие измерение абсолютных значений деформации с погрешностью не более +/- 0,2 мм, запись информации в электронном виде с интервалом не более 1 с и погрешностью записи абсолютного времени регистрации не более +/- 1 с/ч. Вместо индикаторов с электронной записью допускается видеорегистрация показаний стрелочного или цифрового индикатора.
Г.6.5. Измерение линейных размеров, в том числе повреждений материалов, допускается с погрешностью не более +/- 1 мм.
(рекомендуемое)
ОЦЕНКА РЕЗУЛЬТАТОВ НАТУРНЫХ ОГНЕВЫХ ИСПЫТАНИЙ
Д.1. При оценке результатов испытаний допускается не учитывать повреждения материалов и изменения температур на границах панелей в зоне шириной до 0,5 м, если эти границы совпадают с границами фрагмента (образца) и не соединяются со смежными строительными конструкциями.
Д.2. Допускается не учитывать выход продуктов горения в том случае, если их температура не превышает 220 °C и к фрагменту (строительной конструкции) не предъявляются специальные требования по сопротивлению дымогазопроницанию.
Д.3. Появление температурных аномалий (превышение базовой температуры на 100 °C и более) для поверхностей панелей (кроме их границ) свидетельствует о дефектах изготовления (неравномерном распределении теплоизоляции, неоднородностях, пустотах).
Образцы с указанными дефектами и соответствующие результаты должны быть забракованы, если общая площадь таких температурных аномалий превышает 7% площади образца.
Указанные температурные аномалии могут не учитываться только при оценке результатов испытаний, если панели имеют специально структурированную (сотовую) теплоизоляцию.
Допускаются температурные аномалии в местах установки креплений панелей, что не исключает необходимости оценки огнестойкости и пожарной опасности прилегающих участков.
Д.4. Критерием подтверждения соответствия выбранного предела огнестойкости (нормативного времени) и степени огнестойкости здания, сооружения или пожарного отсека является время наступления предельных состояний. Время наступления предельных состояний при натурных огневых испытаниях не должно быть меньше 80% времени, установленного при лабораторных испытаниях.
Д.5. Оценку пожарной опасности и эффективности огнезащиты рекомендуется осуществлять с учетом схем (см.
рисунки Д.1 -
Д.6), которые показывают распределение температур, а также области повреждения материалов при положительной оценке результатов испытаний для нормативного времени испытаний, например T = 15 мин.
Рисунок Д.1. Температуры в контрольных точках 4, 5, 9, 10
и повреждения панелей в месте пересечения стены
и перекрытия между отсеками 1, 4, 5, 7
Рисунок Д.2. Температура в контрольной точке 6 и схема
повреждения теплоизоляции в покрытии отсека 2
Рисунок Д.3. Температуры в контрольных точках 7, 8
и схема распространения горения от отсека 2
по перекрытию между отсеками 3 и 6
Рисунок Д.4. Температуры в контрольных точках
15, 16 и схема распространения горения
из отсека 2 по покрытию между отсеками 2 и 5
Рисунок Д.5. Температура в контрольной точке 13
и схема распространения горения из отсека 1
по стенам отсеков 1 и 4, вид сверху
Рисунок Д.6. Температура в контрольной точке 14 и схема
распространения горения из отсеков 1 и 2 по строительным
конструкциям между отсеками 1 - 4, вид сверху
Д.6. Наличие конструктивных разрывов и огнезащиты следует рассматривать наравне с другими конструктивными и технологическими решениями.
Д.7. Принимается, что конструкции из панелей не распространяют горения по нормали от нагретой поверхности, если за нормативное время при испытании на огнестойкость повреждение теплоизоляции не превышает 80% его толщины и температура в контрольных точках не более 320 °C. Повреждением по
ГОСТ 30403 считается обугливание, оплавление и выгорание материалов на глубину более 2 мм.
Д.8. Критерием подтверждения класса пожарной опасности К0 является отсутствие повреждений материалов и горения. Данное требование распространяется на защитно-декоративные покрытия, уплотнители, пароизоляцию, клеящие, связующие составы и т.д.
Д.9. Для подтверждения класса пожарной опасности К1 (T) принимается, что конструкции из панелей не распространяют горение, если за нормативное время T при натурных огневых испытаниях повреждения теплоизоляции необогреваемых частей покрытий и перекрытий не превышают 0,2 м, стен и перегородок - 0,4 м и/или температура в контрольных точках не превышает 320 °C. Размер повреждений теплоизоляции измеряют от обогреваемых частей, и контрольные точки учитывают в том случае, если они также находятся на расстоянии 0,2 м по горизонтали и 0,4 м по вертикали от обогреваемых частей строительных конструкций.
Д.10. Ограничение температуры по Д.9 применяется для результатов, полученных при термографировании, наравне с данными, полученными контактным методом.
Д.11. Для подтверждения класса пожарной опасности К2 (T) допускается использовать контрольные точки и размеры повреждений, указанные в
Д.9 при времени испытаний T, составляющем не менее 70% от нормативного.
Д.12. При разном нормативном времени отдельных частей фрагмента оценку распространения горения необходимо производить по температурам в контрольных точках для разных соответствующих моментов времени, а повреждения материалов учитывать только для тех строительных конструкций, для которых нормативное время совпало с общей продолжительностью испытаний.
Д.13. Эффективность технических решений исследуемых фрагментов (образцов) по отношению к эталонному (стандартному) фрагменту (образцу) количественно оценивают путем сравнения времени достижения предельных состояний и размеров повреждений материалов.
Д.14. Оценки по
Д.1 -
Д.3, Д.13 допускается применять к результатам лабораторных испытаний на огнестойкость и пожарную опасность так же, как для оценки результатов натурных огневых испытаний.
(справочное)
ПАНЕЛИ И КОНСТРУКЦИИ ИЗ ПАНЕЛЕЙ, ИДЕНТИФИКАЦИЯ
И ПОЖАРНО-ТЕХНИЧЕСКИЕ ХАРАКТЕРИСТИКИ
Е.1. Панели, изготавливаемые по стандартам или техническим условиям, предназначены для устройства строительных конструкций: стен, перегородок, перекрытий и покрытий кровли (далее - покрытий) зданий и сооружений.
Е.2. Конструкции из панелей состоят из несущих и ограждающих частей. Здания и сооружения из панелей, как правило, каркасно-навесного типа монтируют путем крепления панелей на каркасе, при этом основная нагрузка ложится на балки и колонны. Панели выполняют функцию ограждающих частей, но могут воспринимать ветровую и снеговую нагрузку, а также полезную нагрузку при использовании в перекрытиях.
Е.3. Панели состоят из теплоизоляции, которая защищена обшивками от внешнего воздействия: солнечного света, осадков, механических нагрузок, атмосферного и теплового влияния.
Е.4. В качестве теплоизоляции могут применяться пенополиуретан (ПУР, PUR), пенополиизоцианурат (ПИР, PIR), пенополистирол, пенофенопласт, пеностекло, минеральная вата, стекловата, базальтовая вата и подобные материалы.
Е.5. В качестве обшивки используется профилированный или плоский металлический лист (сталь, алюминиевые и титановые сплавы, латунь и т.д.).
Е.6. По периметру панели могут иметь профилированные кромки, которые обеспечивают влагозащитное и теплостойкое соединение смежных деталей. Стыки панелей и конструкций из панелей, кроме того, формируют с применением накладок и вставок различного сечения, уплотнителей и теплоизоляции из различных материалов.
Е.7. Дополнительно применяют защитно-декоративные покрытия обшивки, огнезащитные покрытия и огнестойкие материалы для защиты конструктивных элементов.
Е.8. Для оценки, сравнения и выбора конструкций из панелей рекомендуется применять комплекс пожарно-технических характеристик по перечню, указанному в таблице Е.1.
Таблица Е.1
Перечень пожарно-технических характеристик
Строительные конструкции | Показатели | Диапазон значений | Определение |
Покрытия и перекрытия | Класс пожарной опасности <*> | К0 (T), К1 (T), К2 (T), К3 (T) | |
Стены и перегородки | Пределы огнестойкости <**> | EI (T) | |
Покрытия | RE (T) |
Перекрытия | REI (T) |
Балки и колонны | R (T) |
<*> При продолжительности теплового воздействия T = 15, 30, 45 мин. <**> По времени T достижения признаков предельных состояний: потери несущей способности R, целостности E, теплоизолирующей способности I, где T = 15, 30, 45, 60, 90, 120, 150, 180, 240, 360 мин. |
Е.9. Помимо значений пожарно-технических характеристик панелей в документации и в маркировке должны быть приведены сведения, необходимые для идентификации соответствующих конструкций и материалов, в том числе для стыков панелей.
(рекомендуемое)
МЕТОД ТЕПЛОВИЗИОННОГО КОНТРОЛЯ И ВИДЕОРЕГИСТРАЦИИ <*>
--------------------------------
<*> Размеры на рисунках указаны в мм.
| | ИС МЕГАНОРМ: примечание. В официальном тексте документа, видимо, допущена опечатка: стандарт имеет номер ГОСТ Р 54852, а не ГОСТ 54852. | |
Ж.1. Принципы тепловизионного контроля установлены
ГОСТ 54852. Тепловизионный контроль и видеорегистрация при огневых испытаниях осуществляются с целью своевременной документальной фиксации состояния образцов конструкций из панелей и фрагментов зданий.
Тепловизионный контроль осуществляется тепловизорами с цифровой записью цветных термограмм.
Тепловизоры должны быть утвержденного типа и внесены в Государственный реестр средств измерений, допущены к применению на территории Российской Федерации и поверены в соответствии с
ГОСТ Р 8.619.
Основные технические характеристики тепловизоров выбирают с учетом ограничений, указанных в таблице Ж.1.
Таблица Ж.1
Минимальные требования к тепловизорам
Параметры | Значения |
Диапазон измерения температур | |
Основная погрешность измерения абсолютных температур по ГОСТ Р 8.619 | Не более +/- 2 °C |
(Число точек в строке) x (число строк в кадре термограмм) | Не менее 640 x 480 |
Угол поля зрения | Не менее 20° |
Частота регистрируемых термограмм | Не менее  |
Погрешность фиксации абсолютного времени термограмм | Не более +/- 1 с/ч |
<1> Допускается применение тепловизоров с разбивкой диапазона на несколько интервалов. |
Ж.2. Видеорегистрация и термографирование при огневых испытаниях должны осуществляться соответствующими приборами, установленными неподвижно в определенных точках съемки, которые выбирают до начала испытаний в целях получения наиболее полной информации о деформациях образцов, процессах горения и тепломассообмена.
Ж.3. Термографирование рекомендуется сопровождать и поверять контактным методом измерения температуры в точке, расположенной на образце в поле зрения тепловизора.
Программа просмотра и обработки обзорных термограмм должна обеспечивать возможность расстановки на тепловом изображении маркеров (точек) с автоматическим определением их температур с погрешностью не более +/- 1 °C, а также сохранение в электронном виде цветных обзорных термограмм с маркерами и временем фиксации теплового изображения с погрешностью не более +/- 1 с.
Ж.4. Видеорегистрацию рекомендуется сопровождать измерением деформации для одновременной записи видимых изменений образца и показаний индикатора деформации, например путем размещения шкалы прогибомера в поле зрения видеорегистратора.
Регистрация процессов при огневых испытаниях должна осуществляться цветными видеорегистраторами, которые выбирают с учетом ограничений, указанных в таблице Ж.2.
Таблица Ж.2
Минимальные требования к видеорегистраторам
Параметры | Значения |
(Число точек в строке) x (число строк в кадре) | Не менее 1920 x 1080 |
Число регистрируемых кадров | Не менее 600 мин-1 |
Угол поля зрения | Не менее 50° |
Минимальная освещенность | 8 люкс |
Погрешность фиксации абсолютного времени | Не более +/- 1 с/ч |
Программа просмотра и обработки записей видеорегистраторов должна обеспечивать сохранение в электронном виде отдельных цветных кадров и времени фиксации изображения объекта с погрешностью не более +/- 1 с.
Функции видеорегистратора и тепловизора могут быть совмещены в одном приборе.
Ж.5. Для достоверной регистрации деталей точку наблюдения необходимо выбирать таким образом, чтобы образец или его контролируемая часть занимали не менее 70% по высоте либо по ширине поля зрения видеорегистратора и тепловизора. Выбор точек наблюдения при огневых испытаниях показан на
рисунках Ж.1 -
Ж.3.
Рисунок Ж.1. Размещение оборудования и установка
регистрирующей аппаратуры при испытаниях
образцов покрытий и перекрытий на огнестойкость
Рисунок Ж.2. Установка регистрирующей аппаратуры
при испытаниях образцов покрытий
и перекрытий на пожарную опасность
Рисунок Ж.3. План размещения фрагмента
и установки регистрирующей аппаратуры
при натурных огневых испытаниях
Ж.6. При испытаниях образцов строительных конструкций на вертикальных печах точка наблюдения должна находиться по центру образца на высоте от 1,6 до 2 м от нижней кромки образца, а сам образец должен целиком попадать в поле зрения регистрирующей аппаратуры.
Ж.7. При невозможности наблюдения сверху в испытаниях на горизонтальных печах допускается контроль образцов под углом, как показано на
рисунках Ж.1 и
Ж.2. Грузы, имитирующие распределенную нагрузку, следует устанавливать вне поля зрения стыков панелей, а выбор расстояния должен обеспечивать захват в поле зрения прилегающих к стыкам участков шириной не менее 0,2 м (см.
рисунок Ж.2).
Ж.8. При натурных огневых испытаниях следует осуществлять термографирование и видеонаблюдение не менее чем с двух точек съемки (см.
рисунок Ж.3). Точка съемки тепловизора Т1 находится на линии стыка между перегородкой и перекрытием, что обеспечивает контроль прилегающих участков внутренней стены.
Ж.9. Натурное термографирование проводят при отсутствии атмосферных осадков. Для уменьшения засвечивания термограмм горячими продуктами горения рекомендуется монтировать фрагмент с расположением открытых проемов в направлении преобладающего ветра и располагать тепловизор со стороны стен без проемов.
Ж.10. До начала испытаний необходимо синхронизировать записи изображений, термограмм и показаний термопар путем установки равного абсолютного времени для регистрирующей аппаратуры с погрешностью не более 5 с. Видеорегистрацию, термографирование и измерение температур контактным методом начинают за время от 1 до 2 мин до начала огневого воздействия.
Ж.11. Компьютерную обработку термограмм проводят для получения кадров теплового изображения и распределения температур на поверхности строительной конструкции в соответствии с длительностью огневого воздействия.
Ж.12. Потерю теплоизолирующей способности образца или участка фрагмента фиксируют при появлении температурных аномалий с температурой более 220 °C, которая наблюдается не менее 10 с.
Ж.13. Потерю целостности образца или участка фрагмента фиксируют при появлении температурных аномалий с температурой более 320 °C, которая наблюдается не менее 10 с.
Ж.14. При компьютерной обработке термограмм маркерами отмечают точки температурных аномалий (см.
рисунок Ж.4). В рассматриваемом примере маркерами с температурами указаны температурные аномалии, условно (вместо цветного поля) изображены контуры температурных аномалий. Области увеличенной температуры формируются вдоль стыков. Для испытанного образца (фрагмент 1) кадр 106 подтверждает потерю теплоизолирующей способности в момент времени 0:06:17, кадр 114 - потерю целостности в момент времени 0:06:55. Обзорные термограммы являются документальным подтверждением предельных состояний.
Рисунок Ж.4. Пример оформления обзорных термограмм
Ж.15. Компьютерную обработку записей видеорегистратора проводят для получения кадров видимого изображения образцов и фрагментов в соответствии с длительностью огневого воздействия.
Ж.16. Если на записи видеорегистратора виден прорыв огня через строительную конструкцию, длительность которого составляет 10 с и более, то по начальному кадру прорыва огня фиксируют потерю целостности ограждающей части строительной конструкции.
Ж.17. По кадрам видимого изображения, если на них видно начало мгновенного обрушения, фиксируют потерю несущей способности строительной конструкции. Дополнительно видеорегистратором могут быть записаны показания индикатора деформации, соответствующие предельным значениям величины или скорости нарастания деформации по
ГОСТ 30247.1. В этом случае при компьютерной обработке для соответствующих кадров необходимо указывать относительную деформацию

или скорость нарастания деформации

, которые рассчитывают по формулам и сравнивают с предельными значениями, например для горизонтальных (изгибаемых) строительных конструкций:

(Ж.1)

(Ж.2)
где L - длина пролета, см;
S - толщина панелей, см;

,

- зафиксированные на кадрах 1 и 2 показания индикатора деформации, см;

,

- время фиксации кадров 1 и 2, мин.
Или аналогично для вертикальных строительных конструкций:

(Ж.3)

(Ж.4)
где L - высота строительной конструкции, см.
Для расчетов по
формулам (Ж.2), (Ж.4) рекомендуется выбирать кадры, отличающиеся по времени фиксации

на время от 0,05 до 0,1 мин.
Ж.18. Если фиксация потери несущей способности осуществляется при натурных огневых испытаниях, то с учетом деформации всего фрагмента допускается увеличение предельных значений в
формулах (Ж.1) - (Ж.4) на 50%.
Ж.19. Кадры видеорегистрации в момент прорыва огня, а также кадры с указанием величины и скорости нарастания деформации являются документальным подтверждением соответствующих предельных состояний.
Ж.20. При испытаниях на пожарную опасность по
ГОСТ 30403 термографирование и видеорегистрацию используют для фиксации признаков распространения горения: раскрытия стыка между панелями, появления дыма, пламени, изменения цвета и состояния поверхностей.