Главная // Актуальные документы // ГОСТ Р (Государственный стандарт)СПРАВКА
Источник публикации
М.: ФГБУ "РСТ", 2022
Примечание к документу
Документ включен в
Перечень документов в области стандартизации, в результате применения которых на добровольной основе обеспечивается соблюдение требований Федерального
закона от 30.12.2009 N 384-ФЗ "Технический регламент о безопасности зданий и сооружений" (
Приказ Росстандарта от 02.04.2020 N 687).
Документ
введен в действие с 01.02.2022.
Название документа
"ГОСТ Р 59972-2021. Национальный стандарт Российской Федерации. Системы вентиляции и кондиционирования воздуха общественных зданий. Технические требования"
(утв. и введен в действие Приказом Росстандарта от 29.12.2021 N 1875-ст)
"ГОСТ Р 59972-2021. Национальный стандарт Российской Федерации. Системы вентиляции и кондиционирования воздуха общественных зданий. Технические требования"
(утв. и введен в действие Приказом Росстандарта от 29.12.2021 N 1875-ст)
Утвержден и введен в действие
агентства по техническому
регулированию и метрологии
от 29 декабря 2021 г. N 1875-ст
НАЦИОНАЛЬНЫЙ СТАНДАРТ РОССИЙСКОЙ ФЕДЕРАЦИИ
СИСТЕМЫ ВЕНТИЛЯЦИИ И КОНДИЦИОНИРОВАНИЯ ВОЗДУХА
ОБЩЕСТВЕННЫХ ЗДАНИЙ
ТЕХНИЧЕСКИЕ ТРЕБОВАНИЯ
Ventilation and air conditioning systems
of public buildings. Technical requirements
ГОСТ Р 59972-2021
Дата введения
1 февраля 2022 года
1 РАЗРАБОТАН Некоммерческим партнерством "Инженеры по отоплению, вентиляции, кондиционированию воздуха, теплоснабжению и строительной теплофизике" (НП "АВОК")
2 ВНЕСЕН Техническим комитетом по стандартизации ТК 465 "Строительство"
3 УТВЕРЖДЕН И ВВЕДЕН В ДЕЙСТВИЕ
Приказом Федерального агентства по техническому регулированию и метрологии от 29 декабря 2021 г. N 1875-ст
Правила применения настоящего стандарта установлены в статье 26 Федерального закона от 29 июня 2015 г. N 162-ФЗ "О стандартизации в Российской Федерации". Информация об изменениях к настоящему стандарту публикуется в ежегодном (по состоянию на 1 января текущего года) информационном указателе "Национальные стандарты", а официальный текст изменений и поправок - в ежемесячном информационном указателе "Национальные стандарты". В случае пересмотра (замены) или отмены настоящего стандарта соответствующее уведомление будет опубликовано в ближайшем выпуске ежемесячного информационного указателя "Национальные стандарты". Соответствующая информация, уведомление и тексты размещаются также в информационной системе общего пользования - на официальном сайте Федерального агентства по техническому регулированию и метрологии в сети Интернет (www.rst.gov.ru)
Настоящий стандарт содержит требования к системам вентиляции и кондиционирования воздуха общественных зданий в целях обеспечения нормативных параметров микроклимата для находящихся в них людей во все периоды года.
В настоящем стандарте приведены:
- исходные данные и требования к проектированию систем вентиляции и кондиционирования воздуха общественных зданий;
- требования к параметрам воздушной среды помещений;
- требования по организации воздухообмена в помещениях;
- требования по организации работ от начала проектирования до ввода систем в эксплуатацию;
- справочные материалы.
При выборе проектных решений следует выполнять также требования других нормативных документов, относящихся к вентиляции и кондиционированию воздуха, выходящих за рамки настоящего стандарта.
В приложениях к настоящему стандарту приведены:
- рекомендации по проектированию систем вентиляции и кондиционирования воздуха
(приложение А);
- данные о сроках службы вентиляционного оборудования и расходах на техническое обслуживание систем вентиляции и кондиционирования воздуха
(приложение Б);
- данные по проектированию и эксплуатации систем вентиляции и кондиционирования воздуха с низким потреблением энергии
(приложение В);
- рекомендуемые скорости движения воздуха в системах вентиляции и кондиционирования воздуха
(приложение Г).
Настоящий стандарт устанавливает технические требования к проектированию систем вентиляции и кондиционирования воздуха новых, реконструируемых и капитально ремонтируемых общественных зданий и сооружений, в том числе при изменении их функционального назначения, а также на помещения общественного назначения, встраиваемые в жилые здания и в другие объекты, соответствующие санитарно-эпидемиологическим требованиям к общественным зданиям (далее - общественные здания).
Перечень основных групп зданий и помещений общественного назначения, на которые распространяются требования настоящего стандарта, приведен в
СП 118.13330.
Настоящий стандарт не распространяется на здания с естественной вентиляцией.
В настоящем стандарте использованы нормативные ссылки на следующие документы:
ГОСТ 21.602-2016 Система проектной документации для строительства. Правила выполнения рабочей документации систем отопления, вентиляции и кондиционирования
ГОСТ 22270 Системы отопления, вентиляции и кондиционирования. Термины и определения
ГОСТ 30494 Здания жилые и общественные. Параметры микроклимата в помещениях
ГОСТ 31167 Здания и сооружения. Методы определения воздухопроницаемости ограждающих конструкций в натурных условиях
ГОСТ 31532 Энергосбережение. Энергетическая эффективность. Состав показателей. Общие положения
ГОСТ Р ЕН 779 Фильтры очистки воздуха общего назначения. Определение технических характеристик
ГОСТ Р ИСО 7730 Эргономика термальной среды. Аналитическое определение и интерпретация комфортности теплового режима с использованием расчета показателей PMV и PPD и критериев локального теплового комфорта
СП 60.13330 "СНиП 41-01-2003 Отопление, вентиляция и кондиционирование воздуха"
СП 73.13330 "СНиП 3.05.01-85 Внутренние санитарно-технические системы зданий"
СП 118.13330 "СНиП 31-06-2009 Общественные здания и сооружения"
Примечание - При пользовании настоящим стандартом целесообразно проверить действие ссылочных стандартов (сводов правил) в информационной системе общего пользования - на официальном сайте Федерального агентства по техническому регулированию и метрологии в сети Интернет или по ежегодному информационному указателю "Национальные стандарты", который опубликован по состоянию на 1 января текущего года, и по выпускам ежемесячного информационного указателя "Национальные стандарты" за текущий год. Если заменен ссылочный документ, на который дана недатированная ссылка, то рекомендуется использовать действующую версию этого документа с учетом всех внесенных в данную версию изменений. Если заменен ссылочный документ, на который дана датированная ссылка, то рекомендуется использовать версию этого документа с указанным выше годом утверждения (принятия). Если после утверждения настоящего стандарта в ссылочный документ, на который дана датированная ссылка, внесено изменение, затрагивающее положение, на которое дана ссылка, то это положение рекомендуется применять без учета данного изменения. Если ссылочный документ отменен без замены, то положение, в котором дана ссылка на него, рекомендуется применять в части, не затрагивающей эту ссылку. Сведения о действии сводов правил целесообразно проверить в Федеральном информационном фонде стандартов.
В настоящем стандарте применены термины по
ГОСТ 22270 и
СП 60.13330, а также следующие термины с соответствующими определениями:
3.1 эксплуатируемая (рабочая) зона: Пространство определенного объема в помещении, в котором предусмотрено нахождение людей и заданы требования к параметрам воздушной среды.
Примечание - Эксплуатируемая (рабочая) зона определяется с учетом размеров и назначения помещения. Как правило, термин "эксплуатируемая зона" используется только для случая нахождения в ней людей и задается объемом воздуха, ограниченным определенными вертикальными и горизонтальными плоскостями. Вертикальные плоскости параллельны стенам помещения. Как правило, задается высота эксплуатируемой зоны. Эксплуатируемая (рабочая) зона в помещении является пространством, в котором предусмотрено нахождение людей и заданы требования к параметрам окружающей среды. Характеристики эксплуатируемой (рабочей) зоны приведены в
5.2.
3.2 эффективность вентиляции Эв: Связь между концентрацией загрязнений в приточном воздухе, вытяжном воздухе и в зоне дыхания (внутри эксплуатируемой зоны).
Примечание - Эффективность вентиляции Эв вычисляют по формуле

, (1)
где Cвыт - концентрация загрязнений в вытяжном воздухе;
Cпр - концентрация загрязнений в приточном воздухе;
Cвн - концентрация загрязнений внутри помещения (в зоне дыхания в пределах эксплуатируемой зоны).
Эффективность вентиляции зависит от распределения воздуха, а также от вида и места нахождения источников загрязнения воздуха. Она может быть разной для различных видов загрязнений. Если происходит полное удаление загрязнений, то эффективность вентиляции равна единице.
3.3 удельная мощность вентилятора Pв, Вт·с/м3: Количество электроэнергии, потребляемой вентилятором, относительно перемещаемого объема.
Примечание - Удельную мощность вентилятора Pв, Вт·с/м3, вычисляют по формуле

, (2)
где P - потребляемая мощность электродвигателя вентилятора, Вт;
gv - номинальный расход воздуха через вентилятор, м3/с;

- перепад давления воздуха на вентиляторе, Па;

- общий КПД вентилятора, электродвигателя и тракта прохождения воздуха.
Удельную мощность вентилятора определяют для номинального расхода воздуха при чистых фильтрах и при отсутствии обходных путей. Плотность воздуха принята равной 1,2 кг/м3.
3.4 рекуперация тепла: Повторное использование тепла воздуха, удаляемого из помещений (здания).
3.5 рециркуляция воздуха: Повторная подача части вытяжного воздуха в помещение.
3.6 стак-эффект (эффект тяги): Явление, возникающее в зданиях в холодный период года из-за разности температур внутри и снаружи, при котором связанные объемы в здании (лифтовые шахты, лестничные клетки и т.п.) начинают работать по принципу дымовой трубы, т.е. в них возникает неконтролируемая тяга.
4 Обозначения и единицы измерения
В настоящем стандарте применяют обозначения и единицы измерения, приведенные в таблице 1, включая единицы, указанные в скобках.
Таблица 1
Обозначения и единицы измерения
Наименование параметра | Обозначение | Единица измерения |
Перепад давления | | Па |
Разность температур | | К |
Эффективность вентиляции | Эв | - |
Температура по Цельсию | T | °C |
Температура воздуха в помещении | Ta | °C |
Средняя радиационная температура | Tr | °C |
Рабочая температура | To | °C |
Плотность | | кг/м3 |
Тепловая нагрузка (нагрузка по холоду) | Q (Qx) | Вт (кВт) |
Площадь зоны | A | м2 |
Концентрация | C | мг/м3 |
Удельная теплоемкость при постоянном давлении | | Дж/(кг·К) |
Диаметр | d | м |
Удельные утечки | f | л/(с·м2) |
Высота | h | м |
Тепловое сопротивление одежды | Icl | clo |
Длина | l | м |
Показатель метаболизма | M | мет |
Срок службы | n | год |
Показатель nL50 | nL50 | ч-1 |
Мощность | P | Вт |
Удельная мощность вентилятора | Pв | Вт·с/м3 |
Давление | p | Па |
Массовый расход | gm | кг/с |
Объемный расход | gv | м3/ч (л/с, м3/с) |
Время | t | с (ч) |
Объем | V | м3 |
Скорость воздуха | v | м/с |
5 Исходные данные и положения для проектирования
5.1 Общие положения
Исходные данные являются основой для проектирования систем вентиляции и кондиционирования. Они должны содержать критерии для проектирования, монтажа и проведения приемо-сдаточных испытаний систем и общие критерии для всех сторон, включая заказчика, подрядчика, проектную организацию и технический персонал, занимающийся эксплуатацией и техническим обслуживанием систем.
Состав необходимых исходных данных приведен в
разделе 9, но по согласованию сторон может быть расширен.
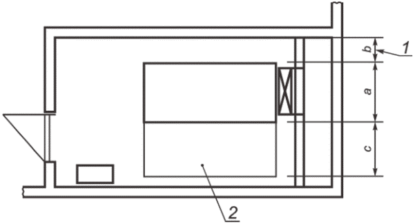
5.2 Эксплуатируемая (рабочая) зона помещений
В эксплуатируемой (рабочей) зоне должны быть выполнены требования к параметрам воздуха в помещениях, в том числе требования к комфорту. Для оценки соответствия требованиям может быть использована вся площадь помещения, но соответствие требованиям к комфорту за пределами эксплуатируемой (рабочей) зоны не гарантируется.
Типовые размеры эксплуатируемой (рабочей) зоны приведены на рисунке 1 и в
таблице 2.
Рисунок 1 - Пример эксплуатируемой (рабочей) зоны
(выделена фоном)
Таблица 2
Размеры эксплуатируемой (рабочей) зоны
Обозначение расстояния от внутренней поверхности до | Типовой диапазон значений, м | Типовое значение, м |
A | уровня пола | От 0 до 0,20 включ. | 0,05 |
B | верхнего уровня рабочей зоны | От 1,30 до 2,00 включ. | 1,8 |
C | наружных окон и дверей | От 0,50 до 1,50 включ. | 1,0 |
D | элементов системы вентиляции и кондиционирования | От 0,50 до 1,50 включ. | 1,0 |
E | наружных стен | От 0,15 до 0,75 включ. | 0,5 |
F | внутренних стен | От 0,15 до 0,75 включ. | 0,5 |
G | дверей, транзитных зон и пр. | Определяется с учетом конкретных условий | - |
При наличии наружных окон и дверей расстояние от внутренней поверхности до рабочей зоны определяют по наибольшему размеру полотна двери или створки окна.
В помещениях с высотой потолка не более 2,5 м обеспечение соответствия требованиям к тепловому комфорту на верхней границе рабочей зоны 2,0 м может оказаться затруднительным.
Если выполнение требований к тепловому комфорту, особенно в отношении подвижности воздуха в зоне нахождения людей и температуры, затруднено, то следует отдельно согласовывать условия для следующих зон:
в) прилегающих к местам притока воздуха;
г) прилегающих к оборудованию с интенсивными тепловыделением и расходом воздуха.
Если в соответствующих нормативных документах не оговорено иное, то зоны, указанные в
перечислениях а) и
б), не являются частью эксплуатируемой (рабочей) зоны, а зоны, указанные в
перечислениях в) и
г), являются частью эксплуатируемой (рабочей) зоны.
Границы эксплуатируемой (рабочей) зоны могут быть определены исходя из организации рабочего места и оборудования или расположения зоны дыхания (по согласованию между заказчиком и исполнителем), если эксплуатируемая (рабочая) зона занимает не все помещение.
5.3 Температура и влажность
Требования к температуре задаются в соответствии с
7.3, к влажности - в соответствии с
7.5.
5.4 Качество воздуха в помещениях
Качество воздуха в помещениях общественных зданий должно соответствовать требованиям
ГОСТ 30494 и определяться необходимым уровнем вентиляции (величиной воздухообмена в помещениях), обеспечивающим допустимые значения содержания углекислого газа в помещении.
Требования к качеству воздуха должны быть согласованы проектной организацией и заказчиком. Заказчик должен задать свои требования к качеству воздуха в помещениях. Важным условием является разрешение или запрет курения в помещении.
Допустимое качество воздуха в обслуживаемых зонах помещений следует обеспечивать при всех режимах использования помещений и соответствующих им режимах работы системы вентиляции.
Проектная организация должна определить расход воздуха, необходимый для выполнения заданных требований (см.
9.2.6 и
9.2.7) на основании технического задания заказчика. При отсутствии такого задания следует исходить из требований к расходу воздуха по
таблице 19.
Качество приточного воздуха должно удовлетворять требованиям
[1] и
[2].
Концентрации вредных веществ в воздухе помещений не должны превышать уровень предельно допустимых концентраций (ПДК), установленный в
[1] и
[2].
5.5 Скорость движения воздуха в рабочих помещениях
Скорость движения воздуха в эксплуатируемой (рабочей) зоне нахождения людей не должна превышать заданных пределов. Заказчик может задать собственные требования или использовать типовые значения с использованием данных
7.4.
5.6 Уровень шума
Допустимый уровень шума принимают по
СП 51.13330 или по
таблице 8, если отсутствуют специальные требования.
5.7 Освещение
Проектирование систем освещения следует выполнять исходя из назначения помещения. Установленная электрическая мощность для освещения не должна быть слишком высокой с учетом экономии энергии и затрат на охлаждение помещения в летний период года. Типовые величины уровней освещенности и расходов энергии на освещение при отсутствии проектных данных допускается принимать с использованием данных
8.2.3.3.
5.8 Общие требования к контролю работы систем
Требования к контролю и мониторингу всех систем должны быть согласованы проектной организацией и заказчиком. В отдельных случаях могут быть разделены требования к первому году (годам) эксплуатации и последующим периодам.
Вид управления параметрами воздушной среды внутри помещения выбирают по
6.1 и техническому заданию заказчика.
6 Назначение систем вентиляции и кондиционирования воздуха и их основные типы
Системы вентиляции и кондиционирования воздуха предназначены для обеспечения требуемого качества воздуха внутри помещений и для поддержания заданных значений температуры и влажности.
Принятые решения по устройству систем должны отражать особенности конкретного здания и параметры наружного воздуха.
В систему вентиляции входят приточные и вытяжные системы, имеющие, как правило, фильтры очистки наружного воздуха, воздухонагреватели, воздухоохладители, устройства рекуперации тепла вытяжного воздуха.
Приточные системы без вытяжных систем не позволяют осуществлять рекуперацию тепла и могут привести к избытку давления в помещениях, что может представлять опасность для конструкций здания.
Вытяжные системы без приточных систем также не могут удовлетворить всем требованиям по поддержанию микроклимата помещений.
К методам подготовки воздуха, регулирующим температуру и влажность в помещении, относятся нагрев, охлаждение, увлажнение и осушение.
Основные способы управления качеством воздуха в помещениях системами вентиляции зависят от средств контроля и возможностей регулирования термодинамических показателей в помещениях.
Различают следующие типы систем управления качеством воздуха в помещениях:
- управление отсутствует (система работает непрерывно);
- ручное управление (включение и выключение системы осуществляют вручную);
- управление по времени (система работает в соответствии с заданным графиком);
- управление в зависимости от наличия людей в помещении [система включается автоматически при входе людей в помещение и выключается при их выходе (инфракрасные сенсоры, выключатели света и пр.)];
- управление с учетом числа людей в помещении (система обеспечивает расход воздуха в зависимости от числа людей в помещении);
- прямое управление [системой управляют датчики, измеряющие параметры воздуха или связанные с ними величины (например, CO2, смесь газов или летучие органические соединения)]. Контролируемые параметры выбирают с учетом вида деятельности в помещении.
Лучший результат может быть достигнут при активном управлении. Например, целесообразно организовать непрерывный контроль уровня загрязнений и при его повышении до предельного допустимого значения увеличить расход воздуха.
Регулирование температуры может выполняться как системой вентиляции отдельно, так и в сочетании с нагревом (охлаждением) потолков, полов и пр. С учетом этого различают два основных варианта систем регулирования температуры:
- регулирование только системой вентиляции (любая вентиляционная система);
- регулирование системой вентиляции в сочетании с другими средствами, например нагревательными элементами, охлаждаемыми потолками, радиаторами (смешанная система) и т.п.
6.2 Давление воздуха в помещении
Для обеспечения движения воздуха и загрязнений в нужном направлении между различными зонами здания и/или за пределы здания используется перепад давления, создаваемый потоками приточного и вытяжного воздуха (ветер и стак-эффект отсутствуют).
Различают следующие классы перепадов давления:
-

- пониженное давление (до минус 6 Па включ.);
-

- слегка пониженное давление (от минус 6 до минус 2 Па включ.);
-

- отсутствие перепада давления (от минус 2 до плюс 2 Па включ.);
-

- слегка повышенное давление (от 2 до 6 Па включ.);
-

- повышенное давление (свыше 6 Па).
Выбор класса перепада давления зависит от назначения помещения. В некоторых случаях требуется создать несколько уровней пониженного или повышенного давления для управления потоками воздуха между зонами в здании. Если заданные уровни давления следует поддерживать и при наличии ветра, то корпус здания должен быть герметичным (см.
А.9 приложения А).
Как правило, задаются направления движения воздуха в нормальных условиях (без внешних влияний) и без определения перепадов давления. В условиях холодного климата повышенное давление может привести к повреждению конструкций здания.
Если в соответствующих нормативных документах не оговорено иное, то предусматривается класс

перепадов давления.
6.3 Удельная мощность вентилятора
Классификация вентиляторов (для каждого вентилятора) в зависимости от удельных мощностей приведена в таблице 3.
Таблица 3
Классификация вентиляторов в зависимости
от удельной мощности
Обозначение класса вентилятора | Значение удельной мощности Pв, Вт·с/м3 |
Pв 1 | Не более 500 вкл. |
Pв 2 | Св. 500 - 700 |
Pв 3 | Св. 700 - 1250 |
Pв 4 | Св. 1250 - 2000 |
Pв 5 | Св. 2000 |
Если не оговорено иное, то следует применять типовое значение (см.
таблицу А.3 приложения А).
7 Параметры воздушной среды помещений
7.1 Общие положения
Системы вентиляции и кондиционирования воздуха поддерживают следующие параметры воздушной среды помещений:
- тепловой комфорт;
- качество воздуха;
- влажность воздуха;
- уровень шума.
На комфорт и деятельность людей, находящихся в помещении, также влияют:
- характер выполняемой работы и параметры рабочего места;
- освещение и его цвет;
- размеры помещения и мебель;
- возможность обзора пространства за пределами помещения;
- условия работы и служебные взаимоотношения;
- индивидуальные факторы.
Исходные данные для проектирования систем вентиляции и кондиционирования должны быть согласованы между заказчиком и исполнителем. Значения типовых параметров для проектирования приведены в
разделе 9, а требования к качеству воздуха, тепловому комфорту, влажности, уровню шума для рабочей зоны приведены в настоящем разделе. Проект системы в целом должен соответствовать ее назначению.
7.2 Качество воздуха в помещении
К наиболее важным факторам для определения воздухообмена в помещении относятся численность людей в помещении, разрешение или запрет курения, данные о выделениях загрязнений от других источников (помимо метаболизма человека и курения). Следует учитывать, что чувствительность человека к качеству воздуха возрастает при повышении температуры и влажности.
В таблице 4 приведены типичный диапазон и типовые значения площадей помещений, приходящихся на одного человека. В проект следует включать расчетные данные. В случае их отсутствия следует использовать данные таблицы 4. При отсутствии информации о курении следует принять, что курение не допускается (см. таблицу 4). Если курение разрешено, то следует выделить зоны для курения.
Таблица 4
Площадь помещения, приходящаяся на одного человека
Назначение помещения | Площади пола на одного человека, м2 |
Типовой диапазон значений | Типовое значение |
Большое офисное помещение | От 7 до 20 включ. | 12,0 |
Малое офисное помещение | От 8 до 12 включ. | 10,0 |
Комната переговоров | От 2 до 5 включ. | 3,0 |
Магазин | От 3 до 8 включ. | 4,0 |
Учебная комната | От 2 до 5 включ. | 2,5 |
Больничная палата | От 5 до 15 включ. | 10,0 |
Номер в гостинице | От 5 до 20 включ. | 10,0 |
Ресторан | От 1,2 до 5 включ. | 1,5 |
Следует четко задавать характеристики выделений от других источников (помимо метаболизма человека и курения). В противном случае по согласованию с заказчиком выделения от других источников не учитываются.
ПДК вредных веществ в воздухе рабочей зоны приведены в
[3].
Одежда и физическая активность человека также относятся к наиболее важным факторам, влияющим на тепловой комфорт. Типовые значения коэффициента теплового сопротивления одежды и показателя физической активности для офисных и аналогичных помещений приведены в таблице 5.
Таблица 5
Типовые значения коэффициента теплового сопротивления одежды
и показателя физической активности для офисных помещений
Наименование параметра | Типовой диапазон значений | Типовое значение (при проектировании) |
Коэффициент теплового сопротивления одежды, clo | Лето: от 0,5 до 0,7 включ. | Лето: 0,5 clo |
Зима: от 0,8 до 1,0 включ. | Зима: 1,0 clo |
Показатель физической активности (метаболизма), мет | От 1,0 до 1,4 включ. | 1,2 мет |
Тепловой обмен человеческого тела за счет излучения зависит от температуры окружающих поверхностей. Тепловой обмен за счет конвекции зависит от температуры и скорости потока воздуха.
Тепловой комфорт при одежде конкретного вида и физической активности зависит, в основном, от температуры и скорости движения воздуха. Более подробные характеристики, например градиент температуры воздуха по вертикали, наличие теплых и холодных полов, асимметрия излучения, учитывают только в специальных областях применения.
Для большинства общественных зданий характерны низкие скорости потоков воздуха (не более 0,2 м/с) и незначительное различие между температурой воздуха и средней температурой излучения в помещении (не выше 4 °C). В связи с этим в настоящем стандарте рабочую температуру в данном месте помещения вычисляют по формуле

, (3)
где To - рабочая температура в данном месте помещения, °C;
Ta - температура воздуха в помещении, °C;
Tr - средняя температура излучения всех поверхностей (стен, пола, потолка, окон, радиаторов и пр.) для данного места помещения, °C.
Оптимальную рабочую температуру внутреннего воздуха для общественных зданий и помещений определяют по
ГОСТ 30494. В таблице 6 приведены значения температуры для офисных помещений.
Таблица 6
Значения рабочих температур в офисных помещениях
Сезон | Типовой диапазон значений To, °C | Типовое значение To (при проектировании), °C |
Зимний отопительный период | От 19 до 21 включ. | |
Летний период с охлаждением | От 23 до 25 включ. | |
<*> Минимальное значение в течение дня. <**> Максимальное значение в течение дня. |
По возможности, в проекте следует учитывать параметры и характеристики конкретного здания, а не основываться на номинальных или предельных значениях температуры внутреннего воздуха. Требования к температуре также могут зависеть от местных климатических условий, влияющих на тепловой комфорт, что следует учитывать в проекте.
Перепад температуры воздуха внутри помещения должен быть не более 2 °C для оптимальных показателей и 3 °C - для допустимых, перепад результирующей температуры помещения по высоте обслуживаемой зоны - не более 2 °C.
Если в соответствующих нормативных документах не оговорено иное, то установленные значения рабочей температуры должны выполняться в центре помещения на высоте 0,6 м от уровня пола.
По согласованию между заказчиком и исполнителем может быть определен период времени, когда установленные значения могут быть превышены (например, число часов в течение дня или число дней в течение года).
7.4 Скорость движения воздуха и интенсивность сквозняка
Допустимая средняя скорость движения воздуха зависит от интенсивности сквозняка (от процентного отношения людей, испытывающих дискомфорт при сквозняке), температуры воздуха и интенсивности турбулентности.
Интенсивность сквозняка DR, %, вычисляют по формуле
DR = (34 - Ta)(v - 0,05)0,62(0,37vTU + 3,14), (4)
где Ta - локальная температура воздуха, °C (от 19 °C до 27 °C);
v - локальная средняя скорость воздуха, м/с;
TU - локальная интенсивность турбулентности, % (принимают 40% для смешанного распределения потока воздуха).
Если не предусмотрено иное, то для определения расчетной температуры воздуха в помещении при интенсивности сквозняка от 10% до 20% и интенсивности турбулентности 40% (смешанный поток воздуха) могут быть использованы данные таблицы 7.
Таблица 7
Значения локальной скорости воздуха (среднее значение, м/с,
в течение 3 мин измерений для проектирования)
Локальная температура воздуха, °C | Типовой диапазон значений локальной средней скорости воздуха v, м/с | Типовое значение v, м/с, не более (DR = 15%) |
Ta = 20 | От 0,10 до 0,16 включ. | 0,13 |
Ta = 21 | От 0,10 до 0,17 включ. | 0,14 |
Ta = 22 | От 0,11 до 0,18 включ. | 0,15 |
Ta = 24 | От 0,13 до 0,21 включ. | 0,17 |
Ta = 26 | От 0,15 до 0,25 включ. | 0,20 |
Согласованные значения следует поддерживать на постоянной основе в ходе нормальной эксплуатации, что должно быть предусмотрено проектом.
7.5 Влажность воздуха в помещении
При температуре воздуха от 20 °C до 26 °C испарение играет незначительную роль в регулировании температуры тела человека. В связи с этим при значениях относительной влажности от 30% до 70% нарушений условий теплового комфорта, как правило, не возникает.
Нижний предел относительной влажности 30% задается для предотвращения сухости в глазах и раздражения слизистых оболочек.
В суровых климатических условиях допускается меньшая влажность в течение ограниченного периода времени (по согласованию между заказчиком и исполнителем и с учетом нормативных требований). Дискомфорт от слишком сухого воздуха часто обусловливается наличием пыли или других загрязнений. Низкое значение относительной влажности часто является следствием высокой температуры в помещении и/или слишком большого расхода наружного воздуха.
Эти факторы следует учитывать при применении увлажнения.
Следует избегать длительных периодов с высокой влажностью воздуха ввиду опасности роста грибков, размножения клещей и гниения строительных материалов.
Следует не допускать чрезмерно высоких концентраций частиц, выделяемых этими организмами, которые могут представлять опасность для людей с повышенной чувствительностью.
При отсутствии необходимой информации следует принимать, что другие источники влаги, кроме выделений от людей и инфильтрации воздуха, отсутствуют.
7.6 Шум
Допустимые уровни звукового давления, создаваемого и/или передаваемого системой вентиляции и кондиционирования воздуха и другими установками приведены в
СП 51.13330. При необходимости можно пользоваться данными таблицы 8. Эти данные являются средними значениями и не учитывают других видов шума снаружи или внутри помещения.
Таблица 8
Допустимые уровни звукового давления
Назначение здания | Тип помещения | Уровень звукового давления, дБA |
Типовой диапазон значений | Типовое значение |
Дошкольные образовательные организации | Спальные помещения | От 30 до 45 включ. | 40 |
Общественные здания | Аудитории | От 30 до 35 включ. | 33 |
Библиотеки | От 28 до 35 включ. | 30 |
Кинотеатры | От 30 до 35 включ. | 33 |
Суды | От 30 до 40 включ. | 35 |
Музеи | От 28 до 35 включ. | 30 |
Коммерческие здания | Магазины | От 35 до 50 включ. | 40 |
Универмаги | От 40 до 50 включ. | 45 |
Супермаркеты | От 40 до 50 включ. | 45 |
Компьютерные помещения большие | От 40 до 60 включ. | 50 |
Компьютерные помещения малые | От 40 до 50 включ. | 45 |
Медицинские организации | Коридоры | От 35 до 45 включ. | 40 |
Операционные | От 30 до 48 включ. | 40 |
Палаты | От 25 до 35 включ. | 30 |
Спальни (ночь) | От 20 до 35 включ. | 30 |
Спальни (день) | От 25 до 40 включ. | 30 |
Гостиницы | Холлы и коридоры | От 35 до 45 включ. | 40 |
Помещения регистрации | От 35 до 45 включ. | 40 |
Номера (ночь) | От 25 до 35 включ. | 30 |
Номера (день) | От 30 до 40 включ. | 35 |
Офисные здания | Офисы (малые) | От 30 до 40 включ. | 35 |
Конференц-залы | От 30 до 40 включ. | 35 |
Офисы (большие) | От 35 до 45 включ. | 40 |
Переговорные | От 35 до 45 включ. | 40 |
Рестораны | Кафетерии | От 35 до 50 включ. | 40 |
Залы ресторанов | От 35 до 50 включ. | 45 |
Кухни | От 40 до 60 включ. | 55 |
Общеобразовательные организации | Классы | От 30 до 40 включ. | 35 |
Коридоры | От 35 до 50 включ. | 40 |
Спортивные залы | От 35 до 45 включ. | 40 |
Преподавательские | От 30 до 40 включ. | 35 |
Помещения общего пользования | Туалеты | От 40 до 50 включ. | 45 |
Гардеробы | От 40 до 50 включ. | 45 |
7.7 Тепловой комфорт
Для обеспечения теплового комфорта в типовых помещениях (офисах и пр.) следует руководствоваться
ГОСТ Р ИСО 7730.
Чувствительность человека к тепловым условиям связана в основном с тепловым балансом его тела. На этот баланс влияют физическая активность человека, одежда, а также параметры среды: температура внутреннего воздуха, среднее тепловое излучение, скорость движения и влажность воздуха. Если проведены оценка и измерение этих факторов, то можно спрогнозировать чувствительность тела в целом к температуре окружающей среды путем расчета прогнозируемой средней оценки (PMV).
Показатель прогнозируемого процентного содержания недовольных (PPD) позволяет получить информацию о тепловом дискомфорте или недовольстве температурой среды на основе прогноза процентного содержания людей, которым слишком тепло или холодно в конкретной термальной среде.
Тепловой дискомфорт также может быть вызван локальным охлаждением или нагревом тела человека. Наиболее общими факторами локального дискомфорта являются асимметрия теплового излучения (холодные или теплые поверхности), сквозняк (локальное охлаждение тела, вызванное движением воздуха), разница в температуре внутреннего воздуха по вертикали, а также холодные или теплые полы.
8 Организация воздухообмена в помещениях
Возможные типы потоков воздуха в здании и системах вентиляции и кондиционирования воздуха показаны на
рисунке 2.
В чертежах систем вентиляции и кондиционирования воздуха для указания типа потока воздуха следует применять сокращения и условные обозначения в соответствии с требованиями ГОСТ 21.602-2016
(таблица 1).
Рекомендуемые цветовые обозначения потоков воздуха, приведенные на
рисунке 2:
- наружный воздух, поступающий в системы вентиляции и кондиционирования, - зеленый;
- приточный воздух, подаваемый в помещения системами приточной вентиляции и кондиционирования воздуха после подготовки, - красный;
- вытяжной воздух, удаляемый из помещения, - синий;
- воздух в помещении - серый;
- рециркуляционный воздух (часть вытяжного воздуха, возвращаемого в систему вентиляции и кондиционирования) - оранжевый;
- вторичный воздух (воздух, отбираемый из помещения и возвращаемый в то же помещение, например после обработки в вентиляторном конвекторе) - оранжевый;
- перетекающий воздух - серый;
- вытяжной воздух, удаляемый в атмосферу, - коричневый;
- удаляемые продукты горения системами вытяжной противодымной вентиляции при пожаре - фиолетовый;
- наружный воздух, подаваемый в помещения здания системами приточной противодымной вентиляции, в том числе на компенсацию удаляемых продуктов горения, - оранжевый.
1 - наружный воздух (Н); 2 - приточный воздух (П);
3 - воздух в помещении (В); 4 - перетекающий воздух;
5 - вытяжной воздух (В); 6 - рециркуляционный воздух (Р);
7 - удаляемый воздух (У); 8 - вторичный воздух; 9 - утечка;
10 - инфильтрация; 11 - эксфильтрация; 12 - воздушная смесь
Рисунок 2 - Типы потоков воздуха
8.2 Классификация потоков воздуха
8.2.1 Общие положения
Разработчики проекта, заказчики и другие стороны (при необходимости) должны согласовывать основные требования к параметрам воздуха. При этом используют классификацию, приведенную в
8.2.4. Рекомендации по проектированию приведены в
приложении А.
8.2.2 Наружный воздух
При проектировании систем вентиляции следует учитывать качество наружного воздуха вблизи здания или предполагаемого места расположения здания. Возможны два основных способа снижения влияния загрязненного наружного воздуха на среду внутри помещения:
- располагать приемные устройства наружного воздуха в наименее загрязненных местах, если уровень загрязнений вблизи здания не является равномерным (см.
А.2 приложения А);
- предусматривать очистку воздуха (см.
А.3 приложения А).
Для очистки воздуха допускается использовать различные методы в зависимости от требований к качеству воздуха в помещении и от степени загрязнения наружного воздуха газами, частицами или тем и другим, а также в зависимости от размеров частиц, имеющих значение для конкретного случая.
Концентрация вредных веществ в наружном (атмосферном) воздухе, используемом для вентиляции, не должна превышать ПДК в воздухе населенных мест, установленных в
[1] и
[2].
Значения ПДК вредных веществ, наиболее часто присутствующих в атмосферном воздухе, представлены в таблице 9.
Таблица 9
ПДК вредных веществ в воздухе населенных пунктов
Вещество | ПДК в наружном воздухе qнПДК, мг/м3 |
Максимальная разовая | Среднесуточная |
Азота двуокись | 0,085 | 0,04 |
Нетоксичная пыль | 0,5 | 0,15 |
Свинец | 0,001 | 0,0003 |
Сернистый ангидрид | 0,5 | 0,05 |
Углеводороды (бензол) | 0,3 | 0,1 |
Углерода окись | 5 | 3 |
Фенол | 0,01 | 0,003 |
| | |
- в населенной местности (селе) | 650 | 650 |
- в малых городах | 800 | 800 |
- в больших городах | 1000 | 1000 |
<*> ПДК для углекислого газа не нормируется, данная величина является справочной. |
При совместном присутствии в атмосферном воздухе нескольких вредных веществ, обладающих суммацией действия, сумма их относительных концентраций не должна превышать 1:

, (5)
где Ci - величина концентрации i-го загрязняющего вещества в наружном воздухе, мг/м3.
Перечень веществ, обладающих эффектом суммации, приведен в
[1].
Примерная классификация наружного воздуха приведена в таблице 10.
Таблица 10
Классификация наружного воздуха
Обозначение класса | Характеристика |
Н 1 | Воздух, который может загрязняться лишь периодически (например, пыльцой) |
Н 2 | Наружный воздух с высокой концентрацией частиц |
Н 3 | Наружный воздух с высокой концентрацией загрязнений в газообразной форме |
Н 4 | Наружный воздух с высокой концентрацией частиц и загрязнений в газообразной форме |
Н 5 | Наружный воздух с очень высокой концентрацией частиц и загрязнений в газообразной форме |
При классификации учитывают наиболее критические загрязнения в газообразной форме и в виде частиц (включая твердые частицы и соляной туман). Воздух считается чистым, если выполнены требования
[4] и национальных стандартов по качеству воздуха:
- твердые частицы - рекомендуемые значения для частиц менее 2,5 мкм (ТЧ2,5): 10 мкг/м3 среднегодовое значение, 25 мкг/м3 - среднесуточное значение; для частиц, которые попадают в дыхательные пути (ТЧ10): 20 мкг/м3 - среднегодовое значение, 50 мкг/м3 - среднесуточное значение;
- озон - рекомендуемые значения O3: 100 мкг/м3 усредненное значение за 8 ч;
- двуокись азота - рекомендуемые значения NO2: 40 мкг/м3 - среднегодовое значение, 200 мкг/м3 - усредненное значение за 1 ч;
- двуокись серы - рекомендуемые значения SO2: 20 мкг/м3 - среднесуточное значение, 500 мкг/м3 - усредненное значение за 10 мин.
Концентрация загрязнений считается высокой, если она превышает установленное значение, но не более чем в 1,5 раза. Концентрация считается очень высокой, если она превышает установленное значение более чем в 1,5 раза.
При проектировании следует также оценивать виды загрязнений, не учтенные нормативными документами (при необходимости). Следует учитывать влияние не только отдельных загрязнений, но и влияние их комбинаций.
Типичными загрязнениями в газообразной форме, которые следует учитывать при проектировании систем вентиляции и кондиционирования воздуха, являются оксид углерода, двуокись углерода, двуокись серы, оксиды азота и летучие органические соединения (бензол, растворители, полиароматические углеводороды и пр.).
Влияние этих загрязнений наружного воздуха на воздух в помещениях зависит от степени их химической активности.
Например, оксид углерода относительно стабилен и плохо абсорбируется на поверхностях внутри помещений. Содержание в наружном воздухе озона, напротив, не учитывают при проектировании, так как он обладает высокой активностью и его концентрация резко снижается в системе вентиляции и в помещении. Другие загрязнения в газообразной форме занимают промежуточное положение.
К частицам относятся все твердые или жидкие объекты в воздухе от видимой пыли до объектов субмикронных размеров. Во многих случаях чистоту воздуха оценивают концентрацией частиц с размерами (аэродинамическим диаметром) более 10 мкм (индекс РМ10). Для целей охраны здоровья следует учитывать и частицы меньших размеров. При необходимости защиты от инфекций или иммунном риске следует, в первую очередь, учитывать частицы биологической природы.
Уровни загрязнения наружного воздуха приведены в таблице 11.
Таблица 11
Примеры содержания загрязнений в наружном воздухе
Местность | Концентрация в воздухе |
CO2, ppm | CO, мг/м3 | NO2, мкг/м3 | SO2, мкг/м3 | частиц |
Общая концентрация, мг/м3 | РМ10, мкг/м3 |
Сельская местность, существенные источники отсутствуют | 350 | < 1 | 5 - 35 | <= 5 | <= 0,1 | <= 20 |
Небольшой город | 375 | 1 - 3 | 15 - 40 | 5 - 15 | 0,1 - 0,3 | 10 - 30 |
Загрязненный центр большого города | 400 | 2 - 6 | 30 - 80 | 10 - 50 | 0,2 - 1,0 | 20 - 50 |
Примечание - Приведенные значения являются среднегодовыми. Их не следует использовать при проектировании, так как максимальные концентрации будут выше. Для более подробной информации следует выполнить оценку загрязнений на месте или пользоваться соответствующими нормативными документами. |
При превышении в наружном воздухе ПДК, установленных в
[1] и
[2], должны быть приняты меры по устранению источников выделения вредных веществ или, при невозможности их устранения, должна быть предусмотрена очистка приточного воздуха до ПДК загрязняющих веществ.
8.2.3 Приточный воздух
8.2.3.1 Классификация приточного воздуха приведена в таблице 12
Таблица 12
Классификация приточного воздуха
Класс | Характеристика |
П 1 | Приточный воздух, состоящий только из наружного воздуха |
П 2 | Приточный воздух, состоящий из наружного и рециркуляционного воздуха |
Примечание - Рециркуляционный воздух может принудительно подаваться в приточный воздух либо попадать в него путем утечки. Особое внимание следует уделять рекуператорам (в части возможных перетоков воздуха). |
Качество приточного воздуха должно обеспечивать соответствующее требованиям качество воздуха в помещениях с учетом выделения загрязнений от человека, технологических процессов, строительных материалов, мебели, самой системы вентиляции и пр.
При задании требований к качеству приточного воздуха рекомендуется учитывать загрязнения, выделяемые в самом помещении, и, по возможности, увязывать их с требованиями стандартов.
8.2.3.2 Расход приточного воздуха
При определении расхода наружного и приточного воздуха следует учитывать:
- присутствие курящих и некурящих людей;
- другие известные источники выделения загрязнений;
- избыток тепла или холода, который должен быть удален средствами вентиляции.
Количество воздуха, необходимое для обеспечения нормативных параметров воздушной среды в рабочей зоне, следует определять расчетным методом, учитывая неравномерность распределения вредных веществ, тепла и влаги в объеме помещений, в частности:
- в помещениях с тепловыделениями расчет ведется по избыткам явного тепла;
- в помещениях с тепло- и влаговыделениями расчет ведется по избыткам явного тепла, влаги, скрытого тепла с учетом необходимого предупреждения конденсации влаги на поверхностях строительных конструкций и оборудования;
- в помещениях с одновременным выделением в воздух нескольких вредных веществ расчет ведется по тому веществу, которое требует наибольшего расхода воздуха для обеспечения его ПДК (при однонаправленном действии вредных веществ расход воздуха определяется по каждому веществу с последующим их суммированием);
- в помещениях с одновременным выделением вредных веществ, тепла и влаги расчет ведется по каждому виду выделений, при этом для проектирования используются результаты расчета с наибольшим расходом воздуха.
Количество выделяющихся в помещениях вредных веществ, тепла и влаги следует принимать по данным технологической части проекта, нормам технологического проектирования или паспорта на технологическое оборудование.
При отсутствии необходимых сведений проводят исследования по оценке валовых выделений вредных веществ, тепла и влаги от технологического оборудования, работающего с полной нагрузкой в натурных или лабораторных условиях, допускается использование результатов натурных исследований на аналогичных объектах или данных, полученных путем расчетов, что должно быть отражено в проекте.
Определение количества воздуха, необходимого для обеспечения нормативных параметров воздушной среды в рабочей зоне по кратности воздухообмена, не допускается, за исключением случаев, обоснованных нормативными документами, утвержденными в установленном порядке.
Содержание вредных веществ в приточном воздухе (при выходе из воздухораспределителей и других приточных отверстий) следует определять расчетным методом с учетом фоновых концентраций этих веществ в местах размещения воздухоприемных устройств, но не более 30% ПДК в воздухе рабочей зоны помещений.
Содержание пыли в приточном воздухе, подаваемом механической вентиляцией после соответствующей очистки, не должно превышать ПДК для атмосферного воздуха населенных пунктов при его подаче в помещения общественных зданий.
Воздуховоды должны быть герметичными (см.
А.8 приложения А) для предотвращения непредусмотренных потерь приточного воздуха.
Расход приточного воздуха gvп, м3/с, необходимого для удаления выделяемых загрязнений с учетом допустимой концентрации загрязнений в помещении, вычисляют по формуле

, (6)
где gm,E - интенсивность выделения загрязнений в помещении, мг/с;
CПДК - допустимая концентрация выделения загрязнений в помещении, мг/м3;
Cп - концентрация загрязнений в приточном воздухе, мг/м3.
Следует определить все возможные источники выделения загрязнений. Снижение выделения загрязнений является предпочтительным решением по сравнению с вентиляцией.
По
формуле (6) расход приточного воздуха вычисляют для установившегося состояния с продолжительными постоянными выделениями. Если период выделения загрязнений краток, то равнозначное значение концентрации может быть не достигнуто, или расход воздуха может быть снижен с учетом заданного максимального уровня концентрации. Зависимость концентрации от времени (расход приточного воздуха равен расходу вытяжного воздуха) вычисляют по формуле

, (7)
где Ca(t) - концентрация загрязнений в помещении в момент времени t, мг/м3;
Cп - концентрация загрязнений в приточном воздухе, мг/м3;
Ca(0) - концентрация загрязнений в помещении в начальный момент времени, мг/м3;
gm,E - интенсивность выделения загрязнений в помещении, мг/с;
gvп - расход приточного воздуха, м3/с;
Va - объем помещения, м3;
t - время, с.
В ряде случаев расход воздуха определяется по избыткам теплоты или холода, которые должны быть ассимилированы средствами вентиляции. Если расход воздуха для этой цели значительно выше, чем устанавливаемый по настоящему пункту, то более эффективным может оказаться другой метод удаления избытков теплоты или холода.
Расход приточного воздуха для удаления избытков теплоты или холода gvп, м3/с, вычисляют по формуле

, (8)
где Q - тепловая нагрузка от источников тепла в помещении, Вт;

- плотность воздуха, кг/м
3;

- удельная теплоемкость воздуха, Дж/(кг·К);
Ta - нормируемая температура в помещении, °C;
Tп - температура приточного воздуха, °C.
Плотность и теплоемкость воздуха зависят от его температуры и давления. Следует определить их значения в конкретных условиях.
8.2.3.3 Источники тепла внутри помещения
При проектировании систем вентиляции и кондиционирования следует правильно определить тепловыделения от источников внутри помещения в зависимости от времени.
Примечание - Переоценка тепловыделений внутри помещений может привести к неоправданным капитальным и текущим затратам, недооценка - к превышению температуры в сезон, когда работает система охлаждения.
Тепловыделение от персонала состоит из явной теплоты (излучение и конвекция) и скрытой теплоты (испарения). На повышение температуры влияет только явная теплота. В таблице 13 приведены значения тепловыделений при температуре воздуха 24 °C.
Таблица 13
Тепловыделения от персонала
при различных видах физической активности
Физическая активность | Общие тепловыделения | Скрытые тепловыделения, Вт/чел. |
Спокойная поза, полулежа | 0,8 | 80 | 55 |
Спокойная поза сидя, отдых | 1,0 | 100 | 70 |
Работа в положении сидя (офис, школа, лаборатория) | 1,2 | 125 | 75 |
Легкая работа стоя (магазин, лаборатория, легкая работа на производстве) | 1,6 | 170 | 85 |
Работа средней тяжести стоя (помощник продавца, работа с механизмами) | 2,0 | 210 | 105 |
Ходьба со скоростью, км/ч: | | | |
2 | 1,9 | 200 | 100 |
3 | 2,4 | 250 | 105 |
4 | 2,8 | 300 | 110 |
5 | 3,4 | 360 | 120 |
Примечание - В таблице приведены округленные значения для тела человека с площадью поверхности 1,8 м2/чел. |
При более высокой температуре общие тепловыделения остаются такими же, но значения скрытого тепла уменьшаются (при Ta = 26 °C) на 20%.
При проектировании систем вентиляции следует учитывать тепловыделение от светильников. Типовой диапазон значений освещенности приведен в таблице 14. Эти значения являются средними для всего помещения.
Таблица 14
Освещенность, принимаемая при проектировании
Тип помещения | Освещенность, лк |
Типовой диапазон значений | Типовое значение |
Офис с окнами | От 300 до 500 включ. | 400 |
Офис без окон | От 400 до 600 включ. | 500 |
Универмаг | От 300 до 500 включ. | 400 |
Класс | От 300 до 500 включ. | 400 |
Больничная палата | От 200 до 300 включ. | 200 |
Гостиничный номер | От 200 до 300 включ. | 200 |
Ресторан | От 200 до 300 включ. | 200 |
Нежилое помещение | От 50 до 100 включ. | 50 |
Расходы электроэнергии на освещение зависят от принимаемых технических решений. Типовые значения для энергоэффективных систем приведены в таблице 15.
Таблица 15
Расход электроэнергии на освещение
для энергоэффективных систем
Освещенность, лк | Удельный расход электроэнергии, Вт/м2 |
Типовой диапазон значений | Типовое значение |
50 | От 2,5 до 3,2 включ. | 3 |
100 | От 3,5 до 4,5 включ. | 4 |
200 | От 5,5 до 7,0 включ. | 6 |
300 | От 7,5 до 8,5 включ. | 8 |
400 | От 9,0 до 12,5 включ. | 10 |
500 | От 11,0 до 15,0 включ. | 12 |
Примечание - При использовании систем освещения с низкой эффективностью расход электроэнергии может увеличиться в два раза и более. Дополнительная мощность может потребоваться на местное освещение, при использовании других специальных систем освещения или поверхностей помещений темных цветов. |
При проектировании систем вентиляции и кондиционирования воздуха следует учитывать все существенные выделения от оборудования, находящегося в помещениях, и периодичность их проявления.
В офисах тепловыделение от оборудования обычно составляет в среднем 25 - 200 Вт/рабочее место в течение рабочего дня. В качестве номинального значения принимают 100 Вт/рабочее место в течение восьмичасового рабочего дня.
8.2.4 Воздух в помещениях
8.2.4.1 Классификация воздуха в помещениях
Основные классы воздуха в помещениях приведены в таблице 16 (для помещений, в которых находятся люди).
Таблица 16
Классификация воздуха в помещениях
Класс | Характеристика |
В 1 | Высокое качество воздуха в помещениях |
В 2 | Среднее качество воздуха в помещениях |
В 3 | Приемлемое качество воздуха в помещениях |
В 4 | Низкое качество воздуха в помещениях |
Точное определение каждого класса зависит от характера источника загрязнений и воздействия этих загрязнений. Например, источники загрязнений могут быть:
- локализованными или распространенными по всему зданию;
- действующими непрерывно или периодически;
- выделяющими частицы (неорганические, жизнеспособные, органические) или газы (пары - органические или неорганические).
Влияние качества воздуха (например, на слизистые поверхности) может быть различным для людей с разными индивидуальными особенностями и состоянием здоровья. Оно может проявляться в виде реакций на токсичные и канцерогенные вещества и аллергических реакций. Это влияние на взрослых, детей и больных, находящихся в медицинских организациях, может иметь индивидуальный характер.
Исчерпывающее определение качества воздуха в помещениях является сложной задачей и не рассматривается в настоящем стандарте.
Для практических целей используются четыре класса качества воздуха в помещениях. Количественные показатели для одного и того же класса могут быть различными в зависимости от рассматриваемого вида загрязнений.
Выбор показателя и метода его оценки зависит от назначения помещения и предъявляемых к нему требований. Требуемый расход наружного воздуха может различаться для одного и того же класса в зависимости от принятого показателя. Допускается использовать и другие методы оценки качества воздуха в помещениях.
8.2.4.2 Классификация по концентрации CO2
В таблице 17 приведена классификация воздуха в помещениях по концентрации CO2, соответствующая результатам исследований и принятой практике. CO2 является хорошим индикатором биологических выделений от человека. Классификация по концентрации CO2 широко применяется для тех помещений, в которых находятся люди, но запрещено курение, и загрязнения являются, в основном, следствием метаболизма человека. Типовые концентрации CO2, добавляемого к наружному воздуху находящимися в помещении людьми, приведены в таблице 17.
Таблица 17
Содержание CO
2 в помещениях
Класс | Содержание CO2 в помещениях сверх содержания в наружном воздухе, ppm |
Типовые пределы | Типовые значения |
В 1 | До 400 включ. | 350 |
В 2 | 400 - 600 | 500 |
В 3 | 600 - 1000 | 800 |
В 4 | Св. 1000 | 1200 |
8.2.4.3 Классификация по очищаемому загрязнению воздуха в дециполах
Метод классификации применяется для помещений, в которых находятся люди, но отсутствует риск загрязнений опасными неощущаемыми людьми загрязнениями, например CO, радоном. Типовые значения приведены в таблице 18.
Таблица 18
Ощущаемое загрязнение воздуха в помещениях,
в которых находятся люди
Класс | Ощущаемое загрязнение воздуха в дециполах |
Типовые пределы | Типовые значения |
В 1 | До 1,0 включ. | 0,8 |
В 2 | 1,0 - 1,4 | 1,2 |
В 3 | 1,4 - 2,5 | 2,0 |
В 4 | Св. 2,5 | 3,0 |
Метод не нашел широкого применения из-за его сложности для практического использования. Его следует применять только в тех случаях, когда есть вся необходимая информация об интенсивности выделения загрязнений.
8.2.4.4 Косвенная классификация по расходу наружного воздуха на одного человека
Этот метод широко используется для тех помещений, в которых находятся люди. В таблице 19 приведен расход наружного воздуха, подаваемого системой вентиляции на одного человека, имеющего показатель метаболизма 1,2 мет, при нормальной работе в офисе или дома. Эти значения учитывают выделения от людей и материалов помещений (для материалов с низкой интенсивностью выделения загрязнений). При более активной работе (показатель метаболизма превышает 1,2 мет) расход наружного воздуха следует увеличить путем умножения значений по таблице 19 на дробь (показатель метаболизма/1,2).
Таблица 19
Расход наружного воздуха на одного человека
Класс | Единица измерения | Значение расхода наружного воздуха |
Курение запрещено | Курение разрешено |
Предельное | Номинальное | Предельное | Номинальное |
В 1 | м3/(ч·чел) | Свыше 60 | 60 | Св. 100 | 150 |
В 2 | м3/(ч·чел) | 36 - 54 | 45 | 72 - 108 | 90 |
В 3 | м3/(ч·чел) | 22 - 36 | 29 | 43 - 72 | 58 |
В 4 | м3/(ч·чел) | До 22 включ. | 18 | До 43 включ. | 36 |
Рекомендуется применять материалы с низкой интенсивностью выделения загрязнений (для мебели, ковровых покрытий и т.п.). Это дает больший эффект, чем повышение расхода наружного воздуха систем вентиляции и кондиционирования воздуха для разбавления выделяемых загрязнений.
Зоны, в которых запрещено или разрешено курение, рекомендуется разделять.
8.2.4.5 Классификация по уровням концентраций для отдельных видов загрязнений
Этот метод применяется при наличии значительных выделений загрязнений отдельных видов. Если информации о выделениях внутри помещения достаточно, то параметры системы вентиляции могут быть рассчитаны по
формуле (6). Если интенсивность выделений неизвестна, то требуемое качество воздуха может быть задано косвенно по расходам воздуха, основанным на опыте.
8.2.4.6 Косвенная классификация по расходу воздуха на единицу площади пола
Этот метод может быть использован при проектировании помещений, не предназначенных для постоянного нахождения в них людей, в том случае, когда не задан уровень загрязнений исходя из назначения помещений (например, склады). В этом случае расход воздуха задается на единицу площади пола (см. таблицу 20) в предположении, что система вентиляции работает в течение 50% рабочего времени, а высота помещения не превышает 3 м. Если система работает в течение меньшего времени, а высота помещения превышает 3 м, то расход воздуха следует увеличить.
Таблица 20
Расход наружного или перетекающего воздуха
на единицу площади пола для помещений, в которых
не предусмотрено постоянное нахождение людей
Класс | Единица измерения | Значение расхода наружного и перетекающего воздуха на единицу площади пола |
Предельное | Номинальное |
| м3/(ч·м2) | | |
В 2 | м3/(ч·м2) | Св. 2,5 | 3 |
В 3 | м3/(ч·м2) | 1,3 - 2,5 | 2 |
В 4 | м3/(ч·м2) | До 1,3 включ. | 1 |
<*> Для класса В 1 данный метод не применяется. |
8.2.5 Вытяжной и удаляемый воздух
Классификация вытяжного и удаляемого воздуха приведена в таблице 21. Если общий поток удаляемого воздуха складывается из потоков воздуха из различных помещений, то общему потоку присваивается класс, характеризуемый наибольшим уровнем загрязнений.
Таблица 21
Классификация вытяжного (удаляемого) воздуха
Обозначение класса | Характеристика | Примеры |
У 1 Вытяжной воздух с низким уровнем загрязнений | Воздух из помещений, в которых основным источником загрязнений являются материалы и конструкции здания, а также люди (за исключением помещений, где разрешено курение) | Офисы, включая небольшие кладовые, места общественного пользования, учебные классы, коридоры, залы совещаний, торговые помещения, в которых отсутствуют дополнительные источники загрязнений |
У 2 Вытяжной воздух с умеренным уровнем загрязнений | Воздух из помещений, где находится персонал, но уровень загрязнений выше, чем для класса У 1 (источники загрязнений те же). Помещения, которые могут быть отнесены к классу У 1, но в которых разрешено курение | Столовые, кухни для приготовления горячих напитков, магазины, складские помещения в офисных зданиях, помещения гостиниц, гардеробы |
У 3 Вытяжной воздух с высоким уровнем загрязнений | Воздух из помещений, в которых происходит выделение влаги, выполняются химические процессы, хранятся химикаты, т.е. действуют факторы, существенно снижающие качество воздуха | Туалеты и комнаты для умывания, сауны, кухни, химические лаборатории, помещения для копирования, комнаты для курения |
У 4 Вытяжной воздух с очень высоким уровнем загрязнений | Воздух, имеющий запахи и загрязнения, вредные для здоровья, в концентрациях, значительно превышающих ПДК в помещениях с людьми | Вытяжные укрытия специального назначения, местные вытяжки из кухонь и грилей, гаражи, тоннели для движения транспорта, места для стоянки машин, помещения для работы с красками и растворителями, помещения для химической чистки, помещения, в которых находятся остатки пищевых продуктов, системы централизованной вакуумной уборки, интенсивно используемые курительные комнаты и химические лаборатории |
Класс вытяжного воздуха устанавливается для воздуха, прошедшего предусмотренную очистку. Метод очистки воздуха (при ее наличии) и ее эффективности должны быть четко определены, причем эффективность очистки должна проверяться при пусконаладочных работах и в процессе эксплуатации системы. Следует принимать во внимание и фактор стоимости, особенно если предусмотрена очистка воздуха более чем на один класс.
8.2.6 Расход вытяжного воздуха
В системе вентиляции, сбалансированной с применением механических средств, расход вытяжного воздуха определяется расходом приточного воздуха и требуемым давлением в помещении.
Типовые значения расхода вытяжного воздуха для встроенных кухонь, туалетов и комнат для умывания приведены в таблице 22. Вытяжной воздух может заменяться наружным воздухом или воздухом из других помещений (см.
таблицу А.2 приложения А). В отдельных областях применения расход вытяжного воздуха следует определять с учетом возможности влияния на окружающую среду (в настоящем стандарте данный вопрос не рассматривается).
Таблица 22
Проектные значения расхода вытяжного воздуха
Помещение | Единица измерения | Типовое значение | Типовое значение для проектирования |
Кухни для обычного использования | м3/ч | 60 - 90 | 60 |
Туалеты/комнаты для умывания <*>: на помещение (минимум) | м3/ч | Свыше 25 включ. | 25 |
Ванные и душевые комнаты: | м3/ч | 50 | 50 |
на единицу площади пола | м3/(ч·м2) | Свыше 5,0 включ. | 7,2 |
<*> Вентиляция работает в течение не менее 50% всего времени. При меньшем времени работы требуется больший расход воздуха. Меньшие значения допускаются при непосредственной вытяжке воздуха из туалета (типовые значения - от 10 до 20 м 3/ч на туалет). |
9 Этапы работ от начала проектирования до ввода в эксплуатацию
9.1 Выполнение и состав работ от начала проектирования до ввода объекта в эксплуатацию должны быть оформлены договором. Порядок работ включает в себя этапы, приведенные в 9.2 -
9.4.
9.2 Начало проектирования, сбор и анализ исходных данных
9.2.1 Ответственность заказчика и проектной организации определена договором. Если одна из сторон не предоставляет необходимой информации, то другая сторона должна запросить ее официально. Достижение соглашения в письменной форме между заказчиком и проектной организацией по основным требованиям имеет принципиальное значение.
Заказчик должен предоставить проектной организации данные о территории строительства, характеристику здания, архитектурно-строительные чертежи, технические условия на подключение к наружным инженерным сетям, техническое задание на проектирование и другие требования, которые он задает остальным участникам проектирования и строительства.
Проектная организация и заказчик должны также согласовать критерии, по которым будут проведены приемка проектных работ, сроки ее выполнения, ответственность сторон, приемо-сдаточные испытания и требования к эксплуатации систем вентиляции и кондиционирования воздуха.
Все требования должны быть изложены четко и ясно. Перечень исходных данных также зависит от методов расчета. Проектная организация должна сама определить перечень необходимых исходных данных, необходимых для проектирования.
9.2.2 Место расположения, факторы, влияющие на проектирование за пределами здания, соседние объекты
Проектной организации следует, по возможности, получить от заказчика данные о месте расположения здания, существующих соседних объектах (близлежащие здания, объекты, дающие тень или эффект отражения, источники вредных выделений на местности и другие данные, которые следует учесть при проектировании), фоновых концентрациях загрязнения наружного воздуха, а также об уровне шума и ветровой нагрузке (при необходимости). Класс наружного воздуха следует определять по
таблице 10.
9.2.3 Климатические данные
Следует определить климатические данные для холодного и теплого периодов года. Наиболее важными параметрами для проектирования являются:
- холодный период года - наружная температура и расчетная скорость ветра;
- теплый период года - наружная температура, расчетная скорость ветра и солнечная радиация.
В отдельных случаях целесообразно использование дополнительной информации об экстремальных параметрах наружного воздуха, особенно в отношении условий комфорта. Проектная организация должна задать базовые характеристики для оценки годового потребления энергии системами.
9.2.4 Данные об использовании здания
Проектная организация должна получить от заказчика данные о функциональном назначении здания и его помещений, категорийности помещений по взрыво- и пожароопасности, порядке использования здания в рабочие дни, нерабочие периоды года (например, для общеобразовательных организаций), а также общие данные об эксплуатации здания в выходные дни, ночной период и т.п.
9.2.5 Данные о конструкции здания
Следует запросить от генпроектировщика состав наружных ограждений, теплотехнические показатели наружных ограждений и заполнения световых проемов, определить перечень всех элементов здания с необходимыми сведениями об их конструкции. Следует указать ориентацию здания по странам света.
9.2.6 Использование помещений
Следует получить от заказчика или генпроектировщика данные о назначении здания (в том числе групп помещений различного функционального назначения), а также получить спецификацию всех помещений с указанием их площади и строительного объема здания и характерных обособленных его частей.
Следует получить от заказчика или генпроектировщика численность людей, которые могут находиться в помещении в течение длительного времени (при отсутствии задания можно пользоваться данными
таблицы 4). На основании этого числа определяется кратность воздухообмена в том числе с использованием данных, приведенных в
таблицах 13 -
15,
17,
19,
20. Дополнительно учитывают вид деятельности сотрудников и находящихся в здании людей с учетом наличия одежды согласно данным
таблицы 5.
Численность людей указывают по часам (для смены) для конкретных условий.
Для помещений (групп помещений) аналогичного назначения необходимо задать следующие внутренние нагрузки:
- тепловые нагрузки по явной теплоте (конвекции или излучения);
- скрытые тепловые нагрузки.
Эти нагрузки задают по часам дня (смены).
Проектная организация и заказчик должны согласовать данные по выделению загрязнений, тепла и влаги в помещениях для каждого вида. Интенсивность выделения каждого вида загрязнений и допустимые пределы указывают по часам дня (смены).
9.2.7 Требования к помещениям
Для каждого помещения (групп помещений аналогичного назначения) должны быть заданы требования в соответствии с
разделом 7 и согласованы проектировщиком и заказчиком. Эти требования должны учитывать условия теплового комфорта и влияние подвижности воздуха в зоне нахождения людей.
Заказчик может устанавливать собственные требования и требования, приведенные в других разделах настоящего стандарта. Проектная организация несет ответственность за определение специальных требований для эксплуатируемых (рабочих) зон, в которых находятся люди.
9.3 Дальнейшие этапы проектирования, строительства и сдачи в эксплуатацию:
- разработка задания на проектирование и технические условия (требования);
- получение исходно-разрешительной документации;
- проектирование;
- монтаж;
- проверка монтажа;
- пуск системы, проверка ее функционирования, регулирование баланса воздухообмена, оформление протоколов испытаний;
- информирование заказчика о завершении монтажа;
- выполнение функциональных проверок и измерений, а также специальных измерений;
- сдача системы заказчику, включая передачу всей документации по эксплуатации и техническому обслуживанию (гарантийный период начинается с момента сдачи системы).
9.4 Эксплуатация и техническое обслуживание
Для системы вентиляции и кондиционирования воздуха должны быть предусмотрены требования к эксплуатации и техническому обслуживанию в целях поддержания работоспособности в течение всего срока службы. Проект и конструкция системы должны предусматривать удобство ее очистки, технического обслуживания и эксплуатации. Следует предусмотреть необходимые средства защиты и обеспечения безопасности при выполнении технического обслуживания и ремонта, а также порядок аварийного выключения.
Примечание - Более подробные требования к безопасности при эксплуатации и техническом обслуживании могут регламентироваться другими нормативными документами.
Любая система вентиляции и кондиционирования воздуха требует надлежащей эксплуатации и технического обслуживания в целях обеспечения требуемых условий и качества воздуха в помещении, энергосбережения, исключения попадания загрязнений из системы вентиляции в помещения, предотвращения отказов системы и ее преждевременного износа.
Рекомендуется вести:
- журналы по эксплуатации и техническому обслуживанию;
- учет потребления энергии.
В журналах следует указывать описание методов контроля и периодичность технического обслуживания с указанием ответственных лиц. Проект и конструкция системы должны предусматривать выполнение работ по техническому обслуживанию и ремонту.
Организация учета потребления энергии должна предусматривать возможность периодического контроля потребления энергии во всем здании и в отдельных важных системах. В связи с этим требования к учету и средствам контроля должны быть заданы на ранних стадиях проектирования.
При внесении изменений в систему следует также изменять порядок ее эксплуатации с корректировкой соответствующих требований.
(справочное)
РЕКОМЕНДАЦИИ ПО ПРОЕКТИРОВАНИЮ
Настоящее приложение дополняет требования
СП 60.13330,
СП 118.13330 и распространяется на системы механической вентиляции и кондиционирования воздуха в зданиях, предназначенных для нахождения людей. При использовании настоящего приложения в иных случаях следует учитывать специфику рассматриваемых помещений.
А.2 Требования к приемным устройствам наружного воздуха и устройствам для удаления воздуха за пределы здания
А.2.1 Общие положения
Воздуховоды должны быть по возможности короткими для снижения потери давления и расхода энергии. Воздуховоды должны соответствовать следующим требованиям:
- приемное устройство наружного воздуха должно быть устроено так, чтобы забираемый воздух был по возможности чистым, сухим (не содержал капель дождя и пр.) и прохладным в летнее время;
- удаление воздуха в атмосферу должно быть организовано так, чтобы снизить до минимума риск для здоровья персонала или вредные эффекты для здания и окружающей среды.
А.2.2 Приемные устройства для наружного воздуха
К приемным устройствам для наружного воздуха предъявляются следующие требования:
- не допускается осуществлять воздухозабор на расстоянии менее 8 м по горизонтали от мест сбора мусора, вблизи интенсивно используемых мест парковки для трех автомобилей и более, вблизи дорог, погрузочно-разгрузочных зон, канализационных отверстий, верхних частей дымовых труб и прочих аналогичных источников загрязнений;
- следует обращать особое внимание на расположение и форму приемных устройств наружного воздуха вблизи систем испарительного охлаждения, чтобы предотвратить попадание загрязнений в приточный воздух; не допускается располагать эти устройства по преобладающему направлению ветра от мест установки систем испарительного охлаждения; важную роль играет надлежащее техническое обслуживание градирен;
- не допускается устройство воздухозабора наружного воздуха со стороны фасада, выходящего на улицу с интенсивным движением; если это условие невыполнимо, то приемные устройства для наружного воздуха следует располагать на предельно возможной высоте от уровня земли;
- не допускается устройство воздухозабора наружного воздуха вблизи мест вытяжки и мест с выделениями других загрязнений или запахов (см.
А.2.4);
- не допускается устройство воздухозабора наружного воздуха непосредственно над землей; минимальное расстояние от нижней части приемного устройства наружного воздуха над землей должно составлять 2 м;
- если приемное устройство наружного воздуха располагается в верхней части здания или концентрация загрязнений с обеих сторон здания одинакова, то приемное устройство рекомендуется располагать с наветренной стороны;
- приемные устройства наружного воздуха, расположенные вблизи открытых мест, крыш или стен, следует устраивать и защищать таким образом, чтобы воздух не перегревался в летний период;
- при наличии риска проникания воды в любой форме (снега, дождя, тумана и пр.) или пыли (в том числе листьев) скорость потока воздуха на входе приемного устройства наружного воздуха в живом сечении не должна превышать 2 м/с;
- минимальное расстояние до нижней части приемного устройства наружного воздуха, располагаемого на крыше или площадке, должно быть по крайней мере в 1,5 раза больше ожидаемой максимальной толщины слоя снега; это расстояние может быть меньше указанного, если образование слоя снега предотвращается, например, щитами или подогревом кровли;
- при устройстве воздухозабора наружного воздуха следует учитывать возможность проведения очистки.
А.2.3 Устройства для удаления воздуха за пределы здания
К устройствам для удаления воздуха за пределы здания в атмосферу предъявляются следующие требования:
- расстояние от устройства для удаления воздуха до соседних зданий должно быть не менее 8 м;
- расстояние от устройства для удаления воздуха должно быть не менее 2 м до приемного устройства наружного воздуха, расположенного на той же стене; по возможности, приемное устройство наружного воздуха должно быть ниже отверстия для удаления воздуха (см. также
А.2.4);
- скорость удаляемого воздуха в устройстве (в живом сечении) не должна превышать 2,5 м/с при выбросе воздуха на фасады с окнами и 5 м/с при выбросе воздуха на необслуживаемой кровле с проведением акустических расчетов при необходимости.
В других случаях удаление воздуха должно быть организовано на крыше. Удаление воздуха организуется на крыше в наиболее высокой ее части и должно быть направлено вверх через вытяжные зонты (козырьки), стойки которых должны иметь расчетную высоту в зависимости от эквивалентного диаметра выбросного отверстия и скорости потока.
Высота или скорость потока воздуха могут быть больше при наличии в вытяжном воздухе неприятно пахнущих веществ или загрязнений (конкретные решения определяются при разработке раздела "Охрана окружающей среды").
А.2.4 Расстояние между устройствами для приема и удаления воздуха
Минимальные расстояния между приемными устройствами наружного воздуха и устройствами для удаления воздуха за пределы здания приведены на рисунке А.1. Эти расстояния, в основном, зависят от класса удаляемого воздуха. Для класса У 4 расстояния имеют наибольшее значение и зависят от расхода воздуха. Для классов удаляемого воздуха У 1 - У 3 расстояния определены только классом удаляемого воздуха. Данные рисунка А.1 могут быть использованы только при скоростях потоков удаляемого воздуха не более 6 м/с. При более высоких скоростях расстояния могут быть меньше.
1 - расстояние по вертикали - устройство для удаления
воздуха за пределы здания находится выше приемного
устройства наружного воздуха (верхний график), расстояние
по вертикали - устройство для удаления воздуха за пределы
здания находится ниже приемного устройства наружного воздуха
(нижний график); 2 - расстояние; 3 - класс удаляемого
воздуха У; 4 - расход воздуха в устройстве для удаления
воздуха за пределы здания, м3/с
Рисунок А.1 - Минимальные расстояния между приемными
устройствами наружного воздуха и устройствами
для удаления воздуха за пределы здания
Для индивидуальных и стеновых приточно-вытяжных рекуперативных вентиляционных устройств, в том числе с постоянным направлением движения приточного и вытяжного потоков воздуха, обеспечивающих удаление вытяжного воздуха класса У 1, минимальное расстояние между приточным и вытяжным отверстиями устройств не нормируют и принимают в соответствии с паспортом устройства.
В высоких зданиях приемные устройства наружного воздуха и устройства для удаления воздуха за пределы здания должны быть расположены таким образом, чтобы свести до минимума влияние ветра и восходящих потоков воздуха.
Примеры
1 По отношению к приемному устройству наружного воздуха устройство для удаления воздуха за пределы здания может: а) быть на 4 м ниже; б) располагаться на той же высоте; в) быть на 2 м выше.
Необходимо определить минимальное расстояние для всех трех случаев. Система обслуживает большую профессиональную кухню, включая вытяжные укрытия с расходом удаляемого воздуха 3 м3/с.
Решение
Удаляемый воздух относится к классу У 4, поэтому используется линия, приведенная на рисунке А.1, со значением расхода воздуха 3 м3/с.
Расстояния по горизонтали будут равны:
а) примерно 15 м;
б) 16 м;
2 Условия те же, что и в перечислении в) предыдущего примера, но система обслуживает офисные помещения, в которых курение запрещено.
Решение
Удаляемый воздух имеет класс У 1, поэтому устройство для удаления воздуха за пределы здания может быть расположено на 2 м выше приемного устройства наружного воздуха. Минимальное расстояние по горизонтали составляет 0 м.
А.3 Фильтры очистки воздуха
Фильтрация воздуха необходима для обеспечения требуемой чистоты воздуха внутри здания с учетом класса наружного воздуха. Размеры секций фильтров выбирают с учетом ряда параметров (срок службы, пылеемкость, специальные случаи местных выделений загрязнений и пр.).
Рекомендуемые классы фильтров для различных ступеней очистки приведены в таблице А.1 (обозначения по
ГОСТ Р ЕН 779).
Таблица А.1
Обозначение класса наружного воздуха | Класс фильтра в зависимости от класса воздуха в помещении |
В 4 (высокое) | В 3 (среднее) | В 2 (умеренное) | В 1 (низкое) |
Н1 | F9 | F8 | F7 | F6 |
Н2 | F7/F9 | F6/F8 | F6/F7 | G4/F6 |
Н3 | F7/F9 | F8 | F7 | F6 |
Н4 | F7/F9 | F6/F8 | F6/F7 | G4/F6 |
Н5 | | | F6/F7 | G4/F6 |
<*> GF - газовый (угольный) и/или химический фильтр. |
Очистку воздуха следует предусматривать для обеспечения требуемого качества воздуха в помещениях. Фильтры следует выбирать с учетом срока службы и пылеемкости фильтров, требований к качеству воздуха для теплообменного оборудования. Для увеличения срока службы теплообменного оборудования (воздухонагревателей, воздухоохладителей и рекуператоров) в промышленных и городских районах следует предусматривать двухступенчатую очистку воздуха в фильтрах. Номинальная скорость прохождения воздуха через фильтр должна составлять 0,5 м/с, а перепад давления на фильтре - от 120 до 170 Па. В случае превышения давления в 2,5 - 3 раза следует проводить замену фильтра. Рекомендуемые значения конечного перепада давления для фильтров:
- высокой и сверхвысокой эффективности - 600 Па.
Для снижения концентрации пыли, содержащейся в наружном воздухе, и поддержания системы вентиляции в чистом состоянии должна быть предусмотрена установка предфильтра на ее входе. Это увеличивает срок службы второго фильтра, но также увеличивает первоначальные и текущие расходы. Если предусмотрена одна ступень фильтрации, то фильтр устанавливается после вентилятора. Если предусмотрено две ступени фильтрации и более, то первая ступень фильтрации устанавливается до секций подготовки воздуха, а вторая - после них.
При использовании фильтров классов F7 и выше следует уделить особое внимание изменению перепадов давления из-за изменения расхода воздуха.
Для класса наружного воздуха Н 5 рекомендуется использовать газовые (угольные) фильтры. Это может быть эффективным решением и для классов Н 3 и Н 4. Газовые фильтры устанавливают в сочетании с фильтрами F8 и F9 (располагают до них).
В некоторых случаях для класса Н 5 (районы с высокой концентрацией промышленных предприятий, расположенные вблизи аэропортов и пр.) может потребоваться применение электростатических фильтров. Если повышенное загрязнение наружного воздуха происходит периодически, то рекомендуется предусмотреть обводной воздуховод для этих фильтров и непрерывный контроль качества воздуха.
Исходя из условий гигиены не рекомендуется эксплуатировать фильтр первой ступени более одного года. Фильтры второй и третьей ступеней рекомендуется менять не реже одного раза в два года. Если для всех секций постоянно обеспечиваются сухие условия, то периодичность замены фильтров увеличивается. Рекомендуется предусматривать визуальный осмотр фильтров и контроль перепадов давления на них.
К фильтрам и местам их установки предъявляются следующие требования:
- следует тщательно выбирать и оборудовать место приемного устройства наружного воздуха во избежание попадания на фильтр местных загрязнений, а также дождя или снега;
- при проектировании системы для сведения к минимуму риска роста микроорганизмов следует предусмотреть, чтобы относительная влажность в ней была менее 90%, а среднее значение относительной влажности в течение 3 суток было менее 80% во всех элементах системы, включая фильтр;
- исходя из условий гигиены фильтры наружного воздуха должны быть разделены на две ступени, по крайней мере, для классов воздуха в помещении В 1 и В 2; фильтр первой ступени может иметь класс F5 (предпочтительно F7); фильтр второй ступени должен иметь класс не ниже F7 (предпочтительно F9). Если предусмотрена только одна ступень фильтрации, то класс фильтра должен быть не ниже F7;
- в системе с рециркуляцией воздуха следует использовать фильтр класса не ниже F5 для предотвращения загрязнения системы, но везде, где возможно, фильтр рециркуляционного воздуха должен иметь тот же класс, что и аналогичный фильтр в основном потоке воздуха;
- для защиты системы вытяжного и удаляемого воздуха требуется фильтр класса не ниже F5;
- следует очищать воздух, удаляемый из кухонь, на первой ступени фильтром для жиров, который можно легко заменять и очищать;
- не следует устанавливать фильтр непосредственно после вентилятора или в тех местах, где распределение воздуха в поперечном сечении фильтра не является равномерным;
- общий перепад давления вычисляют и устанавливают с учетом допустимых колебаний потока воздуха, стоимости цикла эксплуатации фильтра и длительности срока службы; поскольку при повторных испытаниях используют грубую (крупнозернистую) искусственную пыль, эксплуатационные характеристики фильтров (эффективность, пылеемкость и пр.) в реальных условиях эксплуатации будут отличаться от результатов испытаний в лаборатории; эффективность не должна оказываться ниже установленных требований;
- замену фильтров следует проводить, когда перепад давления достигает заданного значения;
- замену фильтра в соответствии с условиями гигиены следует проводить осенью или после окончания сезона выделения пыльцы или спор; если предъявляются более жесткие требования, то замена фильтров может проводиться также весной после завершения отопительного сезона, в целях удаления запахов продуктов горения;
- замену фильтров следует проводить аккуратно с использованием защитных средств, чтобы предотвратить распространение накопленных загрязнений;
- при утилизации фильтры могут сжигаться в хорошо фильтруемых печах для уничтожения накопленных загрязнений, уменьшения количества отходов и экономии энергии. Фильтры из обычных систем вентиляции могут быть также вывезены на свалку.
Системы рекуперации тепла следует также защищать фильтром не ниже класса F6. Роторные рекуператоры тепла следует оборудовать секциями очистки.
Утечки в фильтрах резко снижают их эффективность. В связи с этим следует соблюдать требования к герметичности и отсутствию утечек.
Рекомендуется предусматривать рекуперацию тепла вытяжного воздуха везде, где осуществляется подогрев приточного воздуха. Исключениями являются производства с высокими теплопотерями и специальные случаи, когда рекуперация неэкономична, например при очень коротких периодах работы или для предприятий с ограниченными площадями.
При применении рекуперации тепла по принципу "воздух-воздух" необходимо учитывать следующие факторы:
- виды испытаний установок рекуперации, в том числе на утечку;
- допускается рециркуляция вытяжного воздуха для класса У 1; в то же время следует оценить значение перекрестных утечек, чтобы обеспечить поступление требуемого объема наружного воздуха в помещения;
- для систем с вытяжным воздухом класса У 2, не допускающих рециркуляции, необходимо обеспечить повышенное давление с приточной стороны установки рекуперации тепла (см.
рисунок А.2);
- для систем с вытяжным воздухом класса У 3 необходимо обеспечить повышенное давление по всей поверхности с приточной стороны по отношению к вытяжной стороне; это условие должно быть выполнено во всех режимах эксплуатации системы; если применяется рекуператор, через который могут передаваться запахи или загрязнения, например влага, то в вытяжном воздухе может содержаться не более 5% вытяжного воздуха класса У 3; следует обратить особое внимание на внутреннюю герметичность теплообменника;
- для систем с вытяжным воздухом класса У 4, как правило, не допускается применение рекуператоров тепла, работающих по принципу "воздух-воздух". В этих случаях следует использовать рекуператоры с промежуточным теплоносителем;
- для систем с применением рекуператоров тепла, работающих по принципу "воздух-воздух", следует учитывать возможность образования конденсата и угрозу заморозки рекуператора.
В этих случаях следует предусматривать обводные клапаны на приточном воздухе, при этом поверхность установленного воздухонагревателя должна обеспечивать нагрев полного расхода приточного воздуха до требуемой температуры.
При наличии индивидуальных, в том числе и стеновых, приточно-вытяжных рекуперативных вентиляционных устройств, обеспечивающих удаление вытяжного воздуха класса У 1, минимальное расстояние между приточным и вытяжным отверстиями устройств не нормируются и принимаются в соответствии с паспортом устройства.
1 - удаляемый воздух; 2 - рекуператор тепла; 3 - вытяжной
воздух; 4 - наружный воздух; 5 - приточный воздух;
6 - давление
Рисунок А.2 - Перепады давления в системе
А.5 Удаление вытяжного воздуха
Не допускается распространение загрязнений в здании через воздуховоды и систему вентиляции.
К удалению из здания вытяжного воздуха различных классов предъявляются следующие требования:
- класс У 1 - вытяжной воздух может удаляться в общий воздуховод;
- класс У 2 - вытяжной воздух может удаляться в общий воздуховод;
- класс У 3 - вытяжной воздух удаляется через отдельные воздуховоды от различных мест одного класса наружу или в сборный воздуховод или камеру вытяжного воздуха;
- класс У 4 - вытяжной воздух удаляется наружу отдельными воздуховодами.
Классификация удаляемого воздуха приведена в
таблице 21. Если воздух разных классов собирается в общий воздуховод, то класс воздуха в этом воздуховоде соответствует наихудшему случаю, если доля наиболее загрязненного воздуха превышает 20% общего объема вытяжного воздуха.
А.6 Повторное использование вытяжного воздуха и перетекающего воздуха (рециркуляция)
Возможность повторного использования вытяжного воздуха зависит от конкретной ситуации.
Для экономии энергии расход приточного воздуха должен быть, по возможности, минимальным. Любые нежелательные выделения (тепло, загрязнение, влага и пр.) следует удалять локальными методами, непосредственно у источника выделений или применять закрытые системы с вытяжкой. Как в этом, так и в большинстве других случаев, когда требуется надлежащее качество воздуха в помещении, не следует применять рециркуляцию воздуха. Подогрев или охлаждение зоны перед работой (при необходимости) следует выполнять, в основном, рециркуляционным воздухом. Рекомендации по повторному использованию вытяжного и переточного воздуха приведены в таблице А.2 в соответствии с классификацией по
8.2.5.
Таблица А.2
Повторное использование вытяжного и переточного воздуха
Класс вытяжного воздуха <*> | Возможность повторного использования |
У 1 | Допускается рециркуляция и перетекание воздуха в другие помещения |
У 2 | Рециркуляция, как правило, не допускается, но возможна передача воздуха в туалеты, умывальники, гаражи и другие аналогичные помещения |
У 3, У 4 | Не допускаются рециркуляция и перетекание воздуха в другие помещения |
<*> Классификация удаляемого воздуха приведена в таблице 21. |
Для класса У 1 допускается рециркуляция воздуха в пределах одной зоны без ограничения; для класса У 2 - только при условии контроля рециркуляционного воздуха.
Примечание - Если повторное использование вытяжного воздуха не допускается, то в проекте должна быть исключена возможность рециркуляции (попадания вытяжного воздуха). Следует обратить особое внимание на герметичность систем рекуперации тепла.
Следует предусмотреть теплоизоляцию всех воздуховодов, труб и оборудования с существенной разницей между температурой среды в них и в окружающем пространстве.
Конструкция изоляции должна предусматривать:
- отсутствие образования конденсата на внутренних поверхностях;
- защиту изоляции от повреждений;
- возможность очистки воздуховодов;
- сведение до минимума вредного влияния производства и заменяемых частей на окружающую среду.
Не допускается применение внутренней изоляции для наружного рециркуляционного и приточного воздуха.
А.8 Герметичность системы
А.8.1 Общие положения
Критерием выбора класса герметичности является допустимый процент утечки воздуха в системе в условиях эксплуатации (инфильтрации воздуха в оборудование, работающее при пониженном давлении, или при отсутствии эксфильтрации воздуха из оборудования, работающего при повышенном давлении).
В зоне, в которой предусмотрено нахождение людей, следует обеспечить необходимый расход наружного воздуха. При наличии утечек в воздуховодах и кондиционере расход воздуха через вентилятор будет выше.
Ниже приведены требования к определению минимально допустимого класса герметичности. Более высокие требования предъявляются в случаях, если общая площадь поверхности оборудования велика по сравнению с расходом воздуха и утечкой, что может привести к невыполнению требований к качеству воздуха, риску образования конденсата и пр.
Утечки воздуха в кондиционерах, элементах систем вентиляции и пр. не должны превышать значения утечек по классу герметичности A. Класс герметичности A также может относиться к открытым воздуховодам, проходящим в тех помещениях, которые они обслуживают, и в случаях, если перепад давления по отношению к внутреннему воздуху не превышает 150 Па.
Класс герметичности B применяют для воздуховодов, проходящих вне вентилируемого пространства, или для воздуховодов в вентилируемом пространстве, где перепад давления по отношению к внутреннему воздуху превышает 150 Па. Все вытяжные воздуховоды с избыточным давлением по отношению к воздуху помещения, за исключением вентиляционных камер, должны иметь класс герметичности не ниже класса B.
Класс герметичности C применяют, если перепад между давлением воздуха в воздуховоде и давлением воздуха в помещении исключительно высок или утечка может привести к невыполнению требований к качеству воздуха в помещении, заданным условиям поддержания давления или функционирования системы вентиляции.
Класс герметичности D применяют в специальных случаях.
Классы герметичности должны соответствовать приведенным в таблице А.3.
Таблица А.3
Классификация системы воздуховодов
Класс герметичности | Предельное значение статического давления ps, Па | Предельное значение утечки воздуха fmax, м3с-1м-2 |
Положительное | Отрицательное |
A | 500 | 500 | 0,027·p0,65·10-3 |
B | 1000 | 750 | 0,009·p0,65·10-3 |
C | 2000 | 750 | 0,003·p0,65·10-3 |
| 2000 | 750 | 0,001·p0,65·10-3 |
<a> Система воздуховодов специального назначения. |
Коэффициент утечки
f должен быть меньше предельного значения утечки воздуха
fmax, в соответствии с требуемым классом герметичности, указанным в
таблице А.3, для любого испытательного давления
ptest, меньшего или равного расчетному рабочему давлению
pdesign. Требования должны быть выполнены для положительных и отрицательных давлений.
Система воздуховодов должна выдерживать предельные значения статического давления p
s, указанные в
таблице А.3, без постоянной деформации или без любого внезапного изменения расхода утечки воздуха или испытательного давления. Деформацию указывают, только если площадь поперечного сечения уменьшается, как минимум на 10%.
А.8.2 Испытания на герметичность
Возможность проведения испытаний на герметичность должна быть предусмотрена на стадии проектирования. Испытания следует проводить для каждой части системы, которая может быть испытана на герметичность установленными методами. Монтаж системы воздуховодов до проведения испытаний должен быть, по возможности, завершен, т.е. установлены все элементы воздуховодов, а кондиционеры и другое оборудование подсоединены к воздуховодам.
До проведения измерений следует выполнить визуальный осмотр и оценить правильность выполнения монтажа системы и наличие видимых повреждений. Если отдельные части системы имеют различные классы герметичности, то испытание этих частей следует проводить отдельно под давлением, соответствующим проектным значениям. Если испытания проводят совместно, то давление должно соответствовать наиболее высокому классу герметичности, а результаты испытаний следует оценивать по сумме максимально допустимых утечек для различных частей.
Требования к испытательной установке - до использования на месте эксплуатации пользователь осматривает ту испытательную установку, на которую должны быть сертификат, диаграмма или график калибровки, регистрирующие удовлетворительную калибровку в течение одного года ее использования для испытаний.
А.8.2.1 Метод испытаний на прочность и утечку:
- определенной установки на месте эксплуатации.
До начала испытаний испытуемый участок изолируют от остальной системы. Испытуемый участок должен содержать характерное разнообразие размеров воздуховодов и фасонных частей. Площадь поверхности системы воздуховодов на рассматриваемом участке должна составлять не менее 10% от общей площади поверхности системы воздуховодов и, по возможности, не менее 10 м2.
Примечание - Нормальным отношением между общей длиной соединений L, м, и площадью поверхности системы воздуховодов Aj, м2, является (м-1)

; (А.1)
- образец для испытаний группы изделий в целом.
Испытуемый участок должен содержать характерное разнообразие размеров воздуховодов и фасонных частей. В испытуемый участок должны быть включены прямые воздуховоды длиной не менее 2,5 м. Испытуемая площадь поверхности системы воздуховодов должна составлять не менее 10 м2. Между общей длиной соединений L, м, и площадью поверхности системы воздуховодов Aj, м2, отношение должно быть следующим:

. (А.2)
А.8.2.2 Метод испытаний:
- определенной установки.
Испытуемый участок подвергают положительным и отрицательным испытательным давлениям, не менее чем расчетное рабочее давление pdesign. Показания расхода утечки регистрируют в установившемся состоянии, т.е. когда каждое испытательное давление сохраняется в пределах +5% от установленного значения в течение 5 мин.
Если расход утечки воздуха превышает допустимое значение, тогда в испытание включают дополнительно такой же процент общей площади поверхности системы воздуховодов. Если утечка воздуха все еще превышает допустимый расход, тогда проводят испытание всей системы воздуховодов;
- группы изделий в целом.
Испытуемый участок подвергают воздействию нескольких испытательных давлений, минимум пять положительных и пять отрицательных, в диапазоне испытательных давлений до предельного значения статического давления ps. Показание расхода утечки регистрируют в установившемся состоянии, т.е. когда каждое испытательное давление сохраняется в пределах +5% от установленного значения в течение 5 мин.
А.8.2.3 Поправка результатов испытаний на утечку
Если температура t и/или атмосферное давление pa отличаются от стандартных условий (20 °C и 101 325 Па), тогда измеренный расход утечки корректируют следующим образом:

, (А.3)
где qvi - объемный расход утечки потока воздуха, м3/ч;
qvlmeasured - измеренный объемный расход утечки воздуха, м3/ч.
Степень герметичности здания должна соответствовать его назначению и типу системы вентиляции. Здания со сбалансированными системами вентиляции (приточно-вытяжные системы с механическим побуждением) должны иметь максимально возможную герметичность, т.е. иметь значение nL50 ниже 1,0 ч-1 - для высоких зданий (выше трех этажей) и ниже 2,0 ч-1 - для малоэтажных зданий. Во избежание сквозняков следует не допускать значительных утечек в одном месте здания. Если необходимо ограничить распространение загрязнений, то внутренние стены и полы также должны быть герметичными.
Метод определения
nL50 приведен в
ГОСТ 31167. Приведенные выше значения характеризуют герметичность здания в целом. При проведении испытаний должны быть закрыты все двери, окна и другие отверстия, а также приточные и вытяжные вентиляционные отверстия.
А.10 Давление воздуха внутри системы и внутри здания
А.10.1 Общие положения
Относительное давление в здании, его частях и системе вентиляции должно быть задано так, чтобы предотвратить распространение запахов и загрязнений, превышающих допустимые пределы. Не допускается существенное изменение уровня давления при колебании погодных условий. На стадии проектирования следует принять решение по обеспечению герметичности здания, полов и стен, которые влияют на поддержание уровня давления с учетом температуры и ветра.
В настоящем стандарте не рассматриваются перепады давления, образуемые системами дымоудаления.
А.10.2 Давление воздуха в здании
Если не заданы специальные требования, то система вентиляции не должна вызывать перепады давления в здании. В условиях сурового климата несколько пониженное давление по отношению к наружному воздуху позволяет предотвратить повреждение конструкций из-за влаги, но отрицательное давление не должно превышать 20 Па.
В районах с повышенным загрязнением наружного воздуха (классы Н 2 - Н 5) или в зонах, где пониженное давление может вызвать риск повышения концентрации радона, отрицательное давление должно быть минимальным. Здание может проектироваться с учетом повышенного давления. В условиях сурового климата следует учитывать то обстоятельство, что повышенное давление внутри здания не приведет к повреждению материалов из-за влаги.
В некоторых зонах (а также в зданиях, в которых находятся люди) предусмотрено повышенное давление по отношению к наружному воздуху или соседним помещениям, например в чистых помещениях и помещениях с чувствительным электронным оборудованием.
В зонах с высоким выделением загрязнений следует предусматривать непрерывный контроль перепадов давления. Давление воздуха на лестничных клетках, в коридорах и других проходах следует задавать таким образом, чтобы не было перетоков воздуха из одних помещений в другие.
А.10.3 Давление воздуха в помещении
Следует предусматривать повышенное давление в целях обеспечения перетока воздуха из чистых помещений в менее чистые помещения.
А.10.4 Давление воздуха в системе
Не допускается распространение загрязнений в здании через воздуховоды или систему вентиляции, а также использование разных вентиляционных систем для одной и той же зоны здания, если это может привести к неконтролируемым изменениям уровня давления.
Высотные здания следует разделять по вертикали на несколько зон вентиляции. Расстояние по вертикали Hmax, м, между наиболее низкой и высокой точками приема воздуха в пределах одной зоны не должно превышать значения, вычисляемого по формуле

, (А.4)
где Tr - температура воздуха в помещении, °C;
To,min - расчетная температура наружного воздуха в зимних условиях, °C.
Пример - Если температура воздуха в помещении - плюс 21 °C и расчетная температура наружного воздуха минус 14 °C, то расстояние по вертикали между наиболее низкой и высокой точками приема воздуха не должно превышать 17 м.
В ином случае систему следует оборудовать дроссельными клапанами потока воздуха или другими аналогичными устройствами для автоматической компенсации эффекта дымовой трубы.
А.10.5 Давление воздуха в оборудовании
Для систем с изменяющимся потоком воздуха необходимо задавать следующие дополнительные требования:
- к максимальному изменению перепада давления и соотношения между вытяжным и приточным воздухом;
- контролю давления.
Следует оценить влияние изменений перепада давления на потоки воздуха из-за накопления пыли или изменения положения дроссельной заслонки в клапане или камере смешивания. Допускается незначительное изменение расхода воздуха (не более +/- 10% общего расхода приточного или вытяжного воздуха) или давления в здании.
А.10.6 Воздуховоды
Вытяжные воздуховоды, расположенные внутри здания (за исключением воздуховодов, проходящих после вентилятора в вентиляционных камерах), должны, как правило, эксплуатироваться при пониженном давлении.
Допускается эксплуатация вытяжных воздуховодов классов У 1 и У 2 при повышенном давлении при условии, что они имеют герметичность класса П и что в той же шахте отсутствуют приточные воздуховоды с пониженным давлением.
Не допускается применение воздуховодов класса У 3 или У 4 с повышенным давлением в тех помещениях, в которых предусмотрено нахождение людей. Исключением являются кухни в жилых домах (с вытяжкой над плитой) и ванные комнаты (с вентилятором) при условии, что вытяжной воздуховод не находится под повышенным давлением в любых помещениях (комнатах и пр.), кроме тех, которые они обслуживают.
В вытяжных воздуховодах систем принудительной вентиляции следует предусматривать клапаны, автоматически перекрывающиеся при выключении вентиляции, во избежание обратного тока воздуха и неконтролируемой вентиляции, по крайней мере, если сечение вытяжного воздуха превышает 0,06 м3.
А.11 Управление вентиляцией
Управление вентиляцией в зависимости от реальных потребностей может существенно снизить потребление энергии.
С этой целью могут быть предусмотрены следующие средства управления:
- ручное выключение;
- комбинирование выключателей вентиляции с выключателями освещения;
- задание режима работы и выключения в зависимости от времени (день, неделя или год);
- выключатель у окна;
- инфракрасный сенсор;
- применение частотно-регулируемого привода при необходимости изменения расчетных расходов воздуха.
Управление системой вентиляции может быть построено также с учетом воздействия различных факторов. В тех помещениях, в которых подразумевается нахождение людей, могут быть предусмотрены:
- сенсоры движения;
- сенсоры-счетчики;
- сенсоры CO2 (в основном, в помещениях, где запрещено курение);
- сенсоры газовой смеси (в том числе в помещениях, где находятся курящие).
В помещениях с известными выделениями концентрация наиболее значимого загрязнителя может быть использована в качестве входного сигнала, например концентрация CO на автомобильных стоянках.
При изменении назначения помещения следует вносить изменения в систему вентиляции и средства ее управления в соответствии с изложенными выше принципами.
А.12 Снижение потребления энергии
А.12.1 Удельная мощность вентилятора
Удельная мощность вентилятора Pв зависит от перепада давления, эффективности вентилятора и конструкции двигателя. В таблице А.4 приведены примеры классов удельной мощности Pв для типовых областей применения.
Таблица А.4
Примеры классов удельной мощности вентиляторов
Область применения | Класс удельной мощности вентилятора |
Типовой диапазон значений | Типовое значение |
Приточный вентилятор: | | |
- сложная система вентиляции | Pв 1 - Pв 5 | Pв 3 |
- простая система вентиляции | Pв 1 - Pв 5 | Pв 2 |
Вытяжной вентилятор: | | |
- сложная система вентиляции и кондиционирования | Pв 1 - Pв 4 | Pв 3 |
- простая система вентиляции | Pв 1 - Pв 3 | Pв 2 |
- вытяжная система | Pв 1 - Pв 3 | Pв 2 |
А.12.2 Перепад давления
Перепад давления на элементах системы должен быть по возможности низким (в пределах соответствия заданным требованиям), чтобы сократить расходы энергии на вентиляцию. Перепад давления может изменяться, например из-за накопления пыли, что может оказать влияние на баланс давлений в системе.
В таблицах А.5 и
А.6 приведены примеры перепадов давлений. Если отдельные элементы имеют высокий перепад давления, то сохранить общий уровень возможно за счет снижения перепада давления на других элементах.
Таблица А.5
Примеры перепадов давления на отдельных элементах
приточной системы вентиляции
Элемент | Перепад давления, Па |
Низкий | Нормальный | Высокий |
Воздуховод | 100 | 200 | 300 |
Секция нагревания | 40 | 80 | 120 |
Секция охлаждения | 60 | 100 | 140 |
Рекуператор | 100 | 150 | 200 |
Увлажнитель | 20 | 40 | 60 |
| 100 | 150 | 250 |
Шумоглушитель | 30 | 50 | 80 |
Конечный элемент | 30 | 50 | 100 |
Входное и выходное отверстия для воздуха | 20 | 50 | 70 |
<*> Конечный перепад давления перед заменой фильтра. |
Таблица А.6
Примеры перепадов давления в вытяжной системе
Элемент | Перепад давления, Па |
Низкий | Нормальный | Высокий |
Воздуховод и конечный элемент | 100 | 200 | 300 |
Рекуператор | 100 | 150 | 200 |
| 100 | 150 | 250 |
Шумоглушитель | 30 | 50 | 80 |
Входное и выходное отверстия для воздуха | 20 | 40 | 60 |
<*> Конечный перепад давления перед заменой фильтра. |
А.13 Требования к расположению элементов и систем
А.13.1 Общие положения
При проектировании, изготовлении и монтаже системы следует предусматривать удобство очистки, технического обслуживания и текущего ремонта. С этой целью вблизи оборудования должно быть предусмотрено достаточно свободного пространства. Его размеры должны быть не меньше соответствующих размеров узлов оборудования. Для демонтажа и последующего ремонта должно быть предусмотрено достаточно свободного пространства. Следует организовать и обозначить пути транспортирования запасных частей. В А.13.1 -
А.13.5 приведены общие требования к свободному пространству.
Не допускается расположение оборудования, требующего технического обслуживания, или дверей для обслуживания в местах с затрудненным доступом. Если оборудование размещено за подвесным потолком, то к оборудованию должен быть обеспечен доступ без применения инструмента и рядом с оборудованием за подвесным потолком должна быть свободная площадка размерами не менее 500 x 500 мм.
Следует обеспечить доступ персонала к кондиционерам и вентиляционным камерам обслуживания (включая, при необходимости, транспортирование материалов и запасных частей) без входа в рабочие зоны или места нахождения людей.
На
рисунках А.3 -
А.6 приведены типовые рекомендации по определению размеров зон обслуживания. В зависимости от конкретной задачи могут потребоваться зоны размерами менее или более установленных. При проектировании системы вентиляции и кондиционирования воздуха следует учитывать требования к очистке, техническому обслуживанию и ремонту.
А.13.2 Требования к размерам вентиляционных камер для размещения кондиционеров
На рисунке А.3 приведены размеры вентиляционных камер, необходимые для эффективной работы системы вентиляции и ее технического обслуживания.
1 - только приточная система; 2 - только вытяжная система;
3 - приточная и вытяжная системы
Рисунок А.3 - Высота и площадь вентиляционных камер
Приведенные графики выполнены для систем с одной единицей приточного или вытяжного оборудования. При разделении оборудования на несколько частей и применении рекуператоров тепла может потребоваться увеличение площади пола.
При проектировании систем вентиляции и кондиционирования воздуха недостаточно указать только размеры вентиляционных камер. Следует предоставить планировку воздуховодов, пути перемещения оборудования и запасных частей, как показано на рисунке А.4.
1 - b = 0,4·высота оборудования (но не менее 0,5 м);
2 - зона обслуживания (ширина зоны обслуживания c
должна быть не менее ширины кондиционера a)
Рисунок А.4 - Расположение кондиционера (в плане)
А.13.3 Требования к размерам зон с холодильными установками и системами распределения воды
На рисунке А.5 приведены размеры зон с холодильными установками и системами распределения воды.
1 - система охлаждения, включая распределение воды;
2 - система повторного охлаждения
Рисунок А.5 - Высота и площадь пола зон
с холодильными установками и системами подготовки воды
Указанные зоны относятся к холодильной установке, насосам холодной воды и системе распределения холодной воды без учета насосов и системы распределения горячей воды.
А.13.4 Поперечное сечение шахт
Для шахт, в которых проходят воздуховоды, можно использовать нижний предел, если поперечное сечение шахт является практически квадратным и отсутствуют ответвления воздуховодов. В иных случаях рекомендуется выбирать значение по верхнему пределу. На рисунке А.6 приведены рекомендуемые сечения шахт, используемые для движения воздуха.
1 - шахты для воздуховодов; 2 - шахты,
непосредственно используемые в качестве воздуховодов
Рисунок А.6 - Поперечное сечение шахт
В шахтах, непосредственно используемых в качестве воздуховодов, поперечное сечение принимают только для прохода воздуха. Следует учитывать возможность присоединения воздуховодов, расположенных в шахте к воздуховодам на этажах. Не рекомендуется располагать вентиляционные шахты между шахтами лифтов.
А.13.5 Требования к пространству за подвесными потолками
Высота пространства за подвесными потолками для размещения приточных и вытяжных воздуховодов обычно составляет от 0,40 до 0,50 м, а в наиболее узких местах - от 0,25 до 0,30 м. Следует предусматривать доступ к местам расположения воздуховодов, требующих обслуживания.
А.13.6 Подоконники
Минимальная глубина подоконников, на которых монтируется оборудование вентиляции и кондиционирования, должна находиться в пределах от 0,2 до 0,4 м.
А.13.7 Требования по защите от шума и вибрации
Следует выбирать наиболее подходящие для конкретной цели типы и габариты вентиляторов с высоким КПД. В большинстве случаев это обеспечит минимальный уровень шума. Предпочтительны вентиляторы с малой скоростью воздуха на выходе.
Вентилятор должен работать в правой части графика аэродинамической характеристики на безопасном расстоянии от области срыва и вблизи максимума графика характеристики мощности.
Необходимо использовать виброизолирующие подставки или подвески с дополнительным основанием (при необходимости) для вентиляторов мощностью более 0,75 кВт, установленных около помещений с жесткими акустическими требованиями.
Воздуховоды должны быть прикреплены к вентиляторам с помощью тканых или эластомерных гибких вставок.
Переходы воздуховодов на входе и выходе должны быть плавными для снижения потери давления и способности к восстановлению статического давления. Полный угол перехода не должен превышать 15° для перехода на входе.
В случае применения нагнетательных установок, соединенных с воздуховодами, ближайшие после вентилятора регулирующий клапан, противопожарный клапан, канальный шумоглушитель, колено, выпуск, переход или отвод должны быть расположены на расстоянии не менее трех эквивалентных диаметров воздуховода от выхода вентилятора.
Все фитинги воздуховодов, особенно расположенные у входа или выхода вентилятора, должны быть рассчитаны на минимально возможные потери давления.
Следует устанавливать канальные шумоглушители (на основании расчета) и/или добавлять акустическую облицовку воздуховодов на входах и выходах вентиляционной системы.
Воздуховод, обслуживающий приточное воздушное устройство, должен иметь прямой участок на протяжении не менее трех эквивалентных диаметров воздуховода. Изгибы воздуховода могут способствовать созданию неравномерного потока воздуха в устройстве, создавая дополнительные потери давления и шум.
Воздуховод, обслуживающий приточное воздушное устройство, должен быть такого же размера, как и вход в устройство.
Примечание - Короткий переход на входе, необходимый для подсоединения воздуховода к диффузору, будет способствовать созданию турбулентности, которая, взаимодействуя с турбулентностью внутри устройства, создаст непредвиденно высокие уровни шума, генерируемого диффузором.
Между воздуховодом и воздушным устройством необходима установка перехода.
Не следует устанавливать балансировочный клапан и противопожарный клапан вблизи входа в устройство. Он должен быть отдален от устройства на расстоянии не менее трех эквивалентных диаметров воздуховода.
Системы воздуховодов должны быть запроектированы таким образом, чтобы воздух по ним поступал в определенные части здания без лишних затрат и чтобы они не являлись источником повышенного шума.
Основными акустическими характеристиками компонентов системы воздуховодов являются затухание шума внутри воздуховода, потери при передаче шума через стенки воздуховодов и собственный шум. Все перечисленные характеристики необходимо учитывать при выборе системы воздуховодов, расчете ее размеров и протяженности.
Для каждой системы вентиляции необходимо выполнить акустический расчет. На основании расчета, при необходимости, устанавливают канальные шумоглушители. Канальные шумоглушители необходимо выбирать с потерей статического давления не выше 60 Па.
А.14 Требования гигиены и технические требования при монтаже и эксплуатации
Все элементы системы вентиляции и кондиционирования воздуха должны соответствовать своему назначению, т.е. быть устойчивыми к коррозии, удобными для очистки, иметь соответствующий доступ для обслуживания и гигиенические показатели, которые не должны способствовать росту микроорганизмов.
Общие гигиенические требования применимы для всех воздуховодов, элементов воздуховодов и оборудования вентиляционных систем. Проект и монтаж воздуховодов должны обеспечивать соответствие данным требованиям на протяжении всего срока службы системы вентиляции.
Расположение элементов воздуховодов должно предусматривать возможность их очистки или демонтажа для проведения технического обслуживания и очистки воздуховодов. Если это невозможно, то следует устанавливать двери для доступа при обслуживании сверху и/или снизу элемента с одной или с обеих сторон.
Для вытяжного воздуха периодичность обслуживания (с использованием дверей и пр.) и метод очистки зависят от его класса.
В камерах статического давления, вблизи поворотов воздуховодов должны быть предусмотрены отверстия для проведения очистки и обслуживания с расстоянием между ними не более 10 м. Для вытяжного воздуха класса У 4 максимальное расстояние должно быть от 3 до 5 м в зависимости от характера содержащихся в нем загрязнений.
Минимальные размеры отверстий приведены в
СП 73.13330. При применении метода очистки, допускающего меньшие размеры отверстий или большие расстояния между ними, следует указать эти значения в соответствующей документации, выполнить соответствующую маркировку отверстий, а также задать требования к очистке.
Доступ к элементам, расположенным внутри воздуховодов, следует обеспечивать по
СП 73.13330. Для подвесных потолков следует выполнять требования по
А.13.5. В верхней и нижней частях вертикальных воздуховодов следует предусматривать отверстия, расположенные в легкодоступных зонах.
(справочное)
СРОК СЛУЖБЫ И РАСХОДЫ НА ТЕХНИЧЕСКОЕ ОБСЛУЖИВАНИЕ
Б.1 Общие положения
В основе выбора системы отопления и вентиляции здания лежит необходимость обеспечения надлежащей работы оборудования при оправданных затратах. Расчет затрат должен быть обоснован и согласован с заказчиком.
Б.2 Сроки службы и расходы на техническое обслуживание помещений и оборудования
На сроки службы и расходы на техническое обслуживание влияют:
а) качество оборудования;
б) тип и размеры оборудования;
в) степень утилизации;
г) качество и порядок технического обслуживания.
Для расчета стоимости цикла жизни системы могут быть использованы примеры сроков службы на различное оборудование и ежегодные расходы на техническое обслуживание, приведенные в
таблице Б.1. Важно также учитывать указанные выше факторы, срок службы всего здания и его назначение.
Данные таблицы Б.1 являются лишь примерами и служат основой для предварительного анализа и сравнения различных систем, но не являются непосредственно основой для заключения договоров на техническое обслуживание.
Таблица Б.1
Примеры сроков службы оборудования и ежегодные расходы
на техническое обслуживание
Наименование оборудования | Срок службы, лет | Ежегодные расходы на техническое обслуживание, % первоначальных вложений |
Кондиционеры | 15 | 4 |
Охладители | 20 | 2 |
Нагреватели воздуха: | | |
- электрические | 15 | 2 |
- паровые | 20 | 2 |
- водяные | 20 | 2 |
Горелки на масле и газе | 10 | 4 |
Конденсатор | 20 | 2 |
Системы управления | 15 | 4 |
Управляющие клапаны: | | |
- автоматические | 15 | 6 |
- ручные | 30 | 4 |
Охлаждающие компрессоры | 15 | 4 |
Панели и потолки охлаждающие | 30 | 2 |
Дроссельные клапаны | 20 | 1 |
То же, с сервоприводами | 15 | 4 |
Диффузоры | 20 | 4 |
Двухканальные короба | 15 | 4 |
Система воздуховодов для воздуха: | | |
- прошедшего фильтрацию | 30 | 2 |
- не прошедшего фильтрацию | 30 | 6 |
Испарители | 20 | 2 |
Расширительные сосуды: | | |
- медные | 30 | 1 |
- из нержавеющей стали | 30 | 1 |
- из стали | 15 | 2 |
Вытяжные решетки | 20 | 10 |
Вентиляторные конвекторы | 15 | 4 |
Вентиляторы | 20 | 4 |
То же, с регулируемым потоком | 15 | 6 |
Рамы фильтров | 15 | 2 |
Материал фильтров: | | |
- очищаемый | 10 | 10 |
- одноразовый | 1 | 0 |
Противопожарные клапаны: | | |
- с легким доступом | 15 | 8 |
- скрытые | 15 | 15 |
Решетки разные | 30 | 4 |
Тепловые насосы | 15 | 4 |
Устройства для утилизации тепла: | | |
- циклические | 15 | 4 |
- статические | 20 | 4 |
Увлажнители: | | |
- водяные | 10 | 6 |
- паровые | 4 | 4 |
Двигатели: | | |
- дизельные | 10 | 4 |
- электрические | 20 | 1 |
Трубопроводы: | | |
- медные | 30 | 1 |
- полимерные | 30 | 1 |
- нержавеющей стали | 30 | 1 |
- стальные в закрытых системах | 30 | 1 |
- стальные в открытых системах | 15 | 1 |
Насосы: | | |
- в закрытых системах | 20 | 2 |
- открытых системах | 15 | 2 |
Радиаторы: | | |
- электрические | 20 | 2 |
- водяные | 30 | 2 |
Запорные клапаны: | | |
- автоматические | 15 | 4 |
- ручные | 30 | 2 |
Шумоглушители | 30 | 1 |
Термостаты для радиаторов | 15 | 4 |
Устройства с переменным расходом воздуха | 15 | 6 |
Клиноременная передача | 10 | 6 |
Провода | 30 | 1 |
(справочное)
ПРОЕКТИРОВАНИЕ И ЭКСПЛУАТАЦИЯ СИСТЕМ
С НИЗКИМ ПОТРЕБЛЕНИЕМ ЭНЕРГИИ
При проектировании систем с низким потреблением энергии рекомендуется пользоваться
ГОСТ 31532. Оценка сведений по энергоэффективности систем для различных пользователей осуществляют по критериям (контрольным листам), приведенным в В.1 -
В.4.
В.1 Контрольный лист для проектирования здания
Для исключения проектных решений, при которых возможны дефекты в зданиях, приводящие к дискомфорту или излишнему потреблению энергии, целесообразно предусмотреть следующее:
а) согласование с инженером по вентиляции и кондиционированию на ранних стадиях;
б) оптимизацию формы и ориентации здания, а также размеров окон;
в) качественную теплоизоляцию для летнего и зимнего периодов;
г) герметичность здания с учетом его назначения и системы вентиляции;
д) оптимизацию энергосбережения здания;
е) использование материалов и мебели с низкими выделениями загрязнений;
ж) эффективную защиту от солнца;
и) разделение зон с различным назначением и различными требованиями;
к) четкие требования пожаробезопасности;
л) помещения для вентиляционных камер и пространства для воздуховодов;
м) концепцию освещения;
н) использование дневного света.
В.2 Контрольный лист для проектирования системы вентиляции
Предназначен для архитекторов, строителей, инженеров по вентиляции и включает в себя следующее:
а) ясные и документально оформленные требования;
б) требования к управлению приточным воздухом при изменении характера использования помещения;
в) расчет нагрузки по теплу и холоду;
г) учет реальной внутренней нагрузки;
д) непосредственное удаление тепла, загрязнений или влаги от источника их образования;
е) обеспечение высокой эффективности вентиляции в помещении за счет вытесняющих потоков воздуха или эффективного смешения потоков;
ж) использование естественного охлаждения;
и) рекуперацию тепла;
к) учет особенностей индивидуального характера (если это требуется);
л) применение альтернативных методов, например заземление воздуховодов наружного воздуха, применение вертикальных каналов, адиабатического охлаждения вытяжного воздуха;
м) применение водяного охлаждения при наличии значительных избытков теплоты;
н) контроль параметров для управления системой и потреблением энергии;
п) принципы проверки и очистки системы.
В.3 Контрольный лист для проектирования отдельных элементов
Предназначен для заказчиков и исполнителей на этапе проработки детальных решений и включает в себя следующее:
а) низкое потребление энергии для транспортирования воздуха (низкие скорости, короткие воздуховоды, надлежащую аэродинамическую характеристику);
б) оптимизированную рекуперацию тепла;
в) управление увлажнением или отсутствие увлажнения;
г) управление охлаждением или отсутствие охлаждения;
д) использование холодной воды с максимально высокой температурой;
е) изоляцию холодных трубопроводов в целях защиты от образования конденсата и потерь энергии;
ж) возможность проверки и очистки системы воздуховодов и ее элементов.
В.4 Контрольный лист для эксплуатации системы
Предназначен для владельцев и пользователей зданий. Рекомендуется периодически проводить проверку состояния системы по следующим параметрам:
а) соответствие температуры установленным значениям;
б) соответствие влажности установленным значениям;
в) соответствие порядка использования системы установленным значениям;
г) использование системы в соответствии с заданными требованиями;
д) минимизирование внутренних нагрузок в летний период;
е) периодическая проверка состояния элементов (фильтров, приводов, сенсоров), включая их чистоту;
ж) периодический контроль потребления энергии;
и) периодическая проверка гигиенического состояния системы;
к) оптимизация порядка эксплуатации с учетом реальных условий.
(справочное)
РЕКОМЕНДУЕМЫЕ СРЕДНИЕ СКОРОСТИ ДВИЖЕНИЯ ВОЗДУХА
В СИСТЕМАХ ВЕНТИЛЯЦИИ И КОНДИЦИОНИРОВАНИЯ ВОЗДУХА
Рекомендуемые средние скорости движения воздуха в воздуховодах систем вытяжной вентиляции приведены в таблицах Г.1 -
Г.3.
Таблица Г.1
Тип системы | Скорость, м/с |
Вытяжные системы производительностью до 500 м3/ч включ. при количестве часов работы в году: | |
Не более 2000 включ. | 3,0 - 4,0 |
Св. 2000 до 4000 включ. | 2,5 - 3,5 |
Св. 4000 до 6000 включ. | 2,0 - 3,0 |
Св. 6000 | 1,5 - 2,5 |
Вытяжные системы производительностью свыше 500 до 2000 м3/ч включ. при количестве часов работы в году: | |
Не более 2000 включ. | 4,0 - 5,0 |
Св. 2000 до 4000 включ. | 3,5 - 4,5 |
Св. 4000 до 6000 включ. | 3,0 - 4,0 |
Св. 6000 | 2,5 - 3,5 |
Вытяжные системы производительностью свыше 2000 до 5000 м3/ч включ. при количестве часов работы в году: | |
Не более 2000 включ. | 4,5 - 5,5 |
Св. 2000 до 4000 включ. | 4,0 - 5,0 |
Св. 4000 до 6000 включ. | 3,5 - 4,5 |
Св. 6000 | 3,0 - 4,0 |
Вытяжные системы производительностью свыше 5000 м3/ч при количестве часов работы в году: | |
Не более 2000 включ. | 5,0 - 6,0 |
Св. 2000 до 4000 включ. | 4,5 - 5,5 |
Св. 4000 до 6000 включ. | 4,0 - 5,0 |
Св. 6000 | 3,5 - 4,5 |
Таблица Г.2
Тип системы | Скорость, м/с |
Прямоточные системы вентиляции производительностью свыше 10 000 м3/ч при количестве часов работы в году: | |
Не более 2000 включ. | 5,5 - 6,5 |
Св. 2000 до 4000 включ. | 5,0 - 6,0 |
Св. 4000 до 6000 включ. | 4,5 - 5,5 |
Св. 6000 | 4,0 - 5,0 |
Системы приточной вентиляции со встроенными утилизаторами теплоты вытяжного воздуха при количестве часов работы в году: | |
Не более 2000 включ. | 5,0 - 6,0 |
Св. 2000 до 4000 включ. | 4,5 - 5,5 |
Св. 4000 до 6000 включ. | 4,0 - 5,0 |
Св. 6000 | 3,5 - 4,5 |
Системы приточной вентиляции с переменным расходом воздуха при количестве часов работы в году: | |
Не более 2000 включ. | 5,0 - 6,0 |
Св. 2000 до 4000 включ. | 4,5 - 5,5 |
Св. 4000 до 6000 включ. | 4,0 - 5,0 |
Св. 6000 | 3,5 - 4,5 |
Тип и место установки | Скорость, м/с |
Воздухоприемные жалюзи | 2,0 - 4,0 |
Приточные решетки у пола | 1,0 - 2,0 |
То же, у потолка | 1,5 - 2,0 |
Вытяжные решетки | 1,5 - 3,0 |
Скорость воздуха в решетках и соответствующих им каналах рекомендуется принимать одинаковой. Учитывая, что стандартные решетки для помещений имеют "живое" сечение от 55% до 60%, площадь решетки следует всегда выбирать в два раза больше площади канала или на основании расчета, с учетом генерируемого шума.
| Гигиенические нормативы | Предельно допустимые концентрации (ПДК) загрязняющих веществ в атмосферном воздухе городских и сельских поселений |
| Гигиенические нормативы | Ориентировочные безопасные уровни воздействия (ОБУВ) загрязняющих веществ в атмосферном воздухе населенных мест |
| Гигиенические нормативы | Предельно допустимые концентрации (ПДК) вредных веществ в воздухе рабочей зоны |
| Рекомендации ВОЗ по качеству воздуха, касающиеся твердых частиц, озона, двуокиси азота и двуокиси серы. Глобальные обновленные данные. 2005 год - Женева: Всемирная организация здравоохранения, 2006. - 31 с. |
УДК 001.4:697.9:006.354 | |
Ключевые слова: системы вентиляции и кондиционирования воздуха, устройство, теплоснабжение, холодоснабжение, оборудование, температура, влажность |