Главная // Актуальные документы // ГОСТ Р (Государственный стандарт)
СПРАВКА
Источник публикации
М.: ФГБУ "Институт стандартизации", 2023
Примечание к документу
Документ введен в действие с 01.04.2024.
Название документа
"ГОСТ Р 71127-2023. Национальный стандарт Российской Федерации. Нефтяная и газовая промышленность. Средства защиты строительных конструкций от воздействия криогенных сред. Общие требования. Методы испытаний"
(утв. и введен в действие Приказом Росстандарта от 08.12.2023 N 1539-ст)

"ГОСТ Р 71127-2023. Национальный стандарт Российской Федерации. Нефтяная и газовая промышленность. Средства защиты строительных конструкций от воздействия криогенных сред. Общие требования. Методы испытаний"
(утв. и введен в действие Приказом Росстандарта от 08.12.2023 N 1539-ст)


Содержание


Утвержден и введен в действие
Приказом Федерального
агентства по техническому
регулированию и метрологии
от 8 декабря 2023 г. N 1539-ст
НАЦИОНАЛЬНЫЙ СТАНДАРТ РОССИЙСКОЙ ФЕДЕРАЦИИ
НЕФТЯНАЯ И ГАЗОВАЯ ПРОМЫШЛЕННОСТЬ
СРЕДСТВА ЗАЩИТЫ СТРОИТЕЛЬНЫХ КОНСТРУКЦИЙ
ОТ ВОЗДЕЙСТВИЯ КРИОГЕННЫХ СРЕД
ОБЩИЕ ТРЕБОВАНИЯ. МЕТОДЫ ИСПЫТАНИЙ
Oil and gas industry. Means of protection of building
structures from the impact of cryogenic environments.
General requirements. Test methods
ГОСТ Р 71127-2023
ОКС 75.060
19.020
Дата введения
1 апреля 2024 года
Предисловие
1 РАЗРАБОТАН Ассоциацией строительных организаций газовой отрасли (АСОГО) совместно с Акционерным обществом "Гипрокислород" (АО "Гипрокислород")
2 ВНЕСЕН Техническим комитетом по стандартизации ТК 023 "Нефтяная и газовая промышленность"
3 УТВЕРЖДЕН И ВВЕДЕН В ДЕЙСТВИЕ Приказом Федерального агентства по техническому регулированию и метрологии от 8 декабря 2023 г. N 1539-ст
4 ВВЕДЕН ВПЕРВЫЕ
Правила применения настоящего стандарта установлены в статье 26 Федерального закона от 29 июня 2015 г. N 162-ФЗ "О стандартизации в Российской Федерации". Информация об изменениях к настоящему стандарту публикуется в ежегодном (по состоянию на 1 января текущего года) информационном указателе "Национальные стандарты", а официальный текст изменений и поправок - в ежемесячном информационном указателе "Национальные стандарты". В случае пересмотра (замены) или отмены настоящего стандарта соответствующее уведомление будет опубликовано в ближайшем выпуске ежемесячного информационного указателя "Национальные стандарты". Соответствующая информация, уведомление и тексты размещаются также в информационной системе общего пользования - на официальном сайте Федерального агентства по техническому регулированию и метрологии в сети Интернет (www.rst.gov.ru)
Введение
Целью настоящего стандарта является установление общих требований к средствам криогенной защиты строительных конструкций.
Испытания приводятся на стойкость изоляционных защитных материалов к проливам криогенных сред. Сущность методов заключается в определении времени от начала криогенного воздействия на опытный образец до наступления предельного состояния строительной конструкции.
В качестве криогенной среды при испытаниях с целью обеспечения безопасности используется сжиженный азот.
1 Область применения
Настоящий стандарт устанавливает общие требования к средствам защиты строительных конструкций от пролива криогенных сред, а также методы испытаний на определение их стойкости к воздействию жидкой, паровой фазы и струи выбранной криогенной среды.
Настоящий стандарт не распространяется на конструкции, предназначенные для непосредственного контакта с криогенной средой.
2 Нормативные ссылки
В настоящем стандарте использованы нормативные ссылки на следующие стандарты:
ГОСТ 380 Сталь углеродистая обыкновенного качества. Марки
ГОСТ 3262 Трубы стальные водогазопроводные. Технические условия
ГОСТ 5264 Ручная дуговая сварка. Соединения сварные. Основные типы, конструктивные элементы и размеры
ГОСТ 6616 Преобразователи термоэлектрические. Общие технические условия
ГОСТ 9293 (ИСО 2435-73) Азот газообразный и жидкий. Технические условия
ГОСТ 14771 Дуговая сварка в защитном газе. Соединения сварные. Основные типы, конструктивные элементы и размеры
ГОСТ 30245 Профили стальные гнутые замкнутые сварные квадратные и прямоугольные для строительных конструкций. Технические условия
ГОСТ 32678 Трубы стальные бесшовные и сварные холоднодеформированные общего назначения. Технические условия
ГОСТ EN 823 Изделия теплоизоляционные, применяемые в строительстве. Метод определения толщины
ГОСТ Р 53295 Средства огнезащиты для стальных конструкций. Общие требования. Метод определения огнезащитной эффективности
ГОСТ Р 58915 Прокат толстолистовой из криогенных сталей. Технические условия
ГОСТ Р 58966 Балки стальные двутавровые сварные. Технические условия. Сортамент
Примечание - При пользовании настоящим стандартом целесообразно проверить действие ссылочных стандартов в информационной системе общего пользования - на официальном сайте Федерального агентства по техническому регулированию и метрологии в сети Интернет или по ежегодному информационному указателю "Национальные стандарты", который опубликован по состоянию на 1 января текущего года, и по выпускам ежемесячного информационного указателя "Национальные стандарты" за текущий год. Если заменен ссылочный стандарт, на который дана недатированная ссылка, то рекомендуется использовать действующую версию этого стандарта с учетом всех внесенных в данную версию изменений. Если заменен ссылочный стандарт, на который дана датированная ссылка, то рекомендуется использовать версию этого стандарта с указанным выше годом утверждения (принятия). Если после утверждения настоящего стандарта в ссылочный стандарт, на который дана датированная ссылка, внесено изменение, затрагивающее положение, на которое дана ссылка, то это положение рекомендуется применять без учета данного изменения. Если ссылочный стандарт отменен без замены, то положение, в котором дана ссылка на него, рекомендуется применять в части, не затрагивающей эту ссылку.
3 Термины и определения
В настоящем стандарте применены следующие термины с соответствующими определениями:
3.1 криогенная защита: Защита от криогенного воздействия.
3.2
строительная конструкция: Часть здания или сооружения, выполняющая определенные несущие, ограждающие и (или) эстетические функции.
3.3 криогенная среда: Сжиженный газ с температурой кипения 77 К и выше.
Примечание - Положения данного стандарта применимы только к криогенным газам с указанной температурой кипения, к которым относятся метан, воздух, кислород, азот, аргон и фтор, и не применимы к среде гелия, водорода, неона.
3.4 пролив криогенной среды (для строительных конструкций): Воздействие криогенной среды на строительные конструкции.
3.5 стойкость к проливу криогенной среды: Время достижения критической температуры при криогенном воздействии.
3.6 критическая температура (строительных конструкций): Температура, характеризующая предельное состояние (строительных конструкций) при воздействии криогенной среды.
3.7 средства криогенной защиты (строительных конструкций): Изоляционные защитные составы или материалы, обладающие стойкостью к проливам криогенной среды.
Примечания
1 Для защиты строительных конструкций от криогенных сред, имеющих способность воспламеняться (например, сжиженный природный газ), как правило, используют комбинированный способ защиты, сочетающий применение криогенной защиты с конструктивной огнезащитой.
2 Средства криогенной защиты строительных конструкций, как правило, представлены в двух формах: в виде жидких составов (типа красок, лаков, мастик) и в виде материалов готовых форм (типа матов, рулонов, панелей с элементами соединений и креплений).
3.8 особые воздействия: Воздействия, создающие аварийные ситуации.
3.9
предельное состояние строительных конструкций: Состояние строительных конструкций здания или сооружения, за пределами которого дальнейшая эксплуатация здания или сооружения опасна, недопустима, затруднена или нецелесообразна либо восстановление работоспособного состояния здания или сооружения невозможно или нецелесообразно.
3.10
сжиженный природный газ: Криогенная жидкость без цвета и запаха, состоящая в основном из метана, которая может содержать небольшие количества этана, пропана, бутана, азота и других компонентов, присутствующих в природном газе.
[ГОСТ Р 57431-2017, пункт 3.3]
3.11 гарантийный срок хранения [годности]: Время, в течение которого средства криогенной защиты строительных конструкций могут храниться или быть использованы для защиты конструкций без снижения стойкости и гарантийного срока эксплуатации.
3.12 гарантийный срок эксплуатации: Время, в течение которого гарантируется эксплуатация средств криогенной защиты строительных конструкций с заданной стойкостью.
3.13
нормальные условия эксплуатации: Учтенное при проектировании состояние здания или сооружения, при котором отсутствуют какие-либо факторы, препятствующие осуществлению функциональных или технологических процессов.
3.14 сопло: Узел, из которого криогенная жидкость подается струей.
4 Сокращения
В настоящем стандарте применены следующие сокращения:
КТХ - камера "тепло - холод";
СПГ - сжиженный природный газ;
ТХА - термопара "хромель - алюмель";
CJ - воздействие струи криогенной жидкости (cryogenic jet);
CL - воздействие жидкой фазы криогенной среды (liquid exposure);
CV - воздействие паровой фазы криогенной среды (cryogenic vapour);
CSP - средства криогенной защиты строительных конструкций (cryogenic spill protection).
5 Общие требования
5.1 Средства криогенной защиты строительных конструкций должны иметь техническую документацию (технические условия, технологические регламенты, паспорта), разработанную производителем и зарегистрированную в установленном порядке.
5.2 Техническая документация должна содержать следующие документально подтвержденные показатели и характеристики средств криогенной защиты:
- описание изоляционного защитного материала;
- маркировку;
- коэффициент теплопроводности;
- наименование и характеристики криогенной среды;
- тип и материал защищаемой строительной конструкции;
- тип воздействия криогенной среды;
- плотность;
- толщину наносимого слоя;
- стойкость к воздействию криогенной среды (время достижения критической температуры);
- сведения по технологии нанесения: способы подготовки поверхности, виды и марки грунтов, клеящих составов, количество слоев, условия сушки, способы крепления и порядок изготовления (монтажа);
- параметры окружающей среды;
- результаты испытаний на огнезащитную эффективность для криогенных сред, имеющих способность воспламеняться;
- гарантийный срок и условия хранения средств защиты;
- гарантийный срок и условия эксплуатации средств защиты;
- возможность и периодичность замены или восстановления;
- способ упаковки, транспортирования и хранения;
- правила приемки;
- мероприятия по охране труда;
- методы контроля.
5.3 Испытания на стойкость средств криогенной защиты строительных конструкций проводит специализированная организация, имеющая соответствующую аккредитацию.
5.4 Стойкость средств криогенной защиты строительных конструкций рекомендуется устанавливать с учетом групп огнезащитной эффективности по ГОСТ Р 53295.
5.5 Показатели и характеристики средств криогенной защиты строительных конструкций, за исключением стойкости к воздействию криогенной среды, определяет разработчик технической документации.
5.6 Упаковка, условия хранения и транспортирования средств криогенной защиты строительных конструкций должны обеспечивать их защитные свойства в течение установленного срока эксплуатации.
5.7 Необходимость защиты строительных конструкций от криогенного воздействия и выбор средств криогенной защиты следует определять с учетом требований [1] и допускается обосновывать расчетом сооружений на прогрессирующее обрушение на стадии разработки проектной документации.
5.8 Выбор элементов строительных конструкций для защиты и расчет конструкционной целостности (живучести) сооружения при воздействии криогенной среды выполняет специализированная организация.
6 Методы испытаний
6.1 Определение стойкости средств криогенной защиты к воздействию жидкой фазы криогенной среды
6.1.1 Стенд для испытания
6.1.1.1 Стенд включает в себя следующие элементы:
- резервуар для жидкого азота;
- приспособления для установки образца;
- стойку для размещения резервуара и приспособлений;
- систему измерения и регистрации параметров, включая оборудование для проведения фото- или видеосъемок.
6.1.1.2 Общий вид испытательного стенда приведен в приложении А.
6.1.1.3 Резервуар для жидкого азота
Резервуар должен быть цилиндрическим или прямоугольным. Необходимо наличие патрубков для наполнения жидкого азота и его слива, а также патрубка отвода его паров.
Общие виды резервуара приведены в приложении Б.
Резервуар необходимо изготавливать из стойкой к криогенным средам стали 12Х18Н10Т по ГОСТ Р 58915 или аналогичных. Резервуар требуется изолировать материалом с коэффициентом теплопередачи не менее 1,25 Вт/м2·К.
6.1.1.4 Приспособления для установки образца
6.1.1.4.1 Держатель образца с крышкой
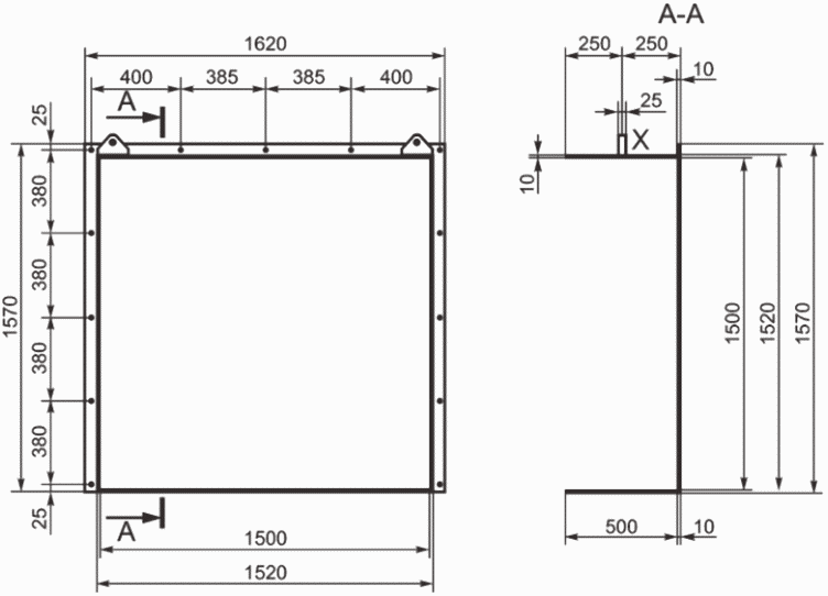
Образец средства криогенной защиты наносят (монтируют) в специальный держатель. Общий вид и основные размеры держателя образца приведены в приложении В.
Держатель образца должен иметь крышку с двумя отверстиями для вывода паров азота. Основные размеры крышки, расположение отверстий в крышке и их размер приведены на рисунке А.2 (приложение А).
Схема соединения крышки держателя образца с системой сброса резервуара приведена на рисунке Б.1 (приложение Б).
6.1.1.4.2 Подставка для держателя образца
Для крепления держателя образца следует использовать подставку. Общий вид и основные размеры подставки приведены в приложении Г.
6.1.1.4.3 Приспособления для установки образца должны изготавливаться из металлических листов толщиной 10 мм и марки стали Ст3сп5 по ГОСТ 380 и представлять собой сварные конструкции. Сварку необходимо производить по ГОСТ 5264 непрерывным угловым швом с катетом 5 мм.
Стенки приспособлений для установки образца необходимо изолировать материалом с коэффициентом теплопередачи не менее 1,25 Вт/м2·К.
6.1.1.5 Стойка для размещения резервуара и приспособлений
Для крепления резервуара и приспособлений для установки образца следует использовать стойку из квадратного профиля ПК-60x60x6-Х-КП345 по ГОСТ 30245. Общий вид и основные размеры стойки приведены в приложении Д.
Стойка должна иметь систему для крепления термопар в виде двух труб 15 x 3,2 мм по ГОСТ 3262 длиной 850 мм. Общий вид расположения системы крепления термопар на конструкции стойки приведен в приложении Е.
6.1.1.6 Система измерений
Измерение температуры металлических конструкций держателя образца необходимо проводить с помощью термоэлектрических преобразователей (термопар) хромель - алюмель ТХА (тип К) по ГОСТ 6616.
Схема расстановки термопар на металлических конструкциях держателя образца приведена в приложении Ж.
Термопары на материал держателя образца следует устанавливать методом зачеканивания. Допускается использовать методы крепления, приведенные в приложении И.
Измерение толщины образца, монтируемого в виде изоляционного материала определенной формы на держатель образца, проводят по ГОСТ EN 823.
Измерение толщины образца следует проводить в местах, расположение которых приведено на рисунке К.1 (приложение К).
6.1.2 Образцы для испытания
6.1.2.1 Для проведения испытания допускается применять образец средства криогенной защиты в виде изоляционного состава или в виде изоляционного материала, определенной производителем формы, с системой монтажа.
6.1.2.2 В качестве строительной конструкции следует использовать держатель образца, на внутреннюю поверхность которого наносят (монтируют) средство криогенной защиты.
6.1.2.3 Образец средства криогенной защиты наносят (монтируют) в соответствии с технической документацией.
6.1.2.4 Образец средства криогенной защиты в виде изоляционного материала определенной производителем формы следует монтировать на все внутренние поверхности держателя образца. Соединение элементов материала выполняют вдоль линии расположения термопар 4, 7, 10 (или 3, 6, 9) и 5, 6, 7, 8, согласно рисунку Ж.1 (приложение Ж).
6.1.3 Подготовка и проведение испытания
6.1.3.1 Условия проведения испытания
Испытание допускается проводить как в помещении, так и вне помещения. Температура окружающей среды должна находиться в диапазоне от минус 10 °C до плюс 40 °C. Необходимо исключить воздействие прямого солнечного света или дождя при проведении испытания вне помещения.
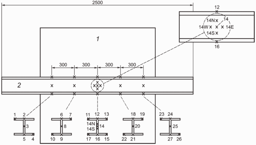
Подготовка к проведению испытания включает расстановку термоэлектрических преобразователей (термопар) на держатель образца. Схема расположения термопар приведена в приложении Ж.
Температуру держателя образца определяют как среднее арифметическое значение показаний термопар. Температура поверхности держателя образца с нанесенным (смонтированным) образцом средства криогенной защиты перед испытанием должна составлять (23 +/- 2) °C.
Температуру держателя, на который нанесен образец средства криогенной защиты, и толщину средства криогенной защиты следует измерять по 6.1.1.6. Перед испытанием проводят контрольные измерения температуры и толщины. Погрешность измерения температуры держателя образца - не более +/- 2%. Погрешность измерения толщины образца (для изоляционных материалов определенной формы) - не более +/- 0,02Т, где Т - измеряемая толщина материала в мм.
Объем жидкого азота на начало испытания составляет 250 л. Чистота жидкого азота - 99,0% по ГОСТ 9293. Система сброса резервуара жидкого азота располагается на высоте (1000 +/- 5) мм над нижней поверхностью держателя образца. Необходимо обеспечить постоянный уровень жидкого азота высотой 5 см в держателе образца в течение всего испытания. Погрешность измерения температуры жидкого азота - не более +/- 3,5 °C.
Перед испытанием следует выполнить несколько фотоснимков образца.
6.1.3.2 Проведение испытания
Продолжительность испытания зависит от характеристик средства криогенной защиты, установленных производителем.
Проведение испытания следует начинать с подачи жидкого азота на образец. Время подачи жидкого азота - не менее 90 с. Во время испытания необходимо постоянно поддерживать уровень жидкого азота высотой 5 см внутри держателя образца по обе стороны от его центральной стенки. Уровень необходимо отслеживать с помощью термопар, закрепленных в трубах на конструкции стойки.
Измерение температуры держателя образца следует проводить каждую секунду. Следует предусмотреть возможность измерения температуры в течение 15 мин после окончания испытания.
По окончании испытания необходимо сделать снимки образца, а также описать поведение средства криогенной защиты (деформация, вспучивание, отслоение, трещины).
6.1.3.3 В процессе проведения испытания регистрируют следующие показатели:
- температуру с каждой термопары;
- температуру жидкого азота на поверхности держателя образца;
- время регистрации критической температуры держателя образца;
- температуру на отметках времени, соответствующих группам огнезащитной эффективности по ГОСТ Р 53295.
6.1.3.4 После проведения испытания регистрируют следующие показатели:
- температуру с каждой термопары (в течение 15 мин);
- поведение средства криогенной защиты (деформация, вспучивание, отслоение, трещины);
- толщину средства криогенной защиты, монтируемого как изоляционный материал определенной формы.
6.1.4 Оценка результатов испытания
6.1.4.1 За результат испытания принимают время достижения материалом (стальной пластиной) держателя, на который нанесен образец, критической температуры.
6.1.4.2 Результаты последующих испытаний не должны отличаться от результатов испытания более чем на 20% в сторону уменьшения времени достижения предельного состояния.
6.1.4.3 Классификацию средств криогенной защиты от воздействия жидкой фазы криогенной среды следует устанавливать следующим образом:
Тип воздействия/Защищаемый материал конструкции/
Критическая температура/Стойкость
Пример 1 - Температура, наблюдаемая после воздействия жидкого азота на сталь Ст4сп продолжительностью 60 мин, равна минус 39 °C. В течение 60 мин эта температура не опустилась ниже предельной, следовательно, класс материала средства криогенной защиты - CSP CL/Ст4сп/-40/60.
Пример 2 - Температура, наблюдаемая после воздействия жидкого азота на сталь Ст4сп продолжительностью 56 мин, составила минус 40 °C с наступлением предельного состояния стали через 65 мин, следовательно, класс материала средства криогенной защиты - CSP CL/Ст4сп/-40/55 (65).
6.2 Определение стойкости средств криогенной защиты к воздействию паровой фазы криогенной среды
6.2.1 Стенд для испытания
6.2.1.1 Стенд включает в себя следующие элементы:
- узел подачи азота с соплом;
- климатическую камеру;
- приспособления для установки образца;
- защитную камеру;
- систему измерения и регистрации параметров, включая оборудование для проведения фото- или видеосъемок.
6.2.1.2 Общий вид испытательного стенда приведен в приложении Л.
6.2.1.3 Узел подачи азота с соплом
Узел подачи азота состоит из резервуара, насоса, трубы, сопла и имеет системы измерения давления и температуры азота до поступления в сопло.
Сопло изготавливают способом дуговой сварки в защитном газе по ГОСТ 14771 из механически обработанных труб марки 07Х21Г7АН5 по ГОСТ Р 58915.
Общий вид конструкции сопла приведен в приложении М.
6.2.1.4 Климатическая камера
Климатическую камеру следует изготавливать согласно техническим условиям завода-изготовителя по типу КТХ. Габаритные размеры климатической камеры приведены в приложении Л.
6.2.1.5 Приспособления для установки образца
6.2.1.5.1 Держатель образца
Образец средства криогенной защиты следует наносить (монтировать) на плоскую металлическую пластину - держатель образца. Держатель образца должен иметь систему крепления.
6.2.1.5.2 Камера образца
Для размещения держателя образца следует использовать камеру. Общий вид и основные размеры держателя образца, камеры образца и элемента системы крепления приведены в приложении Н.
6.2.1.5.3 Приспособления для установки образца необходимо изготавливать и изолировать по 6.1.1.4.3.
6.2.1.6 Защитная камера
При разрушении держателя образца и приема его элементов необходимо предусмотреть защитную камеру, которую крепят к камере держателя образца. Общий вид и основные размеры защитной камеры должны соответствовать размерам камеры держателя образца. Защитную камеру необходимо изготавливать и изолировать по 6.1.1.4.3.
6.2.1.7 Система измерений
Измерение температуры держателя образца проводят по 6.1.1.6. Также следует предусмотреть измерение температуры перед держателем образца. Термопары на держатель образца устанавливают по 6.1.1.6 в местах, расположение которых приведено на рисунке П.1 (приложение П).
Измерение толщины образца, монтируемого в виде изоляционного материала на держатель образца, проводят по 6.1.1.6 в местах, расположение которых приведено на рисунке Р.1 (приложение Р).
6.2.2 Образцы для испытания
6.2.2.1 Описание образцов - по 6.1.2.
6.2.2.2 Соединения элементов образца средства криогенной защиты в виде изоляционного материала следует выполнять вдоль линии расположения термопар 3, 14, 4 и 4, 7, 10, согласно рисунку П.1 (приложение П).
6.2.3 Подготовка и проведение испытания
6.2.3.1 Условия проведения испытания
Испытание следует проводить вне помещения. Температура окружающей среды должна находиться в диапазоне от минус 10 °C до плюс 40 °C.
Подготовка к проведению испытания включает расстановку термоэлектрических преобразователей (термопар) на держатель образца и перед изоляционным защитным материалом. Температуру держателя образца определяют как среднее арифметическое значение показаний термопар. Температуру держателя образца и толщину средства криогенной защиты измеряют перед испытаниями. Погрешность измерений - по 6.1.3.1. Температура держателя образца перед испытанием - по 6.1.3.1.
Сопло выброса жидкого азота следует располагать горизонтально перед образцом и выравнивать по центральной точке так, чтобы струя азота ударяла перпендикулярно плоскости держателя образца. Изоляционный защитный состав (материал) необходимо подвергать действию выброса жидкого азота, в котором жидкая фаза практически отсутствует. Расстояние от сопла до образца и объем жидкого азота следует выбирать таким образом, чтобы температура держателя образца через 15 минут после подачи азота имела значение минус (50 +/- 10) °C. Чистота жидкого азота - по 6.1.3.1. Перед испытанием следует выполнить несколько фотоснимков образца.
6.2.3.2 Проведение испытания
Продолжительность испытания зависит от характеристик средства криогенной защиты, установленных производителем.
Проведение испытания следует начинать с выброса струи азота из сопла на образец, нанесенный (смонтированный) вертикально на плоской поверхности держателя. Показатели температуры и давления жидкого азота до сопла следует измерять на протяжении всего испытания.
Измерение температуры необходимо проводить каждую секунду. Следует предусмотреть возможность измерения температуры в течение 5 мин после окончания испытания.
По окончании испытания необходимо сделать снимки образца, а также описать поведение средства криогенной защиты (деформация, вспучивание, отслоение, трещины).
6.2.3.3 В процессе проведения испытания регистрируют следующие показатели:
- температуру с каждой термопары;
- температуру и давление жидкого азота до сопла;
- время регистрации критической температуры материала держателя образца;
- температуру на отметках времени, соответствующих группам огнезащитной эффективности по ГОСТ Р 53295.
6.2.3.4 После проведения испытания регистрируют показатели по 6.1.3.4.
6.2.4 Оценка результатов испытания - по 6.1.4.
При оценке классификации средств криогенной защиты от воздействия паровой фазы криогенной среды необходимо учитывать температуру окружающей среды:
Пример 1 - Предельная температура стали Ст4сп - минус 40 °C; установлено также требование к защите от пролива азота в течение 30 минут, поэтому класс материала средства криогенной защиты: CSP CV/Ст4сп/-40/30.
Температура окружающей среды - плюс 10 °C, следовательно, предельной температуры минус 50 °C сталь Ст4сп достигнет спустя 30 мин криогенного воздействия. Поэтому классификационная оценка не удовлетворяет требованиям защиты и требуется класс материала CSP CV/Ст4сп/-50/30.
Пример 2 - Предельная температура стали Ст4сп - минус 29 °C; установлены также требования к защите от пролива азота в течение 15 мин и температура окружающей среды 0 °C, поэтому класс материала средства криогенной защиты: CSP CV/Ст4сп/-29/15, следовательно, классификационная оценка удовлетворяет требованиям защиты.
6.3 Определение стойкости средств криогенной защиты к воздействию струи криогенной жидкости
6.3.1 Стенд для испытания
6.3.1.1 Стенд включает в себя следующие элементы:
- узел подачи азота с соплом;
- климатическую камеру;
- приспособления для установки образца;
- защитную камеру;
- систему измерения и регистрации параметров, включая оборудование для проведения фото- или видеосъемок.
6.3.1.2 Общий вид испытательного стенда приведен в приложении С.
6.3.1.3 Узел подачи азота с соплом
Узел подачи азота - по 6.2.1.3.
6.3.1.4 Климатическая камера
Климатическая камера - по 6.2.1.4. Габаритные размеры климатической камеры приведены в приложении С.
6.3.1.5 Приспособления для установки образца
6.3.1.5.1 Держатель образца
Образец средства криогенной защиты следует наносить (монтировать) на держатель образца: двутавровую балку 40ДБ4С-2500-С355 по ГОСТ Р 58966 или трубу 270 x 6,5 x 2500 09Г2С по ГОСТ 32678.
6.3.1.5.2 Стойка держателя образца
Для размещения и крепления держателя образца используют стойку, сконструированную из стойкой к криогенным температурам стали 12Х18Н10Т по ГОСТ Р 58915.
6.3.1.5.3 Камера для держателя образца
Камеру для держателя образца следует располагать за стойкой держателя образца. На заднюю стенку камеры крепят металлическую пластину (марка стали Ст3сп5 по ГОСТ 380) с теплоизоляцией (коэффициент теплопередачи не менее 1,25 Вт/м2·К).
Основные размеры приспособлений для установки образца приведены в приложении С.
6.3.1.6 Защитная камера
Защитная камера - по 6.2.1.6.
6.3.1.7 Система измерений
Измерение температуры держателя образца проводят по 6.1.1.6.
Термопары на держатель образца крепят по 6.1.1.6 в местах, расположение которых приведено на рисунке Т.1 (приложение Т).
Измерение толщины образца, монтируемого в виде изоляционного материала на держатель образца, следует проводить по 6.1.1.6 в местах, расположение которых приведено на схеме на рисунке У.1 (приложение У).
6.3.2 Образцы для испытания
6.3.2.1 Описание образцов - по 6.1.2.
6.3.2.2 Установку образца средства криогенной защиты в виде изоляционного материала следует выполнять над термопарами. Схемы мест расположения термопар на балке и на трубе приведены в приложении Т.
6.3.3 Подготовка и проведение испытания
6.3.3.1 Условия проведения испытания
Испытание следует проводить вне помещения. Температура окружающей среды должна находиться в диапазоне от плюс 10 °C до плюс 20 °C.
Подготовка к проведению испытания включает расстановку термоэлектрических преобразователей (термопар) на держатель образца. Температуру держателя образца определяют как среднее арифметическое значение показаний термопар. Температуру держателя образца и толщину средства криогенной защиты измеряют перед испытаниями. Погрешность измерений - по 6.1.3.1. Температура держателя образца перед испытанием - по 6.1.3.1.
Температура жидкого азота на входе в сопло - не выше минус 170 °C, давление - 8 бар. Чистота жидкого азота - по 6.1.3.1. Показатели температуры и давления жидкого азота до сопла следует измерять на продолжении всего испытания.
Расположение сопла - по 6.2.3.1. Расстояние от сопла до образца должно составлять (500 +/- 10) мм.
Перед испытанием следует выполнить несколько фотоснимков образца.
6.3.3.2 Проведение испытания
Продолжительность испытания зависит от характеристик средства криогенной защиты, установленных производителем.
Проведение испытания следует начинать с выброса струи азота из сопла на образец, нанесенный (смонтированный) на держатель образца.
Измерение температуры необходимо проводить каждую секунду. Следует предусмотреть возможность измерения температуры в течение 5 мин после окончания испытания.
По окончании испытания необходимо сделать снимки образца, а также описать поведение средства криогенной защиты (деформация, вспучивание, отслоение, трещины).
6.3.3.3 В процессе проведения испытания необходимо регистрировать показатели по 6.2.3.3.
После проведения испытания необходимо регистрировать показатели по 6.2.3.4.
6.3.4 Оценка результатов испытаний - по 6.2.4.
При оценке классификации средств криогенной защиты от воздействия струи криогенной жидкости необходимо учитывать температуру окружающей среды.
7 Эксплуатационные критерии
Основным критерием эффективности систем криогенной защиты должно являться установленное производителем время воздействия криогенной среды на конструкцию, в течение которого материал конструкции не достигает критической температуры.
Дополнительным критерием эффективности систем криогенной защиты может быть максимальное время воздействия криогенной среды, необходимое для достижения критической температуры конструкции.
При воздействии пожароопасных криогенных сред системы криогенной защиты следует проверить на огнезащитную эффективность по ГОСТ Р 53295.
8 Протокол испытаний
Результаты испытаний оформляют в виде протокола.
Протокол должен содержать:
- наименование организации, проводившей испытания;
- наименование организации-заказчика;
- наименование средства криогенной защиты, сведения об изготовителе, товарный знак и маркировку с указанием технической документации;
- тип воздействия криогенной среды;
- дату изготовления средства криогенной защиты;
- способ нанесения и толщину слоя криогенной защиты;
- дату проведения испытаний;
- условия окружающей среды;
- наименование нормативного документа на методы проведения испытаний;
- визуальные наблюдения при испытании;
- эскизы и описание испытанных образцов, данные о контрольных измерениях состояния образцов, об эксплуатационных свойствах покрытий и перечень допущенных при изготовлении образца отклонений от требований технических документов;
- контролируемые параметры, результаты их обработки и оценки;
- классификацию типа испытанного образца, критическую температуру и стойкость к воздействию;
- срок действия протокола.
9 Охрана труда
Требования охраны труда, связанные с использованием жидкого азота по ГОСТ 9293 и [2].
Приложение А
(рекомендуемое)
ОБЩИЙ ВИД ИСПЫТАТЕЛЬНОГО СТЕНДА ДЛЯ ОПРЕДЕЛЕНИЯ СТОЙКОСТИ
СРЕДСТВА КРИОГЕННОЙ ЗАЩИТЫ К ВОЗДЕЙСТВИЮ ЖИДКОЙ ФАЗЫ
КРИОГЕННОЙ СРЕДЫ
Рисунок А.1 - Общий вид испытательного стенда
1 - резервуар; 2 - держатель образца;
3 - подставка для образца
Рисунок А.2 - Общий вид испытательного стенда. Разрез А-А
Приложение Б
(рекомендуемое)
ОБЩИЙ ВИД РЕЗЕРВУАРА ДЛЯ ЖИДКОГО АЗОТА
Рисунок Б.1 - Общий вид резервуара с квадратным основанием,
вид системы сброса и схема соединения крышки
1 - патрубок для наполнения; 2 - патрубок для слива;
3 - патрубок для отвода паров
Рисунок Б.2 - Общий вид резервуара с круглым основанием
и системы загрузки
Приложение В
(рекомендуемое)
ОБЩИЙ ВИД ДЕРЖАТЕЛЯ ОБРАЗЦА
Рисунок В.1 - Общий вид держателя образца
Приложение Г
(рекомендуемое)
ОБЩИЙ ВИД ПОДСТАВКИ ДЛЯ ДЕРЖАТЕЛЯ ОБРАЗЦА
Рисунок Г.1 - Общий вид подставки для держателя образца
Приложение Д
(рекомендуемое)
ОБЩИЙ ВИД СТОЙКИ ДЛЯ РАЗМЕЩЕНИЯ РЕЗЕРВУАРА И ПРИСПОСОБЛЕНИЙ
Рисунок Д.1 - Общий вид стойки
Приложение Е
(рекомендуемое)
ОБЩИЙ ВИД СИСТЕМЫ ДЛЯ КРЕПЛЕНИЯ ТЕРМОПАР
Рисунок Е.1 - Общий вид системы крепления термопар
на конструкции стойки
Приложение Ж
(рекомендуемое)
СХЕМА РАСПОЛОЖЕНИЯ ТЕРМОПАР НА ДЕРЖАТЕЛЕ ОБРАЗЦА
1 - вид тыльной поверхности образца;
2 - расположение термопар; 3 - держатель образца
(имитация строительной конструкции)
Рисунок Ж.1 - Схема расположения термопар
на держателе образца
Приложение И
(рекомендуемое)
СПОСОБЫ КРЕПЛЕНИЯ ТЕРМОПАР
И.1 Присоединение опрессовкой ("Quick Tip")
Концы термопары (проволока хромель и проволока алюмель) помещаются в металлический чехол с предварительно высверленными вводными отверстиями. Специальным инструментом чехол обжимается в цилиндр, имеющий размеры 1,5 x 1,5 мм. Этот цилиндр с выведенными концами термопары помещают в отверстие 2 x 2 мм с дальнейшим расклепыванием с помощью специальной оснастки, предохраняющей концы термопары от повреждения.
И.2 Сварка емкостным разрядом
Термопара приваривается к тыльной стороне испытываемого образца при помощи объемной точечной сварки. Этот метод следует использовать для присоединения термопар в защитной оболочке или термопары со сварным переходом к металлической поверхности.
И.3 Запрессовка
Заранее приваренные концы термопары помещают в отверстие 2 x 5 мм и далее производят запрессовку при помощи пуансона.
И.4 Установка в балку
Термопара должна иметь контактную измерительную головку и длину 330 мм. Термопару устанавливают в отверстие (прорезь) балки.
И.5 Присоединение к передней плоскости (только для CV)
Поверхностные термопары следует присоединять к образцу с помощью клейкой ленты, предназначенной для работы в криогенных условиях. Кусочки ленты (размером 25 x 150 мм) помещают поверх проволочки термопары каждые 300 мм, чтобы проволочка плотно прилегала к поверхности образца. Клейкая лента должна прижиматься к поверхности образца максимально плотно. Измерительный конец термопары должен подниматься от поверхности образца на (8 +/- 2) мм.
Приложение К
(рекомендуемое)
СХЕМА МЕСТ ИЗМЕРЕНИЯ ТОЛЩИНЫ
Рисунок К.1 - Схема мест измерения толщины образца
Приложение Л
(рекомендуемое)
ОБЩИЙ ВИД ИСПЫТАТЕЛЬНОГО СТЕНДА ДЛЯ ОПРЕДЕЛЕНИЯ СТОЙКОСТИ
СРЕДСТВ КРИОГЕННОЙ ЗАЩИТЫ К ВОЗДЕЙСТВИЮ ПАРОВОЙ ФАЗЫ
КРИОГЕННОЙ СРЕДЫ
1 - сопло; 2 - камера держателя образца; 3 - защитная
камера; 4 - климатическая камера; 5 - опоры камер
Рисунок Л.1 - Общий вид испытательного стенда
Приложение М
(рекомендуемое)
ОБЩИЙ ВИД КОНСТРУКЦИИ СОПЛА
1 - сварные швы; 2 - свободно сидящий фланец; 3 - уменьшение
сечения; 4 - сварной шов; 5 - сопло с прямыми сторонами
Рисунок М.1 - Конструкция трубы и сопла
Приложение Н
(рекомендуемое)
ОБЩИЙ ВИД ДЕРЖАТЕЛЯ, КАМЕРЫ И ЭЛЕМЕНТА СИСТЕМЫ КРЕПЛЕНИЯ
Рисунок Н.1 - Общий вид держателя образца и камеры
Рисунок Н.2 - Общий вид элемента системы крепления
держателя образца
Приложение П
(рекомендуемое)
СХЕМА РАСПОЛОЖЕНИЯ ТЕРМОПАР
Позиции 1 - 18 соответствуют установке термопар на тыльной
стороне держателя образца, позиции 19 - 27 соответствуют
установке термопар перед защитным материалом
Рисунок П.1 - Схема расположения термопар
Приложение Р
(рекомендуемое)
СХЕМА МЕСТ ИЗМЕРЕНИЯ ТОЛЩИНЫ
Рисунок Р.1 - Схема мест измерения толщины
Приложение С
(рекомендуемое)
ОБЩИЙ ВИД ИСПЫТАТЕЛЬНОГО СТЕНДА
ДЛЯ ОПРЕДЕЛЕНИЯ СТОЙКОСТИ СРЕДСТВ КРИОГЕННОЙ ЗАЩИТЫ
К ВОЗДЕЙСТВИЮ СТРУИ КРИОГЕННОЙ ЖИДКОСТИ
1 - климатическая камера; 2 - сопло; 3 - держатель образца;
4 - стойка держателя образца; 5 - камера для держателя
образца; 6 - защитная камера
Рисунок С.1 - Общий вид испытательного стенда,
образец - двутавровая балка
1 - климатическая камера; 2 - сопло; 3 - держатель образца;
4 - стойка держателя образца; 5 - камера для держателя
образца; 6 - защитная камера
Рисунок С.2 - Общий вид испытательного стенда,
образец - труба
Приложение Т
(рекомендуемое)
СХЕМА МЕСТ РАСПОЛОЖЕНИЯ ТЕРМОПАР
1 - климатическая камера; 2 - держатель образца
Рисунок Т.1 - Схема мест расположения термопар на балке
1 - климатическая камера; 2 - держатель образца
Рисунок Т.2 - Схема мест расположения термопар на трубе
Рисунок Т.3 - Ориентация струи относительно термопар
в месте соударения с балкой и с трубой
Приложение У
(рекомендуемое)
СХЕМА МЕСТ ИЗМЕРЕНИЯ ТОЛЩИНЫ
1 - камера для держателя образца; 2 - держатель образца
Рисунок У.1 - Схема мест измерения толщины образца на балке
1 - камера для образца; 2 - держатель образца
Рисунок У.2 - Схема мест измерения толщины образца на трубе
БИБЛИОГРАФИЯ
[1]
Федеральный закон от 30 декабря 2009 г. N 384-ФЗ "Технический регламент о безопасности зданий и сооружений"
[2]
Приказ Минтруда России от 27 ноября 2020 г. N 834н "Об утверждении Правил по охране труда при использовании отдельных видов химических веществ и материалов, при химической чистке, стирке, обеззараживании и дезактивации"
УДК 661.91-404:006.354
ОКС 75.060
Ключевые слова: средства защиты, криогенные среды, методы испытаний, нефтяная и газовая промышленность