Скачать Серия 1.411.1-4 Выпуск 1. Ростверки сборные. Рабочие чертежиДата актуализации: 01.01.2021
|
| Обозначение: | Серия 1.411.1-4 |
| Обозначение англ: | Series 1.411.1-4 |
| Статус: | не определен законодательством |
| Название рус.: | Выпуск 1. Ростверки сборные. Рабочие чертежи |
| Дата добавления в базу: | 01.09.2013 |
| Дата актуализации: | 01.01.2021 |
| Дата введения: | 01.06.1993 |
| Дата окончания срока действия: | 30.06.2003 |
| Область применения: | Выпуск 1 серии 1.411.1-4 содержит рабочие чертежи сборных железобетонных ростверков свайных фундаментов под железобетонные колонны прямоугольного сечения одноэтажных и многоэтажных производственных зданий |
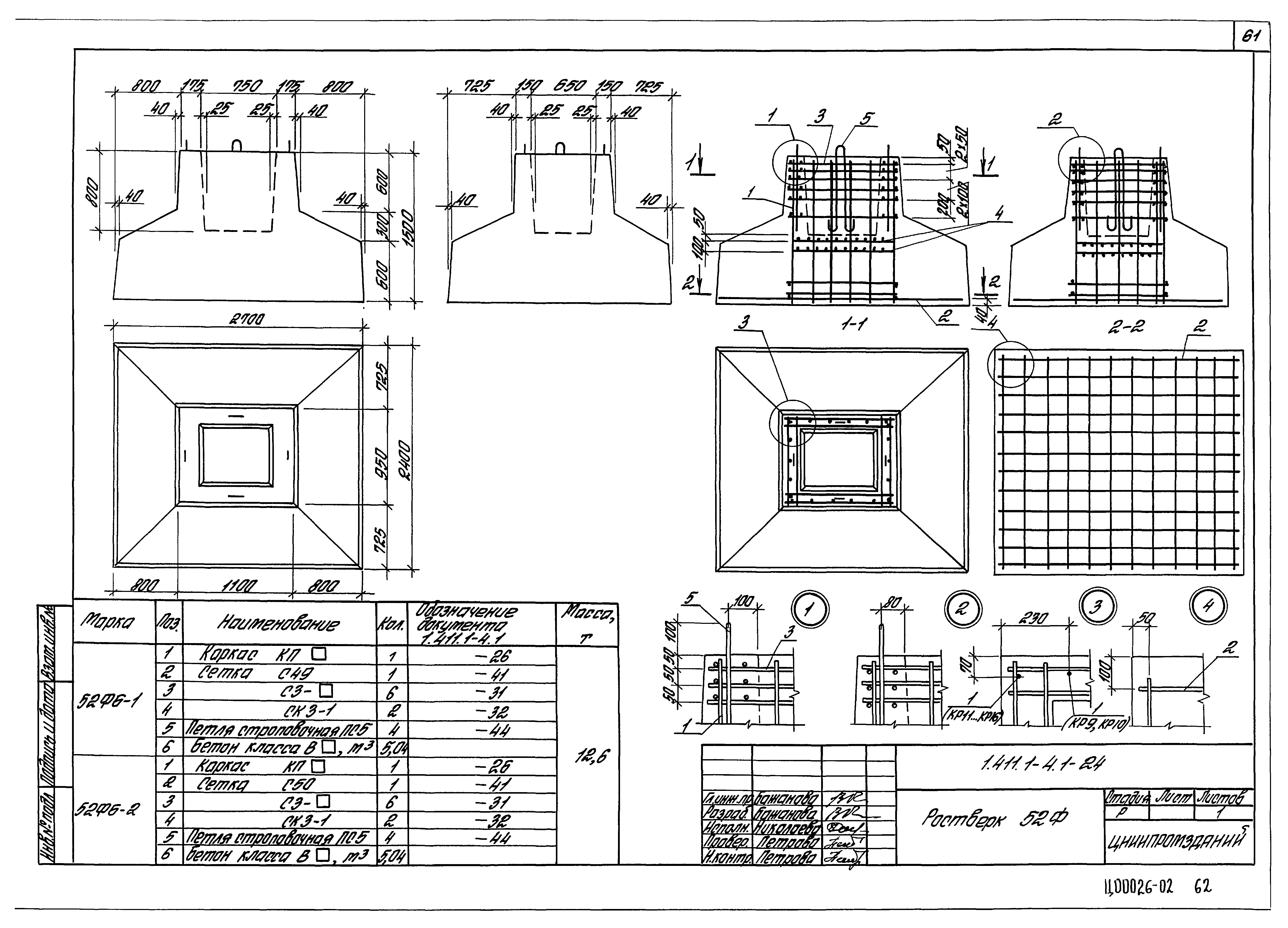
| Оглавление: | 1.411.1-4.1-ТТ Технические требования 1.411.1-4.1-НИ Номенклатура сборных ростверков 1.411.1-4.1-1 Ростверк 1Ф, 2Ф, 3Ф 1.411.1-4.1-2 Ростверк 4Ф, 5Ф, 6Ф 1.411.1-4.1-3 Ростверк 7Ф, 8Ф, 9Ф 1.411.1-4.1-4 Ростверк 10Ф, 11Ф, 12Ф 1.411.1-4.1-5 Ростверк 13Ф, 14Ф, 15Ф 1.411.1-4.1-6 Ростверк 16Ф, 17Ф, 18Ф 1.411.1-4.1-7 Ростверк 19Ф, 20Ф, 21Ф 1.411.1-4.1-8 Ростверк 22Ф, 23Ф, 24Ф 1.411.1-4.1-9 Ростверк 25Ф, 26Ф, 27Ф 1.411.1-4.1-10 Ростверк 28Ф, 29Ф 1.411.1-4.1-11 Ростверк 30Ф, 31Ф 1.411.1-4.1-12 Ростверк 32Ф, 33Ф 1.411.1-4.1-13 Ростверк 34Ф, 35Ф 1.411.1-4.1-14 Ростверк 36Ф, 37Ф 1.411.1-4.1-15 Ростверк 38Ф, 39Ф 1.411.1-4.1-16 Ростверк 40Ф, 41Ф 1.411.1-4.1-17 Ростверк 42Ф, 43Ф 1.411.1-4.1-18 Ростверк 44Ф, 45Ф 1.411.1-4.1-19 Ростверк 46Ф, 47Ф 1.411.1-4.1-20 Ростверк 48Ф 1.411.1-4.1-21 Ростверк 49Ф 1.411.1-4.1-22 Ростверк 50Ф 1.411.1-4.1-23 Ростверк 51Ф 1.411.1-4.1-24 Ростверк 52Ф 1.411.1-4.1-25 Каркас КП1… КП7 1.411.1-4.1-26 Каркас КП8… КП14 1.411.1-4.1-27 Каркас КП15… КП20 1.411.1-4.1-28 Каркас КР1… КР7 1.411.1-4.1-29 Каркас КР8, КР9, КР10 1.411.1-4.1-30 Каркас КР11… КР16 1.411.1-4.1-31 Сетка С1-1, С1-2; С2-1, С2-3; С3-1, С3-2, С3-3 1.411.1-4.1-32 Сетка СК1-1; СК2-1; СК3-1 1.411.1-4.1-33 Сетка С1… С7 1.411.1-4.1-34 Сетка С8… С11 1.411.1-4.1-35 Сетка С12… С20 1.411.1-4.1-36 Сетка С21… С31 1.411.1-4.1-37 Сетка С32, С33, С34 1.411.1-4.1-38 Сетка С35, С36, С37 1.411.1-4.1-39 Сетка С38… С44 1.411.1-4.1-40 Сетка С45… С48 1.411.1-4.1-41 Сетка С49… С56 1.411.1-4.1-42 Сетка С57, С58 1.411.1-4.1-43 Сетка С59, С60, С61 1.411.1-4.1-44 Петля строповочная ПС1… ПС6 1.411.1-4.1-45 Изделие закладное МН1 |
| Разработан: | ЦНИИпромзданий |
| Утверждён: | 21.12.1992 Минстрой России (Russian Federation Minstroy 9-1/397) |
| Нормативные ссылки: |
|








































































