Скачать Серия 1.812.1-8.93 Выпуск 1. Фундаменты. Рабочие чертежи

Дата актуализации: 01.01.2021

Серия 1.812.1-8.93

Выпуск 1. Фундаменты. Рабочие чертежи

Обозначение: Серия 1.812.1-8.93
Обозначение англ: Series 1.812.1-8.93
Статус:не определен законодательством
Название рус.:Выпуск 1. Фундаменты. Рабочие чертежи
Дата добавления в базу:01.09.2013
Дата актуализации:01.01.2021
Дата введения:01.05.1994
Дата окончания срока действия:30.06.2003
Область применения:Настоящие технические требования распространяются на сборные железобетонные фундаменты серии 1.812.1-8.93, предназначенные под железобетонные трехшарнирные рамы однопролетных сельскохозяйственных зданий с пролетами 9; 10,5; 12; 18; 21 24 м
Оглавление:1.812.1-8.93.1-ТТ Технические требования
1.812.1-8.93.1-1 Фундамент: Ф15.12.9, Ф15.15.9
1.812.1-8.93.1-2 Фундамент: Ф18.12.9, Ф18.15.9
1.812.1-8.93.1-3 Фундамент: Ф15.12.12, Ф18.15.12
1.812.1-8.93.1-4 Фундамент: Ф18.12.12, Ф18.15.12
1.812.1-8.93.1-5 Фундамент: Ф24.12.12, Ф24.15.12
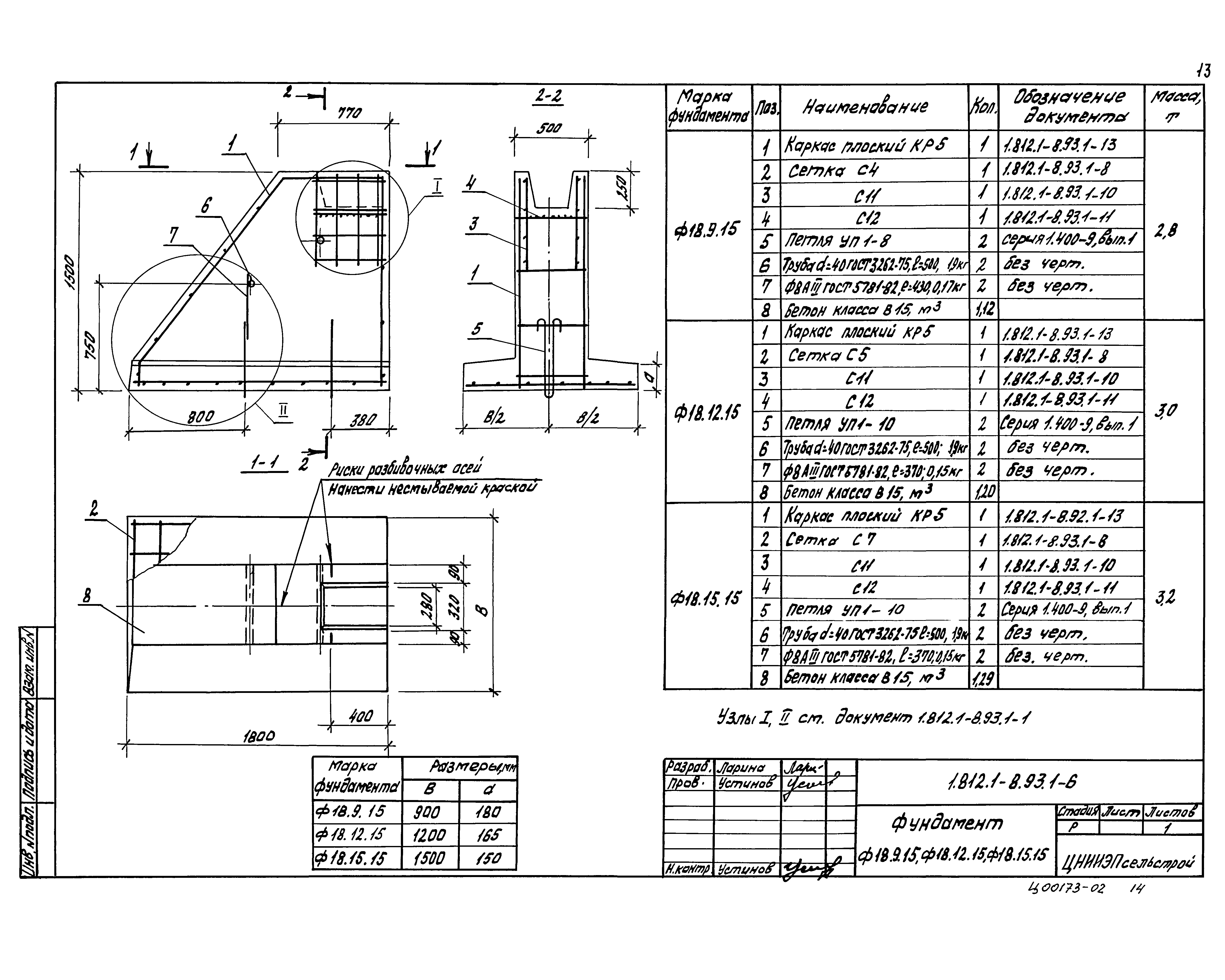
1.812.1-8.93.1-6 Фундамент: Ф18.9.15, Ф18.12.15, Ф18.15.15
1.812.1-8.93.1-7 Фундамент: Ф24.12.15, Ф24.15.15
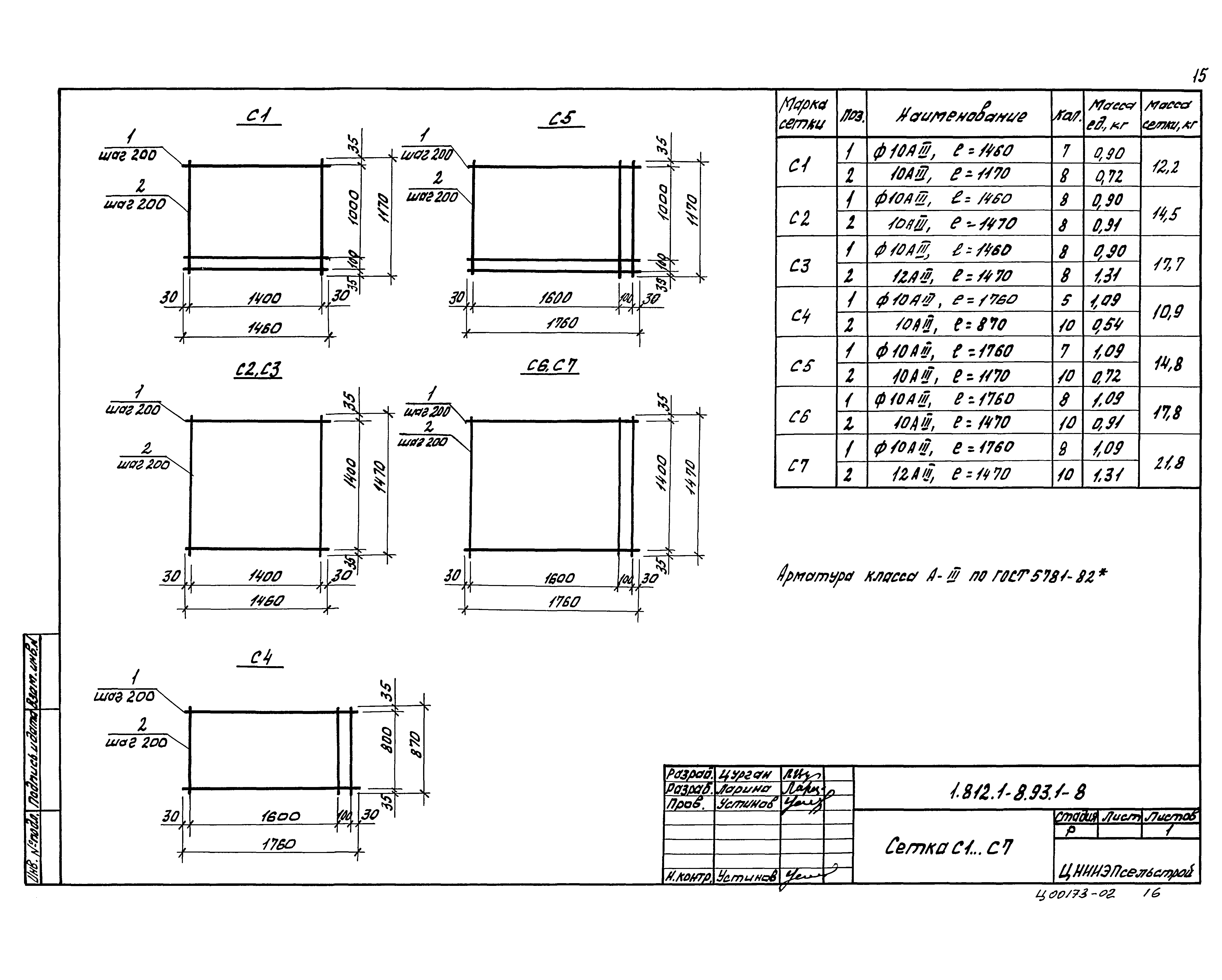
1.812.1-8.93.1-8 Сетка С1… С7
1.812.1-8.93.1-9 Сетка С8… С10
1.812.1-8.93.1-10 Сетка С11
1.812.1-8.93.1-11 Сетка С12
1.812.1-8.93.1-12 Каркас плоский КР1… КР4
1.812.1-8.93.1-13 Каркас плоский КР5, КР6, КР7
1.812.1-8.93.1-РС Ведомость расхода стали
Разработан: ЦНИИЭПсельстрой
Утверждён:16.12.1993 Главпроект Госстроя России (9-3-2/220)
Заменяет собой:
Нормативные ссылки:
Серия 1.812.1-8.93Серия 1.812.1-8.93Серия 1.812.1-8.93Серия 1.812.1-8.93Серия 1.812.1-8.93Серия 1.812.1-8.93Серия 1.812.1-8.93Серия 1.812.1-8.93Серия 1.812.1-8.93Серия 1.812.1-8.93Серия 1.812.1-8.93Серия 1.812.1-8.93Серия 1.812.1-8.93Серия 1.812.1-8.93Серия 1.812.1-8.93Серия 1.812.1-8.93Серия 1.812.1-8.93Серия 1.812.1-8.93Серия 1.812.1-8.93Серия 1.812.1-8.93Серия 1.812.1-8.93