Скачать Серия 1.432.1-33.93 Выпуск 2. Перегородки. Рабочие чертежи
Дата актуализации: 01.01.2021
Серия 1.432.1-33.93
Выпуск 2. Перегородки. Рабочие чертежи
Обозначение:
Серия 1.432.1-33.93
Обозначение англ:
Series 1.432.1-33.93
Статус:
не определен законодательством
Название рус.:
Выпуск 2. Перегородки. Рабочие чертежи
Дата добавления в базу:
01.09.2013
Дата актуализации:
01.01.2021
Дата введения:
01.05.1994
Дата окончания срока действия:
30.06.2003
Область применения:
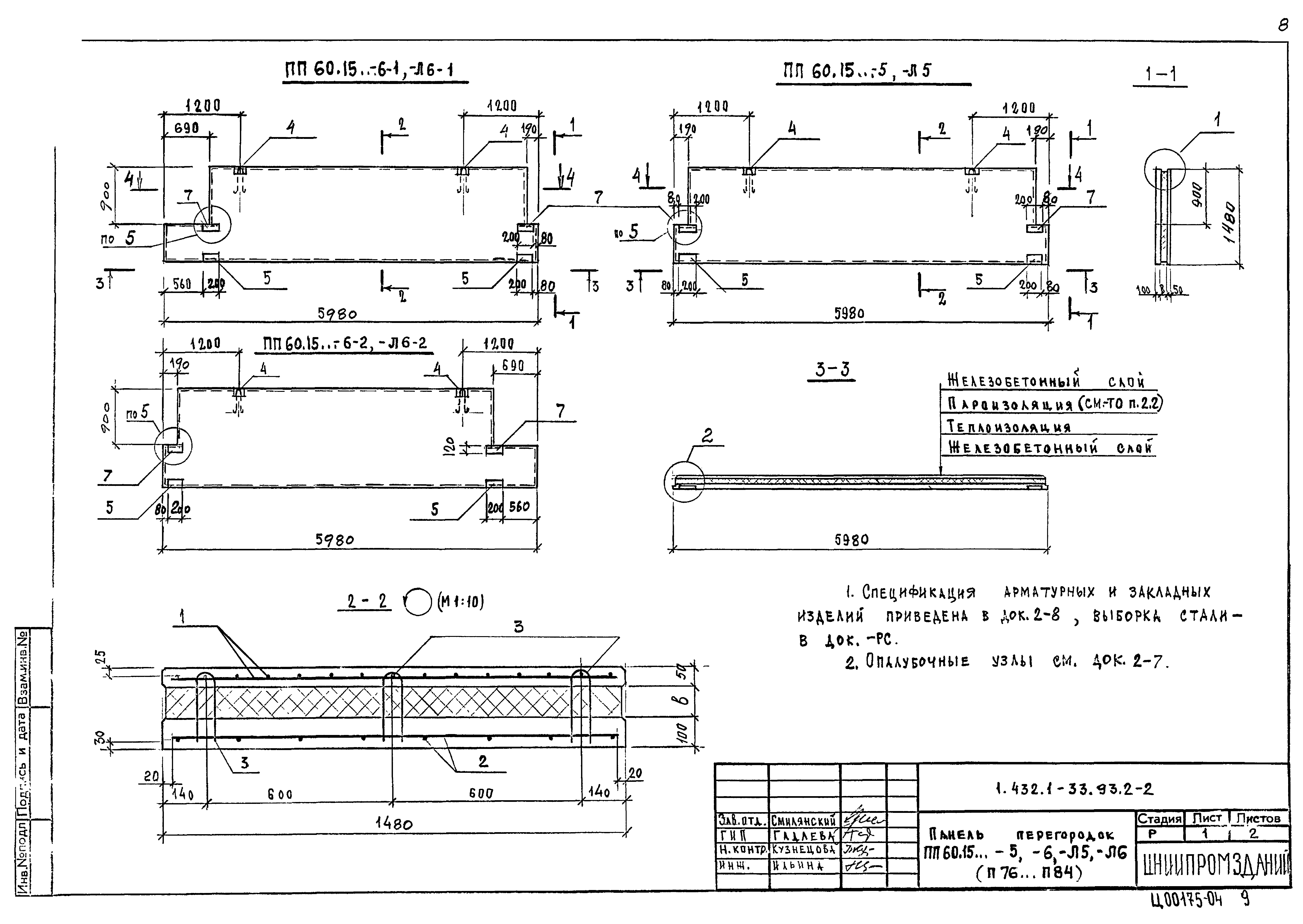
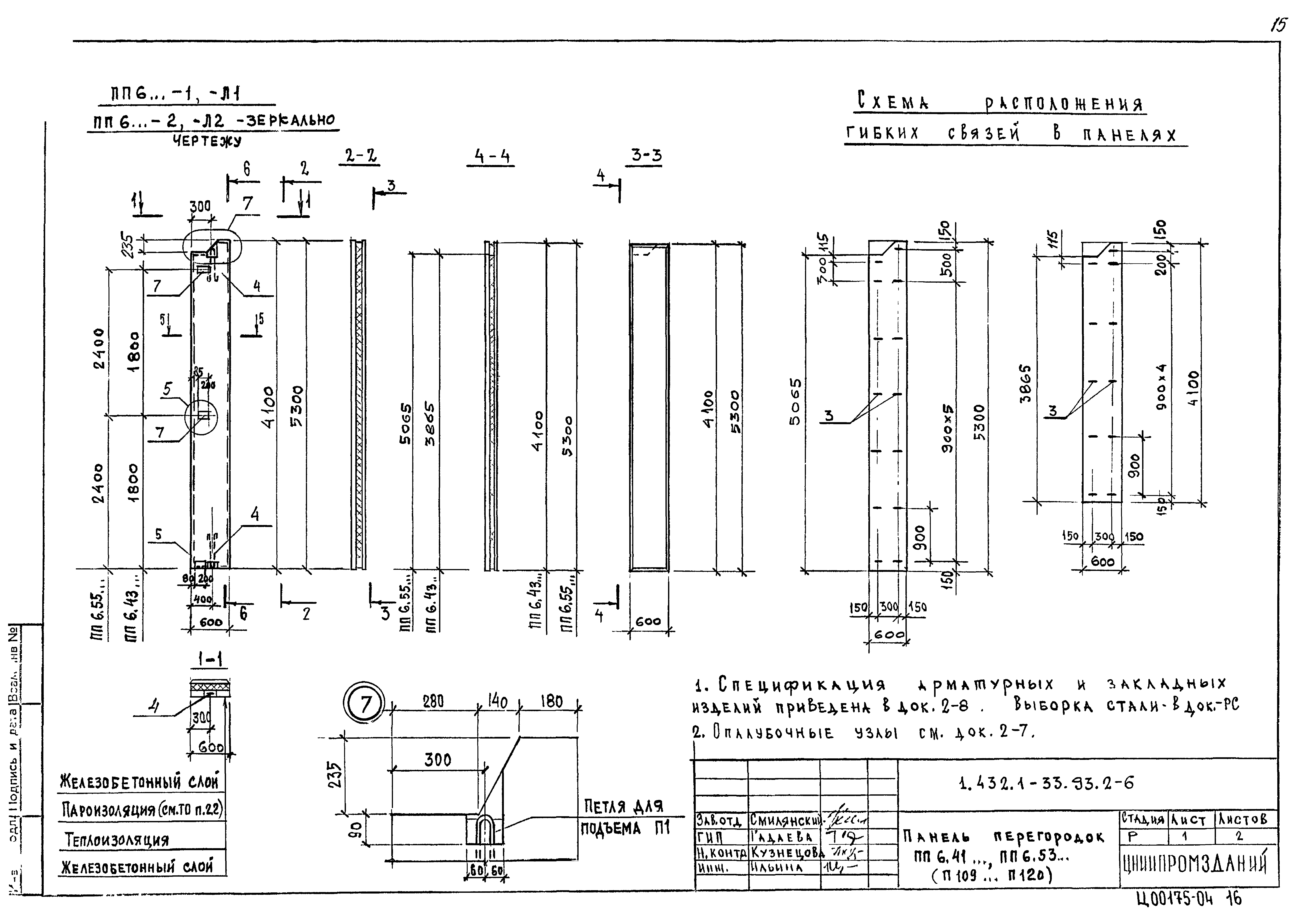
Выпуск содержит: техническое описание, рабочие чертежи панелей перегородок, опалубочные узлы, спецификации, ведомость расхода стали на панели
Разработан:
ЦНИИпромзданий
Утверждён:
06.12.1993 Госстрой СССР (Государственный комитет Совета Министров СССР по делам строительства)
(USSR Gosstroy 9-3-2/261)
Нормативные ссылки:
СНиП 2.11.02-87 «Холодильники»
СНиП 3.09.01-85 «Производство сборных железобетонных конструкций и изделий»
ГОСТ 13015.0-83 «Конструкции и изделия бетонные и железобетонные сборные. Общие технические требования»
ГОСТ 13015.1-81 «Конструкции и изделия бетонные и железобетонные сборные. Приемка»
ГОСТ 13015.2-81 «Конструкции и изделия бетонные и железобетонные сборные. Маркировка»
ГОСТ 13015.3-81 «Конструкции и изделия бетонные и железобетонные сборные. Документ о качестве»
ГОСТ 13015.4-84 «Конструкции и изделия бетонные и железобетонные сборные. Правила транспортирования и хранения»
ГОСТ 23009-78 «Конструкции и изделия бетонные и железобетонные сборные. Условные обозначения (марки)»
ГОСТ 15588-86 «Плиты пенополистирольные. Технические условия»
ГОСТ 535-88 «Прокат сортовой и фасонный из стали углеродистой обыкновенного качества. Общие технические условия»
ГОСТ 5781-82 «Сталь горячекатаная для армирования железобетонных конструкций. Технические условия»
ГОСТ 6727-80 «Проволока из низкоуглеродистой стали холоднотянутая для армирования железобетонных конструкций. Технические условия»
ГОСТ 19903-74 «Прокат листовой горячекатаный. Сортамент»
ГОСТ 10354-82 «Пленка полиэтиленовая. Технические условия»
ГОСТ 380-88 «Сталь углеродистая обыкновенного качества. Марки»
ГОСТ 8509-86 «Уголки стальные горячекатаные равнополочные. Сортамент»