Скачать Шифр 1481 Выпуск 1. Панели. Опалубочные чертежи и армирование. Рабочие чертежи

Дата актуализации: 01.01.2021

Шифр 1481

Выпуск 1. Панели. Опалубочные чертежи и армирование. Рабочие чертежи

Обозначение: Шифр 1481
Обозначение англ: 1481
Статус:не определен законодательством
Название рус.:Выпуск 1. Панели. Опалубочные чертежи и армирование. Рабочие чертежи
Дата добавления в базу:01.09.2013
Дата актуализации:01.01.2021
Дата введения:27.11.1986
Дата окончания срока действия:30.06.2003
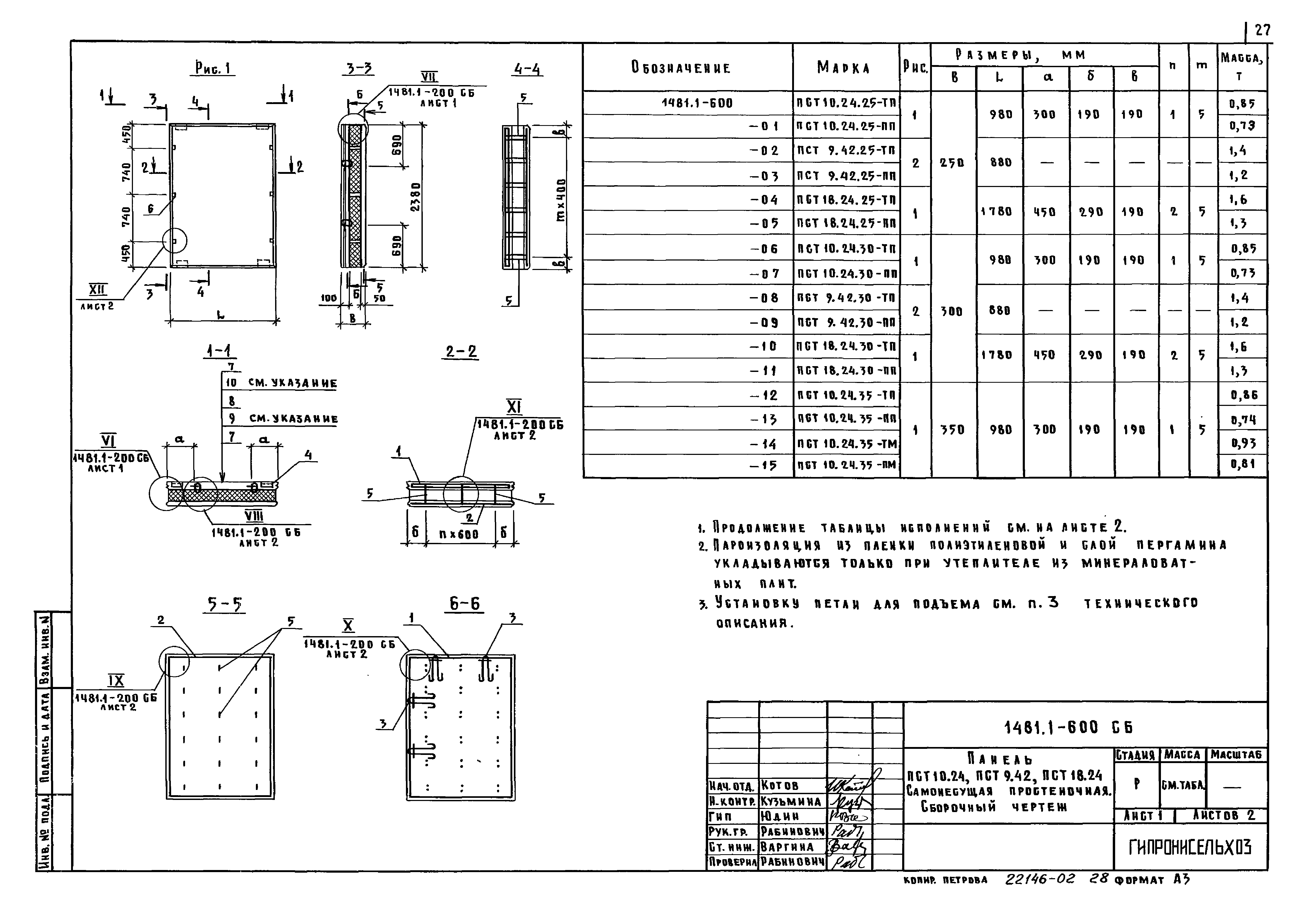
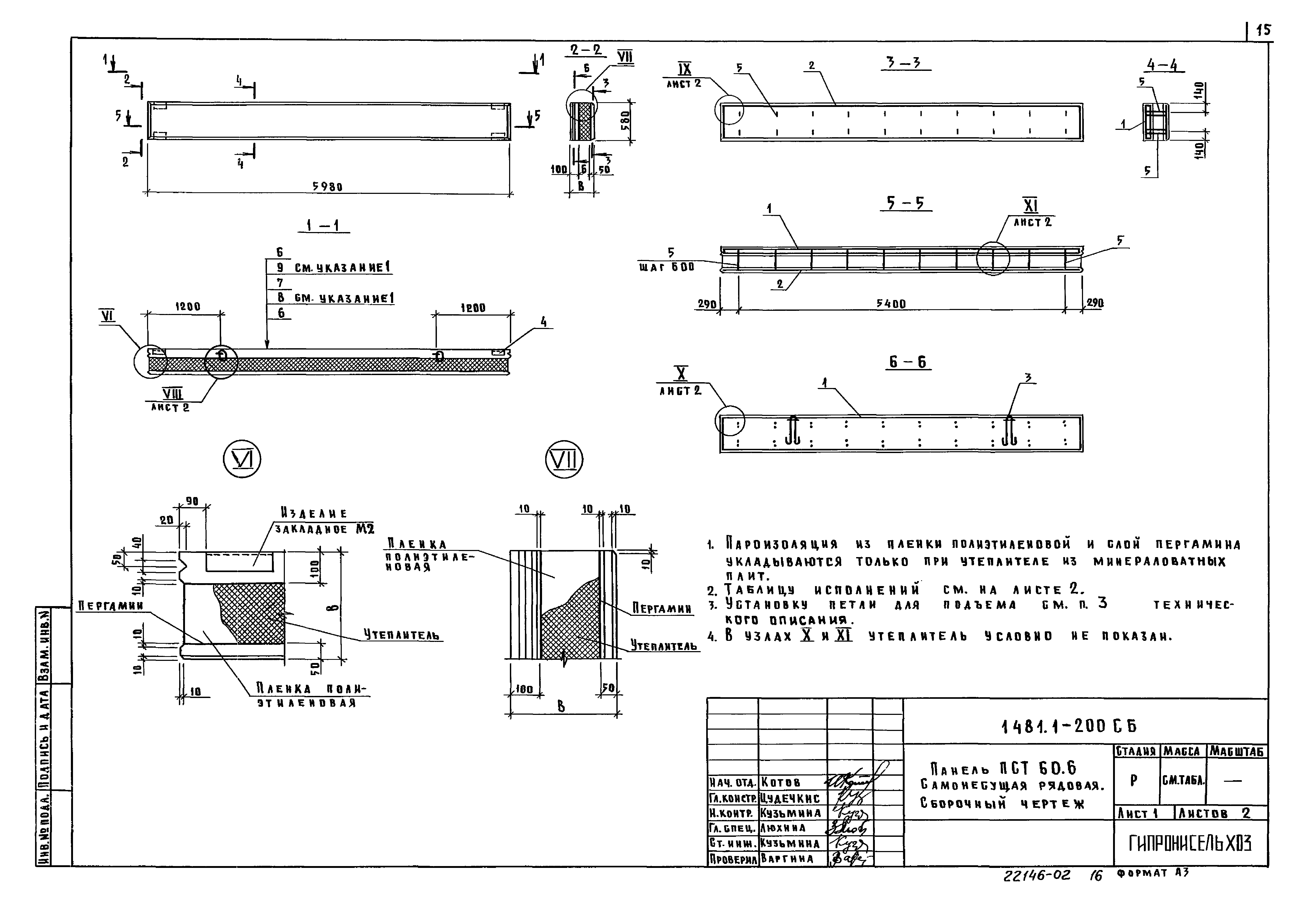
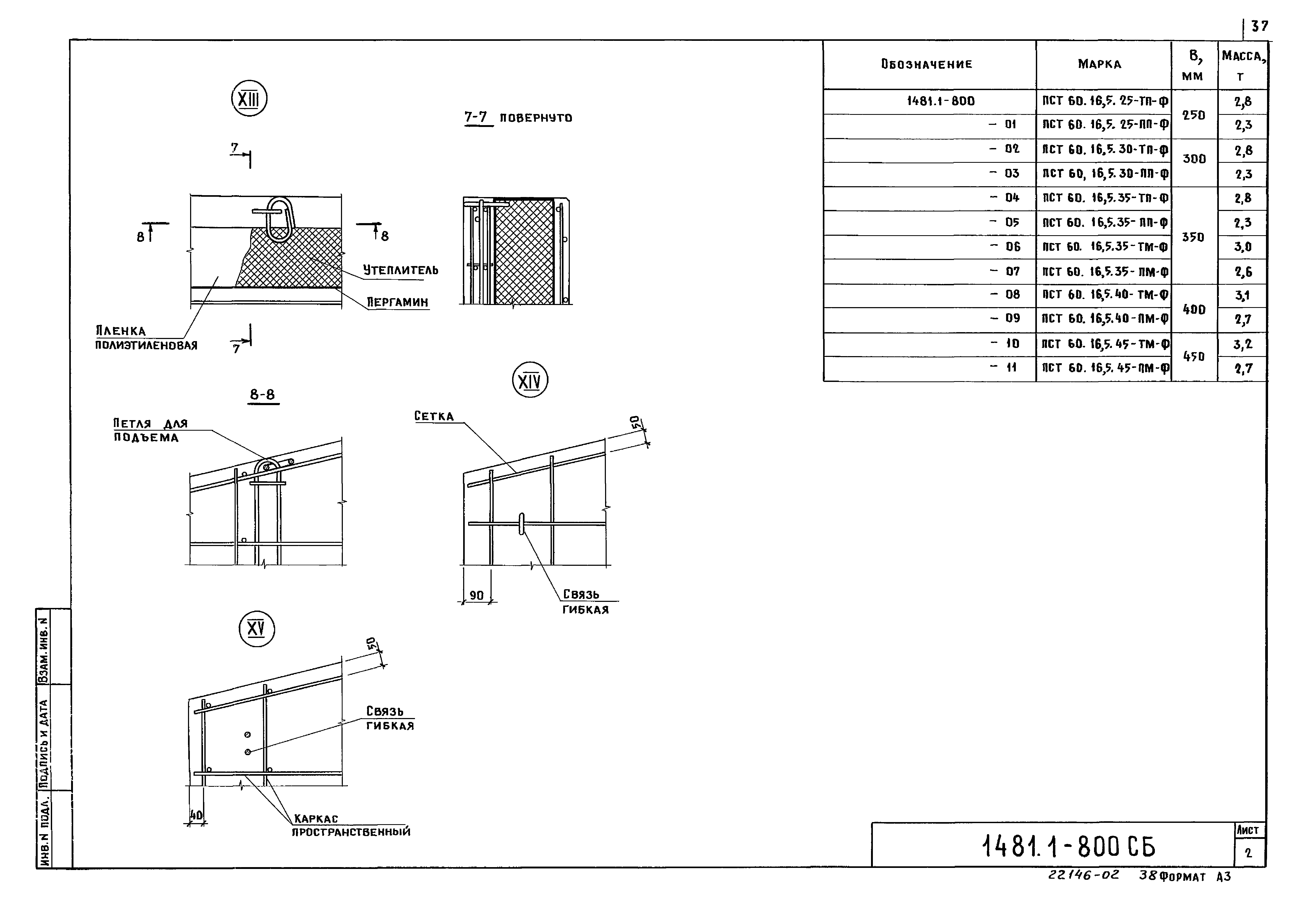
Область применения:Данный выпуск содержит рабочие чертежи железобетонных трехслойных панелей, угловых легкобетонных блоков и железобетонных панелей стенок ограждения для стен зданий хранилищ плодоовощной продукции
Разработан: НИИСК
Гипронисельпром Главсельстройпроекта Минсельхоза СССР
ЦНИИЭПсельстрой
ГипроНИсельхоз (Институт Гипронисельхоз )
Утверждён:27.11.1986 Госстрой СССР (Государственный комитет Совета Министров СССР по делам строительства) (USSR Gosstroy 6/3-109)
Нормативные ссылки:
Шифр 1481Шифр 1481Шифр 1481Шифр 1481Шифр 1481Шифр 1481Шифр 1481Шифр 1481Шифр 1481Шифр 1481Шифр 1481Шифр 1481Шифр 1481Шифр 1481Шифр 1481Шифр 1481Шифр 1481Шифр 1481Шифр 1481Шифр 1481Шифр 1481Шифр 1481Шифр 1481Шифр 1481Шифр 1481Шифр 1481Шифр 1481Шифр 1481Шифр 1481Шифр 1481Шифр 1481Шифр 1481Шифр 1481Шифр 1481Шифр 1481Шифр 1481Шифр 1481Шифр 1481Шифр 1481Шифр 1481Шифр 1481Шифр 1481Шифр 1481Шифр 1481Шифр 1481Шифр 1481Шифр 1481Шифр 1481Шифр 1481Шифр 1481Шифр 1481Шифр 1481Шифр 1481Шифр 1481Шифр 1481Шифр 1481