Скачать Серия 1.432.2-32.93 Выпуск 0. Материалы для проектирования

Дата актуализации: 01.01.2021

Серия 1.432.2-32.93

Выпуск 0. Материалы для проектирования

Обозначение: Серия 1.432.2-32.93
Обозначение англ: Series 1.432.2-32.93
Статус:не определен законодательством
Название рус.:Выпуск 0. Материалы для проектирования
Дата добавления в базу:01.09.2013
Дата актуализации:01.01.2021
Дата введения:01.03.1994
Дата окончания срока действия:30.06.2003
Область применения:Панели предназначены для стен одноэтажных отапливаемых производственных зданий со стальным каркасом при шаге наружных колонн 6 м, высотой до низа несущих конструкций покрытия до 18,0 м
Оглавление:1.432.2-32.93.0-ПЗ Пояснительная записка
1.432.2-32.93.0-НИ1 Номенклатура рядовых панелей
1.432.2-32.93.0-НИ2 Номенклатура парапетных панелей
1.432.2-32.93.0-НИ3 Номенклатура панелей для решения стен с проемами
1.432.2-32.93.0-НИ4 Номенклатура надворотных панелей
1.432.2-32.93.0-1 Фрагмент фасада 1. Пример решения глухого участка торцевой стены. Фрагмент фасада 2. Пример решения глухого участка продольной стены
1.432.2-32.93.0-2 Фрагмент фасада 3. Пример решения стены с одноярусным расположением панелей и вертикальной лентой окон
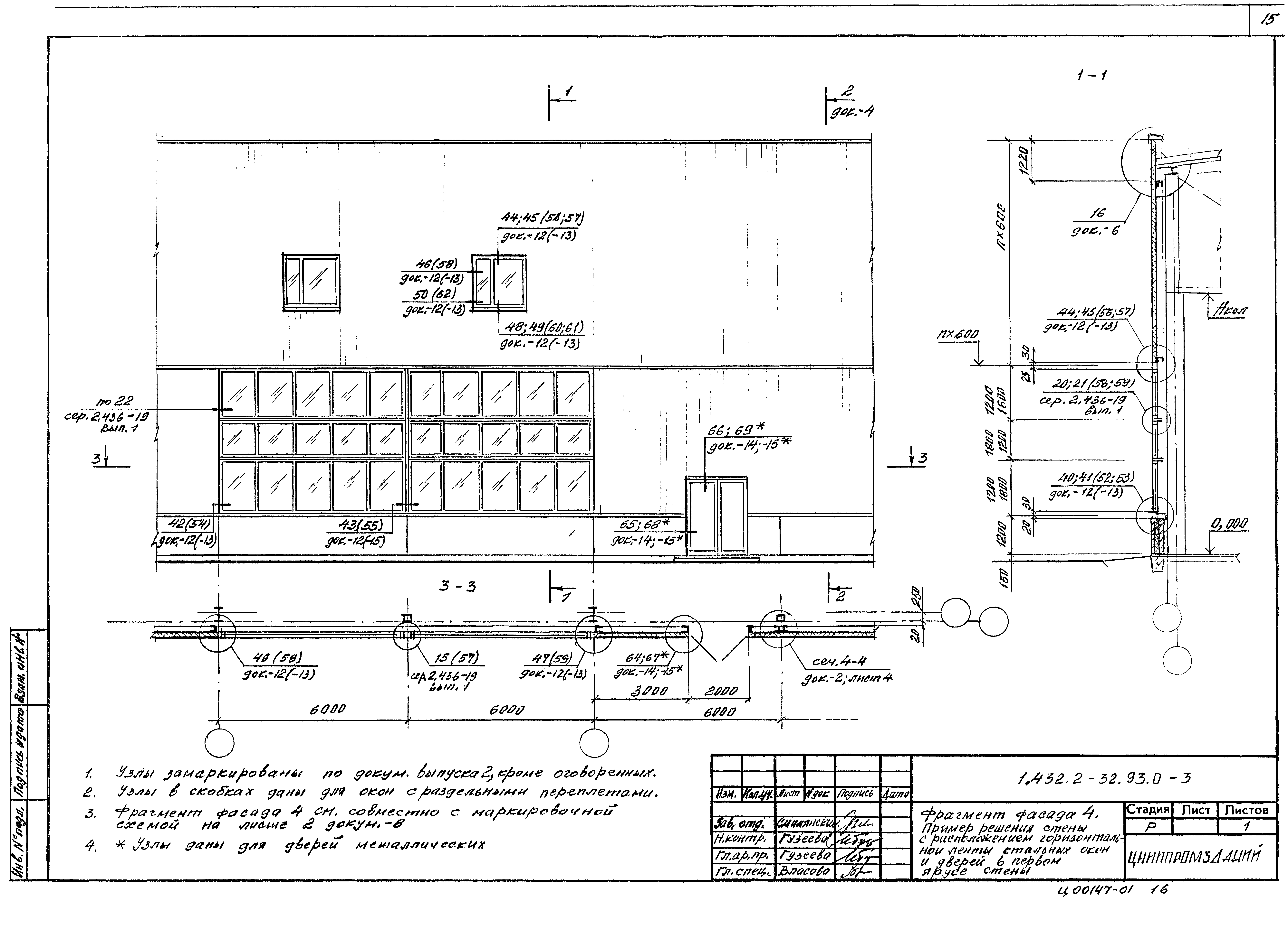
1.432.2-32.93.0-3 Фрагмент фасада 4. Пример решения стены с расположением горизонтальной ленты стальных окон и дверей в первом ярусе стены
1.432.2-32.93.0-4 Фрагмент фасада 5. Пример решения стены с расположением горизонтальной ленты деревянных окон и дверей в первом ярусе стены
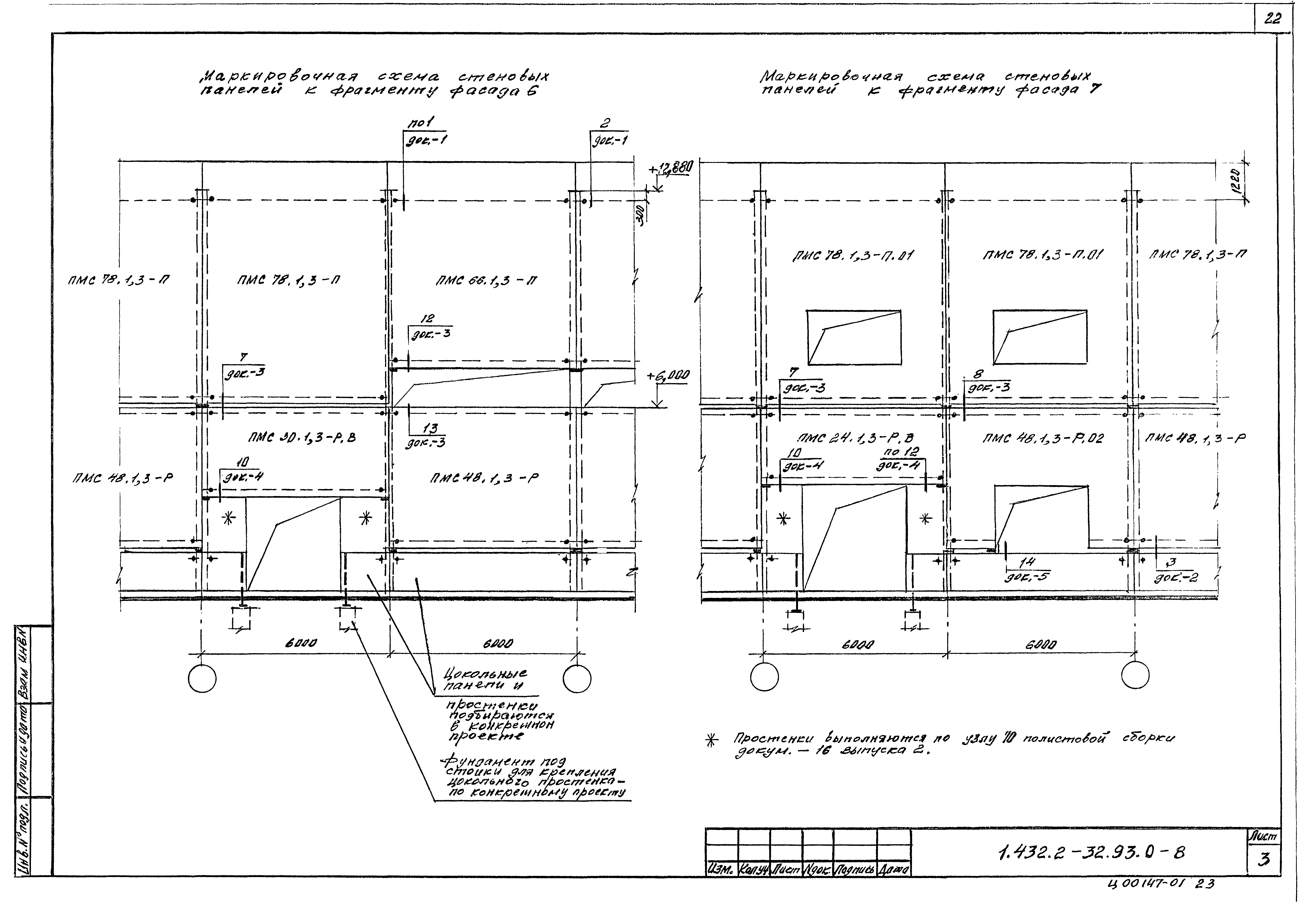
1.432.2-32.93.0-5 Фрагмент фасада 6. Пример решения стены с расположением горизонтальной ленты стальных окон во втором ярусе стены и ворот - в первом
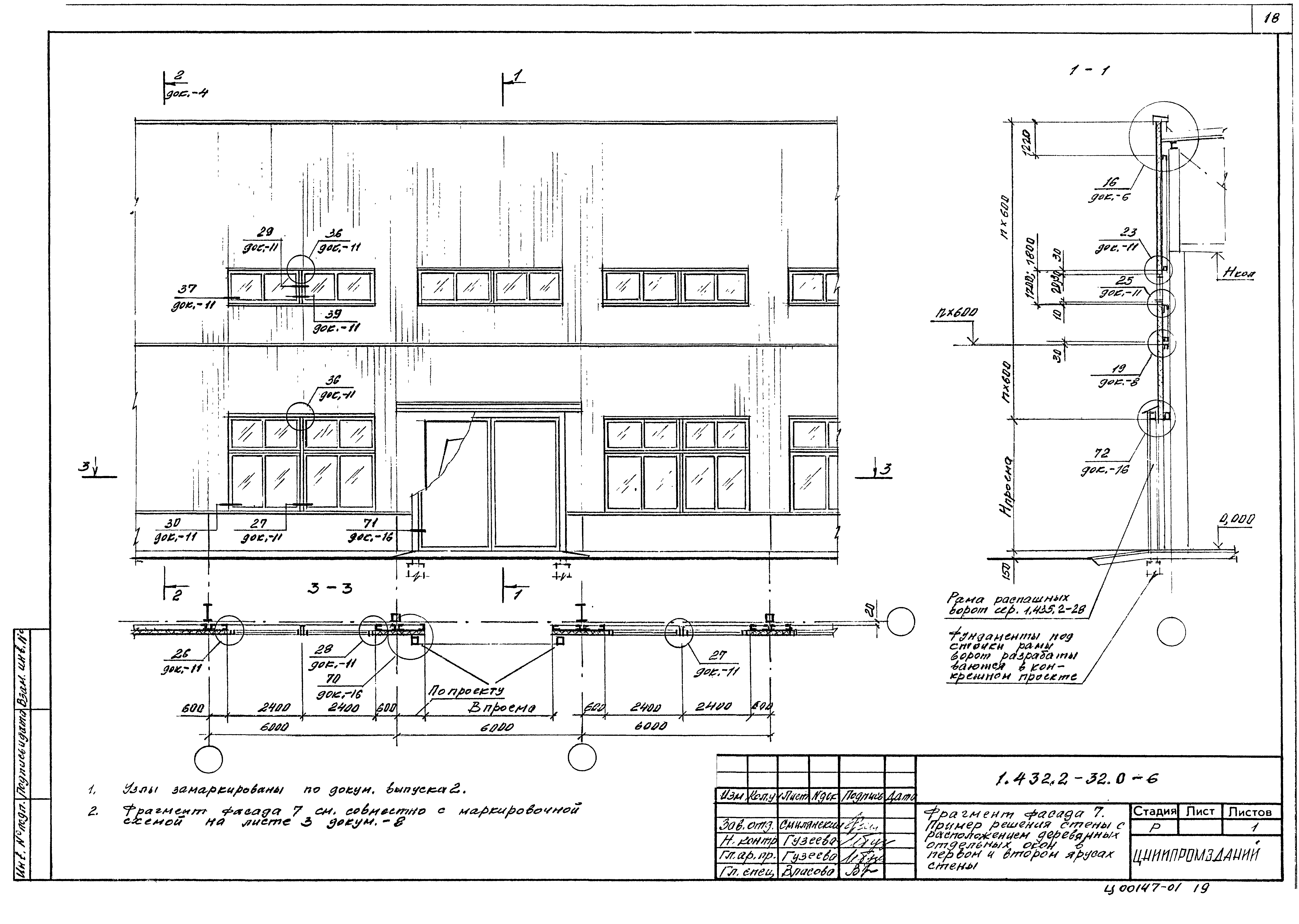
1.432.2-32.93.0-6 Фрагмент фасада 7. Пример решения стены с расположением деревянных отдельных окон в первом и втором ярусах стены
1.432.2-32.93.0-7 Фрагмент фасада 8. Пример решения стены с расположением горизонтальной ленты деревянных окон во втором ярусе стены
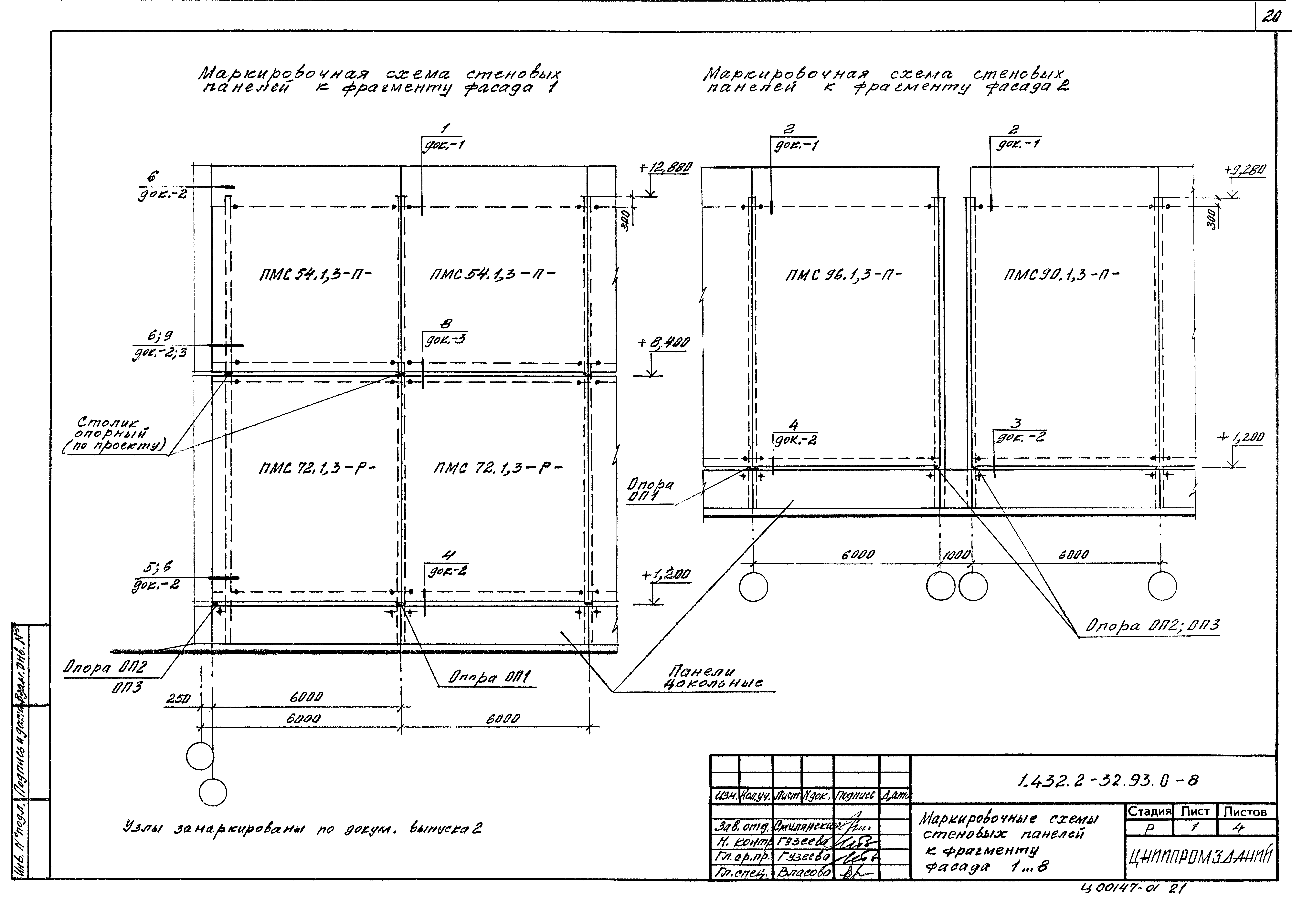
1.432.2-32.93.0-8 Маркировочные схемы стеновых панелей к фрагменту фасада 1… 8
1.432.2-32.93.0-9 Фрагмент фасада торцевой стены с парапетным ограждением
Разработан: ЦНИИпромзданий
Утверждён:16.11.1993 Госстрой России (Russian Federation Gosstroy 9-3-2/240)
Нормативные ссылки:
Серия 1.432.2-32.93Серия 1.432.2-32.93Серия 1.432.2-32.93Серия 1.432.2-32.93Серия 1.432.2-32.93Серия 1.432.2-32.93Серия 1.432.2-32.93Серия 1.432.2-32.93Серия 1.432.2-32.93Серия 1.432.2-32.93Серия 1.432.2-32.93Серия 1.432.2-32.93Серия 1.432.2-32.93Серия 1.432.2-32.93Серия 1.432.2-32.93Серия 1.432.2-32.93Серия 1.432.2-32.93Серия 1.432.2-32.93Серия 1.432.2-32.93Серия 1.432.2-32.93Серия 1.432.2-32.93Серия 1.432.2-32.93Серия 1.432.2-32.93Серия 1.432.2-32.93Серия 1.432.2-32.93