Скачать Серия 1.431.9-31 Выпуск 5-1. Колонны фахверка железобетонные. Рабочие чертежи

Дата актуализации: 01.01.2021

Серия 1.431.9-31

Выпуск 5-1. Колонны фахверка железобетонные. Рабочие чертежи

Обозначение: Серия 1.431.9-31
Обозначение англ: Series 1.431.9-31
Статус:не определен законодательством
Название рус.:Выпуск 5-1. Колонны фахверка железобетонные. Рабочие чертежи
Дата добавления в базу:01.09.2013
Дата актуализации:01.01.2021
Дата введения:01.01.1995
Дата окончания срока действия:30.06.2003
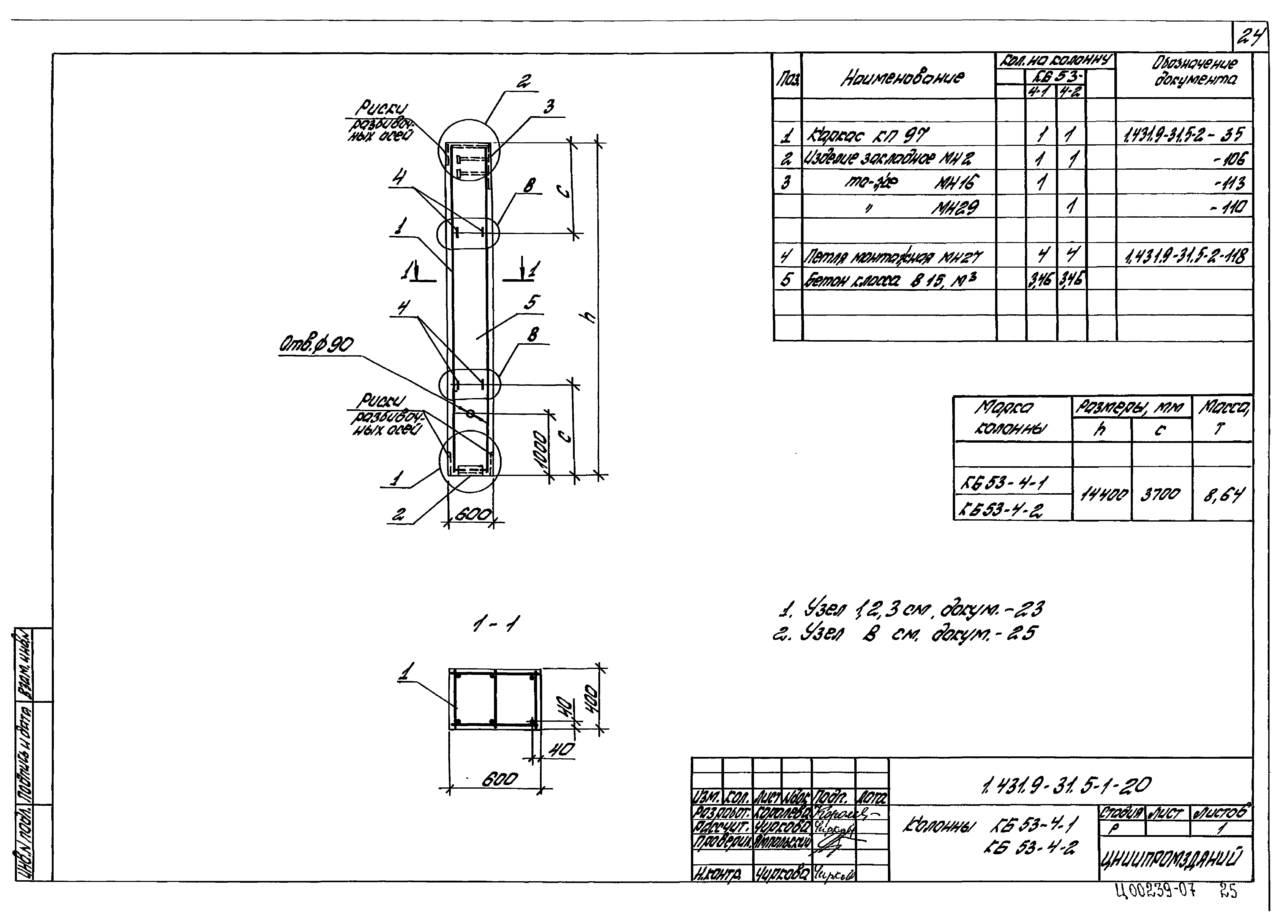
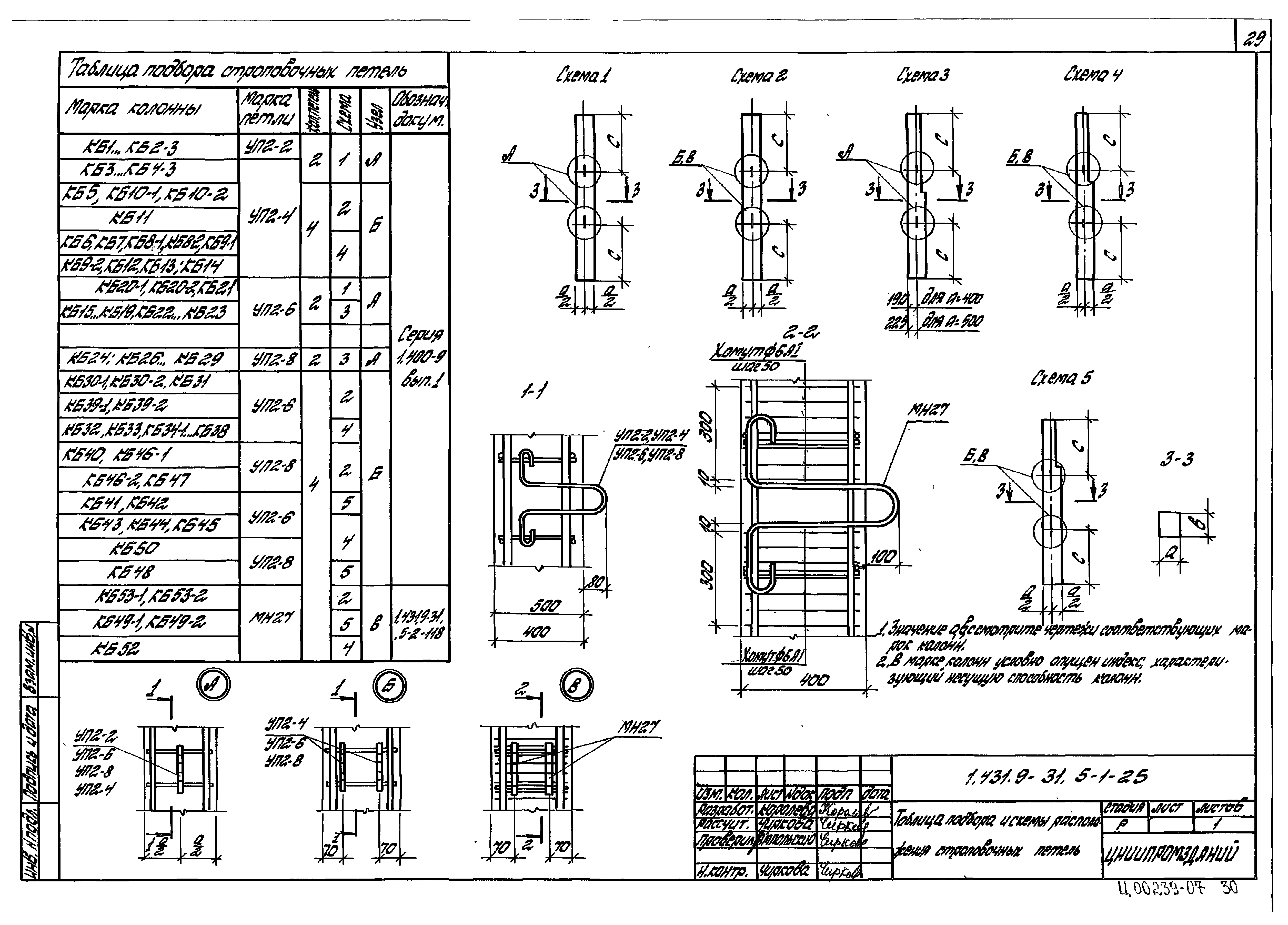
Область применения:Настоящий выпуск содержит рабочие чертежи железобетонных колонн фахверка. Колонны запроектированы прямоугольного сечения призматическими или ступенчатыми. В целях унификации колонны приняты в габаритах фахверковых колонн наружных стен одноэтажных производственных зданий
Разработан: ЦНИИпромзданий
Утверждён:17.01.1994 Главпроект Госстроя России (9-3-2/5)
Нормативные ссылки:
Серия 1.431.9-31Серия 1.431.9-31Серия 1.431.9-31Серия 1.431.9-31Серия 1.431.9-31Серия 1.431.9-31Серия 1.431.9-31Серия 1.431.9-31Серия 1.431.9-31Серия 1.431.9-31Серия 1.431.9-31Серия 1.431.9-31Серия 1.431.9-31Серия 1.431.9-31Серия 1.431.9-31Серия 1.431.9-31Серия 1.431.9-31Серия 1.431.9-31Серия 1.431.9-31Серия 1.431.9-31Серия 1.431.9-31Серия 1.431.9-31Серия 1.431.9-31Серия 1.431.9-31Серия 1.431.9-31Серия 1.431.9-31Серия 1.431.9-31Серия 1.431.9-31Серия 1.431.9-31Серия 1.431.9-31Серия 1.431.9-31Серия 1.431.9-31Серия 1.431.9-31Серия 1.431.9-31Серия 1.431.9-31Серия 1.431.9-31Серия 1.431.9-31Серия 1.431.9-31Серия 1.431.9-31