Скачать Серия 1.427.1-3 Выпуск 2/87. Арматурные и закладные изделия, стальные элементы колонн. Рабочие чертежиДата актуализации: 01.01.2021
|
| Обозначение: | Серия 1.427.1-3 |
| Обозначение англ: | Series 1.427.1-3 |
| Статус: | не определен законодательством |
| Название рус.: | Выпуск 2/87. Арматурные и закладные изделия, стальные элементы колонн. Рабочие чертежи |
| Дата добавления в базу: | 01.09.2013 |
| Дата актуализации: | 01.01.2021 |
| Дата введения: | 01.04.1988 |
| Дата окончания срока действия: | 30.06.2003 |
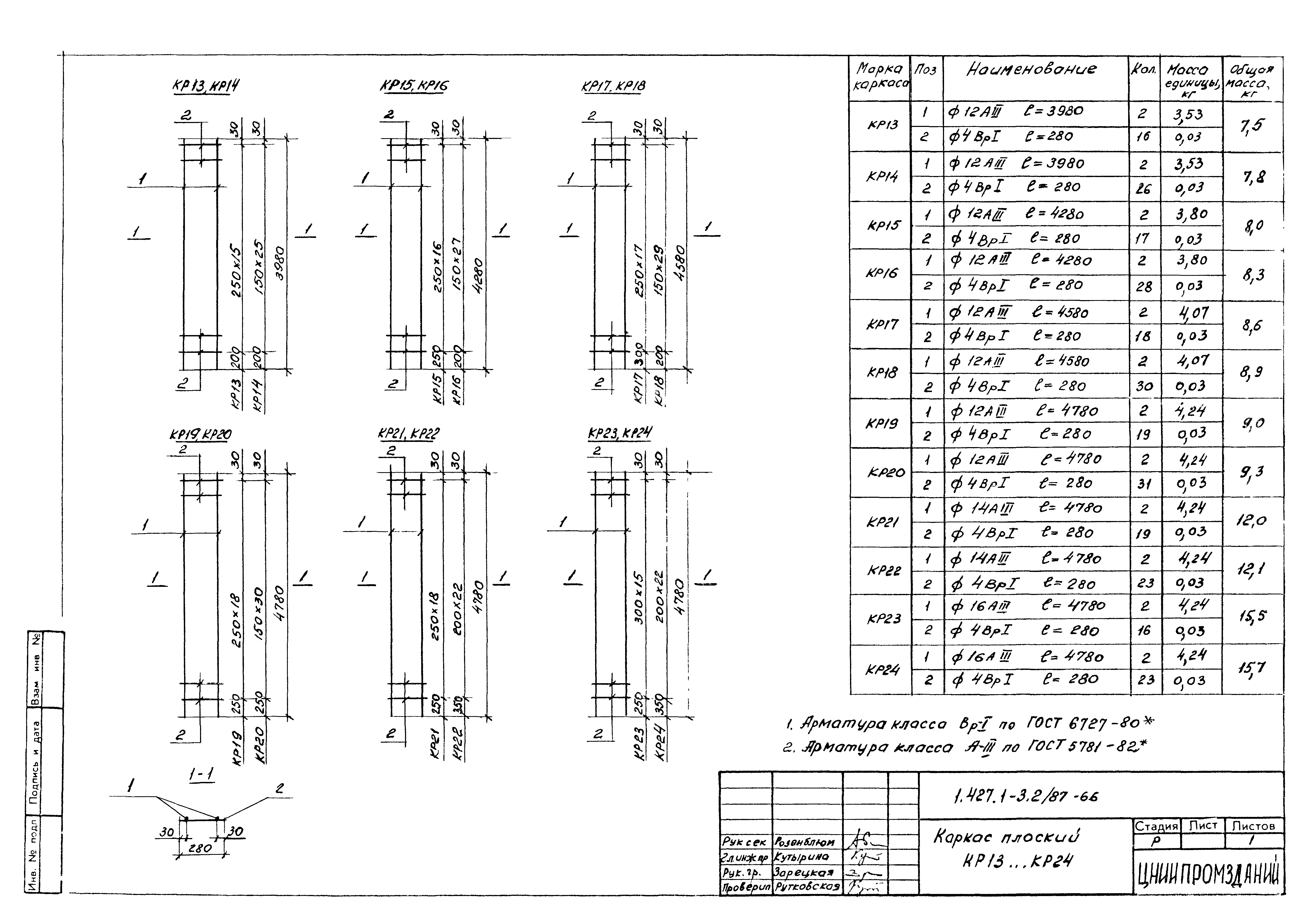
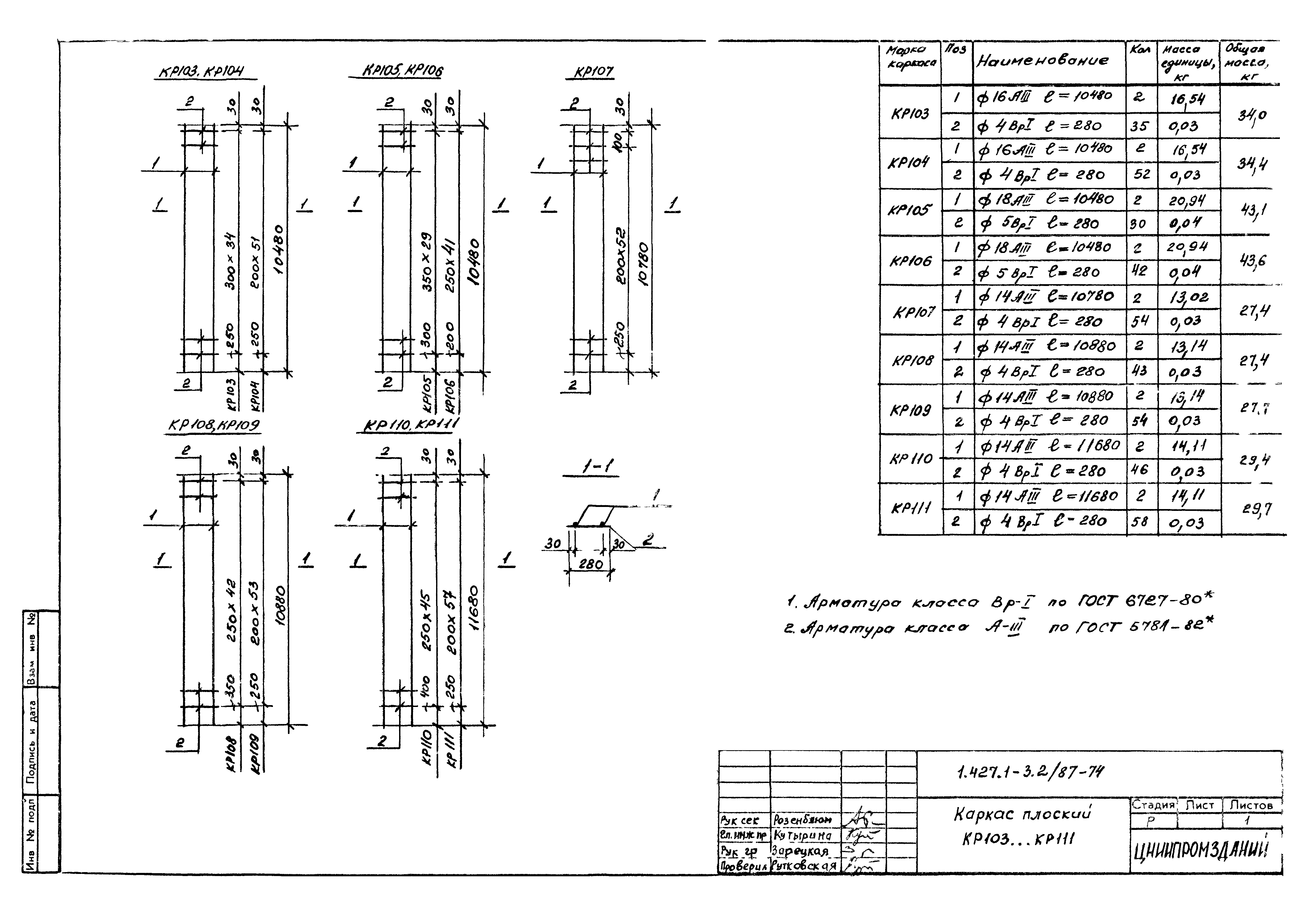
| Оглавление: | 1.427.1-3.2/87-1ТТ Технические требования 1.427.1-3.2/87-2 Каркас пространственный КП1…КП8 1.427.1-3.2/87-3 Каркас пространственный КП9…КП15 1.427.1-3.2/87-4 Каркас пространственный КП16…КП22 1.427.1-3.2/87-5 Каркас пространственный КП23…КП29 1.427.1-3.2/87-6 Каркас пространственный КП30…КП36 1.427.1-3.2/87-7 Каркас пространственный КП37…КП43 1.427.1-3.2/87-8 Каркас пространственный КП44…КП51 1.427.1-3.2/87-9 Каркас пространственный КП52…КП59 1.427.1-3.2/87-10 Каркас пространственный КП60…КП66 1.427.1-3.2/87-11 Каркас пространственный КП67…КП73 1.427.1-3.2/87-12 Каркас пространственный КП74…КП79 1.427.1-3.2/87-13 Каркас пространственный КП80…КП85 1.427.1-3.2/87-14 Каркас пространственный КП86…КП91 1.427.1-3.2/87-15 Каркас пространственный КП92…КП97 1.427.1-3.2/87-16 Каркас пространственный КП98…КП103 1.427.1-3.2/87-17 Каркас пространственный КП104…КП108 1.427.1-3.2/87-18 Каркас пространственный КП109…КП116 1.427.1-3.2/87-19 Каркас пространственный КП117…КП120 1.427.1-3.2/87-20 Каркас пространственный КП121…КП124 1.427.1-3.2/87-21 Каркас пространственный КП125…КП128 1.427.1-3.2/87-22 Каркас пространственный КП129…КП132 1.427.1-3.2/87-23 Каркас пространственный КП133…КП136 1.427.1-3.2/87-24 Каркас пространственный КП137…КП140 1.427.1-3.2/87-25 Каркас пространственный КП141…КП144 1.427.1-3.2/87-26 Каркас пространственный КП145…КП148 1.427.1-3.2/87-27 Каркас пространственный КП149…КП152 1.427.1-3.2/87-28 Каркас пространственный КП153…КП155 1.427.1-3.2/87-29 Каркас пространственный КП156, КП157 1.427.1-3.2/87-30 Каркас пространственный КП158…КП161 1.427.1-3.2/87-31 Каркас пространственный КП162…КП165 1.427.1-3.2/87-32 Каркас пространственный КП166…КП169 1.427.1-3.2/87-33 Каркас пространственный КП170…КП173 1.427.1-3.2/87-34 Каркас пространственный КП174...КП176 1.427.1-3.2/87-35 Каркас пространственный КП177…КП179 1.427.1-3.2/87-36 Каркас пространственный КП180…КП183 1.427.1-3.2/87-37 Каркас пространственный КП184…КП187 1.427.1-3.2/87-38 Каркас пространственный КП188…КП191 1.427.1-3.2/87-39 Каркас пространственный КП192…КП195 1.427.1-3.2/87-40 Каркас пространственный КП196…КП199 1.427.1-3.2/87-41 Каркас пространственный КП200…КП203 1.427.1-3.2/87-42 Каркас пространственный КП204…КП207 1.427.1-3.2/87-43 Каркас пространственный КП208…КП211 1.427.1-3.2/87-44 Каркас пространственный КП212…КП215 1.427.1-3.2/87-45 Каркас пространственный КП216…КП219 1.427.1-3.2/87-46 Каркас пространственный КП220…КП223 1.427.1-3.2/87-47 Каркас пространственный КП224…КП227 1.427.1-3.2/87-48 Каркас пространственный КП228…КП230 1.427.1-3.2/87-49 Каркас пространственный КП231…КП233 1.427.1-3.2/87-50 Каркас пространственный КП234…КП236 1.427.1-3.2/87-51 Каркас пространственный КП237…КП240 1.427.1-3.2/87-52 Каркас пространственный КП241…КП244 1.427.1-3.2/87-53 Каркас пространственный КП245…КП248 1.427.1-3.2/87-54 Каркас пространственный КП249…КП252 1.427.1-3.2/87-55 Каркас пространственный КП253…КП256 1.427.1-3.2/87-56 Каркас пространственный КП257…КП260 1.427.1-3.2/87-57 Каркас пространственный КП261…КП264 1.427.1-3.2/87-58 Каркас пространственный КП265…КП268 1.427.1-3.2/87-59 Каркас пространственный КП269…КП272 1.427.1-3.2/87-60 Каркас пространственный КП273…КП276 1.427.1-3.2/87-61 Каркас пространственный КП277…КП280 1.427.1-3.2/87-62 Каркас пространственный КП281…КП284 1.427.1-3.2/87-63 Каркас пространственный КП285…КП288 1.427.1-3.2/87-64 Каркас пространственный КП289…КП292 1.427.1-3.2/87-65 Каркас плоский КР1…КР12 1.427.1-3.2/87-66 Каркас плоский КР13…КР24 1.427.1-3.2/87-67 Каркас плоский КР25…КР36 1.427.1-3.2/87-68 Каркас плоский КР37…КР46 1.427.1-3.2/87-69 Каркас плоский КР47…КР57 1.427.1-3.2/87-70 Каркас плоский КР58…КР68 1.427.1-3.2/87-71 Каркас плоский КР69…КР78 1.427.1-3.2/87-72 Каркас плоский КР79…КР92 1.427.1-3.2/87-73 Каркас плоский КР93…КР102 1.427.1-3.2/87-74 Каркас плоский КР103…КР111 1.427.1-3.2/87-75 Каркас плоский КР112…КР122 1.427.1-3.2/87-76 Каркас плоский КР123…КР130 1.427.1-3.2/87-77 Каркас плоский КР131…КР139 1.427.1-3.2/87-78 Каркас плоский КР140…КР150 1.427.1-3.2/87-79 Каркас плоский КР151…КР162 1.427.1-3.2/87-80 Каркас плоский КР163…КР174 1.427.1-3.2/87-81 Каркас плоский КР175…КР185 1.427.1-3.2/87-82 Каркас плоский КР186…КР195 1.427.1-3.2/87-83 Каркас плоский КР196…КР207 1.427.1-3.2/87-84 Каркас плоский КР208…КР218 1.427.1-3.2/87-85 Каркас плоский КР219…КР229 1.427.1-3.2/87-86 Каркас плоский КР230…КР241 1.427.1-3.2/87-87 Каркас плоский КР242…КР253 1.427.1-3.2/87-88 Каркас плоский КР254…КР264 1.427.1-3.2/87-89 Каркас плоский КР265…КР274 1.427.1-3.2/87-90 Каркас плоский КР275…КР287 1.427.1-3.2/87-91 Каркас плоский КР288…КР295 1.427.1-3.2/87-92 Каркас плоский КР296…КР305 1.427.1-3.2/87-93 Каркас плоский КР306…КР315 1.427.1-3.2/87-94 Каркас плоский КР316…КР325 1.427.1-3.2/87-95 Каркас плоский КР326…КР333 1.427.1-3.2/87-96 Каркас плоский КР334…КР341 1.427.1-3.2/87-97 Каркас плоский КР342…КР350 1.427.1-3.2/87-98 Каркас плоский КР351…КР359 1.427.1-3.2/87-99 Каркас плоский КР360…КР368 1.427.1-3.2/87-100 Каркас плоский КР369…КР377 1.427.1-3.2/87-101 Каркас плоский КР378…КР386 1.427.1-3.2/87-102 Каркас плоский КР387…КР395 1.427.1-3.2/87-103 Каркас плоский КР396…КР404 1.427.1-3.2/87-104 Каркас плоский КР405…КР413 1.427.1-3.2/87-105 Каркас плоский КР414…КР423 1.427.1-3.2/87-106 Каркас плоский КР424…КР432 1.427.1-3.2/87-107 Каркас плоский КР433…КР441 1.427.1-3.2/87-108 Каркас плоский КР442…КР449 1.427.1-3.2/87-109 Каркас плоский КР450…КР457 1.427.1-3.2/87-110 Каркас плоский КР458…КР465 1.427.1-3.2/87-111 Каркас плоский КР466…КР473 1.427.1-3.2/87-112 Каркас плоский КР474…КР482 1.427.1-3.2/87-113 Каркас плоский КР483…КР491 1.427.1-3.2/87-114 Каркас плоский КР492…КР499 1.427.1-3.2/87-115 Каркас плоский КР500…КР508 1.427.1-3.2/87-116 Каркас плоский КР509…КР517 1.427.1-3.2/87-117 Каркас плоский КР518…КР526 1.427.1-3.2/87-118 Сетка С1…С5 1.427.1-3.2/87-119 Изделие закладное МН1 1.427.1-3.2/87-120 Изделие закладное МН2 1.427.1-3.2/87-121 Изделие закладное МН3 1.427.1-3.2/87-122 Изделие закладное МН4 1.427.1-3.2/87-123 Изделие закладное МН5 1.427.1-3.2/87-124 Изделие закладное МН6 1.427.1-3.2/87-125 Изделие закладное МН7; МН8 1.427.1-3.2/87-126 Изделие закладное МН9; МН10 1.427.1-3.2/87-127 Изделие закладное МН11; МН12 1.427.1-3.2/87-128 Изделие закладное МН13; МН14 1.427.1-3.2/87-129 Изделие закладное МН15; МН16 1.427.1-3.2/87-130 Изделие закладное МН17 1.427.1-3.2/87-131 Изделие закладное МН18 1.427.1-3.2/87-132 Изделие закладное МН19...МН27 1.427.1-3.2/87-133 Изделие закладное МН28...МН31 1.427.1-3.2/87-134 Изделие закладное МН32; МН36 1.427.1-3.2/87-135 Изделие закладное МН33 1.427.1-3.2/87-136 Изделие закладное МН34 1.427.1-3.2/87-137 Изделие закладное МН35 1.427.1-3.2/87-138 Стальной элемент колонны 1СФ32; 1СФ33; 1СФ37 1.427.1-3.2/87-139 Стальной элемент колонны 2СФ1; 2СФ2; 2СФ3 |
| Разработан: | АО ЦНИИпромзданий НИИЖБ |
| Утверждён: | 03.12.1987 Госстрой СССР (Государственный комитет Совета Министров СССР по делам строительства) (USSR Gosstroy АЧ-99) |
| Издан: | ЦИТП Госстроя СССР (CITP, Gosstroy (USSR) 1988 г. ) |
| Заменяет собой: |





















































































































































