Скачать Серия 1.464.2-25.93 Выпуск 1. Стальные конструкции фонарей с применением в покрытии стального профилированного настила высотой до 75 мм. Чертежи КМДата актуализации: 01.01.2021
|
| Обозначение: | Серия 1.464.2-25.93 |
| Обозначение англ: | Series 1.464.2-25.93 |
| Статус: | не определен законодательством |
| Название рус.: | Выпуск 1. Стальные конструкции фонарей с применением в покрытии стального профилированного настила высотой до 75 мм. Чертежи КМ |
| Дата добавления в базу: | 01.09.2013 |
| Дата актуализации: | 01.01.2021 |
| Дата введения: | 01.11.1993 |
| Дата окончания срока действия: | 30.06.2003 |
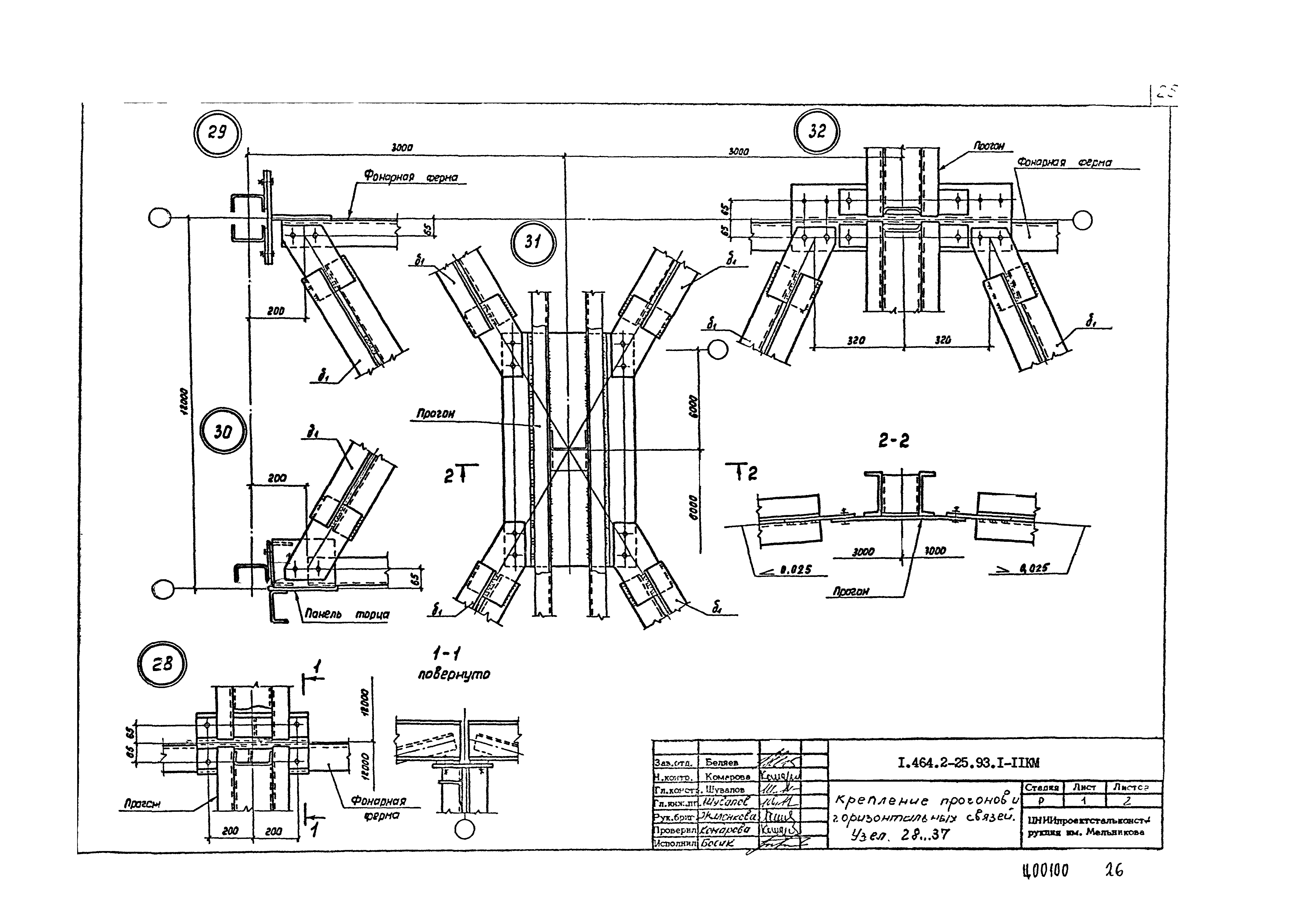
| Оглавление: | 1.464.2-25.93.1-ТТ Технические требования 1.464.2-25.93.1-01КМ Нагрузки 1.464.2-25.93.1-02КМ Схемы расположения конструкций фонаря. Таблица элементов 1.464.2-25.93.1-03КМ Фонарная панель (ФП-). Сортамент 1.464.2-25.93.1-04КМ Фонарная ферма (ФФ-). Сортамент 1.464.2-25.93.1-05КМ Панель торцов фонаря (ТП-). Сортамент 1.464.2-25.93.1-06КМ Фонарная панель. Узел 1...4 1.464.2-25.93.1-07КМ Фонарная ферма. Узел 5...11 1.464.2-25.93.1-08КМ Панель торцов фонаря. Узел 12...19 1.464.2-25.93.1-09КМ Вертикальные связи. Схемы и сортамент 1.464.2-25.93.1-10КМ Узел 20...27 1.464.2-25.93.1-11КМ Крепление прогонов и горизонтальных связей. Узел 28...37 1.464.2-25.93.1-12КМ Монтажный узел 38...43 1.464.2-25.93.1-13КМ Спецификация стали |
| Разработан: | ЦНИИПСК им. Мельникова |
| Утверждён: | 18.08.1993 Госстрой России (Russian Federation Gosstroy 9-3-3/179) |
| Заменяет собой: |
|






























