Скачать Серия 3.501.1-165 Выпуск 1-5. Пролетные строения длиной 12, 15 и 18 м сборные железобетонные предварительно напряженные, армированные канатами К-7. Железобетонные изделия. Рабочие чертежиДата актуализации: 01.01.2021
|
| Обозначение: | Серия 3.501.1-165 |
| Обозначение англ: | Series 3.501.1-165 |
| Статус: | не определен законодательством |
| Название рус.: | Выпуск 1-5. Пролетные строения длиной 12, 15 и 18 м сборные железобетонные предварительно напряженные, армированные канатами К-7. Железобетонные изделия. Рабочие чертежи |
| Дата добавления в базу: | 01.09.2013 |
| Дата актуализации: | 01.01.2021 |
| Дата введения: | 01.03.1995 |
| Дата окончания срока действия: | 30.06.2003 |
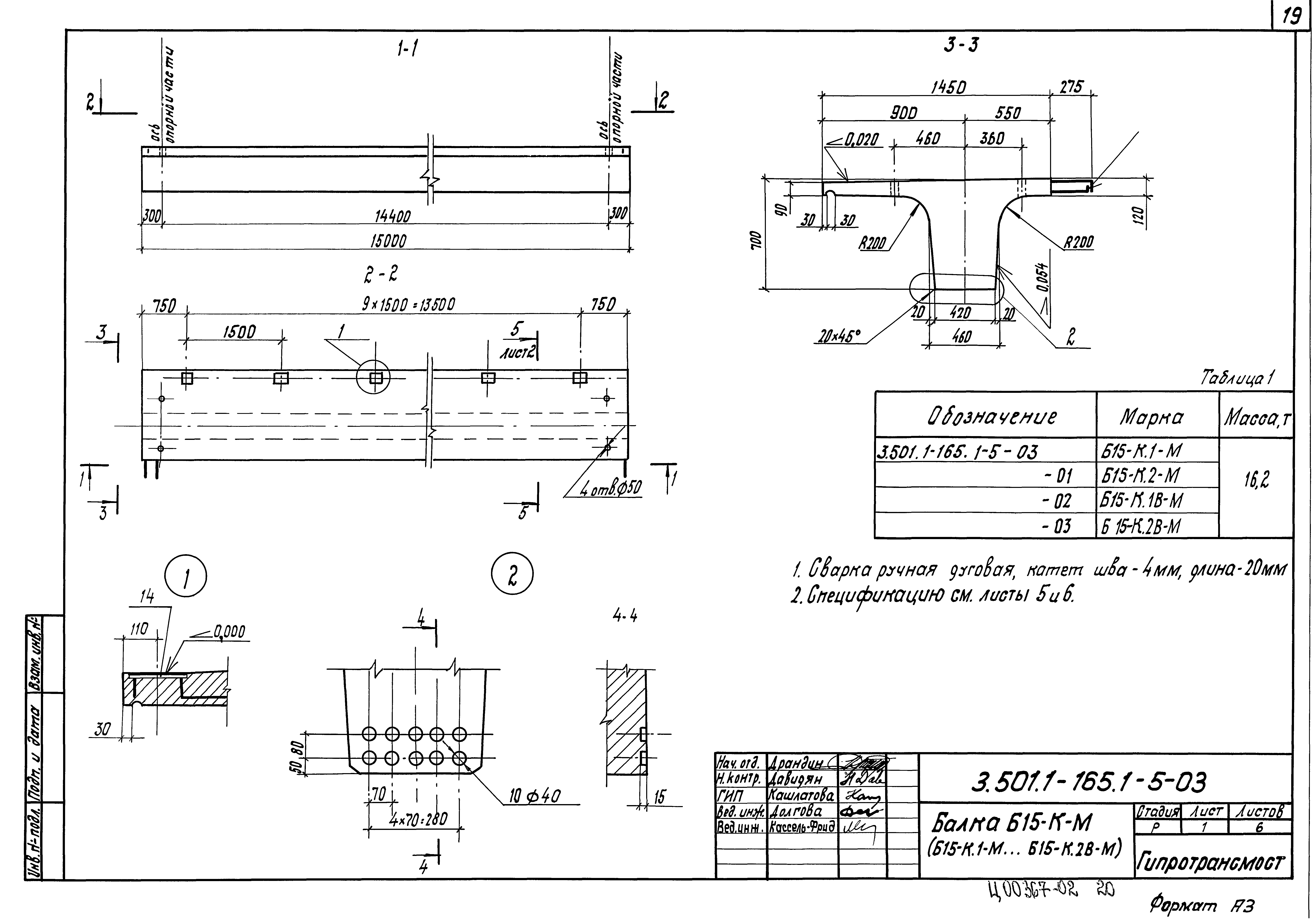
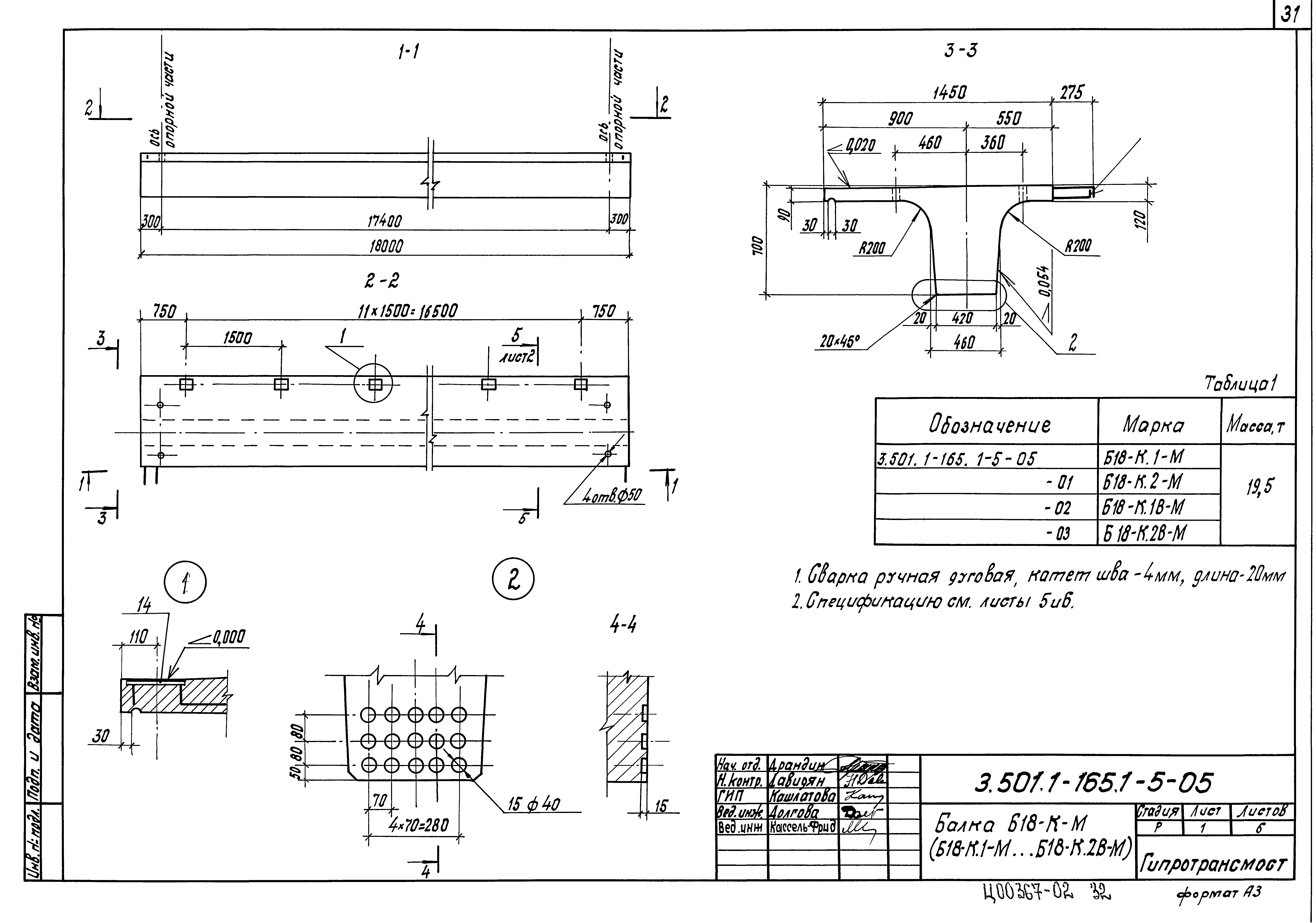
| Оглавление: | 3.501.1-165.1-5-ТО Техническое описание 3.501.1-165.1-5-01 Балка Б12-К-М-(Б12-К.1-М … Б12-К.2В-М) 3.501.1-165.1-5-02 Балка Б12-К-Д (Б12-К.1-Д … Б12-К.2В-Д) 3.501.1-165.1-5-03 Балка Б15-К-М (Б15-К.1-М … Б15-К.2В-М) 3.501.1-165.1-5-04 Балка Б15-К-Д (Б15-К.1-Д … Б15-К.2В-Д) 3.501.1-165.1-5-05 Балка Б18-К-М (Б18-К.1-М … Б18-К.2В-М) 3.501.1-165.1-5-06 Балка Б18-К-Д (Б18-К.1-Д … Б18-К.2В-Д) 3.501.1-165.1-5-07 Каркас пространственный КП (КП1 … КП6) 3.501.1-165.1-5-08 Сетка С (С1 … С2н) 3.501.1-165.1-5-09 Сетка С (С3, С4) 3.501.1-165.1-5-10 Сетка С (С5 … С8) 3.501.1-165.1-5-11 Сетка С (С9 … С12) 3.501.1-165.1-5-12 Сетка С (С13, С14) 3.501.1-165.1-5-13 Сетка С (С15 … С16н) 3.501.1-165.1-5-14 Сетка С (С17, С18) 3.501.1-165.1-5-15 Сетка С (С19 … С22) 3.501.1-165.1-5-16 Сетка С (С23 … С26) 3.501.1-165.1-5-17 Сетка С27 3.501.1-165.1-5-18 Изделие закладное МН (МН1, МН2) 3.501.1-165.1-5-19 Изделие закладное МН (МН3, МН4) 3.501.1-165.1-5-РС Ведомость расхода стали на элемент |
| Разработан: | Гипротрансмост |
| Утверждён: | 16.05.1988 МПС (Ministry of Railroads ЦУЭП-15/44/132) |
| Заменяет собой: |
|


























































