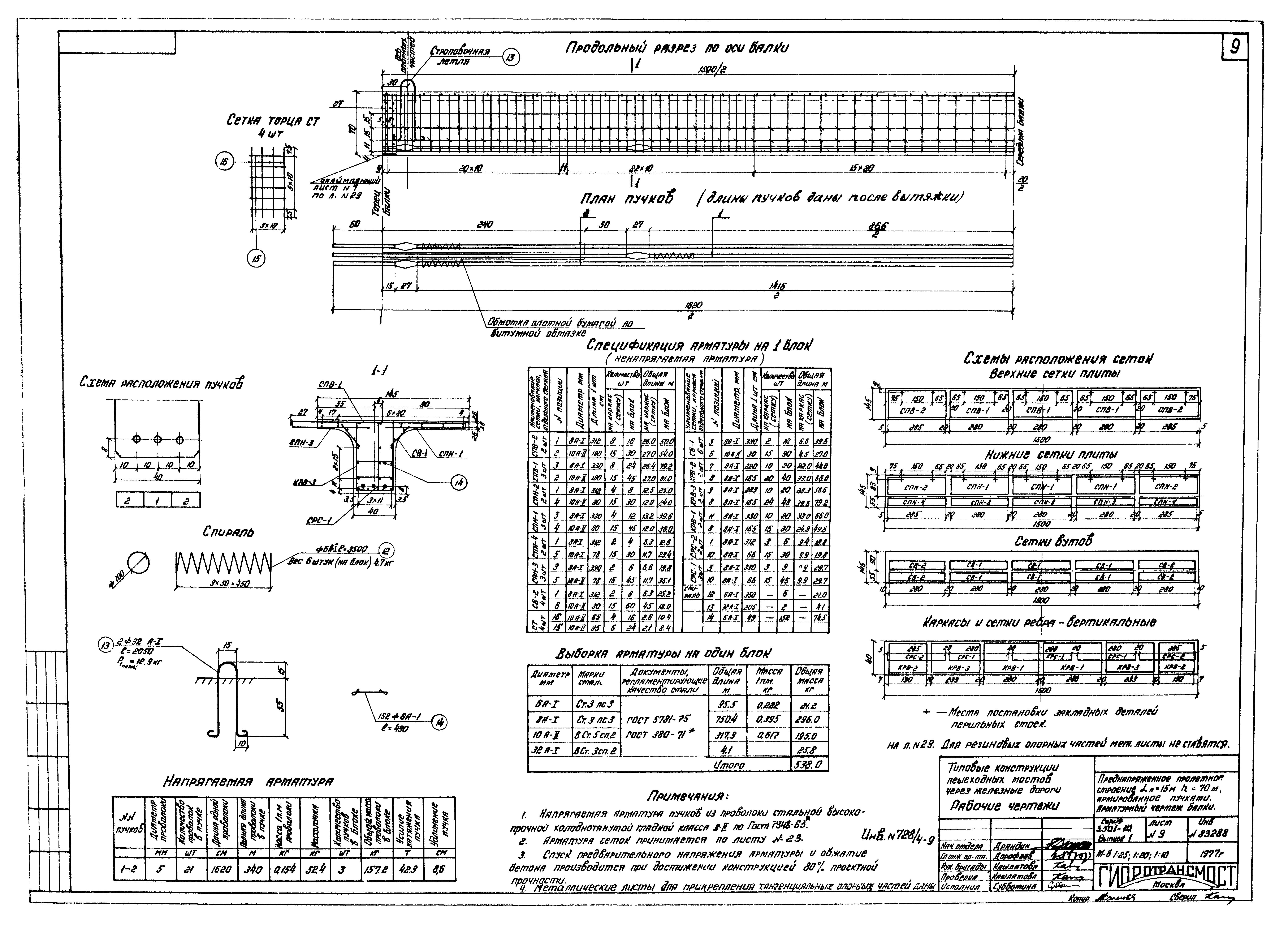
Скачать Серия 3.501-112 Выпуск 1. Пролетные строения пешеходных мостов длиной 12,15 и 18 м из преднапряженного железобетона с применением пучков и семипроволочных прядей. Рабочие чертежиДата актуализации: 01.01.2021 Серия 3.501-112
Выпуск 1. Пролетные строения пешеходных мостов длиной 12,15 и 18 м из преднапряженного железобетона с применением пучков и семипроволочных прядей. Рабочие чертежи| Обозначение: | Серия 3.501-112 | | Обозначение англ: | Series 3.501-112 | | Статус: | не действует | | Название рус.: | Выпуск 1. Пролетные строения пешеходных мостов длиной 12,15 и 18 м из преднапряженного железобетона с применением пучков и семипроволочных прядей. Рабочие чертежи | | Дата добавления в базу: | 01.09.2013 | | Дата актуализации: | 01.01.2021 | | Дата окончания срока действия: | 01.03.1995 | | Разработан: | Гипротрансмост
| | Утверждён: | 20.02.1978 Министерство путей сообщения СССР (USSR Ministry of Railroads П-5595)
|
                             
|