Скачать Серия 1.430.8-3/86 Перегородки из асбестоцементных экструзионных панелей для многоэтажных зданий промышленных предприятий. Рабочие чертежи
Дата актуализации: 01.01.2021
Серия 1.430.8-3/86
Перегородки из асбестоцементных экструзионных панелей для многоэтажных зданий промышленных предприятий. Рабочие чертежи
Обозначение:
Серия 1.430.8-3/86
Обозначение англ:
Series 1.430.8-3/86
Статус:
не действует
Название рус.:
Перегородки из асбестоцементных экструзионных панелей для многоэтажных зданий промышленных предприятий. Рабочие чертежи
Дата добавления в базу:
01.09.2013
Дата актуализации:
01.01.2021
Дата введения:
01.09.1987
Дата окончания срока действия:
01.05.1999
Область применения:
Настоящая серия содержит рабочие чертежи перегородок из асбестоцементных панелей, изготовляемых методом экструзии
Разработан:
ЦНИИпромзданий
Утверждён:
29.09.1986 Главоргпроект Госстроя СССР
(2/3-33)
29.09.1986 Госстрой СССР
(1.430.8-3/86)
Заменяет собой:
Серия 1.430.8-3 «Перегородки из асбестоцементных экструзионных панелей для многоэтажных зданий промышленных предприятий. Рабочие чертежи»
Нормативные ссылки:
СНиП 2.03.11-85 «Защита строительных конструкций от коррозии»
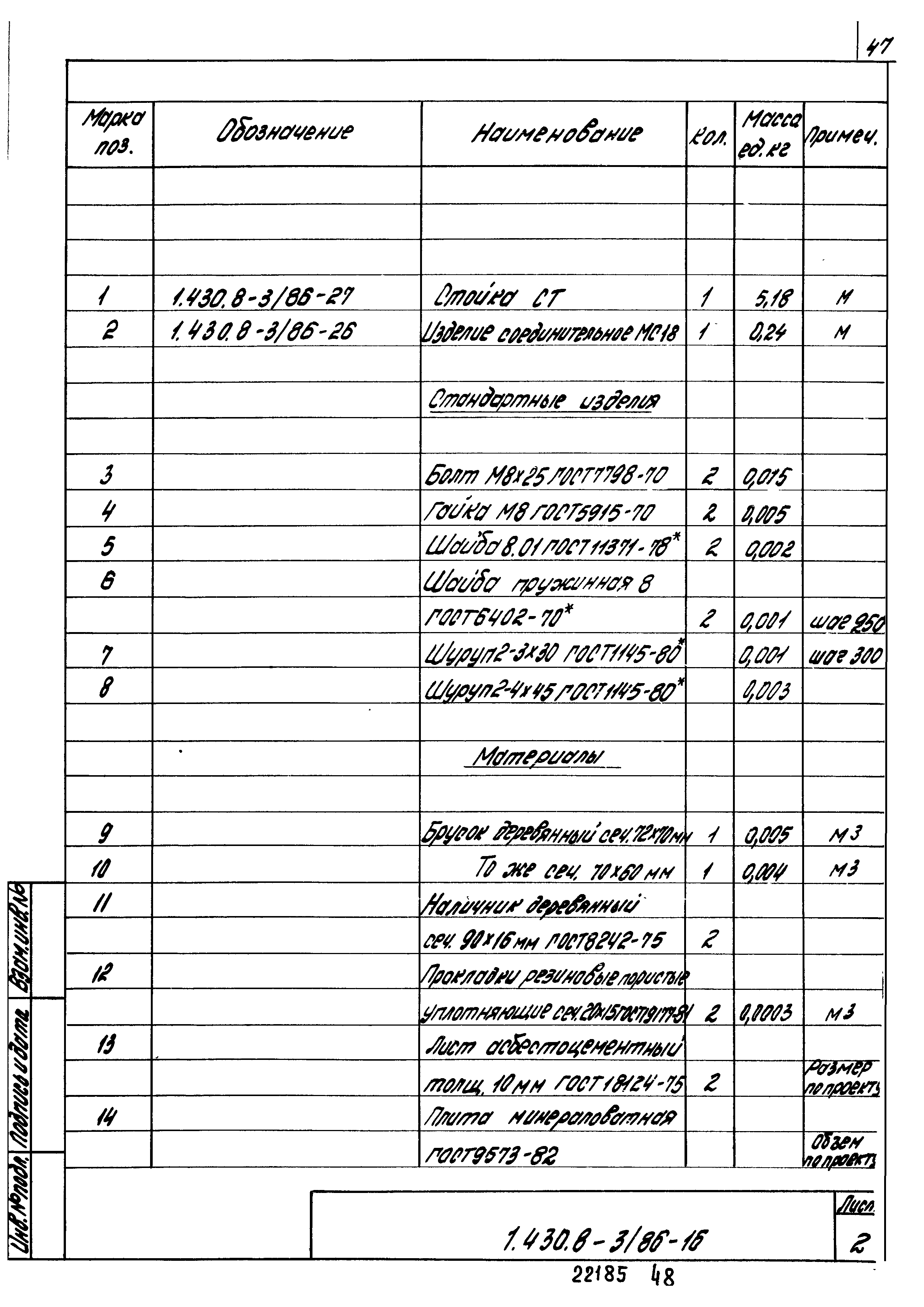
ГОСТ 9573-82 «Плиты теплоизоляционные из минеральной ваты на синтетическом связующем. Технические условия»
ГОСТ 23791-79 «Покрытие по стали фосфатное огнезащитное. Технические требования»
ГОСТ 25131-82 «Покрытие по стали вспучивающееся огнезащитное ВПМ-2. Технические требования»
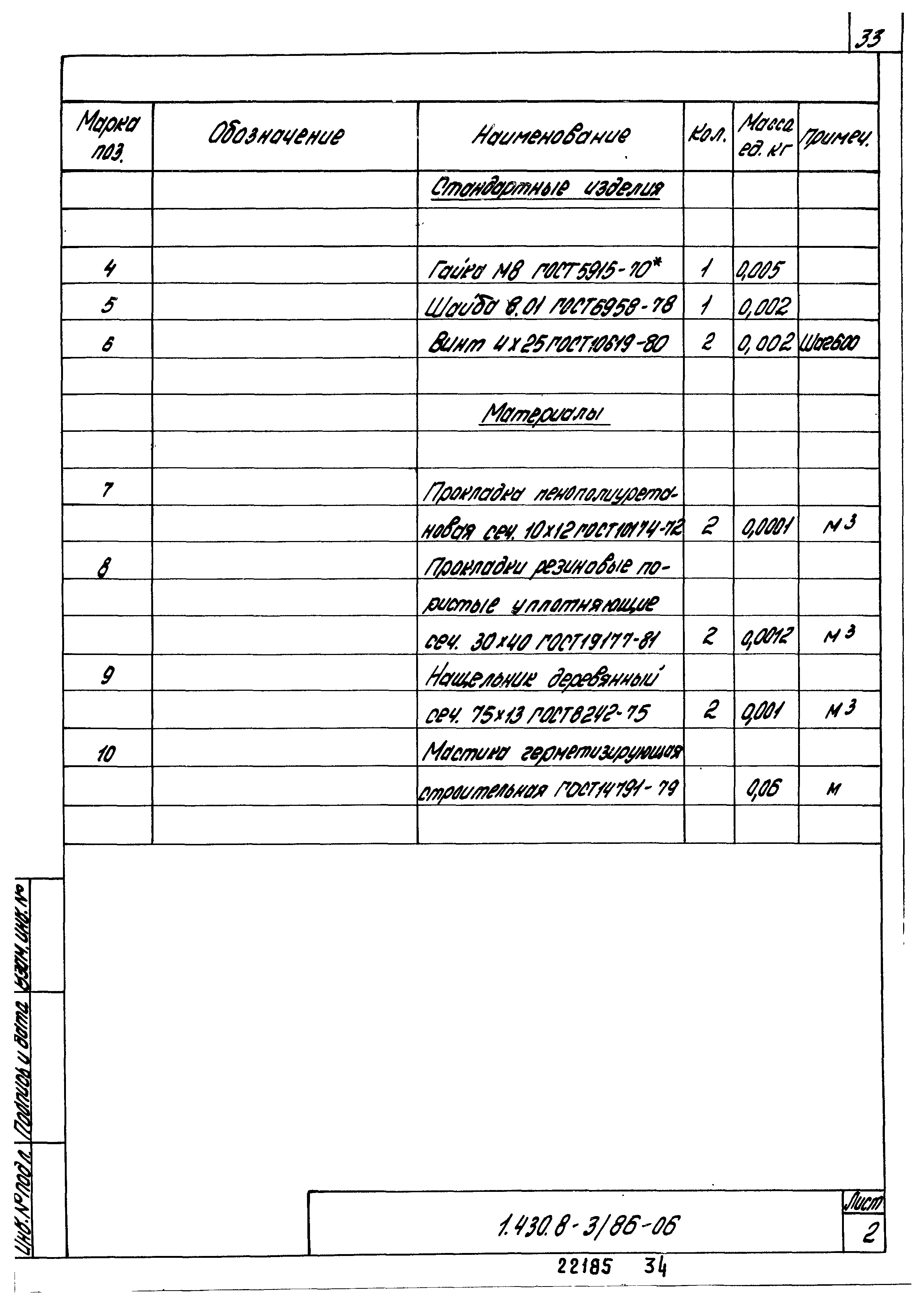
ГОСТ 14791-79 «Мастика герметизирующая нетвердеющая строительная. Технические условия»
ГОСТ 15836-79 «Мастика битумно-резиновая изоляционная. Технические условия»
ГОСТ 19177-81 «Прокладки резиновые пористые уплотняющие. Технические условия»
ГОСТ 4028-63 «Гвозди строительные. Конструкция и размеры»
ГОСТ 8278-83 «Швеллеры стальные гнутые равнополочные. Сортамент»
ГОСТ 9467-75 «Электроды покрытые металлические для ручной дуговой сварки конструкционных и теплоустойчивых сталей. Типы»
ГОСТ 19903-74 «Прокат листовой горячекатаный. Сортамент»
ГОСТ 5915-70 «Гайки шестигранные класса точности В. Конструкция и размеры»
ГОСТ 7798-70 «Болты с шестигранной головкой класса точности В. Конструкция и размеры»
ГОСТ 11371-78 «Шайбы. Технические условия»
ГОСТ 1144-80 «Шурупы с полукруглой головкой. Конструкция и размеры»
ГОСТ 1145-80 «Шурупы с потайной головкой. Конструкция и размеры»
ГОСТ 10619-80 «Винты самонарезающие с потайной головкой для металла и пластмассы. Конструкция и размеры»
ГОСТ 6402-70 «Шайбы пружинные. Технические условия»
ГОСТ 17475-80 «Винты с потайной головкой классов точности А и В. Конструкция и размеры»
ГОСТ 18124-75 «Листы асбестоцементные плоские»
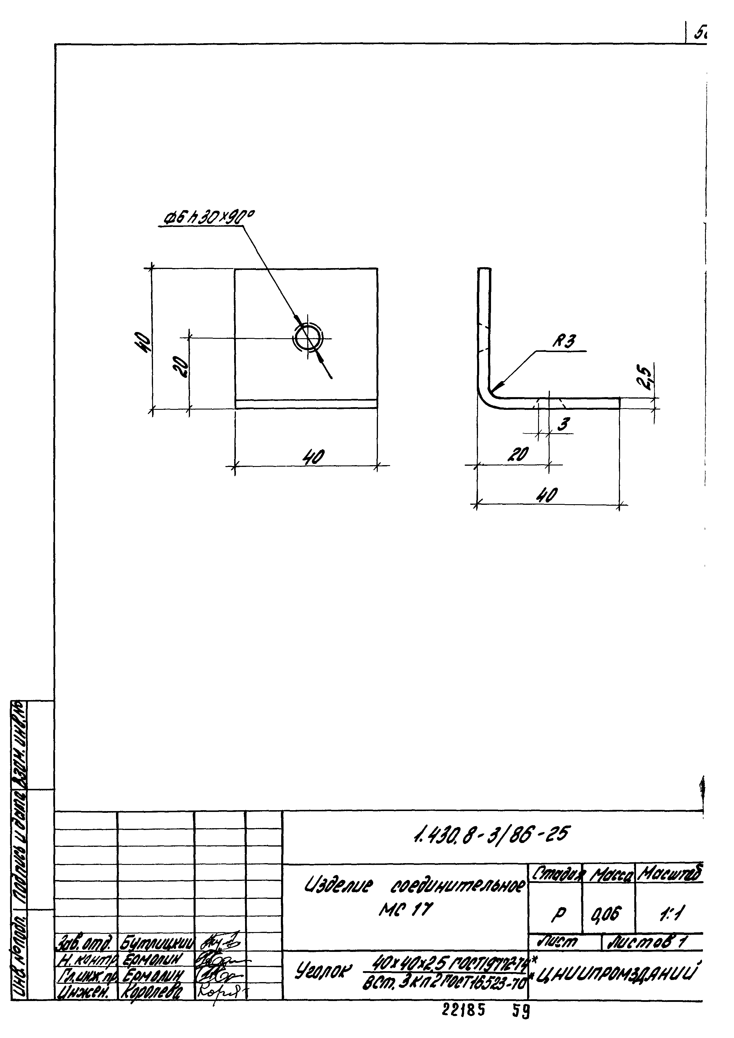
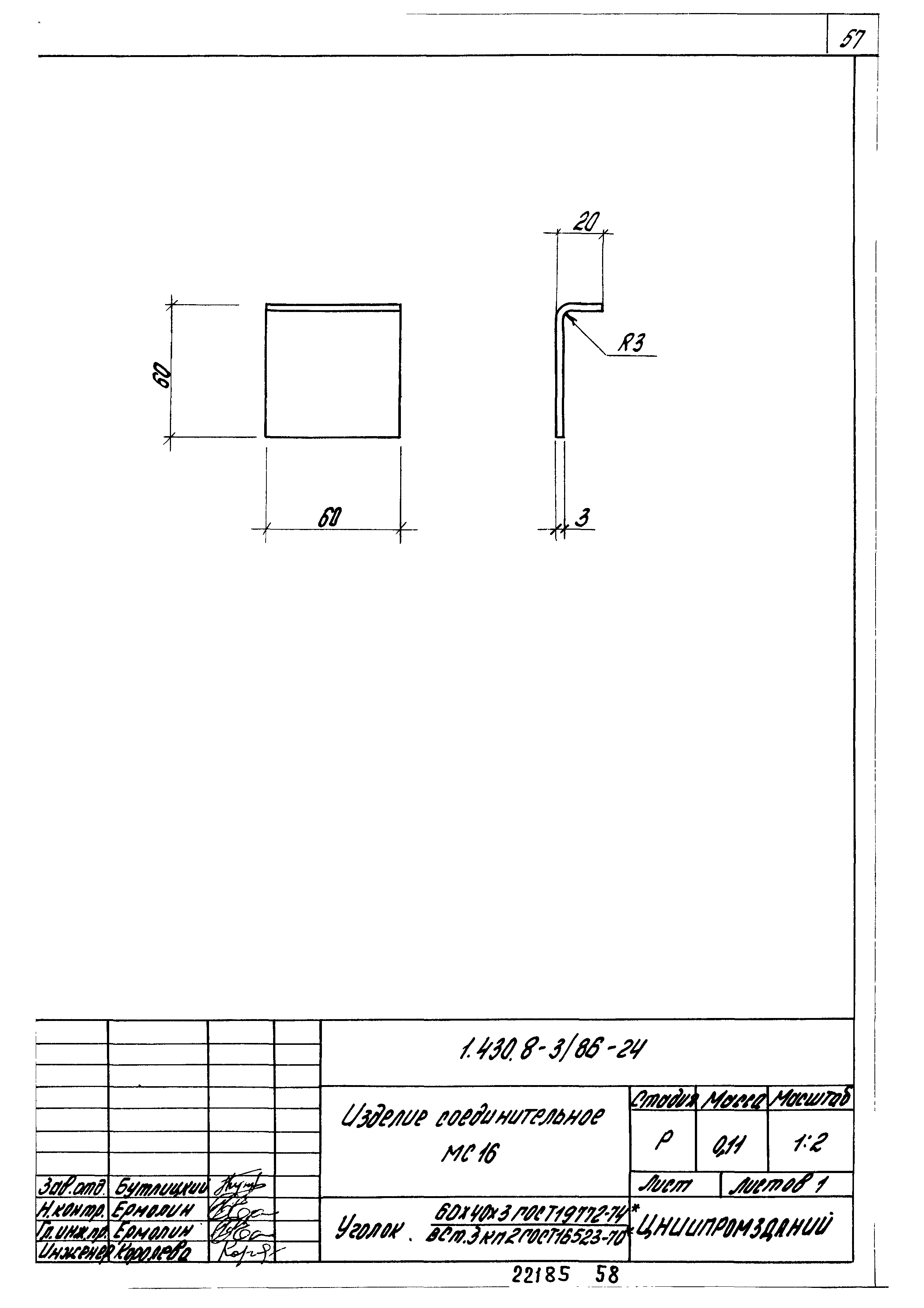
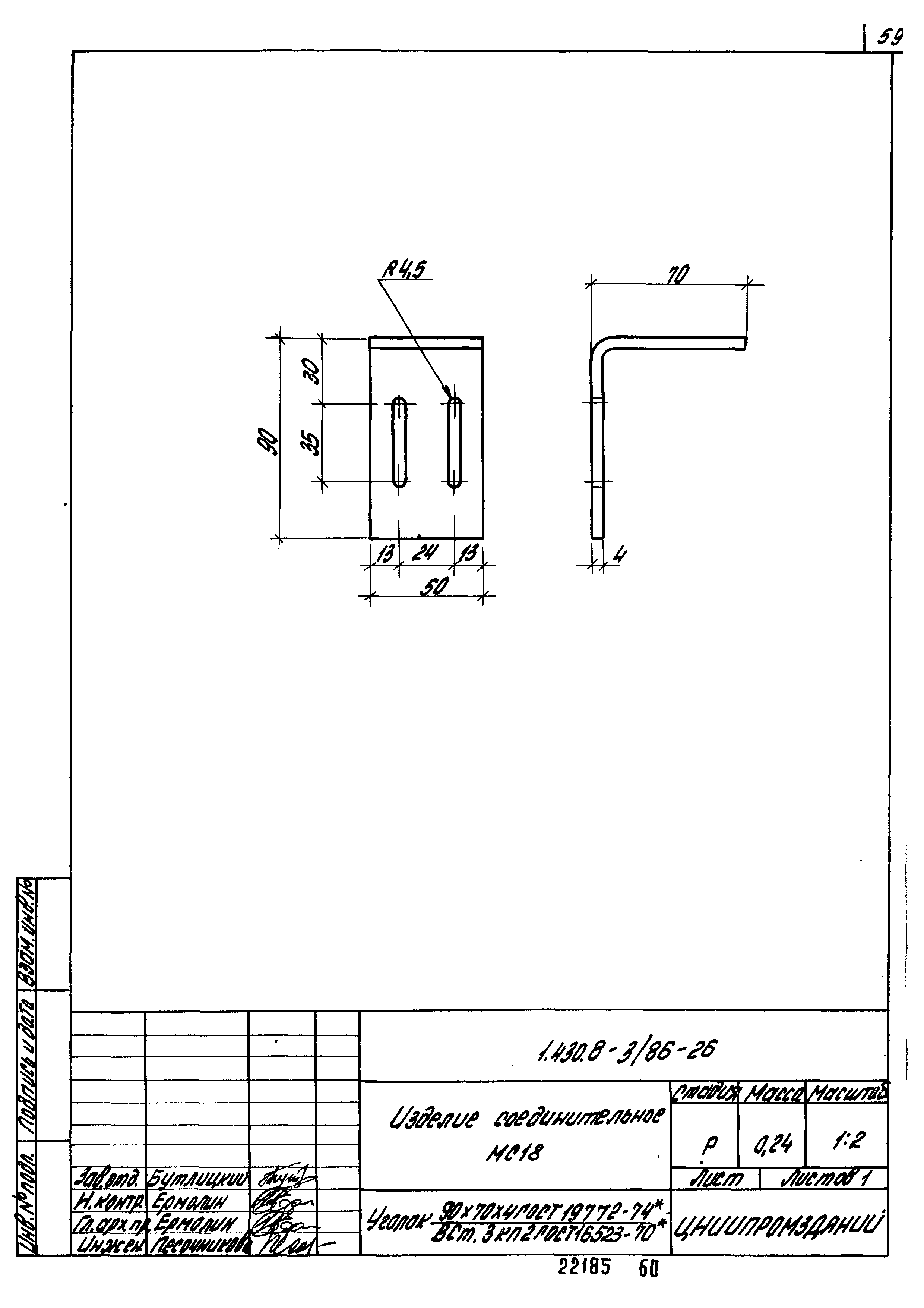
ГОСТ 19772-74 «Уголки стальные гнутые неравнополочные. Сортамент»
ГОСТ 6958-78 «Шайбы увеличенные. Классы точности А и С. Технические условия»
ГОСТ 10174-72 «Прокладки уплотняющие пенополиуретановые для окон и дверей»
СНиП II-6-74 «Нагрузки и воздействия»
Серия 1.000.8-1 «Панели /плиты/ асбестоцементные экструзионные для стен, покрытий и перегородок зданий различного назначения. Указания по применению и рабочие чертежи»
Серия 1.465.1-7/84 «Плиты покрытий железобетонные предварительно напряженные ребристые размером 1,5х6 м для одноэтажных зданий»
Серия 1.020-1/83 «Конструкции каркаса межвидового применения для многоэтажных общественных зданий, производственных и вспомогательных зданий промышленных предприятий»
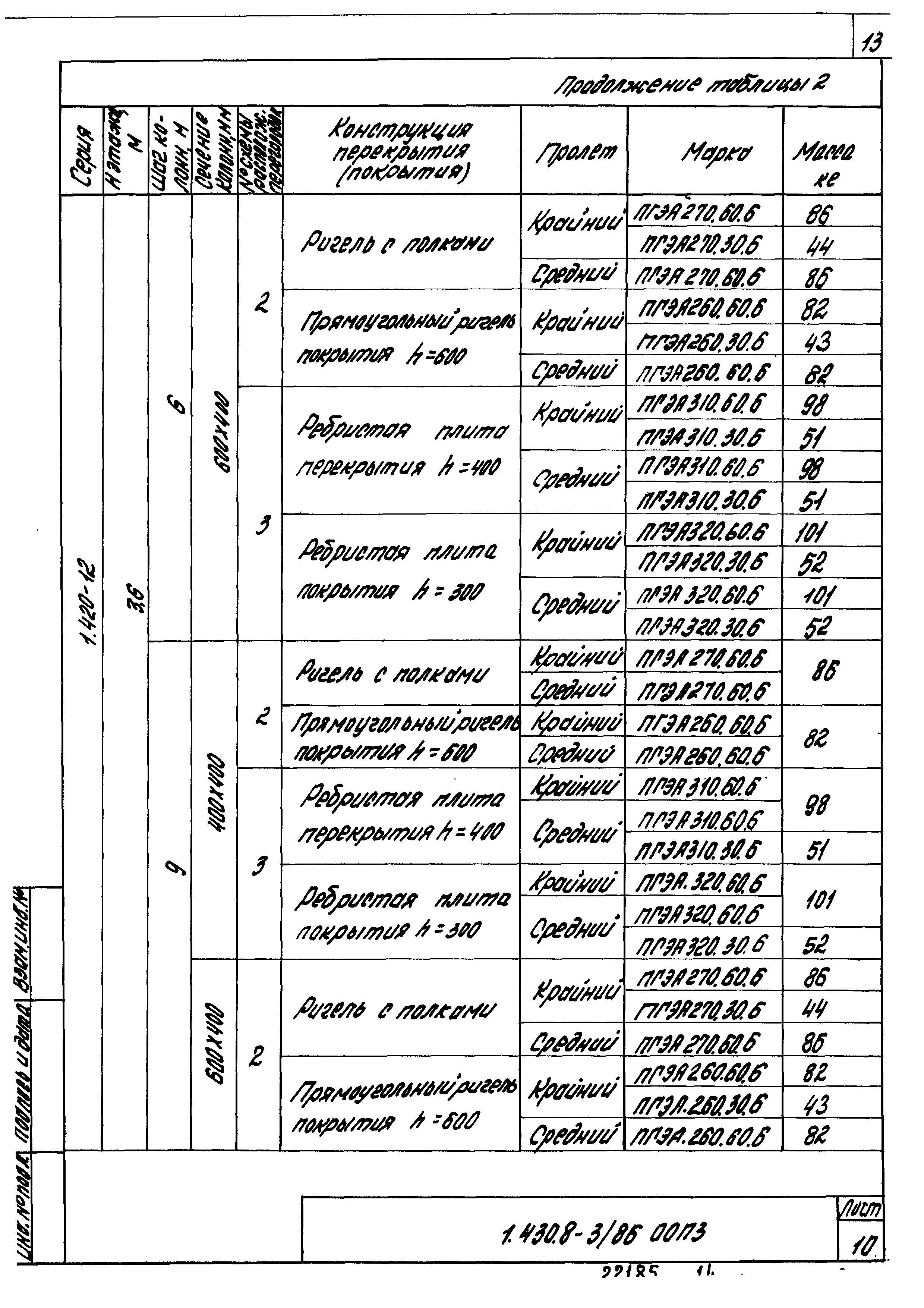
Серия 1.420-12 «Конструкции многоэтажных производственных зданий с сетками колонн 6х6 и 9х6 м под нагрузки соответственно до 2500 и 1500 кгс/кв. м»
Серия 1.442.1-2 «Плиты перекрытий железобетонные ребристые высотой 400 мм, укладываемые на ригели прямоугольного сечения»
ГОСТ 380-71 «Сталь углеродистая обыкновенного качества. Марки и общие технические требования»
Серия 1.042.1-4 «Сборные железобетонные ребристые плиты высотой 300 мм для перекрытий многоэтажных общественных зданий, производственных и вспомогательных зданий промышленных предприятий»
Серия 1.420-6 «Конструкции многоэтажных производственных зданий с сеткой колонн 12х6 м»