Скачать Серия 1.431-3 Выпуск 0. Материалы для проектированияДата актуализации: 01.01.2021
|
| Обозначение: | Серия
1.431-3 |
| Обозначение англ: | Series
1.431-3 |
| Статус: | заменен |
| Название рус.: | Выпуск 0. Материалы для проектирования |
| Дата добавления в базу: | 01.09.2013 |
| Дата актуализации: | 01.01.2021 |
| Область применения: | Серия содержит рабочие чертежи облегченных панельных перегородок одноэтажных производственных зданий |
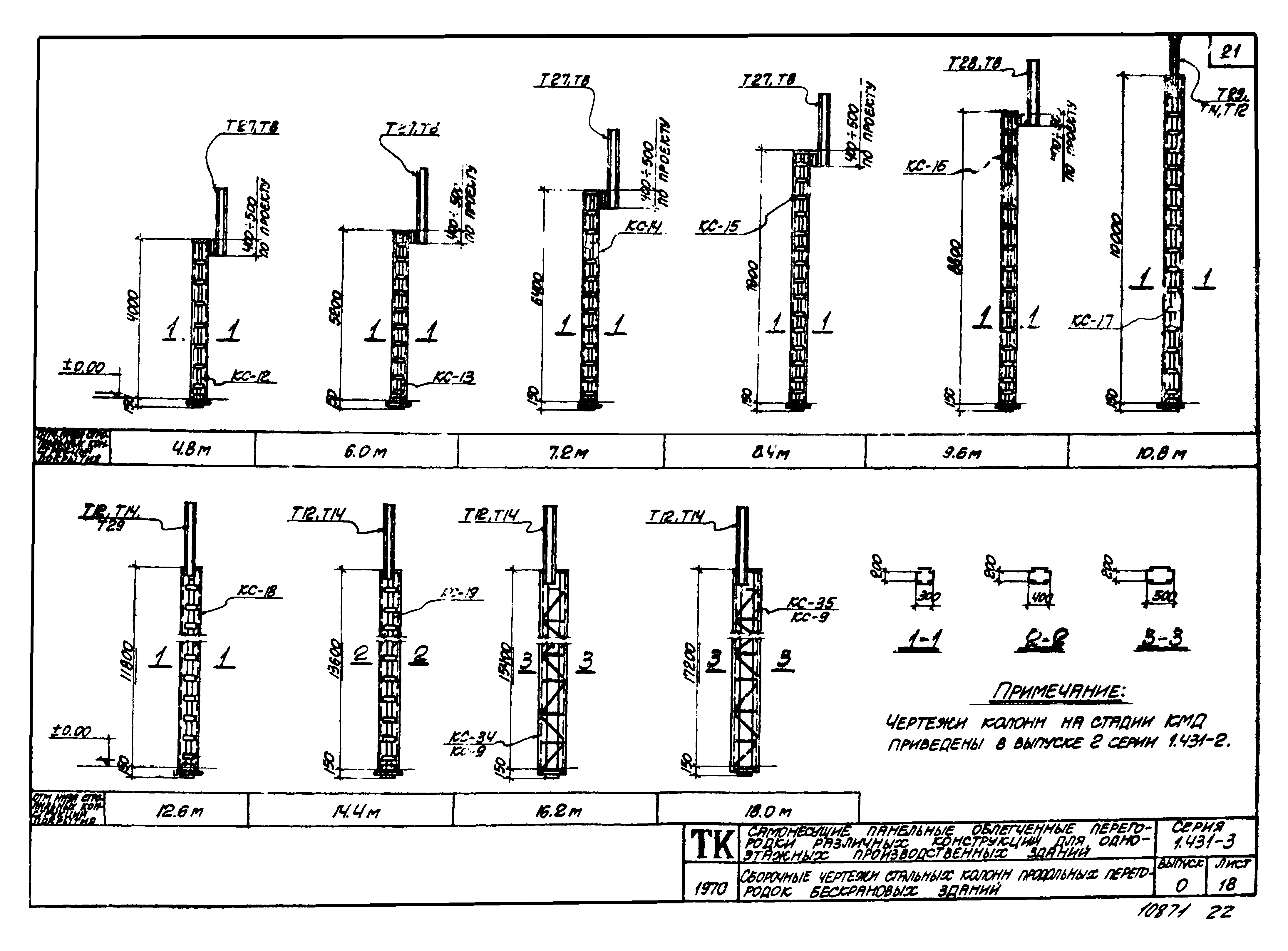
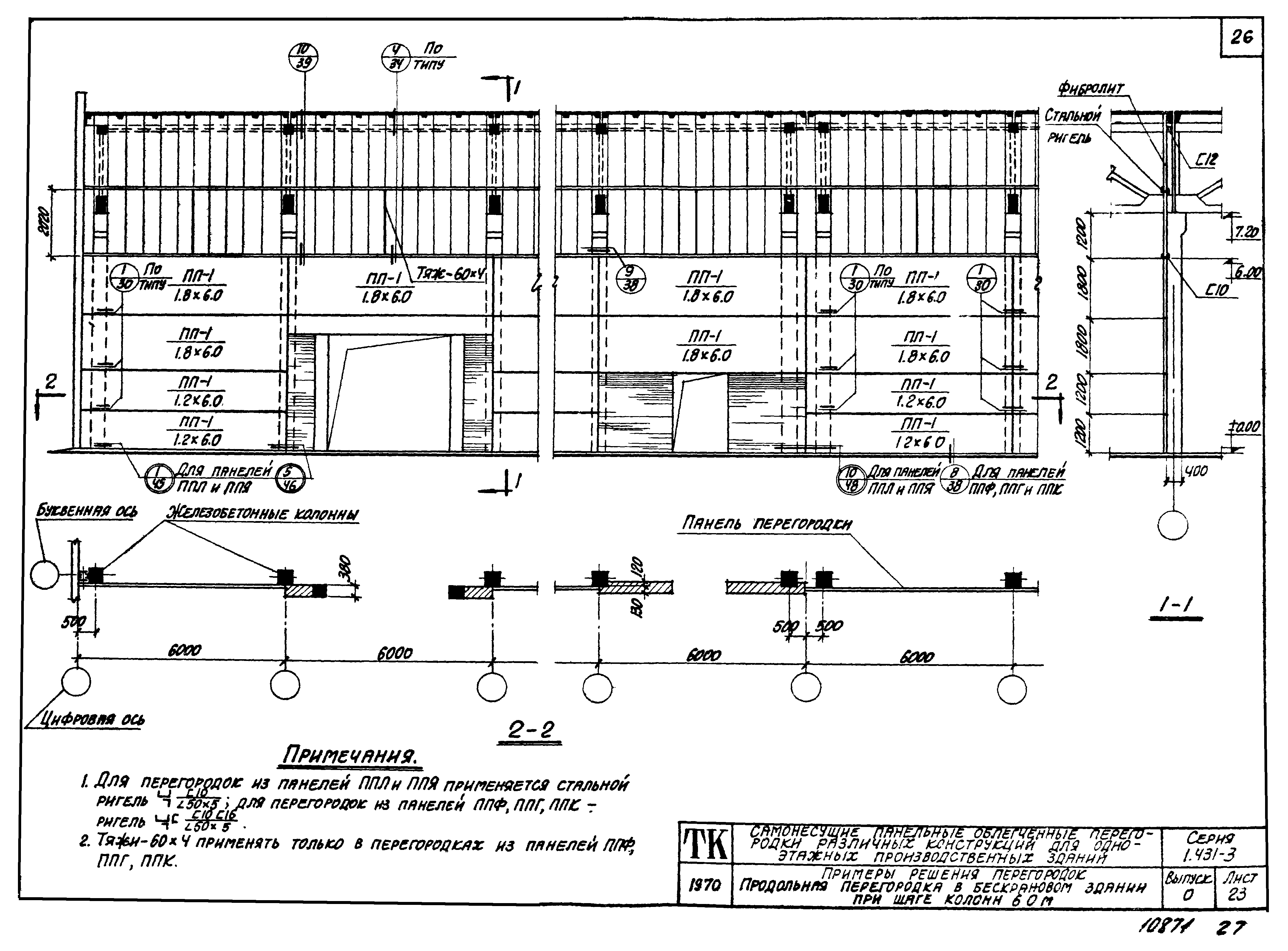
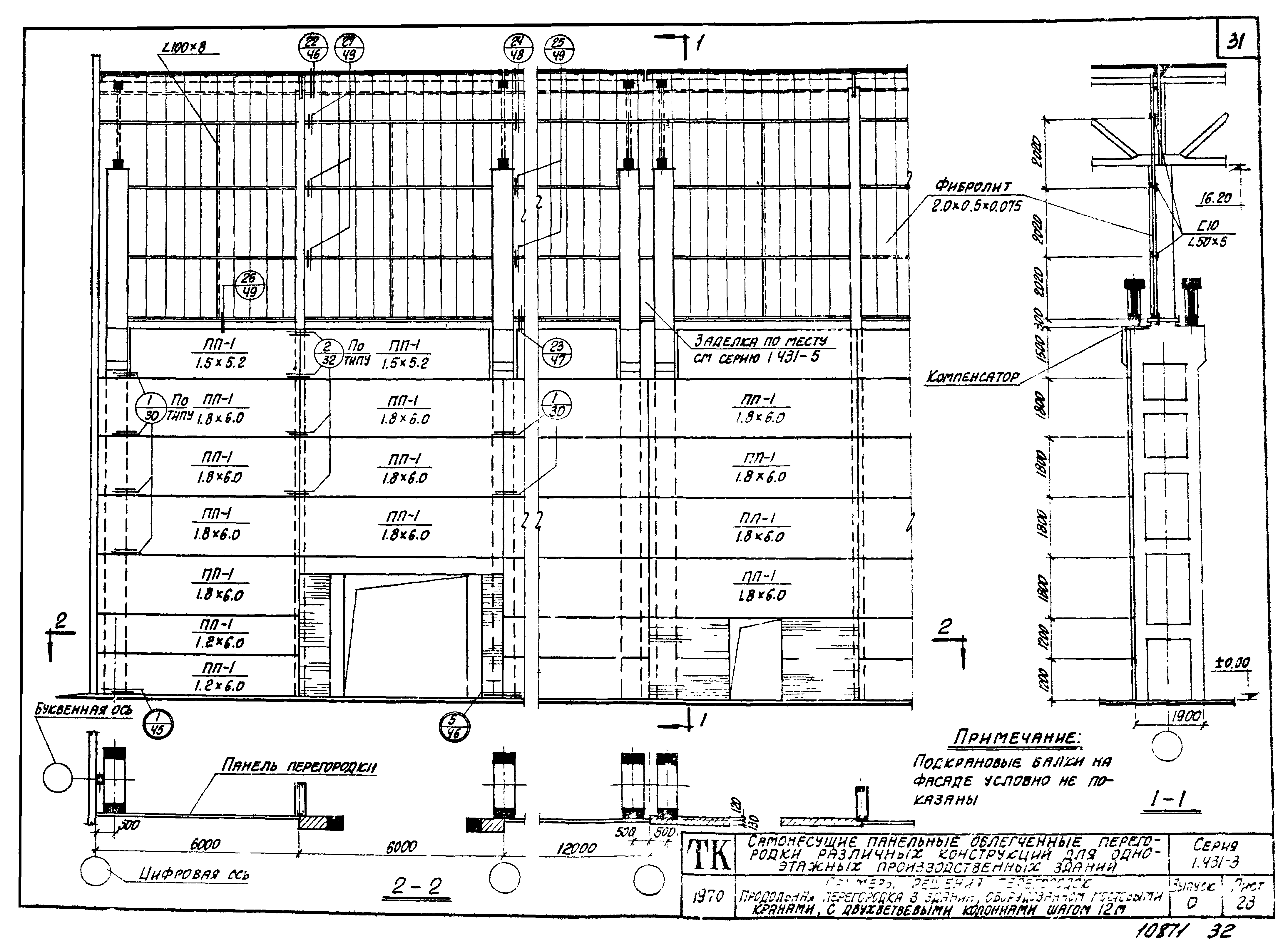
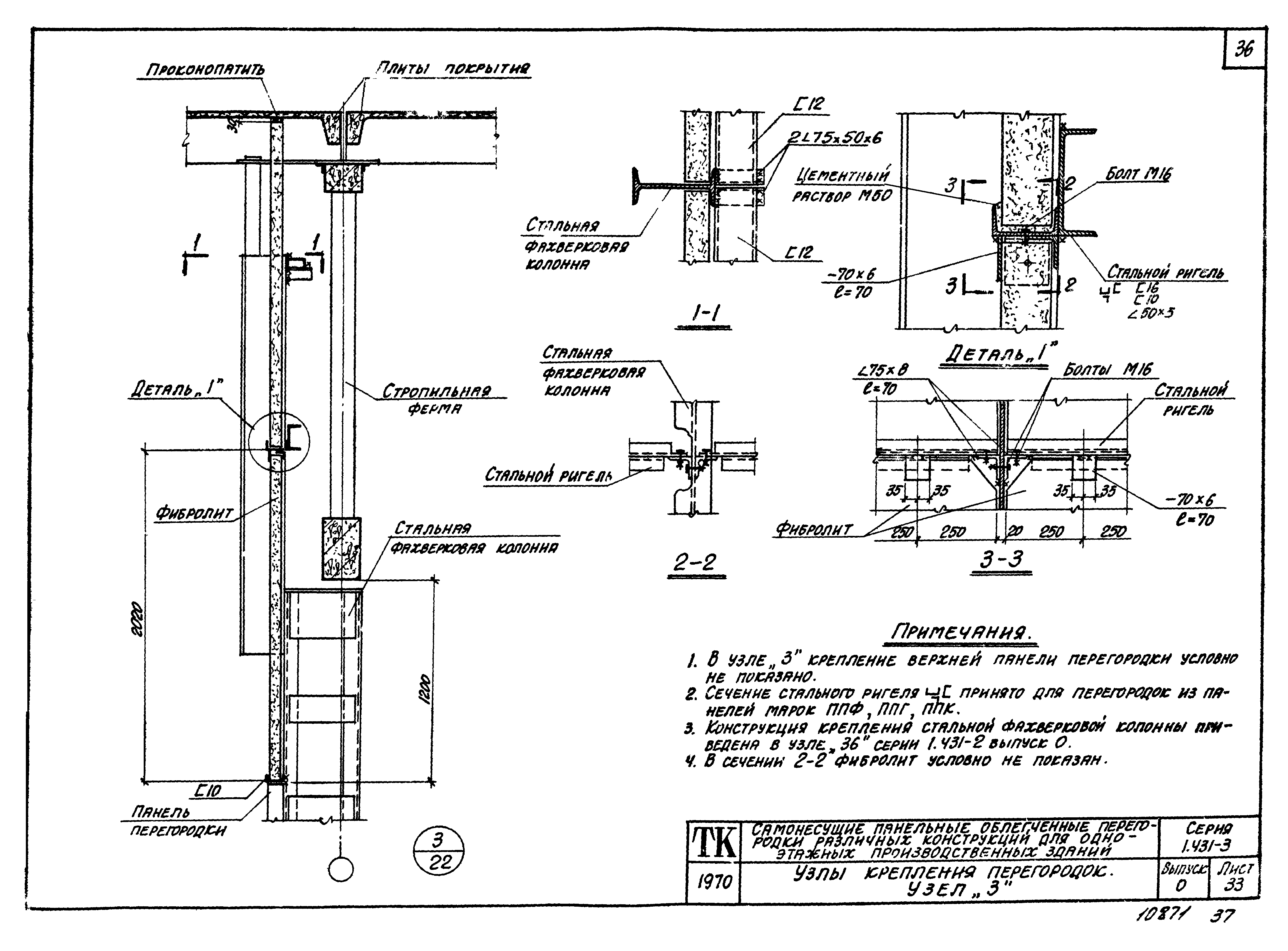
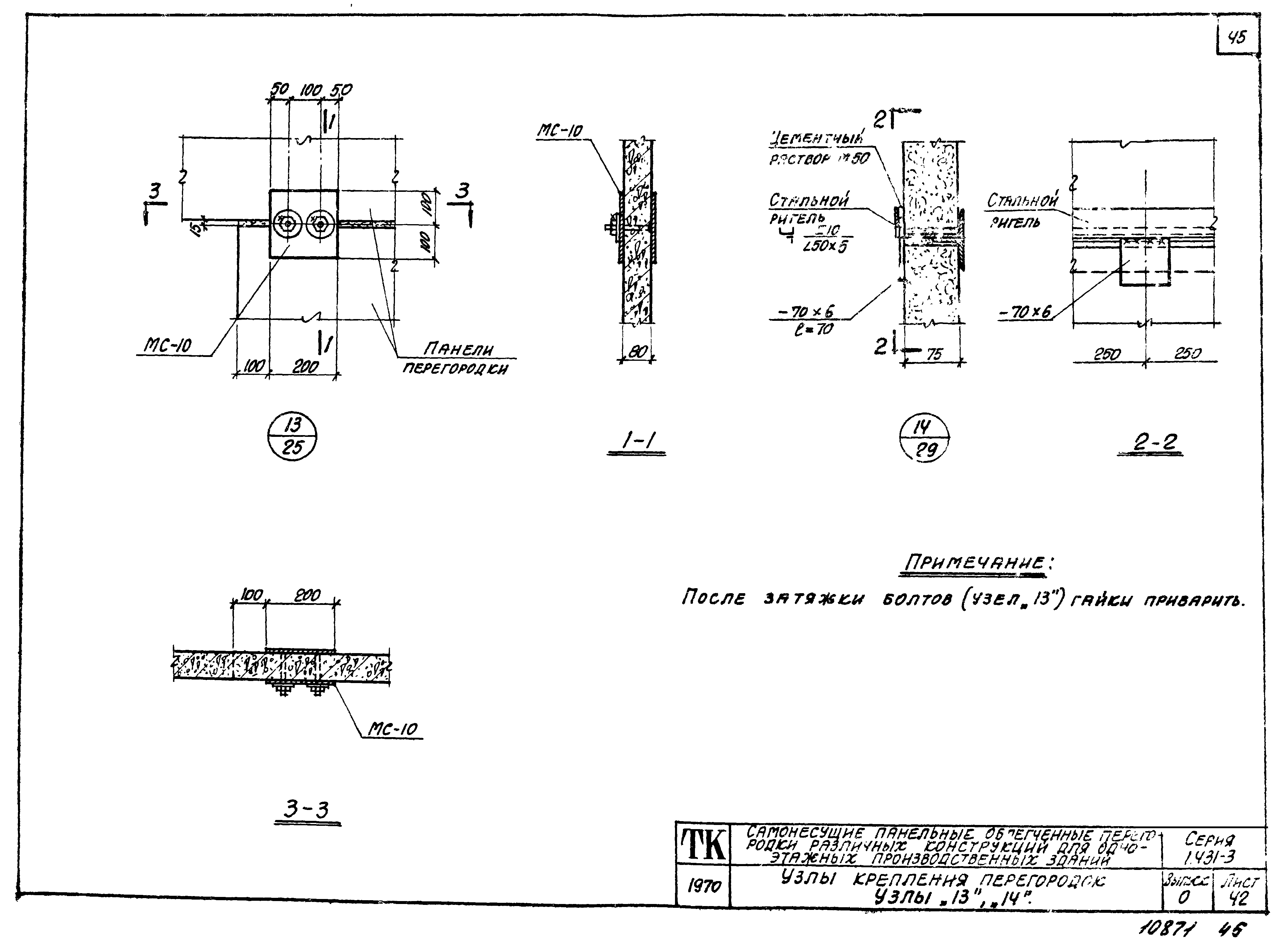
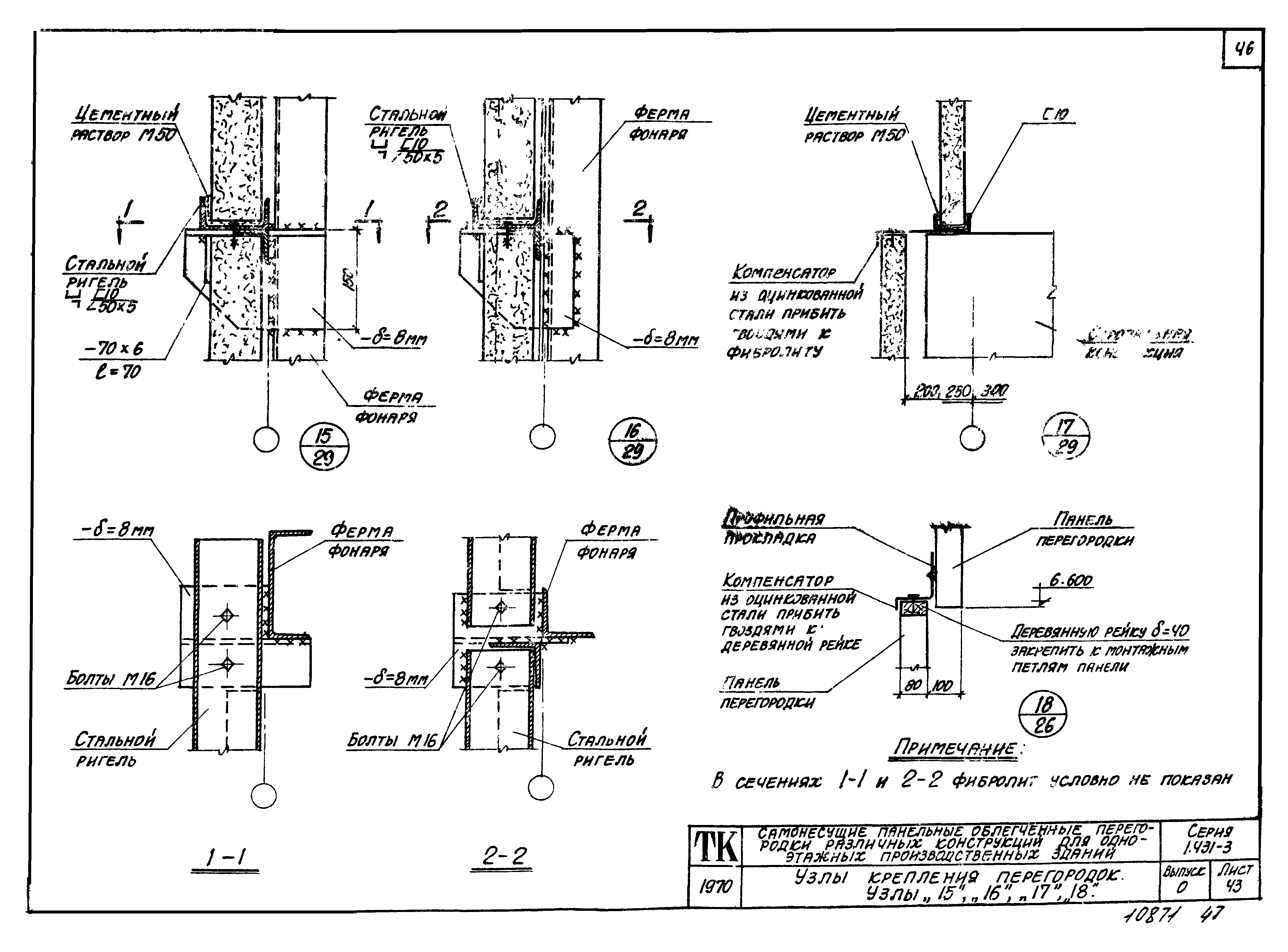
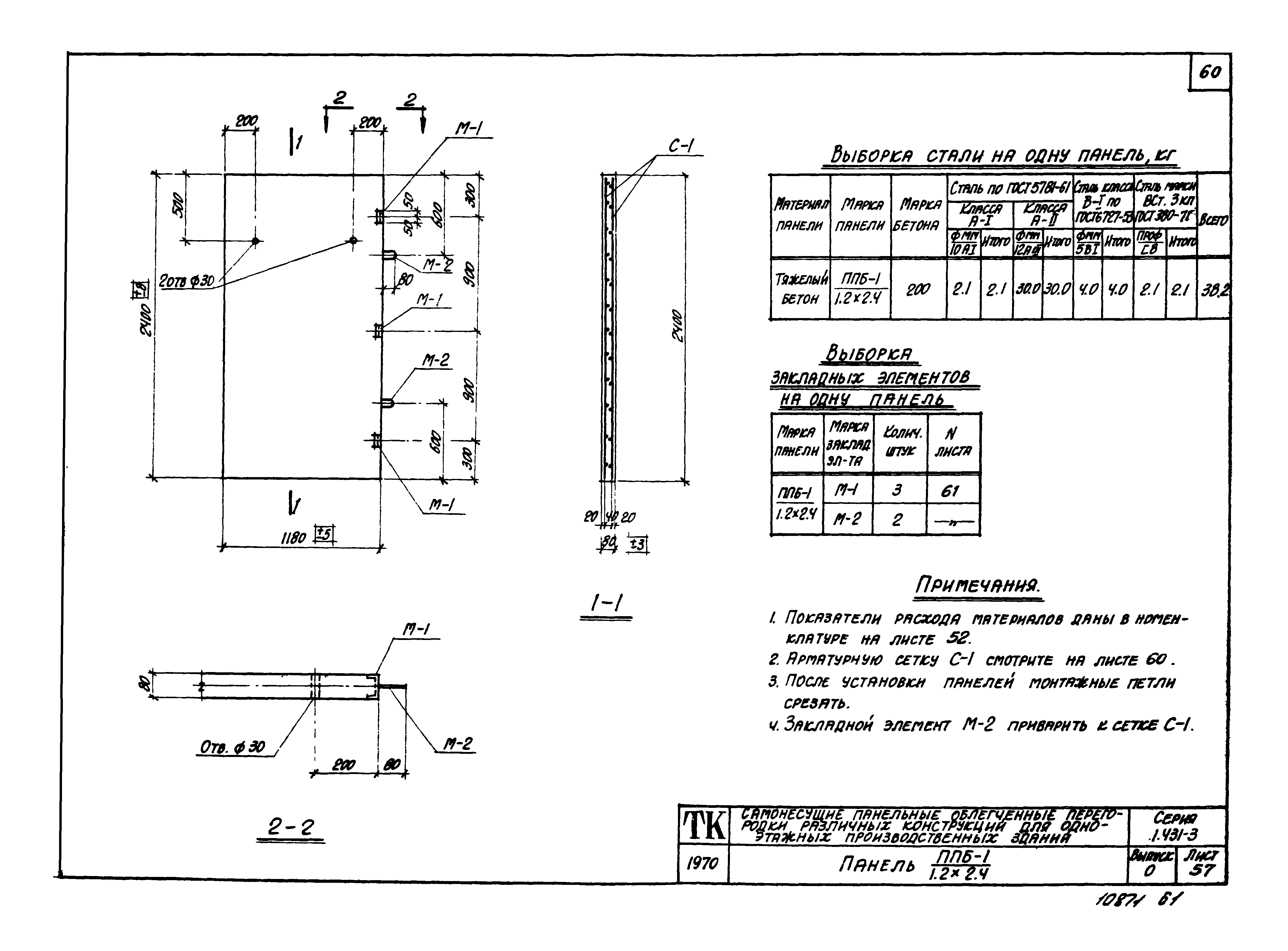
| Оглавление: | Содержание Пояснительная записка Таблица облицовочных материалов для панелей марок ППФ и ППК Таблица материалов, рекомендуемых для отделки панелей перегородок марок ППЛ,ППЯ,ППГ и ППК Номенклатура панелей из легких бетонов и показатели расхода материалов Номенклатура панелей из ячеистых бетонов и показатели расхода материалов Номенклатура фибролитовых панелей в деревянной обвязке, гипсобетонных и каркасно-обшивных панелей и показатели расхода материалов Ключ для подбора стальных колонн поперечных перегородок. Схема расположения колонн "А" и "Б" Ключи для подбора стальных колонн продольных перегородок бескрановых зданий и стальных стоек для крепления продольных перегородок к надколонникам двухветвевых колонн бескрановых зданий Ключи для подбора стальных колонн продольных перегородок зданий, оборудованных мостовыми кранами. Схемы развязок стальных колонн поперечных перегородок Сортамент стальных колонн поперечных и продольных перегородок Сортамент и расход стали на стальные колонны поперечных и продольных перегородок. Схемы развязок стальных колонн продольных перегородок Сборные чертежи стальных колонн поперечных перегородок Сборные чертежи стальных колонн продольных перегородок бескрановых зданий Сборные чертежи стальных колонн продольных перегородок зданий, оборудованных мостовыми кранами Примеры решения перегородок. Поперечная перегородка в бескрановом здании Примеры решения перегородок. Продольная перегородка в бескрановом здании при шаге колонн 6.0 м Примеры решения перегородок. Продольная перегородка в бескрановом здании при шаге колонн 12 м Примеры решения перегородок. Поперечная перегородка в здании, оборудованном мостовыми кранами Примеры решения перегородок. Продольная перегородка в здании, оборудованном мостовыми кранами, с прямоугольными колоннами шагом 12 м Примеры решения перегородок. Продольная перегородка в здании, оборудованном мостовыми кранами, с двухветвевыми колоннами шагом 12 м Конструктивные схемы перегородок в пределах светоаэрационных фонарей Узлы крепления перегородок. Узел "1". Деталь "1". Сечение 1-1 Узлы крепления перегородок. Детали "2","3". Сечения 2-2,3-3 Узлы крепления перегородок. Узел "2" Узлы крепления перегородок. Узел "3" Узлы крепления перегородок. Узел "4". Деталь "1". Сечения 1-1,2-2 Узлы крепления перегородок. Детали "2","3". Сечения 3-3÷5-5 Узлы крепления перегородок. Узлы "5","7" Узлы крепления перегородок. Узел "6" Узлы крепления перегородок. Узлы "8","9" Узлы крепления перегородок. Узел "10". Деталь "А" Узлы крепления перегородок. Деталь "Б" узла "10". Узел "11" Узлы крепления перегородок. Узел "12" Узлы крепления перегородок. Узлы "13","14" Узлы крепления перегородок. Узлы "15","16","17","18" Узлы крепления перегородок. Узлы "19","20" Узлы крепления перегородок. Узел "21" Узлы крепления перегородок. Узел "22" Узлы крепления перегородок. Узел "23" Узлы крепления перегородок. Узел "24" Узлы крепления перегородок. Узлы "25","26","27" Конструкции швов панельной и фибролитовой части перегородок Детали устройства проемов ворот и дверей Приложение 1. Вариант решения дверных проемов с применением простеночных панелей Номенклатура простеночных панелей из тяжелого бетона и показатели расхода материалов Схемы 1,2,3,4,5 решения дверных проемов Узлы крепления панелей. Узел "1". Деталь "1" Узлы крепления панелей. Узлы "2","4" Узлы крепления панелей. Узлы "3","5","6" Панель ППБ-1/1.2х2.4 Панель ППБ-1/1.5х2.4 Панель ППБ-1/0.7х2.4 Арматурные сетки С-1,С-2,С-3 Закладные элементы М-1,М-2 Соединительные элементы МС-1,МС-2,МС-5,МС-6,МС-8÷МС-10 Спецификация соединительных элементов МС-1÷МС-10 |
| Разработан: | ЦНИИпромзданий Харьковский Промстройниипроект |
| Утверждён: | 01.03.1972 Госстрой СССР (Государственный комитет Совета Министров СССР по
делам строительства) (USSR Gosstroy 2/2 73) |
| Чем заменён: | |
| Нормативные ссылки: |
|


































































