Скачать Серия 1.431-6 Кирпичные перегородки для одноэтажных и многоэтажных производственных зданий. Материалы для проектированияДата актуализации: 01.01.2021
|
| Обозначение: | Серия 1.431-6 |
| Обозначение англ: | Series 1.431-6 |
| Статус: | заменен |
| Название рус.: | Кирпичные перегородки для одноэтажных и многоэтажных производственных зданий. Материалы для проектирования |
| Дата добавления в базу: | 01.09.2013 |
| Дата актуализации: | 01.01.2021 |
| Дата окончания срока действия: | 01.08.1988 |
| Область применения: | Серия является материалом для проектирования самонесущих кирпичных перегородок одноэтажных и многоэтажных производственных зданий |
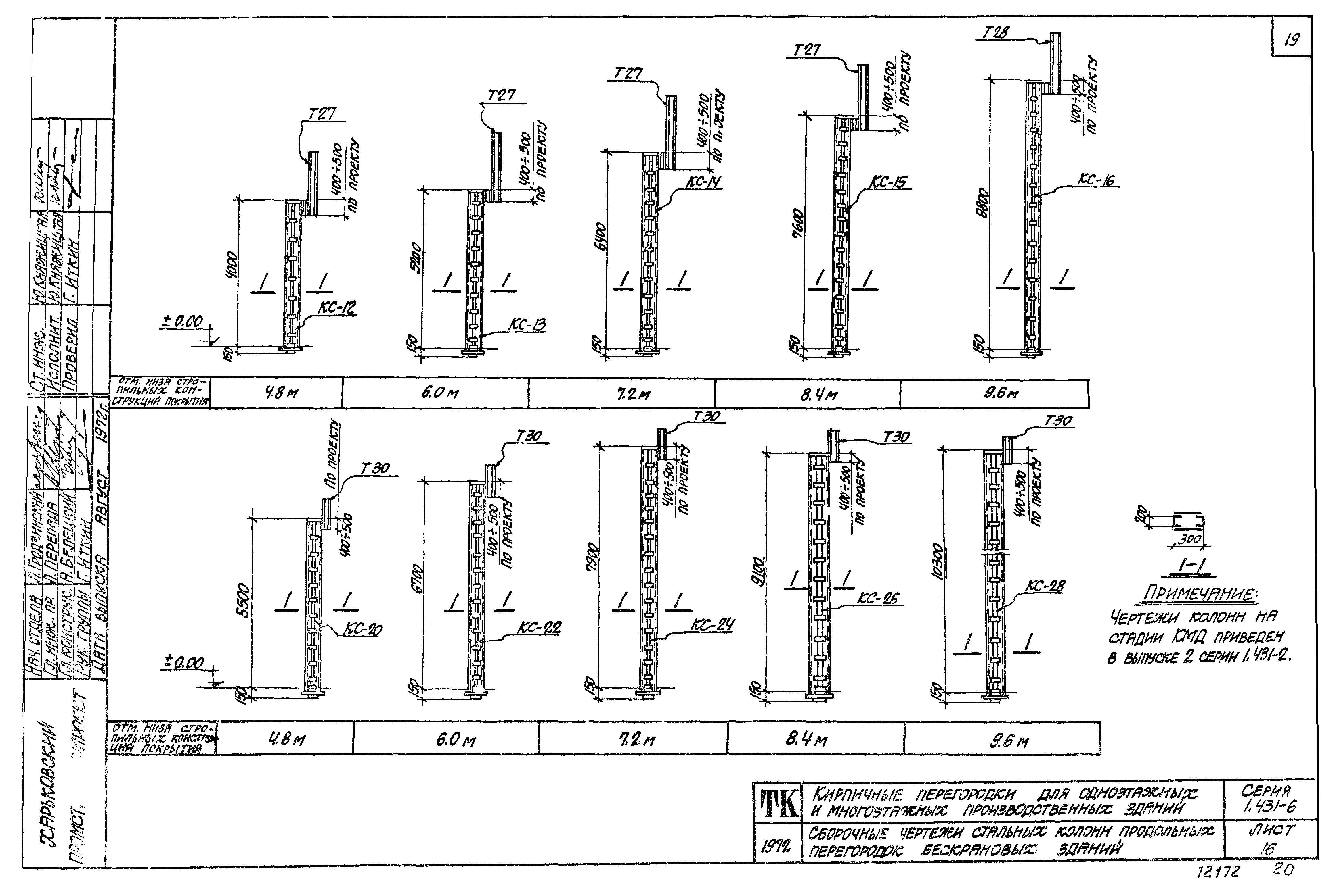
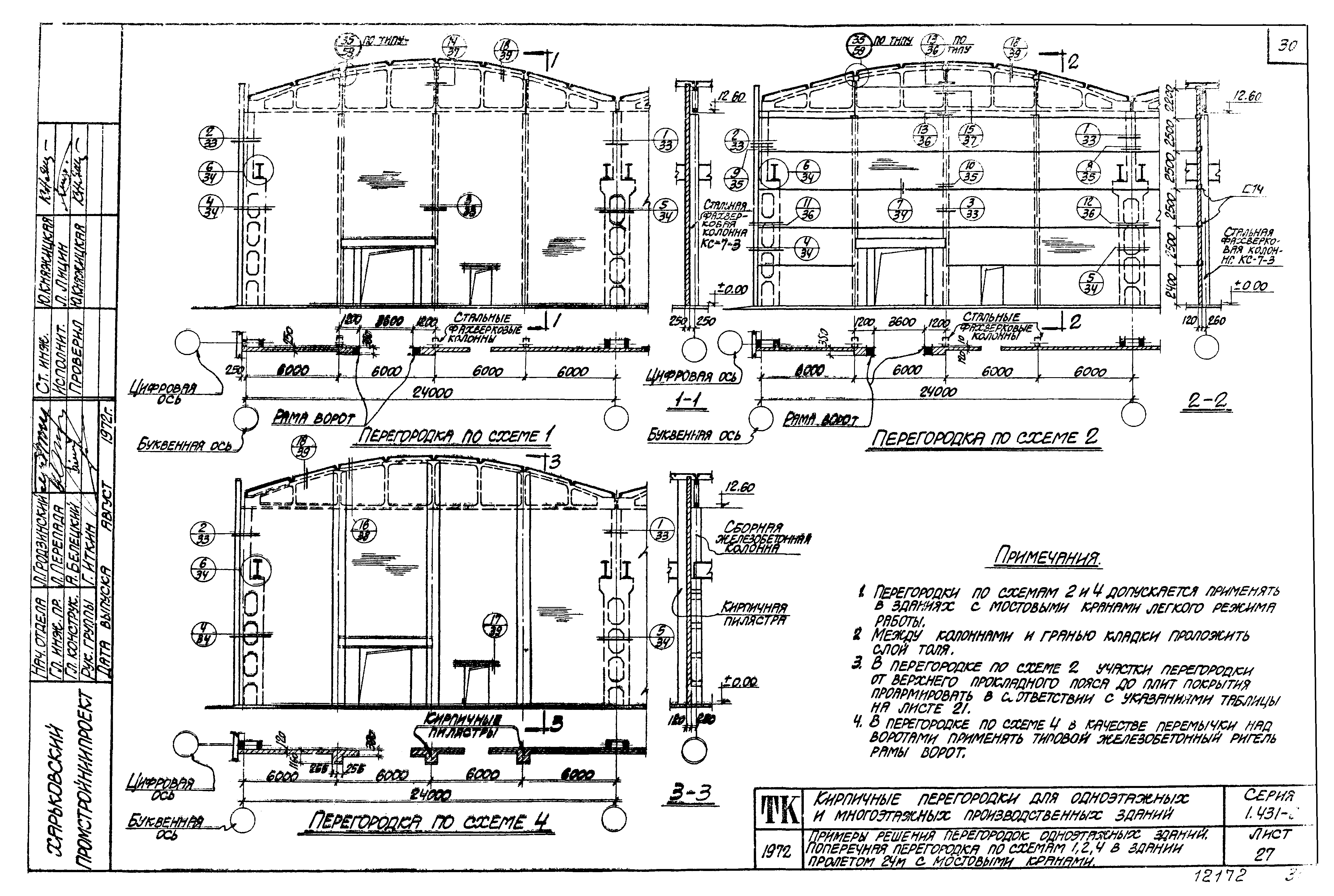
| Оглавление: | Пояснительная записка Ключ для подбора стальных колонн поперечных перегородок. Схема расположения колонн "А" и "Б" Ключ для подбора стальных колонн продольных перегородок бескрановых зданий и схемы развязок стальных колонн поперечных перегородок Ключ для подбора стальных колонн продольных перегородок зданий, оборудованных мостовыми кранами Сортамент стальных колонн поперечных и продольных перегородок Расход стали на стальные колонны поперечных и продольных перегородок. Схемы развязки стальных колонн продольных перегородок Сборочные чертежи стальных колонн поперечных перегородок Сборочные чертежи стальных колонн продольных перегородок бескрановых зданий Сборочные чертежи стальных колонн продольных перегородок зданий, оборудованных мостовыми кранами Краткая характеристика конструктивных схем кирпичных перегородок одноэтажных производственных зданий Краткая характеристика конструктивных схем кирпичных перегородок одноэтажных производственных зданий (продолжение) Ключи для подбора схем поперечных перегородок одноэтажных производственных зданий Ключи для подбора схем продольных перегородок одноэтажных производственных бескрановых зданий и зданий, оборудованных мостовыми кранами Краткая характеристика конструктивных схем кирпичных перегородок многоэтажных зданий Ключи для подбора схем кирпичных перегородок многоэтажных зданий Примеры решения перегородок одноэтажных зданий. Поперечная перегородка по схемам 1,2,4 в здании пролетом 24 м с мостовыми кранами Примеры решения перегородок одноэтажных зданий. Продольная перегородка по схемам 1 и 2 в здании с шагом колонн 12 м с мостовыми кранами Примеры решения перегородок одноэтажных зданий. Продольная и поперечная перегородки по схеме 3 в здании с мостовыми кранами среднего и тяжелого режима работы Примеры решения перегородок одноэтажных зданий. Продольная перегородка по схемам 1 и 2 в здании с шагом колонн 12 м с мостовыми кранами и подстропильными фермами Примеры решения перегородок одноэтажных зданий. Поперечная перегородка по схемам 1,2,4 в здании пролетом 18 м Примеры решения перегородок одноэтажных зданий. Продольная перегородка по схемам 6,7,9 в здании с шагом колонн 6 м Узлы крепления перегородок. Узлы "1","2","3". Деталь армирования Узлы крепления перегородок. Узлы "4","5","6","7" Узлы крепления перегородок. Узлы "8","9","10" Узлы крепления перегородок. Узлы "11","12","13". Деталь "2" Узлы крепления перегородок. Узлы "14","15" Узлы крепления перегородок. Узел "16" Узлы крепления перегородок. Узлы "17","18","19" Узлы крепления перегородок. Узлы "20","21","22" Узлы крепления перегородок. Узлы "23","24" Узлы крепления перегородок. Узлы "25","26","27" Узлы крепления перегородок. Узлы "28","29","30" Узлы крепления перегородок. Узел "31" Узлы крепления перегородок. Узлы "32","33". Деталь "1" Узлы крепления перегородок. Узлы "34","35" Узлы крепления перегородок. Узлы "36","37","38" Узлы крепления перегородок. Узел "39" Узлы крепления перегородок. Узлы "40","41","42","43" Узлы крепления перегородок. Узлы "44","45","46","47" Примеры решения перегородок многоэтажных зданий. Поперечная перегородка по схемам 1 и 2 в здании с сеткой колонн 6х6 м Примеры решения перегородок многоэтажных зданий. Продольная перегородка по схемам 1 и 2 в зданиях с сетками колонн 6х6 и 9х6 м Примеры решения перегородок многоэтажных зданий. Поперечная перегородка по схемам 3 и 4 в здании с сеткой колонн 9х6 м Узлы крепления перегородок. Узлы "1","2" Узлы крепления перегородок. Узлы "3","4","5" Узлы крепления перегородок. Узел "6". Деталь армирования кладки Узлы крепления перегородок. Узел "7". Варианты 1 и 2 Узлы крепления перегородок. Узел "6". Вариант 1 Узлы крепления перегородок. Узел "8". Вариант 2 Узлы крепления перегородок. Узел "8". Вариант 3 Соединительные элементы МС-1÷МС-16 Спецификация соединительных элементов МС-1÷МС-16 |
| Разработан: | ЦНИИпромзданий Харьковский Промстройниипроект |
| Утверждён: | 27.04.1972 Госстрой СССР (Государственный комитет Совета Министров СССР по
делам строительства) (USSR Gosstroy 2/2-162) |
| Нормативные ссылки: |
|


































































