Скачать Серия 1.432-3 Керамзитобетонные однослойные стеновые панели длиной 12,0 м для отапливаемых зданий. Рабочие чертежиДата актуализации: 01.01.2021
|
| Обозначение: | Серия 1.432-3 |
| Обозначение англ: | Series 1.432-3 |
| Статус: | заменен |
| Название рус.: | Керамзитобетонные однослойные стеновые панели длиной 12,0 м для отапливаемых зданий. Рабочие чертежи |
| Дата добавления в базу: | 01.09.2013 |
| Дата актуализации: | 01.01.2021 |
| Дата окончания срока действия: | 01.02.1984 |
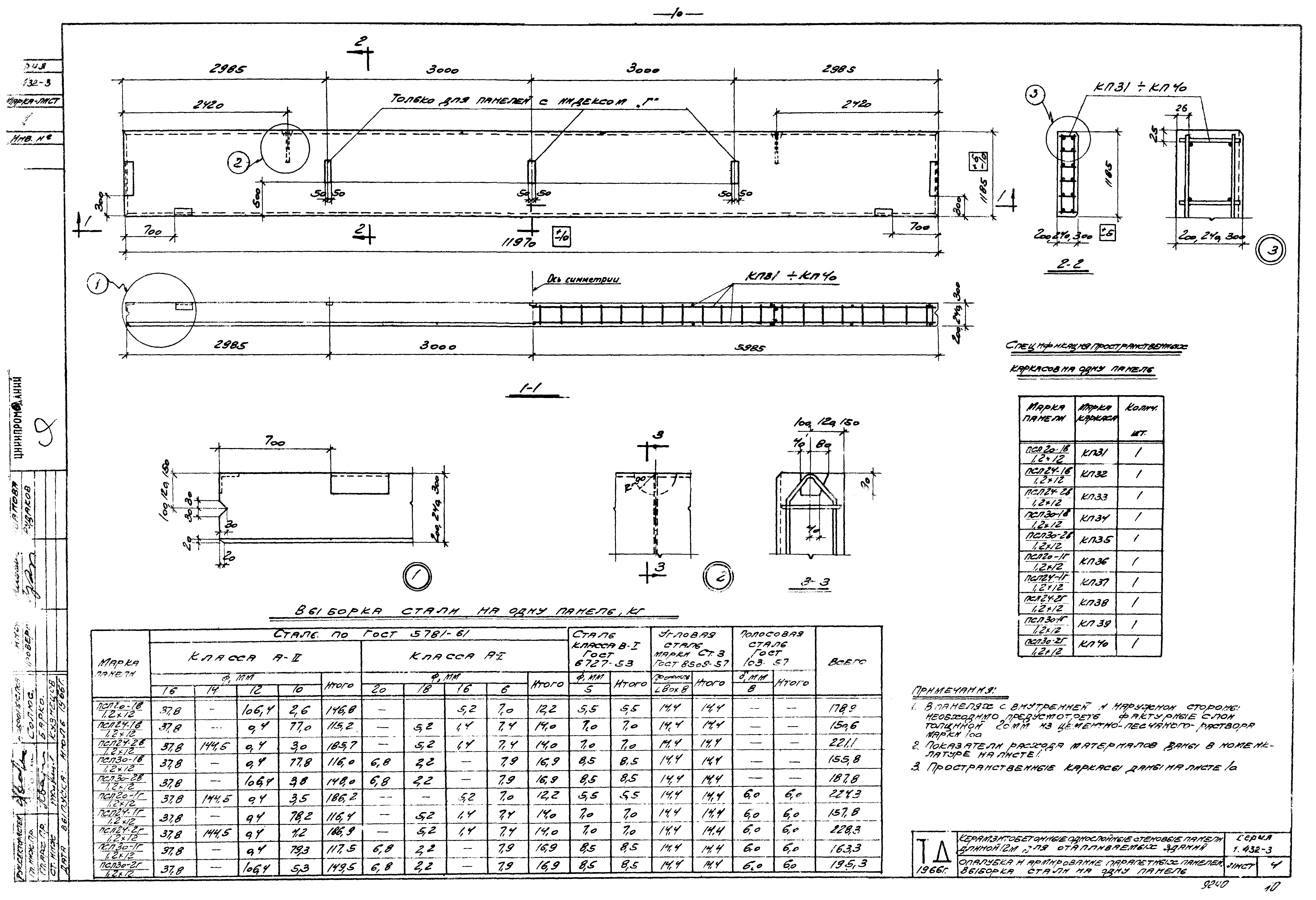
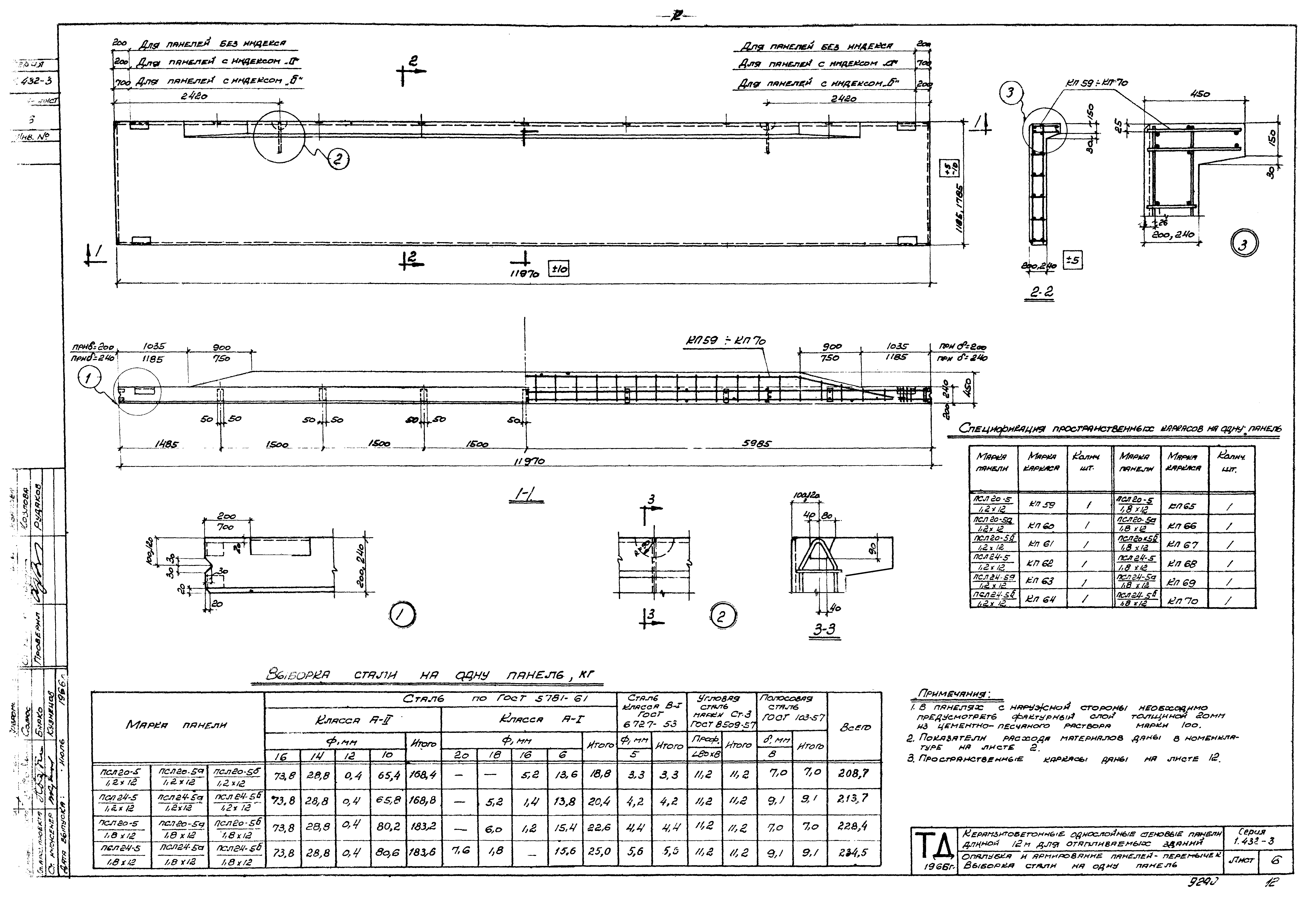
| Область применения: | Настоящий выпуск содержит рабочие чертежи однослойных керамзитобетонных панелей длиной 12 м для стен отапливаемых промышленных зданий |
| Оглавление: | Пояснительная записка Номенклатура плоских панелей Номенклатура ребристых панелей-перемычек Опалубка и армирование рядовых панелей. Выборка стали на одну панель Опалубка и армирование парапетных панелей. Выборка стали на одну панель Опалубка и армирование панелей-перемычек. Выборка стали на одну панель Пространственные каркасы КП1 - КП30 Пространственные каркасы КП31 - КП40 Пространственные каркасы КП41 - КП58 Пространственные каркасы КП59 - КП70 Пространственные каркасы КП71 - КП82 Пространственные каркасы КП83 - КП94 Армирование панелей. Узлы 1 - 8 Плоские каркасы КР1 - КР13. Спецификация и выборка стали Закладные элементы М1 - М21. Спецификация стали на один закладной элемент Схемы раскладки панелей в продольных и торцевых стенах на участках конструкций покрытия Примеры решений фасадов продольных стен. Маркировочные схемы деталей Примеры решений торцевых фасадов. Маркировочные схемы деталей Сопряжения стеновых панелей с колоннами каркаса здания. Примеры решений Сопряжения стеновых панелей с каркасом здания. Примеры решений Сопряжения парапетных панелей с конструкциями покрытия в зданиях с нулевой привязкой продольной стены. Примеры решений Сопряжения парапетных панелей с конструкциями покрытия в зданиях с привязкой продольной стены "250". Примеры решений Сопряжения стеновых панелей на участках фронтонов торцевых стен. Примеры решений Схема расположения опорных консолей, крепление опорных консолей и развязка стоек торцевого фахверка Стойки торцевого фахверка. Пример решения Элементы крепления панелей. Примеры решений |
| Разработан: | ЦНИИпромзданий НИИЖБ НИИСФ НИИСМИ Министерства промышленности строительных материалов СССР |
| Утверждён: | 29.03.1967 Госстрой СССР (Государственный комитет Совета Министров СССР по делам строительства) (USSR Gosstroy ) |
| Нормативные ссылки: |
|


































