Скачать Серия СТ-02-31 Выпуск 7. Панели для простенков и фронтонов, блоки для углов и температурных швов. Рабочие чертежиДата актуализации: 01.01.2021
|
| Обозначение: | Серия СТ-02-31 |
| Обозначение англ: | Series СТ-02-31 |
| Статус: | не действует |
| Название рус.: | Выпуск 7. Панели для простенков и фронтонов, блоки для углов и температурных швов. Рабочие чертежи |
| Дата добавления в базу: | 01.09.2013 |
| Дата актуализации: | 01.01.2021 |
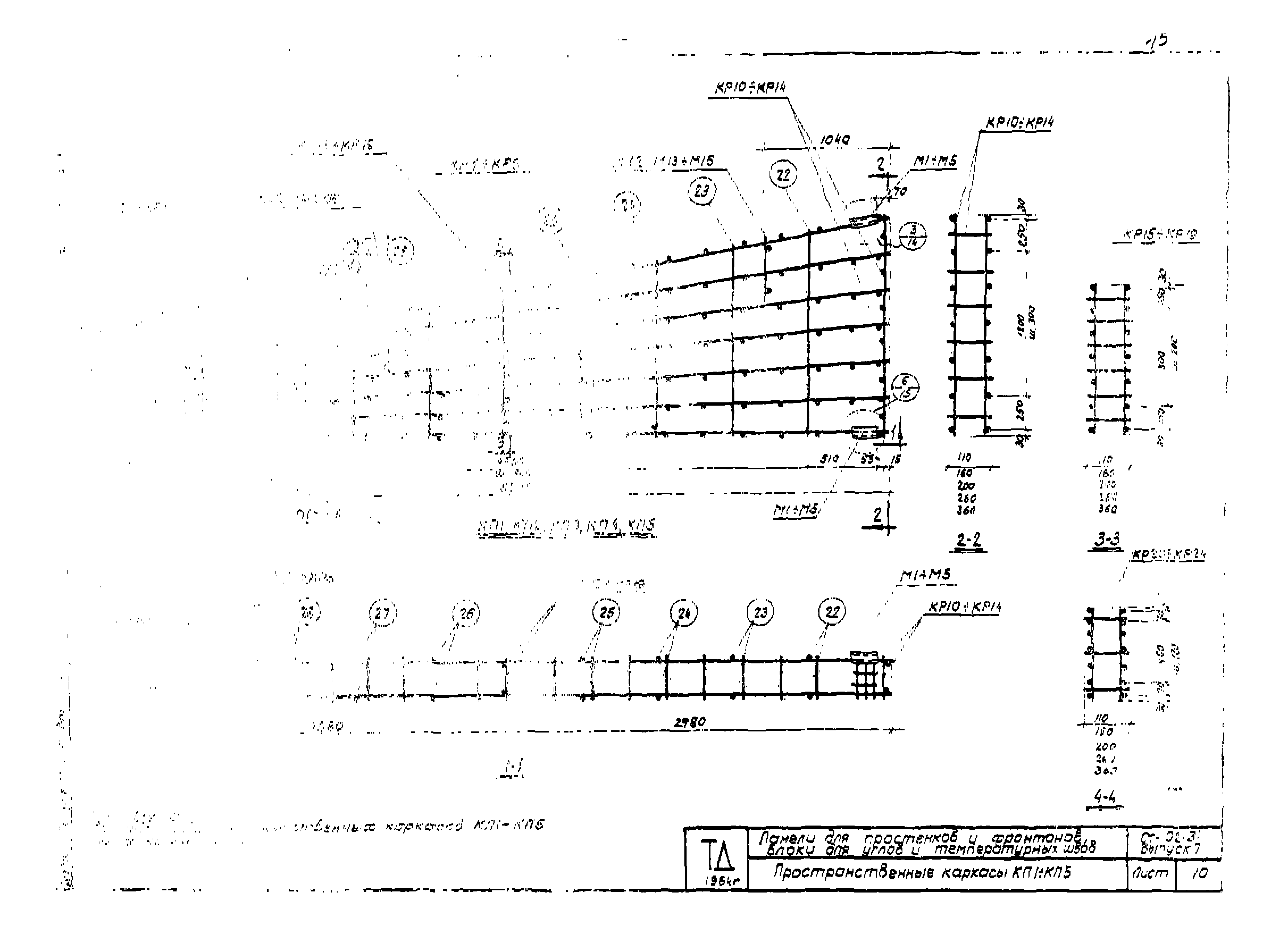
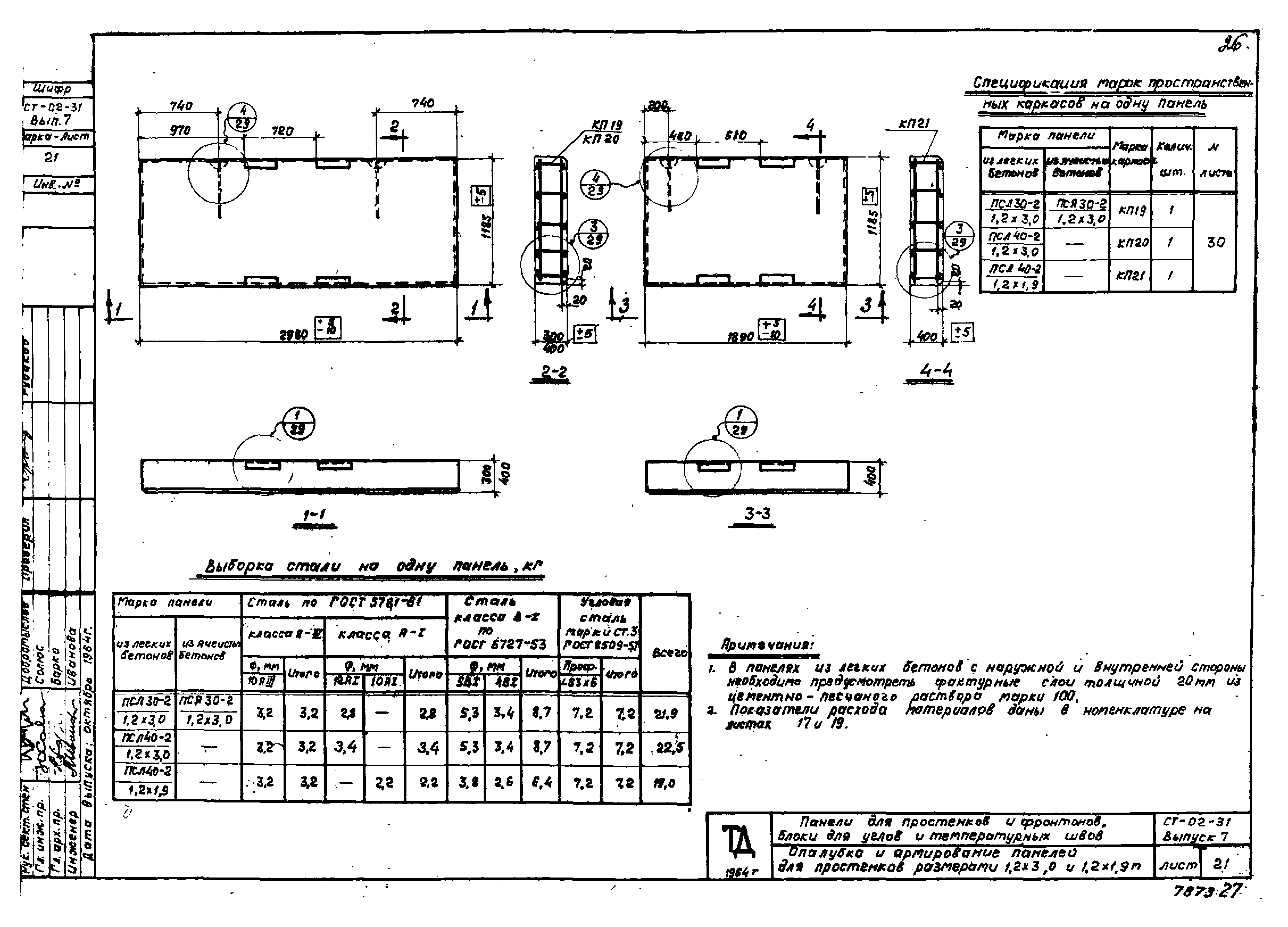
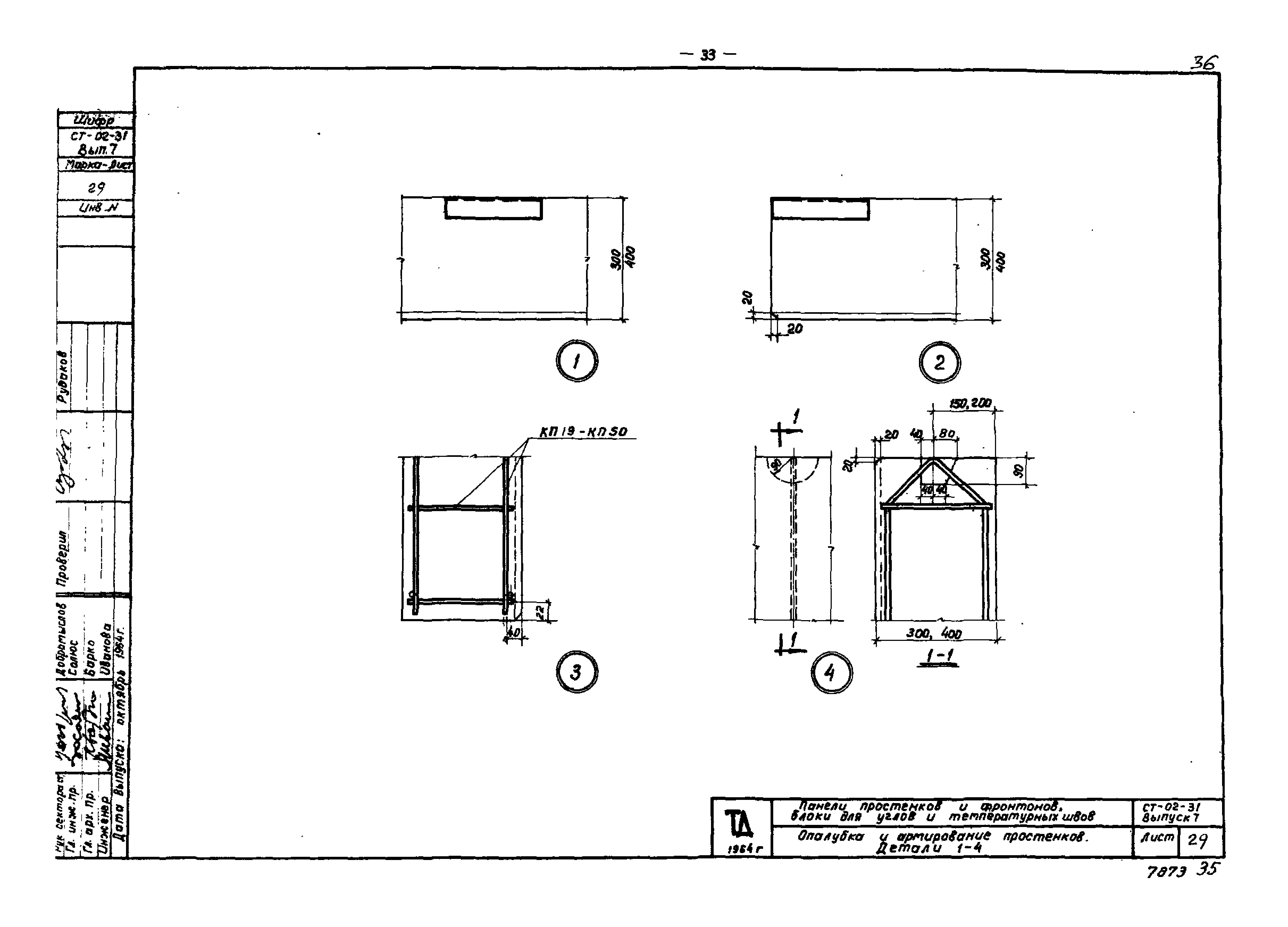
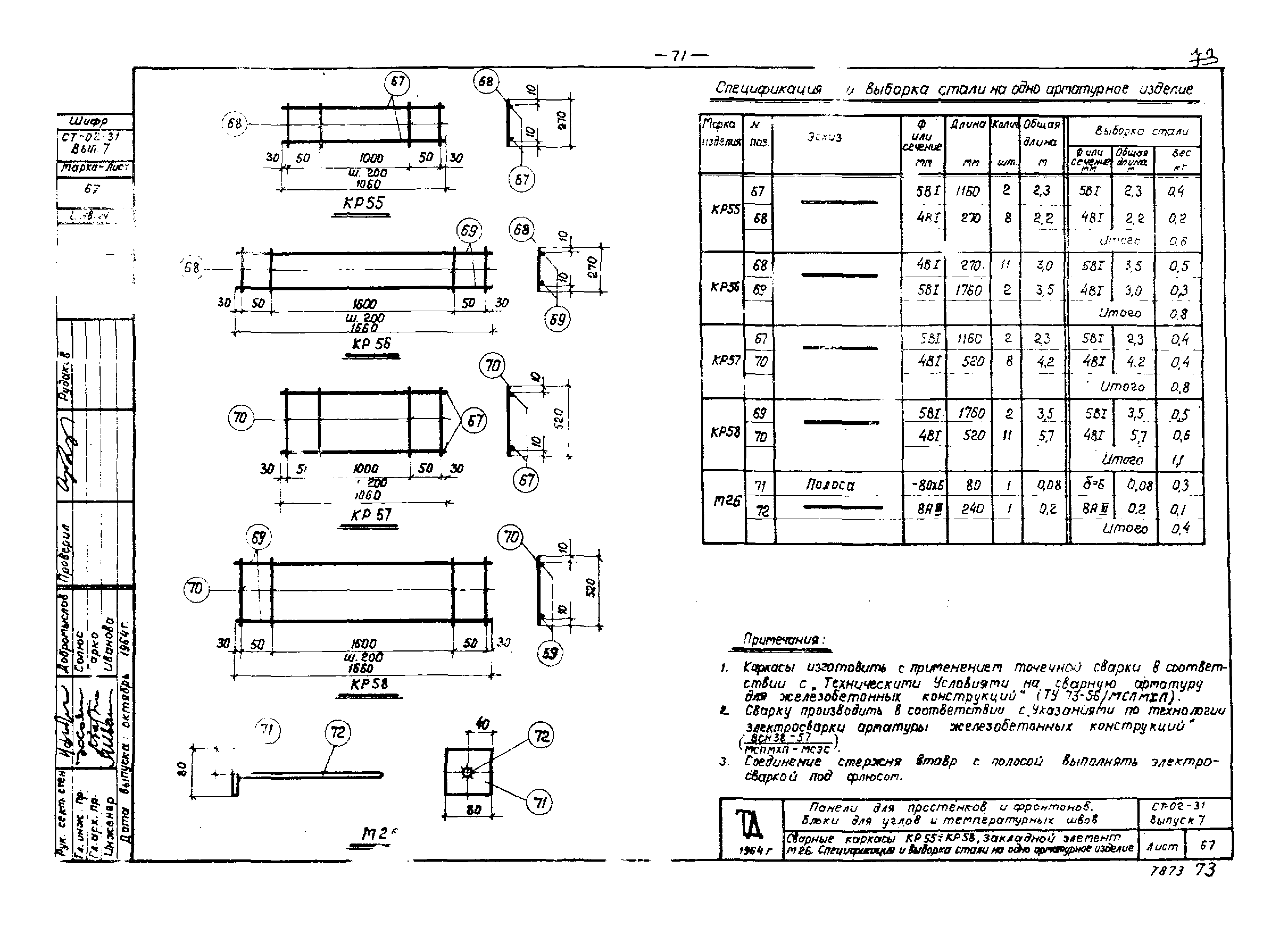
| Оглавление: | Пояснительная записка Номенклатура панелей из легких бетонов для фронтонов и технико-экономические показатели Номенклатура панелей из ячеистых бетонов и железобетона для фронтонов и технико-экономические показатели Опалубка и армирование панелей для фронтонов с привязкой продольной стены "0" Опалубка и армирование панелей для фронтонов с привязкой продольной стены "250" Опалубка и армирование железобетонной панели для фронтонов зданий Опалубка и армирование панелей для фронтонов. Детали 1 - 6 Пространственные каркасы КП1 - КП5 Пространственные каркасы КП6 - КП10 Пространственные каркасы КП11 - КП14 Пространственные каркасы КП15 - КП18 Армирование панелей для фронтонов. Узлы 1, 2, 3, 4, 5, 6 Спецификация марок арматурных изделий на один пространственный каркас Номенклатура панелей из легких бетонов для простенков и технико-экономические показатели (ширина проема 3 м) Номенклатура панелей из легких бетонов для простенков и технико-экономические показатели (ширина проема 4,5 м) Номенклатура панелей из ячеистого бетона для простенков и технико-экономические показатели (ширина проема 3 м) Номенклатура панелей из ячеистого бетона для простенков и технико-экономические показатели (ширина проема 4,5 м) Опалубка и армирование панелей для простенков размерами 1,2х3,0 и 1,2х1,9 м Опалубка и армирование панелей для простенков размерами 1,2х1,75 и 1,2х1,5 м Опалубка и армирование панелей для простенков размерами 1,8х3,0 и 1,8х1,9 м Опалубка и армирование панелей для простенков размерами 1,8х1,75 и 1,8х1,5 м Опалубка и армирование панелей для простенков размерами 1,2х1,5 и 1,2х1,15 м Опалубка и армирование панелей для простенков размерами 1,2х1,0 и 1,2х0,75 м Опалубка и армирование панелей для простенков размерами 1,8х1,5 и 1,8х1,15 м Опалубка и армирование панелей для простенков размерами 1,8х1,0 и 1,8х0,75 м Опалубка и армирование простенков. Детали 1 - 4 Пространственные каркасы КП19 - КП26 Пространственные каркасы КП27 - КП9 Пространственные каркасы КП30 - КП34 Пространственные каркасы КП35 - КП37 Пространственные каркасы КП38 - КП42 Пространственные каркасы КП43 - КП45 Пространственные каркасы КП46 - КП50 Армирование панелей для простенков. Узлы 1, 2 и 3 Спецификация марок арматурных изделий на один пространственный каркас Номенклатура блоков из легких бетонов для температурных швов и технико-экономические показатели Номенклатура блоков из ячеистых бетонов и железобетона для температурных швов и технико-экономические показатели Опалубка и армирование блоков из легких и ячеистых бетонов размерами 1,2х0,5 и 1,2х1,0 м для температурных швов Опалубка и армирование блоков из легких и ячеистых бетонов размерами 1,8х0,5 и 1,8х1,0 м для температурных швов Опалубка и армирование железобетонных блоков размерами 1,2х0,5; 1,2х1,0; 1,8х0,5 и 1,8х1,0 м для температурных швов Опалубка и армирование блоков для температурных швов. Детали 1 - 6 Пространственные каркасы КП51 - КП70 Армирование блоков для температурных швов. Узлы 1 и 2 Спецификация марок арматурных изделий и закладных элементов на один пространственный каркас Плоские каркасы КР1 - КР7 Плоские каркасы КР8 - КР14 Плоские каркасы КР15 - КР21 Плоские каркасы КР22 - КР28 Плоские каркасы КР29 - КР35 Плоские каркасы КР36 - КР44 Плоские каркасы КР45 - КР51 Плоские каркасы КР52 - КР54. Спецификация и выборка стали Спецификация и выборка стали Закладные элементы М1 - М12 Закладные элементы М13 - М19 Закладные элементы М20 - М25 Спецификация стали на один закладной элемент Номенклатура блоков для углов здания Опалубка и армирование блоков Б1а - Б4а. Технико-экономические показатели Сварные каркасы КР55 - КР58. Закладной элемент М26. Спецификация и выборка стали на одно арматурное изделие Опалубка и армирование блоков Б1б - Б4б. Технико-экономические показатели Сварные каркасы КР59 - КР62. Спецификация и выборка стали на одно арматурное изделие |
| Разработан: | ЦНИИпромзданий Ленпромстройпроект |
| Утверждён: | 27.03.1965 Госстрой СССР (Государственный комитет Совета Министров СССР по делам строительства) (USSR Gosstroy 47) |










































































