Скачать Монтаж проводов и грозозащитных тросов и волоконно-оптического кабеля связи под тяжением на ВЛ 220 - 750 кВ. Том 1. Монтаж проводов и грозозащитных тросов на ВЛ 220 кВ

Дата актуализации: 01.01.2021

Монтаж проводов и грозозащитных тросов и волоконно-оптического кабеля связи под тяжением на ВЛ 220 - 750 кВ. Том 1. Монтаж проводов и грозозащитных тросов на ВЛ 220 кВ

Статус:не установлен срок действия
Название рус.:Монтаж проводов и грозозащитных тросов и волоконно-оптического кабеля связи под тяжением на ВЛ 220 - 750 кВ. Том 1. Монтаж проводов и грозозащитных тросов на ВЛ 220 кВ
Дата добавления в базу:01.10.2014
Дата актуализации:01.01.2021
Область применения:Целью работы является составление технологической документации, включая определение затрат труда и машинного времени, а также потребности в материально-технических ресурсах для последующей разработки норм и расценок в базисном уровне цен 2001 года.
Оглавление:1. Общая часть
2. Исходные данные
3. Принципиальная технологическая схема
4. Особенности производства работ
5. Организация работ
6. Ведомость машин, оборудования и приспособлений
7. Технико-экономические показатели
Чертежи и схемы
   Рисунок 1 — Одноцепные опоры ВЛ 220 кВ
   Рисунок 2 — Раскатка тросов трактором с подъемом на опоры
   Рисунок 3 — Расстановка монтажного оборудования
   Рисунок 4 — Последовательность монтажа проводов под тяжением
   Рисунок 5 — Узлы
   Рисунок 6— Узлы
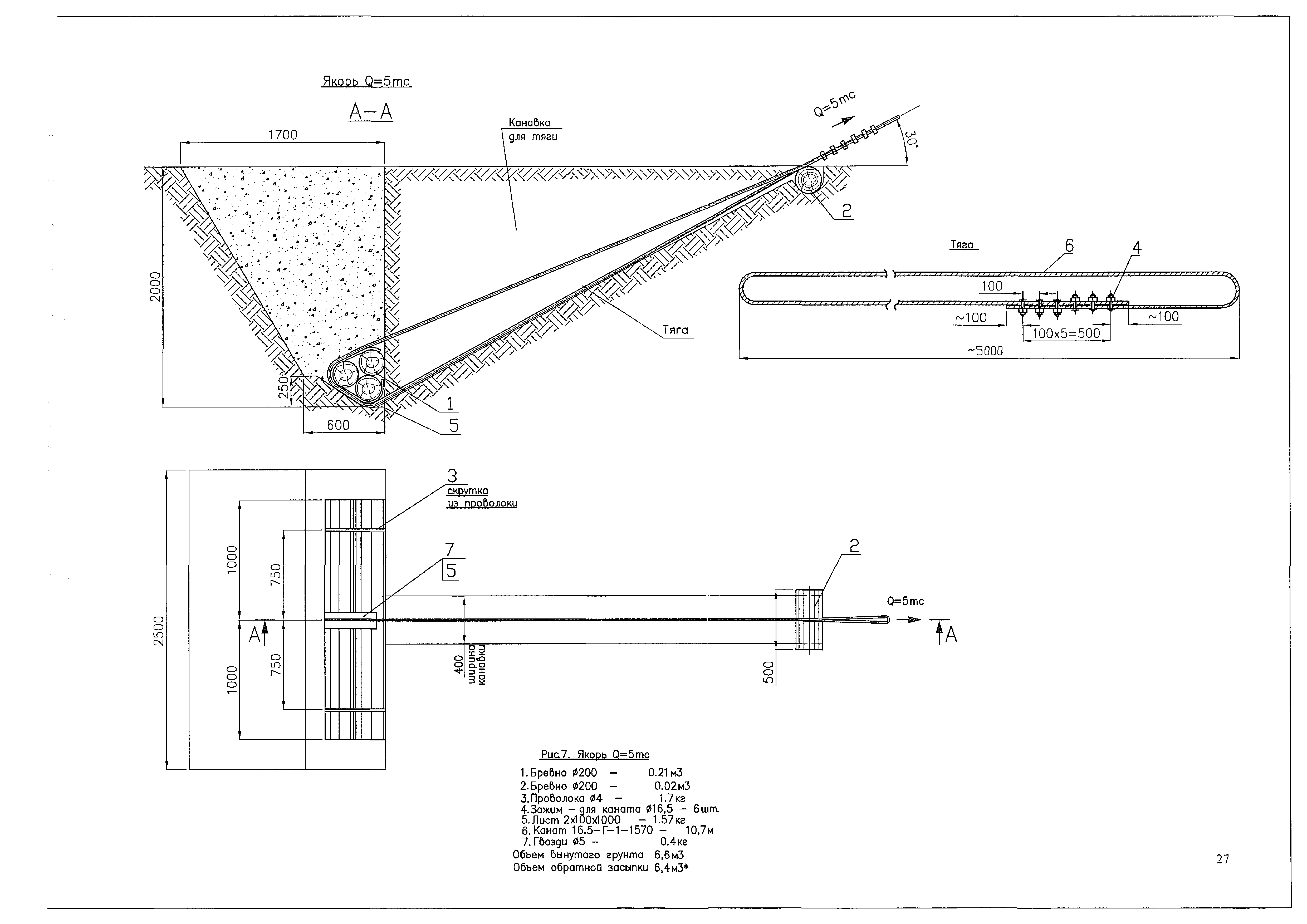
   Рисунок 7— Якорь Q=5тс
Приложение 1. Технические характеристики изделий фирмы "TESMEC S.p.А", указанные в работе
Приложение 2. Перечень нормативных документов
Приложение 3. Перечень работ института "Оргэнергострой", ссылочные материалы
Разработан: Институт Оргэнергострой
Утверждён: Институт Оргэнергострой
Нормативные ссылки: