Скачать Часть IV. Техническое наблюдение за изготовлением изделийДата актуализации: 01.01.2021 |
| Статус: | заменен |
| Название рус.: | Часть IV. Техническое наблюдение за изготовлением изделий |
| Дата добавления в базу: | 01.01.2019 |
| Дата актуализации: | 01.01.2021 |
| Дата введения: | 01.07.2018 |
| Дата окончания срока действия: | 01.07.2019 |
| Область применения: | Положения части могут применяться с учетом особенностей и отличий в процессах изготовления изделий, присущих стране, в которой РС осуществляет техническое наблюдение. |
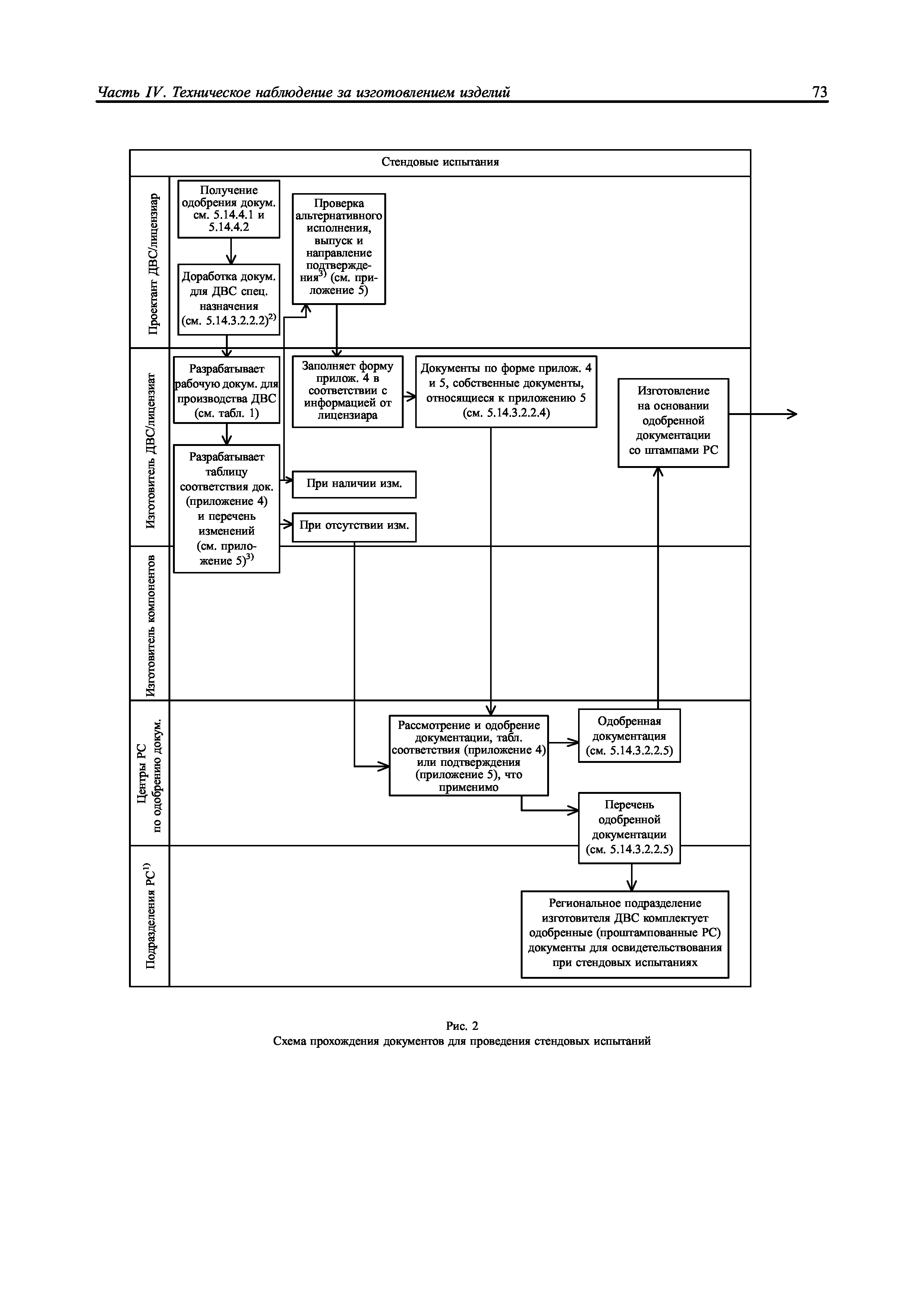
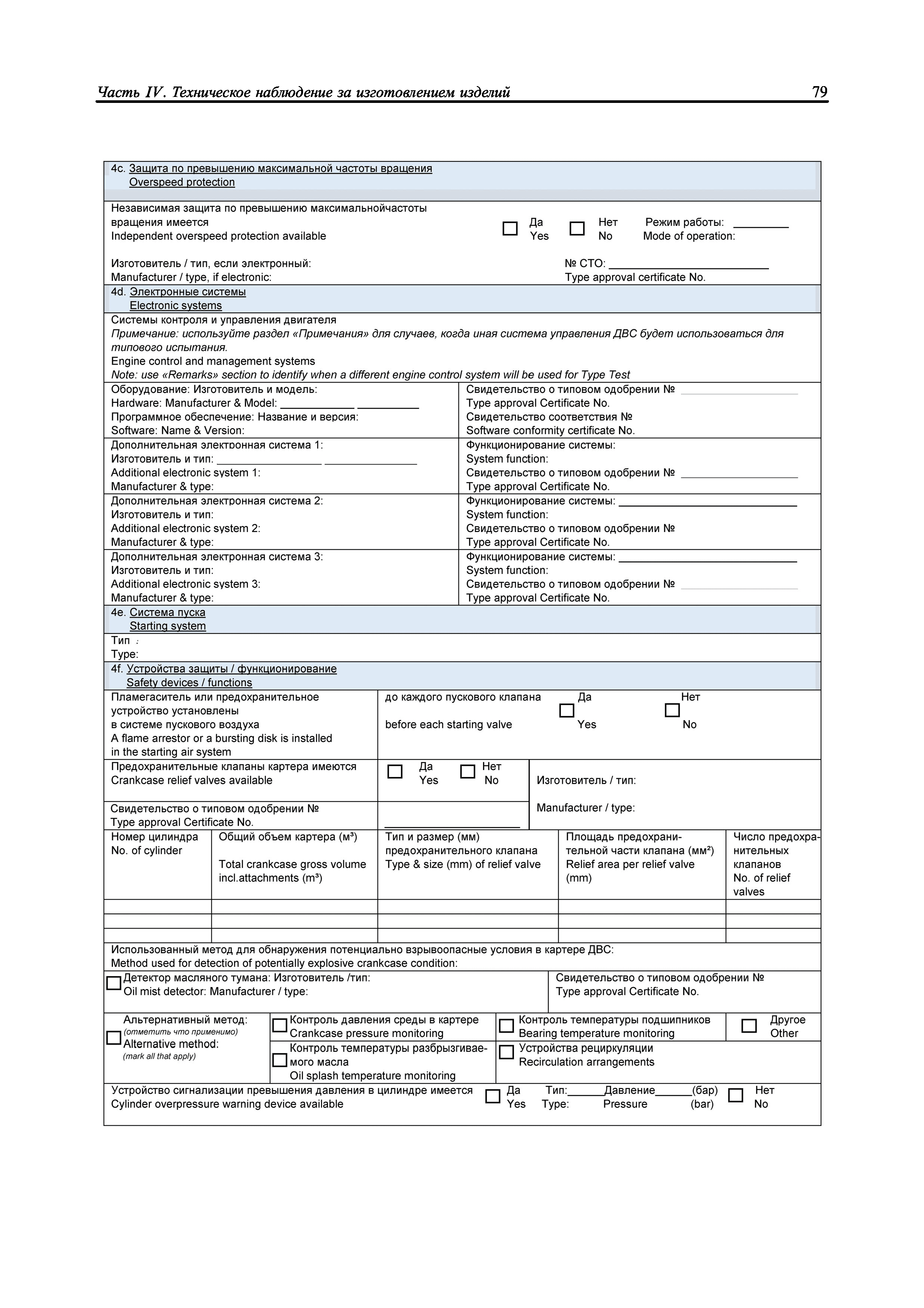
| Оглавление: | 1 Общие положения 1.1 Область распространения 1.2 Термины, определения, сокращения 1.3 Объем технического наблюдения 1.4 Техническая документация 1.5 Опытный образец изделия 1.6 Головной образец изделия 1.7 Серийные изделия установившегося производства 1.8 Эксплуатационные испытания изделий 2 Корпус 2.1 Общие положения 3 Устройства, оборудование и снабжение 3.1 Общие положения 3.2 Техническое наблюдение Регистра 3.3 Документация 3.4 Рулевые устройства 3.5 Якорные устройства 3.6 Швартовные устройства 3.7 Буксирные устройства 3.8 Сигнальные мачты 3.9 Устройства и закрытия отверстий в корпусе, надстройках и рубках 3.10 Устройство и оборудование помещений, различные устройства и оборудование, аварийное снабжение 3.11 Цепи без распорок, применяемые в судовых устройствах, кроме якорных 3.12 Стальные тросы 3.13 Растительные тросы и тросы из синтетического волокна (канаты) Приложение 1. Допустимые величины пороков на литых деталях якорей Приложение 2. Испытание якорей и их деталей бросанием Приложение 3. Испытание на растяжение пробной нагрузкой якорей и якорных скоб Приложение 4. Испытания буксирных гаков Приложение 5. Испытания головных образцов иллюминаторов, дверей надстройки и рубки, люков сходных, световых и вентиляционных Приложение 6. Испытания растительных тросов и тросов из синтетического волокна 4 Материалы, конструкции и изделия противопожарной защиты 4.1 Общие положения 4.2 Материалы, конструкции и изделия конструктивной противопожарной защиты 4.3 Изделия систем пожаротушения, противопожарного снабжения и огнетушащие вещества 5 Механизмы 5.1 Общие положения 5.2 Главные и вспомогательные двигатели внутреннего сгорания мощностью 55 кВт и более 5.3 Вспомогательные двигатели внутреннего сгорания мощностью менее 55 кВт 5.4 Главные паровые турбины и турбины электрогенераторов 5.5 Вспомогательные паровые турбины 5.6 Главные газотурбинные двигатели (ГТД) и газовые турбины (ГТ) для привода электрогенераторов 5.7 Передачи и разобщительные муфты главных и вспомогательных механизмов 5.8 Вспомогательные механизмы 5.9 Детали механизмов, перечисленных в таблице 5.8.1 5.10 Палубные механизмы 5.11 Телеграфы механические 5.12 Стендовые испытания 5.13 Документы Регистра 5.14 Документы Регистра для технического наблюдения за изготовлением и одобрения ДВС Приложение 1.Термины и определения (применительно к разд. 5 "Механизмы") (приведены в строгом соответствии с Приложением 1 "Глоссарий" УТ М44 (Rev.8 Mar 2015) МАКО) Приложение 2. Порядок представления и прохождения документации Приложение 3. Форма заявки на типовое одобрение ДВС и основные технические данные (в соответствии с приложением 3 к УТ МАКО М44, изм. 9) Приложение 4. Таблица соответствия документации и данных по ДВС лицензиара и лицензиата Приложение 5. Образец формы подтверждения лицензиаром изменений конструкции ДВС, выполненных лицензиатом Приложение 6. Типовые испытания ДВС Приложение 7. Стендовые испытания ДВС (заводские приемочные испытания) и испытания ДВС после установки на судне Приложение 8. Порядок освидетельствования и оформления документов на компоненты ДВС Приложение 9. Порядок освидетельствования, испытаний, одобрения турбонагнетателей и их компоновки с ДВС Приложение 10. Процедура типового испытания для предохранительных клапанов картеров Приложение 11. Процедура типовых испытаний приборов обнаружения и сигнализации масляного тумана в картере 6 Детали валопроводов 6.1 Общие положения 6.2 Упорные, промежуточные и гребные валы 6.3 Облицовки гребных валов 6.4 Соединительные болты и муфты валов 6.5 Упорные и опорные подшипники 6.6 Действующие устройства 6.7 Уплотнения и сальники действующих устройств 7 Движители 7.1 Общие положения 7.2 Гребные винты фиксированного шага 7.3 Гребные винты регулируемого шага и обслуживающие их системы 7.4 Крыльчатые движители 7.5 Движительные колонки Приложение 1. Инструкция по устранению дефектов гребных винтов из медных сплавов Приложение 2. Требования к объему стендовых испытаний движительных колонок 8 Системы и трубопроводы 8.1 Общие положения 8.2 Арматура трубопроводов I и II классов, а также донная, бортовая, устанавливаемая на форпиковой переборке и дистанционно управляемая 8.3 Арматура трубопроводов III класса 8.4 Арматура газоотводной системы и воздушных труб 8.5 Механические, гибкие соединения и компенсаторы 8.6 Искрогасители газовыпускных систем и дымоходов котлов 8.7 Трубы 8.8 Судовые шланги 8.9 Уплотнительные элементы трубопроводных соединений 9 Котлы, теплообменные аппараты и сосуды под давлением 9.1 Общие положения 9.2 Техническая документация 9.3 Материалы 9.4 Обработка материалов 9.5 Сварочные работы 9.6 Проверка изготовления деталей и узлов изделий. Сборка 9.7 Гидравлические испытания 9.8 Особенности технического наблюдения за изготовлением головных образцов 10 Электрическое оборудование 10.1 Общие положения 10.2 Объем и порядок освидетельствования электрического оборудования 10.3 Последовательность проведения испытаний и проверок 10.4 Основные указания по проведению испытаний и проверок 10.5 Испытания оборудования на соответствие условиям работы на судне 10.6 Электрические испытания 10.7 Электрические испытания отдельных видов оборудования 10.8 Освидетельствование изделий при установившемся производстве на предприятии (изготовителе) Приложение 1. Допустимые значения сопротивления изоляции электрического оборудования Приложение 2. Допустимые температуры Приложение 3. Степень неравномерности хода электрических агрегатов Приложение 4. Рекомендации по проверке механической прочности электрических аппаратов и электромагнитных тормозов Приложение 5. Рекомендации по проверке коммутационной прочности, нормальной и кратковременной коммутационной способности аппаратов Приложение 6. Рекомендации по проверке разрывной способности автоматических выключателей Приложение 7. Оценка степени искрения коллекторов электрических машин Приложение 8. Изоляционные расстояния Приложение 9. Степени защиты электрического оборудования Приложение 10. Рекомендации по проверке конструкции и физических свойств кабелей Приложение 11. Испытательный щуп Приложение 12. Допустимые отклонения параметров при механических и климатических испытаниях Приложение 13. Климатическое исполнение изделий, допускаемых к установке на морских судах Приложение 14. Принятые в России обозначения изделий по климатическим категориям размещения и размещение этих изделий на судах Приложение 15. Испытание электрических изоляционных материалов на воспламеняемость Приложение 16. Требования к испытанию системы сигнализации поступления воды в грузовые трюмы навалочных судов и однотрюмных грузовых судов, не являющихся навалочными Приложение 17. Требования к расчетному моделированию механических испытаний 11 Холодильное оборудование 11.1 Общие положения 11.2 Виды испытаний 11.3 Техническое наблюдение за изготовлением компрессоров 11.4 Техническое наблюдение за изготовлением насосов холодильного агента 11.5 Техническое наблюдение за изготовлением насосов холодоносителя и охлаждающей воды 11.6 Техническое наблюдение за изготовлением вентиляторов 11.7 Техническое наблюдение за изготовлением теплообменных аппаратов и сосудов под давлением холодильного агента, холодоносителя и/или охлаждающей воды 11.8 Техническое наблюдение за изготовлением арматуры холодильных установок 11.9 Техническое наблюдение за изготовлением приборов холодильной автоматики 11.10 Техническое наблюдение за изготовлением теплоизоляционных материалов 11.11 Гидравлические испытания на прочность 11.12 Пневматические испытания на плотность 11.13 Испытания на герметичность вакуумированием 12 Оборудование автоматизации 12.1 Общие положения 12.2 Техническая документация 12.3 Объем и порядок освидетельствования оборудования автоматизации 12.4 Указания по отдельным видам испытаний Приложение 1. Нормы и методы испытаний оборудования автоматизации Приложение 2. (рекомендуемое) Рекомендации по проведению анализа последствий отказов (АПО) систем управления 13 Спасательные средства 13.1 Общие положения 13.2 Техническое наблюдение за головным образцом 13.3 Виды испытаний 13.4 Техническое наблюдение на предприятии (изготовителе) 13.5 Требования к предприятиям (изготовителям) и контроль производства 13.6 Маркировка и клеймение спасательных средств 14 Сигнальные средства 14.1 Общие положения 14.2 Техническая документация 14.3 Техническое наблюдение за изготовлением сигнальных средств 14.4 Сигнально-отличительные и сигнальнопроблесковые фонари 14.5 Звуковые сигнальные средства 14.6 Пиротехнические сигнальные средства 14.7 Сигнальные фигуры 14.8 Испытательные лаборатории, стендовые испытания Приложение 1. Испытания головных образцов фонарей (типовые испытания) Приложение 2. Стендовые испытания головных образцов звуковых сигнальных средств Приложение 3. Стендовые испытания головных образцов пиротехнических сигнальных средств Приложение 4. Натурные морские испытания головных образцов фонарей Приложение 5. Натурные морские испытания головных образцов звуковых сигнальных средств Приложение 6. Натурные испытания головных образцов пиротехнических сигнальных средств Приложение 7. Освидетельствования и испытания фонарей при установившемся производстве Приложение 8. Освидетельствования и стендовые испытания звуковых сигнальных средств при установившемся производстве 15 Радиооборудование 15.1 Общие положения 15.2 Техническая документация 15.3 Объем освидетельствований при установившемся производстве 15.4 Общие указания по освидетельствованию при установившемся производстве 15.5 Освидетельствование отдельных видов радиооборудования при установившемся производстве 15.6 Объем освидетельствований головных и/или опытных образцов 15.7 Общие указания по освидетельствованию головных и/или опытных образцов 15.8 Освидетельствование головных и/или опытных образцов отдельных видов изделий. 15.9 Отдельные виды испытаний головных и/или опытных образцов 15.10 Документация Регистра Приложение 1. Нормы и методы испытания радиооборудования Приложение 2. Стандартные условия для определения отклонения частоты передатчика или приемника 16 Навигационное оборудование 16.1 Общие положения 16.2 Техническая документация 16.3 Объем испытаний и порядок проведения освидетельствования навигационного оборудования 16.4 Дополнительные указания по освидетельствованию отдельных видов навигационных приборов 16.5 Документы Регистра Приложение 1. Нормы и методы испытания навигационного оборудования 17 Оборудование по предотвращению загрязнения с судов 17.1 Общие положения 17.2 Техническая документация 17.3 Техническое наблюдение за изготовлением оборудования по предотвращению загрязнения при установившемся производстве Приложение 1. Технические требования к испытаниям оборудования по предотвращению загрязнения с судов Приложение 2. Свидетельство о типовом одобрении (испытании) оборудования по предотвращению загрязнения Приложение 3. Инструкция о порядке оформления и выдачи Свидетельств о типовом одобрении (испытании) оборудования по предотвращению загрязнения |
| Разработан: | Российский морской регистр судоходства |
| Утверждён: | Российский морской регистр судоходства |
| Издан: | Российский морской регистр судоходства (2018 г. ) |
| Заменяет собой: | |
| Нормативные ссылки: |
|




































































































































































































































































































































































