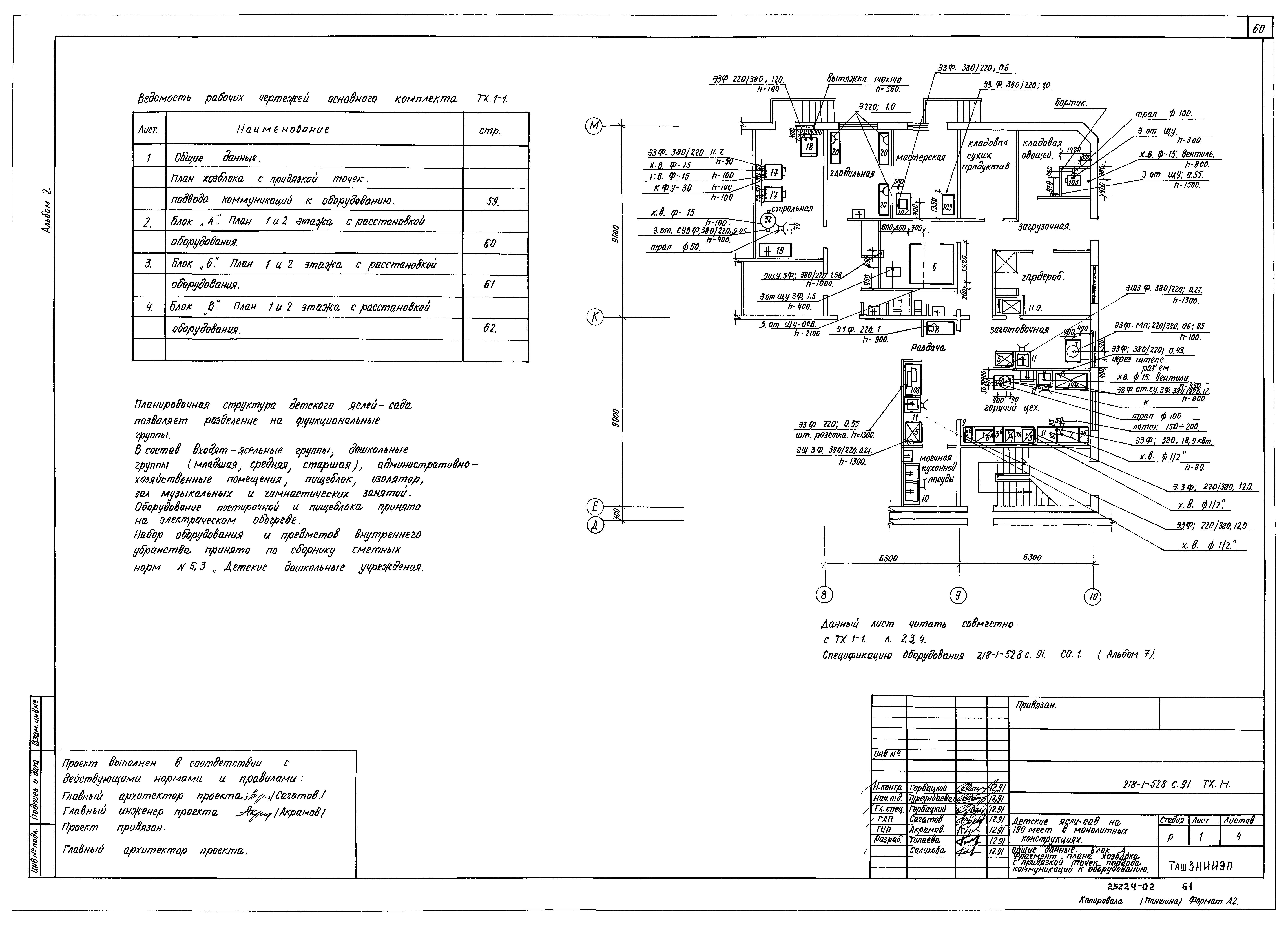
Скачать Типовой проект 218-1-528с.91 Альбом 2. Архитектурно-строительные решения выше отм. 0.000. ТехнологияДата актуализации: 01.01.2021 Типовой проект 218-1-528с.91
Альбом 2. Архитектурно-строительные решения выше отм. 0.000. Технология| Обозначение: | Типовой проект 218-1-528с.91 | | Обозначение англ: | 218-1-528с.91 | | Статус: | не определен законодательством | | Название рус.: | Альбом 2. Архитектурно-строительные решения выше отм. 0.000. Технология | | Дата добавления в базу: | 01.02.2020 | | Дата актуализации: | 01.01.2021 | | Дата введения: | 06.12.1991 | | Дата окончания срока действия: | 30.06.2003 | | Разработан: | ТашЗНИИЭП Госгражданстроя
| | Утверждён: | 03.04.1991 Госкомархитектура (60)
| | Нормативные ссылки: | |
                                                              
|