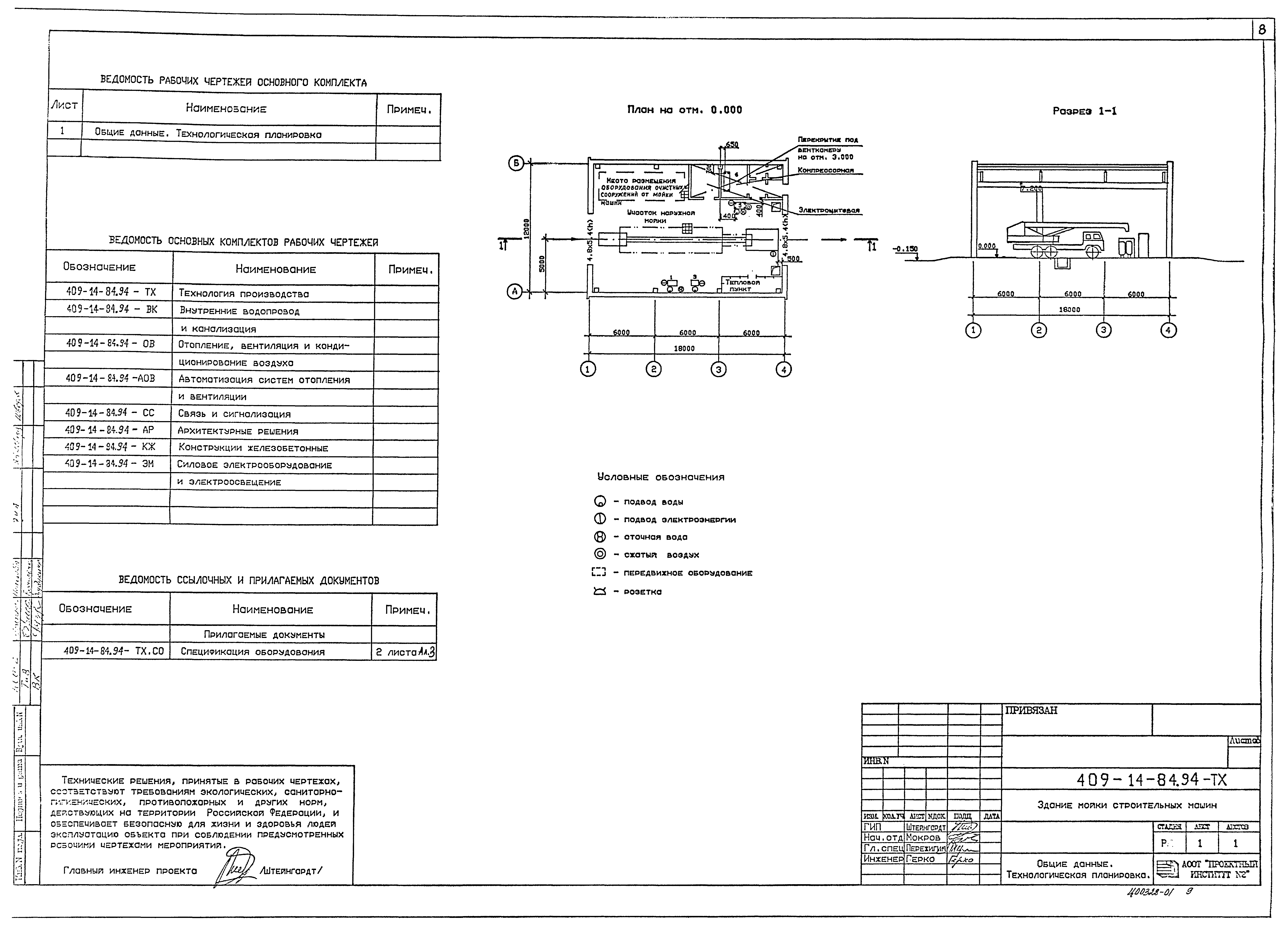
Скачать Типовой проект 409-14-84.94 Альбом 1. Пояснительная записка. Технология производства. Архитектурные решения. Конструкции железобетонные. Строительные изделияДата актуализации: 01.01.2021 Типовой проект 409-14-84.94
Альбом 1. Пояснительная записка. Технология производства. Архитектурные решения. Конструкции железобетонные. Строительные изделия| Обозначение: | Типовой проект 409-14-84.94 | | Обозначение англ: | 409-14-84.94 | | Статус: | не определен законодательством | | Название рус.: | Альбом 1. Пояснительная записка. Технология производства. Архитектурные решения. Конструкции железобетонные. Строительные изделия | | Дата добавления в базу: | 01.02.2020 | | Дата актуализации: | 01.01.2021 | | Дата введения: | 26.12.1994 | | Дата окончания срока действия: | 30.06.2003 | | Разработан: | Проектный институт №2
| | Утверждён: | 22.12.1994 Главпроект Минстроя России (9-3-1/193)
| | Нормативные ссылки: | |
                     
|