Главная // Актуальные документы // ИнструкцияСПРАВКА
Источник публикации
Документ опубликован не был
Примечание к документу
Документ
введен в действие с 1 января 1995 года.
Название документа
"РД 34.40.510-93. Руководящий документ. Типовая инструкция по эксплуатации конденсатного тракта и системы регенерации низкого давления энергоблоков мощностью 100 - 800 МВт на ТЭЦ и КЭС"
(утв. РАО "ЕЭС России" 01.10.1993)
"РД 34.40.510-93. Руководящий документ. Типовая инструкция по эксплуатации конденсатного тракта и системы регенерации низкого давления энергоблоков мощностью 100 - 800 МВт на ТЭЦ и КЭС"
(утв. РАО "ЕЭС России" 01.10.1993)
Департаментом науки
и техники РАО "ЕЭС России"
1 октября 1993 года
Первый заместитель
начальника
А.П.БЕРСЕНЕВ
РУКОВОДЯЩИЙ ДОКУМЕНТ
ТИПОВАЯ ИНСТРУКЦИЯ ПО ЭКСПЛУАТАЦИИ КОНДЕНСАТНОГО ТРАКТА
И СИСТЕМЫ РЕГЕНЕРАЦИИ НИЗКОГО ДАВЛЕНИЯ ЭНЕРГОБЛОКОВ
МОЩНОСТЬЮ 100 - 800 МВт НА ТЭЦ И КЭС
РД 34.40.510-93
Срок действия установлен
с 1 января 1995 года
по 1 января 2000 года
Разработано АО "Фирма ОРГРЭС".
Исполнитель И.М. Юдина.
1.1. Настоящая Типовая инструкция является руководящим материалом для разработки местных рабочих инструкций по эксплуатации оборудования турбоустановок в тепловых схемах энергоблоков 100 - 800 МВт ТЭЦ и КЭС.
Типовая инструкция составлена на основе нормативно-технической и заводской документации по подогревателям низкого давления, опыта их эксплуатации, а также работ, проведенных НПО ЦКТИ и АО "Фирма ОРГРЭС".
1.2. Типовая инструкция устанавливает основные требования, обеспечивающие надежную и эффективную работу регенерации низкого давления в процессе пусковых операций, при работе под нагрузкой, при останове и выводе в ремонт.
При составлении рабочих инструкций должны учитываться все местные условия, особенности установленного оборудования и тепловой схемы.
1.3. Типовая инструкция может быть использована в качестве учебного пособия при обучении персонала, обслуживающего турбоустановки энергоблоков.
1.4. Типовая инструкция составлена применительно к типовым схемам и основным технологическим принципам организации режимов пуска и останова энергоблоков 100 - 800 МВт, предусмотренным типовыми инструкциями по пуску из различных тепловых состояний и останову указанных энергоблоков.
1.5. Типовая инструкция предусматривает объем контрольно-измерительных приборов, автоматики и защит, предусмотренных соответствующими руководящими материалами.
1.6. При эксплуатации системы регенерации низкого давления следует дополнительно использовать следующие эксплуатационные и технические документы:
- паспорта на подогреватели низкого давления, конденсатные и сливные насосы и другое оборудование, входящее в систему;
-
Правила устройства и безопасной эксплуатации сосудов, работающих под давлением (М.: Недра, 1989);
- Правила технической эксплуатации электростанций и сетей (М.: Энергоатомиздат, 1989);
- Правила техники безопасности при эксплуатации тепломеханического оборудования электростанций и тепловых сетей (М.: Энергоатомиздат, 1989);
- Сборник распорядительных документов по эксплуатации энергосистем (теплотехническая часть) (М.: СПО ОРГРЭС, 1991);
- инструкции завода-изготовителя по монтажу и безопасной эксплуатации подогревателей низкого давления;
- тепловые схемы, схемы контрольно-измерительных приборов и управления, объем и условия действия технологических защит, блокировок и сигнализации, разработанные проектной организацией;
- тепловые схемы включения подогревателей и другого оборудования системы регенерации низкого давления, выполненные заводом-изготовителем турбины.
1.7. В настоящей Типовой инструкции приняты следующие понятия и термины:
- Подогреватель низкого давления - теплообменный аппарат, предназначенный для подогрева основного конденсата паром из отбора турбины;
- Система регенерации низкого давления - функциональная группа оборудования, включающая в себя несколько подогревателей низкого давления, конденсатные или сливные насосы, трубопроводы основного конденсата с запорной и защитной арматурой, трубопроводы греющего пара с арматурой, трубопроводы конденсата греющего пара с запорной и регулирующей арматурой, трубопроводы отсосов неконденсирующихся газов (воздуха) с арматурой, контрольно-измерительные приборы и средства автоматики;
- Температурный напор (недогрев основного конденсата в подогревателе) - разность между температурой насыщения пара при давлении в корпусе подогревателя и температурой основного конденсата на выходе из подогревателя;
- Нагрев основного конденсата в подогревателе - разность между температурой основного конденсата на входе и выходе из подогревателя.
1.8. В справочном
Приложении 1 приведено описание конструкций подогревателей низкого давления СЗЭМ и ПО ТКЗ, в справочном
Приложении 2 - контроль, управление, автоматическое регулирование, защиты и блокировки.
1.9. Условные обозначения, принятые в Типовой инструкции:
АВР - автоматическое включение резерва;
БЗК - бак запаса конденсата;
БНТ - бак низких точек;
БОУ - блочная обессоливающая установка;
БРОУ - быстродействующая редукционно-охладительная установка;
БЩУ - блочный щит управления;
ГПП - горячие нитки промперегрева;
КГП - конденсат греющего пара;
КИП - контрольно-измерительные приборы;
КОС - клапан обратный с сервоприводом;
КЭН - конденсатный электронасос;
ПВД - подогреватель высокого давления;
ПВС - паровоздушная смесь;
ПНД - подогреватель низкого давления;
ПС - подогреватель сальниковый,
ПСГ - подогреватель сетевой горизонтальный,
ПТН - питательный турбонасос;
ПЭН - питательный электронасос;
РВД - расширитель высокого давления;
РДТ - расширитель дренажей турбины;
РНД - расширитель низкого давления;
РОУ - редукционно-охладительная установка;
РСД - расширитель среднего давления;
СН - сливной насос;
ХОВ - химически обессоленная вода;
ЭО - эжектор паровой основной;
ЭУ - эжектор уплотнений.
2. ТРЕБОВАНИЯ БЕЗОПАСНОСТИ
2.1. При эксплуатации оборудования системы регенерации низкого давления необходимо соблюдать меры безопасности согласно действующим "Правилам техники безопасности при эксплуатации тепломеханического оборудования и тепловых сетей", "Правилам пожарной безопасности для промышленных предприятий", директивным и руководящим указаниям для ТЭС.
2.2. Обслуживающий персонал должен строго выполнять правила Госгортехнадзора по безопасной эксплуатации трубопроводов пара и горячей воды и сосудов, работающих под давлением.
До пуска в работу ПНД, подлежащие контролю согласно правилам Госгортехнадзора, должны быть зарегистрированы в органах Госгортехнадзора РФ, от которых должно быть получено разрешение на их эксплуатацию. Трубная система и корпус подогревателей должен подвергаться гидравлическим испытаниям на прочность и плотность согласно требованиям инструкции завода-изготовителя или правил Госгортехнадзора (Постановление Госгортехнадзора СССР N 13 от 13.05.87 г.).
2.3. Для контроля за работой и обеспечения безопасности системы регенерации низкого давления должны быть оборудованы контрольно-измерительными приборами, средствами защиты, блокировок и сигнализации.
2.4. Эксплуатация ПНД при параметрах пара и воды, превышающих значения, указанные в паспорте, не допускается.
2.5. Корпус подогревателя, трубопроводы, а также их фланцевые соединения и арматура должны иметь тепловую изоляцию. Температура поверхности изоляции при температуре окружающего воздуха 25 °C не должна превышать 45 °C. Поврежденная изоляция должна своевременно восстанавливаться.
2.6. Арматура, КИП и предохранительные устройства оборудования системы регенерации низкого давления должны быть установлены в местах, доступных для наблюдения и обслуживания, и оборудованы площадками и лестницами с ограждениями. Площадки и лестницы должны быть в исправном состоянии, сухими и чистыми и не должны загромождаться посторонними предметами.
2.7. Зона установки ПНД должна быть оборудована рабочим и аварийным освещением в соответствии с действующими нормами.
2.8. На работающем оборудовании запрещается производить какие-либо ремонтные работы или работы, связанные с ликвидацией неплотностей. При опробовании и прогреве трубопроводов пара и воды после ремонта подтяжку болтов фланцевых соединений следует производить при избыточном давлении не выше 0,5 МПа (5 кгс/см2).
2.9. Эксплуатация подогревателей не допускается в следующих случаях:
- при неисправности элементов любой блокировки;
- при неисправности клапана регулятора уровня;
- при отсутствии или неисправности контрольно-измерительных приборов измерения давления или уровня в корпусе;
- при выявлении неплотности в трубной системе;
- при обнаружении в основных элементах аппарата трещин, выпучин, недопустимого утонения стенок, течи в сварных швах, разрыва прокладок.
2.10. Задвижки и вентили на трубопроводах должны иметь надписи присвоенных им номеров, а также указатели направления вращения штурвала.
2.11. Запрещается открывать вентили выпуска воздуха и вентили опорожнения из трубопроводов и оборудования, находящихся в рабочем состоянии.
2.12. При продувке импульсных линий измерения давления пара или конденсата обслуживающий персонал должен располагаться по отношению к вентилю продувки так, чтобы выходящая струя среды не была направлена на него.
2.13. После замены водомерных стекол подогревателя необходимо включить их в работу с соблюдением следующих мер предосторожности:
- производить работу в рукавицах и очках;
- прогреть подключаемое стекло через продувочный кран постепенным открытием верхнего парового крана;
- после 10 - 15 - минутного прогрева стекла закрыть продувочный вентиль и верхний паровой отключающий кран;
- подключить стекло медленным открытием отключающих кранов, открывая сначала нижний кран.
2.14. Доступные для случайного соприкосновения вращающиеся части насоса должны быть надежно ограждены. Пуск и работа насоса без ограждения или с плохо закрепленными ограждениями запрещается.
2.15. На работающих насосах запрещается регулировать затяжку сальниковых уплотнений.
2.16. Насос должен быть аварийно отключен в следующих случаях:
- при появлении посторонних шумов в корпусе двигателя и насоса;
- при недопустимом перегреве подшипников насоса;
- при появлении внезапной сильной вибрации;
- при появлении дыма из подшипников электродвигателя или насоса;
- при появлении искр, дыма из электродвигателя;
- при разрыве или появлении течи напорного трубопровода насоса.
3. ТЕПЛОВАЯ СХЕМА ВКЛЮЧЕНИЯ ПНД
3.1. Система регенерации низкого давления предназначена для многоступенчатого регенеративного подогрева основного конденсата за счет охлаждения и конденсации пара из отборов турбины и тем самым повышения экономичности турбоустановки.
3.2. Система регенерации низкого давления состоит из нескольких подогревателей, включенных последовательно по основному конденсату.
Основными элементами схемы являются:
- поверхностные или смешивающие подогреватели низкого давления;
- охладители конденсата, охладители пара уплотнений, охладители эжекторов;
- конденсатные и сливные насосы;
- система трубопроводов основного конденсата с арматурой;
- система паропроводов подвода пара с арматурой;
- система отвода КГП из подогревателей с арматурой;
- система отвода неконденсирующихся газов;
- система дренажей и опорожнений.
Принципиальная схема системы регенерации низкого давления с поверхностными ПНД приведена на рис. 1.
Рис. 1. Принципиальная схема системы регенерации
низкого давления с поверхностными ПНД
3.3. Основной конденсат подается из конденсатора конденсатными насосами последовательно через охладитель пара уплотнений, охладители конденсата, охладители паровых эжекторов и далее регенеративные подогреватели в деаэратор или на сторону всасывания питательных насосов (в бездеаэраторных схемах).
В случаях, если схемой предусмотрены смешивающие подогреватели, - для подачи основного конденсата из них в линию основного конденсата используются конденсатные насосы II, III ступеней.
Принципиальная схема системы регенерации низкого давления со смешивающими ПНД приведена на рис. 2.
Рис. 2. Принципиальная схема системы регенерации
низкого давления со смешивающими ПНД
3.4. Арматура на входе и выходе основного конденсата, на подводе пара и отводе КГП из подогревателя позволяют при необходимости отключать по воде и пару поверхностные подогреватели во время работы. В этом случае используются линии обвода ПНД по основному конденсату и отводу КГП.
3.5. Пар к ПНД подается из отборов турбины. На паропроводах при необходимости устанавливаются отключающиеся задвижки и КОС, закрывающиеся при срабатывании защит турбины. Отказ от задвижек и КОС допускается на отдельных ПНД, подключенных к низкопотенциальным отборам.
3.6. Отвод конденсата греющего пара из корпусов подогревателя осуществляется каскадно из вышестоящего ПНД в нижестоящий и далее в конденсатор непосредственно или через расширитель дренажей турбины. Из узловых ПНД предусмотрена подача КГП в линию основного конденсата с использованием сливных насосов. Для поддержания необходимого уровня КГП в корпусах ПНД на трубопроводах отвода КГП установлены регулирующие клапаны регуляторов уровня.
3.7. Отвод неконденсирующихся газов из подогревателей осуществляется по каскадной схеме из вышестоящего ПНД в нижестоящий и далее в конденсатор турбины. Пропускная способность этих отводов ограничена установкой ограничительных шайб и арматуры, позволяющей отключить ПНД при выводе в ремонт. Для повышения экономичности ПНД, работающих под вакуумом, отвод воздуха из них в конденсатор осуществляется автономными трубопроводами.
3.8. Система дренажей и опорожнений регенерации низкого давления включает в себя:
- линии опорожнения трубопроводов основного конденсата;
- линии опорожнения корпусов ПНД и трубопроводов КГП;
- воздушники выпуска воздуха из трубной системы теплообменного оборудования и корпусов насосного оборудования.
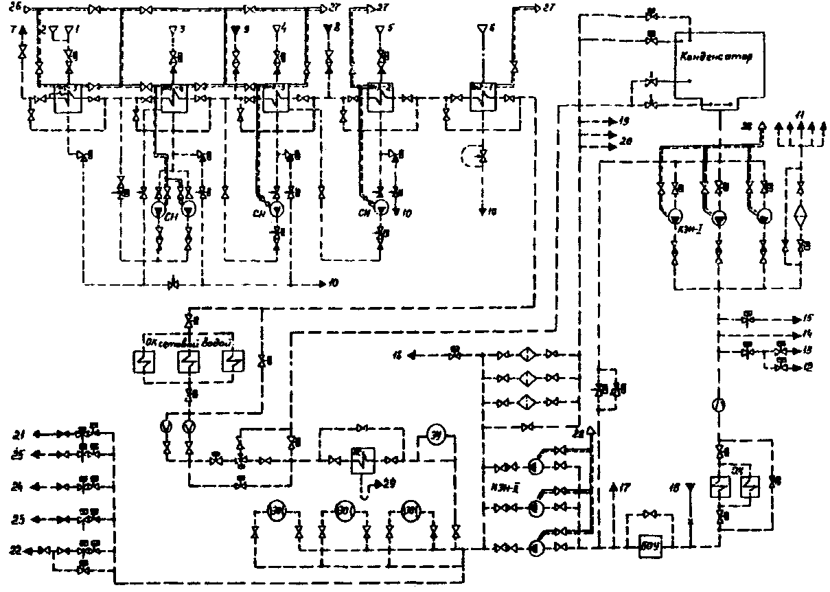
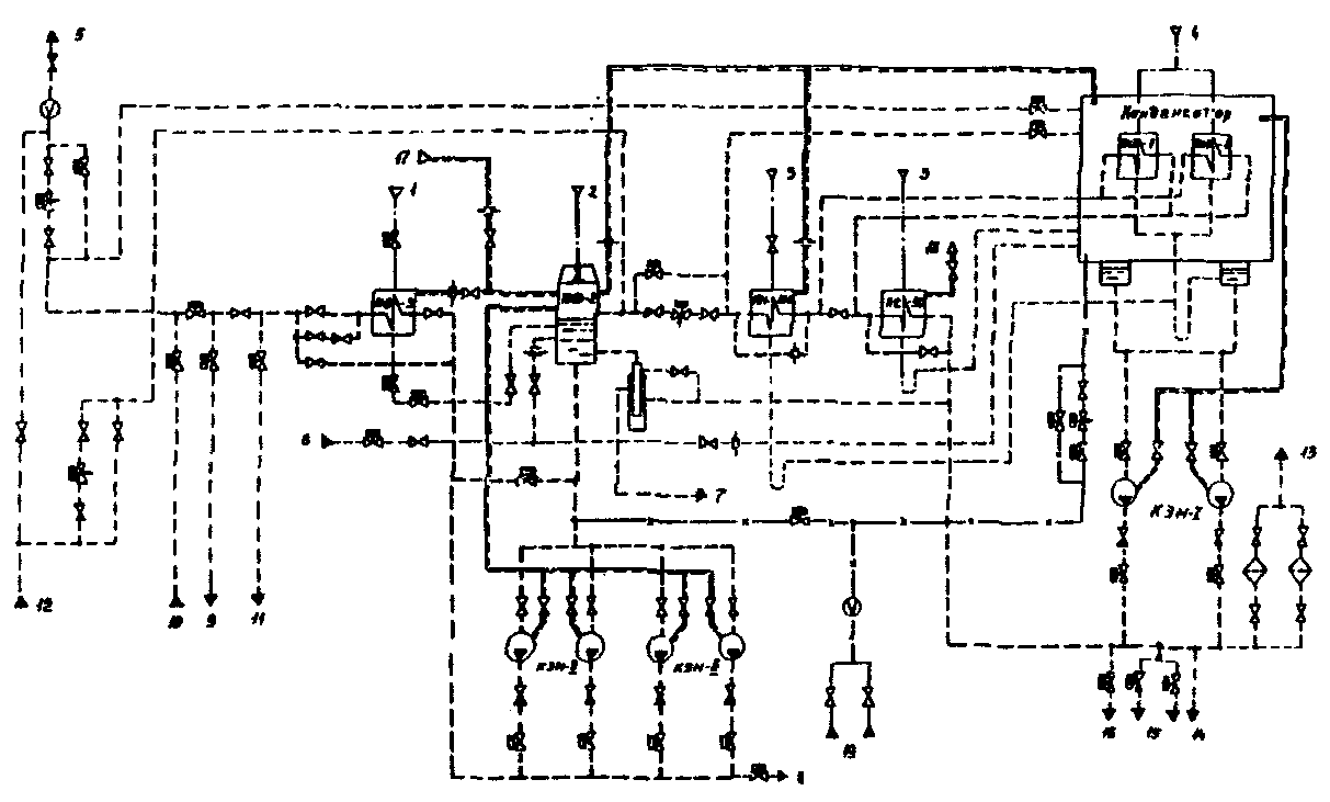
3.9. В энергоблоках тепловых электростанций применяются различные варианты схемных решений по системе регенерации низкого давления.
Системы регенерации могут выполняться как только с поверхностными ПНД, так и частично со смешивающими. Используемые в схемах сливные насосы могут устанавливаться по одному или два на одном, двух или трех ПНД (поверхностных). На смешивающих ПНД (в схемах могут быть один или два смешивающих подогревателя) количество устанавливаемых конденсатных насосов на каждый подогреватель различно. Схемы конденсатного тракта и регенерации низкого давления для различных энергоблоков тепловых электростанций приведены на
рис. 3 -
10.

1 - пар 5-го отбора турбины; 2 - пар 6-го отбора турбины; 3 - пар 7-го отбора турбины; 4 - пар 8-го отбора турбины; 5 - основной конденсат в деаэратор; 6 - конденсат греющего пара ПВД; 7 - конденсат греющего пара ПНД-1; 8 - конденсат греющего пара ПНД-2; 9 - конденсат из конденсатора ПТН; 10 - конденсат греющего пара теплофикационной установки; 11 - конденсат греющего пара испарительной установки; 12 - конденсат греющего пара бойлеров; 13 - конденсат из ПС-1 и ПС-2; 14 - конденсат m расширителя 2,0 МПа (20 кгс/см2); 15 - вода из расширителя дренажей низкого, среднего и высокого давления; 16 - конденсат в сливной канал и в коллектор грязного конденсата; 17 - конденсат в расширительный бак дренажей среднего и высокого давления; 18 - конденсат на сервомоторы стопорных и регулирующих клапанов турбины; 19 - конденсат на заполнение гидрозатворов от КЭН-1; 20 - конденсат на уплотнения КЭН-II и КЭН-III; 21 - конденсат на впрыски в РСД, РВД, Р-20 и к эжекторам ПТН и на сальники конденсатных насосов; 22 - конденсат на сальники НОР; 23 - конденсат на подпитку контуров водяного охлаждения генератора; 24 - конденсат на заполнение гидрозатворов ПС-1, ПС-2 и ПНД-1; 25 - конденсат на подпитку контура осушки газа; 26 - конденсат в расширительный бак низких точек; 27 - конденсат на уплотнения ПТН; 28 - конденсат на заполнение гидрозатворов от КЭН-III; 29 - конденсат с охлаждения сервомоторов клапанов турбины; 30 - конденсат с уплотнений ПТН; 31 - конденсат на захолаживание ПТН и промывку фильтров; 32 - конденсат к охладителю конденсата после КЭН-III; 33 - конденсат к охладителю конденсата испарителя; 34 - конденсат от охладителя конденсата испарителя; 35 - конденсат на концевые впрыски конденсатора, на впрыск после сбросных клапанов ЦСД, в коллектор собственных нужд; 36 - конденсат на защиту ПВД; 37 - конденсат на эжекторы ввода кислорода в тракт питательной воды; 38 - отсос от уплотнений турбины; 39 - выпар деаэратора в ПНД-2; 40 - отсос воздуха от теплофикационной установки в ПНД-2; 41 - выпар деаэратора испарительной установки в ПНД-2; 42 - отсос воздуха от подогревателя сырой воды в ПНД-2; 43 - отсос воздуха от ПНД-2 в ПНД-1; 44 - отсос воздуха от КЭН-II в ПНД-1; 45 - отсос от коллектора уплотнений ЦВД; 46 - отсос от уплотнений турбины; 47 - отсос от уплотнений турбопривода питательного насоса; 48 - отвод воздуха к эжектору уплотнений от ПС-1; 49 - конденсат в расширитель бака низких точек; 50 - отвод воздуха в конденсатор; 51 - постоянный добавок обессоленной воды в конденсатор; 52 - аварийный добавок обессоленной воды в конденсатор; 53 - подвод конденсата от линии аварийной подачи конденсата
Рис. 3. Схема конденсатного тракта к регенерации низкого
давления блока 800 МВт с турбиной К-800-240 ЛМЗ

1 - пар от 5-го отбора турбины; 2 - пар от 6-го отбора турбины; 3 - пар от уплотнений ЦВД и ЦСД; 4 - пар из системы обогрева фланцев и шпилек; 5 - пар от 7-го отбора турбины; 6 - пар от 8-го отбора турбины; 7 - основной конденсат в деаэратор; 8 - выпар из деаэратора; 9 - отсос от уплотнений турбопривода; 10 - отсос от уплотнений турбины; 11 - отсос на эжекторы; 12 - конденсат от подогревателей сетевой воды; 13 - конденсат на охлаждение сервомоторов; 14 - конденсат в контур охлаждения маслоохладителей; 15 - конденсат в контур охлаждения газоохладителей; 16 - конденсат в контур охлаждения обмоток статора генератора; 17 - сброс в бак грязного конденсата; 18 - сброс в сливной циркуляционный водовод; 19 - нормальный добавок в конденсатор; 20 - вода от насосов нормального добавка ХОВ; 21 - вода от насосов постоянного добавка ХОВ; 22 - конденсат на уплотнения ПТН и бустерного насоса ПТН; 23 - к насосам бака низких точек; 24 - на впрыск в расширитель дренажей высокого давления; 25 - на впрыск в РОУ 13/6; 26 - на конечный впрыск БРОУ; 27 - конденсат на уплотнения ПЭН и бустерного насоса ПЭН; 28 - к впускному клапану ПВД; 29 - впрыск на сброс из ГПП в конденсатор; 30 - конденсат на КОС
Рис. 4. Схема конденсатного тракта и регенерации низкого
давления блока 300 МВт с турбиной К-300-240 ЛМЗ
1 - пар от 5-го отбора турбины; 2 - пар от 6-го отбора турбины; 3 - пар от уплотнений турбины; 4 - пар от 7-го отбора турбины; 5 - основной конденсат на деаэратор; 6 - конденсат греющего пара основного бойлера; 7 - перелив ПНД-2 в конденсатор; 8 - конденсат в пароприемное устройство конденсатора; 9 - основной конденсат на экономайзер низкого давления; 10 - основной конденсат от экономайзера низкого давления; 11 - основной конденсат на калориферы котла; 12 - основной конденсат от калориферов котла; 13 - основной конденсат на КОС; 14 - основной конденсат на охлаждение сервомоторов ЦВД и ЦСД; 15 - основной конденсат на впрыск в пароохладители сброса из ГПП; 16 - основной конденсат на впрыск в расширитель дренажей высокого давления; 17 - паровоздушная смесь от ПВД; 18 - отсос паровоздушной смеси от эжектора уплотнений; 19 - добавок ХОВ воды в цикл
Рис. 5. Схема конденсатного тракта и системы регенерации
низкого давления блока 200 МВт с турбиной К-215-130-1 ЛМЗ

1 - пар от 5-го отбора турбины или от выхлопа ПТН; 2 - пар от уплотнении ЦВД и переднего уплотнения ЦСД-1; 3 - пар от 6-го отбора турбины; 4 - пар от 7-го верхнего, регулируемого отбора турбины; 5 - пар от 8-го нижнего, регулируемого отбора турбины; 6 - пар от 9-го отбора турбины; 7 - основной конденсат в деаэратор; 8 - конденсат греющего пара ПСГ-1; 9 - конденсат греющего пара ПСГ-2; 10 - конденсат греющего пара ПНД в расширитель конденсатора; 11 - основной конденсат на привод КОС; 12 - слив основного конденсата в бак грязного конденсата; 13 - слив основного конденсата в циркуляционный водовод; 14 - основной конденсат на впрыск в выпар расширителя дренажей блока; 15 - основной конденсат на консервацию основных и встроенных пучков; 16 - добавок ХОВ в линию основного конденсата; 17 - основной конденсат в вакуумный бачок; 18 - основной конденсат на уплотнения и охлаждение ПТН и ПЭН; 19 - основной конденсат на охлаждение ЦНД; 20 - основной конденсат в расширитель дренажей турбины; 21 - впрыск в охладитель пара отбора на калориферы; 22 - впрыск в паропровод от ГПП в расширитель конденсатора; 23 - впрыск в паропровод от пускосбросного устройства; 24 - впрыск в отбор пара на калориферы от 3-го отбора турбины; 25 - впрыск в охладитель пара РОУ 13/6; 26 - подвод паровоздушной смеси от ПВД; 27 - подвод паровоздушной смеси от ПНД; 28 - отвод паровоздушной смеси от КЭН-I и КЭН-II ступеней и конденсатор; 29 - конденсат от ПС-250 в расширитель конденсатора
Рис. 6. Схема конденсатного тракта и системы регенерации
низкого давления блока 250 МВт с турбиной Т-250/300-240 ТМЗ
1 - пар от 4-го отбора турбины; 2 - пар от 5-го отбора турбины; 3 - пар от 6-го отбора турбины; 4 - пар от 7-го отбора турбины; 5 - основной конденсат в деаэратор; 6 - основной конденсат на обессоливающую установку; 7 - основной конденсат на охлаждение выхлопного патрубка турбины; 8 - конденсат греющего пара ПВД; 9 - конденсат греющего пара ПНД-2 на ПСГ-2; 10 - конденсат греющего пара ПНД-3 на ПСГ-1; 11 - линия предпусковой деаэрации; 12 - дренаж коллектора высокого давления; 13 - дренаж коллектора среднего давления; 14 - нормальный добавок химически очищенной воды в конденсатор; 15 - дренаж в бак низких точек; 16 - отсос паровоздушной смеси от ПВД; 17 - линия промывки трубопровода основного конденсата
Рис. 7. Схема конденсатного тракта и системы регенерации
низкого давления блока 185 МВт с турбиной
Т-185/220-130 ТМЗ
1 - пар от 4-го отбора турбины; 2 - пар от 5-го отбора турбины; 3 - пар от 6-го верхнего регулируемого отбора турбины; 4 - пар от 7-го нижнего регулируемого отбора турбины; 5 - основной конденсат в деаэратор; 6 - конденсат греющего пара ПВД; 7 - конденсат греющего пара ПНД-2 в ПСГ-2; 8 - конденсат греющего пара ПНД-1 в ПСГ-1; 9 - конденсат греющего пара ПСГ-1 в линию основного конденсата; 10 - конденсат греющего пара ПСГ-2 в линию основного конденсата; 11 - конденсат пара ПС-50 в расширитель турбины; 12 - конденсат на впрыск в охлаждающие устройства ГПП и РОУ; 13 - основной конденсат на ввод КОС; 14 - основной конденсат на защитные устройства ПВД; 15 - основной конденсат на уплотнения ПЭН; 16 - питательная вода от всасывающего трубопровода ПЭН; 17 - нормальный добавок химически очищенной воды в конденсатор; 18 - опорожнение в линию аварийного слива бойлеров
Рис. 8. Схема конденсатного тракта и системы регенерации
низкого давления блока 130 МВт с турбиной Т-180/210-130 ЛМЗ

1 - пар от 5-го отбора турбины; 2 - пар от 6-го отбора турбины; 3 - пар от 7-го верхнего регулируемого отбора турбины; 4 - пар от 8-го нижнего регулируемого отбора турбины; 5 - основной конденсат в деаэратор; 6 - конденсат греющего пара ПСГ-1; 7 - конденсат греющего пара ПСГ-2; 8 - конденсат греющего пара ПНД-3 и ПНД-4 в расширитель конденсатора; 9 - конденсат греющего пара ПНД-2 в расширитель конденсатора; 10 - конденсат греющего пара ПНД-2 в ПСГ-2; 11 - конденсат греющего пара ПНД-1 в ПСГ-1; 12 - конденсат греющего пара ПСГ-1 в конденсатор; 13 - основной конденсат после конденсатных насосов в расширитель конденсатора; 14 - основной конденсат на ввод КОС; 15 - основной конденсат на защитные устройства ПВД; 16 - основной конденсат на уплотнения НЭП; 17 - нормальный добавок химически очищенной воды в конденсатор; 18 - подвод в линию основного конденсата из магистрали деаэрированной воды; 19 - промывка в линию аварийного слива; 20 - линия предпусковой деаэрации; 21 - отсос воздуха от конденсатных насосов в конденсатор
Рис. 9. Схема конденсатного тракта и системы регенерации
низкого давления блока 140 МВт с турбиной
ПТГ-140/165-130/15 ТМЗ
1 - пар от 4-го отбора турбины; 2 - пар от 5-го отбора турбины; 3 - пар от 6-го верхнего регулируемого отбора турбины; 4 - пар от 7-го нижнего регулируемого отбора турбины; 5 - основной конденсат в деаэратор; 6 - конденсат греющего пара ПВД; 7 - конденсат греющего пара ГКТ-1 в линию основного конденсата; 8 - конденсат греющего пара ПСГ-2 в линию основного конденсата; 9 - отсос паровоздушной смеси от ПВД; 10 - основной конденсат на ввод КОС в пароохладитель конденсатора; 11 - основной конденсат на уплотнения предохранительных клапанов и вакуумной арматуры; 12 - основной конденсат на уплотнения КЭН и ПЭН; 13 - выпар расширителя дренажей турбины в паровое пространство конденсатора; 14 - основной добавок ХОВ в конденсатор; 15 - опорожнение ПНД; 16 - пар на деаэратор подпиточной воды
Рис. 10. Схема конденсатного тракта и системы регенерации
низкого давления блока 100 МВт с турбиной
Т-100/120-130 ТМЗ
4. ОСНОВНЫЕ ТЕХНОЛОГИЧЕСКИЕ ПРИНЦИПЫ ОРГАНИЗАЦИИ РЕЖИМОВ
ВКЛЮЧЕНИЯ И ОТКЛЮЧЕНИЯ РЕГЕНЕРАТИВНОЙ УСТАНОВКИ
4.1. Подогреватели низкого давления включаются по основному конденсату одновременно с пуском конденсатного насоса турбины, а по пару одновременно с разворотом турбины.
4.2. Сброс КГП из ПНД осуществляется в начале по каскадной схеме со сбросом в конденсатор при отключенных сливных насосах или со сбросом КГП из узловых ПНД непосредственно в конденсатор.
4.3. Открытие паровых задвижек на трубопроводах, подводящих пар из отборов турбины к ПНД, осуществляется после организации пропуска воды по трубной системе.
4.4. Сливные насосы узловых ПНД включаются дистанционно при наборе приблизительно 50% нагрузки.
5. ПОДГОТОВКА К ПУСКУ РЕГЕНЕРАТИВНОЙ УСТАНОВКИ
5.1. Перед включением регенеративной установки в работу необходимо проверить:
- завершение всех ремонтных и наладочных работ, проводимых по нарядам и допускам;
- устранение всех дефектов и замечаний по работе оборудования системы регенерации, записанных в журнале дефектов оборудования.
5.2. После получения распоряжения о подготовке к пуску дежурный персонал должен:
- осмотром оборудования и запорной и регулирующей арматуры убедиться в их исправном состоянии;
- убедиться в готовности и чистоте рабочих мест и оборудования, отсутствии посторонних предметов, исправности рабочего и аварийного освещения и наличии противопожарного инвентаря;
- проверить исправность и подключение приборов КИП;
- проверить исправность и подключение водоуказательных стекол;
- проверить исправность изоляции.
5.3. Подготовку к пуску регенеративной установки следует проводить одновременно с подготовкой к пуску конденсационной установки.
5.4. Дать заявку на сборку схем электродвигателей насосов, дистанционного управления арматурой, подачу напряжения на питание КИП, устройства автоматики и сигнализации.
5.5. Включить все контрольно-измерительные приборы.
5.6. Произвести проверку защит, блокировок и сигнализации в соответствии с инструкцией по эксплуатации автоматики и защит.
5.7. Убедиться в том, что задвижки и обратные клапаны на трубопроводах отборов закрыты.
5.8. Опробовать дистанционное управление арматурой и клапанами, регулирующими уровень конденсата в подогревателях. Убедиться, что регулирующие клапаны на сливе КГП закрыты.
5.9. Проверить отсутствие воды в корпусах подогревателей и закрыть вентили опорожнения пароводяного пространства.
5.10. Включить сигнализацию предельного уровня в ПНД.
5.11. Убедиться в том, что конденсационная установка введена в работу в соответствии с имеющейся инструкцией по эксплуатации.
5.12. Подготовить схему основного конденсата для включения:
- открыть задвижки на входе и выходе основного конденсата ПНД;
- закрыть задвижки на обводах ПНД.
5.13. Собрать схему отсоса воздуха из ПНД по каскаду и далее в конденсатор. Убедиться в закрытии вентилей на линиях отсоса ПВС помимо подогревателей.
5.14. Собрать схему дренажей трубопроводов отборов пара на ПНД.
5.15. Открыть задвижки на трубопроводах отбора пара к ПНД. Подать воздух или конденсат для взведения обратных клапанов на отборах пара к ПНД. Убедившись, что все КОС взведены и стали на защелки, закрыть подачу воздуха или конденсата. Опробовать посадку КОС дистанционным воздействием на соленоиды защелки.
При удовлетворительной работе КОС, открыв подвод сжатого воздуха или конденсата, взвести клапаны, после чего закрыть подвод воздуха или конденсата.
Примечание. Запрещается включение отбора при неисправности на нем обратного клапана.
5.16. Подготовить к пуску конденсатные и сливные насосы подогревателей, для чего:
- проверить наличие и качество смазки подшипников насосов и электродвигателей;
- подать конденсат к уплотнениям насосов;
- подать воду на охлаждение подшипников;
- собрать электрические схемы электродвигателей насосов;
- открыть вентили на отводе воздуха из корпусов насосов;
- открыть задвижки на стороне всасывания насосов;
- закрыть или проверить закрытие задвижек на стороне нагнетания насосов.
5.17. Подготовить к работе деаэратор в соответствии с инструкцией по эксплуатации деаэратора.
5.18. Убедиться в том, что закрыты задвижки:
- на сливе КГП из ПНД в ПСГ-1 или ПСГ-2;
- на сливе КГП из ПСГ-1 или ПСГ-2 в линию основного конденсата;
- на линии промывки основного конденсата после последнего ПНД;
- на линии опорожнения тракта основного конденсата.
Примечание. При проведении предпусковой деаэрации с использованием оборудования системы регенерации низкого давления необходимо выполнить следующее:
- закрыть задвижку на линии основного конденсата на выходе из ПНД-2 или ПНД-3 (ПНД, после которого производится врезка в линию основного конденсата трубопровода от сливных насосов, используемых при проведении предпусковой деаэрации);
- закрыть задвижку на стороне всасывания сливных насосов (на общей линии);
- проверить открытие задвижек на стороне всасывания к каждому сливному насосу;
- закрыть задвижки на стороне нагнетания каждого сливного насоса;
- открыть задвижку на общей напорной линии сливных насосов и закрыть регулирующий клапан на ней;
- открыть задвижку на линии предпусковой деаэрации и заполнить сливные насосы водой из деаэратора;
- опробовать сливные насосы поочередно на закрытые напорные задвижки, убедиться в их нормальной работе;
- оставить в работе один насос, открыть напорную задвижку и частичным открытием регулирующего клапана установить требуемый расход воды в деаэратор для проведения предпусковой деаэрации;
- после проведения предпусковой деаэрации отключить сливной насос;
- закрыть задвижку на линии предпусковой деаэрации;
- открыть задвижку на стороне всасывания сливных насосов (на общей линии);
- открыть задвижку на линии основного конденсата за ПНД-2 (ПНД-3).
5.19. Подключить цепи регуляторов уровня в ПНД ко всем регулирующим клапанам.
6. ПУСК РЕГЕНЕРАТИВНОЙ УСТАНОВКИ
6.1. Подать химически обессоленную (химически очищенную) воду в конденсатор.
6.2. Убедиться в том, что конденсатные насосы находятся в работе.
6.3. Подключить по основному конденсату регенеративную установку.
6.3.1. При заполнении водой оборудования системы регенерации только с поверхностными ПНД необходимо выполнить следующие операции:
- заполнить трубные системы подогревателей, всасывающие патрубки и корпусы насосов и, при необходимости, деаэратор от конденсатных насосов турбины;
- после появления непрерывной струи из воздушников ПНД и насосов закрыть вентили на них.
6.3.2. При заполнении водой оборудования системы регенерации со смешивающими и поверхностными ПНД необходимо выполнить следующие операции:
- заполнить смешивающие подогреватели до нормального уровня, всасывающие патрубки и корпуса насосов, а также при необходимости ПНД-1 от конденсатных насосов турбины;
- после появления непрерывной струи закрыть воздушники на корпусах насосов и ПНД-1;
- поочередно включить КЭН смешивающих подогревателей на закрытую напорную задвижку и убедиться в том, что насос развивает нормальное давление, отсутствуют ненормальные шумы, стук и вибрация, сила тока не превышает допустимой величины.
Примечание:
- Не допускается работа насоса на закрытую напорную задвижку более 2 мин;
- оставить в работе один насос и постепенным открытием напорной задвижки заполнить трубные системы вышестоящих ПНД и при необходимости, деаэратор;
- после появления непрерывной струи закрыть воздушники на вышестоящих поверхностных ПНД.
6.4. Контролировать уровень воды в паровом пространстве подогревателей; при повышении уровня, что свидетельствует о неплотности трубной системы, вывести неплотный подогреватель в ремонт.
6.5. После заполнения трубной системы ПНД и, при необходимости, деаэратора водой прекратить подпитку ХОВ в конденсатор, поставив РУ добавка на автомат.
6.6. Восстановить действие блокировок по КЭН; проконтролировать открытие напорной задвижки резервного насоса по блокировке.
6.7. Закрыть вентили на линии отсоса воздуха из корпуса работающего насоса в смешивающий подогреватель, оставив открытым из корпуса насоса, находящегося в резерве.
Примечание. У насоса, находящегося в резерве, должны быть открыты:
- задвижки на стороне всасывания и стороне нагнетания;
- подвод конденсата на уплотнения сальников;
- подвод воды на охлаждение подшипников;
- отсос воздуха из корпуса насоса.
6.8. Нагружение ПНД по пару начинается вместе с разворотом турбины и набором нагрузки. При появлении уровня в ПНД необходимо проконтролировать соответствие показаний приборов на БЩУ с показаниями водоуказательных стекол, а также работу регуляторов уровня в подогревателях.
6.9. Закрыть дренажи паропроводов регенеративных отборов после взятия начальной нагрузки.
7. ОБСЛУЖИВАНИЕ СИСТЕМЫ РЕГЕНЕРАЦИИ ВО ВРЕМЯ РАБОТЫ
7.1. При эксплуатации оборудования регенерации низкого давления должны быть обеспечены:
- нормативные температуры основного конденсата за каждым подогревателем;
- надежность теплообменных аппаратов во всех режимах работы турбоустановки;
- оптимальные режимы работы конденсатных и сливных насосов.
7.2. При эксплуатации оборудования необходимо выполнять следующее:
- производить регистрацию показаний приборов, всех переключений и выявленных неисправностей оборудования;
- следить за правильностью положения уставок сигнализации и АВР;
- следить за исправностью КИП и автоматики.
7.3. В соответствии с графиком производить переход на резервное оборудование, опробование АВР насосов и проверку сигнализации предельного уровня в подогревателях.
7.4. При работе регенеративной установки необходимо вести наблюдение за:
- уровнем КГП в подогревателях, не допуская работы ПНД с затоплением трубных пучков и воздухоотсасывающих коллекторов, а также работы без уровня. Уровень конденсата должен поддерживаться в пределах 1/3 - 2/3 водоуказательного стекла;
- работой регуляторов уровня;
- давлением пара в отборах и подогревателях, не допуская работы с неполностью открытыми задвижками и КОС на паропроводах отборов;
- величиной нагрева и температурным напором в каждом подогревателе.
7.5. Наиболее экономичная работа турбоустановки достигается при обеспечении минимальных недогревов основного конденсата в регенеративных подогревателях. Недогрев основного конденсата не должен превышать 3 °C в ПНД без охладителя пара и 2 °C в ПНД с охладителем пара.
Причинами повышенного недогрева могут быть:
- неплотность задвижки на обводе основного конденсата помимо ПНД;
- неудовлетворительный отсос ПВС из корпусов ПНД, особенно работающих под разряжением;
- повышенные присосы воздуха в вакуумные подогреватели;
- уменьшение рабочей поверхности подогревателя из-за большого числа заглушенных трубок или затопления части поверхности при повышении уровня;
- тепловая перегрузка подогревателя в связи с недогрузкой или отключением предыдущего по ходу воды ПНД;
- ухудшение теплообмена в связи с загрязнением поверхности нагрева;
- повышение (более 7%) потери давления на участке "камера отбора - подогреватель" в связи с неполным открытием задвижки и КОС на паропроводе отбора.
7.6. При отключении какого-либо подогревателя оставшиеся должны быть загружены так, чтобы нагрев основного конденсата в каждой ступени не превышал 30 °C. При этом следует иметь в виду, что отключение ПНД ведет к снижению температуры основного конденсата перед деаэратором и возможному снижению давления в деаэраторе.
7.7. Регулярно, не менее двух раз в смену (перед приемкой и сдачей смены), необходимо производить обход оборудования и сверку показаний уровнемеров с водоуказательными стеклами и с записью в суточной ведомости.
7.8. Контролировать работу насосов, выполняя следующее:
- следить за состоянием фланцевых и болтовых соединений арматуры, не допуская протечки и подсосов через них;
- следить за состоянием электродвигателей насосов, не допуская их перегрузки;
- следить за температурой подшипников насосов, которая не должна превышать 65 °C;
- периодически проверять вибрацию корпусов подшипников насосов;
- следить за работой сальников насосов; при правильной затяжке сальников вода через них должна просачиваться каплями или тонкой струйкой; нагрев сальника указывает на слишком сильную затяжку или на недостаточное поступление охлаждающего конденсата.
7.9. При понижении давления на стороне нагнетания насоса, свидетельствующем об его перегрузке, подключить дополнительно резервный насос, не дожидаясь срабатывания АВР.
7.10. Следить за насосами, находящимися в резерве, поддерживая их постоянную готовность к включению; при этом должно быть выполнено следующее:
- полностью открыты задвижки на стороне всасывания и стороне нагнетания резервного насоса;
- проверено количество и качество масла в подшипниках;
- открыта подача охлаждающей воды на подшипники и сальники насосов, а также отсос воздуха из корпуса резервного насоса в соответствующий ПНД или конденсатор;
- подан конденсат к уплотнениям насосов.
7.11. При переходе с рабочего на резервный насос необходимо выполнить следующие операции:
- проверить готовность резервного насоса к работе
(п. 7.10);
- включить электродвигатель пускаемого насоса; убедиться в нормальной работе насосного агрегата и повышении давления в напорном коллекторе;
- поставить переключатель блокировок включенного насоса в положение "работа";
- закрыть отсос воздуха из корпуса включенного насоса;
- отключить останавливаемый насос и, убедившись в том, что давление в напорном коллекторе осталось в пределах нормы, поставить переключатель блокировок в положение "резерв";
- открыть отсос воздуха из корпуса остановленного насоса.
8. ВЫВОД В РЕМОНТ ОБОРУДОВАНИЯ СИСТЕМЫ РЕГЕНЕРАЦИИ
ПРИ РАБОТАЮЩЕЙ ТУРБИНЕ
8.1. Вывод в ремонт насосов
8.1.1. Если в схеме установлен один насос, то его вывод в ремонт производится в такой последовательности:
- перевести слив КГП соответствующего ПНД на конденсатор;
- отключить насос и разобрать его электросхему;
- закрыть арматуру на стороне всасывания и стороне нагнетания насоса, на отсосе воздуха из корпуса насоса и на подаче воды к подшипникам насоса и на уплотнение сальников;
- запорную арматуру запереть на замки и вывесить плакаты "Не открывать - работают люди".
8.1.2. При выводе в ремонт одного из нескольких установленных насосов выполнить следующие операции:
- включить в работу резервный насос;
- отключить насос, выводимый в ремонт; убедиться в том, что давление воды в общем напорном коллекторе не изменилось;
- разобрать электросхему отключенного насоса;
- закрыть подвод конденсата на уплотнение сальника и охлаждение подшипника насоса; проверить закрытие отсоса воздуха из насоса;
- закрыть задвижку на стороне всасывания насоса, контролируя изменение давления в насосе и работу включенных насосов, не допуская их срыва;
- открытием байпаса обратного клапана на стороне нагнетания насоса опрессовать насос: осмотреть корпус насоса, сальники, напорный и всасывающий патрубки, выявить дефекты;
- закрыть байпас обратного клапана и задвижку на стороне нагнетания насоса; резкое снижение давления на стороне всасывания насоса указывает на неплотность всасывающей задвижки; в этом случае вывод в ремонт насоса при работающей турбине недопустим, так как возможен подсос воздуха, срыв насоса и вакуума;
- при отсутствии замечаний при опрессовке насоса разобрать электросхему задвижки на стороне нагнетания, открыть задвижку на линии опорожнения насоса и на отключенную арматуру повесить цепи с замком и предупреждающие плакаты.
8.2. Вывод в ремонт подогревателя низкого давления
При работающем блоке все ПНД, кроме ПНД-1, не имеющего задвижки на подводе греющего пара, могут быть отключены.
При необходимости отключения подогревателя должны быть выполнены следующие операции:
- отключить подогреватель по пару, закрыв задвижку на паропроводе регенеративного отбора;
- закрыть задвижки на сливе КГП в нижестоящий подогреватель и задвижку на сливе КГП из вышестоящего подогревателя, обеспечив обвод отключаемого ПНД по КГП;
- открыть задвижку на байпасе подогревателя по основному конденсату;
- закрыть задвижки на трубопроводе подвода и отвода основного конденсата к подогревателю;
- открыть задвижку на линиях опорожнения парового пространства;
- закрыть вентили на линиях отсоса ПВС от отключаемого ПНД;
- снять блокировку по уровню (для узловых ПНД);
- разобрать электросхемы электрифицированных задвижек;
- арматуру закрыть на цепи с замком и вывесить предупредительные плакаты "Не открывать - работают люди".
9. ОСТАНОВ СИСТЕМЫ РЕГЕНЕРАЦИИ НИЗКОГО ДАВЛЕНИЯ
9.1. Плановый останов системы регенерации низкого давления производится одновременно с разгружением и остановом турбины.
9.2. При останове системы регенерации с поверхностными ПНД при снижении нагрузки турбины до определенного значения отключить сливной насос узлового нижестоящего ПНД, для чего:
- открыть задвижку на трубопроводе слива КГП в конденсатор;
- отключить сливной насос ПНД; проконтролировать нормальную работу регулирующего клапана на трубопроводе слива КГП в конденсатор.
9.3. При дальнейшем разгружении турбины отключить сливной насос узлового вышестоящего ПНД, для чего:
- снять с АВР сливной насос, находящийся в резерве;
- открыть задвижку на трубопроводе слива КГП в конденсатор;
- отключить работающий сливной насос; проконтролировать нормальную работу регулирующего клапана на трубопроводе слива КГП в конденсатор.
9.4. При останове системы регенерации со смешивающими ПНД необходимо выполнить следующее:
- при снижении нагрузки блока до определенного значения оставить в работе один из конденсатных насосов подогревателя, отключив работающий или сняв неработающий с АВР;
- при останове турбины и прекращении сбросов пара и воды в конденсатор отключить работающий насос ПНД, контролируя уровень в смешивающем подогревателе.
9.5. После останова турбины выполнить следующие операции:
- закрыть регулирующие клапаны уровня в ПНД и отключить цепи управления от регулятора к клапану;
- закрыть вентили на линиях отсоса ПВС из ПНД;
- закрыть задвижку на линии основного конденсата за последним ПНД;
- открыть вентили на дренажах трубопроводов отбора пара к ПНД;
- сдренировать паровое пространство подогревателя.
10. ПРОВЕРКА ГИДРАВЛИЧЕСКОЙ ПЛОТНОСТИ ПОДОГРЕВАТЕЛЕЙ
НИЗКОГО ДАВЛЕНИЯ
С целью своевременного выявления и устранения неплотностей в трубных системах подогревателей при плановых остановах турбины проводить гидравлическую опрессовку с подачей воды конденсатными насосами турбины.
После останова турбины и снижения вакуума в конденсаторе турбины до нуля при работающих конденсатных насосах выполнить следующее:
- закрыть или проверить закрытие задвижки на линии основного конденсата в деаэратор за последним ПНД;
- закрыть или проверить закрытие задвижек на линии слива КГП из ПНД в конденсатор, на стороне всасывания сливных насосов и на сливе КГП в нижестоящий ПНД;
- зафиксировать уровни конденсата в корпусах подогревателей по водомерным стеклам;
- следить за изменением уровня в течение 15 - 20 мин; при изменении уровня в корпусе ПНД со скоростью 1 см/мин подогреватель считается неплотным;
- вывести подогреватель в ремонт.
Для проверки плотности ПНД, не имеющих запорной арматуры на сливе КГП, используются специальные линии ревизии из нижней точки корпуса ПНД или трубопроводов гидрозатвора; если через 5 мин после открытия вентилей на линии ревизии будет течь с расходом 5 л/мин и более, подогреватель следует считать неплотным.
Примечания:
1. Во избежание режима работы конденсатных насосов без расхода и недопустимого повышения давления в тракте основного конденсата выше рабочего линию рециркуляции полностью не закрывать.
2. В схемах с БОУ контролировать давление за корпусами фильтров БОУ.
3. Схема выполнения линии ревизии из нижних точек ПНД или гидрозатвора приведены в п. 3.12 "Сборника распорядительных документов по эксплуатации энергосистем (теплотехническая часть). Часть 1".
11. ПЕРЕЧЕНЬ ВОЗМОЖНЫХ НЕИСПРАВНОСТЕЙ И МЕТОДЫ УСТРАНЕНИЯ
Возможные неисправности и методы их устранения
приведены в таблице.
Наименование неисправности | Причина неисправности | Метод устранения |
КОНДЕНСАТНЫЕ ИЛИ СЛИВНЫЕ НАСОСЫ |
1. Нет подачи перекачивающей жидкости или она снижена | 1.1. Неправильное вращение ротора насоса | 1.1. Изменить направление вращения ротора |
1.2. ПНД не заполнены водой | 1.2. Заполнить ПНД водой |
1.3. Закрыта задвижка на стороне всасывания частично или полностью | 1.3. Открыть всасывающую задвижку |
1.4. Закрыты задвижки на линии основного конденсата в смешивающий подогреватель или неисправен РУ подогревателя | 1.4. Открыть задвижку на линии основного конденсата или задвижку на байпасе РУ подогревателя |
2. Насос не развивает требуемого напора или расхода | 2.1. Расход конденсата выше подачи насоса | 2.1. Включить резервный насос |
2.2. Износ уплотнений | 2.2. Вывести насос в ремонт |
2.3. Подсос воздуха в кассе | 2.3. Проверить открытие вентиля на линии отсоса воздуха из насоса и давление воды, подаваемой на уплотнение |
2.4. Повреждено рабочее колесо | 2.4. Вывести насос в ремонт |
3. Перегрузка двигателя | 3.1. Производительность насоса выше номинальной | 3.1. Проверить давление и подачу насоса и отрегулировать ее не выше номинальной |
3.2. Туго затянуты сальники | 3.2. Отпустить гайку прижимной буксы |
3.3. Задевание в уплотнениях | 3.3. Вывести насос в ремонт |
3.4. Перекошены подшипники | 3.4. Устранить перекос |
4. Вибрация насоса | 4.1. Расцентровка роторов насоса и двигателя | 4.1. Вывести насос в ремонт |
4.2. Ротор имеет дисбаланс | 4.2. Вывести насос в ремонт |
4.3. Вибрация трубопроводов обвязки | 4.3. Устранить причину вибрации трубопроводов, усилить крепление трубопроводов |
4.4. Задевание вращающихся деталей за корпус | 4.4. Вывести насос в ремонт |
4.5. Большие зазоры в подшипниках | 4.5. Вывести насос в ремонт |
5. Неплотности в сальнике | 5.1. Износ или неправильно установлена набивка | 5.1. Набить сальники новой набивкой, соблюдая правила ее установки |
5.2. Быстрый износ набивки | 5.2. Прошлифовать поверхность защитной втулки в месте установки сальника |
5.3. Повышенное давление в линии охлаждения сальника | 5.3. Отрегулировать перепад давлений воды на сальник |
6. Перегрев подшипников | 6.1. Перекос подшипника | 6.1. Вывести насос в ремонт |
6.2. Неточная центровка насоса с двигателем | 6.2. Проверить центровку |
6.3. Недостаточное количество смазки или смазка засорена | 6.3. Добавить или замерить смазку |
6.4. Недостаточный расход воды на охлаждение подшипника | 6.4. Проверить положение арматуры на подводе воды к подшипнику и при необходимости увеличить степень ее открытия |
7. Перегрев сальника | 7.1. Конденсат не поступает к сальнику | 7.1. Проверить давление конденсата на подводе к сальнику |
7.2. Туго затянут сальник | 7.2. Отпустить гайку прижимной буксы |
8. Стук и удары в насосе | 8.1. Кавитация | 8.1. Увеличить подпор, снизить температуру конденсата |
8.2. Разрушение подшипника | 8.2. Вывести насос в ремонт для замены подшипника |
8.3. Повреждение в проточной части насоса | 8.3. Вывести насос в ремонт |
РЕГЕНЕРАТИВНЫЕ ПОДОГРЕВАТЕЛИ |
1. Недостаточный нагрев воды подогревателе | 1.1. Загрязнение трубной системы с паровой или водяной стороны | 1.1. Провести очистку поверхностей нагрева |
1.2. Наличие воздуха или неконденсирующихся газов в паровом пространстве подогревателя | 1.2. Уплотнить подогреватели, работающие под разрежением. Проверить схему отсоса паровоздушной смеси |
1.3. Дросселирование пара в подводящем паропроводе | 1.3. Проверить положение запорной паровой задвижки и КОС. Устранить дросселирование пара в этих элементах |
1.4. Повышенный уровень конденсата в подогревателе | 1.4. Восстановить нормальный уровень в ПНД |
2. Повышенный уровень конденсата корпусе подогревателя | 2.1. Разрыв трубок | 2.1. Отключить подогреватель; установить заглушки или отключить поврежденный участок трубной системы |
2.2. Засорение импульсной линии регулятора уровня. Отказ в работе регулятора | 2.2. Продуть импульсную линию. Отрегулировать работу регулятора |
2.3. Работающий насос не обеспечивает откачку конденсата из подогревателя | 2.3. Пустить резервный насос |
2.4. Частичное открытие задвижки на линии отвода КГП | 2.4. Полностью открыть задвижки |
3. Низкий уровень конденсата | 3.1. Неисправность автоматики поддержания уровня | 3.1. Наладить работу автоматики или перейти на дистанционное управление |
3.2. Неисправность регулирующего клапана на линии отвода КГП | 3.2. Отревизовать клапан, восстановить работоспособность клапана |
3.3. Частичное открытие задвижки на подводе пара к подогревателям | 3.3. Полностью открыть задвижки |
4. Гидравлические удары в паропроводах к подогревателям | 4.1. Наличие воды в паропроводах при пуске. Недостаточный прогрев паропроводов | 4.1. Полностью открыть дренажи из нижних точек паропроводов. Провести необходимый прогрев паропроводов перед пуском |
5. Гидравлические удары в трубопроводах основного конденсата и КГП | 5.1. Разрывы потока при быстром подключении и отключении трубопровода. Наличие воздуха в трубопроводе, наличие двухфазной среды в трубопроводах КГП | 5.1. Обеспечить возможность выпуска воздуха из трубопроводов, сосудов. Медленно подключать и отключать линии |
6. Увеличение гидравлического сопротивления подогревателя | 6.1. Занос трубок с водяной стороны продуктами коррозии | 6.1. Вывести подогреватель в ремонт. Произвести очистку поверхностей нагрева. Обеспечить работу с низким содержанием коррозионно-активных газов в конденсате |
6.2. Неполное открытие (заклинивание) водяной арматуры на линии основного конденсата | 6.2. Проверить и отревизовать водяную арматуру подогревателя |
7. Неплотность в перегородках водяных камер | 7. Разрыв сварных соединений между перегородками и в местах приварки их к обечайке водяной камеры | 7. Демонтировать водяную камеру, устранить неплотности |
Справочное
ОПИСАНИЕ КОНСТРУКЦИЙ ПОДОГРЕВАТЕЛЕЙ НИЗКОГО ДАВЛЕНИЯ
СЗЭМ И ПО ТКЗ
Подогреватели низкого давления выпускаются поверхностного и смешивающего типов. Саратовский завод энергетического машиностроения (СЗЭМ) специализируется на изготовлении только поверхностных ПНД для турбоустановок мощностью от 50 до 300 МВт и с поверхностью теплообмена до 400 м2 для турбоустановок энергоблоков ТЭС и 800 м2 для турбоустановок АЭС.
ПО "Красный котельщик" выпускает подогреватели как поверхностного типа с поверхностью теплообмена более 500 м2 для ТЭС и АЭС, так и смешивающего типа.
ПНД с поверхностью теплообмена 550 м2 и выше устанавливаются на турбоустановках 300 МВт и выше, а смешивающего типа - на 200 МВт и выше.
ПНД предназначены для регенеративного подогрева конденсата в основном при конденсации пара из отборов турбины, а также при охлаждении перегретого пара и конденсата и зависимости от тепловой схемы турбоустановки.
Конденсация греющего пара на трубках подогревателя происходит при температуре насыщения, соответствующей давлению пара в его паровом пространстве. Эта температура насыщения является пределом, до которого могла бы нагреться вода в подогревателе. Однако из-за наличия теплового сопротивления на пути передачи тепла от греющего пара к нагреваемой воде имеет место недогрев воды на 3 - 5 °C по сравнению с температурой насыщения.
Температурный напор (недогрев воды) является основным критерием эффективности работы подогревателя.
На величину температурного напора оказывает значительное влияние загрязнение трубок поверхностей нагрева (ухудшение коэффициента теплопередачи) и наличие воздуха и неконденсирующихся газов в паровом пространстве подогревателя. Воздух проникает в паровое пространство через неплотности во фланцевых соединениях трубопроводов и подогревателей, водоуказательных стекол и другие узлы подогревателей, работающих под разрежением. Неконденсирующиеся газы поступают в подогреватели с паром из отборов турбины. Наличие воздуха и неконденсирующихся газов существенно ухудшает теплоотдачу от конденсирующегося пара к стенкам трубок поверхности нагрева подогревателя, что приводит к увеличению температурного напора.
Для отвода воздуха и неконденсирующихся газов из корпусов подогревателей предусматривается система отсоса.
Пар, поступающий из отборов турбины к подогревателям, может быть перегретым. Для использования тепла перегрева, а также для охлаждения конденсата греющего пара ниже температуры насыщения поверхность теплообмена конструктивно разделяют на следующие зоны:
- зону охлаждения пара (ОП) - зону, в которой температура стенки выше температуры насыщения; происходит конвективный теплообмен при охлаждении перегретого пара; в этой зоне вода, проходящая по трубкам, может нагреться выше температуры насыщения;
- зону охлаждения конденсата (ОК) - зону, где происходит конвективный теплообмен при охлаждении конденсата греющего пара ниже температуры насыщения;
- зону конденсации пара (КП) - зону, где конденсируется греющий пар.
Основной поверхностью теплообмена во всех ПНД является зона КП. В зависимости от величины перегрева пара, необходимости переохлаждения его конденсата в одном корпусе ПНД могут быть встроены не только поверхность основной зоны КП, но и дополнительно к ней зоны ОП и ОК или ОП И ОК. Примеры двух принципиальных схем движения теплообменивающихся сред ПНД с одной зоной (КП) и с тремя зонами теплообмена (КП, ОК и ОП) представлены на рис. П1.1.
Рис. П1.1. Схема движения теплообменивающихся сред
и включения зон в ПНД: а - с одной зоной (КП) и двумя
ходами воды (I и II) в трубной системе; б - с тремя
зонами (ОП, КП и ОК и четырьмя ходами воды
(I, II, III и IV) в трубной системе
Оптимальной системой регенерации низкого давления для мощных энергоблоков является комбинированная, в которой подогреватели, связанные с вакуумными отборами турбины, переведены на смешивающий принцип. Такие подогреватели установлены на турбоустановках энергоблоков 200, 300, 500 и 800 МВт.
Все подогреватели, выпускаемые СЗЭМ, имеют вертикальное исполнение и фланцевый разъем на корпусе.
Наиболее распространенной конструктивной схемой ПНД является подогреватель типа ПН-400-26-7
(рис. П1.2). Он состоит из следующих основных узлов: водяной камеры, трубной системы и корпуса. В водяной камере установлена перегородка, разделяющая ее на три отсека и создающая четыре хода основного конденсата в трубной системе.
Рис. П1.2. Общий вид подогревателя ПН-400-26-7-1:
А - вход основного конденсата; Б - выход основного
конденсата; В - подвод греющего пара; Г - отвод конденсата
греющего пара; Д - подвод конденсата; Е - подвод
парогазовой смеси; Ж - отвод парогазовой смеси
Трубная доска крепится между фланцами камеры и корпуса. Плотность между трубной доской и фланцами, а также между перегородками водяной камеры и трубной доской обеспечивается с помощью паронитовых прокладок толщиной 1 - 1,5 мм. К отсекам водяной камеры приварены патрубки А, Б основного конденсата. В водяной камере шесть анкерных шпилек соединены с трубной доской на резьбе. Через камеру шпильки проходят в трубках, верхняя кромка которых приварена к крышке.
В отверстия трубной доски завальцованы концы труб поверхности теплообмена. Жесткость их обеспечивается перегородками, приваренными к каркасу трубной системы (швеллеры и трубы, приваренные к трубной доске).
Между внутренней стенкой корпуса и наружным диаметром перегородок имеется технологический зазор шириной 15 - 17 мм для установки трубного пучка в корпус.
В цилиндрической части корпуса приварены патрубки входа греющего пара В и выхода парогазовой смеси, а к эллиптическому днищу корпуса - патрубок выхода конденсата греющего пара Г.
Пар вводится через патрубок В, конденсируется на трубках поверхности теплообмена, а некоторая часть его совместно с неконденсирующимися газами и воздухом выводится через перфорированную трубу. Ввод КГП от вышестоящего подогревателя осуществляется через перфорированную трубу в нижнюю часть корпуса под уровень воды. Сливающийся КГП снизу через патрубок Г в днище выводится из подогревателя.
Наиболее совершенной конструкцией ПНД данного завода являются подогреватели типа ПН-350. В подогревателях этого типа
(рис. П1.3) выполнен кожух, плотно облегающий трубный пучок снаружи, который нижней кромкой опущен под уровень конденсата в корпусе, что предотвращает протечки пара помимо трубного пучка. В аппаратах ПН-350-16-7-1 и ПН-350-16-7-III в нижней части корпуса вварен стакан, который с нижней кромкой образует гидрозатвор. Греющий пар поступает в кольцевое пространство, образованное корпусом и внутренним кожухом, распределяется в нем и затем идет на трубный пучок.
Рис. П1.3. Общий вид подогревателя ПН-350-16-7-Ш.
С целью повышения вибрационной надежности трубная система в нижней части дополнительно закреплена отжимными болтами. Все промежуточные перегородки трубного пучка имеют по периферии бортик высотой 50 мм, обеспечивающий сбор и накопление на перегородках КГП, стекающего с расположенных над перегородкой труб. В трубках каркаса трубного пучка на уровне верхних плоскостей направляющих перегородок имеются окна, через которые накопленный конденсат отводится в нижнюю часть корпуса, что препятствует затоплению стекающим по поверхности труб конденсатом ниже расположенных участков труб и в итоге способствует повышению тепловой эффективности пучка.
В случае устройства в ПНД встроенного пароохладителя часть трубок, расположенных в центральной зоне корпуса, помещается в кожух прямоугольного сечения. Для образования зоны охладителя конденсата часть трубного пучка выделена в отдельную зону.
Трубная система во всех подогревателях набирается из U-образных трубок диаметром 16 мм и толщиной 1 мм, концы которых завальцованы в трубных досках. В ПНД с площадью теплообмена от 90 до 350 м2 и 800 м2 заводом применяются трубки из латуни Л68, Л070-1
(ГОСТ 15527-70) и сплава марки МНЖ5-1
(ГОСТ 492-73). В аппаратах ПН-400 с площадью теплообмена 400 м2, устанавливаемых в схемах блоков мощностью 250 и 300 МВт применяются, как правило, трубки из сплава МНЖ5-1 и нержавеющей стали 08Х18Н10Т
(ГОСТ 5632-72).
Во всех ПНД СЗЭМ плоские фланцы, начиная с 1985 г., были заменены воротниковыми.
Характерные конструктивные особенности подогревателей низкого давления ПО ТКЗ для турбин энергоблоков, работающих на органическом топливе, следующие:
трубные доски соединены с корпусом подогревателя сваркой;
расположение фланцевых разъемов различно: они могут быть расположены на водяных камерах выше трубной доски, а также выше патрубков подвода и отвода основного конденсата, что позволяет не производить отсоединения трубопроводов при ремонтах и осмотрах; могут располагаться на корпусе ниже трубной доски; ряд подогревателей изготовлен без разъема (в этом случае на обечайке или днище, а также в перегородках устанавливаются люки);
кованые воротниковые фланцы с мембранным уплотнением применены как на водяных камерах, так и на корпусах;
анкерные связи не выходят за пределы водяных камер;
трубы поверхности теплообмена выполнены П-образными; на промежуточных перегородках трубного пучка имеются устройства для сбора стекающего по поверхности труб конденсата греющего пара и отвода его из зон пучка в нижнюю часть аппарата;
дополнительное крепление трубной системы в корпусе осуществляется с помощью специальных отжимных болтов, что повышает ее вибрационную надежность;
трубки в трубных досках крепятся вальцовкой;
в ряде аппаратов применяются встроенные зоны ОП и ОК;
на корпусах подогревателей установлены конденсатные бачки для присоединения устройств, фиксирующих положение аварийных уровней воды в корпусе подогревателя и защищающих турбину от возможного попадания в нее воды из подогревателя при внезапных сбросах нагрузки.
В подогревателях низкого давления, изготовляемых ПО ТКЗ, в основном применяются трубки диаметром 16 мм и толщиной стенки 1 мм из сплава МНЖ5-1
(ГОСТ 5632-72). Остальные элементы этих подогревателей изготавливаются из углеродистой стали. На рис. П1.4 приведен чертеж подогревателя типа ПН-550-25-1-IV.
Рис. П1.4. Общий вид подогревателя ПН-550-25-1-IV.
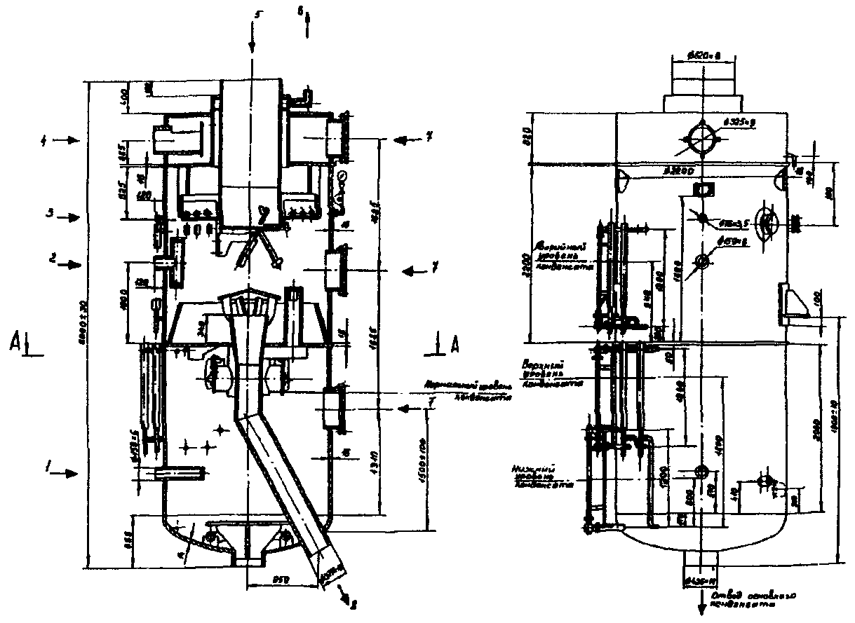
ПО ТКЗ также изготавливаются подогреватели низкого давления смешивающего типа, которые установлены на многих турбоустановках энергоблоков 200, 300, 500 и 800 МВт ТЭС.
Смешивающий подогреватель представляет собой аппарат сварной конструкции вертикального типа с внутренним диаметром 2200 мм и высотой 6000 мм. Основными элементами конструкции являются: верхняя камера, обечайка в сборе, полукорпус нижний, переливное устройство.
Аппарат разделен перегородкой на собственно подогреватель и конденсатосборник. Разделяющая перегородка имеет устройство для слива конденсата в конденсатосборник, оборудованное четырьмя обратными клапанами, и уравнительный патрубок. Подогреватель снабжен переливным устройством, приемная воронка которого расположена на 340 мм выше перегородки.
В верхней части подогревателя расположен тарельчатый блок, выполненный заодно с паровым патрубком и предназначенный для дробления основного конденсата на струи.
На паровом патрубке установлен обратный клапан, выполненный в виде поворотного диска, предотвращающий обратный поток пара в турбину.
В нижней части конденсатосборника установлен кольцевой коллектор ввода конденсата греющего пара из ПНД-3. В конденсатосборник вводится также рециркуляция КЭН, установленных на трубопроводе отвода КГП, и другие сбросы (от уплотнений турбины, из системы обогрева фланцев и шпилек и т.п.). Общий вид смешивающего подогревателя типа ПНСВ-800-2 и схема движения потоков пара и воды представлена на
рис. П1.5 и
П1.6.
1 - подвод конденсата из уплотнений питательных насосов;
2 - подвод дренажа сетевых подогревателей; 3 - подвод
паровоздушной смеси ПНД-3; 4 - подвод основного конденсата;
5 - подвод греющего пара; 6 - отвод паровоздушной смеси;
7 - лаз; 8 - аварийный слив основного конденсата
Рис. П1.5. Общий вид подогревателя ПНСВ-800-2
1 - отвод основного конденсата; 2 - подвод конденсата
рециркуляции КЭН-II; 3 - подвод конденсата из уплотнений
питательных насосов; 4 - подвод дренажа сетевых
подогревателей; 5 - подвод паровоздушной смеси; 6 - подвод
основного конденсата; 7 - подвод греющего пара; 8 - лаз;
9 - подвод дренажа из ПНД-3; 10 - аварийный слив
основного конденсата
Рис. П1.6. Схема движения пара и воды
подогревателя ПНСВ-890-2
Основной конденсат через патрубок в верхней части подогревателя поступает в водяную камеру. Через дырчатое дно водяной камеры конденсат стекает на перфорированную тарелку, образуя первый кольцевой струйный пучок. Проходя через тарелку (второй струйный пучок), конденсат поступает в конденсатосборник.
В конденсатосборнике аппарата поддерживается уровень, обеспечивающий постоянный подпор на стороне всасывания КЭН-II. Кроме того, при нормальном уровне обеспечивается дополнительный нагрев конденсата за счет тепла потока КГП, подводимого из ПНД-3.
Греющий пар через обратный поворотный клапан поступает ко второму струйному пучку. Пересекая струи этого пучка от центра к периферии, пар частично конденсируется. Далее паровой поток проходит через кольцевой зазор между корпусом подогревателя и бортом тарелки и поступает к первому струйному пучку. В этом пучке при движении пара от периферии к центру заканчивается конденсация основной массы. Часть пара вместе с неконденсирующимися газами по кольцевому зазору между водяной камерой и паровой трубой поступает в паровое пространство водяной камеры и частично конденсируется на поверхность конденсата.
Паровоздушная смесь отводится в конденсатор из верхней части водяной камеры. Обратный поворотный клапан на паровом патрубке и клапаны на перегородке предотвращают обратный поток пара в турбину из-за вскипания конденсата, находящегося в конденсатосборнике и в слое на перегородке при сбросах нагрузки блока.
Выравнивание давления в подогревателе происходит через уравнительный патрубок и кольцевую перфорацию в перегородке.
В таблицах П1.1 и
П1.2 приведены технические характеристики системы регенерации низкого давления и подогревателей.
Таблица П1.1
Технические характеристики системы регенерации
низкого давления
Тип турбоустановки | N отбора | Расчетные парамеры на номинальном режиме | Устанавливаемые ПНД |
Номинальный расход основного конденсата, т/ч | Давление, МПа | Температура, °C | Расход, т/ч | N ПНД | Количество | Тип подогревателя | Завод |
ПТ-80/100-130/13 ЛМЗ | 4 | 350 | 0,410 | 169 | 28,4 | П4 | 1 | ПН-200-16-7-I | СЗЭМ |
| 5 | 350 | 0,088 | - | - | ПЗ | 1 | ПН-200-16-7-I | |
| 6 | 230 | 0,034 | - | - | П2 | 1 | ПН-130-16-10-II | |
| 7 | - | 0,003 | - | - | П1 | - | Встроен в конденсатор | |
Т-110/120-130 ТМЗ | 4 | 400 | 0,570 | 190 | 11,4 + 6,2 | П4 | 1 | ПН-250-16-7-IVсв | СЗЭМ |
| 5 | 400 | 0,294 | 133 | 22,2 | П3 | 1 | ПН-250-16-7-IVсв | |
| 6 | 400 | 0,098 | - | 7,0 | П2 | 1 | ПН-250-16-7-IVсв | |
| 7 | 400 | 0,037 | - | 0,6 | П1 | 1 | ПН-250-16-7-IVсв | |
ПТ-140/165-130/15 ТМЗ | 4 | 750 | 0,530 | 183 | 32,1 | П4 | 2 | ПН-400-26-8-V | СЗЭМ |
| 5 | 750 | 0,250 | 127 | 32,7 | П3 | 2 | ПН-400-26-7-II | |
| 6 | 750 | 0,080 | - | 8,4 | П2 | 1 | ПН-350-16-7-II | |
| 7 | 750 | 0,020 | - | | П1 | 1 | ПН-350-16-7-I | |
Т-180/210-130 ТМЗ | 4 | 490 | 0,652 | 360 | 28,5 | П4 | 1 | ПН-350-16-7-III | СЗЭМ |
| 5 | 490 | 0,259 | 249 | 21,8 | ПЗ | 1 | ПН-350-16-7-III | |
| 6 | 490 | 0,098 | 152 | 7,8 | П2 | 1 | ПН-350-16-7-III | |
| 7 | 575 | 0,049 | 98 | 1,6 | П1 | 1 | ПН-350-16-7-I | |
Т-185/220-130 ТМЗ | 4 | 750 | 0,584 | 185 | 31,6 | П4 | 1 | ПН-400-26-7-Vм | СЗЭМ |
| 5 | 750 | 0,285 | - | 33,0 | П3 | | ПН-400-26-7-II | |
| 6 | 750 | 0,098 | - | 13,0 | П2 | 1 | ПН-400-26-7-II | |
| 7 | 750 | - | - | - | П1 | 1 | ПН-400-26-7-II | |
Т-250/300-240-2 ТМЗ | 5 | 750 | 0,544 | 348 | 17 + 13,2 | П5 | 1 | ПН-400-26-7-I | СЗЭМ |
| 6 | 750 | 0,284 | 229 | 38,9 | П4 | 1 | ПН-400-26-7-II | |
| 7 | 750 | 0,093 | 128 | 16,3 | П3 | 1 | ПН-400-26-7-II | |
| 8 | 750 | 0,027 | 68 | 2,5 | П2 | 1 | ПН-400-26-7-II | |
| 9 | 750 | - | - | - | П1 | 1 | ПН-400-26-2-IV | |
К-160/170-130 ХТЗ | 3 | 350 | 0,760 | 384 | 7,3 | П5 | 1 | ПН-200-16-7-I | СЗЭМ |
| 4 | 400 | 0,460 | 322 | 23,0 | П4 | 1 | ПН-250-16-7-I | |
| 5 | 400 | 0,145 | 200 | 12,6 | П3 | 1 | ПН-250-16-7-I | |
| 6 | 400 | 0,073 | 138 | 13,7 | П2 | 1 | ПН-250-16-7-II | |
| 7 | 400 | 0,034 | 80 | 20,1 | П1 | 1 | ПН-250-16-7-IIIх | |
К-200-130-7 ЛМЗ | 4 | 575 | 0,650 | 359 | 25,9 | П4 | 1 | ПН-350-16-7-I | СЗЭМ |
| 5 | 575 | 0,270 | 255 | 18,7 | П3 | 1 | ПН-350-16-7-II | |
| 6 | 400 | 0,130 | 174 | 19,8 | П2 | 1 | ПН-350-16-7-III | |
| 7 | - | 0,040 | 77 | 17,6 | П1 | 1 | Встроен в конденсатор | |
К-210/215-130 ЛМЗ | 5 | 750 | 0,281 | 256 | 18,1 | ПЗ | 1 | ПН-400-26-7-I | СЗЭМ |
| 6 | - | 0,128 | 174 | 30,7 | П2 | 1 | ПНСВ-800-2 | ТКЗ |
| 7 | - | 0,026 | 66 | 25,0 | П1 | - | Встроен в конденсатор | |
К-300/310-240 ЛМЗ | 5 | 780 | 0,500 | 276 | 37,9 | П4 | 1 | ПН-550-25-6-I | ТКЗ |
| 6 | 780 | 0,230 | 230 | 23 + 6 | П3 | 1 | ПН-550-25-6-II | |
| 7 | - | 0,085 | 114 | 45,6 + 0,8 | П2 | | ПНСВ-800-2 | |
| 8 | 660 | 0,015 | - | - | П1 | | ПН-550-25-1-IV | |
К-300/310-240-2 ХТЗ | 5 | 750 | 0,672 | 339 | 24 | П5 | | ПН-400-26-7-I | СЗЭМ |
| 6 | 750 | 0,413 | 284 | 19 | П4 | | ПН-400-26-8-V | |
| 7 | 750 | 0,243 | 260 | 22 | П3 | | ПН-400-26-7-II | |
| 8 | 750 | 0,062 | 106 | 17 | П2 | | ПН-400-26-7-II | |
| 9 | 750 | 0,027 | 64 | 24,5 | П1 | | ПН-400-26-2-IV | |
К-500-240-4 ЛМЗ | 5 | 1310 | 0,473 | 267 | 50 | П4 | 1 | ПН-850-25-6-I | ТКЗ |
| 6 | 1310 | 0,263 | 203 | 60,4 | П3 | 1 | ПН-1100-25-6-I | |
| 7 | - | 0,107 | 122 | 73,8 | П2 | 1 | ПНСВ-2000-2 | |
| 8 | - | 0,019 | 58,5 | 50,6 | П1 | 1 | ПНСВ-2000-I | |
К-800-240-5 ЛМЗ | 5 | 1940 | 0,588 | 311 | 91 | П4 | 1 | ПН-1900-32-6-I | ТКЗ |
| 6 | 1937 | 0,284 | 231 | 87,6 | П3 | 1 | ПН-1900-32-6-II | |
| 7 | - | 0,114 | 147 | 1183 | П2 | 1 | ПНСВ-2000-2 | |
| 8 | - | 0,020 | 60 | 87,6 | П1 | 1 | ПНСВ-2000-1 | |
Таблица П1.2
Технические характеристики ПНД
Тип подогревателя | Номинальный расход воды, т/ч | Расчетные параметры | Расчетный тепловой поток,  Вт/ккал/ч | Гидравлическое сопротивление при номинальном расходе воды, МПа/м вод. ст | Площадь поверхности нагрева | Габаритные размеры | Масса, т |
Давление воды в трубной системе, МПа/кгс/см2 | Давление пара в корпусе, МПа/кг/см2 | Максимальная температура пара, °C | Полная | Зона охладителя пара | Зона охладителя конденсата | Высота, мм | Диаметр корпуса, мм | сухого | заполненного водой |
ПН-130-16-10-II | 230 | 1,6/16 | 1,0/10 | 400 | 73/6,3 | 0,088/9,0 | 130 | - | - | 4680 | 1020 | 3,9 | 7,0 |
ПН-200-16-7-I | 350 | 1,6/16 | 0,7/7 | 240 | 10,2/8,8 | 0,069/7,0 | 200 | - | - | 4820 | 1224 | 6,0 | 10,6 |
ПН-250-16-7-I | 400 | 1,6/16 | 0,7/7 | | | | 250 | - | - | | | | |
ПН-250-16-7-IIсв | 400 | 1,6/16 | 0,7/7 | 425 | 11,6/10,0 | 0,042/4,2 | 250 | - | - | 5588 | 1224 | 6,7 | 12,1 |
ПН-250-16-7-IIIх | 400 | 1,6/16 | 0,7/7 | | | | 250 | - | - | | | | |
ПН-250-16-7-IIIсв | 400 | 1,6/16 | 0,7/7 | 400 | 11,6/10,0 | 0,098/10,0 | 250 | - | - | 5275 | 1224 | 6,8 | 11,7 |
ПН-250-16-7-IVсв | 400 | 1,6/16 | 0,7/7 | 400 | 11,6/10,0 | 0,098/10,0 | 250 | - | - | 5275 | 1224 | 6,5 | |
ПН-350-16-7-I | 575 | 1,6/16 | 0,7/7 | 400 | 24,0/20,6 | 0,057/5,8 | 352 | 24 | - | 5827 | 1424 | 10,2 | 11,4 |
ПН-350-16-7-II | 575 | 1,6/16 | 0,7/7 | 400 | 17,1/14,7 | 0,053/5,4 | 351 | - | 29 | 5827 | 1424 | 10,8 | 17,6 |
ПН-350-16-7-III | 490 | 1,6/16 | 0,7/7 | 400 | 24,3/20,9 | 0,048/4,9 | 350 | - | - | 5827 | 1424 | 10,4 | 17,4 |
ПН-400-26-2-IV | 750 | 2,6/26 | 0,7/7 | 300 | 15,7/13,5 | 0,044/4,5 | 400 | - | - | 5655 | 1624 | 12,5 | 17,8 |
ПН-400-26-7-I | 750 | 2,6/26 | 0,7/7 | 400 | 20,9/18,0 | 0,098/10,0 | 478 | 98 | - | 6043 | 1624 | 13,7 | 23,1 |
ПН-400-26-7-II | 750 | 2,6/26 | 0,7/7 | 400 | 26,7/23,0 | 0,044/4,5 | 400 | - | | | | | |
ПН-400-26-8-V | 750 | 2,6/26 | 0,7/7 | 400 | 26,8/23,0 | 0,044/4,5 | 400 | - | - | 5655 | 1624 | 12,3 | 21,9 |
ПН-550-25-1-IV | 660 | 2,5/25 | 0,1/1 | 285 | 19,4/16,7 | 0,098/10,0 | 580 | - | - | 6450 | 1632 | 17,4 | 31,0 |
ПН-550-25-6-I | 780 | 2,5/25 | 0,6/6 | 320 | 23,8/20,5 | 0,098/10,0 | 580 | 38,5 | - | 6450 | 1632 | 17,0 | 30,6 |
ПН-550-25-6-II | 780 | 2,5/25 | 0,6/6 | 285 | 26,3/22,6 | 0,098/10,0 | 578 | - | 28 | 6730 | 1632 | 18,1 | 32,3 |
ПН-850-25-6-I | 1310 | 2,5/25 | 0,6/6 | 350 | 32,4/27,9 | 0,12/1,2 | 870 | 130 | - | 7700 | 1832 | 224 | 38,0 |
ПН-1100-25-6-I | 1310 | 2,5/25 | 0,6/6 | 350 | 44,8/384 | 0,11/11,0 | 1117 | 158 | 120 | 7950 | 2040 | 284 | 50,0 |
ПН-1900-32-6-I | 1940 | 3,2/32 | 0,6/6 | 310 | 65,5/56,3 | 0,064/6,5 | 1937 | - | - | 8970 | 2650 | 48,4 | 90,3 |
ПН-1900-32-6-II | 1937 | 3,2/32 | 0,6/6 | 310 | 69,9/60,1 | 0,068/6,9 | 1937 | - | - | 8970 | 2650 | 49,4 | 91,3 |
ПНСВ-800-2 | 800 | - | 0,08/8 | 134 | - | - | | - | - | 6000 | 2200 | - | 28,0 |
ПНСВ-2000-1 | 1800 | - | 0,021/0,21 | 60,7 | - | | | - | - | 8950 | 3300 | - | 85,6 |
ПНСВ-2000-2 | 1900 | - | 0,11/1,1 | 143 | - | | | - | - | 8950 | 3300 | - | 86,5 |
Справочное
КОНТРОЛЬ, УПРАВЛЕНИЕ, АВТОМАТИЧЕСКОЕ РЕГУЛИРОВАНИЕ,
ЗАЩИТЫ И БЛОКИРОВКИ
1. Контрольно-измерительные приборы
1.1. Перечень контролируемых параметров, место и форма их представления и использования предусматривается в соответствии с "Методическими указаниями по объему технологических измерений, сигнализации, автоматического регулирования на тепловых электростанциях: РД 34.35.101-88" (СПО Союзтехэнерго, 1990) и комплектацией завода-изготовителя, представлены в таблице.
Измеряемые или регулируемый параметры | Форма предоставления информации |
БЩУ | по месту |
по требованию | сигнализация |
1. | Давление пара в камерах регулируемых отборов | + | | + |
2. | Давление пара в регенеративных подогревателях | + | | + |
3. | Давление основного конденсата на входе и выходе системы регенерации | | | + |
4. | Давление конденсата во входном и напорном патрубках сливных и конденсатных насосов | + | | + |
5. | Температура пара регенеративных отборов | + | | |
6. | Температура конденсата после конденсатора и перед деаэратором | + | | + |
7. | Температура основного конденсата на входе и выходе каждого ПНД | + | | |
8. | Температура конденсата греющего пара ПНД | + | | |
9. | Температура конденсата на сливе через гидрозатвор (для смешивающих ПНД) | + | | + |
10. | Расход основного конденсата | + | | + |
11. | Уровень в подогревателе | + | | + |
1.2. Контроль за положением регулирующего клапана осуществляется по индивидуальным указателям положения.
1.3. При отклонении уровня в любом ПНД, а также при срабатывании защит и блокировок оператор энергоблока оповещается световой и звуковой сигнализацией.
1.4. Управление системой регенерации низкого давления производится с БЩУ, для чего на БЩУ выводится вся необходимая информация.
1.5. К дистанционно-управляемой с БЩУ арматуре относятся:
задвижки на подводе пара ко всем ПНД;
задвижки на подводе конденсата на охлаждение гидрозатвора на сливе КГП;
задвижки на напорном трубопроводе СН или КЭН2 (3);
задвижки на линии рециркуляции КЭН в смешивающий подогреватель;
регулирующие клапаны уровня на всех ПНД;
задвижки на трубопроводах слива КГП в конденсатор.
2. Автоматическое регулирование
Все ПНД оборудуются автоматическими регуляторами уровня конденсата в корпусе подогревателя, не имеющего непосредственного слива через гидрозатвор (по одному регулятору на каждый подогреватель); на подогревателе, имеющем две системы слива, дополнительно устанавливаются аварийные регуляторы уровня.
Поддержание нормального уровня в заданном диапазоне осуществляется регулирующим клапаном на сливе КГП в нижестоящий по давлению подогреватель или конденсатор.
Регуляторы получают импульсы от датчиков уровня. Задание по уровню устанавливается ручными задатчиками, входящими в комплект авторегуляторов. Схемы и типы применяемой в авторегуляторах аппаратуры выбирает проектная организация.
3.1. При останове турбины и закрытии любого стопорного клапана ЦВД и любого стопорного клапана ЦСД происходит закрытие обратных клапанов и закрытие задвижек на отборах пара к ПНД.
3.2. При повышении уровня в любом ПНД до определенного предела или закрытии более чем одного стопорного клапана закрывается задвижка на отборе пара к данному ПНД (защита выполняется на ПНД по требованию завода-изготовителя турбины).
Блокировки по системе регенерации выполняются по требованию заводов-изготовителей турбины.
4.1. Блокировки по оборудованию и арматуре системы регенерации низкого давления с поверхностными ПНД
4.1.1. Регулирующий клапан на сливе КГП из ПНД-2 в конденсатор:
при полном открытии регулирующего клапана на сливе КГП в конденсатор регулятор уровня в ПНД-2 отключается и подключается к регулирующему клапану на стороне нагнетания СН;
после включения СН регулирующий клапан на сливе КГП в конденсатор закрывается с выдержкой времени 15 с;
после отключения обоих СН регулятор уровня в ПНД-2 отключается от регулирующего клапана на стороне нагнетания СН и подключается к регулирующему клапану на сливе КГП в конденсатор;
при повышении уровня в ПНД-2 выше определенного предела регулирующий клапан на сливе КГП в конденсатор открывается полностью.
4.1.2. Автоматическое включение и отключение рабочего СН:
при полностью открытом регулирующем клапане на сливе КГП из ПНД-2 в конденсатор или повышении уровня до заданного предела (II предел) и начале открытия регулирующего клапана на стороне нагнетания СН включается рабочий СН;
при закрытии регулирующего клапана на стороне нагнетания СН до заданного значения или при понижении уровня в ПНД-2 ниже определенного предела (I предела) отключается работающий СН с выдержкой времени 15 с;
работающий СН автоматически отключается с выдержкой времени 2 мин, если задвижка на стороне нагнетания не открылась.
4.1.3. Задвижка на стороне всасывания СН:
если СН участвуют в предпусковой деаэрации, то при открытии задвижки на подаче ХОВ сначала закрывается задвижка на стороне всасывания к СН и наоборот.
4.1.4. Задвижка на сливе КГП в ПНД-3 (ПНД-4).
В случае применения конструкции ПНД со встроенным охладителем дренажа задвижка на сливе КГП с нижней части подогревателя при повышении давления в подогревателе до заданного значения и открывается с выдержкой времени 15 с при понижении давления ниже заданной величины.
4.2. Блокировки по оборудованию и арматуре системы регенерации низкого давления с поверхностными и смешивающими ПНД
Блокировки, относящиеся к оборудованию и арматуре поверхностных ПНД данных систем, идентичны блокировкам систем регенерации только с поверхностными ПНД (
пп. 4.1.2 -
4.1.4). Дополнительно для систем со смешивающими подогревателями действуют нижеприведенные блокировки.
4.2.1. Задвижка на подводе конденсата в гидрозатвор на сливе КГП из ПНД.
Задвижка на подводе конденсата в гидрозатвор автоматически открывается при повышении уровня в смешивающем ПНД выше определенного предела (II предела) и закрывается с выдержкой времени 30 с при понижении уровня ниже этого предела.
4.2.2. Конденсатные насосы смешивающих ПНД:
автоматическое и ручное включение КЭН-II (КЭН-III) возможно, если выполнены все следующие условия:
- уровень в соответствующем ПНД выше I предела;
- задвижка на стороне нагнетания насоса закрыта или давление в напорном коллекторе насоса выше заданного;
- задвижка на стороне всасывания насоса открыта;
работающие КЭН-II смешивающего ПНД-1 отключаются, если уровень в ПНД-2 выше определенного предела (III предела); эта команда обладает приоритетом;
работающий КЭН-II (КЭН-III) отключается с выдержкой времени 2 мин, если задвижка на стороне нагнетания не открылась;
работающие КЭН-II (КЭН-III) отключаются, если уровень в соответствующем ПНД ниже I предела. При одновременной работе трех насосов вначале отключается насос, предварительно выбранный в качестве резервного. При работе двух насосов один из них отключается с выдержкой времени 15 с. Если в работе находится один насос, то он отключается с выдержкой времени 30 с.
4.2.3. Задвижка на линии рециркуляции КЭН:
задвижка на линии рециркуляции КЭН-II (КЭН-III) открывается автоматически, если в работе находится один из КЭН-II (КЭН-III) и регулирующий клапан уровня соответствующего ПНД открыт менее чем на 30%;
задвижка на линии рециркуляции КЭН-II (КЭН-III) закрывается автоматически с выдержкой времени 15 с, если регулирующий клапан уровня соответствующего ПНД открыт более чем на 30%.
4.2.4. При повышении уровня в смешивающем ПНД выше определенного предела КЭН-1 отключается.