Главная // Актуальные документы // ИнформацияСПРАВКА
Источник публикации
М., 2022
Примечание к документу
Текст документа приведен в соответствии с публикацией на сайте https://ki-rf.ru/standart/ по состоянию на 17.04.2023.
Название документа
"СТО 11468812.005-2022. Типовой стандарт осуществления кадастровой деятельности. Описание характеристик объектов недвижимости. Характеристики жилых зданий"
(утв. и введен в действие Протоколом Президиума Ассоциации "Национальная палата кадастровых инженеров" от 12.05.2022 N 04/22)
"СТО 11468812.005-2022. Типовой стандарт осуществления кадастровой деятельности. Описание характеристик объектов недвижимости. Характеристики жилых зданий"
(утв. и введен в действие Протоколом Президиума Ассоциации "Национальная палата кадастровых инженеров" от 12.05.2022 N 04/22)
Утвержден и введен в действие
Протоколом Президиума Ассоциации
"Национальное объединение
саморегулируемых организаций
кадастровых инженеров"
от 12 мая 2022 г. N 04/22
ТИПОВОЙ СТАНДАРТ
ОСУЩЕСТВЛЕНИЯ КАДАСТРОВОЙ ДЕЯТЕЛЬНОСТИ
ОПИСАНИЕ ХАРАКТЕРИСТИК ОБЪЕКТОВ НЕДВИЖИМОСТИ
ХАРАКТЕРИСТИКИ ЖИЛЫХ ЗДАНИЙ
СТО 11468812.005-2022
Цели и принципы стандартизации в Российской Федерации установлены Федеральным
законом от 29 июня 2015 года N 162-ФЗ "О стандартизации в Российской Федерации", а правила применения стандарта организации -
ГОСТ Р 1.4-2004 "Стандартизация в Российской Федерации. Стандарты организаций. Общие положения".
Настоящий стандарт устанавливает основные правила определения (установления) характеристик жилых зданий при подготовке технических планов в рамках осуществления кадастровой деятельности.
1. РАЗРАБОТАН Ассоциацией "Национальное объединение саморегулируемых организаций кадастровых инженеров"
2. ВНЕСЕН Образовательно-методической коллегией Национальной палаты кадастровых инженеров
3. УТВЕРЖДЕН И ВВЕДЕН В ДЕЙСТВИЕ Решением Президиума Ассоциации "Национальное объединение саморегулируемых организаций кадастровых инженеров" (Протокол N 04/22 от 12.05.2022)
4. ВВЕДЕН ВПЕРВЫЕ
5. Информация о введении в действие настоящего стандарта, об изменениях к нему и прекращении действия публикуется на официальном сайте разработчика в информационно-телекоммуникационной сети "Интернет".
1.1. Типовой стандарт осуществления кадастровой деятельности "Описание характеристик объектов недвижимости. Характеристики жилых зданий" (далее - Стандарт) разработан в соответствии с требованиями Федерального
закона от 29 июня 2015 года N 162-ФЗ "О стандартизации в Российской Федерации". Настоящий стандарт является корпоративным нормативным техническим документом, устанавливающим правила определения (установления) характеристик жилых зданий, за исключением многоквартирных домов, а также их отражения в технических планах в рамках осуществления кадастровой деятельности.
1.2. Исходя из положений
пункта 39,
40 статьи 1 Градостроительного кодекса Российской Федерации,
пункта 2 статьи 3,
частей 1 и
3 статьи 23,
части 9 статьи 54 Федерального закона от 29 июля 2017 г. N 217-ФЗ "О ведении гражданами садоводства и огородничества для собственных нужд и о внесении изменений в отдельные законодательные акты Российской Федерации", требования настоящего Стандарта применяются при проведении кадастровых работ в отношении зданий с разрешенным использованием "объект индивидуального жилищного строительства" ("жилой дом"), "садовый дом", "дом блокированной застройки", зданий с назначением "жилое здание", "жилой дом", "жилое строение", "садовый дом" (далее также по тексту Стандарта -
жилое здание).
1.3. Описание правил определения (установления) характеристик жилых зданий, а также их отражения в технических планах в рамках осуществления кадастровой деятельности осуществлено на базе существующей нормативной, правовой и технической базы.
1.4. Стандарт подлежит обязательному применению саморегулируемыми организациями кадастровых инженеров при разработке собственных стандартов осуществления кадастровой деятельности, реализации иных предусмотренных законом функций и непосредственно кадастровыми инженерами при осуществлении кадастровой деятельности. Последовательность, достаточность и особенности совершения кадастровым инженером действий в соответствии со Стандартом определяются, в том числе, конкретными обстоятельствами, условиями проведения кадастровых работ и свойствами (характеристиками) объекта недвижимости.
1.5. Решения об утверждении настоящего Стандарта, внесении в него изменений и прекращении его действия принимаются постоянно действующим коллегиальным органом управления Ассоциации "Национального объединения саморегулируемых организаций кадастровых инженеров".
1.6. До вступления в силу
Приказа Росреестра от 15.03.2022 N П/0082 "Об установлении формы технического плана, требований к его подготовке и состава содержащихся в нем сведений" настоящий Стандарт применяется в части, не противоречащей действующему законодательству в области кадастровой деятельности.
2.1.
ГОСТ 30247.1-94. Конструкции строительные. Методы испытаний на огнестойкость. Несущие и ограждающие конструкции;
2.3.
СП 54.13330.2016. Свод правил. Здания жилые многоквартирные. Актуализированная редакция СНиП 31-01-2003, утвержденный приказом Минстроя России от 03.12.2016 г. N 883/пр (ред. от 19.12.2019);
2.4.
СП 55.13330.2016. Свод правил. Дома жилые одноквартирные. СНиП 31-02-2001, утвержденный приказом Минстроя России от 20.10.2016 г. N 725/пр (ред. от 10.07.2018);
2.5.
СП 17.13330.2017. Свод правил. Кровли. Актуализированная редакция СНиП II-26-76, утвержденный приказом Минстроя России от 31.05.2017 г. N 827/пр;
2.6.
СП 59.13330.2020. Свод правил. Доступность зданий и сооружений для маломобильных групп населения. СНиП 35-01-2001, утвержденный приказом Минстроя России от 30.12.2020 г. N 904/пр;
2.7. СТО 11468812.001-2020. Типовой стандарт осуществления кадастровой деятельности, утвержденный Президиумом Ассоциации "Национальное объединение саморегулируемых организаций кадастровых инженеров" (протокол N 06/17 от 28.07.2017) в ред. от 17.12.2020.
3. Термины, определения и сокращения
3.1. Термины и определения
3.1.1. абрис: сделанный от руки внемасштабный, но с соблюдением пропорций, чертеж с обозначением в нем данных, необходимых для составления поэтажного плана здания.
3.1.2.
балкон: выступающая из плоскости стены фасада огражденная площадка, может выполняться с покрытием и остеклением, имеет ограниченную глубину, взаимоувязанную с освещением помещения, к которому примыкает. |
3.1.3.
веранда: застекленное неотапливаемое помещение, пристроенное к зданию, встроенное в него или встроенно-пристроенное, не имеющее ограничения по глубине, может устраиваться на перекрытии нижерасположенного этажа. |
3.1.4. дом блокированной застройки: жилой дом, блокированный с другим жилым домом (другими жилыми домами) в одном ряду общей боковой стеной (общими боковыми стенами) без проемов и имеющий отдельный выход на земельный участок.
3.1.5. жилой дом: индивидуально-определенное здание, которое состоит из комнат, а также помещений вспомогательного использования, предназначенных для удовлетворения гражданами бытовых и иных нужд, связанных с их проживанием в таком здании.
3.1.6. здание: результат строительства, представляющий собой объемную строительную систему, имеющую надземную и (или) подземную части, включающую в себя помещения, сети инженерно-технического обеспечения и системы инженерно-технического обеспечения и предназначенную для проживания и (или) деятельности людей, размещения производства, хранения продукции или содержания животных.
3.1.7.
карнизный свес: выступ крыши от стены, защищающий ее от стекающей дождевой или талой воды. |
3.1.8.
крыльцо: открытая площадка, примыкающая к наружным ограждающим конструкциям непосредственно перед входом в дом, при необходимости оборудованная лестницей, пандусом и покрытием. |
3.1.9.
крыша: верхняя несущая и ограждающая конструкция здания или сооружения для защиты помещений от внешних климатических и других воздействий. |
3.1.10.
лоджия: помещение, встроенное в здание или пристроенное к нему, имеющее стены с трех сторон (или с двух при угловом расположении) на всю высоту этажа и ограждение с открытой стороны, может выполняться с покрытием и остеклением, имеет ограниченную глубину, взаимоувязанную с освещением помещения, к которому примыкает. |
3.1.11.
несущие конструкции (элементы): конструкции, воспринимающие постоянную и временную нагрузку, в том числе нагрузку от других частей зданий. |
3.1.12.
ограждающие конструкции: конструкции, выполняющие функции ограждения или разделения объемов (помещений) здания. Ограждающие конструкции могут совмещать функции несущих (в том числе самонесущих) и ограждающих конструкций. |
3.1.13.
пандус: сооружение, предназначенное для сопряжения поверхностей пешеходных путей на разных уровнях, состоящее из одного или нескольких маршей, имеющих наклонную поверхность с продольным уклоном и, при необходимости, горизонтальные поверхности; пандус бордюрный: элемент обустройства пешеходного пути, предназначенный для сопряжения поверхности тротуара или пешеходной дорожки с поверхностью проезжей части; пандус инвентарный: Устройство временного или эпизодического использования (сборно-разборный, откидной, выдвижной, приставной, перекатный), используемый для преодоления дверных порогов, кабелей, перепадов высот. |
3.1.14.
подполье: помещение, расположенное в пространстве под домом между поверхностью грунта и нижней поверхностью перекрытия первого этажа, предназначенное для размещения трубопроводов инженерных систем или хранения продуктов. |
3.1.15.
помещение вспомогательное: помещение для обеспечения коммуникационных, санитарных, технических и хозяйственно-бытовых нужд. Пример - Кухня или кухня-ниша, передняя, ванная комната или душевая, уборная или совмещенный санузел, кладовая или хозяйственный встроенный шкаф, постирочная, помещение теплогенераторной и т.п. |
3.1.16. садовый дом: здание сезонного использования, предназначенное для удовлетворения гражданами бытовых и иных нужд, связанных с их временным пребыванием в таком здании.
3.1.17.
| | ИС МЕГАНОРМ: примечание. В официальном тексте документа, видимо, допущена опечатка: имеется в виду статья 2.1.14 ГОСТ 27751-2014, а не 2.1.13 ГОСТ 27751-2014. | |
строительная конструкция: часть здания, выполняющая определенные несущие, ограждающие и (или) эстетические функции. |
3.1.18.
терраса: огражденная открытая (без устройства остекления) площадка, пристроенная к зданию, встроенная в него или встроенно-пристроенная, не имеющая ограничения по глубине, может иметь покрытие и устраиваться на кровле нижерасположенного этажа. |
3.1.19. объект индивидуального жилищного строительства: отдельно стоящее здание с количеством надземных этажей не более чем три, высотой не более двадцати метров, которое состоит из комнат и помещений вспомогательного использования, предназначенных для удовлетворения гражданами бытовых и иных нужд, связанных с их проживанием в таком здании, и не предназначено для раздела на самостоятельные объекты недвижимости.
Примечание: понятия "объект индивидуального жилищного строительства", "жилой дом" и "индивидуальный жилой дом" применяются в Градостроительном Кодексе, других федеральных законах и иных нормативных правовых актах Российской Федерации в одном значении, если иное не предусмотрено такими федеральными законами и нормативными правовыми актами Российской Федерации. При этом параметры, устанавливаемые к объектам индивидуального жилищного строительства Градостроительным Кодексом, в равной степени применяются к жилым домам, индивидуальным жилым домам, если иное не предусмотрено такими федеральными законами и нормативными правовыми актами Российской Федерации.
Допустимые параметры жилого дома, построенного на земельном участке из состава земель с/х назначения, используемом крестьянским (фермерским) хозяйством для осуществления своей деятельности: количество этажей не более трех, общая площадь не более 500 м2 и площадь застройки - не более 0,25% от площади земельного участка.
3.1.20.
планировочная отметка земли: геодезическая отметка уровня поверхности земли на границе с отмосткой здания. |
3.1.21.
тамбур: вспомогательное помещение между дверьми для защиты от воздействий внешней среды. |
3.1.22.
чердак здания: помещение, расположенное в пространстве между перекрытием верхнего этажа, покрытием (крышей) и наружными стенами, расположенными выше перекрытия верхнего этажа. |
3.1.23.
эксплуатируемая кровля - специально оборудованная защитным слоем кровля, предназначенная для использования, например в качестве зоны для отдыха, размещения спортивных площадок, автостоянок, автомобильных дорог, транспорта над подземными паркингами и т.п. и предусмотренная для пребывания людей, не связанных с периодическим обслуживанием инженерных систем здания. |
3.1.24.
этаж здания: часть здания между высотными отметками верха перекрытия или пола по грунту и верха вышерасположенного перекрытия (покрытия), включающая пространство высотой в чистоте (от пола до потолка) 1,8 м и более. |
3.1.25.
этаж мансардный (мансарда): этаж в чердачном пространстве, фасад которого полностью или частично образован поверхностью (поверхностями) наклонной, ломаной или криволинейной крыши, при этом линия пересечения плоскости крыши и фасада должна быть на высоте не более 1,5 м от уровня пола мансардного этажа. |
3.1.26.
этаж первый: этаж нижний надземный, не ниже планировочной отметки земли, доступный для входа с прилегающей территории. |
3.1.27.
этаж подвальный: этаж с отметкой поверхности пола ниже планировочной отметки земли более чем на половину высоты помещения. |
3.1.28.
этаж подземный: этаж с отметкой пола помещений ниже планировочной отметки земли на всю высоту помещений. |
3.1.29.
этаж технический: этаж, функционально предназначенный для размещения и обслуживания внутридомовых инженерных систем; может быть расположен в нижней части здания (техническое подполье) или в верхней (технический чердак), или между надземными этажами. Примечание - Техническое подполье размещается между перекрытием первого или цокольного этажа и поверхностью грунта, пола по грунту или фундаментной плитой. |
3.1.30.
этаж цокольный: Этаж с отметкой поверхности пола ниже планировочной отметки земли не более чем на половину высоты помещения. |
3.2. В настоящем стандарте применены следующие сокращения:
3.2.1. 218-ФЗ - Федеральный
закон от 13.07.2015 N 218-ФЗ "О государственной регистрации недвижимости";
3.2.2. ДНТ - дачное некоммерческое товарищество;
3.2.3. ОНТ - огородническое некоммерческое товарищество;
3.2.4. СКП - средняя квадратическая погрешность;
3.2.5. СНТ - садовое некоммерческое товарищество;
3.2.6. ФИАС - Федеральная информационная адресная система.
4. Работы по определению характеристик здания
4.1. В рамках осуществления кадастровых работ по подготовке технического плана жилого здания проводятся работы по определению характеристик такого объекта недвижимости (объекта кадастровых работ).
4.2. При проведении кадастровых работ в отношении жилого здания, не прошедшего государственный кадастровый учет, кадастровому инженеру надлежит определить полный набор характеристик такого объекта, позволяющих описать его в качестве индивидуально-определенного объекта недвижимости. В исключительной компетенции кадастрового инженера находится определение площадных характеристик объекта недвижимости и пространственное описание местоположения его границ (в том числе его частей). Определение остальных характеристик объекта недвижимости осуществляется кадастровым инженером путем использования сведений документов, изданных органами государственной власти, органами местного самоуправления и иными организациями, а также предоставленными заказчиками кадастровых работ (см.
раздел 5 настоящего Стандарта).
4.3. При проведении кадастровых работ в отношении жилого здания, прошедшего государственный кадастровый учет, кадастровому инженеру надлежит определить площадные характеристики объекта недвижимости и (или) пространственное описание местоположения его границ (при необходимости указать кадастровые номера земельных участков, в границах которых расположено такое здание). В некоторых случаях допускается дополнительно в техническом плане приводить иные характеристики объекта недвижимости, содержащие новые для внесения в ЕГРН сведения, при наличии подтверждающих такое изменение документов.
4.4. Полученные кадастровым инженером в ходе проведения кадастровых работ характеристики жилого здания отражаются в техническом плане.
4.5. Работы по определению характеристик жилого здания подразделяются на камеральные и полевые.
4.6. В зависимости от задания на проведение кадастровых работ в рамках осуществления полевых работ могут проводиться следующие виды работ:
1) координирование характерных точек контура здания;
2) проведение натурных линейных измерений здания и составление абриса;
3) сличение при обследовании здания сведений существующей документации на здание с его фактическим состоянием (например, при реконструкции) в объеме, необходимом для подготовки технического плана.
4.7. В зависимости от задания на проведение кадастровых работ в рамках осуществления камеральных работ могут проводиться следующие виды работ:
1) определение характеристик жилого здания из документов, служащих основанием для подготовки технического плана (см.
раздел 5 настоящего Стандарта);
2) составление поэтажных планов здания;
3) определение площади здания;
4) отражение характеристик здания в техническом плане.
5. Документы - основания для указания характеристик жилого здания и подготовки технического плана
5.1. В качестве обязательных исходных данных при проведении кадастровых работ по подготовке технического плана выступают сведения ЕГРН.
5.2. Использование сведений ЕГРН об определенных объектах недвижимости и территории зависит от задания на проведение кадастровых работ и условий их осуществления.
5.3. В общих случаях при подготовке технического плана жилого здания используются следующие сведения ЕГРН:
1) выписка из ЕГРН о здании в случае, если работы проводятся в отношении объекта недвижимости, прошедшего государственный кадастровый учет;
2) кадастровый план территории, в границах которой расположено здание, в случае отсутствия сформированного под зданием земельного участка;
3) выписка из ЕГРН о земельном участке, на котором расположено здание.
5.4. Документы, на основании которых указываются характеристики жилого здания в техническом плане, приведены в
таблице 1. Исходя из сведений данных документов кадастровый инженер указывает характеристики объекта кадастровых работ, за исключением площади и координат характерных точек контура жилого здания.
Таблица 1
Документы-основания для подготовки технического плана
1. Жилой дом (объект ИЖС), садовый дом |
N п/п | Документы-основания для подготовки технического плана <*> | Особенности использования |
1. | 1) разрешение на строительство и (или); 2) разрешение на ввод (акт о вводе) объекта в эксплуатацию и (или); 3) проектная документация | В случае, если для строительства жилого дома в соответствии с законодательством о градостроительной деятельности требовалось получение такого разрешения, и оно имеется у заказчика кадастровых работ. Проектная документация - используется при наличии |
2. | Технический паспорт объекта недвижимости, изготовленный до 1 января 2013 года | При наличии |
3. | 1) декларация об объекте недвижимости; 2) уведомление застройщика о планируемых строительстве или реконструкции объекта индивидуального жилищного строительства; 3) уведомление, направленное органом государственной власти или органом местного самоуправления, о соответствии указанных в уведомлении о планируемых строительстве или реконструкции объекта индивидуального жилищного строительства параметров объекта индивидуального жилищного строительства предельным параметрам разрешенного строительства, реконструкции объектов капитального строительства, установленным правилами землепользования и застройки, документацией по планировке территории, и обязательным требованиям к параметрам объектов капитального строительства, установленным федеральными законами, и допустимости размещения объекта индивидуального жилищного строительства на земельном участке | При наличии указанных уведомлений |
4. | Декларация об объекте недвижимости Проектная документация (при наличии) | При подготовке технического плана на жилой или садовый дом, созданный на земельном участке, предназначенном для ведения гражданами садоводства, для ИЖС или для ведения личного подсобного хозяйства в границах населенного пункта, для осуществления крестьянским (фермерским) хозяйством своей деятельности, и соответствующий параметрам объекта ИЖС, указанным в пункте 39 статьи 1 Градостроительного кодекса |
5. | 1) Декларация об объекте недвижимости; 2) Решение о предварительном согласовании предоставления земельного участка (может использоваться) | Если технический план готовится в отношении жилого дома, возведенного до 14 мая 1998 года, и расположенного на земельном участке, который находится в государственной или муниципальной собственности, и не предоставлен в пользование гражданину, использующему указанный жилой дом для постоянного проживания |
<*> Документы-основания представлены в первом блоке таблицы по степени приоритетности для проведения кадастровых работ. Используется один из четырех представленных вариантов документов. |
Вновь созданный или реконструируемый дом блокированной застройки <**> |
N п/п | Документы-основания для подготовки технического плана | Особенности использования |
1. | 1) разрешение на строительство; 2) проектная документация | |
<**> Дом блокированный застройки: - созданный после вступления в силу Федерального закона от 30.12.2021 N 476-ФЗ "О внесении изменений в отдельные законодательные акты Российской Федерации"; - созданный в соответствии с Федеральным законом от 30.12.2004 N 214-ФЗ "Об участии в долевом строительстве многоквартирных домов и иных объектов недвижимости и о внесении изменений в некоторые законодательные акты Российской Федерации"; - созданный в соответствии с Градостроительным кодексом; - реконструируемое здание, вид разрешенного использования которого в ЕГРН указан "дом блокированной застройки". |
Объект ИЖС с привлечением средств дольщиков |
N п/п | Документы-основания для подготовки технического плана | Особенности использования |
1. | 1) разрешение на строительство; 2) договор участия в долевом строительстве (при наличии); 3) план объекта ИЖС, в том числе являющегося составной частью договора участия в долевом строительстве | |
5.5. В случае, если подготовка технического плана в отношении учтенного до 1 января 2013 года жилого здания осуществляется исключительно для целей внесения в ЕГРН сведений о местоположении такого объекта на земельном участке, для подготовки указанного технического плана не требуется использование проектной документации, разрешения на ввод в эксплуатацию такого объекта или разрешения на строительство и включение их копий, а также включение планов всех этажей здания в состав технического плана.
6. Характеристики жилого здания и порядок их определения
6.1. К характеристикам жилого здания, определяемым в рамках проведения кадастровых работ в целях первичной постановки на государственный кадастровый учет объекта недвижимости, относятся следующие:
1) вид объекта недвижимости (в настоящем Стандарте рассматривается - здание);
2) ранее присвоенные государственные учетные номера;
3) кадастровый номер исходного объекта недвижимости (при преобразовании зданий (объединение, раздел, образование из объекта незавершенного строительства));
4) номер кадастрового квартала (кадастровых кварталов), в котором (которых) находится объект недвижимости;
5) кадастровый номер земельного участка (земельных участков), в границах которого (которых) расположено здание;
6) адрес или местоположение;
7) назначение;
8) вид (виды) разрешенного использования;
9) наименование;
10) количество этажей;
11) материал наружных стен;
12) год ввода в эксплуатацию;
13) год завершения строительства;
14) век (период) постройки объекта недвижимости;
15) площадь;
16) средняя квадратическая погрешность определения площади;
17) местоположение характерных точек контура.
6.2. Кадастровый номер объекта недвижимости указывается в техническом плане в случае если технический план подготовлен в результате выполнения кадастровых работ в связи с изменением характеристик здания, подлежащих внесению в ЕГРН, в том числе в связи с исправлением ошибки, указанной в
части 3 статьи 61 Федерального закона от 13.07.2015 N 218-ФЗ "О государственной регистрации недвижимости" (далее - 218-ФЗ).
| | ИС МЕГАНОРМ: примечание. Нумерация пунктов дана в соответствии с официальным текстом документа. | |
6.1. Ранее присвоенные государственные учетные номера
6.1.1. К ранее присвоенным государственным учетным номерам объекта недвижимости относятся номера, которые были присвоены в установленном законодательством Российской Федерации порядке уполномоченным органом, с учетом условий, отраженных в
пунктах 6.1.2 -
6.1.5:
1) кадастровый номер;
2) инвентарный номер;
3) условный номер.
6.1.2. Ранее присвоенный кадастровый номер в отношении жилого здания указывается, если он был присвоен до присвоения в соответствии с Федеральным
законом от 24.07.2007 N 221-ФЗ "О государственном кадастре недвижимости" кадастрового номера (например, органом технической инвентаризации, органом местного самоуправления и т.д.). Кадастровый номер может быть указан, например, в кадастровом паспорте, который выдавался органом технической инвентаризации, или техническом паспорте (например, 69:37:070305:0004:1-2679:0000\А).
6.1.3. Ранее присвоенный инвентарный номер может быть указан в техническом плане на основании технического паспорта, выданного органом технической инвентаризации до 1 января 2013 года (например, 332:099-8123/2).
6.1.4. Условный номер указывается в техническом плане, если он был присвоен при государственной регистрации права (ограничения права) на жилой дом до дня вступления в силу
218-ФЗ. Условный номер может быть указан в свидетельстве о государственной регистрации права (например, 03-03-02/004/2007-195).
6.1.5. При заполнении технического плана данные сведения указываются (при их наличии в соответствующих документах) в отношении ранее учтенного объекта недвижимости, сведения о котором отсутствуют в ЕГРН, в следующем объеме: ранее присвоенный государственный учетный номер, дата его присвоения, наименование органа (организации), присвоившей такой номер. Если объект имеет несколько ранее присвоенных государственных учетных номеров, указывается информация обо всех таких номерах.
Данные сведения не указываются в техническом плане при их отсутствии в документах, используемых для проведения кадастровых работ, или в случае подготовки технического плана в отношении объекта недвижимости, сведения о котором содержатся в ЕГРН.
6.2. Кадастровый номер исходного объекта недвижимости
6.2.1. Жилое здание создается в результате строительства, при этом жилое здание может быть образовано в результате:
1) раздела жилого здания;
2) объединения нескольких жилых зданий, примыкающих друг к другу;
3) объединения всех помещений, расположенных в одном жилом здании (в исключительных случаях, когда в ЕГРН уже стоят на учете жилые помещения (квартиры) в жилом доме, внесенные в ЕГРН, как правило, в результате передачи сведений из органов технической инвентаризации до 1 марта 2013 года).
6.2.2. В случае образования жилого здания в строке "Кадастровый номер исходного объекта недвижимости (из которого (которых) образован объект недвижимости)" раздела "Характеристики объекта недвижимости" технического плана указывается кадастровый номер объекта недвижимости, из которого в результате раздела, или иного действия с объектом недвижимости (исходный объект недвижимости), в том числе путем реконструкции, был образован такой объект недвижимости.
6.2.3. В случае подготовки технического плана в связи с завершением строительства объекта незавершенного строительства в строке "Кадастровый номер исходного объекта недвижимости (из которого (которых) образован объект недвижимости)" указывается кадастровый номер объекта незавершенного строительства, строительство которого было завершено созданием здания.
6.3. Номер кадастрового квартала (кадастровых кварталов), в котором (которых) находится объект недвижимости
В техническом плане указывается номер кадастрового квартала, в котором фактически находится жилое здание. Номер кадастрового квартала, в котором зданию был присвоен кадастровый номер (при внесении сведений о нем в ЕГРН (ГКН) в качестве ранее учтенного, либо при передаче сведений о нем из органов технической инвентаризации до 1 января 2013 года) может не совпадать с номером кадастрового квартала, где фактически расположен объект недвижимости.
6.4. Кадастровый номер земельного участка (земельных участков), в границах которого (которых) расположено здание
6.4.1. В техническом плане указывается кадастровый номер земельного участка (всех земельных участков), в границах которого (которых), на котором (которых), над или под которым (которыми) фактически расположено жилое здание.
6.4.2. Кадастровый номер земельного участка, указанный в
пункте 6.4.1 Стандарта, указывается при наличии в ЕГРН сведений о местоположении его границ. При отсутствии в ЕГРН сведений о местоположении границ такого земельного участка, его кадастровый номер указывается в техническом плане по усмотрению кадастрового инженера исходя из сведений документов, используемых для подготовки технического плана.
6.4.3. Если здание расположено в границах нескольких земельных участков, то указываются через запятую кадастровые номера земельных участков.
6.4.4. В случае, если при подготовке технического плана выявлена реестровая ошибка в местоположении границ земельного участка, в границах которого расположено (или не расположено) здание, то в соответствующей графе технического плана указывается кадастровый номер земельного участка (кадастровые номера всех земельных участков), в границах которых жилое здание расположено фактически, а не по сведениям ЕГРН. При этом в Заключении кадастрового инженера необходимо обосновать выявленную реестровую ошибку, указать кадастровые номера земельных участков, в местоположении границ которых выявлена реестровая ошибка.
6.5. Адрес или местоположение
6.5.1. Адрес здания указывается в техническом плане в структурированном в соответствии с федеральной информационной адресной системой (далее - ФИАС) виде. Сведения об адресе берутся из выписки из государственного адресного реестра об адресе объекта адресации.
6.5.2. Решение уполномоченного органа о присвоении адреса объекту адресации, принятое после 2 декабря 2014 года, не является основанием для указания в техническом плане адреса здания.
6.5.3. В случае отсутствия в государственном адресном реестре адреса здания, присвоенного в порядке, установленном до вступления в силу
постановления Правительства Российской Федерации от 19 ноября 2014 г. N 1221 "Об утверждении Правил присвоения, изменения и аннулирования адресов", допускается указание адреса на основании акта уполномоченного органа государственной власти или органа местного самоуправления.
6.5.4. При отсутствии адреса здания в государственном адресном реестре или присвоенного до вступления в силу
Постановления N 1221 указывается местоположение объекта недвижимости.
6.5.5. Местоположение приводится в структурированном в соответствии с ФИАС виде с указанием слов:
- "Российская Федерация";
- наименования субъекта Российской Федерации;
- наименование федеральной территории (при наличии);
- муниципального образования;
- населенного пункта (город, село);
- улицы (проспект, шоссе, переулок, бульвар) - при наличии;
- номера здания, в том числе с учетом сведений, содержащихся в документах-основаниях.
6.5.6. Если здание расположено в границах территории СНТ или ОНТ в местоположении объекта недвижимости указывается:
1) адрес земельного участка, присвоенный в соответствии с
Постановлением N 1221;
2) при отсутствии адреса - местоположение земельного участка, в границах которого расположен такой объект недвижимости, включая:
- наименование соответствующего некоммерческого товарищества и номер земельного участка, содержащееся в проекте межевания территории, либо в утвержденном до 1 января 2018 года проекте организации и застройки СНТ, ОНТ или ДНТ, либо в ином документе, устанавливающем распределение земельных участков между членами садоводческого или огороднического некоммерческого товарищества.
6.5.7. В строке "Дополнение местоположения объекта недвижимости" указываются сведения о местоположении здания в случае, если оно не указано в структурированном в соответствии с ФИАС виде.
6.5.8. В случае расположения здания в границах СНТ или ОНТ и отсутствия возможности указания в строке "Местоположение объекта недвижимости" в структурированном в соответствии с ФИАС виде отдельных сведений в строке "Дополнение местоположения объекта недвижимости" указывается неструктурированная часть места нахождения земельного участка, в границах которого расположен такой объект недвижимости (включая наименование СНТ или ОНТ и номер земельного участка).
6.5.9. Для заполнения адреса (местоположения) жилого здания в XML-схеме технического плана необходимо руководствоваться описанием внесения адреса (местоположения) согласно пунктам 4.5 "Общих требований к заполнению технического плана в формате XML" и 5.6.4 "Описание структуры XML-схемы файла обмена". При этом необходимо правильно указывать признак, позволяющий отличить присвоенный в установленном порядке адрес объекта недвижимости и местоположение объекта недвижимости, указывая одно из значений:
0 - Местоположение объекта недвижимости;
1 - Присвоенный в установленном порядке адрес объекта недвижимости.
6.6. Назначение и вид (виды) разрешенного использования
Таблица 2
Назначение и виды разрешенного использования жилых зданий
Объект кадастровых работ | Назначение | Вид разрешенного использования |
1) объект индивидуального жилищного строительства, 2) жилой дом, 3) индивидуальный жилой дом: отдельно стоящее здание с количеством надземных этажей не более чем три, высотой не более двадцати метров, которое состоит из комнат и помещений вспомогательного использования, предназначенных для удовлетворения гражданами бытовых и иных нужд, связанных с их проживанием в таком здании, и не предназначено для раздела на самостоятельные объекты недвижимости | Жилой дом (с 01.01.23 по 218-ФЗ) Жилое (назначение предусмотрено в 218-ФЗ до 01.01.2023) | объект индивидуального жилищного строительства; жилой дом |
Здание сезонного использования, предназначенное для удовлетворения гражданами бытовых и иных нужд, связанных с их временным пребыванием в таком здании, и расположенный на садовом земельном участке | Садовый дом | Садовый дом |
Дом блокированной застройки: жилой дом, блокированный с другим жилым домом (другими жилыми домами) в одном ряду общей боковой стеной (общими боковыми стенами) без проемов и имеющий отдельный выход на земельный участок | Жилой дом (с 01.01.23 по 218-ФЗ) Жилое (назначение предусмотрено в 218-ФЗ до 01.01.2023) | Дом блокированной застройки |
| Жилое строение (назначение предусмотрено в 218-ФЗ до 01.01.2023) | |
6.6.2. Виды разрешенного использования жилого здания определяются исходя из следующих принципов:
1) Если жилое здание расположено в пределах соответствующей территориальной зоны, то вид его разрешенного использования устанавливается градостроительным регламентом.
2) Основные и вспомогательные виды разрешенного использования здания правообладателями земельных участков и объекта капитального строительства, за исключением органов государственной власти, органов местного самоуправления, государственных и муниципальных учреждений, государственных и муниципальных унитарных предприятий, выбираются самостоятельно без дополнительных разрешений и согласования.
6.6.3. Включение в технический план сведений о виде разрешенного использования жилого здания зависит от наличия (отсутствия) в представленных заказчиком кадастровых работ документах таких сведений.
6.6.4. Разрешенное использование является дополнительной характеристикой объекта недвижимости и может отсутствовать на момент подготовки технического плана и осуществления государственного кадастрового учета объекта недвижимости.
6.6.5. При наличии условий для установления вида разрешенного использования применяются следующие правила:
1) в отношении домов блокированной застройки вид разрешенного использования указывается "дом блокированной застройки"
[8];
2) в отношении жилых домов - объект индивидуального жилищного строительства, жилой дом [
10,
13];
3) в отношении садовых домов - садовый дом [
10,
13].
6.7.1. Наименование жилого здания указывается в техническом плане в исключительных случаях, если оно имеется:
1) в проектной документации, разрешении на строительство или в разрешении на ввод объекта в эксплуатацию;
2) в едином государственном реестре объектов культурного наследия (памятников истории и культуры) народов Российской Федерации, если здание является объектом культурного наследия и включено в указанный реестр.
6.8. Количество, типы этажей
6.8.1. При проведении кадастровых работ определяется количество этажей:
- учитываются все этажи, включая подземные, подвальный, цокольный, надземные, технические, мансардный и технический чердак;
- не учитываются: подполье, независимо от его высоты, а также междуэтажное пространство и технический чердак высотой менее 1,8 м.
6.8.2. Если жилое здание имеет различное количество этажей - указывается наименьшее и набольшее значение этажей с интервалом (например, 1 - 3).
6.8.3. Не следует отождествлять понятие "этажность" и "количество этажей". Данные понятия различны. При определении этажности здания учитываются все надземные этажи, в том числе технический этаж, мансардный, а также цокольный этаж, если верх его перекрытия находится выше средней планировочной отметки земли не менее чем на 2 м. Этажность в техническом плане не указывается, однако данное понятие может быть использовано при подсчете количества подземных этажей.
6.8.4. Этажом здания признается часть здания между высотными отметками верха перекрытия или пола по грунту и верха вышерасположенного перекрытия (покрытия), включающая пространство высотой в чистоте (от пола до потолка) 1,8 м и более.
6.8.5. При подготовке технического плана используются следующие виды и типы этажей в жилом здании:
1) этаж первый: этаж нижний надземный, не ниже планировочной отметки земли, доступный для входа с прилегающей территории;
2) этаж мансардный (мансарда): этаж в чердачном пространстве, фасад которого полностью или частично образован поверхностью (поверхностями) наклонной, ломаной или криволинейной крыши, при этом линия пересечения плоскости крыши и фасада должна быть на высоте не более 1,5 м от уровня пола мансардного этажа (
рис. 1: h
3 < 1,5 м).
Рис. 1. Определение мансардного этажа (h3 < 1,5 м)
Рис. 2. Определение надземного этажа,
не являющегося мансардным
Рис. 3. Различные типы мансардного этажа
3) этаж подвальный: этаж с отметкой поверхности пола ниже планировочной отметки земли более чем на половину высоты помещения;
4) этаж подземный: этаж с отметкой пола помещений ниже планировочной отметки земли на всю высоту помещений;
5) этаж технический: этаж, функционально предназначенный для размещения и обслуживания внутридомовых инженерных систем; может быть расположен в нижней части здания (техническое подполье) или в верхней (технический чердак), или между надземными этажами;
Примечание - Техническое подполье размещается между перекрытием первого или цокольного этажа и поверхностью грунта, пола по грунту или фундаментной плитой.
5) этаж цокольный: этаж с отметкой поверхности пола ниже планировочной отметки земли не более чем на половину высоты помещения.
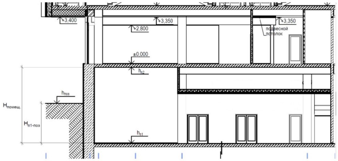
6.8.6. При одинаковом уровне планировочной отметки земли, определение того относится ли этаж к цокольному или нет представляет собой простейшие арифметическое действие вычитание и сравнение.
Рис. 4. Определение типа подземного этажа
Задача решается в три действия:
1) Определяется высота помещений определяемого этажа (не следует путать с высотой самого этажа)
Hпом = hп2 - hп1;
2) Определяется высота планировочной отметки земли, относительно отметки пола помещений определяемого этажа
Hп1-поз = hпоз - hп1;
3) Сравнивается полученное во втором действии значение с 1/2 значения, полученного в первом действии
Hп1-поз <= 0,5Hпом.
Если высота планировочной отметки земли, относительно отметки пола помещений определяемого этажа меньше или равна половине высоты помещения, то это цокольный этаж, а если нет, то следует проверить его на принадлежность к другим типам этажей.
Рис. 5. Сравнение подземного, подвального, цокольного
--------------------------------
<1> https://cadastre.ru/article/6.
6.8.7. При разных высотах планировочной отметки земли определение типа и наименование этажа проводится в соответствии с требованиями
пункта А.1.7 СП 54.13330.2016, определениями, указанными в
пункте 6.8.5 Стандарта, определение типа этажа "цокольный" или "подвальный" может проводиться относительно средней планировочной отметки земли
(рис. 6).
Рис. 6. Пример определения наименования этажей жилого дома
--------------------------------
<2> https://www.vglazkov.com/nachalo-puti/site-on-the-slope/.
6.8.8. При размещении здания на участке с уклоном первым надземным следует считать этаж с отметкой пола помещений выше наиболее низкой планировочной отметки земли.
6.9. Материал наружных стен
6.9.1. Материал наружных стен жилого здания указывается кадастровым инженером в техническом плане исходя из сведений документов, перечисленных в
Таблице 1, в соответствии с видами, указанными в
Таблице 3.
Таблица 3
N | Классификационный код в XML-схеме | Значение |
1. | 061 001 000 000 | Стены |
1.1. | 061 001 001 000 | Каменные |
1.1.1. | 061 001 001 001 | Кирпичные |
1.1.2. | 061 001 001 002 | Кирпичные облегченные |
1.1.3. | 061 001 001 003 | Из природного камня |
1.2. | 061 001 002 000 | Деревянные |
1.2.1. | 061 001 002 001 | Рубленые |
1.2.2. | 061 001 002 002 | Каркасно-засыпные |
1.2.3. | 061 001 002 003 | Каркасно-обшивные |
1.2.4. | 061 001 002 004 | Сборно-щитовые |
1.2.5. | 061 001 002 005 | Дощатые |
1.2.6. | 061 001 002 006 | Деревянный каркас без обшивки |
1.3. | 061 001 003 000 | Смешанные |
1.3.1. | 061 001 003 001 | Каменные и деревянные |
1.3.2. | 061 001 003 002 | Каменные и бетонные |
1.4. | 061 001 004 000 | Легкие из местных материалов |
1.5. | 061 001 005 000 | Из прочих материалов |
1.6. | 061 001 006 000 | Бетонные |
1.6.1. | 061 001 006 001 | Монолитные |
1.6.2. | 061 001 006 002 | Из мелких бетонных блоков |
1.6.3. | 061 001 006 003 | Из легкобетонных панелей |
1.7. | 061 001 007 000 | Железобетонные |
1.7.1. | 061 001 007 001 | Крупнопанельные |
1.7.2. | 061 001 007 002 | Каркасно-панельные |
1.7.3. | 061 001 007 003 | Монолитные |
1.7.4. | 061 001 007 004 | Крупноблочные |
1.7.5. | 061 001 007 005 | Из унифицированных железобетонных элементов |
1.7.6. | 061 001 007 006 | Из железобетонных сегментов |
1.8. | 061 001 008 000 | Шлакобетонные |
1.9. | 061 001 009 000 | Металлические |
6.10. Год ввода в эксплуатацию
6.10.1. Год ввода в эксплуатацию жилого здания указывается в соответствии со сведениями разрешения на ввод жилого здания в эксплуатацию.
6.10.2. В случае подготовки технического плана с целью получения разрешения на ввод объекта в эксплуатацию, год ввода в эксплуатацию в техническом плане соответствует году подготовки окончательной редакции технического плана.
6.11. Год завершения строительства
6.11.1. Год завершения строительства жилого здания указывается, если в соответствии с федеральным законом выдача разрешения на ввод объекта в эксплуатацию не предусматривается, в частности:
- при строительстве, реконструкции на садовом земельном участке
жилого дома, садового дома;
- при строительстве, реконструкции объектов индивидуального жилищного строительства (за исключением строительства объектов индивидуального жилищного строительства с привлечением денежных средств участников долевого строительства в соответствии с Федеральным
законом от 30 декабря 2004 года N 214-ФЗ "Об участии в долевом строительстве многоквартирных домов и иных объектов недвижимости и о внесении изменений в некоторые законодательные акты Российской Федерации").
6.12. Век (период) постройки
6.12.1. Век (период) постройки жилого здания указывается в случае, если оно было построено до 1917 года и (или) является объектом культурного наследия (памятников истории и культуры) народов Российской Федерации.
6.13.1. Площадь здания определяется на основании натурных измерений как площадь простейшей геометрической фигуры (например, прямоугольник, трапеция, прямоугольный треугольник) или путем разбивки такого объекта на простейшие геометрические фигуры и суммирования площадей таких фигур (с округлением до 0,1 квадратного метра).
6.13.2. Измерения для определения площади указанных объектов рекомендуется проводить по завершении строительных, в том числе отделочных, работ.
6.13.3. Результаты измерений отображаются в графической части технического плана.
6.13.4. Значение площади здания определяется в квадратных метрах с округлением до 0,1 квадратного метра, а значения измеренных расстояний, применяемые для определения площадей, - в метрах с округлением до 0,01 метра, вычисление площади производится после округления линейных измерений.
6.13.5. Площадь жилого здания определяется как сумма площадей всех надземных и подземных этажей (включая технический, мансардный, цокольный и иные), а также эксплуатируемой кровли
(рис. 7).
Рис. 7. Подсчет площади здания в пределах этажа
6.13.6. Площадь многосветных пространств (многосветных помещений, атриумов, проемов в перекрытиях, а также лифтовых и других шахт) включается в площадь только нижнего по отношению к такому пространству этажа жилого здания.
6.13.7. Площадь эксплуатируемой кровли, наружных галерей, веранд, террас, открытых или остекленных лоджий и балконов, а также наружных тамбуров жилого здания определяется в пределах внутренних поверхностей стен и ограждений без учета площади, занятой ограждением.
6.13.8. Площадь этажа жилого здания определяется в пределах внутренних поверхностей наружных стен. Расстояния, применяемые для определения площади этажа, измеряются на высоте от нуля до 1,10 метра от уровня пола (плинтусы, декоративные элементы, кабельные короба, системы отопления или кондиционирования воздуха не учитываются).
Иными словами, измерения производятся от стены до стены, а площади, занятые такими элементами как - плинтусы, декоративные элементы, кабельные короба, системы отопления или кондиционирования воздуха, входят в площадь этажа.
Таблица 4
Учет конструктивных элементов в площади жилого здания
N п/п | Конструктивные элементы (части) жилого здания | Включение в площадь жилого здания |
Включаются | Не включаются |
| Подземная часть | | |
1. | подполье для проветривания жилого здания | | |
2. | техническое подполье | | |
| Чердачные пространства | | |
3. | неэксплуатируемый чердак | | |
4. | технический чердак | | |
5. | эксплуатируемая кровля | | |
| Входные группы | | |
6. | Крыльца | | |
7. | Наружные открытые лестницы и пандусы | | |
8. | Наружные тамбуры (в случае их нахождения за пределами внутренних поверхностей наружных стен жилого здания) | | |
9. | Портики | | |
| "Внешние" помещения | | |
10. | Балкон | | |
11. | Лоджия | | |
12. | Терраса | | |
13. | Веранда | | |
| Внутренние элементы (части) здания | | |
14. | Внутренние перегородки и стены | | |
15. | Лестничные площадки и ступени | | |
16. | Внеквартирные инженерные коммуникации с вертикальной и горизонтальной (в межэтажном пространстве) разводками | | |
17. | Декоративные элементы внутри здания, площадь под печью и иными отопительными системами | | |
18. | Дверные проемы (проходы) во внутренних стенах (перегородках), ниши независимо от их ширины | | |
19. | Дверной проем наружной (входной) двери | | |
6.13.9. Площадь мансардного этажа жилого здания определяется в пределах внутренних поверхностей наружных стен и стен мансарды, смежных с пазухами чердака.
Площадь мансардного этажа жилого здания, площадь жилого помещения мансардного этажа жилого здания определяется в пределах высоты наклонного потолка (стены) при наклоне до 45° - от 1,6 метра, при наклоне от 45° и более - от 1,9 метра. Площадь мансардного этажа жилого здания, площадь жилого помещения мансардного этажа жилого здания с высотой потолка менее 1,6 и 1,9 метра соответственно при соответствующих углах наклона потолка не учитываются (не включаются).
(Рис. 8)
Рис. 8. Определение площади мансардного этажа жилого здания
6.13.10. При наличии в здании внутренней лестницы, общая площадь здания не зависит от этажа, в котором будет учтена площадь лестницы (ступеней), поскольку площадь этажа в техническом плане не указывается.
6.14. Средняя квадратическая погрешность определения площади
В настоящем разделе Стандарта приведены примеры расчетов средней квадратической погрешности (далее - СКП) площади здания с применением различных методик.
В качестве примера для расчета СКП взято одноэтажное здание, координаты которого определены методом спутниковых геодезических измерений, а линейные измерения внутренних помещений в здании - с использованием лазерной рулетки. Основываясь на общих положениях научно обоснованной теории ошибок измерений, общеизвестных формул определения СКП площади объектов, показаны несколько вариаций вычисления такой величины. Важно отметить, что представленные ниже методики и формулы расчета СКП площади объекта и СКП линейных измерений не являются исчерпывающими. На практике возможны и другие вариации, которые во многом обусловлены используемыми технологиями проведения работ и измерений, применяемыми приборами, конфигурацией объекта кадастровых работ и условиями проведения работ в целом.
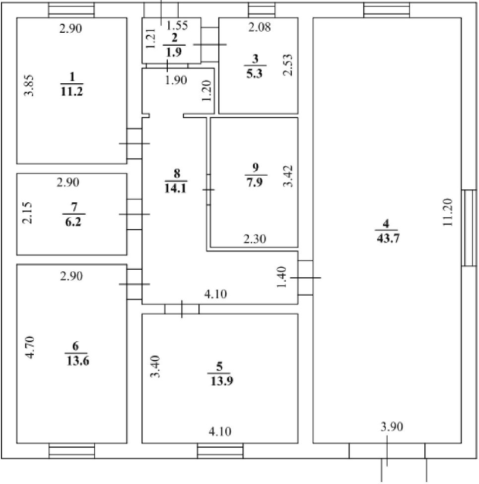
6.14.1. Описание и условия работ
Кадастровые работы проводятся в отношении одноэтажного здания. В здании завершены строительные работы. Отделочные работы отсутствуют.
Измерения проведены опытным кадастровым инженером прибором Leica Disto D2 на h = 1,10 м от уровня пола.
Температура среды измерения: комнатная температура (около +21 °C). Измерения проведены при умеренной дневной освещенности.
Стены с хорошей отражательной способностью (стены из пеноблоков).
Координаты характерных точек контура здания определения методом спутниковых измерений со СКП = 0,03 м.
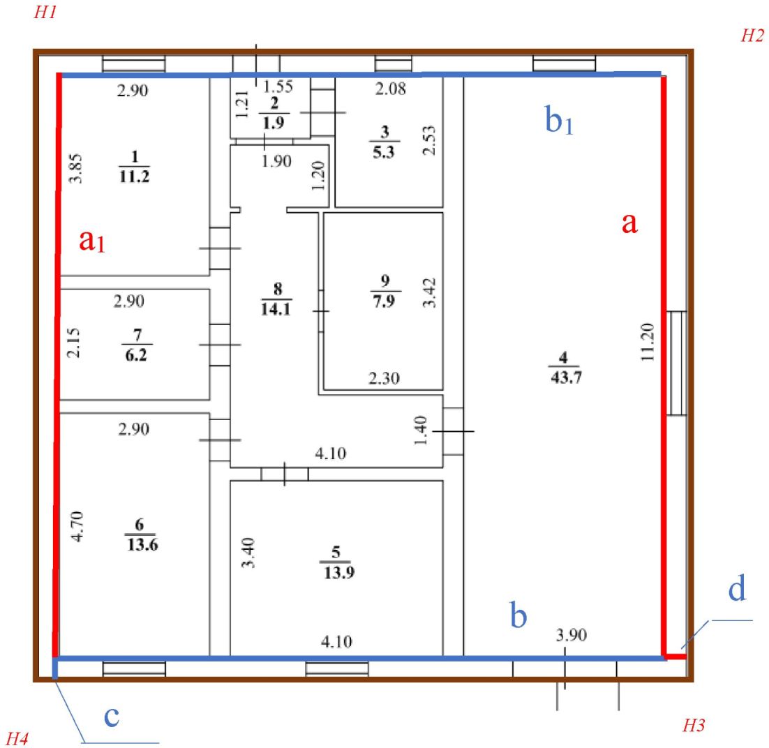
Рис. 9. Поэтажный план здания - объекта кадастровых работ
6.14.2. Определение СКП линейных измерений
Измерения длин линий сопровождаются погрешностями. Рассмотрим источники погрешностей и способы ослабления их влияния на точность измерения. Величина погрешности линейных измерений зависит от ряда факторов, которые и определяют ее итоговое значение. При проведении линейных измерений лазерной рулеткой СКП измерений можно выразить следующей формулой:

(1)
где mпр - СКП измерений длин линий прибором;
mг - СКП определения горизонтального проложения линии (СКП измерений за кривизну лазерного луча при наведении луча не по горизонтали;
mст - СКП уклонения луча от створа измеряемой линии;
mфикс - СКП неточности фиксирования (прикладывания) лазерной рулетки к поверхности отсчета;
mв - СКП измерений за кривизну стен по высоте;
mф - СКП за неравенство стен при приведении объекта к правильной фигуре (методическая ошибка).
1) Из условий проведения работ (температура, освещенность, отражательная способность стен) можно сделать вывод о наличии благоприятных условий для проведения линейных измерений. Из описания типа средств измерений "Лазерный дальномер Leica DISTO D2", являющегося приложением к свидетельству N 63050 (взят из открытых источников в сети "Интернет") установлено, что при благоприятных условиях проведения измерений прибор Leica DISTO D2 дает следующие СКП
(рис. 10):
- при длине стен до 5 м mпр = 1,5 мм;
- при длине стен от 5 до 100 м mпр = 1,5 мм + 0,1 мм/м.
Рис. 10. Фрагмент описания типа средств измерений
лазерного дальномера
В зависимости от технических характеристик приборов, которыми проводятся линейные измерения при подготовке технических планов, их погрешности оказывают чувствительное влияние на результаты измерений, как правило, при длине стен в несколько десятков метров. При меньших длинах стен mпр, как правило, пренебрежительно мало и не оказывает сильного влияния на результаты измерений и величину их погрешности. Данное условие во многом обусловлено точностью проведения линейных измерений в кадастровых работах (необходимостью округления их результатов до 0,01 м), при этом погрешность лазерных рулеток (в зависимости от производителя) при небольших длинах стен (до 10 - 20 м), как правило, не превышает 5 мм.
2) Лазерными рулетками обеспечивается определение горизонтальных проложений. Погрешность в определении горизонтальных проложений линий является результатом точности обеспечения горизонтальности лазерного луча. Точность выставления горизонтальности луча должна быть тем выше, чем длиннее сама линия.
Так, например, при длине линии в 5 м предельное отклонение луча от горизонта измеряемой линии не должно превышать 32 см
(рис. 11). Такое отклонение от горизонта легко обнаруживается опытным исполнителем на глаз. Однако для ослабления влияния этой погрешности луч лазерной рулетки следует направлять как можно точней в горизонте измеряемой линии. Некоторые модели лазерных рулеток оснащены горизонтальным уровнем.
Рис. 11. Определение высоты кривизны лазерного луча
3) Погрешность от неточного фиксирования лазерной рулетки на поверхности измерения (или на невидимой линии, являющейся продолжением поверхности измерения) может оказаться достаточно ощутимой. Поэтому устанавливать ее рекомендуется как можно точнее на поверхности стены или на невидимой линии, являющейся продолжением такой стены
(рис. 12). В целях исключения грубых ошибок и промахов также важно следить за соответствием поверхности отсчета, устанавливаемой в программе лазерной рулетки и устанавливаемой исполнителем в месте измерения.
Условные обозначения:

- стены здания;

- невидимая линия, являющаяся продолжением поверхности измерения.
Рис. 12. Точность фиксирования лазерной рулетки
4) Наблюдения показывают, что кривизна стен зависит от качества строительных и ремонтно-отделочных работ. Как правило, кривизна стен на высоте от 0 до 1,10 м не превосходит величины в 1 - 2 см, редко при сильных "завалах" стен можно наблюдать изменение длины стен в 3 см. Для исключения ошибки за кривизну стен по высоте рекомендуется проводить измерения на фиксированной высоте. Сведения о данной высоте можно записывать в абрисах, "Заключении кадастрового инженера" либо в иных документах, отражающих результаты натурных измерений объекта. В противном случае, необходимо вводить mв - СКП за кривизну стен по высоте, которую можно вычислить по формуле Бесселя, имея необходимый ряд измерений длин стен на разных высотах относительно уровня пола (например, 0 м, 0,50 м, 1,10 м).
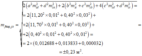
5) Форма зданий, помещений зачастую представляет собой правильную геометрическую фигуру. В соответствии с требованиями действующего законодательства площадь объектов недвижимости также вычисляется как площадь простейшей геометрической фигуры (например, прямоугольник, трапеция, прямоугольный треугольник) или путем разбивки такого объекта на простейшие геометрические фигуры и суммирования площадей таких фигур. Между тем, при проведении натурных измерений мы зачастую сталкиваемся с небольшим неравенством длин стен и пренебрегаем им при представлении формы измеряемого объекта в виде простейшей геометрической фигуры, например, прямоугольника. Как показывает практика, значительное влияние на итоговое значение СКП линейных измерений оказывает именно СКП за неравенство стен при приведении объекта к правильной фигуре - mф, величина которой также может быть определена по формуле Бесселя:

(2)
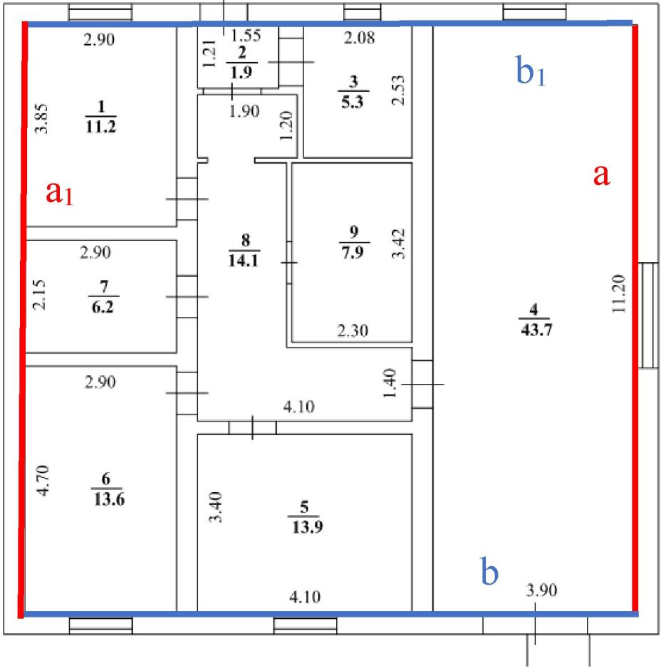
Так, при измерении самых длинных противоположных стен в помещении N 4 у кадастрового инженера был получен ряд измерений: 11,23 м; 11,23 м; 11,18 м; 11,18 м. Помещение N 4 мы приводим к форме прямоугольника, пренебрегая незначительными при такой длине стен расхождениями в их величине. Вычислим СКП за неравенство стен при приведении помещения N 4 к правильной фигуре:
a = (11,23 + 11,23 + 11,18 + 11,18)/4 = (11,23 + 11,18)/2 = 11,20 м;
При приведении помещения к форме правильной фигуры можно установить зависимость
mф от имеющейся величины неравенства стен. Результаты такой зависимости приведены в
Таблице 5:
Таблица 5
Зависимость СКП приведения к правильной фигуре
от неравенства длины стен
N п/п | Неравенство противоположных стен | Величина mф |
1 | +/- 0,01 м | +/- 0,01 м |
2 | +/- 0,02 м |
3 | +/- 0,03 м | +/- 0,02 м |
4 | +/- 0,04 м |
5 | +/- 0,05 м | +/- 0,03 м |
6 | +/- 0,06 м |
При проведении кадастровых работ в отношении типовых объектов (например, помещения, здания прямоугольной формы с площадью до 40 - 50 кв. м с максимальной длиной стен до 10 - 15 м) с измерением длин стен лазерной рулеткой на одной высоте можно принять:
Поскольку любые измерения не могут быть лишены ошибок и погрешностей, то при проведении кадастровых работ можно принять минимальное значение ms = +/- 0,1 м. В зависимости от влияния иных факторов на погрешность линейных измерений величина ms может увеличивать свое значение.
6.14.3. Определение СКП площади здания по СКП площади внутренних помещений и стен
Площадь здания можно вычислить, сложив площадь всех входящих в его состав помещений и площадь, занятую внутренними перегородками и стенами:
P = P1 + P2 + P3 + P4 + P5 + P6 + P7 + P8 + P9 + Pвнут_ст =
= 11,2 + 1,9 + 5,3 + 43,7 + 13,9 + 13,6 + 6,2 + 14,1 + 7,9 +
+ (0,40 x 11,20 x 2 + 0,40 x 1,21 + 2,90 x 0,25 x 2 + 0,30 x
x 4,10 + 0,10 x 11,05) =
= 117,8 + (9,0 + 0,5 + 1,4 + 1,2 + 1,1) = 131,0 м2;
Поскольку не во всех помещениях СКП линейных измерений длин стен a и b совпадали по величине, то в таких случаях величина СКП площади рассчитывалась по формуле:
Таблица 6
Подсчет СКП площади
N помещения | Длина стен, м | СКП линейных измерений, м | СКП площади, mf, м2 |
a | b | msa | msb | |
1 | 3,85 | 2,90 | 0,02 | 0,02 | 0,10 |
2 | 1,21 | 1,55 | 0,01 | 0,01 | 0,02 |
3 | 2,53 | 2,08 | 0,01 | 0,01 | 0,03 |
4 | 11,20 | 3,90 | 0,03 | 0,01 | 0,16 |
5 | 3,40 | 4,10 | 0,02 | 0,02 | 0,11 |
6 | 4,70 | 2,90 | 0,02 | 0,02 | 0,11 |
7 | 2,15 | 2,90 | 0,01 | 0,01 | 0,04 |
8 | 1,20 | 1,90 | 0,01 | 0,01 | |
4,90 | 1,70 | 0,02 | 0,01 | 0,07 |
1,40 | 2,40 | 0,01 | 0,01 | |
9 | 3,42 | 2,30 | 0,02 | 0,01 | 0,06 |
Итого по помещениям: | | | | | +/- 0,27 |
Перегородки и стены | 11,20 | 0,40 | 0,03 | 0,01 | 0,11 |
3,40 | 0,40 | 0,02 | 0,01 | 0,04 |
| | | | |
4,90 | 0,40 | 0,02 | 0,01 | 0,05 |
1,20 | 0,40 | 0,01 | 0,01 | 0,01 |
0,50 | 0,40 | 0,01 | 0,01 | 0,01 |
1,21 | 0,40 | 0,01 | 0,01 | 0,01 |
| | | | |
1,21 | 0,40 | 0,01 | 0,01 | 0,01 |
| | | | |
2,90 | 0,25 | 0,02 | 0,01 | 0,03 |
2,90 | 0,25 | 0,02 | 0,01 | 0,03 |
| | | | |
4,10 | 0,30 | 0,02 | 0,01 | 0,04 |
| | | | |
1,55 | 0,10 | 0,01 | 0,01 | 0,01 |
| | | | |
2,08 | 0,10 | 0,01 | 0,01 | 0,02 |
| | | | |
3,42 | 0,10 | 0,02 | 0,01 | 0,03 |
| | | | |
2,30 | 0,10 | 0,01 | 0,01 | 0,02 |
Итого по стенам и перегородкам: | | | | | 0,15 |
Итого по зданию: | | | | | +/- 0,31 |
6.14.4. Определение СКП площади здания по СКП внутренних поверхностей наружных стен
Площадь здания - объекта кадастровых работ можно вычислить по формуле площади простейшей геометрической фигуры:
P = a x b = 11,20 x 11,70 = 131,0 м2;
Рис. 13. Линейные измерения для расчета СКП площади здания
6.14.5. Определение СКП площади здания по СКП внешнего контура здания и СКП наружных стен
Рис. 14. Линейные измерения для расчета СКП площади здания
Характерные точки контура здания имеют следующие координаты
<3>:
Таблица 7
Координаты контура здания
Номера характерных точек контура | Координаты, м |
X | Y |
н1 | 383,18 | 699,31 |
н2 | 379,92 | 710,86 |
н3 | 367,88 | 707,50 |
н4 | 371,14 | 695,94 |
--------------------------------
<3> В целях отсутствия возможности идентификации уникальных характеристик объекта недвижимости в МСК первые четыре цифры координат исключены. Данное обстоятельство не оказывает влияния на подсчет площади и ее СКП.
Согласно
пункту 10.2 Приказа Росреестра от 23.10.2020 N П/0393 "Об утверждении требований к точности и методам определения координат характерных точек границ земельного участка, требований к точности и методам определения координат характерных точек контура здания, сооружения или объекта незавершенного строительства на земельном участке, а также требований к определению площади здания, сооружения, помещения, машино-места" площадь этажа жилого здания определяется в пределах внутренних поверхностей наружных стен.
Таким образом, площадь здания можно вычислить по следующей формуле:
P = Pвнеш - Pнар_ст = 150,1 - 19,0 = 131,1 м2,
где Pвнеш - площадь внешнего контура здания,
Pнар_ст - площадь, занятая наружными стенами здания.
Pвнеш = 150,1 м2 площадь внешнего контура здания получена из значений координат характерных точек здания.
Pнар_ст = 2(b x c) + 2(a x d) + 4 x 0,40 x 0,40 =
= 2(11,70 x 0,40) + 2(11,20 x 0,40) + 0,64 = 18,96 ~= 19,0 м2.
Тогда, общую СКП определения площади в данном случае можно выразить посредством следующей формулы:
mfвнеш - СКП площади внешнего контура здания можно получить из формул проф. Маслова:

(3)
где xi, yi - координаты характерных точек контура здания;
mt - СКП положения характерных точек контура здания;
n - число характерных точек контура здания.

(4)
Пренебрегая бесконечно малыми погрешностями, данные вычисления можно привести в упрощенном виде:
Существует множество других способов определения СКП площади (например, определение СКП при уравнивании площадей в условиях наличия дополнительных измерений (например, диагоналей в прямоугольнике), определение СКП с помощью матриц измеренных величин и т.д.).
Величина СКП определения площади зависит от методики ее определения, применяемых приборов и формул при вычислениях.
6.14.6. Пример "Заключения кадастрового инженера"
При необходимости формулы СКП определения площади с подставленными в них значениями и результатом вычисления можно приводить в разделе технического плана "Заключение кадастрового инженера".
В зависимости от используемой кадастровым инженером методики определения площади здания в "Заключении кадастрового инженера" также может быть приведена следующая информация об определении СКП площади:
ВАРИАНТ 1:
Внутренние обмеры здания проведены на h = 1,10 м от уровня пола. В здании завершены строительные работы. Отделочные работы отсутствуют. Площадь здания получена путем разбивки такого объекта на простейшие геометрические фигуры и суммирования площадей таких фигур, поэтому СКП определения площади здания вычислена по формуле:
Дополнительно могут быть приведены расчеты СКП каждого помещения:
Таблица 8
Вариант обоснования подсчета площади здания
N помещения | Длина стен, м | СКП линейных измерений, м | СКП площади mf, м2 |
a | b | msa | msb |
1 | 3,85 | 2,90 | 0,02 | 0,02 | 0,10 |
2 | 1,21 | 1,55 | 0,01 | 0,01 | 0,02 |
3 | 2,53 | 2,08 | 0,01 | 0,01 | 0,03 |
4 | 11,20 | 3,90 | 0,03 | 0,01 | 0,16 |
5 | 3,40 | 4,10 | 0,02 | 0,02 | 0,11 |
6 | 4,70 | 2,90 | 0,02 | 0,02 | 0,11 |
7 | 2,15 | 2,90 | 0,01 | 0,01 | 0,04 |
8 | 1,20 | 1,90 | 0,01 | 0,01 | |
4,90 | 1,70 | 0,02 | 0,01 | 0,07 |
1,40 | 2,40 | 0,01 | 0,01 | |
9 | 3,42 | 2,30 | 0,02 | 0,01 | 0,06 |
Итого по помещениям: | | | | | +/- 0,27 |
Перегородки и стены | 11,20 | 0,40 | 0,03 | 0,01 | 0,11 |
3,40 | 0,40 | 0,02 | 0,01 | 0,04 |
| | | | |
4,90 | 0,40 | 0,02 | 0,01 | 0,05 |
1,20 | 0,40 | 0,01 | 0,01 | 0,01 |
0,50 | 0,40 | 0,01 | 0,01 | 0,01 |
1,21 | 0,40 | 0,01 | 0,01 | 0,01 |
| | | | |
1,21 | 0,40 | 0,01 | 0,01 | 0,01 |
| | | | |
2,90 | 0,25 | 0,02 | 0,01 | 0,03 |
2,90 | 0,25 | 0,02 | 0,01 | 0,03 |
| | | | |
4,10 | 0,30 | 0,02 | 0,01 | 0,04 |
| | | | |
1,55 | 0,10 | 0,01 | 0,01 | 0,01 |
| | | | |
2,08 | 0,10 | 0,01 | 0,01 | 0,02 |
| | | | |
3,42 | 0,10 | 0,02 | 0,01 | 0,03 |
| | | | |
2,30 | 0,10 | 0,01 | 0,01 | 0,02 |
Итого по стенам и перегородкам: | | | | | 0,15 |
Итого по зданию: | | | | | +/- 0,31 |
Вместо табличной формы расчет СКП каждого помещения может быть представлен в виде перечня расчетных формул с подставленными в них значениями.
ВАРИАНТ 2:
Внутренние обмеры здания проведены на h = 1,10 м от уровня пола. В здании завершены строительные работы. Отделочные работы отсутствуют. Поскольку здание имеет форму прямоугольника, СКП определения площади рассчитана по следующей формуле:
ВАРИАНТ 3:
Внутренние обмеры здания проведены на h = 1,10 м от уровня пола. В здании завершены строительные работы. Отделочные работы отсутствуют. СКП определения площади рассчитана по следующей формуле:
Таблица 9
Формулы расчета СКП площади
для разных геометрических фигур <4>
--------------------------------
<4> Данный перечень формул не является исчерпывающим. Для ряда фигур могут быть выведены и иные формулы расчета СКП площади.
Фигура | Чертеж | Формула для подсчета площади фигуры | Формула определения СКП площади фигуры |
| | ИС МЕГАНОРМ: примечание. Формулы даны в соответствии с официальным текстом документа. | |
|
Квадрат | | P = a2 | |
Прямоугольник | | P = ab | Если ma = mb = ms, т.е. когда все стороны измерены с одинаковой точностью: |
Параллелограмм | |
Треугольник | | | |
| Формула Герона: | где A = (q - a)(q - b)(q - c); B = q(q - b)(q - c); C = q(q - a)(q - c); D = q(q - a)(q - b) |
Круг | | | |
6.15. КОНТУР ЗДАНИЯ И ЕГО ОТОБРАЖЕНИЕ НА ЧЕРТЕЖЕ
6.15.1. Контур здания является характеристикой местоположения объекта относительно границ земельного участка.
6.15.2. Контур здания образуется проекцией внешних границ строительных конструкций на горизонтальную плоскость, проходящую на уровне примыкания здания к поверхности земли.
6.15.3. К строительным конструкциям относятся части здания, выполняющие определенные функции несущих или ограждающих конструкций или являющиеся декоративным элементом.
6.15.4. В зависимости от расположения конструктивных элементов здания по отношению к уровню поверхности земли, проекции таких конструкций включаются в контуры соответствующего типа
(Таблица 10):
1) контур наземного типа образуется проекцией на горизонтальную плоскость строительных конструкций объекта недвижимости, расположенных на уровне поверхности земли;
2) контур надземного типа образуется проекцией на горизонтальную плоскость строительных конструкций объекта недвижимости, расположенных выше уровня поверхности земли;
3) контур подземного типа образуется проекцией на горизонтальную плоскость строительных конструкций объекта недвижимости, расположенных ниже уровня поверхности земли.
Таблица 10
Конструктивные элементы и их включение в контур здания
(в зависимости от расположения относительно
поверхности земли)
N п/п | Строительные конструкции здания | Типы контуров здания |
Подземный | Наземный | Надземный |
1. | фундамент | | | |
2. | внешние стены | | | |
3. | крыша, свес крыши, навес | | |  могут включаться в контур здания при наличии условий, указанных в пункте 6.15.6 Стандарта |
4. | колонны, опоры | | | |
5. | балкон | |  могут встречаться балконы, строительные конструкции которых расположены на земле | |
6. | лоджия | |  могут встречаться лоджии, строительные конструкции которых расположены на земле | |
7. | терраса | | | |
8. | крыльцо | |  Включается в контур, если является частью здания, обладает признаками капитальности, имеет признаки ограждающих конструкций. ( Рис. 16а, 16б) | |
9. | пандус | |  (кроме пандуса бордюрного и инвентарного) | |
10. | приямок | | | |
11. | отмостки | | Не включаются в контур, поскольку являются элементами благоустройства, а не строительными конструкциями здания | |
12. | внешние входы в подземный этаж | | | |
6.15.5. Наземный контур здания может быть меньше его подземного контура в случаях, когда подземные этажи здания и соответственно конструкции фундамента здания выходят за пределы контура наземных конструктивных элементов здания (стен, колонн). Кроме того, в подземный и наземный контур включаются наружные спуски в подземные этажи, приямки.
В наземный контур здания входит проекция наземных конструкций здания: наружные стены, колонны, террасы, капитальные крыльца, наружные входы в подземные этажи, приямки.
В надземный контур здания включаются конструктивные элементы, выходящие за границы его наземного контура: проекции консольных элементов (конструктивных элементов консольных этажей), ограждающих конструкций балконов и лоджий, свесов крыши в случае, указанном в
пункте 6.15.6 Стандарта (в том числе при наличии мансардного этажа, образованного в чердачном пространстве).
(Рис. 15).
Рис. 15. Отображение контура двухэтажного жилого здания
в техническом плане
Рис. 16а. Крыльцо, включаемое в контур здания
Рис. 16б. Крыльцо, не включаемое в контур здания
6.15.6. Крыша здания может иметь карнизный свес - выступ крыши от стены, защищающий ее от стекающей дождевой или талой воды, который у жилых зданий по своим размерам может являться одновременно навесом над террасой или парковочным местом. В данном случае отображение контура крыши (кровли) с выступающим карнизным свесом необходимо включать в надземный контур
(рис. 17б).
Рис. 17а. Крыша, не включаемая в контур здания
Рис. 17б. Крыша, включаемая в контур здания
Пристроенные к дому навесы, не имеющие общей крыши со зданием, в контур здания не включаются, поскольку не являются его строительной конструкцией
(рис. 18).
Рис. 18. Навесы, не включаемые в контур здания
Для садовых и жилых домов, расположенных в границах СНТ, проекция свеса крыши включается в контур, если она выступает от плоскости стены более чем на 0,50 м. Для жилых домов, расположенных на земельных участках, предоставленных для индивидуального жилищного строительства или личного подсобного хозяйства, проекция свеса крыши может определяться по аналогичному подходу и включаться в контур, если она выступает от плоскости стены более чем на 1 м.
| | ИС МЕГАНОРМ: примечание. Текст дан в соответствии с официальным текстом документа. | |
В иных случаях, не описанных в настоящем пункте Стандарта, кадастровый инженер самостоятельно в зависимости от конструкции крыши, его свеса и навеса с учетом результатов визуального осмотра принимает решение о необходимости их включения в контур здания.
6.15.7. Каждый тип контура координируется отдельно, описывается отдельно в разделе "Описание местоположения объекта недвижимости" и отображается в разделе "Чертеж" технического плана определенным условным знаком.
6.15.8. При определении контура здания в его контур включаются проекции всех строительных конструкций, в том числе выступающих за поверхность наружных стен, предусмотренных проектной документацией.
В случае если для строительства или реконструкции здания разработка проектной документации не предусмотрена, детализация контура здания определяется кадастровым инженером самостоятельно в зависимости от объемно-планировочных и архитектурных решений конкретного здания с учетом результатов визуального осмотра такого объекта недвижимости.
6.15.9. В случае если здание имеет наземные, надземные и (или) подземные строительные конструкции, контур такого здания на земельном участке определяется как совокупность контуров, образованных проекцией внешней (наружной) поверхности наземных, надземных и (или) подземных строительных конструкций (в том числе колонн, арок (проездов), балконов и тому подобное) такого здания на горизонтальную плоскость, проходящую на уровне его примыкания к поверхности земли.
6.15.10. Контур здания, имеющего как надземные, так и подземные конструктивные элементы, образуется совокупностью как минимум трех контуров (по одному для каждого типа), образованных проекциями наиболее выступающих наземных, надземных и подземных конструктивных элементов.
6.15.11. В случае совпадения проекций наземных, надземных и (или) подземных строительных конструкций в техническом плане допускается указывать список координат одного контура, образованного проекцией внешней (наружной) поверхности наземных строительных конструкций.
6.15.12. Если здание имеет части с различным количеством надземных или подземных этажей, с башнями, пирамидами или иными подобными частями, в зависимости от объемно-планировочных решений в контур такого здания включаются несколько надземных или подземных контуров, соответствующих частям здания с различным количеством этажей, или контуры, описывающие проекцию строительных конструкций башен, пирамид или, наоборот, подвалов.
6.15.13. Исходя из требований
пунктов 6.15.4 и
6.15.12 Стандарта отсутствует необходимость координирования всех этажей в пределах контура одного типа, если их проекции не совпадают между собой.
7. ТЕХНИЧЕСКОЕ ОПИСАНИЕ ЖИЛОГО ЗДАНИЯ
7.1. ЛИНЕЙНЫЕ ИЗМЕРЕНИЯ В ЗДАНИИ И СОСТАВЛЕНИЕ АБРИСА
7.1.1. При обследовании здания кадастровым инженером проводятся натурные измерения, которые фиксируются в абрисе. Он может быть изготовлен на поэтажном плане из проектной документации, технического паспорта (дополнен необходимыми измерениями, отсутствующими в проектной документации или техническом паспорте) либо изготовлен кадастровым инженером самостоятельно.
7.1.2. Абрис представляет собой внемасштабный, но с соблюдением пропорций, чертеж здания с обозначением данных, в том числе результатов линейных измерений, необходимых для последующего оформления Плана здания или его поэтажных планов.
7.1.3. Абрис составляется непосредственно в момент проведения линейных измерений с помощью автоматизированных средств или вручную.
7.1.4. Абрис является рабочим документом кадастрового инженера и в состав технического плана не включается.
7.1.5. Абрис здания в обязательном порядке содержит планы всех этажей здания, на которых отражены:
1) контуры наружных капитальных стен здания;
2) контуры стен пристроек, крылец, ступеней;
3) оконные и дверные проемы по всему наружному периметру стен, окна и двери внутри здания;
4) стены и перегородки, в том числе внутренние;
5) лестницы, балконы, лоджии;
6) веранды, террасы;
7) тамбур;
8) внутренние выступы стен, арки;
9) приямки и другие строительные конструкции здания, которые необходимы для отображения на поэтажном плане здания в техническом плане;
10) результаты линейных измерений.
7.1.6. Записи результатов измерений строительных конструкций и вспомогательных промеров должны быть в абрисе записаны аккуратно и четко определяться к чему они относятся. Данных обмеров должно быть достаточно для вычерчивания поэтажных планов и подсчета площади здания. В необходимых местах могут быть отражены контрольные промеры.
7.1.7. Абрис оформляется необходимыми пояснительными надписями (наименование объекта, его адрес и назначение, даты начала и окончания полевых работ, исполнитель и т.д.).
7.1.8. В случае если при проведении камеральных работ поэтажный план здания невозможно ориентировать относительно его контура (например, контур здания прямоугольной, квадратной формы без выступов), то в указанных случаях сторона главного фасада или южная сторона здания (с указанием сторон света) в абрисе располагается внизу.
7.1.9. В абрисе указываются все строительные конструкции здания в плане и по мере измерения проставляются их размеры. Измерения рекомендуется проводить по завершении строительных, в том числе отделочных, работ.
7.1.10. Последовательность составления абриса и измерений здания:
В зависимости от задания на проведение кадастровых работ и результатов измерений контура здания в рамках составления абриса могут проводиться следующие виды работ:
- обмер периметра здания с привязкой оконных и дверных проемов (например, при высоком уровне внутренней отделки);
- внутренний обмер помещений;
- взятие при необходимости высот (например, для определения типов этажей - цокольный, мансардный и т.д.), диагоналей.
При реконструкции здания полевые работы сводятся до сличения на месте существующей документации на здание с фактическим его состоянием, расположением учетных элементов, зарисовке в абрисе выявленных планировочных измерений, производству необходимых измерений.
Наружные измерения здания производятся выше цоколя на уровне оконных проемов с точностью до 1 см. Начальной точкой измерения линии (стены) считается угол здания. Измерения производятся с одновременной последовательной записью размеров, начиная от одного из наружных углов здания до начала и конца оконных и дверных проемов или их осей, начала и конца архитектурных выступов, колонн и прочих элементов по всему периметру стен основного здания и пристроек. В тех местах, где измерения по всему периметру стен недоступны в связи с примыкающими соседними зданиями, длина стены определяется путем суммирования внутренних размеров помещений и толщины стен и перегородок.
Расстояния, применяемые для определения в последующем площади здания, измеряются внутри здания на высоте от нуля до 1,10 метра от уровня пола (плинтусы, декоративные элементы, кабельные короба, системы отопления или кондиционирования воздуха не учитываются).
Не подлежат измерению и внесению в абрис наружные выступы, пилястры до 10 см. Выступы более 10 см, а также ступени крыльца и т.п. вносятся в абрис и измеряются.
В зданиях непрямоугольной формы целесообразно брать диагонали во всех угловых помещениях первого этажа и в остальных помещениях в зависимости от конфигурации здания в количестве, достаточном для правильной накладки поэтажного плана. Если представляется возможным, диагонали и засечки берутся снаружи зданий.
При съемке зданий необходимо знать толщину всех стен и перегородок. Толщина стен и перегородок в зданиях, не имеющих проемов, определяется по наружным и внутренним измерениям между осями смежных проемов (чаще всего оконных).
Колонны измеряются и увязываются по параллельным касательным к окружности и в абрисе указываются их диаметры.
Измерения помещений производится с точностью 1 см по всему периметру стен на высоте с одновременным измерением дверей, выступов и других элементов, с соблюдением следующих обязательных правил:
Дверные и оконные проемы измеряются в свету (по завесам);
При измерении лестничных клеток кроме самого помещения измеряются площадки и в абрисе указывается количество ступенек и направление подъема маршей;
Перегородки не до потолка учитываются и измеряются в случае, если конструкция перегородки присутствует на высоте проведения кадастровым инженером линейных измерений (например, высота перегородки 1 м, а измерения кадастровый инженер проводит на уровне пола). В данном случае важно фиксировать в "Заключении кадастрового инженера" высоту, на которой проводились линейные измерения.
Обозначенная на полу разметкой перегородка, отсутствующая на момент проведения кадастровых работ и планируемая к возведению при проведении ремонтных работ, не измеряется и в абрисе не отображается.
Все выступы стен и перегородок, ниши и т.п. размером более 5 см подлежат занесению в абрис и измерению.
Высота помещений показывается на абрисе в тех помещениях, где были взяты эти замеры (например, на мансардном, подвальном этаже и т.д.).
7.1.11. Абрис не составляется в случае:
1) проведения кадастровых работ исключительно в целях уточнения местоположения границ контура здания (при необходимости в данном случае абрис может быть представлен чертежом с минимальным количеством линейных измерений, выполненных по внешнему контуру здания в целях наличия дополнительных измерений для оформления Чертежа здания);
2) наличия проектной документации, содержащей поэтажный план здания, или технического паспорта, сведения которых соответствуют фактическому состоянию здания.
Рис. 19. Пример абриса жилого дома, оформленного посредством
автоматизированных средств
7.2. СОСТАВЛЕНИЕ ПЛАНА ЭТАЖА (ПЛАНА ЗДАНИЯ)
7.2.1. В технический план жилого здания включаются планы всех этажей либо план здания, за исключением случаев, установленных
частями 9.1 и
14 статьи 24 218-ФЗ.
7.2.2. Поэтажные планы здания, являющиеся частью проектной документации, включаются в технический план в качестве раздела План этажа, План здания, если содержание таких поэтажных планов в части характеристик расположенных на соответствующем этаже помещений (линейных измерений, площади, конфигурации помещений) соответствуют фактическим характеристикам таких помещений.
7.2.3. Кадастровым инженером по результатам выполненных им измерений и абриса самостоятельно изготавливается поэтажный план здания и включается в технический план в виде соответствующего раздела технического плана в следующих случаях:
1) если поэтажные планы, являющиеся частью проектной документации, не содержат необходимые для оформления поэтажных планов обозначения и сведения;
2) указанные в поэтажных планах параметры, в том числе линейные размеры, не соответствуют фактическим характеристикам помещений;
3) изменения проектной документации не отражены в поэтажных планах;
4) при отсутствии поэтажных планов.
7.2.4. Камеральные работы по составлению поэтажных планов как обязательных разделов технического плана включают в себя:
1) непосредственно подготовку поэтажных планов по установленному образцу;
2) проставление линейных размеров, нумерации;
3) подсчет внутренних площадей (при необходимости);
4) проставление на плане нумерации помещений (при необходимости).
7.2.5. Камеральные работы при работе с жилым зданием после реконструкции включает:
1) вычерчивание поэтажных планов с учетом всех выявленных изменений;
2) определение площади здания с учетом пересчета площадей изменившихся и вновь образованных помещений.
7.2.6. План этажа либо План здания размещается симметрично краям листа. Сторона главного фасада в плане должна располагаться параллельно нижнему краю листа. В случае если невозможно определить главный фасад, параллельно нижнему краю листа располагается южная сторона здания.
7.2.7. План этажа либо План здания вычерчивается в масштабе 1:100 или 1:200 в условных знаках, принятых для кадастровых работ.
7.2.8. Оформление Плана этажа либо Плана здания производится с точностью до 0,5 мм с применением средств компьютерной графики.
7.2.9. На Плане этажа либо Плане здания отображаются в масштабе:
- стены (перегородки), в том числе внутренние;
- местоположение помещений;
- пристройки;
- крыльцо;
- лестницы и ступени;
- оконные и дверные проемы;
- окна и двери;
- балконы, лоджии;
- внутренние выступы стен и перегородок;
- ниши в стенах, если они присутствуют на высоте проводимых кадастровым инженером измерений и глубина их более 5 см;
- арки и отдельно расположенные столбы и колонны;
- приямки, лазы подвалов и цокольных этажей;
- необходимые условные обозначения.
7.2.10. Последовательность составления Плана этажа (Плана здания)
План этажа либо План здания оформляется после проверки суммы измерений, выполненных снаружи здания и суммы измерений, выполненных внутри здания по той же стороне (с учетом толщины стен и внутренних перегородок).
Составление Плана этажа (Плана здания) начинается с вычерчивания плана первого этажа. Первоначально по данным натурных измерений вычерчивается наружный, затем с учетом толщины стен - внутренний контур здания. Далее строятся внутренние стены, перегородки, проемы, лестницы с учетом увязки на соответствующих местах и в точном соответствии с принятыми условными знаками.
Допустимая невязка между наружными и внутренними измерениями при вычерчивании плана распределяется пропорционально на все комнаты, т.е. на расстояние между стенами и перегородками в комнатах.
После вычерчивания первого этажа производится вычерчивание остальных этажей в соответствии с расположением капитальных стен на плане первого этажа, считающегося контрольным.
Планы подвалов под небольшой по площади частью здания можно вычерчивать, не делая контура всего здания, располагая их на плане против того места поэтажного плана соответствующего этажа, под которым или над которым они непосредственно находятся. При этом необходимо показать ближайшие капитальные стены для того, чтобы читающему план легко было ориентироваться.
Лестницы показываются соответствующим условным знаком.
Проемы, ниши, стенные шкафы как по своему размеру, так и в отношении расположения, наносятся на План этажа (План здания) в масштабе.
Веранды, галереи, тамбуры, сени измеряются внутри и вычерчиваются на Плане этажа (Плане здания).
По центру на Плане этажа сверху на листе указывается тип этажа (при наличии такой информации) или номер этажа (например, цокольный этаж, 1-й этаж).
На Плане этажа (Плане здания) параллельно направлению соответствующих стен и перегородок отображаются соответствующие линейные размеры.
На Плане этажа проставляются следующие размеры в метрах с двумя десятичными знаками:
на планах всех этажей, подвалов, мансард - размеры всех помещений (длина и ширина), а в помещениях непрямоугольной формы - размеры по всему внутреннему периметру стен.
Примечание. Размеры ниш, арок, колонн, выступов, дверей, окон, приямки, прочие наружные строительные конструкции здания, не включаемые в площадь здания, и т.д., а также другие измерения: диагонали, засечки и т.п., на Плане этажа (Плане здания) не проставляются.
Обозначения помещений на этаже или в здании, надписи, за исключением линейных измерений, на Плане этажа либо Плане здания отображаются параллельно нижнему краю листа.
При необходимости на Плане этажа (Плане здания) могут быть указаны номера помещений и их площади
(рис. 20).
Рис. 20. Примеры оформления Плана этажа жилого здания
в техническом плане
7.3. УСЛОВНЫЕ ЗНАКИ ДЛЯ ПОЭТАЖНЫХ ПЛАНОВ
Для оформления Плана этажа (Плана здания) применяются специальные условные знаки, установленные требованиями к подготовке технических планов. Для отражения в графической части технического плана необходимой информации допускается применение иных условных знаков при условии отражения информации о них в условных обозначениях, примененных в поэтажных планах
(Таблица 11).
Таблица 11
Условные знаки для поэтажных планов
N п/п | Название условного знака | Изображение | Описание изображения |
| Условные знаки, предусмотренные Приказом Росреестра |
1. | Стена с окном и дверью | | Сплошные линии черного цвета, толщиной 0,2 мм, перпендикулярные границе геометрической фигуры |
2. | Лестница | | |
Наружная открытая лестница в подвал | |
| Лестничная клетка с двухмаршевой лестницей: | | |
- в плане 1 этажа | |
| - в плане 2 этажа | | |
3. | Дверь остекленная (на балкон, лоджию) | | |
4. | Веранда | | |
5. | Терраса | | |
6. | Перегородка | | |
Дополнительные условные знаки, которые могут использоваться при подготовке поэтажных планов в техническом плане |
7. | Лоджии | | |
8. | Эркер | | |
9. | Арка в стене | | |
10. | Стена с пилястрами | | |
11. | Ниша и шкаф в стене | | |
12. | Приямок | | |
13. | Внутренний тамбур | | |
| Наружный тамбур | | |
14. | Кирпичное крыльцо со ступенями | | |
| Деревянное крыльцо со ступенями | | |
| Крыльцо со ступенями на 3 стороны | | |
Если примененные в Плане этажа (Плане здания) здания, являющихся частью проектной документации, условные знаки не соответствуют специальным условным знакам, применяемым при подготовке технических планов, данное обстоятельство не является нарушением установленных требований.
7.4. КОНТРОЛЬ ТЕХНИЧЕСКОГО ОПИСАНИЯ ЗДАНИЯ:
7.4.1. Проверка выполненных работ технического описания жилого здания осуществляется кадастровым инженером. При этом проверяется следующее:
1) точность наружных измерений и данных отсчетов по проемам (окон и дверей);
2) правильность линейных размеров внутри помещений, правильность сквозных измерений, толщины стен и перегородок;
3) полноту (достаточность) вспомогательных размеров (диагоналей) в помещениях со сложной конфигурацией;
4) правильность нумерации помещений;
5) оформление абрисов (наличие подписи, даты производства работ и др.).
7.4.2. При контроле графических работ исполняются следующие действия:
1) сопоставление поэтажного плана с абрисом;
2) сопоставление плана первого этажа (контрольного) с планами расположения капитальных стен (наружных и внутренних), оконных проемов, лестниц;
3) проверка масштаба поэтажного плана;
4) проверка поэтажного плана после вычерчивания размеров, соответствия плана принятым условным обозначениям.
7.4.3. При контроле вычислительных работ проверяются:
1) правильность формул, подсчетов и др.;
2) правильность выполнения подсчетов и итогов по зданию в целом;
3) правильность указания площади каждой комнаты на поэтажном плане.
Незначительные ошибки и отклонения исправляются кадастровым инженером; дела с грубыми ошибками могут требовать повторных натурных измерений, пересчетов и иных действий по исправлению ошибок.
(справочное)
ИНФОРМАЦИЯ О ПЕРЕГОРОДКАХ В СНиП
Информация о присутствующих в жилом здании стенах и перегородках указывается в графической части технического плана - поэтажных планах здания на основании данных проектной документации или технического паспорта здания.
Примечание: из проектной документации не всегда очевидно следует, какие стены являются перегородками, зачастую отсутствует четкое разделение между стенами и перегородками, в примененных формулировках присутствует неоднозначность либо вообще отсутствует информация о наличии перегородок (использованы только понятия "наружные стены" и "внутренние стены").
При отсутствии таких документов информация о перегородках в жилом здании указывается в поэтажном плане в случае, если:
1) кадастровым инженером при обмере жилого здания визуально установлено наличие перегородок (например, измерения проводились до отделочных работ, перегородка идентифицирована по толщине стены и т.д.);
2) полученные характеристики стены в результате обследования кадастровым инженером соответствуют характеристикам перегородок в СНиП.
В СНиПах отсутствует единое однозначное понятие "перегородка" либо в ряде случаев указано, что перегородка - это разновидность стен:
Согласно "Межгосударственному стандарту. Система проектной документации для строительства. Условные графические изображения элементов зданий. ГОСТ 21.201-2011"
параграф 4.1 "Стены" начинается со слов: "Стены и перегородки (без заполнения проемов)". В условных знаках изображений слово "перегородка" присутствует только как "перегородка из стеклоблоков". Во всех остальных случаях исключительно "стены". При этом в случае тонких стен (менее 2 мм в масштабе проекта) их изображают зачерченными.
Согласно "Своду правил. Дома жилые одноквартирные.
СП 55.13330.2011" термин "перегородка" употребляется в месте, где речь идет о встроенной автостоянке для двух и более машин, которая должна отделяться от других помещений дома перегородками.
"Свод правил. Дома жилые многоквартирные.
СП 54.13330.2011" расширяет этот термин, разделяя понятие перегородки и внутренней стены особенными требованиями этих конструктивных элементов к пределу огнестойкости и допустимому классу пожарной безопасности.
3) Согласно "Своду правил. Несущие и ограждающие конструкции.
СП 70.13330.2012" термин "перегородка" применяется при монтаже каркасно-обшивных, силикатных панельных перегородок.
4) "Свод правил. Защита от шума.
СП 51.13330.2011" разделяет требования к стенам и перегородкам по уровню изоляции воздушного шума ограждающих конструкций. Из указаний
раздела 9.15 "Внутренние стены и перегородки" следует, что перегородка - это частный случай двойной стены каркасно-обшивного типа, заполненной мягким звукопоглощающим материалом. Встречаются в Своде также термины "межкомнатные стены и перегородки", "межквартирные стены и перегородки".
5) В "Свод правил. Каменные и армокаменные конструкции.
СП 15.13330.2012" каменные стены в зависимости от конструктивной схемы здания подразделяются на:
- несущие, воспринимающие кроме нагрузок от собственного веса и ветра также нагрузки от покрытий, перекрытий, кранов и т.п.;
- самонесущие, воспринимающие нагрузку только от собственного веса стен всех вышележащих этажей зданий и ветровую нагрузку;
- ненесущие (в том числе навесные), воспринимающие нагрузку только от собственного веса и ветра в пределах одного этажа при высоте этажа не более 6 м; при большей высоте этажа эти стены относятся к самонесущим;
- перегородки - внутренние стены, воспринимающие нагрузки только от собственного веса и ветра (при открытых оконных проемах) в пределах одного этажа при высоте его не более 6 м; при большей высоте этажа стены этого типа условно относятся к самонесущим.
Таким образом, перегородка во многих случаях признается разновидностью стен.
1. Федеральный
закон от 27.12.2002 N 184-ФЗ "О техническом регулировании";
2. Жилищный
кодекс Российской Федерации от 29.12.2004 N 188-ФЗ;
3. Градостроительный
кодекс Российской Федерации" от 29.12.2004 N 190-ФЗ;
4. Федеральный
закон от 24.07.2007 N 221-ФЗ "О кадастровой деятельности";
5. Федеральный
закон от 30.12.2009 N 384-ФЗ "Технический регламент о безопасности зданий и сооружений";
6. Федеральный
закон от 13.07.2015 N 218-ФЗ "О государственной регистрации недвижимости";
7. Федеральный
закон от 29.07.2017 N 217-ФЗ "О ведении гражданами садоводства и огородничества для собственных нужд и о внесении изменений в отдельные законодательные акты Российской Федерации";
8. Федеральный
закон от 30.12.2021 N 476-ФЗ "О внесении изменений в отдельные законодательные акты Российской Федерации";
9.
Приказ Росреестра от 25.04.2019 N П/0163 "О размещении на официальном сайте Федеральной службы государственной регистрации, кадастра и картографии в информационно-телекоммуникационной сети "Интернет" XML-схем, используемой для формирования XML-документа - технического плана здания, сооружения, объекта незавершенного строительства, помещения, машино-места, единого недвижимого комплекса в форме электронного документа, и особенности ее применения";
10.
Приказ Росреестра от 23.10.2020 N П/0393 "Об утверждении требований к точности и методам определения координат характерных точек границ земельного участка, требований к точности и методам определения координат характерных точек контура здания, сооружения или объекта незавершенного строительства на земельном участке, а также требований к определению площади здания, сооружения, помещения, машино-места";
11.
Приказ Росреестра от 01.06.2021 N П/0241 "Об установлении порядка ведения Единого государственного реестра недвижимости, формы специальной регистрационной надписи на документе, выражающем содержание сделки, состава сведений, включаемых в специальную регистрационную надпись на документе, выражающем содержание сделки, и требований к ее заполнению, а также требований к формату специальной регистрационной надписи на документе, выражающем содержание сделки, в электронной форме, порядка изменения в Едином государственном реестре недвижимости сведений о местоположении границ земельного участка при исправлении реестровой ошибки";
12.
Приказ Росреестра от 15.03.2022 N П/0082 "Об установлении формы технического плана, требований к его подготовке и состава содержащихся в нем сведений";
13.
Приказ Минстроя России от 19.09.2018 N 591/пр "Об утверждении форм уведомлений, необходимых для строительства или реконструкции объекта индивидуального жилищного строительства или садового дома";
14.
Письмо Минэкономразвития России от 10.02.2017 N ОГ-Д23-1495 "Относительно некоторых особенностей определения площади жилого здания, помещения (тамбур, внутриквартирная лестница)";
15.
Письмо Росреестра от 13.04.2020 N 3214-АБ/20 "Об определении контуров объектов недвижимости";
16.
Письмо Росреестра от 12.05.2020 N 4200-АБ/20 "О количестве этажей объектов индивидуального жилищного строительства";
17.
Письмо Росреестра от 08.09.2020 N 13-00215/20 "О рассмотрении обращений" (о видах разрешенного использования);
18.
Письмо Росреестра от 21.12.2020 N 13-11053-АБ/20 "О рассмотрении обращения";
19. Письмо Росреестра от 08.04.2021 N 13/1-00032/21 "О рассмотрении обращения";
20. Письмо Росреестра от 10.03.2022 N 06-00251/22@ "О рассмотрении обращения".
|
Ключевые слова: кадастровые работы, технический план, объект индивидуального жилищного строительства, жилой дом, садовый дом, поэтажный план, характеристики здания |