Главная // Актуальные документы // ГОСТ (Государственный стандарт)СПРАВКА
Источник публикации
М.: Стандартинформ, 2005
Примечание к документу
С 1 июля 2003 года до вступления в силу технических регламентов акты федеральных органов исполнительной власти в сфере технического регулирования носят рекомендательный характер и подлежат обязательному исполнению только в части, соответствующей целям, указанным в
пункте 1 статьи 46 Федерального закона от 27.12.2002 N 184-ФЗ.
Документ
введен в действие с 01.07.1991.
Название документа
"ГОСТ 28648-90. Межгосударственный стандарт. Колеса крановые. Технические условия"
(утв. и введен в действие Постановлением Госстандарта СССР от 20.08.1990 N 2428)
(ред. от 01.09.1991)
"ГОСТ 28648-90. Межгосударственный стандарт. Колеса крановые. Технические условия"
(утв. и введен в действие Постановлением Госстандарта СССР от 20.08.1990 N 2428)
(ред. от 01.09.1991)
Утвержден и введен в действие
Постановлением Государственного
комитета СССР по управлению
качеством продукции и стандартам
от 20 августа 1990 г. N 2428
МЕЖГОСУДАРСТВЕННЫЙ СТАНДАРТ
КОЛЕСА КРАНОВЫЕ
ТЕХНИЧЕСКИЕ УСЛОВИЯ
Crane wheels. Specifications
ГОСТ 28648-90
| | Список изменяющих документов (в ред. Изменения N 1, утв. в сентябре 1991 г.) | |
Дата введения
1 июля 1991 года
1. РАЗРАБОТАН И ВНЕСЕН Министерством тяжелого машиностроения СССР
2. УТВЕРЖДЕН И ВВЕДЕН В ДЕЙСТВИЕ Постановлением Государственного комитета СССР по управлению качеством продукции и стандартам от 20.08.1990 N 2428
3. ВВЕДЕН ВПЕРВЫЕ
4. ССЫЛОЧНЫЕ НОРМАТИВНО-ТЕХНИЧЕСКИЕ ДОКУМЕНТЫ
Обозначение НТД, на который дана ссылка | Номер пункта |
| |
| |
| |
| |
| |
| |
| |
| |
| |
| |
5. ИЗДАНИЕ (сентябрь 2005 г.) с Изменением N 1, утвержденным в сентябре 1991 г. (ИУС 12-91)
Настоящий стандарт распространяется на колеса с цилиндрической поверхностью катания из поковок, применяемых в грузоподъемных кранах и механизмах.
Требования стандарта являются обязательными, кроме
п. 1.5.
1. ТИПЫ, ОСНОВНЫЕ ПАРАМЕТРЫ И РАЗМЕРЫ
1.1. Колеса должны изготовляться двух типов:
K2P - двухребордные;
K1P - одноребордные.
1.2. Основные размеры и масса колес типа K2P должны соответствовать указанным на черт. 1 и в
табл. 1.
Профиль обода колеса типа K2P
Черт. 1
Размеры, мм
D (пред. откл. по h11) | D1 (пред. откл. по h16) | B (пред. откл. по H16) | B1 (пред. откл. по h16) | Масса, кг, не более |
200 | 230 | 60 | 90 | 15 |
250 | 290 | 70 | 110 | 30 |
320 | 360 | 70 | 110 | 45 |
80 | 120 | 50 |
400 | 450 | 80 | 130 | 80 |
90 | 140 | 80 |
100 | 150 | 90 |
500 | 550 | 90 | 150 | 145 |
100 | 150 | 145 |
560 | 600 | 90 | 130 | 200 |
100 | 150 | 210 |
630 | 680 | 90 | 140 | 220 |
100 | 150 | 250 |
710 | 770 | 100 | 150 | 300 |
130 | 180 | 380 |
150 | 200 | 410 |
800 | 880 | 110 | 170 | 330 |
130 | 190 | 360 |
150 | 210 | 410 |
170 | 250 | 640 |
900 | 980 | 130 | 190 | 460 |
150 | 210 | 530 |
170 | 250 | 630 |
1000 | 1080 | 170 | 250 | 890 |
Пример условного обозначения кранового двухребордного колеса диаметром D = 400 мм и шириной поверхности катания B = 100 мм:
Колесо K2P-400 x 100 ГОСТ 28648-90
1.3. Основные размеры и масса колес типа K1P должны соответствовать указанным на черт. 2 и в
табл. 2.
Профиль обода колеса типа K1P
Черт. 2
Размеры, мм
D (пред. откл. по h11) | D1 (пред. откл. по h16) | B (пред. откл. по H16) | B1 (пред. откл. по h16) | Масса, кг, не более |
200 | 230 | 60 | 75 | 11 |
250 | 290 | 70 | 90 | 20 |
320 | 360 | 80 | 100 | 31 |
400 | 450 | 106 | 130 | 61 |
500 | 550 | 125 | 150 | 113 |
Пример условного обозначения кранового одноребордного колеса D = 400 мм:
Колесо K1P-400 ГОСТ 28648-90
1.4. Допускается увеличение размеров
B,
B1 и массы колес по сравнению с указанными в
табл. 1 и
2 для кранов, эксплуатируемых на одних подкрановых путях с кранами большей грузоподъемности. При этом увеличение размера
B1 должно быть не менее увеличения размера
B.
1.5. Конструкцию колес устанавливают в рабочих чертежах изготовителей. Наименьшие размеры ступицы, диска и обода колеса указаны в
Приложении.
2. ТЕХНИЧЕСКИЕ ТРЕБОВАНИЯ
2.1. Колеса должны изготовляться в соответствии с требованиями настоящего стандарта по рабочим чертежам, утвержденным в установленном порядке.
2.2. Колеса должны изготовляться из стали марки 75 или 65Г по
ГОСТ 14959. Допускается изготовление колес из стали марки 2 по
ГОСТ 10791, а применяемых в механизмах групп режима работы 1М - 3М по
ГОСТ 25835, из других марок сталей с механическими характеристиками не ниже чем стали марки 45 по
ГОСТ 1050.
2.3. Допуски, припуски и кузнечные напуски для штампованных колес по
ГОСТ 7505, припуски и допуски на кованые колеса - по II группе
ГОСТ 7062.
2.4. Твердость поверхности катания и реборд, изготовленных из сталей марок 75 и 65Г, должна быть от 320 до 390 HB.
По согласованию с потребителем допускается изготовление колес из других марок сталей, указанных в
п. 2.2, с твердостью поверхностей катания и реборд не менее 280 HB для механизмов режимных групп 1М и 2М по
ГОСТ 25835 и не менее 300 HB для механизмов режимных групп 3М и 4М по
ГОСТ 25835 при условии безопасной эксплуатации изделий.
Глубина закаленного слоя должна быть не менее значений, указанных в табл. 3.
Таблица 3
Размеры, мм
| 200 - 250 | 320 | 400 - 560 | 630 - 710 | 800 - 900 | 1000 |
Глубина закаленного слоя | 10 | 15 | 20 | 25 | 30 | 40 |
(Измененная редакция, Изм. N 1).
2.5. Для одноребордного колеса шероховатость одной из поверхностей обода А или Б должна быть
Ra 12,5 мкм, шероховатость другой
Ra 100 мкм.
2.6. Торцовое биение поверхности обода с шероховатостью 12,5 мкм не должно быть более 0,15 мм на 500 мм диаметра.
Радиальное биение поверхности катания не должно быть более 0,2 мм на 100 мм диаметра.
(Измененная редакция, Изм. N 1).
2.7. На каждом колесе, поставляемом как запасная часть, на поверхности обода с шероховатостью Ra 100 мкм должны быть нанесены ударным способом размеры D x B и клеймо ОТК.
На колесах, поставляемых в составе крана или тележки, допускается нанесение только клейма ОТК.
3.1. Для контроля соответствия крановых колес требованиям настоящего стандарта изготовитель проводит приемо-сдаточные и периодические испытания.
3.2. При приемо-сдаточных испытаниях у каждого колеса проверяют размеры (
пп. 1.2;
1.3), точность изготовления (
пп. 2.3;
2.6), шероховатость
(п. 2.5) и твердость поверхностей
(п. 2.4).
3.3. При периодических испытаниях проверяют глубину термообработки колес
(п. 2.4). Испытаниям подвергают колеса из числа прошедших приемо-сдаточные испытания.
Периодичность проверки глубины термообработки должна быть: при годовом выпуске колес от 40 до 200 шт. - не реже одного раза в 5 лет и при годовом выпуске свыше 200 шт. - не реже одного раза в 3 года, но не менее 1-го колеса из каждой 1000 изготовленных.
При выпуске менее 40 колес в год периодичность проверки устанавливается в технических условиях на изготовление кранов и механизмов в зависимости от конкретных особенностей производства, но не реже одного раза в 5 лет.
При неудовлетворительных результатах проверки глубины термообработки следует проводить повторные испытания на другом колесе той же партии. Результаты повторных испытаний являются окончательными.
4.1. Размеры, точность изготовления и шероховатость поверхностей колес (
пп. 1.2;
1.3;
2.3;
2.5 и
2.6) следует проверять мерительным инструментом и приборами, специальными шаблонами и приспособлениями.
5. ТРАНСПОРТИРОВАНИЕ И ХРАНЕНИЕ
5.1. Транспортирование колес по группе ОЖ
ГОСТ 15150 транспортом любого вида.
5.2. Хранение колес по группе условий хранения Ж
ГОСТ 15150.
6. УКАЗАНИЯ ПО ЭКСПЛУАТАЦИИ
6.1. При установке колес на краны и механизмы должны быть обеспечены точность и взаимное расположение в соответствии с техническими условиями на изготовление кранов и механизмов.
6.2. Эксплуатация колес допускается при износе их реборд не более 50% первоначальной толщины и (или) поверхности катания не более 1,15% первоначального диаметра D.
Периодичность проверки износа колес устанавливают в эксплуатационных документах на краны и механизмы.
7.1. Изготовитель гарантирует соответствие колес требованиям настоящего стандарта при соблюдении потребителем условий эксплуатации, транспортирования и хранения.
7.2. Гарантийный срок эксплуатации колес равен гарантийному сроку эксплуатации кранов и механизмов, на которых они применяются.
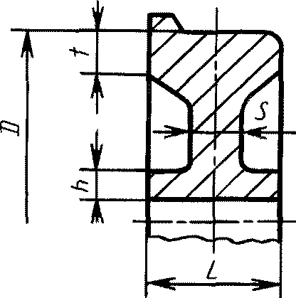
Рекомендуемое
НАИМЕНЬШИЕ РАЗМЕРЫ СТУПИЦЫ, ДИСКА И ОБОДА КОЛЕС
Таблица 4
Размеры, мм
Тип колеса | D | h | S | t | L |
K2P | 200 | 15 | 18 | 12,5 | 90 |
| 250 | 15 | 18 | 15 | 110 |
320 | 25 | 20 | 22,5 | 110 |
400 | 27,5 | 20 | 22,5 | 120 |
500 | 30 | 30 | 22,5 | 135 |
560 | 30 | 30 | 25 | 130 |
630 | 32,5 | 30 | 30 | 140 |
710 | 32,5 | 30 | 30 | 150 |
800 | 37,5 | 35 | 35 | 150 |
900 | 45 | 40 | 35 | 170 |
1000 | 60 | 60 | 55 | 230 |
K1P | 200 | 12,5 | 18 | 12,5 | 75 |
| 250 | 12,5 | 18 | 15 | 90 |
320 | 15 | 18 | 17,5 | 100 |
400 | 22,5 | 20 | 20 | 130 |
500 | 25 | 28 | 22,5 | 150 |