Главная // Актуальные документы // ГОСТ (Государственный стандарт)СПРАВКА
Источник публикации
М.: Стандартинформ, 2015
Примечание к документу
Документ включен в
Перечень документов в области стандартизации, в результате применения которых на добровольной основе обеспечивается соблюдение требований Федерального
закона от 30.12.2009 N 384-ФЗ "Технический регламент о безопасности зданий и сооружений" (
Приказ Росстандарта от 30.03.2015 N 365).
Документ
введен в действие с 1 июля 2015 года.
Название документа
"ГОСТ 33120-2014. Межгосударственный стандарт. Конструкции деревянные клееные. Методы определения прочности клеевых соединений"
(введен в действие Приказом Росстандарта от 12.12.2014 N 2027-ст)
"ГОСТ 33120-2014. Межгосударственный стандарт. Конструкции деревянные клееные. Методы определения прочности клеевых соединений"
(введен в действие Приказом Росстандарта от 12.12.2014 N 2027-ст)
агентства по техническому
регулированию и метрологии
от 12 декабря 2014 г. N 2027-ст
МЕЖГОСУДАРСТВЕННЫЙ СТАНДАРТ
КОНСТРУКЦИИ ДЕРЕВЯННЫЕ КЛЕЕНЫЕ
МЕТОДЫ ОПРЕДЕЛЕНИЯ ПРОЧНОСТИ КЛЕЕВЫХ СОЕДИНЕНИЙ
Glued timber structures. Methods for determining strength
of glue joints
(EN 302-1:2013, NEQ)
ГОСТ 33120-2014
Дата введения
1 июля 2015 года
Цели, основные принципы и основной порядок проведения работ по межгосударственной стандартизации установлены в
ГОСТ 1.0-92 "Межгосударственная система стандартизации. Основные положения" и
ГОСТ 1.2-2009 "Межгосударственная система стандартизации. Стандарты межгосударственные, правила и рекомендации по межгосударственной стандартизации. Правила разработки, принятия, применения, обновления и отмены".
1. Разработан Центральным научно-исследовательским, проектно-конструкторским и технологическим институтом им. В.А. Кучеренко (ЦНИИСК им. В.А. Кучеренко), отделением ОАО "НИЦ "Строительство".
2. Внесен Техническим комитетом по стандартизации ТК 465 "Строительство".
3. Принят Межгосударственным советом по стандартизации, метрологии и сертификации (Протокол от 5 декабря 2014 г. N 46-2014).
За принятие проголосовали:
Краткое наименование страны по МК (ИСО 3166) 004-97 | Код страны по МК (ИСО 3166) 004-97 | Сокращенное наименование национального органа по стандартизации |
Армения | AM | Минэкономики Республики Армения |
Киргизия | KG | Кыргызстандарт |
Молдова | MD | Молдова-Стандарт |
Россия | RU | Росстандарт |
Таджикистан | TJ | Таджикстандарт |
Узбекистан | UZ | Узстандарт |
4. Настоящий стандарт соответствует европейскому региональному стандарту EN 302-1:2013 Adhesives for load-bearing timber structures - Test methods - Part 1: Determination of longitudinal tensile shear strength; German version EN 302-1:2013 (Клеи для несущих деревянных конструкций. Методы испытаний. Часть 1. Определение предела прочности при растяжении на продольный сдвиг) в части метода испытаний, типа и размера образцов.
Перевод с английского языка (en).
Степень соответствия - неэквивалентная (NEQ).
5.
Приказом Федерального агентства по техническому регулированию и метрологии от 12 декабря 2014 г. N 2027-ст межгосударственный стандарт ГОСТ 33120-2014 введен в действие в качестве национального стандарта Российской Федерации с 1 июля 2015 г.
Информация об изменениях к настоящему стандарту публикуется в ежегодном информационном указателе "Национальные стандарты", а текст изменений и поправок - в ежемесячном информационном указателе "Национальные стандарты". В случае пересмотра (замены) или отмены настоящего стандарта соответствующее уведомление будет опубликовано в ежемесячном информационном указателе "Национальные стандарты". Соответствующая информация, уведомление и тексты размещаются также в информационной системе общего пользования - на официальном сайте Федерального агентства по техническому регулированию и метрологии в сети Интернет.
Настоящий стандарт устанавливает методы испытаний по определению прочности клеевых соединений деревянных клееных конструкций (далее - конструкции) и древесно-плитных материалов с древесиной.
В настоящем стандарте приведены нормативные ссылки на следующие межгосударственные стандарты:
ГОСТ 166-89 (ИСО 3599-79) Штангенциркули. Технические условия
ГОСТ 16483.0-89 (ИСО 3129-75) Древесина. Общие требования к физико-механическим испытаниям
ГОСТ 16588-91 (ИСО 4470-81) Пилопродукция и деревянные детали. Методы определения влажности
ГОСТ 20850-2014 Конструкции деревянные клееные несущие. Общие технические условия
ГОСТ 28840-90 Машины для испытаний материалов на растяжение, сжатие и изгиб. Общие технические требования.
Примечание. При пользовании настоящим стандартом целесообразно проверить действие ссылочных стандартов по указателю "Национальные стандарты", составленному по состоянию на 1 января текущего года, и по соответствующим информационным указателям, опубликованным в текущем году. Если ссылочный стандарт заменен (изменен), то при пользовании настоящим стандартом следует руководствоваться заменяющим (измененным) стандартом. Если ссылочный стандарт отменен без замены, то положение, в котором дана ссылка на него, применяется в части, не затрагивающей эту ссылку.
В настоящем стандарте применены термины по
ГОСТ 20850.
4. Отбор и подготовка образцов
4.1. В зависимости от целей испытаний образцы выпиливают:
а) из изделий или конструкций по завершении технологического процесса изготовления (внутризаводской контроль);
б) из изделий или конструкций на различных этапах эксплуатации при их мониторинге;
в) из специально изготовленных заготовок при выполнении исследовательских и лабораторных работ (при разработке и оценке клеев, выборе и контроле режимов склеивания и др.).
Образцы с видимыми пороками древесины или дефектами изготовления испытаниям не допускаются.
Влажность древесины образцов должна быть 8% - 12%, если иное не предусмотрено методикой испытаний.
4.2. До начала испытаний образцы или заготовки, из которых выпиливают образцы, необходимо выдерживать (кондиционировать) в нормальных температурно-влажностных условиях [относительной влажности воздуха (60 +/- 5)% и температуре (20 +/- 2) °C] для отверждения клея и релаксации внутренних напряжений в древесине в течение, не менее:
- 1 суток - при внутризаводском контроле,
- до полного отверждения клея согласно технической документации от поставщика клея - при лабораторных испытаниях и исследовательских работах.
Выпиливание образцов из элементов или конструкций проводят не ранее чем через 24 ч после их распрессовки.
Условия кондиционирования образцов для проведения исследовательских и лабораторных работ могут отличаться от указанных выше.
4.3. При проведении испытаний в целях заводского контроля фиксируют основные параметры изготовления изделий и конструкций; при лабораторном контроле эти параметры задаются в зависимости от целей проводимых исследований.
4.4. Число испытываемых образцов при заводском контроле указывают в нормативных документах на конструкции, при лабораторных и исследовательских испытаниях - устанавливают методикой конкретных исследований, но не менее 10.
4.5. Перед испытаниями образцов должны быть измерены их геометрические размеры и определена влажность древесины, а также, при необходимости, другие физические характеристики (плотность древесины, ширина годичных колец и др.).
Влажность образцов должна соответствовать требованиям стандартов на конкретные конструкции.
4.6. Размеры и форму образцов принимают в зависимости от принятых методик испытаний, приведенных ниже.
Величина допустимых отклонений от номинальных размеров образцов должна находиться в пределах +/- 0,1 мм. Размеры образца, не входящие в расчетные формулы (например, длина образца при испытаниях зубчатых соединений на изгиб), должны быть выдержаны с точностью до 3 - 5 мм.
При изготовлении одна из осей образца должна располагаться вдоль волокон древесины. Годичные слои на торцевых поверхностях должны быть параллельны одной паре противоположных граней и перпендикулярны другой. Между смежными гранями образцов должны быть прямые углы.
4.7. На каждый образец должна быть нанесена маркировка, указывающая номер образца.
4.8. При проведении испытаний фиксируют значение разрушающей нагрузки и характер разрушения образца (отношение площади разрушения образца по древесине к площади разрушения по клеевой прослойке, выраженное в процентах).
4.9. Испытания образцов проводят при температуре воздуха (20 +/- 2) °C и влажности (65 +/- 5)%. Допускается проводить кратковременные испытания в помещении с другой температурой и влажностью воздуха при условии их проведения сразу же после кондиционирования образцов.
5.1. Для проведения испытаний необходимы следующие оборудование и инструмент:
- испытательная машина по
ГОСТ 28840 с погрешностью измерения нагрузки не более 1%, позволяющая проводить испытания со скоростью перемещения нагружающей головки от 0,5 до 10 мм/мин;
- приспособления для зажима образцов и передачи на них нагрузки (указаны далее применительно к каждому виду испытаний);
- влагомер по
ГОСТ 16588 для определения влажности древесины образцов с погрешностью не более +/- 1%;
- весы по
ГОСТ 24104 с пределом измерения до 1 кг и точностью +/- 1 г;
- приборы для измерения температуры и влажности воздуха;
- штангенциркуль по
ГОСТ 166 с погрешностью измерения не более 0,1 мм;
- измерительная линейка с точностью измерения до 1 мм по
ГОСТ 8026;
5.2. Все используемые оборудование и инструмент должны своевременно поверяться в соответствующих метрологических центрах.
6. Метод определения предела прочности клеевого соединения
при скалывании вдоль волокон древесины
6.1. Принцип испытаний основан на приложении усилия к единичному клеевому соединению при продольном сжатии (параллельно волокнам древесины).
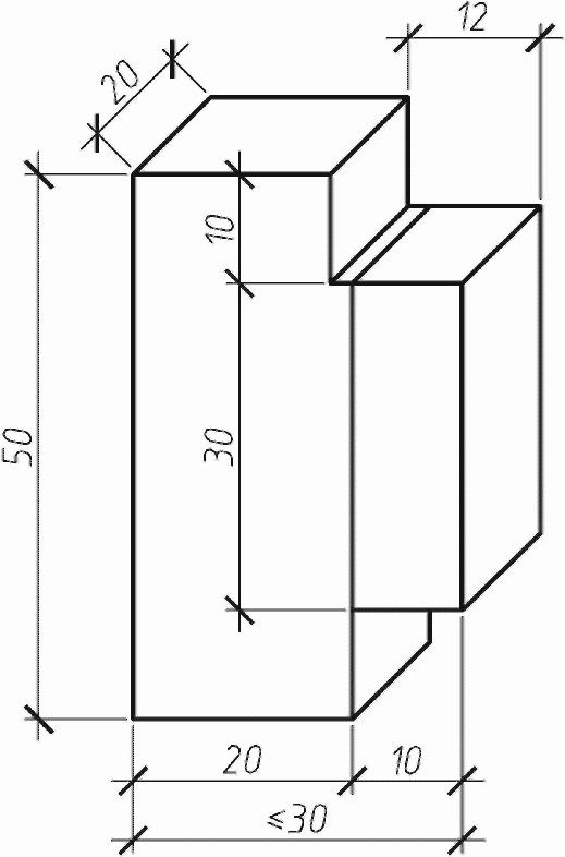
6.2. Форма и размеры образцов для испытаний показаны на рисунках 1 а,
1 б. Допускается изготовлять образцы шириной менее чем указано на
рисунке 1, если ширина клеевого слоя в изделии не позволяет получить образец требуемой ширины.
Рисунок 1. Форма и размеры образца
для испытаний на скалывание
При формировании уступов в образце на
рисунке 1 а и нижнего уступа в образце на рисунке 1 б не допускается перерезание клеевого слоя. Волокна древесины с поверхности клеевого слоя на уступах должны быть тщательно удалены.
Схемы изготовления образцов из специально склеенных заготовок представлены на рисунках 2 а,
2 б. Длина заготовки l. Схема изготовления образцов, вырезанных из готовой продукции, - на
рисунке 2 в.
а)
1 - заготовка для образца; 2 - пропил;
3 - припуск на обработку
Рисунок 2. Схема изготовления образцов
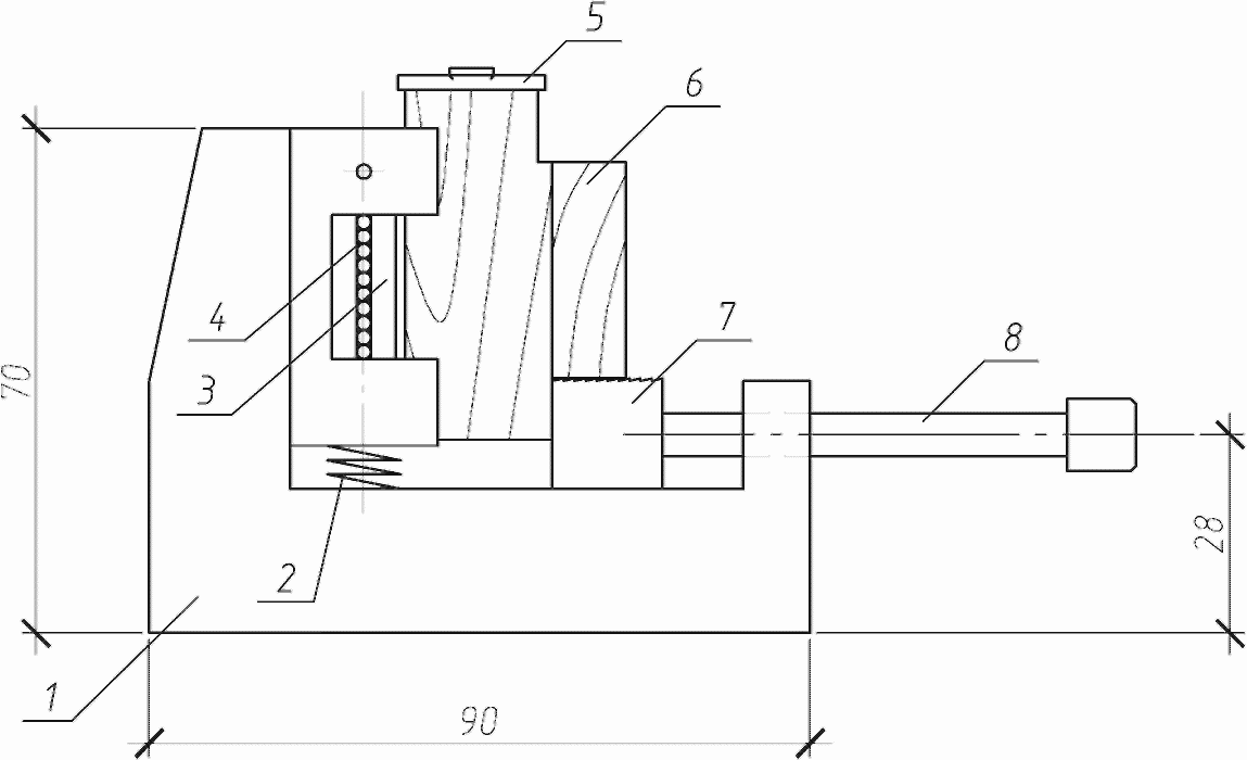
6.3. При испытаниях образец устанавливают в приспособление (см. рисунки 3,
4). Поверхности нижних уступов на
рисунке 1 а и нижнего уступа на
рисунке 1 б должны плотно прилегать к соответствующим поверхностям приспособлений.
1 - пуансон; 2 - самоцентрирующая опора; 3 - вкладыш;
4 - пружина; 5 - стойка; 6 - образец
Рисунок 3. Приспособление для испытаний на скалывание
1 - корпус; 2 - пружина; 3 - подвижная планка; 4 - ролики;
5 - нажимная призма с шаровой опорой; 6 - образец;
7 - подвижная опора; 8 - устройство для прижима
подвижной опоры
Рисунок 4. Приспособление для испытаний на скалывание
6.4. Приспособление с установленным в нем образцом помещают на опорную платформу испытательной машины таким образом, чтобы ось пуансона приспособления совпадала с осью нагружающего устройства испытательной машины.
6.5. Образец нагружают непрерывно при скорости перемещения нагружающей головки испытательной машины (0,60 +/- 0,15) мм/мин. Испытание продолжают до разрушения образца. Разрушающую нагрузку определяют с погрешностью не более 50 Н. Величина разрушающей нагрузки не должна находиться в начальном диапазоне - 10% предельного значения измерительной шкалы испытательной машины.
6.6. Предел прочности клеевого соединения вычисляют с точностью до 0,1 МПа по формуле

(1)
где P - разрушающая нагрузка, Н;
F - площадь клеевого соединения, м2.
За результаты испытания принимают статистические данные (среднее арифметическое значение предела прочности, вариационный коэффициент и минимальное вероятностное значение предела прочности), определяемые по
ГОСТ 16483.0. При этом фиксируют также характер разрушения клеевого соединения.
6.7. Результаты испытаний фиксируют в протоколе испытаний
(Приложение А).
При проведении испытаний должны соблюдаться требования
4.4 -
4.9.
7. Метод определения предела прочности клеевого соединения
при послойном скалывании вдоль волокон древесины
7.1. При контроле качества изготовления заготовки для образцов выпиливают из торцевых частей изделий или конструкций при доведении их до проектных размеров (рисунок 5). При этом толщина отпада должна быть не менее 50 мм.
A - проектный размер конструкции; H - высота конструкции;
B - ширина конструкции; 1 - пропилы;
2 - заготовка для образцов; 3 - отпад
Рисунок 5. Схема выпиливания заготовки для образцов
на послойное скалывание
Заготовки распиливают на образцы (рисунок 6) в виде прямоугольной призмы сечением (50 x 50) +/- 0,5 мм и высотой H, равной высоте сечения изделия или конструкции. Противоположные плоскости образцов должны быть параллельны между собой, а клеевые прослойки - перпендикулярны плоскости пропила.
1 - образцы; 2 - пропилы; H - высота конструкции
Рисунок 6. Схема распиливания заготовки на образцы
для испытаний на послойное скалывание
При большой высоте сечения изделия или конструкции заготовка для образцов может быть разделена на две-три части.
7.2. Образец устанавливают в приспособление для испытания (рисунок 7).
1 - образец; 2 - прижимная опора; 3 - рукоятка;
4 - пуансон; 5 - нож пуансона; 6 - корпус; 7 - клеевое
соединение; 8 - передвижная опорная площадка;
9 - винт упора
Рисунок 7. Приспособление для испытаний
на послойное скалывание
При испытании задняя грань ножа пуансона и передняя грань передвижной опорной площадки приспособления должны находиться в одной плоскости с погрешностью не более +/- 0,5 мм.
Перемещением прижимной опоры закрепляют образец в приспособлении. Нагрузку на образец передают через пуансон.
7.3. Образец испытывают до разрушения с постоянной скоростью перемещения пуансона (1,5 - 2)·10-4 м/с и фиксируют разрушающую нагрузку P, которую определяют с погрешностью не более 50 Н.
7.4. Предел прочности клеевого соединения вычисляют по
формуле (1).
При необходимости для сравнения показателей прочности древесины и клеевого соединения идентичным образом проводится скалывание древесины вне зоны клеевого соединения.
7.5. Результаты испытаний фиксируют в протоколе испытаний
(Приложение Б).
При проведении испытаний должны соблюдаться требования
4.4 -
4.9,
6.5.
8. Метод определения предела прочности клеевого соединения
при растяжении вдоль волокон древесины
8.1. Данный метод предназначен для проведения лабораторных испытаний и исследовательских работ в целях получения данных для дальнейшей классификации клеев, используемых при изготовлении несущих конструкций.
8.2. Принцип испытаний основан на приложении усилия к единичному клеевому соединению, выполненному внахлестку, при растяжении вдоль волокон древесины.
8.3. Форма и размер образца представлены на рисунке 8.
Рисунок 8. Форма и размеры образца
для испытаний на растяжение
Образцы для проведения испытания должны быть изготовлены из бука плотностью не менее (700 +/- 50) кг/м3. Влажность древесины должна находиться в пределах (12 +/- 1)%, угол между годичными кольцами и поверхностью склеивания должен быть в пределах между 30° и 90°.
8.4. Образец помещают в захваты испытательной машины таким образом, чтобы расстояние между захватами находилось в пределах от 50 до 90 мм, обеспечивая самовыравнивание испытательного образца и предотвращая смещение в процессе нагружения, испытывают до разрушения с постоянной скоростью перемещения пуансона (2,0 +/- 0,5) кН/мин и фиксируют разрушающую нагрузку P, которую определяют с погрешностью не более 50 Н.
8.5. Предел прочности клеевого соединения вычисляют по
формуле (1).
При проведении испытаний должны соблюдаться требования
4.4 -
4.9,
6.5.
9. Метод определения предела прочности зубчатых клеевых
соединений при статическом изгибе
9.1. Образцы для испытаний выпиливают из слоев, подготовленных для склеивания, в виде прямоугольной призмы с зубчатым клеевым соединением посредине длины.
Длина образца должна быть не менее его 15-кратной толщины. За толщину образца h принимают размер по направлению приложения нагрузки.
Средняя (рабочая) часть длины образца размером не менее 6h должна быть свободной от видимых пороков древесины (допускаются пластевые сучки диаметром не более 10 мм) и дефектов склеивания.
Образцы должны иметь поперечное сечение (толщину и ширину), равное полному сечению слоя. Если оборудование не позволяет испытывать образцы полного сечения, допускается испытание образцов уменьшенного сечения. В этом случае заготовки распиливают на несколько образцов равной ширины, каждый из которых испытывают.
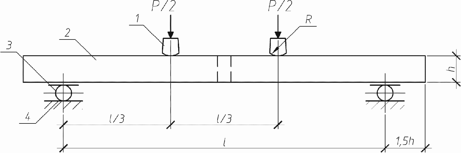
9.2. Испытания проводят по схеме, указанной на рисунке 9, с приложением нагрузки в третях пролета на пласть.
1 - нагружающие ножи с R = (1,5 - 2)h; 2 - образец;
3 - цилиндрический шарнир; 4 - опора
Рисунок 9. Схема испытаний зубчатых клеевых соединений
при статическом изгибе
Образец нагружают равномерно с постоянной скоростью нагружения, при этом скорость нагружения должна быть такой, чтобы образец разрушился через 3 - 7 мин после начала нагружения.
Результаты испытаний образцов, разрушившихся за пределами рабочей части по допускаемым порокам и дефектам, не учитывают.
9.3. Значение предела прочности зубчатого клеевого соединения определяют по формуле

(2)
где P - разрушающая нагрузка, Н;
l - величина пролета испытуемого образца, см;
b - ширина сечения образца, см;
h - высота сечения образца, см.
9.4. Результаты испытаний фиксируют в протоколе испытаний
(Приложение Г).
При проведении испытаний должны соблюдаться требования
4.4 -
4.9,
6.5.
10. Метод определения предела прочности вклеенных
металлических стержней
10.1. Определение предела прочности вклеенных металлических стержней в древесину осуществляют путем механических испытаний образцов на сдвиг при сжатии (продавливании). Образцы изготовляют специально и одновременно с вклеиванием стержней в элементы конструкций.
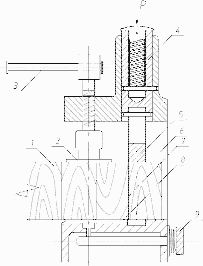
10.2. Заготовка для вклеивания стержней и размеры образца для испытаний показаны на рисунке 10 а.
а)
а - заготовка с вклеенными стержнями; б - схема испытаний;
1 - древесина; 2 - металлическая подкладка с отверстием;
3 - металлический шарнир
Рисунок 10. Определение прочности вклеивания металлических
стержней в древесину
Условия изготовления образцов (размеры отверстий, диаметр стержней и их подготовка, рецептура и состояние клея, условия выдержки и др.) должны быть идентичными условиям изготовления узловых соединений реальных конструкций.
10.3. Испытания образцов проводят не ранее чем через 3 суток после заливки клея при температуре воздуха (20 +/- 2) °C.
10.4. Испытания образцов проводят в соответствии со схемой, приведенной на
рисунке 10 б. Образец в испытательном прессе необходимо устанавливать строго вертикально, причем вертикальная ось образца должна совпадать с центральной вертикальной осью прижимного башмака пресса. При этом проводят испытания поочередно каждого вклеенного стержня в заготовке, не распиливая ее. После испытаний для определения характера разрушения рекомендуется заготовку распилить и путем выкалывания обнажить стержни.
10.5. Предел прочности соединений при сдвиге, МПа, определяют по формуле

(3)
где Pразр - разрушающая нагрузка, Н;
lвкл - длина заделки, см;
dотв - диаметр отверстия, см.
10.6. Результаты испытаний фиксируют в протоколе испытаний
(Приложение Д).
При проведении испытаний должны соблюдаться требования
4.4 -
4.9,
6.5.
11. Метод определения предела прочности клеевых соединений
древесно-плитных материалов с древесиной
11.1. Метод заключается в определении разрушающей нагрузки, приходящейся на длину образца, по которому происходит отрыв плитных материалов от древесины, и вычислении предела прочности клеевого соединения.
11.2. При контроле качества выпускаемой продукции испытания образцов следует проводить через 3 дня после изготовления, если склеивание осуществлялось без нагрева, и через 1 день при склеивании с нагревом.
До испытаний образцы хранят в помещении вместе с контролируемой продукцией.
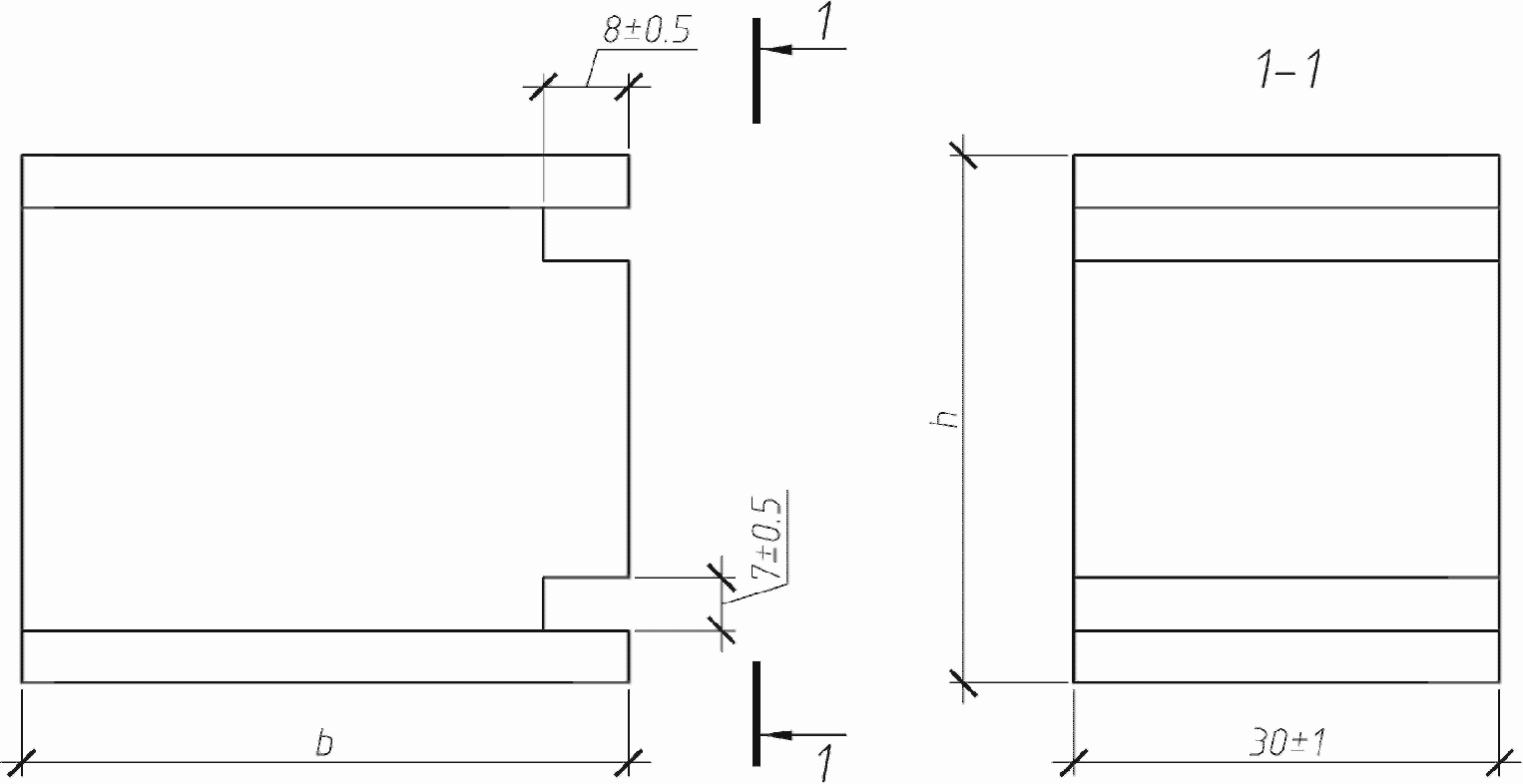
11.3. Длину заготовки L (рисунок 11) принимают исходя из необходимого для испытаний числа образцов, с учетом припусков на распиловку. Высота заготовки h должна быть равна ширине элементов деревянного каркаса конструкции или изделия, но не менее 30 мм.
1 - древесина; 2 - древесно-плитный материал; 3 - свесы
Рисунок 11. Заготовка для испытаний
11.4. На одной из боковых поверхностей с двух сторон в древесине делают продольные пропилы для образования свесов 3 (см. рисунок 11). Допускается наличие на плитном материале слоя древесины толщиной не более 0,2 мм. Заготовку распиливают поперек волокон древесины на образцы длиной (30 +/- 1) мм, подавая ее на пильный диск стороной, противоположной свесам.
11.5. Форма и размеры образца для испытаний должны соответствовать указанным на рисунке 12. Торцевые и боковые поверхности образцов должны быть взаимно перпендикулярны. На поверхности древесно-плитного материала не должно быть видимых дефектов. Перед испытанием измеряют длину образца с точностью до 0,1 мм.
Рисунок 12. Форма и размеры образца для испытания
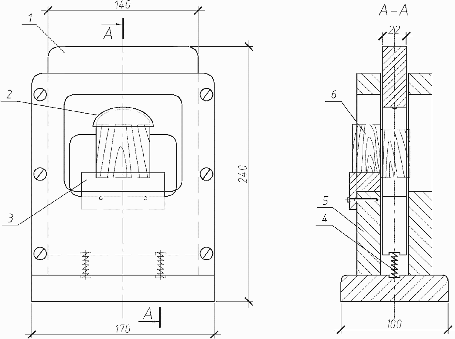
11.6. Для проведения испытания используют специально изготовленные скобы (рисунок 13).
Скобы закрепляют в захваты испытательной машины так, чтобы они не имели смещений относительно друг друга.
1 - верхняя скоба; 2 - нижняя скоба; 3 - образец
Рисунок 13. Схема скобы для испытания
Образец устанавливают в скобы на всю глубину свеса образца (см. рисунок 13).
11.7. Предел прочности клеевого соединения при испытании на неравномерный отрыв вычисляют с точностью до 1 Н/м по формуле
q = P/l, (4)
где P - разрушающая нагрузка, Н;
l - длина образца, см.
11.8. Разрушающая нагрузка определяется с погрешностью не более 5 Н.
При испытаниях следует фиксировать характер разрушения образцов: по древесно-плитным материалам, клеевой прослойке или древесине.
11.9. Результаты испытаний фиксируют в протоколе испытаний
(Приложение Е).
При проведении испытаний должны соблюдаться требования
4.4 -
4.9,
6.5.
(рекомендуемое)
ИСПЫТАНИЙ ПО ОПРЕДЕЛЕНИЮ ПРОЧНОСТИ КЛЕЕВОГО СОЕДИНЕНИЯ
ПРИ СКАЛЫВАНИИ ВДОЛЬ ВОЛОКОН
1. Назначение испытаний _______________________________________
2. Дата склеивания ____________________________________________
3. Марка конструкции (изделия) ________________________________
4. Порода и влажность древесины _______________________________
5. Наименование и марка клея (компонентов) и их соотношение ___
6. Режим склеивания:
- нанесение клея (раздельное, смесевое) _______________________
- время открытой выдержки, мин ________________________________
- время закрытой выдержки, мин ________________________________
- время выдержки под давлением, мин ___________________________
- давление прессования, МПа

_________________________
- время выдержки образцов до испытания, сут ___________________
7. Скорость перемещения нагружающей головки машины, мм/мин ____
8. Температура воздуха, °C ____________________________________
9. Влажность воздуха, % _______________________________________
Маркировка образца | Размеры площади скалывания образца | Разрушающая нагрузка P, Н (кгс) | Предел прочности клеевого соединения  , МПа (кгс/см 2) | Разрушение по древесине, % |
Ширина b, см | Длина l, см |
| | | | | |
__________________ ____________________
(Ф.И.О.) (подпись)
Дата ___________
(рекомендуемое)
ИСПЫТАНИЙ ПО ОПРЕДЕЛЕНИЮ ПРОЧНОСТИ КЛЕЕВОГО СОЕДИНЕНИЯ
ПРИ ПОСЛОЙНОМ СКАЛЫВАНИИ ВДОЛЬ ВОЛОКОН ДРЕВЕСИНЫ
1. Марка и размеры конструкции (изделия) ______________________
2. Дата склеивания ____________________________________________
3. Порода и влажность древесины _______________________________
4. Толщина слоев ______________________________________________
5. Наименование и марка клея (компонентов) и их соотношение ___
6. Режим склеивания:
- нанесение клея (раздельное, смесевое) _______________________
- время открытой выдержки, мин ________________________________
- время закрытой выдержки, мин ________________________________
- время выдержки под давлением, мин ___________________________
- давление прессования, МПа

_________________________
- время выдержки образцов до испытания, сут ___________________
7. Скорость перемещения нагружающей головки машины, мм/мин ____
8. Температура воздуха, °C ____________________________________
9. Влажность воздуха, % _______________________________________
Номер клеевого шва | Размеры площади скалывания образца, F | Разрушающая нагрузка P, Н (кгс) | Предел прочности  , МПа (кгс/см 2) | Характер разрушения |
Ширина b, см | Длина l, см |
| | | | | |
| | | | | |
Среднее значение предела прочности  - ___ МПа; Минимальное значение предела прочности  - ___ МПа. |
__________________ ____________________
(Ф.И.О.) (подпись)
Дата ___________
(рекомендуемое)
ИСПЫТАНИЙ ПО ОПРЕДЕЛЕНИЮ ПРЕДЕЛА ПРОЧНОСТИ КЛЕЕВОГО
СОЕДИНЕНИЯ ПРИ РАСТЯЖЕНИИ ВДОЛЬ ВОЛОКОН ДРЕВЕСИНЫ
1. Дата склеивания ____________________________________________
2. Влажность древесины ________________________________________
3. Наименование и марка клея (компонентов) и их соотношение ___
4. Режим склеивания:
- нанесение клея (раздельное, смесевое) _______________________
- время открытой выдержки, мин ________________________________
- время закрытой выдержки, мин ________________________________
- время выдержки под давлением, мин ___________________________
- давление прессования, МПа

_________________________
- время выдержки образцов до испытания, сут ___________________
- толщина клеевого шва ________________________________________
5. Скорость перемещения нагружающей головки машины, мм/мин ____
6. Температура воздуха, °C ____________________________________
7. Влажность воздуха, % _______________________________________
Маркировка образца | Размеры площади скалывания образца | Разрушающая нагрузка P, Н (кгс) | Предел прочности клеевого соединения  , МПа (кгс/см 2) | Разрушение по древесине, % |
Ширина b, см | Длина l, см |
| | | | | |
__________________ ____________________
(Ф.И.О.) (подпись)
Дата ___________
(рекомендуемое)
ИСПЫТАНИЙ ПО ОПРЕДЕЛЕНИЮ ПРОЧНОСТИ ЗУБЧАТОГО КЛЕЕВОГО
СОЕДИНЕНИЯ ПРИ СТАТИЧЕСКОМ ИЗГИБЕ
1. Назначение испытаний _______________________________________
2. Марка конструкции (изделия) ________________________________
3. Дата склеивания ____________________________________________
4. Порода и влажность древесины _______________________________
5. Параметры зубчатого соединения:
- длина зуба, мм ______________________________________________
- шаг, мм _____________________________________________________
- затупление, мм ______________________________________________
6. Наименование и марка клея (компонентов) и их соотношение ___
7. Режим склеивания:
- нанесение клея (одно-, двустороннее) ________________________
- время выдержки под давлением, с _____________________________
- давление прессования, МПа

_________________________
- время выдержки образцов до испытания, сут ___________________
8. Скорость перемещения нагружающей головки машины, мм/мин ____
9. Температура воздуха, °C ____________________________________
10. Влажность воздуха, % ______________________________________
Маркировка образца | Размеры поперечного сечения образца, F | Расстояние между центрами опор l, см | Разрушающая нагрузка P, Н (кгс) | Предел прочности  , МПа (кгс/см 2) | Характер разрушения |
Ширина b, см | Длина h, см |
| | | | | | |
_________________ ____________________
(Ф.И.О.) (подпись)
Дата ___________
(рекомендуемое)
ИСПЫТАНИЙ ПО ОПРЕДЕЛЕНИЮ ПРОЧНОСТИ ВКЛЕИВАНИЯ
МЕТАЛЛИЧЕСКИХ СТЕРЖНЕЙ
1. Назначение испытаний _______________________________________
2. Марка конструкции (изделия) ________________________________
3. Дата склеивания ____________________________________________
4. Порода и влажность древесины _______________________________
5. Состав клея:
- смола, в.ч. _________________________________________________
- отвердитель, в.ч. ___________________________________________
- пластификатор, в.ч. _________________________________________
- наполнитель, в.ч. ___________________________________________
6. Тип и продолжительность перемешивания (ручное,
механическое) _________________________________________________
7. Параметры стержней (класс арматуры, диаметр) _______________
8. Время выдержки образцов до испытания, сут __________________
9. Скорость перемещения нагружающей головки машины, мм/мин ____
10. Температура воздуха, °C ___________________________________
11. Влажность воздуха, % ______________________________________
Маркировка образца | Диаметр отверстия,  , см | Длина заделки l, см | Разрушающая нагрузка P, Н (кгс) | Предел прочности  , МПа (кгс/см 2) | Характер разрушения |
| | | | | |
__________________ ____________________
(Ф.И.О.) (подпись)
Дата ___________
(рекомендуемое)
ИСПЫТАНИЙ ПРОЧНОСТИ КЛЕЕВОГО СОЕДИНЕНИЯ ДРЕВЕСНО-ПЛИТНЫХ
МАТЕРИАЛОВ С ДРЕВЕСИНОЙ
1. Марка, размеры конструкции или изделия _____________________
2. Порода основания ___________________________________________
3. Древесно-плитный материал, толщина, мм _____________________
4. Клей _______________________________________________________
5. Основные параметры режима склеивания _______________________
6. Время от момента распрессовки до начала испытаний __________
7. Влажность древесины образцов _______________________________
Номер образца | Длина образца l, см | Разрушающая нагрузка P, Н (кгс) | Средняя и минимальная прочность клеевого соединения q, Н/м (кгс/см) | Характер разрушения |
| | | | |
__________________ ____________________
(Ф.И.О.) (подпись)
Дата ___________