Главная // Актуальные документы // ГОСТ (Государственный стандарт)
СПРАВКА
Источник публикации
В данном виде документ опубликован не был.
Первоначальный текст документа опубликован в издании:
М.: Издательство стандартов, 1985.
Информацию о публикации документов, создающих данную редакцию, см. в справке к этим документам.
Примечание к документу
Документ утратил силу с 01.08.2024 в связи с изданием Приказа Росстандарта от 04.07.2024 N 899-ст. Взамен введен в действие ГОСТ 21924-2024.

С 01.07.2003 до вступления в силу технических регламентов акты федеральных органов исполнительной власти в сфере технического регулирования носят рекомендательный характер и подлежат обязательному исполнению только в части, соответствующей целям, указанным в пункте 1 статьи 46 Федерального закона от 27.12.2002 г. N 184-ФЗ.

Изменение N 1, утв. Постановлением Госстроя РФ от 28.12.1987 N 303, вступило в силу с 01.04.1988.
Название документа
"ГОСТ 21924.3-84. Плиты железобетонные для покрытий городских дорог. Арматурные и монтажно-стыковые изделия. Конструкции и размеры"
(введен Постановлением Госстроя СССР от 30.09.1983 N 210)
(ред. от 28.12.1987)


"ГОСТ 21924.3-84. Плиты железобетонные для покрытий городских дорог. Арматурные и монтажно-стыковые изделия. Конструкции и размеры"
(введен Постановлением Госстроя СССР от 30.09.1983 N 210)
(ред. от 28.12.1987)

Введен
Постановлением Госстроя СССР
от 30 сентября 1983 г. N 210
ГОСУДАРСТВЕННЫЙ СТАНДАРТ СОЮЗА ССР
ПЛИТЫ ЖЕЛЕЗОБЕТОННЫЕ ДЛЯ ПОКРЫТИЙ ГОРОДСКИХ ДОРОГ
АРМАТУРНЫЕ И МОНТАЖНО-СТЫКОВЫЕ ИЗДЕЛИЯ
КОНСТРУКЦИЯ И РАЗМЕРЫ
Reinforced concrete slabs for рavements of city roads.
Structure fittings рroducts. Structure and dimensions
ГОСТ 21924.3-84
Список изменяющих документов
(в ред. Изменения N 1, утв. Постановлением
Госстроя СССР от 28.12.87 N 303)
Группа Ж33
ОКП 58 4600
Срок введения
1 января 1985 года
1. Настоящий стандарт распространяется на арматурные и монтажно-стыковые изделия железобетонных предварительно напряженных плит по ГОСТ 21924.1-84 и плит с ненапрягаемой арматурой по ГОСТ 21924.2-84, предназначенных для устройства постоянных и временных городских дорог.
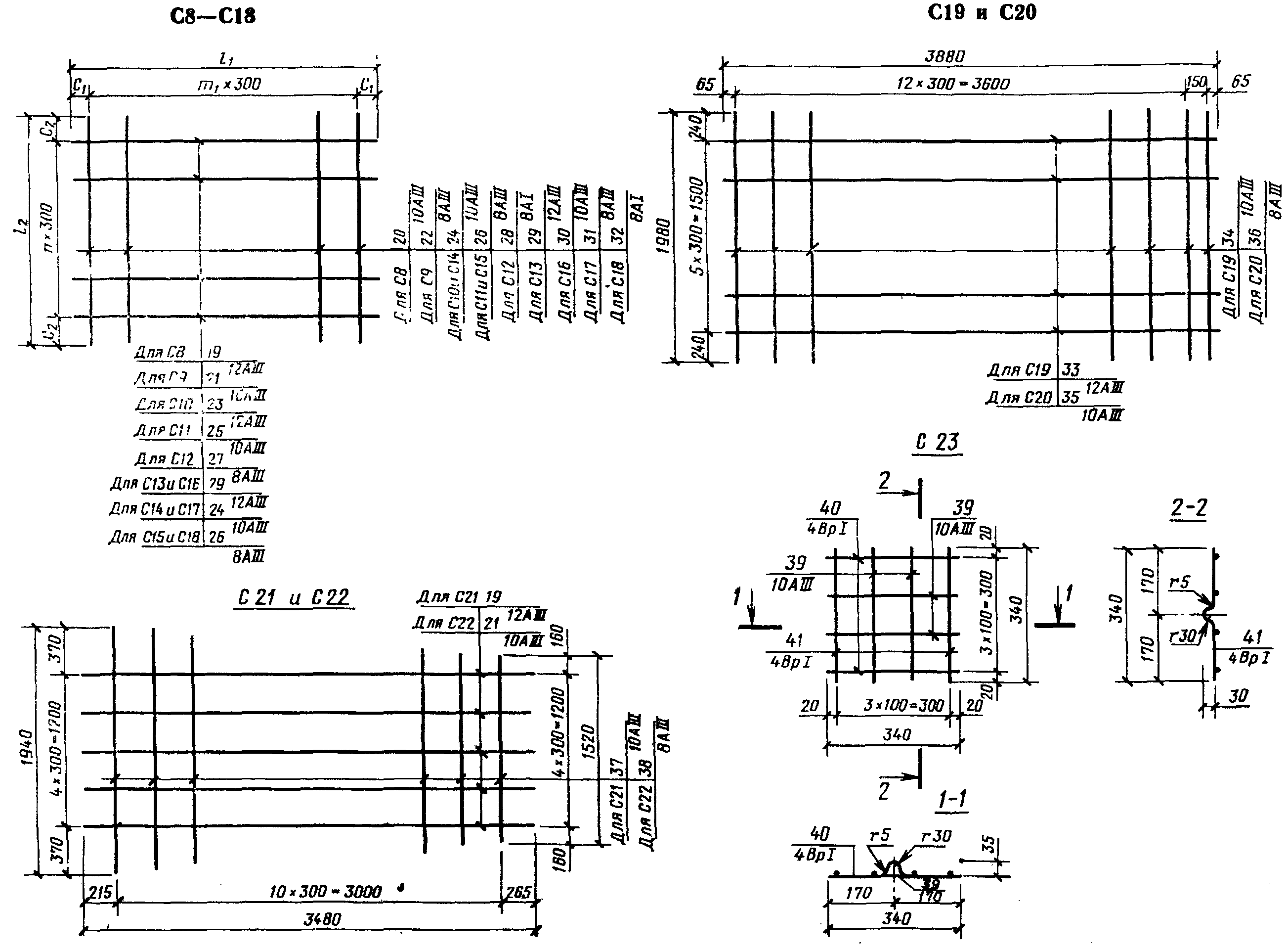
2. Форма и размеры арматурных и монтажно-стыковых изделий должны соответствовать указанным на черт. 1 - 4 и в табл. 1.
ИС МЕГАНОРМ: примечание.
Взамен ГОСТ 10884-81 Постановлением Госстандарта РФ от 13.04.1995 N 214 с 1 января 1996 года введен в действие ГОСТ 10884-94.
Примечание. При применении термомеханически упрочненной арматурной стали класса Ат-IIIС по ГОСТ 10884-81 стержнями из этой арматурной стали следует заменять в изделиях стержни из арматурной стали класса А-III тех же диаметров.
(примечание введено Изменением N 1, утв. Постановлением Госстроя РФ от 28.12.1987 N 303)
Таблица 1
─────────────┬────────────────────────────────────────────────────
Марка │ Размеры, мм
├─────┬─────┬────┬────┬───┬───┬─────────┬────┬───┬───
│ l │ l │ m │ m │ n │ u │ c │ c │ R │ r
│ 1 │ 2 │ 1 │ 2 │ │ │ 1 │ 2 │ │
─────────────┼─────┼─────┼────┼────┼───┼───┼─────────┼────┼───┼───
C1 │1820 │ │ │ │ │500│ 160 │ │ │
─────────────┤ │ │ │ │ │ ├─────────┤ │ │
C2 │ │ │ │ │ │600│ 10 │ │ │
─────────────┼─────┤ │ │ │ ├───┼─────────┤ │ │
C3 │1700 │ │ │ │ │500│ 100 │ │ │
─────────────┤ │ │ │ │ ├───┼─────────┤ │ │
C4 │ │ │ │ │ │560│ 10 │ │ │
─────────────┼─────┤ │ │ │ ├───┼─────────┤ │ │
C5 │1950 │ │ │ │ │580│ 105 │ │ │
─────────────┤ │ │ │ │ ├───┼─────────┤ │ │
C6 │ │ │ │ │ │640│ 15 │ │ │
─────────────┼─────┼─────┼────┤ ├───┼───┼─────────┼────┤ │
C8, С9 │3480 │2730 │ 10 │ │ 7 │ │ 240 │315 │ │
─────────────┼─────┼─────┼────┤ ├───┤ ├─────────┼────┤ │
С10, С11, C12│2980 │1730 │ 8 │ │ 4 │ │ 290 │265 │ │
─────────────┼─────┼─────┼────┤ ├───┤ ├─────────┼────┤ │
С13, С14, C15│1730 │1730 │ 4 │ │ 4 │ │ 265 │265 │ │
─────────────┤ ├─────┤ │ ├───┤ │ ├────┤ │
С16, С17, C18│ │1480 │ │ │ 3 │ │ │290 │ │
─────────────┼─────┼─────┼────┤ ├───┼───┼─────────┼────┤ │
K1 │2600 │ 95 │ 5 │ │ │ 55│ │ │ │
─────────────┤ ├─────┤ │ │ ├───┤ │ │ │
K2 │ │ 105 │ │ │ │ 65│ │ │ │
─────────────┼─────┼─────┼────┤ │ ├───┤ │ │ │
K3 │2100 │ 95 │ 4 │ │ │ 55│ │ │ │
─────────────┤ ├─────┤ │ │ ├───┤ │ │ │
K4 │ │ 105 │ │ │ │ 65│ │ │ │
─────────────┤ ├─────┤ │ │ ├───┤ │ │ │
K5 │ │ 110 │ │ │ │ 70│ │ │ │
─────────────┼─────┼─────┼────┤ │ ├───┤ │ │ │
K6 │1600 │ 80 │ 3 │ │ │ 40│ │ │ │
─────────────┤ ├─────┤ │ │ ├───┤ │ │ │
K7 │ │ 90 │ │ │ │ 50│ │ │ │
─────────────┤ ├─────┤ │ │ ├───┤ │ │ │
K8 │ │ 100 │ │ │ │ 60│ │ │ │
─────────────┤ ├─────┤ │ │ ├───┤ │ │ │
K9 │ │ 85 │ │ │ │ 45│ │ │ │
─────────────┤ ├─────┤ │ │ ├───┤ │ │ │
K10 │ │ 95 │ │ │ │ 55│ │ │ │
─────────────┼─────┼─────┼────┤ │ ├───┼─────────┤ │ │
K11 │3630 │ │ 6 │ │ │195│ 60 │ │ │
─────────────┼─────┤ ├────┤ │ │ ├─────────┤ │ │
K12 │3025 │ │ 5 │ │ │ │ 50 │ │ │
─────────────┼─────┤ ├────┤ │ ├───┼─────────┤ │ │
K13 │3360 │ │ 6 │ │ │180│ 60 │ │ │
─────────────┼─────┤ ├────┼────┤ │ ├─────────┼────┤ │
K14 │2800 │ │ 5 │ - │ │ │ 50 │ - │ │
─────────────┼─────┤ ├────┼────┤ ├───┼─────────┼────┤ │
K15 │3630 │ │ 6 │ 5 │ │195│ 145 │110 │ │
─────────────┼─────┤ ├────┼────┤ │ ├─────────┤ │ │
K16 │3025 │ │ 5 │ 4 │ │ │ 135 │ │ │
─────────────┼─────┤ ├────┼────┤ │ ├─────────┼────┤ │
K17 │2360 │ │ 11 │ - │ │ │107 (108)│ - │ │
─────────────┼─────┤ ├────┼────┤ ├───┼─────────┼────┤ │
K18 │3360 │ │ 6 │ 5 │ │180│ 160 │ 80 │ │
─────────────┼─────┤ ├────┼────┤ │ ├─────────┤ │ │
K19 │2800 │ │ 5 │ 4 │ │ │ 150 │ │ │
─────────────┼─────┤ ├────┼────┤ │ ├─────────┼────┤ │
K20 │2220 │ │ 11 │ - │ │ │ 120 │ - │ │
─────────────┼─────┤ ├────┼────┤ ├───┼─────────┼────┤ │
K21 │3630 │ │ 6 │ 2 │ │195│ 140 │115 │ │
─────────────┼─────┤ ├────┼────┤ │ ├─────────┤ │ │
K22 │3025 │ │ 5 │ 1 │ │ │132 (133)│210 │ │
─────────────┼─────┤ ├────┼────┤ │ ├─────────┤ │ │
K23 │2130 │ │ 10 │ - │ │ │ 90 │ - │ │
─────────────┼─────┤ ├────┼────┤ ├───┼─────────┼────┤ │
K24 │3360 │ │ 6 │ 2 │ │180│ 145 │ 95 │ │
─────────────┼─────┤ ├────┼────┤ │ ├─────────┼────┤ │
K25 │2800 │ │ 5 │ 1 │ │ │ 140 │180 │ │
─────────────┼─────┤ ├────┼────┤ │ ├─────────┼────┤ │
K26 │1990 │ │ 10 │ │ │ │ 95 │ │ │
─────────────┼─────┤ ├────┤ │ ├───┼─────────┤ ├───┼───
П3 │ 495 │ │ │ │ │ │ 50 │ │30 │30
─────────────┼─────┤ │ │ │ │ ├─────────┤ │ ├───
П4 │ 435 │ │ │ │ │ │ 30 │ │ │20
─────────────┼─────┤ │ │ │ │ │ │ │ │
П5 │ 370 │ │ │ │ │ │ │ │ │
Черт. 1
Черт. 2
Черт. 3
Черт. 4
(в ред. Изменения N 1, утв. Постановлением Госстроя РФ от 28.12.1987 N 303)
3. Спецификация и выборка арматурной стали на арматурные и монтажно-стыковые изделия приведены в табл. 2.
Таблица 2
─────┬────┬────────┬──────┬────┬─────┬──────┬─────────────────────
Марка│Поз.│Сечение,│Длина,│Чис-│Общая│Масса,│ Выборка арматурной
│ │ мм │ мм │ло │дли- │ кг │ стали
│ │ │ │ │на, м│ ├──────┬──────┬───────
│ │ │ │ │ │ │Сече- │Масса,│Масса
│ │ │ │ │ │ │ние, │ кг │изде-
│ │ │ │ │ │ │мм │ │лия, кг
─────┼────┼────────┼──────┼────┼─────┼──────┼──────┼──────┼───────
С1 │ 1 │ 5ВрI │ 5100 │ 4 │20,40│ 2,94 │5ВрI │16,31 │ 16,31
├────┼────────┼──────┼────┼─────┼──────┼──────┼──────┤
│ 2 │ 5ВрI │ 1820 │ 51 │92,82│13,37 │ - │ - │
─────┼────┼────────┼──────┼────┼─────┼──────┼──────┼──────┼───────
С2 │ 3 │ 8АIII │ 2540 │ 1 │ 2,54│ 1,00 │8АIII │ 4,60 │ 4,71
├────┼────────┼──────┼────┼─────┼──────┼──────┼──────┤
│ 4 │ 8АIII │ 1820 │ 5 │ 9,10│ 3,60 │5ВрI │ 0,11 │
├────┼────────┼──────┼────┼─────┼──────┼──────┼──────┤
│ 5 │ 5ВрI │ 380 │ 2 │ 0,76│ 0,11 │ - │ - │
─────┼────┼────────┼──────┼────┼─────┼──────┼──────┼──────┼───────
С3 │ 1 │ 5ВрI │ 5100 │ 4 │20,40│ 2,94 │5ВрI │15,42 │ 15,42
├────┼────────┼──────┼────┼─────┼──────┼──────┼──────┤
│ 6 │ 5ВрI │ 1700 │ 51 │86,70│12,48 │ - │ - │
─────┼────┼────────┼──────┼────┼─────┼──────┼──────┼──────┼───────
С4 │ 7 │ 8АIII │ 2420 │ 1 │ 2,42│ 0,96 │8АIII │ 4,32 │ 4,43
├────┼────────┼──────┼────┼─────┼──────┼──────┼──────┤
│ 8 │ 8АIII │ 1700 │ 5 │ 8,50│ 3,36 │5ВрI │ 0,11 │
├────┼────────┼──────┼────┼─────┼──────┼──────┼──────┤
│ 5 │ 5ВрI │ 380 │ 2 │ 0,76│ 0,11 │ - │ - │
─────┼────┼────────┼──────┼────┼─────┼──────┼──────┼──────┼───────
С5 │ 1 │ 5ВрI │ 5100 │ 4 │20,40│ 2,94 │5ВрI │17,26 │ 17,26
├────┼────────┼──────┼────┼─────┼──────┼──────┼──────┤
│ 9 │ 5ВрI │ 1950 │ 51 │99,45│14,32 │ - │ - │
─────┼────┼────────┼──────┼────┼─────┼──────┼──────┼──────┼───────
С6 │ 10 │ 8АIII │ 2670 │ 1 │ 2,67│ 1,06 │8АIII │ 4,91 │ 5,02
├────┼────────┼──────┼────┼─────┼──────┼──────┼──────┤
│ 11 │ 8АIII │ 1950 │ 5 │ 9,75│ 3,85 │5ВрI │ 0,11 │
├────┼────────┼──────┼────┼─────┼──────┼──────┼──────┤
│ 5 │ 5ВрI │ 380 │ 2 │ 0,76│ 0,11 │ - │ - │
─────┼────┼────────┼──────┼────┼─────┼──────┼──────┼──────┼───────
С7 │ 12 │ 8АI │ 1920 │ 6 │11,52│ 4,55 │8АI │21,32 │ 27,02
├────┼────────┼──────┼────┼─────┼──────┼──────┼──────┤
│ 13 │ 8АI │ 1790 │ 7 │12,53│ 4,95 │5ВрI │ 5,70 │
├────┼────────┼──────┼────┼─────┼──────┼──────┼──────┤
│ 14 │ 8АI │ 1670 │ 7 │11,69│ 4,62 │ - │ - │
├────┼────────┼──────┼────┼─────┼──────┼──────┼──────┤
│ 15 │ 8АI │ 1540 │ 7 │10,78│ 4,26 │ - │ - │
├────┼────────┼──────┼────┼─────┼──────┼──────┼──────┤
│ 16 │ 8АI │ 1490 │ 5 │ 7,45│ 2,94 │ - │ - │
├────┼────────┼──────┼────┼─────┼──────┼──────┼──────┤
│ 17 │ 5ВрI │ 5450 │ 6 │32,70│ 4,71 │ - │ - │
├────┼────────┼──────┼────┼─────┼──────┼──────┼──────┤
│ 18 │ 5ВрI │ 3425 │ 2 │ 6,85│ 0,99 │ - │ - │
─────┼────┼────────┼──────┼────┼─────┼──────┼──────┼──────┼───────
С8 │ 19 │ 12АIII │ 3480 │ 8 │27,84│24,72 │12АIII│24,72 │ 43,25
├────┼────────┼──────┼────┼─────┼──────┼──────┼──────┤
│ 20 │ 10АIII │ 2730 │ 11 │30,03│18,53 │10АIII│18,53 │
─────┼────┼────────┼──────┼────┼─────┼──────┼──────┼──────┼───────
С9 │ 21 │ 10АIII │ 3480 │ 8 │27,84│17,18 │10АIII│17,18 │ 29,04
├────┼────────┼──────┼────┼─────┼──────┼──────┼──────┤
│ 22 │ 8АIII │ 2730 │ 11 │30,03│11,86 │8АIII │11,86 │
─────┼────┼────────┼──────┼────┼─────┼──────┼──────┼──────┼───────
С10 │ 23 │ 12АIII │ 2980 │ 5 │14,90│13,23 │12АIII│13,23 │ 22,84
├────┼────────┼──────┼────┼─────┼──────┼──────┼──────┤
│ 24 │ 10АIII │ 1730 │ 9 │15,57│ 9,61 │10АIII│ 9,61 │
─────┼────┼────────┼──────┼────┼─────┼──────┼──────┼──────┼───────
С11 │ 25 │ 10АIII │ 2980 │ 5 │14,90│ 9,19 │10АIII│ 9,19 │ 15,34
├────┼────────┼──────┼────┼─────┼──────┼──────┼──────┤
│ 26 │ 8АIII │ 1730 │ 9 │15,57│ 6,15 │8АIII │ 6,15 │
─────┼────┼────────┼──────┼────┼─────┼──────┼──────┼──────┼───────
С12 │ 27 │ 8АIII │ 2980 │ 5 │14,90│ 5,89 │8АIII │ 5,89 │ 12,04
├────┼────────┼──────┼────┼─────┼──────┼──────┼──────┤
│ 28 │ 8АI │ 1730 │ 9 │15,57│ 6,15 │8АI │ 6,15 │
─────┼────┼────────┼──────┼────┼─────┼──────┼──────┼──────┼───────
С13 │ 29 │ 12АIII │ 1730 │ 10 │17,30│15,36 │12АIII│15,36 │ 15,36
─────┼────┼────────┼──────┼────┼─────┼──────┼──────┼──────┼───────
С14 │ 24 │ 10АIII │ 1730 │ 10 │17,30│10,67 │10АIII│10,67 │ 10,67
─────┼────┼────────┼──────┼────┼─────┼──────┼──────┼──────┼───────
С15 │ 26 │ 8АIII │ 1730 │ 10 │17,30│ 6,83 │8АIII │ 6,83 │ 6,83
─────┼────┼────────┼──────┼────┼─────┼──────┼──────┼──────┼───────
С16 │ 29 │ 12АIII │ 1730 │ 4 │ 6,92│ 6,14 │12АIII│ 6,14 │ 10,71
├────┼────────┼──────┼────┼─────┼──────┼──────┼──────┤
│ 30 │ 10АIII │ 1480 │ 5 │ 7,40│ 4,57 │10АIII│ 4,57 │
─────┼────┼────────┼──────┼────┼─────┼──────┼──────┼──────┼───────
С17 │ 24 │ 10АIII │ 1730 │ 4 │ 6,92│ 4,27 │10АIII│ 4,27 │ 7,19
├────┼────────┼──────┼────┼─────┼──────┼──────┼──────┤
│ 31 │ 8АIII │ 1480 │ 5 │ 7,40│ 2,92 │8АIII │ 2,92 │
─────┼────┼────────┼──────┼────┼─────┼──────┼──────┼──────┼───────
С18 │ 26 │ 8АIII │ 1730 │ 4 │ 6,92│ 2,73 │8АIII │ 2,73 │ 5,65
├────┼────────┼──────┼────┼─────┼──────┼──────┼──────┤
│ 32 │ 8АI │ 1480 │ 5 │ 7,40│ 2,92 │8АI │ 2,92 │
─────┼────┼────────┼──────┼────┼─────┼──────┼──────┼──────┼───────
С19 │ 33 │ 12АIII │ 3880 │ 6 │23,28│20,67 │12АIII│20,67 │ 37,77
├────┼────────┼──────┼────┼─────┼──────┼──────┼──────┤
│ 34 │ 10АIII │ 1980 │ 14 │27,72│17,10 │10АIII│17,10 │
─────┼────┼────────┼──────┼────┼─────┼──────┼──────┼──────┼───────
С20 │ 35 │ 10АIII │ 3880 │ 6 │23,28│14,36 │10АIII│14,36 │ 25,31
├────┼────────┼──────┼────┼─────┼──────┼──────┼──────┤
│ 36 │ 8АIII │ 1980 │ 14 │27,72│10,95 │8АIII │10,95 │
─────┼────┼────────┼──────┼────┼─────┼──────┼──────┼──────┼───────
С21 │ 19 │ 12АIII │ 3480 │ 5 │17,40│15,45 │12АIII│15,45 │ 27,19
├────┼────────┼──────┼────┼─────┼──────┼──────┼──────┤
│ 37 │ 10АIII │1940 +│ 11 │19,03│11,74 │10АIII│11,74 │
│ │ │+ 1520│ │ │ │ │ │
─────┼────┼────────┼──────┼────┼─────┼──────┼──────┼──────┼───────
С22 │ 21 │ 10АIII │ 3480 │ 5 │17,40│10,74 │10АIII│10,74 │ 18,26
├────┼────────┼──────┼────┼─────┼──────┼──────┼──────┤
│ 38 │ 8АIII │1940 +│ 11 │19,03│ 7,52 │8АIII │ 7,52 │
│ │ │+ 1520│ │ │ │ │ │
─────┼────┼────────┼──────┼────┼─────┼──────┼──────┼──────┼───────
С23 │ 39 │ 10АIII │ 340 │ 4 │ 1,36│ 0,84 │10АIII│ 0,84 │ 0,98
├────┼────────┼──────┼────┼─────┼──────┼──────┼──────┤
│ 40 │ 4ВрI │ 390 │ 2 │ 0,78│ 0,07 │4ВрI │ 0,14 │
├────┼────────┼──────┼────┼─────┼──────┼──────┼──────┤
│ 41 │ 4ВрI │ 380 │ 2 │ 0,76│ 0,07 │ - │ - │
─────┼────┼────────┼──────┼────┼─────┼──────┼──────┼──────┼───────
K1 │ 42 │ 5ВрI │ 2600 │ 2 │ 5,20│ 0,75 │5ВрI │ 0,83 │ 0,83
├────┼────────┼──────┼────┼─────┼──────┼──────┼──────┤
│ 43 │ 5ВрI │ 95 │ 6 │ 0,57│ 0,08 │ - │ - │
─────┼────┼────────┼──────┼────┼─────┼──────┼──────┼──────┼───────
K2 │ 42 │ 5ВрI │ 2600 │ 2 │ 5,20│ 0,75 │5ВрI │ 0,84 │ 0,84
├────┼────────┼──────┼────┼─────┼──────┼──────┼──────┤
│ 44 │ 5ВрI │ 105 │ 6 │ 0,63│ 0,09 │ - │ - │
─────┼────┼────────┼──────┼────┼─────┼──────┼──────┼──────┼───────
K3 │ 45 │ 5ВрI │ 2100 │ 2 │ 4,20│ 0,60 │5ВрI │ 0,67 │ 0,67
├────┼────────┼──────┼────┼─────┼──────┼──────┼──────┤
│ 43 │ 5ВрI │ 95 │ 5 │ 0,48│ 0,07 │ - │ - │
─────┼────┼────────┼──────┼────┼─────┼──────┼──────┼──────┼───────
K4 │ 45 │ 5ВрI │ 2100 │ 2 │ 4,20│ 0,60 │5ВрI │ 0,68 │ 0,68
├────┼────────┼──────┼────┼─────┼──────┼──────┼──────┤
│ 44 │ 5ВрI │ 105 │ 5 │ 0,53│ 0,08 │ - │ - │
─────┼────┼────────┼──────┼────┼─────┼──────┼──────┼──────┼───────
K5 │ 45 │ 5ВрI │ 2100 │ 2 │ 4,20│ 0,60 │5ВрI │ 0,68 │ 0,68
├────┼────────┼──────┼────┼─────┼──────┼──────┼──────┤
│ 46 │ 5ВрI │ 110 │ 5 │ 0,55│ 0,08 │ - │ - │
─────┼────┼────────┼──────┼────┼─────┼──────┼──────┼──────┼───────
K6 │ 47 │ 5ВрI │ 1600 │ 2 │ 3,20│ 0,46 │5ВрI │ 0,51 │ 0,51
├────┼────────┼──────┼────┼─────┼──────┼──────┼──────┤
│ 48 │ 5ВрI │ 80 │ 4 │ 0,32│ 0,05 │ - │ - │
─────┼────┼────────┼──────┼────┼─────┼──────┼──────┼──────┼───────
K7 │ 47 │ 5ВрI │ 1600 │ 2 │ 3,20│ 0,46 │5ВрI │ 0,51 │ 0,51
├────┼────────┼──────┼────┼─────┼──────┼──────┼──────┤
│ 49 │ 5ВрI │ 90 │ 4 │ 0,36│ 0,05 │ - │ - │
─────┼────┼────────┼──────┼────┼─────┼──────┼──────┼──────┼───────
K8 │ 47 │ 5ВрI │ 1600 │ 2 │ 3,20│ 0,46 │5ВрI │ 0,52 │ 0,52
├────┼────────┼──────┼────┼─────┼──────┼──────┼──────┤
│ 50 │ 5ВрI │ 100 │ 4 │ 0,40│ 0,06 │ - │ - │
─────┼────┼────────┼──────┼────┼─────┼──────┼──────┼──────┼───────
K9 │ 47 │ 5ВрI │ 1600 │ 2 │ 3,20│ 0,46 │5ВрI │ 0,51 │ 0,51
├────┼────────┼──────┼────┼─────┼──────┼──────┼──────┤
│ 51 │ 5ВрI │ 85 │ 4 │ 0,34│ 0,05 │ - │ - │
─────┼────┼────────┼──────┼────┼─────┼──────┼──────┼──────┼───────
K10 │ 47 │ 5ВрI │ 1600 │ 2 │ 3,20│ 0,46 │5ВрI │ 0,51 │ 0,51
├────┼────────┼──────┼────┼─────┼──────┼──────┼──────┤
│ 43 │ 5ВрI │ 95 │ 4 │ 0,38│ 0,05 │ - │ - │
─────┼────┼────────┼──────┼────┼─────┼──────┼──────┼──────┼───────
K11 │ 52 │ 10АIII │ 3630 │ 2 │ 7,26│ 4,48 │10АIII│ 4,48 │ 4,70
├────┼────────┼──────┼────┼─────┼──────┼──────┼──────┤
│ 53 │ 4ВрI │ 160 │ 15 │ 2,40│ 0,22 │4ВрI │ 0,22 │
─────┼────┼────────┼──────┼────┼─────┼──────┼──────┼──────┼───────
K12 │ 54 │ 10АIII │ 3025 │ 2 │ 6,05│ 3,73 │10АIII│ 3,73 │ 3,91
├────┼────────┼──────┼────┼─────┼──────┼──────┼──────┤
│ 53 │ 4ВрI │ 160 │ 12 │ 1,92│ 0,18 │4ВрI │ 0,18 │
├────┼────────┼──────┼────┼─────┼──────┼──────┼──────┼───────
K13 │ 55 │ 10АIII │ 3360 │ 2 │ 6,72│ 4,15 │10АIII│ 4,15 │ 4,37
├────┼────────┼──────┼────┼─────┼──────┼──────┼──────┤
│ 53 │ 4ВрI │ 160 │ 15 │ 2,40│ 0,22 │4ВрI │ 0,22 │
─────┼────┼────────┼──────┼────┼─────┼──────┼──────┼──────┼───────
K14 │ 56 │ 10АIII │ 2800 │ 2 │ 5,60│ 3,46 │10АIII│ 3,46 │ 3,64
├────┼────────┼──────┼────┼─────┼──────┼──────┼──────┤
│ 53 │ 4ВрI │ 160 │ 12 │ 1,92│ 0,18 │4ВрI │ 0,18 │
─────┼────┼────────┼──────┼────┼─────┼──────┼──────┼──────┼───────
K15 │ 52 │ 10АIII │ 3630 │ 2 │ 7,26│ 4,48 │10АIII│ 4,48 │ 4,70
├────┼────────┼──────┼────┼─────┼──────┼──────┼──────┤
│ 53 │ 4ВрI │ 160 │ 15 │ 2,40│ 0,22 │4ВрI │ 0,22 │
─────┼────┼────────┼──────┼────┼─────┼──────┼──────┼──────┼───────
K16 │ 54 │ 10АIII │ 3025 │ 2 │ 6,05│ 3,73 │10АIII│ 3,73 │ 3,91
├────┼────────┼──────┼────┼─────┼──────┼──────┼──────┤
│ 53 │ 4ВрI │ 160 │ 12 │ 1,92│ 0,18 │4ВрI │ 0,18 │
─────┼────┼────────┼──────┼────┼─────┼──────┼──────┼──────┼───────
K17 │ 57 │ 10АIII │ 2360 │ 2 │ 4,72│ 2,91 │10АIII│ 2,91 │ 3,09
├────┼────────┼──────┼────┼─────┼──────┼──────┼──────┤
│ 53 │ 4ВрI │ 160 │ 12 │ 1,92│ 0,18 │10АIII│ 0,18 │
─────┼────┼────────┼──────┼────┼─────┼──────┼──────┼──────┼───────
K18 │ 55 │ 10АIII │ 3360 │ 2 │ 6,72│ 4,15 │10АIII│ 4,15 │ 4,37
├────┼────────┼──────┼────┼─────┼──────┼──────┼──────┤
│ 53 │ 4ВрI │ 160 │ 15 │ 2,40│ 0,22 │4ВрI │ 0,22 │
─────┼────┼────────┼──────┼────┼─────┼──────┼──────┼──────┼───────
K19 │ 56 │ 10АIII │ 2800 │ 2 │ 5,60│ 3,46 │10АIII│ 3,46 │ 3,64
├────┼────────┼──────┼────┼─────┼──────┼──────┼──────┤
│ 53 │ 4ВрI │ 160 │ 12 │ 1,92│ 0,18 │4ВрI │ 0,18 │
─────┼────┼────────┼──────┼────┼─────┼──────┼──────┼──────┼───────
K20 │ 58 │ 10АIII │ 2220 │ 2 │ 4,44│ 2,74 │10АIII│ 2,74 │ 2,92
├────┼────────┼──────┼────┼─────┼──────┼──────┼──────┤
│ 53 │ 4ВрI │ 160 │ 12 │ 1,92│ 0,18 │4ВрI │ 0,18 │
─────┼────┼────────┼──────┼────┼─────┼──────┼──────┼──────┼───────
K21 │ 52 │ 10АIII │ 3630 │ 2 │ 7,26│ 4,48 │10АIII│ 4,48 │ 4,69
├────┼────────┼──────┼────┼─────┼──────┼──────┼──────┤
│ 53 │ 4ВрI │ 160 │ 14 │ 2,24│ 0,21 │4ВрI │ 0,21 │
─────┼────┼────────┼──────┼────┼─────┼──────┼──────┼──────┼───────
K22 │ 54 │ 10АIII │ 3025 │ 2 │ 6,05│ 3,73 │10АIII│ 3,73 │ 3,88
├────┼────────┼──────┼────┼─────┼──────┼──────┼──────┤
│ 53 │ 4ВрI │ 160 │ 10 │ 1,60│ 0,15 │4ВрI │ 0,15 │
─────┼────┼────────┼──────┼────┼─────┼──────┼──────┼──────┼───────
K23 │ 59 │ 10АIII │ 2130 │ 2 │ 4,26│ 2,63 │10АIII│ 2,63 │ 2,79
├────┼────────┼──────┼────┼─────┼──────┼──────┼──────┤
│ 53 │ 4ВрI │ 160 │ 11 │ 1,76│ 0,16 │4ВрI │ 0,16 │
─────┼────┼────────┼──────┼────┼─────┼──────┼──────┼──────┼───────
K24 │ 55 │ 10АIII │ 3360 │ 2 │ 6,72│ 4,15 │10АIII│ 4,15 │ 4,36
├────┼────────┼──────┼────┼─────┼──────┼──────┼──────┤
│ 53 │ 4ВрI │ 160 │ 14 │ 2,24│ 0,21 │4ВрI │ 0,21 │
─────┼────┼────────┼──────┼────┼─────┼──────┼──────┼──────┼───────
K25 │ 56 │ 10АIII │ 2800 │ 2 │ 5,60│ 3,46 │10АIII│ 3,46 │ 3,61
├────┼────────┼──────┼────┼─────┼──────┼──────┼──────┤
│ 53 │ 4ВрI │ 160 │ 10 │ 1,60│ 0,15 │4ВрI │ 0,15 │
─────┼────┼────────┼──────┼────┼─────┼──────┼──────┼──────┼───────
K26 │ 60 │ 10АIII │ 1990 │ 2 │ 3,98│ 2,46 │10АIII│ 2,46 │ 2,62
├────┼────────┼──────┼────┼─────┼──────┼──────┼──────┤
│ 53 │ 4ВрI │ 160 │ 11 │ 1,76│ 0,16 │4ВрI │ 0,16 │
─────┼────┼────────┼──────┼────┼─────┼──────┼──────┼──────┼───────
П1 │ 61 │ 22АI │ 1670 │ 1 │ 1,67│ 4,98 │22АI │ 4,98 │ 5,13
├────┼────────┼──────┼────┼─────┼──────┼──────┼──────┤
│ 62 │ 10АI │ 250 │ 1 │ 0,25│ 0,15 │10АI │ 0,15 │
─────┼────┼────────┼──────┼────┼─────┼──────┼──────┼──────┼───────
П1а │ 78 │ 22АI │ 850 │ 1 │ 0,85│ 2,53 │22АI │ 2,53 │ 2,83
├────┼────────┼──────┼────┼─────┼──────┼──────┼──────┤
│ 62 │ 10АI │ 250 │ 2 │ 0,50│ 0,30 │10АI │ 0,30 │
(обозначение П1а введено Изменением N 1, утв. Постановлением
Госстроя РФ от 28.12.1987 N 303)
─────┬────┬────────┬──────┬────┬─────┬──────┬──────┬──────┬───────
П2 │ 63 │ 20АI │ 1420 │ 1 │ 1,42│ 3,51 │20АI │ 3,51 │ 3,66
├────┼────────┼──────┼────┼─────┼──────┼──────┼──────┤
│ 62 │ 10АI │ 250 │ 1 │ 0,25│ 0,15 │10АI │ 0,15 │
─────┼────┼────────┼──────┼────┼─────┼──────┼──────┼──────┼───────
П2а │ 79 │ 20АI │ 850 │ 1 │ 0,85│ 2,38 │20АI │ 2,38 │ 2,68
├────┼────────┼──────┼────┼─────┼──────┼──────┼──────┤
│ 62 │ 10АI │ 250 │ 2 │ 0,50│ 0,30 │10АI │ 0,30 │
(обозначение П1а введено Изменением N 1, утв. Постановлением
Госстроя РФ от 28.12.1987 N 303)
─────┬────┬────────┬──────┬────┬─────┬──────┬──────┬──────┬───────
П3 │ 64 │ 14АI │ 1260 │ 1 │ 1,26│ 1,52 │14АI │ 1,52 │ 1,67
├────┼────────┼──────┼────┼─────┼──────┼──────┼──────┤
│ 62 │ 10АI │ 250 │ 1 │ 0,25│ 0,15 │10АI │ 0,15 │
─────┼────┼────────┼──────┼────┼─────┼──────┼──────┼──────┼───────
П4 │ 65 │ 12АI │ 1060 │ 1 │ 1,06│ 0,94 │12АI │ 0,94 │ 1,09
├────┼────────┼──────┼────┼─────┼──────┼──────┼──────┤
│ 62 │ 10АI │ 250 │ 1 │ 0,25│ 0,15 │10АI │ 0,15 │
─────┼────┼────────┼──────┼────┼─────┼──────┼──────┼──────┼───────
П5 │ 66 │ 10АI │ 930 │ 1 │ 0,93│ 0,57 │10АI │ 0,72 │ 0,72
├────┼────────┼──────┼────┼─────┼──────┼──────┼──────┤
│ 62 │ 10АI │ 250 │ 1 │ 0,25│ 0,15 │ - │ - │
─────┼────┼────────┼──────┼────┼─────┼──────┼──────┼──────┼───────
П6 │ 67 │ 10АI │ 930 │ 1 │ 0,93│ 0,57 │10АI │ 0,72 │ 0,72
├────┼────────┼──────┼────┼─────┼──────┼──────┼──────┤
│ 62 │ 10АI │ 250 │ 1 │ 0,25│ 0,15 │ - │ - │
─────┼────┼────────┼──────┼────┼─────┼──────┼──────┼──────┼───────
Ск1 │ 68 │ 16АI │ 360 │ 1 │ 0,36│ 0,57 │16АI │ 0,57 │ 0,72
├────┼────────┼──────┼────┼─────┼──────┼──────┼──────┤
│ 62 │ 10АI │ 250 │ 1 │ 0,25│ 0,15 │10АI │ 0,15 │
─────┼────┼────────┼──────┼────┼─────┼──────┼──────┼──────┼───────
Ф1 │ 69 │ 4ВрI │ 90 │ 1 │ 0,09│ 0,01 │4ВрI │ 0,01 │ 0,01
─────┼────┼────────┼──────┼────┼─────┼──────┼──────┼──────┼───────
Сп1 │ 70 │ 3ВрI │ 1290 │ 1 │ 1,29│ 0,07 │3ВрI │ 0,07 │ 0,07
─────┼────┼────────┼──────┼────┼─────┼──────┼──────┼──────┼───────
От- │ 19 │ 12АIII │ 3480 │ 1 │ 3,48│ 3,09 │12АIII│ 3,09 │ 3,09
дель-├────┼────────┼──────┼────┼─────┼──────┼──────┼──────┼───────
ные │ 20 │ 10АIII │ 2730 │ 1 │ 2,73│ 1,68 │10АIII│ 1,68 │ 1,68
стер-├────┼────────┼──────┼────┼─────┼──────┼──────┼──────┼───────
жни │ 21 │ 10АIII │ 3480 │ 1 │ 3,48│ 2,15 │10АIII│ 2,15 │ 2,15
├────┼────────┼──────┼────┼─────┼──────┼──────┼──────┼───────
│ 22 │ 8АIII │ 2730 │ 1 │ 2,73│ 1,08 │8АIII │ 1,08 │ 1,08
├────┼────────┼──────┼────┼─────┼──────┼──────┼──────┼───────
│ 23 │ 12АIII │ 2980 │ 1 │ 2,98│ 2,65 │12АIII│ 2,65 │ 2,65
├────┼────────┼──────┼────┼─────┼──────┼──────┼──────┼───────
│ 24 │ 10АIII │ 1730 │ 1 │ 1,73│ 1,07 │10АIII│ 1,07 │ 1,07
├────┼────────┼──────┼────┼─────┼──────┼──────┼──────┼───────
│ 25 │ 10АIII │ 2980 │ 1 │ 2,98│ 1,84 │10АIII│ 1,84 │ 1,84
├────┼────────┼──────┼────┼─────┼──────┼──────┼──────┼───────
│ 26 │ 8АIII │ 1730 │ 1 │ 1,73│ 0,68 │8АIII │ 0,68 │ 0,68
├────┼────────┼──────┼────┼─────┼──────┼──────┼──────┼───────
│ 27 │ 8АIII │ 2980 │ 1 │ 2,98│ 1,18 │8АIII │ 1,18 │ 1,18
├────┼────────┼──────┼────┼─────┼──────┼──────┼──────┼───────
│ 28 │ 8АI │ 1730 │ 1 │ 1,73│ 0,68 │8АI │ 0,68 │ 0,68
├────┼────────┼──────┼────┼─────┼──────┼──────┼──────┼───────
│ 29 │ 12АIII │ 1730 │ 1 │ 1,73│ 1,54 │12АIII│ 1,54 │ 1,54
├────┼────────┼──────┼────┼─────┼──────┼──────┼──────┼───────
│ 30 │ 10АIII │ 1480 │ 1 │ 1,48│ 0,91 │10АIII│ 0,91 │ 0,91
├────┼────────┼──────┼────┼─────┼──────┼──────┼──────┼───────
│ 31 │ 8АIII │ 1480 │ 1 │ 1,48│ 0,58 │8АIII │ 0,58 │ 0,58
├────┼────────┼──────┼────┼─────┼──────┼──────┼──────┼───────
│ 32 │ 8АI │ 1480 │ 1 │ 1,48│ 0,58 │8АI │ 0,58 │ 0,58
├────┼────────┼──────┼────┼─────┼──────┼──────┼──────┼───────
│ 33 │ 12АIII │ 3880 │ 1 │ 3,88│ 3,45 │12АIII│ 3,45 │ 3,45
├────┼────────┼──────┼────┼─────┼──────┼──────┼──────┼───────
│ 35 │ 10АIII │ 3880 │ 1 │ 3,88│ 2,39 │10АIII│ 2,39 │ 2,39
├────┼────────┼──────┼────┼─────┼──────┼──────┼──────┼───────
│ 71 │ 12АIII │ 3490 │ 1 │ 3,49│ 3,10 │12АIII│ 3,10 │ 3,10
├────┼────────┼──────┼────┼─────┼──────┼──────┼──────┼───────
│ 72 │ 10АIII │ 1970 │ 1 │ 1,97│ 1,22 │10АIII│ 1,22 │ 1,22
├────┼────────┼──────┼────┼─────┼──────┼──────┼──────┼───────
│ 73 │ 10АIII │ 1490 │ 1 │ 1,49│ 0,92 │10АIII│ 0,92 │ 0,92
├────┼────────┼──────┼────┼─────┼──────┼──────┼──────┼───────
│ 74 │ 10АIII │ 3490 │ 1 │ 3,49│ 2,15 │10АIII│ 2,15 │ 2,15
├────┼────────┼──────┼────┼─────┼──────┼──────┼──────┼───────
│ 75 │ 8АIII │ 1970 │ 1 │ 1,97│ 0,78 │8АIII │ 0,78 │ 0,78
├────┼────────┼──────┼────┼─────┼──────┼──────┼──────┼───────
│ 76 │ 8АIII │ 1490 │ 1 │ 1,49│ 0,59 │8АIII │ 0,59 │ 0,59
├────┼────────┼──────┼────┼─────┼──────┼──────┼──────┼───────
│ 77 │ 10АIII │ 550 │ 1 │ 0,55│ 0,34 │10АIII│ 0,34 │ 0,34
Примечание. Для арматурной стали класса Ат-IIIC сечение, длину и массу следует принимать одинаковыми с арматурной сталью класса А-III.
(примечание введено Изменением N 1, утв. Постановлением Госстроя РФ от 28.12.1987 N 303)
4. В арматурных сетках должны быть сварены все пересечения стержней.
5. Соединения стержней в арматурных сетках и каркасах, монтажно-стыковых изделиях следует выполнять контактно-точечной сваркой по ГОСТ 14098-85.
(в ред. Изменения N 1, утв. Постановлением Госстроя РФ от 28.12.1987 N 303)
6. Режимы сварки - по СH 393-78.
7. Технические требования, правила приемки и методы контроля - по ГОСТ 21924.0-84.