Главная // Актуальные документы // ГОСТ Р (Государственный стандарт)
СПРАВКА
Источник публикации
М.: Стандартинформ, 2011
Примечание к документу
Документ введен в действие с 01.12.2010.
Название документа
"ГОСТ Р МЭК 60917-2-3-2009. Национальный стандарт Российской Федерации. Конструкции несущие базовые радиоэлектронных средств. Координационные размеры интерфейса для базовых несущих конструкций с шагом 25 мм. Размеры для блочных каркасов, шасси, объединительных плат, передних панелей и вставных блоков"
(утв. и введен в действие Приказом Ростехрегулирования от 10.12.2009 N 687-ст)

"ГОСТ Р МЭК 60917-2-3-2009. Национальный стандарт Российской Федерации. Конструкции несущие базовые радиоэлектронных средств. Координационные размеры интерфейса для базовых несущих конструкций с шагом 25 мм. Размеры для блочных каркасов, шасси, объединительных плат, передних панелей и вставных блоков"
(утв. и введен в действие Приказом Ростехрегулирования от 10.12.2009 N 687-ст)


Содержание


Утвержден и введен в действие
Приказом Федерального агентства
по техническому регулированию
и метрологии
от 10 декабря 2009 г. N 687-ст
НАЦИОНАЛЬНЫЙ СТАНДАРТ РОССИЙСКОЙ ФЕДЕРАЦИИ
КОНСТРУКЦИИ НЕСУЩИЕ БАЗОВЫЕ РАДИОЭЛЕКТРОННЫХ СРЕДСТВ
КООРДИНАЦИОННЫЕ РАЗМЕРЫ ИНТЕРФЕЙСА ДЛЯ БАЗОВЫХ НЕСУЩИХ
КОНСТРУКЦИЙ С ШАГОМ 25 ММ
РАЗМЕРЫ ДЛЯ БЛОЧНЫХ КАРКАСОВ, ШАССИ, ОБЪЕДИНИТЕЛЬНЫХ ПЛАТ,
ПЕРЕДНИХ ПАНЕЛЕЙ И ВСТАВНЫХ БЛОКОВ
Mechanical structures for electronic equipment practices.
Interface co-ordination dimensions for the 25 mm equipment
practice. Dimensions for subracks, chassis, backplanes,
front panels and plug-in units
IEC 60917-2-3:2006
Modular order for the development of mechanical structures
for electronic equipment practices - Part 2-3: Sectional
specification - Interface co-ordination dimensions
for the 25 mm equipment practice - Extended detail
specification - Dimensions for subracks, chassis,
backplanes, front panels and plug-in units
(IDT)
ГОСТ Р МЭК 60917-2-3-2009
Группа Э02
ОКС 31.240
ОКСТУ 6703
Дата введения
1 декабря 2010 года
Предисловие
Цели и принципы стандартизации в Российской Федерации установлены Федеральным законом от 27 декабря 2002 г. N 184-ФЗ "О техническом регулировании", а правила применения национальных стандартов Российской Федерации - ГОСТ Р 1.0-2004 "Стандартизация в Российской Федерации. Основные положения"
Сведения о стандарте
1 ПОДГОТОВЛЕН Закрытым акционерным обществом "Авангард-ТехСт" (ЗАО "Авангард-ТехСт") на основе выполненного российской комиссией экспертов МЭК/ТК 48D аутентичного перевода на русский язык стандарта, указанного в пункте 4
2 ВНЕСЕН Техническим комитетом по стандартизации ТК 420 "Базовые несущие конструкции, печатные платы, сборка и монтаж электронных модулей", Подкомитетом ПК-1 "Базовые несущие конструкции радиоэлектронных средств (РЭС)"
3 УТВЕРЖДЕН И ВВЕДЕН В ДЕЙСТВИЕ Приказом Федерального агентства по техническому регулированию и метрологии от 10 декабря 2009 г. N 687-ст
4 Настоящий стандарт идентичен международному стандарту МЭК 60917-2-3:2006 "Модульный принцип разработки механических конструкций для базовых несущих конструкций для электронного оборудования. Часть 2-3. Секционный стандарт. Координационные размеры интерфейса для базовых несущих конструкций с шагом 25 мм. Расширенный детальный стандарт. Размеры для блочных каркасов, шасси, объединительных плат, передних панелей и вставных блоков" (IEC 60917-2-3:2006 "Modular order for the development of mechanical structures for electronic equipment practices - Part 2-3: Sectional specification - Interface co-ordination dimensions for the 25 mm equipment practice - Extended detail specification - Dimensions for subracks, chassis, backplanes, front panels and plug-in units").
Наименование настоящего стандарта изменено относительно наименования указанного международного стандарта для приведения в соответствие с ГОСТ Р 1.5-2004 (пункт 3.5).
При применении настоящего стандарта рекомендуется использовать вместо ссылочных международных стандартов соответствующие им национальные стандарты Российской Федерации, сведения о которых приведены в дополнительном приложении ДА
5 ВВЕДЕН ВПЕРВЫЕ
Информация об изменениях к настоящему стандарту публикуется в ежегодно издаваемом информационном указателе "Национальные стандарты", а текст изменений и поправок - в ежемесячно издаваемых информационных указателях "Национальные стандарты". В случае пересмотра (замены) или отмены настоящего стандарта соответствующее уведомление будет опубликовано в ежемесячно издаваемом информационном указателе "Национальные стандарты". Соответствующая информация, уведомление и тексты размещаются также в информационной системе общего пользования - на официальном сайте Федерального агентства по техническому регулированию и метрологии в сети Интернет
Введение
Настоящий стандарт подготовлен на основе международного стандарта МЭК 60917-2-3, разработанного Подкомитетом МЭК/ПК 48D "Механические конструкции для электронного оборудования" Технического комитета МЭК по стандартизации МЭК/ТК 48 "Электромеханические компоненты и механические конструкции для электронного оборудования".
Серия стандартов МЭК 60917 под общим наименованием "Модульный принцип разработки механических конструкций для базовых несущих конструкций для электронного оборудования" состоит из следующих частей:
- часть 1. Общий стандарт;
- часть 2. Секционный стандарт. Координационные размеры интерфейса для несущих конструкций с шагом 25 мм;
- часть 2-1. Секционный стандарт. Координационные размеры интерфейса для несущих конструкций с шагом 25 мм. Детальный стандарт. Размеры шкафов и стоек;
- часть 2-2. Секционный стандарт. Координационные размеры интерфейса для несущих конструкций с шагом 25 мм. Детальный стандарт. Размеры блочных каркасов, шасси, объединительных плат, передних панелей и вставных блоков;
- часть 2-3. Секционный стандарт. Координационные размеры интерфейса для базовых несущих конструкций с шагом 25 мм. Расширенный детальный стандарт. Размеры для блочных каркасов, шасси, объединительных плат, передних панелей и вставных блоков.
Размеры на несущие конструкции с шагом 25 мм в настоящем стандарте установлены в соответствии с серией стандартов МЭК 60917-2.
Существенный прогресс в области разработки радиоэлектронной аппаратуры наряду с увеличением скорости передачи сигналов и спрос на электронные системы с высокой доступностью оказали влияние на конструктивные элементы оборудования, определяемые МЭК 60917-2-2.
a) Обзор общих тенденций развития системы корпусов
В настоящее время полагают, что общие тенденции развития системы корпусов, предназначенных для оборудования телесвязи (IT) и связанных с ними областей применения, состоят в следующем:
- изменение формы общепринятой реализованной сети связи для телекоммуникаций в форму гибкой развитой сети связи для расширения возможностей сети связи с использованием компьютеров (IP) путем применения широкополосной/IP технологии и технологии, основанной на построении сети связи с использованием фотоники;
- для построения сети связи с широкими возможностями требуется гибкая конфигурация оборудования;
- для оборудования построения сети связи требуется высокоэффективная система корпусов/кожухов с возможностью изменения конфигурации;
- кроме того, такая система корпусов/кожухов должна быть широко применяемой для универсального электронного оборудования, поскольку технология построения сети связи становится одним из общих интерфейсов для всех промышленных систем.
Следовательно, должны быть установлены нижеприведенные общие требования к системе кожухов:
- оборудование для построения сети/IT с расширенными возможностями, изготовленное на основе стандартов, но с разными размерами, необходимо устанавливать в одном шкафу (см. рисунок 1);
- управление большим объемом медных/оптических кабелей от аппаратуры должно быть осуществляемым от шкафа;
- шкафы для построения сети/IT следует чаще размещать в общих офисах в зданиях предприятий, а не в технических помещениях в центральных офисах для телесвязи.
Рисунок 1 - Типичный пример больших блочных каркасов
в широком шкафу, оборудованном большим числом
медных/оптических кабелей
Для выполнения этих требований рынка потребовалось установить в МЭК 60917-2-2 дополнительные размеры для реализации расширенных функций.
b) Применение в корпусах по МЭК 60917 монтажа с использованием разъема с расширенными функциями послужило основанием для разработки настоящего стандарта.
Стандарты серии МЭК 60917 определяют конструирование по модульному принципу с шагом 25 мм на основе стандартного метрического разъема МЭК. Однако при построении аппаратуры используется много нестандартных разъемов, характеризуемых расширением функциональных возможностей, которые необходимы для реализации функций системы и уровня эксплуатационных показателей (см. рисунок 2).
Примечание - Рабочая группа 2 Подкомитета МЭК/ПК 48D МЭК рассматривает тенденции в развитии систем корпусов, в которых основными элементами служат интерфейсы электрических/оптических сигналов и разъемов, наряду с общей тенденцией разработки новой системы корпусов. С учетом этих тенденций рабочая группа 2 Подкомитета МЭК/ПК 48D МЭК разработала настоящий стандарт, устанавливающий системы корпусов, пригодных для высокоскоростных сетей и иных областей применения в ближайшем будущем.
SMD - поверхностно монтируемый компонент;
BGA - матрица сетки шариковых выводов
Рисунок 2 - Пример разработки монтажа при применении разъема
с расширенными функциями. Ключевые элементы соединений
между функциональными вставными блоками посредством
объединительной платы
Дополнительная информация, необходимая для применения настоящего стандарта на территории Российской Федерации, приведена в тексте стандарта в виде сносок, выделенных курсивом.
1 Область применения <1>
--------------------------------
<1> Внесено редакционное изменение текста по отношению к тексту применяемого стандарта МЭК для приведения в соответствие с терминологией, принятой в Российской Федерации.
Настоящий стандарт устанавливает дополнительные размеры для модульного ряда блочных каркасов и связанных с ними вставных блоков, построенных по МЭК 60917-2-2. Типовой блочный каркас состоит из рамочной конструкции с монтажными размерами для установки в стойки или шкафы согласно МЭК 60917-2-1.
Настоящий стандарт предназначен для применения при определении размеров проема, соответствующих монтажным размерам передних вставных блоков.
Настоящий стандарт содержит:
- дополнительные размеры для блочных каркасов и связанных с ними вставных блоков с рукояткой инжектора/экстрактора;
- размеры для основных средств электромагнитного экранирования;
- размеры ловителя для установки на передней панели и вставного блока;
- размеры средств защиты от электростатического разряда;
- размеры вставных блоков, монтируемых на заднюю поверхность.
Размеры, относящиеся к разъемам, приведены в приложении A.
Для обеспечения совместимости вставных блоков в блочном каркасе определены контрольные размеры и размеры, зависящие от разъемов.
Примечание - Чертежи, используемые в настоящем стандарте, предназначены не для изображения конструкции изделия, а только для определения необходимых размеров.
2 Нормативные ссылки
Следующие нормативные документы обязательны при применении настоящего стандарта. При наличии датированных ссылок применяют только указанное издание. При наличии недатированных ссылок применяют последнее издание указанного нормативного документа (включая поправки).
МЭК 60917-1:1998 Модульный принцип построения механических несущих конструкций для электронного оборудования. Часть 1. Общий стандарт (IEC 60917-1:1998, Modular order for the development of mechanical structures for electronic equipment practices - Part 1: Generic standard)
МЭК 60917-2-1:1993 Модульный принцип построения механических несущих конструкций для электронного оборудования. Часть 2. Секционный стандарт. Координационные размеры интерфейса для базовых несущих конструкций с шагом 25 мм. Раздел 1. Детальный стандарт. Размеры шкафов и стоек (IEC 60917-2-1:1993, Modular order for the development of mechanical structures for electronic equipment practice - Part 2: Sectional specification - Interface co-ordination dimensions for the 25 mm equipment practice - Part 1: Detail specification - Dimensions for cabinets and racks)
МЭК 60917-2-2:1994 Модульный принцип построения механических несущих конструкций для электронного оборудования. Часть 2. Секционный стандарт. Координационные размеры интерфейса для базовых несущих конструкций с шагом 25 мм. Раздел 2. Детальный стандарт. Размеры блочных каркасов, шасси, объединительных плат, передних панелей и вставных блоков (IEC 60917-2-2:1994, Modular order for the development of mechanical structures for electronic equipment practice - Part 2: Sectional specification - Interface co-ordination dimensions for the 25 mm equipment practice - Part 2: Detail specification - Dimensions for subracks, chassis, backplanes, front panels and plug-in units)
МЭК 61076-4-100:2001 Разъемы для электронного оборудования. Часть 4-100. Разъемы установленного качества для печатных плат. Детальный стандарт на модули разъемов, состоящих из двух частей, с координатной сеткой шагом 2,5 мм для печатных и объединительных плат (IEC 61076-4-100:2001, Connectors for electronic equipment - Part 4-100: Printed board connectors with assessed quality - Detail specification for two-part connector modules having a grid of 2,5 mm for printed boards and backplanes)
МЭК 61076-4-101:2001 Разъемы для электронного оборудования. Часть 4-101. Разъемы установленного качества для печатных плат. Детальный стандарт на модули разъемов, состоящих из двух частей, с координатной сеткой шагом 2,0 мм для печатных и объединительных плат в соответствии с МЭК 60917 (IEC 61076-4-101:2001, Connectors for electronic equipment - Part 4-101: Printed board connectors with assessed quality - Detail specification for two-part connector modules having a basic grid of 2,5 mm for printed boards and backplane in accordance with IEC 60917)
МЭК 61076-4-104:1999 Разъемы для низкочастотных аналоговых и цифровых сигналов постоянного тока с высоким быстродействием. Часть 4-104. Разъемы установленного качества для печатных плат. Детальный стандарт на модули разъемов, состоящих из двух частей, с координатной сеткой шагом 2,0 мм, с подсоединением выводов к сетке, кратной монтажному шагу 0,5 мм (IEC 61076-4-104:1999, Connectors for use in d.c., low frequency analogue and digital high speed data application - Part 4-104: Printed board connectors with assessed quality - Detail specification for two-part connector modules having a basic grid of 2,0 mm, with terminations on a multiple grid of 0,5 mm)
3 Термины и определения
В настоящем стандарте применены термины с соответствующими определениями по МЭК 60917-1 <1>.
--------------------------------
<1> В Российской Федерации термины и определения в данной области установлены в ГОСТ Р 51676-2000 "Конструкции несущие базовые радиоэлектронных средств. Термины и определения" и ГОСТ Р 52003-2003 "Уровни разукрупнения радиоэлектронных средств. Термины и определения".
4 Общая компоновка
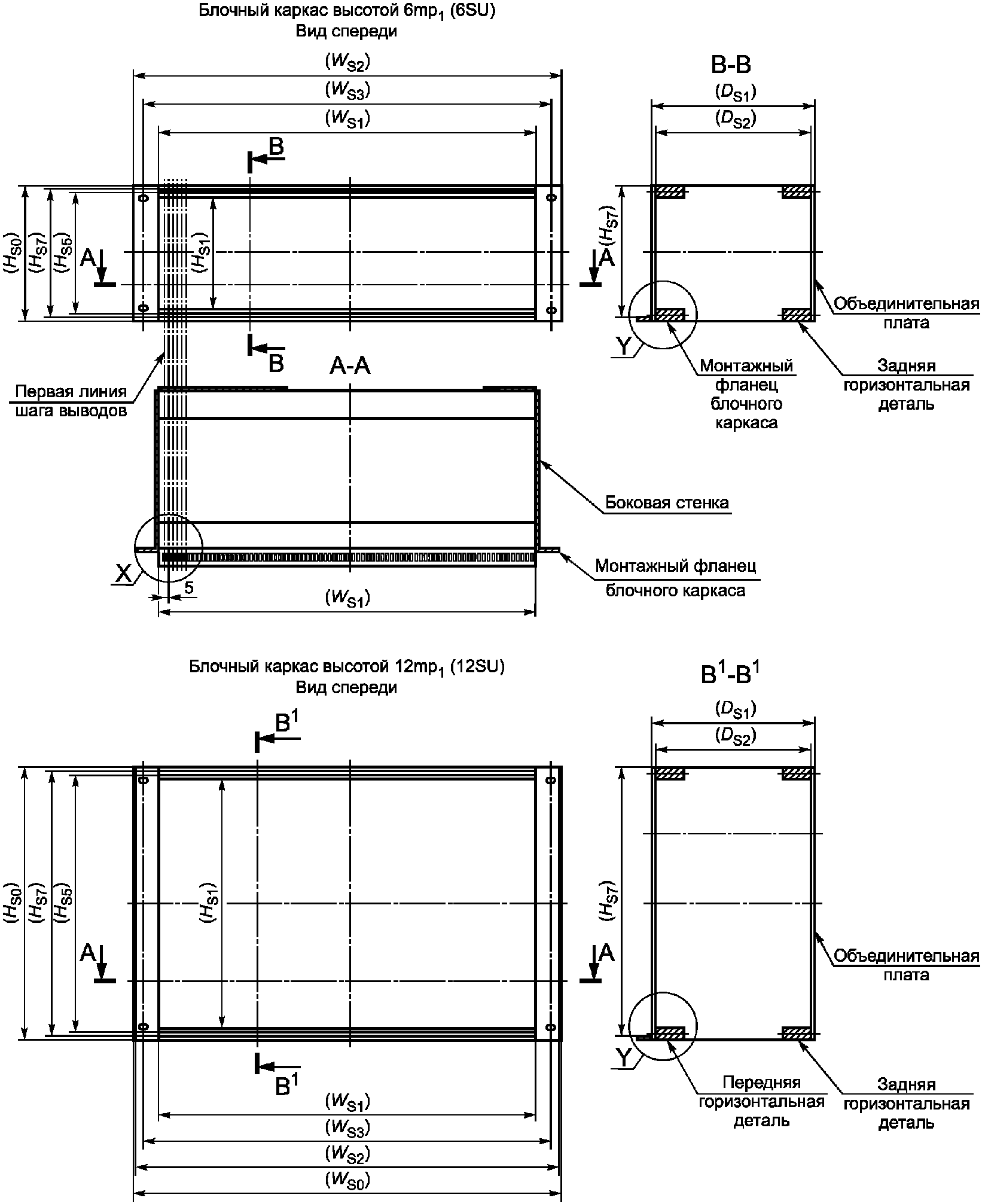
Типовой блочный каркас с передними и задними вставными блоками (см. рисунок 3).
Рисунок 3 - Общая компоновка
5 Размеры блочного каркаса для рукоятки инжектора/экстрактора вставных блоков
5.1 Размеры блочного каркаса
Следующие размеры блочного каркаса подлежат использованию только для областей применения, определенных в разделе 6. Основные размеры блочного каркаса приведены согласно МЭК 60917-2-2. Настоящий раздел устанавливает только дополнительные размеры блочного каркаса и вставных блоков с рукоятками инжектора/экстрактора (см. рисунки 4 и 5).
Размеры в миллиметрах
Примечание - Размеры в скобках приведены согласно МЭК 60917-2-2 (см. таблицу 2).
Рисунок 4 - Размеры блочного каркаса для рукоятки
инжектора/экстрактора вставных блоков
Размеры в миллиметрах
Примечание - Размеры в скобках приведены согласно МЭК 60917-2-2 (см. таблицу 2).
Рисунок 5 - Деталь X и деталь Y. Размеры блочного каркаса
для рукоятки инжектора/экстрактора вставных блоков
6 Размеры рукоятки инжектора/экстрактора для вставных блоков
6.1 Размеры рукоятки инжектора/экстрактора
Следующие размеры рукоятки инжектора/экстрактора подлежат использованию только для областей применения, определенных в разделе 5.
Основные размеры вставных блоков приведены согласно МЭК 60917-2-2. Настоящий раздел устанавливает только дополнительные размеры вставных блоков с рукоятками инжектора/экстрактора (см. рисунки 6 и 7).
Размеры в миллиметрах
Примечание - Размеры в скобках приведены согласно МЭК 60917-2-2 (см. таблицу 2).
Рисунок 6 - Размеры вставных блоков, рукоятки
инжектора/экстрактора для вставных блоков
Размеры в миллиметрах
Примечание - Размеры в скобках приведены согласно МЭК 60917-2-2 (см. таблицу 2).
Рисунок 7 - Деталь X и деталь Y. Размеры вставных блоков,
рукоятки инжектора/экстрактора для вставных блоков
Размеры по ширине рукояток инжектора/экстрактора могут быть любыми менее WS4 ширины передней панели. См. таблицу 2b.
Рукоятки инжектора/экстрактора могут выступать за горизонтальные делительные линии, определенные в МЭК 60917-2-2, для обеспечения эффективной вставки/извлечения. Рукоятка в замкнутом положении не должна выступать за габаритную высоту блочного каркаса. Во время вставки/извлечения рукоятка может выступать максимально на 0,5mp1 (0,5SU) над верхней и нижней плоскостями блочного каркаса (по высоте).
Примечание - В отношении усилия вставки/извлечения с учетом разъемов рекомендуется конструктивно обеспечить, чтобы усилие при работе с рукояткой не превышало 100 Н.
6.2 Фиксация рукоятки
Вместо фиксации рукоятки инжектора/экстрактора с помощью крепежного винта вставного блока допускается предусмотреть защелкивание.
7 Блочный каркас и вставные блоки со средствами электромагнитного экранирования
7.1 Размеры блочного каркаса для средств электромагнитного экранирования
Необходимо использовать следующие размеры блочного каркаса только для областей применения со вставными блоками, снабженными средствами электромагнитного экранирования, как определено в 7.2.
Основные размеры для блочных каркасов, передних панелей и вставных блоков приведены согласно МЭК 60917-2-2. В настоящем разделе установлены только дополнительные размеры блочного каркаса со средствами электромагнитного экранирования (см. рисунки 8 и 9).
Размеры в миллиметрах
Примечание - Размеры в скобках приведены согласно МЭК 60917-2-2 (см. таблицу 2).
Рисунок 8 - Размеры блочного каркаса. Средства
электромагнитного экранирования
Размеры в миллиметрах
Примечание 1 - Размеры в скобках приведены согласно МЭК 60917-2-2 (см. таблицу 2).
Примечание 2 - Рекомендуется использовать экранирующие прокладки и контактные элементы с низким электрическим сопротивлением и надежной антикоррозионной защитой.
Рисунок 9 - Деталь X и деталь Y. Размеры блочного
каркаса. Средства электромагнитного экранирования
7.2 Размеры передней панели вставного блока
Следующие размеры передней панели вставных блоков подлежат использованию только для областей применения с блочными каркасами, оборудованными средствами электромагнитного экранирования, как определено в 7.1.
Основные размеры передней панели/вставного блока приведены согласно МЭК 60917-2-2 для блочных каркасов, передних панелей и вставных блоков. Настоящий раздел устанавливает только дополнительные размеры передней панели/вставного блока, оборудованных средствами электромагнитного экранирования (см. рисунок 10).
Размеры в миллиметрах
Примечание - Размеры в скобках приведены согласно МЭК 60917-2-2 (см. таблицу 2).
Рисунок 10 - Размеры передней панели вставного
блока. Средства электромагнитного экранирования
8 Система ключей кодирования для блочного каркаса и вставных блоков
8.1 Общие положения
Блочные каркасы и вставные блоки могут быть оснащены системой ключей кодирования на вставном блоке и направляющей для вставного блока в блочном каркасе. В настоящем разделе приведено подробное описание системы ключей на передней и/или задней поверхностях блочного каркаса и на задней поверхности вставного блока, программируемой пользователем. Программируемый ключ может быть установлен, удален или изменен пользователями (см. рисунки 11, 12 и 13).
Блочный каркас, укомплектованный направляющими согласно МЭК 60917-2-2 и разделу 11 настоящего стандарта (без системы ключей), будет пригодным для вставных блоков с передними панелями согласно настоящему разделу (с удаленными ключами).
Рисунок 11 - Компоновка системы ключей кодирования
для вставных блоков
8.2 Размеры блочного каркаса. Система ключей кодирования на направляющих вставных блоков
Размеры в миллиметрах
Примечание 1 - См. размер HSK в таблице 1.
Примечание 2 - Размеры в скобках приведены согласно МЭК 60917-2-2 (см. таблицу 2).
Рисунок 12 - Размеры блочного каркаса. Система ключей
кодирования на направляющих для вставных блоков
Размеры в миллиметрах
Примечание 1 - См. размер HSK в таблице 1.
Примечание 2 - Размеры в скобках приведены согласно МЭК 60917-2-2 (см. таблицу 2).
Рисунок 13 - Размеры вставного блока. Система ключей
кодирования на элементах вставного блока
8.3 Размеры ключей. Система ключей кодирования на направляющих вставных блоков
Размеры ключей допускают их установку в четырех позициях для одного места установки у блочного каркаса и вставных блоков соответственно. У ключей должна быть самофиксирующаяся защелкивающаяся конструкция (см. рисунки 14 и 15).
Ответные части ключа блочных каркасов и вставных блоков обозначают шестью буквами, а именно: A, B, C, D, E и F (см. рисунок 15). У блочных каркасов высотой 6mp1 (6SU) и связанных с ними вставных блоков, как правило, предусмотрены места установки ключей в нижнем положении, обозначаемые тремя буквами D, E и F. У блочных каркасов и вставных блоков высотой 12mp1 (12SU) и 18mp1 (18SU) места установки ключей могут быть предусмотрены в верхнем и нижнем положениях и обозначены шестью буквами от A до F.
Размеры в миллиметрах
Рисунок 14 - Размеры ключа и положения при вращении ключа.
Система ключей кодирования на направляющих вставных блоков
8.4 Программирование ключей. Система ключей кодирования на направляющих блочного каркаса
Примечание 1 - На задней установочной поверхности блочного каркаса/вставного блока буквы A, B и C находятся в нижней части, а D, E и F - в верхней. Порядок букв при этом представляет собой зеркальное отражение.
Примечание 2 - Отметки положения указывают на положение вращения ключа 1, 2, 3, и 4. "N" указывает на положение без ключа.
Рисунок 15 - Программирование ключей
8.5 Контрольные размеры установки ключей. Система ключей кодирования на направляющих вставных блоков
В таблице 1 приведены точные размеры по высоте HSK, обеспечивающие совмещение двух противоположных вставок системы ключей.
Таблица 1
Контрольные размеры установки ключей блочного каркаса
и вставного блока
Размеры в миллиметрах
SU
6
12
18
(H.S)
150
300
450
H.SK +/- 0,3
121
271
421
9 Центрирующий ловитель для установки и/или обеспечения электрического контакта передних панелей и вставных блоков
9.1 Общие положения
Функция центрирующего ловителя для установки и/или обеспечения электрического контакта состоит в обеспечении установки в блочном каркасе передних панелей в заданном положении (например, при использовании экранирующих прокладок, см. раздел 7) или в обеспечении надежного электрического контакта между вставным блоком или блочным каркасом (см. рисунки 16, 17, 18, и 19).
Рисунок 16 - Компоновка системы центрирующего ловителя
для блочных каркасов и вставных блоков
9.2 Центрирующие ловители и планки с гнездами под них на горизонтальных деталях блочного каркаса
Настоящая система установки должна быть расположена в области крепления вставного блока к блочному каркасу согласно МЭК 60917-2-2 и разделу 11 настоящего стандарта. Следовательно, при применении настоящей системы установки вставные блоки могут быть оборудованы рукоятками инжектора/экстрактора с функцией защелкивания согласно 6.2 вместо крепления винтами.
Размеры в миллиметрах
Примечание - Размеры в скобках приведены согласно МЭК 60917-2-2 (см. таблицу 2).
Рисунок 17 - Размеры блочного каркаса. Центрирующие ловители
и планки с гнездами под них на горизонтальных деталях
Размеры в миллиметрах
Примечание - Размеры в скобках приведены согласно МЭК 60917-2-2 (см. таблицу 2).
Рисунок 18 - Размеры вставного блока. Центрирующие ловители
и планки с гнездами на горизонтальных деталях
9.3 Центрирующий ловитель для установки и/или обеспечения электрического контакта и гнезда на направляющих для вставного блока в блочном каркасе
9.3.1 Общие положения
Настоящая система установки и/или электрического контакта должна быть расположена рядом с системой ключей кодирования на направляющих для вставных блоков (см. раздел 8).
Настоящую систему установки допускается использовать по выбору вместо установочных штырей и планок с отверстиями на горизонтальных деталях (см. 9.2).
Электрический контакт в этой системе может быть использован по выбору как контакт для электростатического разряда (ЗЭР) между вставными блоками и блочным каркасом вместо контакта для ЗЭР вставных блоков печатной платы (см. раздел 10).
Блочному каркасу, оборудованному направляющими, согласно МЭК 60917-2-2 и разделу 11 настоящего стандарта (без элементов центрирования и/или электрического контакта) соответствуют вставные блоки с передними панелями без центрирующего ловителя для установки и/или обеспечения электрического контакта.
9.3.2 Размеры блочного каркаса. Центрирующий ловитель для установки и/или обеспечения электрического контакта и гнезда на направляющих для вставного блока в блочном каркасе
Размеры в миллиметрах
Примечание 1 - См. размер HSK в таблице 1.
Примечание 2 - Размеры в скобках приведены согласно МЭК 60917-2-2 (см. таблицу 2).
Рисунок 19 - Размеры блочного каркаса. Центрирующий ловитель
для установки и/или обеспечения электрического контакта
и гнезда на направляющих для вставного блока
9.3.3 Размеры вставного блока. Центрирующий ловитель для установки и/или обеспечения электрического контакта и гнезда на направляющих для вставного блока в блочном каркасе
На рисунке 20 показан центрирующий ловитель для установки и/или обеспечения электрического контакта на вставном блоке.
Размеры в миллиметрах
Примечание 1 - См. размер HSK в таблице 1.
Примечание 2 - Размеры в скобках приведены согласно МЭК 60917-2-2 (см. таблицу 2).
Рисунок 20 - Размеры блочного каркаса. Отверстия
под центрирующий ловитель для установки и/или обеспечения
электрического контакта на направляющих для вставного блока
9.3.4 Области применения гнезд и ловителей для обеспечения электрического контакта
Основное назначение гнезд и ловителей для обеспечения электрического контакта состоит в защите вставных блоков с передними панелями от электростатического разряда (ЗЭР).
Электрические характеристики и соответствующие методы тестирования гнезд и ловителей для обеспечения электрического контакта должны быть определены в зависимости от целей пользователя и области применения системы блочного каркаса и вставного блока, основанной на настоящем стандарте.
10 Средства защиты от электростатического разряда для вставных блоков и блочных каркасов
10.1 Общие положения
Настоящий раздел определяет размеры контактирующих элементов направляющих для электростатического разряда и соответствующих проводящих элементов на печатных платах вставного блока.
10.2 Размеры контактирующих элементов для защиты от электростатического разряда
Контактирующие элементы для защиты от электростатического разряда (ЗЭР) должны быть подсоединены к горизонтальным деталям блочного каркаса и обеспечивать необходимое усилие контакта с помощью пружины, зафиксированной между определенными зонами направляющих (см. рисунок 21). Контактирующие элементы для ЗЭР должны обеспечивать надежный контакт с обеими сторонами вставляемых печатных плат.
Размеры в миллиметрах
Примечание - Размеры в скобках приведены согласно МЭК 60917-2-2 (см. таблицу 2).
Рисунок 21 - Размеры блочного каркаса. Контактирующие
элементы для ЗЭР на направляющих вставного блока
10.3 Размеры проводящего элемента для защиты от электростатического разряда на печатной плате
Для печатных плат вставных блоков определены два типа проводящих элементов для ЗЭР. Проводящий элемент одного типа проходит по всей плате, а проводящий элемент другого типа укорочен (см. рисунок 22).
Размеры в миллиметрах
Печатная плата вставного блока со сплошным проводящим
элементом для разряда
Печатная плата вставного блока с укороченным проводящим
элементом для разряда
Примечание - Размеры в скобках приведены согласно МЭК 60917-2-2 (см. таблицу 2).
Рисунок 22 - Размеры проводящего элемента для ЗЭР
на печатной плате вставного блока
Сплошной проводящий элемент для разряда поддерживает электрические соединения с контактирующими элементами для ЗЭР на направляющих, когда вставной блок полностью вставлен в блочный каркас. Укороченный проводящий элемент для разряда размыкает электрические соединения с контактами для ЗЭР на направляющих, когда вставные блоки полностью вставлены в блочный каркас.
В зависимости от области применения может быть использован сплошной или укороченный проводящий элемент для ЗЭР.
10.4 Размеры блочных каркасов и вставных блоков на основе МЭК 60917-2-2
Размеры в таблицах 2a, 2b и 2c приведены согласно МЭК 60917-2-2.
Таблица 2
Размеры блочных каркасов и вставных блоков на основе
МЭК 60917-2-2
Таблица 2a
Размеры по высоте
Размеры в миллиметрах
HBSB
150
300
450
600
HBS0B0-0,8
149
299
449
599
HBS1B >
125
275
425
575
HBS2B+0,6-0
115,2
265,2
415,2
565,2
HBS3B+0-0,3
115
265
415
565
HBS5B U +/- U 0,35
135
285
435
585
HS7 +/- 0,35
142
292
442
592
HS8 <=
141
291
441
591
HS9 +/- 0,5
145
295
445
595
HS13 +/- 0,1
107
257
407
557
HS14B <=
100
250
400
550
где HS - координационный размер для значений высоты, n x mp1;
HS0 - высота блочного каркаса или высота передних панелей на шкафах и стойках;
HS1 - высота проема блочного каркаса для вставных блоков HS1 = (n - 1) x mp1;
HS2 - высота проема блочного каркаса для вставных блоков с учетом направляющих;
HS3 - высота печатной платы и охватываемая высота рамки или вставного частичного каркаса;
HS5 - расстояние между центрами монтажных отверстий для вставных блоков, передних панелей, объединительных плат и опор разъема;
HS7 - высота проема для передних панелей вставных блоков;
HS8 - высота передней панели вставного блока;
HS9 - высота объединительных плат;
HS13 - расстояние между центрами для монтажных отверстий на печатных платах и передних панелях;
HS14 - пространство, используемое для компонентов на передних панелях вставного блока, между монтажными фланцами печатной платы на передней панели.
Таблица 2b
Размеры по ширине
Размеры в миллиметрах
WS0 <
450
500
625
WS1 >
425
475
600
WS2 <=
483
533
658
WS3 +/- 1,0
465
515
640
WS4
n x 5 - 0,3
где WS - координационный размер для размеров блочного каркаса по ширине, WS = n x mp1;
WS0 - ширина блочного каркаса;
WS1 - ширина проема блочного каркаса для вставных блоков, WS1 = WS - mp1;
WS2 - общая ширина блочного каркаса, включая фланцы;
WS3 - ширина передних панелей шкафа, передних панелей стоек, монтажных фланцев блочных каркасов или шасси;
WS4 - ширина передней панели вставного блока типа P.
Таблица 2c
Размеры по глубине
Размеры в миллиметрах
DSB
175,0
225,0
250,0
300,0
DS1B+1-0
175,5
225,5
250,5
300,5
DS2B+0,8-0,3
174,0
224,0
249,0
299,0
DS3B+0-0,3
Размер, зависящий от разъема
DS4B
Размер, зависящий от разъема
DS5B
Размер, зависящий от разъема
где DS - координационный размер блочного каркаса по глубине, DS = n x mp1;
DS1 - глубина проема блочного каркаса для вставных блоков;
DS2 - глубина блочного каркаса до задней плоскости закрепления для опоры разъема блочного каркаса или изолирующей прокладки,
DS2 = DS1 - 1,5 мм;
DS3 - глубина печатной платы, зависит от разъема;
DS4 - общая глубина вставного частичного каркаса или вставного блока типа рамки, зависит от разъема;
DS5 - глубина вставного блока, контрольный размер, зависит от разъема.
11 Размеры блочного каркаса для задних вставных блоков
В настоящем разделе определен диапазон размеров печатной платы задних вставных блоков и задней плоскости блочного каркаса для присоединения передней панели вставного блока (см. рисунок 23).
Размеры в миллиметрах
Примечание 1 - DSR1 = 100, 125, 150 и 200.
Примечание 2 - Задняя направляющая платы по глубине (DSR3) зависит от типа разъема (см. таблицу 3).
Примечание 3 - Размеры в скобках должны соответствовать МЭК 60917-2-2 (см. таблицу 2).
Рисунок 23 - Размеры блочного каркаса для задних
вставных блоков
Таблица 3
Размеры блочных каркасов и плат для задних вставных блоков
Размеры в миллиметрах
DSR1+0-0,5
100,00
125,00
150,00
200,00
Разъем согласно МЭК 61076-4-101
DSR3+0-0,3
78,48
103,48
128,48
178,48
DSR4 >
90,40
115,40
140,40
190,40
Разъем с базовым штырьковым выводом длиной 17,0 +/- 0,3 согласно МЭК 61076-4-104
DSR3+0-0,3
80,50
105,50
130,50
180,50
DSR4 >
90,50
115,50
140,50
190,50
Приложение A
(справочное)
РАЗМЕРЫ БЛОЧНОГО КАРКАСА, ВСТАВНОГО БЛОКА И ОБЪЕДИНИТЕЛЬНОЙ
ПЛАТЫ ДЛЯ ПРИМЕНЕНИЯ МЕТРИЧЕСКИХ РАЗЪЕМОВ
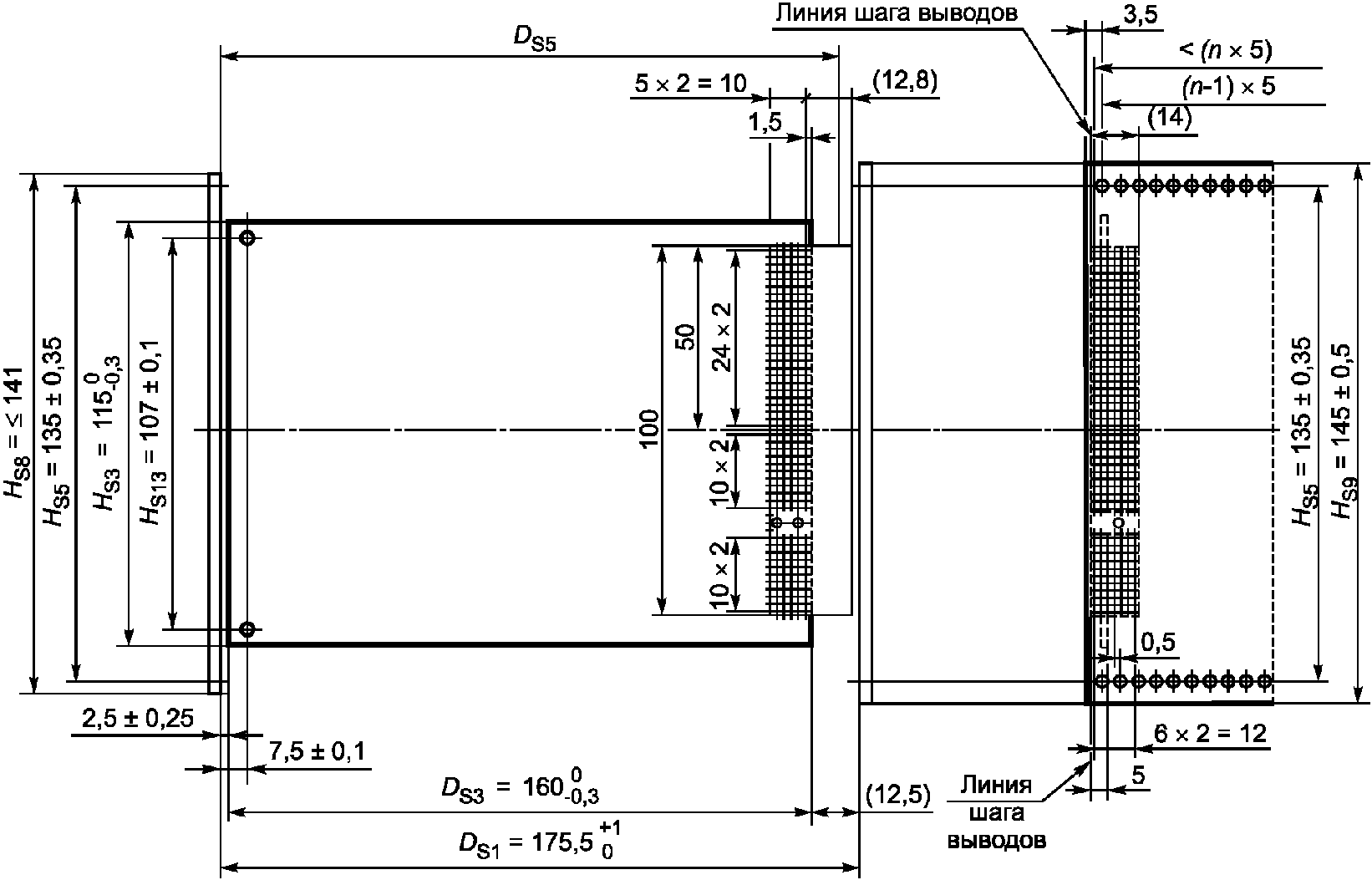
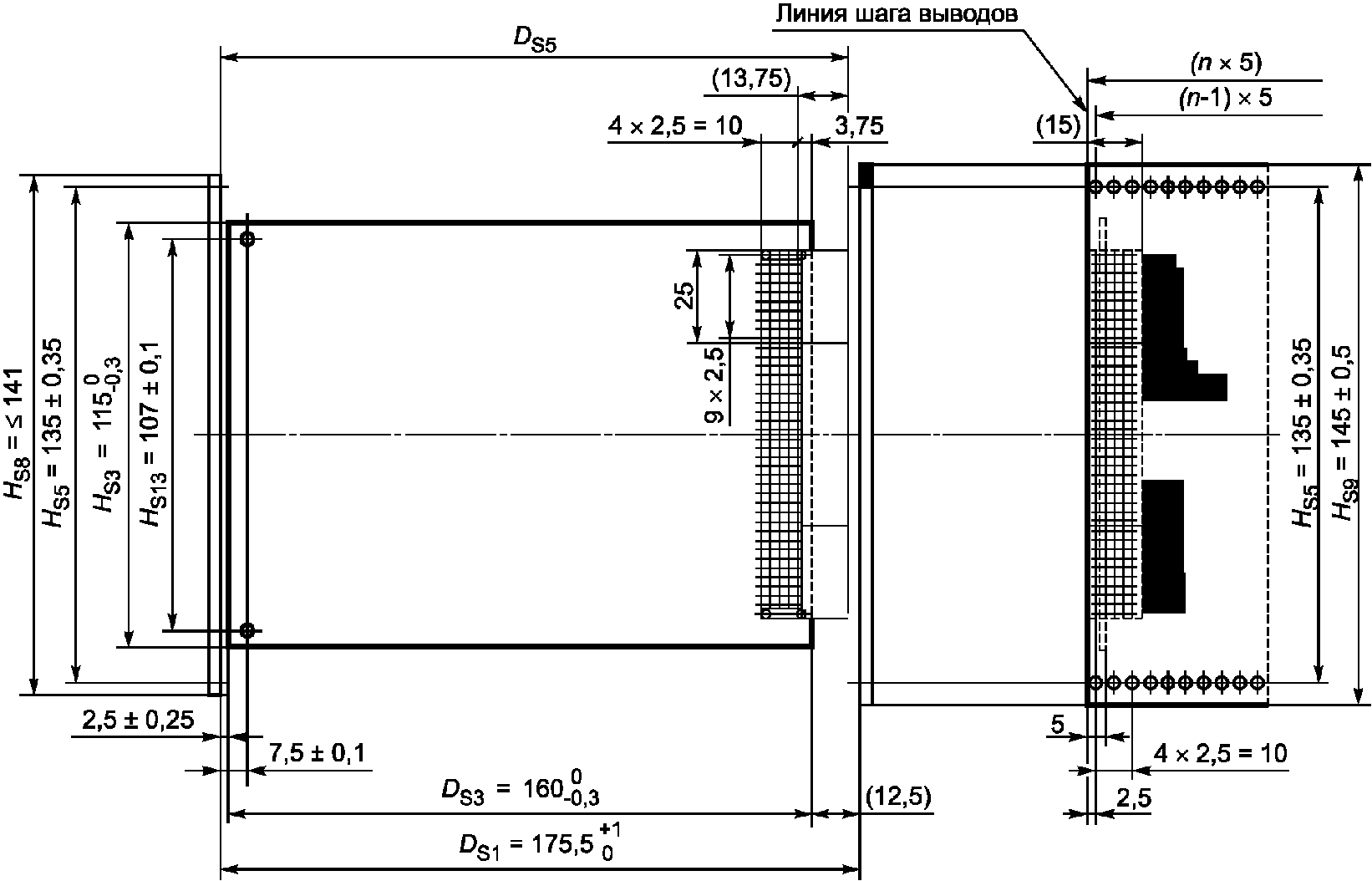
В настоящем приложении приведены детальные размеры блочного каркаса, вставного блока и объединительной платы для применения метрических разъемов с шагом 2,5 и 2 мм.
Применение разъема МЭК 61076-4-100 в блочном каркасе 6SU с глубиной 175 мм представлено на рисунке A.1.
Применение разъема МЭК 61076-4-101 в блочном каркасе 6SU с глубиной 175 мм представлено на рисунке A.2.
Применение разъема МЭК 61076-4-104 в блочном каркасе 6SU с глубиной 175 мм представлено на рисунке A.3.
Размеры в миллиметрах
Рисунок A.1 - Размеры блочного каркаса, вставного блока
и объединительной платы при применении метрических разъемов
с шагом 2,5 мм согласно МЭК 61076-4-100
Размеры в миллиметрах
Рисунок A.2 - Размеры блочного каркаса, вставного блока
и объединительной платы при применении метрических разъемов
с шагом 2 мм согласно МЭК 61076-4-101
Размеры в миллиметрах
Рисунок A.3 - Размеры блочного каркаса, вставного блока
и объединительной платы при применении метрических разъемов
с шагом 2 мм согласно МЭК 61076-4-104
Приложение ДА
(справочное)
СВЕДЕНИЯ О СООТВЕТСТВИИ ССЫЛОЧНЫХ МЕЖДУНАРОДНЫХ СТАНДАРТОВ
ССЫЛОЧНЫМ НАЦИОНАЛЬНЫМ СТАНДАРТАМ РОССИЙСКОЙ ФЕДЕРАЦИИ
Таблица ДА.1
Обозначение ссылочного международного стандарта
Степень соответствия
Обозначение и наименование соответствующего национального стандарта
МЭК 60917-1:1998
NEQ
ГОСТ Р 51676-2000 "Конструкции несущие базовые радиоэлектронных средств. Термины и определения"
ГОСТ Р 52003-2003 "Уровни разукрупнения радиоэлектронных средств. Термины и определения"
ИС МЕГАНОРМ: примечание.
Взамен ГОСТ Р 51623-2000 Приказом Росстандарта от 24.11.2020 N 1149-ст с 01.07.2021 введен в действие ГОСТ Р 51623-2020.
МЭК 60917-2-1:
NEQ
ГОСТ Р 51623-2000 "Конструкции базовые несущие радиоэлектронных средств. Система построения и координационные размеры"
МЭК 60917-2-2:1994
NEQ
ГОСТ Р 51623-2000 "Конструкции базовые несущие радиоэлектронных средств. Система построения и координационные размеры"
МЭК 61076-4-100:2001
-
МЭК 61076-4-101:2001
-
МЭК 61076-4-104:1999
-
<*> Соответствующий национальный стандарт отсутствует. До его утверждения рекомендуется использовать перевод на русский язык данного международного стандарта. Перевод данного международного стандарта находится в Федеральном информационном фонде технических регламентов и стандартов.
Примечание - В настоящей таблице использовано следующее условное обозначение степени соответствия стандартов:
- NEQ - неэквивалентные стандарты.
УДК 621.396:69:006.354
ОКС 31.240
Э02
ОКСТУ 6703
Ключевые слова: радиоэлектронные средства, базовые несущие конструкции, координационные размеры интерфейса, блочные каркасы, вставные блоки, размеры конструкций с шагом 25 мм