Скачать СП 35-105-2002 Реконструкция городской застройки с учетом доступности для инвалидов и других маломобильных групп населенияДата актуализации: 01.01.2021
|
| Обозначение: | СП 35-105-2002 |
| Обозначение англ: | SP 35-105-2002 |
| Статус: | введен впервые |
| Название рус.: | Реконструкция городской застройки с учетом доступности для инвалидов и других маломобильных групп населения |
| Название англ.: | Reconstruction of urban built-up environment with due regard t othe accessibility for invalids and other not mobile groups of population |
| Дата добавления в базу: | 01.09.2013 |
| Дата актуализации: | 01.01.2021 |
| Дата введения: | 19.07.2002 |
| Область применения: | Свод правил следует использовать при решении комплекса социальных, экономических, экологических и архитектурно-художественных задач, при последовательном приспособлении среды жизнедеятельности к потребностям инвалидов. |
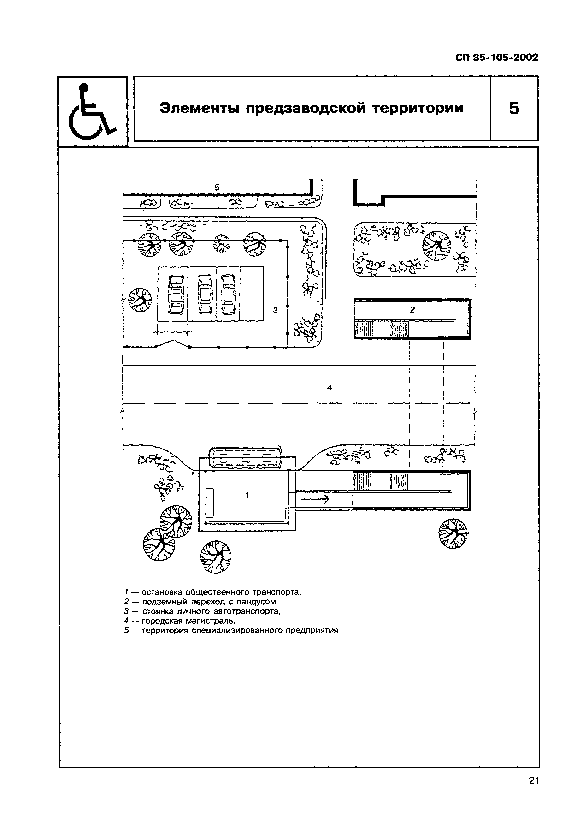
| Оглавление: | Введение 1 Область применения 2 Нормативные ссылки 3 Основные положения 4 Планировка и застройка реконструируемых территорий и зон Жилые зоны Общественные здания и учреждения Производственные зоны Рекреационные зоны 5 Транспортные и пешеходные коммуникации и зоны Пешеходные коммуникации Транспортное обслуживание Транспортно-пересадочные узлы 6 Информационное обеспечение Приложение А Требования к градостроительной документации Приложение Б Оценка возможностей городских поселений для размещения мест приложения труда и реабилитационных центров для инвалидов при реконструкции существующей застройки |
| Разработан: | ЦНИИП градостроительства Институт общественных зданий |
| Утверждён: | 19.07.2002 Госстрой России (Russian Federation Gosstroy 89) 20.12.2001 ЦНИИПградостроительства (TsNIIPgradostroitelstva 256-а) |
| Издан: | ГУП ЦПП (CPP GUP 2002 г. ) |
| Нормативные ссылки: |
|












































