Скачать Серия 1.411.1-10.93 Выпуск 1. Сваи-колонны. Рабочие чертежи

Дата актуализации: 01.01.2021

Серия 1.411.1-10.93

Выпуск 1. Сваи-колонны. Рабочие чертежи

Обозначение: Серия 1.411.1-10.93
Обозначение англ: Series 1.411.1-10.93
Статус:не определен законодательством
Название рус.:Выпуск 1. Сваи-колонны. Рабочие чертежи
Дата добавления в базу:01.09.2013
Дата актуализации:01.01.2021
Дата введения:01.07.1994
Дата окончания срока действия:30.06.2003
Оглавление:1.411.1-10.93.1-ТТ Технические требования
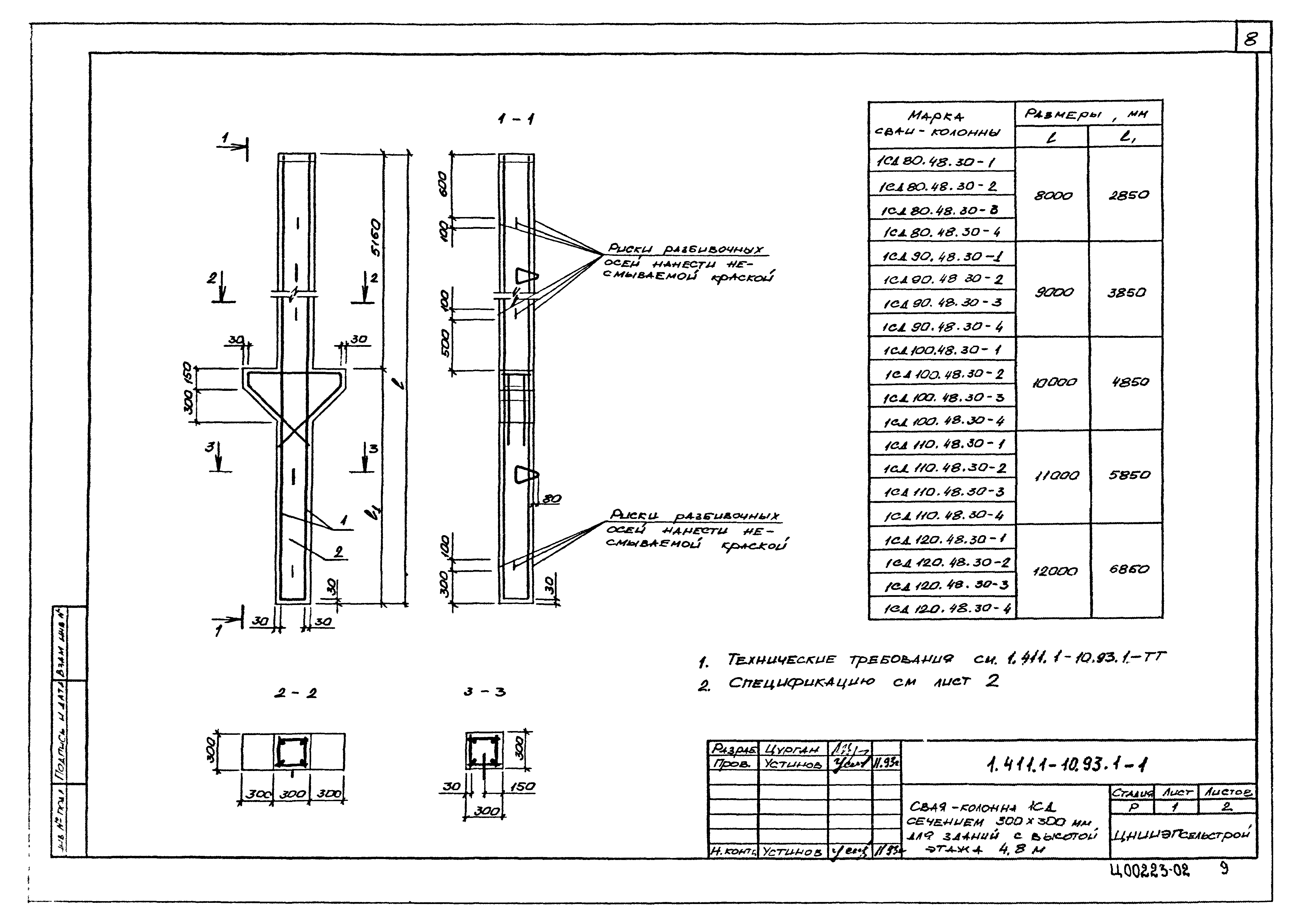
1.411.1-10.93.1-1 Свая-колонна 1СД сечением 300х300мм для зданий с высотой этажа 4,8га
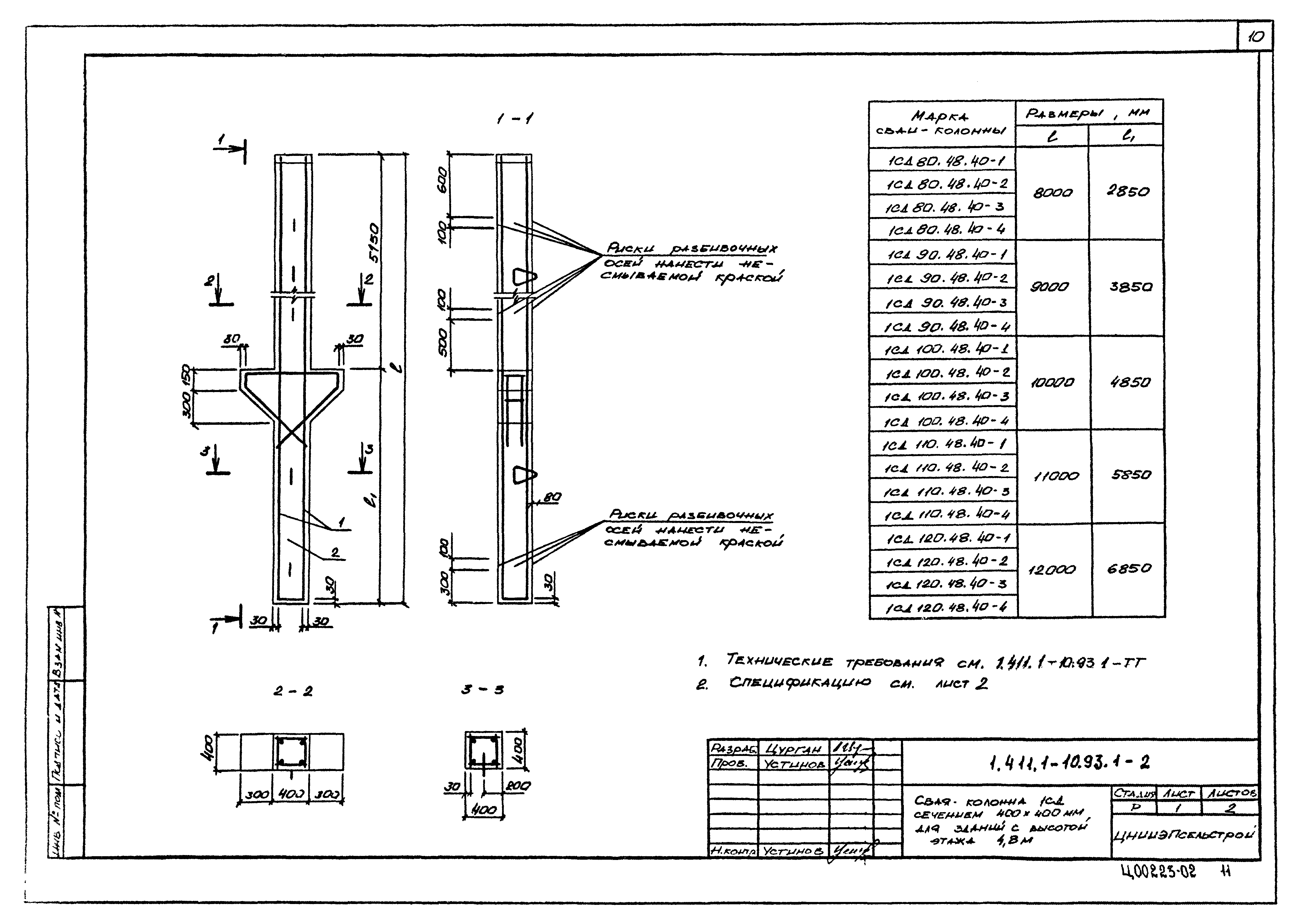
1.411.1-10.93.1-2 Свая-колонна 1СД сечением 400х400мм для зданий с высотой этажа 4,8га
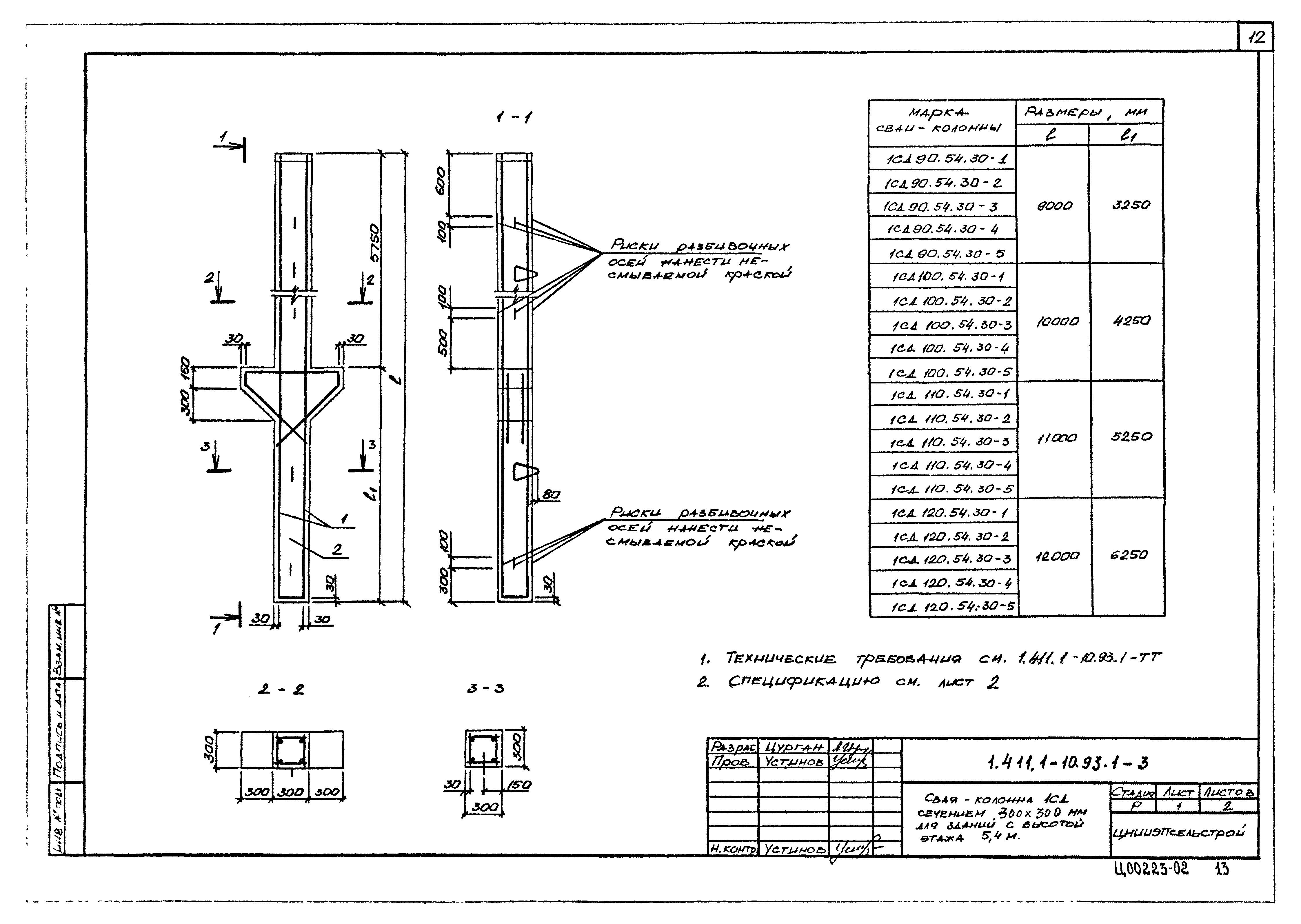
1.411.1-10.93.1-3 Свая-колонна 1СД сечением 300х300мм для зданий с высотой этажа 5,4га
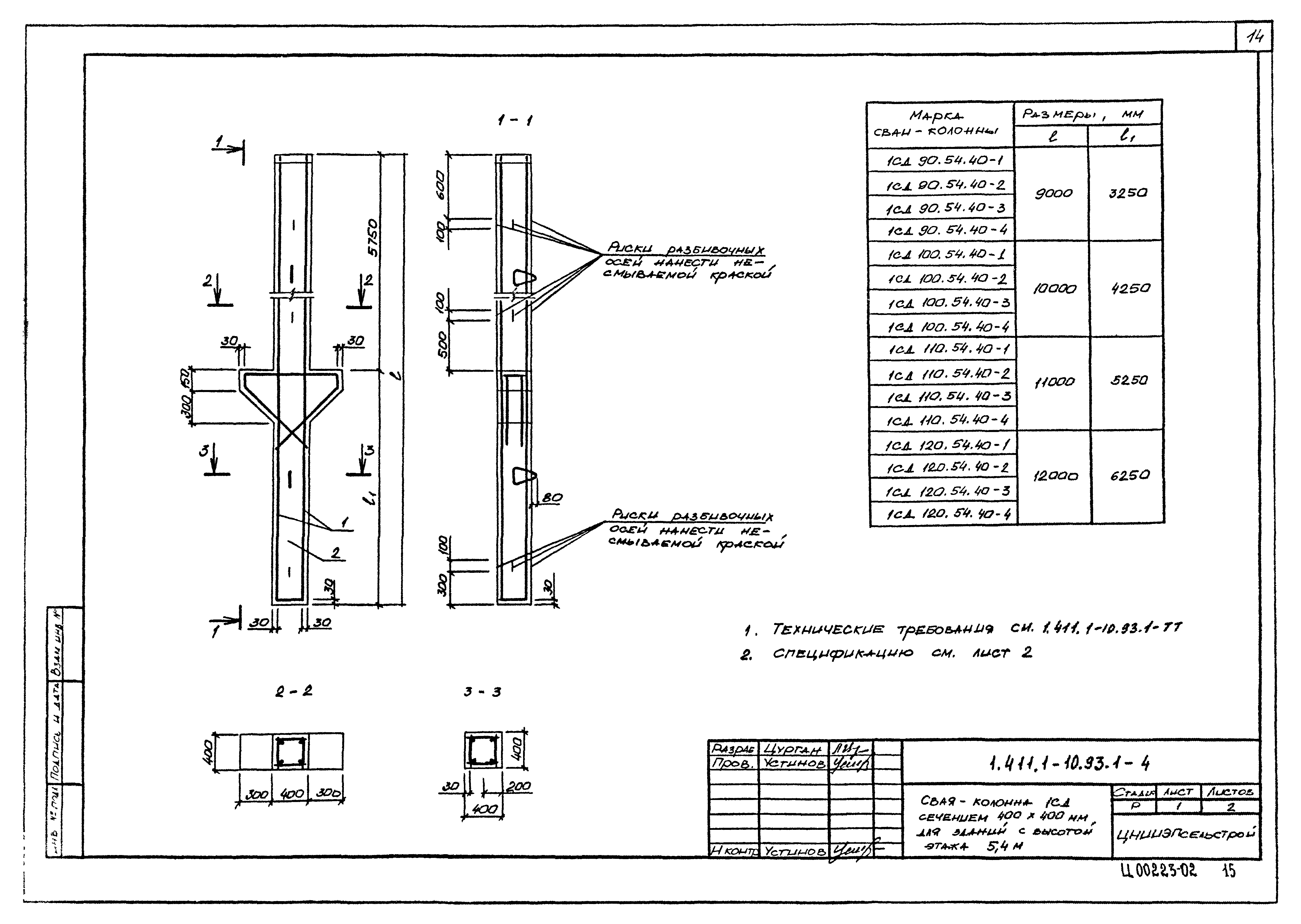
1.411.1-10.93.1-4 Свая-колонна 1СД сечением 400х400мм для зданий с высотой этажа 6,0га
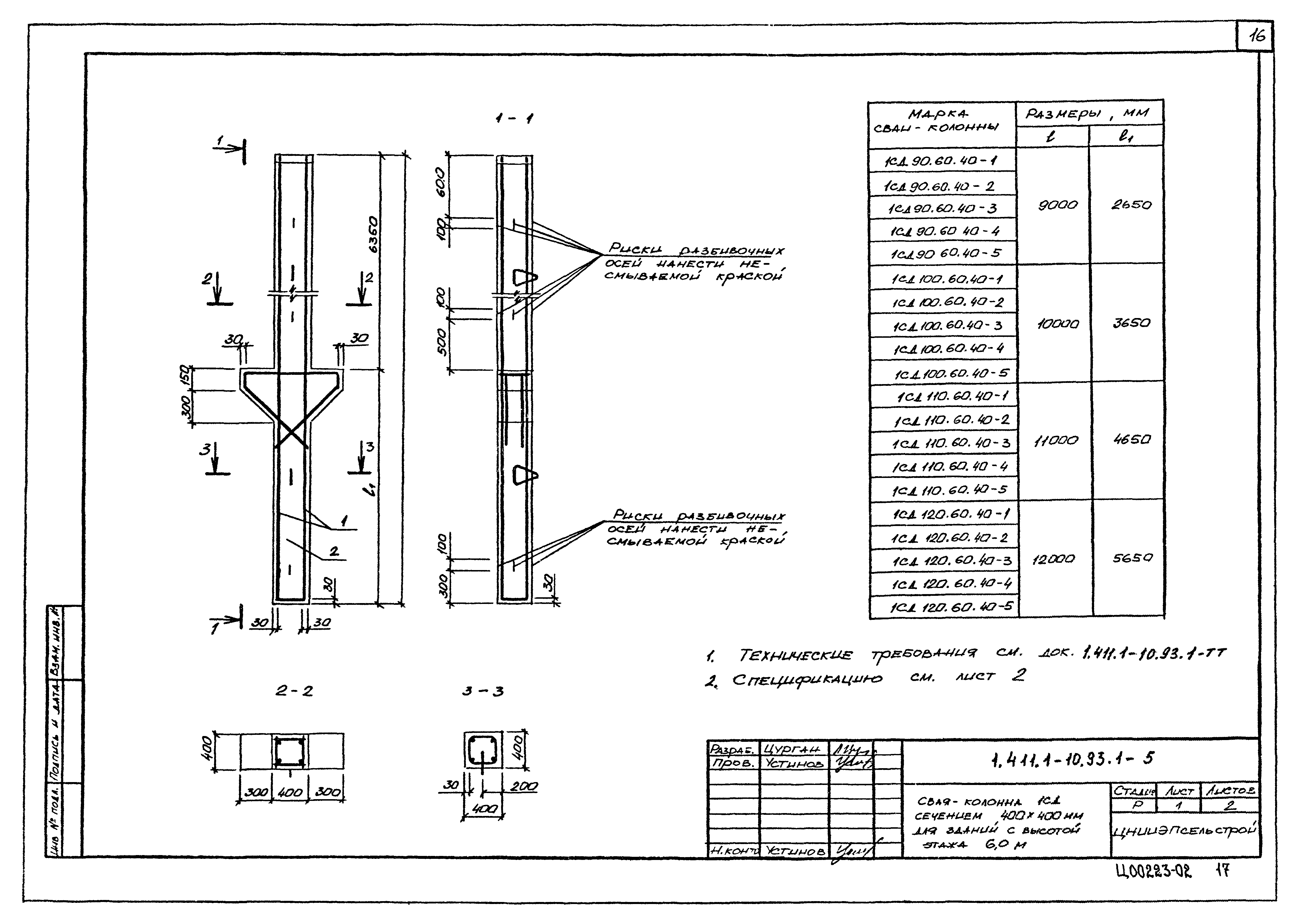
1.411.1-10.93.1-5 Свая-колонна 1СД сечением 400х400мм для зданий с высотой этажа 6,0га
1.411.1-10.93.1-6 Свая-колонна 1СД сечением 400х400мм для зданий с высотой этажа 6,6га
1.411.1-10.93.1-7 Свая-колонна 1СД сечением 400х400мм для зданий с высотой этажа 7,2га
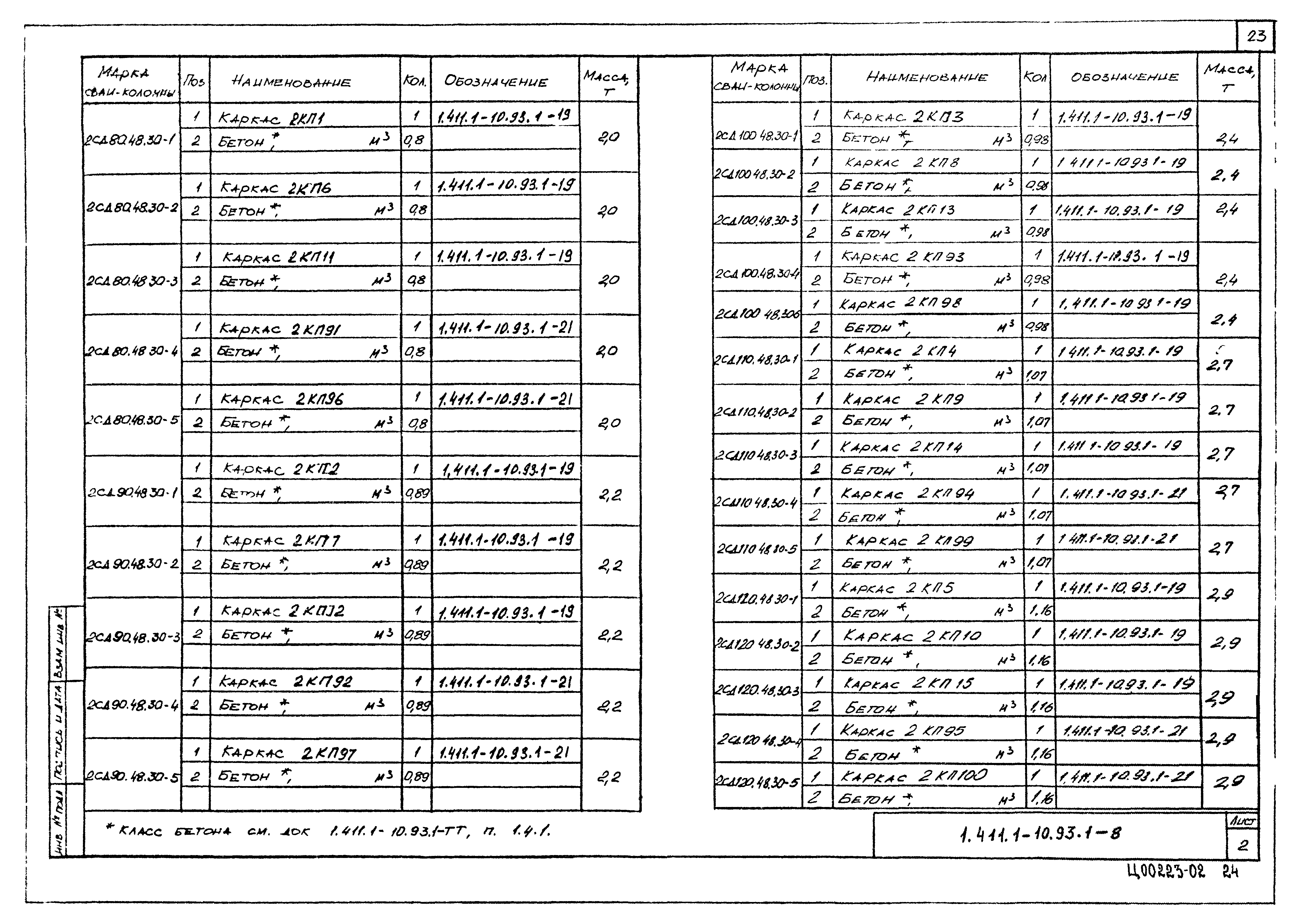
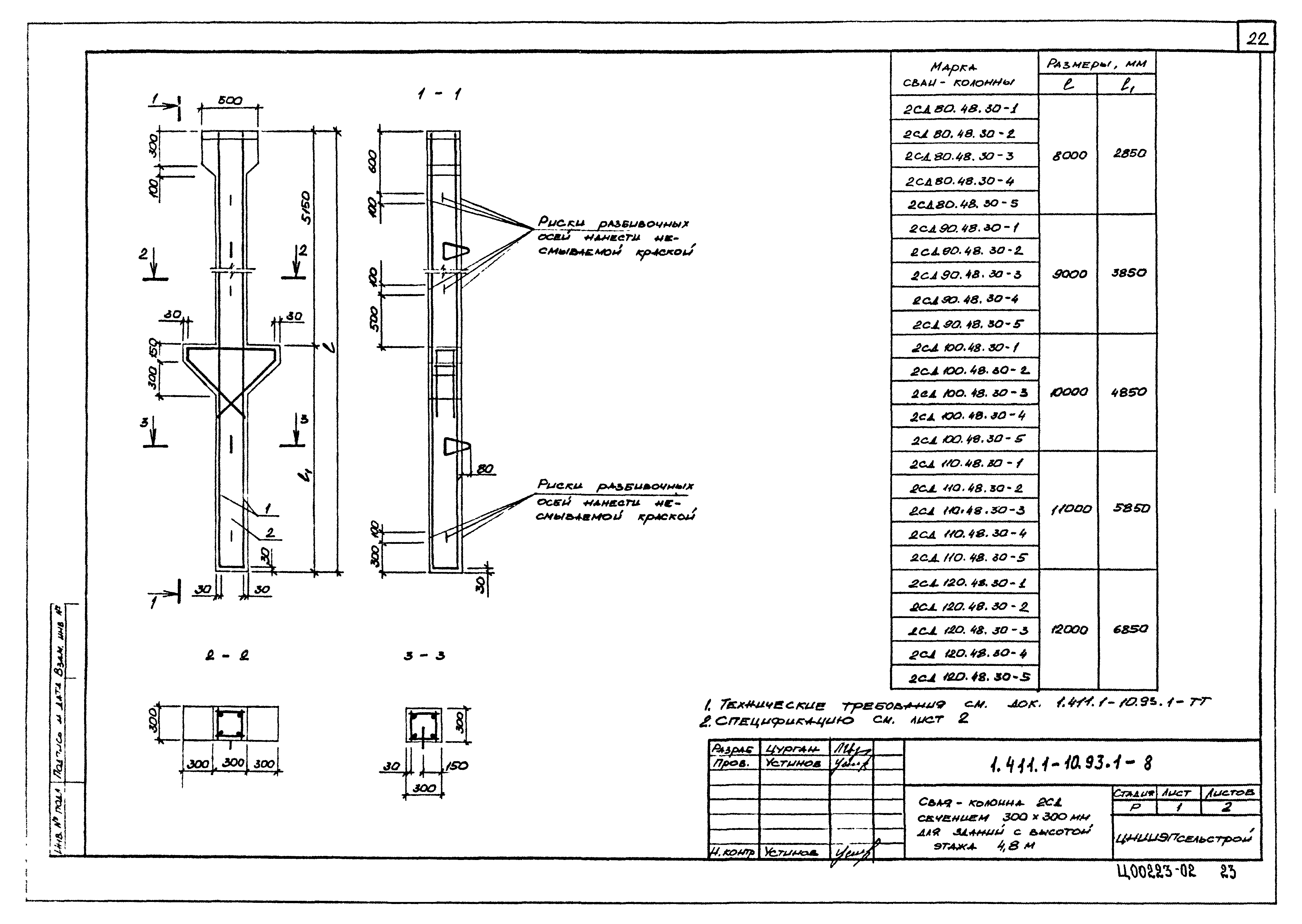
1.411.1-10.93.1-8 Свая-колонна 2СД сечением 300х300мм для зданий с высотой этажа 4,8га
1.411.1-10.93.1-9 Свая-колонна 2СД сечением 400х400мм для зданий с высотой этажа 4,8га
1.411.1-10.93.1-10 Свая-колонна 2СД сечением 300х300мм для зданий с высотой этажа 5,4га
1.411.1-10.93.1-11 Свая-колонна 2СД сечением 400х400мм для зданий с высотой этажа 5,4га
1.411.1-10.93.1-12 Свая-колонна 2СД сечением 400х400мм для зданий с высотой этажа 6,0га
1.411.1-10.93.1-13 Свая-колонна 2СД сечением 400х400мм для зданий с высотой этажа 6,6га
1.411.1-10.93.1-14 Свая-колонна 2СД сечением 400х400мм для зданий с высотой этажа 7,2га
1.411.1-10.93.1-15 Каркас 1КП1… 1КП36
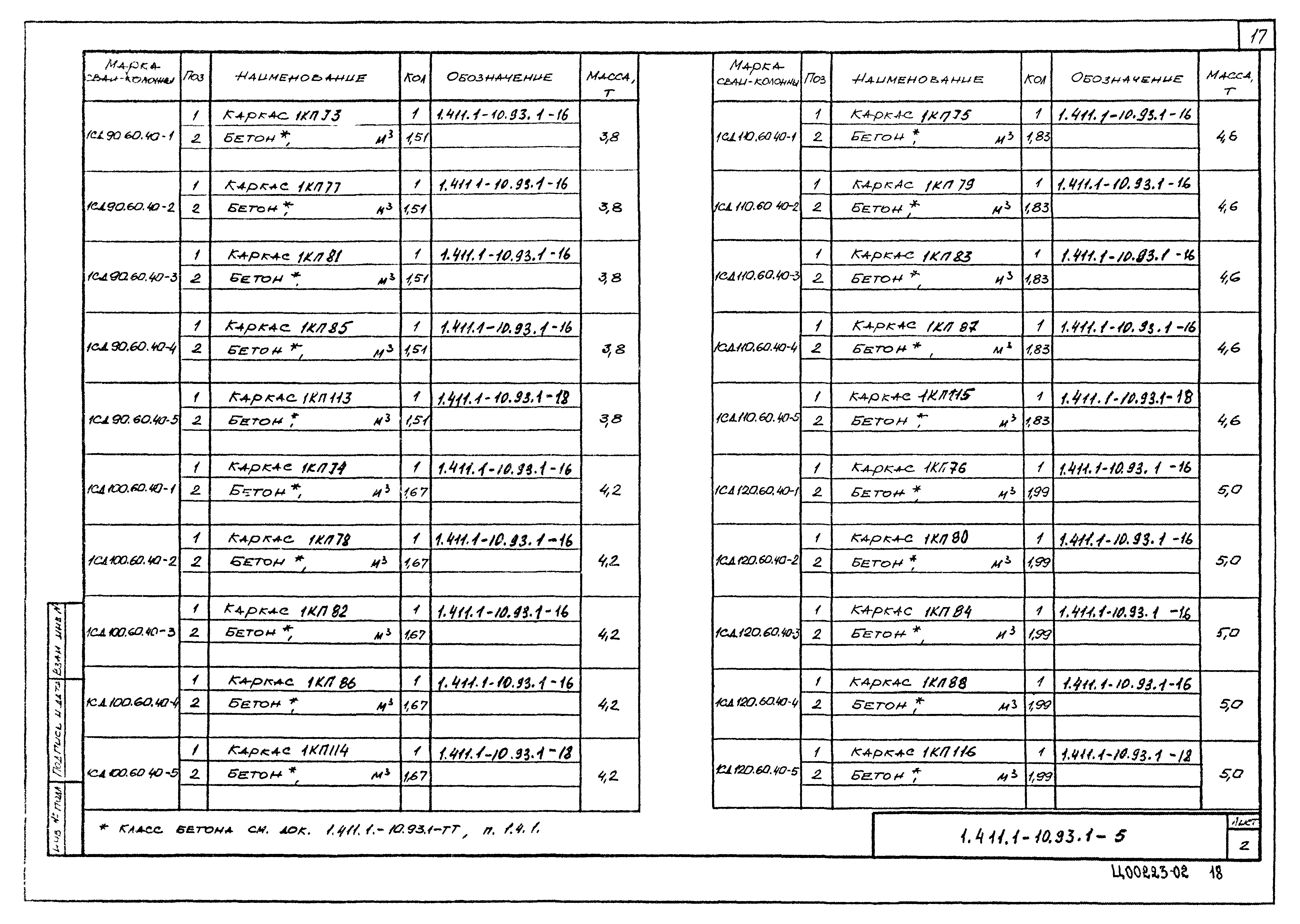
1.411.1-10.93.1-16 Каркас 1КП37… 1КП108
1.411.1-10.93.1-17 Каркас 1КП109… 1КП112
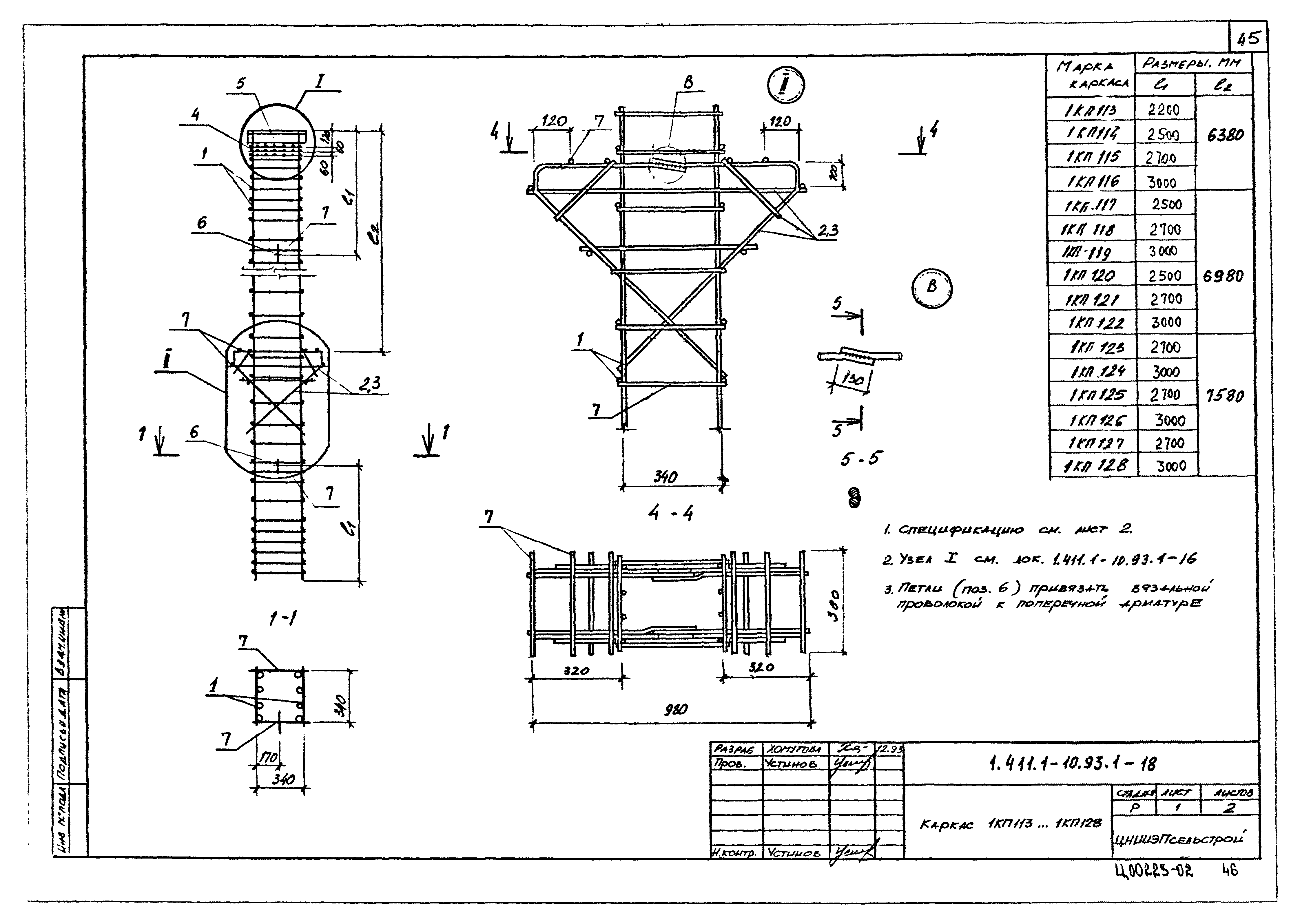
1.411.1-10.93.1-18 Каркас 1КП113… 1КП128
1.411.1-10.93.1-19 Каркас 2КП1… 2КП27
1.411.1-10.93.1-20 Каркас 2КП28… 2КП90
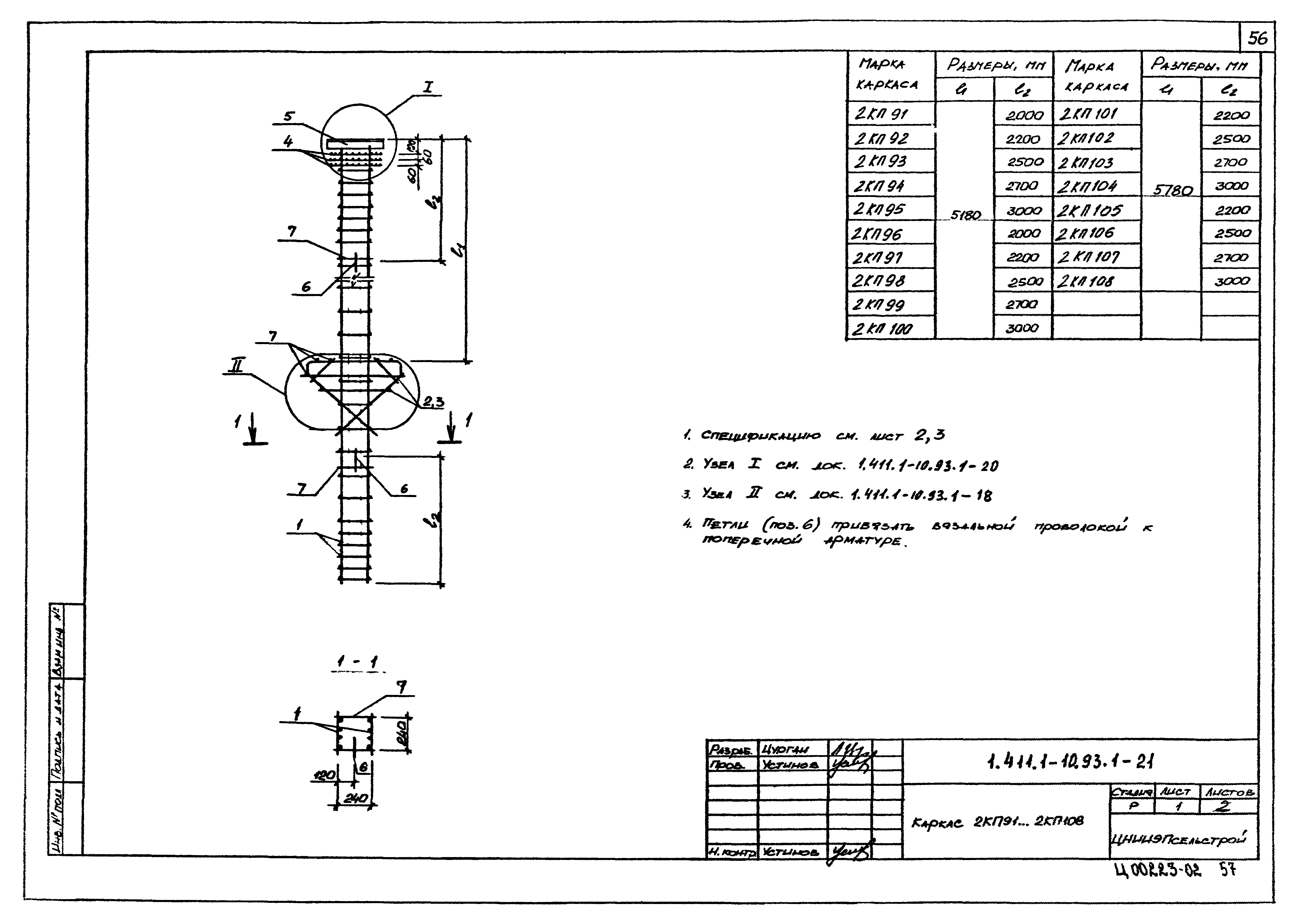
1.411.1-10.93.1-21 Каркас 2КП91… 2КП108
1.411.1-10.93.1-22 Каркас 2КП109… 2КП140
1.411.1-10.93.1-23 Каркас КР1… КР24
1.411.1-10.93.1-24 Каркас КР25… КР44
1.411.1-10.93.1-25 Каркас КР45… КР66
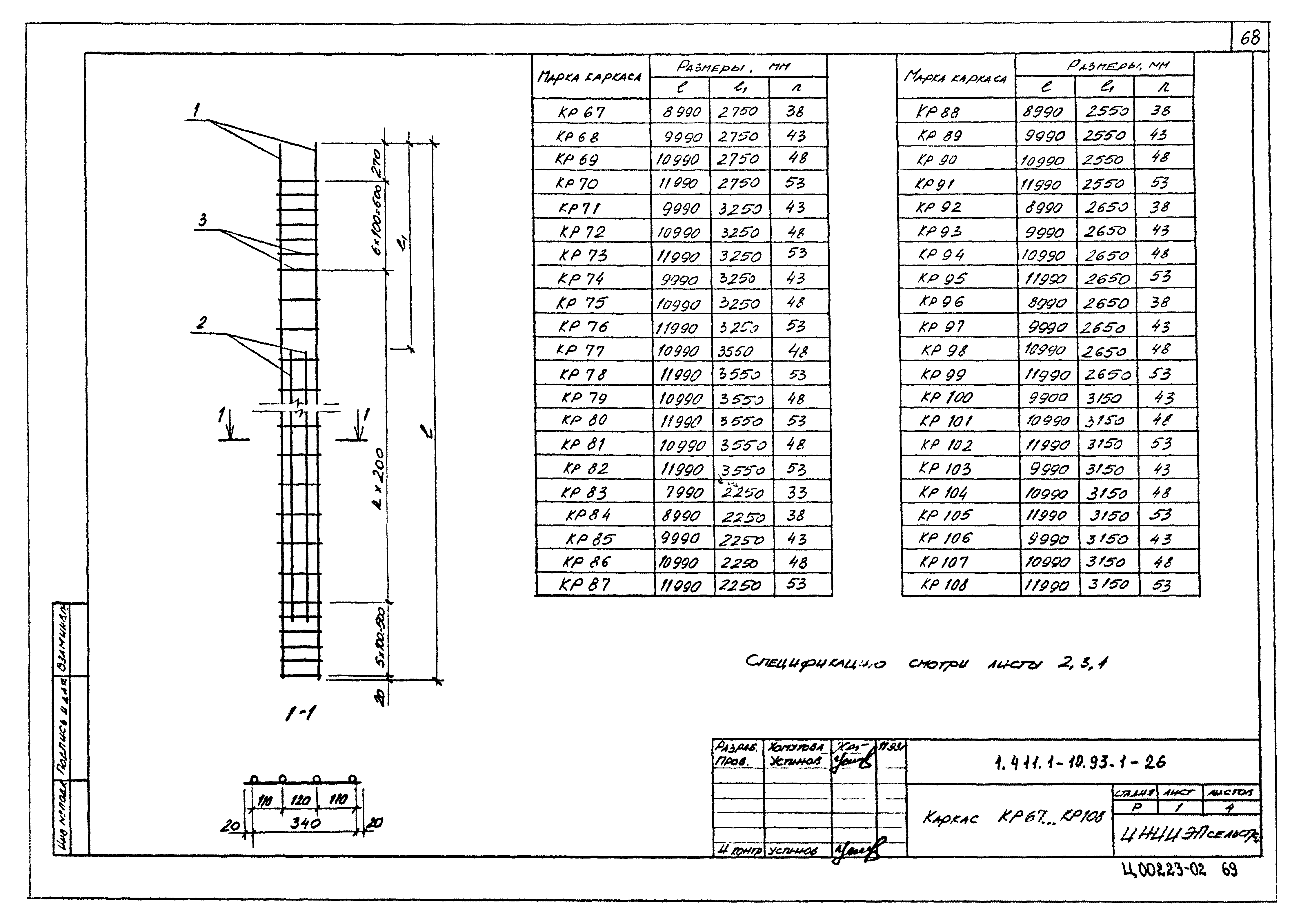
1.411.1-10.93.1-26 Каркас КР67… КР108
1.411.1-10.93.1-27 Каркас 1КР1… КР8
1.411.1-10.93.1-28 Сетка С1… С4
1.411.1-10.93.1-29 Изделие закладное МН1… МН8
1.411.1-10.93.1-РС Ведомость расхода стали, кг
Разработан: ЦНИИЭПсельстрой
Утверждён:04.02.1994 Главпроект Госстроя России (9-3-2/18)
Нормативные ссылки:
Серия 1.411.1-10.93Серия 1.411.1-10.93Серия 1.411.1-10.93Серия 1.411.1-10.93Серия 1.411.1-10.93Серия 1.411.1-10.93Серия 1.411.1-10.93Серия 1.411.1-10.93Серия 1.411.1-10.93Серия 1.411.1-10.93Серия 1.411.1-10.93Серия 1.411.1-10.93Серия 1.411.1-10.93Серия 1.411.1-10.93Серия 1.411.1-10.93Серия 1.411.1-10.93Серия 1.411.1-10.93Серия 1.411.1-10.93Серия 1.411.1-10.93Серия 1.411.1-10.93Серия 1.411.1-10.93Серия 1.411.1-10.93Серия 1.411.1-10.93Серия 1.411.1-10.93Серия 1.411.1-10.93Серия 1.411.1-10.93Серия 1.411.1-10.93Серия 1.411.1-10.93Серия 1.411.1-10.93Серия 1.411.1-10.93Серия 1.411.1-10.93Серия 1.411.1-10.93Серия 1.411.1-10.93Серия 1.411.1-10.93Серия 1.411.1-10.93Серия 1.411.1-10.93Серия 1.411.1-10.93Серия 1.411.1-10.93Серия 1.411.1-10.93Серия 1.411.1-10.93Серия 1.411.1-10.93Серия 1.411.1-10.93Серия 1.411.1-10.93Серия 1.411.1-10.93Серия 1.411.1-10.93Серия 1.411.1-10.93Серия 1.411.1-10.93Серия 1.411.1-10.93Серия 1.411.1-10.93Серия 1.411.1-10.93Серия 1.411.1-10.93Серия 1.411.1-10.93Серия 1.411.1-10.93Серия 1.411.1-10.93Серия 1.411.1-10.93Серия 1.411.1-10.93Серия 1.411.1-10.93Серия 1.411.1-10.93Серия 1.411.1-10.93Серия 1.411.1-10.93Серия 1.411.1-10.93Серия 1.411.1-10.93Серия 1.411.1-10.93Серия 1.411.1-10.93Серия 1.411.1-10.93Серия 1.411.1-10.93Серия 1.411.1-10.93Серия 1.411.1-10.93Серия 1.411.1-10.93Серия 1.411.1-10.93Серия 1.411.1-10.93Серия 1.411.1-10.93Серия 1.411.1-10.93Серия 1.411.1-10.93Серия 1.411.1-10.93Серия 1.411.1-10.93Серия 1.411.1-10.93Серия 1.411.1-10.93Серия 1.411.1-10.93Серия 1.411.1-10.93Серия 1.411.1-10.93Серия 1.411.1-10.93Серия 1.411.1-10.93Серия 1.411.1-10.93Серия 1.411.1-10.93Серия 1.411.1-10.93