Скачать Серия 1.411.1-2/91 Выпуск 5м. Фундаменты под колонны зданий для районов вечной мерзлоты. Материалы для проектирования и рабочие чертежиДата актуализации: 01.01.2021
|
| Обозначение: | Серия 1.411.1-2/91 |
| Обозначение англ: | Series 1.411.1-2/91 |
| Статус: | не определен законодательством |
| Название рус.: | Выпуск 5м. Фундаменты под колонны зданий для районов вечной мерзлоты. Материалы для проектирования и рабочие чертежи |
| Дата добавления в базу: | 01.09.2013 |
| Дата актуализации: | 01.01.2021 |
| Дата введения: | 01.03.1995 |
| Дата окончания срока действия: | 30.06.2003 |
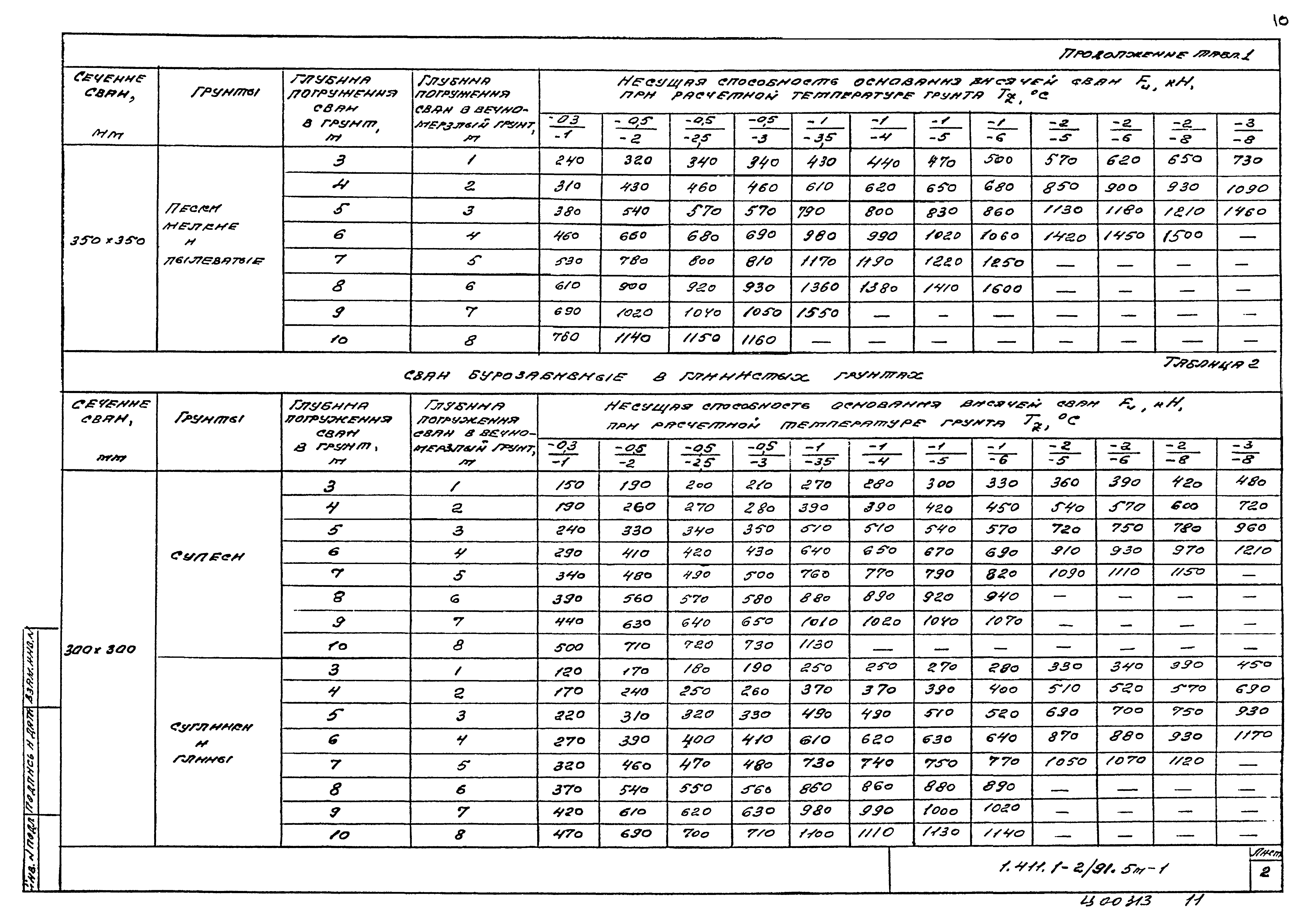
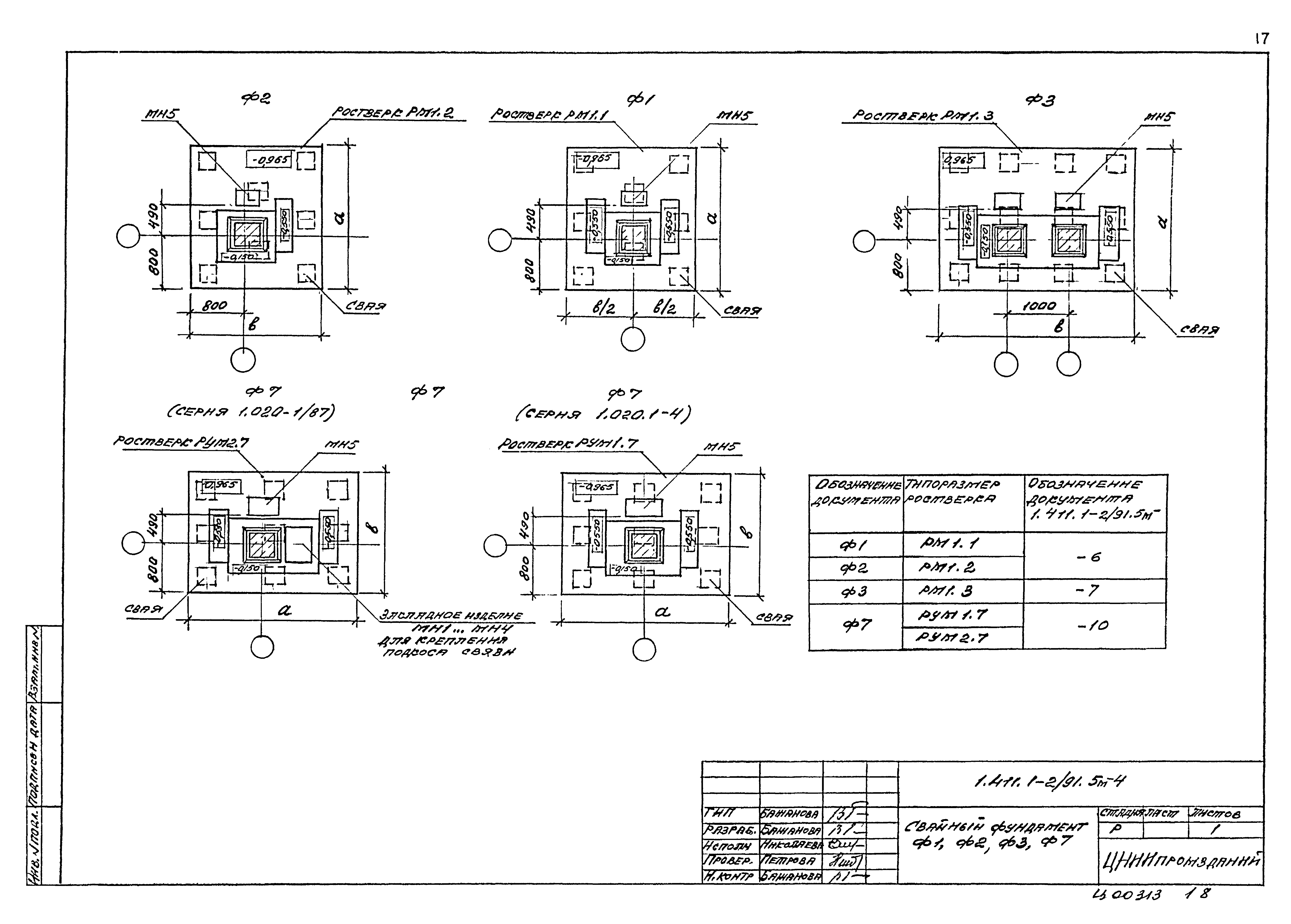
| Область применения: | Выпуск 5 м серии 1.411.1-2/91 содержит проектную документацию на свайные фундаменты под железобетонные колонны сечением 400х400 мм каркасов многоэтажных производственных зданий серии 1.020.1-4 и 1.020-1/87, возводимых на вечномерзлых грунтах |
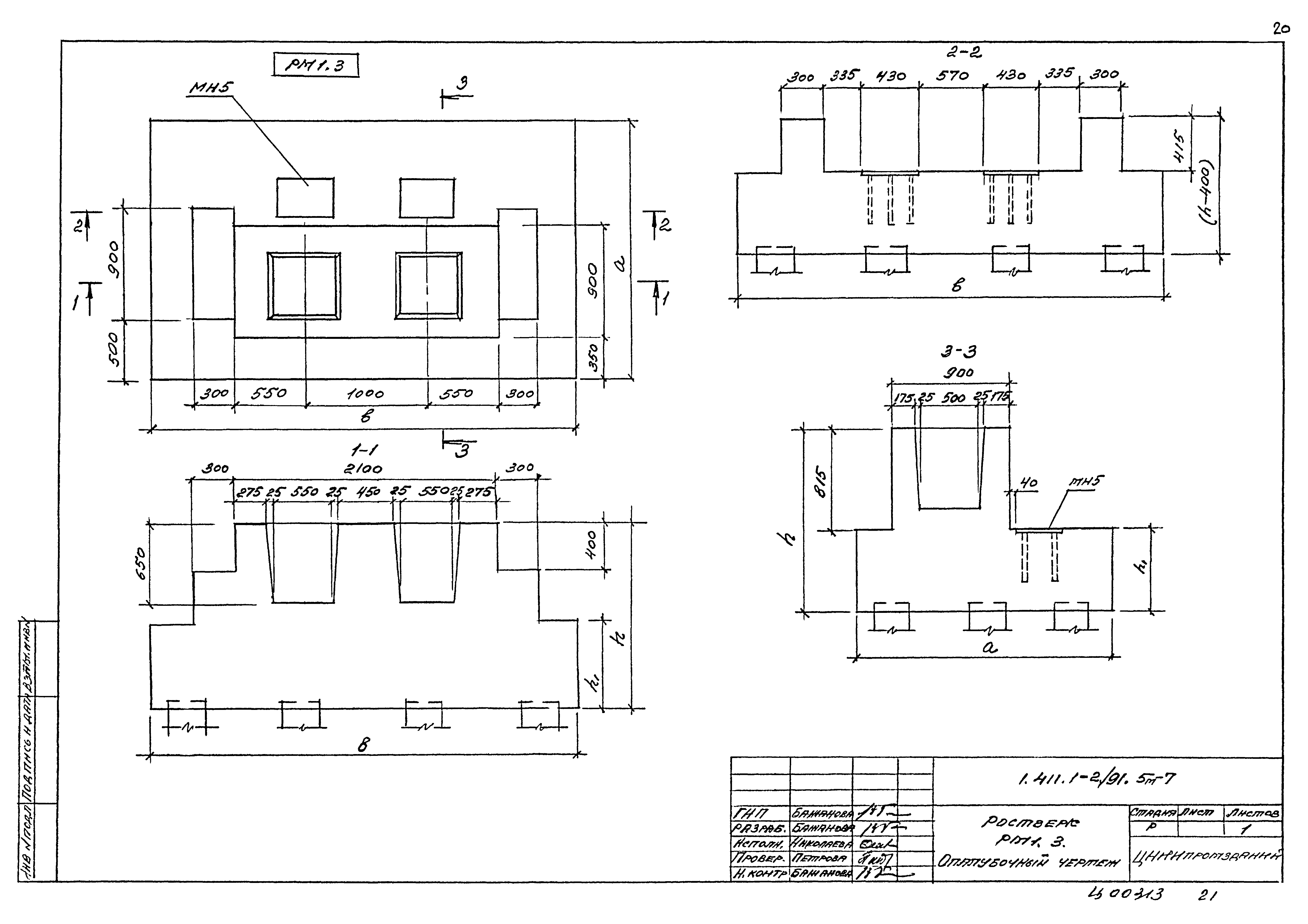
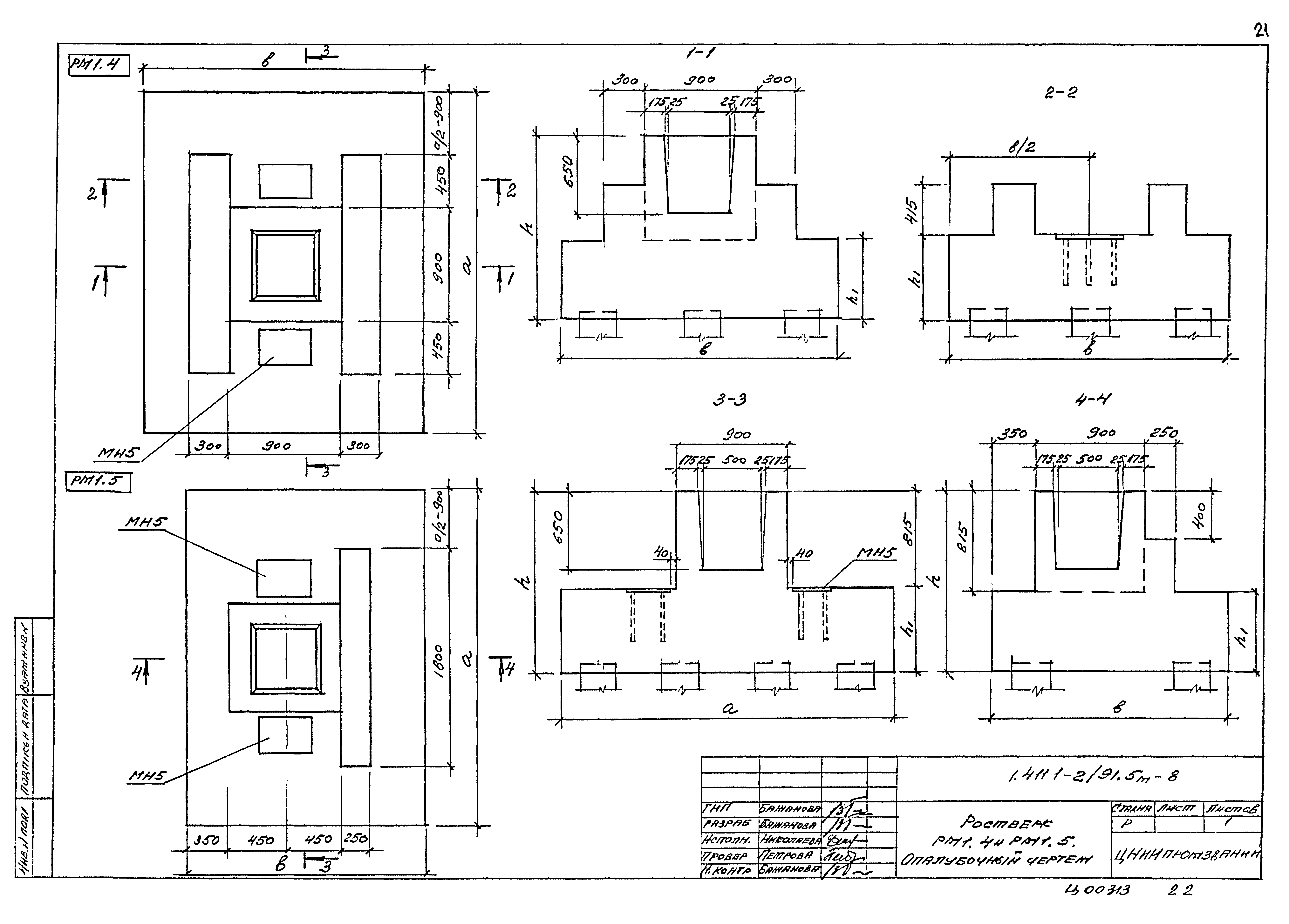
| Оглавление: | 1.411.1-2/91.5м-ПЗ Пояснительная записка 1.411.1-2/91.5м-1 Ключ для определения несущей способности свай в вечномерзлом грунте 1.411.1-2/91.5м-2 Планы и маркировка кустов свай 1.411.1-2/91.5м-3 Конструктивное решение перекрытия над холодным подпольем 1.411.1-2/91.5м-4 Свайный фундамент Ф1,Ф2,Ф3, Ф7 1.411.1-2/91.5м-5 Свайный фундамент Ф4,Ф5,Ф6, Ф8 1.411.1-2/91.5м-6 Ростверк РМ1.1н РМ2. Опалубочный чертеж 1.411.1-2/91.5м-7 Ростверк РМ1.3. Опалубочный чертеж 1.411.1-2/91.5м-8 Ростверк РМ1.4н РМ5. Опалубочный чертеж 1.411.1-2/91.5м-9 Ростверк РМ1.6. Опалубочный чертеж 1.411.1-2/91.5м-10 Ростверк РМ1.7н РМ2.7. Опалубочный чертеж 1.411.1-2/91.5м-11 Ростверк РМ1.8н РМ2.8. Опалубочный чертеж 1.411.1-2/91.5м-12 Ключ для определения опалубочных размеров ростверка 1.411.1-2/91.5м-13 Сетка С1-5 1.411.1-2/91.5м-14 Сетка С1-6 1.411.1-2/91.5м-1 Изделие закладное МИ5 |
| Разработан: | ЦНИИпромзданий |
| Утверждён: | 03.11.1994 Главпроект Минстроя России (9-3-2/155) |
| Нормативные ссылки: |
|


































