Скачать Серия 1.412.1-8 Выпуск 0. Материалы для проектирования и чертежи-заготовкиДата актуализации: 01.01.2021
|
| Обозначение: | Серия 1.412.1-8 |
| Обозначение англ: | Series 1.412.1-8 |
| Статус: | не определен законодательством |
| Название рус.: | Выпуск 0. Материалы для проектирования и чертежи-заготовки |
| Дата добавления в базу: | 01.09.2013 |
| Дата актуализации: | 01.01.2021 |
| Дата введения: | 01.09.1989 |
| Дата окончания срока действия: | 30.06.2003 |
| Область применения: | Серия 1.412.1-8 содержит указания по применению и материалы для проектирования железобетонных монолитных фундаментов на свайном основании под колонны фахверка перегородок панельных зданий промышленных и сельскохозяйственных предприятий, серии 1.030.9-2 |
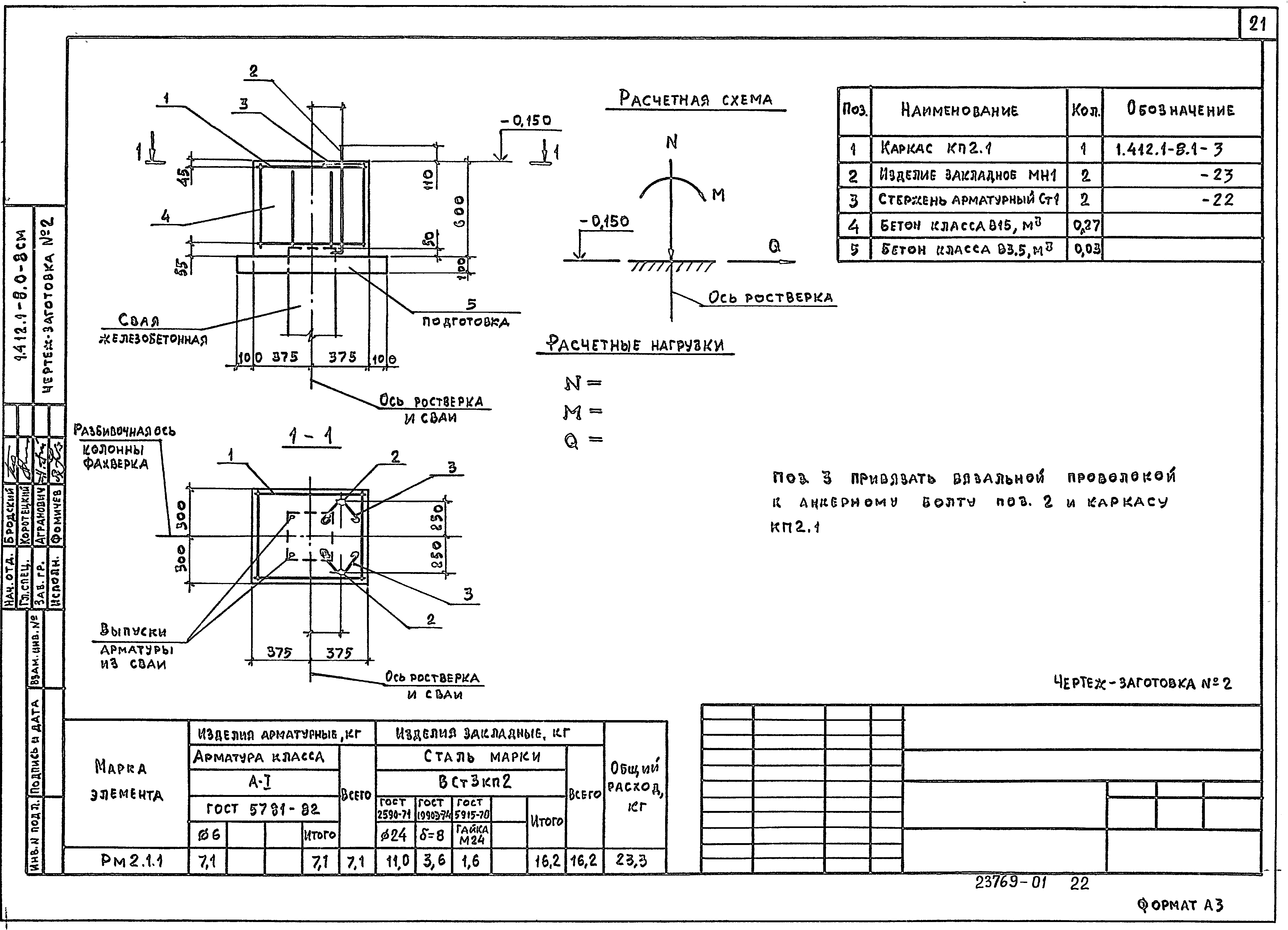
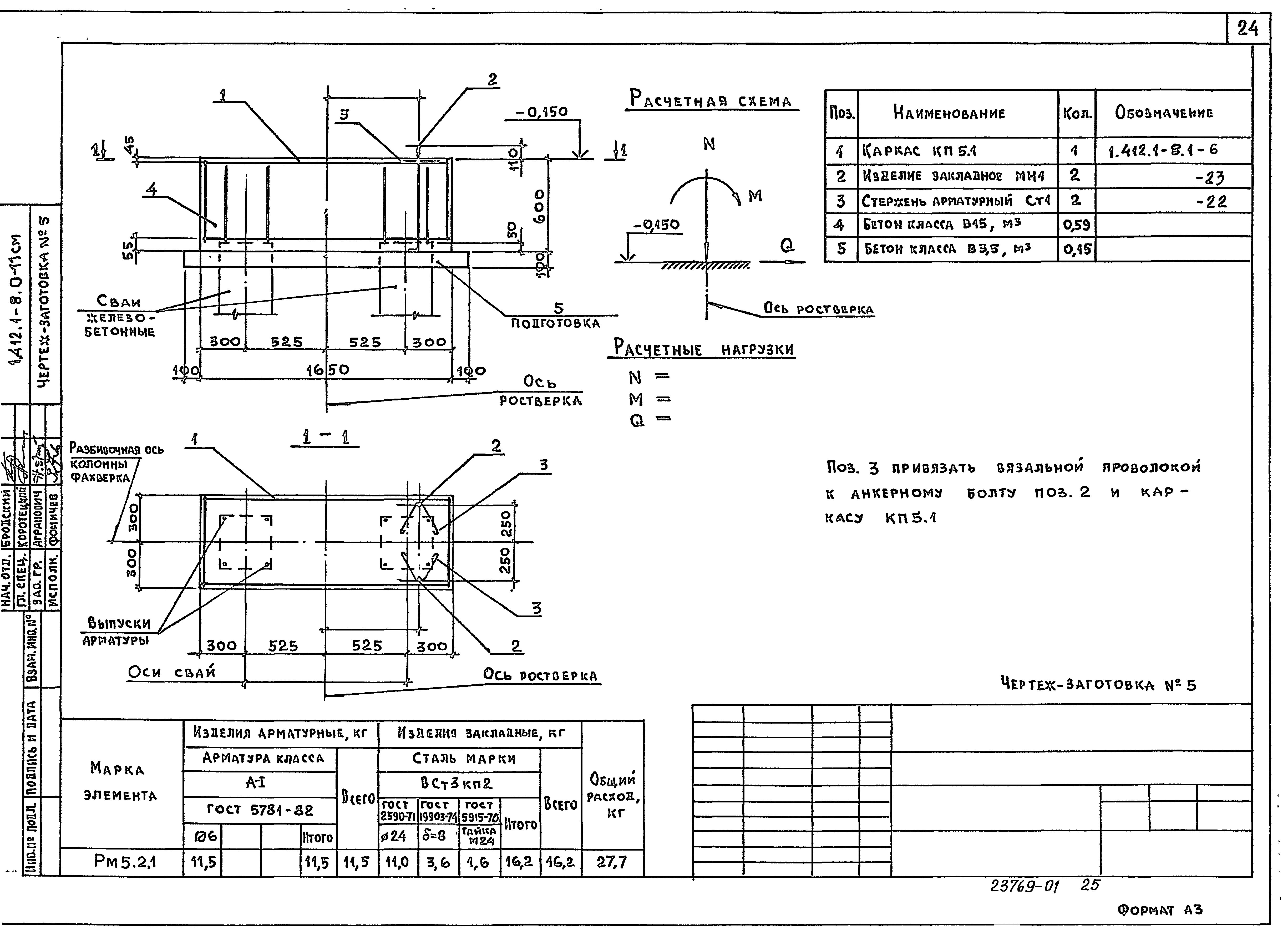
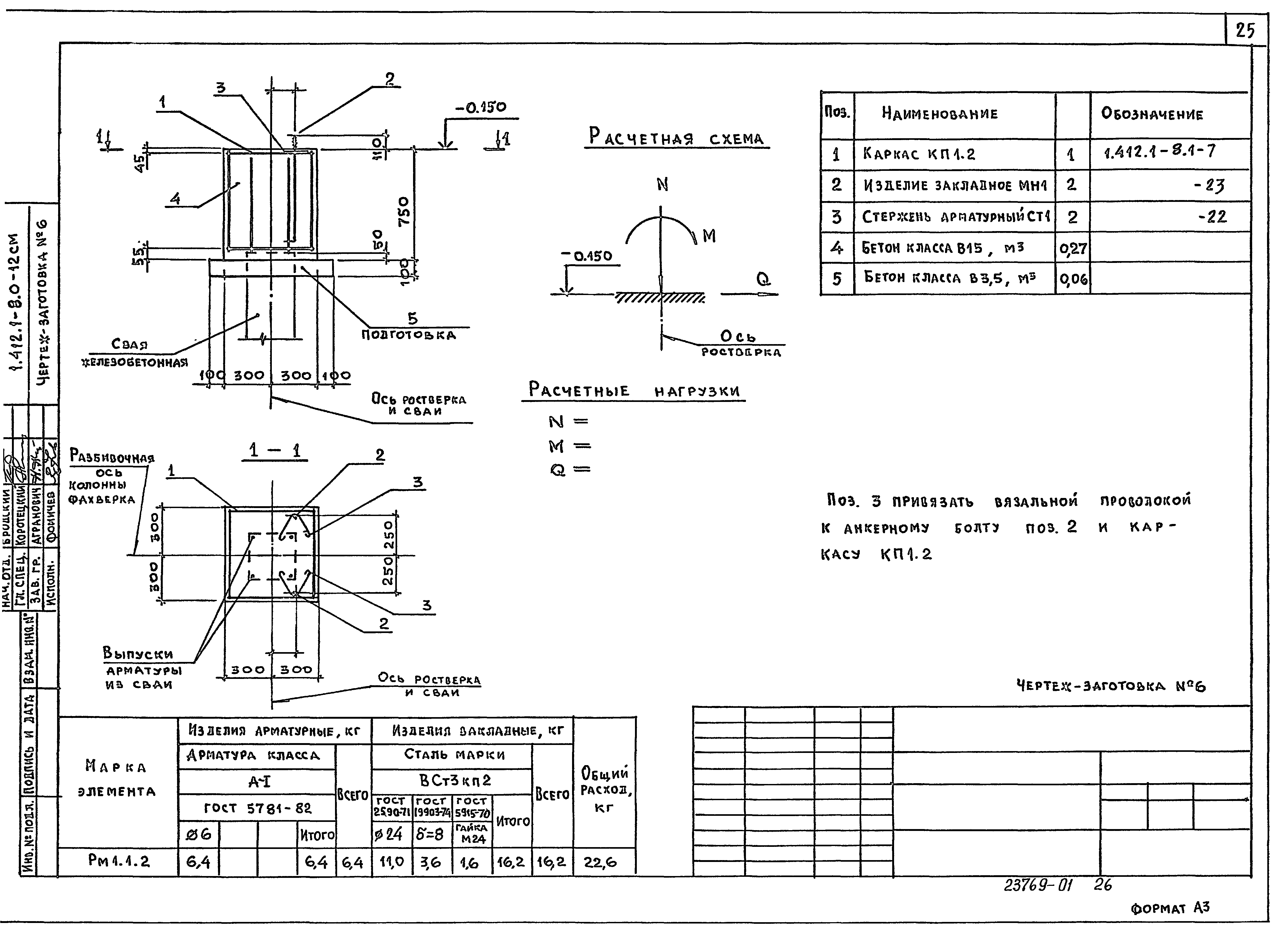
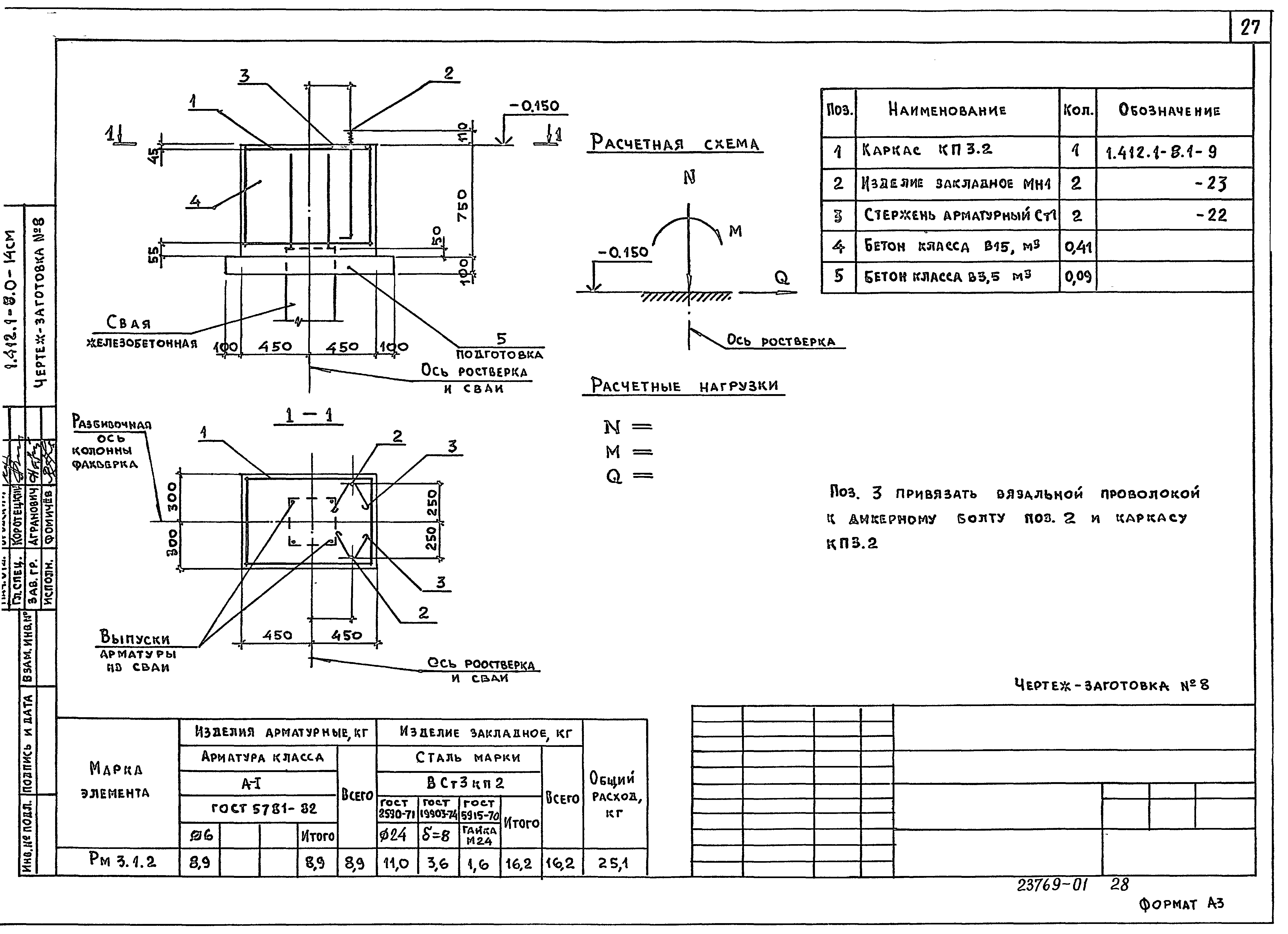
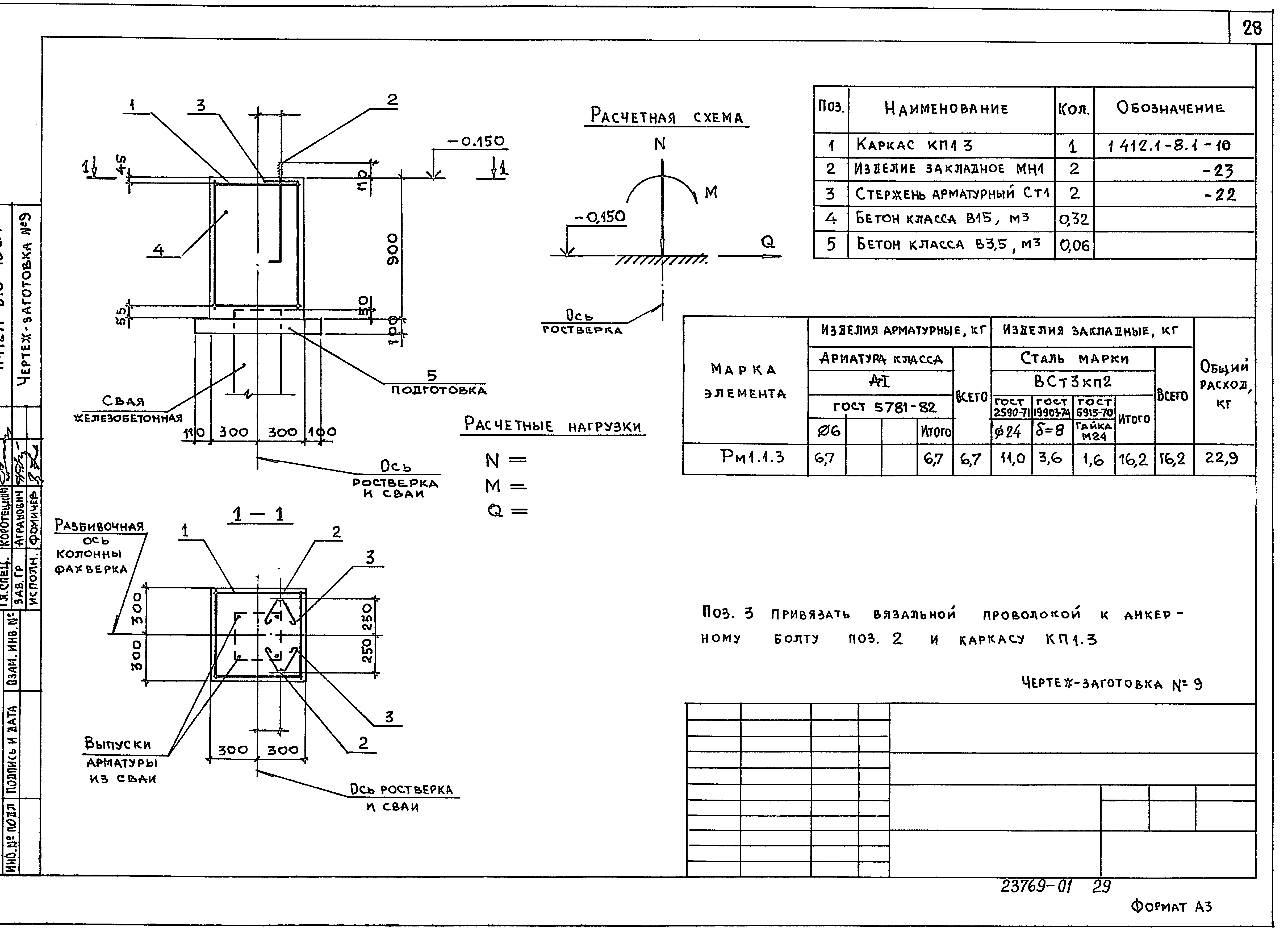
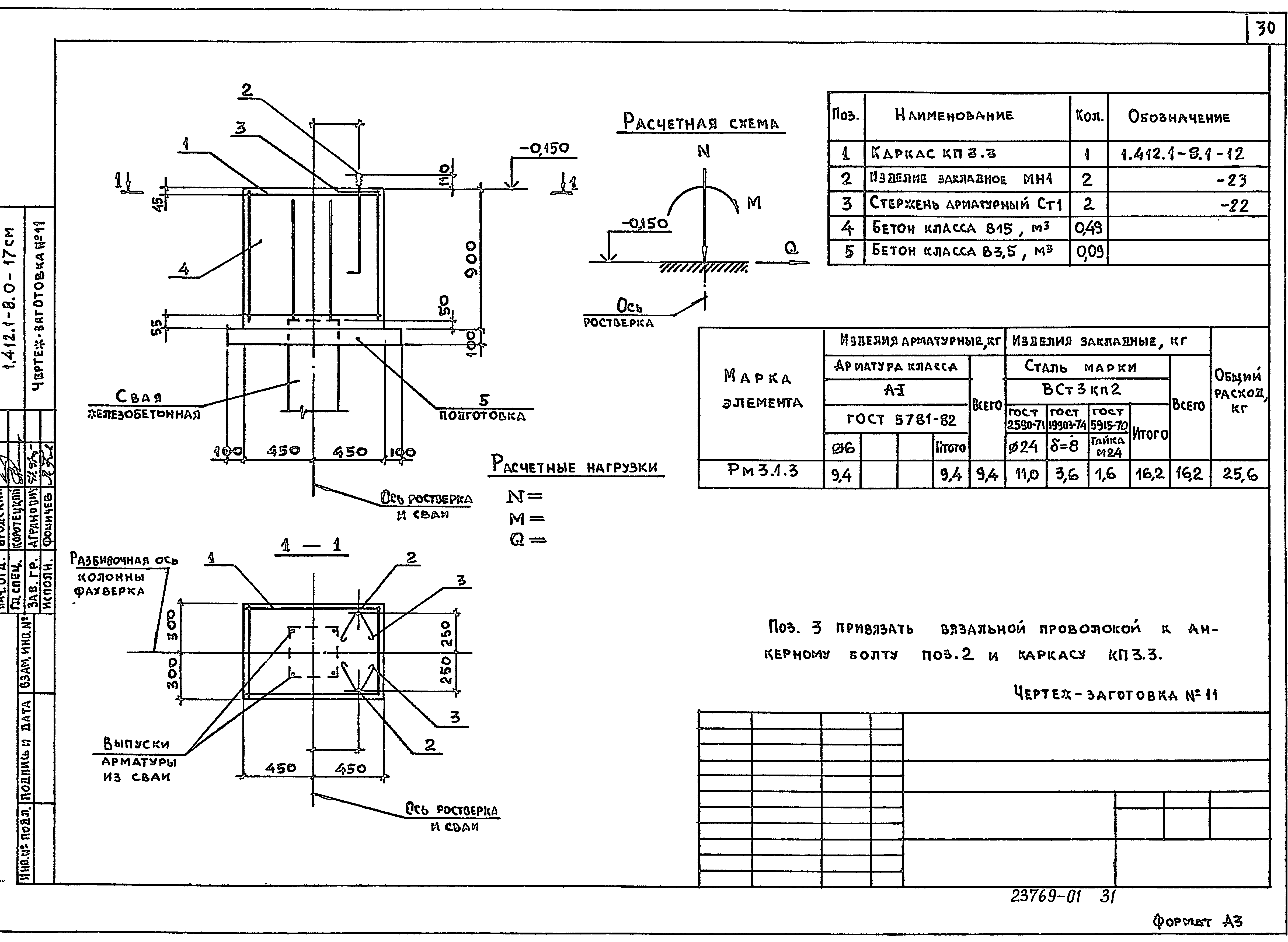
| Оглавление: | 1.412.1-8.2-1 ПЗ Пояснительная записка 1.412.1-8.2-2 СМ Пример подбора и доработки ростверка 1.412.1-8.2-3 НИ Номенклатура монолитных ростверков 1.412.1-8.2-4 СМ График №1 1.412.1-8.2-5 СМ График №2 1.412.1-8.2-6 СМ График №3 1.412.1-8.2-7 СМ Чертеж заготовка №1 1.412.1-8.2-8 СМ Чертеж заготовка №2 1.412.1-8.2-9 СМ Чертеж заготовка №3 1.412.1-8.2-10 СМ Чертеж заготовка №4 1.412.1-8.2-11 СМ Чертеж заготовка №5 1.412.1-8.2-12 СМ Чертеж заготовка №6 1.412.1-8.2-13 СМ Чертеж заготовка №7 1.412.1-8.2-14 СМ Чертеж заготовка №8 1.412.1-8.2-15 СМ Чертеж заготовка №9 1.412.1-8.2-16 СМ Чертеж заготовка №10 1.412.1-8.2-17 СМ Чертеж заготовка №11 1.412.1-8.2-7 ТБ Таблица заголовков для подбора ростверков |
| Разработан: | Харьковский Промстройниипроект |
| Утверждён: | 25.05.1988 Госстрой СССР (Государственный комитет Совета Министров СССР по делам строительства) (USSR Gosstroy 6/6-1087) |
| Нормативные ссылки: |
|
































