Скачать Серия 1.812.1-3 Выпуск 0. Материалы для проектированияДата актуализации: 01.01.2021
|
| Обозначение: | Серия 1.812.1-3 |
| Обозначение англ: | Series 1.812.1-3 |
| Статус: | не определен законодательством |
| Название рус.: | Выпуск 0. Материалы для проектирования |
| Дата добавления в базу: | 01.09.2013 |
| Дата актуализации: | 01.01.2021 |
| Дата введения: | 01.04.1984 |
| Дата окончания срока действия: | 30.06.2003 |
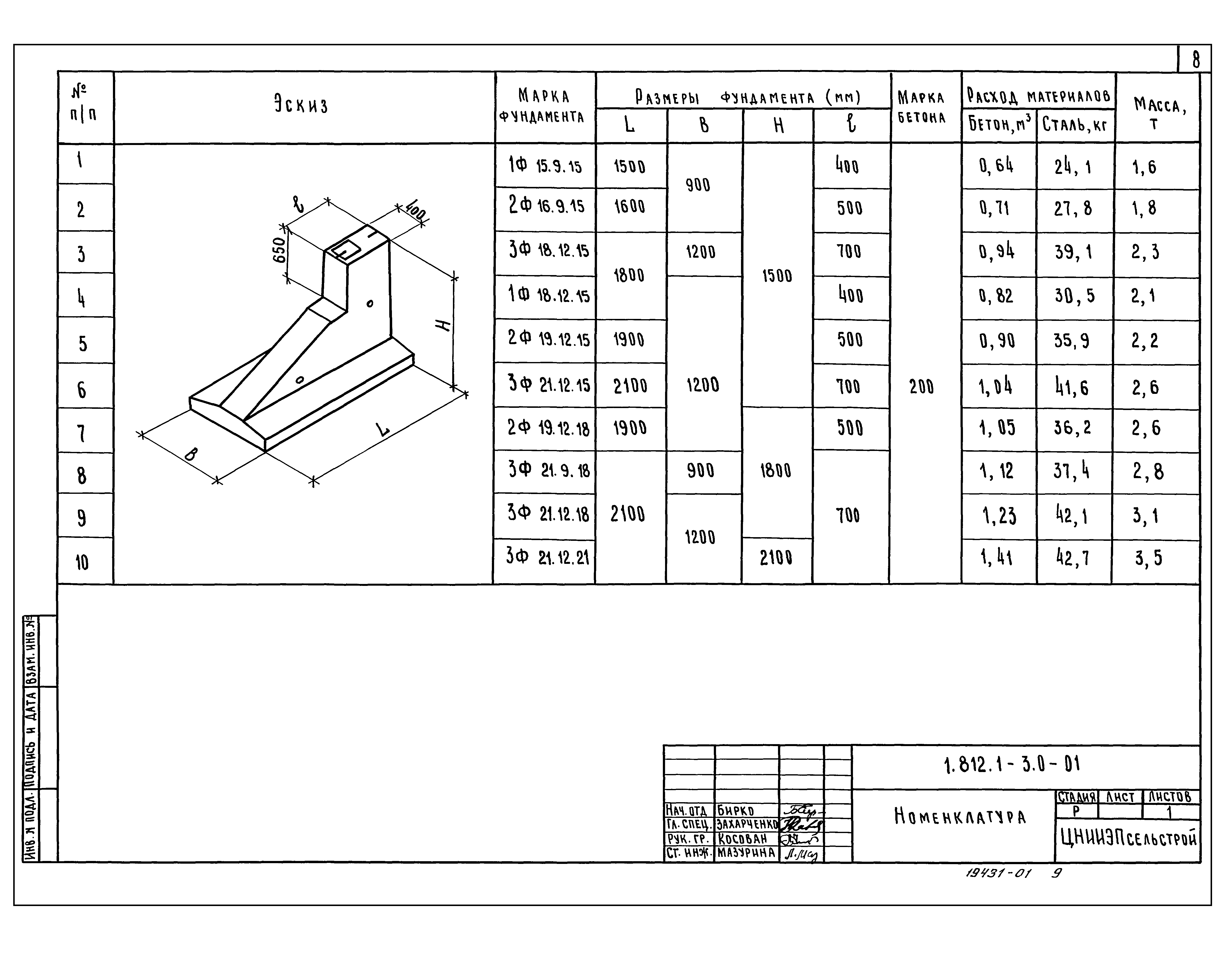
| Область применения: | Настоящая серия 1.812.1-3 содержит материалы для проектирования, рабочие чертежи сборных железобетонных фундаментов и арматурных изделий, предназначенных под типовые конструкции деревянных трехшарнирных рам для однопролетных сельскохозяйственных зданий пролетами 12, 18 и 21 м по сериям 1.822-1 и 1.822.5-4 |
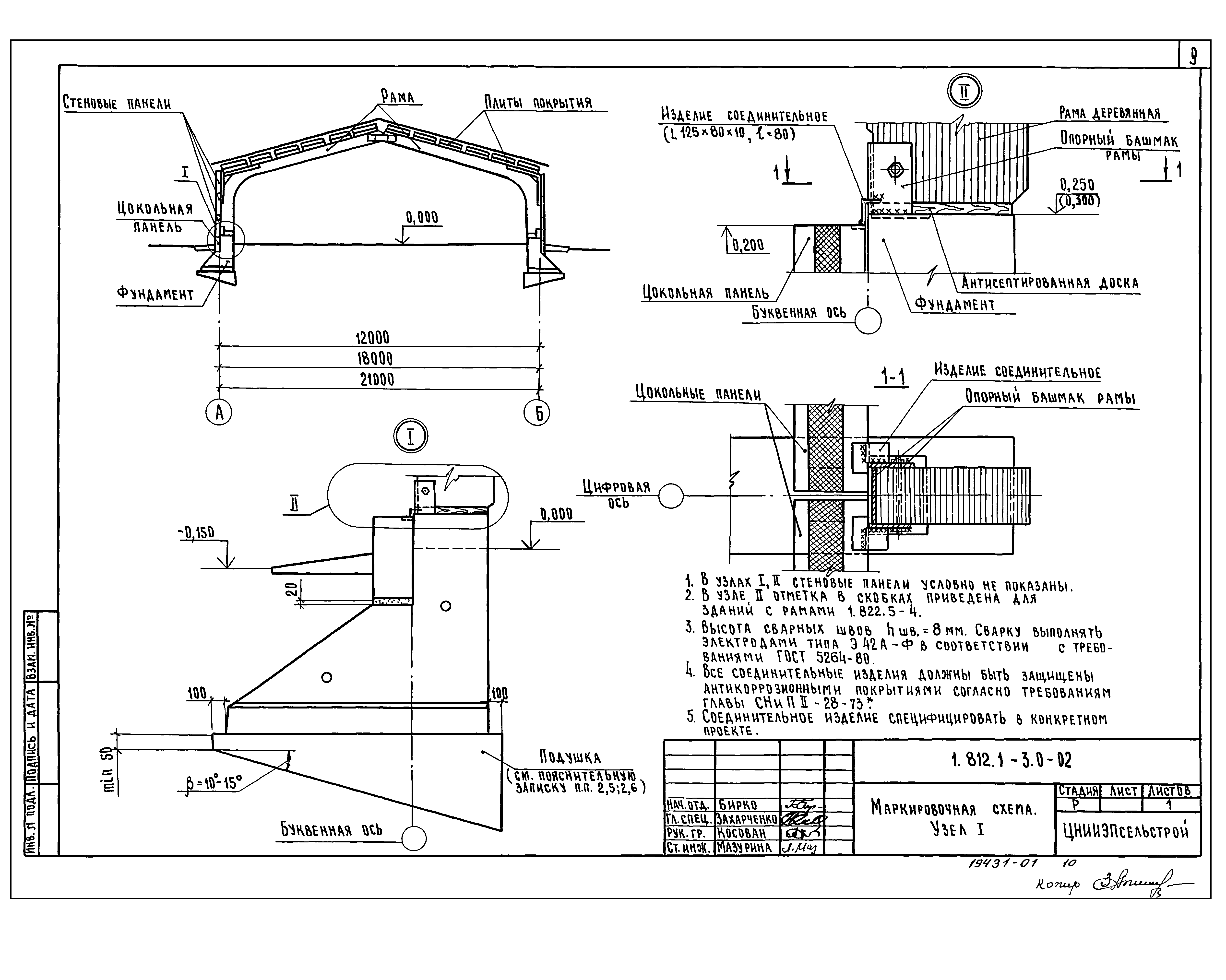
| Оглавление: | 1.812.1-3.0-00 ПЗ Пояснительная записка 1.812.1-3.0-01 Номенклатура 1.812.1-3.0-02 Маркировочная схема. Узел I 1.812.1-3.0-03 Фундаменты 1Ф15.9.15; 1Ф18.12.15. Графики для подбора 1.812.1-3.0-04 Фундаменты 2Ф16.9.15; 2Ф19.12.15. Графики для подбора 1.812.1-3.0-05 Фундаменты 2Ф19.12.18; 3Ф18.12.15. Графики для подбора 1.812.1-3.0-06 Фундаменты 3Ф21.12.15. Графики для подбора 1.812.1-3.0-07 Фундаменты 3Ф21.9.18. Графики для подбора 1.812.1-3.0-08 Фундаменты 3Ф21.12.18. Графики для подбора 1.812.1-3.0-09 Фундаменты 3Ф21.12.21. Графики для подбора |
| Разработан: | НИИЖБ Госстроя СССР НИИОСП им. Герсеванова Госстроя России ЦНИИЭПсельстрой |
| Утверждён: | 20.12.1983 Госстрой СССР (Государственный комитет Совета Министров СССР по делам строительства) (USSR Gosstroy ВА-79) |
| Нормативные ссылки: |
|
















