Скачать Серия 1.117.1-15пв Выпуск 0. Материалы для проектирования. Указания по изготовлению панелей. Узлы панелейДата актуализации: 01.01.2021
|
| Обозначение: | Серия 1.117.1-15пв |
| Обозначение англ: | Series 1.117.1-15пв |
| Статус: | действует |
| Название рус.: | Выпуск 0. Материалы для проектирования. Указания по изготовлению панелей. Узлы панелей |
| Дата добавления в базу: | 01.09.2013 |
| Дата актуализации: | 01.01.2021 |
| Дата введения: | 20.12.1985 |
| Область применения: | Рабочие чертежи панелей наружных цокольных стен легкобетонные однослойные для крупнопанельных жилых зданий с шагом поперечных стен 3,0 и 3,6 м и высотой подполья 1,8 м (унифицированные для сложных условий строительства: неравномерно сжимаемые грунты, просадочные грунты, подрабатываемые территории), разработаны для 5 - 9 - этажных жилых зданий на ленточных фундаментах |
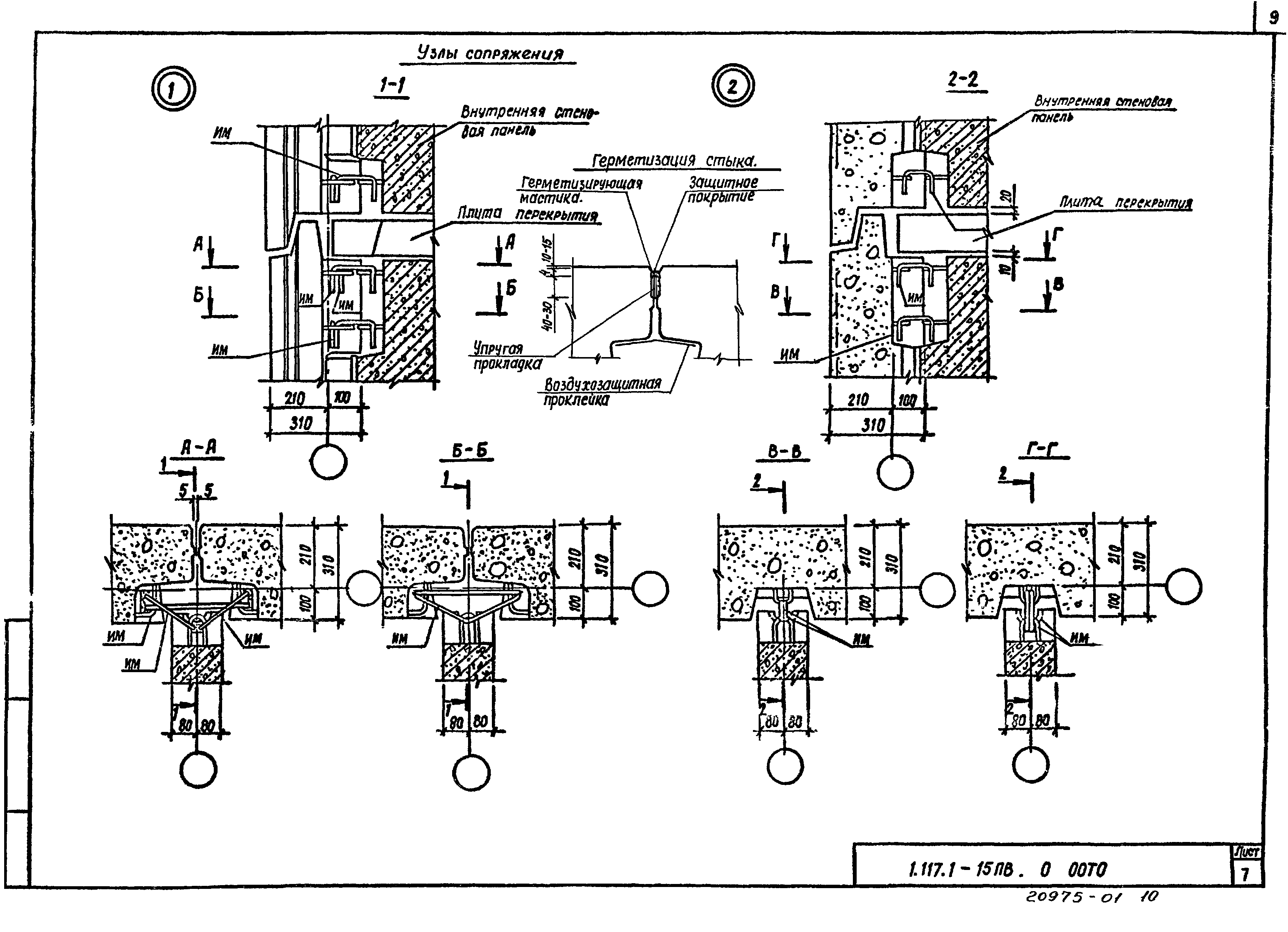
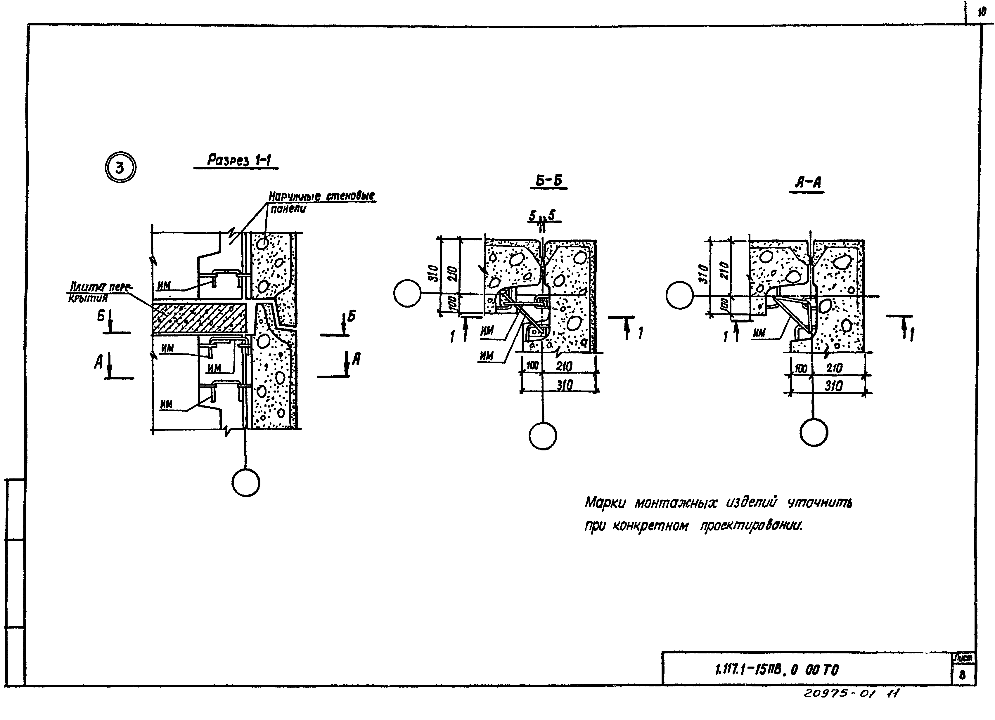
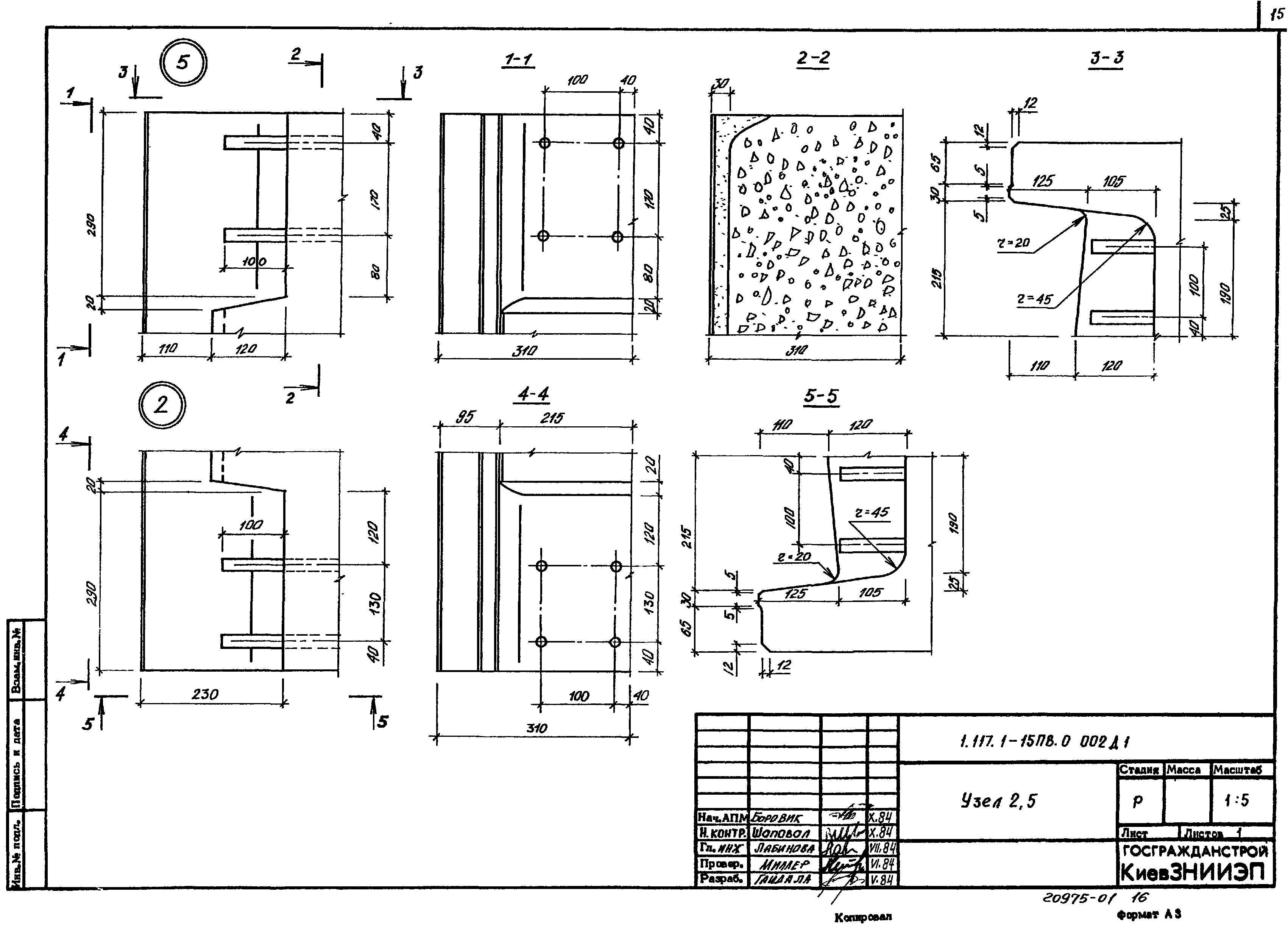
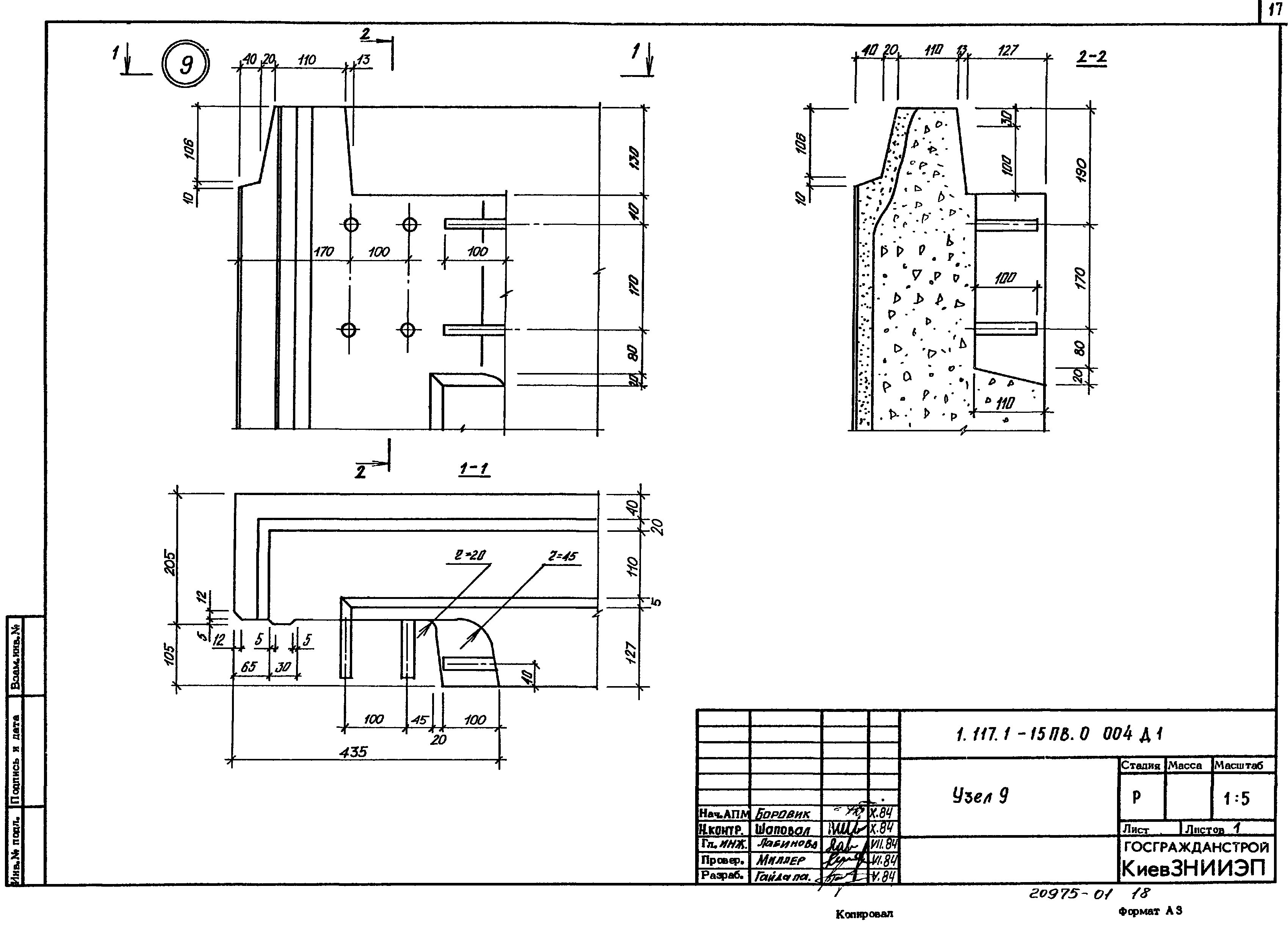
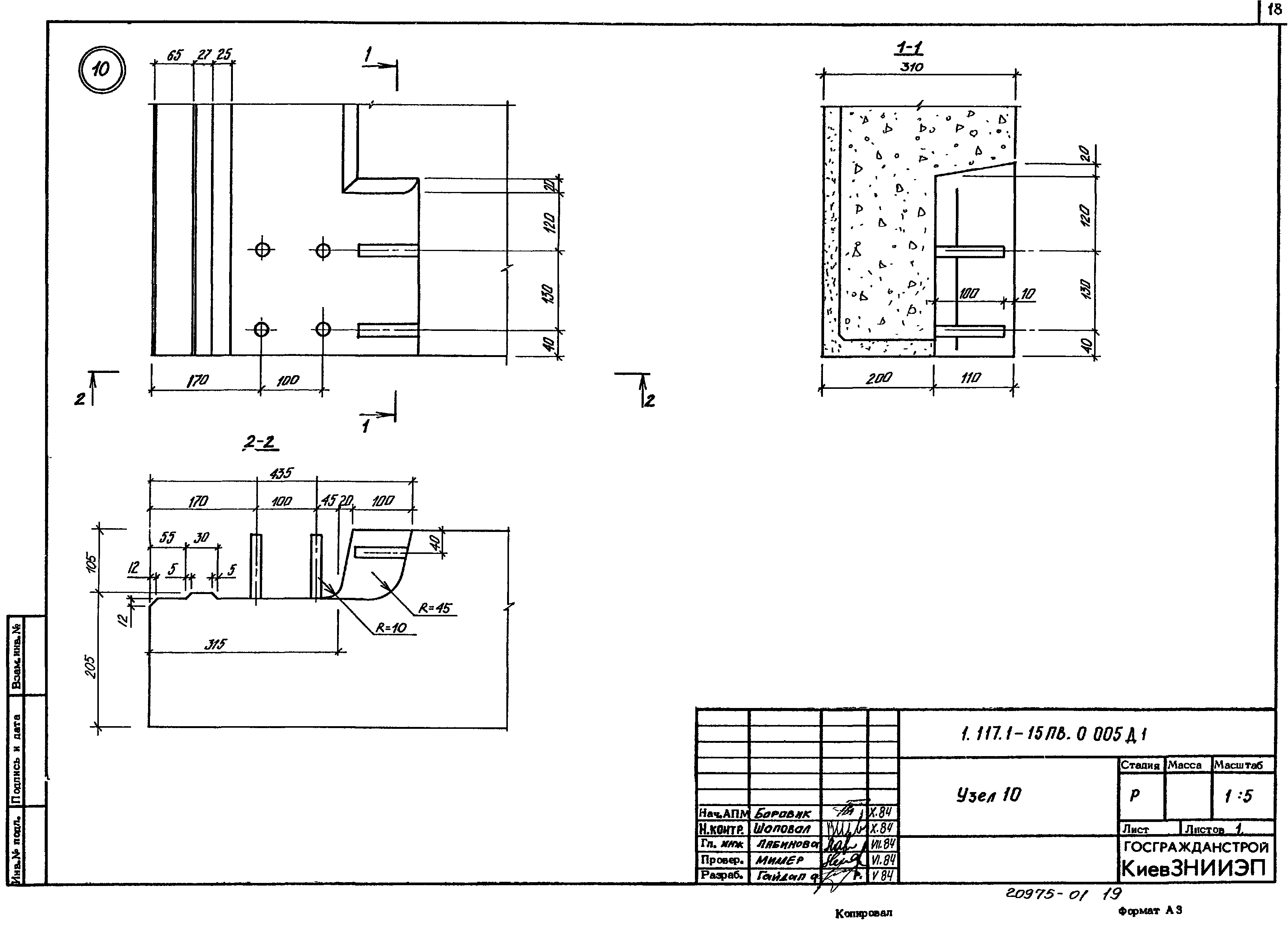
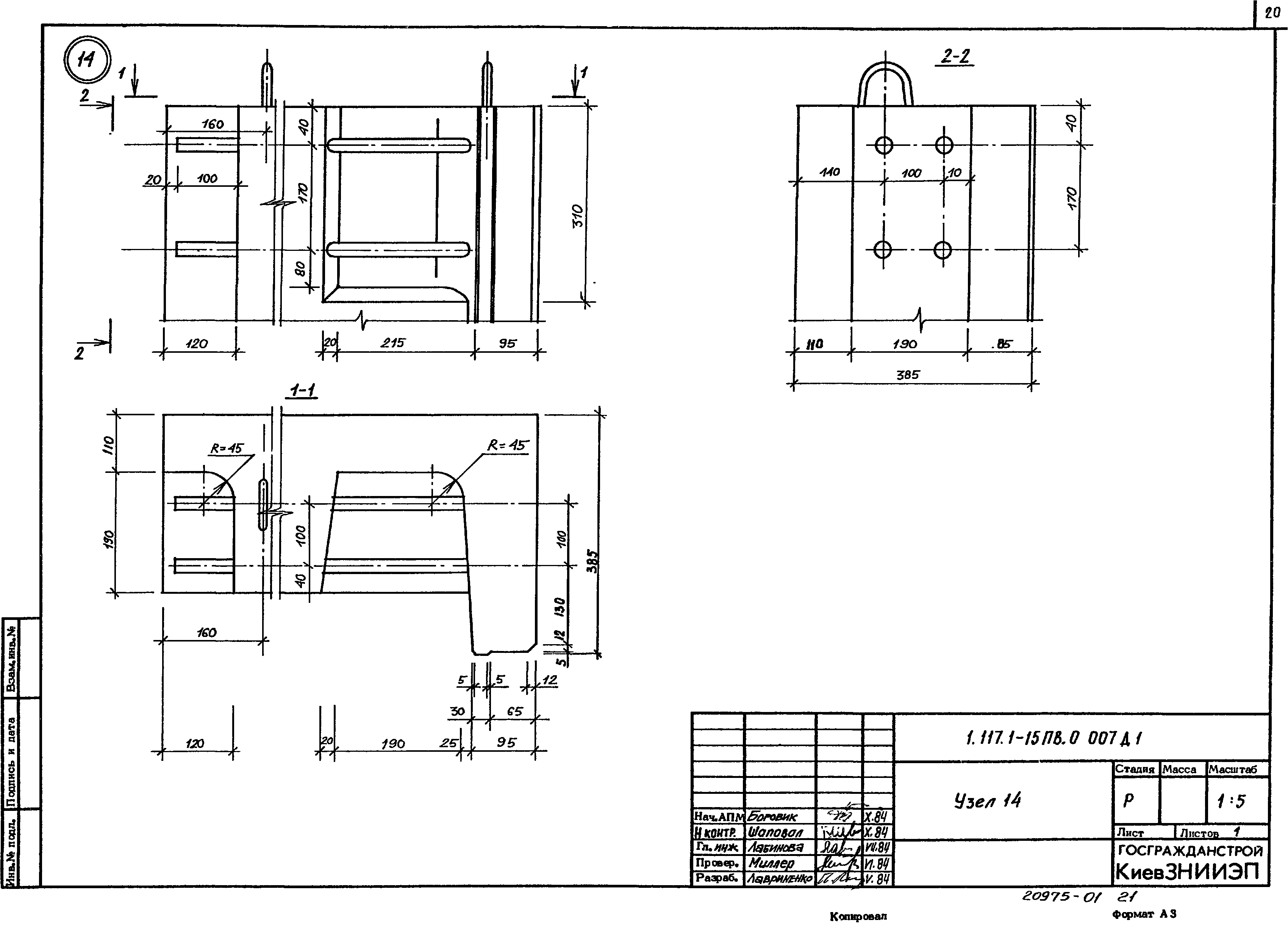
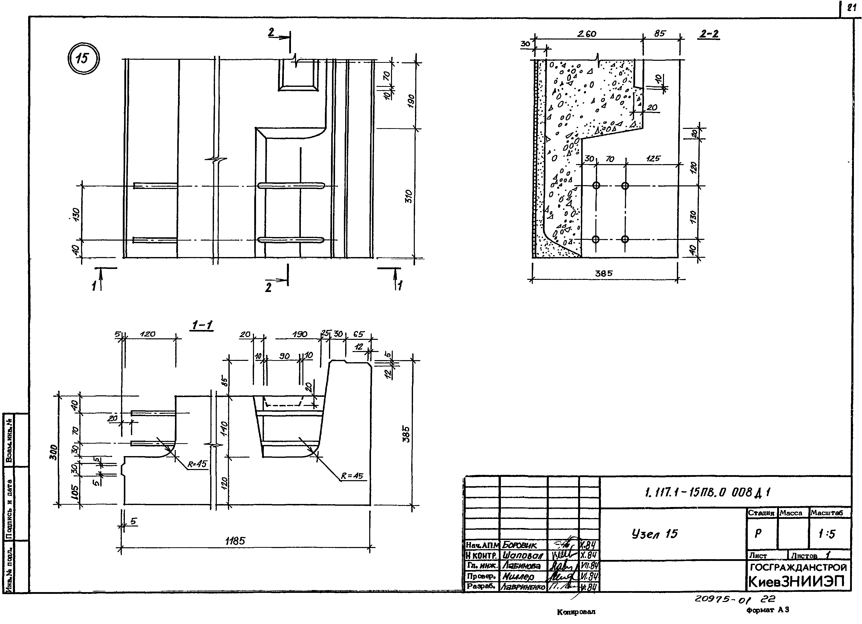
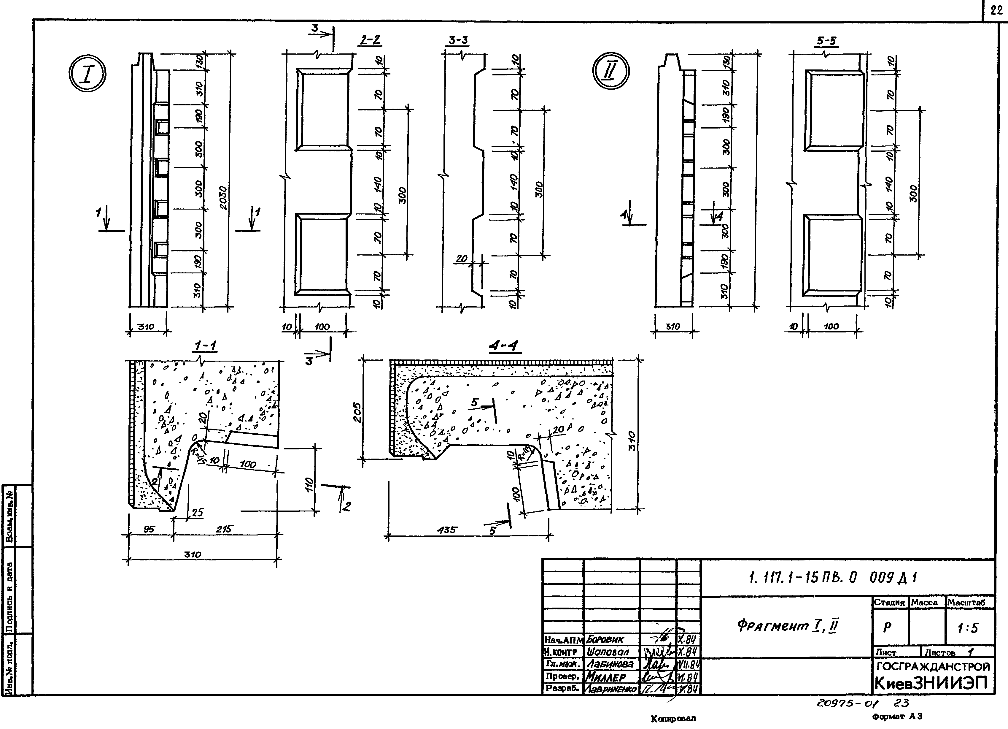
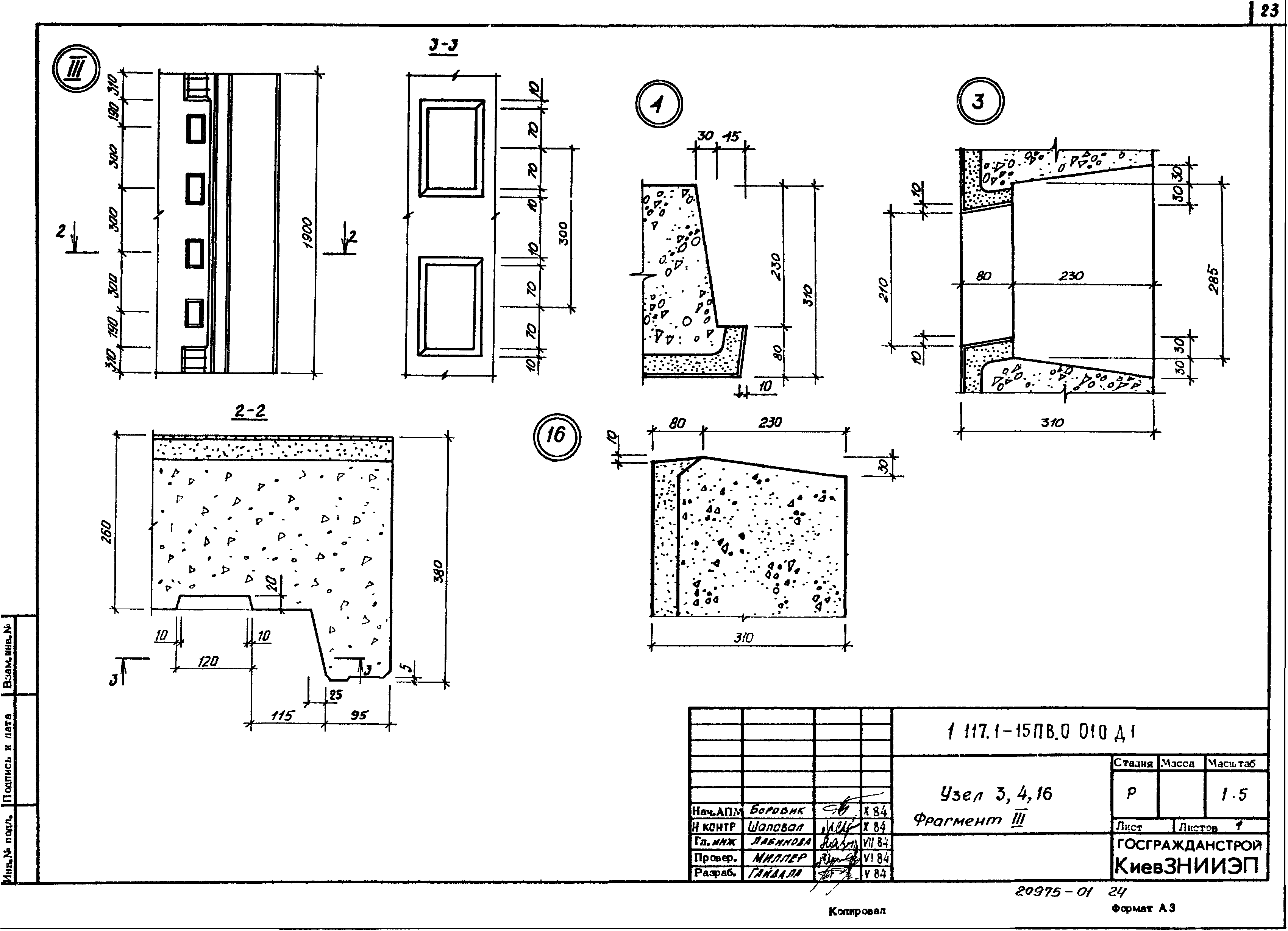
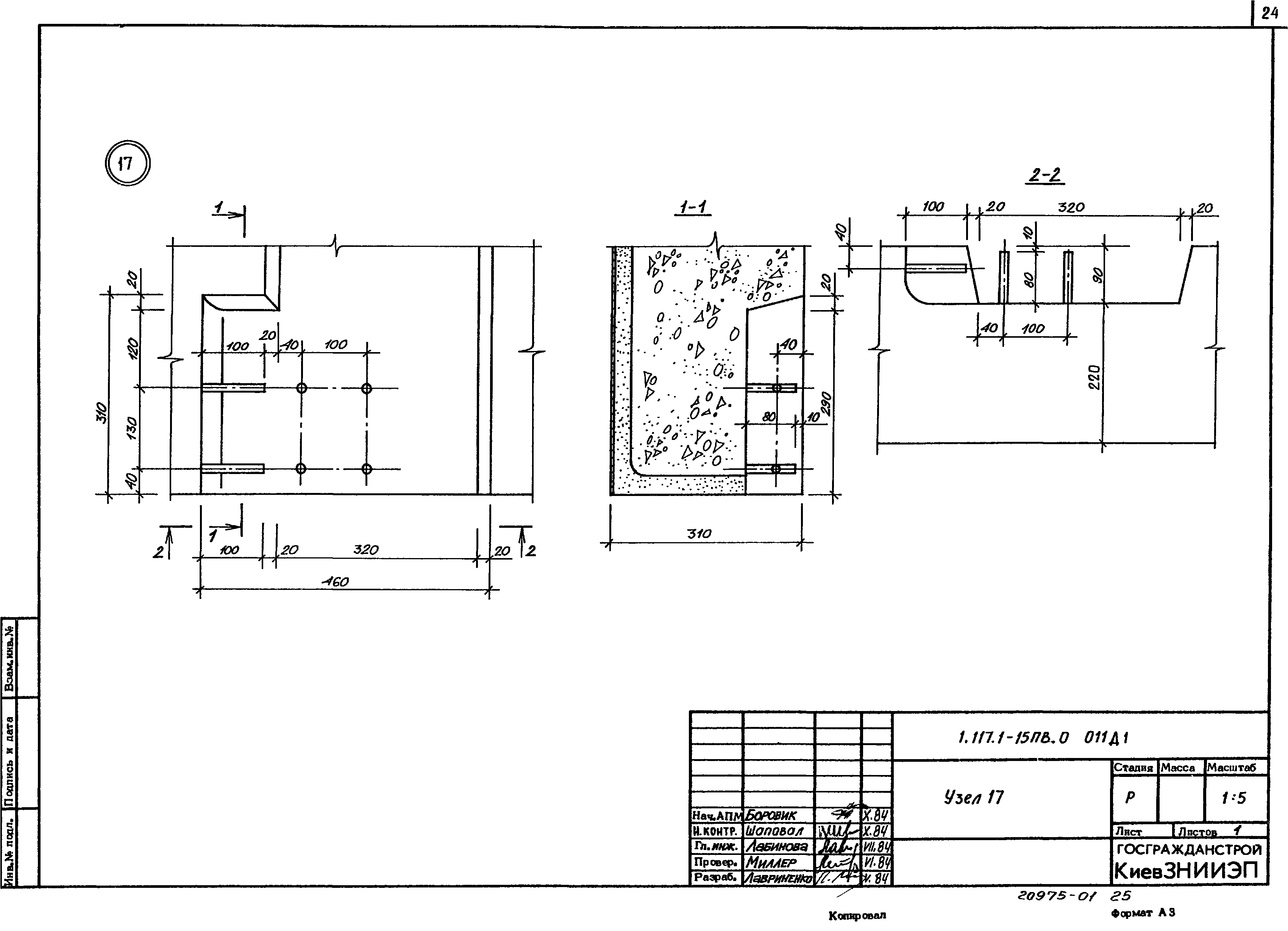
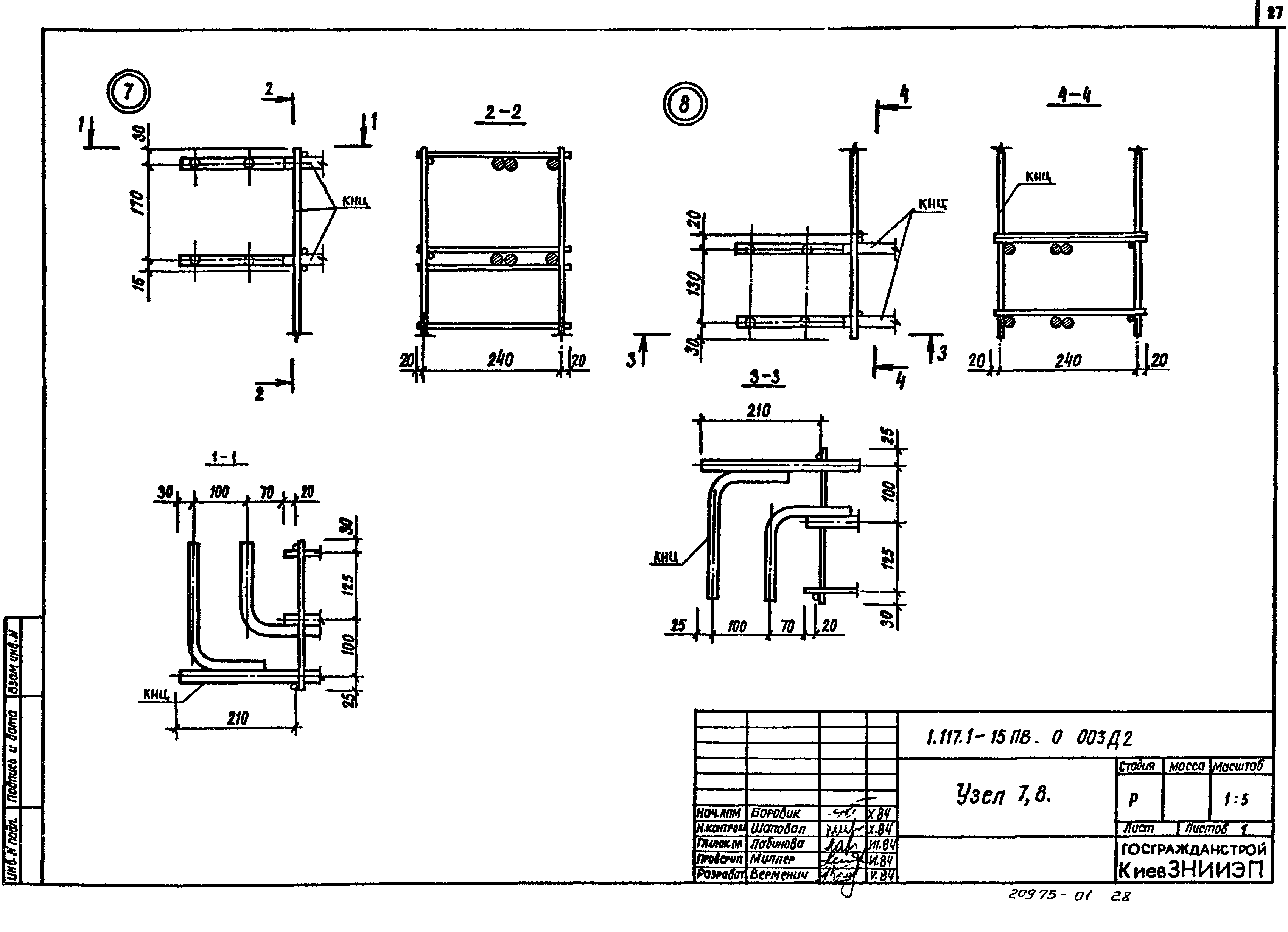
| Оглавление: | 1.117.1-15ПВ.0 00Т0 Техническое описание 1.117.1-15ПВ.0 001 Д1 Узел 1 1.117.1-15ПВ.0 002 Д1 Узел 2, 5 1.117.1-15ПВ.0 003 Д1 Узел 6, 7, 8 1.117.1-15ПВ.0 004 Д1 Узел 9 1.117.1-15ПВ.0 005 Д1 Узел 10 1.117.1-15ПВ.0 006 Д1 Узел 11, 13 1.117.1-15ПВ.0 007 Д1 Узел 14 1.117.1-15ПВ.0 008 Д1 Узел 15 1.117.1-15ПВ.0 009 Д1 Узел 1, 11 1.117.1-15ПВ.0 010 Д1 Узел 3, 4, 16 1.117.1-15ПВ.0 011 Д1 Узел 17 1.117.1-15ПВ.0 001 Д2 Узел 1, 2 1.117.1-15ПВ.0 002 Д2 Узел 3, 4, 5 1.117.1-15ПВ.0 003 Д2 Узел 7, 8 1.117.1-15ПВ.0 004 Д2 Узел 9, 10 |
| Разработан: | КиевЗНИИЭП |
| Утверждён: | 29.11.1985 Госгражданстрой (Gosgrazhdanstroy 369) |
| Нормативные ссылки: |
|




























