Скачать Серия 1.232.1-10 Выпуск 3. Монтажные узлы стен. Изделия соединительные. Рабочие чертежиДата актуализации: 01.01.2021
|
| Обозначение: | Серия 1.232.1-10 |
| Обозначение англ: | Series 1.232.1-10 |
| Статус: | не определен законодательством |
| Название рус.: | Выпуск 3. Монтажные узлы стен. Изделия соединительные. Рабочие чертежи |
| Дата добавления в базу: | 01.09.2013 |
| Дата актуализации: | 01.01.2021 |
| Дата введения: | 01.09.1987 |
| Дата окончания срока действия: | 30.06.2003 |
| Область применения: | Выпуск 3 содержит монтажные узлы навесных стен многоэтажных каркасных зданий, выполняемых из трехслойных стеновых панелей с жесткими связями |
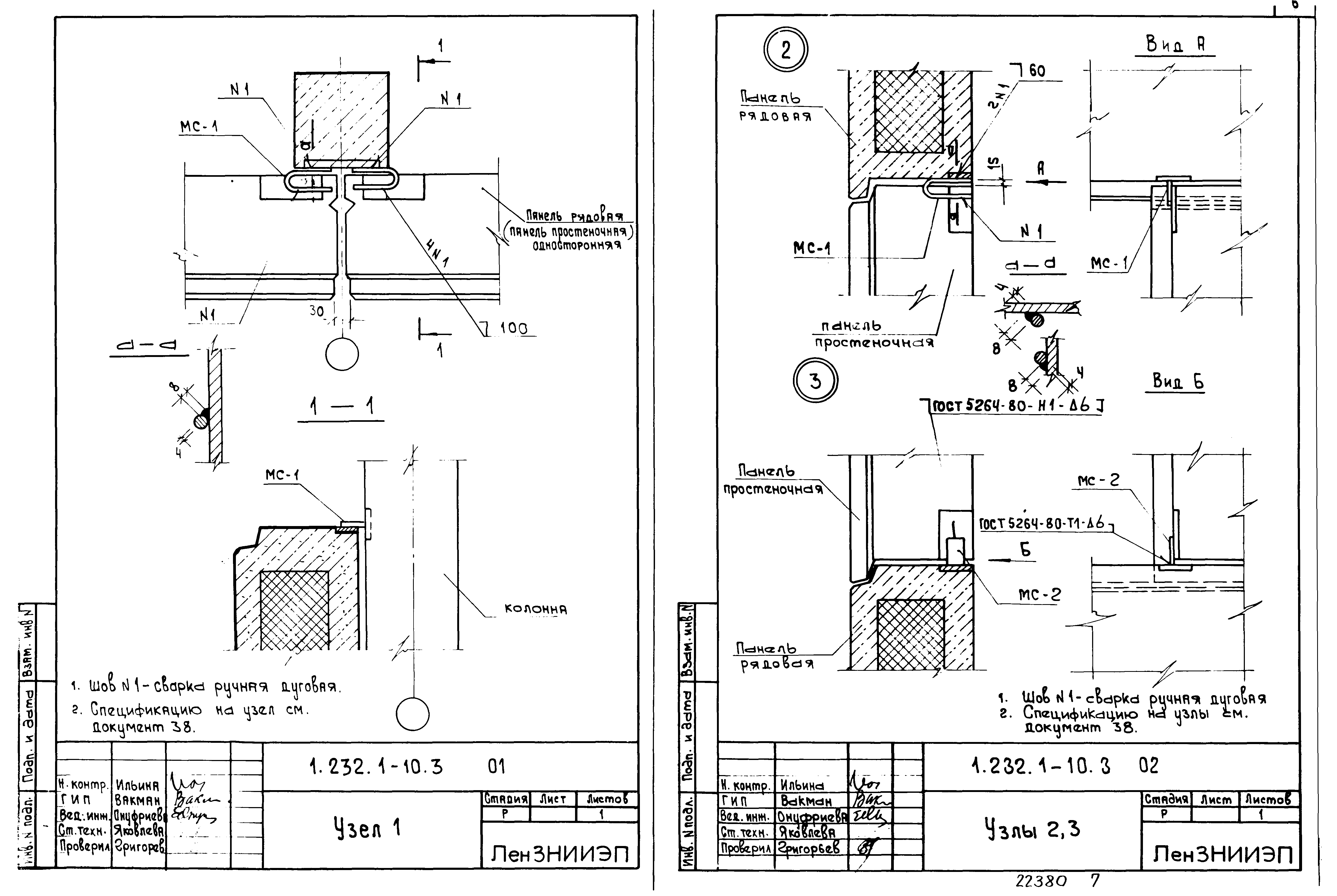
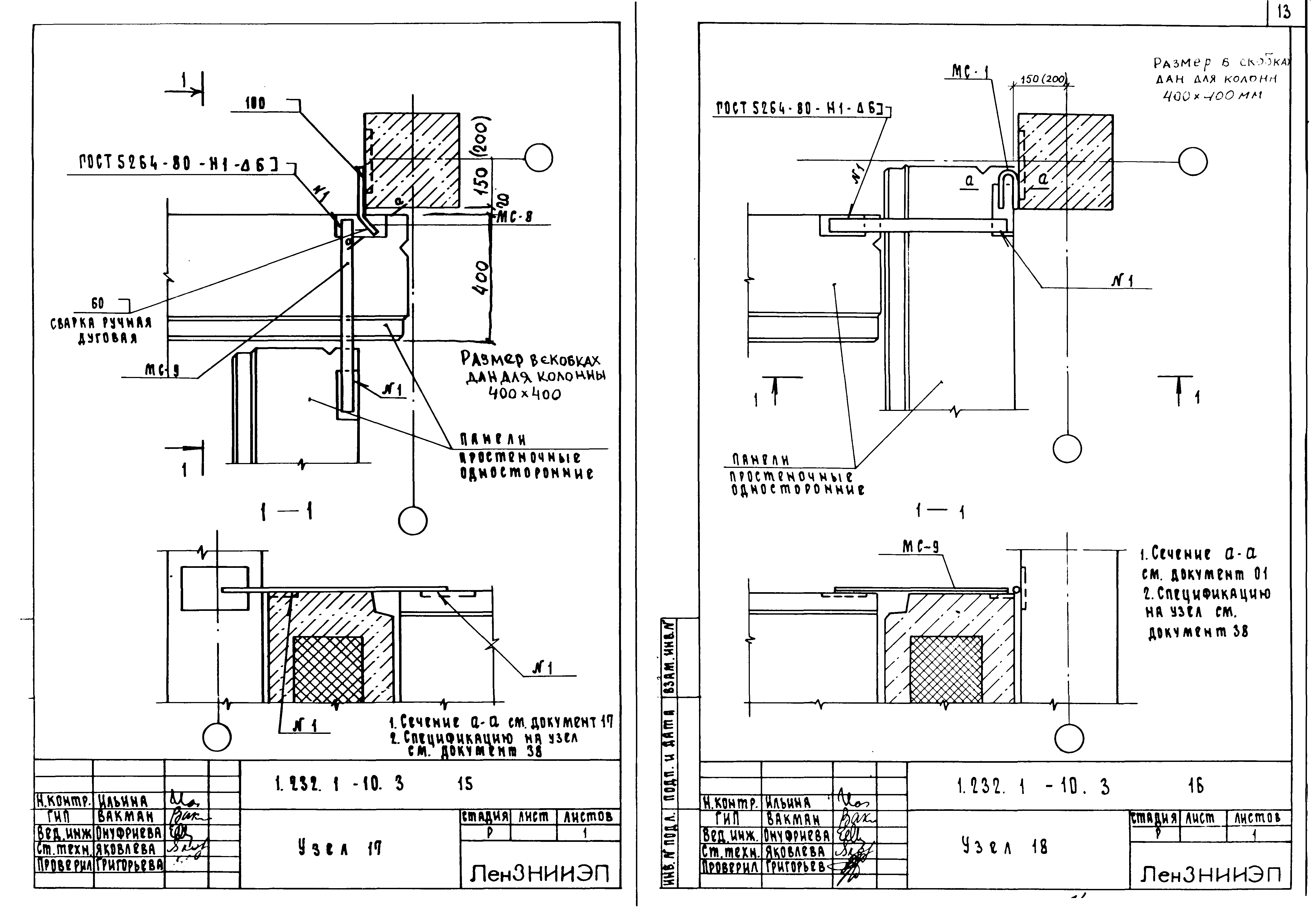
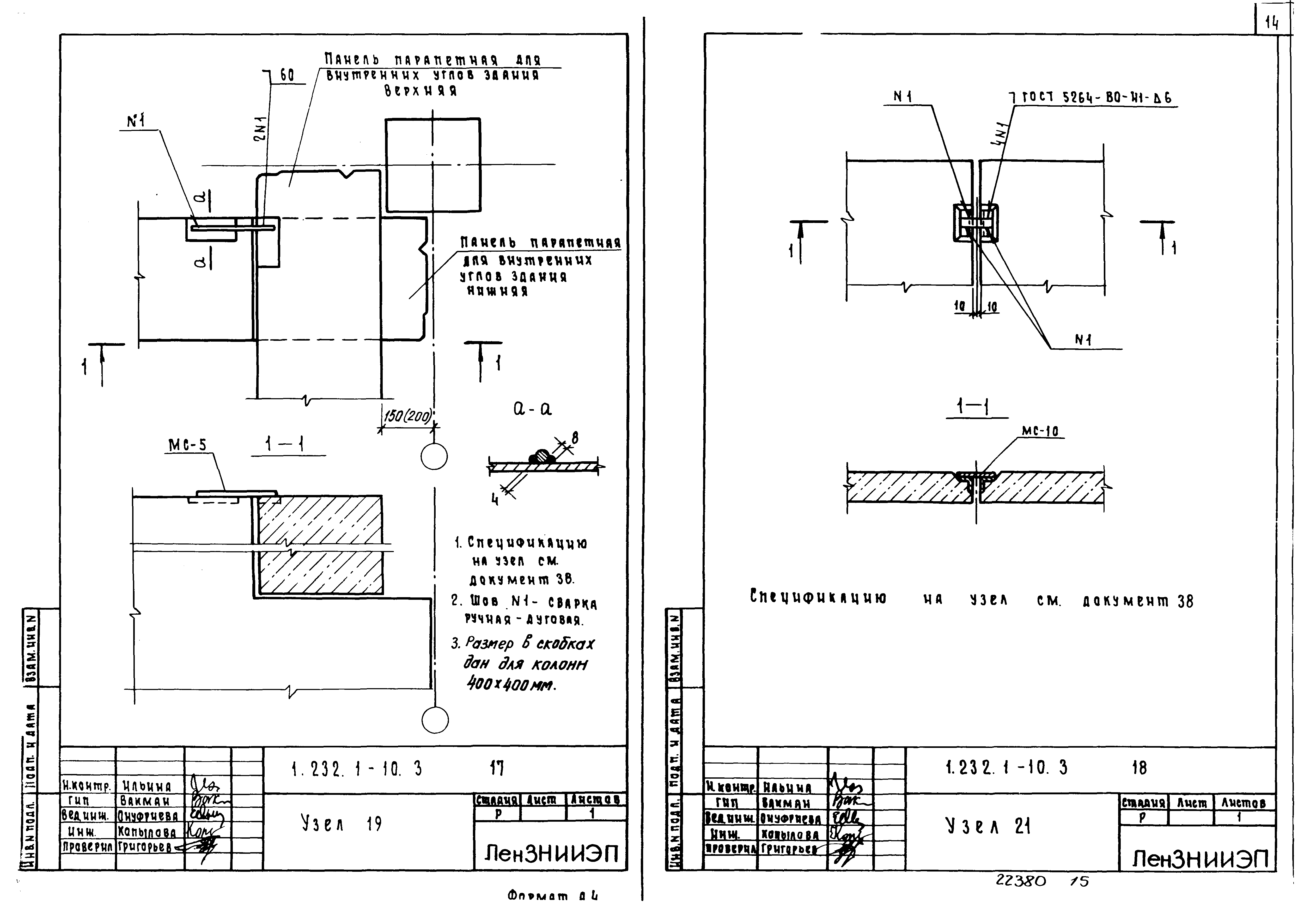
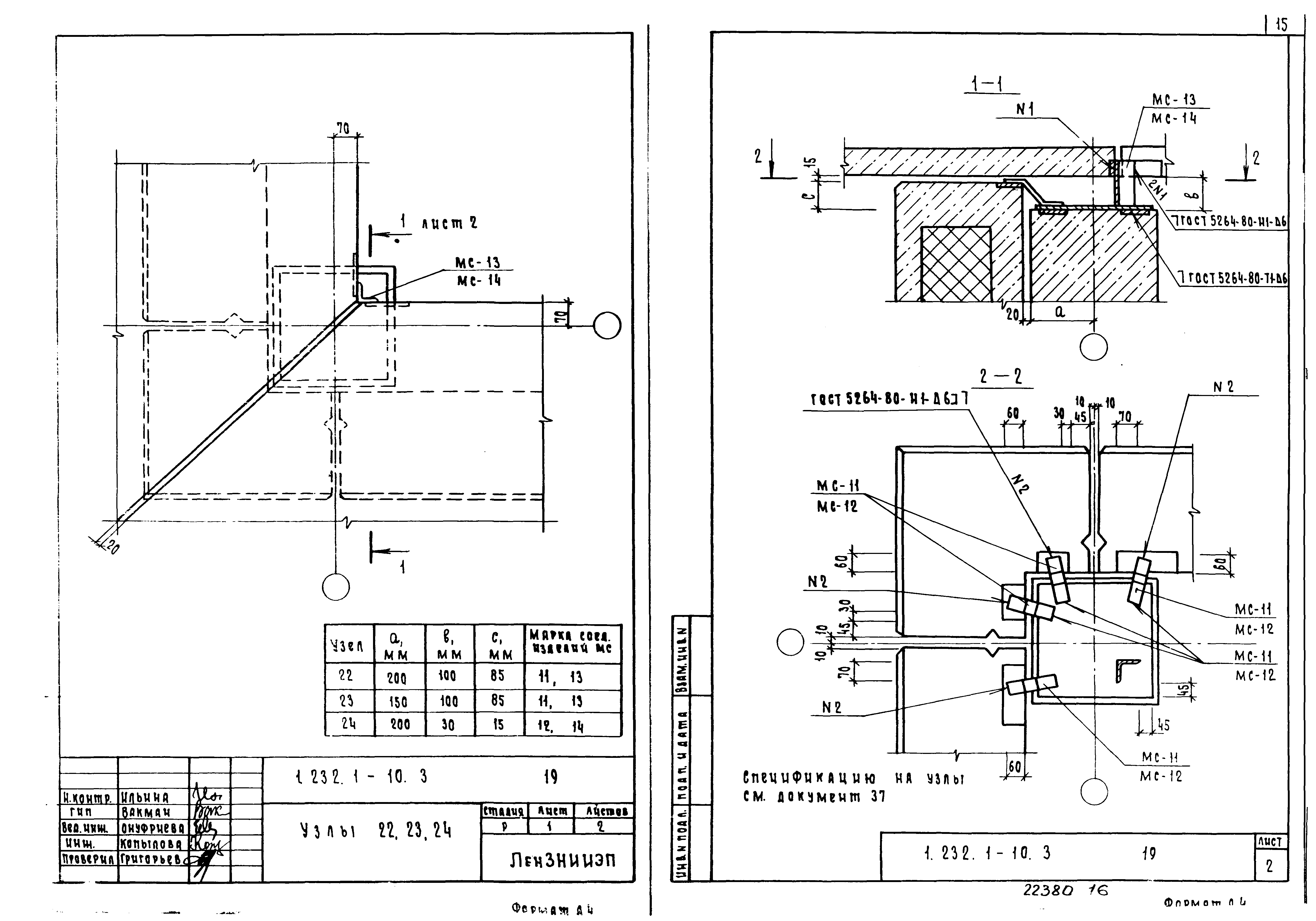
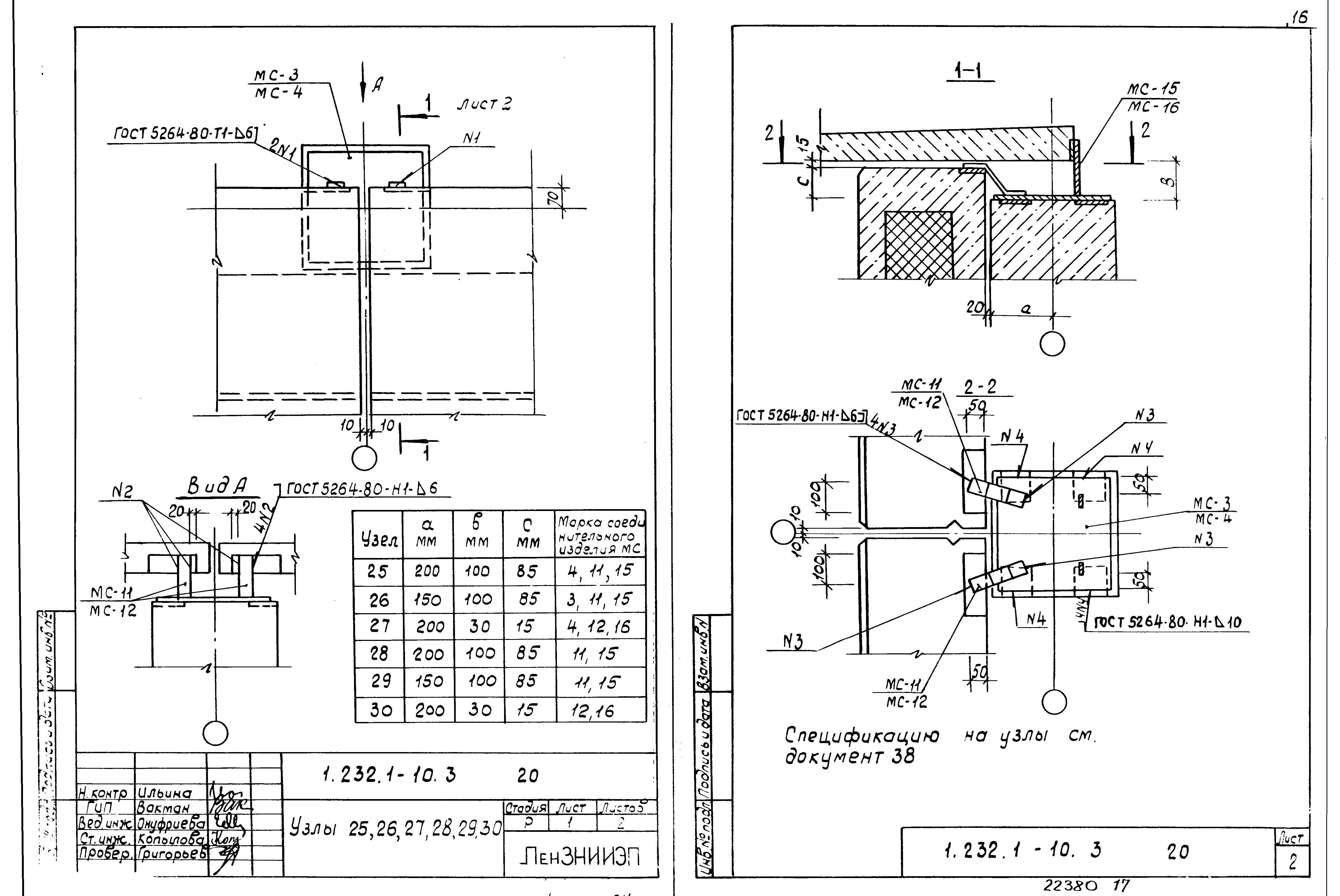
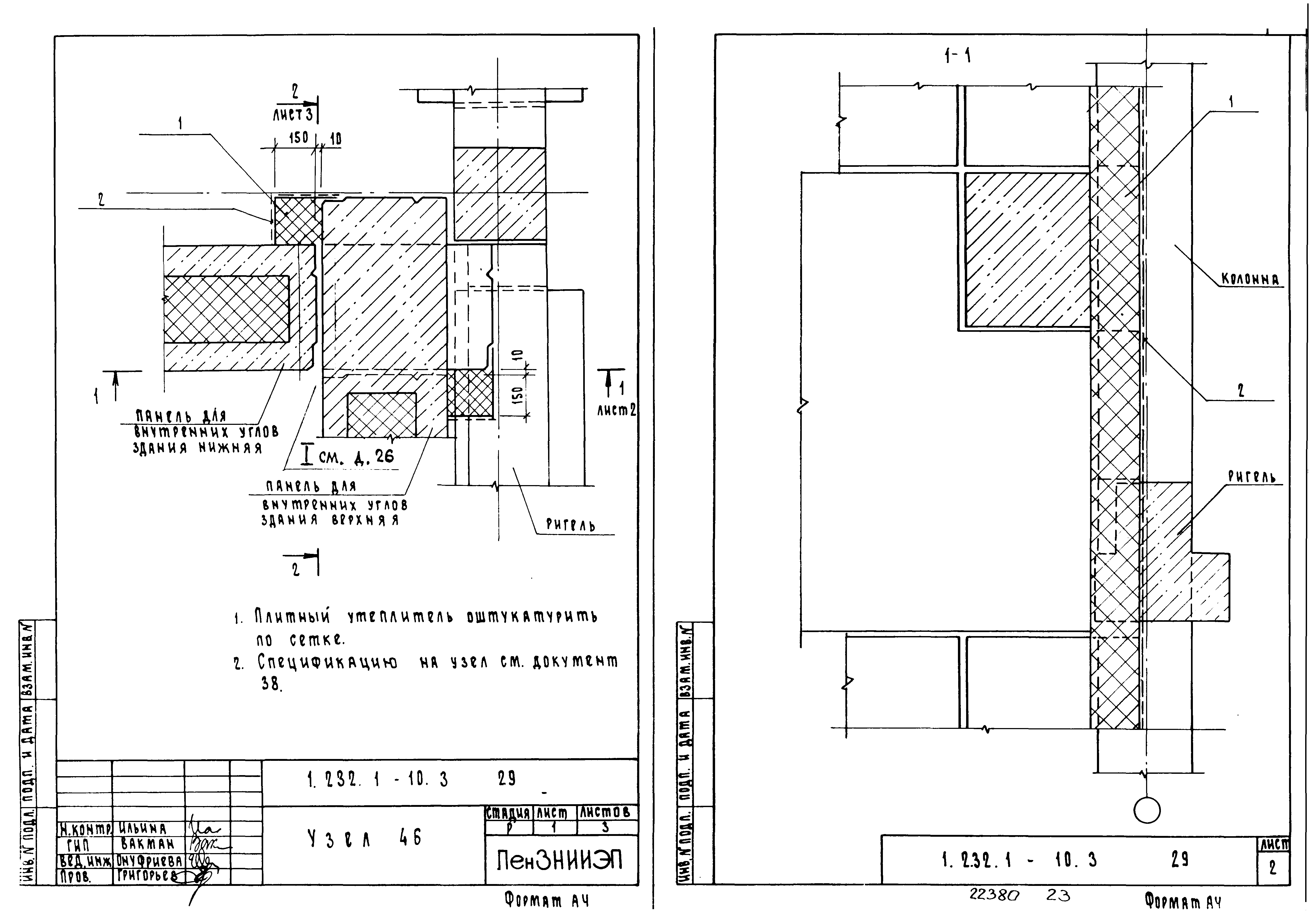
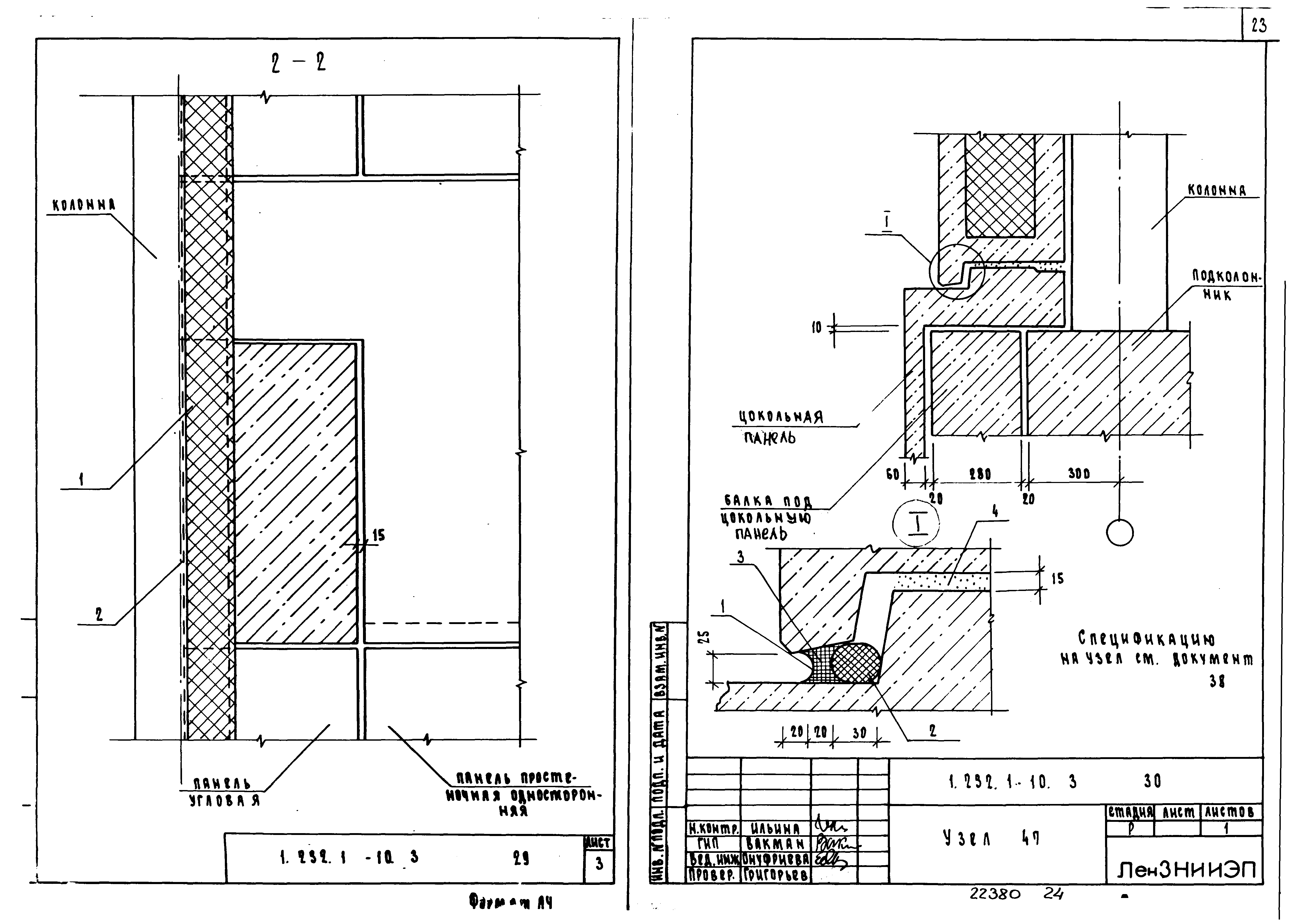
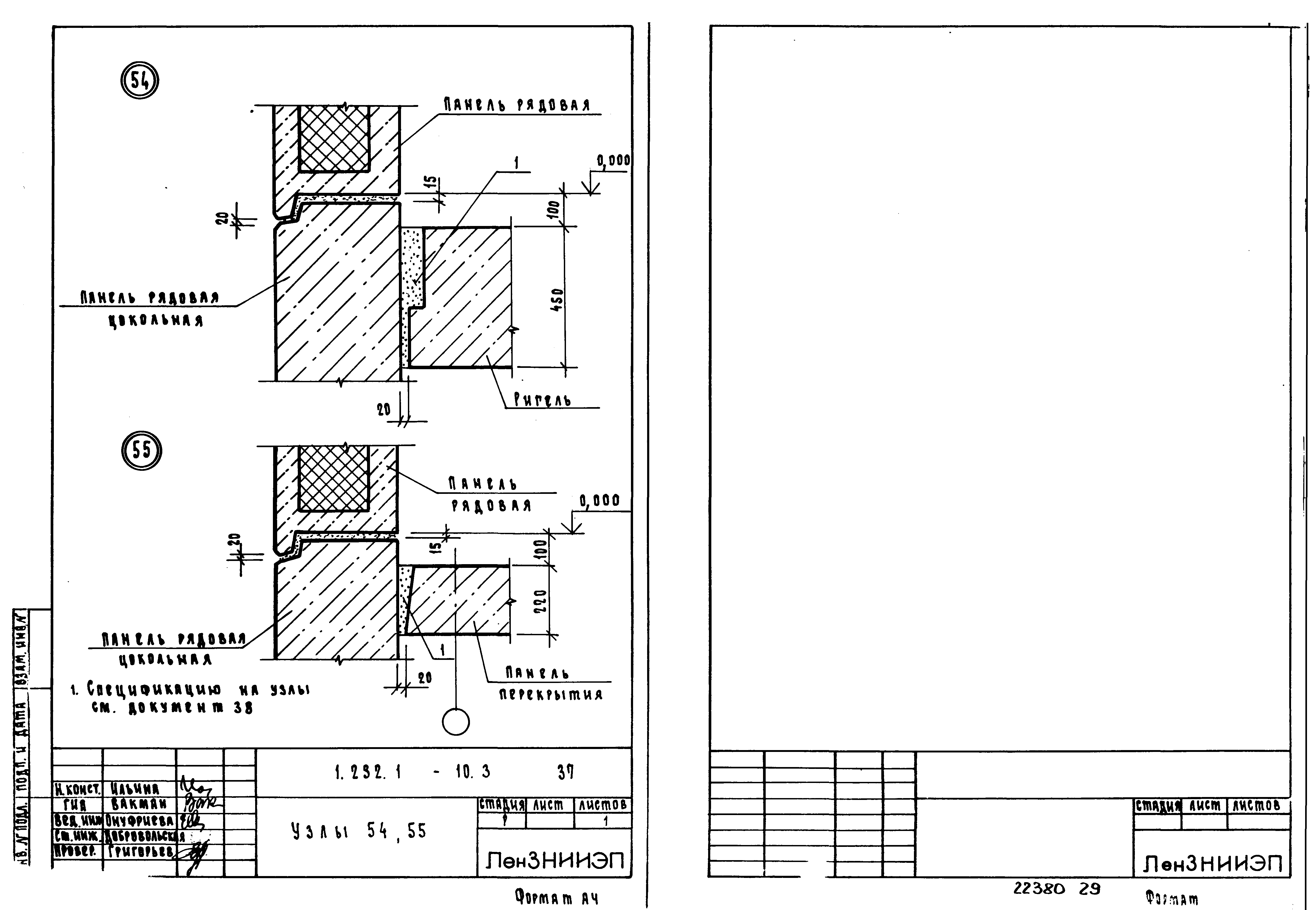
| Оглавление: | 1.232.1-10.3 01 ПЗ Пояснительная записка 1.232.1-10.3 01 ТО Техническое описание 1.232.1-10.3 01 Узел 1 1.232.1-10.3 02 Узел 2, 3 1.232.1-10.3 03 Узел 4, 5, 20 1.232.1-10.3 04 Узел 6 1.232.1-10.3 05 Узел 7 1.232.1-10.3 06 Узел 8 1.232.1-10.3 07 Узел 9 1.232.1-10.3 08 Узел 10 1.232.1-10.3 09 Узел 11 1.232.1-10.3 10 Узел 12 1.232.1-10.3 11 Узел 13 1.232.1-10.3 12 Узел 14 1.232.1-10.3 13 Узел 15 1.232.1-10.3 14 Узел 16 1.232.1-10.3 15 Узел 17 1.232.1-10.3 16 Узел 18 1.232.1-10.3 17 Узел 19 1.232.1-10.3 18 Узел 21 1.232.1-10.3 19 Узел 22, 23, 24 1.232.1-10.3 20 Узел 25, 26, 27, 28, 29, 30 1.232.1-10.3 21 Узел 31 1.232.1-10.3 22 Узел 32, 33 1.232.1-10.3 23 Узел 34 1.232.1-10.3 24 Узел 35 1.232.1-10.3 25 Узел 36 1.232.1-10.3 26 Узел 37, 38 39 1.232.1-10.3 27 Узел 40, 41 42 1.232.1-10.3 28 Узел 43, 44 45 1.232.1-10.3 29 Узел 46 1.232.1-10.3 30 Узел 47 1.232.1-10.3 31 Узел 48 1.232.1-10.3 32 Узел 49 1.232.1-10.3 33 Узел 50 1.232.1-10.3 34 Узел 51 1.232.1-10.3 35 Узел 52 1.232.1-10.3 36 Узел 53 1.232.1-10.3 37 Узел 54, 55 1.232.1-10.3 38 Спецификация 1.232.1-10.3 39 Консоль опорная РК 1 1.232.1-10.3 39 СБ Консоль опорная РК 1. Сборный чертеж 1.232.1-10.3 40 Изделие соединительное МС-1 1.232.1-10.3 41 Изделие соединительное МС-8 1.232.1-10.3 42 Изделие соединительное МС-11, МС-12 1.232.1-10.3 43 Изделие соединительное МС-17 |
| Разработан: | ЛенЗНИИЭП Госгражданстроя |
| Утверждён: | 17.07.1987 Госгражданстрой (Gosgrazhdanstroy 223) |
| Нормативные ссылки: |
|





































