Скачать Серия 1.832.1-10 Выпуск 3. Панели, изготовляемые на заводах, имеющих кантователи. Рабочие чертежиДата актуализации: 01.01.2021
|
| Обозначение: | Серия 1.832.1-10 |
| Обозначение англ: | Series 1.832.1-10 |
| Статус: | справочные материалы, мп, тпр |
| Название рус.: | Выпуск 3. Панели, изготовляемые на заводах, имеющих кантователи. Рабочие чертежи |
| Дата добавления в базу: | 01.09.2013 |
| Дата актуализации: | 01.01.2021 |
| Область применения: | Настоящий выпуск содержит номенклатуру и рабочие чертежи двухслойных стеновых легкобетонных панелей повышенной заводской готовности, при распалубке которых применяют кантователи |
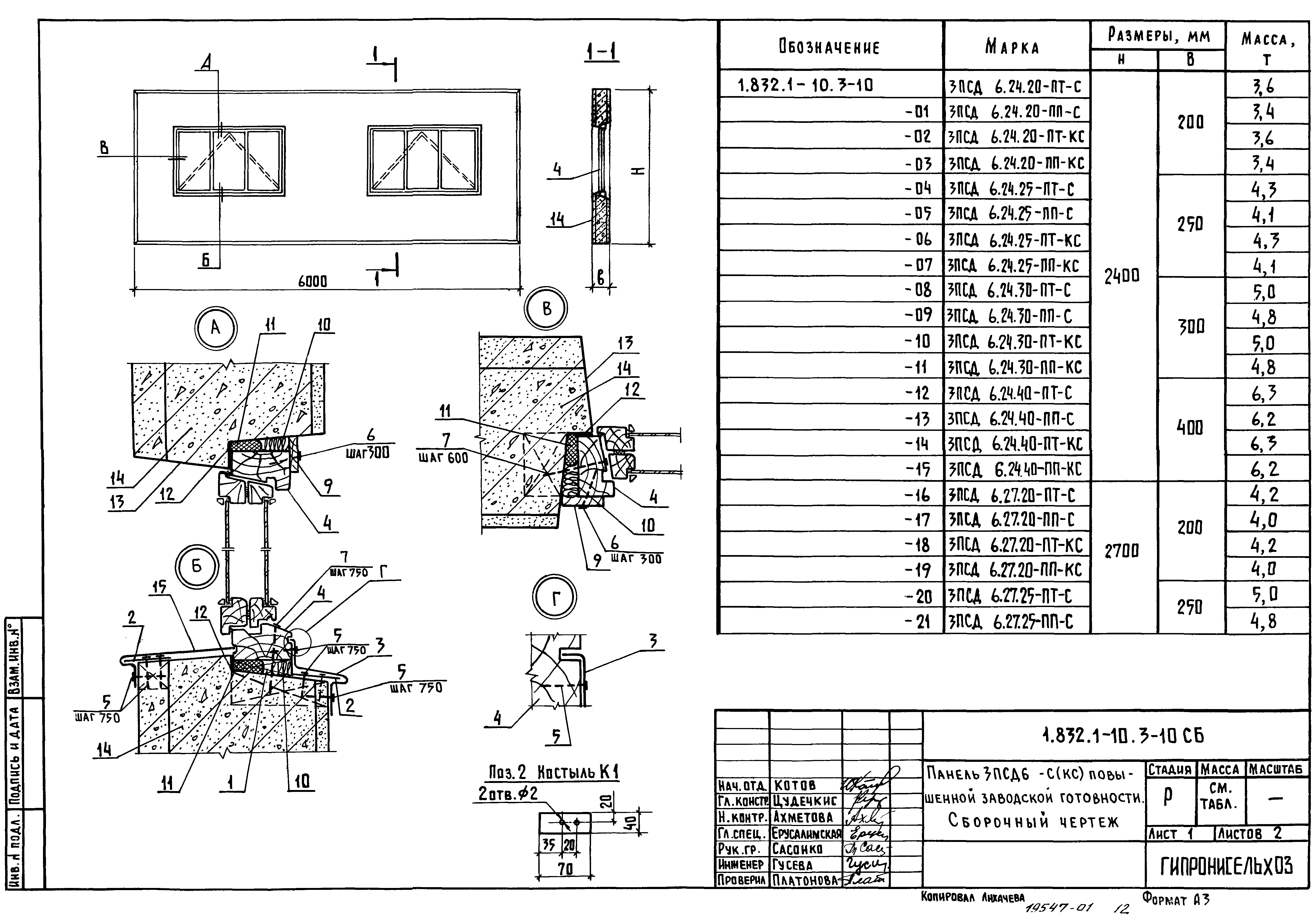
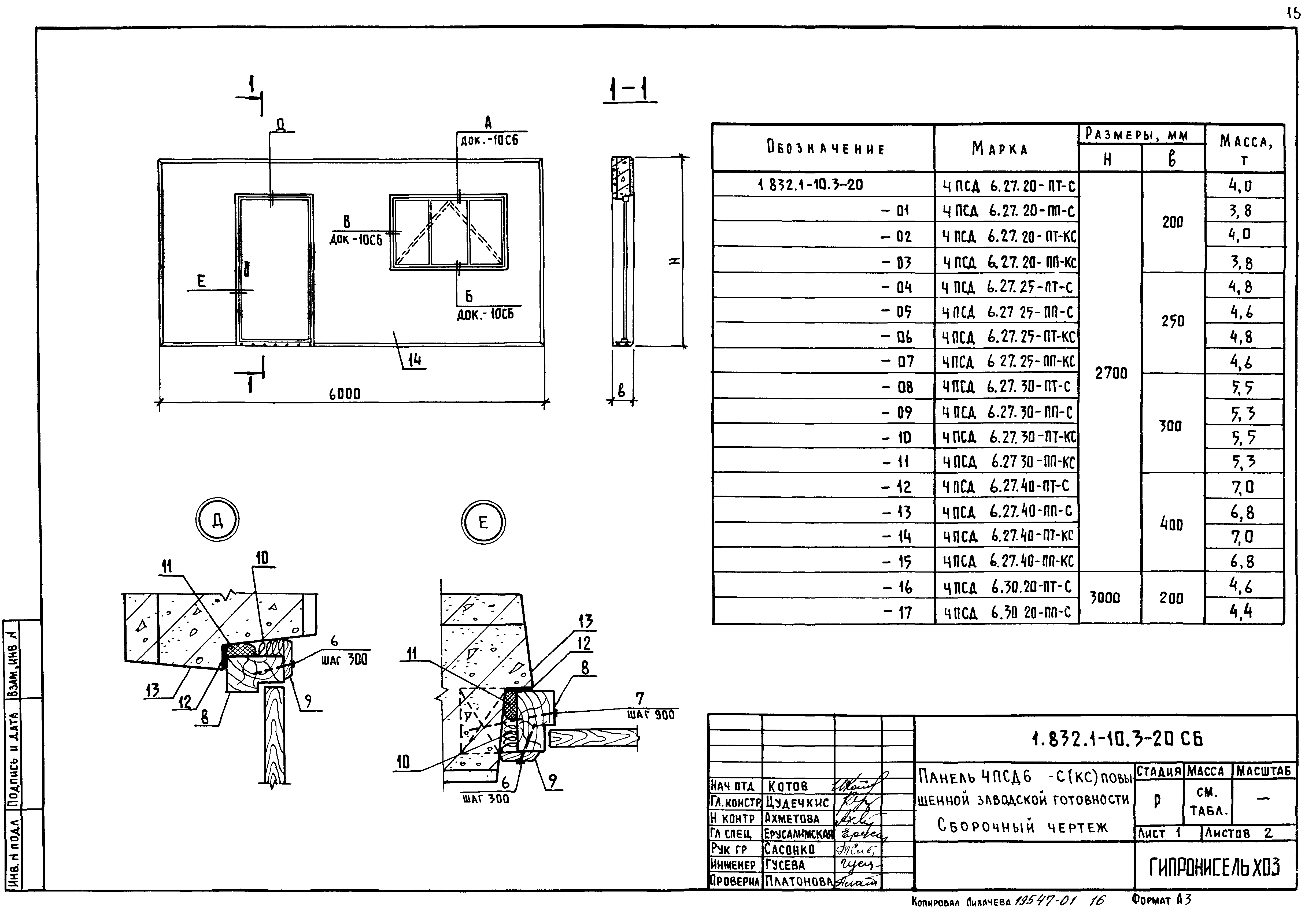
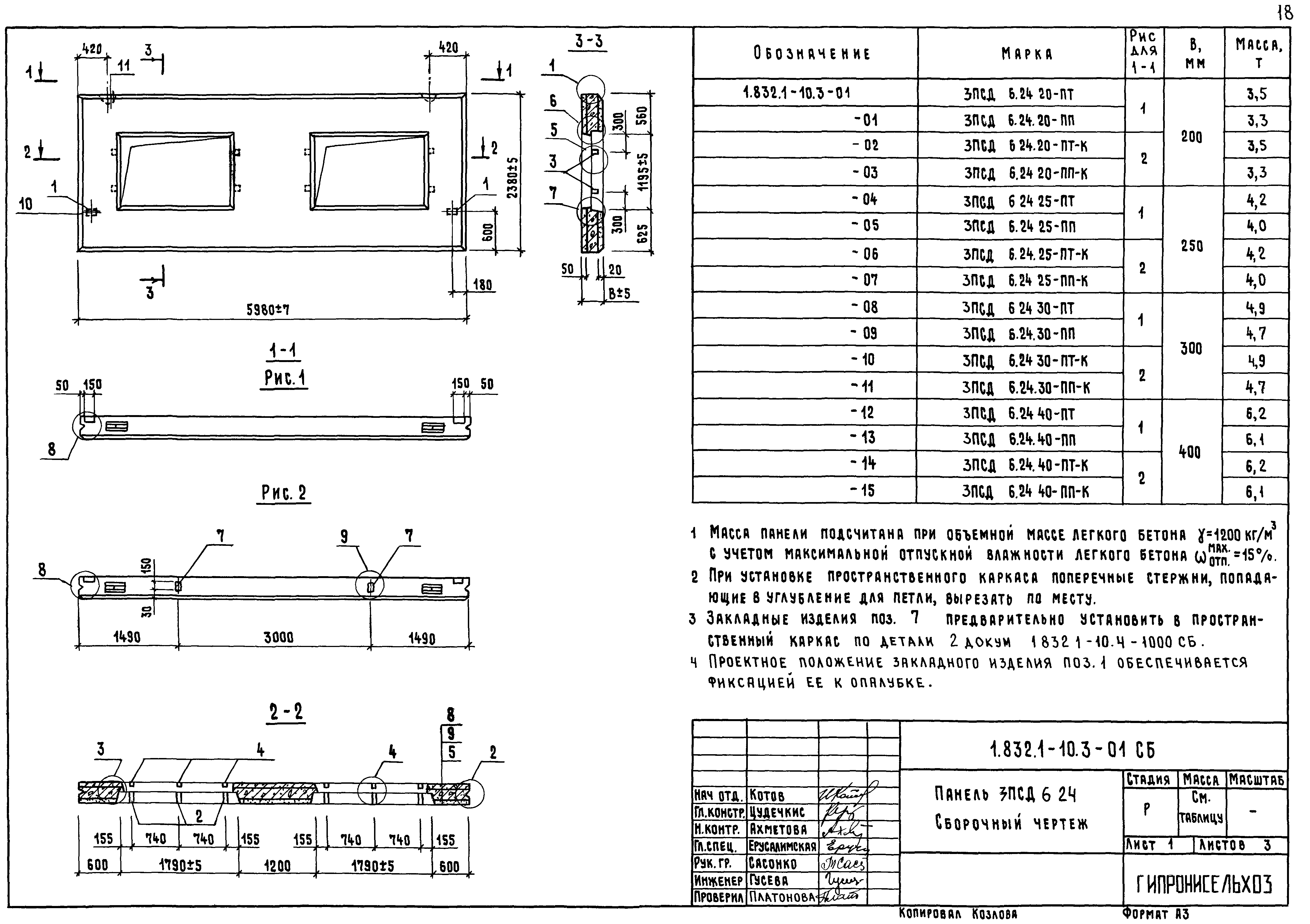
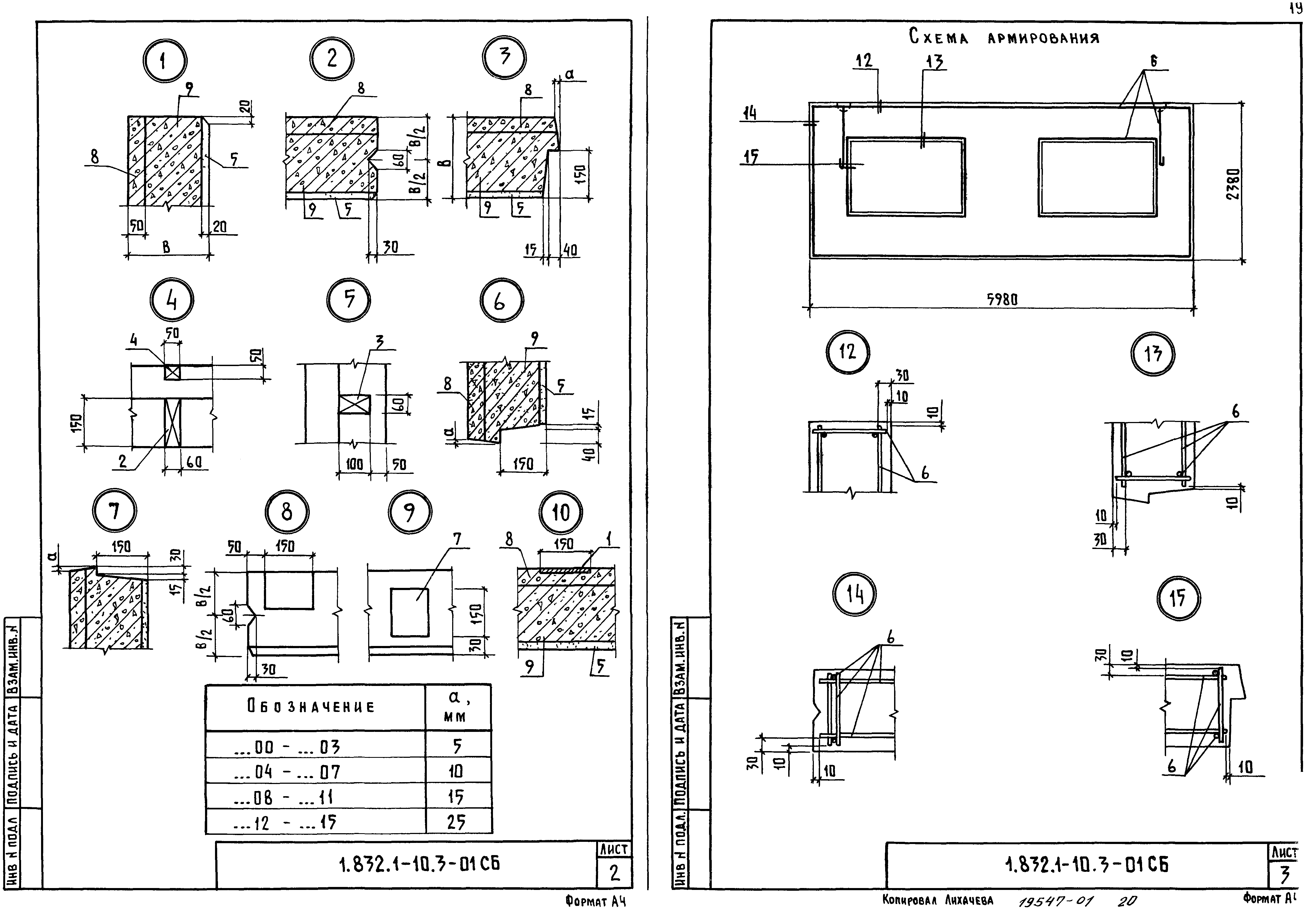
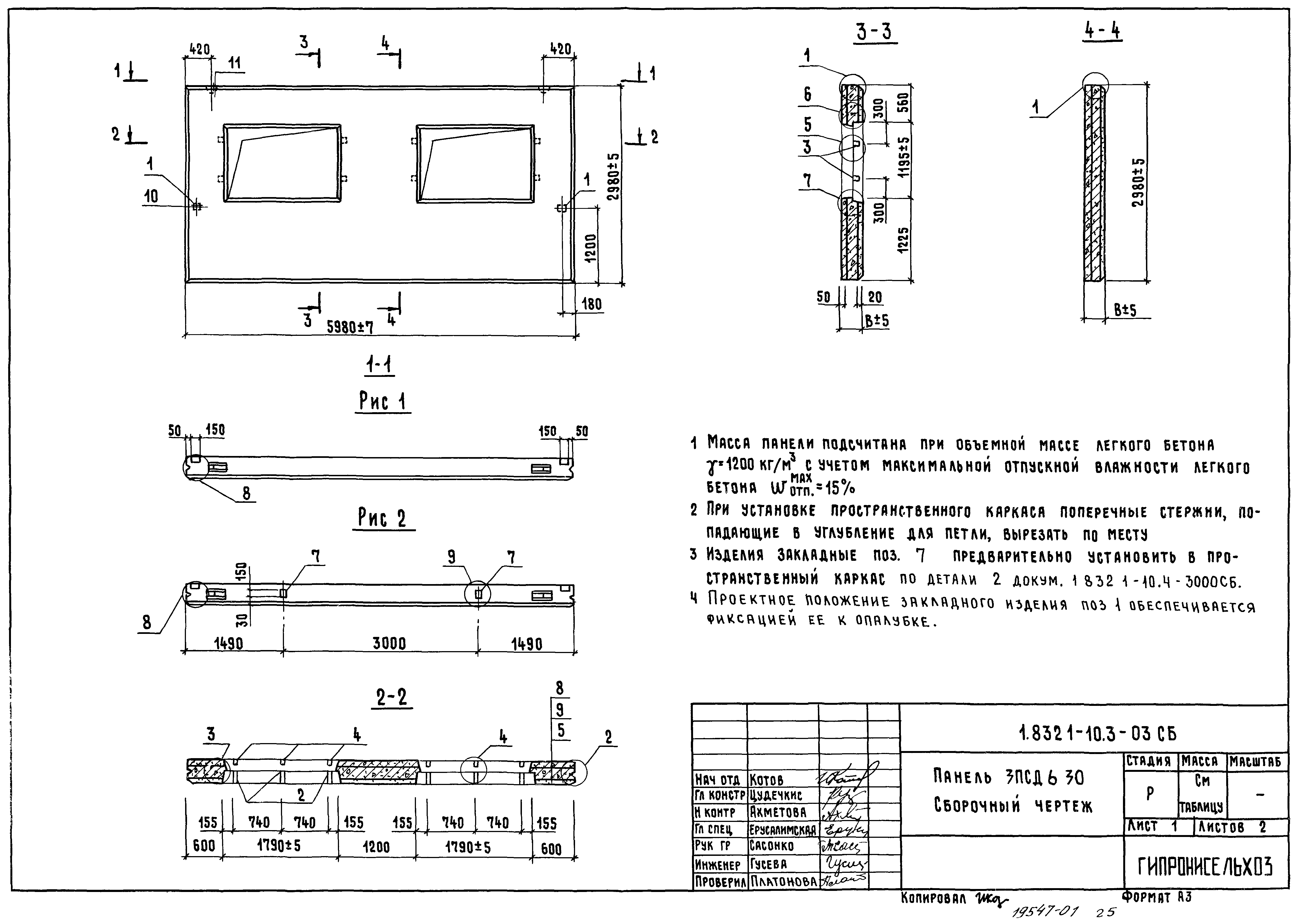
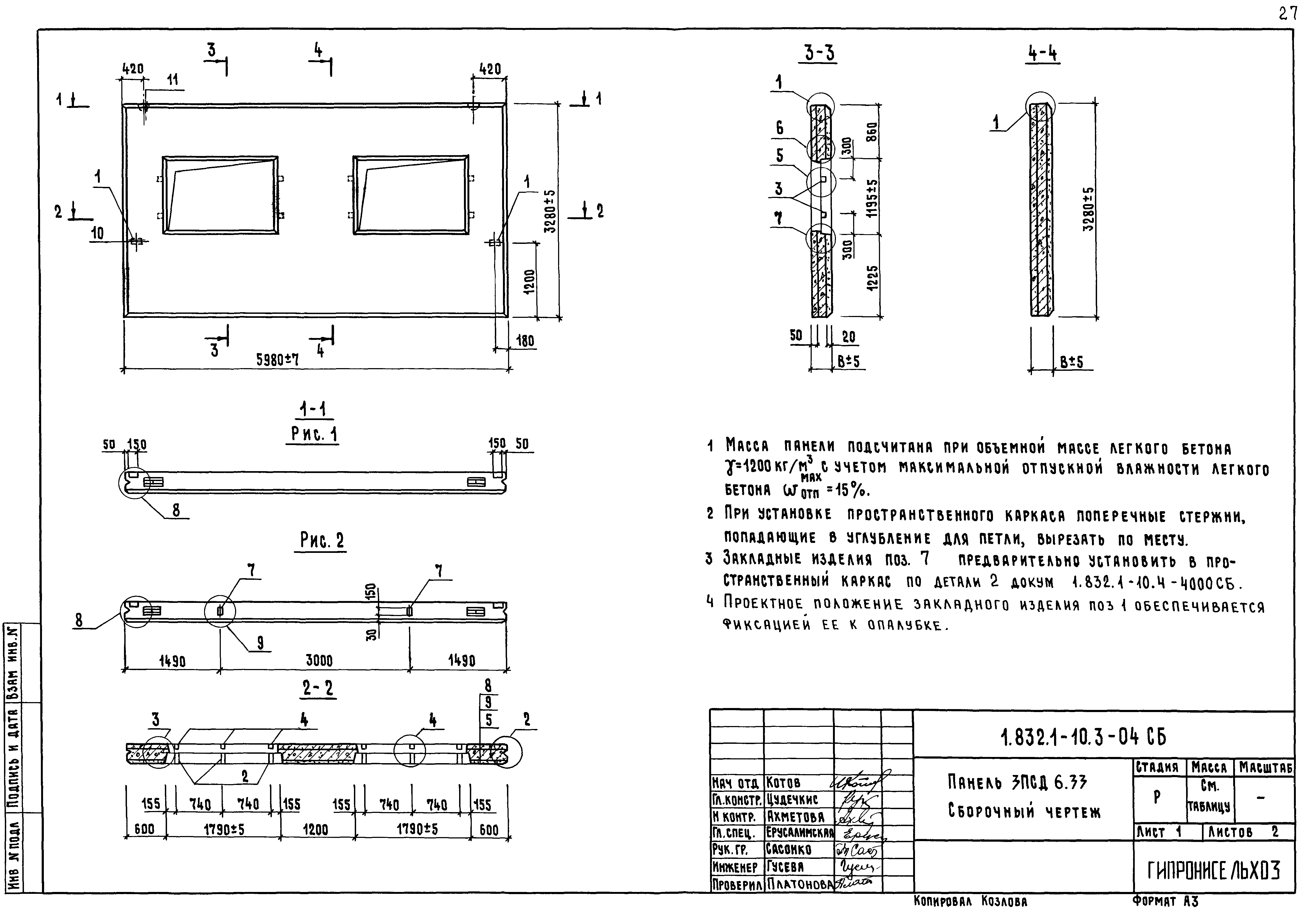
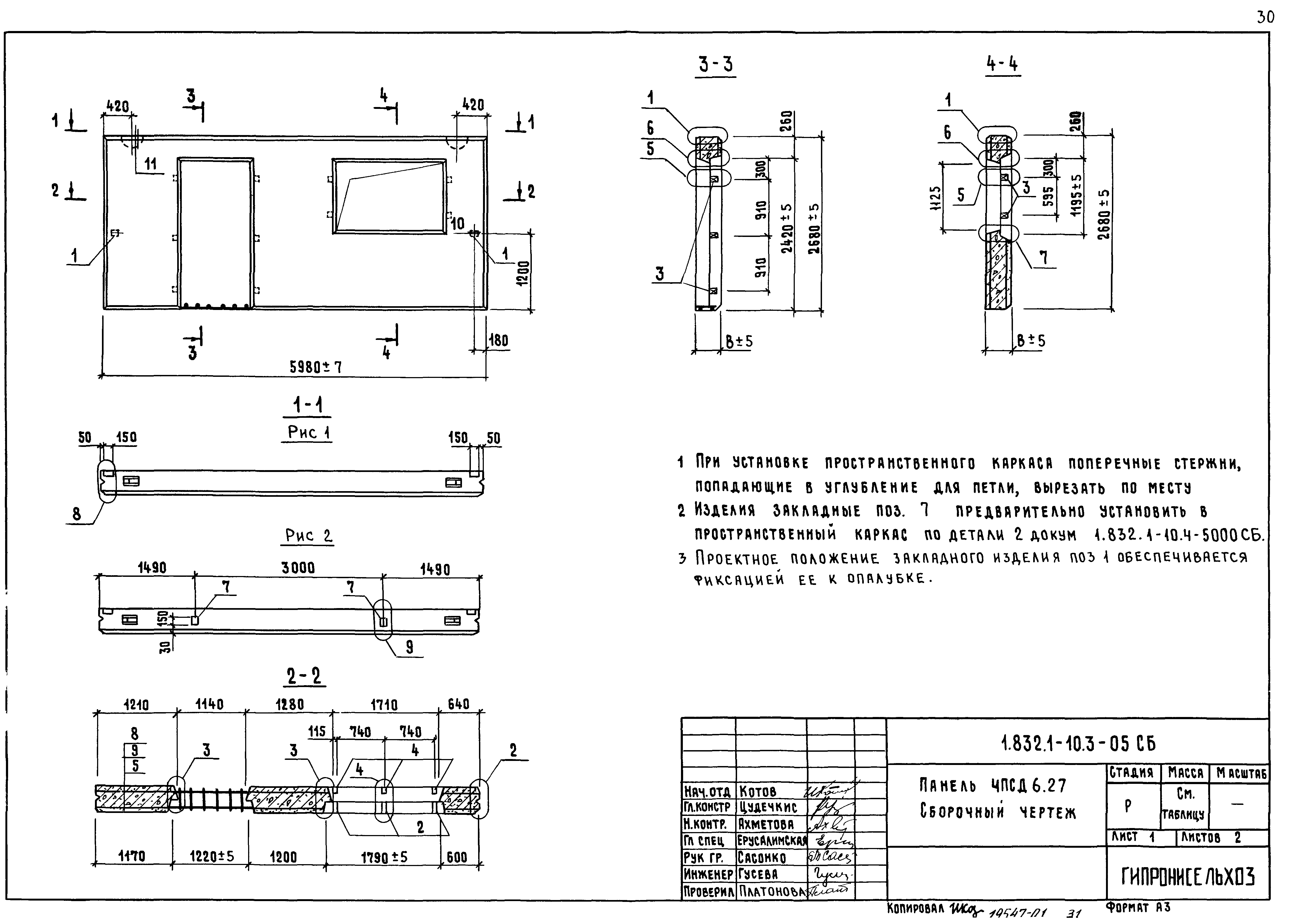
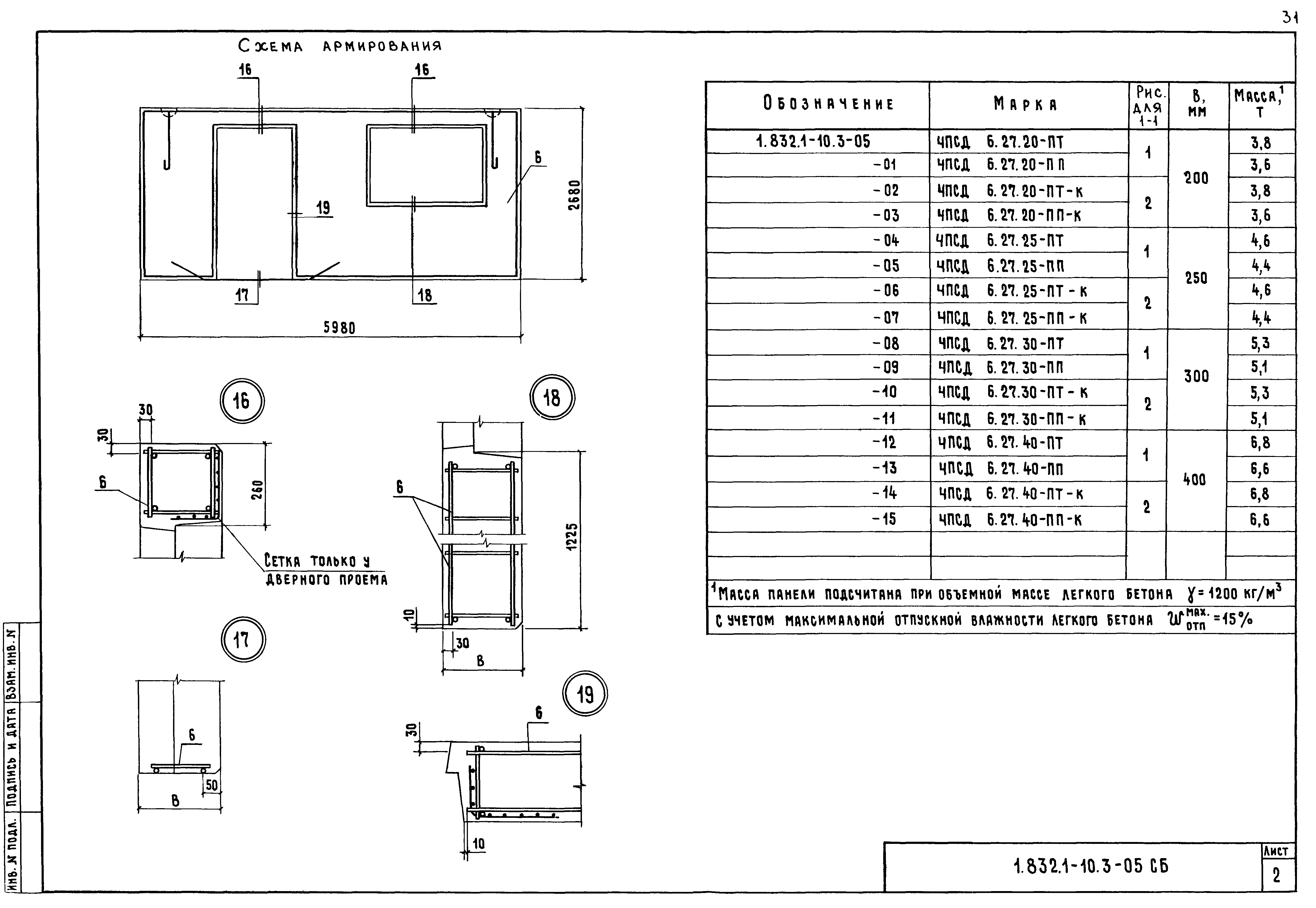
| Оглавление: | 1.832.1-10.3-00 ТО Техническое описание 1.832.1-10.3-10 Панель 3ПСД6 -С(КС) повышенной заводской готовности 1.832.1-10.3-10 СБ Панель 3ПСД6 -С(КС) повышенной заводской готовности. Сборочный чертеж 1.832.1-10.3-20 Панель 4ПСД6 -С(КС) повышенной заводской готовности 1.832.1-10.3-20 СБ Панель 4ПСД6 -С(КС) повышенной заводской готовности. Сборочный чертеж 1.832.1-10.3-01 Панель 3ПСД6.24 1.832.1-10.3-01 СБ Панель 3ПСД6.24. Сборочный чертеж 1.832.1-10.3-02 Панель 3ПСД6.27 1.832.1-10.3-02 СБ Панель 3ПСД6.27. Сборочный чертеж 1.832.1-10.3-03 Панель 3ПСД6.30 1.832.1-10.3-03 СБ Панель 3ПСД6.30. Сборочный чертеж 1.832.1-10.3-04 Панель 3ПСД6.33 1.832.1-10.3-04 СБ Панель 3ПСД6.33. Сборочный чертеж 1.832.1-10.3-05 Панель 4ПСД6.27 1.832.1-10.3-05 СБ Панель 4ПСД6.27. Сборочный чертеж 1.832.1-10.3-06 Панель 4ПСД6.30 1.832.1-10.3-06 СБ Панель 4ПСД6.30. Сборочный чертеж 1.832.1-10.3-07 Панель 4ПСД6.33 1.832.1-10.3-07 СБ Панель 4ПСД6.33. Сборочный чертеж 1.832.1-10.3-00 У Узел 11 1.832.1-10.3-00 ВМС Выборка стали на панель 1.832.1-10.3-00 РМ1 Ведомость расхода стали 1.832.1-10.3-00 РМ2 Ведомость расхода цемента и инертных материалов 1.832.1-10.3-00 РМ3 Ведомость расхода древесины |
| Разработан: | НИИЖБ Госстроя СССР Гипронисельхоз Минсельхоза СССР ЦНИИЭПсельстрой Минсельстроя СССР |
| Утверждён: | 23.12.1983 Госстрой СССР (Государственный комитет Совета Министров СССР по делам строительства) (USSR Gosstroy 2/3-419) |
| Издан: | ЦИТП Госстроя СССР (CITP, Gosstroy (USSR) 1984 г. ) |
| Нормативные ссылки: |
|




















































