Скачать Серия 1.432.2-32.93 Выпуск 2. Узлы. Рабочие чертежиДата актуализации: 01.01.2021
|
| Обозначение: | Серия 1.432.2-32.93 |
| Обозначение англ: | Series 1.432.2-32.93 |
| Статус: | не определен законодательством |
| Название рус.: | Выпуск 2. Узлы. Рабочие чертежи |
| Дата добавления в базу: | 01.09.2013 |
| Дата актуализации: | 01.01.2021 |
| Дата введения: | 01.03.1994 |
| Дата окончания срока действия: | 30.06.2003 |
| Область применения: | В состав выпуска 2 данной работы входят рабочие чертежи узлов монтажа укрупненных элементов стены (панелей), установки окон, дверей, ворот и сопряжения их с панелями |
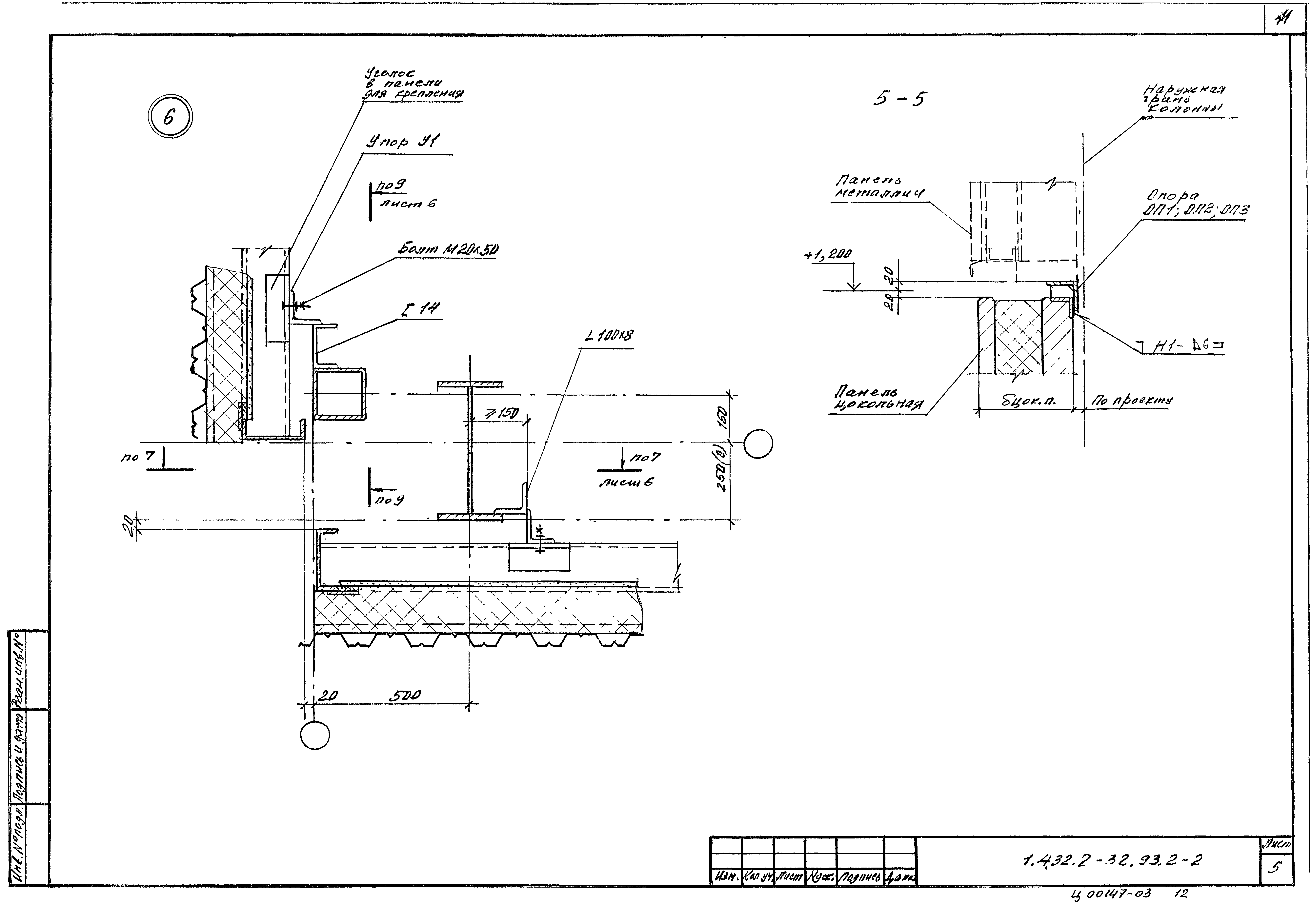
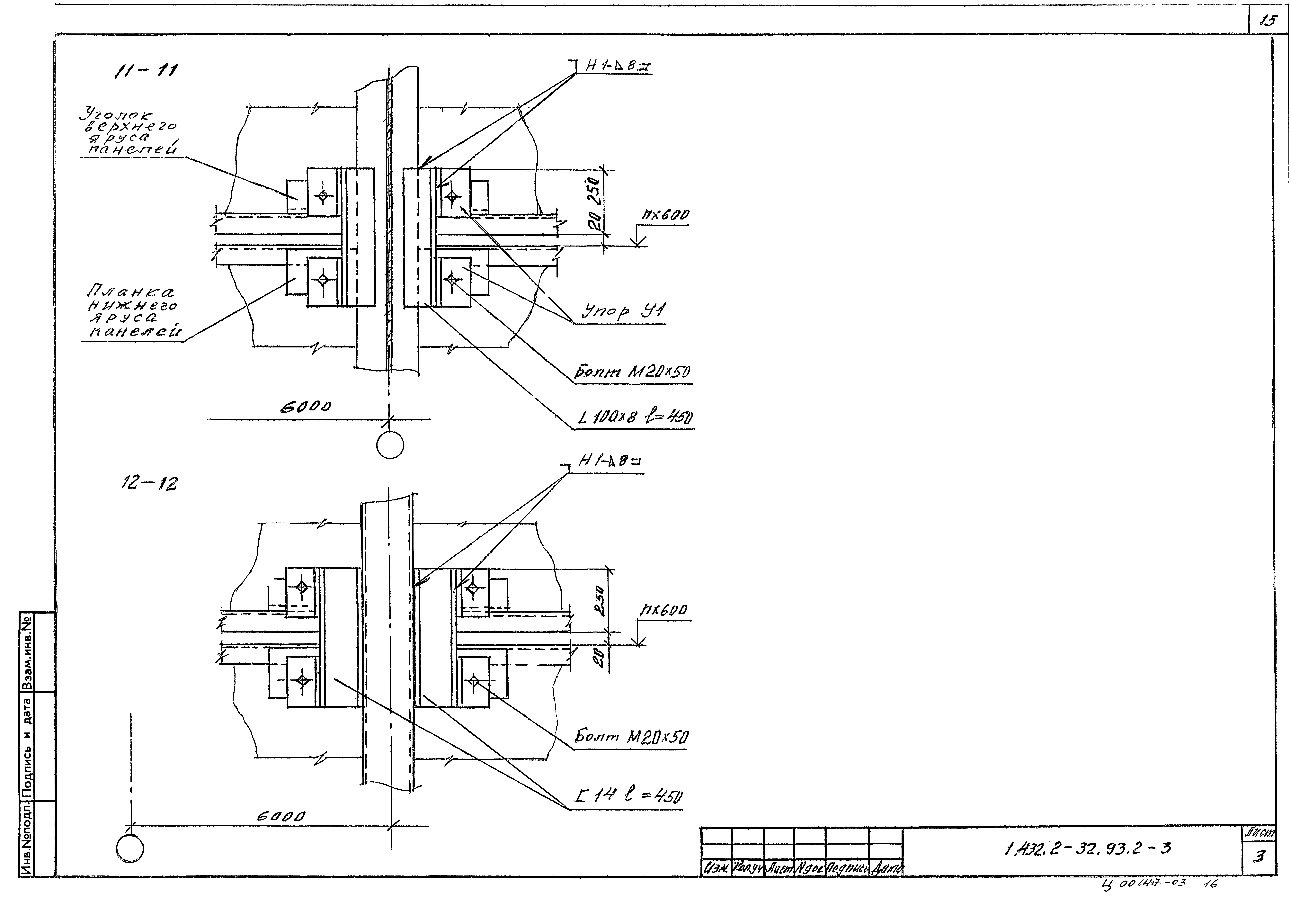
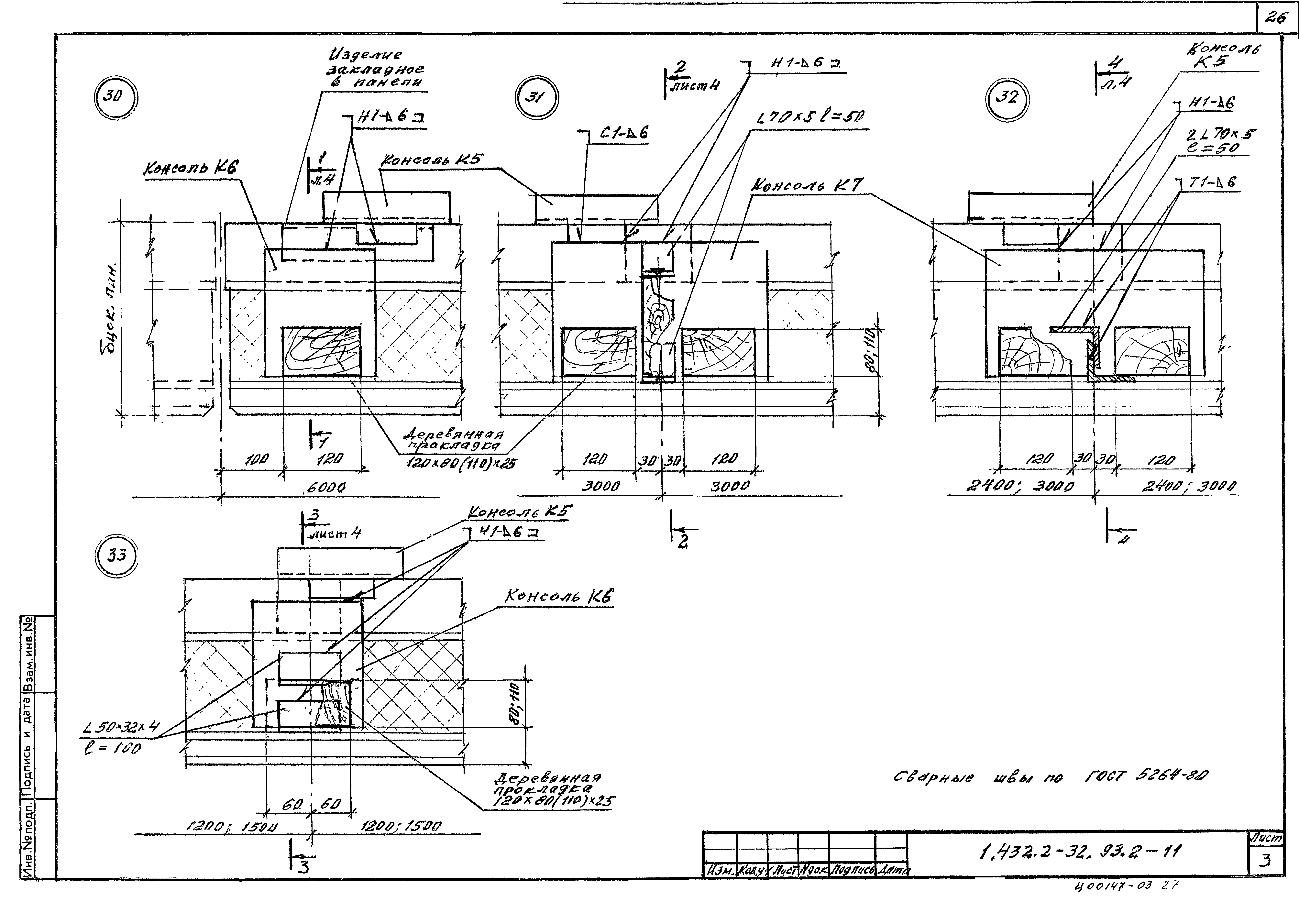
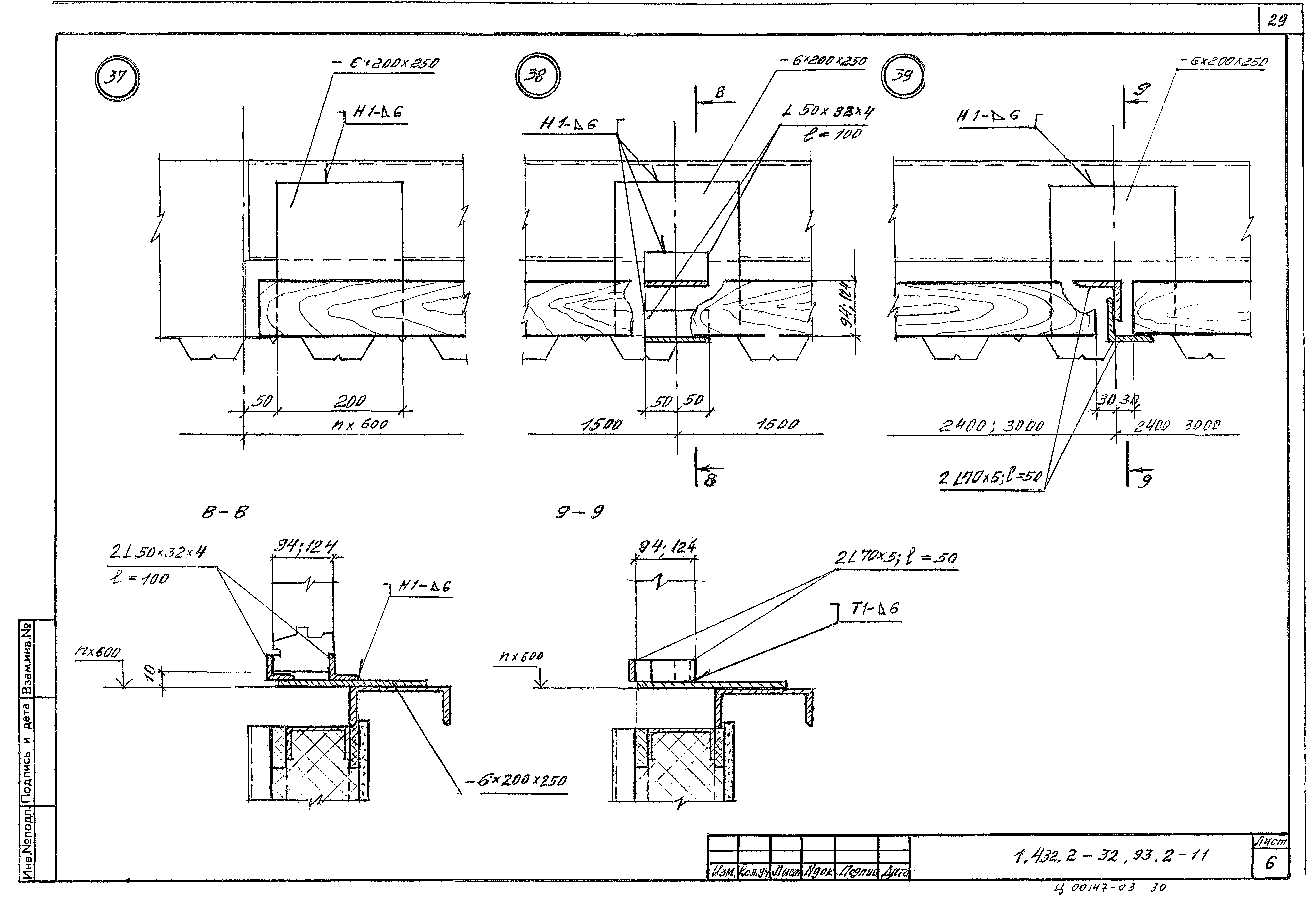
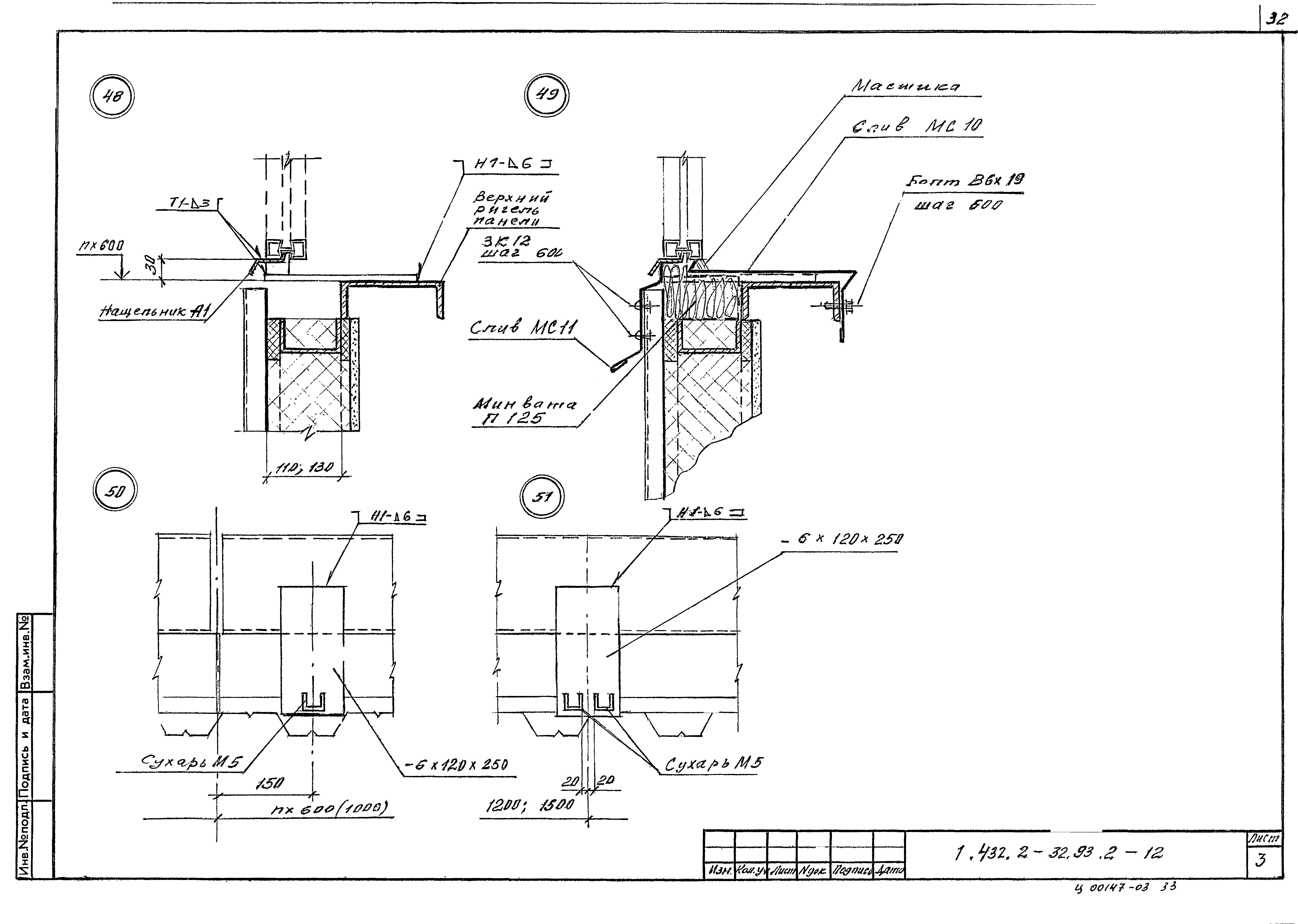
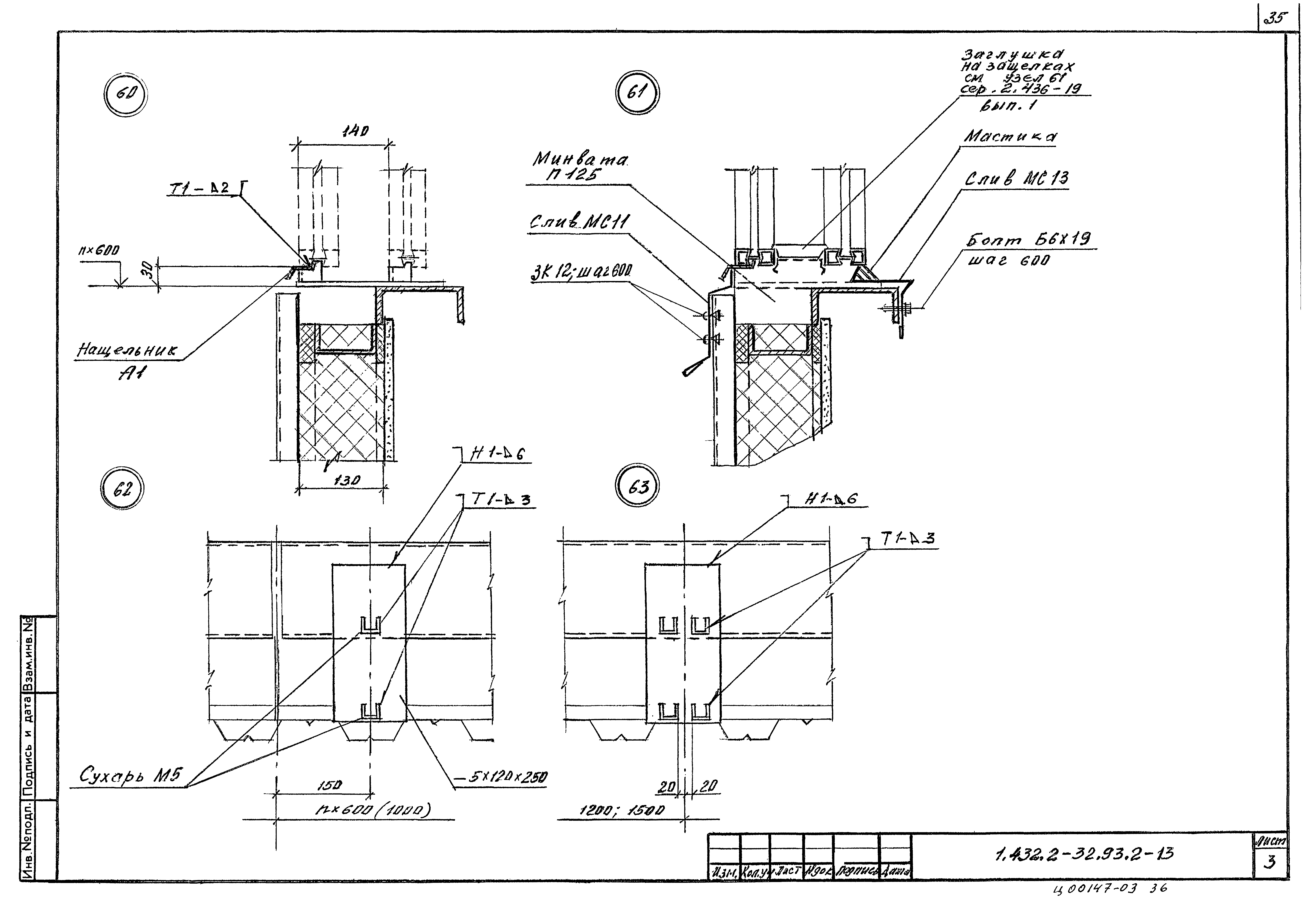
| Оглавление: | 1.432.2-32.93.2-ТТ Технические требования 1.432.2-32.93.2-1 Узел 1; 2. Крепление верха парапетной панели. Узел "А". Крепление парапетного ограждения 1.432.2-32.93.2-2 Узел 3… 6. Крепление панели на цоколе 1.432.2-32.93.2-3 Узел 7… 9. Крепление панели на стыке двух ярусов панели 1.432.2-32.93.2-4 Узел 10… 13 1.432.2-32.93.2-5 Узел 14; 15. Крепление панели в проемах 1.432.2-32.93.2-6 Узел 16; 17. Примыкание кровли к парапету продольной кровли и торцовой стены 1.432.2-32.93.2-7 Узел 18. Примыкание металлической стены к цоколю 1.432.2-32.93.2-8 Узел 19. Примыкание верхнего яруса панели к нижнему 1.432.2-32.93.2-9 Узел 20; 21. Сопряжение угловых панелей 1.432.2-32.93.2-10 Узел 22. Устройство температурного шва в стене 1.432.2-32.93.2-11 Узел 23… 39. Установка и сопряжение деревянных окон 1.432.2-32.93.2-12 Узел 40… 51. Установка и сопряжение стальных окон с одинарным переплетом 1.432.2-32.93.2-13 Узел 52… 63. Установка и сопряжение стальных окон с раздельными переплетами 1.432.2-32.93.2-14 Узел 64… 66. Установка и сопряжение деревянных дверей со стенами 1.432.2-32.93.2-15 Узел 67… 69. Установка и сопряжение металлических дверей серии 1.435.3-19 со стенами 1.432.2-32.93.2-16 Узел 70… 72. Установка и сопряжение распшных складчатых ворот серии 1.432.2-28 со стенами 1.432.2-32.93.2-17 Спецификация на узел 1… 15 1.432.2-32.93.2-18 Спецификация на узел 16… 19 1.432.2-32.93.2-19 Спецификация на узел 20… 22 1.432.2-32.93.2-20 Спецификация на узел 23… 29 1.432.2-32.93.2-21 Спецификация на узел 30… 39 1.432.2-32.93.2-22 Спецификация на узел 40… 63 1.432.2-32.93.2-23 Спецификация на узел 64… 72 |
| Разработан: | ЦНИИпромзданий |
| Утверждён: | 16.11.1993 Госстрой России (Russian Federation Gosstroy 9-3-2/240) |
| Нормативные ссылки: |
|
















































