Скачать Серия 1.131.1-27 Панели внутренних продольных и поперечных стен из тяжелого бетона для крупнопанельных жилых зданий с шагом поперечных стен 3,0 - 6,0 м и высотой этажа 2,8 м, изготавливаемые в кассетных формах. Рабочие чертежиДата актуализации: 01.01.2021
|
| Обозначение: | Серия 1.131.1-27 |
| Обозначение англ: | Series 1.131.1-27 |
| Статус: | не определен законодательством |
| Название рус.: | Панели внутренних продольных и поперечных стен из тяжелого бетона для крупнопанельных жилых зданий с шагом поперечных стен 3,0 - 6,0 м и высотой этажа 2,8 м, изготавливаемые в кассетных формах. Рабочие чертежи |
| Дата добавления в базу: | 01.09.2013 |
| Дата актуализации: | 01.01.2021 |
| Дата введения: | 15.12.1987 |
| Дата окончания срока действия: | 30.06.2003 |
| Область применения: | Стеновые панели предназначены для 5 - 9 - этажных зданий с шагом поперечных стен 3,0 - 6,0 м и высотой этажа 2,8 м и размерами планировочной сетки кратными 600 мм (6 м). Изготовление панелей предусмотрено в кассетных формах |
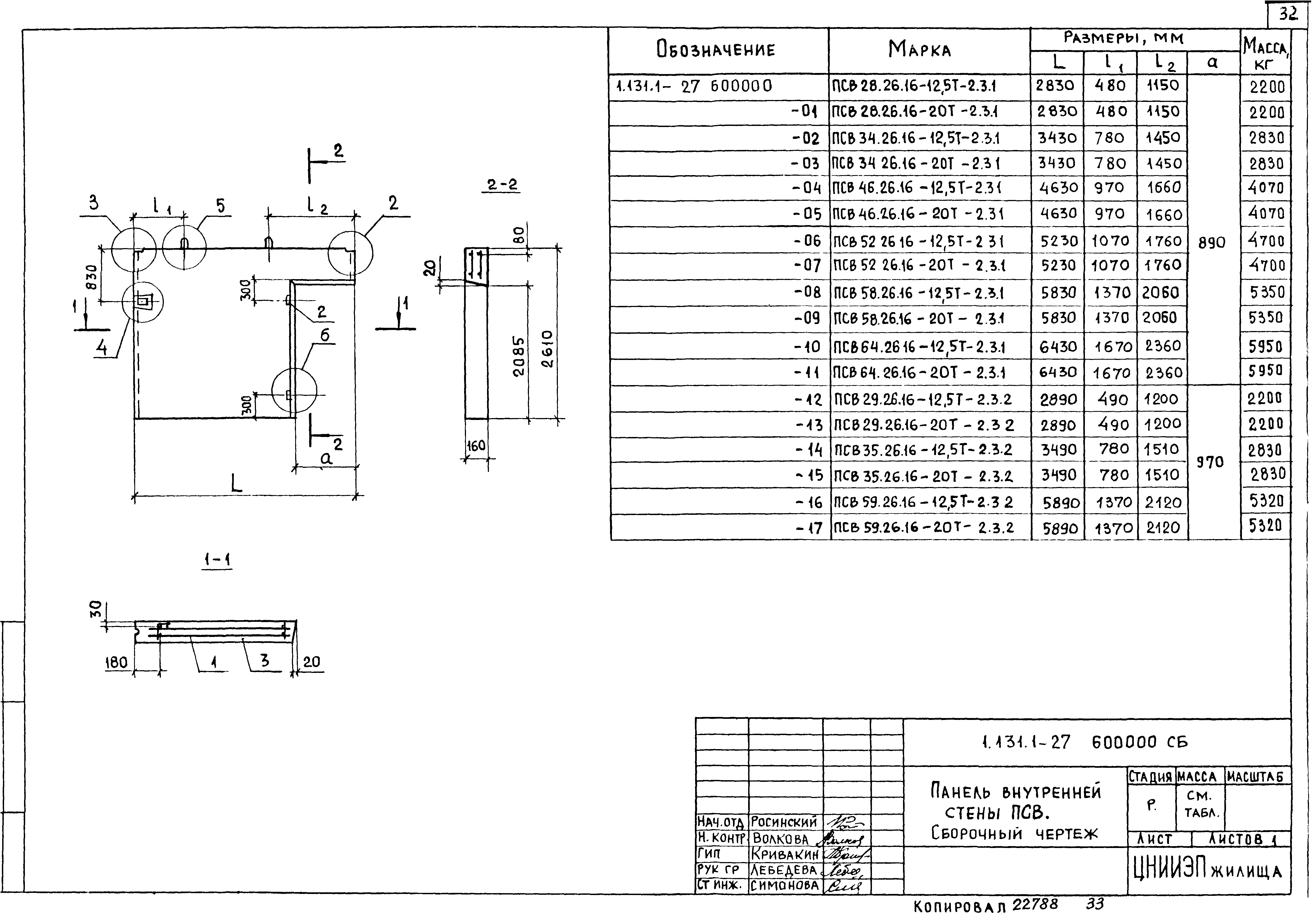
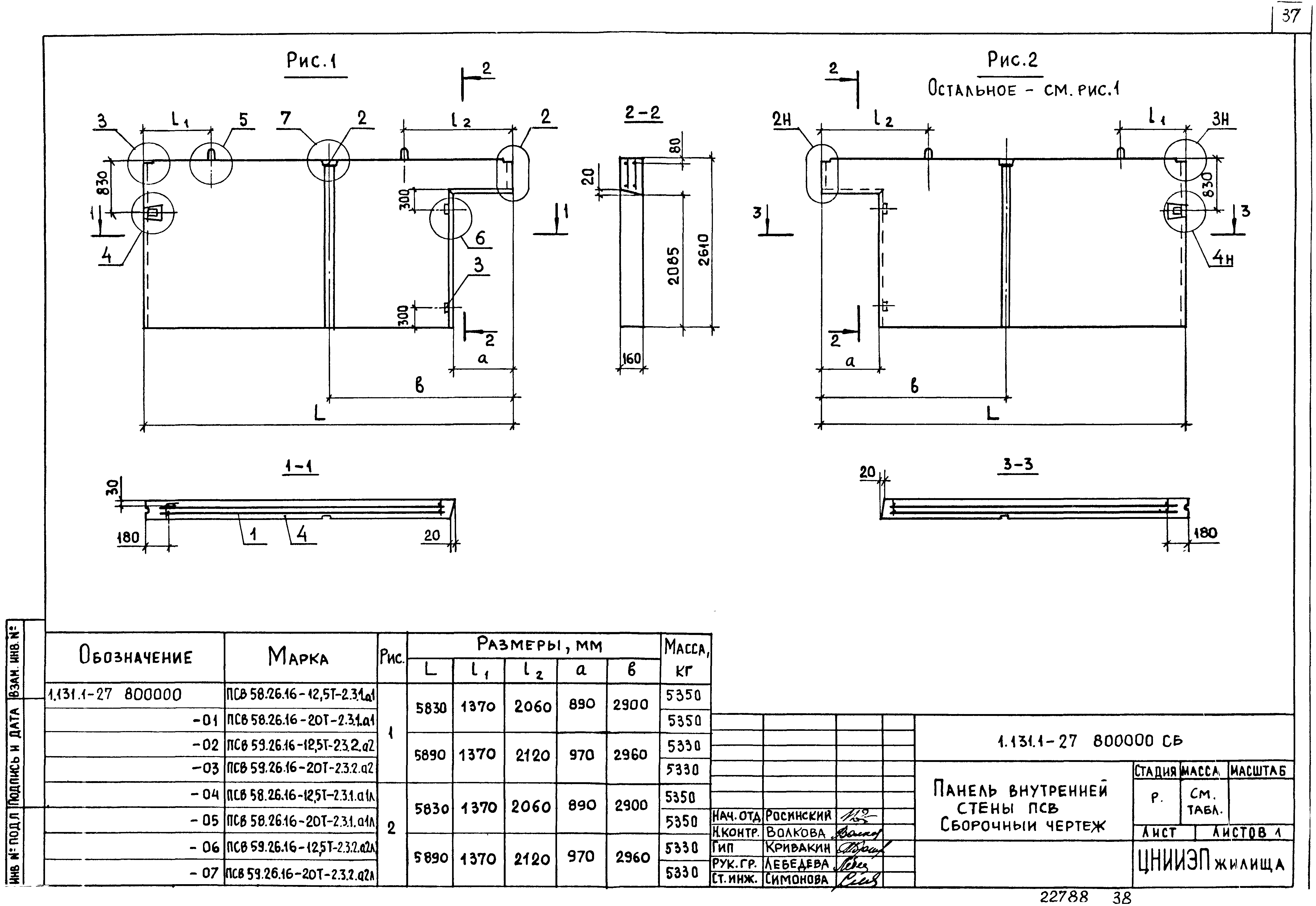
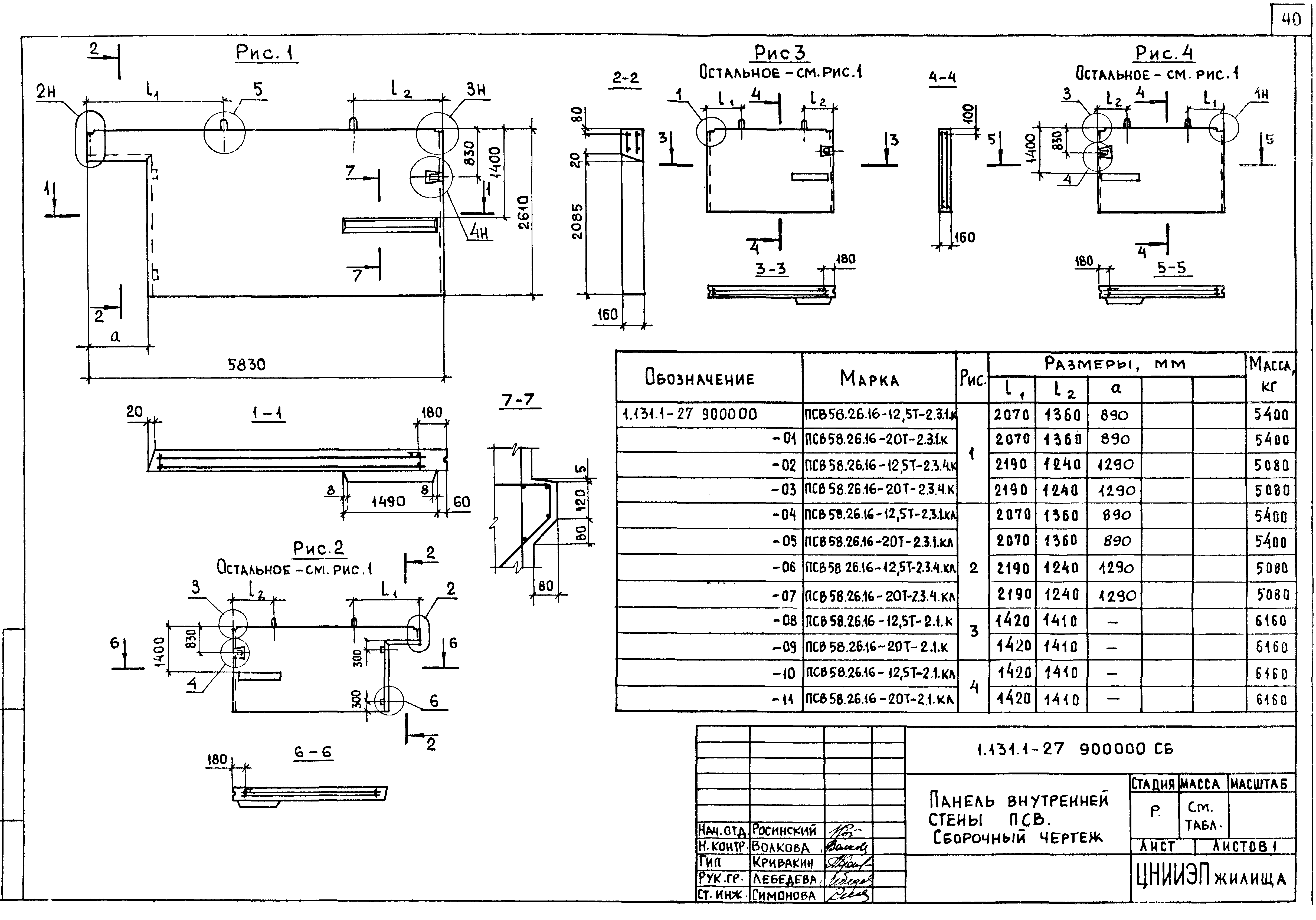
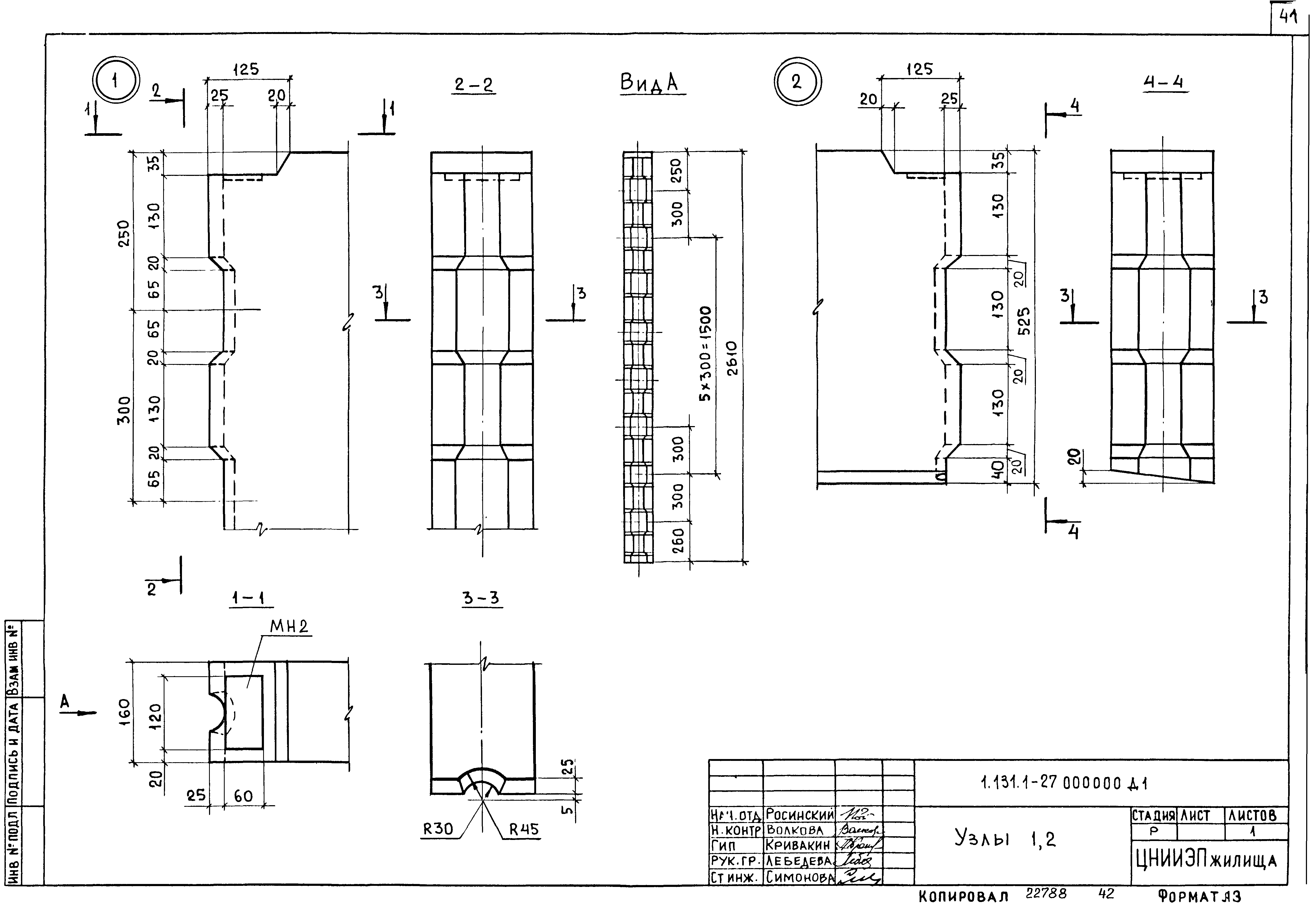
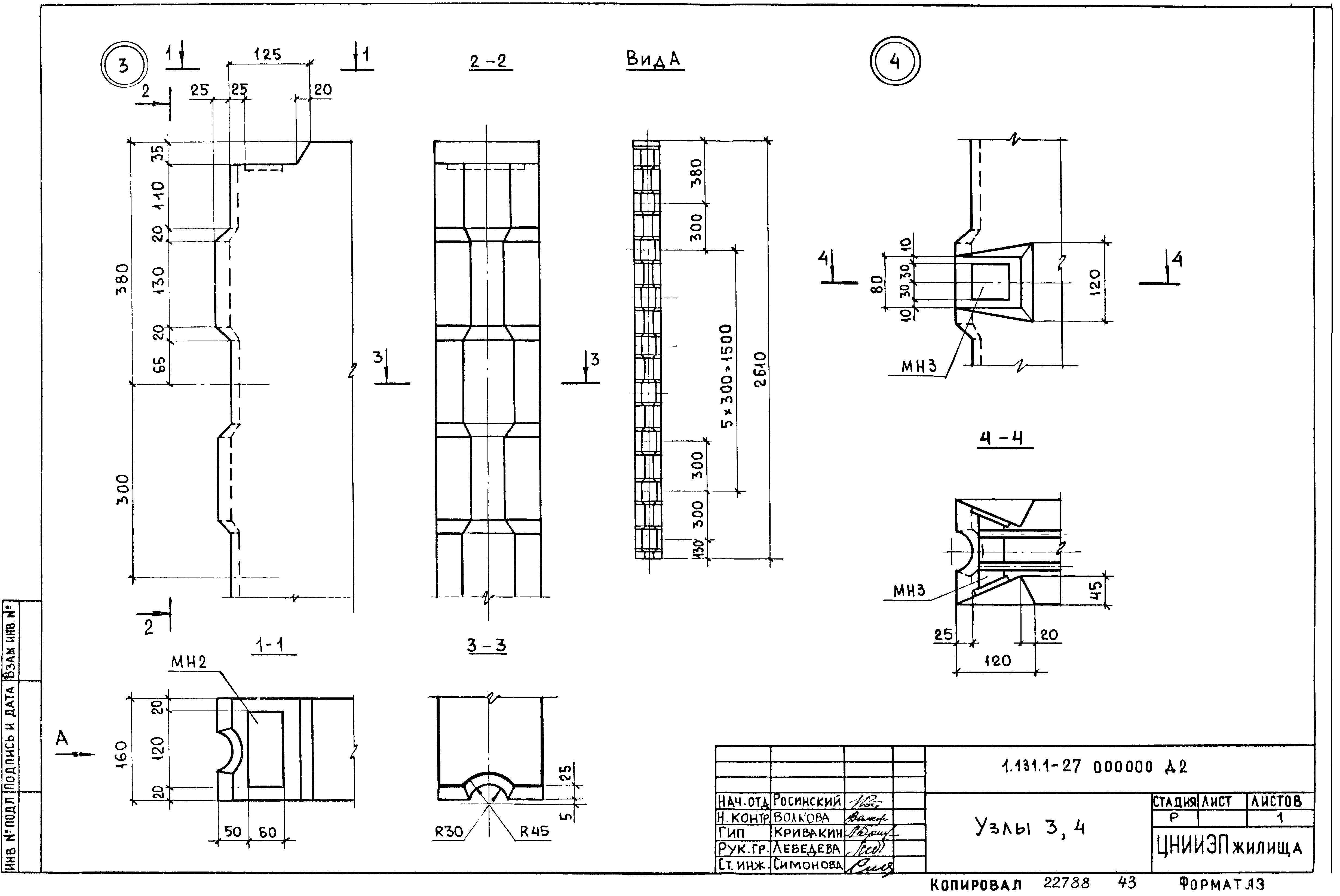
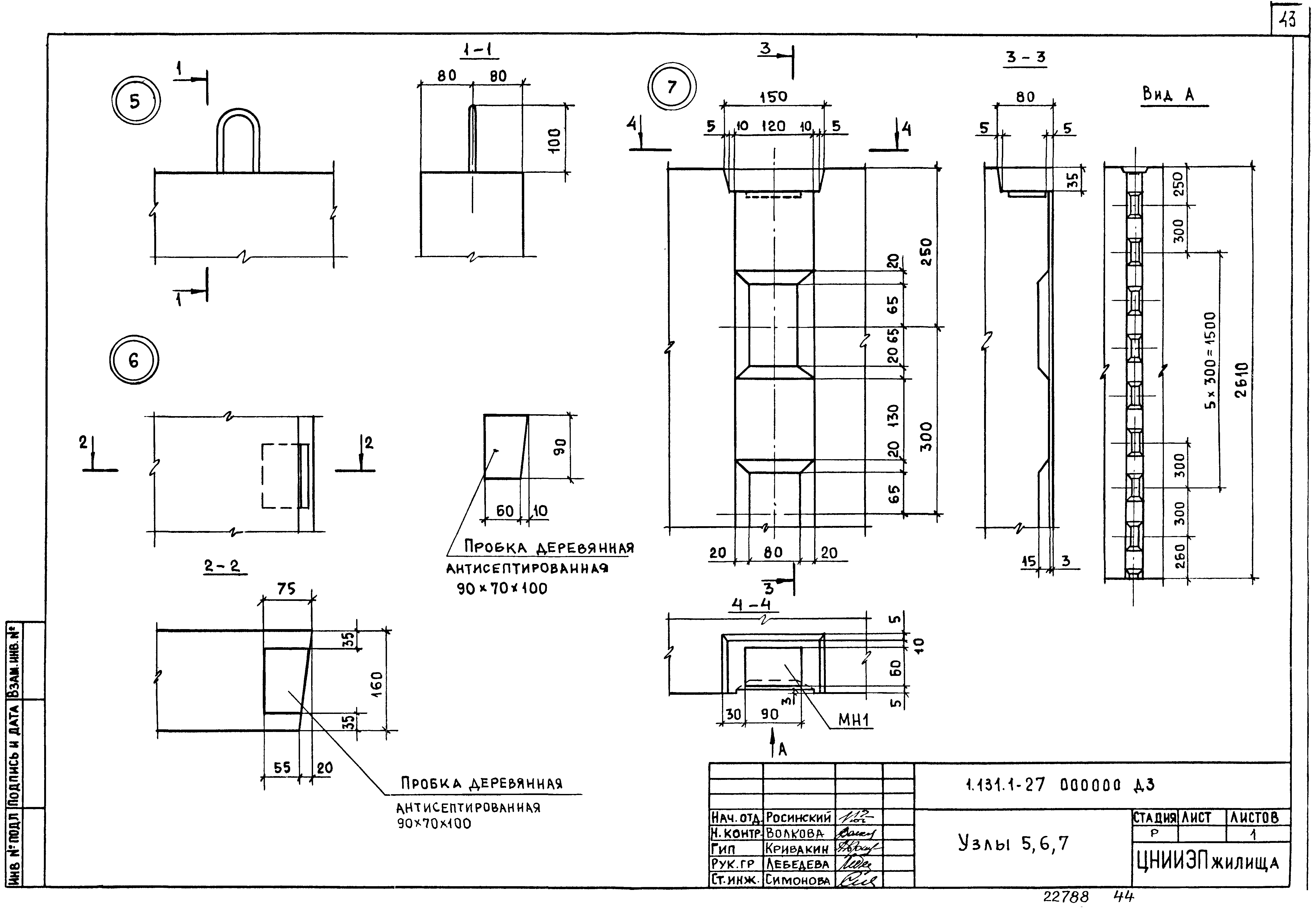
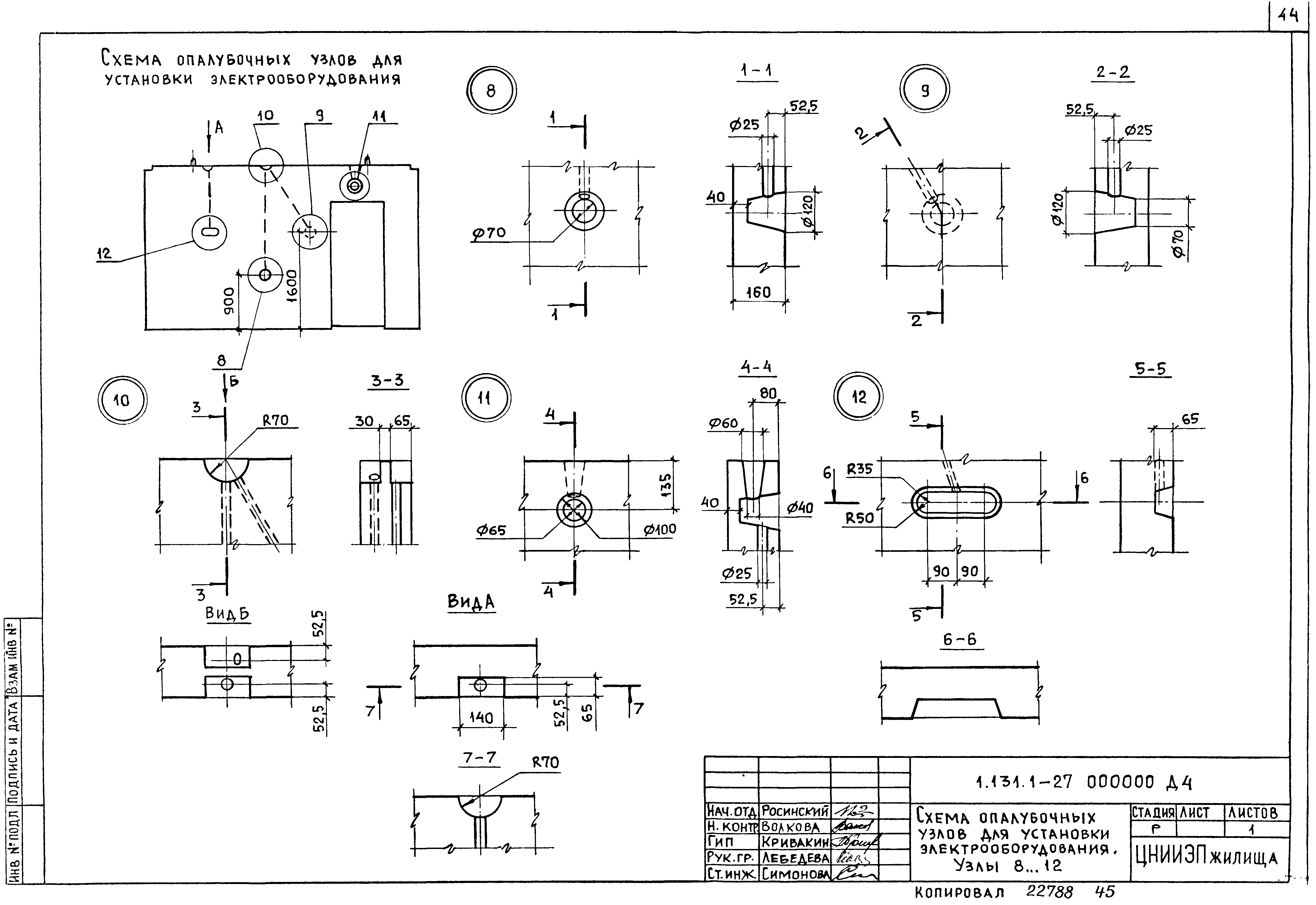
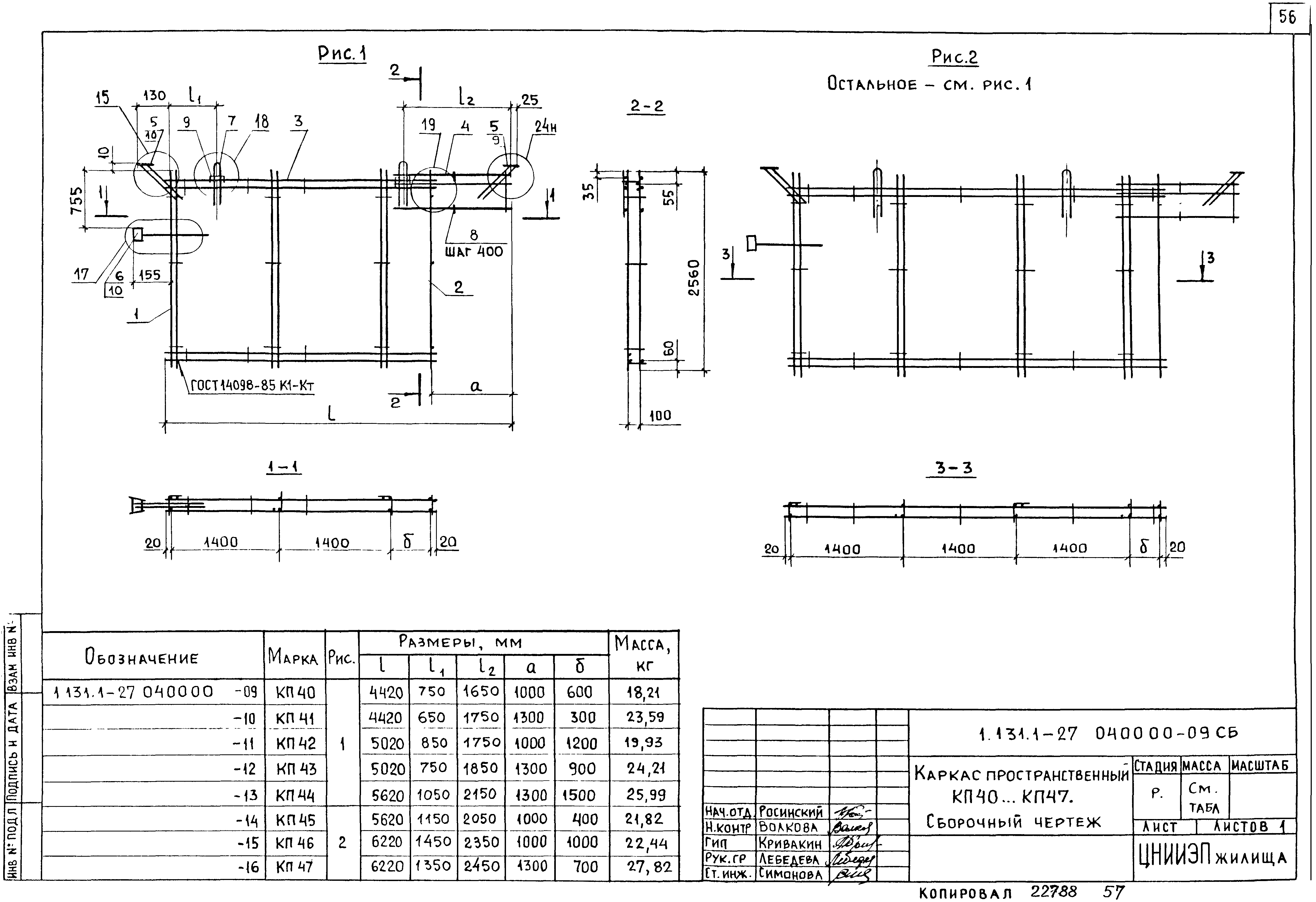
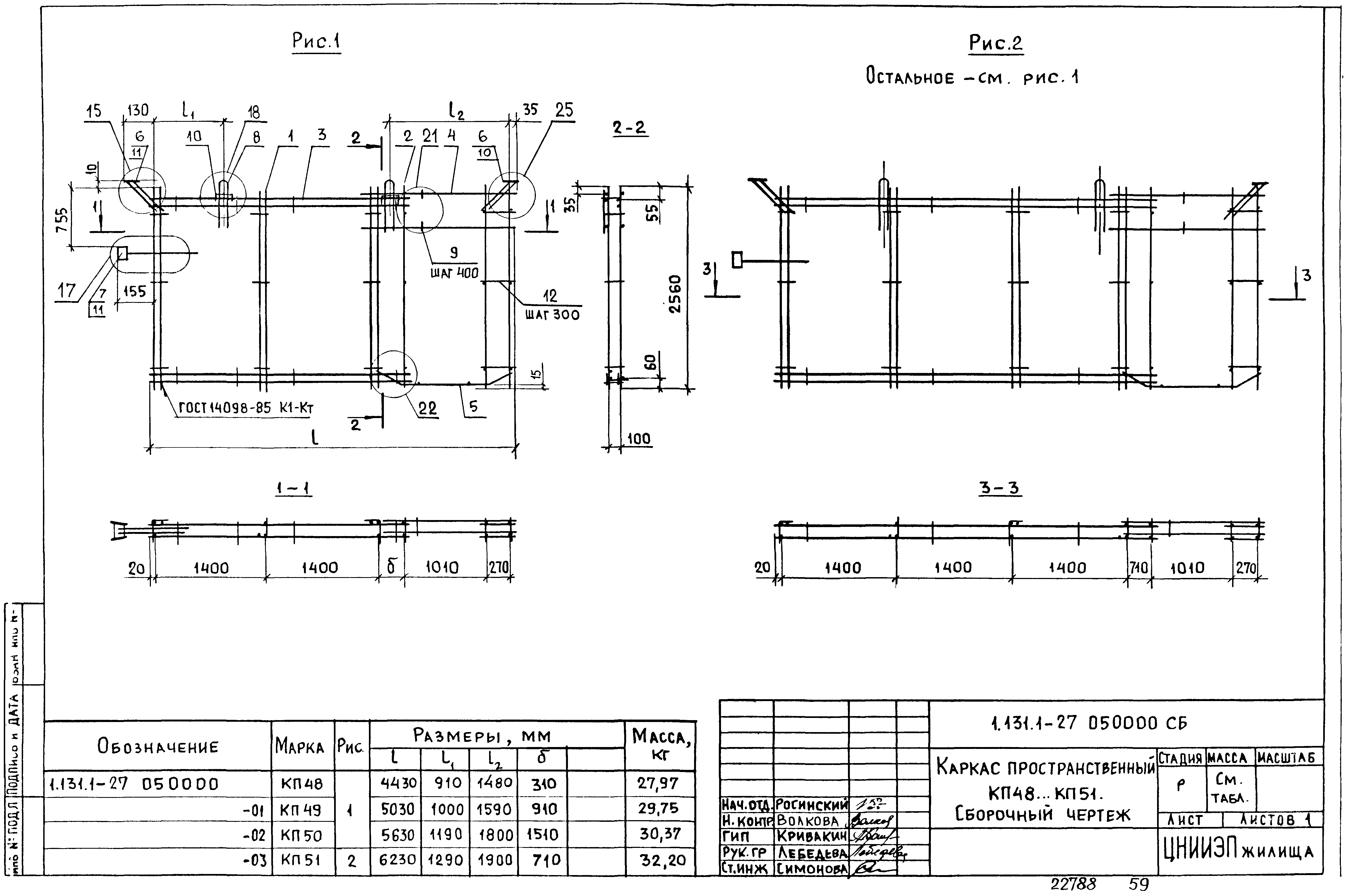
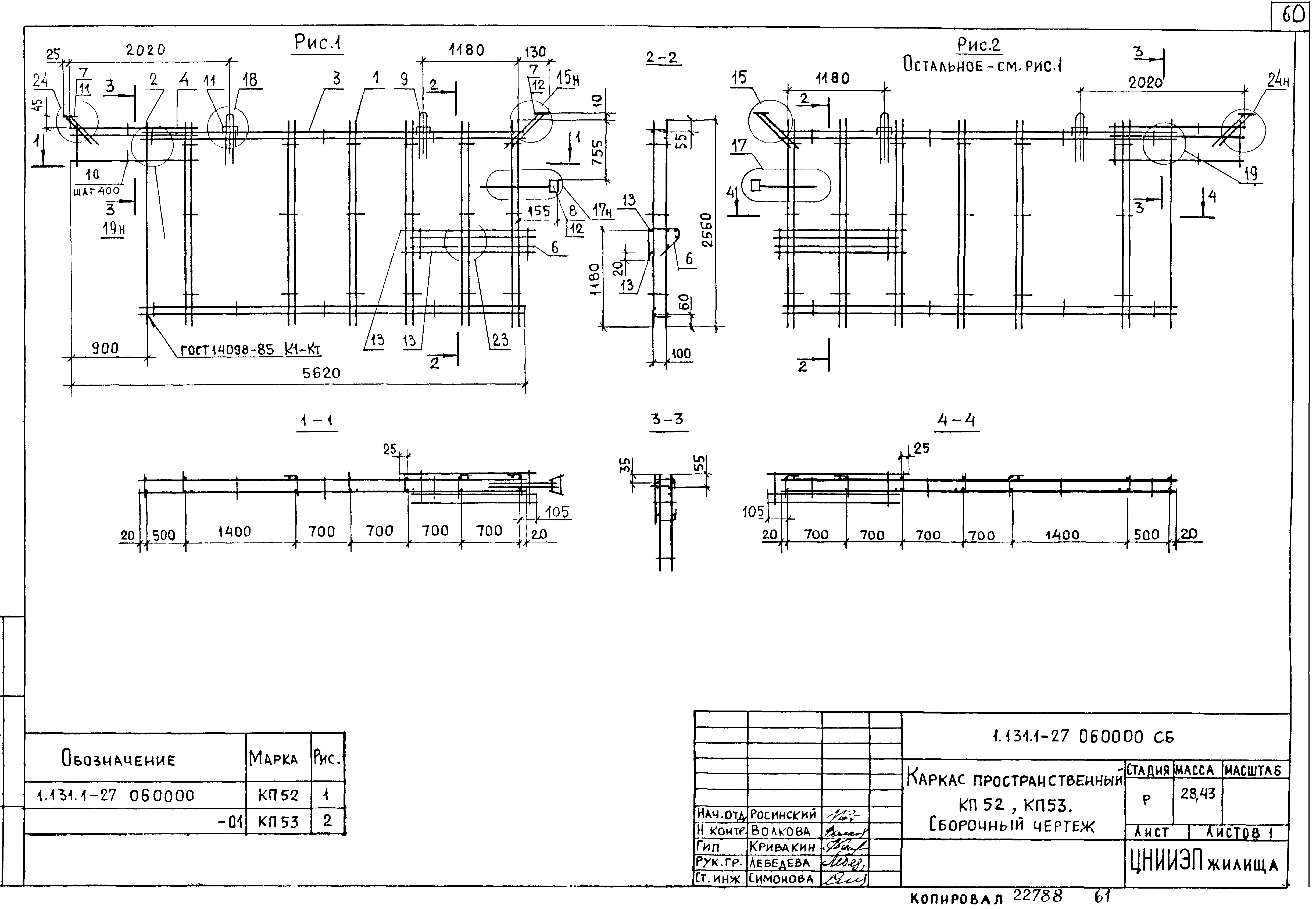
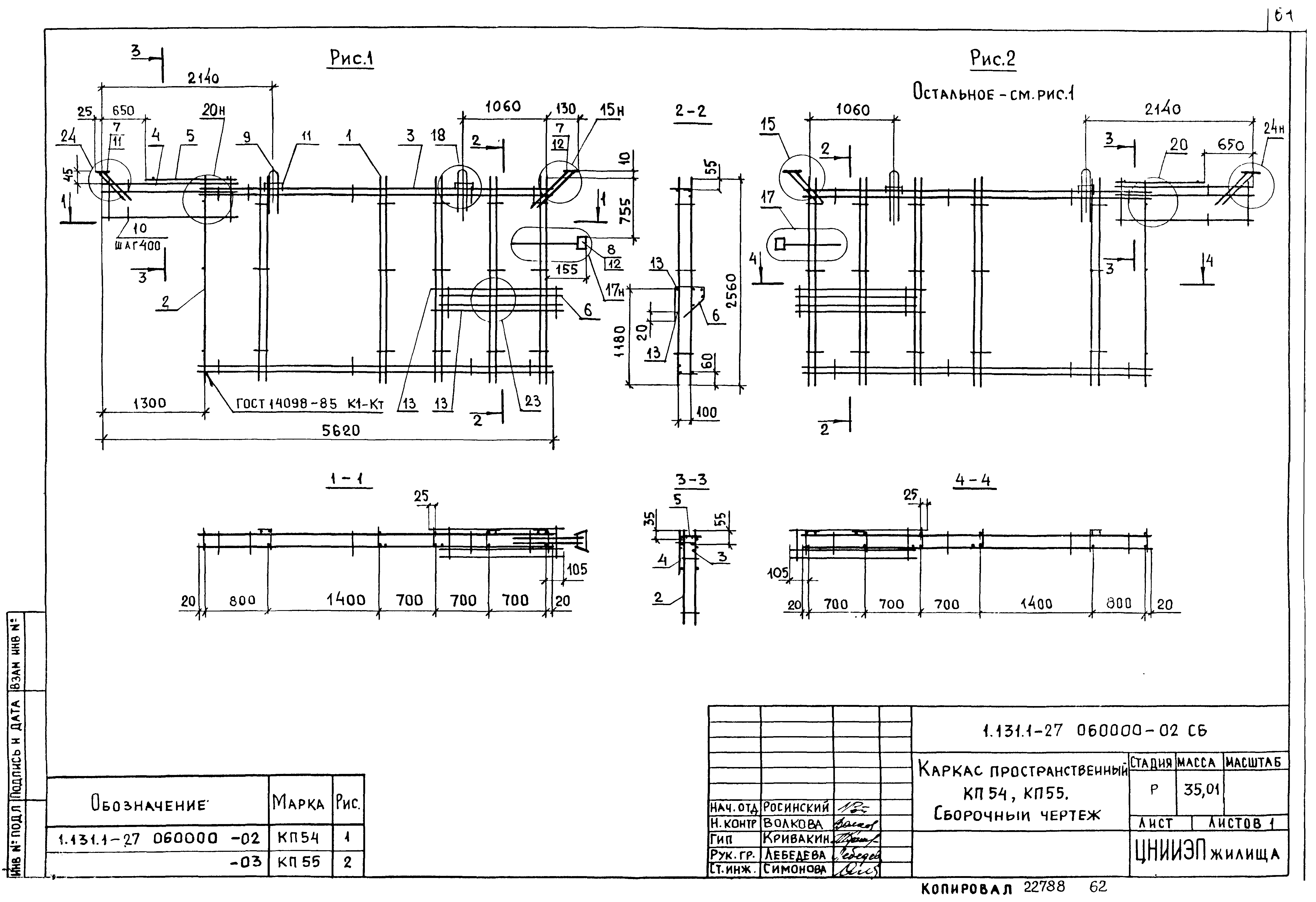
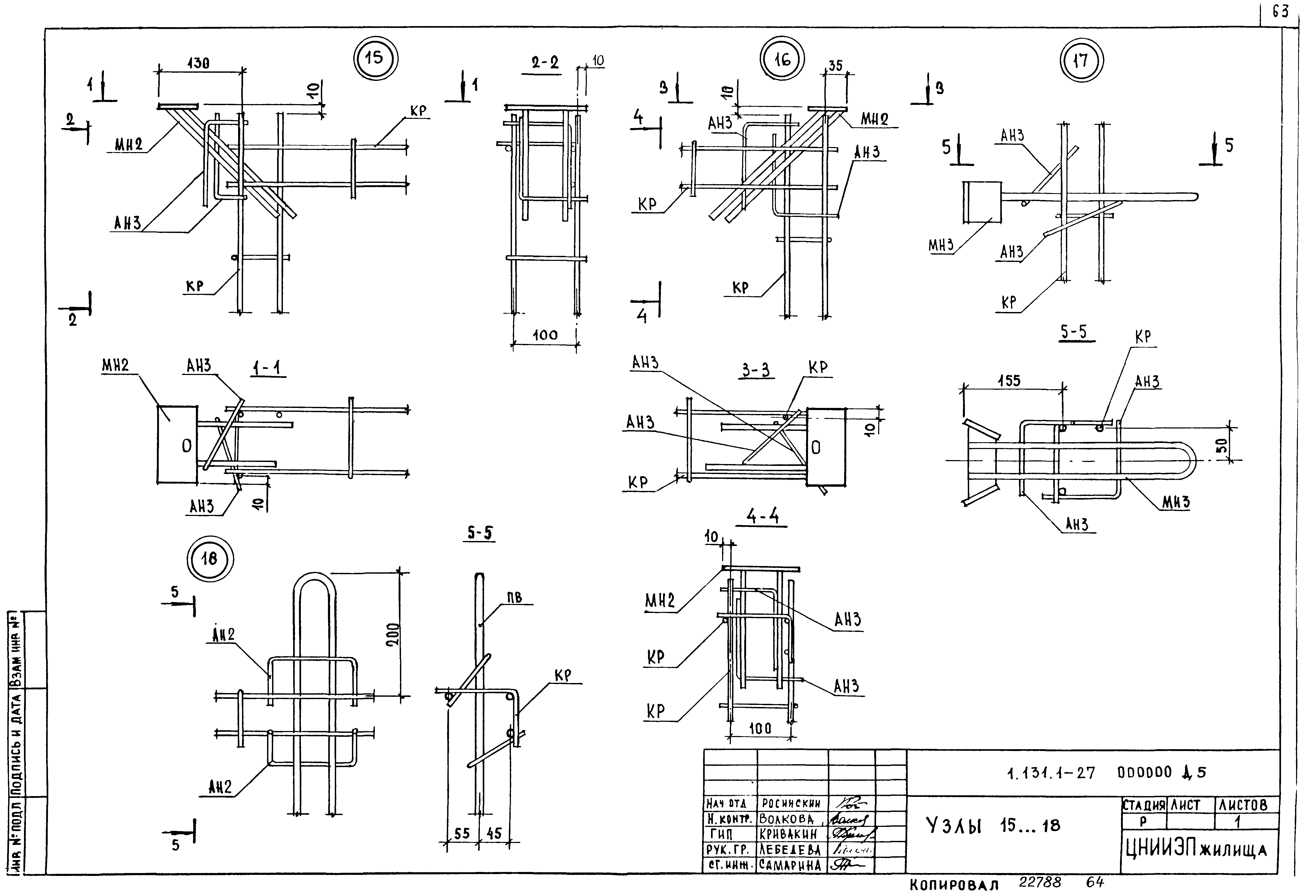
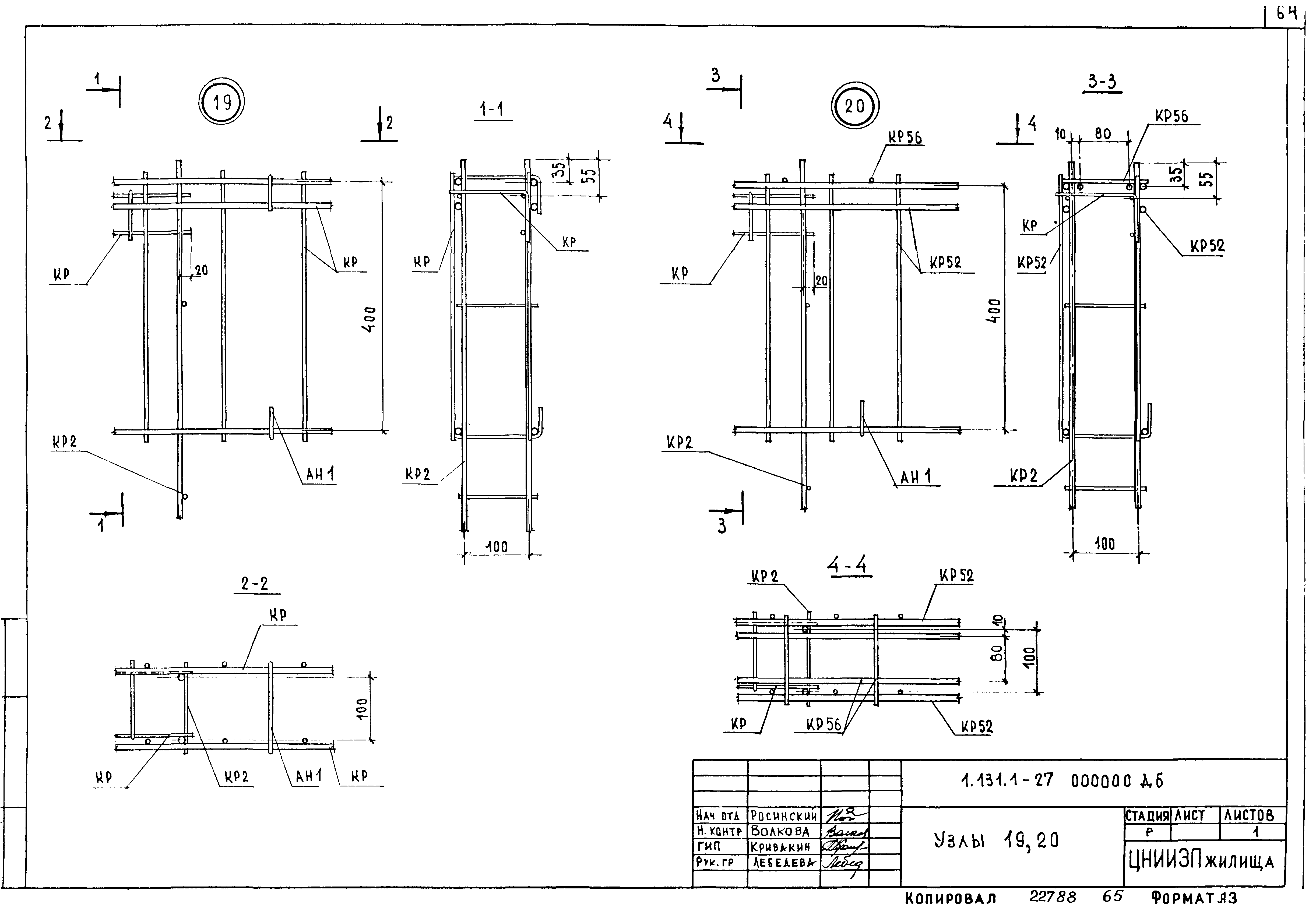
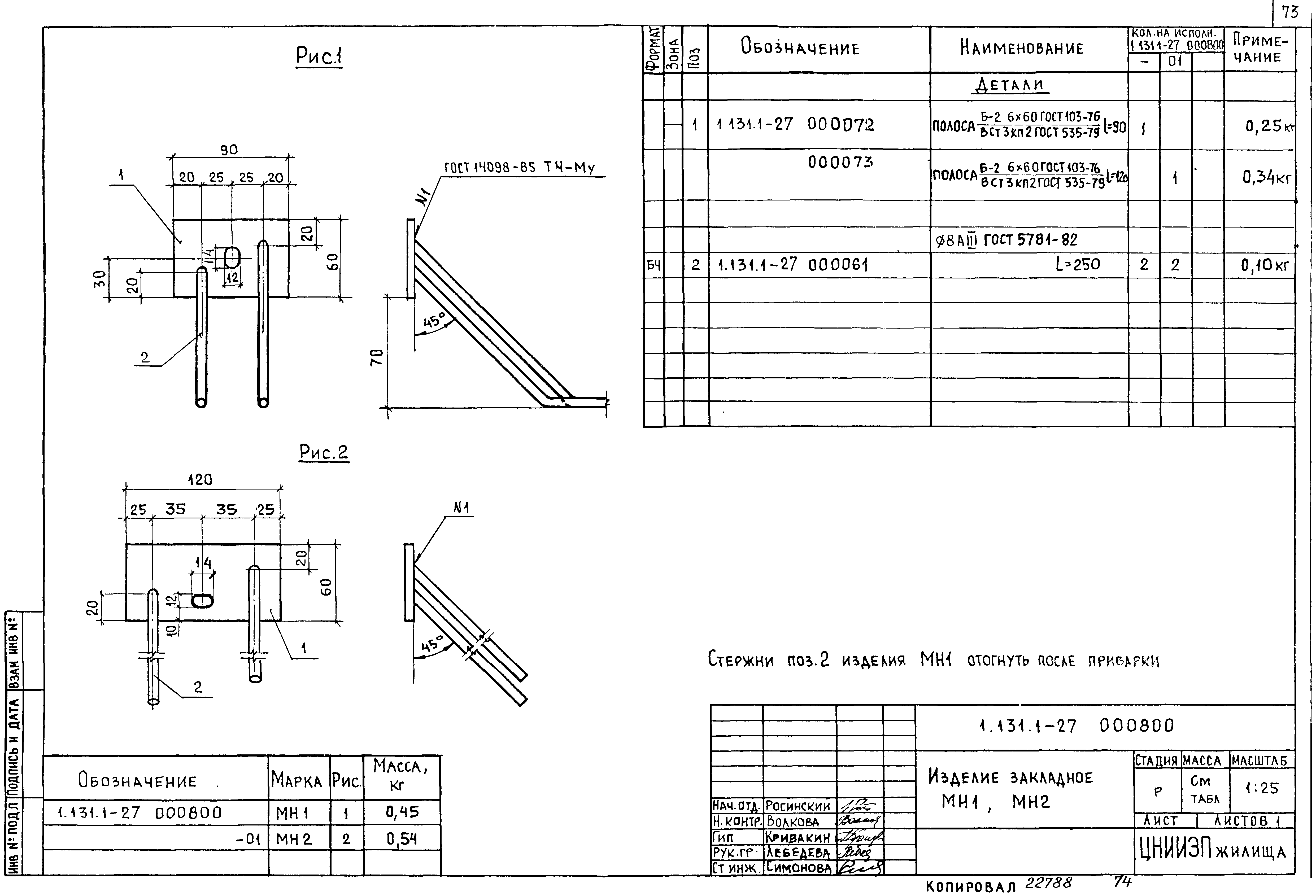
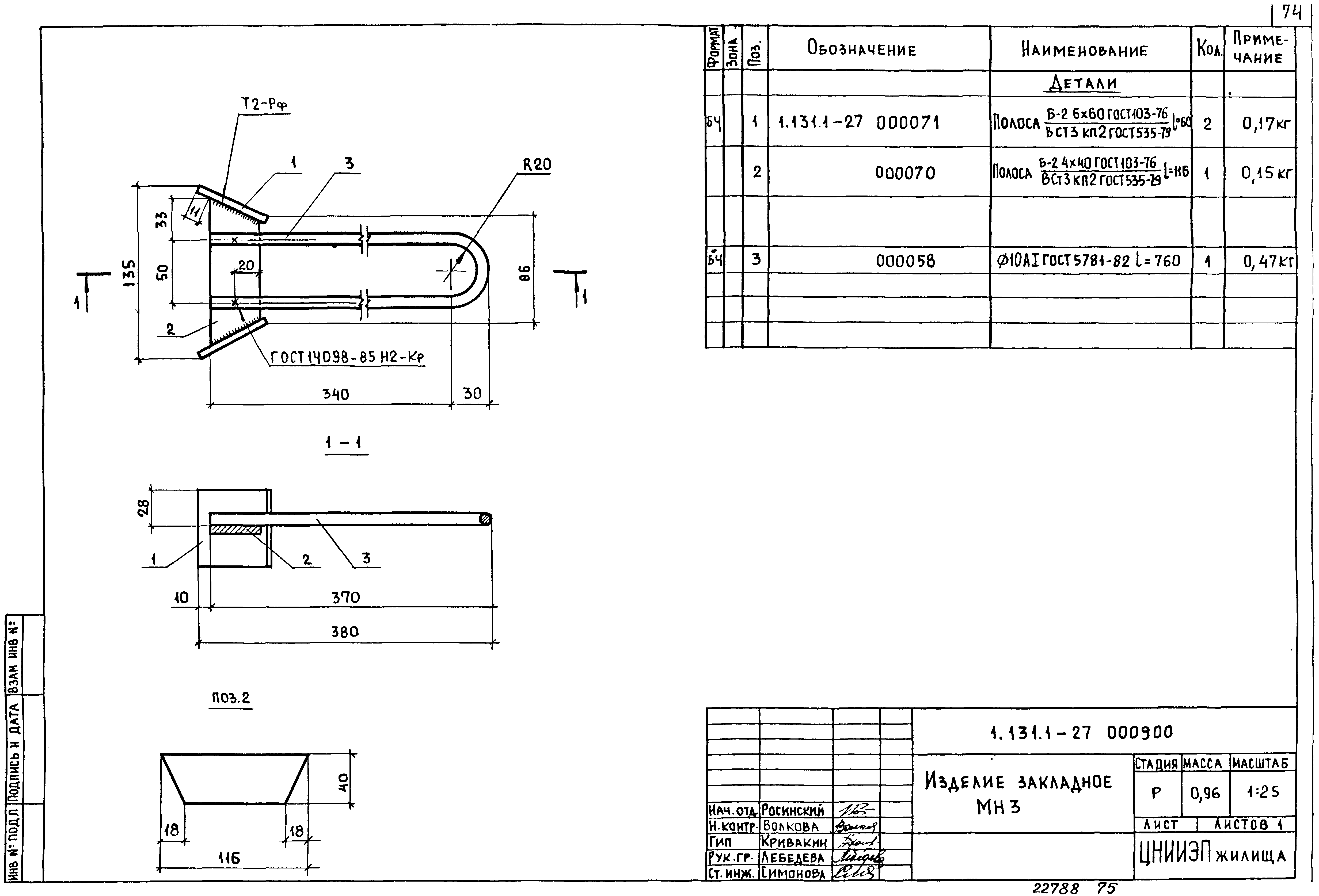
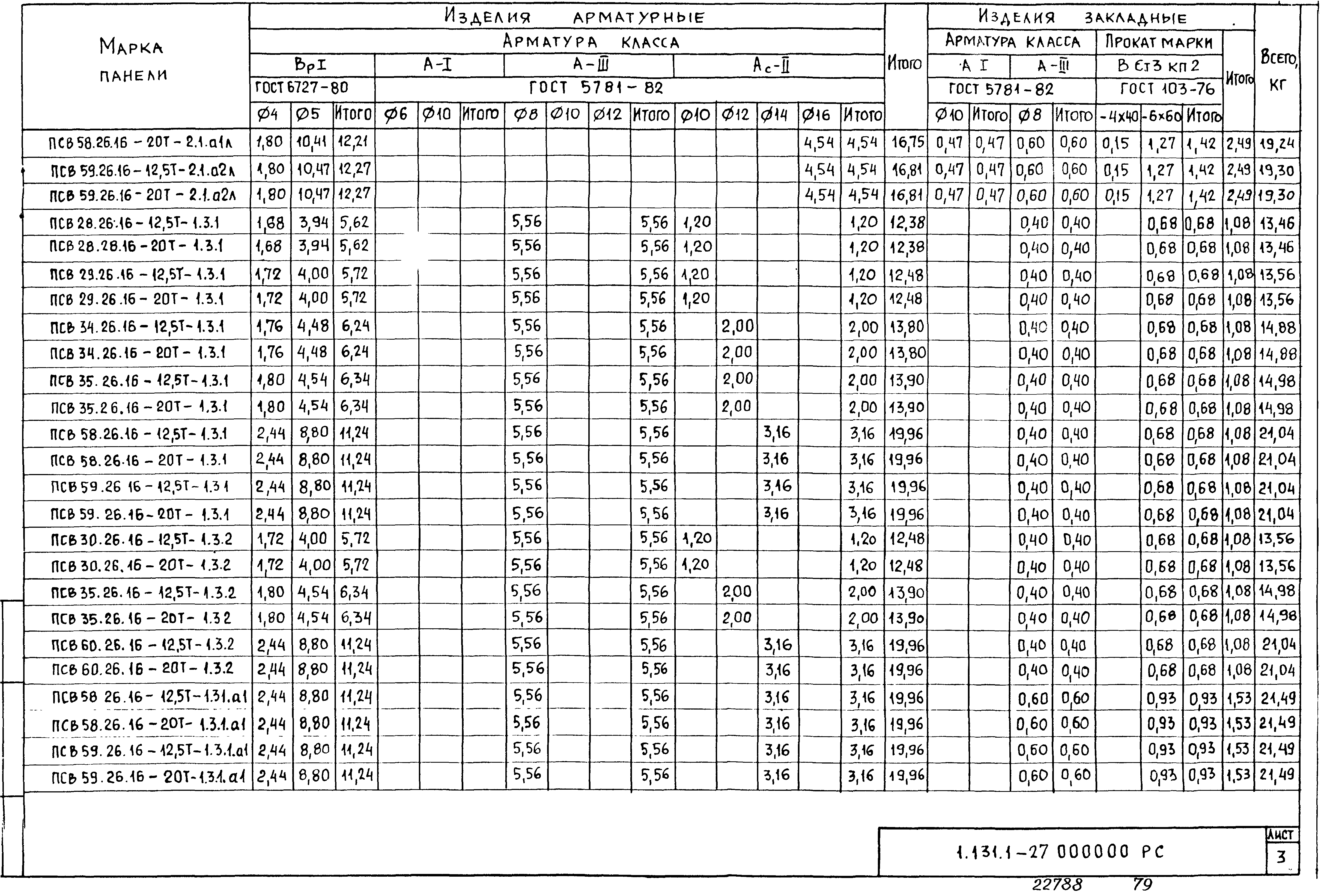
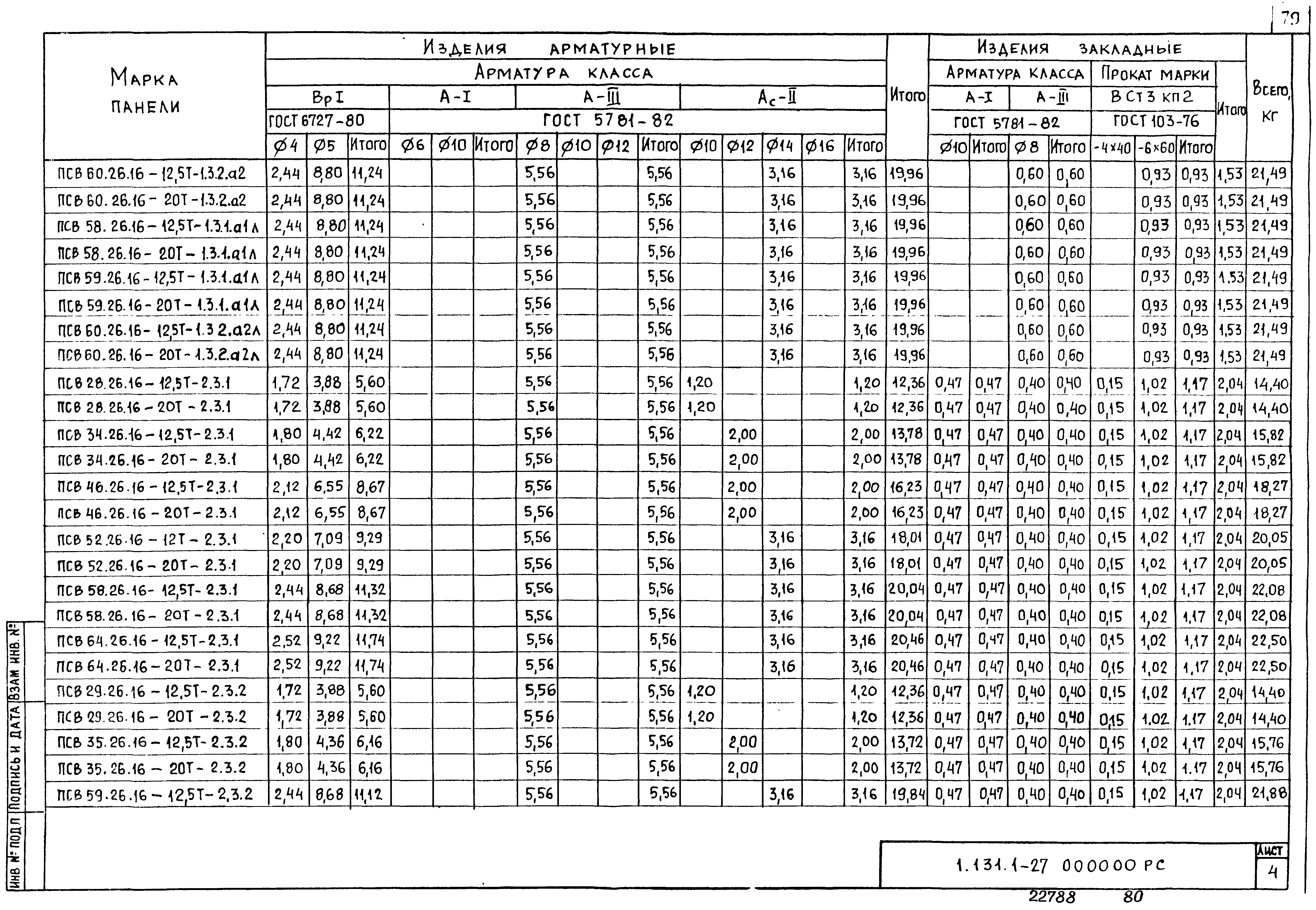
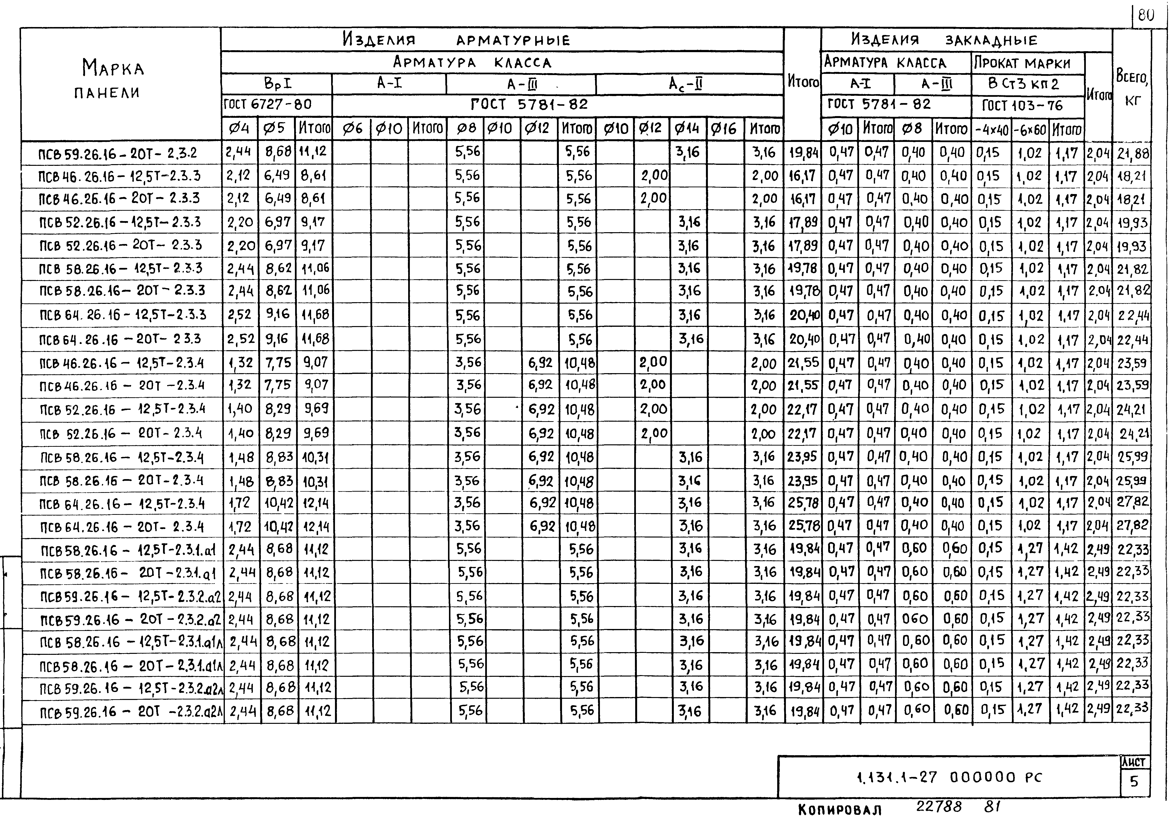
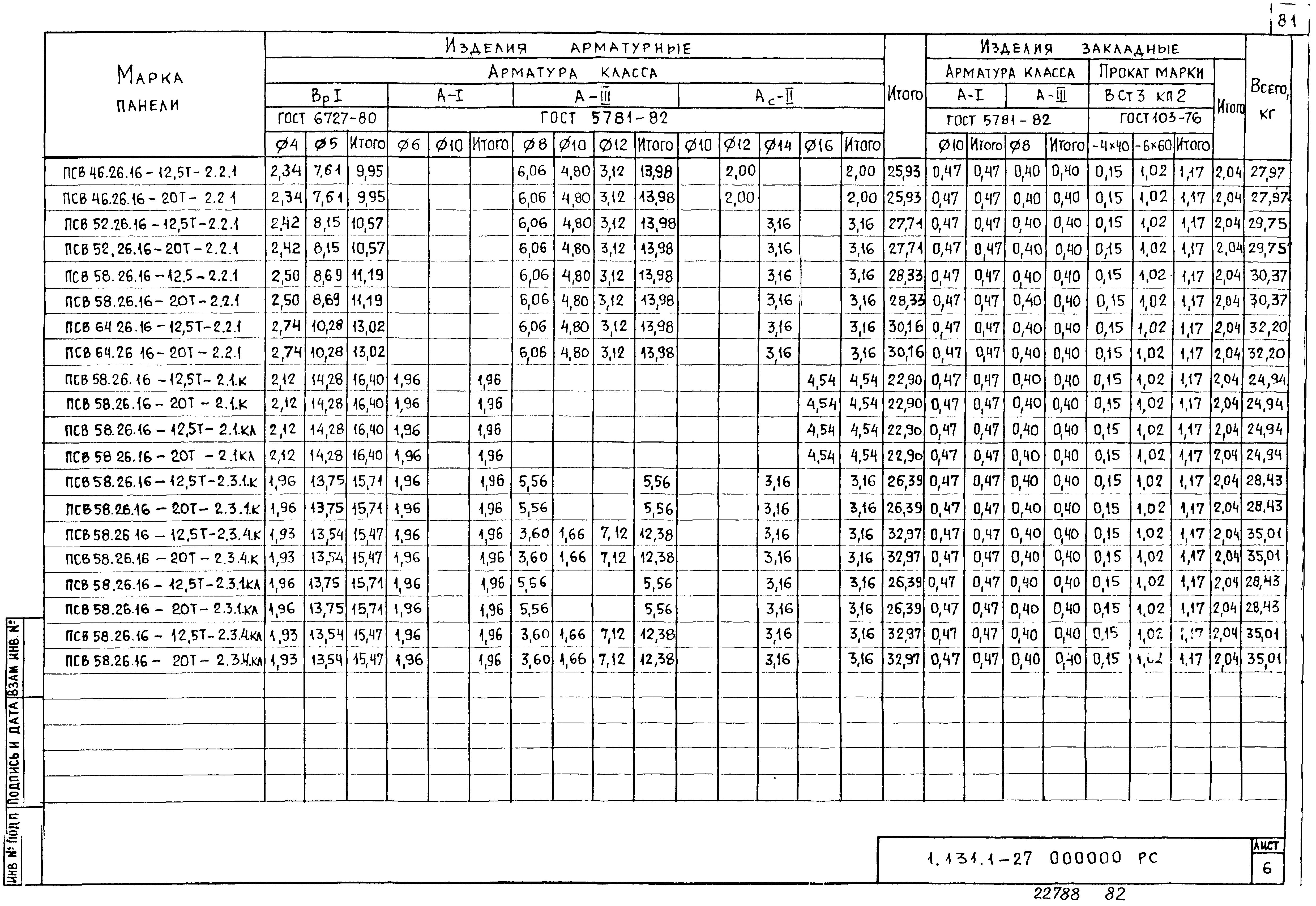
| Оглавление: | 1.131.1-27 000000 ТО Техническое описание 1.131.1-23 000000 ТУ Техническое условия 1.131.1-23 000000 НИ Номенклатура изделий 1.131.1-23 100000 Панель внутренней стены ПСВ 1.131.1-23 100000 СБ Панель внутренней стены ПСВ. Сборочный чертеж 1.131.1-23 200000 Панель внутренней стены ПСВ 1.131.1-23 200000 СБ Панель внутренней стены ПСВ. Сборочный чертеж 1.131.1-23 300000 Панель внутренней стены ПСВ 1.131.1-23 300000 СБ Панель внутренней стены ПСВ. Сборочный чертеж 1.131.1-23 400000 Панель внутренней стены ПСВ 1.131.1-23 400000 СБ Панель внутренней стены ПСВ. Сборочный чертеж 1.131.1-23 500000 Панель внутренней стены ПСВ 1.131.1-23 500000 СБ Панель внутренней стены ПСВ. Сборочный чертеж 1.131.1-23 500000-12 СБ Панель внутренней стены ПСВ. Сборочный чертеж 1.131.1-23 600000 Панель внутренней стены ПСВ 1.131.1-23 600000 СБ Панель внутренней стены ПСВ. Сборочный чертеж 1.131.1-23 700000 Панель внутренней стены ПСВ 1.131.1-23 700000 СБ Панель внутренней стены ПСВ. Сборочный чертеж 1.131.1-23 800000 Панель внутренней стены ПСВ 1.131.1-23 800000 СБ Панель внутренней стены ПСВ. Сборочный чертеж 1.131.1-23 800000-08 СБ Панель внутренней стены ПСВ. Сборочный чертеж 1.131.1-23 900000 Панель внутренней стены ПСВ 1.131.1-23 900000 СБ Панель внутренней стены ПСВ. Сборочный чертеж 1.131.1-23 000000 Д1 Узлы 1, 2 1.131.1-23 000000 Д2 Узлы 3, 4 1.131.1-23 000000 Д3 Узлы 5, 6, 7 1.131.1-23 000000 Д4 Схема опалубочных узлов для установки электрооборудования. Узлы 8… 12 1.131.1-23 010000 Каркас пространственный КП1… КП9 1.131.1-23 010000 СБ Каркас пространственный КП1… КП9. Сборочный чертеж 1.131.1-23 020000 Каркас пространственный КП10… КП18 1.131.1-23 020000 СБ Каркас пространственный КП10… КП18. Сборочный чертеж 1.131.1-23 030000 Каркас пространственный КП19… КП30 1.131.1-23 030000 СБ Каркас пространственный КП19… КП23. Сборочный чертеж 1.131.1-23 030000-05 СБ Каркас пространственный КП24… КП30. Сборочный чертеж 1.131.1-23 040000 Каркас пространственный КП31… КП47 1.131.1-23 040000 СБ Каркас пространственный КП31… КП39. Сборочный чертеж 1.131.1-23 040000-09 СБ Каркас пространственный КП40… КП47. Сборочный чертеж 1.131.1-23 050000 Каркас пространственный КП48… КП51 1.131.1-23 050000 СБ Каркас пространственный КП48… КП51. Сборочный чертеж 1.131.1-23 060000 Каркас пространственный КП52… КП57 1.131.1-23 060000 СБ Каркас пространственный КП52, КП53. Сборочный чертеж 1.131.1-23 060000-09 СБ Каркас пространственный КП54, КП55. Сборочный чертеж 1.131.1-23 060000-09 СБ Каркас пространственный КП56, КП57. Сборочный чертеж 1.131.1-23 000000 Д5 Узлы 15… 18 1.131.1-23 000000 Д6 Узлы 19, 20 1.131.1-23 000000 Д7 Узлы 21… 25 1.131.1-23 000100 Каркас КР1… КР10 1.131.1-23 000200 Каркас КР11… КР20 1.131.1-23 000300 Каркас КР21… КР30 1.131.1-23 000400 Каркас КР31… КР40 1.131.1-23 000500 Каркас КР41… КР48 1.131.1-23 000600 Каркас КР51… КР55 1.131.1-23 000700 Каркас КР56, КР57, КР58 1.131.1-23 000800 Изделие закладное МН1, МН2 1.131.1-23 000900 Изделие закладное МН3 1.131.1-23 000001 Подъемная петля ПВ1… ПВ4 1.131.1-23 000002 Стержень гнутый АН1, АН2, АН3 1.131.1-23 000000 РС Ведомость расхода стали на элемент 1.131.1-23 000000 РМ Ведомость расхода материалов |
| Разработан: | ЦНИИЭП жилища |
| Утверждён: | 03.12.1987 Госгражданстрой (Gosgrazhdanstroy 391) |
| Издан: | ЦИТП Госстроя СССР (CITP, Gosstroy (USSR) 1988 г. ) |
| Нормативные ссылки: |
|




































































































