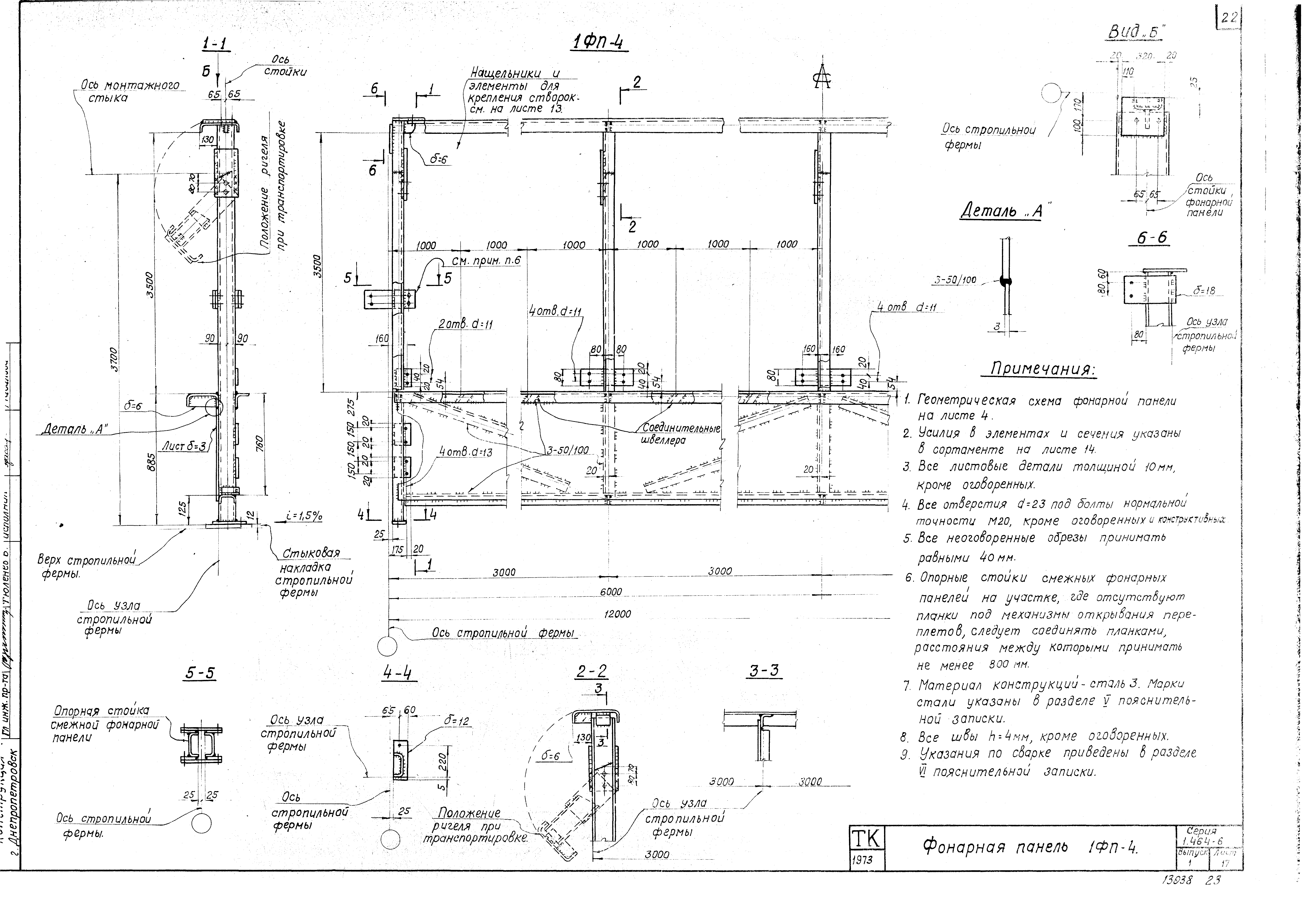
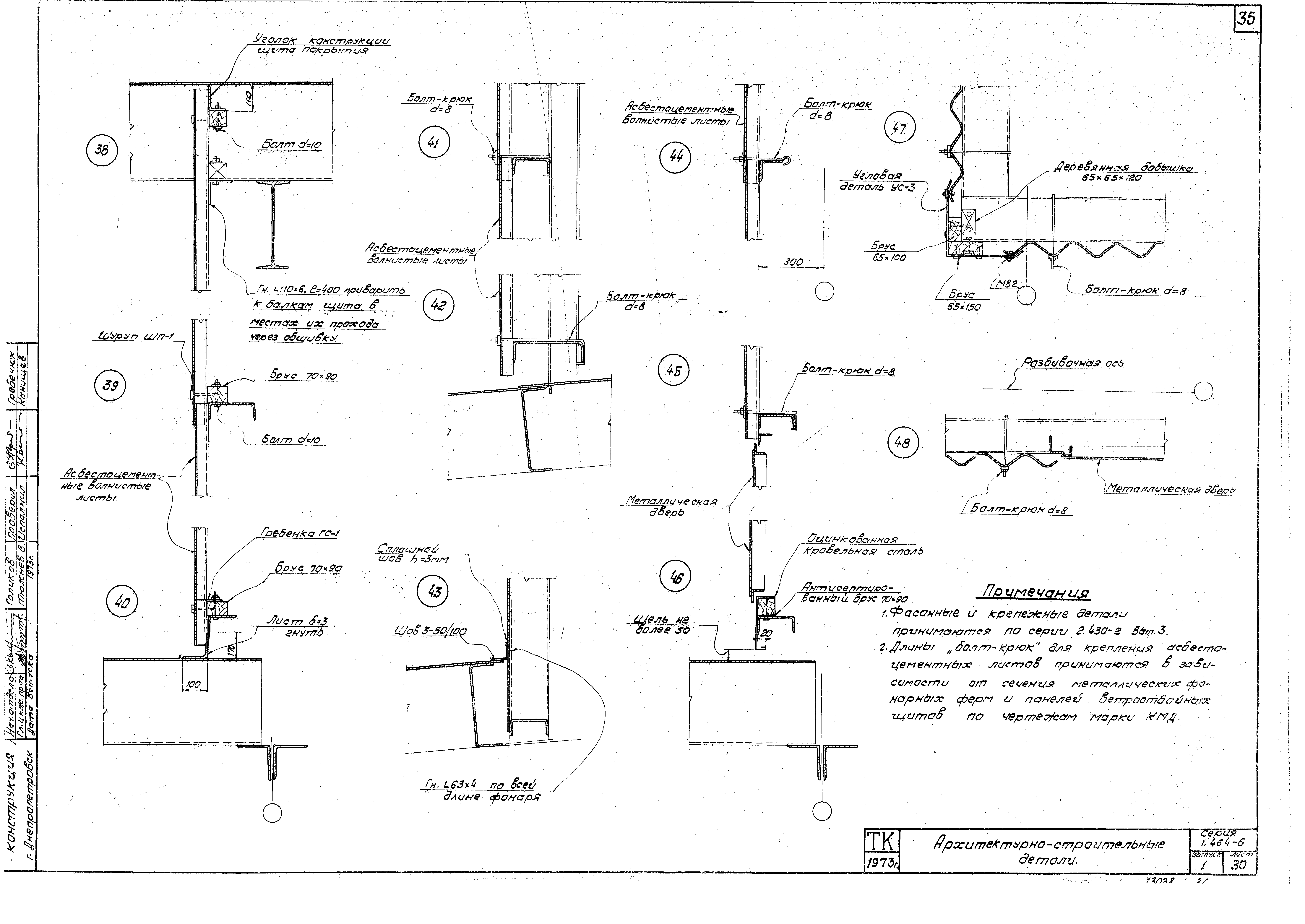
Скачать Серия 1.464-6 Выпуск 1. Стальные конструкции аэрационных фонарей из холодных профилей. Чертежи КМДата актуализации: 01.01.2021
|
| Обозначение: | Серия 1.464-6 |
| Обозначение англ: | Series 1.464-6 |
| Статус: | не действует |
| Название рус.: | Выпуск 1. Стальные конструкции аэрационных фонарей из холодных профилей. Чертежи КМ |
| Дата добавления в базу: | 01.09.2013 |
| Дата актуализации: | 01.01.2021 |
| Дата введения: | 01.01.1975 |
| Дата окончания срока действия: | 01.04.1984 |
| Разработан: | Днепропроектстальконструкция |
| Утверждён: | 14.11.1974 Госстрой СССР (Государственный комитет Совета Министров СССР по делам строительства) (USSR Gosstroy 169) |
| Заменяет собой: | |
| Чем заменён: |



































