Скачать Серия 1.464.3-19 Стальные конструкции аэрационных фонарей для производственных зданий. Чертежи КМДата актуализации: 01.01.2021
|
| Обозначение: | Серия 1.464.3-19 |
| Обозначение англ: | Series 1.464.3-19 |
| Статус: | действует |
| Название рус.: | Стальные конструкции аэрационных фонарей для производственных зданий. Чертежи КМ |
| Дата добавления в базу: | 01.09.2013 |
| Дата актуализации: | 01.01.2021 |
| Дата введения: | 01.07.1984 |
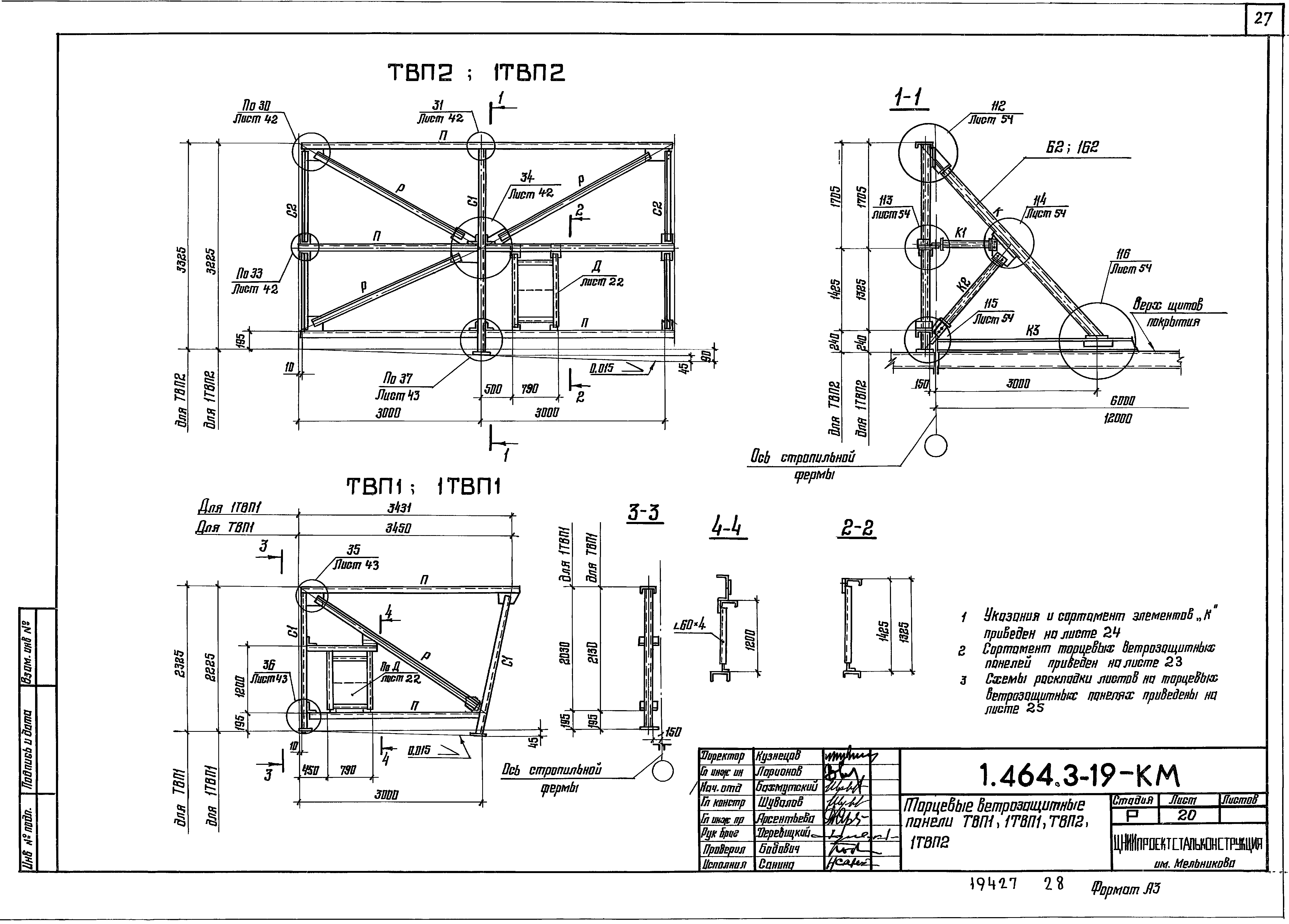
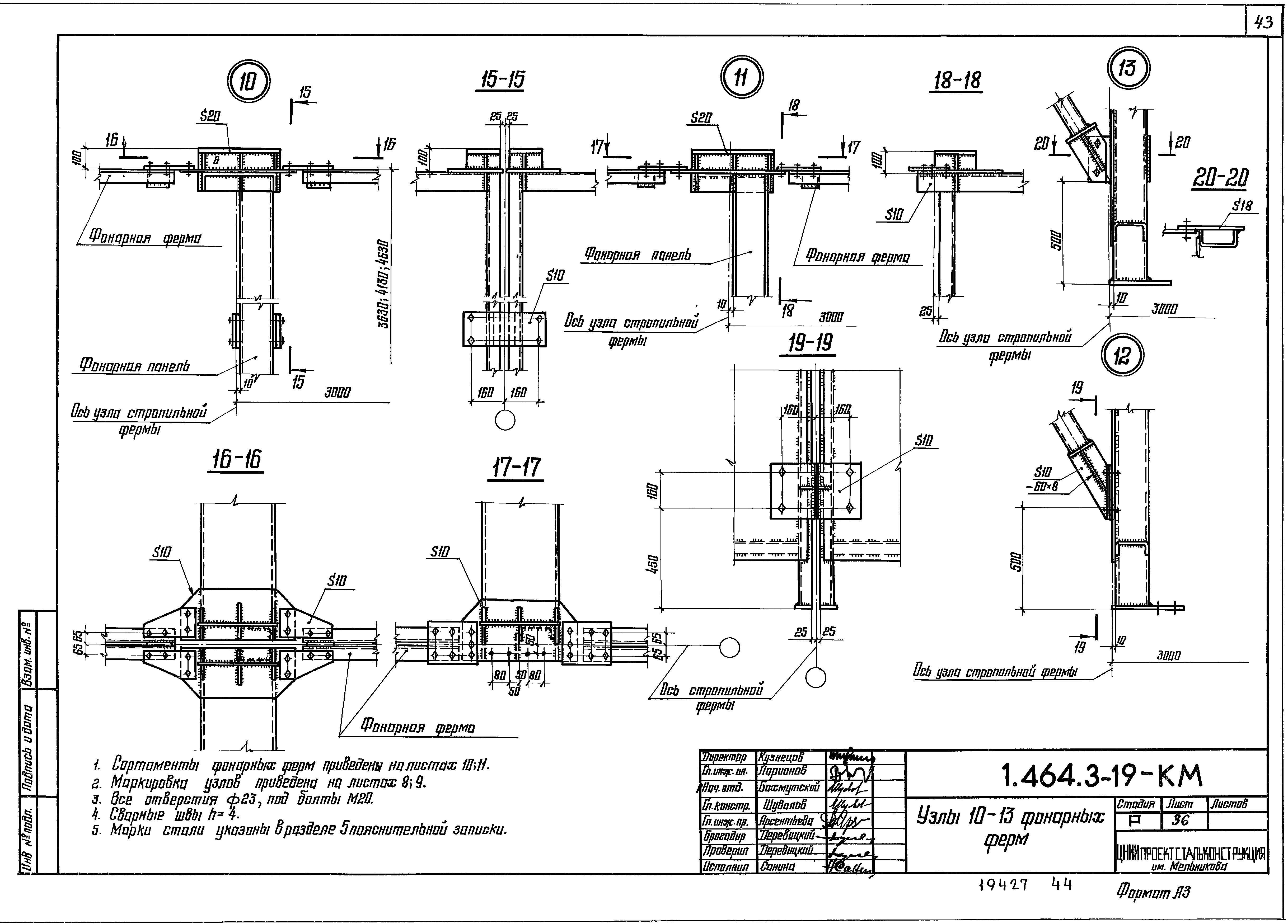
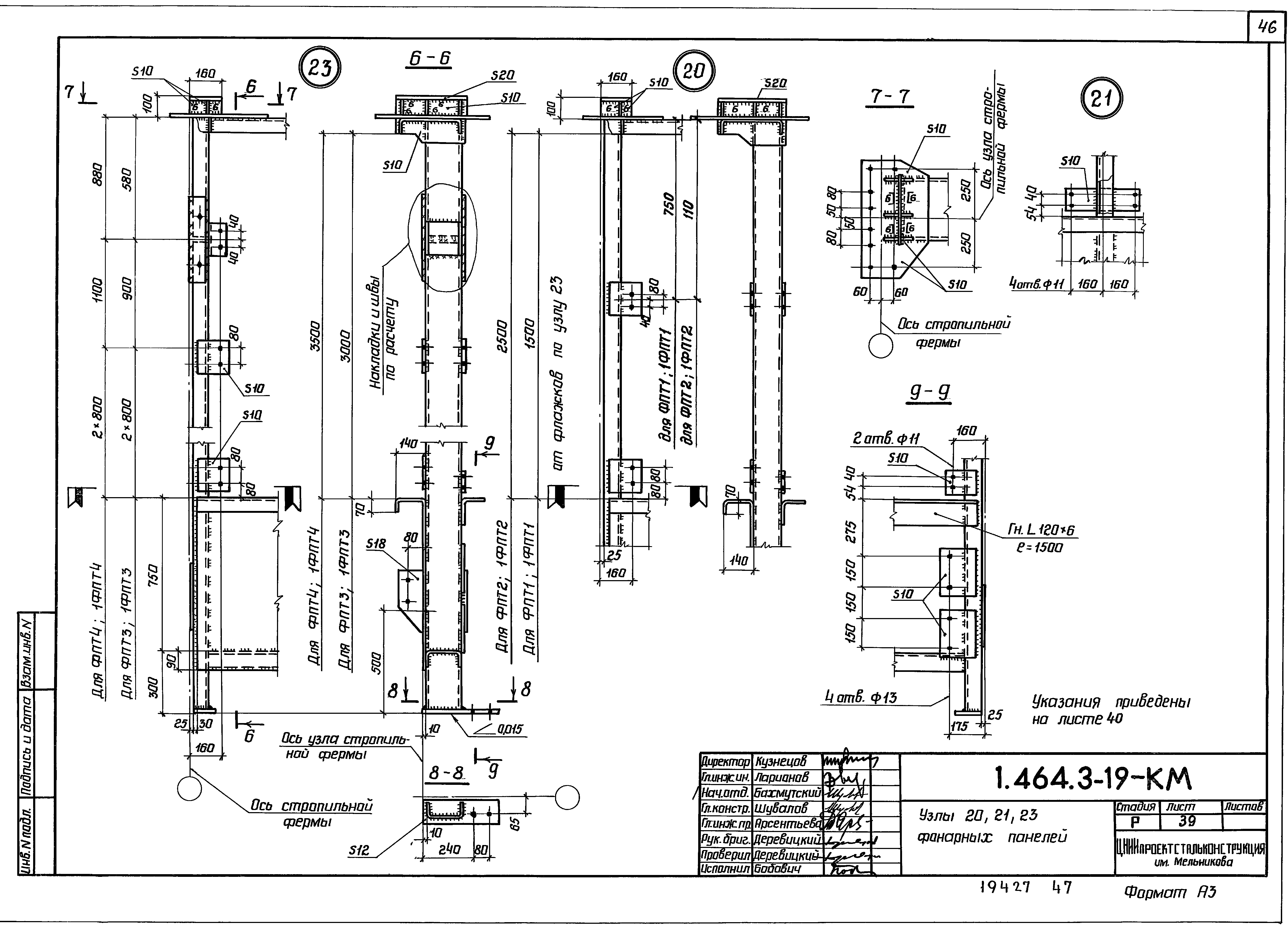
| Оглавление: | 1.464.3-19-КМ-1.1-1.5 Пояснительная записка 1.464.3-19-КМ-2 Нагрузки 1.464.3-19-КМ-3 Схемы расположения конструкций фонарей 1.464.3-19-КМ-4 Схемы расположения конструкций фонарей. Разрезы 1-1,2-2,3-3,4-4,5-5,6-6,7-7,8-8,9-9,10-10 1.464.3-19-КМ-5 Схемы расположения конструкций фонарей. Разрезы 11-11,12-12,13-13,14-14,15-15 1.464.3-19-КМ-6 Таблицы элементов к схемам расположения конструкции фонарей для Нс=1500 и 2500 мм 1.464.3-19-КМ-7 Таблицы элементов к схемам расположения конструкций фонарей для Нс=3000 и 3500 мм 1.464.3-19-КМ-8 Фонарные фермы Ф1,ФТ1,1Ф1,1ФТ1,Ф2,ФТ2,1Ф2,1ФТ2,Ф3,ФТ3,1Ф3,1ФТ3,ф4,ФТ4,1Ф4,1ФТ4 1.464.3-19-КМ-9 Фонарные фермы СФТ1,1СФТ1,СФТ2,1СФТ2,1СФТ2,СФТ3,1СФТ3,СФТ4,1СФТ4 1.464.3-19-КМ-10 Сортамент фонарных ферм 1.464.3-19-КМ-11 Сортамент торцевых фонарных ферм для зданий с расчетной сейсмичностью 7,8 и 9 баллов 1.464.3-19-КМ-12 Фонарные панели ФП1,ФП2,ФПТ1,ФПТ2,1ФП1,1ФП2,1ФПТ1,1ФПТ2 1.464.3-19-КМ-13 Фонарные панели ФП3,ФП4,ФПТ3,ФПТ4,1ФП3,1ФП4,1ФПТ3,1ФПТ4 1.464.3-19-КМ-14 Отправочные элементы фонарных панелей ФП3,ФПТ3,ФП4,ФПТ4,1ФП3,1ФПТ3,1ФП4,1ФПТ4 1.464.3-19-КМ-15 Сортамент фонарных панелей пролетом 6 м 1.464.3-19-КМ-16 Сортамент фонарных панелей пролетом 12 м 1.464.3-19-КМ-17 Панели торцов ПТ1,1ПТ1,ПТ2,1ПТ2,ПТ3,1ПТ3 фонарей шириной 6 и 12 м 1.464.3-19-КМ-18 Панели торцов ПТ4,1ПТ4 фонарей шириной 12 м 1.464.3-19-КМ-19 Сортамент панели торцов 1.464.3-19-КМ-20 Торцевые ветрозащитные панели ТВП1,1ТБП1,ТВП2,1ТВП2 1.464.3-19-КМ-21 Торцевые ветрозащитные панели ТВП3,1ТВП3 1.464.3-19-КМ-22 Торцевые ветрозащитные панели ТВП4,1ТВП4. Узел "Д" 1.464.3-19-КМ-23 Сортамент торцевых ветрозащитных панелей 1.464.3-19-КМ-24 Сортамент подкосов Б2,1Б2,Б3,1Б3,Б4,1Б4 1.464.3-19-КМ-25 Схемы раскладки листов обшивки на панелях торцов и торцевых ветрозащитных панелях 1.464.3-19-КМ-26 Продольные ветрозащитные панели ПВП1,ПВПТ1,ПВП2,ПВПТ2,ПВП3,ПВПТ3 с маркировкой узлов 1.464.3-19-КМ-27 Сортамент продольных ветрозащитных панелей ПВП1,ПВПТ1,ПВП2,ПВПТ2,ПВП3,ПВПТ3 1.464.3-19-КМ-28 Торцевые ветрозащитные панели в межфонарном пространстве для Нс=1500 и 2500 1.464.3-19-КМ-29 Торцевые ветрозащитные панели в межфонарном пространстве для Нс=3000 и 3500 мм 1.464.3-19-КМ-30 Сортамент торцевых ветрозащитных панелей в межфонарном пространстве (для Нс=1500 и 2500 мм) 1.464.3-19-КМ-31 Сортамент торцевых ветрозащитных панелей в межфонарном пространстве (для Нс=3000 и 3500 мм) 1.464.3-19-КМ-32 Сортамент вертикальных связей L=6 м 1.464.3-19-КМ-33 Сортамент вертикальных связей L=12 м 1.464.3-19-КМ-34 Узлы 1-5 фонарных ферм 1.464.3-19-КМ-35 Узлы 6-9 фонарных ферм 1.464.3-19-КМ-36 Узлы 10-13 фонарных ферм 1.464.3-19-КМ-37 Узлы 14-18 фонарных ферм 1.464.3-19-КМ-38 Узлы 19,22 фонарных панелей 1.464.3-19-КМ-39 Узлы 20,21,23 фонарных панелей 1.464.3-19-КМ-40 Узлы 24,25,26 фонарных панелей 1.464.3-19-КМ-41 Узлы 27,28,29 фонарных панелей ФП3,ФП4,ФПТ3,ФПТ4,1ФП3,1ФП4,1ФПТ3,1ФПТ4 при транспортировке 1.464.3-19-КМ-42 Узлы 30,31,32,33,34 панелей торцов и торцевых ветрозащитных панелей 1.464.3-19-КМ-43 Узлы 35,36,37,41,43 панелей торцов и торцевых ветрозащитных панелей 1.464.3-19-КМ-44 Узлы 38,39,40,42,44 панелей торцов и торцевых ветрозащитных панелей 1.464.3-19-КМ-45 Узлы 45,46,47,48 продольных ветрозащитных панелей 1.464.3-19-КМ-46 Узлы 49,50,51,52,53,61 продольных ветрозащитных панелей 1.464.3-19-КМ-47 Узлы 54,55,56,57,58,59,60 продольных ветрозащитных панелей 1.464.3-19-КМ-48 Схемы вертикальных связей с маркировкой заводских узлов 1.464.3-19-КМ-49 Узлы 62-73 вертикальных связей 1.464.3-19-КМ-50 Узлы 74,75,76 вертикальных связей 1.464.3-19-КМ-51 Монтажные узлы 100,101,102,103,104 1.464.3-19-КМ-52 Монтажные узлы 105,106,107,108 1.464.3-19-КМ-53 Монтажные узлы 109,110,111 1.464.3-19-КМ-54 Монтажные узлы 112,113,114,115,116 1.464.3-19-КМ-55 Схемы расположения фонарных створок на фонарных панелях L=6 м и фрагменты фонарных створок у торцов фонарей 1.464.3-19-КМ-56 Схемы расположения фонарных створок на фонарных панелях L=12 м 1.464.3-19-КМ-57 Узлы 77,78 фонарных панелей 1.464.3-19-КМ-58 Узлы 79,80 фонарных створок 1.464.3-19-КМ-59 Фонарные створки "А" и "Б" 1.464.3-19-КМ-60 Узлы 81,82 фонарных створок 1.464.3-19-КМ-61 Узлы 117,118,119 крепления асбестоцементных листов обшивки к конструкциям фонаря 1.464.3-19-КМ-62 Узлы 120,121 крепления асбестоцементных листов обшивки к конструкциям фонаря. Пример раскладки асбестоцементных листов 1.464.3-19-КМ-63 Щит Щ3-170,Щ3-320,Щ3-450,Щ3-760,Щ4-170,Щ4-320,Щ4-450,Щ4-760 1.464.3-19-КМ-64 Щит Щ5-170,Щ5-320,Щ5-450,Щ5-760,Щ6-170,Щ6-320,Щ6-450,Щ6-761,Щ7-170,Щ7-320,Щ7-450,Щ7-760 1.464.3-19-КМ-65 Узел 83 и крепление щитов покрытия 1.464.3-19-КМ-66 Сортамент щитов покрытия 1.464.3-19-КМ-67 Спецификация стали на фонарные фермы 1.464.3-19-КМ-68 Спецификация стали на фонарные панели 1.464.3-19-КМ-69 Спецификация стали на панели торцов и торцевые ветрозащитные панели 1.464.3-19-КМ-70 Спецификация стали на продольные ветрозащитные панели 1.464.3-19-КМ-71 Спецификация стали на щиты покрытия |
| Разработан: | ЦНИИпроектстальконструкция Госстроя |
| Утверждён: | 27.12.1983 Госстрой СССР (Государственный комитет Совета Министров СССР по делам строительства) (USSR Gosstroy 334) |














































































