Скачать Серия 1.273.9-5 Выпуск 2. Облицовки из гипсокартонных листов на металлическом каркасе. Рабочие чертежиДата актуализации: 01.01.2021
|
| Обозначение: | Серия 1.273.9-5 |
| Обозначение англ: | Series 1.273.9-5 |
| Статус: | не определен законодательством |
| Название рус.: | Выпуск 2. Облицовки из гипсокартонных листов на металлическом каркасе. Рабочие чертежи |
| Дата добавления в базу: | 01.09.2013 |
| Дата актуализации: | 01.01.2021 |
| Дата введения: | 01.05.1986 |
| Дата окончания срока действия: | 30.06.2003 |
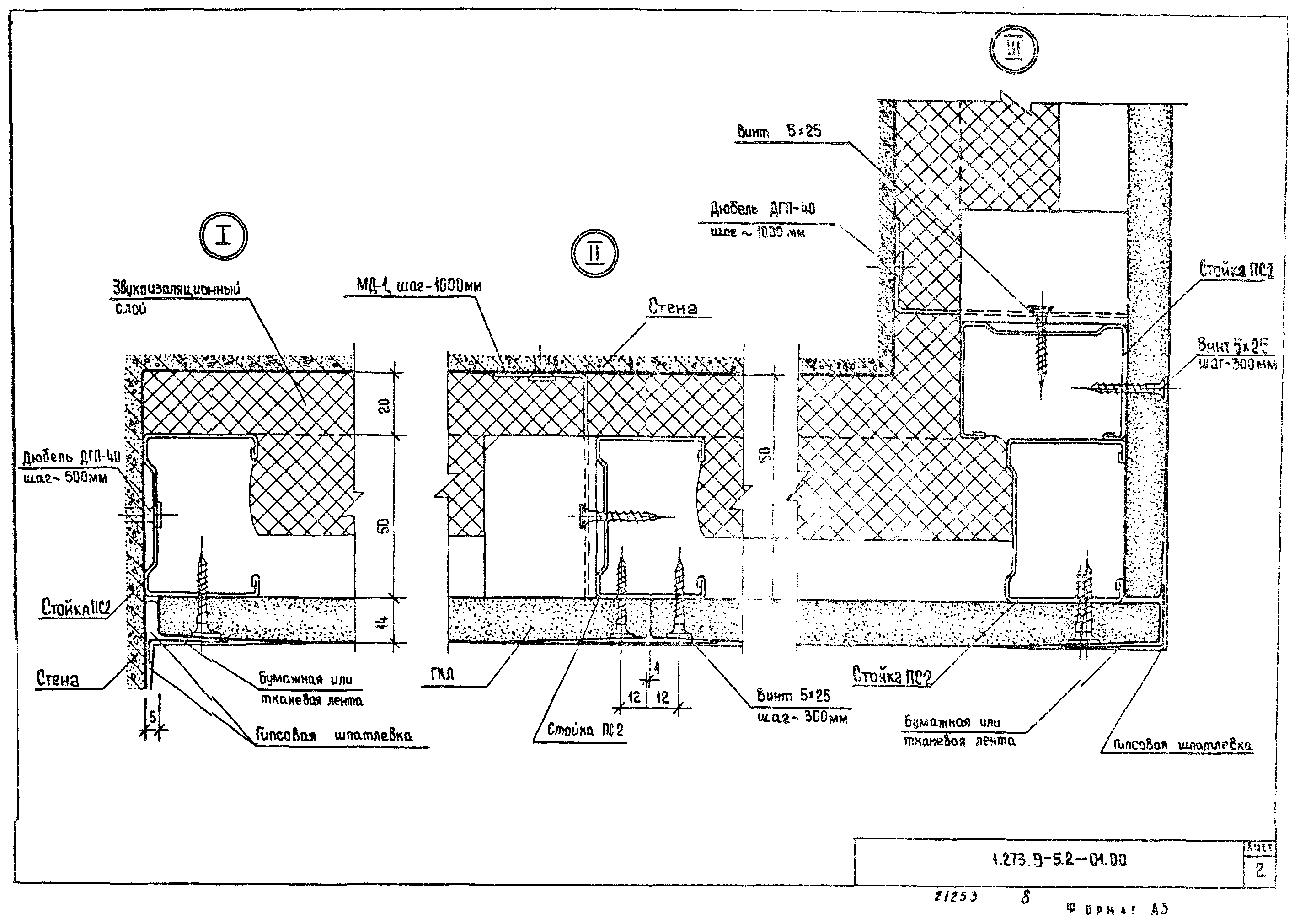
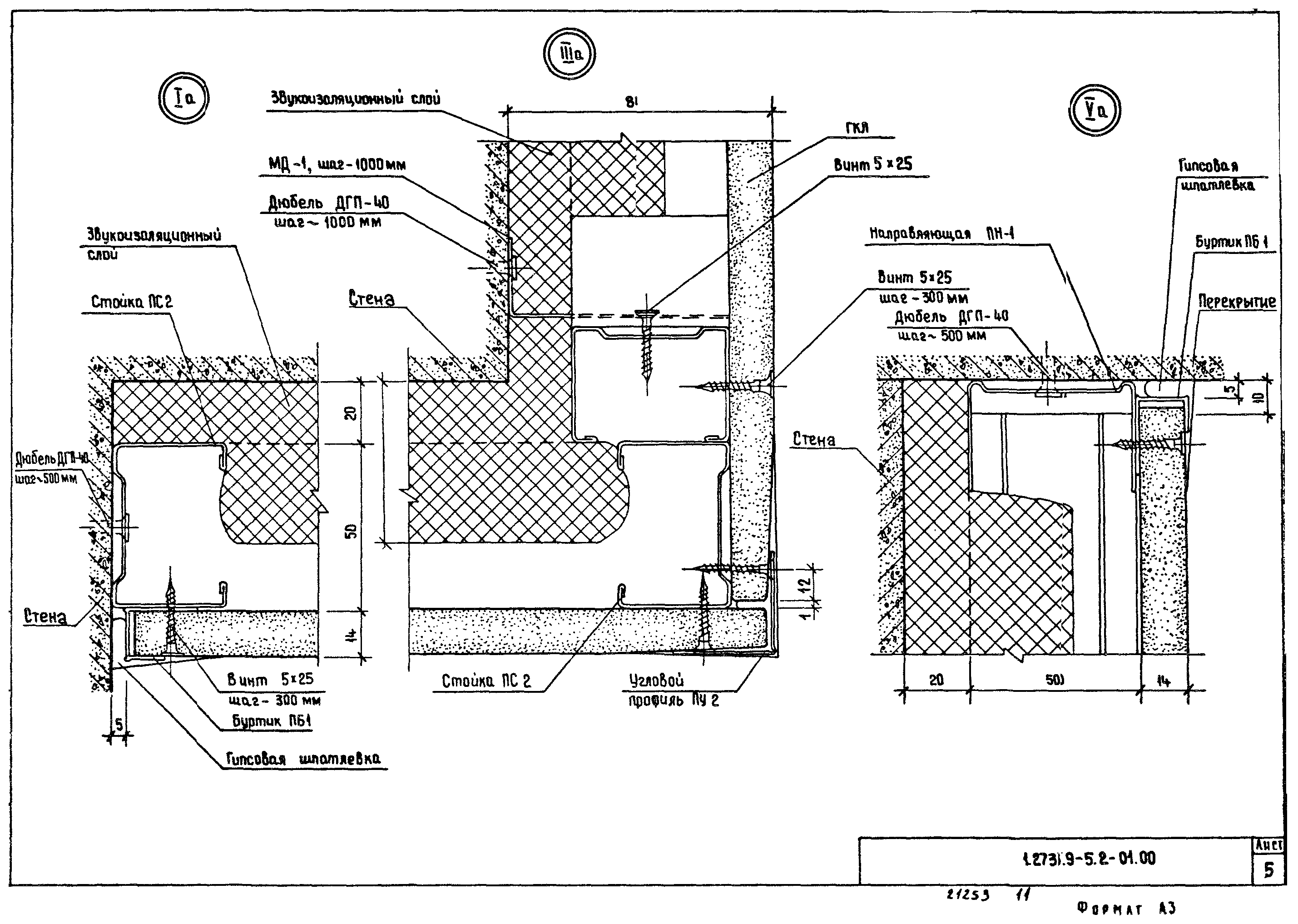
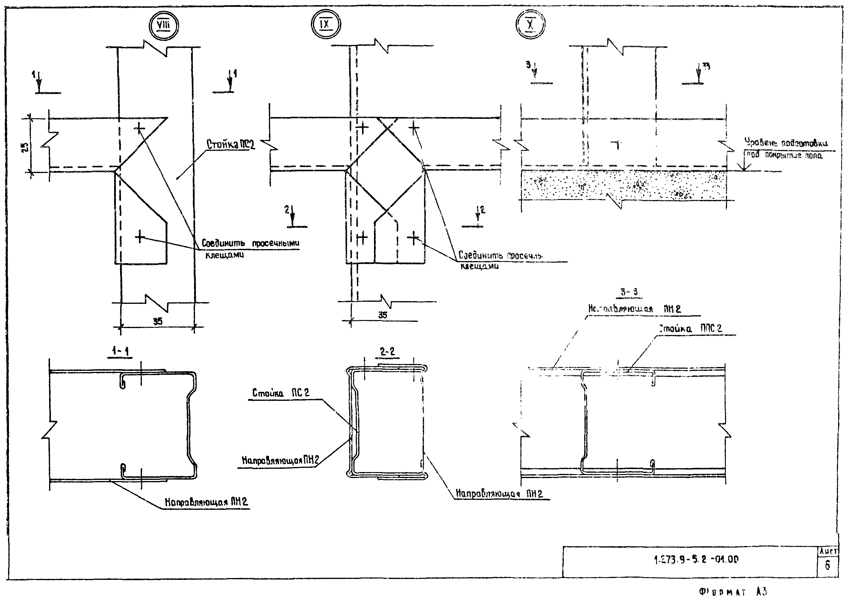
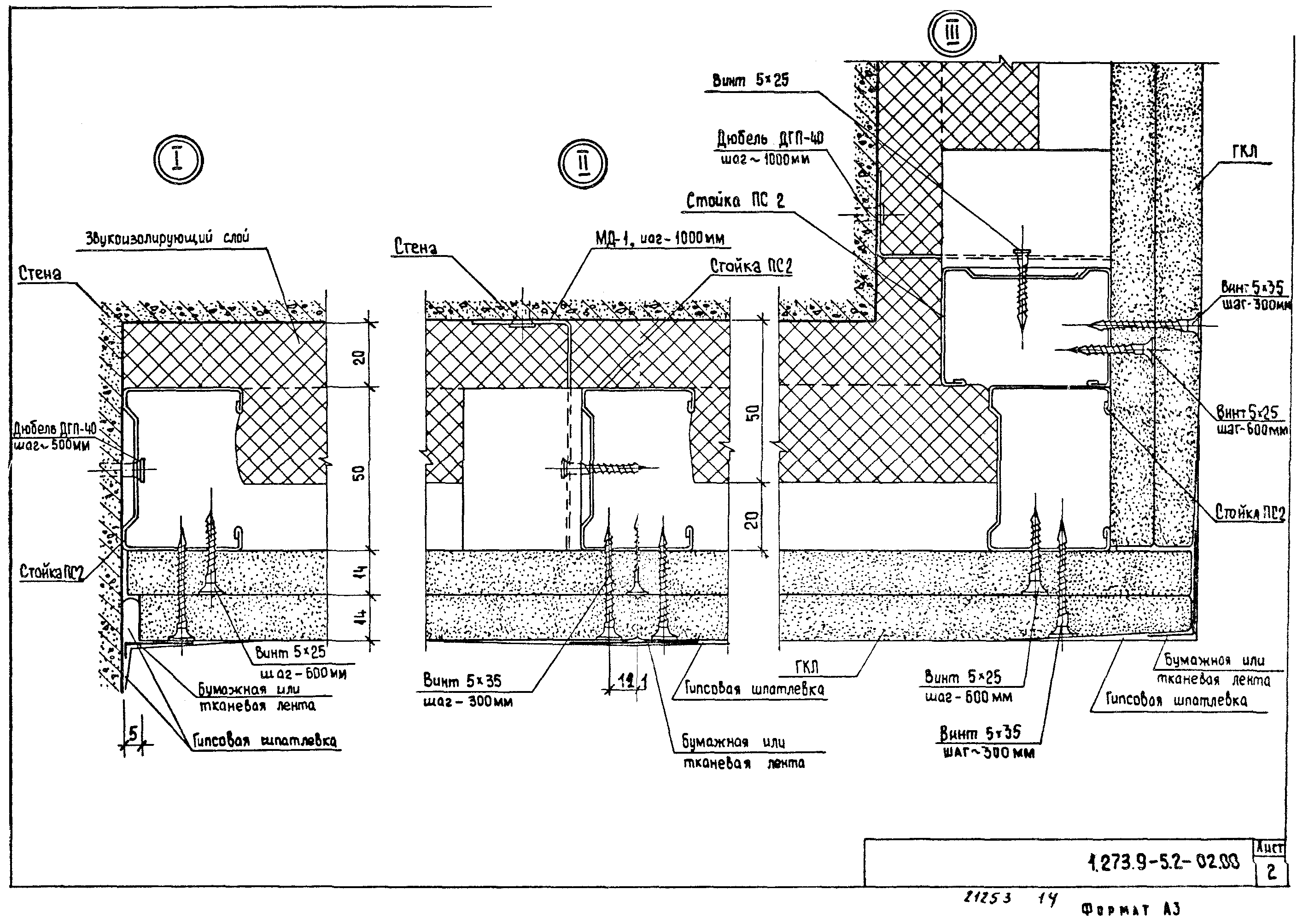
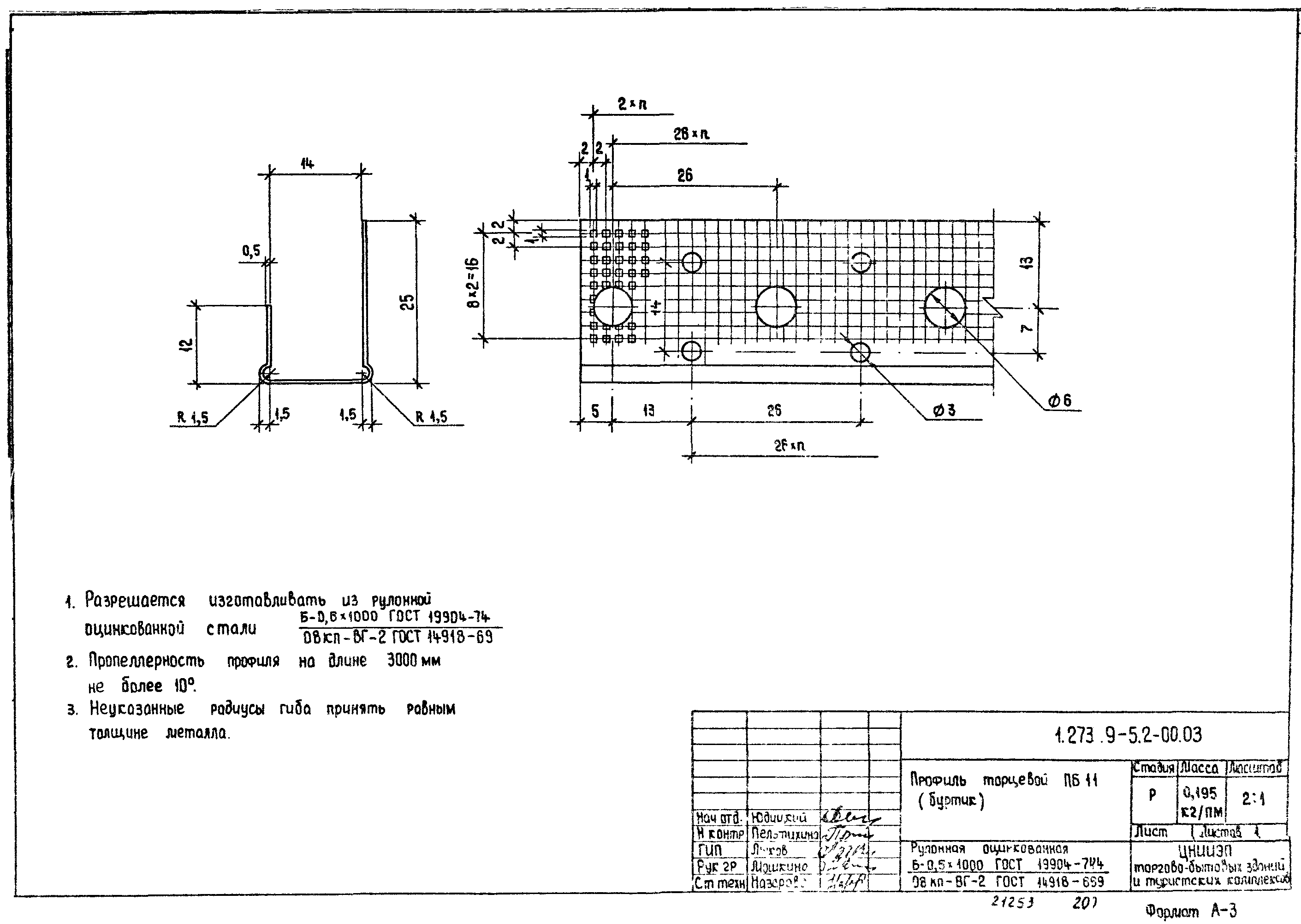
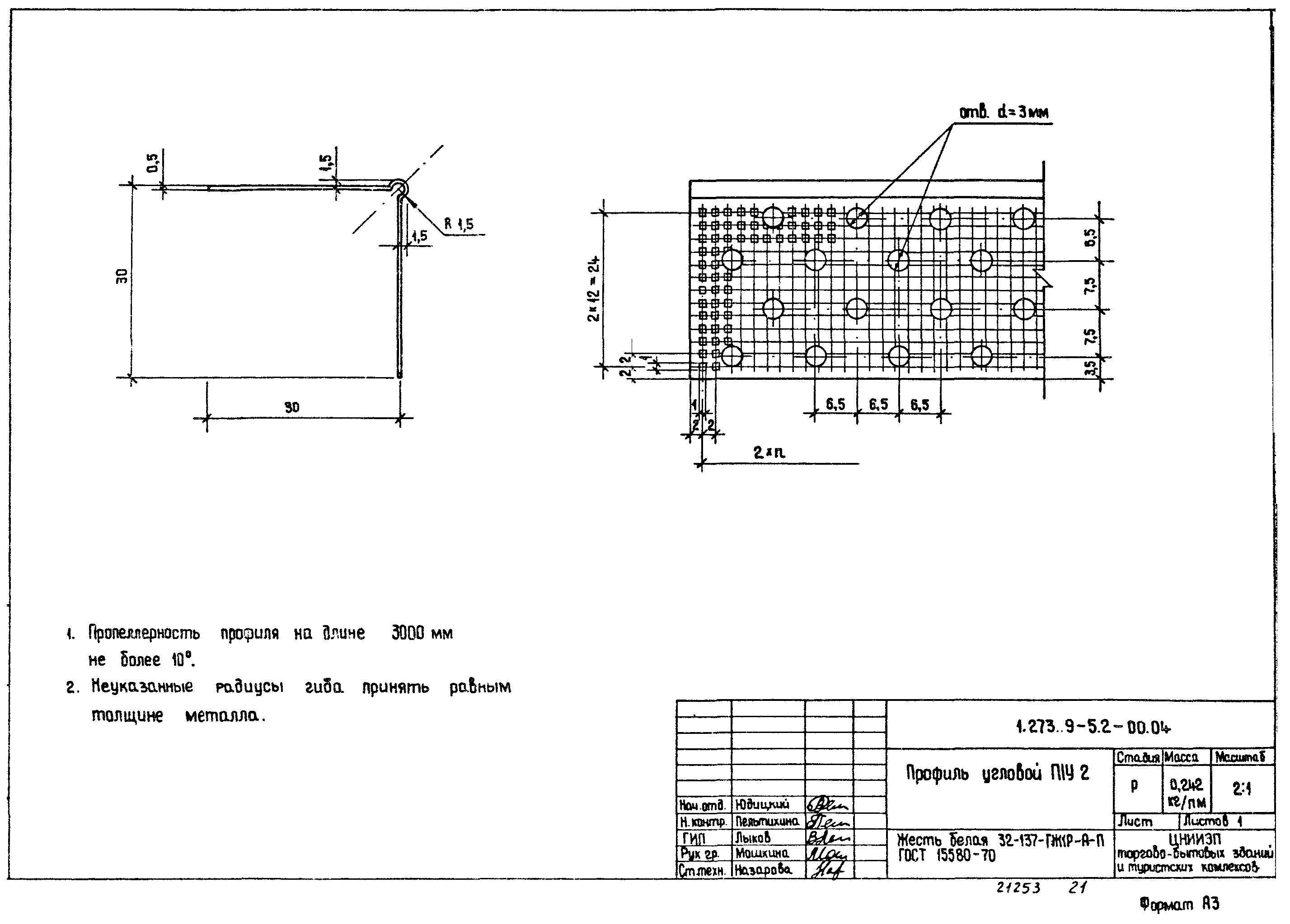
| Оглавление: | 1.273.9-5.2-00.00ПЗ Пояснительная записка 1.273.9-5.2-00.00ВД Ведомость ссылочных документов 1.273.9-5.2-01.00 Облицовка ОГКМ-1м/ОГКМ-1/ (фрагмент). Узлы I - X; Iа, IIIа, Vа. Пример 1.273.9-5.2-02.00 Облицовка ОГКМ-2м/ОГКМ-2/ (фрагмент). Узлы I - VII; Iа, IIIа, Vа Пример 1.273.9-5.2-03.00 Примеры установки анкера падающего, крючка, анкера проходного и дюбеля разжимного 1.273.9-5.2-00.01 Профиль стойка ПС2 1.273.9-5.2-00.02 Профиль направляющий ПН2 1.273.9-5.2-00.03 Профиль торцевой ПБ1/буртик/ 1.273.9-5.2-00.04 Профиль угловой ПУ2 1.273.9-5.2-00.05 Монтажная деталь МД-1 (обрезок ПС2, L = 100 мм) 1.273.9-5.2-00.06 Крючок 1.273.9-5.2-00.07 Анкер проходной 1.273.9-5.2-00.08 Анкер падающий 1.273.9-5.2-00.09 Дюбель разжимной 1.273.9-5.2-00.10 Винт 1.273.9-5.2-00.11 Дюбель-гвоздь |
| Разработан: | ЦНИИЭП торгово-бытовых зданий и туристских комплексов |
| Утверждён: | 28.03.1986 Государственный комитет по гражданскому строительству и архитектуре при Госстрое СССР (114) |
| Издан: | ЦИТП Госстроя СССР (CITP, Gosstroy (USSR) 1988 г. ) |
| Заменяет собой: |

























